Планировка комнаты студии – планировка, интерьер и фото примеры удачного обустройства
основные принципы, идеи дизайна, фото
В жизни всё происходит циклично. На протяжении сотен лет семьи, состоящие из большого числа людей, ютились в одной большой комнате, устанавливая различного рода заслоны для создания собственных уголков. В советский период увеличился спрос на квартиры с несколькими, пусть маленькими, но выделенными комнатами.
Сегодня вновь появилась мода на просторные помещения, где зоны отделяются не стенами, а фактурой отделочных материалов, цветом или лёгкими перегородками. Квартиры-студии стали престижным и дорогостоящим жильём. Дизайнеры получили возможность осуществлять свои фантазии по планировке и организации больших пространств, где можно применять различные комбинации порой несовместимых вещей.
Планировка квартиры-студии должна учитывать пожелания всех проживающих и органично объединять в себе разные зоны назначения в единую композицию.
Что представляет собой квартира-студия
Квартира-студия представляет собой единое жилое пространство, в котором отделён стенами только санузел. Все остальные зоны находятся в одной большой комнате.
Принципы планировки
Главным принципом планировки квартиры-студии является отсутствие бесполезного пространства. Коридоры и маленькие угрюмые комнаты уходят в прошлое. В помещении должно быть много свободного места, воздуха и света.
Преимущества и недостатки жилого помещения без перегородок
К преимуществам жизни в студии можно отнести большое количество воздуха, а значит человек получает чувство свободы. Даже самая маленькая квартирка после сноса стен становится намного больше по площади, соответственно в ней можно разместить несколько функциональных зон.
Дизайнер получает возможность творить и воплощать в реальность любые задумки, не ограничиваясь глухими перегородками.
Однако у такого жилья есть и недостатки:
- студия предполагает, что в ней будет проживать не более двух человек. В противном случае постоянное нахождение большого числа людей в одной комнате будет напрягать и раздражать. Если же молодая семейная пара живёт в разном ритме — это тоже может стать проблемой. Когда один человек поднялся с кровати и занялся какими-то делами, другой также вынужден будет проснуться;
- запах и шум во время готовки будет слышен во всей квартире;
- отсутствует место для уединения.
Таким образом, можно сделать вывод, что для одного человека квартира-студия практически не имеет недостатков. Однако второй, а тем более третий проживающий добавит неудобств.
Варианты зонирования пространства
Студия предполагает обязательное зонирование территории в зависимости от её назначения. Вариантов разграничения несколько. Это могут быть лёгкие перегородки, разделение при помощи мебели, отделочных материалов или цветовой гаммы.
Выделяют следующие условные зоны:
- Место готовки и принятия пищи — следует помнить, что запахи из кухни распространяются по всей квартире. Поэтому необходимо оснастить эту зону мощной вытяжкой.

В зоне приготовления пищи необходимо установить мощную вытяжку, чтобы избежать распространения запахов в квартире
- Рабочее пространство — если обладатель квартиры часто работает дома, нужно обеспечить место для работы. Небольшой стол, находящийся внутри шкафа, удобен в использовании, при этом не будет отвлекать внимание во время других занятий.

Рабочее место можно спрятать в шкафу
- Место для отдыха — хорошо, когда есть место для установки кровати. Хороший комфортный сон является обязательным атрибутом для полноценной жизни. В случае отсутствия такой зоны, спать придётся на диване, расположенном обычно в центральной части квартиры.

Перегородка и шкаф создают ощущение уединенности
- Санитарная зона. Ванная и туалет — единственное место в квартире, которое обязательно отделяется стационарными стенами.
Санузел в квартире-студии, как правило, невелик по площади и требует
- В любой квартире должны быть шкафы или полки для хранения одежды и предметов быта. Студия не является исключением, поэтому стоит заранее продумать варианты организации системы хранения вещей.

Для установки шкафа-купе можно использовать нишу
Общие правила подбора мебели
Квартира-студия предполагает единый стиль. Это значит, что все элементы — от кухонного гарнитура до зоны спальни и места приёма гостей, должны гармонично сочетаться и подчёркивать созданный дизайн интерьера.
Ещё одно немаловажное правило подбора мебели для свободной планировки в малогабаритных квартирах — функциональность. Любой предмет должен быть полезен. Журнальный столик трансформируется в большой обеденный стол. Диван может использоваться в качестве кровати. Встроенный шкаф при необходимости включает в себя специальные приспособления для возможности ежедневной эксплуатации самых дальних участков.
Правильное освещение

Для каждой зоны в квартире-студии используется индивидуальный источник освещения
Единственная люстра, висящая в центре комнаты, ушла в далёкое прошлое. Сегодня наступило время функциональной системы освещения. Вместе с основными электроточками, обеспечивающими равномерный свет во всей квартире, должны зажигаться выделенные зоны. При необходимости подсветить рабочую поверхность в кухне необязательно тратить электроэнергию, задействованную во всем жилом пространстве. Таким образом, каждая функциональная зона должна быть обеспечена индивидуальными софитами, бра, светильниками или другими приборами.
Использование разного уровня яркости создаст в помещении необходимое настроение.
Популярные стили оформления
Небольшие студии, переоборудованные из малогабаритных квартир, используют буквально каждый сантиметр. При этом должна выполняться главная задача — обеспечение свободного пространства. Для таких вариантов подойдут современные стили — хай-тек или минимализм.
Жилые помещения, имеющие большую площадь, могут использовать и другие стили. Классика с массивной мебелью и шикарным оформлением во все времена остаётся востребованной. Модерн привлекает своей оригинальностью. Он часто комбинируется с популярным сегодня экостилем.
Молодёжь зачастую предпочитает этнический скандинавский интерьер с элементами Лофта. Неординарные личности, любящие пофилософствовать, выбирают восточные эскизы. Прованс перекликается с деревенскими мотивами.
Этапы планировки
- В первую очередь необходимо избавиться от всех ненужных перегородок. Создаётся единое пространство. Стоит помнить о том, что любые изменения в планировке следует узаконить в соответствующих инстанциях. Несущие стены трогать запрещено, это может привести к трагическим последствиям.
- На следующем этапе определяются зоны, которые необходимы для жизни в квартире. Нужно заранее продумать возможности освещения каждого участка.
- Выбор цветовой гаммы и фактуры отделочных материалов — важный этап. Для зрительного увеличения пространства рекомендовано использовать светлые тона.
- Основная палитра сохраняется по всей площади единого пространства. Более глубокие оттенки выделяют функциональные зоны.
- Мебель должна подчёркивать выбранный стиль. В небольших квартирах отдаётся предпочтение многофункциональным предметам интерьера.
- Завершающим этапом станут дополнительные элементы декора в виде текстиля и аксессуаров. Они вдохнут в помещение душу и обеспечат необходимое настроение.
Варианты планировки для разной площади и формы помещения
Каждая квартира индивидуальна. Некоторые помещения имеют схожие особенности — достоинства или недостатки, которые можно подчеркнуть или скрыть проверенными способами.
Особенности планировки квартиры-студии для семьи с ребёнком
Квартира-студия для семьи с ребёнком — не самый удобный вариант. Однако при рациональном обустройстве жилья первые несколько лет жизни малыша можно провести в такой квартире.

Использование перегородки — один из способов разделить детское и взрослое спальные места
Семейная кровать для взрослых отделяется от остальной части квартиры раздвижными перегородками. В дневное время помещение имеет единую композицию, ночью образуется небольшая комната.

Простой гипсокартонный короб поможет создать игровую зону для подросшего малыша
Для полноценного развития ребёнка необходимо выделить достаточную площадь, в которой не будет загромождений, появится место для будущих игр. Невысокая конструкция из гипсокартона разделит комнату на зоны.

Вместо межкомнатной двери хорошо использовать шторы
Зонирование комнаты при помощи лёгких штор позволит создать собственный уголок, необходимый для самого младшего члена семьи.

Кровать-чердак — отличное решение для малогабаритной студии
Кровать-чердак для ребёнка значительно сэкономит пространство в комнате. Под спальным местом расположился холодильник и полки для хранения вещей.

Спальный гарнитур на рельсах в дневное время легко сдвигается, освобождая место для игр
Нестандартное, при этом очень интересное решение планировки небольшой квартиры-студии предлагает использование двигающегося по рельсам гарнитура. В дневное время кровать прячется в нишу. На диване можно расположить третьего члена семьи. При этом в комнате остаётся достаточно места для подвижных игр.
Планировка маленькой квартиры с лоджией

Лоджия в квартире-студии — это дополнительная площадь
Простые и лаконичные материалы светлых оттенков зрительно увеличат пространство в малогабаритной квартире-студии. Наличие лоджии позволит физически расширить полезную площадь.

Утеплённый балкон может играть роль ниши
Утеплённый балкон позволит создать дополнительную зону, которая выполнена в едином стиле со всей квартирой. Удобное оригинальное кресло у большого окна станет приятным бонусом в небольшой квартире-студии.

Стеклянная дверь лоджии зрительно увеличивает помещение без объединения с жилой зоной
Лоджию не обязательно объединять с основным помещением. Для увеличения площади достаточно использовать балкон в качестве жилой зоны — места для отдыха. При необходимости уединиться раздвижные стеклянные двери можно закрыть.

Оригинальное решение для лоджии как рабочего кабинета
Утеплённый балкон часто используют в качестве рабочей зоны. При этом необязательно демонтировать стену под внутренним окном. Её можно преобразовать в оригинальную деталь интерьера.

Можно также расширить кухню за счёт лоджии
Возможность переноса кухонных коммуникаций в зону лоджии создаёт новые варианты для планировки. В этом случае освобождается дополнительное пространство для других целей. Зона приготовления еды не будет нуждаться в искусственном освещении в светлое время суток.
Планировка квартиры-студии с одним окном

Большое окно — хорошее преимущество
Единственное окно на всю студию уменьшает количество естественного дневного освещения. Но при правильно подобранной цветовой гамме проблема решается довольно успешно.

Стеклянные перегородки могут решить проблему недостатка света
Небольшие студии с одним окном не оставляют возможностей для полёта фантазии. Чаще всего кухня располагается на входе. Стеклянные раздвижные перегородки позволят избежать запахов в момент готовки. В остальное время небольшая по площади квартира будет иметь единую композицию. Зеркальная стена зрительно увеличит площадь помещения.

Кровать лучше всего расположить у окна
Если габариты квартиры позволяют выделить место для полноценной кровати, в помещении с одним окном наиболее приемлемым вариантом для этого выступает зона у окна. Место для отдыха не должно быть проходным.

Барная стойка в данном случае разделяет помещение на зоны и выполняет роль обеденного стола
Студии с единственным оконным проёмом зачастую имеют идентичное расположение функциональных зон. На входе размещается кухня, далее гостиная, которая одновременно выступает местом для сна. Зона приготовления еды отделена от жилого пространства барной стойкой. Она же выполняет функцию обеденного стола.

При использовании раздвижных дверей для разграничении зон следует добавить дополнительные светильники
Раздвижные двери между гостевой зоной и местом для отдыха позволят уединиться одному из проживающих в квартире-студии. Стоит учитывать, что в этот момент центральная комната остаётся без естественного освещения — необходимо заблаговременно позаботиться о монтаже дополнительных светильников.
Планировка двухуровневой квартиры-студии

При наличии достаточно высоких потолков в квартиру студию можно добавить еще один ярус
Квартиры с потолками, высота которых превышает четыре метра, можно преобразовать в двухуровневые студии. На основном этаже располагается место для готовки и гостевая зона. Второй ярус выделен под спальню. Даже если в комнате много гостей, один из проживающих всегда сможет подняться наверх и побыть в одиночестве.

Помещения в двухуровневых студиях следует решать в едином стиле
Двухуровневые студии всегда выполнены в едином стиле с одинаковой цветовой палитрой. При таком расположении функциональных зон режим дня одного из проживающих не будет зависеть от бодрствования или сна супруга.

В квартире-студии под самой крышей можно обустроить полноценный второй этаж
Некоторые застройщики многоквартирных домов предлагают к продаже квартиры на верхних этажах, потолки которых позволяют сделать два полноценных этажа. При такой планировке наиболее приемлемым вариантом выступает гостевая зона и кухня на нижнем этаже, выполненная в виде студии, а также размещение санузла. Другая половина квартиры включает спальную зону. В зависимости от площади помещения и количества проживающих людей комнат на втором ярусе может быть несколько.

Наличие дополнительного яруса позволяет разграничить спальные места
Иногда в небольшой квартире приходится ютиться нескольким людям, для которых необходимы индивидуальные зоны отдыха. Высокий потолок может решить эту проблему. По примеру двухъярусных кроватей наращиваются двухуровневые спальни.

Пример использования натуральных материалов в интерьере двухуровневой студии
Даже самую миниатюрную жилую площадь можно обустроить таким образом, чтобы проживающему на ней человеку было комфортно. Использование качественных натуральных материалов сгладит ощущение тесноты. Аккуратная маленькая кухня с барной стойкой вместо стола расположена у самого входа в квартиру. Над ней располагается небольшая, но вместительная спальня.
Большая квартира-студия
На первый взгляд кажется, что создать интерьер квартиры-студии большого размера не составит труда. На самом деле, такая задача под силу не каждому дизайнеру. Главной целью выступает не использование каждого метра площади, а гармоничное наполнение пространства.

На этом фото хорошо видно, как можно разделить интерьер на зоны без дополнительных перегородок
Активные жизнерадостные семейные пары иногда предпочитают из многокомнатной квартиры создать единый интерьер. Отсутствие перегородок даже в спальне добавляет простора и воздуха. Зональность выделена лишь ковровым покрытием и незначительными деталями.

Обилие естественного света сглажено элементами темных тонов
Яркий пример идеального мужского жилища. Большое число окон обеспечивает естественное освещение. Чёрные тона, в том числе кирпичная стена тёмного цвета, компенсируют излишнюю яркость.

Пастельные тона и цветочные принты делают помещение светлее и уютнее
Прованс воплощает в себе мечты обустройства квартиры-студии для женщины с романтичной натурой. Светлые тёплые краски создают умиротворяющее настроение. Лёгкие перегородки разграничивают пространство на необходимые зоны.

В данном интерьере композиция строится вокруг двуспальной кровати
Спокойные тона и натуральные отделочные материалы создают эффект экологичности и естественности. Композиционным центром выступает большая двуспальная кровать, прикрытая лёгкими занавесками.

Вместо радикального демонтажа стен можно сделать широкие арочные проёмы
В стандартной трёхкомнатной квартире для создания студии необязательно полностью демонтировать все стены. Широкие арки создадут ощущение цельного пространства, при этом каждая зона выделена небольшими перегородками.
Оригинальные идеи и интерьерные новинки

Подвесная кровать позволяет сэкономить место в малогабаритной студии
Подвесная кровать в дневное время поднимается к потолку и не занимает лишнее пространство.

В данном случае спальное место отделено глухими занавесками и гипсокартонной конструкцией
Кровать, расположенная в нише, спрятана за аккуратными портьерами. Простота в оформлении подчёркивает лаконичность интерьера.

Кровать можно разместить на возвышении, которое может использоваться как место для хранения
Спальное место может располагаться на возвышенности. В нижней части организована система хранения вещей.

Стиль лофт не предполагает большого количества мебели и подойдет активным молодым людям
Недостаток мебели не всегда влечёт за собой отсутствие стиля. Абсолютно белые стены с некоторыми элементами лофта снимают внутренние рамки человека. Такое оформление подойдёт для людей, ценящих внутреннюю свободу и любящих путешествовать.

Оригинальное решение спального места
Ярким акцентом в студии выступает зона для сна. Уникальность состоит в том, что место отдыха можно без труда передвигать по комнате.
Фотогалерея — примеры удачной планировки квартиры-студии
Опыт последних лет показал, что студия представляет собой идеальную планировку для одного человека или молодой семейной пары. Даже самое небольшое помещение можно обустроить таким образом, чтобы вся необходимая мебель была под рукой. Придерживаясь определённых правил, можно создать прекрасную атмосферу. Распространение получили и большие студии, которые образовались путём объединения сразу нескольких комнат.
Оцените статью: Поделитесь с друзьями!Не нашли то, что искали? Вернитесь к поиску планировок квартир по параметрам типового проекта. Поддержите проект, расскажите о tipdoma.com в социальных сетях:
tipdoma.com
планировка, интерьер и фото, варианты стилей
В настоящее время сложно дать чёткое определение, что такое квартира-студия. Само название пришло из Америки, где отсутствие внутренних перегородок считается наиболее популярным видом планировки жилых помещений. В данном обзоре мы рассмотрим, в чём причина популярности квартиры-студии, а фото дизайна интерьеров помогут лучше разобраться в этом.
Фото однокомнатной квартиры-студииЧитайте в статье
Квартира-студия – что это такое
Основной особенностью квартиры-студии является практически полное отсутствие внутренних перегородок и межкомнатных дверей. Такой вид планировки был особенно популярен среди американской «золотой» молодёжи и богемы. Позднее квартиры-студии стали востребованы и среди других слоёв населения, а в России даже перешли в разряд элитного жилья. Жильё с подобной планировкой, как правило, выбирают одинокие люди или бездетные пары, которые не планируют обзаводиться потомством в ближайшие годы.
Подобный спрос вызван желанием отойти от общепринятых стандартов и жить в квартире, полностью обустроенной в соответствии со своими пожеланиями. Отсутствие внутренних стен визуально расширяет пространство и даёт полную свободу при создании интерьеров. Роль перегородок выполняет разделение помещения на различные функциональные зоны.
Плюсы и минусы квартиры-студии
Такое жильё, как квартира-студия, прекрасно подходит для современной молодёжи, не отягощённой бытовыми проблемами и любящей устраивать шумные и массовые вечеринки. Также подобная планировка помещений пользуется популярностью среди меломанов, из-за хороших акустических характеристик, и у скульпторов и художников.
Возьмите на заметку:
Чтобы получить хорошую освещённость, нужно использовать лёгкие шторы и прозрачные перегородкиНа этом достоинства не заканчиваются, и среди несомненных преимуществ стоит отметить следующее:
- простор и хорошая освещённость;
- квартиру в любой момент можно переоборудовать под выполнение самых различных функций;
- площадь увеличивается за счёт отсутствия внутренних перегородок, а мебель может использоваться для разделения квартиры на разные функциональные зоны;
- сокращение расстояний между различными зонами;
- помещение может быть обустроено практически в любом стиле, что даёт большие возможности дизайнеру.
Однако, как и у всего на этом свете, у квартир-студий имеются свои недостатки, которые вынуждают отказаться от такой планировки. Переоборудование жилья требует значительных капиталовложений. К недостаткам можно отнести также:
- квартиры подобной планировки подходят только для бездетной семьи из двух человек;
- не каждое помещение может быть переоборудовано в студию, поскольку не всегда разрешается снос внутренних перегородок;
- изменение планировки требует разрешения, дополнительных затрат по времени и финансам;
- вследствие небольших размеров ванной комнаты, придётся устанавливать душевую кабинку;
- отсутствие внутренних стен между кухней и остальной квартирой становится причиной быстрого распространения запахов и шума. Проблему запахов можно легко решить при помощи установки мощной вытяжки, к тому же владельцы подобных квартир практически не готовят еду в домашних условиях.
Что можно использовать вместо стен в квартире-студии
Единственными стенами в квартире-студии являются несущие конструкции, которые просто невозможно или нельзя убирать. В качестве внутренних или межкомнатных перегородок используются ширмы, мебель, большие аквариумы и т.п. Посредством подобных элементов можно разделить квартиру на различные функциональные зоны.
Так, например, посредством складной ширмы или большого аквариума можно отделить спальное место, а при помощи барной стойки эффектно отделяется кухня от остальной квартиры. Даже мягкий уголок или журнальный столик могут стать хорошим разделителем зон.
Аквариум на невысокой перегородке прекрасно отделяет зону кухни от гостинойНаличие капитальных внутренних перегородок необходимо только для обустройства санитарной зоны (туалет и душевая).
Планирование и обустройство функциональных зон
Зонирование квартиры-студии является неотъемлемой частью обустройства помещения с подобной планировкой. В первую очередь определяется зона кухни, после – рабочее место, гостиная и спальное место. Только после этого можно приступать к выбору способа зонирования квартиры.
Наглядный пример разделения на гостиную и спальнюОбустройство кухонной и обеденной зоны
На кухонную зону отводится меньше места, чем, например, на гостиную, ведь в неё нужно вместить большое количество различных необходимых вещей. Даже если вы привыкли питаться вне дома, то базовый набор кухонных принадлежностей всё-таки должен присутствовать в квартире. В этом случае на помощь приходят профессиональные трюки дизайнеров:
- использование компактной встроенной кухонной техники;
- отказаться от громоздкой бытовой техники или же отдать предпочтение многофункциональным приборам. Например, вместо традиционной пароварки установить мультиварку;
- установка мощной вытяжки и эффективной вентиляционной системы, особенно если предполагается частая готовка в домашних условиях;
- максимально и эффективно использовать места хранения;
- желательно размещать кухонную зону в нишах и возводить невысокую стационарную перегородку или барную стойку. На перегородку, со стороны гостиной, можно навесить телевизор, а поверхность, выходящую на кухню, облицевать стеклом.
Статья по теме:
Фото кухни в квартире-студииПерегородки для зонирования пространства в комнате. Из публикации Вы узнаете функции, типы, материалы изготовления и разновидности конструкций перегородок, а также найдете фото-примеры стеклянных, гипсокартонных, деревянных и других изделий.
Как правило, обеденные столы являются неотъемлемой частью кухонной зоны. Однако в больших квартирах-студиях можно создать отдельную столовую зону между кухней и гостиной. Таким способом решится вопрос зонирования и комфортности. Необходимо учитывать, что вокруг стола должно быть достаточно свободного места, чтобы можно было без проблем выйти из-за него.
Стол, он же и разграничитель между кухней и гостинойЗона гостиной
На зону гостиной отводится основная площадь квартиры, это вызвано необходимостью обеспечить достаточную комфортность времяпрепровождения. Для зоны отдыха рекомендуется приобрести компактную и многофункциональную мебель, например, диван или стол-трансформер.
Зона гостиной выглядит довольно уютноПри обустройстве в гостиной рабочего места желательно располагать его ближе к окнам. На это есть несколько причин, а именно: лучшая освещённость, а если имеется широкий подоконник, то его можно использовать как дополнительную рабочую поверхность стола.
Для окон в гостиной зоне предпочтительнее выбирать рулонные шторы, жалюзи или занавеси из лёгких материалов.
Спальня и рабочая зона в квартире-студии
Спальня и рабочее место в интерьере-студииВ том случае если площадь квартиры позволяет, то спальную зону лучше всего полностью отделить от гостиной. Спальня должна располагаться как можно дальше от входа в студию. Если же нет возможности полностью отделить спальное место, для зонирования можно использовать ширмы, шторы или невысокие гипсокартонные перегородки. Иногда в спальной зоне оборудуется место для работы, но лучше всего вынести его на застеклённую и утеплённую лоджию или балкон.
Рабочее место лучше расположить у окна ради хорошей освещённостиВиды напольных покрытий для квартир-студий
Зонирование квартиры-студии можно выполнить не только при помощи перегородок, ширм и мебели. Для выделения различных зон в жилом помещении прекрасно подойдёт использование разных видов напольного покрытия, которое следует выбирать, исходя из их функционального назначения.
Различные виды напольного покрытия, да ещё разных цветов, как нельзя лучше подходят для зонирования пространстваДля столовой, гостиной или рабочей зоны желательно выбирать паркет или ламинат, для кухни, прихожей или ванной – камень или керамогранитную плитку, а для спальни или детской комнаты отличным вариантом станет ковролин или паласы. Разграничение зон можно выполнить, исходя из общей концепции дизайна интерьера квартиры-студии. Это могут быть прямые или волнистые переходы, а контрасты в цвете напольного покрытия только сильнее подчеркнут эффект зонирования. Очень часто для определения зон используют подиумы.
Пол в кухонной зоне лучше делать из керамогранита, а в жилой − из ламинированной доскиПотолки в интерьере студии
Для квартиры-студии прекрасно подойдут многоуровневые натяжные или гипсокартонные потолки. Если же однокомнатное помещение не отличается высокими потолками, то можно не устраивать сложные конструкции, чтобы не создавать ощущение давления.
Белый натяжной потолок визуально придаст студии ещё больше пространстваНаименее популярный вид потолочного покрытия – покраска. Но этот вариант недолговечен, требует больших усилий для подготовки и не позволяет скрыть дефекты потолка. Более доступный способ декорирования потолка – пенопо
housechief.ru
Квартира студия интерьер планировки, дизайн-фото, готовые решения
В этой статье мы затронем одну из насущных проблем современного общества, это «квартирный вопрос». Существует в последние годы мода на малогабаритное жилье, повсюду застраивают новостройки, с так называемыми студиями. Квартира студия интерьер планировки, вот о чем хочет знать, каждый новоиспеченный владелец современного доступного жилья. Давайте изучим этот вид жилья и попытаемся превратить 25 м², в идеально спроектированное, комфортабельное жилье.

Квартира студия интерьер планировки: история появления?
Для начала, предлагаю немного окунуться в историю. Представим себе, на дворе начало XX века, центр Соединенных Штатов Америки атакуют толпы иммигрантов. Дешевой квартирной площади на всех катастрофически не хватало, да и она попросту отсутствовала. Поэтому выходили из положения застройкой дешевого, малогабаритного жилья. Такая возможность улучшить «квартирный вопрос», пришлась по душе не только беглым иммигрантам, но и малообеспеченным гражданам США, а уже в конце 90-ых в таком жилье смогли поселиться и наши граждане.
Квартира студия интерьер планировки тех времен, содержала в себе минимальный набор необходимых требований, любого городского жителя. Это сан узел, душ, зона для приготовления пищи и спальное место. По прошествию лет и после того как за обустройство и зонирование пространства, взялись профессиональные дизайнеры, статус жилья стал неумолимо расти. Сейчас квартира-студия для некоторых, считается даже престижным, современным жильем, ее часто используют в качестве дополнительного жилого места, к примеру по близости с работой, или зоной уединения к примеру для эмоциональной разрядки. А для кого то, это до сих пор удачный способ сэкономить деньги на покупке жилья. Ведь в квартире-студии есть все необходимое, а при грамотной планировке, можно создать уникальный, изящный и комфортный интерьер. Для разграничения и зонирования пространства воспользуйтесь идеями из статьи «Арка из гипсокартона», а так же посмотрите «Как сделать арку из гипсокартона своими руками».
А чтобы вдохновится на создания нового интерьера в Вашей студии, смотрите видео на тему: «Квартира студия интерьер планировки»
Квартира студия интерьер планировки: определение и примеры
Квартира-студия это жилое помещение лишенное закрытых и глухих перегородок для зонирования пространства, исключением является комнаты санитарного назначения. Говоря простым языком это комната от 12 до 25 м², на которой расположена прихожая, кухня, гостиная и спальня. Шикарное поле деятельности для любого дизайнера, в квартире-студии можно воплотить любую задумку для разделения пространства на зоны, креатив приветствуется. По моему мнению, именно за счет креатива это низкобюджетное жилье, переходит в ранг престижного. Предлагаю ознакомиться с несколькими примерами на фото.






В наше время, в России, не редко квартиру-студию делают из малогабаритной 1-комнатной или 2-комнатной квартиры. Такие студии получаются довольно большими по квадратуре и конечно же с индивидуальной планировкой и дизайном. Смотрите фото с примерами.



Квартира студия интерьер планировки: разбираем плюсы
Самым явным плюсом в выборе квартиры-студии, безусловно считается отсутствие каких-либо стен и перегородок разделяющих пространство на комнаты. Этот прием делает жилое помещение просторным и воздушным, открывается больше естественного света. В случае, когда студию перепланируют из маленькой квартиры, в плюс идет, то что в получившейся комнате становиться больше света из-за дополнительного окна. А так же исчезают в небытие узкие, темные коридоры-тоннели. В такой перепланировке за стеной остается только комната личной гигиены, а квартира в любом случае становиться больше, просторней и уютней.



Планировка без разделяющих стен, является всегда подарком для любого дизайнера. Здесь не существует четкой границы, куда необходимо вместить все, что требуется и предусмотреть свободное место. Тут, отрабатывая свое мастерство, дизайнеры не редко сотворяют поистине интересные решения, которыми в последствии пользуется широчайшая аудитория, принося доход создателю.
Квартира-студия идеальный вариант для воплощения максимальной многофункциональности интерьера. Квартиру разделяют по зонам, в которых четко регламентируется определенная задача: зона приготовления пищи, зона приема пищи, зона отдыха, зона сна. Еще один плюс заключается в перемещении по квартире, если зоны организованы грамотно, то передвигаться можно легко и с комфортом.
Материальная выгода несет в себе ощутимый плюс для многих. Так как квадратных метров в студии меньше, чем в обычной квартире, то и стоимость ее побюджетней, как и последующая квартплата. Идеально для первого жилья.


Квартира студия интерьер планировки: недостатки
Вроде бы все очень лаконично и красиво получается, но все таки кроются и недостатки в интерьере планировки, квартиры-студии. Основной недостаток, в том что такое жилье будет комфортным лишь для 1-2 проживающих. Как правило это молодожены, но стоит в семье появится малышу, как тут же назревает ворох проблем, самая главная конечно же заключается в том, что ребенку нужна отдельная комната, а в студии этого не сделаешь.
Бывают случаи, когда и вдвоем ужиться очень тяжело. Связано это в основном с тем, что некуда спрятаться от соседних глаз, если ты вдруг раньше встаешь или позже ложишься или если Ваши гости из разных компаний. Причин может быть конечно же масса, тут решающую роль играет человеческий фактор. Бывают ситуации, что и в коттедже можно не ужиться.
Когда нет перегородки жилой зоны и кухни, очень тяжело избавиться от запаха который распространяется при приготовлении пищи по всей квартире и даже мощная вытяжка не всегда справляется. Записываем еще один минус в копилку.
Нет возможности завести домашнее животное, ну если только это маленький питомец и Вы проживаете один. Но все равно жить в одной комнате с питомцем не гигиеннично.
Если Вы занимаетесь перепланировкой квартиры в студию, то минус в том, что придется потратить гораздо больше средств, чем на ремонт, сюда включается и затраты на оформления всей необходимой документации. Если обсуждать материальную сторону, то в минусы еще попадает и покупка дорогостоящей многофункциональной мебели, которая зачастую изготавливается только на заказ, смотрите фото-варианты


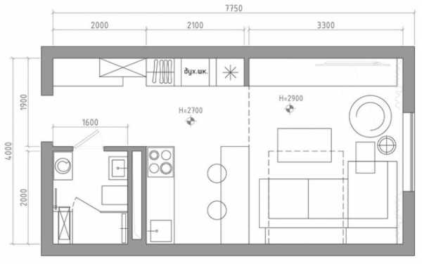
Квартира-студия, прямоугольная планировка
Остановимся на прямоугольной планировке квартиры-студии, стандартная площадь которой в среднем 28 м². Если времени и навыков на самостоятельную перепланировку и изготовление дизайн проекта у Вас нет, то воспользуйтесь услугами профессионалов. А если все же Вам не терпиться свми обустроить свое будущее гнездышко, предлагаю в любом случае посмотреть следущее видео на тему: Квартира студия 28 м², прямоугольной формы.
- Выбирай при планировки интерьера любой стиль кроме исторических, для их воплощения потребуется много места и определенная планировка.
- В зоне кухне обязательно должна присутствовать мощная, бесшумная вытяжка, если у Вас нет желания постоянно перестирывать вещи, пропитанные запахами приготовленных блюд. Так же она уберет налет жира, естественным образом образующийся в период готовки.
- Хорошо использовать в зонировании кухни подиум, туда можно спрятать все трубы и коммуникации.
- Желательно использовать встроенную аппаратуру, это не только сэкономит пространство, сделает его стильным, но и избавит от лишнего шума.
- Не перегружайте пространство, используйте меньше декора, посуду на кухне хранить только в закрытых шкафах, чтобы не портить интерьер всего жилища. Для одежды используйте встроенные системы хранения.
- При переоборудовании системы отопления, задумывайтесь о зонировании, весьма выгодно можно решить эту проблему с помощью «теплых полов»
- Используйте различные сценарии освещения, это не только поможет увеличит пространства за счет обилия света, но и зонировать его отдельной подсветкой.
Квартира-студия, квадратная планировка
Напоследок, хочется рассмотреть пример квадратной планировки студии. В основе интерьера этой 42 м² студии взяты натуральное дерево и комнатные растения. Квартира-студия оформлена элегантно и бесспорно очень комфортна для проживания. Для сохранения визуализации просторного помещения в дизайне интерьера использовали стеклянные панели, для разделения пространства на зоны.
Читайте также
polyakova-sait.ru
Планировка квартиры-студии для молодой семьи — 5 вариантов
- Пример планировки «хрущевки»
- Пример планировки прямоугольной квартиры
- Пример планировки квадратной квартиры-студии
- Пример планировки маленькой квартиры-студии
- Пример планировки квартиры с некоторыми «хитростями»
Часто новостройки предлагают варианты квартир в виде однокомнатных или квартир-студий. Суть последних в том, что стеной ограждена только ванная комната. Такие варианты смотрятся значительно больше однокомнатных такой же площади. Без стены между кухней и комнатой квартира выглядит, как единое пространство, более прогрессивное, легкое и молодежное. Представляем вашему вниманию общие советы при создании интерьера и некоторые варианты планировок квартиры-студии для молодой семьи.
Первое, что стоит отметить, это обязательное зонирование пространства – это даст понимание, где спальное место, а где кухня. Кроме того, рекомендуем позаботиться о хорошей вытяжке, если не хотите, чтобы запахи с кухни разносились по всей квартире. Стремитесь расположить спальную зону подальше от кухни. Таким же образом необходимо поступить с рабочей зоной. Нет смысла сильно загромождать студию мебелью. Предпочтительное использование одного большого и вместительного шкафа вместо нескольких маленьких.
Также обратите внимание на то, что, скорее всего, разместить полноценную кровать в студии не получится, ее размеры могут быть малыми. А вот диванчик, который будет трансформироваться в кровать, будет в самый раз для квартиры с небольшой площадью. Среди рекомендаций и то, что в качестве своеобразного «разделителя» для зонирования пространства вы можете использовать мебель. К примеру, идеально заменит стену стеллаж с книгами, за которым можно спрятать кровать или рабочее место.
Пример планировки «хрущевки»
Купить квартиру в новом доме могут позволить себе немногие, поскольку цена на новое жилье довольно высокая. Поэтому, стоит рассмотреть и такие планировки, которые подойдут для стандартных «хрущевок». Им характерна маленькая (около 30 кв.м) площадь, которая обычно организована таким образом, что людям просто не комфортно жить в квартире. К примеру, кухня занимает около 5-6 кв. метров. А на маленькой территории готовить и кушать не так уж и просто. А каждый раз выносить стол в комнату проблематично из-за ограниченной площади. Что же делать?

Часто ремонт в таких квартирах начинают с перепланировки. Раздельные комнаты туалета и ванной объединяют. Также некоторые владельцы решают избавиться от стены в коридоре. В результате после перепланировки «хрущевка» преображается в современную студию. Здесь стоит тщательно продумать расстановку техники и мебели на кухне и в санузле.
Учтите, что снос стены и объединение комнаты с кухней создаст для вас дополнительные проблемы: отсутствие звукоизоляции, лишние запахи, сложности в зонировании пространства. Вместе с тем квартира станет намного просторнее и привлекательнее. Кухню с комнатой можно разделить при помощи обеденного стола или барной стойки. Распространенный способ зрительного разграничения зон – отделочными материалами. К примеру, на территории кухни в качестве напольного покрытия используйте керамическую плитку, а комнату – покройте ламинатом.
Пример планировки прямоугольной квартиры
Если вы обладаете квартирой прямоугольной формы и достаточного размера, то можете сделать практичный и оригинальный ремонт. Как же все расставить? Первым делом вам нужно объединить все помещения. Одну длинную сторону стены заполните шкафами, кухонной мебелью, обеденным столом.

Если, исходя из проложенных коммуникаций, ванная расположена прямо посередине комнаты, то это неплохо. В противном случае пришлось бы «двигать» зоны. Одну часть определите для дивана, а вторую (дальнюю от входа) – для кровати. Так вы сможете оптимально разместить все, при этом спрятать спальное место от взглядов людей, которые приходят к вам в гости.
Пример планировки квадратной квартиры-студии
В этом случае мы наблюдаем все стены квартиры примерно одной длины. Считается, что квадратное помещение – идеальный вариант для оптимального размещения жилых зон. Наш вариант планировки выглядит следующим образом: две маленькие комнаты объедините в одну. Если правильно расставить все элементы интерьера можно получить уютное и практичное помещение. В таком помещении вы сможете отдохнуть, набраться сил, ведь пространство будет расширено и сдавлено стенами.

Дальше все зависит от вашей фантазии, но помните, если у вас небольшая квартира, превалирование темной цветовой гаммы не допускается. Также не стоит использовать громоздкую мебель и оформлять окна тяжелыми классическими шторами.
Пример планировки маленькой квартиры-студии
Чтобы получить максимум полезного пространства из небольшого помещения рекомендуем помимо ликвидации перегородок и совмещения кухни с комнатой, выполнить ряд действий:
- переделайте подоконник. Его можно выполнить в качестве дополнительного рабочего или обеденного места, а также использовать в роли места для хранения вещей или даже зоны отдыха;
- приобретите встроенную бытовую технику. Для оптимизации кухонной зоны посудомоечную машину, холодильник, вытяжку поместите за фасадами гарнитура;
- достаточное освещение и наличие светлых оттенков – поможет визуально расширить пространство;
- используйте легкую мобильную и складную мебель.

Пример планировки квартиры с некоторыми «хитростями»
Если у вас есть желание по максимуму использовать пространство студии, лучше прибегнуть к некоторым дизайнерским хитростям. К примеру, можно совместить несколько зон в одну – зону хранения и зону отдыха. Как это сделать? Можно расположить крупный прямоугольный блок для хранений вещей, дополнить его подушками и мы получим зону отдыха, где можно будет отдохнуть, выпить кофе или пообщаться с друзьями.

Также в студии можно расположить барную стойку, которая будет служить и для трапезы, и для приема гостей. Кроме того, на ней можно расположить компьютер и создать рабочую зону. Что касается кухни, то рекомендуем вам ознакомиться с вариантами оформления данного помещения на сайте http://mr-doors.ru, который поможет вам подобрать кухонную мебель для квартиры-студии. Здесь вы найдете самые современные варианты дизайна квартиры-студии с необычными исполнениями и стилями.
rumpus.ru
Дизайн квартиры студии, варианты интерьера и зонирования, в том числе для площадей 20, 25 и 30 кв м + фото
Если вы владеете однокомнатной или двухкомнатной квартирой, их можно превратить в современные апартаменты. Тесные комнаты можно переоборудовать в просторную студию. Как это сделать? Знания в области дизайна интерьера и зонирования вам помогут.
Квартира-студия: плюсы и минусы
Квартиры-студии — это квартиры свободной планировки, квартиры без стен. Они предполагают наличие единого жилого пространства. Самая большая комната делится на функциональные зоны с помощью дизайнерских приёмов — разного освещения, подиумов, многоуровневых потолков и т.д. Традиционные зоны — кухня-гостиная и спальня.

Интерьер квартиры-студии: функциональные зоны в едином жилом пространстве
Преимущества такого жилья:
- Отсутствие перегородок создаёт ощущение пространства, которого так не хватает малогабаритным квартирам;
- Если в квартире мало света, перепланировка в студию поможет решить эту проблему;
- В такой квартире легко реализовать любые дизайнерские задумки, поскольку вы не ограничены пространством между стенами;
- Свободная планировка — это максимум функциональности. Перемещение между зонами становится простым и наиболее логичным.
Недостатками квартир-студий являются:
- Неприспособленность для семей с детьми;
- Неудобства, связанные с приёмом гостей, или разным ритмом жизни хозяев. Если вы встаёте рано утром, а ваш партнёр — позже, то ваши сборы, скорее всего, будут его будить;
- От лишних предметов мебели придётся отказаться, скорее всего, и от большой кровати тоже. Мебель должна быть функциональной и занимать как можно меньше места.

Интерьер небольшой квартиры-студии
Учитывая вышесказанное, сделаем вывод, для кого подходят такие квартиры:
- Для тех, кто не может жить в тесном пространстве небольших комнат;
- Для молодых семейных пар без детей;
- Для молодёжи как первое самостоятельное жильё;
- Для тех, кто ищет бюджетный вариант жилья;
- Для тех, кто ценит оригинальность, дизайн и свободное пространство выше возможности уединиться.
Можно превратить в студию двухкомнатную квартиру. В этом случае спальня останется изолированной, а гостиная и кухня объединятся. Это восполнит большинство недостатков студии.
Планировка и зонирование: различные варианты
При планировке квартиры-студии следует отталкиваться от имеющейся площади. Балкон, если он есть, можно утеплить и объединить с жилым пространством, увеличив его.
Большие студии
К таким можно отнести квартиры площадью свыше 25 кв. м. Здесь у нас есть больше места для всего: для творчества, мебели, и того, которое можно оставить свободным.

Вид сверху: вариант планировки квартиры-студии 28 кв. м
Большая площадь позволяет изолировать спальню от остальной части квартиры. Прихожая ведёт в просторную объединённую гостиную-кухню. Такой вариант наиболее удобен.

Планировка квартиры-студии на 30 кв. м
Маленькие студии
К ним относятся квартиры площадью 15–20 кв. м. Такая малая площадь — их главный минус. Однако при правильном подходе каждый квадратный метр можно использовать грамотно.

Планировка квартиры-студии на 15 кв. м
Каждый предмет мебели должен быть максимально функциональным. Обеденный стол может заменить рабочий; раскладной диван — кровать для сна. МОжно использовать компактную бытовую технику. В результате даже такое малое пространство можно оборудовать для комфортной жизни.

Планировка студии на 20 кв. м
Узкие квартиры-студии
Если вам досталась узкая однушка, или такая же студия, для них существуют свои варианты планировки. Необходимо хотя бы визуально расширить пространство. Для этого можно использовать зеркала, светлые цвета, включая белый. Глянцевые поверхности также хороши для этой цели.

Интерьер узкой квартиры-студии: белые и глянцевые поверхности визуально расширяют пространство
Квартиры с балконом
Если вы обладатель квартиры с балконом, то можете использовать его для увеличения жилой площади. Для этого балкон нужно утеплить и объединить с квартирой. На балконе можно устроить, например, рабочую зону и поставить столик с компьютером.

Переоборудование балкона под рабочий кабинет
Если вы хотите оставить балкон балконом, чтобы дышать на нём свежим воздухом, можно оставить всё без изменений, только застеклив и утеплив его при необходимости.

Квартира-студия с балконом
Двухуровневая квартира-студия
Если вам досталась двухуровневая квартира с высоким потолком в новостройке, можно смело планировать дизайн не вширь, а ввысь. Такие проекты выглядят очень аристократично даже для небольших апартаментов. По сути, на двух уровнях вы сможете разместить все функциональные зоны и изолировать нужные.

Вариант планировки двухуровневой квартиры-студии
Перегородки для зонирования помещения
Для того чтобы в квартире-студии выделить различные зоны, можно использовать несколько типов перегородок:
- Ширмы. Такие перегородки мобильны. Если вы наметите перестановку, она легко «переедет» в другую часть квартиры. Переместить штору будет не так легко, барную стойку — ещё сложнее. К тому же ширмы — атрибут некоторых стилей интерьера, например, японского. Ширмы могут быть тканевыми, бумажными, стеклянными.

Полупрозрачная ширма выполняет роль зонирующего элемента и цветового акцента
- Мебель. В качестве элемента зонирования может выступать сама мебель. Диван или стеллажи могут разграничивать кухню и гостиную. В этом случае вы сразу убиваете двух зайцев — выделяете зоны и экономите на перегородках.

Стеллаж отделяет спальное место от остальной части квартиры
- Шторы и занавески. С их помощью можно отделить, например, спальное место в квартире.

Вариант использования штор для зонирования квартиры
- Барная стойка. Она может заменить обеденный стол и стать границей между кухней и гостиной. Если вы хотите использовать её, планировку и дизайн квартиры нужно продумать тщательно, поскольку переместить стойку в другую часть помещения будет сложно.

Роль зонирующего элемента играет барная стойка
Выбираем стиль интерьера
Минимализм. Модный современный стиль, он как нельзя лучше подходит для небольших квартир и студий. Кредо минимализма — ничего лишнего. В таких интерьерах практически нет аксессуаров, минимум декора, цветов, мебели. Для цветовой гаммы характерны монохромность или двухцветные сочетания. Основной цвет — белый, с которым можно сочетать любые другие по вашему желанию. Мебель выбирается также однотонная, строгих форм, без резных элементов, узоров и т.д., максимально функциональная.

Пример стиля минимализм в интерьере квартиры-студии
Минимализм любит простор. В маленькой квартире добиться этого эффекта можно только дизайнерскими приёмами — с помощью зеркал, светлых тонов, глянцевых поверхностей.

Глянцевый потолок и светлые тона вместе с большим окном помогают словно расширить объем небольшого помещения
Контемпорари. Стиль, близкий к минимализму, однако без строгих ограничений в выборе декора, мебели и аксессуаров. Его можно описать как современный интерьер для комфортной жизни. Для контемпорари характерны простая планировка, функциональная мебель, в том числе модульная и встроенная, поверхности чётких форм, строгие или плавные линии, классические и этнические аксессуары.

Удобство и комфорт спокойного интерьера в стиле контемпорари
Для отделки в основном используют искусственные материалы — ламинат, пластик, стекло, искусственный камень и т.д. Основные цвета гаммы — спокойные пастельные тона, на фоне которых эффектно смотрятся яркие элементы декора и мебели.

Одна из стен отделана искусственным камнем
Хай-тек. Ещё один стиль, похожий на минимализм, однако, со своими изюминками. Хай-тек также предпочитает минимум деталей и цветов. Характерная гамма — белый, серый, металлик, чёрный. Материалы — стекло, хромированный металл, пластик. Главная особенность стиля — акцент не технологичности, некоторая футуристичность. Это отражается в активном использовании современной техники, подсветки, мебели необычной формы.

Интерьер квартиры в стиле хай-тек
Однако хай-тек может быть необязательно холодным и строгим. Использование зелени и цветовых акцентов могут разнообразить интерьер. Однако при этом важно соблюдать меру, чтобы не уйти за рамки стиля.

Вариант более мягкого хай-тека
Лофт. Изначально стиль родился как способ переоборудования чердачных помещений и заброшенных фабрик и заводов в жилое пространство во времена Великой депрессии в США. Позже он прижился и пришёлся по вкусу творчески людям, в особенности фотографам и художникам, которые использовали такие помещения в качестве жилья и студии. Это определяет характерные черты лофта. Ему свойственны грубая отделка, ничем не скрытые металлические и деревянные конструкции в сочетании с классической мебелью, картинами, зеркалами и дизайнерскими предметами. Визитная карточка лофта — грубая кирпичная кладка.

Кирпичная кладка на стенах — характерная особенность стиля лофт
Стиль любит высокие потолки и большие окна, через которые проникает максимум света. В небольшой квартире придётся прибегнуть к хитростям дизайна, чтобы воссоздать его. Если у вас двухуровневая квартира, стиль лофт как нельзя лучше вам подойдёт.

Белый потолок и стены визуально увеличивают пространство; эффект поддерживает уложенный поперек комнаты ламинат, который словно расширяет ее
Арт-деко. Название стиля переводится как «декоративное искусство». Он воплощает стремление к роскоши и достатку. В дизайне интерьеров такого стиля используются лакированные поверхности, кожа, дерево, стекло, нержавеющий металл, керамическая и каменная плитка. Вся композиция должна строиться вокруг центра. В его роли могут выступать обеденный стол или камин, в современном варианте — телевизор. Для цветовой гаммы присущи нейтральные тона — белый, бежевый, коричневый, серый, серебристый. Яркие цвета делаются приглушёнными. В целом квартира в стиле арт-деко выглядит дорого, но не помпезно.

Квартира в стиле арт-деко
Фьюжн. Стиль призван поломать все каноны и максимально раскрепостить воображение. Для фьюжна характерно сочетание элементов различных стилей — классических черт с футуристической мебелью, консервативные идеи с модными тенденциями. Свободный от стереотипов, с одной стороны, он сложен для воссоздания — с другой. Здесь как нигде важно чувство меры и стиля, чтобы не получить безвкусный дизайн.

Яркий, креативный, смелый- такими словами можно описать интерьер в стиле фьюжн
Фьюжн — это слияние разных стилей в дизайне одной квартиры. В нём исповедуется полная свобода материалов и цветов. Главная задача — соединить в единое целое несочетаемые, на первый взгляд, мебель, элементы декора, формы, цвета и отделочные материалы.

В интерьере сочетается классическая форма камина с современной мебелью
Поп-арт. Этот стиль оценят творческие молодые люди. Яркий, броский, нестандартный — это всё относится к поп-арт интерьеру. В оформлении используются сочные цвета. В качестве декора — элементы современного искусства: картины, граффити, фото, дизайнерские предметы. Стиль поп-арт делает ставку не только на функциональность, но и на креатив.

Апартаменты в стиле поп-арт
Эко-стиль. Популярное направление среди жителей городов. Его элементы могут присутствовать в других стилях. Основная черта — стремление к естественности и близости с природой. Это подчёркивается применением натуральным материалов, растительного декора и общей «зелёной» тематики в интерьере.

Интерьер в экологической стилистике: применение натуральных материалов для отделки и зелёных акцентов
Скандинавский стиль. Он пришёл к нам из Швеции, Финляндии, Норвегии. Особенностью стиля является стремление к свету и простору. Характерные черты — светлые основные тона, яркие цветовые пятна предметов мебели и декора, открытые окна, много яркого текстиля, натуральные отделочные материалы, главный из которых — дерево.

Квартира в скандинавском стиле: белый основной цвет служит фоном для ярких элементов
Фотогалерея: квартиры-студии в разных стилях
Как оформить функциональные зоны
Разместить на небольшой площади все функциональные зоны непросто, но возможно. Для этого воспользуйтесь приёмами дизайна, которые помогут вам выделить и оформить их.
Кухня
Кухню можно поднять на подиум. Используйте встраиваемую технику, чтобы сэкономить место. Продумайте освещение таким образом, чтобы достаточно света попадало на рабочую зону и на обеденный стол. Для этого можно использовать точечные светильники над рабочей зоной, и навесные или люстры — над столовой.

Кухня на подиуме: вся рабочая зона освещается точечными светильниками, а над столовой установлены прожекторы, которые можно поворачивать в нужную сторону
Кухню можно также выделить цветом. Используйте яркие тона или контрастный основному цвет.

Пример выделения кухни цветом
Гостиная
Зона приёма гостей несёт на себе основную функциональную нагрузку. Её необходимо сделать максимально комфортной и предусмотреть место для телевизора (если такой имеется), хранения сувениров, книг, аксессуаров. Для этого можно использовать стеллажи с полочками, ниши. Журнальный столик, удобный диван, который при необходимости может заменять кровать, пара стульев или кресел — обыкновенные атрибуты гостиной.

Если позволяет площадь, вместо кресел можно установить один большой и удобный диван в гостиной
Гостиную можно отделить от других зон с помощью разного напольного покрытия, ковра, цвета, многоуровневого потолка.

Гостиная в едином цветовом решнии с кухней отделена от неё разным напольным покрытием, диваном и освещением
Зона для сна
Если площадь квартиры-студии это позволяет, в ней можно предусмотреть отдельную зону для сна. Это наиболее удобный вариант во многих отношениях.

Спальная зона квартиры-студии поднята на подиум и отделена шторами
В плане мебели здесь не должно быть ничего лишнего. Гардеробный шкаф лучше вынести в прихожую или переоборудовать под него кладовую. В спальне же можно оставить кровать, пару тумбочек или стульев, зеркало с туалетным столиком.

Решение спальной зоны в небольшой квартире-студии
Рабочая зона
Удобно переоборудовать под неё балкон, если он есть. Если нет, рабочую зону можно разместить в гостиной. На худой конец, её может заменить обеденный стол или барная стойка. Для обустройства рабочего места можно использовать небольшой компьютерный столик. Необходимо продумать удобное освещение зоны.

Обустройство рабочей зоны на балконе
Варианты дизайна квартиры-студии для семей с ребёнком
Для маленького ребёнка можно предусмотреть место, куда можно поставить кроватку.

Квартира-студия с местом для малыша
Место для ребёнка постарше можно оборудовать двумя способами:
- Оформить гостиную, как детскую. Это не самый удобный вариант, который подходит для маленьких квартир;

Гостиная, которая выполняет функцию детской
- Оформить отдельную зону для ребёнка. Можно использовать кровать с лестницей, под которой устроить рабочее место и шкаф для вещей;

Дизайн места для ребёнка в квартире-студии
Детскому пространству придадут настроение яркие краски и аксессуары, хотя его и нужно выдерживать в общей стилистике.

Оформление места для ребёнка
Отделить пространство детской можно теми же способами, что и остальные зоны в квартире.
Квартиры-студии — это выбор молодых людей и семей, творческих личностей, людей, ценящих свободу, простор и комфорт. В современном строительстве даже специально предусматривают такие апартаменты в домах. Используйте приведённые идеи и советы, чтобы оформить ваше жильё и максимально приспособить его к вашему ритму жизни.
Юрий, 29 лет. Журналист по образованию. Нашел себя в копирайтинге. Люблю и умею писать. Оцените статью: Поделитесь с друзьями!intererro.ru
Примеры планировки однокомнатной квартиры студии и хрущевки, фото идеи перепланировки квартир
Даже на небольшой площади можно разместить все самое необходимое так, чтобы было и удобно и красиво. Однокомнатная квартира — это не приговор. В ней можно расставить мебель так, чтобы создать совершенно разные зоны, при этом не потеряв целостность. Как правило, однокомнатные квартиры в новостройках от застройщика приобретают молодые мужчины и женщины, иногда — пары с детьми, которые планируют через некоторое время переехать в более просторное жилье.
Примеры планировки однокомнатной квартиры студии

Некоторые новостройки предлагают на выбор однокомнатные квартиры и квартиры-студии. Прелесть последних в том, что в них стенами ограждается лишь ванная комната. Такие квартиры выглядят значительно больше по сравнению с однокомнатными такой же площади. Отсутствие стены между комнатой и кухней превращает квартиру в единое пространство, более легкое, более молодежное и прогрессивное.

Но это пространство, однако, необходимо зонировать, чтобы сразу было понятно, где кухня, а где спальное место. Также вам нужно будет позаботиться о хорошей вытяжке, поскольку запахи с кухни будут разноситься по всей квартире. Постарайтесь сделать спальную зону как можно дальше от кухни. Так же следует поступить с рабочим столом. Не стоит перегружать студию мебелью. Лучше использовать один большой и вместительный шкаф, чем несколько маленьких. Разместить в студии полноценную кровать скорее всего не получится, поскольку размеры квартиры слишком малы. А вот диван, трансформирующийся в кровать, — отличный вариант для квартиры с небольшой площадью. Он будет выполнять функции спальной зоны и гостиной.

Если вы не собираетесь устраивать перепланировку квартиры, которую обязательно нужно предварительно согласовать, то кухню и ванную придется размещать там, где проходят коммуникации. Но вы можете использовать мебель, как своеобразный «разделитель» для зонирования пространства. Так, например, стеллаж с книгами отлично заменит стену. За ним можно спрятать рабочее место или кровать.





Примеры планировки однокомнатной квартиры «хрущевки»

Мы уже писали про невероятное перевоплощение хрущевки. В новых домах живет все же намного меньше людей, поскольку новое жилье стоит дорого. Поэтому необходимо рассмотреть и планировки, которые подойдут для стандартной «хрущевки». Это маленькие (около 30 квадратных метров) площади, которые обычно сделаны таким образом, что человеку просто неудобно жить в квартире. Например, кухня занимает около 5 метров. На маленькой кухне готовить и обедать не так уж просто. А выносить обеденный стол в комнату не позволяет ограниченная площадь. Что же делать?

Капитальный ремонт в таких квартирах обычно начинают с перепланировки. Вместо раздельных комнат (туалета и ванной) делают одну. Снос стены позволит немного увеличить полезную площадь, купаться станет немного комфортнее.
Также многие владельцы таких квартир избавляются и от стены в коридоре, так после перепланировки стандартная «хрущевка» начинает выглядеть, как современная студия. Тщательно продумайте расстановку мебели и техники в ванной комнате и на кухне. Вполне возможно, что все необходимые элементы займут меньше места, чем вы ожидаете. В этом случае одну из стен санитарной или кухонной зоны можно передвинуть, добавив полезной площади к размерам комнаты.

Учтите, что снос стены и объединение комнаты с кухней принесет вам дополнительные проблемы: лишние запахи, отсутствие звукоизоляции, сложность в зонировании пространства. Но с другой стороны квартира будет выглядеть намного привлекательнее, просторнее. Вы сможете поставить обедненный стол или разделить кухню с комнатой при помощи барной стойки. Популярный способ визуального разграничения зон — с помощью отделочных материалов. Так, например, на кухне можно использовать керамическую плитку в качестве напольного покрытия, а в комнате — ламинат.



Примеры планировки однокомнатной прямоугольной квартиры

Планировка зависит в первую очередь от размера и формы самой квартиры. Если ваша квартира прямоугольной формы и достаточного размера, то вы можете сделать оригинальный и практичный ремонт. При этом в небольшое количество квадратных метров поместится не только все самое необходимое, но и «роскошь» однокомнатных квартир — двуспальная кровать.
Как же расставить все? Для этого вам потребуется объединить все помещение. По одной длинной стороне стены разместите шкафы, кухонную мебель, обеденный стол. Часть другой стены займет отдельная комната — ванная, объединенная с туалетом. Если коммуникации проложены так, что ванная находится прямо посередине комнаты, то вам очень повезло. В ином случае придется немного «двигать» зоны. В одной части поставьте диван, а во второй (дальней от входа) — кровать. Таким образом вы сможете разместить абсолютно все и спрятать кровать от взглядов людей, приходящих к вам в гости.
Примеры планировки балкона в однокомнатной квартире

Балкон или лоджия — отличный способ увеличения полезной площади квартиры. Ценные квадратные метры обычно погребены под старым хламом, который можно без сожалений выбросить. Утеплив балкон, сделайте из него рабочий кабинет или комнату отдыха. Некоторые владельцы квартир предпочитают включать площадь балкона в комнату, убирая окно и балконную дверь. Для такой перепланировки, однако, потребуются не только силы, но и материальные возможности. Утеплять балкон нужно будет основательно. Продумайте систему отопления. Чаще всего используют теплые полы, но можно рассмотреть и иные варианты.
Не забывайте о том, что подобная планировка потребует и специальной отделки, ведь вам нужно будет стилистически «включить» балкон в комнату. Можно решить эту проблему использованием одинаковых отделочных материалов или же выбором единой цветовой палитры.

Планировка однокомнатной квартиры требует от вас конкретных целей, поскольку нужно сразу понять, что необходимо, а от чего можно отказаться. Маленькая площадь не должна быть заставлена мебелью, иначе в квартире будет дискомфортно находиться и, тем более, жить.
home-ideas.ru
Дизайн интерьера, планировка и зонирование квартиры-студии
Небольшая квартира-студия представляет собой жилое пространство, включающее в себя все необходимые помещения для комфорта. При этом кухня сочетается с комнатой, что зачастую доставляет неудобства. Поэтому квартиру-студию любой площади нужно правильно обустроить с помощью знания основ дизайна интерьера, пространство же требует зонирования и эффективного оформления.
Основные особенности
Комната со свободной планировкой представляет собой квартиру-студию. Пространство не разделено на зону кухни или комнаты, но присутствует санузел и прихожая. Благодаря такой особенности есть возможность создать индивидуальную планировку с учётом желаемых особенностей.
При обустройстве квартиры-студии основное помещение часто выполняет несколько функций. Например, жилая комната сочетается с кухней. Пространство большой площади легко разделить на две небольшие комнаты и кухню. Существует множество вариантов планировки, но помещение в исходном состоянии представляет собой одну большую комнату, маленькую прихожую и санузел. Отсутствие капитальных перегородок предоставляет возможность создать уникальную планировку, но при этом стоит учитывать особенности пространства.

Квартира-студия позволяет зонировать пространство индивидуально
Плюсы и минусы квартиры-студии
Этот вариант жилого пространства обладает следующими недостатками:
- квартира-студия часто обладает маленькой площадью, что не позволяет использовать многие эффектные дизайнерские решения;
- массивная мебель, объёмные предметы декора, сложные конструкции невозможно использовать при оформлении небольшой площади;
- обустройство небольшого пространства требует тщательно планировки, выбор мебели и вариантов дизайна;
- отсутствие стен между жилой комнатой и кухней доставляет неудобства.

Квартира-студия компактна и уютна
Ряд недостатков, которыми обладает квартира-студия, позволяет использовать при обустройстве оригинальные, эффективные и практичные дизайнерские решения. При этом маленькое пространство становится удобным и функциональным.
Варианты планировки и зонирования
Разнообразные варианты планировки позволяют сделать студию функциональной, комфортной и стильной. При этом учитывается множество факторов: количество человек, проживающих в квартире, необходимые зоны, освещение и мебель, стиль дизайна и другие. Для этого разрабатывается схема зонирования, которая должна быть максимально простой. Все области пространства чётко разграничиваются, что обеспечивает комфорт.
Планировка студии в 30 кв. м. и более
Суть планировки довольно просторной квартиры, площадь которой составляет 30 кв. м. и более, заключается в том, что нужно обязательно выделить рабочее пространство, место отдыха и зону приготовления пищи. Для этого используются лёгкие перегородки, которые могут быть капитальными, раздвижными, прозрачными или неполными. Каждый вариант обладает определёнными особенностями, но выбор стиля интерьера осуществляется после определения расположения всех необходимых зон.

Жилплощадь любой формы требует составления плана-схемы
Пространство в 30 кв. м. и более является довольно просторным и позволяет организовать комфортные условия для проживания, отдыха, работы. Поэтому в таком случае особенное внимание уделяется дизайну помещений. Одним из эффективных вариантов оформления является использование разных стилей оформления при обустройстве каждого помещения. Например, спальня-кабинет часто выполняются в светлой, спокойной, нейтральной цветовой гамме, а на кухне применяются более яркие и контрастные сочетания. В санузле уместны любые оттенки, но важно продумать расположение полочек, сантехники, бытовых приборов.

В просторной студии капитальные перегородки могут отсутствовать
Для разделения зоны спальни и кухни в квартире-студии 30 кв. м. используются разные перегородки. Наиболее компактными и удобными являются мобильные варианты: ширмы, длинные жалюзи, портьеры. С помощью таких элементов отгораживаются зона отдыха и кухня-столовая.

Ширмы компактны и удобны в эксплуатации
Наличие в квартире двух окон позволяет разделить пространство на две полноценные комнаты капитальной перегородкой. Конструкция из гипсокартона — оптимальный вариант для зонирования. Сплошная стена с дверь-купе обеспечит уют и комфорт. А также стена может быть неполной. Сооружение в таком случае представляет собой фигурный элемент, стилизованную барную стойку или другой вид конструкции.

Фигурные перегородки делают интерьер современным
Квартира-студия площадью 15–20 кв. м.
Главная особенность маленькой квартиры-студии заключается в нехватке пространства для создания наиболее комфортных условий. Площадь в 15–20 кв. м. требует продуманной планировки, при которой создаются только самые необходимые зоны. При этом кухня располагается у окна, а в другой части находится жилая зона. Разделение осуществляется с помощью лёгких перегородок или же вовсе отсутствует.

В ограниченном пространстве важно использовать компактные детали
Эффективным решением является размещение спальни у окна, а перед этой зоной располагается кухня-столовая, а затем прихожая. Площадь каждой области довольно маленькая, и поэтому важно использовать трансформирующуюся мебель, очень компактные детали интерьера и встроенное освещение.

Лаконичные детали оптимальны для маленькой студии
Особенное значение имеет форма жилого помещения. Различные выступы на стенах позволяют разграничить пространство, но могут и мешать эффективной планировке. В обстановке не присутствуют массивные, объёмные, сложные элементы. Акцент при планировке необходимо делать на удобство, компактность и минимализм.

Четкий план позволяет легко зонировать квартиру
Узкая квартира
Квартира-студия может обладать не только любой площадью, но и формой. Узкое помещение — распространённый вариант, требующий тщательной планировки. В этом случае используются компактные детали и мебель, которую следует расставлять правильно. Проход должен быть не менее 1 м. Поэтому оптимальны трансформирующиеся элементы.

Для узкого помещения тщательно подбирается мебель
Визуально расширить узкое пространство можно с помощью зеркал. Такие элементы не занимают много места и делают помещение более просторным. Особенную роль в узкой квартире играет компактность мебели. Двери шкафов, перегородки часто открываются по принципу гармошки или купе, что обеспечивает удобство. Расположение каждого предмета продумывается, ведь принцип обустройства заключается в функциональности и практичности каждой детали.

Узкие стеллажи и шкафы позволяют экономить пространство
Квартира-студия с лоджией
Наличие лоджии в квартире-студии любой площади предоставляет хорошую возможность увеличения пространства. Для этого балкон тщательно утепляется, осуществляется отделка стен, пола и потолка. Предварительно стоит продумать назначение дополнительных квадратных метров. Оптимальным вариантом является размещение на лоджии кухни-столовой. В таком случае часть стены не нужно сносить, а на место подоконника стоит монтировать столешницу.

На лоджии часто создается рабочая зона или место отдыха
Утеплённая и обустроенная лоджия подходит для создания рабочей зоны. Семьям с детьми стоит оборудовать здесь игровую комнату. Уместно полное совмещение лоджии и жилой комнаты. Широкое пространство окна лоджии позволяет разделить помещение на две полноценные комнаты. В любом случае требуется тщательное утепление, отделка и обустройство балкона.

Интерьер рабочего пространства на лоджии может быть очень стильным
Лоджия или балкон в любой квартире — это хорошая возможность увеличить жилое пространство и создать дополнительную функциональную зону. Часто лоджия используется в качестве кладовки, но в квартире-студии такое назначение для полезной площади нерентабельно. Поэтому стоит продумать планировку этой части пространства и определить назначение. При этом лоджия может совмещаться с основным помещением или же отделяться неполными перегородками.

На лоджии легко создать зону для отдыха и чтения
Студия с одним окном
Жилое помещение прямоугольной формы часто имеет только одно окно. В таком случае создать максимально комфортные зоны довольно сложно. Один из вариантов планировки предполагает расположение зоны спальни у окна. Эта часть пространства отделяется от другой территории неполными перегородками, ширмами. Далее располагается кухня. Из-за отсутствия источника естественного освещения на кухне необходимо интенсивное освещение как общее, так и местное.

При наличии одного окна все зоны располагаются последовательно
Помещение квадратной формы позволяет расположить все зоны в одном пространстве. При этом не используются перегородки, а кухня и спальное место находятся друг напротив друга. Квартира становится просторной, светлой и уютной. Неудобства возникают при приготовлении пищи.

Стильный интерьер возможен даже в маленькой квартире
При отсутствии перегородок в дневное время спальня превращается в гостиную, рабочую зону. Поэтому мебель должна быть функциональной, удобной и практичной. Альтернативой капитальной перегородки является лёгкая портьера или ширма.
Двухуровневая квартира-студия
Квартира-студия, имеющая два этажа, позволяет создать максимально комфортное пространство. Спальня при этом часто располагается на верхнем уровне. Благодаря этому зона отдыха отделена от кухни, а на нижнем этаже обустраивается гостиная, кухня, прихожая.

При большой высоте потолка на верхнем уровне обустраивается спальня
Детскую комнату лучше всего создать на нижнем уровне квартиры. Для этого используются различные перегородки. Оптимальным вариантом является разделение пространства с помощью гипсокартонных конструкций.

Интерьер двухуровневой квартиры может быть в любом стиле
Перегородка
Для разделения пространства на функциональные зоны в квартире-студии применяются перегородки. Конструкции различного типа позволяют эффективно разделить области, обеспечивая комфорт и удобство. Каждый вариант перегородки обладает определёнными характеристиками. В некоторых случаях для зонирования подходят только компактные виды конструкций.
Ширма
Складная ширма легко убирается или устанавливается при необходимости. Изделия выполняются из дерева, пластика, с текстильными деталями. Ширма-гармошка представляет собой складной каркас с множеством вертикальных элементов в виде панелей. Приспособление часто украшается росписью, декоративными вставками из стекла и другими деталями.

Складная ширма компактна и эффектно украшает интерьер
Ширма, устроенная по типу дверей-купе, довольно удобна и хорошо разделяет пространство. Для конструкции требуется монтаж специальных рельсов, а также выбор полотен в зависимости от высоты потолка, ширины пространства.

Полотна на рельсах не занимают полезное пространство
Стена
В просторной квартире-студии с двумя окнами легко создать капитальную стену, разделяющую две полноценные комнаты. В помещении прямоугольной формы уместно разделение с помощью гипсокартонных конструкций, которые могут быть сплошными или неполными, фигурными. В первом случае предполагается установка двери. Неполные перегородки представляют собой половину стены с фигурным краем. Такой вариант разделения универсален для любой квартиры-студии, уместен для разделения спальни и рабочей зоны на лоджии. При этом в гипсокартонной конструкции часто создаются ниши, делающие перегородку практичной и функциональной.

Эффектный интерьер в стиле экспрессионизм уместен в квартире-студии
Стена из прозрачного пластика или стекла часто используется для отделения спальной зоны. Для этого применяются полотна, которые устанавливают на рельсы по типу дверей-купе. Элементы могут быть прозрачными или с различным декором.

Полотна на рельсах позволяют эффективно отделить зону спальни
Мебель
Стеллажи, узкие шкафы и другие варианты мебели подходят для разделения зон в квартире-студии. Этот вариант довольно просто в реализации и позволяет сделать перегородку функциональной. При этом особенно удобен стеллаж, полки которого находятся с двух сторон.

Перегородка в виде полок позволяет разместить предметы декора
Установка шкафа поперёк комнаты позволяет освободить место у стены и разделить пространство. Фасады мебели располагаются со стороны спальной зоны, а стенку можно оформить фотообоями, прикрепить небольшие полочки и другие детали. При этом не стоит использовать слишком массивные и широкие шкафы. Оптимальной является узкая мебель, глубиной до 50 см.

Шкаф-перегородка удобен и практичен
Другие варианты
Для лёгкого разделения зон в квартире-студии используют портьеры. Плотный материал обеспечивает комфорт, но уместны и лёгкие занавеси. Практичным вариантом являются длинные жалюзи.
С помощью барной стойки также легко разделить зону гостиной-спальни и кухню. Для этого часто создаются гипсокартонные конструкции, из которых организуется стойка.

Создать перегородку можно из различных материалов
Стиль оформления квартиры-студии
Студию любой площади лучше всего оформлять в соответствии с теми направлениями дизайна, которые предполагают компактность деталей, лаконичность форм, отсутствие сложных конструкций. Благодаря этому легко сохранить все полезное пространство и сделать квартиру-студию функциональной.
Эффективным методом планировки является сочетание нескольких стилей. Например, кухня оформляется в стиле авангард, а для спальни подходит минимализм. Контрастные сочетания позволяют визуально разделить функциональные зоны.

Квартира в едином стиле отличается гармоничной обстановкой
Оформление пространства в стиле фьюжн предполагает яркие акценты на однотонном фоне. Цветовая гамма включает в себя белый, серый и коричневый оттенки, которые эффектно дополняются синим или разноцветными элементами. Спальня в таком стиле легко сочетается с кухней, оформленной в стиле авангард. Контрастные зоны выглядят отдельными помещениями.

Яркие акценты сделают обстановку стильной
При оформлении квартиры-студии часто совмещаются такие стили, как лофт и хай-тек. В соответствии с первым направлением дизайна оформляется спальня, а кухня в стиле хай-тек очень удобна. В зоне отдыха не требуется много мебели, ведь лофт предполагает ощущение свободного пространства, напоминающего склад, заводскую комнату. На кухне хай-тек присутствуют глянцевые поверхности, точечные светильники, минимальное количество декора.

В стиле лофт уместные грубые поверхности, стилизованные детали
Квартиру любой площади стоит оформить в стиле арт-деко. Это направление дизайна предполагает использование в отделке экзотических материалов, например, слоновая кость, кожа рептилий, редкие породы дерева. Мебель при этом имеет обтекаемые формы, а в интерьере уместны детали из бронзы, керамики. Контрастные цвета также часто используются при оформлении квартиры-студии.

Необычные конструкции на потолке эффектно украсят квартиру-студию
Фотогалерея вариантов дизайна интерьера
Оформление разных зон
Обустройство квартиры-студии начинается с планировки. Разделение всех необходимых зон обеспечивает удобство. После этого разрабатывается дизайн-проект, в котором учитывается оформление каждой зоны. При этом одним из основных помещений является кухня. Пространство оформляется практичными, компактными и красивыми деталями. Для этого помещения оптимально подходят такие стили, как минимализм, хай-тек, прованс, авангард. Визуально увеличить пространство позволяют светлые оттенки, а яркие акценты делают обстановку уютной и стильной.

Кухонная зона может быть очень компактной
Область приёма гостей может сочетаться с кухней или спальной-гостиной. Для этого подходит интерьер в нейтральных оттенках. Стили прованс, минимализм оптимальны для кухни или спальни, совмещённых с гостиной. Основной акцент стоит делать на компактную и универсальную мебель, не занимающую много места.
Если зона спальни и отдыха не выполняет других функций, то оформить это пространство лучше всего в спокойной цветовой гамме. Стиль конструктивизм подходит для этой цели и позволяет создать уютное пространство.

Спальня без вычурного декора очень уютна
Рабочее пространство часто выделяется с помощью контрастного оформления стен. В спальне стиля минимализм выделяется область с рабочим столом, а на стене стоит наклеить фотообои в урбанистическом стиле.
Дизайн квартиры-студии для семьи с ребёнком
Квартира-студия с правильной планировкой является оптимальным вариантом для семьи с ребёнком. При этом стоит разделить жилплощадь на зону кухни, взрослой спальни и детской комнаты. Для ребёнка необходимо определить самый комфортный вариант. Такой подход обеспечит эффективный отдых, развитие и удобное личное пространство.

Отделить детскую комнату можно неполной перегородкой
В двухуровневом пространстве нельзя размещать детскую комнату на верхнем этаже. Лучше всего расположить её в области окна, что обеспечит естественное освещение пространства. При этом детская часто отделяется от остальных помещений сплошными перегородками, гипсокартонной стеной. Создать такую конструкцию маленькой площади квартиры невозможно и поэтому лучше всего использовать ширму на рельсах. Интерьер в светлых тонах с лёгкими яркими акцентами сделает обстановку уютной. Трансформирующаяся мебель и компактные предметы позволят сохранить свободное пространство.
Квартира-студия любой площади требует тщательной планировки. На этапе разработки проекта учитывается форма и площадь помещения, расположение окон, стиль интерьера и другие факторы. Обязательным правилом обустройства такого небольшого пространства является использование функциональной и компактной мебели. В результате продуманного подхода квартира-студия включает в себя необходимые зоны.
Оцените статью: Поделитесь с друзьями!kakpostroit.su






