Проект баня фото – фото, проекты и уникальные решения для отдыха на даче
Баня из кирпича, проекты и варианты планировок, этапы строительства, фото
07 Мая 2018 2018-05-07
4826
Время чтения 8 минут
Прочитать позжеОтправим материал на почту

Проекты бань
Количество проектов 701
- 1 комната
- 1 санузел
- 53² Общая площадь
- 8 x 7м Площадь застройки
от 857 600 р.
Срок возведения 34 дня
Проект Бани Мечта-2- 66² Общая площадь
- 6 x 8м Площадь застройки
от 649 026 р.
Срок возведения индивидуально
- 1 комната
- 1 санузел
- 35.69² Общая площадь
- 6 x 7м Площадь застройки
индивидуальный расчет
Срок возведения индивидуально
Проект Бани Сандуны- 36² Общая площадь
6 x 7м Площадь застройки
от 459 550 р.
Срок возведения индивидуально

- 1 комната
- 1 санузел
- 74.5² Общая площадь
- 10 x 11м Площадь застройки
индивидуальный расчет
Срок возведения 40 дней
- 2 комнаты
- 2 санузла
- 77.7² Общая площадь
- 10 x 9м Площадь застройки
от 1 233 000 р.
Срок возведения индивидуально

- 1 комната
- 1 санузел
- 43² Общая площадь
- 8 x 7м Площадь застройки
от 781 831 р.
Срок возведения 35 дней

- 1 комната
- 3 санузла
- 54² Общая площадь
- 7 x 8м Площадь застройки
индивидуальный расчет
Срок возведения индивидуально

- 2 комнаты
- 1 санузел
- 76² Общая площадь
- 8 x 8м Площадь застройки
от 1 160 825 р.
Срок возведения 44 дня

- 3 комнаты
- 1 санузел
- 80² Общая площадь
- 5 x 7м Площадь застройки
индивидуальный расчет
Срок возведения индивидуально

- 2 комнаты
- 2 санузла
- 6 x 6м Площадь застройки
от 708 000 р.
Срок возведения 16 дней

- 1 комната
- 1 санузел
- 20² Общая площадь
- 4 x 5м Площадь застройки
от 370 000 р.
Срок возведения индивидуально

- 1 комната
- 2 санузла
- 65² Общая площадь
- 11 x 9м Площадь застройки
от 850 000 р.
Срок возведения индивидуально

- 2 комнаты
- 1 санузел
- 120.04² Общая площадь
- 11 x 7м Площадь застройки
от 1 474 560 р.
Срок возведения 64 дня

- 3 комнаты
- 2 санузла
- 128.85² Общая площадь
- 7 x 10м Площадь застройки
от 1 878 633 р.

- 1 комната
- 1 санузел
- 51² Общая площадь
- 5 x 9м Площадь застройки
индивидуальный расчет
Срок возведения индивидуально

- 1 комната
- 1 санузел
- 30² Общая площадь
- 6 x 6м Площадь застройки
от 593 155 р.
Срок возведения 24 дня
Смотреть все проектыПервые упоминания о банях встречаются в исторических документах о Древней Греции. Конечно, внешний вид древнегреческой бани абсолютно отличался от современного варианта, но основывался на тех же принципах: нагревание помещения до высоких температур и создание условий с повышенной влажностью.
Традиционным материалом для строительства бань является дерево хвойных пород, но это далеко не аксиома. Например, сегодня уже никого не удивить видом эффектных, современных бань из красного кирпича.

Особенности и преимущества кирпичной бани
Несмотря на высокую стоимость строительства, бани из кирпича пользуются особой популярностью. Не останавливает застройщика и длительное прогревание помещений в зимний период. Дополнительное утепление стен, потолка и пола поможет сгладить этот недостаток. Строительство и эксплуатация кирпичных бань имеет множество преимуществ:
-
повышенная пожаробезопасность;
-
долговечность строения;
-
безопасность и экологичность материала;
-
возможность создания уникальных проектов.
Баня из кирпича отлично выглядит и не нуждается в дополнительной наружной отделке.
Проекты бань из кирпича
Важным этапом начала любого строительства является проектирование объекта. Построить отличную баню из кирпича можно, использовав в качестве основы готовый типовой проект или разработав его самостоятельно с учетом личных потребностей и предпочтений.
Если участок имеет ограниченное пространство, можно обойтись строительством небольшой бани размерами 3Х4.

Большие площади участка дают свободный полет фантазии и позволяют легко реализовать проект любых размеров.

Независимо от размеров, баня включает в себя несколько различных по назначению помещений, расположенных под одной крышей и разделенных перегородками:
Наличие и расположение других помещений планируют по желанию застройщика. В зависимости от назначения постройки и ее размеров, количество дополнительных комнат не ограничено.

На нашем сайте Вы можете ознакомиться с самыми популярными проектами бань от строительных компаний, представленных на выставке домов «Малоэтажная Страна».
Продуманная внутренняя планировка и удобное расположение необходимых элементов в бане облегчает ее эксплуатацию и уход. Даже небольшие комнатки требуют разделения на функциональные зоны. Это позволит использовать их прямому назначению.
При оборудовании входной двери в комнате отдыха, зимой холодный воздух поступает в помещение и охлаждает его. Этого можно избежать, применив один из предложенных способов:
-
строительство утепленного тамбура при входе;
-
устройство крытой веранды;
-
установка капитальной разделительной перегородки в комнате отдыха.

Проекты кирпичных бань включают подробную разработку каждого элемента:
-
фундамента;
-
стен;
-
потолка;
-
кровли.
Главным объектом проекта бань является печь. Она должна быть удобна в использовании и отлично прогревать помещение. Размер печи зависит от площади бани. Оборудованное место для хранения небольшого количества дров значительно облегчит обслуживание печи. Ее удобнее всего располагать со стороны комнаты отдыха.

Металлические печи, предлагаемые производителями в самых различных вариациях, быстро нагреваются и просты в установке. Металлическую печь чаще всего обкладывают рядом кирпича, защищающего металл от перегрева.
Проекты бань больших размеров нередко предусматривают строительство санузла, кухни и других помещений. Реализация таких проектов осложнена устройством обогрева, ведь комнаты должны равномерно прогреваться. Для этого устанавливают дополнительные системы отопления:
-
газовые котлы;
-
электрические обогреватели;
-
котлы на твердом топливе;
-
конвекторы.

Установка комбинированной системы отопления позволяет использовать самый доступный способ обогрева бани из кирпича больших размеров и регулировать расходы.
На нашем сайте Вы можете найти контакты строительных компаний, которые предлагают услугу строительства бани. Напрямую пообщаться с представителями можно посетив выставку домов «Малоэтажная Страна».
Выбор места установки кирпичной бани
Баня пожароопасна, поэтому при выборе места для ее строительства необходимо учитывать некоторые особенности.
-
Расстояние от соседних построек и границ участка должно составлять более 12 метров при топке дровами и 5 метров при использовании газового котла или электроотопления.
-
Для строительства бани из кирпича лучше выбирать возвышенный участок, не загроможденный постройками.
-
При планировании строительства на берегу водоема необходимо отступить не менее 15 метров от берегов. Это позволит предотвратить затопление во время весеннего паводка.
-
Вход в баню с южной стороны облегчит эксплуатацию в зимний период. Такое расположение особенно актуально для регионов с обильными снегопадами. Весной южная сторона гораздо раньше очищается от снега и быстрее просыхает.
-
Если в бане предусмотрены окна, их располагают на западную сторону.

В целях экономии средств, баню нередко совмещают с летней кухней, гаражом или любым другим объектом, устанавливая между ними одну глухую стену.
Это может быть интересно! В статье по следующей ссылке читайте про каркасную баню под ключ.
Фундамент для кирпичных бань
Кирпичная баня это строение с достаточно немаленьким весом, поэтому для него требуется сформировать прочный фундамент. Его укладывают ниже точки промерзания грунта. Для разных регионов эти показатели индивидуальны и могут значительно отличаться.
Чаще всего для бани из кирпича выбирают ленточный фундамент, обеспечивающий надежную основу для тяжелого объекта. Несмотря на высокую стоимость и низкую скорость возведения, ленточный фундамент в полной мере обеспечивает прочность и надежность постройки.
Сложный грунт, проблемный рельеф и глубокое промерзание почвы в зимний период нуждаются в свайном фундаменте. Сваи устанавливают под углами бани, простенками, а также через каждые два метра.

Строительство надежной бани из кирпича имеет свои особенности и требует формирования деревянного или металлического ростверка.
Это может быть интересно! В статье по следующей ссылке читайте про баню из клееного бруса.
Как делается кладка кирпича
Для строительства бань чаще всего используют красный кирпич. Возведение стен происходит в соответствии с одной из технологий:
-
кладка в 1,5 или 2 кирпича с последующим утеплением;
-
возведение двойных стен с укладкой теплоизоляционного слоя.

Кладка в 1,5 кирпича обладает отличной прочностью. Возведение стен начинают с угла, выдерживая строгий перпендикуляр между ними.
В зависимости от расположения кирпича в ряду различают:
-
ложковые ряды, которые укладывают длинной стороной кирпича вдоль стены;
-
тычковые ряды предусматривают расположение кирпича короткой стороной поперек стены.

Вдоль будущей стены натягивают шнур для ориентировки в горизонтах, концы которого устанавливают между крайними кирпичами.
Кладка стен из кирпича имеет ряд особенностей.
-
Раствор наносят на всю поверхность кирпича равномерным слоем.
-
Кирпич равняют на плоскости рукояткой кельмы, удаляя излишки раствора.
-
Для раскола материала используют молоток-кирочку.
-
При кладке стен в два кирпича, раствор наносят в большом количестве, достаточном для кладки обоих рядов.
-
Битый кирпич не используют в простенках и перевязочных узлах.
-
Для равномерного распределения давящей нагрузки тяжелых стен используют перевязку кладки.
Технологию строительства стен для бани в 1,5 кирпича можно посмотреть в следующем видео:
Работы по утеплению стен
Холодные зимы требую утепления бани из кирпича. Наружное утепление кирпичных стен используют редко. Это обусловлено особенностями эксплуатации бани в зимний период.
Внутреннее утепление позволяет гораздо быстрее прогреть помещение зимой. Особое внимание здесь уделяют парилке. Несмотря на температуру снаружи, баню необходимо протапливать хотя бы до 60°С.

Строительство стен бани в два ряда предусматривает укладку утеплительного слоя между ними. Здесь можно использовать:
Можно оставить воздушный зазор пустым.
В качестве декоративного слоя для внутренней отделки бани можно использовать деревянную вагонку. Она обладает отличными влагостойкими качествами, устойчива к перепадам температур и является безопасным материалом для эксплуатации.
Вагонка крепится на деревянный каркас со слоем утеплителя. В качестве утеплителя выбирают экологически безопасный материал, отлично противостоящий размножению грибков и бактерий, устойчивый к влажной среде и способный хорошо держать форму долгие годы.

В качестве пароизоляционного слоя для бани из кирпича используют алюминиевую фольгу. Она исполняет роль отличного влагозащитного слоя, отражает тепловое излучение и не пропускает нагретый воздух к холодным стенам.
Это может быть интересно! В статье по следующей ссылке читайте про отделку бани.
Заключение
Проекты бань из кирпича позволяет отлично отдохнуть после трудовой недели, набраться сил и расслабиться. Удобная планировка способствует функциональному разделению пространства и удобному обслуживанию бани в процессе эксплуатации. Проект, выбранный с учетом запросов каждого члена семьи, сделает баню любимым местом для спокойного отдыха. Прочитать позжеОтправим материал на почту
m-strana.ru
Проекты бань фото | Трест РемСтрой

Какую баню построить себе, варианты и проекты бани предлагает сайт своим посетителям. удивите своих соседей, отличный дизайном и внутренней отделкой собственной бани. Поиск проекта бани в интернете сейчас уже не занимает большого руда. Чего стоит наша подборка фото проектов бань.

Также рекомендуем:


Также рекомендуем:


Также рекомендуем:








Фото пректов бань, как правильно сделать баню из проекта — нужно найти правильный проект.
remstroy.net
Проекты бань с фото
Парильни и различные типы бань издавна существовали в каждой культуре от Запада до Востока, от Севера до Юга. Поход в баню и принимаемые там водные процедуры совершенно нельзя было назвать банальным мытьем (чем, собственно, мы и занимаемся в своих ванных комнатах и душевых в городских квартирах). Это был настоящий ритуал по очищению тела и духа, общему оздоровлению организма, заряду положительной энергией.
Те, что хоть единожды побывал в настоящей бане, сразу поймет, потому что уже почувствовал разницу. В свою очередь, это значит, что если на вашем загородном (или даже городском) земельном участке около дома есть свободное место, то будет непростительно не отвести его под баню.
Баня вовсе не обязательно представляет собой нечто грандиозное. Вовсе нет, для небольшой семьи, например, вполне достаточно маленькой бани, которую, кроме всего прочего, не сложно построить самостоятельно. Хотя, конечно, учитывая то, что в парной должен создаваться и поддерживаться определенный микроклимат (в зависимости от типа бани: русская, турецкая, финская, японская и пр.), и всегда присутствует повышенная влажность, а также горячая печь, баню необходимо правильно спроектировать.
Сегодня это не проблема, – достаточно обратиться к профессионалам и высказать все свои пожелания и возможности (по земле, по финансам и т.д.). Вскоре проект бани будет готов, и вы сможете приступить к ее строительству, тем более что по четкому и понятному проекту строить-то будет гораздо проще и даже дешевле.
Проекты бань своими руками
Конечно, если вы твердо намерены строить баню самостоятельно, то лучше ничего особо грандиозного не затевать, да и баню делать небольшой, так сказать, для тесной компании. Строительные материалы также лучше использовать те, с которыми легче всего будет работать, например, дерево, которое идеально подходит для традиционной русской парной.
Тем не менее, проекты бань из бруса могут быть разными:
- проект парной с традиционной дровяной печью-каменкой;
- проект парной с централизованной подачей пара от парогенератора в различных режимах;
- проект деревянной бани с электрокаменкой;
- проект финской сауны (турецкие бани, увы, из дерева не строят, необходим камень).
При правильно организованном подходе к делу и отсутствии лени, небольшую баню можно построить всего за месяц и даже за неделю (если на помощь придут, например, друзья или соседи). Тем не менее, учитывая то, что древесина является достаточно легко воспламенимым и хорошо горючим материалом, с особым вниманием следует отнестись к электропроводке, а также укладке печи. Лучше лишний раз хотя бы спросить совета специалиста.
А какой вид бани предпочитаете вы? Планируете ли постройку или уже вовсю используете парную и завели добрую традицию «банного дня» с семьей или друзьями? Чем топите, как обслуживаете? Оставляйте комментарии и присылайте ваши проекты бань своими руками с фото, делитесь опытом! Также вы всегда можете проконсультироваться или заказать проект у специалиста.
proecty-domov.ru
Бани проекты фото | Ремонт и стройматериалы для квартиры и дачи
Содержание статьи:
Баня популярный компонент загородного дома. Это не только дополнительное развлечение для людей, но и полезные компонент в доме как в зимний так и в летний период. В этой статье мы рассмотрим возможные проекты бань, которые в последствии вы сможете использовать для создания собственного проекта или постройки бани уже на готовом варианте.
Проект бани #1
картинки кликабельные, при нажатии можно увеличить.








Проект бани #2






Проект бани #3





Проект бани #4






Проект бани #5






Мы предоставили вашему внимание пять проектов бань, которые вы можете взять как пример или хотя бы основу для создания собственного проекта, который подойдет под вашу территорию и особенности расположения. Желаем вам хорошей стройки и долгого использования вашей бани.
Поделитесь статьей !!!
stroymarket38.ru
Купольная баня: проекты с фото
Купольная баня — это постройка в виде купола, в которой можно принимать банные процедуры. Купольными также называют конструкции бань, у которых только парилка изготовлена в форме цилиндра со сферическим потолком, а остальные помещения сделаны по классической схеме. Выбор в пользу того или иного типа бани-купола основывается на личных предпочтениях строителя: если нужна только купольная парная, то делается второй вариант. Когда же хочется видеть на участке красивый купол, а форма парилки не принципиальна, то баня строится по первому типу.
Купольная парилка: проект бани и фото парной
Главное помещение в любой бане — это парная и именно от её конструкции в наибольшей степени зависят ощущения, получаемые в процессе приёма банных процедур. Поэтому и существует такое большое количество рекомендаций по выбору оптимальных размеров парилки, расположения полоков, банной печи и даже материалов внутренней отделки.
Практически все любители попариться весь свой опыт банных процедур связывают с парными классической формы с прямыми углами, плоскими стенами и потолком. Поэтому, однажды побывав в парилке купольного вида, трудно не задуматься о том, как заметно, оказывается, форма помещения влияет на ощущения от пребывания в нём.
Рассмотрим для примера простой проект бани с парильным отделением, имеющим куполообразный потолок и стены без прямых углов, в виде цилиндрической конструкции.

Комплекс выполнен в виде почти полностью классической прямоугольной постройки, где только одно из помещений образует своими наружными и внутренними стенами замкнутый цилиндр без каких-либо углов.

Фото парилки хорошо иллюстрирует, как много места может быть в помещении такой формы. Тут с полным комфортом может находится до шести человек одновременно, а дуговая конструкция полоков позволяет максимально эффективно использовать всё полезное пространство внутри.

Схема выше показывает примерное распределение потоков теплого воздуха в парной с купольным потолком. Здесь наглядно показано одно из основных преимуществ таких парильных — равномерное распределение тёплого воздуха по всему помещению. Особенно это заметно в моменты подбрасывания воды на камни, когда резко образуется большое количество пара и его движение по парной хорошо ощущается всеми присутствующими.
Строительство бани производилось из блоков. В качестве подходящего материала в данном случае можно выбрать арболитовые или керамзитобетонные блоки, обладающие заметно более приемлемыми характеристиками для возведения бани, чем другие блоки из ячеистых бетонов.

На фото выше можно видеть, как выполняется установка купола парной. Деревянные панели в виде пятиугольников имеют достаточно компактные габариты, чтобы купол, изготовленный из такой мозаики, в результате имел форму, наиболее приближенную к сфере.

Моечная в такой бане, как и остальные помещения, выполнена в стандартной форме. Такое сочетание различных форм парильного и моечного отделений создают особенное впечатление при заходе в парилку: кажется, что попадаешь в другое пространство со своим уникальным климатом и ландшафтом.
Баня в форме купола
Когда вся конструкция бани проектируется как отдельностоящий купол, то парилка в нём будет иметь только одну стену сферической формы, а оставшиеся две или одна, как правило, будут стандартными.


При достаточно больших размерах постройки, нередко парная, так же как и вся бани, делается в форме купола.


Также можно сделать отдельно стоящую парилку, без каких-либо дополнительных помещений.


Такая парная вполне способна вместить до 4 человек, имеет площадь 4.15 м² и высоту потолков в самой высокой точке 2.3 метра.


Установить эту мини-парилку можно недалеко от частного дома, а рядом разместить открытый искусственный водоём или небольшой бассейн. Тогда, выйдя из парилки, можно сразу окунуться в воду, после чего спокойно дойти до дома, где уже в комфорте отдыхать или общаться с друзьями.
Читайте также баня из керамзитобетонных блоков и Бани с купелью: Проекты с Фото этапов строительства.
Баня с парилкой: два смежных купола
Удачным решением станет обустройство отдельной купольной конструкции для комнаты отдыха и предбанника, и второй примыкающей постройки парильного помещения с крышей в форме купола.

Планировка парилки может иметь несколько различных вариантов. Определяющие вопросы — место размещения печи и форма полоков.




Здесь интересным решением станет установка металлической печки, обложенной кирпичом, в самом центре помещения. Тогда практически весь периметр стен, кроме дверного проёма, остаётся свободным для установки сплошного кругового полока.

Расположение мебели и печи в комнате отдыха рассчитывается в зависимости от функционального предназначения помещения. Для отдыха и сна семейной пары устанавливается большая кровать, а в если баня строится с целью принятия банных процедур в большой компании, то в комнате устанавливается большой стол с достаточным количеством стульев и кресел и раскладной диван.
banyagid.com
Проекты бань из кирпича — Фото и чертежи стандартных проектов
При всей любви любителей бани к дереву как традиционному материалу для ее строительства, этот материал имеет ряд недостатков, главные из которых – пожароопасность и сравнительно небольшая долговечность. С этой точки зрения кирпич, являясь вторым по популярности конструкционным материалом, имеет ряд преимуществ:
- долговечность – здания из кирпича служат до 150 лет.
- пожарная безопасность – стены бани из кирпича не горят и не поддерживают горения;
- внешняя привлекательность – кирпичные строения обладают прекрасным внешним видом и легко вписываются в любой ладншафтный дизайн;
- хорошие теплоизолирующие свойства.
Безусловно, есть у кирпича недостатки, которые несколько снижают его привлекательность и усложняют работы по строительству бани:
- плохая паропроводимость кирпича – стены и потолок парилки и других помещений с повышенной влажностью необходимо защищать пароизоляцией и оснащать хорошей вентиляцией для предотвращения отсыревания;
- высокая тепловая емкость, из-за которой кирпичную баню нужно прогревать значительно дольше, чем из древесины;
Главный же недостаток бани из качественного кирпича – ее более высокая стоимость по сравнению с деревянной, поэтому можно говорить о том, что обычно ее строят люди небедные и взыскательные. Тем более, что кирпич является штучным материалом небольшого размера, и значит, из него можно строить баню по любым, самым необычным проектам.
Давайте рассмотрим несколько фото проектов бань из кирпича.
Баня 3 х 3
Небольшая по площади баня, которая имеет размеры 9 кв.м., что делают ее идеальной для небольших по размерам дачных участков. Ее вполне по силам построить любому хозяину самостоятельно, без привлечения специалистов-каменщиков.

Проект бани предполагает заливку ленточного фундамента глубиной 50-60 см (для непучинистых грунтов) или на глубину промерзания – для пучинистых. Стена может быть однородной в 1,5 кирпича. Стропильная система кровли простая, двускатная, кровельное покрытие – шифер, битумная черепица или металлопрофиль.
Внутри – комната отдыха и совмещенная моечная-парилка одинаковой – около 4 кв.м. – площади. Размеры парилки подразумевают одновременное нахождение в ней 2-3 человек.
Баня 5 х 4
Более просторная и комфортная баня в один этаж из кирпича площадью 20 кв.м. Здесь мы видим раздельную моечную и парилку, площадь которой позволяет 3-4 людям одновременно принимать банные процедуры. Просторная комната отдыха позволяет разместить необходимое количество мебели для полноценного отдыха и восстановления. Каждая комната, в том числе и парилка, имеет окна, естественный свет из которых позволит экономить электроэнергию, да и отдых в комнате с окнами более полноценный с психологической точки зрения. Кроме того, окна позволяют после использования бани качественно проветрить все помещения, чтобы не допустить увлажнения стен.

Этот проект кирпичной бани достаточно сложный – хозяину нужно будет привлечь для строительства стен профессионала-каменщика, а также кровельных мастеров. Самостоятельно сделать такой объем достаточно сложной работы неспециалисту практически невозможно.

При наличии свободного места и большого желания, этот проект можно реализовать с террасой вместо крыльца, где в летнее время можно будет проводить большую часть отдыха, совмещая банные процедуры с приготовлением, например, шашлыка. Естественно, для этого на террасе можно предусмотреть стационарную или переносную шашлычницу.
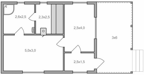
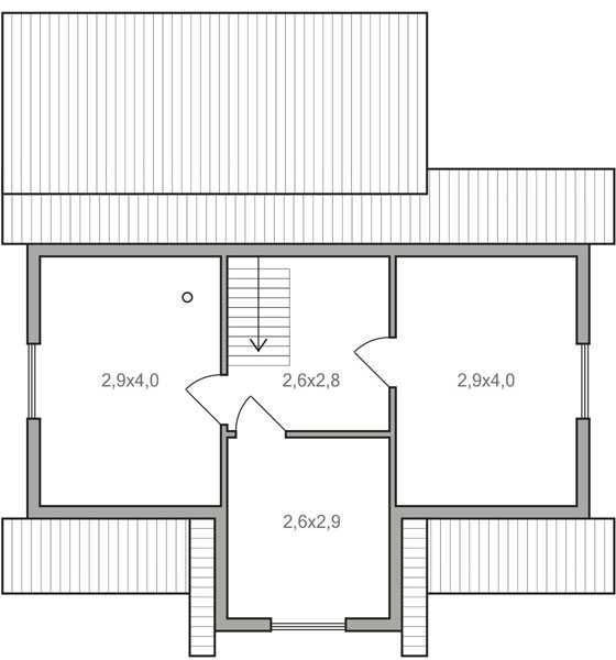
Баня 10 х 14
Этот проект бани является настоящим шедевром архитектуры, доступным для реализации очень немногим хозяевам приусадебных участков. Точнее было бы назвать такое сооружение гостевым домиком с бассейном и баней – здесь есть все для полноценной жизни в летнее время; если же хозяин предусмотрит нормальное отопление, можно жить и круглогодично.

Через тамбур первого этажа мы попадаем в просторную и хорошо освещенную комнату отдыха 22 кв.м. Отсюда можно пройти в гардероб и, раздевшись, пройти в душ (рядом с которым предусмотрен санузел) и в парилку. После того, как попарились, через комнату отдыха попадаем в просторное помещение, где расположен бассейн.

В таком банном комплексе не обойтись без мощной приточно-вытяжной вентиляционной системы, которая, безусловно, должна быть спроектирована специалистом-инженером с учетом все особенностей расположения комнат и их назначения.

Проект бани предусматривает наличие мансарды, при этом вход в мансардное помещение расположен отдельно с улицы. Поднимаемся по компактной лестнице на второй этаж, с площадки которого попадаем через дверь в жилую комнату большой площади с окнами. Здесь прекрасно сможет разместиться семья из двух человека, тем более, что мансарда оборудована санузлом и небольшой кухней.
Читайте также: Проект бани с бассейном — Фото, Как построить баню из кирпича своими руками, Проект бани из пеноблоков — Фото
banyagid.com
