Проект санузла совмещенного санузла – Индивидуальные проекты совместных санузлов — rerooms.ru
Дизайн-проект совмещенного санузла
Очень часто владельцы небольших квартир задумываются о создании совмещённого санузла. В большинстве случаев планировка заранее является совмещённой, поэтому всё что остаётся квартировладельцу — подобрать подходящую расстановку мебели и сантехники.

Естественно, что для того, чтобы сделать совмещённый санузел по-настоящему комфортным особое внимание нужно уделить цветовой гамме. Чтобы добиться визуального расширения необходимо правильно расположить светильники и подобрать подходящие цвета.
Совет! В качестве материала для отделки совмещённого санузла в большинстве случаев используют плитку. Она обладает большой стойкостью к высокому содержанию влаги в воздухе и отлично поддаётся чистке.
Важные нюансы при создании проекта совмещённого санузла

Если у вас ванная комната совмещена с туалетом, при этом её метраж не особо велик — это не повод ограничивать свой комфорт. При должном планировании можно создать максимально функциональное пространство на ограниченной площади. Для этого достаточно с тщательностью подойти к разработке проекта совмещённого санузла.
В качестве эталона для проекта возьмём комнату с площадью один метр и 82 сантиметра на 2,15 м. Именно такие санузлы можно найти в большинстве двухкомнатных квартир страны.

Начать нужно с выбора приоритетов. К примеру, люди старшего возраста отдают предпочтение просторному и комфортному душу с множеством дополнительных функций. Современное оборудование позволяет в кратчайшие сроки помыться, при этом некоторые кабинки могут быть оборудованы уникальными устройствами и обеспечивать массаж, а также сушку.
Тем не менее ванны до сих пор пользуются огромной популярностью. Они дают возможность расслабиться в непринуждённой атмосфере. Но дело в том, что в столь ограниченном пространстве вам придётся выбирать между проектом совмещённого санузла, включающего многофункциональную душевую кабинку и вариантом с небольшой ванной.

Внимание! Главное достоинство ванны заключается в том, что в ней можно принять простой душ. Правда, о каких-либо дополнительных опциях придётся забыть.
Простейшая планировка в маленькой комнате

В некоторых случаях простота позволяет не только добиться минимальных финансовых затрат, но и организовать максимальную функциональность. Неудивительно, что в большинстве случаев самое простое решение является наиболее верным.
Если говорить про проект небольшого совмещённого санузла, то лучше всего ванную установить у той стены, что короче. Одного метра и 82 сантиметров будет вполне достаточно, чтобы комфортно мог себя чувствовать любой взрослый человек.

Оставшиеся предметы можно выстроить вдоль длинной стены, которая будет свободной. Обычно именно здесь устанавливают:
- умывальник,
- тумбочку,
- корзину для белья и т. д.
Также у этой стены чаще всего устанавливается унитаз. Бойлер также лучше всего монтировать здесь.

На стене, что напротив ванной, можно закрепить зеркало. Но ничего громоздкого здесь установить не получится, так как большие предметы заблокируют доступ к туалету. Стиральную машину в данном проекте малого совмещённого узла можно установить неподалёку от резервуара.
Убираем углы и устанавливаем зеркала

Начинающие дизайнеры сильно недооценивают значение углов в своих проектах совмещённых санузлов. К примеру, если поместить ванную в полукруглую нишу — это позволит визуально в значительной мере увеличить внутреннее пространство.

Тоже можно сделать со столешницей, которая будет установлена под раковиной. Закруглённые углы не только делают общее пространство визуально больше, но и повышают уровень безопасности. Это будет более чем полезно, если у вас есть маленькие дети.
Внимание! Зеркала лучше всего расположить в разрыве фальшкороба. При этом в сам короб можно спрятать коммуникации.
Функциональность
При создании проекта совмещённого санузла не стоит останавливать внимание только на визуальной части. Именно от того, как вы расположите ключевые элементы комнаты, зависит, насколько удобно вам в ней будет находиться.

При выборе месторасположения для душевой кабинки можно ориентироваться на входную дверь. Когда входной проём находится в короткой стене, пространство напротив разумнее всего будет выделить под душ.

Внимание! Кабинку лучше всего немного приподнять над полом. Это позволит вам сделать систему слива незаметной.
Особое внимание нужно уделить перегородке, которая отделит данное помещение от остальной ванной. В неё будет удобно спрятать систему слива для унитаза с подвесным бачком.

Необходимо сделать так, чтобы перегородка немного не доходила до потолка. Это сделает комнату визуально ещё больше. Стиральную машину можно спрятать под раковину. Раздвижные перегородки отлично дополнят данный концепт.
Совет! Навесные шкафчики позволяют сэкономить пространство и дают место, где можно положить полотенца или банные халаты.
Проекты санузлов в разных стилях
Средиземноморский стиль

Чтобы сделать дизайн проекта совмещённого санузла в средиземноморском стиле возьмём помещение с длинной в 2,5 м и шириной в 1,9 м. Это оптимальные параметры, которые позволят сделать комнату максимально комфортной.

В проект совмещённого санузла в средиземноморском стиле входят такие основные элементы:
- ванна,
- унитаз,
- два умывальника.
Естественно, дополнительно в проект будет входить множество элементов, вроде зеркал или ящиков для полотенец. Но их расположение будет определяться тем, как в этом проекте совмещённого санузла, вы разместите две раковины, ванну и унитаз.

Совет! Унитаз лучше всего скрыть за перегородкой.
Подобный вариант дизайна больше всего подходит для больших семей, но не только. Если несколько человек одновременно собирается на работу, то доступ к умывальнику становится крайне важной опцией.

В проект совмещённого санузла в средиземноморском стиле часто добавляется корзина для белья. Но подобный элемент в большинстве случаев носит чисто декоративный характер. Её легко можно спрятать под раковину.
При выборе цветовой палитры плитки лучше всего отдавать предпочтении смеси коричневого и оранжевого. Именно такая палитра является традиционной для проектов в средиземноморском стиле. Главным же достоинством подобной планировки является простор. Здесь без труда можно установить стиральную машину, бойлер или комод.
Внимание! Белая элементы уравновешивают коричневый и оранжевый цвета, делая комнату визуально больше. Также для зрительного увеличения пространства рекомендуется использовать большое зеркало до потолка.
Если вы решите в проекте вместо ванной сделать душ, лучше всего использовать матовое стекло в качестве перегородки. Дело в том, что прозрачные витражи требуют слишком много ухода за собой.
Проект для вытянутого санузла для помещения с параметрами 2,5 на 1,9 м

Проект вытянутого совмещённого санузла пользуется самой большой популярностью в стандартных российских квартирах. Обычно для того чтобы получить нужный метраж перегородка между ванной и туалетом разламывается. Это позволяет в значительной мере расширить зону свободного пространства и даёт больше простора для дизайнерской фантазии.

Далее сантехника и мебель выставляются в один ряд. Это наиболее рациональный тип планировки, позволяющий добиться наибольшей эргономики при использовании минимальной площади.
Значительно больше интереса в данном проекте совмещённого санузла представляет цветовое оформление. Очень часто дизайнеры применяют мозаичную плитку. Это идеальный вариант для маленькой комнаты, так как создаётся некая графическая иллюзия, позволяющая его графически расширить.

Внимание! При использовании мозаичной кладки нужно сохранять определённую осторожность. Лучше всего её покрывать отдельные части комнаты, а не всю её целиком.
Когда речь заходит про подбор цвета, лучше всего сосредоточится на сине-голубых оттенках. Этот приём также в значительной мере расширит визуальное пространства и добавит дизайну определённой лёгкости. В свою очередь кремовые и коричневые вставки добавят дизайнерской концепции теплоты.
Узкий совмещённый санузел

В некоторых квартирах совмещённый санузел является очень узким. В таком случае приходится создавать проект совмещённого санузла с душевой кабинкой. Именно такой вариант считается оптимальным при данных условиях.
Если приступить к созданию проекта узкого совмещённого санузла с максимальной ответственностью, то в помещение можно также установить биде. Данный элемент сантехники нужно монтировать напротив унитаза. Но при этом всё необходимо рассчитать таким образом, чтобы был свободный проход к душевой кабинке.

Если вы не можете представить свою жизнь без ванной, то можно установить компактную конструкцию, в которой можно будет мыться сидя. Подобные варианты крайне популярны в Японии.
Совет! Вместо биде можно использовать такое устройство, как гигиенический душ. Это позволит в значительной мере сэкономить свободное пространство в проекте совмещённого санузла.
Естественно, в таком совмещённом санузле места для нормальной стиральной машины просто нет, конечно, можно подобрать малогабаритный вариант, но он сильно уменьшит совмещённое пространство.

Внимание! При подборе цветовой гаммы для проекта совмещённого санузла можно использовать оранжевую мозаику с белыми вставками для разграничения зон.
Итоги
Как видите, существует множество проектов совмещённого санузла. Поэтому даже при минимальной площади можно добиться хорошей функциональности, если, к примеру, установить душевую кабинку или маленькую ванну.
bouw.ru
Выбор проекта при перепланировке ванной комнаты и санузла
Санузел должен быть… прежде всего практичным, удобным, безопасным и функциональным. Поэтому проектирование санузлов должно проводится с учетом эргономики и всех нормативов СНиП в совокупности с потребностями хозяев квартиры.
Планировка ванных комнат и санузлов включает в себя расстановку сантехники и мебели: ванна, раковина, унитаз, зеркало, шкафчик, полотенцесушитель, возможно биде, стиральная машина, душевая кабина, а также схему разводки инженерных коммуникаций: водоснабжение, канализация, счетчики, вентиляция, электричество. В статье мы расскажем о разных типах планировки санузла, и в отдельности коснемся проектных особенностей маленьких и совмещенных помещений.
Оптимальные типы планировки стандартных санузлов
Чтобы максимально эффективно задействовать пространство, следует начертить план санузла с размерами, и тщательно продумать, как будут размещены сантехника и мебель.

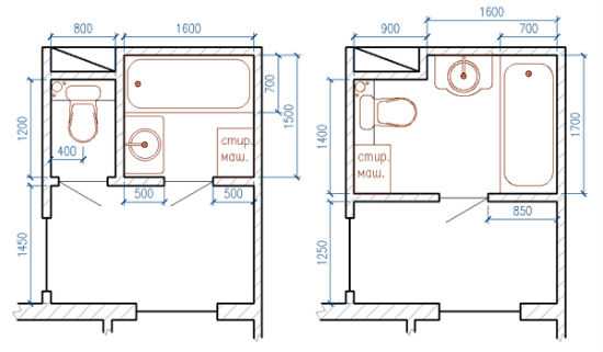
Дизайн проекты совмещенных санузлов в линейной расстановкой сантехники
Если помещение прямоугольное, вытянутое и узкое, то рекомендуется линейная компоновка сантехники, а если почти квадратное, то ванну, унитаз и раковину можно разместить по радиальному принципу, как показано на схеме ниже.

Способы размещение сантехники в совмещенном санузле
В последнее время сохраняется стойкая тенденция к перепланировке помещений, маленький туалет присоединяют к ванной комнате. Такое решение, за счет удаление стены и одной двери, позволяет заполучить дополнительную площадь и возможность по-новому распланировать обстановку: найти дополнительное место для установки стиральной машины, шкафчика, биде или второй раковины. Проект совмещенного санузла следует обязательно узаконить, получив согласование на перепланировку в БТИ.

Примеры планировки в типовом санузле
Маленькое пространство
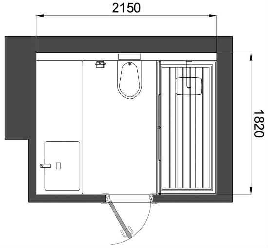
Грамотная планировка совмещенного санузла даже на очень маленькой площади в 2 м.кв. позволяет разместить в помещении всю необходимую сантехнику, как показано на плане ниже.

Маленький санузел, планировка узкого помещения с встраиваемой душевой панелью
Здесь очень важно взять во внимание состав семьи, если в доме дети, то лучше установить компактную ванну, для обустройства уборной для взрослых людей вполне подойдет и душевая кабина.

При индивидуальной планировке помещения вместо биде можно установить узкую стиральную машину
В раздельном санузле на 2 м.кв. можно установить не только ванну, но и душевую кабину или встроенную панель, отгородив ее специальным экраном. Если отказаться от варианта с душем, останется место под стиральную машину.

Размещение сантехники в маленькой ванной комнате
Санузел в панельном доме и в хрущевке
Санузлы в типовых панельных домах и в хрущевке имеют стандартную площадь 3, 3,3 и 3,75 м.кв. Чаще всего, в таких случаях принимается решение объединить маленькие помещения, что позволяет создать комфортную и практичную уборную, в которой умещается все необходимое.

Стандартная линейная планировка уборной 3 кв. м.
Санузел площадью 3,1 м. кв., как правило имеет вытянутую прямоугольную форму, поэтому все оборудование рекомендуется разместить вдоль длинной стены, таким образом, на стыке смежной и противоположной стен образуется свободное пространство для установки машинки и узкого шкафчика.

Планировка санузла в хрущевке, если установить компактную сантехнику, то вместится шкаф и стиральная машина
Больше повезло владельцев санузлов 3,3 м.кв., помещение имеет почти геометрию квадрата. Здесь уже можно планировать размещение сантехники радиально и линейно. А кроме того, есть возможность установить, как ванну, так и душевую кабину.

Фото совместного санузла в хрущевке
Чаще всего в панельном доме, чтобы совместить санузел достаточно убрать перегородку между помещениями, но в таком случае приходится отказаться от ванны в пользу душевой кабины.

Типовая перепланировка санузла в панельном доме
Если позволяет ширина коридора, то иногда чтобы увеличить площадь санузла в панельных домах «захватывают» часть прихожей. Это радикальный способ перепланировки, который следует тщательно просчитать.

Пример, как спланировать и увеличить санузел за счет коридора
Планировка санузла 4 кв. м и более
В домах новой серии, например, в И-155 санузлы вытянутые, имеют площадь 3,9-4 м.кв. В таком помещении вариантов перепланировки может быть множество. Один из самых распространенных на схеме ниже: вся сантехника располагается на одной линии по длинной стене.

Здесь вместо ванны можно поставить душевую кабину, тогда высвободится место под стиральную машину
В этой же серии домов в двухкомнатных квартирах санузел чуть большего размера и нет громоздкого вентиляционного короба. Здесь вмещается полноценная ванна, а противоположной стене можно расположить большую тумбу с раковиной, под столешницей хватит места под стиральную машину.

Радиальное расположение сантехники в помещении 4 кв. м
В почти квадратных санузлах ванну можно разместить вдоль стены напротив двери (план ниже) либо по смежной стороне (на схеме стена справа). В таком случае унитаз и раковина переносятся на дальнюю стену, а слева останется место для машинки и шкафа.

Схема планировки санузлов с размерами 2*2 м
Важно: Перепланировка ванной комнаты и санузла – мероприятие затратное, так как перенос сантехники влечет за собой переделку узлов коммуникаций. Существуют определенные нормы к сгибу труб, их наклону и поперечному сечению, а также правила, на установку счетчиков и отсекающих кранов, прежде чем приступить к переделке необходимо выполнить проектную документацию с указанием всех изменений.
Типовая схема расположения сантехники в серии домов П-11 М
Квартиры в серии домов П-111 М имеют санузел площадью чуть более 5 м. кв., здесь перепланировка может включать в себя и двойные раковины с удобным столиком, ванную, отдельно душ, шкафы и полочки, унитаз и биде. И вопреки сложившейся тенденции, если у вас многочисленная семья, то такой санузел лучше сделать раздельным, чтобы был отдельный доступ к унитазу и ванной комнате, в которой все равно останется достаточно места, чтобы установить все необходимое.

Совмещенный санузел с перегородкой для туалета
Две раковины будут полезны тем, кто встает на работу в одно время, если такой необходимости нет, то полезную площадь можно использовать для установки душевой кабины с разными СПА функциями или под шкаф.
Перепланировка углового и нестандартного санузла
Нестандартная форма санузла может показаться недостатком, но при грамотной планировке, все минусы можно превратить в достоинства. Ниже, мы подобрали две схемы расположения сантехники в сложных по форме помещениях. Преимуществом здесь является угловая ванна и душ, которые очень сложно уместить в прямоугольном пространстве.
Планировка санузла при сложной геометрии пространства
Как узаконить перепланировку
Согласование на перепланировку санузла может проходить по упрощенной форме только по эскизу:
- Если планируется только снос перегородки без увеличения площади за счет других помещений.
- Будет просто перенос узлов коммуникации, без увеличения точек сантехники. То есть, раковину на другую стену перенести можно, а вот поставить два умывальника уже нельзя.
Чтобы получить разрешение на упрощенную перепланировку, необходимо в жилищную комиссию предоставить следующие документы:
- техпаспорт из БТИ;
- эскиз с перепланировкой на копии паспорта из БТИ можно нарисовать изменения от руки;
- свидетельство на жилплощадь или договор соцнайма;
- письменное заявлений собственников квартиры, для опекунов нотариально заверенное согласие.
Перепланировка санузла потребует составление проектной документации, если планируется:
- увеличение санузла за счет других площадей (только нежилых: коридор, кладовая), исключая кухню;
- перенести санузел в другое нежилое помещение, которое имеет отдельных вход, но при этом требуется, чтобы из санузла не было напрямую выхода в комнату или кухню;
- если вы планируете увеличить количество сантехнических точек, в том числе установка дополнительной раковины, биде, стиральной машины и других приборов, эксплуатация которых увеличит потребление воды.
В данном случае, помимо перечисленных выше документов, так же потребуется Техзаключение и проектная документация на перепланировку, обязательно от организации, имеющей допуск СРО на данный вид работ, и заключение из Роспотребнадзора.

Простая перепланировка совмещенного пространства по эскизам
После ремонта потребуется вызвать представителей жилкомиссии, получить от них акт выполненных работ. Так же потребуются акты на скрытые работы: новая схема разводки и гидроизоляция санузла, которые должна выполнить организация с допуском СРО или управляющая компания. После этого пригласить в квартиру техника БТИ, он обмерит помещение. И в заключении вам нужно будет получить новый техпаспорт из БТИ, где будут внесены все изменения.
remonttool.ru
проекты дизайна совмещенной ванны с туалетом и нормы проектирования, рекомендации
Санузлы проектируются с таким расчетом, чтобы добиться при максимальной функциональности максимальной комфортности, потому что человек утром именно в этих комнатах набирается бодростью, а перед сном – получает удовольствие и расслабляется.

Помещения туалета и ванной – самые маленькие по площади, но их значимость не уменьшается ограниченным размером. Для комфортабельности жилья проектом санузла должна обеспечиваться достаточная его площадь, а во многих случаях устраивается даже несколько санузлов.
При этом нужно учитывать, что очень большая площадь подобного помещения считается также расточительство, как финансов, так и жилого пространства.
Потому нормами проектирования санузлов предусматривается их тщательное планирование еще на стадии создания проекта дома.
Применение подобного подхода позволяет заранее определять комфортабельность помещения при увеличении его площади и возможность экономии нескольких квадратных метров без ущерба функциональности.
Также довольно важен вопрос о том, что лучше – смежный или совмещенный санузел. Санузлом называются места, где люди принимают санитарно-гигиенические процедуры. При совмещенном санузле ванна и туалет расположены в одном помещении, а при разделенном – в различных.
Зачастую под санузлом в быту понимается помещение, где расположены унитаз и умывальник, в некоторых случаях душевая кабина. Чтобы избегать путаницы между этими понятиями, в последующем помещение с унитазом и умывальником называть будем уборной, а при наличии в нем душа – санузлом.
Полезно: большие комнаты, где располагается также ванна, называются обычно ванной комнатой. Подобные комнаты, как правило, не предназначаются для гостей, а лишь для владельцев дома. Они расположены в приватных уголках жилья, обычно, недалеко от спальни. Как правило, рядом и делается планировка небольшого санузла.
Требования к планировке санузла

Планируя санузел, нужно соблюдать некоторые требования:
- Оптимальной ситуацией предусматривается наличие в ванной комнате окна, который будет обеспечивать освещение и естественную вентиляцию. Если невозможно оборудовать окно в ванной, то необходимо обустраивать принудительную вентиляцию, которая будет удалять конденсат, образованный в результате интенсивного парообразования.
Полезно: хорошо, если в ванной окно выходит на восток, также можно выводить окно на север или северо-восток.

- Для санузлов разной планировки действуют такие требования к минимальным площадям:
- Для ванной с ванной, умывальником и местом под стиральную машину – 3,3 кв.м.
- Для туалета с унитазом без умывальника – 1,2 кв.м.
- Для совмещенных санузлов, оборудованных ванной, местом под стиральную машину, умывальником, унитазом – 3,8 кв.м.
- Для туалета с унитазом и умывальником – 1,5 кв.м.

- Помимо этого, необходимо соблюдать минимальное расстояние между оборудованием и стенами комнаты санузла:
- Перед ванной или душевой кабиной необходимо оставлять не менее 70 сантиметров свободного места, оптимально – 105 см;
Расстояние перед ванной и душевой кабиной - Между вешалками или полотенцесушителями и душем или ванной расстояние должно быть 50-70 сантиметров;
- Перед унитазом нужно оставлять не менее 60 сантиметров, а с обеих сторон продольной оси – не менее 40 см;
Расстояние перед унитазом - Смывная труба, промывающая писсуарный лоток, направляется вниз под 45-градусным углом отверстием к стене;
- Умывальник располагается на высоте не менее 80 сантиметров от пола;
- Между боковой стеной и умывальником расстояние должно быть не менее 20 см, между унитазом и умывальником – 25 см;
Расстояние между стеной, унитазом и умывальником - Перед умывальником расстояние должно быть минимум 70 или 95 миллиметров, при его установке в нише;
Расстояние перед умывальником - Между осями смесителей 2-х умывальников расстояние не меньше 90 сантиметров, а между умывальниками – не менее 25 см.
Количество санитарных узлов и их расположение

При проектировании санузлов следует учитывать такие основные факторы:
- Число санузлов выбирается зависимо от площади дома и количества проживающих в доме человек. В небольшом одноэтажном доме, в котором не больше 2-х спален, зачастую обустраивают 1 ванную комнату и 1 санузел или уборную вблизи гостиной. Также можно рассмотреть планировку совмещенного санузла для гостей, а дверь в уборную или санузел рекомендуется делать в холле;
Важно: при составлении плана санузла не нужно располагать туалет возле кухни или столовой.
- В 2-этажном доме, где 3 и более спален, в которых живут 2 взрослых человека и 2 малыша, санузел планируется таким образом: на 1-ом этаже – гостевая уборная, на 2-ом – две ванных комнаты, одна из которых расположена вблизи спальни родителей, вторая, которая выходит в коридор, — используют дети;
- Если на первом этаже есть гостевая спальня оптимально обустраивать санузел, а не уборную. Санузел при этом должен располагаться вблизи комнаты отдуха и комнаты гостей;
- Если в доме постоянно проживают престарелые люди, то вблизи их спальни (как правило, на 1-ом этаже) предусматривают отдельную полноценную ванную комнату, а для гостей – планируется совместный санузел возле общественной зоны;
- Максимальная комфортность обеспечивается планировка санузлов, когда при каждой спальне есть отдельная ванная комната, а на 1-ом этаже – общий гостевой санузел. Рациональность подобного решения определяет лишь площадь дома и финансовые возможности владельцев;
- Если в доме есть несколько этажей, рекомендуется располагать санузлы друг над другом для экономии на прокладке разных коммуникаций;
Важно: не нужно располагать санузлы над жилыми комнатами.
- При обдумывании расширения санузла также необходимо предварительно продумывать, где будет располагаться стиральная машина. Идеальный вариант заключается в оборудовании отдельной постирочной под стирку, глажку, сушку белья и другие хозяйственные нужды;
- В санузлах не нужно интенсивное естественное освещение, потому они могут размещаться около северной стены, которую не следует оснащать окнами.
Важно: в ванных комнатах с большими окнами или выходом на террасу или балкон не рекомендуется размещать на холодной северной стороне.
Планировка уборной
Уборная довольно комфортная при наличии в ней унитаза и умывальника, которые требуют площади в 1,5 кв.м. В частных домах редко устанавливают биде и писсуар, лишь при наличии свободного пространства, которое часто занимается сушильной и стиральной машинами, шкафчиками для хранения белья и т.д.
Большую уборную можно также превратить в санузел, разместив в ней душевую кабину, при этом санузел можно увеличивать за счет коридора. Привлекательность уборной можно повысить, если оборудовать в ней окно, однако при этом рациональное применение места требует подоконника высотой в 130 и больше см, благодаря чему возможна установка под ним унитаза или организации зоны для хранения.
Выполнение планировки санузла
Для грамотного планирования санузла нужно знать основные нюансы:
- Помещение санузла должно иметь минимальную площадь 2,75 кв.м. Для экономии пространства возможно использование угловой душевой кабины, вход в которую расположен сбоку или с угла, при этом желательно выбирать раздвижную дверь распашного типа;

- При сложной конфигурации санузла, которая не позволяет применять традиционный поддон для душевой кабины из-за его размеров, возможно использование душевой панели, фиксирующейся к стене.
- Вокруг панели огораживается пространство, требуемое для максимального удобства;

Полезно: за счет выкладывания одинаковой плиткой пола душевой части или всего санузла, возможно визуальное увеличение размера комнаты.

- В процессе планировки ванной комнаты унитаз, умывальник и ванну можно расположить на площади в 3,3 кв.м. При необходимости устанавливать стиральную машину помещение должен быть площадью минимум 3,5 кв.м. В ванных комнатах большой площади, располагающиеся, как правило, возле главной спальни, могут дополнительно размещаться кабина для душа, второй умывальник, писсуар, биде, шкафы для хранения бытовой химии, белья, косметики и т.д.;
Важно: свободное расположение перечисляемого оборудования для комфортного пользования ванной комнатой требует площади не меньше 8 кв.м.

- Если помещение имеет еще большие размеры, то ванну можно устанавливать по центру, при этом обеспечивается доступ к ней со всех сторон.
- Около ванны можно устанавливать кресло из быстросохнущего или непромокаемого материала. При этом разные шкафчики располагают на расстоянии от ванны, потому что, несмотря на их покрытие особыми составами, постоянное влияние влаги уменьшает их срок службы;

- В процессе планировки санузла для пожилых людей рекомендуется увеличивать ширину разных проходов за счет расположения меньшего числа оборудования. Ванну можно заменять душем, оборудованным сиденьем, проход к нему должен иметь ширину не меньше 1 м. Помимо этого, в подобном санузле не должно быть скользкой плитки на полу или ковриков, а между полотенцесушителем или держателем полотенец расстояние должно быть около 50-70 сантиметров.
Соблюдение вышеперечисленных предписаний и рекомендаций позволит еще на стадии строительства сделать правильную планировку санузла, обеспечивая комфорт, надежность и удобство его использования.
vannaguru.com
проекты дизайна совмещенной ванны с туалетом и нормы проектирования
Все фото из статьи
В данной статье будет рассмотрена Пример планировки, основные ее принципы и нюансы, а также этапы выполнения планировки.
Проекты санузлов выполняют с таким расчетом, чтобы при максимальной функциональности добиться максимальной комфортности, поскольку утром человек набирается здесь бодрости, а перед сном – расслабляется и получает удовольствие.
Пример планировки
Помещения ванной и туалета являются самыми маленькими по площади, но ограниченный размер не уменьшает их значимость. Для того, чтобы жилье было по-настоящему комфортабельным, проект санузла должен обеспечивать достаточную его площадь, а в ряде случаев устраивают даже не один санузел, а несколько.
При этом следует учитывать, что слишком большая площадь такого помещения также является расточительством как жилого пространства, так и финансов.
Поэтому нормы проектирования санузлов предусматривают их тщательное планирование еще на том этапе, когда создается проект дома.
Использование такого подхода позволяет определить заранее, какое помещение будет более комфортабельным в случае увеличения его площади, а в каком случае можно сэкономить несколько квадратных метров без ущерба общей функциональности.
Достаточно важным является также вопрос, что лучше – совмещенный или смежный санузел. Вообще, санитарным узлом называют места, где человек принимает санитарно-гигиенические процедуры. В случае совмещенного санузла туалет и ванна располагаются в одном помещении, а в случае разделенного – в разных.
В быту под санузлом чаще всего понимают помещение, в котором располагается умывальник и унитаз, иногда также душевая кабина. Во избежание путаницы между данными понятиями в дальнейшем помещение с умывальником и унитазом мы будем называть уборной, а если помимо этого в ней находится душ – санузлом.
Полезно: помещение большого размера, в котором расположена также ванна, обычно называют ванной комнатой. Такие помещения обычно не предназначены для гостей, а только для хозяев дома. Они располагаются в приватной части жилища, чаще всего возле спальни. Рядом обычно выполняется и планировка маленького санузла.
Требования к планировке санузла
Правильное расположение санузла
При планировке санузла рекомендуется соблюдать следующие требования:
- Оптимальная ситуация предусматривает наличие окна в ванной комнате, обеспечивающего естественную вентиляцию и освещение данного помещения. При невозможности оборудовать окно в ванной следует обустроить принудительную вентиляцию, удаляющую конденсат, образующийся в результате интенсивного парообразования;
Полезно: лучше всего, чтобы окно в ванной выходило на восток, можно также вывести окно на северо-восток или на север.
Пример санузла с окном
- Для санузлов различной планировки действуют следующие требования к минимальной площади:
- Кроме того, следует соблюдать минимальные расстояния между стенами помещения санузла и оборудованием:
- Перед унитазом следует оставить как минимум 60 см пространства, а с обеих сторон от его продольной оси – минимум по 40 см;
Расстояние перед унитазом
- Смывную трубу, промывающую писсуарный лоток, направляют вниз под углом 45° отверстием к стене;
- Умывальник размещают на высоте как минимум 80 см от уровня пола;
- Минимальное расстояние между умывальником и боковой стеной – 20 см, между умывальником и унитазом – 25 см;
Расстояния между умывальником, унитазом и стеной
Количество санитарных узлов и их расположение
Пример планировки
Рассмотрим основные факторы, которые следует учитывать, выполняя проектирование санузлов:
- Количество санузлов выбирают в зависимости от того, какова площадь дома и сколько человек в нем проживает. В случае одноэтажного дома небольшой площади, в котором не более двух спален, чаще всего обустраивается одна ванная комната и один санузел или уборная неподалеку от гостиной.
Может также рассматриваться планировка совмещенного санузла для гостей, а дверь в санузел или уборную желательно делать в холле, а не в общей комнате для отдыха;
Важно: составляя план санузла, не следует размещать туалет около столовой или кухни.
- В случае двухэтажного дома, в котором имеется три или более спален, в которых проживают два взрослых человека и два ребенка, планировки санузлов выполняют следующим образом: на первом этаже – гостевая уборная, на втором – 2 ванных комнаты, из которых одна располагается возле родительской спальни, вторая, выходящая в коридор – используется детьми;
- При наличии гостевой спальни на первом этаже оптимальным вариантом является обустройство санузла, а не уборной. При этом санузел должен быть расположен достаточно близко как к комнате для гостей, так и к комнате отдыха;
- При постоянном проживании в доме пожилых людей, возле их спальни (обычно на первом этаже) предусматривается отдельная полноценная ванная комната, а для гостей выполняется планировка совместного санузла около общественной зоны;
- Максимальную комфортность обеспечивает такая планировка санузлов, когда при каждой спальне имеется отдельная ванная комната, а на первом этаже – общий гостевой санузел. Рациональность такого решения определяется только площадью дома и финансовыми возможностями хозяев;
- При наличии в доме нескольких этажей санузлы рекомендуется размещать друг над другом в целях экономии на прокладке различных коммуникаций;
Важно: не следует размещать санузлы над жилыми помещениями.
- Обдумывая расширение санузла, следует также заранее продумать, где будет размещаться стиральная машина. Идеальным вариантом является оборудование отдельной постирочной под стирку, сушку, глажку белья и прочие хозяйственные нужды;
- В санузлах не требуется интенсивное естественное освещение, поэтому они могут располагаться возле северной стены, которую не рекомендуется оснащать окнами.
Важно: в случае ванных комнат с окнами большого размера или с выходом на балкон или террасу размещение на холодной северной стороне не рекомендуется.
Планировка уборной
Пример планировки
Уборная считается достаточно комфортной, когда в ней можно разместить умывальник и унитаз, требующие в совокупности площади в полтора квадратных метра. Писсуар и биде в частных домах устанавливают довольно редко, только при наличии свободного места, которое чаще занимают стиральной и сушильной машинами, шкафами для хранения белья и т.д.
Уборная большого размера также может быть превращена в санузел путем размещения в ней душевой кабины, при этом может потребоваться увеличение санузла за счет коридора. Оборудование окна в уборной может повысить ее привлекательность, но при этом рациональное использование пространства требует высоты подоконника в 130 и более сантиметров, что позволяет установить под ним унитаз или организовать зону для хранения.
Выполнение планировки санузла
Рассмотрим основные нюансы грамотного планирования санузла:
- В случае сложной конфигурации санузла, не позволяющей использовать традиционный поддон для душевой кабины из-за его габаритов, можно применить душевую панель, которая крепится к стене.
Вокруг панели отгораживают пространства требуемого для максимального удобства размера;
Душевая панель
Полезно: выкладывание одинаковой плиткой пола санузла и его душевой части позволяет визуально увеличить размер помещения.
Планировка большой ванной
- При планировке ванной комнаты ванну, умывальник и унитаз можно разместить на площади, составляющей 3,3 м2. В случае необходимости установки стиральной машины минимальный размер помещения составляет 3,5 м2.
В больших ванных комнатах, которые обычно располагаются около главной спальни, могут быть дополнительно размещены второй умывальник, кабина для душа, биде, писсуар, шкафчики для хранения косметики, белья, бытовой химии и т.д.;
Важно: свободное размещение всего перечисленного оборудования требует для комфортного использования ванной комнаты площади не менее 8 квадратных метров.
Размещение ванны по центру
- В случае еще большего размера помещения ванна может быть установлена по центру, при этом доступ к ней может быть обеспечен со всех сторон.
- Рядом можно поставить кресло из непромокаемого или быстросохнущего материала. Различные шкафы при этом устанавливают на расстоянии от ванны, поскольку, несмотря на их покрытие специальными составами, постоянное воздействие влаги снижает их срок службы;
Пример санузла для пожилых
- При планировке санузла для пожилых людей рекомендуется за счет размещения меньшего количества оборудования увеличить ширину различных проходов. Вместо ванны рекомендуется установить душ, оборудованный сиденьем, ширина прохода к нему должна составлять не менее 1 метра.
Кроме того, в таком санузле не должно быть скользких ковриков или плитки на полу, а расстояние между ванной и держателем полотенец или полотенцесушителем должно составлять около 50-70 см.
Вот и все, что хотелось рассказать о планировке дизайна санузла. Выполнение рекомендаций и предписаний данной статьи позволит еще на этапе строительства правильно спланировать санузел, обеспечив удобство, надежность и комфортность его эксплуатации.
Галерея
openfile.ru
Проект перепланировки туалета и ванной
Как согласовать?
Проведение перепланировки санузла и ванной комнаты в типовых квартирах панельных домов, а также сталинках или новостройках помогает решить проблему тесноты этих помещений. Однако помимо явных преимуществ, подобная перепланировка может таить в себе проблемы. Дело в том, что жилищное законодательство и нормативные регламенты устанавливают ряд требований, нарушение которых не позволит узаконить изменения.
В нашем материале мы разберем те нормативно-правовые положения, что относятся к теме перепланировки туалета и ванной в многоквартирных жилых домах. Начнем с главного. Любая перепланировка должна быть согласована с жилищной инспекцией. Данное согласование может проходить как по проекту, так и в упрощенной форме.
Разработка проектной документации необходима, когда собственник планирует:
— перенести ванную и санузел или организовать дополнительное помещение такого рода (п. 2.2.1 ППМ № 508 в редакции 840).
— расширить ванную комнату и туалет на смежное нежилое помещение, что подразумевает укладку гидроизоляции на затрагиваемую площадь (п. 2.2.6 ППМ № 508 в редакции 840).
В то же время, объединение туалета с ванной путем демонтажа сантехкабины или перегородки, разделяющей помещения, может согласовываться как по проекту, так и без него. Мнения жилищных инспекций разных округов на этот счет бывают диаметрально противоположными.
Что же касается всех прочих работ по перепланировке ванной комнаты и санузла, таких, как замена или перестановка сантехники в пределах существующих помещений, то их можно согласовать в упрощенной форме. Устаревшее 73-ПП относило такой вариант к перепланировкам по эскизу. Теперь, согласно п. 19 Приложения 1 ППМ 508 в редакции 840, оформление простых перепланировок проходит с «последующим оформлением приемочной комиссией акта о завершенном переустройстве и/или перепланировке помещения».
Однако если вы намерены установить тяжелое сантехоборудование, например мини-бассейн или джакузи большого объема, вам потребуется техническое заключение с расчетом нагрузки на перекрытия!
Разрабатывать проектную документацию имеют право только организации с допуском СРО и крупные институты – авторы серий домов (ГУП МНИИТЭП, Моспроект и др.). Кроме того, существует возможность согласования перепланировки по готовому типовому решению из каталога ГУП МНИИТЭП.
Только обратившись за разработкой проекта в сертифицированную организацию, вы можете рассчитывать, что ваша перепланировка будет отвечать всем требованиям нормативов и жилищного законодательства.
Правила перепланировки ванной комнаты и санузла
Во-первых, не допускается перенос или расширение ванной комнаты и туалета на площади жилых комнат или кухни. Мокрые точки в этом случае окажутся над комнатами/кухнями соседей, а это ухудшит их жилищные условия. Но если под вашей квартирой находится нежилое помещение — подвал, офис, магазин, или паркинг, то такой перенос возможен (при предоставлении справки об ухудшении собственных жилищных условий). А что же делать в обратной ситуации, можно ли уменьшать мокрую зону? К примеру, вы решили за счет часть площади большого санузла устроить кладовую или увеличить жилую комнату. В данном случае подобная перепланировка носит индивидуальный характер, в разных округах решение могут принять по-разному. Но всё же, согласовать уменьшение мокрой зоны проще на последних этажах жилого дома.
Во-вторых, при перепланировке санузла запрещается устраивать вход в него из кухни или жилой комнаты. Исключений из этого правила два:
— Если в квартире проживает инвалид-колясочник. (Для кухни и спальни)
— Если у вас два туалета – один со входом из коридора или иного нежилого помещения, а второй со входом из спальни.
В-третьих, как мы уже упоминали, запрещается расширение ванной или санузла на нежилое помещение без устройства гидроизоляции. Исключений из этого правила нет.
Далее, полы «мокрых зон» должны быть ниже, чем в остальных помещениях не менее чем на 1,5-2 см, либо отделены от них переливным порожком (порядка 4 см.). При непосредственной укладке гидроизолирующего покрытия оформляются акты на скрытые работы и акт испытания гидроизоляции.
Схема типового узла гидроизоляции ванной или туалета
Также при перепланировке ванной и санузла следует избегать затрагивания вентиляции и общедомовой собственности. ППМ 508 в части п. 11.5 Приложения 1 не допускает уменьшения или демонтажа вентканалов. Про вентшахты там ничего не говорится, но та их площадь, которую можно присоединить без вреда для каналов, является общей собственностью жителей дома. К ней же относится и сантехнический шкаф (короб). Чтобы увеличить площадь своей квартиры за счет небольших участков вентшахты или сантехкороба, придется заручиться согласием 73% собственников жилья. Подписи с жильцов приватизированных квартир вы берете на общем собрании (или обходите их квартиры с протоколом собрания), а за проживающих в муниципальных «расписывается» Департамент жилищной политики. Однако устроить все это на практике очень проблематично: придется потратить немало времени, причем не факт, что вы получите необходимое количество подписей. В итоге потенциальный выигрыш в метраже будет ничтожен по сравнению с затраченными усилиями.
Протокол общего собрания
Напомним: для того, чтобы ваша перепланировка туалета и ванной считалась законной, одного проекта будет недостаточно. Процесс получения разрешения на перепланировку включает в себя сбор всех необходимых документов и согласование с Мосжилинспекцией. Во многих случаях для сбора документов, прохождения инстанций, получения разрешения и сдачи готовой перепланировки жилищной инспекции лучше привлекать специалистов по согласованию.
Проекты перепланировки ванных комнат и туалетов:
Перепланировка ванной и санузла в панельном доме П-55 от ГУП МНИИТЭП
Данный проект перепланировки трехкомнатной квартиры от автора серии П-55, ГУП МНИИТЭП, в части, касающейся «мокрых зон» предусматривал:
— расширение санузла на коридор с демонтажом старых и установкой новых легких перегородок из ГКЛ со звукоизоляцией (в результате удалось увеличить площадь санузла более чем в три раза: с 1 до 3,6 кв.м.),
— замену трубной разводки туалета и ванной,
— гидроизоляцию полов ванной и санузла с установкой порожка высотой 4 см.
— монтаж новых сантехприборов (унитаза и биде).


Перепланировка совмещенного санузла в трехкомнатной квартире в серии II-49Д от ГУП МНИИТЭП
В ходе данной перепланировки было реализовано объединение туалета и ванной посредством демонтажа объемной сантехкабины. Кроме того, была изменена расстановка сантехприборов и схема трубной разводки. Все это делалось с учетом выполнения гидроизоляции пола.


Проект перепланировки туалета и ванной в типовом панельном доме от ГУП МНИИТЭП
Настоящий проект был также разработан ГУП МНИИТЭП и отличался нестандартным решением. Изначально в квартире было два отдельных санузла, но собственники пожелали избавиться от одного из них, а второй туалет решили совместить с ванной комнатой и расширить за счет коридора.


Образцы аксонометрических схем и планов трубной разводки ванных и туалетов из проектов перепланировок, разработанных АПБ №1


apb1.ru





