Проектирование беседок с барбекю – летние кухни, чертежи, проекты, купить в Москве фото видео
Проект Беседки с Барбекю: Разработка и Реализация
Фото проекта беседки с террасой и барбекюКому из нас не было бы приятно теплым летним вечером посидеть в уютной беседке у себя во дворе, ведя непринужденный разговор с близкими людьми? Несомненно, такое времяпровождение оценят все. Но не каждый знает, как разработать проект беседки с барбекю и реализовать его.
Содержание статьи
Как это осуществить
В дальнейшем будет приведена детальная инструкция, по которой каждый сможет сделать подобное сооружение у себя во дворе.
Создание беседки можно разделить на несколько этапов:
- Проектирование беседки.
- Строительство беседки.
- Строительство печи для барбекю.
В данной таблице наглядно показаны все пункты, которые включает в себя процесс создания беседки с барбекю своими руками.
| Процесс создания беседки с барбекю | ||
| Проектирование | Строительство | Строительство барбекю |
|
|
|
Вначале рассмотрим подробнее, как создать проект беседки с барбекю, остальные пункты тоже будет описаны, но не так детально.
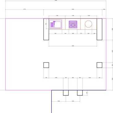
Проектирование беседки
В итоге планирования вы должны четко представлять себе вид беседки с барбекю, проекткоторой создали Нужно решить, из каких материалов она будет сделана.Основание
Варианты беседок могут быть разными, главное, учесть несколько моментов.
Какой будет форма основания беседки:
На этом этапе можно нарисовать фигуру, обозначающую основание беседки, и проставить возле сторон размеры.
Простой, но вместительный проект для отдыхаПечь и стол нужно начертить на рисунке с основанием.
Обратите внимание. Проекты беседки с барбекю и мангалом должны быть продуманы таким образом, чтобы печь располагалась на максимальном расстоянии от стола.
Проектирование стен
Следующий этап проектирования беседки сводится к планированию стен.
На этой ступени важно продумать:
- Сколько колонн будет поддерживать крышу.
- Где будут столбы, ограничивающие вход в беседку.
- Из каких материалов будет сделаны стены и крыша.
Совет. Делая колонны для крыши, нужно учесть, что беседка с барбекю гораздо больше обычной небольшой беседки на двоих. Для прямоугольного строения нормальной считается длина стороны от 5 метров.
- На протяжении такой стены должно стоять как минимум 4 колоны:
- Две угловые.
- Две на линии стены, на равноудаленном расстоянии.
На чертеже основания нужно сразу наметить, где будут стоять колонны на линии стенПримечание. Проекты барбекю в беседке обычно предусматривают вход напротив печи, между ними, ближе к двери, располагают стол.
Беседку можно построить как из кирпича (см. Беседка кирпичная: преимущества конструкции), так и из дерева:
- В последнем случае возрастает риск воспламенения конструкции.
- В целях обеспечения большей пожарной безопасности рекомендуется обрабатывать дерево специальными противопожарными веществами, продающимися в строительных магазинах.
Беседка из бревен выглядит очень уютной, к тому же цена лесоматериалов ниже, чем стоимость кирпичей.
Проектирование крыши
Сложная конструкция кровли, трехмерный проектФорма и размер крыши зависят от размеров и формы беседки. Проект с барбекю требует создания не слишком высокой крыши, иначе изнутри в ней будет скапливаться дым.
Необходимо учесть:
- Какой формы будет крыша.
- Из чего будет сделан ее каркас.
- Как кровля будет крепиться к колоннам.
- Какой кровельный материал будет использоваться.
Пример крыши, выполненной в форме двух треугольниковКаркас можно сделать из сосновых лаг:
- На него крепится обрешетка из бруса, сечением 40X50 мм.
- На обрешетку монтируется кровельный материал.
- В верхние части колонн из кирпича вставляются асбестоцементные трубы.
- В них монтируют отрезки сосновой лаги, к которым и прикрепится каркас крыши беседки.
В качестве кровельного материала можно использовать металлическую черепицу.
Проектирование печи барбекю
Существуют многочисленные готовые проекты мангалов и барбекю в беседкеМожно выбрать любой из понравившихся вариантов или сделать простейшую печь, конструкция которой детально описана ниже.
Продумывая конструкцию печи, нужно учитывать следующие моменты:
- Она должна быть небольшой.
- Нужно, чтобы были две параллельные кирпичные стенки, между которыми можно закрепить полку для горящих углей и решетку для мяса над ними.
- Желательно, чтобы рядом было отделение для хранения дров.
- Не помешает столешница, на которой можно готовить еду.
Рассмотрим простейшую модель стационарного барбекю:
- Если смотреть сверху, то выложенная из кирпича конструкция будет напоминать букву «Ш».
- В первом отделении будут находиться две решетки, вставленные, как полки: одна для пылающих углей, а вторая, расположенная над ней – для мяса.
- Второе отделение предусмотрено для хранения дров. Его будет накрывать небольшая бетонная плита, выполняющая функцию столешницы.
Фото конструкции, напоминающей букву «Ш»Для примера рассмотрим барбекю (см. Печь барбекю для беседки: технология строительства) следующих размеров:
- Высота сооружения – 1 м.
- Длина – 1,6 м.
- Ширина – 0,8 м.
Примечание. Произведя несложные расчеты, можно сказать, что для того, чтобы выложить такое барбекю, нужно 300 шамотных (огнеупорных) кирпичей.
Как посчитать количество кирпичей, необходимых для постройки того или иного сооружения (см. Расчет материалов для строительства беседки: как выполнить правильно) — рассмотрим далее.
Расчет материалов
Количество кирпича для стен можно посчитать, если знать, какие будут площади стенНа нашем примере рассмотрим:
- Длина – 5 м.
- Ширина – 4 м.
- Высота стен – 1,2 м.
- Количество колонн – 9 (четыре по углам, по одной на трех стенах, и две, ограничивающие вход).
- Выходит, что общая площадь стен постройки составляет 21,6 м².
- На 1 м² уходит 102 кирпича.
- Умножаем 21,6 на 102. Получается, что на стены уйдет 2203,2 кирпича. Можно округлить до 2500, ведь еще предстоит выложить колонны.
Совет. Подобным образом нужно рассчитать и остальные материалы беседки с барбекю. Проекты могут включать в себя сметы на такие материалы, как: лаги, брусья, кровельный материал, цемент, песок.
Строительство беседки
Приведем лишь последовательность действий в виде списка, каждый пункт которого нуждается в детальном изученииИтак, строительство беседки по готовому проекту сводится к следующим манипуляциям:
- Выбор места. Тут самое главное не попасть на линии газа и воды.
- Разметка почвы.
- Создание фундамента. Полы нужно создавать с небольшим уклоном в сторону от печи, чтобы влага не скапливалась.
- Кладка стен и колонн. На финальной стадии создания каждой колонны нужно вмуровать между кирпичами отрезок асбестоцементной трубы со вставленной в нее деревянной лагой для крепления крыши.
- Создание каркаса крыши из лаг.
- Создание обрешетки из бруса на каркасе.
- Монтаж кровельного материала.
Возможно, полезную информацию, которая пригодится вам при воплощении проекта, вы почерпнете для себя из видео в этой статье.
Строительство печи для барбекю
Сначала следует подготовить фундамент для будущей печи. Этот процесс начинается с выбора местаМожно рекомендовать сложить печь в дальнем углу беседки с барбекю, проект предусматривает как раз такое расположение. Между печью и столом нужно оставить свободное место для повара.
Фундамент закладывается следующим образом:
- Сделайте небольшой котлован размером 90х170 см и глубиной 60-70 см.
- На дно нужно постелить слой песка толщиной 10 см.
- Сделайте опалубку из досок.
- Уложите в яму армирующую сетку.
- Залейте опалубку бетонным раствором.
- Дайте фундаменту хорошо застыть в течение двух недель.
Теперь можно начать возводить стенки печи барбекю:
- Используйте шамотный кирпич, он создан как раз для кладки печей.
- После шестого ряда в печном отделении нужно выложить небольшие полки, повернув несколько кирпичей под прямым углом.
- Эти выступы будут удерживать металлическую решетку для дров.
- Через три ряда сделайте такие же выступы для второй решетки, на которой будет готовиться мясо.
- После затвердевания цементного раствора можно установить решетки и столешницу из бетона.
Останется только оформить внешний вид беседки (см. Оформление беседки на своем участке). Проект с барбекю, описанный в этой статье, является одним из самых незамысловатых. Тем не менее, такая беседка смотрится очень хорошо и способна принести много позитивных впечатлений своим владельцам.
nasha-besedka.ru
размеры, дизайн, как построить своими руками
Беседка с барбекю на даче – уютное и удобное место для полноценного отдыха. Благодаря такой конструкции каждый желающий сможет проводить время на свежем воздухе, наслаждаясь вкусной пищей. Сегодня имеется множество вариантов придомовых построек, но беседку с барбекю все чаще можно встретить на дачных участках. И это не удивительно, ведь такая конструкция возводится очень быстро и легко. А вот как выглядит биотуалет для дачи без запаха и откачки и как его установить, указано здесь.
Преимущества и недостатки кирпичных беседок
Беседка с барбекю из кирпича обладает следующими достоинствами:- Высокая прочность и долговечность.
- Прекрасно сочетается с дизайном окружающих строений.
- Не требует особого ухода.
- Кирпич отлично сочетается с любыми материалами. По этой причине его часто комбинируют с деревянными и металлическими элементами.
Недостатки кирпичных построек:
- Отсутствие оригинального дизайна.
- По причине большого веса беседки необходим надежный и основательный фундамент.
- Требуется опыт по кладке кирпича.
- Высокие денежные затраты на закупку материалов.
Какова цена чаши бассейна из полипропилена одна из самых актуальных в настоящее время, указано в данной статье.
Какие препараты для очистки воды в бассейне чаще всего используются и рекомендуются, можно увидеть в данной статье.
Как выглядит бассейн для детей от 3 лет, можно увидеть в данной статье здесь: https://2gazon.ru/voda/bassejny/detskie-naduvnye-dlya-malyshej.html
Закрытые и открытые кирпичные беседки
Для открытой беседки характерен более массивный вид. Здесь одна стена из кирпича – сплошная, а возле нее ведется установка мангала с рабочей зоной. В углах остальных стен монтируются металлические столбы или бревна. Закрытие проема осуществляется при помощи кованого парапета или деревянных решеток из дерева.Сегодня большим спросом пользуются зимние беседки с барбекю закрытого типа. Они представляют собой настоящие домики, отдых в которых может длиться круглый год. И неважно, какая погода за окном, если внутри установить печь, выполнить отопление и утепление здания. В результате вы получите полноценное жилое пространство, в котором будет уютно и тепло, даже если за окном лютый мороз. Для этих целей в данной статье можно присмотреть замечательные проекты беседок с мангалом.
Согласно правилам пожарной безопасности, перед открытым очагом должна быть свободная площадь не меньше 3 м. Если в беседке присутствуют деревянные предметы интерьера, то на их поверхность следует нанести огнеупорный раствор.
Выбор места под беседку
Перед тем как приступить к непосредственному возведению кирпичной беседки, необходимо определиться с местом. Это не такая и простая работа, как может показаться. Здесь необходимо выполнение следующих условий:- Экономия строительства. К самой конструкции требуется подводка инженерных коммуникаций в виде канализации, водопровода и электричества. Поэтому беседка не должна располагаться на большом расстоянии от дома.
- Возводить строение необходимо подальше от границы с соседями.
- Соблюдать правила пожарной безопасности. Барбекю представляет собой печь открытого типа, поэтому пламя здесь всегда снаружи. Выбор места под постройку должен сопровождаться участком, на котором отсутствуют деревья или кусты.
- Эстетическая сторона здесь тоже важна. Отличный вариант – это строительство беседки напротив приятного загородного пейзажа. Вряд ли вам будет комфортно, если ваш взгляд будет постоянно направлен на соседский двор или стену дома.
- Строительство кирпичной беседки с барбекю должно осуществляться в глубине сада, но не возле ворот или изгороди. Тогда вся пыль с дороги и шум проезжающих машин будет доноситься в беседку, что только испортит отдых.
Какова цена резиновой краски для бассейна, подробно указано в описании к данной статье.
Как выглядит плавающее пузырьковое покрывало для бассейна, можно посмотреть в данной статье.
Какие таблетки для дезинфекции бассейна необходимо применять, указано здесь: https://2gazon.ru/voda/uhod-r-voda/tabletki-dlya-bassejna-chtoby-ne-cvela-voda.html
Проектирование и подбор материалов
Очень важным вопросом в строительстве беседки с барбекю является составление проекта и закупка нужных материалов. Именно от этого пункта и будет зависеть качество, надежность и долговечность построенного здания.
Проект беседки с барбекю
При строительстве беседки с барбекю своими руками важно составить правильный проект. В первую очередь нужно позаботиться про фундамент. Он должен быть предусмотрен хотя бы в той части, где будет монтироваться печь барбекю. Размеры строения должны определяться с учетом условного деления ее на две части: гостевую и кухонную. В данной статье указаны одни из самых актуальных проектов беседок с барбекю.
Обязательно необходимо выполнить подводку электричества и водоснабжения, устроив водосток. Благодаря таким мероприятиям удается достичь максимального комфорта. Беседка может быть не только с барбекю, но и с полноценной кухней, с разделочным столом, раковиной и небольшой варочной поверхностью.
Для обустройства гостевой зоны вполне достаточно присутствия обеденного стола и стульев. Можно установить удобное кресло-качалку или топчан для дневного сна.
Список необходимых материалов
Что касается этого пункта, то здесь все ясно. Беседка из кирпича и камня будет иметь дорогой презентабельный вид. Очень часто кирпич и дерево комбинируют. Кирпич используют при возведении основания, печи и ограждения, а деревянные столики служат опорой для установки крыши. В результате такое деревянное переплетение служит особым элементом дизайна. Кроме этого, строительство кирпичной беседки невозможно без:
- песка, щебеня или гравия, цемента;
- гидроизоляционный материал, арматурной сетки;
- покрытия кровли и пола.
Строительство беседки
После того как выполнен чертеж беседки, закуплены все материалы и выбрано место для строительства, можно переходить к следующему пункту – разметка участка.
Разметка
Строительные работы по возведению беседки с мангалом начинаются с разметки основания. Размеры и вид фундамента определяются с учетом типа очага и используемых материалов. Наименьшее значение глубины фундамента достигает 30 см. На дно засыпается песок, толщина слоя которого 7 см. Поверх ведется укладка металлической сетки или арматуры, а затем все заливается бетоном.
Фундамент
Для беседки используется ленточный фундамент. Его главные преимущества – это простота и надежность. Такое основание очень крепкое, поэтому сможет выдержать вес мангала и всего строения. Фундамент не должен допустить осадку, иначе вся беседка с мангалом просто перекосится и разрушится.Создавать опалубку можно при помощи обычных досок или фанеры. Что касается цемента, то его выбор напрямую зависит от погодных условий. Если работы проводятся в летнее время, то можно использовать М200, в холодное время года – М200. При возведении фундамента нужно придерживаться следующих правил:
- В составе песка должна отсутствовать глина.
- При приготовлении раствора, нужно следить, чтобы гравий присутствовал в большем количестве (в 1,5 раза).
- Вода должна составлять 50% от всей массы смеси.
- Раствор делают по следующей пропорции: песок (3): цемент (1): щебень (5). При расчете количества требуемых строительных материалов эта формула может пригодиться.
- Когда фундамент залит, необходимо прокрутить ленточку в нескольких местах. Это нужно для извлечения лишнего воздуха. Снимать опалубку можно спустя 3 дня.
По причине того, что кирпичная беседка – конструкция, обладающая легким весом, то можно не рыть глубокую и широкую траншею. Наименьшая ширина фундамента не должна быть меньше 30 см.
Возведение стен и крыши
Выбор подходящего материала для возведения крыши – это сложная задача. Сегодня современные материалы характеризуются небольшим весом и простотой в использовании. При выборе оптимального варианта необходимо руководствоваться такими критериями, как:
- условия климата;
- жаропрочность;
- стойкость к износу.
Для строительства крыши идеальным вариантом станет использование мягкой кровли и металлочерепицы. Для обустройства пола можно задействовать камень и плитку.
Постройка печи барбекю

Этапы строительства печи барбекю своими руками
Процесс возведения печи из кирпича – это одновременно простая и сложная работа. После того как выполнен фундамент, можно переходить к следующему этапу – кирпичная кладка. Это самый ответственный этап при возведении печи. Через каждые 2 слоя нужно выполнять армирование из металлической сетки, а спустя 6–7 рядов делать перекрытие. Завершающие ряды будут необходимы, чтобы соорудить место для приготовления пищи. Здесь требуется позаботиться про специальные зазоры малых размеров, через которые будет поступать воздух.
По окончании работ по строительству печи для барбекю, необходимо с наружной стороны покрыть стены слоем штукатурки. Не забывайте, что размеры печи барбекю подбираются исходя из размеров беседки и, что лучше всего, учитывая роста того члена семьи, кто будет готовить – ведь должно быть удобно именно ему.
Сооружая печь из кирпича, нужно понимать, что процесс ее кладки определяется типом выбранной конструкции. Нельзя забывать про соблюдение правил безопасности, когда вы и эксплуатируете печь-барбекю. Кирпич для ее строительства должен быть огнеупорным. Неплохо было бы выполнить навес из материалов, которые не подвергаются воздействию высокого температурного режима, а их поверхность должны быть обработана определенными составами.
Фото беседок с барбекю
Фотогалерея разнообразных беседок с барбекю, которые можно построить своими руками:

Дизайн кирпичной беседки с барбекю

Угловая беседка с барбекю

Беседка с барбекю закрытого типа
Видео строительства
Посмотрите видео мастер-класс о строительстве беседки с барбекю своими руками:
Кирпичная беседка — прекрасное место, где можно комфортно и отлично отдохнуть. Но для большего усовершенствования конструкции необходимо позаботиться про установку печи-барбекю. Строительство такой беседки с барбекю требует четкого соблюдения технологии возведения и правильного подбора материалов. Если кладка кирпича своими руками сделана верно, но такое строение прослужит своим хозяевам не один десяток лет.
2gazon.ru
Дизайн беседки с мангалом — заказать проектирование.
Разработано в «Аскель Билдинг» Воронеж
Дизайн беседки с мангалом, печью, барбекю ничем не ограничен! Такая беседка может быть полностью кирпичной или выложенной из дикого камня, с деревянными вставками, с уличными шторами-завесями, с качелью для отдыха, с большим обеденным столом для всей семьи и многочисленных гостей, с удобной мягкой уличной мебелью. Идеи оформления тоже могут быть любыми — лёгкая пергола, беседка в средиземноморском стиле. Или беседка с зоной отдыха, приёма пищи, готовки в стиле Хай-тек. Можно даже построить летнюю беседку с грилем, с холодами превращающуюся в зимнюю тёплую беседку. Вы можете заказать проект беседки, летней кухни любой сложности в нашем Интернет-офисе «Архитектура-онлайн» из всех городов РФ и СНГ.
Яцкова Яна (архитектор-дизайнер), Карташова Юлия (дизайнер интерьера), Семенец Елена (дизайнер интерьера), Щетинина Дарья (дизайнер интерьера, полиграфист).
-

12. 2016
Проект беседки с мангалом. -

12. 2016
Дизайн перголы с каменным мангалом — пример из портфолио. -

10. 2015
Чертежи беседки с барбекю — фото -

10. 2015
Проект беседки с мангалом — чертежи. -

10. 2015
Проекты беседок: фото и чертежи, проектирование беседок. -

10. 2015
Беседки с мангалом и барбекю для коттеджа или дачи — проекты на заказ -
Беседки с мангалом и барбекю для коттеджа или дачи — проекты на заказ10. 2015
-
10. 2015
Беседки с мангалом и барбекю для коттеджа или дачи — проекты на заказ -
10. 2015
Чертежи и фото беседок с мангалом -
10. 2015
Чертежи и фото беседок с мангалом -
10. 2015
Проекты беседок с мангалом (барбекю) — фото, чертежи, разработка. -
10. 2015
Проекты беседок с мангалом (барбекю) — фото, чертежи, разработка. -
10. 2015
Проекты беседок с мангалом (барбекю) — фото, чертежи, разработка. -
10. 2015
Проект беседки с барбекю — фото, чертежи. -
10. 2015
Проект беседки с барбекю — фото, чертежи. -
10. 2015
Проект беседки с барбекю — фото, чертежи. -
10. 2015
Проект беседки с мангалом из кирпича — фото -
10. 2015
Проект беседки с мангалом из кирпича — фото -
10. 2015
Проект беседки с мангалом из кирпича — фото -
10. 2015
Проект беседки с мангалом из кирпича — фото -
10. 2015
Проект беседки с мангалом из кирпича — фото -
10. 2015
Проекты беседок с барбекю из кирпича, фото. -
10. 2015
Проекты беседок с барбекю из кирпича, фото. -
10. 2015
Проекты беседок с барбекю из дерева, фото. -
10. 2015
Проекты беседок с барбекю из дерева и кирпича, фото. -
Проекты беседок с барбекю из дерева и кирпича, фото.10. 2015
-
10. 2015
Проекты беседок со шторами — фото. -
10. 2015
Проекты беседок со шторами — фото.
Архитектура и строительство от ООО «Инпроф групп»
www.poisk-ir.ru






















