Расчет лестницы ступенек – Расчет размеров и количества ступеней лестницы: подробная инструкция по вычислению
Расчет лестницы на второй этаж: колличество ступеней
Лестница — основной компонент здания, обеспечивающий возможность перемещения между этажами. Безопасность и комфорт передвижения по лестнице главным образом зависят от правильного расчета параметров ступенек.
Расчет ступеней важен и необходим для точного определения необходимого объема материала для данного строительства.
Как рассчитать ступени на лестнице?
Способ расчета ступеней зависит от их формы и места размещения. В зависимости от места расположения ступени подразделяются:
- прямые;
- поворотные (забежные).
Как рассчитать забежные ступени, мы уже рассказывали в другой статье. Вы можете ознакомиться с ней на нашем сайте. В данной статье рассмотрим варианты определения параметров ступеней прямых лестниц.
Главными критериями ступени являются высота подступенка и ширина проступи. Для удобства перемещения людей по лестнице ступени должны соответствовать средней ширине шага взрослого человека (60-65 см).
Зависимость ширины шага, проступи и высоты подступенка определена формулой:
где а – это высота подступенка, с – ширина проступи.
Пример расчета: 2/175+290=640 мм, в данном случае 175 — это высота подступенка, а 290 — ширина проступи, полученный результат 64 см соответствует требуемому диапазону.
Помимо данного соотношения, параметры ступеней зависят от угла, под которым расположена лестница относительно пола, оптимальным углом наклона для жилых помещений считается диапазон от 24° до 45°. Согласно данному диапазону изменяются размеры ступеней:
- высота подступенка от 140 до 180 мм;
- ширина проступи от 310 до 270 мм.

Если использовать слишком широкую проступь, собьется темп шага во время подъема, если использовать слишком узкую – возникает опасность оступиться во время спуска и получить травму.

При стесненном расположении лестницы допускается увеличение проступи для соответствия параметрам за счет свеса над подступенком на 20-40 мм.
Как рассчитать количество ступенек на лестнице?
Чтобы определить количество ступеней на лестнице, вы должны определить ряд параметров:
- высоту этажа, это расстояние от чистового пола 1-го этажа до чистового пола 2-го этажа;
- угол наклона лестницы;
- вид лестницы;
- высоту ступени.
Определив эти параметры, можно переходить к расчету числа ступенек лестницы. Для этого делим высоту этажа на высоту ступени. Например, при высоте 3000 мм и 165 мм соответственно получаем, что количество ступеней в марше будет 3000/165= 18,1818… Таким образом, чтобы построить лестницу с 18 ступенями, потребуется изменить высоту подступенка.
Новая высота получается 3000/18=166,6666… Работать с такими величинами также нельзя, потому что выдержать такую величину на всех ступенях не получится. Зная, что все ступени лестницы должны быть одного размера, допускается увеличить высоту первой ступени. Тогда у нас получается 178 мм для первой и 166 мм для всех остальных.
Рекомендуемое количество ступеней в марше от 3 до 18, при большем числе ступеней рекомендуется добавить поворотные или промежуточные площадки.
Нагрузка на ступени
Важным показателем ступеней является стойкость к воздействию нагрузки, от данного параметра зависит толщина проступи.
Толщина проступи должна определяться из расчета:
- допустимый изгиб 1/400 от пролета;
- допустимые нагрузки 300 кг/м2 для жилых помещений.
Графический расчет
Расчет ступеней лестницы графическим способом не является сложным, нам потребуется два параметра. Это величина ширины шага (60-65 см), для удобства расчетов возьмем ширину 62 см, а также оптимальная высота поднятия ноги, такой параметр составляет 310 мм.
Рассмотрим классическую систему координат, на которой по оси X отмечена ширина шага, а по оси Y — высота подъема ноги.

После этого соединяем полученные отметки. Опираясь на выполненный чертеж, мы сможем определить параметры ступеней в зависимости от угла расположения лестницы.
Для удобства определения параметров рекомендуется выполнять чертеж в масштабе. Используйте для этого миллиметровую бумагу или специальную чертежную программу.
gidlestnic.ru
Формула для расчета лестницы — Строим лестницу в частном доме
Строим лестницу правильно: расчеты
- Основные виды лестниц
- Расчет лестницы при проектировании
- Формулы для расчета элементов лестниц
- Что нужно учесть при проектировании лестницы?
Основные виды лестниц
Прежде чем делать расчет лестницы, необходимо рассмотреть основные виды данных конструкций.

Конструкция простой лестницы: 1 — швеллер; 2 — рифленые металлические ступени; 3 — стальные “кобылки”; 4 — места сварки; 5 — кронштейны крепления ступеней.
Прямые лестницы являются самым простым видом данной конструкции. По ней удобно перемещаться, в том числе и переносить тяжелые вещи. Если в доме высокие потолки, а лесенка состоит из более чем 18 ступеней, то рекомендуется устроить промежуточную площадку в середине конструкции. Недостаток данного вида – это большая занимаемая площадь.
Схема расчета винтовой лестницы.
Двухмаршевые лестницы имеют промежуточную площадку и могут быть угловой или П-образной формы. Хотя данный тип характеризуется наличием промежуточной площадки, благодаря своей конфигурации конструкция хорошо вписывается практически в любое помещение, в том числе и не столь большого размера. В П-образном типе ширина промежуточной площадки должна быть не меньше ширины обоих маршев, что необходимо учесть при расчете лестницы.
Забежные лестницы представляют собой конструкцию из двух или более маршей, вместо промежуточных площадок в которых используются специальные поворотные (забежные) ступени. Забежные виды требуют минимум свободного места и легко вписываются в ограниченные пространства. Недостатком такого типа является сложность конструирования, сложная схема лестницы, так как все забежные ступени отличаются, имеют свои индивидуальные размеры. А косоуры и перила тоже отличаются сложными искривленными формами. Расчет лестниц данного типа тоже довольно сложен.
Схема устройства лестниц для крыльца.
Винтовая лестница – это самый экономичный вид. Самый оптимальный радиус составляет 80-90 см. Недостаток такой конструкции – меньшее удобство при передвижении по ней, крутой подъем, а тяжелые и крупногабаритные вещи поднять по ней очень сложно. Винтовой тип отличается сложностью конструкции, расчет лестниц труден, но они имеют привлекательный и эффектный вид.
Такой вид лестницы, как «самба» или «гусиный шаг» тоже отличается своей экономичной конфигурацией. Главной отличительной чертой является схема лестницы, а именно половинные ступени, которые задают последовательность шага в строгом следовании. В зависимости от положения первой ступени подъем всегда будет начинаться с одной определенной ноги (правой или левой). Такой тип отличается своим крутым подъемом. Чаще всего такая схема лестницы используется как вспомогательная, для подъема на чердак, в условиях крайне ограниченного места.
Расчет лестницы при проектировании
Если в доме необходимо установить лестницу, то придется решить немало вопросов. И не только касаемых вида, материалов, но и необходимости провести расчет лестницы.
Ведь мало придумать модель, нужно грамотно вписать ее в помещении, с учетом площади и высоты потолка.
Складная лестница из профиля.
Первый показатель, который необходим для расчета лестницы – это высота от пола одного этажа до кромки пола следующего этажа. Если в доме пока еще черновая отделка, то необходимо учесть толщину отделочного слоя со всеми подложками, выравнивающими материалами и т.п.
После этого рассчитывается количество ступенек. Для этого высоту помещения необходимо поделить на желаемый шаг. При получении дробного числа расчет лестниц требует сделать корректировку в сторону уменьшения или увеличения количества ступеней, согласно которым увеличится или уменьшится шаг.
В каждой лесенке есть и свой постоянный размер: это ширина проступи, размер которой берется в диапазоне от 130 до 225 мм. Параметр показывает, какую длину необходимо оставить для размещения конструкции. Данное расстояние получается в результате перемножения величины проступи на количество ступенек. Также необходимо добавить к полученному числу 80 мм, технический размер, т.е. расстояние, отводимое на выпад первой ступени и часть верхнего модуля. При строительстве лестницы, расчете ее ширины необходимо учесть размеры помещения, и сколько пространства можно выделить под устройство конструкции. Согласно свободной площади и высчитывается величина.
Расчет оптимального угла наклона лестницы.
Стоит учесть, что, если лестница немного не вписывается в габариты помещения, можно воспользоваться одной хитростью. Если толщина межэтажного перекрытия составляет более 30 см, то допускается сделать отступ вниз на 15-17 см. Оставшегося расстояния вполне хватит для закрепления конструкции.
Самую важную роль в выборе конструкции играют габариты проема. Если он будет слишком маленьким (например, ширина – 700-900 мм, длина – 1100-1600 мм), то в него можно будет вписать только лестницу «гусиным шагом».
Также схема лестницы, ее форма зависят от желаемого шага подъема ступени и ширины проступи.
Стоит отметить, что чем меньше будет высота шага, тем, соответственно, понадобится больше ступеней, модулей, балясин, перил. И тем длиннее будет лестница.
Формулы для расчета элементов лестниц
Схема расчета шага лестницы.
Для расчета лестницы существуют несколько формул, которые позволят спроектировать правильную конструкцию.
Среди них соотношение высоты подступенка а к ширине проступи b, которые можно рассчитать по трем формулам:
- формула удобства: b-а=12 см;
- формула шага: 2а+b=62 (60-64) см;
- формула безопасности: а+b=46 см.
Оптимальным является соотношение 17/29, однако допускаются такие отклонения: проступь: 26 ≤ b ≤ 32 в среднем 29, подступенок: 14 ≤ а≤ 20 в среднем 17.
Высота подъема h зависит от высоты комнаты Н и толщины перекрытия D: h=H+D. Количество ступеней n рассчитывается по формуле: n=h/a.
Длина проекции лестницы на плоскость пола l зависит от количества ступенек n и ширины проступи b и вычисляется по формуле: l=b*n.
Далее следует определить крутизну лестницы k. Она зависит от высоты подъема h (высота от пола нижнего этажа до пола верхнего) и длины проекции конструкции на плоскость пола l. Вычисляется крутизна по формуле: k=h/l.
Отсюда тоже можно рассчитать высоту подступенка а и ширину проступи b. а=h/n, где n – число ступеней, b=а/k.
Таким образом, можно просчитать любую величину лестницы, получив удобную и безопасную для использования конструкцию. Если дом уже построен, то исходить нужно из высоты комнаты и свободной площади.
Что нужно учесть при проектировании лестницы?
При проектировании необходимо учитывать различные факторы, параметры, которые помогут правильно монтировать конструкции, провести расчет лестниц, сделать их использование максимально безопасным и удобным. Самой удобной и безопасной считается широкая пологая лестница, однако установить ее можно далеко не во всех помещениях, так как требуется значительные свободные площади.
Какая конструкция считается безопасной? Согласно строительным нормам ширина лестничного марша должна быть не менее 90 см, а между противоположными стенами – не превышать 110 см. Можно спроектировать меньшую ширину, однако движение по ней и перемещение различных громоздких вещей становится весьма затруднительным.
Удобство и безопасность конструкции зависят и от ее крутизны. Зависит параметр от высоты и ширины ступеней. Данные размеры, в свою очередь, зависит от многих факторов: площади помещения, габаритов проема и прочего. Но стоит учесть, что уклон конструкции не должен превышать угла в 40°. Если же параметр будет 45° или более, то с лесенки можно будет спускаться только спиной вперед. Такое передвижение является неудобным и небезопасным.
Размеры ступеней в пределах одного марша должны быть одного размера, что делает их использование комфортабельным. Кроме того, если произошла небольшая ошибка в размерах в одной ступени, это может сказаться к концу конструкции в значительном отклонении от первоначального проекта.
Ширину проступи лучше всего брать в пределах 28-30 см, но не менее 25 см. Высота подступенка должна быть в пределах 14-17 см, но не более 20 см.
Проектирование лестницы осуществлять лучше всего на стадии строительства, когда можно подобрать оптимальные размеры, форму и вид конструкции, предусмотреть заранее помещение необходимой площади.
Расчет лестницы: формулы
Расчет лестницы необходимо провести на стадии ее проектирования. Важными параметрами являются высота и длина конструкции, размеры и количество ступенек.
Источник: 1polestnicam.ru
Какая формула расчета лестницы на второй этаж
Монтаж любого строительного сооружения начинается с конструирования и чертежа. Внимательная бумажная работа перед сборкой лестницы на второй этаж поможет составить грамотную формулу расчета и убережет от ненужных переделок и ошибок.
Сэкономить время и средства помогут следующие этапы:
- определение местоположения лестничной конструкции;
- измерение размеров лестничного проема;
- выбор конструкции;
- уточнение количества и определение размера ступенчатых поверхностей;
- изучение высоты и ширины промежуточной площадки;
- учет угла наклона.
Одним из главных моментов считается определение свободного пространства, исходя из цели и частоты использования лестницы, ведущей на второй этаж. Выбрать маршевый вид лестничной конструкции возможно, если допустимые размеры имеющегося для строительства места превышают 1,6х1,6 м. Винтовое строение предпочитают, чтобы сэкономить пространство. Оно смотрится очень эстетично, но менее удобно в использовании.
Расчет необходимых параметров
Изучив все нормативные документы, вы сможете спроектировать строение своими руками. Сначала рекомендуется рассчитать размеры лестничных ступеней. Богатый опыт проектировщиков и строителей доказывает, что самая удобная глубина ступенчатой площадки для спуска и подъема равна 290-300 мм при максимальной высоте подступенка 160-180 мм.

- Существует специальная формула, применяемая при расчете глубины ступеней:
«2 a + b = 600-640 мм»
Здесь а – это высота подступенка, b – это ширина проступи. Цифры 600-640 мм здесь даны как примерная длина шага человека.
Иногда для обеспечения экономии места в многоуровневой квартире или доме используют нависание ступенчатой площадки, рекомендуемое значение которого должно быть примерно 4 см.
- Некоторые авторы современной литературы по монтажу лестницы рекомендуют использовать формулу удобства и безопасности.
«a – h = 12», где a – ширина проступи, h – подъем
Лестница считается безопасной, если сумма этих значений (с) будет равна 45 см

Однако точные цифры, соответственно данной формуле, достаточно редко получаются на практике. Но проверить составленные наброски по ней очень рекомендуется.
- В давние 1600 годы французский архитектор Брондель предложил следующую формулу для расчета лестницы.
где A – ширина ступени, H – ее высота, S – средняя длина человеческого шага.
Исходя из 600-640 мм для длины шага данную формулу можно преобразовать в уравнение:

Не все строители находят данные параметры идеальными на практике, однако в некоторых конструкциях эти значения вполне оправданы.
Обязательным расчетом в чертежах указывается угол наклона лестницы. Самым оптимальным считается диапазон 30-38 градусов. Существуют специальные таблицы рекомендованных цифр угла наклона, исходя из размеров ступени. Правильный выбор параметров обуславливает расстояние не менее 2 метров от поверхности лестничной конструкции до потолка или выступающего элемента здания. При занижении данных параметров высокому человеку будет некомфортно подниматься на второй этаж.
Нормативные документы по строительству лестничных объектов имеют свои параметры
В зависимости от типа конструкции, прямой или поворотной, рассчитывается чистовая ширина марша. Минимальные параметры для прохода одного человека составляют 0,8 м, при подъеме двух человек – минимум 1 м. Более того, по нормам СНиП данные значения должны быть равными у каждого ступенчатого шага, а зазор между параллельными маршевыми частями не должен быть менее 40 мм. Некоторые требуемые значения указаны на фото.

Сама ступенчатая площадка также должна соответствовать требованиям безопасности.
Самой рекомендуемой высотой подступенка конструкции считается 150 мм при имеющейся ширине проступи 300 мм. По нормам высота может варьироваться в пределах 120-200 мм. Площадки неправильной формы должны иметь минимальную ширину 100 мм в узкой части, а в средней – до 250 мм.
При расчете формулы глубины лестничной конструкции принимают во внимание показатель средней маршевой линии. Ее проводят образно ровно по середине всей лестницы, и она должны быть абсолютно идентичной на ровных или поворотных местах. Рассчитывая междумаршевую площадку, необходимо учесть, что ее величина должна быть в два раза больше среднего человеческого шага, то есть 1300-1400 мм.

Проектируя лестницу на второй этаж, также учитываются размеры ограждений и расстояний между балясинами перил. Создав такую схему своими руками, и определив все моменты будущего строения на бумаге, вы можете быть уверены в успехе вашего строительства и долговечности сооружения.
Формула расчета лестницы своими руками на второй этаж
Как рассчитать по формуле размеры лестницы на второй этаж, какими должны быть ступени по ширине и высоте.
Источник: 2ladders.ru
Как произвести грамотный расчет лестничных ступеней

Правильно просчитанные ступени выглядят не слишком оригинальны, но удобны и безопасны.
Строительство дома, имеющего второй этаж, предполагает создание лестничной конструкции, которая соединяет этажи между собой. Наиболее простым и доступным для самостоятельного возведения вариантом является одномаршевая лестница. Однако даже в этом случае нужно знать, как рассчитать ступени лестницы, чтобы она получилась не только безопасной, но еще и удобной.
Необходимые формулы
Расчет лестничных ступеней производят, ориентируясь на такой параметр, как человеческий шаг. Его среднее значение находится в диапазоне от 600 до 640 мм. Как, исходя из этой величины, сделать расчет высоты и глубины ступеней (высоты подступенка и глубины проступи)?

Размер шага среднестатистического человека.
Существуют формулы, которые связывают высоту и глубину ступени с конкретными числовыми параметрами, характерными для человеческого шага. Вот наиболее значимые соотношения:
Обозначения: Y – глубина ступени, H – высота ступени, S – средний шаг человека (600–640 мм).
Первая формула является основной. Вторая – упрощенный вариант первой, она еще называется формулой безопасности. Использование третьей формулы поможет сделать лестницу наиболее удобной. Все эти соотношения были получены еще в 18 веке, но они и по сегодняшний день считаются эталонными. Если ваши размеры совпадут со стандартными, значит лестница будет удобной и безопасной.

Нестандартная форма ступеней хоть и выглядит оригинально, особым удобством обычно не отличается.
Рекомендуемые значения высоты и глубины
Помимо формул, позволяющих сделать правильный расчет размеров ступеней, есть рекомендуемые параметры. Например, площадь ступени должна быть такой, чтобы человек при ходьбе по лестнице опирался всей ступней или хотя бы большей ее частью. Глубина проступи как раз и определяет эту площадь. Минимальное значение глубины – 25 см. Это особенно важно для спуска.
С другой стороны, при чрезмерно большой глубине ступенек, человек, поднимаясь на второй этаж или спускаясь, непременно будет сбиваться с шага. Площадь ступени, конечно, будет достаточной для постановки ног, но ходить с этажа на этаж, когда ступени шире 40 см, уже не комфортно. Таким образом, глубина выбирается из диапазона 25–40 см. Оптимальное значение – 30 см.

Стопа должна помещаться на проступи.
Можно поступить по-другому – взять обувь тех людей, которые будут пользоваться лестницей, и увеличить ее размер на пару сантиметров. Полученные величины и станут ориентиром для выбора глубины проступи.
Если глубина получается слишком маленькой, что бывает, например, из-за большого угла наклона лестницы, то применяют выступы (нахлесты). Ширина участка проступи, нависающего над нижележащей ступенью, не должна превышать 5 см.

Иногда нависание проступи имеет и декоративный характер.
Когда выбрана глубина проступи, расчет высоты подступенка можно произвести согласно описанным выше формулам. Но существуют и рекомендуемые значения. Высота выбирается из диапазона 12–22 см. Делать ступеньки высокими нежелательно, если пользоваться лестницей будут дети и пожилые люди. Слишком низкие ступени тоже не рекомендуются, так как шагать при этом придется часто и мелко, что неудобно. Оптимальной считается высота 15 см.
Ступени должны быть одинаковой высоты. Спускаясь на нижний этаж в темноте, очень легко оступиться, когда реальная высота ступеньки отличается от ожидаемой, так как мы ориентируемся на мышечную память.

Отличная высота может быть у первой ступени наружных лестниц.
Выбор ширины марша
Одним из параметров ступеней является их ширина. Правильнее называть его шириной марша. От этой величины зависит возможность комфортно передвигаться по лестнице. Ширина марша не должна быть меньше 70 см.

Разминуться на такой лестнице двум людям практически нереально.
Если лестницей будут пользоваться несколько человек одновременно, конструкция должна быть не только более прочной, но и более широкой. Когда один человек поднимается на второй этаж, а другой спускается на первый, им необходимо разойтись, не испытывая при этом каких-либо неудобств. Чтобы обеспечить возможность ходить по лестнице навстречу друг другу, ширина марша должна быть не меньше 120 см.

Такая лестница будет удобна даже для большой семьи, так как по ней без проблем могут идти рядом два человека.
Длина ступеней может быть и больше, когда необходимо обеспечить увеличение так называемой пропускной способности лестницы. В многоквартирных домах и общественных зданиях, где в передвижениях с этажа на этаж участвует большое количество людей, пролеты лестниц в ширину достигают полутора метров, а то и больше. В частных постройках ширина марша лестницы, ведущей на верхний этаж, нередко совпадает с шириной дверного проема, к которому она примыкает.

В роскошном особняке можно позволить себе установить даже слишком широкую лестницу, которая только подчеркнет статус владельца.
От чего могут зависеть параметры ступеней
Ориентируясь на средний шаг человека и рекомендуемые значения, можно выбрать высоту, глубину и ширину ступеней. Однако в большинстве случаев это лишь предварительный шаг. Окончательный выбор размеров может зависеть от следующих величин:
Для определения количества ступеней межэтажное расстояние делят на высоту одной ступеньки. Все просто, но проблема в том, что полученное значение может оказаться нецелым. Решение – сделать нижнюю фризовую ступеньку нестандартной. Площадь ее при этом не изменится, но высота будет меньше, чем у остальных – она равна произведению остатка и исходной высоты ступеней.

В данном случае первая ступень получилась несколько ниже остальных.
Другой вариант – размазать «лишнее» по всем ступеням, увеличив их высоту. Расчет несложен – остаток умножается на высоту ступеньки, полученное произведение делится на число ступенек и это частное добавляется к исходной высоте каждой ступеньки. Очевидно, что изменение окажется несущественным, если ступеней много.

Также можно установить так называемую подиумную ступень, которая может быть, как ниже, так и выше остальных.
Графический метод
Метод, использующий графические построения, позволяет получить параметры ступеней (высоту и глубину), беря за основу угол наклона лестницы и их (ступеней) количество. Для этого строится система координат, на горизонтальной оси которой откладываются значения среднего шага человека, а на вертикальной – половины этой величины.
При таком расчете нужно выбрать подходящий масштаб, иначе для чертежа потребуется слишком большая площадь.
Если средний шаг человека принять равным 620 мм, а масштаб выбрать 1:10, то на горизонтальной оси откладываются отрезки величиной 66 мм, а на вертикальной – 31 мм. Количество отрезков на каждой из осей должно быть равно числу ступеней.
Графический просчет ступеней.
Имея оси с отметками, чертят линии, соединяющие первую отметку на горизонтальной оси с первой отметкой на вертикальной, вторую – со второй, третью – с третьей и т. д. Получив ряд параллельных наклонных линий, из центра координат проводят прямую, обозначающую крутизну лестницы. Теперь из каждой точки пересечения прямой с наклонными линиями чертят по два отрезка:
- первый – влево, параллельно горизонтальной оси;
- второй – вверх, параллельно вертикальной оси.
В итоге должны обрисоваться границы ступеней. Их ширина и высота определяется простым измерением получившихся на графике линий. Окончательные размеры получают с учетом масштабирования (например, умножением на 10, если был выбран масштаб 1:10).

Данный метод подойдет для расчета прямых одномаршевых лестниц.
Онлайн-калькулятор
Самым простым способом расчета параметров лестниц является онлайн-калькулятор. Здесь не требуется каких-то особых знаний и навыков. Кроме того, онлайн-калькуляторы позволяют произвести расчет параметров не только простых одномаршевых лестниц на второй этаж, но и винтовых, а также лестниц с забежными ступенями.
Расчет может производиться с разными исходными данными. В одном случае для получения нужных размеров в программу вводятся высота этажа и площадь помещения. В другом случае расчеты ведутся, исходя из высоты ступеней и угла наклона конструкции.
Онлайн калькулятор лестниц и других строительных работ
Онлайн-калькуляторы, производящие расчет параметров лестниц, разрабатываются, как правило, с соблюдением норм, указанных в ГОСТ. Использование таких программ может принести пользу не только новичкам, но и профессионалам.

Не стоит забывать про специальные компьютерные программы для архитекторов, но их интерфейс обычно достаточно сложен для новичков.
Расчет ступеней лестницы: формулы и рекомендации специалистов
Как произвести грамотный расчет лестничных ступеней Правильно просчитанные ступени выглядят не слишком оригинальны, но удобны и безопасны. Строительство дома, имеющего второй этаж,
Источник: lestnitsygid.ru
Расчет ступеней лестницы: оптимальные параметры и формулы для вычисления
Расчет ступеней лестницы позволяет обеспечить проектирование конструкции с использованием стандартных норм и требований, предусмотренных для удобства и безопасности сооружения. Исходя из количества отведенного места, выбора материалов и высоты потолка, с помощью простых вычислений, можно быстро определиться с конфигурацией изделия.

Габариты лестничного марша
Несущая способность
Расчет ступеней лестницы на второй этаж производится с учетом прогиба не более 1/400 пролёта. Нагрузка на марш и площадку собираются путем суммирования собственного веса сооружения и временной нагрузки: в жилых помещениях – 300 кг/м².
Высота изделий
Для того, чтобы определить удобство изделия, применяется формула расчета ступеней лестницы. Она представлена суммой удвоенной высоты подступенков, сложенных с проступью. Этот показатель равняется среднему человеческому шагу – 60 –64 см. Определение проступи и подъема обеспечивается путем подстановки данных:
В качестве альтернативы можно рассматривать другой пример расчетов:
где а – размер подступенка, b – параметр проступи.

Габариты лестничной конструкции
Если создается лестница своими руками, расчет ступеней начинается с ширины проступи. Она способствует размещению ноги полной стопой. Оптимальный размер 20 – 32 см. Высота подступенков составляет 15 см, а проступь – 30 см в ширину.
Забежные ступени проектируются с учетом, что с узкой стороны ступень имеет параметры 10 см, а нахлест на нижнюю ступень составляет 5 см. Нахлест может создаваться при необходимости увеличить ширину проступи. Тогда данный показатель должен варьировать в пределах 3 – 5 см для ступенек из железобетона.
Угол подъёма
Расчет ступеней деревянной лестницы осуществляется с учетом наклона в пределах 23 до 37°. Если наклон менее 23 гр., вместо лестничной конструкции ставится пандус (ровная наклонная площадка). Если угол более 45°, производится установка приставного или раскладного типа изделий. Винтовые лестницы имеют угол подъема в пределах 25—35°.

Параметры лестничного марша
Число ступенек
Данный параметр обусловлен высотой этажа и углом наклона лестничной конструкции. Определившись с расположением конструкции в плане и высотой здания, число ступенек определяется графическим путем. Вслед за этим по формулам безопасности определяется ширина проступи. Чертеж создается с использованием масштаба.
Если использовать калькулятор расчета ступеней лестницы, высота этажа измеряется с учетом размещения чистовых покрытий на верхнем и нижнем перекрытии. Стандартный размер составляет 2800 или 3000 мм. Реже применяются показатели 2700 или 3300 мм. Проектирование высоты здания производится не менее 2,4 м. Если высота не входит в пределы нормы и не кратна 3, то ступеньки рассчитываются с точностью до 1 мм.

Габариты лестничной установки
Расчет ступеней лестницы по программе или вручную предусматривает образование погрешности. Его можно распределить на нижней фризовой ступени, а оставшиеся ступени марша создаются на одинаковой высоте. Ступеньки с разной высотой способствуют созданию травмоопасной конструкции. Для выравнивая высоты ступенек можно опустить чистовое покрытие верхнего этажа немного ниже.
Когда проводится расчет лестницы с ступенями на 90 градусов, порожек не рекомендуется сооружать. Предпочтительнее создать этажную площадку в виде пандуса, под наклоном. При наличии ограждения из стен с дверями, полы этих установок производятся с порогом. Для создания более короткой лестницы укорачивается ширина проступи. Например, высота подступенка 20 см, ширина проступи равна 25 см способствует неудобному спуску.

Графические замеры ступенек
Расчет высоты ступеней лестницы осуществляется с учетом того, что свободное перемещение по горизонтальной поверхности обеспечивает с шагом в 62 см. Поднимание ноги осуществляется на 31 см. На горизонтальной плоскости схемы откладывается заданное количество частей. Каждая из них равна одному шагу (62 см).
Внимание! Удобство сооружения определяется по формуле, где 2 высоты ступени + глубина ступени = 63±3 см.
Лестница на 180 градусов
Расчет лестницы с ступенями на 180 градусов требует пристального внимания к промежутку между двумя маршами, которые размещены по параллели по отношению друг к другу. Данный параметр должен соответствовать ¼ ширины проема. Производится расчет сооружения графическим способом:
- Создание схематического изображения производится путем нанесения окружности с радиусом: ширина марша + 0,5 отрезка между маршами. Радиус отвечает минимальным параметрам 1,13 части ширины.
- С двух сторон окружности чертятся прямые марши с заданными параметрами ширины и длины. Через центр маршей проходит линия передвижения, размечаются ступеньки (шириной 350 -370 мм). Полученное количество ступенек должно определяться целым значением.

Параметры ступеней для жилого массива
- Через самую высокую точку окружности В и центральную точку А проходит вертикальный отрезок до пересечения с нижней гранью отметки С. Отрезок ВС проходит через середину центральной ступеньки поворота. Центральная ступенька размечается аналогично первой. Оставшиеся ступеньки отсчитывают по обе стороны.
- Наносится горизонтальный отрезок DE, обозначающий последнюю прямую ступеньку. Через отметку А и боковое положение ступеньки 1 до пересечения с контуром DE откладывают прямую (разметка производится пунктирной линией). Через отметку А и границу ступеньки 2 создается вторая линия до пересечения с контуром DE. Образованная линия выступает в качестве шаблона для всех последующих ступенек.
- По линии DE откладывают равные 1-2 участки. Число линий соизмеримо с количеством забежных ступенек.
- От образованных на отрезке DE отметок 3, 4, 5 и т.д. проводят отрезки, пересекающие отметку 3 на DE и отметку А. Данные контуры выступают в качестве границы забежных ступенек.

Основные вычисления ступенек
Забежные ступени на 90 градусов
Для вычисления поворота ступенек на 90 гр. переменяются 2 косых ступеньки и монтируется между ними поворотная ступенька с гранями под прямым углом. Фиксация поворотной ступеньки производится непосредственно к косоурам. Подпорка ступени с помощью балясины или специального столба.
- Отмеряется стандартная ширина ступенек. Замеряется длина косой ступеньки от участка фиксации на косоуре до точки подсоединения на стеновой поверхности или косоуре с другой стороны. На чертеже проводится линия от угла 90 гр. В предусмотрено создание поворота до центральной части размещения узкой стороны ступеньки (до центра опоры для поручней). На рисунке проводится окружность с радиусом, соответствующим отрезку от центральной части опоры, на которой обеспечивается крепление ступени до ее середины. От последней прямой ступеньки откладывается по этому радиусу нужная ширина. Это ширина центрального участка косой ступеньки. Ставится цифра 1 в конечной части отрезка. Проводится от нее прямая до центральной части окружности.

Определение параметров ступенек
- Произвольно проводится прямая через центр так, чтобы с отрезка от числа 1 она способствовала созданию острого угла. На прямой отмечаются промежутки, равные «X1», где X – преумножающийся вдвое коэффициентный показатель. Цифра «1» выступает в качестве длины первой линии. Узнать положение второй ступеньки можно с использованием отрезка на прямой в 2 раза больше первого. Третья ступень будет иметь параметр в 4 раза больше.
- Создавая рисунок с забежными ступенями, их ширина в центре равна 1. Смена угла способствует неизменной ширине, а размещение ступеньки изменяется.

Вычисление размеров лестничной установки
Альтернативная методика расчета
Определяется ширина в центральном положении ступеньки. Делится поворот на 30 гр. Для разворота на 90 гр. необходимо создание 3 ступеней. Угловая забежная ступенька создается с установкой дополнительного бруса сечением 10*10 см. Назначение бруска заключается в компенсации большого количества ошибок при определении прочностных показателей. На данном этапе центральный столб заменяет стойка для поручней и 2 косоура.
Расчет ступеней лестницы: оптимальные параметры и формулы для вычисления
Расчет ступеней лестницы позволяет обеспечить проектирование конструкции с использованием стандартных норм и требований, предусмотренных для удобства и безопасности сооружения. Исходя из количества отведенного места, выбора материалов и высоты потолка, с помощью простых вычислений, можно быстро определиться с
Источник: lestnitsahouse.ru
Расчет лестницы
В строительной практике приняты определенные размеры лестницы для дома. Ступени чаще всего имеют размер 150×300 мм, т.е. высота ступени — 150, ширина — 300 мм. Эти размеры позволяют устроить уклон марша в соотношении 1:2 . Ширина лестницы должна быть не менее 1200 мм, ширина площадок — не менее ширины марша. Количество ступеней в одном марше колеблется от 5 до 18.
Чтобы правильно определить необходимое количество ступеней, следует прежде всего построить лестничную клетку графически в масштабе или в натуре на стене.
Соотношение высоты подступенка к ширине проступи
Существуют три формулы соотношения высоты подступенка j к ширине проступи e . Это формула шага, формула безопасности и формула удобства. Наиболее важной является формула шага. Требованиям всех трёх формул удовлетворяет соотношение 17/29 .
- формула удобства: e — j = 12 см
- формула шага: 2j + e = 62 (60-64) см
- формула безопасности: e + j = 46 см
- проступь: 26 ≤ e ≤ 32 в среднем 29
- подступенок: 14 ≤ j ≤ 20 в среднем 17
- формула шага: 60 ≤ 2 j + e ≤ 66 в среднем 63 (62)
- формула удобства: e — j в среднем 12
- формула безопасности: 45 ≤ e + j ≤ 47 в среднем 46
Пример расчёта лестницы
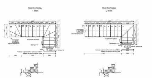
В двухэтажном доме предусмотрена лестничная клетка длиной 5900 мм, шириной — 3000 мм, высотой от уровня пола 1-го этажа до уровня пола 2-го этажа — 3300 мм и расстоянием между маршами 100 мм.
Расчёт лестницы
При высоте 3300 мм лестница должна быть двухмаршевой.
Для расчета ширины марша лестницы из ширины лестничной клетки (3000 мм) следует вычесть промежуток между маршами (100 мм) и разделить остаток на 2; получим
Высота каждого марша лестницы будет равна высоте этажа (3300 мм) делённого на 2, т.е.
Размер ступеней принимают равным 150 x 300 мм (150 мм — высота). Количество подступенков в каждом марше определяют делением высоты марша на высоту подступенка, т.е.
Проступь верхней ступени каждого марша совпадает с поверхностью площадки, а это значит, что проступей будет на 1 меньше, т.е. 10. Поэтому каждый марш будет состоять из 11 подступенков и 10 проступей.
Зная ширину проступи лестницы (300 мм) и количество ступеней (10), можно определить горизонтальную проекцию марша, его длину (заложение марша). Для этого ширину проступи умножают на количество ступеней:
Ширина каждой площадки предусматривается равной ширине марша, т.е. 1450 мм.
По выполненному чертежу лестницы на стенах размечают площадки, тетиву и ступени. Внизу стены отмеряют ширину площадок (по 1450 мм), а от них — ширину проступи (по 300 мм).
По полученным отметкам при помощи отвеса и намеленного шнура проводят строго вертикальные линии. Затем на уровне пола 1-го этажа проводят горизонтальную линию, от неё отмеряют 150 мм и проводят вторую горизонтальную линию, определяя проступь 2-ой ступени, и т.д. Последняя (11-я) проступь должна находиться на одном уровне с полом площадки.
При разбивке изготовляют фанерный или дощатый шаблон, с помощью которого размечают тетиву: находят положение балок под площадку и бруска (лаги), укладываемого на уровне пола 1-го этажа. На эти балки и брусок будет опираться тетива лестничной клетки.
Расчет лестницы
В строительной практике приняты определенные размеры лестницы для дома. Ступени чаще всего имеют размер 150×300 мм, т.е. высота ступени — 150, ширина — 300 мм. Эти размеры позволяют устроить уклон марша в соотношении 1:2. Ширина лестницы должна быть не менее 1200 мм, ширина площадок — не менее ширины марша. Количество ступеней в одном марше колеблется от 5 до 18. Чтобы правильно определить необходимое количество ступеней, следует прежде всего построить лестничную клетку графически в масштабе или в натуре на стене. Соотношение высоты подступенка к ширине проступи
Источник: www.mensh.ru
luchielestnicy.ru
Расчет ступеней лестницы: формулы и рекомендации специалистов

Правильно просчитанные ступени выглядят не слишком оригинальны, но удобны и безопасны.
Строительство дома, имеющего второй этаж, предполагает создание лестничной конструкции, которая соединяет этажи между собой. Наиболее простым и доступным для самостоятельного возведения вариантом является одномаршевая лестница. Однако даже в этом случае нужно знать, как рассчитать ступени лестницы, чтобы она получилась не только безопасной, но еще и удобной.
Необходимые формулы
Расчет лестничных ступеней производят, ориентируясь на такой параметр, как человеческий шаг. Его среднее значение находится в диапазоне от 600 до 640 мм. Как, исходя из этой величины, сделать расчет высоты и глубины ступеней (высоты подступенка и глубины проступи)?

Размер шага среднестатистического человека.
Существуют формулы, которые связывают высоту и глубину ступени с конкретными числовыми параметрами, характерными для человеческого шага. Вот наиболее значимые соотношения:
- Y + 2H = S;
- Y + H = 460 мм;
- Y – H = 120 мм.
Обозначения: Y – глубина ступени, H – высота ступени, S – средний шаг человека (600–640 мм). Первая формула является основной. Вторая – упрощенный вариант первой, она еще называется формулой безопасности. Использование третьей формулы поможет сделать лестницу наиболее удобной. Все эти соотношения были получены еще в 18 веке, но они и по сегодняшний день считаются эталонными. Если ваши размеры совпадут со стандартными, значит лестница будет удобной и безопасной.

Нестандартная форма ступеней хоть и выглядит оригинально, особым удобством обычно не отличается.
Рекомендуемые значения высоты и глубины
Помимо формул, позволяющих сделать правильный расчет размеров ступеней, есть рекомендуемые параметры. Например, площадь ступени должна быть такой, чтобы человек при ходьбе по лестнице опирался всей ступней или хотя бы большей ее частью. Глубина проступи как раз и определяет эту площадь. Минимальное значение глубины – 25 см. Это особенно важно для спуска. С другой стороны, при чрезмерно большой глубине ступенек, человек, поднимаясь на второй этаж или спускаясь, непременно будет сбиваться с шага. Площадь ступени, конечно, будет достаточной для постановки ног, но ходить с этажа на этаж, когда ступени шире 40 см, уже не комфортно. Таким образом, глубина выбирается из диапазона 25–40 см. Оптимальное значение – 30 см.

Стопа должна помещаться на проступи.
Можно поступить по-другому – взять обувь тех людей, которые будут пользоваться лестницей, и увеличить ее размер на пару сантиметров. Полученные величины и станут ориентиром для выбора глубины проступи. Если глубина получается слишком маленькой, что бывает, например, из-за большого угла наклона лестницы, то применяют выступы (нахлесты). Ширина участка проступи, нависающего над нижележащей ступенью, не должна превышать 5 см.

Иногда нависание проступи имеет и декоративный характер.
Когда выбрана глубина проступи, расчет высоты подступенка можно произвести согласно описанным выше формулам. Но существуют и рекомендуемые значения. Высота выбирается из диапазона 12–22 см. Делать ступеньки высокими нежелательно, если пользоваться лестницей будут дети и пожилые люди. Слишком низкие ступени тоже не рекомендуются, так как шагать при этом придется часто и мелко, что неудобно. Оптимальной считается высота 15 см.
Важно!Ступени должны быть одинаковой высоты. Спускаясь на нижний этаж в темноте, очень легко оступиться, когда реальная высота ступеньки отличается от ожидаемой, так как мы ориентируемся на мышечную память.

Отличная высота может быть у первой ступени наружных лестниц.
Выбор ширины марша
Одним из параметров ступеней является их ширина. Правильнее называть его шириной марша. От этой величины зависит возможность комфортно передвигаться по лестнице. Ширина марша не должна быть меньше 70 см.

Разминуться на такой лестнице двум людям практически нереально.
Если лестницей будут пользоваться несколько человек одновременно, конструкция должна быть не только более прочной, но и более широкой. Когда один человек поднимается на второй этаж, а другой спускается на первый, им необходимо разойтись, не испытывая при этом каких-либо неудобств. Чтобы обеспечить возможность ходить по лестнице навстречу друг другу, ширина марша должна быть не меньше 120 см.

Такая лестница будет удобна даже для большой семьи, так как по ней без проблем могут идти рядом два человека.
Длина ступеней может быть и больше, когда необходимо обеспечить увеличение так называемой пропускной способности лестницы. В многоквартирных домах и общественных зданиях, где в передвижениях с этажа на этаж участвует большое количество людей, пролеты лестниц в ширину достигают полутора метров, а то и больше. В частных постройках ширина марша лестницы, ведущей на верхний этаж, нередко совпадает с шириной дверного проема, к которому она примыкает.

В роскошном особняке можно позволить себе установить даже слишком широкую лестницу, которая только подчеркнет статус владельца.
От чего могут зависеть параметры ступеней
Ориентируясь на средний шаг человека и рекомендуемые значения, можно выбрать высоту, глубину и ширину ступеней. Однако в большинстве случаев это лишь предварительный шаг. Окончательный выбор размеров может зависеть от следующих величин:
- количество ступеней;
- высота лестницы;
- угол наклона.
Для определения количества ступеней межэтажное расстояние делят на высоту одной ступеньки. Все просто, но проблема в том, что полученное значение может оказаться нецелым. Решение – сделать нижнюю фризовую ступеньку нестандартной. Площадь ее при этом не изменится, но высота будет меньше, чем у остальных – она равна произведению остатка и исходной высоты ступеней.

В данном случае первая ступень получилась несколько ниже остальных.
Другой вариант – размазать «лишнее» по всем ступеням, увеличив их высоту. Расчет несложен – остаток умножается на высоту ступеньки, полученное произведение делится на число ступенек и это частное добавляется к исходной высоте каждой ступеньки. Очевидно, что изменение окажется несущественным, если ступеней много.

Также можно установить так называемую подиумную ступень, которая может быть, как ниже, так и выше остальных.
Графический метод
Метод, использующий графические построения, позволяет получить параметры ступеней (высоту и глубину), беря за основу угол наклона лестницы и их (ступеней) количество. Для этого строится система координат, на горизонтальной оси которой откладываются значения среднего шага человека, а на вертикальной – половины этой величины.
Важно!При таком расчете нужно выбрать подходящий масштаб, иначе для чертежа потребуется слишком большая площадь.
Если средний шаг человека принять равным 620 мм, а масштаб выбрать 1:10, то на горизонтальной оси откладываются отрезки величиной 66 мм, а на вертикальной – 31 мм. Количество отрезков на каждой из осей должно быть равно числу ступеней.

Графический просчет ступеней.
Имея оси с отметками, чертят линии, соединяющие первую отметку на горизонтальной оси с первой отметкой на вертикальной, вторую – со второй, третью – с третьей и т. д. Получив ряд параллельных наклонных линий, из центра координат проводят прямую, обозначающую крутизну лестницы. Теперь из каждой точки пересечения прямой с наклонными линиями чертят по два отрезка:
- первый – влево, параллельно горизонтальной оси;
- второй – вверх, параллельно вертикальной оси.
В итоге должны обрисоваться границы ступеней. Их ширина и высота определяется простым измерением получившихся на графике линий. Окончательные размеры получают с учетом масштабирования (например, умножением на 10, если был выбран масштаб 1:10).

Данный метод подойдет для расчета прямых одномаршевых лестниц.
Онлайн-калькулятор
Самым простым способом расчета параметров лестниц является онлайн-калькулятор. Здесь не требуется каких-то особых знаний и навыков. Кроме того, онлайн-калькуляторы позволяют произвести расчет параметров не только простых одномаршевых лестниц на второй этаж, но и винтовых, а также лестниц с забежными ступенями. Расчет может производиться с разными исходными данными. В одном случае для получения нужных размеров в программу вводятся высота этажа и площадь помещения. В другом случае расчеты ведутся, исходя из высоты ступеней и угла наклона конструкции. Онлайн калькулятор лестниц и других строительных работ Онлайн-калькуляторы, производящие расчет параметров лестниц, разрабатываются, как правило, с соблюдением норм, указанных в ГОСТ. Использование таких программ может принести пользу не только новичкам, но и профессионалам.

Не стоит забывать про специальные компьютерные программы для архитекторов, но их интерфейс обычно достаточно сложен для новичков.
lestnitsygid.ru
Расчет размеров ступеней и уклона лестничного марша
При расчёте по несущей способности элементы лестницы расчленяются на статически определимые балки — консольные или однопролётные, и рассчитываются по соответствующим формулам. Так как лестницы подвержены действию динамических нагрузок, к жёсткости несущих элементов предъявляются повышенные требования: прогиб их не должен превышать 1/400 пролёта. Нагрузки, действующие на лестничные марши и площадки, должны собираться путем сложения собственного веса конструкций и временных нагрузок: в жилых домах — 300 кг/м².
При подъеме человек затрачивает примерно в два раза больше энергии, чем при движении по горизонтали (рис. 2). Практикой установлено: лестница удобна и безопасна, если удвоенная высота подступёнка, сложенная с шириной ступени (проступью), равняется среднему шагу человека. Длина шага человека на плоскости составляет примерно 600–640 мм. Исходя из этого, проступь и подъем определяют по формуле: 2а+b = 600…640 мм.
рис.2. Расчет высоты и ширины рядовых ступенейКак альтернативу можно использовать другую, более легкую для запоминания, формулу: а+b = 450 ± 20 мм, где а — высота ступени (подступёнка), b — ширина ступени (проступи).
Ширина проступи должна обеспечивать опирание ноги полной стопой, то есть быть не меньше 200 и не больше 320 мм. Оптимальной считается высота подступёнка, равная 150, а ширина проступи — 300 мм. При сильном увеличении ширины проступи вы непременно собьетесь с шага, а при сильном уменьшении затруднится спуск. При проектировании забежных ступеней нужно учитывать, что минимальная ширина ступеней с узкого конца должна составлять не менее 100 мм, а нависание проступи над нижней ступенькой должно быть не более 50 мм. Так же нависание верхней ступени над нижней делается тогда, когда другими способами не удается увеличить ширину проступи, в этом случае величина нависания не должна превышать 30 мм для деревянных и 50 мм для железобетонных ступеней.
Наиболее удобные углы подъёма лестницы находятся в диапазоне от 23 до 37°. Чем лестница круче, тем меньше ей надо места для установки в доме, и соответственно, чем лестница положе, тем больше места необходимо для неё предусмотреть. Если угол меньше 23° — лестницу можно заменить пандусом (ровной наклонной площадкой), если больше 45°, то лестница переходит в разряд приставных или раскладных (рис. 3). Оптимальный угол подъема винтовых лестниц — 25–35°. Наиболее сложным процессом при крутизне лестничного марша более 40° является спуск с лестницы, а при углах более 45° спуск можно осуществлять только спиной вперед.
рис. 3. Нормативная зависимость размеров ступеней от крутизны лестницыКоличество ступеней зависит от высоты этажа и угла наклона лестницы. Зная местоположение лестницы в плане и высоту помещения, количество ступеней можно (и проще) установить графически, а после этого, по формулам безопасности определить ширину проступи.
Для графического построения лестницы на миллиметровой бумаге или бумаге «в клеточку» нужно в масштабе нарисовать лестничный марш (рис. 4) соизмеряя его с высотой этажа.
рис. 4. Пример графического расчета количества ступеней и высоты подступёнка. Таблица высот для ступенек в зданиях с нормативной высотой этажаВысотой этажа называется разница высотных отметок уровней чистого пола нижнего и верхнего этажа, то есть в размер высоты этажа должны быть включены толщины одежды полов. Например, пол нижнего этажа облицован керамической плиткой, а пол верхнего этажа выложен паркетом по лагам и фанерному «черному полу». В расчет высоты этажа должны быть включены все слои данных половых конструкций: внизу — толщины выравнивающей стяжки, плиточного клея и плитки; вверху — толщина лаг, фанеры и паркета. В России еще со времен существования СССР высота этажа — величина регламентированная. Обычно стандартная высота этажа равна 2,8 или 3 м, реже — 2,7 или 3,3 м, что позволяет проектировать высоту помещения (расстояние от пола до потолка) не менее 2,4 м. Такая высота этажа позволяют без особого труда вписать лестницу с размерами ступеней, отвечающим требованиям расчетной формулы безопасности (рис. 4, таблица 2). Если ваша высота этажа отличается от нормативной и не кратна 3, то высоту ступеней нужно рассчитывать (округлять) с точностью до одного миллиметра, но так, чтобы высоты всех подступёнков были одинаковыми. Погрешность вычисления, набегающую от округления высот, лучше распределить на нижнюю фризовую ступень, а остальные ступеньки марша сделать одинаковой высоты.
Разные по высоте ступени приводят к постройке травмоопасной лестницы. Особенно опасной эта лестница становится во время спуска в ночное время суток. Спускаясь по лестнице, мышечная память нам подсказывает, что должна быть ступенька. Вес тела переносится на ногу, а ступеньки под ней нет… Она — ниже! И всего-то два-три десятка миллиметров, а ногу подвернули… и еще хорошо, если не покатились кубарем вниз.
В домах с нестандартной высотой этажа для выравнивания высоты ступеней допускается опустить уровень чистого пола верхней этажной площадки чуть ниже относительно уровня чистого пола остального этажа. Порожек лучше не делать, а сделать пол этажной площадки в виде пандуса, то есть наклонным. Для подравнивания высоты ступенек потребуется всего несколько миллиметров так, что уклон будет вряд ли сильно заметным. Как вариант, если лестничная площадка огорожена стенами с дверями, полы между этими помещениями можно сделать с небольшим порогом. Такое решение всем хорошо знакомо: уровень этажных площадок в многоквартирных домах, как правило, ниже уровня чистых полов в квартирах. Ноги мы здесь не ломаем — привыкли.
В таблице 1 рисунка 3 приведены размеры ступеней для «уплотненных» лестниц, пригодных для загородных домов. Нередко в планировках этих домов под лестницы оставляется так мало места, что для того, чтобы сделать лестницу короче, приходится жертвовать шириной проступи. Так, например, в лестнице с высотой подступёнка 200 мм ширина проступи равняется 250 мм. Взрослый человек не может опереться на такую проступь полной ступней и ему приходится спускаться с лестницы боком или спиной вперед. В таблице 2 рисунка 4 приведены размеры высот подступёнков для стандартных высот этажа. Рассчитать ширину проступи по формулам безопасности не составит особого труда. Но есть и еще один способ определить размеры ступеней — графический.
Этот эргономический способ основан на том, что человек, свободно делая по горизонтальной плоскости шаг в 620 мм, может с той же легкостью поднимать ногу на высоту, равную лишь половине этой величины, то есть на 310 мм. Поэтому, если на горизонтальной оси графика (рис. 5) отложить известное число частей, равных каждая одному шагу (620 мм), а на вертикальной оси — равных высоте подъема ноги 310 мм, то такое построение дает возможность получить размеры подъема и ширины ступеней для лестницы с любым наклоном. Для этого нужно нанести на график линию наклона своей лестницы (ее высота и длина известны) и в точках пересечения с сеткой графика провести перпендикуляры. Это и есть оптимальная высота и ширина ступени для данного уклона лестничного марша. Более того, вы можете воспользоваться этим методом и построить лестницу конкретно «по себя». Например, задав шаг равным 600, а подъем соответственно 300 мм либо задав длину шага такой, какой вы считаете нужным.
рис. 5. Графический способ подбора оптимальных размеров ступеней (размеры в мм)
ostroykevse.com
оптимальные параметры и формулы для вычисления
Расчет ступеней лестницы позволяет обеспечить проектирование конструкции с использованием стандартных норм и требований, предусмотренных для удобства и безопасности сооружения. Исходя из количества отведенного места, выбора материалов и высоты потолка, с помощью простых вычислений, можно быстро определиться с конфигурацией изделия.

Габариты лестничного марша
Несущая способность
Расчет ступеней лестницы на второй этаж производится с учетом прогиба не более 1/400 пролёта. Нагрузка на марш и площадку собираются путем суммирования собственного веса сооружения и временной нагрузки: в жилых помещениях – 300 кг/м².
Высота изделий
Для того, чтобы определить удобство изделия, применяется формула расчета ступеней лестницы. Она представлена суммой удвоенной высоты подступенков, сложенных с проступью. Этот показатель равняется среднему человеческому шагу – 60 –64 см. Определение проступи и подъема обеспечивается путем подстановки данных:
2а+b = 60…64 см.
В качестве альтернативы можно рассматривать другой пример расчетов:
а+b = 45 ± 2 см,
где а – размер подступенка, b – параметр проступи.

Габариты лестничной конструкции
Если создается лестница своими руками, расчет ступеней начинается с ширины проступи. Она способствует размещению ноги полной стопой. Оптимальный размер 20 – 32 см. Высота подступенков составляет 15 см, а проступь – 30 см в ширину.
Забежные ступени проектируются с учетом, что с узкой стороны ступень имеет параметры 10 см, а нахлест на нижнюю ступень составляет 5 см. Нахлест может создаваться при необходимости увеличить ширину проступи. Тогда данный показатель должен варьировать в пределах 3 – 5 см для ступенек из железобетона.
Угол подъёма
Расчет ступеней деревянной лестницы осуществляется с учетом наклона в пределах 23 до 37°. Если наклон менее 23 гр., вместо лестничной конструкции ставится пандус (ровная наклонная площадка). Если угол более 45°, производится установка приставного или раскладного типа изделий. Винтовые лестницы имеют угол подъема в пределах 25—35°.

Параметры лестничного марша
Число ступенек
Данный параметр обусловлен высотой этажа и углом наклона лестничной конструкции. Определившись с расположением конструкции в плане и высотой здания, число ступенек определяется графическим путем. Вслед за этим по формулам безопасности определяется ширина проступи. Чертеж создается с использованием масштаба.
Если использовать калькулятор расчета ступеней лестницы, высота этажа измеряется с учетом размещения чистовых покрытий на верхнем и нижнем перекрытии. Стандартный размер составляет 2800 или 3000 мм. Реже применяются показатели 2700 или 3300 мм. Проектирование высоты здания производится не менее 2,4 м. Если высота не входит в пределы нормы и не кратна 3, то ступеньки рассчитываются с точностью до 1 мм.

Габариты лестничной установки
Расчет ступеней лестницы по программе или вручную предусматривает образование погрешности. Его можно распределить на нижней фризовой ступени, а оставшиеся ступени марша создаются на одинаковой высоте. Ступеньки с разной высотой способствуют созданию травмоопасной конструкции. Для выравнивая высоты ступенек можно опустить чистовое покрытие верхнего этажа немного ниже.
Когда проводится расчет лестницы с ступенями на 90 градусов, порожек не рекомендуется сооружать. Предпочтительнее создать этажную площадку в виде пандуса, под наклоном. При наличии ограждения из стен с дверями, полы этих установок производятся с порогом. Для создания более короткой лестницы укорачивается ширина проступи. Например, высота подступенка 20 см, ширина проступи равна 25 см способствует неудобному спуску.

Размер ступеней
Графические замеры ступенек
Расчет высоты ступеней лестницы осуществляется с учетом того, что свободное перемещение по горизонтальной поверхности обеспечивает с шагом в 62 см. Поднимание ноги осуществляется на 31 см. На горизонтальной плоскости схемы откладывается заданное количество частей. Каждая из них равна одному шагу (62 см).
Внимание! Удобство сооружения определяется по формуле, где 2 высоты ступени + глубина ступени = 63±3 см.
Лестница на 180 градусов
Расчет лестницы с ступенями на 180 градусов требует пристального внимания к промежутку между двумя маршами, которые размещены по параллели по отношению друг к другу. Данный параметр должен соответствовать ¼ ширины проема. Производится расчет сооружения графическим способом:
- Создание схематического изображения производится путем нанесения окружности с радиусом: ширина марша + 0,5 отрезка между маршами. Радиус отвечает минимальным параметрам 1,13 части ширины.
- С двух сторон окружности чертятся прямые марши с заданными параметрами ширины и длины. Через центр маршей проходит линия передвижения, размечаются ступеньки (шириной 350 -370 мм). Полученное количество ступенек должно определяться целым значением.

Параметры ступеней для жилого массива
- Через самую высокую точку окружности В и центральную точку А проходит вертикальный отрезок до пересечения с нижней гранью отметки С. Отрезок ВС проходит через середину центральной ступеньки поворота. Центральная ступенька размечается аналогично первой. Оставшиеся ступеньки отсчитывают по обе стороны.
- Наносится горизонтальный отрезок DE, обозначающий последнюю прямую ступеньку. Через отметку А и боковое положение ступеньки 1 до пересечения с контуром DE откладывают прямую (разметка производится пунктирной линией). Через отметку А и границу ступеньки 2 создается вторая линия до пересечения с контуром DE. Образованная линия выступает в качестве шаблона для всех последующих ступенек.
- По линии DE откладывают равные 1-2 участки. Число линий соизмеримо с количеством забежных ступенек.
- От образованных на отрезке DE отметок 3, 4, 5 и т.д. проводят отрезки, пересекающие отметку 3 на DE и отметку А. Данные контуры выступают в качестве границы забежных ступенек.

Основные вычисления ступенек
Забежные ступени на 90 градусов
Для вычисления поворота ступенек на 90 гр. переменяются 2 косых ступеньки и монтируется между ними поворотная ступенька с гранями под прямым углом. Фиксация поворотной ступеньки производится непосредственно к косоурам. Подпорка ступени с помощью балясины или специального столба.
Определение поворота:
- Отмеряется стандартная ширина ступенек. Замеряется длина косой ступеньки от участка фиксации на косоуре до точки подсоединения на стеновой поверхности или косоуре с другой стороны. На чертеже проводится линия от угла 90 гр. В предусмотрено создание поворота до центральной части размещения узкой стороны ступеньки (до центра опоры для поручней). На рисунке проводится окружность с радиусом, соответствующим отрезку от центральной части опоры, на которой обеспечивается крепление ступени до ее середины. От последней прямой ступеньки откладывается по этому радиусу нужная ширина. Это ширина центрального участка косой ступеньки. Ставится цифра 1 в конечной части отрезка. Проводится от нее прямая до центральной части окружности.

Определение параметров ступенек
- Произвольно проводится прямая через центр так, чтобы с отрезка от числа 1 она способствовала созданию острого угла. На прямой отмечаются промежутки, равные «X1», где X – преумножающийся вдвое коэффициентный показатель. Цифра «1» выступает в качестве длины первой линии. Узнать положение второй ступеньки можно с использованием отрезка на прямой в 2 раза больше первого. Третья ступень будет иметь параметр в 4 раза больше.
- Создавая рисунок с забежными ступенями, их ширина в центре равна 1. Смена угла способствует неизменной ширине, а размещение ступеньки изменяется.

Вычисление размеров лестничной установки
Альтернативная методика расчета
Определяется ширина в центральном положении ступеньки. Делится поворот на 30 гр. Для разворота на 90 гр. необходимо создание 3 ступеней. Угловая забежная ступенька создается с установкой дополнительного бруса сечением 10*10 см. Назначение бруска заключается в компенсации большого количества ошибок при определении прочностных показателей. На данном этапе центральный столб заменяет стойка для поручней и 2 косоура.
Вконтакте
Google+
lestnitsahouse.ru
Подробно о том, как рассчитать лестницу для крыльца
Наиболее популярными материалами для возведения маршей крылец считаются металл, бетон и дерево. У каждого из них имеются как свои достоинства, так и недостатки. Какой же материал выбрать для марша крыльца лучше всего и как правильно сделать расчет ступеней и угла наклона?
В этой статье мы постараемся ответить на оба этих вопроса. Вы узнаете, какой именно должна быть лестница на крыльцо. Своими руками, если постараться, можно возвести на самом деле очень удобную конструкцию.
Из какого материала сделать лестницу
Перед тем, как приступать к возведению крылечка, конечно же, следует определиться с материалом, из которого оно будет изготовлено. Посмотрите на эти красивые и при этом удобные наружные лестницы для крыльца:
Как видите, практичный марш можно устроить как из бетона, так и из дерева или металла. Так как же сделать правильный выбор?
Наружные уличные лестницы из дерева
Самыми недорогими и при этом очень эстетичными являются марши, изготовленные из брусьев и досок. О том, как сделать лестницу для крыльца из дерева, наверняка знает большинство хозяев загородных участков. Для того, чтобы возвести подобную конструкцию для дома, не нужно иметь никакого дорогостоящего оборудования или обладать какими-либо особыми навыками. Состоит такая деревянная лестница из двух косоуров (либо используются две тетивы) и прикрепленных к ним на шурупы проступей и подступенков из досок.

Опорой под деревянные ступени часто служат косоуры
Иногда ступеньки делают и из бревна, распилив его на две половины. Очень удобным будет такой марш как с одним косоуром, так и с двумя.
Деревянная лестница на крыльцо имеет лишь один существенный недостаток — короткий срок службы. Дело в том, что доски и брусья, не особенно хорошо переносят повышенную влажность и перепады температур.

Деревянная лестница – сооружение недорогое, простое в сборке, но не слишком долговечное
Совет: Для того, чтобы увеличить срок службы деревянного марша стоит окрасить ступени акриловой краской или специальным маслом.Крылечки на даче из металла
Несколько более долговечной считается железная лестница для крыльца. Очень часто для экономии материала ступени подобных конструкций держаться только на одной стальной тетиве, расположенной посередине. Сами ступени свариваются в виде рам. Проступи такой лестницы могут быть изготовлены или из металла или из дерева.

Металлические лестницы для крыльца. Фото надежного и долговечного марша с резиновым покрытием
На заметку: Металлические проступи при изготовлении лестниц своими руками часто дополнительно оклеивают специальным резиновым покрытием, предотвращающим скольжение.Как можно было заметить, в возведении сварные лестницы для крыльца несколько более сложны, чем деревянные. По крайней мере, нужно иметь под рукой сварочный аппарат и уметь им пользоваться. Однако прослужит металлическая лестница дольше деревянной.
Конструкции из бетона
Лестница на крыльцо из бетона может прослужить не один десяток лет. Но времени и средств на ее возведение нужно будет потратить несколько больше, чем на сборку деревянной или металлической. Заливка выполняется в многоярусной опалубке из древесины.

Как построить бетонный марш. Ступени заливаются с использованием многоярусной опалубки
На заметку: Некоторые хозяев дач интересуются, как построить лестницу к крыльцу из бетона с полукруглыми ступенями. В этом случае просто изготавливается полукруглая опалубка из пластика или фанеры, которую перед выгибанием смачивают водой.Все ступени и верхняя площадка бетонного марша обязательно армируются. Особое внимание при возведении лестницы из бетона придется уделить чистовой отделке. Ступени нужно будет облицевать плиткой, камнем, резиной или деревом, что еще больше удорожает конструкцию.

Наружные лестницы для крыльца. Фото бетонного марша, отделанного плиткой и натуральным камнем
Как правильно сделать расчет лестницы
Решать, какую именно конструкцию возводить – недорогую деревянную, прочную металлическую или основательную бетонную, конечно же, самим хозяевам загородного дома. Однако при использовании абсолютно любого материала предварительно следует выполнить соответствующий расчет, определив угол наклона, длину марша и количество ступеней. При составлении проекта следует учитывать нормативы СНиП для лестниц жилых домов:
- Угол наклона марша не должен быть меньше 27гр и больше 45гр. Если более пологая лестница еще допустима, то слишком крутой она быть все же не должна.
- Высота подступенка может варьироваться в пределах 15-20см. Оптимальным же показателем считается 17-18см.
- Ширина более или менее удобной проступи – 25-32см. Самыми комфортными считаются ступеньки глубиной в 30см.

Высота проступи и посдступенка должны укладываться в положенные нормативы
- Ширина пролета, то есть длина ступени от косоура до косоура не должна быть меньше 90см. Однако удобным марш будет только в том случае, если увеличить эту цифру, хотя бы до 110см.

Лестница на крыльцо. Фото марша оптимальной ширины
- Глубина верхней площадки (расстояние от последней ступени до порога дома) должна быть не меньше 1.2м.
Пример расчета марша к крыльцу
Для того, чтобы вам было понятнее, как расcчитать количество ступеней такой конструкции, как лестница для крыльца на даче, в том случае, если известна его высота, приведем простейший пример:
Пусть высота цоколя дома составляет 40см. Отнимаем от этой цифры 3см (для исключения риска задевания двери за верхнюю площадку в результате усадки здания) и получаем высоту крыльца в 37см. На одну ступень (с учетом удобной глубины в 30см и высоты в 17см) должно приходиться C=√(302+172)= √(900+289)=√1189=34.5см длины косоура. Для двух ступенек понадобится косоур длиной в 69см. Находим sinF=37/69=0.54. То есть в этом случае угол наклона Fпо таблице Брадиса составит довольно таки удобные 32-33гр. Если сделать три ступеньки, лестница получится слишком пологой (примерно 21гр).

Крылечко частного дома должно быть не только красивым, но и удобным
Надеемся, из этого примера более или менее понятно, как раcсчитать лестницу для крыльца. Конечно, это лишь приблизительный расчет. При составлении проекта крыльца к глубине и высоте ступени нужно прибавлять толщину доски. Таким образом для такого крылечка нужно будет приготовить два бруска (можно 150*50мм) длиной примерно в 70-75 см на косоуры и четыре доски (2-2.5см) для проступей и подступенков. Длина последних будет равна ширине пролета лестницы.
remonttool.ru
простые примеры и рекомендации по определению основных параметров
В наш век ограниченного жизненного пространства и рационального использования жилых площадей значение лестниц неуклонно возрастает – они играют роль связующего элемента между этажами, между отдельно стоящими строениями, служат несущими конструкциями здания. Функциональное назначение лестниц уже давно дополнено значительным декоративным элементом – благодаря разнообразию форм лестниц и материалов, из которых они изготовляются, они могут стать настоящей изюминкой интерьера. Однако по-прежнему правильный расчет лестницы остается главным требованием при ее сооружении. В противном случае, самая роскошная или самая изящная лестница может стать потенциальной угрозой здоровью людей, которые ей пользуются.
Основными элементами лестницы являются ступени, состоящие из подступенков и проступи, которые крепятся к широким тетивам или косоурам из дерева или металла. Для того чтобы конструкция была более удобной и безопасной, на лестнице устанавливается ограждение из балясин, называемое балюстрадой, сверху которого крепится поручень. Есть еще некоторые дополнительные элементы, которые используются в зависимости от конфигурации и конструкции лестниц.
Учитывая большой угол крутизны этой лестницы, можно предположить, что подъем по ней будет затруднен, а находящаяся рядом стена ограничит маневрирование при подъеме крупных предметов
Огромное количество строительных бригад сегодня предлагает свои услуги, однако их профессионализм будет виден только во время работ. Более того, в качестве рекламы на многих сайтах представлены уже готовые лестницы, имеющие явные дефекты в своей конструкции. Поэтому заказчику не мешает знать, как рассчитать лестницу, чтобы иметь возможность контролировать строительный процесс и, если строители допустят ошибку, попросить своевременно ее устранить.
При строительстве многоэтажных жилых домов нормы расчета лестниц соблюдаются очень строго, ведь от этого зависит безопасность всех жильцов. Владелец загородного дома или коттеджа не настолько ограничен в выборе форм, размеров и крутизны лестниц, которые будут в нем возводиться. И все-таки, чтобы лестница была удобной и безопасной в эксплуатации, лучше придерживаться существующих норм.
Пример расчета параметров
Расчет лестницы на второй этаж осуществляется исходя из следующих данных: высоты между этажами и свободного пространства, отведенного под лестницу. Прежде всего, стоит определиться с формой лестницы. Наиболее удобной считается одномаршевая лестница – прямой марш, начинающийся на уровне одного перекрытия и заканчивающийся на уровне другого. Этот вариант подходит для тех помещений, где высота между уровнями относительно невелика (от 2,5 до 3,5 метров), а свободного места для установки лестницы достаточно.

Перед тем, как определиться с формой лестницы, следует уточнить, достаточно ли свободного пространства там, где планируется ее установка

Соблюдение норм при расчете лестницы гарантирует то, что она будет удобна в эксплуатации
Оптимальным соотношением длины и высоты лестницы считается соотношение 2:1, то есть при расстоянии между этажами в 3 метра длина лестницы будет составлять 6 метров.
Показатель крутизны
Важным показателем является также крутизна лестницы, определяющая угол конструкции. Как рассчитать угол наклона лестницы, чтобы она не представляла опасности для окружающих, была удобной в эксплуатации и гармонично вписывалась в интерьер?

По такой лестнице без проблем можно перемещать крупногабаритные предметы

Оптимальная крутизна лестницы находится в пределах 30-40 градусов, хотя в загородных домах чаще всего этот показатель определяется предпочтениями владельца
Оптимальным углом наклона лестницы считается угол в 30 градусов. Меньший угол превратит лестницу в покатый пандус, громоздкий и неудобный, а угол больше 40 градусов делает лестницу опасной в эксплуатации не только для пожилых людей и детей, но и для взрослых жильцов дома.

Одна из разновидностей одномаршевой деревянной лестницы — лестница «гусиный ход» — позволяет сэкономить пространство, но очевидно, что показатель ее крутизны далеко выходит за границы установленных норм
Ширина и высота ступеней
Расчет ступеней лестницы проводится по двум параметрам и зависит от длины среднего шага человека, которая соста
mirhat.ru
