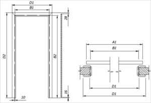
Размеры дверной коробки – ширина, высота стандартной двери, размеры в разрезе, глубина, толщина короба
Что такое дверная коробка: виды, материалы, комплектующие
От качества лудки зависит прочность всей конструкции, а также длительность её эксплуатации. Обычно изготавливают дверную коробку и полотно из одного материала. На раму выпадает основная нагрузка открывающейся створки, и экономить на приобретении дешёвой лудки нельзя, иначе конструкция будет недолговечной.
Что такое дверная коробка?
Коробка является частью дверного блока. Применяется в моделях распашного типа, к ней на петли подвешивается створка. Устанавливают лудку входной или межкомнатной двери в проём на стене. Самым популярным материалом для изготовления коробок считается массив. Дешевле вариант – МДФ и другие комбинации из древесных отходов. Лудки могут иметь на торце нарезные пазы, предназначенные для фиксации наличников и доборов.

Скрытую коробку двери прячут при монтаже в стене, она изготавливается из алюминия. Невидимыми остаются даже петли.

Устройство дверной рамы предполагает использование трёх или четырёх элементов. П-образные лудки без порога состоят из двух стоек, соединённых вверху поперечиной. У полноценной лудки четвёртым элементом выступает порог. Такие рамы обязательны при установке дверного блока в санузел или на вход в помещение.
Продаются коробки обычно комплектом с доборами и наличниками. Дополнительные элементы помогают облагородить дверной проём. Устройство лудки различается по следующим признакам:
- с доборами или без;
- с телескопическими наличниками или планками без пазов;
- с наличием или отсутствием уплотнителя;
- с накладной или врезной фурнитурой.

Удобной в монтаже и использовании считается коробка с телескопическими наличниками, а также укомплектованная уплотнителем.
Размеры коробок
Потребителю предлагаются разные размеры дверных коробок, что обусловлено местом их установки. Габариты соблюдаются по стандарту. У производителей из разных стран он отличается. Самый распространённый стандартный размер дверной коробки межкомнатных дверей отечественного производителя совпадает с изделиями из Финляндии, Италии и ряда других европейских стран.
По стандарту размер составляет:
- ширина створки – 55, 60, 70, 80 и 90 см;
- высота створки – 190, 200 и 210 см;
- толщина коробки – от 2 до 7,5 см.
Определена такая толщина дверной коробки межкомнатной двери не зря. Разбег размера обусловлен разными параметрами стен.

Оптимальной считается глубина дверной коробки межкомнатной двери – 7,5 см. Лудка подходит для стен из ГКЛ или кирпича. Для толстых перегородок из другого материала выпускают коробки шириной 10 см. Встречаются лудки импортного производства глубиной до 20,5 см.
Определяется общая высота и ширина дверной коробки межкомнатной двери с учётом размера створки. К габаритам полотна добавляют толщину лудки. Понятней будет на примере. Возьмём полотно 60*200 см и коробку толщиной 7,5 см. В результате вычислений получится общая ширина двери с коробкой 67,5 см, а высота – 207,5 см.
Определить габариты коробки межкомнатных дверей поможет таблица размеров.
Виды коробок
Различаются виды дверных коробок по конструкции, материалу и другим параметрам. Лудка, состоящая из трёх или четырёх элементов, имеет следующие способы соединения стоек с поперечиной:
- Шиповое. Стыковка бруса дверной коробки происходит замком «шип-паз». Метод сложный, но надёжный.

- Багетное. Края бруса подрезают под углом 45º. Соединение элементов выполняется метизами.

- Прямой угол. Перед стыковкой под углом 90о на конце бруса вырезаются пазы, удалением части четверти.

Из всех вариантов, простой считается конструкция дверной коробки с прямым углом.
Устройство лудок различается по типу крепления доборов и наличников:
- Простая идёт без пазов. Доборы и наличники фиксируются клеем, гвоздями или саморезами.

- Телескопическая коробка для двери оснащена специальными пазами, в которые крепятся доборы и наличники.

- Моноблок. Инновационная конструкция. Коробка и наличники представляют с собой одно целое.

Достоинство телескопической коробки моноблок заключается в полной комплектации. Отдельно не придётся покупать доборы и наличники.
По конструкции лудка бывает трёх типов:
- Охватывающая. Конструкция состоит из рамы, доборов и наличников. Поставляется дверная коробка с уплотнителем. В дешёвых вариантах могут отсутствовать доборы. Планки придётся покупать отдельно.
- Торцевая. Лудка предназначена для монтажа на специальный металлический каркас. Используется при обустройстве проёмов тонких стен из гипсокартона.
- Угловая. Лудка считается универсальной. Рама с наличником соединена в единую конструкцию. Во время монтажа требуется установка уплотнителя.
Отдельно стоит рассмотреть скрытую коробку двери, полностью спрятанную вместе с петлями в стене во время монтажа. Весь блок изготавливается из алюминия и бывает двух типов:
- Готовая коробка. Створка имеет ламинированное, эмалированное или другое покрытие. Допускается монтаж зеркал.
- Лудка под отделку. Полотно покрыто слоем грунтовки. После установки блока оно подвергается дальнейшей отделке обоями, окрашиванием или облицовке другими материалами.
Рукоятки на створке тоже сделаны скрытыми. Обычно – это прорезь на полотне или магнитное приспособление.
Материалы
Различаются лудки по материалу изготовления:
- Самые распространённые, недорогие и прочные считаются деревянные дверные коробки. Изделия из необработанного бруса при монтаже пропитывают антисептиком, вскрывают лаком или краской. Для бюджетного варианта коробки используют массив сосны. Технология изготовления из срощенного бруса позволяет избавиться от дефектов древесины. Элементы рамы склеиваются из маленьких заготовок.
- Методом прессовки древесных отходов изготавливаются дверные коробки МДФ, ДВП и ХДФ. Рамы покрывают ламинатом, шпоном и другими материалами, защищающими изделие от воздействия влаги, а также придающие ему привлекательность. Отличными характеристиками обладают слоистые композиты. В материале чередуются слои древесных отходов с пластиком.
- Специальная алюминиевая коробка для стеклянной двери поставляется с уплотнителем и комплектом уголков. Лудку устанавливают в стеклянных проёмах офисов и других организаций. Фиксация происходит прижимными пластинами на гужонах.

Металлические дверные блоки обычно идут с уплотнителем, наличниками и фурнитурой. Устанавливают изделия на входе в здание или отдельные кабинеты организации.
Сколько нужно комплектующих для проёма?
При установке дверного блока обязательно понадобятся комплектующие. В продажу алюминиевая дверная коробка поступает с монтажными пластинами, уплотнителем, комплектом уголков.
При покупке лудки для межкомнатной двери подбирают конструкцию с учётом места установки. Рамы с порогом ставят в санузел, на вход или, если требует высота проёма (для одной двери потребуется 3 заготовки). П-образную лудку монтируют в обычных межкомнатных перегородках (для одной двери нужно 2,5 заготовки).
Количество наличников рассчитывают по необходимости обрамления. На одну сторону надо две с половиной планки длиною 2 м. Для облицовки двух сторон покупают 5 наличников.

Если дверная коробка узкая, выступы толстой стены скрывают доборами. Количество досок рассчитывают по размеру выступа.

Из фурнитуры понадобятся петли. На лёгкую створку достаточно 2 элемента, а на тяжёлую можно поставить 3 штуки. На дверную коробку без четверти ставят накладные или скрытые петли. По конструкции они являются неразъёмные.

На входную дверь устанавливают замок и смотровой глазок. Хотя, последний элемент необязателен. Любую створку оснащают двумя ручками, а к полотну межкомнатной двери крепят защёлку.
dvernoiguru.ru
Размеры дверной коробки, в том числе стандартные, а также алгоритм замера
До монтажа дверного полотна требуется правильно замерить проём и короб. Предельная точность в определении размеров гарантирует долгосрочную работу изделия.
Подбор подходящего размера дверной коробки
Определение параметров рамочной конструкции для дверного полотна начинается с расчёта габаритов прохода в стене и изучения ГОСТа.
Замер дверного проёма по формуле
Убедиться, что дверная коробка отлично вписывается в проём по ширине, поможет простая формула Шп = Шдв + 2*Тк + Мз*2 + Зп + Зз, где Шп — это ширина проёма, Шдв — ширина дверного полотна, Тк — толщина короба, Мз — монтажный зазор, Зп — зазор под петли, а Зз — зазор под замок.
Согласно формуле, дверь шириной 800 мм с коробкой толщиной 30 мм, монтажным зазором в 10 мм, просветом под петли в 2 мм и просветом под замок в 4 мм должна быть размещена в проёме шириной почти 89 см (80+2*3+1*2 +0,2 +0,4=88,6 см).

В размер дверного проёма входят габариты дверного полотна и дверной коробки
А избавиться от сомнений, подходит ли короб проходу в комнату через стену по высоте, поможет формула Вп = Вдв + Рп + 1 см + Тк + МЗв + МЗн, где Вп — это высота прохода в комнату, Вдв — высота купленной двери, Рп — расстояние от пола до порога, 1 см — стандарт величины щели между стеной и дверной рамой (коробом) в верхней области проёма, Тк — толщина дверного короба (3–10 см), МЗв — монтажный зазор между рамочной конструкцией и дверным полотном вверху, а МЗн — монтажный зазор между рамочной конструкцией и порогом внизу.
Получается, двери форматом 200х90 см с блоком толщиной 5 см и порогом высотой 3 см нужно вставлять в проём высотой не менее 210 см (200 см + 3 см + 1 см + 5 см + 3 мм + 5 мм = 209,8 см).
Зависимость дверной коробки от проёма
Как обозначено в ГОСТе 6629–88, коробка межкомнатных дверей должна быть на 5–7 см больше ширины стандартного дверного полотна. А блок дверей на входе в дом рекомендуют делать шириной до 12 см, ведь такая входная группа имеет функцию эвакуационного выхода.
По высоте разница между двумя элементами дверного блока может составлять от 43 мм. Это значит, что дверь размером 600х1900 мм можно монтировать в короб с параметрами 665х1943 мм, вставленный в проём шириной 685 мм и высотой 1955 мм.

Размеры дверного блока увеличиваются по мере прибавления к полотну рамочной конструкции и наличников
Таблица: соответствие размеров короба дверному полотну и проёму
Видео: расчёт дверного проёма
Стандартные размеры рамы для двери
Производители дверных коробок ориентируются на габариты полотна и чаще всего выпускают изделия шириной:
Палка дверного короба имеет размер 30–35 мм. Эти миллиметры добавляются к ширине двери с каждой её стороны. Поэтому и получается, что рама обычно увеличивает размер дверного полотна на 7 см.

За счёт дверной коробки ширина двери увеличивается как минимум на 6–7 см
Высота дверной рамы обусловливается высотой полотна. Если второй показатель равен 2000 мм, то первый может составлять 2070 мм.

Дверная коробка добавляет к высоте двери 6–7 см
Назначение двери в зависимости от размера
Размеры двери отражаются не только на габаритах короба, но и на условиях использования изделия. Например, особо широкое дверное полотно всегда ведёт в гостиную.
Таблица: параметры дверей с учётом функции помещения
Отзывы о дверях с коробом
Короб — такая же важная часть дверного блока, как и наличники. Он позволяет закрепить полотно в проёме, поэтому к его размерам предъявляются отдельные требования.
legkovmeste.ru
Размеры дверной коробки межкомнатной двери
Рано или поздно каждому владельцу квартиры приходится сталкиваться с проблемой капитального ремонта, в ходе которого потребуется заменить дверные коробки для межкомнатных дверей. Задача установки дверной коробки в проем двери не требует владения какими-либо специфическими столярными навыками, главное -вниманиеи аккуратность в работе.

Как поставить дверную коробку, последовательность операций
Любые работы по замене дверных коробок начинаются с изучения ширины и состояния стен, старой лутки и проема. Зачастую сами стены, кирпич и бетон требуют косметического ремонта, отделки и восстановления штукатурки, поэтому, перед тем как собрать дверную коробку, приходится удалять наличники и восстанавливать целостность кирпичной кладки.
Сама процедура установки дверной коробки межкомнатной двери несложная, и ее выполнение укладывается в несколько простых операций:
- Снимают дверь, распиливают ручной ножовкой лутку по ширине и аккуратно разбирают старую коробку, освобождая дверной проем;
- Измеряют ширину дверного проема как минимум в четырех местах. Если планируется установка новой двери большей ширины, потребуется подрезать вертикальные стены проема с помощью болгарки и перфоратора. Но делать это необходимо крайне аккуратно, чтобы не разбить кирпичную кладку;
- Измерить точную ширину и высоту новой двери. Отмерить на стене необходимые габариты дверного проема с учетом припусков на толщину досок и ширину зазоров. Общая ширина проема будет определяться, как ширина дверной коробки межкомнатной двери плюс 25 мм на сторону для монтажных элементов и пены;
- Разметить брус или доску, купленную для сборки коробки, запилить стыки на косяках, сшить предварительно на саморезах и примерить к новой двери. Установить коробку в дверной проем, проверить ширину и зафиксировать саморезами и пеной.
Совет! Если нет полной уверенности в своих навыках и точном понимании того, как установить и выполнить крепление дверной коробки, можно поучаствовать в процессе замены дверной коробки у соседей или друзей, сделать пробный запил своими руками, или посмотреть видео, например:
Какой вариант дверной коробки выбрать
Межкомнатные двери фабричного изготовления зачастую выпускаются и продаются с комплектом дверной коробки стандартной ширины в разобранном виде. Такой вариант избавляет вас от необходимости подбирать ширину коробки своими руками, но гарантий, что дверная коробка собрана правильно, нет. Поэтому зачастую дверь необходимой ширины покупается отдельно, а доска или плиты ДВП-МДФ отдельно. Стандартные размеры дверных коробок – толщина и ширина дверей приведены в таблице:

Кроме того, при выборе размеров материала для постройки лутки необходимо учитывать, что толщина дверной коробки межкомнатной двери – величина стандартная, а вот стены по ширине даже в пределах одной квартиры могут сильно отличаться. Поэтому по каждой межкомнатной двери приходится проверять ширину дверного проема, составлять свой паспорт с размерами и при необходимости покупать доборные элементы, позволяющие расширить по ширине лутку двери до ширины стен.

Для изготовления лутки или дверного короба нужной ширины чаще всего используют:
Если у вас есть выбор, используйте для сборки дверной коробки профилированные доски из хвойных пород древесины. Такой материал обладает хорошей обрабатываемостью, высокой прочностью,и не набирает влагу, как прессованные материалы из бумаги и древесных волокон.

К сведению! Саморез, ввернутый в древесину по правилам, обеспечит 100% прочности соединения, аналогичный крепеж для прессованной бумаги обеспечивает 30% расчетной прочности крепежа.
Кроме того,коробка из сосны позволит ставить более тяжелые двери, например, из МДФ, стекла или массива древесины. Древесно-волоконные материалы подойдут только для самых легких картонных конструкций.
Ставим дверную коробку стандартной ширины
Наиболее популярным размером межкомнатных дверей считается высота полотна в 200 см при ширине 80 см. При желании можно подобрать и установить дверную конструкцию шириной 85 и даже 90 см. Но в этом случае из-за увеличенной ширины вертикальную стойку с навесами приходится изготавливать из доски 35-40 мм, устанавливать усиленные навесы, либо увеличивать их число до трех штук.
Собираем коробки двери
Коробка дверного блока состоит из трех основных частей:
- Притворная часть коробки или замочного бруса. Это один из вертикальных брусов, в который монтируется ответная планка дверного замка;
- Навесная часть – брус, который через петли воспринимает и удерживает вес дверей;
- Притолоки или верхнего поперечного бруса, соединяющего вертикальные стойки.
Если двери получаются достаточно тяжелыми или большой ширины, в коробку дополнительно устанавливают порожек. В противном случае для межкомнатных конструкций обычной ширины больше подойдет П-образный вариант лутки.
После обмера дверного полотна рассчитывают реальный размер коробки, ее ширину и высоту. Просто взять и обшить двери по контуру нельзя, в этом случае полотно просто не будет открываться и закрываться. Поэтому к измеренным габаритам приходится добавлять ширину зазоров, как на приведенной схеме.

До нарезки вертикальных и горизонтальных элементов коробки необходимо определиться со способом соединения досок или бруса в одну конструкцию. Наиболее прочным и простым в изготовлении является стык по типу шип-паз. Для этого вырезают две заготовки вертикальных стоек- навесной и притворной частей. К расчетной длине стойки необходимо добавить удвоенную толщину заготовки. Аналогичным способом размечают и вырезают притолочный брус. На притолоке с помощью дрели и ножовки с обоих концов вырезают шипы, на вертикальных стойках по готовым шипам притолоки размечают и режут ответную часть в виде пазов. Порожек изготавливается аналогично.

Если ширина стены больше толщины короба, доски наращивают доборными элементами, как на схеме.

Если ширина проема в стене больше размера короба, в этом случае на наружную часть лутки, со стороны петельного или навесного бруса нашивают дополнительный брусовый отрезок, как на схеме. Если ширина проема слишком велика, аналогичным способом дополняют и притворную часть короба.

Сбоку лутки выполняют на уложенном в горизонтальном положении полотне двери. После подгонки всех частей и выравнивания углов короба стыки проклеивают и соединяют столярными саморезами. Чтобы сохранить полученную геометрию лутки, конструкцию обшивают деревянными планками – распорками, аккуратно снимают с дверного полотна и устанавливают в дверной проем.
Установка дверной коробки
Лутка будет установлена правильно, если каждое перемещение или выравнивание контролировать с помощью строительного уровня. Из-за малой жесткости конструкция «играет», поэтому сразу после монтажа проем короба слегка расклинивают тонкими деревянными брусочками. Чтобы не произошло выдавливания боковин и потолочного бруса внутрь каркаса, используют пару деревянных распорок, как на фото.

Коробку предварительно выравнивают по показаниям уровнемера и делают засечки на стенах, в дальнейшем они помогут быстрее восстановить прежнее положение лутки. Деревянную конструкцию крепим к стене с помощью длинных саморезов, для тяжелых дверей можно использовать анкерные крепления.
На притолоке и вертикальных стойках электродрелью сверлим по два тонких отверстия, на 0,5 мм меньше диаметра самореза. Далее убираем лутку, по отметинам сверла на стенах пробиваем отверстия и устанавливаем дюбеля под 6-ти миллиметровые саморезы.
rusolymp.ru
Дверная коробка: размеры типовые и нестандартные
Высота, ширина и толщина дверного проема – стандартные его размеры – регламентированы в СНиП, и могут различаться в зависимости от материалов, из которых изготовлены стены. Также толщина дверной коробки зависит и от материала самих дверей – металлические они или деревянных. В домах старого фонда и новостройках эти размеры могут существенно отличаться сами по себе, а бывает и так, что сами жильцы решают сделать ремонт и установить нестандартные двери.

Каковы стандарты
На основе параметров среднестатистического человека, разработаны стандартные параметры на входные и межкомнатные двери, чтобы использование их было комфортно и не представляло никаких трудностей в передвижении.
При этом должны соблюдаться допустимые расхождения в параметрах стен, ведь размеры на входные и межкомнатные конструкции различаются.
Стандартными параметрами являются:
- Высота должна быть в переделах 2 метров. Металлические это двери или нет – неважно: размер взят из стандартного роста человека из тех соображений, что он должен свободно под ней проходить. Еще одна причина установки такого стандарта – это высота потолков.
- Ширина входной и межкомнатных дверей имеет различные параметры. У входной этот показатель увеличен и варьируются в переделах 80-100 см. Золотой стандарт – 90см, а у межкомнатных 70-80 см, но при этом обязательно учитываются габариты людей, что будут проживать в доме.
При проектировании здания учитываются стандартные нормативы СНиП для установки габаритов дверных проемов. В кирпичных зданиях ширина составляет 1,76 – 0,63 м, в монолитных 1,75 – 0,62, а высота 2,25 – 1,87м.
Так как дверные коробки большинства производителей рассчитаны на толщину стены в 12,8 см, приходится создавать откосы в капитальных стенах. Толщина стены никак не регулируется нормативами, поскольку не представляет собой основную характеристику и нет никакого единого стандарта для толщины перегородок между комнатами.

Как делать расчеты
Метод подходит под металлические и другие двери. Для вычисления берется формула:
Ширина = полотно + 26 мм + левый, правый каркасный брус;
Высота = 38 мм + створка + брус коробки.
Стандартные размеры короба для межкомнатной двери: 2100 мм – высота; 70 мм – ширина; 30 мм – толщина.
Тут возможны незначительные расхождения в зависимости от производителя.
Когда нужно заказать двери, следует узнать точные параметры дверного проема для определения ширины коробки вместе, а также определить необходимость доборов.
Нестандартные параметры
Очень часто владельцы помещений принимают решение изменить стандартные размеры дверных проемов для того, чтобы придать жилищу и интерьеру больше индивидуальности и изыска.
- Входные. Металлические чаще делаются типовыми, а для эксклюзивных деревянных, владельцы никогда не откажутся увеличить габариты дверного проема, когда это позволяют параметры здания – сместить его или раздвинуть. Если ширина увеличивается до 120-150 см, как правило, производится монтаж двойной двери. Увеличение параметров высоты производится обычно для установки дополнительных вставок над полотном.
- Межкомнатные. Их можно как увеличивать, так и уменьшать. Для таких помещений, как кухня и гостиная, принимается решение в пользу увеличения дверных проемов. Особенно это актуально для установки раздвижных дверей. Для санузлов они обычно сокращаются.
При изменении параметров дверной коробки нужно учитывать увеличение высоты пола.
На это буду влиять такие факторы:
- Покрытие пола ламинатом. Значения при этом меняются в пределах 1,5-2 см;
- Линолеум меняет значения в пределах 0,5-1 см;
- Пробковый пол, керамогранит и кафель – 3-5 см.
Советы по выбору дверного короба при нестандартном проеме
Существует свод правил, которые значительно упрощают задачу подбора правильного дверного короба для нестандартных проемов.
Когда меняются стандартные параметры, нужно учесть параметры пространства под короб, деревянную балку и всех прочих элементов крепления. Высота чистового пола должна быть учтена, а в случае, когда заказано покрытие, необходимо учесть какие расхождения при этом произойдут.
Наглядно про размеры и замеры на следующем видео:
Также надо учесть толщину элементов дверного короба, все возможные щели между стенами, косяками. Это необходимо, чтобы произвести в дальнейшем корректировки.
Ширина полотна всегда меньше чем проем на входные двери в пределах от 10 см.
Обязательно нужно учесть высоту для установки порожка, даже если это металлические двери – он тоже потребует некоторое пространство, которое тоже нужно учесть при измерении параметров для выбора дверной коробки. Если предполагается выделение отдельного входа и его утепления, то сильно уменьшать проем не рекомендуется. В этом случае требуется установка ступеньки.

Если высоты проема недостаточно, но все равно необходимо выделить отдельный вход с утеплением, то иногда с идеей установки ступеньки нужно распрощаться. Тут необходимо использовать индивидуальный подход.
Даже когда производится полная перепланировка помещения, нужно соблюдать ГОСТ стандарты, чтобы происходило правильное распределение нагрузок на стены.
golddveri.ru
стандартная дверная по высоте и ширине
Известно, что мебель бывает стандартных и нестандартных размеров. В первом случае легко найти подходящие предметы и легко их отремонтировать. Да и цена их более доступна, поскольку производство не требует настройки оборудования. Во втором случае подобрать изделие с подходящими параметрами значительно сложнее, а изготовление на заказ обойдется дороже.

Какие коробки бывают?
Толщина дверной коробки межкомнатной двери относится именно к таким параметрам.
Возникновение стандарта
Появление стандарта для любого изделия связано с несколькими факторами. Для кухонной мебели, это, например, эргономичность и габариты кухонной техники, для книжного шкафа – размеры книг, которые вполне стандартизированы. Дверные проемы тоже делают исходя из определенных правил:
- ширина проема не может быть менее 60 см. Иначе пользоваться им будет практически невозможно;
- тот же параметр для одностворчатой конструкции не может быть более 120 см, так как в этом случае полотно будет иметь чрезмерную массу;
- высота, как правило, ограничивается 2100 см, причем встречается и ниже, поскольку в СССР строили дома с очень низкими потолками;
- материал стены практически не влияет на толщину коробки, а вот толщина полотна значение имеет;
- учитывается при разработке рамы материал полотна. Как правило, раму и полотно изготавливают из одного и того же материала, так что соответствие веса здесь соблюдается. А вот при замене изделия необходимо учитывать эту особенность.

Размерные параметры
В магазине или при изготовлении на заказ, как правило, предлагается модель вместе с коробкой. Причем при выборе габаритов внимание обращается именно на общие размеры. Замеряют габариты всего блока, прибавляют по 1,5 см и получают те параметры проема, которые нужны для установка двери.
Если речь не идет о капитальной стене с очень большой толщиной, то подогнать размеры проема под габариты полотна в раме проще и, в конечном итоге, дешевле, чем заказывать под проем изделие.
В среднем коробка прибавляет к полотну по 70 мм по периметру. Стандартные размеры коробки коррелируют с параметрами самой створки следующим образом.
Размеры коробок межкомнатных дверей: ширина, высота и толщина.
| Межкомнатная дверь | Дверная коробка | ||
| Высота, мм | Ширина, мм | Высота, мм | Ширина, мм |
| 2000 | 600 | 2071 | 671 |
| 2000 | 700 | 2071 | 770 |
| 2000 | 800 | 2071 | 870 |
| 2000 | 900 | 2071 | 970 |
| 2000 | 1202 | 2071 | 1272 |
| 2300 | 900 | 2371 | 970 |
| 2300 | 1402 | 2371 | 1472 |
| 2300 | 1802 | 2371 | 1872 |
Последние 2 варианта предполагают наличие 2 створок, хотя бы узкой неактивной и широкой активной.
- Какая толщина коробки межкомнатной двери подойдет, зависит от величины стены. Толщина стены проема в большинстве зданий равна 75 мм. Соответственно, стандартная толщина коробки межкомнатной двери составляет 75 мм. Очень редко встречается величина в 95 мм, а еще реже – в 65 мм.
Если стена отличается очень уж нетиповыми размерами, то прибегают к специальным приемам. Например, при большой величине проем перекрывают с помощью расширителя – откоса иди добора. А если стена слишком узкая, то допускается даже распил рамы, лишь бы она могла удерживать полотно. На фото – оформление проема с откосами.

Рассматривать параметры комплекта, а не полотна намного удобней за счет того, что в готовом блоке предусмотрены зазоры на свободное открывание створки и для установки фурнитуры. Если же раму подбирают отдельно, зазоры необходимо учитывать самостоятельно, причем их величина зависит от материала полотна.
Материалы
Лучше всего если весь дверной блок изготовлен из одного и того же материала. Во-первых, один и тот же материал реагирует на изменение температуры и влаги одинаково. Во-вторых, изнашивается материал примерно одинаково, что не вызывает эстетического диссонанса.
На размеры коробки межкомнатных дверей по толщине этот параметр не влияет, однако при необходимости использовать расширители значение приобретает.
- Массив дерева – дорогой и красивый материал, пользующийся неизменной популярностью. Однако массив заметно реагирует на сырость.

- МДФ– наиболее популярный материал. От дерева его выгодно отличается постоянство размеров: под действием температуры или сырости полотно не меняется. МДФ может иметь разное покрытие, что как удорожает, так и удешевляет стоимость изделия:
- шпон – срез натурального дерева. Такой вариант от массива не отличить, а стойкость к сырости у нее более высокая;
- экошпон – многослойный пластик, в точности воспроизводящий цвет и фактуру древесины. Экошпон отличается очень высокой износостойкостью, благодаря чему его рекомендуют использовать в публичных местах;
- меламиновая пленка – обычное покрытие для материала, воспроизводит цвет, но не структуру древесины.
Смотрите также:
dvernoigid.ru
Стандартная ширина и толщина дверной коробки межкомнатной двери
Ремонт, особенно капитальный, сложный процесс. Необходимо заранее продумать многие моменты, чтобы потом не пришлось переделывать, подгонять. Одним из важных элементов при монтаже дверного блока квартиры, является ширина дверной коробки межкомнатной двери. Для этого, чтобы дверь установить, нужно подготовить нужных размеров проем в стене. Остановимся на вопросе, как правильно рассчитать ширину проема, коробки и дверного полотна. Это важно, с точки зрения нормального функционирования двери в целом.

Схема с размерами дверной коробки межкомнатной двери
Вернуться к оглавлениюСодержание материала
Основные параметры дверного блока
Большинство производителей при серийном производстве двери, коробки, наличников ориентируются на принятые в данной стране стандарты. Они отражены в ГОСТах (ГОСТ 6629-88) и строительных нормах и правилах (СНиП). Стандарт подходит для домов, которые строят, опираясь на эти нормы. Но они носят скорее общий рекомендательный характер.
Среди многообразия проектных решений, далеко не всегда можно выдерживаются стандартные размеры толщины стен, особенно это характерно для монолитно-каркасного строительства. При модной сейчас свободной планировке, заказчик сам выбирает, какую дверь, соответственно ширину проема, он хочет сделать.
В этом случае, нужно быть готовым к тому, что если выбранная ширина не соответствует нормативам, дверной блок придется заказывать индивидуально. Естественным стоить будет он дороже, сужается выбор готовых дверных блоков.

Чертеж и эскиз дверной коробки
Проблема нестандартных проемов часто возникает при реконструкции старых домов, особенно с большой высотой потолков, к примеру, в «сталинках». Необходимо будет либо подгонять проем до стандартов, либо тоже заказывать двери индивидуально.
Вернуться к оглавлениюСтандартная ширина проема, коробки, дверного полотна
Несведущие люди часто путают понятия «ширина дверного проема» и «ширина коробки». На этот момент нужно обратить внимание, так как это может привести к тому, что придется менять приобретенный комплект дверного блока.

Таблица размеров дверного полотна
Основные термины и обозначения:
Проем.
- Ширина — расстояние между боковинами прорезанного в стене отверстия для установки коробки.
- Высота — измеряется от пола до окончания этого проема.
- Глубина — толщина стены в проеме.
Коробка.
Представляет собой рамочную конструкцию, в которую монтируется дверь.
- Ширина — расстояние между стойками.
- Высота — длина стоек.
- Глубина — ширина бруса стоек.
Дверное полотно.
Вернуться к оглавлениюСтандартное полотно имеет прямоугольную форму. Соответственно размеры прямоугольника и будут шириной и высотой, а глубина толщиной двери.
Нормативные размеры
Существует несколько стандартов, которых стараются придерживаться строители. При их соблюдении проблем с установкой дверного блока не возникает.
Стандартные размеры дверного полотна
Основные нормативы:
- Ширина дверного проема должна быть на 70 мм больше ширины полотна дверей. Это нужно для того, чтобы оставалось пространство для установки дверных полотен и их функционирования: 20 мм со стороны петель, 40 мм с открывающейся стороны.
Схема конструкции коробки и дверного полотна
- Зазоры по периметру от дверной коробки до монтажных размеров проема должно составлять от 50 мм до 100 мм (для больших размеров дверей). Это так называемые монтажные зазоры, которые дают возможность правильно установить и выровнять дверную коробку. Сюда входит и толщина короба, стандартная 25 мм, если эта величина больше, то минимальный монтажный зазор должен составлять 100 мм.
Чертеж дверной коробки с зазорами
При монтаже короба его выставляют по уровню и заклинивают с помощью распорок из щепы бруса. Затем щель запенивают. Вовнутрь коробки тоже ставят распорки, так как пена, расширяясь, может выдавить стойки и перемычки.
- Определяя высоту короба, необходимо учитывать порог, в этом случае коробка должна быть выше на 80 мм. Без него — на 50 мм. Дверь в этом случае на 25 мм должна быть установлена выше на 25 мм от пола и горизонтальной верхней планки короба. Стандартная высота дверного полотна 2 тыс. мм, 1900 мм.
Основой для расчета станет дверное полотно. Стандартная ширина размера дверей: 600; 700; 800; 900 мм.
Приведем пример расчетов короба:
Дверное полотно 80 см / 800 мм по ширине и 200 см / 2 тыс. мм по высоте.
Ширина дверной коробки: 800 + 70 = 870 мм
Высота: 2000 + 80 / 50 = 2080 /2050 мм
Воспользовавшись таким несложным расчетом, вы без труда получите правильные размеры всех составляющих дверного блока. Такой несложной формулой пользуются при расчете и нестандартных размеров полотен.
Таблица типовых размеров дверных проемов
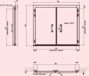
При расчете металлической входной двери используют те же правила, только минимальное расстояние от короба до проема должно составлять не менее от 150 до 200 мм, учитывая ширину коробки. Эти же параметры рекомендованы для установки двухстворчатых дверей. При монтаже тяжелых бронированных дверей приходится усиливать проем металлом. Расчет в этом случае должен быть особенно тщательным.

Проект и чертеж с размерами двухстворчатых дверей
Отдельно стоит остановиться на деревянных полотнах, стандартных и изготовленных по индивидуальному заказу. Большая часть дверных блоков из массива имеют более толстые стенки короба. Особенно это касается широких дверей на 800; 900 мм, двустворчатых конструкций. Мастера изготавливают массивные коробки, чтобы усилить каркас. К тому же такой короб гармонично сочетается с тяжелым деревянным массивом. Этот момент следует учитывать при расчете дверного проема.
Вернуться к оглавлениюКак поступить если ширина короба не соответствует габаритам проема
Когда проем меньше нужных габаритных размеров, то в этом случае его просто расширяют. В зависимости от материала стен используют разные методы:
- В бетоне сначала проделывают перфоратором отверстия по периметру, потом намечают деформационный шов и выбивают часть стены.

процесс расширения дверного проема
- Для того чтобы демонтировать часть кирпичной кладки лучше установить страховочные распорки из дерева, чтобы кирпич не начал сыпаться. Выбить аккуратно часть кирпичной кладки. Затем переложить ее на цементный раствор и отштукатурить.
- Если стена смонтирована из гипсокартона на профиль, то убирают одну из стоечных планок, предварительно подрезав плиту ГКЛ. Устанавливают новую стойку по нужным размерам и снова зашивают гипсом.

- Проще всего со стеной из гипсовой плиты. Ее просто подрезают и убирают часть.
Смотрите в видео: правила замера дверных проемов перед покупкой межкомнатных дверей.
В том случае, когда проем больше, его наращивают. Проще всего это сделать при помощи гипсокартона, установленного на перегородочный профиль. Дополнительно периметр часто усиливают брусом. Нужно отметить, что ширина дверных коробок межкомнатных дверей, соблюдения правильных монтажных зазоров, имеет весомое значение при установке дверного блока.svoyadver.ru
Размер дверной коробки для двери 80 см
Построй свою мечту!
Размер дверной коробки межкомнатной двери: стандарты, пример расчёта
Прежде чем заняться отделкой пола и стен следует не забывать, что в любом случае придется устанавливать такой важный элемент всякого интерьера, как межкомнатную дверь. Чтобы не оказаться в ситуации, когда придется дорабатывать отделку стен, либо ждать изготовления межкомнатных нестандартных дверей на заказ (а они обходятся почти в полтора раза дороже стандартных), нужно сразу определить размер дверной коробки межкомнатной двери, который вам подойдет.
Какие могут быть стандарты?
Для начала следует оценить состояние рынка на предмет разнообразия представленных межкомнатных дверей, а также их производителей. Межкомнатные двери отечественного и импортного производства по большей части обладают стандартными размерами: при ширинах 60 см, 70 см или 80 см высота составляет 200 см. Иногда встречаются производители, предлагающие в качестве стандарта ширины 55 см или 90 см при высоте 190 см. Толщина самих коробок для дверей может колебаться в пределах 15-40 мм. Эти данные окажутся очень важными, когда придет время определить размер дверной коробки межкомнатной двери. Если вы не обратили должного внимания на эти параметры при покупке, то запросто можете столкнуться с неприятной ситуацией, когда дверной блок просто не помещается в проем в несущей стене. Это потребует расширения проема, которое далеко не всегда возможно принципиально из-за планировки квартиры или конструктивных особенностей несущих стен.
Как определить размер дверного проема
Для того чтобы это сделать, необходимо уточнить некоторые размеры и решить, требуется ли наличие деревянного порога. Нужно определить:
- Желаемую высоту и ширину полотна двери.
- Ширину и толщину используемой дверной коробки.
- Ширину деревянных наличников.
Пример расчета
Предположим, что выбрано полотно двери с размером 80х200 см с коробкой толщиной 2,5 см. Для расчета проема двери нужно к ширине двери добавить толщину коробки, находящейся по обе стороны полотна, не забывая про монтажный зазор между ними, а также блоком двери и дверным проемом (с каждой стороны по полтора – два сантиметра). Складывая эти величины, получим 88 см, что будет практически идеальной шириной проема двери, в который поместится большинство дверей, предлагаемых производителями.
Аналогично рассчитывается и высота, учитывающая высоту порога в один — два сантиметра. Для дверей без порога получается высота 205 см, а с порогом – 208 см. Такая высота также идеальна, и в такой проем войдет большинство производимых дверных коробок. Получается, что при размерах полотна 80х200 см потребуется проем 88х208 см.
В типовых домах толщина дверного проема составляет 7,5 см. Поэтому, большинство продаваемых коробок имеют именно такую толщину, что следует учитывать при подготовке проема. Если из-за большей или меньшей толщины стен выдержать данный размер не удается, то появляется необходимость монтажа расширителя коробки (откоса или добора), возможен также продольный распил коробок при наличии тонкой стены.
Поделиться этой статьей в социальных сетях
Прежде чем заняться отделкой пола и стен следует не забывать, что в любом случае придется устанавливать такой важный элемент всякого интерьера, как межкомнатную дверь. Чтобы не оказаться в…
” data-url=”http://krutostroi.com/247-razmer-dvernoy-korobki-mezhkomnatnoy-dveri-standarty-primer-rascheta.html” data-image=”http://krutostroi.com/wp-content/uploads/2015/04/1430335946_razmer_dvernoj_korobki_mezhkomnatnoj_dveri_1-300×200.jpg” data-title=”Размер дверной коробки межкомнатной двери: стандарты, пример расчёта”>
Как установить коробку для межкомнатной двери
Коробка для межкомнатной двери представляет собой неподвижную основу из деревянных стоек и перекладины, на которую крепится дверная створка при помощи петель. Перед покупкой необходимо знать какой толщины и ширины должна быть данная конструкция. К тому же нужно учесть, будете вы собирать ее из своих пиломатериалов или купите готовые детали в комплекте с дверным полотном. Более подробно о сборке коробки для межкомнатной двери, вы узнаете из данной статьи и просмотрев ознакомительное видео.
Как рассчитать параметр дверного проема
Перед тем как установить дверную коробку, нужно рассчитать параметры проема: ширину, толщину, высоту. Размеры дверного проема, будут зависеть от размеров межкомнатной двери. Для начала определяемся с ее размерами. Производители предлагают размеры дверного полотна высотой 200 см, а шириной от 60 до 90 см. При этом ширина коробки получится больше створки на 7 см, а высота на 4,7 см. Толщина стандартных коробок 25, 40 и 60 мм, но эти цифры могут меняться в зависимости от производителя. Например, для дверного полотна, размером 60 х 200 см, коробка будет иметь габариты 67 х 204,7 см.
Внимание! Лучше всего выбирать толщину дверной коробки равную толщине проема. Иначе придется устанавливать расширитель или отпиливать ее вдоль.
Например, чтобы рассчитать дверной проем для полотна шириной 80 см и толщиной 4 см, нужно прибавить к 80 толщину коробки и монтажные зазоры (1,5-2 см), не забывая, что они имеются с каждой стороны. Расчет дверного проема (Шдп) для дверного полотна шириной 80 и толщиной 4 см:
Шдп=80+4+4+1,5+1,5= 91 см

Схема установки двери
Высота рассчитывается как сумма высоты двери, плюс высота порога, толщина коробки и монтажного зазора. Обычно пороги делают только для входных дверей, поэтому для расчета межкомнатных, этот показатель можно не учитывать.
Монтаж коробки
В целях экономии можно купить только дверной полотно, а коробку установить самостоятельно. Процесс сборки состоит из следующих операций:
- Полотно двери укладываем на ровное горизонтальное место и обкладываем его деревянными брусками. В торцы, между притворами и дверью, укладываем листок картона, чтобы создать зазор. Затем выравниваем торцы брусьев и верха двери.
- Прикладываем к торцам стоек верхний горизонтальный брус. Выравниваем его по одной стороне, а по краю другого карандашом отмеряем длину планки. Излишки отпиливаем лобзиком или ножовкой. А затем на внутренней части делаем разметку притворной части.

Устройство дверной коробки
- Далее на отмеченной зоне делаем распилы, используя ножовку для металла, для того чтобы срез был аккуратным. Обрабатываем место среза стамеской или ножовкой.
- После этого можно просверлить отверстия в перекладине и прикрутить ее саморезами к вертикальной стойке.
Внимание! Данная технология сборки коробки, пригодна только для тех дверей, у притворов которых прямоугольное сечение. Для сложных сечений стойки и перекладины должны быть запилены под 45°.
- Затем отмечаем расположение петель. Навесы необходимо устанавливать на расстоянии 20 см от верха и 21 см от низа. Прикладываем петли к брусу и обводим их по контуру карандашом.
- При помощи фрезерной установки или стамесок делаем платформу для крепления петель и посадочное место под нижнюю дверную петлю. Навешиваем их на стойки при помощи саморезов.
- Измеряем длину проема и отмечаем данное расстояние на стойках, излишки нужно отпилить.
- Теперь можно приступить к установке конструкции в проем. Для этого аккуратно поднимаем коробку с пола и устанавливаем его на место. Если она не вписывается в отверстие, то ее положение можно отрегулировать при помощи деревянных колышков.

Установленная дверная коробка
- Уровнем или отвесом, проверяем горизонтальность верхнего бруса, перпендикулярность стоек и вертикальность самой коробки. После этого, ее можно закреплять дюбелями к откосам.
- Если коробка прочно встала в проем, можно извлечь временные колышки и распорки и отпилить выступающие части клиньев.
На этом монтаж дверной коробки готов. Остается прикрутить петли, навесить дверное полотно и установить наличники. При небольшом опыте столярных работ и терпении, можно сэкономить деньги на установочных работах, главное правильно сделать все замеры и придерживаться инструкции.
Как собрать дверную коробку: видео
Дверная коробка своими руками: фото







Размеры дверного проема: общепринятые стандарты и примеры вычисления габаритов дверей
Видео об установке дверного блока в сруб
Стандарты дверей и проемов
В пользу приобретения сделанных на заводе дверных блоков выразительно «глаголет» не только выдающаяся цена, голос которой перейдет с мягкого шепота на истошный крик при приобретении доборов, уплотнителей и фурнитуры.
- Заводские дверные блоки полностью укомплектованы и подготовлены к монтажу. Владельцам бань остается их лишь установить в соответствии с прилагаемой инструкцией.
- Сделанные на заводе дверные коробки и полотна, подобранные с ориентацией на условия эксплуатации, не будут деформироваться в условиях интенсивного парообразования.
- Предоставляются гарантии, некачественную продукцию можно без проблем поменять.
В случае замены в процессе очередного ремонта стандартный размер дверного проема предоставит возможность быстро найти и купить аналогичное изделие. Да и сама установка не потребует ни сверхчеловеческих усилий, ни особого мастерства, ни опыта.
Различия зарубежных и отечественных дверей
Владельцам бань сейчас предоставляется возможность обустроить сооружения изделиями российских, белорусских или украинских производителей или купить дверную конструкцию, выпущенную на испанской, итальянской или французской фабрике.
Регламентируют габариты дверей и соответствующие им размеры дверных проемов гост за номером 6629-88, СНиПы и DINы с номерами от 18100 до 18102. Разница в значениях ширины, высоты дверей и проемов незначительная, так как все нормативы ориентированы на среднестатистические физиологические параметры пользователей, но об учете специфики страны-производителя не следует забывать при расчете проема:
- Высота дверного полотна обычно варьирует вокруг двухметрового роста. Это 2000 мм ± 100 или 150 мм.
- Ширина полотна заводской одностворчатой двери отечественного производства от 600 до 900 мм. Зарубежные производители по данному параметру с нашими солидарны. Только французы выпускают полотна с шириной меньше на 1 см (89 см, 79 см и т.д.).
Толщина выпущенных в СНГ дверных конструкций рассчитана на традиционную мощность стен 75 см. Для увеличения и уменьшения ее разработаны специальные схемы. Если они не предусмотрены изготовителем, нужно будет докупить и установить доборную планку.

Обратите внимание, что максимальная толщина фабричного дверного блока 128 мм. Если нет денег и желания устанавливать дополнительный добор на излишне «толстые» стены, можно обналичку проема сделать лишь с лицевой стороны, а с обратной сделать откос или установить самоклеящийся нащельник.
Принципиально на выбор двери и расчет под нее проема толщина не влияет. Важны базовые показатели высоты и ширины, так называемый дверной просвет, отталкиваясь от которого вычисляются необходимые величины.
Как выбрать ширину дверного просвета
Если в семье владельца или среди его знакомых нет слишком упитанных людей, не стоит увлекаться широкими банными дверями. Они ведь не будут сохранять тепло так же, как стены:
- Предпочитаемая собственниками загородных бань ширина дверного просвета входной двери в среднем 80 см. Можно и больше с учетом необходимости вносить и менять банную мебель, оборудование.
- Для обустройства внутренних перегородок достаточно дверей с шириной 70 и даже 60 см.
- В парную, санузел и душевую, если они есть, лучше установить двери с шириной 60 см.
Если есть возможность, то для парилки желательно купить специальную дверь из липы, и уже по ее габаритам со скрупулезной точностью рассчитывать размеры проема.
Формула расчета проемов под банные двери
Для того чтобы вычислить размеры дверных проемов, воспользуемся простейшей арифметикой. Высоту дверного просвета банально обозначим литерой В, а ширину Ш. Еще нам потребуется толщина, то есть размер в четверти коробочного бруса. Обычно сторона его равна 25 или 30 мм.
- К ширине полотна прибавим толщину правого и левого бруса, предположим 25 мм + 25 мм. Для того чтобы дверь нормально функционировала, нужно оставить зазоры по притворам. Для свободной работы петель надо прибавить 2 мм, а для замка 4 мм. Потребуются еще технологические зазоры для монтажных швов. Справа и слева по 10 мм. Итого: Ш + 2×25 + 2×10 + 2 + 4 = ширина проема. Значит, к ширине полотна нужно прибавить 76 мм.
- К высоте дверного полотна без порожка прибавим 10 мм. Вверху кроме толщины коробки 25 мм добавим 3 мм и еще 10 мм на зазор для верхнего монтажного шва. Итого: В + 3 + 25 + 10 + 10. Получается, к высоте следует прибавить 48 мм. Высота рассчитывается от плоскости чистового пола.
- К высоте двери с порожком прибавим толщину верхнего и нижнего коробочного бруса, 3 мм на свободную работу двери вверху и 5 мм внизу. Итого: В + 2×25 + 5 + 3. Выходит, что разница между высотой полотна и высотой проема 58 мм.
Желательно, чтобы двери в одном помещении находились на одном уровне, для чего нужно безукоризненно выровнять полы. Если планируется близкое расположение дверей, не забудьте, что для их обустройства потребуется еще и установка наличников.


Особенности формирования проемов в деревянных банях
Их можно формировать в процессе возведения венцов из бревна или бруса. Нужна будет предварительная разметка элементов сруба и выполнение дополнительных пазов для крепления коробок. После чего нужно будет еще выждать время, необходимое для традиционной усадки деревянного строения.
Год-полтора постстроительного перерыва нужно выдержать при любом раскладе. Установка дверных блоков в баню из древесины допустима только по окончании интенсивной усадки.
Намного проще, выдержав требующийся технологический перерыв, выпилить проемы бензопилой по точно выверенной разметке. При использовании этого метода для того чтобы венцы «не разъехались» вдоль вертикальной оси стены делают паз под установку армирующего бруса. Дверную коробку прибивают именно к нему.
Между верхней линией дверного проема и коробкой обязательно следует оставить 3-5 см, так как деревянное строение слегка будет оседать и впоследствии.

Абсолютно несложно рассчитать размеры дверей и дверных проемов. Досконально знающие алгоритм монтажа дверных блоков спецы вычислят все необходимые величины в момент. Неопытным исполнителям несколько сложнее, так как требуется понять, зачем нужен тот или иной зазор.
В случае ошибки в расчетах проем в деревянной коробке несложно исправить. Нужно больше — воспользуемся бензопилой. А вот для уменьшения слишком большого просвета, плотники рекомендуют устанавливать дополнительный короб – контркоробку.
Источники: http://krutostroi.com/247-razmer-dvernoy-korobki-mezhkomnatnoy-dveri-standarty-primer-rascheta.html, http://verydveri.ru/dveri/montazh/kak-ustanovit-korobku-dlya-mezhkomnatnoj-dveri.html, http://stroy-banya.com/okna_dveri/razmer-dvernogo-proema.html
gorodverey.ru
