Самый простой курятник – Как построить домашний курятник своими руками: фото, чертежи, рекомендации
170 фото мини-курятников своими руками
мини курятник своими рукамиСразу после обустройства огорода, у новоиспеченных дачников возникает непреодолимое желание обзавестись какой-то полезной живностью. Помимо собаки, конечно, она хоть и друг человека, но ни яиц, ни молока от нее не дождешься. В общем, самая простая идея, это разводить кур. Проблем с ними немного, а без свежих яиц дачная жизнь будет не полноценной. Первый вопрос, который надо решить – соорудить курятник. А так как опыта разведения кур у начинающих дачников обычно не много, то свою животноводческую деятельность лучше начинать с небольшого количества птицы.
Визуальное меню
Мини-курятники на 3-4 курицы
Выберите курятник
Построить мини курятник на 5 – 10 кур не сложно, например такой образец с домиком и вольером
Переносной мини курятник
Обычные переносные мини курятники могут различаться разве что по конструкции, своим габаритам и способам перемещения. Везде должно присутствовать помещение для наседок, место для насеста и вольер для выгула. В общем, ничего сложного.




Треугольный курятник

Треугольный курятник (пошаговые фото)
Переносной летний треугольный курятник для 3-5 кур (пошаговые фото).
15 фото — гнездо, где куры будут нестись.
12 фото — насест (нашест), где куры будут спать
Источник фото: chriskafer.wordpress.com
А это выгул для такого треугольного курятника. Продолжение
Этот выгул должен получиться очень легким, что бы было легче его переносить по участку, он должен как бы скользить. Ниже представлены пошаговые фото, автор тоже Крис Kafer
Источник фото: chriskafer.wordpress.com
Так же для такого курятника можно сделать автопоилку и автокормушку
Переносной курятник дачный
Естественно, что на даче переносной курятник можно сделать более декоративным, например, украсить цветами или какой-то оригинальной конструкцией.




Мини курятник на колесах
Подумайте!: сможете ли Вы переместить курятник по участку самостоятельно, ведь курочек надо каждые два дня переносить на новый участок с зеленой травой. Следует задуматься над созданием курятников на колесиках, фото которых смотрите в фотогалерее ниже.
Поэтому, чтобы курятник не переносить, можно приделать колесики на раму, тогда он будет передвижной, а не переносной.

Нажмите на любое изображение, чтобы его увеличить
Стационарный курятник
Если вы не планируете расширять поголовье кур, то можно сделать небольшой курятник стационарный.



Необычный курятник
Но воображению дачников нет предела, и если хочется чего-то необычного, то вот несколько вариантов фантазий мастеров.


Оригинальный курятник
А если совсем нет времени заниматься разными постройками, то чего мудрить, куры могут прекрасно пожить в шкафу.

На наш взгляд идеальный курятник на небольшое количество кур (4,5,6,7,8,9,10 и 12 кур) представлен на авторитетном сайте саманка. Есть огромный выгул для курочек, (они любят волю). Предусмотрены насесты, вход для хозяина, для чистки курятника, а так же удобные корзины для яиц, из которых очень удобно собирать яйца.
Источник фото: samanka.ru
Курятник на 9 крупных (12 мелких) кур.

<- Слева фото описание элементов курятника
(нажмите на него, чтобы увеличить)
Этот курятник популярен в Англии, там его можно приобрести в разобранном виде и собрать самостоятельно дома. Фото слева мы нашли на сайте countrysideliving.net, где автор подробно расписал для чего нужен каждый отдельный элемент курятника.
Современный курятник МОДЕРН (на 3-4 кур)
Автор этого курятника Джефф Troutman (слева) и Эрик Миллингер (справа) (1 фото).
Интересная история бизнес успеха:
В 2009 году Джефф в школе дали задание разработать дизайн проект. В поисках идеи ему предложили разработать дизайн курятника. В результате чего был создан уникальный по дизайну курятник, образец которого даже был выставлен в музее «Боулдер Музей современного искусства»!!! Некоторым посетителям музея так понравился курятник, что Джеффу стали поступать заказы на изготовление. Так начался бизнес по продаже курятников.
Детали этого курятника изготавливаются из фанеры, вырезаются на лазерном станке по специальным цифровым макетам. Все детали соприкасающиеся с землей изготовлены из кедра, для долговечности. Все металлические детали оцинкованы.
Курятник имеет два режима: летний и зимний. (ну, это, конечно, для американских условий) Отличаются режим тем, что в зимний период прорези для вентиляции закрываются оргстеклом.
Курятник отправляют покупателю по почте в нескольких пакетах. Есть бумажная инструкция и видео инструкция. Длительность сборки 45 минут. Сборщику нужна только отвёртка.
Источник фото: backyardpoultrymag.com
Неплохой курятник на 3-4 куры, можно держать индюков, кроликов, уток.
Есть просторный выгул, гнездо для яиц с открывающейся крышкой. Так же крыша тоже открывается. Сам курятник не очень тяжелый и вполне может поддаться переноске по участку. Обратите внимание на пол домика, он сделан из гладкой стали и может доставаться, что обеспечивает легкую уборку экскрементов.
Во второй галерее фото инструкции по сборке такого жилища для птиц.
Все размеры указаны в американских величинах, т.е. дюймы, инчи, дроби (любят же они все усложнить).
Источник фото: shopomatic.ru
Эта модель отличается высоким выгулом для курочек. Хозяин легко может войти в вольер. Птицам будет очень удобно играть и размножаться в таком пространстве. С богу имеется лоток для уборки мусора, который делается из гладкой стали. Очень удобно, когда лоток на уровне рук. Это позволяет прочистить или проверить загрязнение курятника, лишний раз не наклоняясь. Так же здесь предусмотрены гнезда для яиц, которые так же расположены на уровне рук.
Такой курятник вполне подойдет для индюшек, кроликов и другой мелкой живности.
Источник фото: shopomatic.ru
Компактный курятник для цыплят.
Подойдет также для нескольких куриц, кроликов, уток, индюшек. Один из минусов это маленькое пространство, но зато легко уместиться даже в небольшом сарае зимой и на хранении не будет занимать много места, после того как цыплята подросли. Есть выгул, гостиная со спальней. Конечно, если этот цыплятник будет стоять ранней весной или поздней осенью, то стоит задуматься об утеплении. Зато конструкция очень легкая, и хозяину (даже хозяйке) не составит труда перенести его на новый зеленый участок травы, после того как цыплята через два дня всю зелень сравняют с землей.
Источник фото: shopomatic.ru
Мини переносной курятник на 10 кур
В таком курятнике может поместиться до 10 взрослых кур несушек. В тоже время легкость конструкции может позволить переносить его по участку. Просторный выгул. Лотки покрываются гладкой сталью и позволяют с легкостью убирать мусор из курятника. В курятник можно войти во весь рост. По бокам гнезда для яйц с открывающимися крышками, что позволяет легко собирать урожай яйц. Так же дополнительная дверь сзади позволит с легкостью проникнуть внутрь курятника. А маленькое регулируемое окошечко под крышей обеспечит циркуляцию воздуха и прокаливаемость курятника.
Источник фото: shopomatic.ru
Курятник с 2 выгулами для 3-5 куриц
В этом домике легко поместиться от 3 до 5 куриц, или с десяток птенцов. Так же в нем можно держать уток и кроликов. Симметричность конструкции позволит хозяевам перетаскивать сооружение по участку равномерно распределяя нагрузку на каждого переносчика, что, кстати, очень удобно!. Так же возможно разделить домик на две части и содержать в каждой половине разную живность, например, куриц и уток.
Источник фото: shopomatic.ru
Курятник на 6-9 кур без выгула
Уютный курятник с 6 гнездами.
Источник фото: shopomatic.ru
100+ фото курятников
Здесь мы собрали все интересные фото курятников, что нашли в интернете.
Нажмите на любое изображение, чтобы его увеличить
Задумайтесь!!!
Построить курятник для 10-15 кур это одно,
Построить курятник для 100-1000 кур это другое
А для бройлеров это уже третье.
Например, для курятника на 1000 кур о зимнем обогреве можно особо не задумываться, так как пришлось бы задуматься для курятника на 5-10 кур. Тут уже надо думать об охлаждении курятника и о серьезной системе вентиляции. Вспомните, как в 2008 году при отключении электричества в Москве погибло несколько десятков тысяч кур при отключении систем вентиляции на птицефабриках!!!
Бройлеров же целесообразно разводить летом, поэтому особые знания в утеплении при этом ни к чему и рассматривается уже только летний легкий переносной курятник.
Поэтому в этой статье мы будет рассматривать строительство курятника с условиями для максимальной яйценоскости на 5-10-15 и 20 кур круглый год
Итак:
Цель: максимальная яйценоскость.
Максимальная яйценоскость – когда куры в комфортных условиях!!!
- Холодно — не несутся
- Влажно – плохо несутся
- Шумно – плохо несутся
- Душно – не несутся
- Мало света — плохо несутся
- Жарко — плохо несутся
- Опасно — не несутся
Задача: Построить такой курятник, который обеспечит максимально комфортные условия для кур.
На 5, 10 или 20 кур следуем сторить два курятника
| Зимний | Летний | ||
| См. 100+ Фото зимних курятников | См. 200+ фото летних курятников | ||
| Когда и какой курятник использовать, или Когда переводить кур в летний, а когда в зимний курятник |
|||
| Температура на улице <7-15 град | температура на улице >7-15 град | ||
| Вообще вопрос не корректный, «когда…?», надо спрашивать, при какой температуре переводить кур в зимний курятник, потому что такая температура (<7град) может и летом бахнуть. Главное, что бы курицы неслись, а при низких температурах они не несутся, и хотя и куры неплохо переносят низкие температуры, держать в летнем курятнике при заморозках нет смысла. | |||
| Как сделать зимний курятник читайте здесь | Как сделать летний курятник читайте здесь | ||
| См. 100+ Фото зимних курятников | См. 200+ фото летних курятников | ||
| Фото снаружи | Фото внутри | ||
О жердях
Прямоугольные жерди нравятся больше круглых.Бытует мнение, что курам нравятся круглые жерди. Это не так. И это легко проверить: если курица спустившись с насеста разминает ступни, значит сидеть ей на такой палке тяжело. С прямоугольными же такого не бывает. Если поставить рядом круглую и прямоугольную жердь, то кур, выбравших прямоугольную жердь, будет больше. |
0.5 м. – расстояние между жердямиЖерди должны быть на одном уровне. Если жерди будут на разных уровнях, то это создаст предпосылки для угнетения сильными курицами слабых!!!, т.к. сильные всегда садятся на верхние жерди «обкакивая» тех, что снизу, слабых. Затем слабых начинают заклевывать. Поэтому, учтите этот момент |
Толщина жерди 4*6 см. |
15-20 см. занимает курица на жердиИсходя из этого надо рассчитывать суммарную длину жердей в курятнике. Летом это расстояние больше, зимой меньше, т.к. курочки стараются прижаться друг к другу поплотнее. |
Пара советов)))
Не надо утеплять курятник, надо сразу строить теплый!
Делайте курятник красивым, проявите креативность, в таком курятнике приятнее содержать кур!!!
Какой должен быть размер курятника

Размеры курятника.
На 1 квадратный метр 4-5 кур. Чем больше курятник, тем этот показатель меньше, тем больше кур приходится на 1 кв. м. Но это не значит, что если у нас 2 курицы, то можно делать курятник в половину кв.м.. Это бред.
Совет: Чем больше курятник — тем лучше куры ладят друг с другом.
Размеры курятника на 50 кур:
На 50 кур надо строить курятник 5 на 4 метра, т.к. 20 квадратных метров вполне хватить для 50 кур. При этом надо позаботиться о вентиляции, т.к. куры в таком количестве могут задохнуться и плохо нестись.
Где разместить и построить курятник
Итак, где разместить и построить курятник
- На возвышенности. Кстати, на многих сайтах пишут, что надо на возвышенности, вообще не важно, можно и в подвале, и в землянке, главное, что бы было сухо и не заливало водой
- В тихом месте! Куры не любят шум, шум — это стресс, научно доказано, что лай собаки может снизить яйценоскость кур в половину, поэтому постарайтесь расположить курятник вдали от собачьих будок и так же автодороги.
- В тени чего-нибудь. Вы должны сделать так, что бы у курочек был обзор на солнце, но в тоже время и что бы у них была тень в летний зной. Например, дерево или стена дома. Советуют выгул расположить рядом с кустарником. А лучше даже одну из сторон сделать густым кустарником, тут три плюса.
- Куры будут в тени
- К курам не проберутся хищники
- Куры смогут копаться в корнях, т.к. в земле с корнями много всяких червячков.
В какие стороны расположить курятник.
- Дверь должна смотреть на восток
- Окна на юг
Ну, вообще, это объясняется следующими соображениями. Дверь должна смотреть на восток, только если на ночь вы её не закрываете, иначе это бессмысленно, ведь весь смысл в том, что бы куры просыпались с первыми лучами солнца. Поэтому при планировании сделайте двери или окна так, что бы куры могли видеть первые лучи солнца, так же могли видеть свет весь день, до заката. Это увеличивает световой день, а значит и яйценоскость.
Выгул
1. Размеры выгула для кур
Должен быть просторным.
Чем больше курица ходит, тем больше яйценоскость!!!
Мне откровенно жалко вот этих куриц . Ну, как можно умиляться этому курятнику, когда курицы даже ноги не могут размять, уж лучше вообще не заводить кур, чем устраивать такое издевательство над животными. Такой маленький курятник вполне подойдет для цыплят бройлеров, это будет просто идеальным вариантом. Сложно сказать, сколько квадратных метров надо на одну курицу, ведь чем больше кур тем меньше места надо каждой, не будет же мы для 1000 кур делать выгул в 1000 метров.
Где лучше размести выгул для кур
- Тень.
Половина выгула в тени, половина на открытом солнце.- Солнце, куры любят ненадолго присесть и расправить крылья под лучами солнца, поэтому какой-то участок выгула должен быть открыт для попадания прямых солнечных лучей
- Тень нужна, что бы спрятаться от жары. Поэтому выгул можно ставить вблизи деревьев, кустарника, стены дома, плотного забора. Или можно просто накрыть какую-то часть выгула шифером или другим светонепроницаемым материалом.
- Безопасность и тишина.
Как мы уже писали, курица хорошо несется, когда чувствует себя в безопасности. Поэтому оградите выгул от проникновения хищников. Под выгул можно вкопать мелкоячеистую сетку или по краям выгула вставить на полметра в землю металлические листы. Ну и опять конечно надо позаботиться, что бы вокруг не было шумности, лая собак и дороги.
Из чего делать выгул в курятнике, форма
Сетка (фото)
Натянуть туннельную сетку по участку для выгула кур.
Освещение в курятнике
Одним из факторов, влияющих не яйценоскость – это освещение
- Продолжительность освещения.
От продолжительности светового дня напрямую зависит то, как будут нестись куры. Где бы что не писали, подумайте сами, что 15 часов то куры должны быть освещены, сами проэкспериментируйте и посмотрите, где куры больше несутся при 8-10 световом дне, как пишут в некоторых источниках или при полном дне в 15 часов?- Советы:
- Используйте реле
- Используйте розетку с таймером, фото.
- Старайтесь вывести окна на запад и на восток, что бы солнце светило в окна как можно дольше.
- Советы:
- Цвет освещения.
Подсветка или искусственный свет должен быть желтого цвета, как солнышко. Такой цвет дают лампы накаливания, но сейчас модно заменять их на энергосберегающие лампы. Так вот в большинстве случаем эти лампы светят холодным белым или вообще синеватым цветом, поэтому многие птицеводы удивляются, почему это куры зимой не несутся, так потому что условия не комфортные для кур, холодно и освещения мало!!! Замена желтого света на белый снижает продуктивность кур на 40-50%!!!! - Чем освещать курятник
Освещать курятник можно- лампами накаливания
- энергосберегающими лампами
- бутылкой с водой в потолке (фото), конечно света не так много, но если куры днем гуляют в выгуле, то такой вариант вполне сгодится, что бы слегка осветить курятник днем и сэкономить электричество.
- инфракрасной лампой
- плюс: дополнительное тепло
- минус: повышенное энергопотребление
Величина окон в курятнике
окна должны занимать 1/5 от площади пола.
Как видите, формула проста, и этого освещения вполне хватить, что бы осветить курятник солнечным светом зимой и сохранить тепло.
Подстилка
- из опилок
самый рекомендуемый материал, легко достать, легко убирать - из соломы
- из сена
- нашесты
это могут нашесты как на этом фото, под которыми можно расположить извлекаемый лист гладкого метала, что бы немного автоматизировать уборку курятника
Кормушки
Размеры кормушки для кур
Размеры кормушки обычно ничем не ограничиваются
Из чего делать кормушку в курятник
- Из дерева.
Традиционно такие кормушки делают для зерна, но сейчас все больше птицеводов делают кормушки из труб ПВХ, читайте абзац про автокормушки - Из пластика.
Такие кормушки целесообразно делать для сырой пиши, например, для толченого картофеля или остатков еды со стола.
Автокормушки
Для повышения яйценоскости у кур постоянно должно быть зерно. Думаю, не надо объяснять почему. Обеспечить это не просто. Если сделать большую кормушку, то куры будут в неё
- залазить,
- испражняться,
- раскидывать клювом зерно (они это любят).
- Привлекает внимание грызунов
Можно сделать вот такую кормушку фото
Авто-кормушки для куриц. Варианты своими руками.
Посмотрите фото ниже, какие интересные кормушки для птиц можно сделать из подручных средств. А ведь из обычных ПВХ канализационных труб!
(На первом фото слева изображены основные три самых простых варианта)
Засыпав один раз в автокормушку зерно, вам не придется беспокоиться об этом неделю или больше в зависимости от размеров автокормушки. Смотрите фото автокормушек.
Автокормушка для треугольного курятника. Пошаговые фото
Рассмотрим создание автокормушки для треугольного переносного курятника, создание которого мы писали выше. Автор фото и разработки Крис Kafer
Такой заправленной кормушки хватит курям на неделю.
1 фото — то, что нам придется купить в магазине для кормушки и деревянный диск
2 фото — в тройник вставлен вставыш, который будет регулировать высоту (уровень) зерна
4 фото — в тройник в дно вставлен деревянный диск, который регулирует нижний уровень зерна.
6 фото — расположение отверстия, в которое поместим нашу кормушку.
7 фото — все в сборе.
Источник фото: chriskafer.wordpress.com
Автопоилки для курятника
Автопоилка из ПВХ труб
Авто идеи и фото Крис Kafer. По его словам куры буквально за пару минут освоили эту поилку, вопреки ожиданиям.
Эта поилка подойдет для любого курятника, мы расмотрим её на примере установки в треугольный переносной курятник, создание которого мы рассматривали выше.
Автопоилка для треугольного курятника, пошаговые фото.
1 фото — соски, которые открываются при нажатии клапана.
2 фото — труба ПВХ со вставленными в неё сосками.
4 фото — опрокинутый курятник со вставленной в него автопоилкой для куриц.
7 фото — курица, которая пьет из автопоилки
novamett.ru
Небольшой курятник — строим сами
Содержание кур сегодня занятие не просто «модное», но и экономически оправданное. Это непыльный способ всегда иметь под рукой свежие, полные витаминов яйца, да и не напичканное гормонами нежное мясо тоже. Для этого совсем не обязательно держать птицеферму. Обеспечить семью продуктами способны и 10 несушек. Главное, создать им комфортные условия, а это невозможно без обустройства уютного «домика» для птиц. Давайте посмотрим, как построить небольшой курятник своими руками.
До начала строительства

небольшой курятник с вольером
«Строить слишком просторные хоромы для скромного количества птиц смысла нет»
Курятник станет тем местом, где ваши кормилицы будут находиться большую часть времени. Тут им придется спать, скрываться от холодов и непогоды, нести яйца, а возможно и высиживать цыплят, так что помещение должно удовлетворять их запросам, то есть, быть правильно построенным. Лучшие курятники получаются из бруса и досок. Строить слишком просторные хоромы для скромного количества птиц смысла нет. Вы не сможете их ни полноценно протопить, ни содержать в идеальной чистоте, да и места лишнего порой на участке нет. Для самостоятельного расчёта оптимальной площади придерживайтесь следующих норм: на одну голову выделяют 0,5 м2. Высоту строения подгоняйте под свой рост. Вы должны свободно входить в помещение и без лишней нагрузки убирать его.
Где поставить курятник
курятник отлично вписывается в ландшафтный дизайн садового участка
Куры – птицы оригинальные. Им нравится тепло и противопоказаны сквозняки, поэтому птичник нужно расположить на хорошо освещаемом, сухом, ровном участке. Не стоит спускать его в низину, так как там всегда будет сыро. Горка тоже не лучшее место. Курочкам там будет слишком ветрено. Оптимальным решением станет строительство курятника на небольшой возвышенности, тогда даже в проливные дожди вода будет быстро уходить.
Пространственно-ориентационные особенности

небольшой переносной курятник
Кому-то это может показаться смешным, но такое строение как курятник очень важно сориентировать по сторонам света. Если его архитектура планируется в прямоугольной форме, то длинные стены должны вытянуться с запада на восток. Нужно позаботиться о том, чтобы окна заняли южную часть здания, а дверь открывалась на восток. Чем длиннее будет световой день, тем лучше будут нестись куры. Если к курятнику предусмотрена пристройка в виде вольера, то ее также нужно выносить на южную сторону.
Планировка площадей

такая форма крыши курятника позволяет собирать дождевую воду
О том, как рассчитать площадь, мы уже говорили, так что сразу перейдем к основным помещениям. Если курятник планируется использовать круглогодично, то обязательно стройте тамбур. Он станет дополнительным элементом утепления помещения. Благодаря его наличию, холодный воздух не будет напрямую идти к птицам.
Правильно рассчитайте площадь вольера. Для выгула курицы требуется не больше пары квадратных метров земли. Десяток птиц будут привольно чувствовать себя в загородке 2х7 метров.
Покой

обустройство места для несушек
Куры – птицы пугливые. Они нервничают по любому поводу, поэтому поблизости курятника нельзя строить зоны под активный отдых, детские площадки. Хорошей идеей станет защита территории выгула птиц живой изгородью.
к оглавлению ↑Начинаем строить
«Начинать строительство будет правильнее с составления чертежа будущего места жительства птиц»
Если вы задумываетесь над тем, как построить небольшой курятник своими руками с минимальными затратами, возьмите в качестве стройматериала четырехкантный брус. В идеале его размеры должны быть100х150мм. Работа с таким материалом не потребует профессиональной сноровки.
курятник с окнами и просторным вольером
Начинать строительство будет правильнее с составления чертежа будущего места жительства птиц. Так вы сможете точно рассчитать, что и в каком количестве вам для этого понадобится. Далее прикиньте примерный вес постройки и выберите тип фундамента.
Фундамент
Иногда можно видеть, что курятники стоят прямо на земле. Это неправильный подход. Сырой и холодный грунт станет причиной многих проблем. В таком птичнике никогда не будет тепло, зато от паразитов, грызунов и насекомых отбоя не будет.
пример стоечного фундамента
Основательный котлован под заливку не нужен. Достаточно углубиться в землю на 35 см. Его дно засыпаем десятисантиметровой песчано-гравийной подушкой, после чего устанавливаем, сколоченную из подручных досок, опалубку. Из восьмимиллиметровых арматурных прутьев сооружаем сетку-каркас, на которую и будет заливаться бетон марки М-300.
На застывание полученной площадки потребуется практически три недели и их непременно нужно выждать.
Нюанс

деревянный курятник с двухскатной крышей
Если вы хотите вместо фундамента поставить курятник на монолиты или столбцы, то обязательно поставьте ограждение по периметру. Используйте для этого железные листы. Для чего?
Экономическая выгода. Столбцы из старого кирпича сделать гораздо дешевле, чем заливать полноценный фундамент. В крайнем случае, можно вообще воспользоваться обычным камнем. Основными расходными статьями для такой основы станут:
- Цемент.
- Гравий.
- Мастерок.
- Песок.
Защита. Хорькам, куницам и другим любителем мяса и яиц будет сложно пробраться в курятник через такой заслон, плюс под половой поверхностью появится дополнительный источник вентиляции, что станет отличной профилактикой гниения деревянного напольного настила.
небольшой летний курятник, размещенный у забора
Полы
Для напольного покрытия надо использовать натуральные материалы высокой прочности. Пол можно сделать глинобитным с добавлением соломенной сечки, цементным или дощатым. Чтобы обеспечить в птичнике чистоту не примените засыпать основную поверхность толстым слоем подстилки. Материалом последней может быть:
- Песок.
- Рубленая солома.
- Опилки.
В зимнее время толщина защитного слоя должна равняться двадцати сантиметрам. В этом случае он будет нести еще и функцию утеплителя.
на полу, вымощенному опилками, курям будет тепло даже зимой
Стены
Даже у самого маленького курятника должны быть прочные стены. Выгнать их можно из кирпича, камня или шлакоблока, однако это быстро отсыревающие, «холодные» материалы, не удерживающие тепло даже при наличии искусственного обогрева. Лучше всего на строительство птичника брать брус или бревна. Они сухи, прочны и надежны. Годятся и саманные кирпичи. В курятнике с такими стенами будет прохладно летними днями и тепло в холода.
Процесс выгонки стен начинается с установки каркаса, который обшивается доской. Образовавшееся пространство рационально заполнить утеплителем в качестве которого можно использовать: минеральную вату, опилки или сухую солому. Кроме досок, обшивкой может стать вагонка, фанера, ДСП.
стены курятника обшитые панелями ДСП
Потолок и крыша
Крышу также нужно делать основательно, чтобы она не затекала и не пропускала тепло. Если вы не знаете, как лучше построить крышу небольшого курятника своими руками, остановитесь на двускатной модели. Эта конструкционная форма лучше всего отводит воду и не накапливает снеговые сугробы. Накрыть крышу можно:
- Рубероидом.
- Камышом.
- Шифером.
- Черепицей.
Потолок потребует дополнительного утепления и обшивки ДСП.
односкатная крыша курятника перекрыта рубероидом
Оформляем птичник внутри
Построив надежный уютный курятник, переходите к его обустройству внутри. Если говорить об основных элементах, которые должны появиться в помещении, то насесты как раз из их числа. Чтобы узнать, сколько и какой длины нужно насестов именно в вашем случае, исходите из расчета, что курочке для удобного ночлега нужно как минимум 30 см на жердочке. На насесты можно пустить прямоугольный брус, сечением 40х60 мм. Чтобы птицы не травмировали лапки углы на жердочках надо сгладить, сделав их округлыми. Оптимальная высота крепления насестов от 60 до 80 сантиметров. Дистанционный пролет – 50 см. Жерди не крепят друг над другом. Для облегчения уборки под насесты ставят лотки.

при грамотном оформлении курятника изнутри птица будет чувствовать себя в тепле и в безопасности
Если в курятнике будут жить несушки, то им нужно оборудовать места для несения яиц. В этих целях подойдут ящики, наполненные мягкими опилками. Их ставят в укромных уголках, где кур никто не побеспокоит, случайно заглянув.
Кормушки вместе с поилками ставятся на возвышение. Если покрывать пол курятника соломой или другого рода подстилками, то убирать помещение будет значительно легче.
к оглавлению ↑Как построить небольшой курятник, пригодный для зимовки кур, своими руками

возведение фундамента и стен курятника
В теплые дни куры будут очень подолгу находиться в вольерах. В курятник они станут возвращаться с заходом солнца. В зимние холода все радикально изменится и строение, в котором будут зимовать птицы должно стать для них надежной защитой от непогоды. Кроем качественного утепления потребуется особо озадачиться созданием плодотворного освещения. Куры не перестанут нуждаться в продолжительном светлом дне, невзирая на царящую в это время года серость.
Главным критерием качественности зимнего курятника будет сухость. Повышенная влажность при низких температурах плохо скажется на птичьем здоровье. Влага провоцирует у кур проблемы с дыханием, а это, в свою очередь, в итоге губит их.
небольшой мобильный курятник на заднем двору
Теперь о габаритах зимнего варианта птичника. Он должен быть вполовину меньше летнего. Здесь на квадратном метре должны уживаться по 4 несушки. Это не ущемит прав птиц, просто в холода они тесно жмутся друг к другу, и не проявляют желания разгуливать по территории. Обогревать маленький курятник намного проще и экономнее.
Количество окон в зимнем варианте куриного жилья настолько же важно, как и в летнем, а может даже и более. Они играют главенствующую роль в освещении помещения. Их также нужно вывести на юг. В темное время роль солнца выполняет, искусственны свет.
большой курятник с просторным вольером пристроен к дому
Особенности зимней конструкции
Материалом для строительства теплого курятника может стать саман, глинобитные блоки, дерево, кирпич. Чтобы вы не выбрали, главным параметром должна оставаться толщина стен. Вполне возможно, что кладку придется сделать в несколько рядов. Стеновые поверхности промерзать не должны.
Особое внимание уделяется крыше. Поднимающийся кверху прогретый воздух не должен улетучиваться чрез нее. Эффективно обогреть пространство курятника в этом случае будет невозможно. У зимнего птичника крышу нужно делать многослойную, неоднократно перемежевав слои толя и щепы.

отделка стен курятника искуственным камнем
к оглавлению ↑Вентиляция в курятнике
Венцом строительных работ по обустройству курятника станет организация вентиляции. В летнее время эту задачу можно возложить на окна. Они смогут обеспечить достаточное проветривание только в том случае, если их общая площадь будет как минимум равна 1/12 квадратуры пола.
Если окна малы, улучшить воздухообмен поможет вентиляционное окошко или труба имеющие выход на крышу. Одно из таких отверстий оборудуется непосредственно над насестом, вторую трубу можно вывести через стену в полуметре за ним. Она будет обеспечивать дополнительную подачу свежего воздуха.

два небольших окна обеспечивают хорошую вентиляцию
к оглавлению ↑Чем и как освещать курятник
Для того чтобы куры могли набирать вес и хорошо нестись, одного только пребывания на солнце будет мало; нужно правильно организовать распространение световых потоков внутри птичника.
Выбираем лампы
Помещать в курятник обычные лампы накаливания бессмысленно. Здесь нужны изделия совершенно с иными характеристиками.
Хорошо зарекомендовали себя в освещении курятника люминесцентные модели, мощностью в 60 Вт. В каком количестве они понадобятся в вашем случае рассчитайте, исходя из следующих стандартов: на каждую лампу должно приходиться 6 квадратов освещаемой площади.

организация освещения в курятнике
Вторыми по популярности являются флуоресцентные типы ламп. Чтобы их пульсирующее мерцание не раздражало глаза птиц, в курятнике используют виды с частотой пульсации свыше 26 тыс. Гц.
Представленные выше лампы могут излучать свет разного цветового спектра и этим тоже способны оказывать на птиц определенное влияние. Не лишним будет знать, что:
- синий свет обладает успокаивающим эффектом;
- оранжевый стимулирует тягу к размножению;
- красный предотвратит чрезмерное ощипывание перьев, но снизит яйценоскость;
- зеленый ускорит рост молодняка.
долговечные кормушки из металла и пластика
Сегодня все чаще курятники обустраивают натриевыми лампами. В общий патрон у них вкручена сразу пара осветительных приборов с разной мощностью, в 50 и 70 Вт. Лампы такого качества не грешат пульсацией светового потока и могут включаться не только совместно, но и индивидуально. У такого способа освещения есть свои преимущества.
- Яркость натриевых ламп не меньше, чем у люминесцентных и флуоресцентных аналогов.
- Равномерное распространение светового потока по пространству птичника позволяет избавиться от затененных углов.
- Всегда есть возможность контроля поведения птиц.
Те, кто когда-нибудь интересовался тем, как построить небольшой, но комфортный курятник своими руками, знают, что у птицеводов есть практика использования абажуров. На них возлагают несколько функций – защитную и фокусирующую. В первом случае плафоны оберегают лампы от повреждения пернатыми при случайном задевании, во втором – помогают проецировать светопоток в пол.
в курятнике должны быть поилки, места для несушек, кормушки
Птицы плохо реагируют на перебои в световом режиме. Желательно, чтобы светоподача осуществлялась по стабильному графику. В противном случае куры перестанут нестись и вылиняют до полного облысения.
И еще один важный момент – безопасность. Поскольку в местах содержания птиц воздух всегда имеет повышенную влажность, тот делать разводку, оставляя внутри птичника открытые провода, недопустимо. Это может спровоцировать замыкание. Все компонующие элементы проводки, включая розетки и выключатель, надо вынести за пределы места пребывания живности. Можно все собрать в отдельном влагоизолированном щитке.
сезонный курятник можно прикрепить на парапете у забора
к оглавлению ↑Особенности зимнего освещения
Нехватка дневного света провоцирует в организме кур замедление всех процессов жизнедеятельности. Искусственный свет способен существенно исправить ситуацию. Освещая курятник по 12 часов, вы увеличите яйценоскость птиц на треть.
Включать дополнительное освещение на более длительное время начинают в средних числах ноября, по окончании периода линьки. Дополнительное освещение помещения проводят в предрассветные часы и с наступлением сумерек. Переход от света в темноте, равно как и от темноты к свету должно быть постепенным. Для этого лампы включают поочередно или используют вместо привычного выключателя диммер.
курятник с окнами обеспечивает проинкновение необходимого количества солнечного света
к оглавлению ↑Заключение
В завершении хочется отметить, что существует неисчислимое количество оригинальных и практичных идей, как построить небольшой курятник своими руками, среди которых наверняка есть пара-тройка вариантов способных заинтриговать и вас. Чего только стоит двухэтажный курятник, который очень выручит при недостатке площадей! Настоящий шедевр зодчества. В этом проекте первый этаж постройки отдают под вольер, а второй – делают жилым. Шестигранные, треугольные, круглые и асимметричные – современные курятники совершенно не должны напоминать сарай, так что выбирайте приглянувшийся вариант и за дело!
к оглавлению ↑Фотогалерея: как построить небольшой курятник своими руками
yellowhome.ru
Как сделать курятник на даче своими руками
Все чаще люди для постоянного или, по крайней мере, сезонного проживания выбирают загородные дома. Поэтому желание обеспечить себя не только урожаем с грядок, но и свежими куриными яйцами не только понятно, но и вполне реализуемо. И если возможность соорудить монументальное строение под курятник есть далеко не у всех, то устроить комфортное содержание для нескольких несушек под силу практически каждому.
Причем существует много интересных вариантов дачных курятников, которые позволят курятник на даче сделать не только функциональной хозяйственной постройкой, но и превратить его в элемент декора, задающим стиль всего приусадебного участка.
Чтобы обеспечить семью экологически чистой продукцией и бесхлопотно содержать кур на даче, достаточно иметь курятник на птиц. Однако каково бы ни было количество несушек, построить удобный курятник – это настоящая наука, ведь этот дом должен быть не только прочен и красив, курам должно быть в нем удобно и безопасно.

Расположение курятника на даче
Начинающему птицеводу для качественного надзора за питомцами лучше построить курятник на даче рядом с жильем, не забывая при этом о необходимости обеспечить курам должные условия для жизни:
- Почва под курятником должна быть обязательно сухой, а еще лучше, если она будет песчаной.
- Если почва глинистая, болотистая или часто бывает излишне влажной, то следует принять меры для ее осушения с помощью отвода влаги, устройства каналов, ям или провести засыпку площадки песком. Причем собранную влагу можно перенаправить в место, отведенное для купания кур.
- Хорошо, если участок под курятником будет иметь наклон на юго-восток, что способствует наилучшей освещенности.
- Курятник на даче должен быть огражден от сквозняков и пронизывающего ветра, для чего можно использовать и зеленые изгороди или строительные конструкции.
- Нужно обеспечить удобные лужайки для выгула птицы с обязательными укрытиями от солнца или непогоды.
- Желателен и неглубокий водоём для купания.
Если не соблюсти эти рекомендации содержания кур на даче, птица может стать вялой, несушки будут давать меньше яиц, не исключены и заболевания кур. Причем одинаково негативно на птице сказывается и ее перегрев без достаточного затенения от солнца, и повышенная влажность, скученность и холод.
Строительство курятника своими руками
Собираясь построить курятник на даче, стоит учесть все эти особенности и постараться обеспечить будущим жильцам все условия для комфорта.
Потолок должен быть надежной защитой не только от солнечных лучей, но и избыточного прогрева птичьего домика, который может привести не только к вялости птицы, но и развитию колоний угнетающих кур паразитов.
Пол в курятнике должен быть тёплый и надёжный, но при этом и дышащий, чтобы не было чрезмерной влажности, приводящей к развитию плесени и грибка.
Поэтому кирпичное, асфальтовое или каменное покрытие пола непригодно для птичника. На холодном полу куры будут страдать от ревматизма и других болезней ног.
Так что для условий средней полосы лучший вариант – это двухслойный пол из дерева.
Обустройство курятника на даче
Комфорт для живущих в курятнике несушек заключается:
- В достатке места, на птицу рекомендуют предусмотреть не менее 50 кв. см площади.
- В наличии доступных кормушек и поилок;
- В расположенных на разной высоте нашестах.
- В оборудованных гнездах, где расположатся куры несушки на даче.
- В хорошем освещении и вентиляции.
В местах кормления и в гнездах делают подстилку из соломы, которую нужно регулярно чистить и обновлять.
Если предполагается зимнее содержание птицы, то важно предусмотреть специальное место для купания и самостоятельного избавления от паразитов, засыпанное на десять сантиметров смешанным с золой и серой песком.
Выгул птицы
Чем больше птицы скапливается на ограниченной местности, тем больше риск инфекций и других заболевания у кур. Поэтому кур важно обеспечить достаточным местом для выгула, что повысить яйценоскость несушек и упитанность мясных пород.
С этой целью кур, особенно весной, разделяют по 10 – 12 птиц, отводя им отдельные площадки для выгула.
Насесты для кур несушек на даче
Сделав курятник на даче своими руками, дачник должен уделить внимание обустройству гнёзд, где курам будет удобно откладывать яйца.
На десяток кур устраивают как минимум два или три гнёзда, а в летнее время рекомендуют устроить насесты на воздухе, где птица выгуливается.
Расстояние между насестами должно быть не менее полуметра, при этом располагаемые не менее чем в полуметре от пола гнезда не должны прогибаться. Сохранить гнёзда в чистоте позволяет устройство козырьков над ними. А для наполнения гнезд используют регулярно очищаемую и меняемую солому.
Использовать же сено не стоит, поскольку оно быстро начинает преть и становится причиной развития инфекция и вредителей.
Гнезда нужно слегка затемнять, ведь куры несушки на даче не любят нестись при ярком освещении. Хорошо, если насесты будут съемными, тогда их можно будет снять и вычистить дважды в год.
Советы по обустройству курятника на даче
Скромные размеры многих приусадебных участком сделали востребованными самые разные конструкции курятников, среди которых и необычные, но весьма практичные строения.

Это относится и к переносным мини-конструкциям. Можно сделать курятник на даче своими руками именно таким, что позволит легко переносить сооружение, куры же при этом всегда будут на виду и никогда не испортят культурные посадки, что часто случается при свободном выгуле.
В конструкции такого миниатюрного курятника, как и любого другого, должно быть предусмотрено три главные области:
- пространство для нашестов;
- место для выгула птицы;
- гнезда для кур несушек на даче
Из чего лучше построить курятник на даче?
Наиболее часто для строительства дачного курятника пользуются следующими материалами:
- Для каркаса курятника применяется деревянный брусок;
- Обшивку стен чаще выполняют из деревянной вагонки;
- Обязательно следует предусмотреть выдвижной поддон под насестом, чтобы быстрее и эффективнее можно было проводить чистку. Для этого поддона берут оцинкованный лист;
- Для ограждения выгула берут металлическую сетку с мелкой ячеей.
- Если же задуман курятник с зеленой крышей, где будут посажены декоративные или зеленные культуры, то обязательна гидроизоляция крыши. Для такой изоляции идеально подходит любой гидроизоляционный материал в рулонах.
Зеленая крыша не только создает оригинальный внешний вид курятника, но и надежно защищает птицу от перегрева внутри домика в жаркие дни.
Ну, а если строительных материалов не хватает, то сделать курятник на даче своими руками можно и из подручных средств, например, можно встретить арочные курятники, сделанные на основе пластиковых труб, поддонов или совсем оригинальные решения.

Построив курятник на даче, все деревянные элементы строения, не зависимо от его размеров и конструкции, важно покрыть специальным составом, защищающим древесину от порчи вредителями и от атмосферного влияния.
Варианты конструкций дачных курятников
Стационарные домики для кур разной вместимости, предназначенные для летнего или всесезонного проживания птицы.

Начинающему птицеводу можно порекомендовать простую конструкцию курятника, который можно при желании перенести на новое место с помощью двух досок, выполняющих роль переносных ручек. При этом курятник сходен с одноэтажным коттеджем с мансардой.

Одноэтажный переносной курятник на даче еще более компактен, чем предыдущий.
Переносной курятник арочной конструкции.

Многие дачники сегодня обращают внимание на передвижные конструкции, причем делают такой мобильный курятник своими руками.
Передвижной курятник в виде тачки.
Такие устройства устанавливаются на одноосную раму с колесами. Эта схема хороша для совсем курятников, что позволяет легко перемещать птицу по газону участка или огороженному выпасу.

Передвижной курятник-прицеп.
Это двухосный прицеп для устройства значительного по размерам и емкости курятника, имеющего большой вес, что позволяет вывозить птицу на удаленные выпасы.

Передвижные дачные курятники на роликах.
Мини-курятники на небольших роликах могут быть установлены ровное основание и быть перемещены в пределах небольших участков.
Устройство курятника — практические видео советы
glav-dacha.ru
Как построить домашний курятник своими руками: фото, чертежи, рекомендации
В каких условиях куры лучше растут и несутся? Правильно! В комфортных и гигиеничных, обеспечивающих им достаточно тепла и света в зимнее время.
Для того, чтобы куры хорошо неслись, им нужно создать оптимальные условия. При постройке курятника необходимо предусмотреть дополнительное освещение и отопление. Если не отопление, то хотя бы надежное утепление. Теплый курятник сберегает корма, затрачиваемые на птиц и увеличивает количество яиц от кур-несушек.
Одновременно необходимо предусмотреть хорошее проветривание. Т.е. ставни (форточки) должны быть обязательно. В противном случае летом им будет очень жарко и их продуктивность снизится.
Дополнительно необходимо предусмотреть выгул, огороженный сеткой. Сетка будет служить защитой от крыс и хищных птиц, которые могут охотиться на цыплят.
Сложно ли построить курятник своими руками? Нет, для этого нужно лишь выполнить все требования по постройке таких помещений.
Содержание статьи:
Требования к расположению и ограждению курятника

Фото курятника с выгулом из мелкой сетки
Куры — это прежде всего птицы. Они летают, поэтому нужно предусмотреть минимальную загородку. На них охотятся бродячие собаки, крысы, лисы, хорьки и куницы. Необходимо исключить проникновение в птичник этих животных. Устройство курятника должно защитить птицу от любых не прошенных гостей.
Надежный сплошной деревянный забор или забор из профнастила — это самый лучший вариант. Другим подходящим вариантом является забор из сетки, вдоль которого посажена живая густая изгородь из высокого кустарника. Такое препятствие защитит курочек и от людей и от животных.
Другое преимущество высоких кустарников вдоль места содержания кур состоит в том, что куры любят копаться в тени кустарника в солнечную погоду. Кусты защищают их и от солнца и от ветра.
Третье преимущество наличия кустарников на территории домашнего птичника состоит в том, что среди прошлогодней листвы создаются условия для размножения насекомых и червей, которые дополнят рацион кур.
Сам курятник лучше расположить в отдалении от дома и летних построек. Причина простая. Там где куры — там и куриный помет. Чем дальше от жилых построек — тем лучше.
Итак — затененное, закрытое от ветра и дождя место — это то, что более всего подойдет вашим курочкам.
В качестве курятника, который можно построить своими руками, подходит и старый сарай, который уже не используется по назначению.
Если вы ищите чертеж курятника на 10 кур для изготовления его своими руками рекомендуем посмотреть эту статью.В ней приведены чертежи одного из вариантов такого курятника, его размеры и даны рекомендации по выбору недорогого материала для стен и крыши.
Требования к микроклимату в курятнике
Требования к освещению
Каким должно быть освещение в курятнике? Агрономы говорят, что нормальное освещение в помещении, где содержатся птицы должно быть не менее 8-10 часов в сутки.
При обеспечении светового дня для кур продолжительностью в 11-12 часов можно увеличить количество откладываемых яиц на 25-30%.
Особенно актуальным дополнительное освещение становится в конце осени (с ноября) и до середины весны (до марта).
Совет для начинающих птицеводов, собирающихся самостоятельно построить курятник: не пожалейте материалов на изготовление нормального окна для курятника, закрывающегося снаружи ставнями. Благодаря этому окну вы сможете сэкономить на электрическом освещении в зимнее время с коротким световым днем.
Для освещения курятника применяются такие лампы:
- Люминисцентные, мощностью 40 Вт.
- Электрические лампы накаливания (40 — 60 Вт).
- Светодиодные лампы.
- Энергосберегающие лампы (мощность 15 Вт).
Одна лампочка накаливания 60 Вт освещает 6 кв.м курятника. Высота размещения лампочки — 2 метра от уровня пола. Это обеспечит нормальную освещенность (20 люкс).
Требования к температуре
Температура в курятнике не должна опускаться ниже 15 градусов. При более низкой температуре потребление корма у кур возрастает, а способность нести яйца падает.
Это требование касается всех обычных пород кур. Для некоторых пород допускается более низкая температура (например для породы кокинхин или брама).
Чтобы поддерживать нормальную температуру, необходимо:
- Для зимних курятников построить капитальные стены толщиной не менее 15 — 20 см.
- Утеплить стены снаружи.
- Утеплить полы (если они выполнены из бетона). Или положить деревянные полы.
- Исключить дыры, щели и крысиные ходы.
- Утеплить кровлю курятника.
- Произвести герметизацию помещения, исключающую сквозняки. Для проветривания в дневное время предусмотреть открывающиеся форточки.
- Предусмотреть приборы для обогрева в морозы.
Для обогрева курятников можно использовать один из следующих способов:
- Небольшие печи с дымоходом, выведенным наружу. Следует заметить, что это не самый безопасный вариант.
- Электрические радиаторы. Их включают в морозы или на ночь. И выключают в остальное время.
- Обогрев тепловыми инфракрасными лампами. Инфракрасные лампы для обогрева курятника излучают мягкий и не яркий свет, одновременно подсвечивая помещение.
- Обогрев печью с водяным котлом и теном. В мороз такие печи топятся дровами. Горячая вода от печи подается в радиаторы отопления, которые располагаются вдоль стен курятника. Дополнительно вода в такой печи может нагреваться теном 1,5 кВт. Например, днем печь работает на дровах, а ночью, когда дрова прогорели включается тен.
- Обогрев тепло-вентилятором.
Один из вариантов обогрева птичника показан на этом видео:
Следует отметить, что лампы для обогрева курятника должны быть установлены вне зоны досягаемости для птиц.
Требования к площади посадки птиц

Фото курятника для дачи на 5 — 8 кур
Для обеспечения хорошей отдачи желательно на 1 кв. метре площади курятника размещать не более 2 птиц. Если вы строите своими руками мини курятник, то его минимальная площадь не должна быть меньше трех квадратных метров.
Однако, чем больше кур, тем меньшую площадь можно предусмотреть для одной курочки.
Отвечая на вопрос, какими должны быть размеры курятника на 20 кур, приведем пример из практики птицеводов. Сарай 2,5 х 6 (= 15 кв.м). Хорошо уживаются 20 кур (19 несушек и 1 петух). Возле сарая есть вольер (3 х 3 м). Для выхода в загон в стене сарая предусмотрен леток. Во время вывода цыплят пространство под насестом отделяется пластиковой сеткой, где содержатся месячные цыплята.
Размеры курятника на 10 кур могут быть в два раза меньше. Сарайчика шириной 2,5 метра и длиной 3 метра будет достаточно.
Если площадь двора позволяет, то желательно предусмотреть для каждой курицы в выгульном дворе около 2-х кв. м свободной площади. То есть площадь выгульного двора для стада кур из 20 голов может составлять от 10 до 40 кв. м.
Требования к конструкции курятника
Постройка курятника своими руками начинается с выполнения простого эскиза с нанесением основных размеров. Этот шаг предохранит вас от покупки лишнего материала или от повторных поездок в магазин за недостающими комплектующими.
Самый предпочтительный вариант при строительстве птичника — это утепленный курятник с выгулом, огражденном сеткой.
Стены курятника выполняют из древесины или из таких строительных материалов, как блоки или кирпич. При этом необходимо исключить различные незащищенные отверстия в стенах, через которые могут проникнуть лисы или другие хищники.
Для того, чтобы хищники, в том числе и крысы не смогли сделать подкоп в курятник, полы должны быть выполнены из того же дерева или бетона. Земляные или глиняные полы в курятнике не желательны.
Для утепления курятника можно использовать следующий вариант:
- Изнутри и снаружи стены (и потолок) утепляются стекловатой.
- Поверх стекловаты стены и потолок обшиваются ДСП.
- Дополнительно снаружи стены обшиваются пластиковыми панелями.
- На полу курятника стелится глубокая подстилка из опилок и соломы.
Этот вариант позволит поддерживать температуру в курятнике с курами на уровне 10 градусов в холодное время года. И только в сильные морозы придется дополнительно подогревать помещение тепло-вентилятором или буржуйкой.
Если в курятнике устанавливается печь на дровах или буржуйка, то обязательно необходимо предусмотреть голый бетонный пол вокруг печи (расстояние 1 м от легковоспламеняющихся предметов).
Строительство фундамента и пола
Строительство курятника начинается с заливки фундамента и изготовления пола. Фундаменты для легкого летне-осеннего курятника и для стационарного зимнего отличаются.
Фундамент зимнего курятника выполняется более глубоким (на глубину промерзания почвы). Одновременно он должен выдержать нагрузку от наружных стен и кровли. Зимний курятник — это более теплое и одновременно более дорогое сооружение. Поэтому он не должен простаивать ни в какое время года.
При изготовлении фундамента по периметру курятника выкапывается траншея и устанавливается деревянная опалубка, заглубленная в землю на 10 см. Внутрь опалубки будет заливаться бетон. Толщина фундамента для зимнего курятника равна ширине стен.
После монтирования опалубки заливается бетон. Для того, чтобы залитый фундамент набрал прочности его сверху закрывают мешковиной на 3-4 дня.
Фундамент для легкого летнего-осеннего курятника выполняют облегченным. Чтобы создать опору для стен достаточно залить фундамент глубиной 30 см и шириной 10 см. Если для вас актуален вопрос о том, как построить курятник своими руками и как это сделать дешевле, то можно обойтись и без фундамента. Но в этом случае конструкция стен должна быть легкой, например, из деревянных досок. Однако в этом случае долговечность деревянного сооружения из-за соприкосновения с землей и с сыростью будет значительно снижена.
И для зимнего курятника и для летнего необходимо предусмотреть защищенный пол. Обычный земляной в этом случае плохо подходит. Для сооружения пола на глубину 20 см выкапывается яма. Дно ямы засыпается слоем щебня (5-10 см) и заливается цементным раствором. Такая заливка не позволит мелким грызунам (крысы, мыши), а также хищникам покрупнее (лисы, куницы) пробраться в курятник из под земли.
Есть еще один вариант облегченного пола. На дно и стены сделанной ямы размещают сетку с мелкой ячейкой (оцинкованная сетка с размером ячейки 12,5х12,5 мм). Сверху сетка засыпается песком и проливается цементным раствором.
Возведение стен
Стены курятника изготавливаются в зависимости от его назначения.
Для летнего курятника, расположенного на дачном участке стены изготавливаются из досок толщиной от 20 до 30 мм. Если зимой там не нужно держать кур, то экономически не целесообразно выполнять стены из более прочных материалов. Поэтому, если вы рассматриваете вариант как построить курятник с минимальными затратами, присмотритесь к летним конструкциям.
Строительство курятника на приусадебном участке решает следующие проблемы:
- закрыть птицу на время дождя и в холодные дни,
- защитить кур от хищников в ночное время,
- курятник на даче позволяет также спрятать кур на время своего отсутствия (обычно это необходимо для тех, кто держит кур на садовом участке и не может каждый день присматривать за ними).
Стены зимних курятников строят из более крепких материалов, таких как шлакоблок, кирпич, ракушечник или толстый брус.
Если вы выбрали вариант строительства курятника из бруса, то последовательность возведения стен выглядит следующим образом:
- На фундамент настилается рубероид или другой изолирующий материал, для того, чтобы обеспечить гидроизоляцию и предотвратить гниение деревянных стен.
- Затем укладывается первый венец из бруса. Концы брусьев соединяются в половину.
- На первый венец укладываются лаги (брусья сечением 100 х 150 мм). Их укладывают через каждые 50 — 60 см на ребро. Образующееся между лагами пространство заполняют утеплителем (например, стекловолокно).
- Поверх первого венца укладывают все последующие. Они крепятся друг у другу по методу «шип — паз». Перед размещением последующих брусьев поверх нижних между ними рекомендуется положить утеплитель (например, тонкое льноджутовое полотно). В зимнее время такая конструкция будет задерживать тепло в курятнике.
- Для крепления брусьев друг с другом рекомендуется использовать нагели, которые представляют собой деревянные стержни. Эти стержни забиваются в просверленные в брусе отверстия так, чтобы стержень пройдя через верхний брус зашел в нижний.
- Отверстия под нагель выполняем после укладки верхнего бруса на нижний. Расстояния между нагелями 1 — 1,5 метра. Глубина отверстия под нагель должна быть такой, чтобы нагель прошел через верхний брус, через нижний и еще половину бруса, который находится за нижним. То есть два с половиной бруса.
- При забивании нагеля его утапливают в брус на 3 — 4 см, чтобы после усадки курятника деревянный стержень не уперся в верхний брус и не поднял его.

Скрепление стен курятника из бруса при помощи деревянных стержней
Высоту стен курятника желательно выполнить не менее 190 см. Это будет удобно и птицам и вам при обслуживании ваших курочек.
В стенах необходимо предусмотреть возможность установки двух вентиляционных решеток с задвижками. Желательно разместить их в разных концах птичника.
Обустройство крыши
Самая простая крыша для курятника — односкатная. Но если вы не поленитесь и выполните двускатную, то это даст дополнительные преимущества:
- Во-первых, такая крыша будет защищать птицу от перегрева и от переохлаждения.
- Во-вторых, такая крыша поможет уменьшить расходы на обогрев курятника в морозные дни.
- В-третьих, в полученное пространство между потолком и кровлей можно складывать инструменты, инвентарь, подстилку (сено, солома, опилки) и корма (зерно, комбикорм для кур-несушек или для бройлеров).
- Еще одно преимущество двускатной крыши перед односкатной или плоской состоит в том, что на ней не задерживается влага или снег.
Процесс сооружения двускатной крыши строится следующим образом:
- Устанавливаются и закрепляются к стенам брусья стропила так, чтобы угол наклона к стенам составил от 35 до 50 градусов.
- Затем на стены укладываются доски, которые будут выполнять роль потолка.
- Сверху доски потолка покрывают утеплителем и зашивают тонкими плитами ДСП. В качестве утеплителя можно использовать недорогой керамзит или угольный шлак.
- Затем поверх стропил укладывают и крепят шифер или другой кровельный материал.
Внутреннее обустройство курятника
Устройство курятника внутри предусматривает изготовление и установку насестов и кормушек. Курятник для несушек должен иметь гнезда для птиц.
Изготовление и размещение насестов

Фото насеста в небольшом курятнике на 20 кур
При обустройстве курятника для изготовления насестов используют длинные жерди диаметром от 4 до 6 см. Располагают их у противоположной от входа стены.
Для крупных пород насесты размещают на уровне около 0,7 м от пола. Для обычных пород их размещают в два уровня на высоте до 1,2 м от пола. Для того, чтобы куры не мешали друг другу необходимо предусмотреть по 50 см длины насеста на каждую птицу.
Если в одной плоскости закрепляются несколько жердей, то расстояние между ними должно составлять не менее 40 см.
Изготовление и размещение гнезд

Фото гнезд для кур-несушек
Устройство курятника для несушек предусматривает изготовление гнезд и крепление их на несущей стене. При обустройстве гнезд для несушек желательно придерживаться следующих рекомендаций:
- Количество гнезд в курятнике рассчитывается исходя из одного гнезда на 5 кур-несушек. Размеры гнезда делают под курицу.
- Ширина гнезда составляет 30 см.
- Глубину гнезда для несушки можно сделать 40 — 50 см.
- Высота гнезда до 35 см.
- Гнезда можно объединить в один ряд и повесить на темную укромную стену на высоте около 50 см.
- Вход в гнездо должен быть широким: около 25 см шириной и высотой. Причем вход должен быть приподнят от пола гнезда на 5 см (своего рода порожек). Такой порог предохранит яйца от скатывания в курятник.
- Перед входом в гнездо следует прикрепить полку для взлета.
- Крышу гнезда желательно сделать наклонной. Это не позволит птицам садиться на нее и пачкать пометом. Угол наклона — 45 град.
- На пол гнезда следует положить солому или сено.
- В готовое гнездо следует положить манок (муляж) из мела в форме яйца или яичко. Это привлечет наседку для кладки яиц. В таких гнездах куры несутся охотнее.
Совет 1: Чтобы куры не гадили и не ночевали в гнездах не ставьте их на пол. Гнезда должны быть прибиты к самой дельней стене на высоте выше 40 см. На ночь гнезда можно закрывать, так как ночью куры не несутся.
Совет 2: Для привлечения куриц к новому гнезду в него в качестве приманки птицеводы советуют положить пластмассовое яйцо от киндер-сюрприза, выточенный деревянный муляж, покупной муляж в виде яйца или самодельный из плотного белого пенопласта.
Изготовление и размещение кормушек
Для того, чтобы закончить строительство курятника, осталось подобрать и установить кормушки для кур.
Остановимся вкратце, какие виды кормушек нужно изготовить или купить:
- Для кормления кур сухим кормом (комбикорм, зерно) понадобится длинная деревянная кормушка, которую можно изготовить своими руками. Она представляет собой длинный узкий ящик с размерами 10 х 10 х 80 см.В эту же кормушку добавляют минеральные добавки (мел или известняк), мелкие камушки и ракушки.
- Для влажных кормов необходимо установить пластиковые (или металлические) емкости. Обслуживать кормушки из такого материала легче, чем из дерева.
- Третьим видом кормушек, которые тоже могут пригодиться в курятнике являются метки из тонкой проволоки. Они предназначены для зеленой травы.
Образцы курятников на фото
Для того, чтобы расширить свой кругозор новыми идеями рекомендуем посмотреть на фото курятников, которые были изготовлены самостоятельно членами клуба птицеводов в разных регионах нашей страны.

Деревянный курятник на 5 — 6 кур с выгулом из сетки
Ниже представлен более просторный курятник, в котором куры надежно защищены от хищных зверьков и имеют выгул, огороженный мелкой сеткой.

Фото летнего курятника для содержания 10 кур и одного петуха
На следующем фото представлены несколько маленьких курятников, которые очень красиво вписались в дизайн приусадебного двора.

Курятники могут выглядеть очень оригинально — главное проявить фантазию
И еще несколько вариантов деревянных курятников.

Простой деревянный курятник

Деревянный курятник с навесом из профнастила (или шифера)

Небольшой курятник под сенью деревьев
А здесь представлено фото большого летнего загона на 200 кур, легко изготовляемого самостоятельно. Он подходит для содержания птиц летом и в теплые месяцы осени.

Загон для летнего содержания большого стада кур
Знаете ли вы о том, что одна из самых величественных среди крупных пород кур в европейском стандарте является Брама Светлая.Эта привлекательная выставочная курица, обладает хорошей мясной и яичной продуктивностью. Эти курочки способны украсить самый изысканный птичий двор. Подробнее об этом можно прочитать в нашей статье.
Возможно эта порода кур идеально подойдет для вашего нового курятника.
Медицинские советы для дачников и жителей села
Мясников поразил студию! Этот способ избавит вас от ГPИБKA ногтей за считанные дни …Читать далее
fermerfest.com
Курятник на даче своими руками + фото
Разведение птицы – дело хлопотное и требующее стабильного ухода за птичьим племенем. В условиях загородного или дачного участка таких условий, как правило, не бывает, поэтому в подавляющем большинстве строят курятник на даче своими руками для небольшого количества птицы, максимум пяти – семи курочек. Как вариант, простой птичник из дерева можно заказать у плотника или купить любой из готовых курятников на дачу, продающихся на выставках и специализированных магазинах. Чаще всего это небольшой курятник с выгулом, рассчитанный на летний вариант содержания птицы на даче, в период с марта по ноябрь.
Какой вариант помещения для птицы предпочесть
Старые и опытные птицеводы говорят: «строй, как для себя». Для кур даже самый простой курятник — это дом родной. Если после окончания строительства внутри построенного сарая для кур можно просидеть пару часов без особого дискомфорта, значит, птица, проживающая на даче, тоже будет довольна.
Способов и вариантов построить курятник на даче своими руками существует довольно много, начиная от кирпичных помещений до резных избушек из бруса и шпунтованной доски. Наиболее популярным для дачи считается простой курятник, который легко собрать самому из плит ОСБ, фанеры или необрезной доски на каркасе из деревянного бруса, как на видео:
Использование древесины в качестве строительного материала позволяет получить ряд дополнительных преимуществ дощато-брусового домика для дачи в сравнении с сэндвичами или кирпичными помещениями:
- Деревянная конструкция помещения для кур получается легкой и одновременно прочной, для которой не потребуется капитальный фундамент;
- Использование бруса и доски позволяет выполнить на даче 99% всех работ в курятнике своими руками, даже если нет профессиональных навыков столяра или плотника;
- Деревянная конструкция курятника может легко дополняться и изменяться без кардинальной перестройки помещения.
Внимание! Даже если по объективным причинам от идеи сделать курятник вдруг придется оказаться, то приобретенный для постройки материал — брус, доска, фанера не останутся на даче мертвым грузом и легко найдут применение.
В отличие от большинства современных стройматериалов, дерево не пугает кур, деревянные стены помещения обладают достаточной звукоизоляцией, чтобы не слышать дождь или ветер, и в то же время хорошо передают звуки и шаги движения ночных посетителей. К недостаткам деревянного курятника можно отнести слабую защищенность от крыс и мышей, способных проникать в птичники за зерном и воровать яйца.
Как выбрать место под постройку курятника на даче
При выборе места на даче под размещение резиденции для кур руководствуются теми же принципами, что и при установке любой другой постройки из дерева. Утреннее солнце должно по максимуму освещать окна и вход в курятник, прогревая остывшее помещение и избавляя его от лишней влаги. В полуденный зной курятник необходимо защищать от прямых солнечных лучей, поэтому по возможности помещение располагают под кроной самого рослого дерева на даче или затягивают матерчатым тентом.
Место для установки курятника лучше всего удалить от здания дачи и грядок, которые, как магнитом, будут притягивать кур к себе. Рядом с выгулом не должно быть выгребных или компостных ям дачи, канализации или других источников заразы.
Отличным решением является постройка курятника в виде пристройки к зданию дачи. Так проще отапливать помещение и контролировать состояние кур. Нередко курятник пристраивают к летней кухне на даче, но если в зиму она не отапливается, большого смысла в подобном решении нет.
Строим на даче курятник из дерева
Перед тем как построить курятник, потребуется сделать простой эскиз, или лучше чертеж с планировкой расположения и внутреннего устройства курятника на даче. Средняя норма площади рассчитывается — две курицы на квадрат полезной площади. Таким образом, для 5 кур потребуется 2,5м2, и еще 30% нужно добавить под три гнезда. В итоге, теоретически рассчитанная площадь пятиместного домика составит 3,2м2, но на практике для проживания пяти кур на даче подойдет маленький курятник, меньше или около 2,8 м2, при высоте потолков в 1,8 м, фото.
Строить на даче помещение для кур будем с учетом следующих особенностей:
- В качестве фундамента лучше всего подойдет типовой для дачи литой столбчатый фундамент;
- Корпус помещения для кур изготавливается на основе каркаса из бруса 100х50;
- Пол, потолочное перекрытие и боковые стены обшиваются шпунтованной доской;
- Крыша собирается по простой односкатной схеме с вылетом высокой стороны ската на 50-60 см.
Внимание! Утепление пола, стен и потолочного перекрытия лучше всего выполнить с помощью листового ЭППС или пенопластовых листов толщиной 20 мм.
Устройство фундамента и каркас курятника
После выбора места на даче под строительство курятника необходимо сделать предварительную разметку грунта и уровня залегания воды. Если почва на даче в весеннее время, после схода снегов и паводковых вод, длительное время остается сырой, скорее всего, уровень воды достаточно высок, поэтому потребуется сделать полноценный дренаж и подключить трубу в общую дренажную систему дачи.
После разметки контура будущего курятника отрываем пять ям глубиной в 50 см под отливку или выкладку столбов фундамента. На любой даче найдется старая проволока, которую можно использовать в качестве арматуры, и обрезки доски для изготовления опалубки. Размеры опор — 15х15см, при высоте над грунтом не менее 30 см. После схватывания бетона верхний торец столбов зачищаем и выравниваем по общему горизонту.
Из бруса собираем обвязку цокольной части будущего курятника и укладываем лаги. Чтобы защитить кур от крыс и мышей, в изобилии промышляющих вокруг дачи, на брус натягиваем тонкоячеистую металлическую сетку, с запасом на стороны не менее 50 см. После сборки каркаса курятника края сетки будут напущены на внутреннюю облицовку стен и прибиты гвоздями.
На следующем этапе потребуется установить угловые стойки каркаса, выровнять по вертикали и сбить временными перемычками из горбыля. После установки верхнего пояса обвязки из бруса и потолочных балок стены, пол и потолок помещения зашивают шпунтованной и необрезной доской, которую можно отыскать на даче.
Для обустройства кровли курятника можно использовать кровельные материалы, оставшиеся от перекрытия крыши дачи, например, старый шифер или металл. Лучшим вариантом считается битумная черепица или ондулин, но для дачи специалисты рекомендуют шифер, как стойкий, негорючий и не поддающийся зубам хищников.
Отделка и устройство курятника
Вход в курятник и выгул необходимо расположить так, чтобы он легко просматривался с грядок или крыльца дачи. Летом куры любят собираться на насесты с заходом солнца, и время закрытия двери в куриное помещение нужно постоянно контролировать. Чтобы иметь возможность видеть, как и когда зашли куры в курятник, с любой точки дачи, над входом в помещение или тамбуром можно установить светильник.
Помимо основной двери, нередко навешивают вторую, наподобие москитной створки для дачи, только вместо полимерной сетки натягивают стальную с мелкой ячейкой. Аналогичным способом устраивают окно.
Пол в помещении для кур тоже можно утеплить материалами, оставшимися от ремонта дачи. Не используйте для утепления базальтовую или минеральную вату, даже если на даче этим материалом утеплялась крыша или пол. Куры очень хорошо слышат запахи и плохо реагируют на пары фенола и смолы на их основе, а относительно тонкий пол не гарантирует надежной защиты. Проще всего уложить двойной слой листового пенопласта и пленку для защиты от конденсата, а под черновым полом обязательно устраивается продух для удаления влаги.
Особую роль в жизни кур играет правильно сделанная вентиляция. Самым простым является приточная вентиляция в виде небольшого окошка в задней стене. Вытяжное отверстие размером 15х10 см вырезают в припотолочной зоне, а приток воздуха оформляется в виде воздушного клапана на входной двери.
Стены курятника утепляют так же, как и дачу. В простейшем случае доски внутренней облицовки стен оббивают снаружи листами ЭППС, затягивают пленкой и оббивают деревянной вагонкой.
Планировка помещения курятника
Обычно внутреннее пространство курятника разделяют центральным проходом на две половинки, фото. Большая часть курятника отводится под обустройство насеста, в меньшей половинке помещения устанавливаются гнезда и кормушки для кур.
Пол в курятнике покрывают слоем песка и опилок, которые хорошо предохраняют дерево от птичьего помета и одновременно защищают от конденсата.
В период сильных морозов куры могут уходить с насеста и сбиваться в одну кучу. В этом случае можно настелить слой соломы, или использовать тряпки, имеющиеся на даче, для того чтобы закрыть щели и приточный клапан вентиляции, чтобы исключить замораживание нижних ярусов помещения курятника.
Стены и потолочную часть помещения для содержания кур обязательно обрабатывают слоем извести. Специалисты рекомендуют обрабатывать стыки и щели между досками, везде, где могут скапливаться насекомые и паразиты. Наружные стены курятника выкрашивают светлыми акриловыми красками или покрывают атмосферостойким лаком, фото.
Заключение
Деревянное помещение курятника всегда получается легким и теплым. Но в холода, когда без отопления обойтись невозможно, дерево становится источником повышенного риска, с точки зрения пожарной безопасности. Поэтому деревянные стены постройки для кур приходится регулярно обрабатывать антипиренами, а места установки обогревателя обшивать металлическим листом. В этом случае помещение для кур на даче простоит достаточно долго.
fermilon.ru
Курятник своими руками: чертежи и 75 фото
Если у вас есть желание и минимальный опыт в содержании кур и вы задумываетесь о том, как построить курятник своими руками, то мы расскажем вам как построить зимний курятник на 10 куриц.


Курятник на 10 куриц своими руками.
При проектировании и постройке курятника важно держать в уме множество составляющих. Ведь курятник — это одновременно и комфортное жилье для птиц, и надворная постройка, призванная облегчать людям уход за животными и повышать продуктивность труда. Поэтому прежде, чем делать курятник своими руками, давайте разберемся, какие конструктивные элементы и особенности должны быть присущи каждому хорошему курятнику.
1. Поднимаемся над землей
Сырость и влага — главные враги любого курятника. В сыром помещении птицы начинают болеть, поэтому курятник всегда поднимают над землей. Некоторые конструкции предусматривают очень высокий подъем — до метра, а иногда и выше. Если в вашей местности, как и у нас, нет чрезмерной влажности, то 25-40см должно быть вполне достаточно.

Кстати о местности! Выбрать правильное место для курятника — это 50% успеха. Вот несколько советов, которые в этом помогут:
- выбирайте место в тени (например, под сенью большого дерева), иначе в летние месяцы курятник будет перегреваться, что может привести к болезням
- место для курятника должно быть максимально сухим — не ставьте курятник там, где после каждого дождя собирается вода
- старайтесь выбрать укромное место, не слишком подверженное влиянию ветра (так забор защищает курятник от ветра, а деревья — от обилия прямых солнечных лучей)
- если вы думаете, что нашли идеальное место, не спешите, — понаблюдайте какое-то время внимательно: возможно, вы заметите скрытые проблемы.

3. Входы-выходы для кур и людей
В каждом курятнике должен быть предусмотрен вход для птиц, а также доступ для чистки помещения. В нашем курятнике проход для кур сделан за задней стенке, а две двери обеспечивают возможность чистки курятника.

4. Гнезда и насест
В гнездах куры будут нести яйца, а вы будете эти яйца из гнезд забирать, поэтому гнезда должны быть удобными и для вас, и для кур. Считается, что идеальный размер гнезда — 30х30см в длину и ширину, и 30-40см. в высоту. При этом вход в гнезда рекомендуют делать уже.

Снаружи к гнездам должен быть удобный доступ.

Крышка открывается, поэтому для сбора яиц не нужно лазить внутрь курятника.

Крышка обязательно должна быть наклонной, чтобы вода свободно стекала с нее и не попадала в гнезда.

Суммарная длина насеста рассчитывается исходя из 25см на одну курицу. Поскольку мы рассчитываем наш курятник на десять кур, то нам хватит перекладины на всю длину курятника (почти 2,5м).

5. Освещение и вентиляция курятника
Свет курам просто необходим. Сокращение светового дня — одна из главных причин, почему куры перестают нести яйца зимой, и опытные хозяева знают, что эта проблема решается включением лампочки. Поэтому окнам в курятнике — быть!

Окна лучше сделать хотя бы с трех сторон, чтобы свет проникал в курятник в течение всего дня. Обратите также внимание на откидное вентиляционное окошко на задней стенке. В сырую погоду его можно открыть для дополнительной вентиляции. Окна над гнездами на передней стенке тоже открываются. Вентиляция — это очень важно, но помните: какие бы ухищрения вы ни использовали для вентиляции зимнего курятника, обязательно предусмотрите возможность регулировки потока воздуха вплоть до его полного перекрытия, — это пригодится вам зимой, когда вентиляция будет высасывать драгоценное тепло.

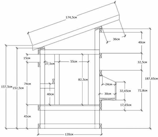
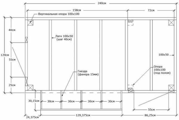
Чертеж курятника.
Ниже мы приводим чертежи нашего курятника. Для строительства мы использовали брус и доски хвойных пород дерева, а также фанеру толщиной 15мм. Для пола и подложки под крышу вполне можно использовать OSB. При указании шага между лагами и стропилами расстояния указаны между центрами брусьев.




Как утеплить курятник своими руками
Итак, мы построили курятник. Теперь предстоит выполнить его утепление. В качестве утеплителя можно использовать различные материалы. Прекрасно подходит для этого минеральная вата.

А также пенопласт и пенополистирол.

На худой конец можно обшить стены картоном и старыми одеялами.

Утеплитель вкладывается между брусьями, после чего зашивается фанерой. В противном случае птицы могут его склевать (особенно они любят пенопласт).

В зимнее время утеплителем также стоит закрыть и окна. При этом важно обеспечить искусственное освещение.

На случай сильных морозов можно предусмотреть наличие инфракрасных ламп. При этом их работой может управлять таймер или даже термореле — это избавляет от лишних хлопот, исключает человеческий фактор (забыл включить/выключить) и экономит деньги.

Курятник своими руками. Летний загон.
В теплое время года курам требуется больше простора, и они с удовольствием будут проводить большую часть своего времени на улице. Поэтому делая курятник своими руками, необходимо сделать открытый летний загон для кур. Площадь загона рассчитывается по формуле 1м.кв. на каждую курицу.

Обратите внимание на сетку в нижней части курятника, — она защищает от хищников. Ее стоит заглубить в землю на 20-30см, так как некоторые хищники вполне способны сделать сделать подкоп. А если в ваших краях водятся крупные хищные птицы, то загон необходимо защитить еще и сверху.

Также очень важно, чтобы хотя бы часть загона была в тени — куры должны иметь возможность спрятаться от палящего солнца. Если естественной тени нет, то соорудите небольшой навес.

Чтобы птицы могли свободно заходить и выходить в приподнятый над землей курятник, для них обычно сооружают простенький трап.

Курятник своими руками из подручных материалов.
Старый кухонный шкаф немецкий фермер превратил в маленький курятник.

Такой курятник из подручных материалов полностью соответствует утвержденными ЕС спецификациями для содержания кур и обеспечивает достаточное пространство для трех курочек, чтобы собирать и откладывать яйца.

В отделениях шкафа расположены места для хранения песка, соломы, корма и для хранения яиц.

Также сделаны крошечные шторы для кур, поскольку они предпочитают откладывать яйца в темноте.

Цыплятам нужно пространство для прогулок, поэтому курятник размещен на заднем дворе, чтобы дать им достаточно места для выгула.

Курятник из подручных материалов показывает как современные методы содержания кур могут быть реализованы нестандартными средствами.

Как видите, в строительстве такой, казалось бы, простой вещи, как курятник, существует множество нюансов и важных моментов, не знание которых может свести на нет все усилия.

Но не смотря на это, построить своими руками хороший курятник сможет любой желающий.

Главное — вооружиться правильными знаниями и заранее продумать все аспекты конструкции. Вы можете построить курятник по нашим чертежам, или, взяв их основу, доработать его устройство под свои нужды.
Пожалуйста, поделитесь своим опытом и советами по данной теме в комментариях!
idealsad.com
Курятник на 20 кур своими руками. Как правильно построить теплый курятник
Решив сделать курятник на 20 кур своими руками, вы можете вооружиться любыми материалами – от бревен и бруса до газобетона, который сегодня пользуется большой популярностью. В этом деле главную роль играет продуманная схема и использование только качественных материалов, чтобы птичник зимой хорошо держал тепло, а летом – обеспечивал прохладу.
Что учесть?

При строительстве курятника стоит сначала определиться с местом его расположения, количеством и расположением окон, а также рядом конструктивных особенностей, которые влияют на продуктивность кур. Курятник на 20 кур своими руками – это чаще всего небольшое строение с продуманной планировкой. Да-да, даже место обитания ваших курочек должно быть продумано, если вы хотите, чтобы они хорошо неслись.
Итак, чтобы построить курятник, нужно учесть следующее:
- Место расположения. Во-первых, он должен стоять на возвышенности. Во-вторых, лучше всего располагать курятник на востоке или западе, а окна должны выходить на юг. Это позволит сэкономить на обслуживании птичника, а солнечный свет способствует лучшей яйценоскости птиц.
- Площадь посадки на курицу. Идеальный вариант – это две курицы на один квадратный метр. Это обеспечит хорошие условия их содержания и повысит продуктивность кур. Немаловажно, чтобы размеры курятника на 20 кур были продуманы с запасом.

Из чего и как строить?
Построить курятник можно из любых материалов собственными силами. В соответствии с выбранным материалом стоит подбирать и тип фундамента. Мы рассмотрим строительство курятника из бруса, поэтому и основание будем делать столбчатым. Во-первых, столбчатый фундамент более экономичен по сравнению с бутовым или ленточным. Во-вторых, такое основание более предпочтительно, поскольку под ним не будет свободного места, где могут поселиться крысы или хорьки. А постоянная вентиляция под полом будет защищать древесину от гниения. Размеры курятника на 20 кур легко рассчитать по простой формуле: один квадратный метр рассчитан на 4-5 куриц. Соответственно, для 20 кур понадобится примерно 4-5 кв. м. пространства плюс запас. Площадь всегда следует учитывать побольше, потому что вам может захотеться увеличить численность поголовья кур либо приобрести дополнительно индюшек или уток.
Фундамент: что выбрать?
Чтобы разметить фундамент под курятник для несушек, нам потребуются металлические прутья и веревка. Пруты нужно забить по всему периметру будущего строения, затем обтянуть их веревкой. Главное – точность, чтобы не было перекосов. Теперь копаем место под фундамент: оно должно быть глубиной до 70 см и шириной в два кирпича. Между трубами оставляется расстояние в один метр. Дно каждой ямки засыпается слоем песка и еще слоем среднезернистого гравия. Фундамент укладывается из кирпичей, и важно правильно обработать швы цементным раствором. Пространство между столбами и землей тщательно заполняется гравием, чтобы защитить основание от влаги и обустроить своеобразную дренажную систему.

Если будет монолитное основание, то сначала нужно поднять верхний слой земли примерно на 35 см. По всей площади основания укладывается песчано-гравийная подушка – ее высота достигает 10 см. Выполняется опалубка – ее высота около 25 см. Монтируем арматурную сетку-каркас из прутьев, заливаем его прочным бетоном. В течение трех недель ждем высыхания основания, затем монтируем на него дощатый пол. Правильный курятник обязательно должен иметь фундамент. Если его все-таки не будет, а курятник будет стоять на небольших столбиках, то по всему периметру следует выполнить ограждение из железных листов.
Оборудуем стены и пол
Любой курятник должен иметь прочные стены. Процесс их возведения предполагает монтаж каркаса на основе деревянного бруса, который затем обшивается досками – между ними укладывается утеплитель в виде минеральной ваты, опилок или соломы. Обшить стены можно вагонкой, фанерой или плитами ДСП.

Курятник на 20 кур своими руками из бруса строится по стандартной технологии. Первый венец должен быть изолирован от основания – для этого используем двойной слой рубероида. Концы бруса должны соединяться. Затем на основание кладутся лаги из бруса на расстоянии 50 см друг от друга, а промежутки между лагами заполняются обрезками из бруса. Затем укладываются остальные венцы по принципу шип-паз.
Чтобы сделать теплый курятник, важно использовать утеплитель: для этих целей используется чаще всего джутовое полотно. После возведения стен на нужную высоту (минимальная высота составляет 1,8 м) крепятся потолочные балки, монтируются стропила, стелется кровля.
Особенности крыши
Для курятника оптимальная крыша – двускатная, поскольку можно еще использовать чердак для хранения инвентаря. Потолок застилается досками и утепляется – лучше использовать рулонный материал или керамзит, который отличается простотой монтажа. До утепления и настила крыши продумывается вентиляция. Помогут в этом чертежи курятника, где указаны основные конструктивные особенности крыши.

Система вентиляции состоит из двух деревянных коробов, которые ставятся в разные концы курятника. Один конец вентиляционной трубы монтируется ниже уровня потолка примерно на 50 см, второй короб ставится на одном уровне с потолком. Чтобы регулировать вентиляцию и температуру в помещении, трубы оснащаются жестяными заслонками. От хорошего воздухообмена зависит микроклимат в птичнике, уровень влажности, а также отсутствие неприятного запаха. Кроме вентиляционных окошек можно монтировать две трубы, которые выходят наружу через крышу.
Как устроить пол?
Строительство курятника требует самого пристального внимания для каждой детали. Полы в этом строении должны быть теплыми, не промерзать и не продуваться. Лучше всего обустроить двойные полы с использованием обычной доски-дюймовки. В идеале они должны состоять из нескольких частей:
- Чернового пола, для создания которого можно использовать сухую необрезную доску.
- Слоя пароизоляции.
- Брусков сечением 100х100 мм.
В пространстве между брусками нужно уложить утеплитель, а затем полы закрываются обрезной доской. При необходимости можно сделать в досках сквозные продухи.
Пол в курятнике может быть и глинобитным с соломенной сечкой, дощатым или цементным. Важно поверх основного материала укладывать хорошую подстилку – она обеспечит чистоту птичника. В качестве такой подстилки могут использоваться опилки, рубленая солома или песок.
Создаем насесты
Курятник на 20 кур, своими руками создаваемый, должен иметь продуманные насесты – их лучше всего выполнять из дерева или жердей диаметром до 6 см. Они монтируются как можно дальше от входа в птичник, должны иметь высоту не больше 1,2 м, если породы небольшие, и не выше 0,6 м, если куры крупные. На каждую курицу предполагается примерно 20 см насеста, чтобы птицам было удобно сидеть. Что касается гнезд, то их лучше расположить в самых дальних углах строения. На 5 голов приходится одно гнездо – в этом качестве можно использовать небольшие деревянные короба. Большое количество гнезд играет важную роль, если вы возводите курятник для несушек.

При обустройстве мест для кормления нужно, чтобы они были максимально простыми в обслуживании. Длина кормушек зависит от количества птиц – примерно 10-15 см на одну особь. На высоте до 15 см от пола крепятся еще две кормушки в виде ящиков – в них всегда должны быть ракушка, гравий или мел, которые необходимы птицам для формирования яиц.
Строительство курятника предполагает обустройство загона – как правило, он огораживается сеткой-рабицей, которая крепится на бетонные столбы. В заборе делается удобная калитка, позволяющая подходить к птицам.
Создаем курятник на лето

Очень часто нет необходимости в строительстве добротного сооружения, а требуется лишь небольшое строение, где куры могут находиться в летнее время. В таких случаях можно создать небольшой и легкий летний курятник. Как правило, он нужен в первую очередь для выгула птиц в теплое время. Он может быть представлен в виде загородки, которая позволяет птицам передвигаться и при этом защищает, например, огород или сад от них. Чтобы сэкономить пространство и сделать работы по возведению курятника проще, можно пристроить его к стене другой хозяйственной постройки на участке.
Важную роль играет место для выгула кур – оно чаще всего располагается рядом с курятником. Для его ограничения используется сетка для курятника, которая пригодится для ограждения не только стен, но и крыши.
Нужно ли утепление?
Многих волнует вопрос о том, нужно ли утеплять курятники. В климатических условиях России этот вопрос не из праздных, поскольку птиц обязательно следует защитить от переохлаждения. Перед входом в строение обязательно должен быть тамбур – он защитит основное пространство от прямого воздействия холодного воздуха. Специальный утеплитель используется и для отделки пола, крыши и стен, особенно если строение будет использоваться круглогодично. Все это предусматривают правильно составленные чертежи курятника. Кстати, внутренняя часть крыши легко обивается войлоком, который сохранит тепло внутри помещения.

Важные моменты
- Любой курятник должен быть сухим. Это главное требование, поскольку из-за низких температур и повышенной влажности состояние птиц может ухудшаться. В первую очередь у них могут появиться заболевания верхних дыхательных путей.
- Размер играет важную роль. Для лета можно строить и большие строения, а вот зимой курам будет холодно, поэтому чем меньше по размерам курятник, тем лучше. При этом места должно хватать поголовью кур.
- Окон должно быть достаточно. Особенно если ваш курятник зимний! До восхода солнца и до его захода освещение обеспечивается искусственным способом. Желательно монтировать два окна, выходящих на южную сторону.
Внутреннее обустройство
Вентиляция и хорошее освещение – пожалуй, два самых главных качества любого курятника. Как оборудовать внутри курятник, чтобы птицам было удобно и комфортно? Специалисты советуют большое внимание уделить правильному расположению насестов, всегда следить за состоянием воды и еды. Если куры постоянно находятся на улице, то кормушки и поилки в самом строении не нужны. Если же куры постоянно заперты в курятнике, то все кормушки и поилки всегда должны быть с едой и водой. Располагать их нужно на небольшой высоте, чтобы птицы не могли наступить в них и перевернуть.
Ванны для кур
Некоторые хозяева продумывают своеобразные пылевые ванны для домашних кур. Они позволяют птицам поддерживать свое оперение в хорошем состоянии, при этом уничтожая всяких вредителей. Пылевые ванны – это емкости, заполненные песком, садовой землей, древесной золой, в которых куры купаются.

Таким образом, сделать курятник своими руками достаточно просто. Главное – запастись необходимыми материалами, продумать чертежи, после чего приступать к реализации проекта. Помните о том, что любой курятник должен отвечать ряду требований:
- Чем больше простора, тем лучше.
- Все поилки и кормушки должны находиться в открытом доступе.
- Все насесты располагаются на разной высоте.
- Гнезда для кур-несушек должны располагаться в нужных местах.
- В строении всегда должно хватать света – естественного и искусственного.
Специалисты также советуют давать корм птицам еще и в подстеленную в курятнике солому – это будет обеспечивать курам занятие, поскольку неподвижный образ жизни приводит к ослаблению их иммунитета и потере аппетита. А солома заставляет кур постоянно искать себе корм, благодаря чему они находятся в тонусе.
fb.ru
