Сделать фрезерный станок по дереву своими руками – Фрезерный станок по дереву своими руками: варианты, чертежи, изготовление
видео-инструкция как сделать ручной инструмент для домашней мастерской самому, чертежи, фото и цена
Все фото из статьи
Каждый хозяин, желающий достойно обустроить собственную домашнюю мастерскую стремится установить в ней небольшой, но многофункциональный станочек. На современном рынке стоимость подобного оборудования достаточно высока, поэтому приходиться делать его самостоятельно. Бывалые мастера утверждают, что сделать вертикальный фрезерный станок по дереву своими руками вполне реально, главное иметь желание.

Фото самодельного станка из дрели.
Какие существуют варианты
Самодельный фрезерный станок по дереву для домашней мастерской, как вы понимаете, то же делается не из воздуха, поэтому потратиться на материалы и основные рабочие узлы придется. Зачастую цена такой конструкции зависит от стоимости главного узла, в который входит электропривод и собственно сама режущая фреза.
Самый простой и доступный по стоимости фрезерный станок можно сделать из обычной электрической дрели или перфоратора. Если инструмент жестко зафиксировать на вертикальном кронштейне и зажать в патрон фрезу, то можно обрабатывать мелкие детали, удерживая их в руках или фиксируя в подвижных струбцинах.

Заводской копировально-фрезерный станок.
Важно: ручной фрезерный станок по дереву для дома можно делать в двух вариантах. Первое направление предусматривает жесткую фиксацию рабочего режущего механизма, в то время как сама деталь или станина с зажатой в ней деталью делается подвижной. Второй подход кардинально противоположный, здесь обрабатываемая деталь жестко фиксируется, а режущий инструмент двигается вокруг нее.

Ручной фрезер.
Выбор принципа работы, размеров и функциональных возможностей оборудования зависят от того какие именно детали вы собираетесь обрабатывать. Из той же электродрели можно сделать станок с подвижной рабочей головкой для вырезания качественных пазов в объемных изделиях, типа деревянных дверей. В этом варианте вы получаете фрезерно-сверлильный станок.
Еще одним распространенным направлением является использование в качестве основного узла ручного фрезера. Конечно цена такого инструмента зачастую выше, нежели у дрели, но его плюс в том, что он изначально приспособлен для качественного фрезерования, вы лишь делаете под него станину и расширяете его функциональные возможности.

Станина с подвижным резцом сверху.
Теоретически в качестве электропривода можно использовать любой электродвигатель. Но нормальная дрель или ручной фрезер имеют встроенный редуктор, соответственно могут безболезненно выдерживать горизонтальные и вертикальные нагрузки. Подшипники, удерживающие вал обычного двигателя могут не выдержать таких испытаний и быстро высыпаться.
Совет: не стоит брать электропривод с мощностью менее 1 кВт. Для периодического использования и работы с небольшими деталями достаточно двигателя мощностью до 1,5 кВт. Если же вы собираетесь работать на станке ежедневно, то используйте фирменный фрезер с мощностью от 2 кВт.
Принципы сборки
Чтобы грамотно выполнить чертежи фрезерного станка по дереву своими руками, нужно иметь инженерное образование, а оно, как известно не у всех есть. Но и станок — не космический корабль, здесь зачастую достаточно хорошего эскиза.

Подробный эскиз фрезерного стола.
Использование дрели
Для большинства домашних мастеров не требуется отдельная инструкция, чтобы жестко закрепить дрель в вертикальном положении на штоке. Кроме самого штока, здесь достаточно 2–3 металлических хомутов. Но называть такое приспособление станком можно, только если сделать подвижную платформу для обрабатываемой детали.
В принципе это не так сложно. На стол, непосредственно под дрелью нужно закрепить две параллельные направляющие, в самом простом варианте для этого подойдут деревянные бруски.
Между ними устанавливается деревянная платформа с жестко закрепленными на ней струбцинами, в них будет зажиматься деталь.
Платформу можно двигать вручную или приделать позади нее рычаг.

Жестко зафиксированная дрель.
- Из электрической дрели можно сделать и более функциональный станок. Для этого используется несколько деревянных брусков и 4 гладких металлических трубки, желательно из алюминия. Идея заключается в том, чтобы обеспечить контролируемое движение дрели в 3 плоскостях. Вверх – вниз, влево – вправо и вперед – назад;
- Для начала придется соорудить 2 прямоугольные рамки. За движение вперед–назад отвечает рамка, лежащая на столе. На ней устанавливаются 2 параллельные металлические трубки, по которым будет двигаться вторая рамка, находящаяся в вертикальном положении;
- На вертикальной рамке, параллельно столу, между брусками врезается следующая металлическая трубка. Эта направляющая будет отвечать за движение механизма по сторонам;
- Чтобы закрепить на такой раме саму дрель, нам понадобится пара планок. Дрель будет фиксироваться на бруске, который монтируется между концами этих планок;
- С другой стороны этого импровизированного рычага, планки просверливаются и надеваются на трубку вертикальной рамки;
- Еще одна трубка фиксируется параллельно столу на бруске с дрелью. На втором конце этой трубки, строго параллельно дрели монтируется ручка для контроля и управления;
- Размеры всех этих узлов могут быть разными, а принцип соединения показан на фото.
Подвижная дрель.
Использование ручного фрезера
В начале статьи мы говорили о самодельном вертикальном станке для фрезерных работ по дереву. Это значит, что рабочий инструмент устанавливается в вертикальное положение. Если дрель удобнее вертикально устанавливать над столом, то ручной фрезер лучше стационарно вмонтировать в стол снизу столешницы. Соответственно, перед тем как сделать фрезерный станок по дереву самому, нужно подобрать стол или хотя бы надежную столешницу.
Но просто вырезать отверстие и прикрутить снизу инструмент нельзя. Опорная пластина инструмента должна находиться на одном уровне с базовым столом и при этом быть надежно зафиксированной.
Поэтому, как правило, сама столешница состоит из двух слоев. Нижний слой имеет отверстие по размеру фрезера. А верхняя пластина делается из двух частей, монтажной для фрезера и базовой, которая стационарно крепится к столешнице.

Принцип стыковки деталей.
Как видно на схеме, в верхней пластине по центру вырезается широкий прямоугольный участок, после чего остаток приклеивается, или прикручивается к базовой столешнице. В этом прямоугольном секторе делается отверстие по диаметру рабочей фрезы. Далее, рабочая пластина прикручивается к инструменту. Теперь можно вставлять и крепить пластину в нишу. На видео в этой статье показано несколько вариантов сборки таких конструкций.
Вывод
Как видите фрезерные станки по дереву своими руками собирать вполне реально. Если у вас есть желание поделиться своим опытом или задать вопросы по данной теме, пишите в комментарии снизу, такое общение для нас очень ценно.

Самодельный напольный фрезерный станок.
rubankom.com
Фрезерный станок по дереву своими руками
Для удобства работы с фрезером мастера устанавливают его стационарно, а заготовку перемещают. При работе таким способом, речь идет уже не о ручном фрезере, а так называемом «фрезерном столе». В данной статье мы попробуем объяснить, как же изготовить фрезерный станок по дереву своими руками.
Фрезер какой выбрать
Существует много видов фрезеров. Прежде чем выбирать его, необходимо обдумать, для каких назначений он вам будет нужен. Более сложные заготовки потребуют более мощный и оборотистый фрезер. Специалисты рекомендуют выбирать фрезер с ручной регулировкой и автоматической стабилизацией шпинделя.

Очень удобны фрезеры с системами плавного пуска и быстрой остановки. А если инструмент позволяет заменить щетки двигателя без вскрытия корпуса, то тогда ему вообще цены не будет. Это действительно существенный плюс.

Во многих инструкциях по эксплуатации производители фрезерных машин советуют не использовать его в работе вверх ногами. В основном, эти ограничения не обоснованы и могут игнорироваться.
Совет: фрезер выбирайте с мощностью не меньше 2- х киловатт, чтобы уверенно работать с любым деревом. Так же на нем должна присутствовать регулировка оборотов, как правило есть на всех моделях. Насчет стоит ли покупать бренды типа бош или макита, мое мнение — если занимаетесь профессионально и каждый день то стоит, если же для себя то достаточно и недорогого китайца.
Видео фрезерный стол своими руками
Станина фрезерного стола
Важной частью инструмента является специальный каркас (станина). Это каркас на опорах, сверху которого находится столешница. Станину можно сделать из любого материала: металл, дерево, ДСП и т.д.
Главное, чтобы она была жесткой и устойчивой. Размер тоже особого значения не имеет. Все зависит от того, с деталями какого размера вы будете работать.
Чтобы обеспечить удобную работу оператора станка, нижнюю часть станины необходимо углубить.

Благодаря этому, оператор при работе не цепляется ногами за конструкцию. Советуем сделать станину с регулируемыми опорами, которые позволят работать на любых неровностях пола.
Фрезерный станок по дереву своими руками примечателен огромным выбором вариантов создания. Вы сможете создать его полностью под себя.
Столешница стола

Здесь ничего сложного. Одним из вариантов является обычная кухонная столешница, покрытая специальным пластиком. По пластику заготовка будет отлично скользить, а доска будет хорошо гасить вибрации.
Монтажная пластина фрезера на стол
Пластина, обладающая высокой прочностью при малой толщине. Как правило, её выполняют из металла или текстолита (последний вариант легче в использовании).


Пластина прямоугольной формы, в центре которой проделывают отверстие. После этого фрезер прикрепляют к монтажной пластине. Для того, что закрепить инструмент с пластиной к столу, на углах пластины нужно просверлить четыре отверстия.
Самый простой фрезерный стол своими руками, чертежи
Вот мы и добрались до сути данной статьи. Так как же собрать фрезерный станок по дереву своими руками? Вначале, к готовому каркасу (станине) временно крепится столешница. Потом на столешницу кладут монтажную пластину и отмечают её положение. Далее, с помощью фрезера, на столешнице выбирают посадочное место для пластины.

Она должна быть установлена идеально с верхней плоскостью столешницы. В заключении, необходимо выполнить фрезерование отверстия по форме подошвы фрезера и соединить все это воедино. Конечно, с некоторыми моментами придется повозиться, но главное выполнять все наставления.
Верхний прижим
Для более комфортной работы, стол можно оснастить верхним прижимом. Подойдет обычный шариковый подшипник.

Он позволит вам плотно зафиксировать заготовку. Это позволит вам повысить качество и скорость работы, а также сэкономить свои нервы и силы.
Безопасность
Нужно заострить внимание на самом главном – безопасности. Во-первых, для фрезы рекомендуется установить защитный экран. Во-вторых, оснастить инструмент кнопкой экстренной остановки. Кнопка должна быть в легкодоступном для вас месте, но в тоже время, не мешать вам работать. В-третьих, рабочую зону можно дополнительно осветить.

Все эти пункты только добавят вам комфорта в работу, ведь на безопасности нельзя экономить. Творите на здоровье.
sdelaj-sam.com
как сделать самому, чертежи и фото
Фрезерный станок помогает быстро обрабатывать пиломатериалы и получать необходимые брусья, доски и другие заготовки за считанные минуты в самых больших количествах.
Фрезер для дома
Но далеко не все могут себе позволить приобрести заводской фрезер по дереву, чтобы работать на нем дома. С другой стороны иметь в собственном хозяйстве такой аппарат выгодно.
Поэтому часто опытные фрезеровщики, а также мастера по строительной работе решаются сделать самодельный фрезерный станок по дереву своими руками. Как оказывается, это не настолько трудно, как можно подумать.
Что нужно знать перед тем, как сделать фрезерный станок по дереву для использования в собственной мастерской? Фрезеровщики с опытом рекомендуют ознакомиться с конструкцией заводского типа, после чего можно начинать работу по сборке собственного станка.
Установки бывают разные и достаточно сложные, в том числе с регуляторами фрезы во всех трех осевых направлениях. Но для простой домашней установки достаточно будет фиксированного положения с возможностью ручной разборки, переустановки и регулирования фрезы.
Конструкция

Чтобы создать самую простую установку, нужно знать основные ее составляющие, и тогда можно собрать ее опираясь на чертежи.
Определяют следующие элементы станка:
- Станина.
- Столешница.
- Фреза.
- Мотор.
Станина
Опорной частью всей конструкции станка есть станина. Она должна быть прочной не расшатываться, иметь хороший упор. В большинстве случаев станину крепят к полу помещения с помощью болтов или других металлических креплений. В отдельных случаях допускается установка станины без закрепления при этом фиксация достигается за счет собственного большого веса станка, который и будет удерживать его во время работы. Для самых легких манипуляций и работы по дереву иногда достаточно станка без закрепления, тогда фрезерование может быстрым и более мобильным.
Столешница
Второй важный элемент конструкции — это столешница, главной характеристикой которой является ее площадь. Столешница крепится к станине и должна иметь горизонтальную ровную поверхность, без сучков и задоров, по краям у нее должны быть ограничители, в виде деревянных планок или металлических. В боковой ограничивающей части столешницы делаются отверстия для фрезы.
Фреза
Фиксированная фреза устанавливается обычно так, чтобы ось вращения расположилась в вертикальном положении — так получается вертикальный фрезерный станок. При этом обработка пиломатериалов должна проводиться при подаче их в горизонтальном направлении вдоль ограничителя с отверстием. Для того, чтобы должным образом обработать доску или брус, нужно иметь возможность замены, а также регулирования высоты размещения фрезы.
Для этого можно использовать один из двух подходов:
- Во-первых, можно сделать подвижную столешницу, например, закрепив ее на станине с помощью подъемных болтов. Такой вариант непрактичный, но возможный.
- Во-вторых, можно закрепить фрезу на подвижном элементе, прикрепленном к станине, а в качестве подъемного механизма использовать винтовые подъемники или другой направляющий механизм.
Мотор
Электрический мотор должен располагаться вместе с фрезой и подсоединен к ней.

Есть несколько вариантов его установки — сверху над столешницей, или снизу под ней:
- В первом случае станина должна быть выше уровня столешницы, и на ней должны размещаться крепления для мотора.
- Во втором случае мотор крепится снизу к самой станине, и тогда это не требует увеличения габаритов всей конструкции.
- Для более сложных станков можно подбирать и другое расположение фрезы и мотора, например, оборудовать горизонтальный фрезерный станок, но при этом стоит предварительно создать детализированные чертежи конструкции.
Нужно предвидеть также безопасное подведение электричества к двигателю и его надежную фиксацию. При сильной вибрации и не надежных замках крепления на сильных оборотах мотор может просто вырваться из конструкции, поскольку замки могут повредиться от большой нагрузки.
При подключении к электропитанию стоит рассчитывать на нормальное напряжение бытовой электросети — 220 В.
Фрезеровщики-профессионалы рекомендуют не изменять обмотку мотора, поскольку ни в коем случае это не повысит КПД, а возможно даже снизит.
Безопасность
Для того, чтобы обеспечить безопасность, следует кроме оборудования ограничителей также подвести к рабочей поверхности свет.
Для эффективности работы, двигатель нужно использовать определенной мощности:
- 0,5 кВт — это самая малая мощность, позволяющая снимать верхний слой древесины, шлифовать или выбирать пазы;
- фрезерные станки по дереву мощностью до 1,5 кВт позволяют проводить более глубокую обработку древесных материалов и подойдут для регулярной работы;
- лучший вариант мощности — 2,5 кВт, поскольку он сможет работать с любыми фрезами разной конфигурации или размера, но фрезерными станками такой мощности обычно пользуются только профессионалы, поэтому в быту новичкам устанавливать такой мотор не рекомендуют.
Установив станок фрезерный по дереву своими руками, при грамотной работе с ним каждый мастер обеспечит себя любыми необходимыми материалами, что обязательно сделает работу комфортной и приятной.
derevostroika.ru
ручной, по дереву, как сделать из болгарки, дрели
Прежде чем сделать фрезер своими руками, рекомендуется подготовить чертеж. На схеме указывают основные элементы инструмента.

Фрезер из дрели изготавливается быстро, но используется ограниченно.
Конструктивные особенности
Самодельный фрезер по дереву применяется для снятия фаски, оформления кромки, создания декоративной резьбы. Аналогичное устройство по металлу оснащено специальными фрезами и предназначено для работы с мягким металлом. При необходимости можно сделать фрезер для работы с пластиком, оргстеклом и прочими материалами.
Основными элементами инструмента являются шпиндель, мотор и фреза. Вращение от мотора передается на шпиндель с рабочей фрезой. Некоторые фрезеры по металлу и дереву работают от однофазной электросети переменного напряжения. Можно сделать ручные фрезеры своими руками на маленьком двигателе постоянного тока.
Для этого применяют различные фрезы. Выбор элемента зависит от предназначения будущего инструмента и обрабатываемого материала. Простые модели предназначены для обработки дерева. Для таких агрегатов характерна низкая скорость. Сложнее сделать своими руками фрезер по металлу, так как этот материал обладает высокой степенью жесткости и прочности.
Вернуться к оглавлению
Принцип действия и классификация
Для изготовления шпинделя применяют твердый металл, который должен соответствовать определенным требованиям по жесткости и твердости. Принцип работы любого фрезера заключается в следующем: ротор связан со шпинделем, на который фиксируется фреза. При включении инструмента в электросеть шпиндель начинает вращаться. Материал режется острыми ножами.
Точность выполняемой работы зависит от скорости вращения.
Стойка для фрезера выпиливается также из куска древесно-стружечной плиты.
Так как число оборотов зависит от плотности сырья, то самодельный инструмент рекомендуется укомплектовать регулятором.
Прежде чем соорудить фрезер, рекомендуется определиться с его типом. По способу применения специалисты различают следующие виды ручного фрезера:
- ламельный — изготавливает пазы;
- верхний — применяется для выполнения любой работы по дереву;
- кромочный — изготавливает кромки и снимает фаску.
Верхний фрезер классифицируется на следующие виды:
- неподвижный — жесткое крепление мотора;
- погружной — мотор перемещается с фрезой.
Узкопрофильный инструмент подразделяют с учетом материала и деталей, к которым он применяется:
- шипорезный станок;
- для гипсокартона;
- для получения паза и др.
Вернуться к оглавлению
Самостоятельное изготовление
Ручной инструмент, представленный из мотора, который вращает фрезу, можно сделать своими руками. Для этого потребуется фреза, электрический мотор и патрон. Двигатель можно взять от любого рабочего электрического прибора. Патрон можно взять от перфоратора, так как эта деталь выдерживает большую мощность.
Основанием для мотора является ПВХ либо стандартные листы ДСП. Основание вырезают и фиксируют к мотору. Патрон соединяют с двигателем с помощью специального переходника. Для этого потребуется помощь специалиста. Для полученного материала подбираются соответствующие фрезеры. Инструмент готов к эксплуатации.
Виды фрез для ручного фрезера.
Полученное ручное устройство можно превратить в станок. Для этого потребуется обустроить станину подходящих размеров и сделать отверстия в соответствующих местах. Такой универсальный станок, изготовленный в домашних условиях, не сможет дать достаточную скорость для проведения высококачественной работы. Его можно использовать для «грубой» работы по дереву.
В домашних условиях можно сделать ЧПУ станок. Он предназначен для производства изделия, спроектированного на компьютере. Аппарат с числовым программным управлением позволяет выполнить следующие работы:
- Фрезерование.
- Лазерная резка.
- Гравировка.
- Сверление.
Самодельный станок должен быть многофункциональным. Для его изготовления потребуется МДФ плита размером 1,5х1,5 м и фурнитура. Детали вырезают электролобзиком и дрелью. Чтобы в процессе работы стружка не разлеталась, делают пылеотсос. Полученный инструмент не применяют для обработки металла. Его можно использовать для работы с алюминием, бронзой, пенопластом и пластиком.
ЧПУ станок изготавливают своими руками с помощью алюминиевого профиля с сечением в 80х40х4 мм. Из него нарезают балки:
- 2 шт. по 1300 мм;
- 4 шт. по 460 мм.
В 2 швеллера с сечением в 50х30х4 мм вписывают направляющие. Ножки станка изготавливают из аналогичных элементов дивана. Каркас основания готов. В основе такого многофункционального инструмента находятся шаговые моторы.
Основными элементами ручного фрезера считаются мотор и фреза. Остальные детали устройства выполняют функции посредника, обеспечивая бесперебойную работу устройства. Поэтому при изготовлении ручного фрезера рекомендуется учитывать параметры мотора и фрезы.
Ручной самодельный инструмент обладает следующими преимуществами:
- низкая цена;
- обработка различной поверхности;
- простая сборка конструкции и обслуживание;
- легкая эксплуатация.
К недостаткам самодельных устройств специалисты относят низкую скорость обработки материала. Если аппарат оснащается стандартным мотором, которым укомплектовывают современные бытовые приборы, тогда для обработки сложных элементов и поверхностей не хватит оборотов. Чтобы устранить такой недостаток, применяют высокоскоростные двигатели. Их можно снять из современного перфоратора. Мощный агрегат позволит регулировать число оборотов для выполнения столярной работы любой сложности.
Самодельный фрезерный инструмент обладает низкой жесткостью и прочностью, так как изготавливается из подручных материалов. Вышеперечисленные преимущества и недостатки следует учитывать при изготовлении и работе с ручным самодельным устройством.
www.parnikiteplicy.ru
сборка самодельного фрезерного станка по металлу
Если задаться целью и собрать фрезерный станок своими руками, то можно получить в свое распоряжение эффективное устройство, позволяющее выполнять множество технологических операций по металлу и другим материалам. Серийные модели такого оборудования давно и хорошо известны, они активно используются на большинстве производственных предприятий, работающих в различных отраслях промышленности. Отличает такие станки широкий функционал, позволяющий обрабатывать с их помощью заготовки из металла, древесины и ряда других материалов.

Пример фрезерного станка, сделанного своими руками
Зная обо всех преимуществах подобного устройства, многие домашние мастера задаются вопросом, как сделать фрезерный станок, используя доступные и недорогие комплектующие. Следует сразу сказать, что изготовить такой станок возможно, более того, можно дополнительно наделить его функциями, которые присущи не только фрезерному, но и токарному оборудованию.
Наиболее простым в исполнении является фрезерный станок вертикального типа. Собрать его можно на основе ручной дрели, затратив на это совсем немного времени и сил. Для того чтобы своими руками сделать более функциональный фрезерный мини-станок для своей домашней мастерской, вы должны найти другие комплектующие и располагать большим количеством времени, но и такая задача вполне решаема.
Собираясь своими руками изготовить фрезерный станок по металлу и дереву, очень важно обратить внимание на то, что работать устройство должно по такому же принципу, что и серийное оборудование. Чтобы соблюсти это важное требование, можно ознакомиться с чертежами серийного оборудования и посмотреть видео процесса работы заводского станка.

Фрезерные столы нередко называют фрезерными станками, однако их конструкции принципиально разнятся
Часто фрезерным станком называют фрезерный стол. Его устройство мы рассмотрим в конце данной статьи. Но изготовлению самодельного фрезерного стола посвящена отдельная подробная статья, найти которую можно, перейдя по ссылке ниже.
Задачи фрезерного оборудования
У тех, кто часто работает в своей домашней мастерской, нередко возникает необходимость обработки различных изделий, изготовленных из древесины и металла. Не все операции с такими изделиями можно выполнить, располагая лишь ручными инструментами, часто для этого требуется специальное оборудование. Конечно, можно обратиться в мастерскую, но за оказанные ею услуги потребуется заплатить.
Именно в таких ситуациях и может выручить домашний фрезерный станок, собрать который вполне по силам каждому человеку, умеющему работать руками. Став обладателем подобного оборудования, можно будет выполнять на нем обработку заготовок как из металла, так и из древесины. В зависимости от наличия в вашем распоряжении тех или иных комплектующих, можно изготовить как простейший самодельный фрезерный станок по металлу, так и более сложное устройство, относящееся уже к токарно-фрезерной категории.

Компактный фрезерный мини-станок, сделанный в домашних условиях
Как было сказано выше, простейший мини-станок собирается на основе обычной дрели. Принцип работы такого оборудования аналогичен функционированию серийных станков подобного типа. Несмотря на то, что функциональные возможности мини-станка, изготовленного на основе дрели, несколько скромнее, чем у более сложного самодельного оборудования, и такому устройству в любой домашней мастерской всегда найдется применение.
Для того чтобы своими руками сделать более функциональный и сложный настольный станок, потребуется мощный электродвигатель, а также еще целый перечень специфических комплектующих. Такой станок, собранный по всем правилам, позволит вам в условиях дома выполнять достаточно сложные технологические операции: вырезать из металла и древесины изделия сложной конфигурации, обрабатывать криволинейные поверхности, выбирать пазы, фальцы, шлицы, а также многое другое.
Прежде чем своими руками делать фрезерный станок, следует изучить принцип работы серийного оборудования, посмотреть видео его функционирования, составить чертеж, подготовить обязательные комплектующие и инструменты, которые понадобятся для сборки вашего домашнего станка.
Самодельный фрезерный станок: вариант №1

Самодельный станок и этапы его изготовления на фото ниже
Самодельный фрезерный станок: вариант №2
Самодельный станок под дрель или ручной фрезер с самостоятельно изготовленными механизмами подачи фрезы и перемещения рабочего стола. Ниже на видео этапы изготовления с разбором ключевых элементов. А именно: сборка стойки, конструкция каретки вертикальной стойки, привод рабочего стола станка.

Неплохой функционал и довольно простая конструкция
Автор объясняет процесс изготовления стойки для дрели, которая впоследствии станет фрезерным станком.
Разбор создания системы подачи фрезы, а также крепления фрезера (или дрели) к стойке станка с возможностью смены инструмента.
Разбор привода координатного стола для обеспечения возможности перемещения заготовки относительно фрезы.
Конструкция и принцип действия оборудования
Если посмотреть на чертеж профессионального станка фрезерной группы, то можно заметить, что его конструкция включает в себя множество разнообразных механизмов и узлов. Настольный домашний станок, в отличие от серийного, имеет более простую конструкцию, состоящую из ограниченного набора обязательных элементов. Несмотря на простоту системы, самодельный станок фрезерной группы является достаточно функциональным устройством и позволяет успешно решать множество задач, связанных с обработкой заготовок из металла и древесины.

Один из вариантов самодельного фрезерного станка. Недостаток в недостаточно проработанном креплении дрели, однако отсюда можно позаимствовать конструкцию станины
Основой любого такого станка является станина, которая должна быть жесткой и надежной, чтобы обладать способностью выдерживать необходимые нагрузки. Следующим важным элементом самодельного станка фрезерной группы является привод, вращение от которого будет передаваться на рабочий инструмент. В качестве такого привода можно использовать ручную дрель или отдельный электродвигатель, обладающий достаточно высокой мощностью.
Для размещения и фиксации заготовок, которые будут обрабатываться на таком оборудовании, в его конструкции обязательно должен быть предусмотрен рабочий стол с элементами крепления для обрабатываемых деталей. Обработка и на профессиональном, и на домашнем фрезерном оборудовании осуществляется при помощи специального инструмента — фрезы, имеющей остро заточенную рабочую часть.

Крупный станок с мощным электродвигателем
При изготовлении мини-станка для дома не стоит экономить на комплектующих. Они должны быть только высокого качества, так как это напрямую влияет на надежность и производительность вашего оборудования.
Технические характеристики, которые приобретет ваш домашний настольный станок, будут зависеть от ряда параметров. К ним относятся размеры рабочего стола, а также допустимый вес и габариты заготовок, которые на нем будут размещаться. Важным фактором, влияющим на производительность и мощность оборудования, является мощность установленного на нем привода и максимальное число оборотов, которое он сможет обеспечить.

Еще один вариант самодельного фрезерного станка
Процесс сборки фрезерного стола
Приступать к сборке самодельного станка для дома следует с изготовления рабочего стола – важнейшей конструктивной части фрезерного оборудования. Рабочий стол домашнего станка можно своими руками изготовить из листа фанеры, оргстекла или листового металла.
Из расходных материалов вам понадобятся качественный контактный клей, двухсторонний скотч и много наждачной бумаги. Кроме того, необходимо будет приобрести несколько струбцин, метизы и качественный копировальный фрезер, который должен отличаться максимальной точностью, иметь острую режущую поверхность. Именно от того, насколько качественный фрезер вы приобретете, во многом будут зависеть технические возможности вашего настольного станка.

Чертеж фрезерного станка, сделанного по типу фрезерного стола (нажмите, чтобы увеличить)
Для изготовления фрезерного оборудования своими руками воспользуйтесь следующей инструкцией.
- Первым этапом сборки самодельного станка является изготовление крышки. В качестве материала для нее можно использовать фанеру. Несложный процесс изготовления данного элемента выглядит следующим образом: из фанеры вырезаются заготовки определенных размеров, затем они соединяются между собой.
- Следующий этап сборки домашнего мини-станка — это монтаж крепежных элементов, установка фрезера и остальных конструктивных частей. Поскольку вы занимаетесь изготовлением фрезерного оборудования, то все работы следует выполнять с повышенной аккуратностью и точностью.
- После сборки рабочего стола на него необходимо установить монтажную пластину. С этой целью в поверхности рабочего стола делается углубление, контуры которого полностью повторяют форму монтажной пластины. В таком углублении монтажная пластина фиксируется при помощи двухстороннего скотча. Далее по всему контуру пластины с определенным шагом укладываются прокладки, которые прижимаются к ней при помощи струбцин.
- Сам рабочий орган станка — копировальный фрезер — устанавливается в подшипниковые узлы, сборке которых следует уделить особое внимание.
- Все технологические отверстия, необходимые на поверхности рабочего стола, можно получить при помощи обычной ручной дрели.
- В вашем настольном мини-станке будет ряд деревянных поверхностей, которые необходимо тщательно отшлифовать при помощи наждачной бумаги.
- Следующий этап изготовления самодельного станка — это сборка основания, которую необходимо осуществлять в строгом соответствии с предварительно подготовленным чертежом.
- Особое внимание при сборке станка следует уделить процессу монтажа упора и прижимной гребенки.

Общий вид и кинематическая схема фрезерного стола
Все конструктивные элементы самодельного фрезерного оборудования, о которых говорилось выше, оказывают большое влияние на работоспособность, точность и надежность станка, поэтому к вопросам их изготовления и установки следует подойти очень ответственно и аккуратно.
Чтобы ваш фрезерный станок, сделанный своими руками, был надежным, долговечным, точным и выглядел презентабельно, необходимо выполнить ряд завершающих процедур по его сборке.
- Все деревянные поверхности станка следует не только тщательно отшлифовать, но и обработать специальной масляной пропиткой, которая защитит их от негативного воздействия внешней среды.
- Органы управления фрезерным станком, а также все выключатели, необходимые для его полноценной работы, нужно разместить в доступном и удобном месте.
- Немаловажной деталью станка является специальный патрубок, к которому присоединяется шланг пылесоса, отвечающий за удаление мелких стружек из зоны обработки.
При изготовлении домашнего фрезерного станка надо действовать в строгом соответствии с чертежом и с алгоритмом сборки. При выполнении этих условий, а также при соблюдении аккуратности и точности сборочных работ можно рассчитывать на то, что ваше мини-оборудование будет долго радовать вас своей функциональностью, производительностью, точностью и надежностью.
Оценка статьи:
Загрузка…Поделиться с друзьями:
met-all.org
Делаем фрезерный станок своими руками.
Станок для фрезерования дерева и других материалов — очень полезная вещь для домашнего хозяйства. Сейчас не проблема найти подходящее оборудование, однако стоит оно неприлично дорого. А вот сделать фрезерный
станок своими руками, не тратя большие деньги на фирменный или китайский аналог, под силу любому хозяйственному человеку. Для этого нужен электродвигатель подходящей мощности, стол и направляющая конструкция.
Привод для самодельного фрезерного станка
Проектируя несложный самодельный фрезерный станок, стоит обратить внимание на электропривод. Первый фактор – это мощность. Если станок делается для не глубокой выборки деревянных заготовок, то подойдёт и мотор с максимальной мощностью 500 Ватт. Однако такой станок будет часто глохнуть и не оправдает времени и средств, сэкономленных на приобретении маломощного двигателя. По наблюдениям, оптимальный вариант – поставить мотор с мощностью, начиная от 1100 Вт. Привод на 1 – 2 киловатта позволит применять любой тип фрез и делать обработку древесины в обычном режиме. Здесь подойдёт как стационарные электромоторы, так и приводы мощных ручных электроинструментов, таких как болгарка, дрель, ручной фрезер. Второй немаловажный фактор – оборотистость. Чем выше количество оборотов, тем чище и равномернее будет рез. Если двигатель рассчитан под бытовую сеть 220 вольт, то фантазировать на тему подключения не придётся. А вот трёхфазный асинхронный двигатель нужно подключать по особой схеме – звезда-треугольник, гарантирующей плавный запуск и выдачу максимально возможной в этой ситуации мощности (при включении трёхфазного электромотора в однофазную сеть, теряется от 30 до 50 процентов КПД).
Изготавливаем самодельный лифт для фрезера
Собрать самодельный фрезерный станок из подручных материалов – это полдела. Важно сделать его. Это даст возможность выставить рез фрезы по высоте без особых усилий, не тратя много времени. На фото показан способ сборки простого регулировочного лифта, выполненного из толстых фанерных листов. Сама конструкция крепится к крышке стола. Станок получится без шкивов и ремней, а фрезы будут насаживаться на
вал самого двигателя. Поэтому привод изначально должен быть с высокими оборотами. Лифт для фрезерного станка состоит из несущего корпуса, каретки, скользящих полозьев, резьбовой оси и фиксирующего винта. При вращении оси каретка с мотором перемещается вверх или вниз по оси. Полозья исполняют роль направляющих ограничителей. Фиксирующим винтом закрепляют каретку неподвижно после выставления по высоте. Несущий корпус удерживает всю конструкцию и крепится к крышке верстака снизу. Важно, чтобы каретка с двигателем не шаталась в корпусе, иначе при фрезеровании выборка древесины будет неравномерной и не красивой. Такое приспособление для фрезерного станка обеспечивает плавное регулирование вылета сменной фрезы над поверхностью стола. Для большего удобства можно снабдить лифт самодельными шестернями и вынести поворотный рычаг сбоку, а не сверху.
Самодельный стол для фрезерного станка
Если нет готового стола, и Вы самостоятельно его изготавливаете, то нужно учесть, что разные материалы по-разному ведут себя во время эксплуатации. Например, самодельный стол для фрезера, сделанный из дерева, боится влаги, зато деревянные конструкции проще изготовить и они частично поглощают вибрации. Как видно на фото, направляющие для упора обрабатываемой заготовки, также можно сделать из ДСП или фанеры с возможностью регулировки положения в горизонтальной плоскости. Что касается стружки, то в самодельных конструкциях часто применяют старый ненужный пылесос. Не стоит забывать о технике безопасности – всё неиспользуемое в работе пространство вокруг вращающейся фрезы должно быть закрыто. Также не лишним будет сделать прижимной механизм, для фиксации проталкиваемой по ходу заготовки.
Фрезерование является частным случаем строгания и осуществляется на фрезерных станках. В то время как строгальные станки по дереву применяются главным образом для обработки плоских поверхностей, фрезерные станки служат преимущественно для фасонной обработки материала как по прямому, так и по
кривому контуру.
Рабочим инструментом фрезерных станков является быстро вращающаяся ножевая головка, чаще всего расположенная вертикально.
Из большого количества разнообразных конструкций фрезерных станков в промышленности применяются следующие:
1)одношпиндельные обыкновенные (с вертикальным шпинделем),
2)одношпиндельные с наклоняющимся столом или шпинделем,
3)копировальные с верхним шпинделем,
4)копировальные с горизонтальным шпинделем (применяются при обработке деревянных воздушных винтов).
Во всех перечисленных конструкциях, за исключением последней, подача материала ручная.
Привод в большинстве современных станков электрифицированный.
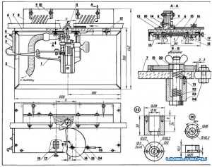
Фрезерные одношпиндельные станки
Устройство станка (рис. 250). На чугунной станине 1 укреплен горизонтальный точно выстроганный стол 5 с двумя шпунтовыми гнездами для крепления направляющих линеек. Под столом на салазках 2, передвигающихся по направляющим 4, установлен на двух подшипниках и подпятнике шпиндель 3, несущий в верхней своей части вставной шпиндель 6, на который насаживается режущий инструмент. При помощи винта 10 с маховичком или конической зубчатой передачи с маховичком 9 салазки со шпинделем можно опускать и подымать. Шпиндель приводится во• вращение посредством ременной передачи от мотора, от контрпривода или непосредственно от вала мотора. Чтобы сделать самодельный фрезерный станок по дереву своими руками необходимо:
Для придания шпинделю большей устойчивости при фрезеровании деталей, имеющих большую высоту, или при повышенных нагрузках на шпиндель на столе станка устанавливается и закрепляется на кронштейне верхний упор 7. Для направления изделия при обработке пользуются направляющей линейкой 8 или направляющим кольцом.
Фрезерные станки бывают с горизонтальным столом или же с наклоняющимся столом или шпинделем. Станки последнего типа кроме выполнения обыкновенных фрезерных работ позволяют обрабатывать материал под углом при помощи ножевых головок значительно меньшего диаметра (рис. 251) и давать более равномерную и чистую поверхность.
Станок с наклоняющимся шпинделем более удобен и безопасен в работе, чем станок с наклоняющимся столом.
В ряде случаев при обработке кривых деталей во избежание закола древесины необходимо менять направление вращения резца (шпинделя) или же переставлять изделие. Для этой цели очень удобны двухшпиндельные фрезерные станки (рис. 252). Шпиндели этих станков вращаются в противоположных направлениях.
Самодельный фрезерный станок по дереву своими руками image140
Рис. 251. Форма фрезы для обработки одного и того же профиля при работе на обычном фрезерном станке а и на станке с наклонным столом или шпинделем б.
Основные элементы конструкции этих станков те же, что и обыкновенного одношпиндельного станка.
Характеристики фрезерных станков приведены в табл. 106.
Обычные скорости резания на фрезерных станках t=19-50 м/сек, подача с=5-20 м/мин.
Вставные фрезерные шпиндели.
Для установки режущего инструмента на фрезерных станках применяются вставные шпиндели (рис. 253). Шпиндель № 1 допускает установку только плоских ножей в радиальном направлении. Шпиндели № 2 и 3 применяются для работы плоскими ножами, устанавливаемыми тангентально между шайбами, и для работы с круглыми ножевыми головками и с фрезами. Для установки фрезы или ножей на нужной высоте, на шпиндель
надевается ряд колец.
Самодельный фрезерный станок по дереву своими руками image141
Рис. 253. Вставные шпиндели фрезерного станка.
Шпиндель № 4 применяется для установки квадратных ножевых головок и специальных самоцентрирующихся патронов (букс).
Рабочий диаметр шпинделя обрабатывается по 2-му классу точности для скользящей посадки.
Хвостовик шпинделя обрабатывается под конус Морзе.
Типовые данные вставных шпинделей.
Шпиндель № 1. С центральным креплением ножа, диаметр рабочей части 31 мм, длина рабочей части 180 мм, паз для установки ножа 118×6 мм,
Шпиндель № 2. Диаметр рабочей части 25 мм.
Допускает установку двух ножей между шайбами. Для установки ножей на фланце шпинделя отфрезерованы параллельные пазы, расстояние между которыми равно 16 мм. К шпинделю прилагается шесть колец для крепления ножей различной высоты. Наружный диаметр кольца 43 мм. Наибольшая высота ножей 90 мм.
Шпиндель № 3. Диаметр рабочей части 19 мм. Шпиндель по назначению аналогичен шпинделю № 2, но несколько легче. Расстояние между ножами12,5 мм. Наибольшая высота ножа 65 мм. Наружный диаметр кольца 35 мм.
Шпиндель № 4. Диаметр рабочей части 25 мм. Предназначен для установки квадратных и круглых ножевых головок высотой до 100 мм.
Квадратная головка применяется для установки ножей толщиной до 12 мм. Высота головки 100 мм. Диаметр отверстия для шпинделя 25 мм.
Затяжка гайки при установке ножей, фрез или ножевых головок на шпинделе производится ключом от руки доотказа. Применение рычагов для затяжки недопустимо.
Гайка должна полностью находить на резьбу. Выступающий конец резьбы должен быть не короче 1 мм.
Одношпиндельные копировально – фрезерные станки с верхним шпинделем
Применяются для производства различного рода копировальных работ, не требующих большой мощности. На них можно выполнять как фрезерные, так » сверлильные работы, поэтому эти станки очень удобны для выполнения ажурных работ, так как заменяют одновременно сверлильный и фрезерный станки и лобзик. В качестве рабочего инструмента применяются специальные чисто режущие фрезы, которые при большом числе оборотов шпинделя дают исключительно чисто обработанную поверхность.
Одношпиндельные копировальные фрезерные станки с верхним шпинделем с большим успехом могут применяться для изготовления ажурных рам, калибровки бобышек, книц, стенок нервюр и т. п.
Устройство станка
Основой станка является солидная чугунная станина, верхняя часть которой имеет серповидно изогнутую форму и служит кронштейном для установки на ней электромотора. Последний устанавливается в направляющих и при помощи системы рычагов может перемещаться по ним вверх и вниз при действии на педаль, имеющую стопорное приспособление. Вал ротора мотора соединен со шпинделем, на котором укрепляется американский или специальный самоцентрирующийся патрон с рабочим инструментом.
В нижней части станины на подвижном кронштейне установлен стол, который может перемещаться в вертикальном направлении по направляющим при помощи маховичка. В некоторых конструкциях стол можно перемещать вертикально и в процессе работы, нажимая на педаль. В этих конструкциях электромотор со шпинделем остается неподвижным.
Стол может передвигаться или только в вертикальной плоскости или же плита стола делается передвижной – в горизонтальной плоскости (вправо, влево, вперед и назад).
Первоначальная установка станка в рабочее положение производится в соответствии с высотой (толщиной) обрабатываемого изделия маховичком, а затем уже подача осуществляется или перемещением мотора или перемещением стола при помощи педального механизма.
Настольный трехкоординатный фрезерный станок типа CNCТом МакУайр (Tom McWire) 25
Ниже предлагается инструкция по созданию фрезерного станка, управляемого ПК. С помощью описанного ниже способа обработка поверхности станком, контролируемым компьютером, может стать доступной любому смертному. Это слишком маленький станок, чтобы определить его на отдельный стол, однако, можно с легкостью увеличить размеры конструкции. Чтобы собрать такой станок много денег не потребуется, вся конструкция обойдется не дороже 200 долларов США. Абсолютно все детали можно купить в любом магазине. С помощью станка можно делать гравировки на плоскости и печатной плате, а также фрезеровать в объеме и вырезать различные фигуры из пенопласта, дерева, пластика и других мягких материалов.
шаг 1 — Рама
В качестве рамы должна быть использована плоская поверхность, на которой все оборудование будет
установлено горизонтально. Кроме этого рама должна иметь U-образное колено, чтобы крепко удержать ось Z (верхнюю и нижнюю часть с двигателем). Ради хохмы я взял трубу толщиной около 2,5см, оказалось, это очень удобный вариант. Когда требовалось что-то отрегулировать, я просто ударял по ней молотком. Как вы видите, свая, которая держит ось Z, необязательно должна располагаться в центре, однако, она должна быть прочной, и водопроводная труба для этого отлично подходит. Затем, когда вы удостоверитесь, что стыки труб находятся там, где нужно, воспользуйтесь герметиком, тогда конструкция станет еще прочнее.
шаг 2 — Направляющие и двигатель оси Х
Сейчас самое время добавить направляющие к платформе оси Х. Эти направляющие из алюминия с U-образной выемкой имеют ширину 1,9 см. Купить их можно в любом магазине, где продаются металлические изделия. Под каждую направляющую на стыке с осью подложите шайбу, чтобы они не располагались вплотную друг другу. Ничего страшного, если направляющие не будут идеально параллельными. Почему – узнаете позже. Теперь установите шаговый двигатель с держателем как на фото. Присоедините его на ¼ длины шпильками c резьбой к валу электродвигателя с небольшим кусочком резинового шланга (1 см термоусадочной трубки). Теперь все готово для установки подвижной части оси Х (платформа).
шаг 3 — Основа конструкции – ось X
возьмите кусок пластика (я использовал оргстекло) или металла, нужно что-то прочное и плоское, и прикрепите его к U-образной раме. А теперь коварная часть. Круглая штука называется подшипником. Можете достать ее из двигателя или купить в специализированном магазине. Закрепите ее на куске алюминия. Возьмите стяжную гайку 0,5 см и вкрутите ее в алюминий, как показано на фото. Подшипник служит креплением для платформы Х с направляющей Х, а стяжная гайка позволит двигателю ходить взад и вперед по платформе. Не помешает смазать направляющие и стяжную гайку.
шаг 4 — Платформа Y
Платформа Y – это то же самое, что и платформа X, только повернутая на 90 градусов. Устанавливаем две направляющие и двигатель на платформе Х (в горизонтальной плоскости), берем кусок плоского материала и U-образный профиль и собираем подвижную платформу Y. Не забудьте о подшипнике и стяжной гайке. Когда все сделаете, должно получиться нечто подобное.
шаг 5 — Собираем ось Z
И снова мы повторяем схему создания платформ Х и Y для сборки платформы Z. Возьмите плоский материал, здесь я использовал белое оргстекло. Прикрепите направляющие и двигатель, и снова U-образный профиль и подшипник дополняют конструкцию. История со стяжной гайкой немного изменится (см. фото). Четыре стойки, располагающиеся на платформе, будут держать двигатель. Поскольку платформа будет двигаться вверх и вниз, под весом двигателя она может соскочить с направляющих. Чтобы это предотвратить, добавим по роликовому подшипнику к каждому концу направляющей.
шаг 6 — Продолжаем сборку
Теперь закрепляем двигатель в платформе Z, затем инсталлируем платформу в раму. Вот, собственно, и оно. Пока что это чисто механическая конструкция. Далее мы подключим электродвигатели к контроллеру и запустим программу на ПК. Но это я оставлю для последующих статей.
шаг 7 — Что он делает
Если вы заинтересовались этой статьей, похоже, вы уже имеете представление, что можно делать с помощью трехкоординатного фрезерного станка, управляемого компьютером. Удивительно, какой точности можно добиться, если немного над ним поколдовать. Убедитесь, что направляющие держатся крепко и располагаются ровно. Хорошо закрепите роликовый подшипник, чтобы платформа не двигалась.
Я использовал станок для создания печатных плат. Он отлично подойдет и для гравирования именных жетонов и значков, моддинга во всех его начинаниях и проявлениях. Здорово наблюдать, как станок вырезает объемную деталь из пенопласта или пластмассы.
ПРЕДУПРЕЖДЕНИЕ необходимо иметь соответствующую программу. Некоторые производители предлагают готовые комплекты из двигателей, драйверов и программ. Так процедура облегчается, но денег придется заплатить больше.
фрезерный станок своими руками
фрезерный станок своими руками
шаг 8 — Ролик «Гравировать легко»
шаг 9 — Гравировка
Я снова собрал свою машинку после написания этой статьи, сделал кое-какую гравировку и обработал печатную плату.
(P.S. хотел использовать в качестве материала сыр, но что-то не пошло и пришлось его съесть.)
Фрезерование пластика проходит гладко, но вот для печатной платы в левой части резка пошла слишком глубоко. Именно после таких недочетов и хочется настроить станок на более точную работу. Возьмите немного алюминиевой фольги и подложите ее под направляющие оси Y. По мере того как платформа движется слева направо, высота изменяться не должна.
Заметьте, я закрепляю обрабатываемый материал клейкой лентой. Во всей этой конструкции мне нравится то, что любую проблему несложно решить, так как конструкция состоит из простых элементов.
]]>http://modnews.ru/modding/view/8569]]>
]]>http://brigadeer.ru/instrument-stolyara/frezernye-stanki-i-frezerovanie….]]>
]]>http://ukrlot.com/frezernyj_svoimi_rukami.html]]>
kazap.ru
|
ukrlot.com


