Сделать самому откатные ворота пошаговая инструкция – Как сделать откатные ворота самому: пошаговая инструкция и схема
Как сделать откатные ворота: пошаговая инструкция с чертежами

Оглавление:
- 1 Достоинства и недостатки
- 2 Типы конструкции
- 3 Особенности расчета
- 3.1 Данные высоты и ширины проема
- 3.2 Расчет противовеса
- 3.3 Расчет веса
- 3.4 Расчет прочности фурнитуры
- 3.5 Дополнительные расчеты
- 4 Устройство
- 5 Створка
- 6 Выбор комплектующих
- 7 Монтажные работы
- 7.1 Изготовление фундамента
- 7.2 Установка
- 8 Выбор автоматики
- 9 Окраска
- 10 Необходимые инструменты для работы
- 11 Распространенные ошибки
- 12 Видео: изготовление ворот
- 13 Фото: вариантов готовых откатных ворот:
- 14 Схемы
Неотъемлемой частью оградительной конструкции дачного участка являются ворота. Сегодня существует немало их разновидностей. Давайте рассмотрен процесс изготовления и установки откатных ворот.
Достоинства и недостатки

Достоинства:
- Такая конструкция ворот не мешает выезду/въезду транспортного средства в условиях маленькой площадки. Консольные ворота позволяют значительно экономить место.
- Наличие нижнего крепления консольной системы позволяет обустраивать ворота при любых климатических условиях.
- Отделка может быть выполнена из разных материалов, например, вертикальная обрешетка, профнастил, ковка и не только.
- Возможность выбора варианта конструкции, например, из сэндвич-панели или профлиста.
- В сравнении с другими типами ворот (например, распашные) отсутствует такое явление, как провисание петель. Имеющаяся автоматика и механизм закрывания/открывания ворот предусматривает продолжительный эксплуатационный период.
- Существует возможность выбирать различную автоматику для ворот.
Недостатки:
- В отличие от других типов ворот, к примеру, распашных, обустройство откатных требует больше финансовых затрат, приблизительно на 10–20%.
- Для крепления консольной части и привода необходимо производить дополнительный фундамент.
- Вдоль забора понадобится выделить достаточное пространство.
Типы конструкции

Конструкция ворот разделяется на несколько видов, каждый из которых отличается друг от друга:
Независимо от типа конструкции, откатные ворота требуют свободного пространства вдоль забора с одной стороны. При этом оно должно быть равным по размеру проема. Что касается консольных систем, то место должно быть больше на 120–200%.
Особенности расчета
Особенности самостоятельного расчета
Расчет конструкции один из самых важных и первоочередных этапов. Игнорировать этот этап не стоит, так как сооружение откатных намного сложнее распашных.
Процесс расчета включает в себя следующие этапы:
Расчет ширины и высоты конструкции должен отталкиваться от сортамента рынка. Так, если профиль или трубу можно легко сварить, то раскроить листы профнастила, с целью добавления очень сложно. Плюс к этому результат будет неэстетичным.
Расчеты откатных ворот
Более того, понимая, какой вес конструкции будет в конечном счете, подбираются соответствующие механизмы и движущиеся части, которые смогут справляться с нагрузкой.
Если полотно предполагается большим, то обязательно учитывайте и ветровую нагрузку. К имеющейся силе ветра, преобладающей в вашей местности, добавьте небольшой запас.
Хотя самый простой вариант получения расчетов обратиться в специализированную компанию, которая предоставит папку с чертежами и расчетами, сделать это можно самостоятельно. Стоит сразу заметить, что все приведенные расчеты касаются откатных ворот консольного типа. Они сложнее от всех остальных типов, поэтому рассмотрим их подробней.
Данные высоты и ширины проема

Ширина ворот (L) будет равна:
- ширине проема;
- технологическим отступам открытия/закрытия;
- минимальному расстоянию между центрами кареток.
Исходя из этого L будет больше проема.
Расчет противовеса

При движении створки должны быть уравновешены. Этот показатель достигается расчетом противовеса. Благодаря этому удельная масса конструкции будет равномерно распределяться по кареткам. Соответственно, чтобы было как можно меньше нагрузки, противовес должен быть большим.
Но как быть, если для движения створки недостаточно места? В таком случае необходимо понимать, что длина противовеса не должна быть меньшей на 40% от ширины створки. Идеальным показателем является 50%. Как следствие ширина L в своей конструкции имеет противовес.
Имея такие расчеты, вы сможете определить, сколько необходимо места для отката ворот вдоль забора.
Расчет веса

Это значение определяется исходя из веса используемого материала:
- Профнастил ~ равен 4 кг/м2.
- Сталь, толщиной 2 мм ~ 17 кг/м2.
Ворота с каркасом 4×2 м в среднем будут иметь вес 200 кг. Имея такие данные, можно определить показатели направляющей балки. В этом случае можно отталкиваться от заведенного стандарта.
Для ворот весом в 300 кг достаточно балки 9×5 см толщиной не меньше 3,5 мм. Однако обязательно необходим запас прочности до 40%. Он значительно упростит эксплуатацию ворот и увеличит ее эксплуатационный срок.
Расчет прочности фурнитуры

Для ворот потребуются ролики, улавливатели и поддерживающая шина. Современные изделия такого плана позволяют подобрать необходимую конструкцию. За основу возьмем простейшую оценку ветровой нагрузки, которая равна 12 м/с до 90 кг/м2 и равномерно распределяется по опорным зонам полотна.
Как убедиться в том, что изготовленная вами конструкция даже при сильном ветре будет работать без перебоев? Для этого необходимо достичь того, чтобы прочность фурнитуры была больше расчетной массе ворот. Также учитывается боковой момент в 100 кг/м, умножаемый на 8 кг/м, что равняется 800 кг/м. В принципе это немного ~ на каждый опорный элемент по 150–180 кг/м.
Покупая роликовый механизм, убедитесь в том, что он имеет запас до 30% по соотношению веса ворот. Но этот показатель никак не влияет на срок эксплуатации. На это непосредственно влияет увеличение расстояния между центрами кареток.
Дополнительные расчеты

Кроме всего перечисленного, стоит уделить внимание и другим аспектам. Обратите внимание на рейку для ворот, опоры под роликовые каретки и на количество анкеров. Также важно правильно рассчитать закладные на опорных столбах. В этом случае необходимо отталкиваться от 60% всей массы ворот, поделенных на количество закладных.
Что касается расчета фундамента, то особых секретов здесь нет. Но несмотря на это не стоит упускать из виду эту составляющую, ведь нередко стоимость фундамента доходит до 40% от общей стоимости проекта.
Устройство
Устройство откатных ворот
Этот тип ворот имеет следующие элементы конструкции:
- Направляющая балка. Принимает на себя весь их вес.
- Тележка или роликовая опора. Их необходимо 2 шт.
- Съемный концевой ролик. В закрытом состоянии он служит опорой.
- Уловитель верхний/нижний. Нижний при закрытых воротах воспринимает нагрузку, а верхний уменьшает парусность.
- Кронштейн. Он важен для удержания створки от бокового качания.
- Подставка. На нее осуществляется установка опоры, которая организовывает передвижение створки.
На фундамент устанавливаются роликовые опоры, которые воспринимают на себя нагрузку направляющей балки. Ролики размещаются внутри несущей консоли.
Створка
Створка откатных ворот
К створке ворот также предъявляются высокие требования. Ее конструкция должна быть достаточно жесткой и устойчивой. Это важно, чтобы при сильном порыве ветра или гололедицы створка хорошо функционировала. Более того, ее необходимо оснастить дополнительными ребрами жесткости, чтобы она не провисала под собственным весом. Все это следует учитывать при создании чертежей.
Выбор комплектующих

Наличие тех или иных комплектующих напрямую зависит от высоты и ширины створки, а также ее веса. Так, сегодня на рынке можно найти ряд компаний, которые предоставляют качественное оборудование, а именно:
- Combi Arialdo и Flatelli Comunello из Италии.
- Ролтэк и Doorhan из России.
- Alutech из Беларуси.
Для примера, произведем некоторые расчеты. В базовой комплектации обязательно устанавливается несущая рельса, длиной в 6 м. И чтобы правильно подобрать к ней комплектующие, необходимо учитывать длину створки и плюс 40%. Также подбор осуществляется по длине направляющей балки и возможных нагрузок. Так, если ширина проема равняется 3,8 м, то длина створи равна 3,8 м + 40% = 5,32 м. В таком случае можно приобрести готовый набор с балкой 6 м.
Если ширина проема значительно превышает 4 м, то покупка комплектующих должна ориентироваться с учетом нагрузки в 500 кг. В них направляющая балка имеет толщину стенки 3,5 м, а сечение 71×65 мм. Если же ширина более 6 м, то необходимо брать из расчета нагрузку до 600 кг.
Монтажные работы
Монтаж откатных ворот
Движение полотна должно осуществляться с внутренней стороны участка, а именно вдоль забора. Отталкиваясь от этого необходимо подготовить место для ворот, чтобы абсолютно ничто не мешало этому процессу.
Процесс монтажа включает в себя 4 шага:
Изготовление фундамента

Этапы возведения фундамента:
- Сперва осуществляется разметка. От забора отмеряете 500 мм (ширина фундамента). Также отмеряете от края ворот расстояние, равное откату (длина фундамента). Так, вы будете видеть периметр будущего фундамента.
- Нередко получается использовать столбы опоры забора. Если такой возможности нет, тогда с противоположной стороны следует установить ответный столб. Его необходимо устанавливать так, чтобы он был внутри участка, а не в самом проеме. В противном случае он уменьшит ширину проема.
- Если ворота будут работать на автоматике, то обязательно организуйте место для прокладки проводки. Для этого можно использовать квадратную металлическую или пластиковую трубу/короб. Диаметр труб не меньше 25 мм.
- Теперь можно приступать к рытью котлована. Глубина траншеи до 2 м, ниже уровня промерзания грунта (в каждом регионе по-разному).
- Для изготовления закладного элемента можно использовать швеллер 16. Его длина должна соответствовать длине траншеи. В фундамент закладывается арматура Ø12 мм. Арматуру необходимо приварить к швеллеру и соединить ее поперечными связями.
- Таким образом, получившийся закладной элемент помещается арматурой вниз. При укладке проследите за тем, чтобы боковая часть швеллера прилегала к столбу опоры забора. Также швеллер необходимо выставить строго по уровню и ровно параллельно линии открывания ворот.
Закладной элемент должен быть вровень с дорожным покрытием. Минимальный зазор, который допускается между нижней кромкой ворот и дорогой равен 10 см. Этот промежуток можно будет увеличить при помощи регулировочной площадки. Но уменьшить этот зазор будет невозможным без нарушения креплений.
Монтаж закладной
Если по тем или иным причинам зазор в 100 мм не подходит, тогда осуществляете глубокую установку закладного элемента.
Что касается бетонных работ, то они осуществляются тогда, когда монтаж закладного элемента полностью выполнен. Уровень бетона должен быть вровень с закладным элементом.
Установка
Установка ворот
Когда фундамент застыл, можно приступать к установке ворот. Для этого в первую очередь необходимо произвести разметку. По линии проема, не доходя до ответного столба 30 мм, натягиваете шнур. Этот шнур является траекторией движения ворот. Высота натягивания шнура – 200 мм. Дальнейшая работа выглядит следующим образом:
- Определяете крайнее положение первой и второй роликовой опоры. От края проема отступите 15 см вдоль плоскости закладного элемента и прочертите линию положения крайней первой тележки. Линию второй тележки вычисляете следующим образом: измерьте всю длину ворот с консольной частью и отнимите 10 см от края ответного столба по плоскости закладного элемента. В результате вы определите расположение второй тележки.
- Теперь вставьте в несущий профиль роликовые опоры, разместив их в центре.
После необходимо приварить вторую тележку регулировочной площадки. Затем выкатите створку ворот в проем и произведите финишную регулировку положения. Сделайте небольшие прихватки сваркой второй регулировочной площадки, в результате действия выглядят так:
- Снимаете полотно с роликовой тележки.
- Далее снимаете тележки с площадок.
- К закладному элементу привариваете площадки.
- К ним закрепляете роликовые тележки.
- На роликовые опоры задвигаете полотно.
- Закрываете ворота и гаечным ключом производите настройку их положения.
Привод откатных ворот
Внутри несущего профиля выполняете отверстия, это необходимо для того, чтобы установить тележку правильно. Для этого ослабляете верхние гайки крепления тележек к площадкам. После этого прокатываете ворота туда/обратно. Если ход створки свободный, затягиваете гайки. Если имеются некоторые затруднения в передвижении створки, то крепеж слегка ослабляете и нивелируете все недостатки конструкции, например, поправляете перекосы тележки.
Установка роликов
- Теперь необходимо осуществить монтаж концевого ролика. Его следует вставить в несущий профиль и хорошенько затянуть болты. Также к профилю привариваете крышку концевого ролика. Это позволит ролику исполнять роль по концевому упору в случае ручного управления воротами. Но в таком случае крепление сваркой будет намного лучше, чем болт.
- Что касается заглушки несущего профиля, то его монтаж осуществляется с внутренней стороны ворот и приваривается по месту. Он необходим для того, чтобы снег не укатывался под ролики.
- Теперь к роликам монтируется верхний фиксатор. Поэтому ослабьте крепеж роликов и установите кронштейны так, чтобы его сторона была направлена к опорному столбу, а ролики захватывали верх полотна. Учитывая это, прижмите к столбу кронштейн и зафиксируйте его.
На следующем этапе работ осуществляется обшивка каркаса ворот. Для этого можно использовать профилированные листы металла. Их необходимо нарезать по размеру створки. Крепеж осуществляется заклепками или саморезами. Каждый последующий лист монтируется внахлест.
Тележка
Когда обшивка выполнена можно производить к монтажу нижнего/верхнего уловителя. Нижний уловитель выполняет роль по уменьшению нагрузки на роликовые тележки в закрытом состоянии. Поэтому их необходимо устанавливать при нагруженных воротах. Под концевой ролик подводите нижний уловитель при полностью закрытых воротах таким образом, чтобы опорная плоскость уловителя была выше уровня концевого ролика. Что касается установки верхнего уловителя, то происходит этот процесс таким же образом.
Уловители
В завершение остается осуществить монтаж автоматики. Для этого закрепляете зубчатую рейку, которая подразумевает под собой универсальную деталь с электроприводом. Обычно она включена в комплект крепежного элемента.
Выбор автоматики

Выбор автоматики напрямую зависит от веса ворот:
- Для проема в 4 м используется привод – 500–600 кг.
- Для проема в 4–6 м используется привод – 600–1300 кг
- Для случаев с интенсивным открыванием ворот используется привод – 1200–1800 кг.
Окраска
Окраска ворот
Все металлические элементы ворот необходимо покрасить. Предварительно обезжирьте поверхность. Для этого зачистите поверхность и отшлифуйте шлифовальным диском на болгарке. Некоторые места, например, защищенные, протрите ацетоном. Теперь можно приступать к грунтовке. Наносится она равномерно. Более того, грунтовка должна наноситься так, чтобы не было капель и разводов. Благодаря таким подготовительным работам краска ляжет равномерно. В результате вся конструкция ворот будет полностью защищена от появления коррозии.
Наносить краску следует двумя слоями и только после полного высыхания первого.
Необходимые инструменты для работы

Для проведения всех работ, вам потребуется иметь такой инструмент:
- Инверторный сварочный материал. Такой агрегат не испортит металл.
- Болгарка.
- Воздушный компрессор для покраски.
- Пассатижи.
- Дрель.
- Рулетка.
- Уровень.
- Клепатель.
Распространенные ошибки

Если вы не имеете достаточного опыта в выполнении таких работ, то существует большой риск допуска некоторых ошибок:
- Недостаточно хорошая подготовка фундамента.
- Неправильный монтаж и крепеж всех комплектующих.
- Неправильно подобранная масса ворот под несущую балку.
- Если слышен скрип, то это свидетельство попадания песка в подшипники.
- Нельзя допускать потеки краски.
- Обязательно учтите глубину промерзания грунта. В противном случае столбы могут перекоситься в одной из сторон.
Видео: изготовление ворот
Фото: вариантов готовых откатных ворот:
Автоматические кованые ворота
Автоматика откатных ворот
Деревянные откатные ворота
Кованые
Красивое оформление ворот
Механические
Металлические

Откатные ворота на даче
С автоматикой
Со встроенной калиткой
Вид со двора
Уличные откатные ворота
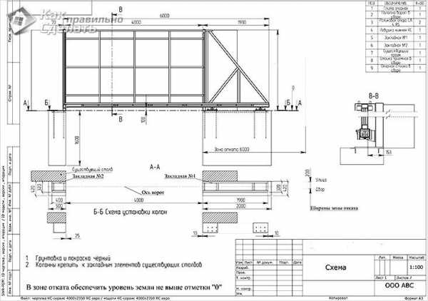
Схемы
На схемах можно найти немало конструктивных деталей по изготовлению откатных ворот:
Чертеж ворот на 4 метра
Конструкция
Методы крепления откатных ворот
Сборочный чертеж
Схема откатных ворот и проема
Комплектация
Основание под ворота
Подготовка проема
Схема постройки
Установка колонн
Схема установки закладной
Смотрите также
Источник
Тематические статьи
highlogistic.ru
Откатные ворота своими руками — чертеж, схема, конструкция, инструкция. Монтаж, изготовление, установка,
Далее предлагаю рассмотреть все этапы самостоятельного изготовления, и что для этого понадобится.
Для начала нужно убрать растительный грунт в месте, где будут стоять ворота, чтобы он не мешал разбивочным и другим работам. Чтобы сделать точную разбивку понадобятся рулетка, четыре куска арматуры по одному метру и электроды.
Арматуру можно использовать диаметром 10-12мм, и она нужна, чтобы обозначить основные продольные и поперечные оси, а электроды пойдут для указания временных. Во время разбивки не забивайте глубоко арматуру, пока не перепроверите все размеры, и не совпадут диагонали. Арматуру нужно забивать таким образом, чтобы на поверхности осталась часть примерно 15-20см к которой в дальнейшем можно привязывать шпагат или леску, а от них уже выносить вспомогательные оси с фиксацией электродами.
Земляные работы
После разбивки можно приступать к копанию ям и траншей. Понадобиться выкопать две ямы под фундаменты столбов ворот, еще одну для швеллера (закладной детали роликовых опор), и траншеи под укладку гильзы с проводкой для подключения в будущем элементов автоматики ворот.
Размер приямков в плане будет зависеть от длины и ширины столба, например, если он 38х38см, то приямок должен быть таким, чтобы в итоге фундамент был 40х40см, это позволит в дальнейшем без проблем начать кирпичную кладку столба. Для фундамента закладной детали (швеллера) яма должна иметь длину равную половине ширины проема ворот.
Приямки фундаментов откатных ворот

Что касается глубины копания, то все ямы должны быть не меньше нормативной глубины промерзания, которая в среднем по Украине 1-1,2м. Этого условия нужно придерживаться, иначе в зимний период возможно выталкивание фундамента наружу. При копании возможно осыпание стенок, поэтому нужно сколотить опалубку, пусть даже из бэушных досок, потому что внешний вид на данном этапе не интересует, так как фундаменты будут в земле.
Дно всех отрытых ям нужно пролить водой, чтобы утрамбовать взрыхленный грунт при копании. Чтобы в будущем не ломать проезд для прокладки электропроводки автоматики ворот, рекомендую сразу заложить под него гильзу с проводами, для этого нужно выкопать траншею глубиной 80-90см. Для гильзы подойдет водопроводная пластиковая труба диаметром 15-20мм.
Перед укладкой трубы в траншею ее открытые торцы нужно закрыть полиэтиленом, чтобы не попадали грязь и влага. Когда гильзу закопаете, обратную засыпку нужно пролить водой, чтобы не проседал грунт, так как от этого может потрескаться поверхность проезда.
Металлические изделия столбов
Эти элементы послужат сердечниками в кирпичной кладке столбов, чтобы усилить конструкцию, а также к ним крепить закладные детали нащельников. Как вариант можно использовать квадратные трубы 80х80мм или 100х100мм.
Верхняя (надземная) часть сердечника должна быть немного ниже, чем кирпичная кладка столба, чтобы его без проблем можно было накрыть козырьком. Например, если столб высотой 2м, то сердечник должен быть около 1,95м.
Подземная часть не должна достигать дна ямы примерно в пять сантиметров, чтобы при укладке бетона образовался защитный слой бетона для металла. То есть при глубине ямы в один метр, нижняя часть сердечника должна быть 95см.
Еще для того, чтобы сцепление трубы с бетоном было выше, к ней в нижней части крестообразно можно приварить два куска арматуры диаметром 8-10мм и длиной 20-25см. Когда трубы будут находиться в приямках, накройте их верхний край чем-нибудь, чтобы вовнутрь не попадал дождь.
Закладная деталь
К установке данного элемента следует подойти ответственно, потому что от этого во многом будет зависеть нормальная работа ворот, тем более, если Вы их автоматизируете. Для закладной детали подойдет швеллер шириной 16-20см, длина которого должна быть равной ширине воротного проема.
Для того чтобы он прочно удерживался в фундаменте нужно конструктивно к нему приварить арматуру. Для этого можно закрепить четыре куска арматуры длиной по 90см с каждой стороны швеллера и связать их перемычками из той же арматуры диаметром 8-10мм.
Общий вид закладной детали

Устройство фундаментов (бетонирование)
Когда все необходимые металлические элементы подготовлены, можно приступать к бетонным работам. В качестве материала фундамента обычно применяется бетон марки М200, а чтобы его приготовить, нужно соблюдать такую пропорцию: на 1-но ведро цемента, 3 ведра песка, 3 ведра щебня (фракция 20х20, 20х40) и ориентировочно 20% воды от общего объема замеса.
Бетонируйте при положительных температурах атмосферного воздуха, тогда не придется тратить деньги на покупку противозаморозковых добавок.
До того как начать заливку проверьте вертикальность и горизонтальность установленных элементов уровнем, чтобы не было никаких перекосов. Также все металлические конструкции, установленные в приямках, должны быть надежно закреплены, чтобы не было смещения под давлением бетона.
Швеллер должен находиться в строгом горизонте с поверхностью уже существующего или планируемого проезда, потому что это в дальнейшем скажется на правильной установке роликовых кареток и ворот в целом.Установка створки считается правильной, если зазор между ней и проездом 7см.
Металлоизделия перед бетонированием

После того как правильность установки подтверждена можно приступать к заливке. При подаче бетона в приямок постоянно его трамбуйте, чтобы в его теле не было пустот. После окончания бетонирования верх фундаментов нужно загладить, чтобы не было раковин или неровностей.
Забетонированный сердечник

Если бетонирование проводилось в жару, необходимо фундаменты накрыть от попадания солнечных лучей, а также регулярно смачивать в течение 2-3 дней, чтобы не было образования трещин.
Дальнейшие работы желательно продолжить минимум через неделю, чтобы бетон набрал прочности.
Кирпичная кладка с установкой закладных деталей
Итак, когда фундаменты набрали прочность, можно переходить к следующему этапу работ, а именно к кирпичной кладке столбов с установкой закладных деталей для крепления нащельников.
Закладную деталь можно сделать из уголка 50х50мм и арматуры диаметром 8мм длина, которой будет равна половине ширины столба.
Чтобы нащельник прочно держался на столбе, нужно заложить три закладные. Самая нижняя устанавливается после первых трех рядов кирпичной кладки, средняя по центру, а верхняя на пару сантиметров ниже, от верха створки будущих ворот.
Первая закладная деталь

Закладные детали нащельника на столбе

Изготовление створки
Я рекомендую перед началом изготовления створки сделать подробный чертеж Ваших ворот, чтобы в дальнейшем не «вылезли» ошибки.
При покупке рекомендованной нами фурнитуры для откатных ворот производителя Світ Воріттм (ссылка), которая имеет гарантию в 5 лет, наши специалисты бесплатно выполнят чертеж конкретно Ваших ворот со всеми необходимыми размерами и подробными спецификациями необходимого количества материалов, чтобы Вы не покупали ничего лишнего.
Чертеж откатных ворот
Перед тем, как изготавливать створку, все металлические элементы должны быть очищены от ржавчины, обезжирены и прогрунтованы.
Удобно и практично несущий каркас ворот делать из труб квадратного сечения размером 60х40мм или 60х30мм, а дополнительный из тр.30х20мм.
Разнесенный каркас ворот

Кроме труб у Вас должен быть в наличии направляющий рельс, потому что он крепится к створке, а кроме того, с него начинается весь набор каркаса.
Направляющая рейка

Для удобства соединения всех элементов створки, к направляющему рельсу временно можно приварить две трубы, которые будут являться подставкой.
Подставки на направляющем рельсе

Первые элементы, которые между собой соединяются, это направляющий рельс и нижняя труба несущего каркаса. Соединение производится при помощи сварки прихватками, шаг которых 60-70см, а длина шва 15-20мм.
Сварка выполняется с двух сторон в шахматном порядке. Сварной шов ни в коем случае не должен быть сплошным, иначе поведет направляющий рельс, и ворота в дальнейшем не смогут нормально перемещаться.
Нижняя труба каркаса и направляющий рельс

Когда первые два элемента соединили, устанавливаем вертикальные стойки на нижнюю трубу при помощи гидравлического уровня и обвариваем сплошным швом.
Первая вертикальная труба каркаса ворот

Вторая вертикальная труба каркаса ворот

Потом устанавливаем верхнюю перемычку:
Верхняя перекладина каркаса

Потом диагональ:
Диагональная труба каркаса

Каркас из несущих труб изготовлен.
По внутреннему периметру сделанной рамы привариваем вспомогательные планки из трубы 30х20мм для создания жесткости полотна ворот, а также, чтобы в дальнейшем к ним крепить профнастил.
Внутренний каркас

Горизонтальная перемычка внутреннего каркаса

Горизонтальная перемычка внутреннего каркаса

Крепить вспомогательную раму нужно по центру несущих труб, чтобы профнастил был слегка утоплен.
Крепление труб каркаса друг к другу

Кода каркас набран и сварочные работы окончены, нужно зачисть все швы шлифмашиной (болгаркой), а потом всю раму прогрунтовать и покрасить в три слоя, чтобы обеспечить надежную защиту от коррозии.
Далее можно крепить профнастил при помощи саморезов по металлу длиной 19мм. Каждый лист при креплении к створке нужно примерять отдельно, чтобы он максимально точно вписался в раму.
Зашивать створку в треугольной части не принципиально, потому что она не попадает в створ ворот.
Готовая створка откатных ворот

Вот в целом и все, что нужно для изготовления створки, далее рассмотрим, что еще понадобится для перемещения ворот и как эти элементы устанавливаются.
Крепление нащельников
Общий вид нащельника для откатных ворот

Нащельники необходимы, чтобы на них держалась фурнитура, а также они закрывают зазор между створкой и столбом ворот.
Нащельник – это металлическая труба прямоугольного сечения размером 60х30мм или же 60х40мм, который приваривается к закладным деталям, расположенным на столбах.
Чтобы установить один из элементов фурнитуры, а именно верхнюю пластину с роликами, в нащельнике, который расположен со стороны швеллера (закладной детали) необходимо сделать вырез размером 60х40мм.
Вырез в нащельнике для верхней пластины с роликами

Фурнитура, которая обеспечивает работу ворот
Фурнитура для откатных ворот. Комплектация

Направляющий рельс. Я уже писал, что этот элемент крепится к нижней трубе каркаса створки. От того, каким будет качество его исполнения, зависит плавное и легкое перемещение ворот.
Рельс по всей длине обязательно должен быть ровным, а чтобы ворота не заклинивали, нижние его полки должны находиться в едином горизонте, что также обеспечит долговечную работу роликовых опор.
Проверка нижних полок, чтобы находились в одном горизонте

Что касается структуры металла, а точнее его поверхности, то она не должна иметь раковин ил окалин, чтобы ролики во время работы не создавали грохот. Сам металл, из которого он сделан, должен быть с повышенным содержанием углерода.
Роликовые опоры.
Общий вид роликовых кареток

Эти элементы бывают с металлическими или полимерными роликами, и сразу скажу, что в наших климатических условиях, полимеры работают не долго.
Все дело в том, что полимеры не переносят низких или высоких температур – в первом случае они становятся хрупкими и ломаются, а во втором становятся как пластилин и не способны дальше нормально работать ввиду потери формы.
Еще при выборе роликовых опор нужно обращать внимание на подшипники, которые должны иметь металлорезиновые пыльники с обеих сторон, чтобы защитить движущиеся механизмы от пыли и влаги.
Также нужно обращать внимание, чтобы ход «головы» каретки не был тугим, это нужно для того, чтобы при перемещении ворот каретка наклонялась в направлении движения створки, уменьшая силу трения, которая затрудняет ход и увеличивает износ роликов.
Наклон роликов опоры

Немаловажно, чтобы была качественно выполнена антикоррозийная защита, ведь опоры регулярно контактируют с атмосферными осадками. Ее можно наглядно проверить – если на покрытии есть темные пятна, то это говорит о том, что слой нанесен неравномерно и имеет «проседания».
Между роликами опор и направляющим рельсом есть люфт, который должен быть не более одного миллиметра, чтобы ворота не клевали, в противном случае они могут не попадать в улавливатели, так как створка будет проседать.
Зазор между роликами каретки и направляющим рельсом

Проверка люфта между опорой и направляющим рельсом

Верхняя пластина с роликами нужна, чтобы направлять створку строго по прямой линии, а также удерживать ворота.
Пластина верхняя с роликами

Этот элемент бывает с двумя или четырьмя роликами, количество зависит от массы ворот. Ролики могут иметь пластиковое или резиновое покрытие, и второе техническое решение практичнее, потому что резина при контакте с полотном его не царапает.
Общий вид верхней пластины с роликами

Нижний концевой ролик обеспечивает заход створки в улавливатели. В основном все производители перешли на изготовление данного элемента из полимеров, но остались еще и такие, которые отдают предпочтение металлу.
Нижний концевой ролик

Нижний улавливатель предназначен для приема створки и частичного снятия нагрузки с роликовых опор от ворот, когда они находятся в закрытом положении.
Замер толщины стали нижнего улавливателя

Чтобы этот элемент прослужил как можно дольше и не гнулся под натиском ворот, толщина его стенок должна быть не менее 3мм.
Верхний улавливатель принимает ворота и удерживает их верхний угол, чтобы он не болтался на ветру. Из-за того, что эта часть фурнитуры не имеет полки в отличие от нижнего улавливателя, которая предает жесткость, толщина металла из которого он сделан должна быть не менее 4мм.
Замер толщины стали верхнего концевого улавливателя

Учитывайте, что не каждый производитель комплектует свою фурнитуру данным элементом, поэтому при покупке той или иной модели уточняйте его наличие.
Резиновые заглушки предназначены для закрывания торцов направляющего рельса, чтобы в него не попадали снег или грязь. Чтобы эти элементы прочно держались, необходимо наличие гофрированной части.
Резиновые заглушки. Общий вид

Монтажную пластину ни один из производителей не включает в комплект, но я рекомендую ее приобретать, потому что установка роликовых опор при ее наличии будет значительно проще и быстрее.
Регулировочная пластина

Если устанавливать опору без пластины, то ее сначала прихватывают сваркой, потом проверяют ход ворот и если есть перекосы сварку необходимо срезать и заново выставить опоры. Все это нужно будет делать, пока ворота не будут нормально перемещаться.
При наличии пластины все поправки делаются при помощи четырех регулировочных болтов.
Замок для запирания. Этот элемент не входит в комплект фурнитуры, но если Ваши ворота не автоматизированы, он Вам обязательно необходим. При выборе замка смотрите, чтобы основные детали механизма были из латуни, а не из силумина, который под влиянием окружающей среды быстро окисляется и выходит из строя.
Замок предназначенный для откатных ворот

Установка верхней пластины с роликами
Пластина приваривается к металлическому нащельнику, который должен иметь специальный вырез 60х40мм.
Верхняя пластина с роликами

Один край пластины устанавливается между нащельником и кирпичной кладкой, а потом весь элемент приваривается по периметру. Следите за тем, чтобы пластина имела горизонтальное положение.
Установка роликовых опор
Роликовые опоры должны быть установлены на закладной детали как можно шире, чтобы уменьшить плечо ворот.
Роликовые каретки. Установка

Их можно крепить и выставлять в необходимый размер двумя способами: прямо на основание или с монтажной пластиной.
Установка на основание. Каретки ставят на швеллер и прихватывают их сваркой. Потом нужно проверить ход ворот, и если он затруднен или имеются перекосы, сварку нужно срезать болгаркой и выставить опоры заново и опять прихватить. Все это нужно делать пока не добьетесь нормального движения ворот.
Установка роликовой каретки без монтажной пластины

Таким способом установки пользуются многие, но он занимает много времени по сравнению с установкой при помощи монтажных пластин.
Установка с монтажной пластиной. К швеллеру приваривается монтажная пластина, а на нее уже ставится роликовая опора. Все регулировки делаются при помощи четырех болтов, а точнее вращением гаек, которые на них расположены.
Роликовая опора с монтажной пластиной

Установка концевого ролика и нижнего улавливателя
Когда роликовые опоры выставлены, переходим к установке нижнего концевого ролика, который заводится в направляющий рельс и крепится двумя болтами.
Концевой ролик в направляющей рейке

Нижний улавливатель крепится к нащельнику сваркой. Перед тем как его капитально приварить, нужно подвести к нему створку и убедиться, что ролик наезжая на полку будет приподнимать створку на 3-4мм. Только после этого можно делать полный обвар мест соприкосновения свариваемых деталей.
Нижний улавливатель

Установка верхнего улавливателя
Верхний улавливатель, удерживающий створку

Как и нижний улавливатель, этот элемент крепится к металлическому нащельнику при помощи сварки.
Установка резиновых заглушек для направляющего рельса
Заглушки вставляются в рельс с двух торцов гофрированной частью. Они легко устанавливаются вручную, то есть, нет необходимости в использовании каких либо инструментов.
Автоматизация откатных ворот
Чтобы автоматизировать Ваши ворота, понадобится такой минимальный комплект:
- Привод с блоком управления
- Зубчатая рейка
- Пара пультов
Еще можно к минимальной комплектации добавить дополнительные элементы управления и безопасности.
Автоматика откатных ворот (здесь)
Видео изготовления откатных ворот
novi-vorota.com.ua
чертежи, инструкция, как сделать и установить?
Сделать откатные ворота своими руками довольно просто.
В настоящее время такая конструкция ворот пользуется большой популярностью, поскольку комплектующие, привод и автоматика для нее стала гораздо дешевле, чем была раньше.
Такое устройство ворот позволяет сэкономить много времени, если приходится выезжать из двора довольно часто.
К тому же монтаж откатных ворот прост, и изготовить их самому получится с легкостью. Подробная инструкция о том, как это сделать, находится в статье.
Откатные ворота
В настоящее время в большинстве частных домов стоят простые распашные ворота.
Причин такой распространенности несколько:
- во-первых, их конструкция очень проста – два столба, две створки и четыре петли. В то же время для откатных ворот нужны сложные комплектующие: привод, ролики, направляющие, уловители;
- во-вторых, еще относительно недавно стоимость самых простых откатных ворот была очень высокой. Как говорят, комплект фурнитуры для таких ворот стоил как подержанная машина. Разумеется, позволить себе откатные ворота мог далеко не каждый человек, а уж ворота с электроприводом были чем-то из разряда фантастики.
На сегодняшний день эти комплектующие стали значительно доступнее, и практически каждый может установить себе такие ворота во дворе в частном секторе или на даче.
В то же время появилось множество фирм, которые с легкостью могут изготовить и установить под заказ откатные ворота любого вида. Они различаются некоторыми конструктивными особенностями и методом движения.
Видео:
Подвесные ворота движутся на колесах-роликах по установленной над проемом ворот направляющей, в которой установлен механизм привода.
Снизу имеется просвет, благодаря которому створка спокойно движется, не застревая в снеге или грязи. Такая конструкция имеет один недостаток – ограничение проезжающего транспортного средства по высоте.
В помещениях или местах с теплым климатом часто используется такое устройство ворот, при котором ролики опираются на поверхность земли.
В наших климатических поясах они встречаются довольно редко, поскольку в направляющую будут часто набиваться мусор, грязь и снег, что существенно затруднит продвижение створки. Не каждому придется по душе регулярно их чистить.
Наибольшее распространение получили консольные ворота. Они избавлены от недостатков, присущих двум предыдущим вариантам, и не зря считаются наиболее удачным конструктивным решением.
Стоимость таких ворот будет несколько выше, чем у обычных распашных, однако можно существенно сэкономить, не заказывая их изготовление и установку в специальной фирме, а сделав их самому.
Автоматические откатные ворота своими руками сделать можно, не обладая каким-то строительным образованием, они к тому же могут быть с электроприводом.
Для этого нужны все необходимые комплектующие (ролики, автоматика, направляющие, уловители), несколько металлических труб, набор инструментов и материалов, нужных для бетонирования и сварки.
В настоящее время довольно легко купить все комплектующие в одном наборе – детали в нем будут подогнаны друг под друга.
Необходимые инструменты (сварочный аппарат, болгарку, шуруповерт, лопату, гаечные ключи), если их нет в наличии, можно купить или взять напрокат у соседей или в строительной фирме.
Если у человека нет нужных навыков для работы со сварочным аппаратом, то желательно позвать на помощь того, кто может выполнить сварку качественно и без ущерба для здоровья.
Начальный этап работы
В первую очередь нужно купить все нужные комплектующие, трубы и иметь в наличии инструменты для работы.
После того как все закупки сделаны, можно начинать подготовительные работы, сборку и монтаж откатных ворот.
Для начала необходимо убрать растительность и расчистить участок земли, на которой будут устанавливаться будущие ворота.
Нужно подготовить место для сборки каркаса. Размеры такой площадки должны быть больше, чем сами ворота.
Фото:

Конструкция и советы по установке
Рекомендуется перед началом установки начертить схемы будущих ворот с размерами и деталями. Это значительно облегчит дальнейшую сборку и монтаж откатных ворот.
Перед сборкой каркаса трубы рекомендуют почистить от ржавчины и окалины, обработать растворителем и прогрунтовать.
После того как вся необходимая подготовка к установке сделана, можно приступать к земляным работам – вырыть ямы под фундамент.
Даже если уже есть установленные металлические столбы, например, от предыдущих распашных ворот, то необходимо выкопать яму под фундамент для закладной детали (основания, на котором находится привод) и траншею для укладки в нее электрических проводов, питающих привод.
Провода лучше уложить в пластиковую трубу, которая защитит их от влаги и грязи.
Ямы, в которых будет заложен фундамент для столбов, должны быть немного больше размеров самих столбов.
Яма, в которую укладывается закладная деталь, должна иметь ширину около двадцати – двадцати пяти сантиметров и длиной в половину ширины воротного проема.
Глубина всех ям под фундамент должна быть большей, чем глубина промерзания грунта. В противном случае при заморозках фундамент может выталкиваться наружу, что нарушит работу ворот.
Если стенки ям под фундамент постоянно осыпаются, то рекомендуют сделать опалубку из досок. Они могут быть уже использованными, поскольку в дальнейшем их не будет видно. Дно ям под фундамент рекомендуют полить водой, чтобы грунт утрамбовался.
Столбы рекомендуют использовать квадратные, с длиной стороны восемьдесят или сто миллиметров. Это в дальнейшем упростит сварочные работы и позволит с легкостью обложить их кирпичом, улучшив их внешний вид.
Видео:
Внизу к столбам советуют приварить арматуру диаметром восемь – двенадцать миллиметров – это укрепит фундамент и сцепление бетона с металлом.
Для изготовления закладной детали понадобится швеллер шириной шестнадцать – двадцать миллиметров и длиной в половину ширины воротного проема.
К швеллеру нужно приварить длинные (около метра) куски арматуры, с каждой стороны по четыре штуки, и скрепить их поперечными железными прутьями.
Такая конструкция обеспечит прочный фундамент, таким образом, основание будет крепко держаться на одном месте.
После завершения подготовки изделий из металла можно начинать бетонирование. Его рекомендуют проводить в теплое время года, в противном случае необходимо будет купить специальные противозаморозковые добавки.
Верх закладной детали должен быть на одном уровне с поверхностью земли в проеме. После того как фундамент отвердеет (около недели), можно начинать монтаж каркаса.
Дальнейшие работы
Для каркаса автоматических откатных ворот с электроприводом лучше использовать квадратные или прямоугольные трубы.
Монтаж каркаса можно проводить в вертикальном или горизонтальном положении. Во втором случае необходимо, чтобы площадка, на которой будет проводиться сборка, была ровной, иначе трубы могут быть скреплены неровно.
Схема каркаса очень простая: периметр каркаса сваривается из труб размеров шестьдесят на сорок миллиметров (или схожих), а для внутренних перегородок используются трубы тридцать на двадцать миллиметров. Таким образом, каркас получается в виде прямоугольника, размерами совпадающий с проемом ворот.
Однако нельзя забывать про противовес – без него давление на определенные узлы будет слишком большим, и ворота просто упадут через какое-то время.
Для противовеса с одной стороны каркаса приваривается треугольник, длина его основания должна совпадать с длиной закладной детали.
Стоит отметить, что чтобы собрать откатные ворота своими руками, чертежи каркаса желательно нарисовать заранее – это облегчит монтаж и сварные работы. Схемы можно как найти в Интернете, так и начертить самостоятельно.
Фото:
После того как монтаж каркаса закончен, к его нижней части нужно приварить направляющий рельс длиной в полторы ширины проема ворот.
На этапе закупки необходимо убедиться, что он ровный, поскольку по нему будут двигаться ролики, и в случае кривизны направляющей весь механизм ворот может заклинить, а электрический привод может выйти из строя.
Рисунок профиля тоже важен – в случае его неправильности изменится нагрузка на ролики, что приведет к обязательной поломке подшипников.
После окончания сварочных работ оставшиеся швы рекомендуют зачистить болгаркой, весь каркас нужно прогрунтовать и покрасить.
Затем можно начинать монтаж на каркас профнастила. Для этого понадобятся листы этого материала, саморезы по металлу длиной девятнадцать миллиметров и шуруповерт или дрель.
Монтаж профнастила в треугольник противовеса лучше не проводить, поскольку его видно с улицы не будет, а лишние траты материала вряд ли нужны.
Автоматические откатные ворота – вещь красивая, но еще лучшего внешнего вида можно добиться, обшив установленные столбы кирпичом. Благодаря квадратному сечению трубы сделать это довольно просто.
В ряду кирпичей нужно сделать три закладных детали для дальнейшей установки нащельника. Сначала к столбу приваривается горизонтальный кусок арматуры.

Наглядное изображение
Затем к выступающему концу этой арматуры крепится металлический уголок таким образом, чтобы он лежал на кирпиче, и одна его сторона выходила наружу.
Верхнюю закладную деталь лучше установить в двух-трех рядах кирпича от верха столба, нижнюю – так же, только снизу, среднюю – примерно посередине.
Далее к этим выступающим из ряда кирпичей уголкам приваривается нащельник – прямоугольная труба размерами шестьдесят на сорок миллиметров.
Установка комплектующих
Механизм работы откатных ворот во многом зависит от роликов, по которым они ездят. Поэтому рекомендуется покупать металлические ролики, а не полимерные.
В подшипниках должны обязательно быть металлорезиновые пыльники, предохраняющие от проникновения в механизм роликов влаги и грязи.
Верхнюю пластину, служащую держателем верхней части створки и одновременно направляющей, лучше приобретать с резиновыми роликами, поскольку пластиковые аналоги зачастую оставляют царапины на металле.
В первую очередь нужно установить основной механизм, благодаря которому ворота будут двигаться – электрический привод и ролики.
Ролики рекомендуют установить на монтажную пластину и прикрутить входящими в комплект болтами, затем приварить к закладной детали.
Механизм движения откатных ворот подразумевает установку двух таких роликовых опор, их следует расположить по краям закладной детали.
Далее проводится монтаж верхней пластины с роликами – ее приваривают к установленному нащельнику.
Чтобы приблизить ворота к столбам, в нащельник вверху вырезается прорезь под размеры второго ролика, который туда заводится.

Затем рекомендуется проверить, как двигаются ворота. Если никаких перекосов нет, то устанавливают остальные комплектующие, в противном случае болтами регулируется высота роликов на закладной детали.
На противоположной части откатных ворот в нижней части устанавливается концевой ролик. На нащельнике на дальнем краю ворот устанавливается нижний улавливатель.
Это устройство представляет собой коробку из стали с открытыми верхом и одной стороной. Концевой ролик, попадая в этот улавливатель, должен поднимать ворота на два-три миллиметра. Это необходимо для снижения нагрузки на установленные ролики в закрытом положении ворот.
На верхней части нащельника крепится верхний улавливатель. На направляющий профиль с обеих сторон рекомендуют установить заглушки, чтобы не допустить попадания в него и в механизм роликов грязи и влаги.
Автоматические откатные ворота, то есть использующие для своего движения электрический привод, хоть и обходятся дороже, но гораздо удобнее простого откатного аналога.
Если автоматика в воротах отсутствует, то придется врезать в ворота обычный латунный замок с ключами.
Это не очень удобно, поскольку при плохой погоде гораздо проще не выходя из машины нажать кнопку на пульте и, запустив электрический привод дистанционно, открыть ворота, чем мокнуть под дождем, открывая ворота ключами.
Чтобы автоматизировать откатные ворота, понадобится электрический привод, пульты дистанционного управления и провода.
Видео:
Чтобы провода не подвергались воздействию влаги и грязи, их рекомендуют уложить в пластиковую трубу и расположить в земле на небольшой глубине.
Собрать и установить автоматические откатные ворота своими руками не так уж и сложно.
Для этого понадобятся комплектующие, инструменты, электрический привод, несколько квадратных труб и профнастил. В этой статье есть подробная инструкция, как это сделать, сэкономив при этом много финансов и получив удовольствие от качественно выполненной работы.
stoydiz.ru
Как сделать откатные ворота своими руками?!

Откатные ворота с каждым годом все больше вытесняют своих устаревших конкурентов, поскольку действительно обладают наивысшими показателями качества. К тому же, они стильно смотрятся и сочетаются с любым видом забора (главное, чтобы он был прямым), а большое разнообразие материалов позволяет подбирать наиболее оптимальные практические свойства.
Содержание
Единственным недостатком откатных ворот является их высокая стоимость, которая раньше довольно серьезно сказывалась на их популярности. Сегодня же цены стали более доступными, а особенно дешево желаемая конструкция обойдется тем, кто решит изготовить ее самостоятельно.
Почему выгодно изготовить откатные ворота своими руками?

Сделать откатные ворота своими руками – это значит не только сэкономить на оплате труда рабочим, но и убедиться в качестве использованного материала, фурнитуры и автоматики. Действительно надежные комплектующие даже крупные компании своим клиентам предлагают крайне редко. Обычно заказчик не разбирается в подобных мелочах, в итоге получает самые дешевые детали за высокую цену.
Такие откатные ворота служат в лучшем случае пару лет, а потом требуют серьезного ремонта или замены рабочих элементов. При этом многие производители не предоставляют долгосрочные гарантии, и устранение неполадок полностью ложится на плечи клиента. Именно поэтому лучше потратить немного собственного времени и сделать откатные ворота самостоятельно. На самом деле это не так уж сложно, как кажется на первый взгляд.
Этапы подготовительных работ
В начале каждого удачного строительства лежит грамотное планирование. При изготовлении откатных ворот своими руками лучше всего выполнить следующие подготовительные работы с повышенным вниманием к каждой мелочи:
Замеры
Специалисты рекомендуют делать откатные ворота в ширину не менее 4 метров, чтобы они спокойно могли пропускать не только легковой, но и грузовой транспорт. В высоту достаточно отмерить 2 метра. Впрочем, за лишние сантиметры не придется доплачивать баснословные суммы производителям, так что при самостоятельном изготовлении ворот можно без труда увеличить их размеры до желаемого. Для этого нужно лишь прикинуть, какие автомобили будут въезжать на территорию, и отталкиваться от их габаритов.
Выбор типа откатных ворот
Откатные ворота могут быть подвесными, консольными или рельсовыми. Для бытовых нужд, то есть для установки на дачном участке или во дворе частного дома лучше всего подходят именно консольные. Их проще всего сделать, да и в использовании они наиболее удобны. Состоят они из самих консольных блоков, рамы, концевых роликов и их улавливателя, поддерживающей скобы и направляющих рельсов.
Выбор материалов и инструментов

Чтобы самостоятельно сделать откатные ворота консольного типа, понадобится следующий набор инструментов и материалов:
- Сварочный аппарат;
- Совковые и штыковые лопаты;
- Ручной бур;
- Защитные строительные очки;
- Отрезной круг диаметром 125 мм;
- Болгарка;
- Саморезы, арматура;
- Щебень, песок, цемент.
Также понадобятся все составляющие откатных ворот, указанные на картинке:

Материал для самого полотна выбрать несложно. Если хочется добиться идеального соотношения цены и качества, то лучше всего остановиться на профнастиле. Это металл, спрессованный в листы, который отличается относительно небольшим весом, длительным сроком службы, устойчивостью к внешним факторам, простым уходом и привлекательным внешним видом. Расцветок данного материала существует целое множество, ведь можно покрасить лист подходящей краской любого необходимого оттенка.
Фундамент
Перед тем как изготовить откатные ворота, необходимо сделать для них устойчивый фундамент. Он представляет собой простую столбчатую конструкцию. Для ее установки необходимо:
- Сделать разметку для ямы, взяв за ее основу зону свободного движения створки.
- В соответствии с полученными замерами выкопать траншею в глубину не менее 1 м.
- В траншею установить закладной элемент из швеллера шириной примерно 20 см и приваренных к нему отрезков арматуры (по 1 см в длину).

- С другой стороны швеллера (снизу) также приварить куски арматуры, по длине равные глубине ямы.
- Залить яму бетоном и оставить до полного застывания – минимум на 7 дней. Раствор можно приготовить из мелкого щебня, песка и цемента. При этом он должен покрывать не всю конструкцию – кусочки арматуры по 1 см должны остаться наверху.
Если речь идет об автоматических откатных воротах, то сразу после укладки фундамента нужно произвести и разводку кабелей.
Как сделать откатные ворота своими руками: пошаговая инструкция
Пока фундамент достигает нужного уровня прочности, следует заняться изготовлением основного полотна. Его следует начинать с каркаса, который также иногда называют рамой. Для этого используют стальные трубы соответствующего размера. Перед началом работы необходимо очистить их от грязи, ржавчины и налета с помощью растворителя или бензина.
Подготовленные трубы соединяют в квадратную или прямоугольную раму, в зависимости от формы ворот. Это легко сделать с помощью сварочного аппарата. Также на этом этапе рекомендуется обработать трубы грунтовкой, чтобы уберечь их от коррозии. После этого можно покрасить каркас в выбранный цвет и ждать его высыхания.

Далее изготовление откатных ворот своими руками происходит по следующему плану:
- Каркас обшивается профнастилом или другим материалом, выбранным для полотна (сталь, дерево и пр). Его крепят к раме с помощью саморезов
- Раму накатать на каретки и выровнять конструкцию
- Прикрепить раму к закладному элементу
- Приварить роликовые тележки
- Закрепить ролики и установить улавливатели
- Проверить ход створки ворот и при свободном движении закрутить гайки
- Установить концевой ролик
В процессе установки откатных ворот важно постоянно проверять строительным уровнем наличие перекосов. Если после изготовления и установки откатных ворот захочется дополнить их автоматической системой, то для этого достаточно прикрепить в нужном месте зубчатую рейку и установить электропривод, следуя приложенной к нему инструкции.
Советы по установке откатных ворот предоставлены сайтом zabor-ss.ru
happymodern.ru
Откатные ворота своими руками. Чертежи ворот. Схема ворот. Размер ворот
Здравствуйте! В данной статье я расскажу, как сделать самостоятельно откатные ворота консольного типа. Их конструкция на сегодняшний день получает все большее распространение, потому что створка, двигаясь вдоль забора, практически не занимает места.
Если их сравнить с привычными глазу распашными воротами, то эксплуатация тоже значительно проще – в ветреную погоду не нужно фиксировать створку как у распашной системы, поскольку порыв ветра не может ударить Вас створкой откатной системы.
Еще для распашных ворот требуется немало времени, чтобы их открыть, а потом закрыть – сначала нужно распахнуть одну створку и зафиксировать, потом вторую, а выехав на транспорте за территорию участка все проделать в обратном порядке.
Поэтому в данной статье я и хочу рассказать именно об откатных воротах, так как они более практичны, и как уже писал, почти не занимают места.
Наиболее популярные конструкции откатных ворот:
- Подвесные
- Ролики двигаются по земле
- Консольные
Подвесные ворота приводятся в движение за счет расположенных роликов на установленной направляющей над проездом. Такая конструкция вполне нормальная, единственный ее недостаток – это ограниченный по высоте проезд.
Ролики двигаются по земле. Такие ворота обычно используются в помещениях или же в странах с теплым климатом. Для работы на улице в нашей стране они не совсем подходят, потому что налипший в направляющую (которая закреплена в основании) снег, или набившийся мусор, будут мешать нормальному движению створки и эти помехи постоянно придется убирать.
Консольные ворота. Именно о них далее я и расскажу подробно, потому что это наиболее удачная конструкция. Их движению не мешают ни снег, ни грязь, так как створка движется в нескольких сантиметрах над проездом. Направляющая, которая закреплена прямо на каркасе никак не ограничивает высоту для проезда автотранспорта.
Консоль образуется за счет защемления между роликовыми каретками и направляющим рельсом, в который они заведены.

Если говорить о стоимости таких ворот, то они несколько дороже, чем распашные, потому что для них нужна фурнитура, цена которой от 2500грн за комплект. Но можно добиться значительного снижения их стоимости, например, изготовить ворота своими руками, тем более что в этом нет ничего сверхсложного.
Давайте посчитаем, сколько понадобиться денег для закупки необходимого материала. Пусть Ваши ворота будут размером 3х2м, то есть площадью в 6 квадратных метров. Тогда для изготовления потребуются:
- Труба прямоугольная 60х30мм – 39,2кг
- Труба прямоугольная 30х20мм – 21,6кг
- Профнастил окрашенный — 6м2
Сегодня стоимость металла около 20000 гривен за тонну, а профнастила в среднем 110грн/м2, ну и плюс еще фурнитура около 2500грн.
Посчитаем теперь какова же стоимость материала и сведем все в общую сумму.
- Труба прямоугольная 60х30мм: 0,0392т*20000грн = 784грн
- Труба прямоугольная 30х20мм: 0,0216т*20000грн = 432грн
- Профнастил окрашенный: 6м2*110грн = 660 грн
- Фурнитура – 2500грн
- Общая стоимость материалов: 784грн + 432грн + 660грн +2500грн = 4376 грн.
Конечно этот расчет неполный, так как в нем нет той же грунтовки или саморезов, но в целом картина ясна. Если в стоимость включить еще и не достающие материалы, то сумма все равно не превысит 6-7 тысяч гривен, а на фоне приблизительно 15000грн, которые возьмут за свою работу фирмы-изготовители является существенной экономией.
За эти деньги можно купить очень даже приличную автоматику для своих ворот.
В статье, которую Вы сейчас читаете, я старался максимально рассказать, как делать ворота своими руками, начиная от подготовки и заканчивая началом эксплуатации. Хотелось бы, чтоб изложенная в ней информация Вам помогла убедиться в возможности самостоятельного изготовления, и Вы смогли сэкономить не одну тысячу гривен.
Чтобы систематизировать все этапы производства ворот, мое повествование разбито на разделы. Если у Вас нет желания читать все полностью, то можете кликнуть на интересующий Вас пункт, и он сразу перед Вами появится.
Итак, план статьи:
- Основные инструменты, которые понадобятся для изготовления ворот
- Подготовительные работы
- Земляные работы
- Подготовка металлоизделий столбов и закладной детали для установки роликовых опор
- Изготовление закладной детали
- Бетонирование
- Кирпичная кладка столбов и установка в них закладных деталей
- Каркас ворот
- Монтаж нащельников
- Коротко о необходимой фурнитуре
- Монтаж верхней пластины с роликами
- Монтаж роликовых кареток (опоры)
- Крепление концевого ролика и нижнего улавливателя
- Монтаж верхнего улавливателя
- Установка заглушек на торцы направляющего рельса
- Автоматизация откатных ворот
Основные инструменты, которые понадобятся для изготовления ворот

В первую очередь это будут:
- Сварочный аппарат
- Шлифовальная угловая машина (болгарка)
- Бетоносмеситель
- Инструмент для кирпичной кладки
- Шуруповерт
- Стремянка
- Штыковая и совковая лопаты
- Гидравлический уровень
- Молоток
- Набор гаечных ключей
- Лом
- Рулетка
Подготовительные работы
В первую очередь нужно снять растительный слой грунта, чтобы было удобно делать разметку будущих ворот.
Далее во время разбивки можно использовать 4 куска арматуры по 1-му метру и электроды, которые будут постоянными и временными осями.
Перед тем, как забивать арматуру, нужно проверить все диагонали Вашего прямоугольника и только после того, как они совпали заглублять, оставляя на поверхности части по 15-20см.
После того как вся арматура установлена, между ней натягивается шпагат или леска.
Теперь, когда основные оси готовы, от них удобно создавать временные, закрепляя их электродами.
Земляные работы
Когда вся необходимая разбивка сделана, можно переходить к земляным работам. Они представляют собой рытье приямков под фундаменты столбов, закладной детали и траншеи для прокладки гильзы с электропроводкой автоматики.
Ямы под столбы должны быть чуть больше ширины и длины столба, например, если он будет иметь размер в плане 38х38см, то сама яма должна быть не меньше чем 40х40см (так будет больше фундамент), чтобы проще было положить первый ряд кирпича.
Яма, которая нужна будет для фундамента закладной детали по длине должна быть равной половине воротного проема.

Глубина всех приямков должна быть больше чем нормативная глубина промерзания, которая в зависимости от климатического района может иметь глубину 1-1,2м. Очень важно придерживаться этого, потому что в случае, если низ фундамента будет ближе к поверхности, замерзший грунт будет его выдавливать наружу.
Если при отрывании ям обрушаются стенки, нужно использовать опалубку. Это могут быть бэушные доски, потому что в данном случае внешний вид не имеет значения, так как фундаменты будут засыпаны грунтом.
Кода все приямки отрыты, их дно нужно полить водой, чтобы утрамбовать взрыхленный грунт. Если после земляных работ Вы не планируете пока приступать к бетонированию, то их нужно накрыть деревянными щитами от попадания дождевых вод, которые могут их размыть.
Чтобы в будущем не портить уже готовый проезд через ворота, лучше сразу под ним (пока он не сделан) вырыть траншею для закладки гильзы с электрокабелями для подключения воротной автоматики в будущем.
Для этого можно использовать пластиковую водопроводную трубу диаметром 15-20мм. После укладки гильзы с кабелями, ее торцы нужно закрыть полиэтиленом, чтобы не набивалась грязь и не поступала влага.
После того как гильза уложена и засыпана, место укладки нужно пролить водой, чтобы хорошо утрамбовался грунт. Если этого не сделать, в результате просадки, может в дальнейшем трескаться твердая поверхность проезда.
Подготовка металлоизделий столбов и закладной детали для установки роликовых опор
Металлоизделия столбов нужны, чтобы выполнять функцию их сердечников, чтобы была большая прочность. Для этого можно использовать квадратные трубы сечением 80х80мм или 100х100мм. Если же Вы решили применить трубу круглого сечения, то ее диаметр обычно берется около 80мм.
Далее я буду рассматривать металлический сердечник на примере труб квадратного сечения.
Надземная часть трубы должна быть на несколько сантиметров меньше высоты столба, чтобы можно было его без проблем накрыть козырьком. Например, если столб имеет высоту 2м, то сердечник должен быть примерно 1,95м.
Что касается подземной части, то низ труб не должен доходить до дна котлована примерно на пять сантиметров, чтобы при бетонировании получился защитный слой из бетона. Например, если яма имеет глубину 1м, то нижняя часть сердечника должна быть 95см.
Если Вы хотите сделать сцепление бетона с сердечником более прочным, то в его нижней части можно крестообразно приварить два куска арматуры длиной 20-25см и диаметром 8-12мм.
После установки трубы в приямок, нужно ее верх чем ни будь закрыть, чтобы вовнутрь не попадали осадки.
Изготовление закладной детали
Этот элемент требует особенного внимания, так как от качества его изготовления и установки в последующем будет зависеть нормальное движение ворот, а также электропривода.
В качестве закладной можно использовать швеллер шириной 16-20см, а длина его должна быть равной половине ширины воротного проема.
Чтобы он крепко удерживался в теле бетона, к нему нужно приварить арматуру по четыре куска (длиной около 90см каждый) с обеих сторон и связать их перемычками из арматуры диаметром 10-12мм.

Бетонирование
После того как подготовка металлоизделий окончена, можно приступать к бетонированию. Обычно используется бетон марки М200 и для того, чтобы его приготовить, нужно соблюдать такую пропорцию: на 1-но ведро цемента, 3 ведра песка, 3 ведра щебня (фракция 20х20, 20х40) и ориентировочно 20% воды от общего объема замеса.
Лучше бетонировать при положительных температурах окружающего воздуха, чтобы не тратиться на противозаморозковые добавки.
Перед тем как заливать, убедитесь, что все металлические изделия в приямках надежно закреплены, чтобы под давлением бетона они не сместились. Также проверьте при помощи уровня вертикальность и горизонтальность их установки.
Закладная деталь (швеллер) должна находиться не ниже и не выше поверхности проезда, а в одном горизонте. Это важно для дальнейшего монтажа. Если проезд еще не готов, просчитайте уровень, на котором будет находиться его верх.
В идеале между створкой и поверхностью проезда должно быть расстояние ровно 7см, чтобы при движении ворот они не гребли снег.

Когда установка всех металлоизделий завершена, можно заливать бетон. Чтобы исключить в фундаменте пустоты, при поданной порции бетона, его нужно тщательно трамбовать.
После окончания бетонирования, поверхность фундаментов нужно загладить, чтобы не было раковин и неровностей.

При сильной жаре бетон нужно накрыть, чем-нибудь от попадания солнечных лучей, чтобы он не потрескался, а также обильно поливать водой по несколько раз в сутки в течение 2-3 дней.
Бетону нужно дать набрать прочность, поэтому дальнейшие работы лучше выполнять не раньше чем через неделю.
Кирпичная кладка столбов и установка в них закладных деталей
После набора прочности фундаментами, можно приступать к кирпичной кладке столбов с установкой закладных деталей для нащельников.
В качестве закладных можно использовать уголок 50х50мм длиной около 8см и арматуру диаметром 8мм, длиной равной половине столба. Арматура приваривается к сердечнику столба.
Для нащельника нужно 3 закладных детали. Нижняя деталь устанавливается после трех первых рядов кирпича, верхняя – чуть ниже верхнего края будущих ворот, а средняя соответственно посередине.

Каркас ворот
Для более удобного изготовления каркаса используются трубы прямоугольного или квадратного сечения.
Наши специалисты могут сэкономить Вам деньги на изготовлении чертежа Ваших ворот, мы его подарим при покупке рекомендуемой нами фурнитуры производителя Світ Воріттм , у которой гарантия 5 лет.
Чертеж представляет собой подробную схему ворот со всеми необходимыми размерами, а также спецификациями, в которых дано точное количество необходимого материала для изготовления.
Вообще желательно, чтобы у Вас был чертеж, это позволит исключить ошибки при монтаже, которые могут привести к перерасходу материалов, а также тяжелому движению ворот.

Перед изготовлением их каркаса, в металлические трубы и другие элементы нужно очистить от ржавчины, обезжирить, а потом прогрунтовать.

Обычно для несущих элементов створки используются трубы размером 60х40мм или 60х30мм, а вспомогательный каркас делается из труб 30х20мм.
Когда вы приступаете к изготовлению несущей рамы, у Вас уже должен быть в наличии направляющий рельс (профиль), так как его тоже нужно будет крепить, и вообще все сборка начинается с него.

Чтобы во время набора каркаса он находился в вертикальном положении и был устойчив, к направляющему профилю нужно приварить два куска квадратных труб, которые будут являться подставками.

Нижняя труба несущего каркаса приваривается к рельсу прихватками длиной шва 15-200мм с шагом 600-700мм с двух сторон в шахматном порядке.
Сплошной шов делать нельзя, так как бывали случаи, когда направляющий профиль вело, в результате чего ворота заклинивали и двигались тяжело. Да и вообще, это ненужный перерасход электродов.

После этого выставляем вертикальные трубы каркаса и прихватываем их сваркой. Проверяем уровнем их вертикальность и если все нормально, тогда делаем сплошной провар.


Устанавливаем и привариваем верхнюю перекладину:

Далее диагональную:

Несущий каркас готов.
Далее по внутреннему периметру привариваем трубы дополнительного каркаса, к которым потом будет прикручен профнастил.

Горизонтальная перемычка внутреннего каркаса

Трубы вспомогательного каркаса должны быть по центру несущего, чтобы профнастил находясь на створке, был слегка утоплен.

По окончании всех сварочных работ нужно зачистить все сварочные швы болгаркой, прогрунтовать их и потом покрасить (желательно в три слоя).
Чтобы закрепить профнастил, нужно использовать саморезы по металлу длиной 19мм.
Для более простого монтажа ворот, профнастил можно прикрепить, когда створка уже будет установлена в воротном проеме на роликовые опоры.
Каждый профлист нужно подгонять по отдельности, чтобы он точно прилегал к раме.
Крутить профнастил в треугольной части створки нет необходимости, потому что она в воротный проем попадать не будет.

Вот в принципе и все, что касается непосредственно створки, далее я расскажу о других элементах, которые обязательно нужно установить.
Монтаж нащельников

Вообще эти элементы нужны, чтобы крепить к ним фурнитуру, а также для закрытия зазоров между полотном створки и столбами.
Нащельник обычно делается из металлической трубы 60х30мм или же 60х40мм.

Для установки пластины с роликами (элемент фурнитуры) в нащельнике со стороны роликовых опор нужно сделать вырез размером 60х40мм.

Коротко о необходимой фурнитуре

Направляющий рельс. Как я ранее уже писал, это один из самых важных элементов от качества, которого будет зависеть плавное и легкое движение ворот.
Профиль его по всей длине должен быть ровным. Чтобы ролики опорных кареток не заклинивали во время качения, в поперечном сечении у рельса нижние полки должны быть в одном горизонте и симметричны.

Поверхность не должна быть слишком шероховатой или иметь окалины, от которых ворота во время движения будут грохотать.
Рельс должен быть сделан из металла с повышенным содержанием углерода. Обычно эта сталь поставляется из Европы и в Украине есть производители, которые ее применяют для изготовления реек.
Роликовые каретки.

Если Вы не хотите проблем с этими элементами, покупайте их только с металлическими роликами, а не из полимеров, потому что они не совсем подходят для климатических условий Украины.
Что касается подшипников у роликов, то они должны иметь металлорезиновые пыльники от попадания в механизм грязи и влаги.
Ход «головы» роликовой опоры не должен быть затруднен, чтобы наклоняясь в сторону движения ворот, сила трения оказывала меньшее воздействие, и ролики дольше прослужили.

Что касается антикоррозийной защиты, то она имеет тоже немаловажное значение, потому что опора постоянно контактирует с осадками. Качество защиты можно определить визуально, она не должна иметь темных пятен, указывающих на неравномерный и тонкий слой.
Между роликовой опорой и направляющим профилем есть люфт, который должен быть примерно 1мм. Если люфт будет больше, свободный край ворот при закрывании может настолько опускаться, что створка не попадет в улавливатели.


Верхняя пластина с роликами. Этот элемент служит направляющей и держателем верхней грани створки ворот, чтобы движение было прямолинейным.

Пластина может иметь два или четыре ролика, в зависимости от массы створки. Ролики могут быть с резиновым или пластиковым покрытием. Резиновое покрытие более удачное решение, потому что при контакте со створкой не царапает полотно.

Нижний концевой ролик частично разгружает роликовые опоры, когда ворота закрыты. Ролик наезжает и опирается на полку улавливателями.
Практически все производители на сегодняшний день делают его из полимеров, хотя некоторые, даже отечественные, отдают предпочтение металлу.

Нижний улавливатель

Предназначен для «приема» створки, кроме того, на его полку опирается концевой ролик, чтобы частично разгрузить роликовые опоры от давления ворот.
Чтобы этот элемент не был погнут от нагрузки, желательно, чтобы толщина металла у него была не менее 3мм.
Верхний улавливатель, как и нижний, предназначен для приема и фиксации створки вверху, чтобы ее не болтало ветром.
Так как этот элемент имеет П-образную форму и конструктивно невысокую жесткость, толщина стали должна быть не менее 4мм, чтобы его не повело под натиском ворот.

Не все производители комплектуют фурнитуру этим элементом, поэтому при покупке спрашивайте о его наличии.
Резиновые заглушки закрывают направляющий рельс с торцов, чтобы в него не набивались снег и грязь. Эти элементы будут прочно держаться, если у них есть гофрированная часть, а сама резина не дубеет и не рассыхается.

Монтажная пластина роликовых опор ни у кого из производителей не входит в комплект фурнитуры, но ее можно купить отдельно.
При помощи пластины можно быстро и удобно выставить роликовые опоры.

Без нее опоры сначала прихватываются сваркой, и проверяется, насколько нормально двигаются ворота, если есть перекосы, то опоры опять срезают болгаркой и выставляют заново. При наличии монтажных пластин этого делать не нужно, потому что все регулируется специальными болтами.
Замок для запирания. Хоть замок и не относится напрямую к фурнитуре, но если Ваши ворота не оборудованы автоматикой, он обязательно понадобится, и на рынке Вы его вряд ли найдете.
При выборе замка следует обращать внимание на то, чтобы основные его механизмы были из латуни, а не из силумина, который быстро окисляется и приводит замок в негодность.

Монтаж верхней пластины с роликами
Этот элемент крепится к нащельнику, у которого должен быть специальный вырез размером 60х40мм.

Одна часть пластины заводится между нащельником и кирпичной кладкой столба и приваривается.
Пластина должна быть установлена точно в горизонте.
Монтаж роликовых кареток (опоры)
Опоры устанавливаются на закладную деталь, а расстояние между ними должно быть максимально большое.

Эти элементы можно крепить двумя способами: прямо на швеллер или при помощи монтажных пластин.
Установка на швеллер. Сначала каретки устанавливаются и слегка прихватываются сваркой. После этого нужно проверить ход ворот, и если он затруднен, сварку нужно срезать и переустановить опоры. Все это нужно делать, пока ворота не станут двигаться без перекосов.

Такой способ достаточно широко применяют, но он занимает значительно больше времени по сравнению с использованием монтажных пластин.
Вариант установки с монтажной пластиной. Сначала устанавливается и приваривается пластина, а после на нее уже становиться опора. Вся регулировка осуществляется при помощи специальных болтов.

Для корректировки высоты роликов, сначала ослабляются верхние гайки, а поворотом нижних выполняется регулировка.
Такой способ очень удобный и не занимает много времени. А еще во время эксплуатации ворот, если понадобится немного подрегулировать их ход, то при помощи этих элементов это не составит труда.
Крепление концевого ролика и нижнего улавливателя
Далее можно приступать к креплению ролика, который заводится в направляющий рельс.

И фиксируется при помощи двух болтов

На изображении гайки прихвачены сваркой для того, чтобы от вибрации они не откручивались, такое случается не редко и ролик перестает работать.
После этого крепим нижний улавливатель сваркой к металлическому нащельнику.

Улавливатель должен быть на такой высоте, чтобы концевой ролик заезжая на его полку поднимал створку на 3-4мм. Для этого необходимо приставить улавливатель к нащельнику и подтянуть к нему створку. Убедившись что подъем створки будет обеспечен, его можно приваривать.
Монтаж верхнего улавливателя

Верхний улавливающий элемент, как и нижний, крепится к металлическому нащельнику при помощи сварки.
Установка заглушек на торцы направляющего рельса

Заглушки вставляются в рельс с двух сторон. Для того, чтобы установить их не требуется каких либо инструментов, достаточно их заткнуть вручную гофрированной частью в профиль.
Автоматизация откатных ворот
Чтобы автоматизировать свои ворота, Вам понадобится такой минимальный набор оборудования и элементов:
- Привод с блоком управления
- Зубчатая рейка
- Пара пультов
Еще можно дополнительно установить элементы управления и безопасности.
www.vorotnet.com.ua
Как сделать откатные ворота своими рукам?
Автор: Тимур Егоров
Откатные, или сдвижные, ворота – примета нашего времени. Это удобное технологическое сооружение повсеместно приходит на смену традиционным распашным воротам. Откатная конструкция экономит место, не препятствует дорожному движению на улице, позволяет въезжать во двор даже крупногабаритным машинам. Сдвижные ворота надежны, прочны и долговечны. Они позволяют хозяевам дома чувствовать себя в полнейшей безопасности.
Единственное, в чем они уступают распашным воротам, – их себестоимость. Однако сегодня это не бог весть какая проблема. Ведь любой домашний самоучка может смонтировать откатные ворота своими руками. Купить же все необходимое для этого по приемлемой цене – вполне реальная затея.
Устройство откатных ворот
Чтобы сделать откатные ворота, надо, в первую очередь, понять принцип их устройства и функционирования. Кстати, современный рынок предоставляет большой выбор уже готовых наборов комплектующих сдвижных ворот. Причем можно найти изделия и от заграничного, и от отечественного товаропроизводителя. Комплект конструкции консольного вида включает в себя:
- пару роликовых тележек;
- направляющую балку;
- держатели и ловушки.

Беспрепятственное перемещение конструкции обеспечивается роликовыми опорами. Удаленные друг от друга на определенное расстояние, они фиксируются к заранее подготовленному фундаменту с помощью закладных болтов.
Направляющую балку приваривают к каркасу ворот. Роликовые тележки должны помещаться внутри балки. Тогда ролики будут надежно защищены от загрязнения, что значительно увеличит срок их безотказной службы.
Предварительные расчеты
Необходимо, чтобы полотно ворот имело достаточно жесткий каркас. Ведь это он будет служить опорой для воротной створки, испытывающей немалые ветровые нагрузки.
Каркас можно сварить из профильной трубы (основная рама — 0,6 х 0,4 х 0,2 см, перемычка – 0,2 х 0,2 х 0,15 см). Само полотно также должно быть прочным и устойчивым, чтобы не деформироваться под тяжестью своего собственного веса.
В зависимости от основных параметров – ширины проема и веса всей конструкции – комплекты деталей сдвижных ворот делятся на три вида:
- маленький: до 400 см и до 400 кг;
- средний: до 600 см и до 600 кг;
- большой: от 600 см и от 600 кг.
Пошаговая инструкция по созданию фундамента
- Разметка траншеи. Длина бетонной основы равна 0,5 ширины проезда, ширина – 50 см. Для расчета глубины ямы нужно учитывать уровень замерзания почвы в данной местности (от 1,5м до 3,0м).
- Изготовление каркаса. Из прочного стального швеллера и арматурных стержней, имеющих в диаметре 0,12 см, образуется закладной каркас. Его детали соединяются между собой посредством сварки. Вертикальные стержни арматуры должны оказаться ниже глубины замерзания почвы. Полученный каркас опускают в траншею, предварительно засыпав ее дно слоем песка и утрамбовав его.
- Проверка уровня каркаса. Поверхность арматурной конструкции выравнивается по дорожному полотну. Продольная ось швеллера должна находиться параллельно линии забора.
- Закладывание электропроводки автоуправления. Пучки проводов, спрятанные в гофрированные трубки, закладывают до заливки фундамента.
- Заливка фундамента. Бетонный раствор замешивают из цемента (четыре-пять мешков), 0,3 м3 щебня, 0,5 м3 песка. Залитый состав набирает прочность в продолжение от 5 до 7 дней.

Пошаговая инструкция монтажа откатных ворот
- Определение линии движения ворот. Вдоль проема, подняв на высоту примерно 20 см, натягивают шнур, отдалив его от ответного столба на 3 см. По этому шнуру выравнивают положение направляющей балки.
- Подготовка к монтажу роликовых тележек. Ролики последовательно вставляются внутрь балки и смещаются к самому центру ворот. Створка ворот ставится на швеллер. Опоры располагаются в намеченных местах.
- Фиксация роликовых опор. Сначала к швеллеру приваривается регулировочная площадка одной роликовой тележки. Затем ворота выкатывают до самого конца, после чего прихватывается сваркой площадка другой роликовой тележки.
- Регулировка свободного хода. Ослабив верхние гайки, крепящие к регулировочным площадкам роликовые тележки, нужно несколько раз прокатать (открыть-закрыть) ворота. Когда роликовые опоры займут верное положение, ворота начнут перемещаться свободно, после чего нужно плотно затянуть гайки.
- Монтаж концевого ролика и установка заглушек. Концевой ролик вставляют внутри несущей балки с фронтальной стороны полотна ворот и закрепляют болтами. С тыльной стороны приваривают заглушку несущего профиля.
- Обшивка ворот профлистом и его крепление заклепками или саморезами. Профилированный лист, дополненный коваными элементами, придаст воротам оригинальную эстетику.
- Установка уловителей. Нижний уловитель монтируется так, чтобы при закрытии ворот он совместился с концевым роликом. Верхний устанавливается на одном уровне с защитными уголками, чтобы они касались верхнего уловителя в закрытом положении ворот.
- Автоматическое оборудование монтируют, руководствуясь прилагаемой к нему инструкцией.
Перефразируя известную мудрость, можно прийти к заключению: не боги откатные ворота устанавливают. Эта работа по плечу любому рачительному хозяину. Необходимо только минимум технических знаний и максимум желания.
www.moymalish.com
Откатные ворота своими руками: пошаговая инструкция, чертежи, видео
Современный рынок предлагает широкий выбор ворот, но все они преследуют одну цель — обеспечить безопасность, защитить дом или другую территорию от посторонних. От выбора конструкции напрямую зависит комфорт и удобство хозяев, поэтому к нему нужно отнестись серьезно.
Виды ворот:
- Распашные. Традиционная наиболее распространенная сегодня конструкция. Отличается простым монтажом, доступной стоимостью и надежностью. Однако имеют минус: для открытия и закрытия створок нужно много места, а зимой его необходимо очищать от снега.
- Рельсовые. Здесь укладывается рельс по всей длине проема, по нему перемещается полотно ворот с помощью специальных роликов. Монтаж предполагает обустройство фундамента для размещения опор.
- Консольные ворота. Их также называют сдвижные или раздвижные. Над проемом устанавливается специальная балка, вдоль нее перемещается панель. Во время снегопадов для сохранения подвижности панель может нависать над землей на высоте 10-15 см.

Распашные.

Консольные.

Однако наибольшей популярностью сегодня пользуется монтаж откатных ворот своими руками.
Характеристика, плюсы и минусы
Откатные ворота — врата с особым механизмом, который состоит из специальных опор, роликов, консольной балки, створок. Конструкция откатных ворот предусматривает специальные уплотнители по периметру ворот для надежной защиты от ветра, холода и прочих факторов окружающей среды. Во время открытия/закрытия полотно ворот перемещается вправо или влево за счет роликов, расположенных на опорах.
Монтаж откатных ворот обладает следующими плюсами:
- Выдерживают большие ветровые нагрузки.
- В полотно можно врезать калитку или окошко.
- При эксплуатации экономится пространство впереди и сзади.
- Уровень взломостойкости высок.
Есть и минусы: стоимость данного механизма несколько дороже остальных вариантов. Во время открытия/закрытия нужен «запаса» вдоль забора или помещения для отката полотна.
Схемы и чертежи

По способу крепления полотна различают следующие схемы самодельных ворот:
- Полотно подвешивается сверху. Несущую балку монтируют над проемом. Минус: высота проезда автомобиля ограничена.
- Полотно монтируется на ролики опор. Особенность — наличие балки, на которую и накладывается полотно. Движение осуществляется за счет пары роликов на столбе.
- Консольные. Не имеют ограничений ни вверху, ни внизу. Для монтажа направляющей балки здесь нужно много свободного пространства вдоль ограждения.

После выбора схемы нужно составить своими руками чертежи, исходя из особенностей места установки. Конструкция проста, поэтому чертеж просто сделать самому. В интернете есть масса видео и подробных видеоинструкций, как это сделать. Вот несколько рекомендаций:
Не стоит делать конструкцию массивной, это повышает расходы. Оптимальная длина полотна = длина проема *1,5 + 20-30 см на запас. При выборе места для установки откатных ворот своими руками учитывается наличие места для перемещения полотна. Чтобы снег не «задувал» на территорию и ее можно было чистить, нужно сделать просвет в 6-7 см.
Пошаговая инструкция как установить откатные ворота
Из инструментов нужно подготовить сварочный аппарат, дрель, рулетку и уровень для проведения измерений, молоток, болгарку, пассатижи.
Фундамент

Сначала размечается яма: длиной в 1⁄2 проема ворот и шириной в 0,5 метра по направлению к участку. Далее монтируются столбы, которые будут выполнять роль опор. Если устанавливают автоматическую воротную систему, предусматривают пространство для укладки электрокабеля. Закладной элемент лучше сделать из швеллера и привязать к нему арматуру. Бетон заливается сверху закладного элемента, далее бетон застывает около недели.
Монтаж
Сначала выполняется разметка. Когда разметка закончена, выполняется установка, которая состоит из следующих шагов:
- Полотно аккуратно снимаем.
- Снимаем ролики.
- Площадки привариваем к прикрепляем.
- Теперь на площадки устанавливаем ролики, а на них задвигаем полотно.
- Сборка завершена, проводим конечную доводку.
Для выполнения монтажа роликов для откатных ворот своими руками не нужны специализированные знания.
Для крепкой и надежной фиксации роликов, ослабляем гайки на месте их соединения с регулировочными площадками. Теперь проверяем воротную систему, закрываем и открываем механизм несколько раз. Если створки беспрепятственно передвигаются, возвращаем гайки на место. Если движение калитки затруднено — устраняем перекосы.
Регулировка полотна выполнена, займемся монтажом концевого ролика. Разместим его в несущем профиле и закрепим специальными болтами, а затем приварим крышку ролика к профилю. Обязателен и монтаж верхнего роликового фиксатора. Они должны захватывать верхнюю часть полотна, при этом кронштейн направляется своими отверстиями в сторону столба-опоры.
Чтобы дополнительно укрепить полотно, можно сделать обшивку с использованием металлических профлистов. При этом листы крепятся клепками или саморезами. Для максимальной прочности можно установить несколько листов, наложив их друг на друга.
Важной деталью является уловитель, о нем нельзя забывать. Он устанавливается внизу, установленный внизу, сокращает нагрузку на тележки роликов в положении, когда ворота закрыты. Уловитель в нижней части полотна аккуратно подводится под концевой ролик в таком положении, чтобы опора встала выше концевого ролика. Затем монтируется уловитель в верхней части полотна. При этом верхний уловитель должен соприкасаться с защитным уголком, расположенном на передней части полотна.
В завершение производится окрашивание. Чтобы краска продержалась максимально долго, предварительно поверхность полотна и других элементов зачищается болгаркой и обезжиривается ацетоном. Далее выполняется грунтовка и окраска. Когда первый слой краски высыхает, нанесите второй слой. С особой тщательностью нужно выбирать краски. Они должны быть устойчивыми к осадкам и прочим неблагоприятным факторам окружающей среды. Для равномерного нанесения краски можно использовать воздушный компрессор.
Как вы видите, монтаж откатной конструкции не сложен. А если заручиться помощью многочисленных интернет-ресурсов, где собраны полезные актуальные материалы, можно добиться превосходного результата.
rusolymp.ru
