Септик из бетонных колец своими руками схема – Как сделать септик из колец своими руками: пошаговая инструкция
» Септик из бетонных колец своими руками: схема проведения работ
Выгребная яма, как элемент канализации на загородном участке, постепенно уходит в небытие. На смену ей пришли септики, которые можно соорудить из разных строительных материалов. Это могут быть колодцы из кирпича, блоков или камня.
Кроме того, можно построить септик из бетонных колец, готовых металлических емкостей или пластмассовых резервуаров. Владельцы загородных домов чаще всего свое предпочтение отдают железобетонным кольцам.
Что такое септик?
Септик – это резервуар или сооруженный колодец, устройство которого позволяет выполнять ему функции обычного отстойника. Конструкция разделена на две или несколько частей перегородками.

Схема работы такова: канализационные стоки попадают в септик и переливаются из одного отсека в другой. При этом органические включения разлагаются на ил и углекислый газ. Первый оседает на дно, второй улетучивается, осветленная же вода проникает в грунтовые воды или выводится за пределы загородного участка.
Объем резервуара
Сделать самостоятельно расчет объема септика несложно. Для этого понадобятся всего три показателя:

- Количество людей, которые проживают постоянно в доме. Обратите внимание, постоянно.
- Количество канализационных отходов от одного человека в сутки. Это величина постоянная, она выведена опытным путем и равна 200 л (0,2 м³).
- Количество времени, за которое органические включения полностью перерабатываются – 3 суток.
Пример расчета
Теперь можно рассчитать объем, перемножив все три числа между собой. Для примера будем считать, что в доме проживает 4 человека.
4×0,2×3=2,4 м³.
Увеличиваем эту цифру до ровного числа. Итак, объем септика будет равен 2,5-3,0 м³.
Как правильно подобрать кольца?
Бетонные кольца для канализационного колодца имеют разные размеры. Высота у всех марок одинаковая – 90 см. А вот диаметр разный: от 70 см до 2 м. Соответственно и объем одного кольца будет зависеть от его диаметра. К примеру, железобетонное кольцо диаметром 70 см (0,7 м) имеет объем 0,35 м³. Для сооружения септика объемом 2,5-3 м³ необходимо 7-8 колец.
Кольца диаметром 1,0 м имеют объем 0,7 м³. Значит, потребуется 4 кольца. Это не значит, что таким образом можно выиграть в цене септика. Ведь чем меньше колец приобретается, тем больших размеров они будут. А значит, будет выше цена каждого изделия.

При выборе необходимо учитывать другой момент – уровень грунтовых вод. И чем выше этот показатель, тем больших размеров вам придется приобретать бетонные кольца. Их количество уменьшается, а значит, уменьшается глубина установки всего канализационного устройства.
Практика показывает, что чаще всего потребители используют кольца диаметром: 100, 120 или 150 см.
Виды колодцев
Устройство переливного септика из бетонных колец может быть двух видов:
- Однокамерный септик.
- Многокамерный (чаще двухкамерный).
Однокамерный
Первый вариант сегодня не используется, так как считается малоэффективным. Ранее внутри колодца возводилась перегородка. Дно первой части заливалось бетонным раствором, вторая засыпалась фильтрующими материалами (песком и щебнем).

При этом приходилось увеличивать размеры резервуара до максимальных, что приводило к усложнению монтажных работ (особенно земляных), плюс снижался коэффициент полезного действия всей установки за счет малой площади фильтрующей поверхности.
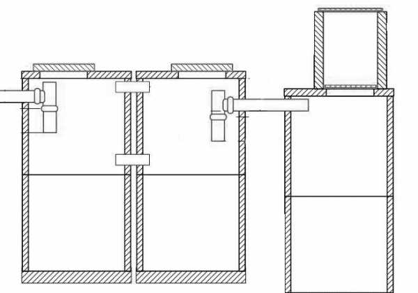
Двухкамерный
Двухкамерный септик из бетонных колец – это более сложное канализационное устройство, сооружаемое из нескольких колодцев. Схема такова: первый из них – это сборная емкость, куда попадают канализационные стоки прямо из дома. Здесь при разложении твердые фракции опускаются на дно в виде ила, легкие с осветленной водой проходят во вторую емкость через переливную трубу.

Здесь происходит окончательное разложение органики, при этом чаще всего очищенная вода через фильтрующие материалы проникает в слой грунтовых вод. Нередко вместо фильтрационного колодца устраивают поля фильтрации. Это несколько траншей, куда засыпаются песок и щебень, затем укладываются перфорированные трубы, засыпаемые еще слоем песка и щебня, а сверху грунтом.
Из сборного колодца осветленная вода движется по трубам и через естественный фильтр уже очищенной окончательно поступает в грунтовые воды.
Строительство очистного сооружения
Для строительства септика из бетонных колец вам обязательно понадобится подъемный кран. Даже несколько человек вручную его поднять смогут с трудом. А установить точно по месту очень сложно, практически невозможно.
Для облегчения работ, связанных с монтажом, специалисты рекомендуют приобрести готовые днища канализационного колодца. Такие сегодня изготавливаются заводами ЖБИ. Для первой емкости используется глухое дно в виде круга, для второй – со специальными сквозными отверстиями.

То есть отпадает необходимость для первого колодца заливать дно из бетонного раствора, используя армирующий металлический каркас. К тому же сокращается время установки, потому что не надо ждать, когда бетонный раствор подсохнет. А на это обычно уходит до 28 дней.
Земляные работы
В первую очередь надо откопать котлован под септик. Его размеры определяет диаметр бетонных колец и их количество, а значит, и объем проводимых работ.
Под двухкамерный септик выкапывается котлован сразу для двух колодцев. При этом расстояние от стенок котлована до колец должно быть в пределах 50 см. Дно котлована выравнивается, засыпается песочным слоем 10-15 см, который хорошо утрамбовывается.

Рыть котлован можно своими руками при помощи лопат, вынимая грунт ведром. Это дешево, но долго. Можно воспользоваться услугами небольшого экскаватора. Это быстро (часа два), но дорого. Во втором случае все равно придется поработать своими руками, выравнивая дно ямы и ее стенки.
Установка колец
На подготовленное дно котлована подъемным краном устанавливается днище. Его рекомендуется предварительно обработать с двух сторон гидроизоляционной битумной мастикой.
Затем устанавливается первое кольцо. Его с внешней стороны также надо гидроизолировать. На первое – второе и так далее. После чего изнутри колодца заделываются стыки между кольцами. Чаще всего их обрабатывают жидким стеклом или цементным раствором, смешанным с жидким стеклом.

Далее устанавливается бетонная крышка с отверстием, на которое впоследствии монтируется обычный чугунный люк со съемной крышкой. Можно использовать крышку самодельную, но лучше, если она будет изготовлена из металла. Эта конструкция должна быть с высокой степенью безопасности.
Второй колодец сооружается по такой же схеме. Единственное отличие – это создание фильтрующего слоя под перфорированным дном резервуара. Для этого сначала засыпается слой песка, затем слой щебня. Все остальные операции проводятся так же, как и в первом случае.
Монтаж канализационных труб
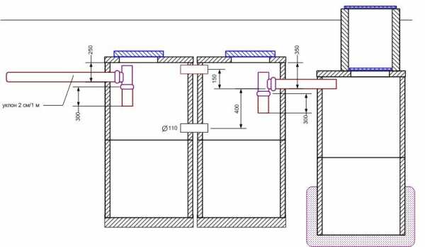
Один из основных элементов в конструкции двухкамерного септика – это переливная труба. Она соединяет два колодца между собой. Ее месторасположение определяет труба, по которой канализационные стоки поступают в септик из дома.
Так вот, переливная труба должна располагаться ниже входа основного трубопровода приблизительно на 20-30 см. При этом ее устанавливают с небольшим уклоном в сторону второго резервуара, так как жидкость по ней будет перемещаться самотеком.

Этот элемент изготавливают из пластиковой трубы. Для ее установки в бетонных кольцах необходимо сделать перфоратором отверстия под диаметр. После установки стыки надо заделать цементным раствором с жидким стеклом.
Завершающий этап
Остается лишь засыпать свободное пространство котлована грунтом и установить на крышке септика вентиляционную трубу. Кстати, вентиляция септика из бетонных колец – условие обязательное. Через нее из септика выходит углекислый газ, как продукт разложения органики. Но устройство вентиляции играет и вторую роль: через трубу внутрь поступает кислород. Он поддерживает жизнедеятельность аэробных бактерий, которые и разлагают органические вещества.
И последний штрих – декорирование участка, на котором сооружен септик из бетонных колец.
Правильно будет сделать оформление под тип насаждений, которые растут на участке. Таким образом, можно будет скрыть и вентиляционную трубу, и люк.
Полезные советы
Очень важно правильно выбрать место сооружения септика. Оптимальный вариант – недалеко от забора, где проходит дорога. Все дело в том, что сборный колодец придется периодически очищать от скопившегося ила. Это лучше всего сделать с помощью ассенизационной машины. Расстояние от дома до септика – минимум 5 м, до питьевого колодца, скважины или любого водоема – 50 м.

При строительстве особое внимание надо уделить стыкам колец. Это самые уязвимые места. Их не только надо заделать, но и хорошо гидроизолировать. Вот почему рекомендуется использовать жидкое стекло. Было бы неплохо, если провести обработку внутренних поверхностей колодцев битумными мастиками. Это недешево, но увеличит срок эксплуатации.
Заключение
Итак, септик из бетонных колец не относится к категории «завершенные очистные сооружения». Но на выходе, если правильно рассчитать его объем, выбрать схему и сделать грамотно монтаж, можно получить достаточно чистую воду. Она не загрязнит грунтовые воды, а ил можно использовать как удобрение.
tehno-beton.ru
Устройство септика из бетонных колец схема
Септик из бетонных колец
При возведении локальных очистных сооружений для загородных домов их владельцы стремятся по возможности минимизировать расходы, применяя более недорогие, но при этом эффективные решения. Одним из них является устройство септика из бетонных колец .

Достоинства и недостатки септиков из колец
Основным достоинством устройства септика из колец является низкая стоимость. В настоящее время такие локальные очистные сооружения являются одним из самых дешевых вариантов обустройства канализации загородного дома. Кроме того, имеется возможность провести все работы собственными силами. Ну и, конечно же, нельзя не отметить простоту и неприхотливость в обслуживании и эксплуатации.

Однако, на этом достоинства септиков из бетонных колец заканчиваются, уступая место целому ряду существенных недостатков. Прежде всего, это запах, поскольку септик из колец является негерметичной конструкцией. Кроме того, довольно часто требуется очищать резервуар от отложений, для чего приходится пользоваться услугами ассенизаторов. Конечно же, можно использовать специальные биоактиваторы. Но эти добавки лишь ускоряют процесс разложения бытовых отходов и уменьшают количество твердых отложений. В этом случае без услуг ассенизаторов также не обойтись.

Еще одним существенным недостатком является недостаточно высокая герметичность стыков между бетонными кольцами, в результате чего жидкие стоки могут проникнуть в грунт. Однако в случае качественного устройства септика из колец можно предотвратить такое развитие событий.
Схема устройства септика из колец
Устройство септика из колец представляет собой многоэтапную процедуру, которая состоит из следующих операций:
- подбор места монтажа;
- устройство котлована;
- установка бетонных колец;
- укладка и присоединение труб;
- герметизация стыков между кольцами;
- монтаж перекрытий;
- обратная засыпка септика из колец.

Однако перед началом работ следует определиться с конструктивными особенностями и произвести расчеты производительности. Как правило, схема септика из колец содержит одну или две отдельные камеры, в которых загрязненные воды, отстаиваются и очищаются, после чего направляются для дополнительной очистки в поля фильтрации либо в фильтрационный колодец. Выбор между одна-, и двухкамерной конструкцией зависит от количества жильцов и сантехнического оборудования. Впрочем, целесообразнее всего сделать выбор в пользу септика из колец с двумя камерами, поскольку он обеспечит неплохой запас производительности, что самым благоприятным образом скажется на качестве очистки.
Что касается расчетов производительности, то они должны производиться, исходя из суточного расхода. Как известно, один человек в день в среднем потребляет около 200 литров воды.

В то же время строительные нормы, предъявляемые к очистным сооружениям, очень жестко описывают емкость камер. Она должна вмещать не менее трех суточных объемов потребления воды, т.е. не менее 600 литров. При наличии большего числа потребителей это число должно быть увеличено кратно количеству проживающих.
Еще одним нюансом строительства септиков из бетонных колец является подбор места. Согласно действующим строительным и санитарно-гигиеническим нормам, такие очистные сооружения должны располагаться на расстоянии не менее 5 метров от жилых построек, а также не ближе 50 метров от источников водоснабжения. Кроме того, септики из колец могут возводиться только в местности с низким уровнем грунтовых вод.

На сегодняшний день бетонные септики являются одним из самых эффективных очистных сооружений, применяемых в загородном малоэтажном строительстве, отличаясь при этом низкой себестоимостью. Среди других достоинств следует отметить высокую механическую прочность, вместительность и простоту в обслуживании и повседневном применении. В отличие от септиков из бетонных колец, такие очистные сооружения обладают заведомо большей герметичностью за счет полного отсутствия соединительных швов.
По сравнению с пластиковыми, септики из бетона для дачного дома также обладают целым рядом преимуществ. Прежде всего, их можно сооружать в местах с высоким уровнем грунтовых год. Кроме того, при сопоставимым сроком службы эти очистные сооружения более безболезненно переносят агрессивное воздействие внешней среды.
Типовые варианты монолитных бетонных септиков для дачи
Самым простым вариантом является однокамерный бетонный септик. Он представляет собой резервуар из бетона, внутри которого протекают процессы отстаивания и осветления канализационных стоков. Содержащиеся в них посторонние включения постепенно оседают на дно, где со временем превращаются в ил, выделяя при этом некоторое количество теплоты, метана и сероводорода.

При этом более легкие вещества и газы всплывают наверх, образуя слой пены. Постепенно засыхая, она превращается в так называемую флотационную корку. Чтобы предотвратить засорение системы, на входных и отводных трубах бетонных септиков для дачи устанавливаются тройники.
Несмотря на низкую себестоимость и простоту конструкции, односекционный бетонный септик для дачи обладает одним, но довольно существенным недостатком – высокая вероятность выброса твердых частиц в трубы поля фильтрации, из-за чего они засоряются. Именно поэтому наибольшей популярностью пользуются двухкамерные бетонные септики для дачи.
Двухкамерные бетонные септики для дачи
Ключевой особенностью конструкции двухкамерного бетонного септика является перегородка, разделяющая его на две неравные части. Это позволяет свести к минимуму вероятность выталкивания твердых осадков в поле фильтрации либо фильтрационный колодец. Кроме того, за счет разделения на две камеры, такой септик требует менее частого обслуживания. При интенсивной эксплуатации очистку камер следует проводить не чаще одного раза в течение 3-5 лет.

Сравнивая двухкамерные бетонные септики для дачи с их однокамерными аналогами, нельзя не отметить более высокое качество очистки канализационных стоков. На выходе их степень чистоты составляет не менее 60-70%. Проходя через поля фильтрации, сточные воды удается очистить на 85-90%, что значительно снижает риск загрязнения окружающей среды.
Помимо этого, во второй камере можно соорудить дополнительный щебеночный фильтр. В качестве фильтрующего элемента применяется гранитный щебень фракции 20 мм. Основным его функциональным назначением является снижение вероятности заброса не растворившихся твердых частиц в дренажные трубы фильтрационного поля, где происходит доочистка канализационных стоков.

Единственным недостатком двухкамерного бетонного септика является более высокая стоимость возведения и повышенная трудоемкость работ. Однако, на фоне вышеназванных достоинств их нельзя признать существенными.
Схема возведения септика из бетонных колец своими руками
Обустройство канализационной системы на дачном участке или в загородном домостроении — один из самых важных этапов создания комфорта для человека. При этом самым популярным резервуаром для сбора нечистот считается септик, сделанный своими руками из железобетонных колец.
Такое устройство выгодно отличается от своих конкурентов сравнительно невысокой стоимостью, длительным эксплуатационным ресурсом и возможностью самостоятельного возведения. Поэтому такая канализация на даче – единственно правильный выбор в плане цены и качества.
Однако не лишено такое септическое устройство и недостатков, которые в основном сводятся к появлению неприятных ароматов из-за неполной герметичности сточного резервуара. Также по мере наполнения септика сточными водами его придётся очищать при помощи спецтехники, хотя такого недостатка не лишены и другие резервуары для сбора отходов жизнедеятельности человека.
Почему именно септик?
Чтобы полностью развеять сомнения в целесообразности использования септика, возводимого из бетонных колец нужно разобраться, чем такое устройство отличается от других канализационных сооружений. Если рассматривать достоинства такого сточного резервуара, то хочется отметить следующие параметры:
- сохранение грунта на приусадебном участке в чистоте;
- возможность переработки большого количества нечистот;
- невысокая стоимость монтажных работ;
- установка септика на любом грунте;
- редкая периодичность проведения мероприятий по очистке;
- долговечность и простота использования;
- возможность сооружения септика с использованием колец из железобетона своими руками.
К недостаткам такого канализационного резервуара можно отнести сложность по его установке, обусловленную с проведением земляных работ и весом готовых колец из железобетона для перемещения которых, может понадобиться спецтехника.
Основные этапы монтажных работ
На первый взгляд возведение септика из железобетонных колец может показаться сложным для самостоятельного выполнения. Но в реальности весь монтажный процесс состоит из нескольких мероприятий, которые под силу каждому домовладельцу:
- составление схемы и расчёт объёмов резервуара;
- выбор места под септик на приусадебном участке;
- земляные работы по копке котлована;
- установка колец из бетона и подключение канализационной трубы;
- обустройство гидроизоляции и герметизация швов;
- перекрытие септика и засыпка ямы.
Выбор схемы подходящего септика зависит от количества очистительных резервуаров. Обычно возводятся одно-, двух- или трёхкамерные сооружения. Септик с одной камерой подходит для небольших загородных построек, где люди не проживают постоянно. Но если в доме живёт большая семья, которая пользуется стиральной или посудомоечной машиной и другими сантехническими приборами целесообразно возводить своими руками многокамерную конструкцию сборника нечистот.
Особенностью однокамерного септика является то, что он работает по накопительному принципу, аккумулируя внутри резервуара отходы и поэтому в процессе наполнения, требует проведения регулярных очисток с помощью ассенизаторской техники. Поэтому целесообразно возводит резервуары из бетонных колец, которые могут вмещать объёмы сточных вод, превышающие суточные сбросы более чем в 15 раз.
Если рассматривать двухкамерную конструкцию, то она более функциональная. В первом резервуаре происходит накопление твёрдых отходов, а в следующую ёмкость перетекает остальная жидкость. При этом если дополнительно обустроить дренажный фильтр из песочно-гравийной смеси, то очищенные отходы будут впитываться в почву. Естественно, без откачки такого септика не обойтись, однако, периодичность проведения мероприятий, будет значительно реже, чем при использовании однокамерного аналога.
Схемы, расчёты и другие особенности септика
Если домовладельцем было принято сооружать своими руками 3-камерную модель септика, состоящего из бетонных колец, то согласно схеме, такое изделие должно состоять из следующих резервуаров:
- отстойник – камера, в которой отстаиваются нечистоты;
- очистительный резервуар, в котором устраняются загрязнения;
- фильтрационный колодец, предназначенный для доочистки сточных вод.
Рассчитывая размеры септика, нужно учитывать количество жильцов, постоянно находящихся в доме, и объёмы суточного потребления воды каждым человеком. Исходя, из усреднённых данных один жилец дома, который регулярно пользуется всей сантехникой, потребляет до 200 л жидкости в течение 24 часов. Поэтому средняя семья из 3 человек вырабатывает до 600 л отходов каждые сутки.
По существующим строительным нормам размер очистительной камеры должен вмещать объёмы сточных вод, которые накапливаются в течение 3 суток. Поэтому проделав несложные расчёты можно определить, что для средней семьи потребуется канализационный резервуар в 1800 л.
Особенности выбора подходящего места под септик
В процессе установки септического резервуара из бетонных колец своими руками нужно в точности следовать нормам и предписаниям, которые прописаны в действующей нормативной документации. По санитарным правилам запрещено располагать сточный резервуар в непосредственной близости от жилого строения и открытых источников питьевой воды. Прежде чем размечать участок, нужно ознакомиться со следующими нюансами:
очистное сооружение должно размещаться не ближе 5-м от жилого дома;- слишком большая отдалённость септика от дома может привести к значительному увеличению трудозатрат по прокладке канализационных труб;
- дистанция от сборника канализационных отходов до ближайшей скважины или колодца должна быть не меньше чем 50-м;
- для монтажа бетонных колец нужно обеспечить возможность подъезда спецтехники.
В месте установки септика не должно быть поверхностных грунтовых вод. При сооружении слишком длинного канализационного трубопровода он должен оснащаться ревизионными колодцами.
Особенности технологии монтажа септиков
Если рассматривать технологический процесс монтажа септического устройства, то он должен происходить согласно выбранной схеме очистительного сооружения. Если выбран 3-камерный септик, то все работы по его возведению своими руками состоят из определённых этапов.
- Возведение септика начинается непосредственно с приобретения бетонных колец. Для стандартного канализационного очистителя достаточно 9 элементов. Помимо этого понадобятся канализационные люки и бетонные крышки.
- На следующем этапе выполняется копка 3 котлованов расположенных в ряд. Полученные колодцы должны быть 3 метровой глубины и шириной на 100–150 мм больше диаметра бетонного кольца.
- Производится бетонирование дна первых 2 резервуаров.
- Следующий этап – монтаж колец из бетона. Для этого с помощью подъёмной техники отдельные элементы устанавливаются один на другой. В каждый котлован монтируется по 3 кольца.
- Выполняется заделывание стыков между соседними элементами с помощью песочно-цементного раствора.
Если следовать схеме установки септика из бетонных колец своими руками, то колодцы должны возводиться последовательно. Кольца устанавливаются друг на друга и стыкуются между собой с максимальной плотностью. Если предполагается нестабильность грунта в районе возведения сточного резервуара, то соседние бетонные элементы дополнительно закрепляются металлическими пластинами или скобами.
Монтаж канализационного трубопровода
При монтаже канализационного трубопровода нужно учитывать, что прохождение стоков из одного резервуара в другой должно быть беспрепятственным. Сам процесс установки труб подразумевает определённые нюансы:
канализационная труба подводится под небольшим углом в сторону сточных вод к первому колодцу;- отрезок трубы, соединяющий первый и второй резервуар, размещается на 20 см ниже входного аналога;
- патрубок, соединяющий последние 2 резервуара, опускается ещё на 20 см.
Несмотря на свою эффективность, септик из железобетонных колец не лишён недостатков, одним из которых является большая площадь для его установки.
Герметизация стыков и обустройство вентиляции
Очень важно качественно заделывать швы между соседними кольцами с помощью цементного раствора или готовых смесей. В первую очередь от этого будет зависеть образование неприятных ароматов на приусадебном участке. Для улучшения гидроизоляционных показателей септика его обрабатывают снаружи обмазочными материалами на основе герметиков.
Первый резервуар обязательно оснащается 4 метровой трубой, возвышающейся над перекрытием. Это позволяет, выходить образующимся в процессе брожения стоков газам. В случае необходимости такая вытяжка устанавливается на всех сточных ёмкостях.
Обратная засыпка выполняется по окончании всех монтажных процедур. Вынутая из ямы почва смешивается с песком и распределяется в пространстве между бетонных колец и котлованом. Каждый резервуар накрывается бетонной крышкой, в которой предусмотрено отверстие для люка.
Особенности эксплуатации самодельного септика
Просто самостоятельно построить септик с использованием бетонных колец недостаточно. Нужно уметь правильно его эксплуатировать. Важно учитывать, что в нормальный режим такое очистное оборудование войдёт только через полгода. Естественно, процесс можно ускорить с помощью использования специальных добавок.
Основным правилом эксплуатации септиков считается регулярный контроль уровня нечистот и своевременная их откачка по мере необходимости. Для контроля уровня осадков в резервуарах используют обычный деревянный шест, опускаемый в люк. Также нужно проверять качество очистки нечистот по их прозрачности. Чтобы не допустить замерзания стоков в септике желательно выполнить работы по его утеплению. Особенно это касается смотрового люка и бетонного перекрытия.
Рекомендации опытных строителей
Приступая к сооружению септика с использованием бетонных колец своими руками, нужно ознакомиться с рекомендациями специалистов, которые смогут поспособствовать ускорению монтажных работ и экономии денежных средств:
Чтобы уменьшить бюджет, предназначенный для сооружения септика перед приобретением колец из бетона целесообразно подготовить котлованы для их размещения. Это в первую очередь обусловлено тем, что разгрузка колец будет проводиться при помощи крана, так почему не выгружать их непосредственно в котлован и не платить дважды за услуги крановщика.- Для перекрытия септика бетонными плитами нужно устанавливать конструкции с отверстием для люка на каждом отдельном резервуаре. Благодаря этому упрощается контроль за наполнением ёмкостей и появляется возможность добавлять живые бактерии для переработки и разложения человеческих отходов на удобрение.
- При возможности желательно каждый колодец снабдить отдельной вентиляционной трубой.
- Не стоит пренебрегать утеплением септика для предотвращения промерзания в зимний период года.
- Чтобы конструкция септика получилась достаточно прочной, соседние элементы скрепляются скобами.
- При возможности нужно обработать кольца из бетона изнутри при помощи проникающей гидроизоляции. Но такие работы потребуют дополнительных денежных вложений.
Если следовать основным правилам монтажа канализационных септиков на приусадебном участке загородного домостроения, то весь процесс, даже проводимый своими руками, не вызовет особых проблем. Единственное, необходимо в точности соблюдать санитарные правила размещения канализационных систем. Однажды самостоятельно соорудив септик, домовладелец на долгое время обеспечит комфорт проживания всех родственников на даче или в загородном строении.
Селезнёв Геннадий Антонович
Как правильно сделать септик из бетонных колец?
Автономная канализация в доме — необходимость, как вода, отопление. Выгребная канализация — прошлое, заводской септик стоит недешево, приемлемый вариант — септик из бетонных колец своими руками. Особенности конструкции позволяют справиться с большим количеством отходов, предотвращают загрязнение грунта. Разберемся в отличительных характеристиках, правильности устройства и монтаже своими руками.

Преимущества и недостатки
Рассмотрим мотивы, позволяющие выбрать именно такую бетонную систему. У бетонного септика ряд неоспоримых преимуществ:
- Автономная работа сооружения, без подвода электрического питания.
- Нет необходимости в устройстве дополнительного дренажа, насоса.
- Размеры бетонных колец на усмотрение владельца.
- Срок службы бетонной конструкции гораздо больше, чем пластиковой, железной.
- Железобетонная конструкция эффективнее справляется с очищением сточных вод.
- Технология установки настолько проста, что работу может сделать человек с минимальными строительными навыками.
- Минимальные затраты на закупку материала и строительные работы.
- Простота в обслуживании.
Есть и вторая сторона медали — недостатки, их нужно знать в лицо:
- Применение специальной техники при монтаже, вручную тяжело поставить бетонные кольца.
- Сложность монтажа труб между секциями (отверстия под трубы делаем самостоятельно).
- Регулярное очищение в септиках камеры твердых отходов. При использовании специальных добавок уменьшается количество вызовов ассенизаторов, за счет разложения твердой массы.
Схема, устройство конструкции
Схема устройства септика.
Непосредственно перед строительными работами, необходимо определиться с местом расположения канализации, нарисовать чертеж. На данном этапе стоит учесть некоторые нюансы, которые обязательно отображаются в чертеже:
- расстояние между септиком и домом не менее 5 метров;
- от колодца, скважины с питьевой водой расстояние 30 м и больше.
Возведенным бетонным септиком на участке решается не только проблема сбора повседневного бытового мусора, но и учитывается экологический подход к распаду осадков на неопасные элементы. Для наглядного понимания процесса, разберем схему строения септиков, основной задачей которых является сбор отходов, поэтапное осветление, очистка. Септики различаются по количеству емкостей:
- однокамерный септик из бетонных колец, процесс работы накопление стоков;
- двухкамерный, емкости связаны между собой переливной трубой;
- трехкамерный, процесс работы, как и двухкамерной емкости.
Чем больше септиков, тем лучше очистка.
Каждая емкость отвечает за дальнейший этап очистки стоков. Чем больше емкостей, тем лучше очистка. Важно правильно рассчитать необходимое количество строений. Стандартный вариант — три элемента, но бывают специальные проекты, с меньшим количеством емкостей. Классическая схема септика из бетонных колец:
- Первый колодец — камера для отстаивания стоков с забетонированным основанием. Объем первой емкости — половина от размера всей постройки. В резервуар можно добавлять анаэробы, позволяющие разделять твердые субстанции и остатки накапливать на дне. При отсутствии на участке сооружений для забора воды, бактериями не пользуются.
- Второй колодец — емкость для очищения загрязнений, соединяется с первой и обеспечивает второй уровень фильтрации.
- Третий колодец — емкость фильтрации, соединена трубой со второй емкостью. Бетонное дно резервуара заменено на песчаное или песчано-щебеночное. Через него проходят осветленные воды и проникают в почву.
Как показывает практика, часто ограничиваются установкой двух колодцев. Маленькой семье с небольшим количеством бытовой техники одного отстойника достаточно, но семье с активным использованием стиральной и посудомоечной машин, душем, ванной и т.д. стоит остановить свой выбор на двух емкостях-отстойниках.
Расчет необходимого объема
Как правильно рассчитать объем автономной канализации? Главным показателем при расчете объема является потребление воды на одного человека в сутки. Один жилец расходует 150-200 л воды. Для правильного расчета стоит потребляемый объем на одного умножить на число всех проживающих в доме. Выходит суточное потребление воды на семью, плюс запас на 200 л, учитывая приход гостей.
Согласно строительным нормам стоковая яма должна содержать в себе объем отходов за трое суток. В среднем на семью из 3-4 человек объем очистного сооружения не меньше 3-4 м³. Цифра суточного потребления не превышает одного м³ — ставьте одно кольцо, если потребляемый объем колеблется от 1 до 8 м³ — септику необходимо две емкости.
Этапы строительства своими руками
Монтаж по сооружению септика на своем участке включает несколько этапов. Проведены все расчеты, схемы утверждены – заготавливаем материалы.
Подготовка материалов и инструментов
Размеры бетонных колец для септика.
Подготавливая список для закупки материалов, в первый пункт записываем бетонные конструкции. Зная количество и высоту резервуаров, легко рассчитать нужное количество колец (высота 90 см). Приобретение нижних колец с уже готовым дном облегчит работу. Необходимые инструменты:
- пластиковые трубы;
- уголки, тройники;
- асбестовые, вентиляционные трубы;
- цемент;
- гидроизоляционный материал;
- щебень;
- лопата, перфоратор, лестница, ножовка, мастерок.
Выбор местоположения
Место расположения, предназначенное септикам, имеет большое значение. На принятие решения влияют санитарно – эпидемиолгические и строительные требования:
- правильный расчет расстояния для удаления от дома, источника питьевой воды;
- низкое нахождение подземных вод;
- доступность свободного подъезда для транспорта.
Стоит знать, что устройство канализации на расстоянии больше 20 м требует дополнительных расходов для подводящего трубопровода и обустройства ревизионных колодцев.
Подготовка котлована
Подготовка котлована для септика.
Все подготовительные работы проведены – роем котлован. Для выкапывания ямы стоит использовать специальную технику, что сэкономит время, или выкопать яму самостоятельно. Плюс ручной копки состоит в том, что сразу соблюдаются нужные размеры, не понадобится корректировка этих размеров. Глубина ямы не менее двух метров, ширину выкапывайте с запасом, чтобы бетонными кольцами не цеплять бока рва.
Принято считать классическим вариантом котлована – круглую форму. Данное утверждение легко опровергнуть. Отлично подходит котлован в форме квадрата, его легче вырыть, да и бетонная плита в квадратную форму ляжет свободней. При трехкамерном септике вырываем три ямы, при двухкамерном — две. Каждую последующую яму располагаем ниже на 20-30 см.
Монтаж колец, подводка труб
Подводка труб к септика.
Катить кольца по поверхности запрещено, от такой транспортировки появляются трещины. К монтажу стоит привлечь специализированную технику, которая обеспечит кольцам подачу в вертикальном положении. Перед установкой стоит подготовить основание: песчаная подушка высотой в 30 см и бетонированная стяжка высотой в 20 см. Основание предотвращает попадание стоков в почву. Стяжку можно заменить цельной бетонной плитой или кольцами с бетонным дном. Однокамерные септики не бетонируются, достаточно дренажной подушки.
Герметизация
На забетонированное дно ставятся кольца. В кольце пробиваются отверстия для переливной трубы, тщательно заделываются цементом соединительные линии. Для наружной отделки используют обмазочные защитные растворы. Если есть финансовый потенциал, стоит купить пластиковые цилиндры и поставить внутрь колодца для предотвращения попадания загрязнений в почву. Можно начинать этап гидроизоляции.
Гидроизоляция
Защита конструкции от проникновения воды – пожалуй, самый ответственный этап. Несмотря на убеждение, что бетон воду не впитывает, производится полная гидроизоляция колодца. Жидкое стекло. битумная или полимерная мастика, бетонная смесь с добавками – отлично подходят для выполнения ответственной работы. Тщательно обрабатываются соединения колец.
Перекрытие и засыпка колодца
Завершающий фактор основных работ — установка перекрытий на кольцах. Накрываются емкости бетонной плитой с отверстием под люк. Засыпают колодец ранее вынутой землей, смешанной с песком. Равномерно распределяют по всей поверхности и тщательно уплотняют.
Некоторые полезные советы
Решив выкопать септик из бетонных колец своими руками, позаботьтесь о схеме будущей канализации, соблюдайте очередность этапов монтажа и ознакомьтесь с некоторыми советами напоследок:
- Для устройства канализации выбирайте самое низкое место своего участка.
- Не забывайте очищать сборный колодец, используя специальный транспорт.
- При установке, кольца лучше скрепить металлическими пластинами, что защитит от движения грунта.
- Позаботьтесь о вентиляции, выведите трубу над землей.
Создание автономной канализации самостоятельно существенно сэкономит семейный бюджет, а соблюдение технологий избавит от проблем при эксплуатации.
Источники: http://aquagroup.ru/articles/septik-iz-betonnyh-kolec.html, http://stoki.guru/kanalizaciya/septiki/shema-vozvedeniya-septika-iz-betonnyh-kolec-svoimi-rukami.html, http://kladembeton.ru/sooruzheniya/septiki/septik-iz-betonnyh-kolets-svoimi-rukami.html
kanalizacia-doma.ru
Септик из бетонных колец — 105 фото проектов и советы от опытных строителей
В большинстве частных домов отсутствует центральная канализация, что приводит к значительным трудностям с утилизацией сточных вод. Как же быть в такой ситуации? В таких случаях организуется автономная канализация: осуществляется централизованный сбор стоков со всех бытовых и хозяйственных построек на участке, которые удаляются в выгребной колодец.

Наиболее распространены выгребные ямы, но время не стоит на месте и на их смену пришли септики. Септики бывают сборные пластиковые, а также со станциями глубокой очистки.

Их минус — очень высокая стоимость. Альтернативный вариант — это установка септика из бетонных колец.

Плюсы и минусы бетонного септика
Положительные стороны:
Надежность конструкции. Железобетон имеет высокую прочность, долговечность и способен противостоять агрессивным средам.

Переливной септик из бетонных колец полностью автономен, он не требует дополнительных элементов для функционирования, таких как: электричество, насосы, дренажные установки, емкости для аэрации и бактерий и т.д.

Возможность возведения септиков различного объема и типа. Это обуславливается большим разнообразием железобетонных колец: диаметр колец колеблется от 0,5 до 2 метров. Высота колец имеет два варианта — 0,6 и 0,9 метров.
Возвести небольшой септик можно самостоятельно, даже без привлечения тяжелой техники. Монтаж не требует особых навыков и знаний.

Эксплуатируется септик легко — участие человека не требуется.

Для постройки необходим минимальный набор материалов и инструментов.

Отрицательные стороны:
Для возведения септиков большой вместимости, требуются манипуляторы. Это связано с большой массой бетонных колец и плит.

Для монтажа необходимо как минимум два человека. Такие септики требуют периодической очистки.

Схема и работа септика
До начала осуществления работ необходимо определиться с местом расположения и принципиальной схемой септика из бетонных колец. Стоит помнить, что бетонный септик должен располагаться как минимум в 5 метрах от дома, не менее чем в 2 метрах от хозяйственных построек. При наличии местных источников водоснабжения: в 30 и более метрах от колодцев и скважин.
Минимальное расстояние между септиком и проезжей частью — 5 метров. Септик должен располагаться непосредственно на участке.

Септики бывают однокамерные, двухкамерные и трехкамерные. Пример каждого из видов септика из бетонных колец можно просмотреть на многочисленных фото нашей подборки в конце данной статьи.

Возведение большего количества камер не целесообразно. Наиболее популярны двухкамерные септики. Такие септики состоят из двух колодцев, между которыми в верхней части располагается соединительная труба.

В первый колодец поступают стоки, собранные со всех источников в доме. Он герметичен (имеет бетонное днище). По мере заполнения первого колодца, стоки отстаиваются, происходит разложение стоков на жидкую, твердую и газообразную часть.

Твердая часть аккумулируется внизу, жидкая находится вверху, а газообразная часть удаляется через вентиляционный стояк, расположенный в самом верху септика (делается отверстие в колодезной плите перекрытия, выводится труба на 0,5-1,0 метров над поверхностью земли).

Достигая отметки соединительной трубы, жидкая часть переливается во второй колодец. Второй колодец имеет дренированное дно (отсутствует бетонная плита в днище — вместо нее щебеночная подушка).
По мере поступления жидких стоков, они накапливаются, отстаиваются и впитываются в грунт. Как же сделать септик из бетонных колец? Все начинается с подсчета необходимого объема.

Необходимый объем
В зависимости от объемов стоков, выбирается и общий объем септика. Для стандартной семьи в 3-4 человека требуется септик порядка 6-9 кубов. Расчет ведется из условий потребления воды в сутки на одного человека: 200 литров/сутки, а также минимального объема приемной стоковой ямы в расчете на трое суток.

При наличии 4 человек, получим суммарный максимальный объем стоков с учетом запаса в 200 литров — 1 куб. Это значит, что приемный колодец должен быть минимум 3 куба.

Второй колодец делают обычно таким же объемом. При наличии большего количества людей, увеличивают количество колец в септике, их диаметр, а также возводят дополнительные камеры.

Максимальный объем трехкамерного септика может достигать 45 кубов полезного объема.

Подготовка
После определения места для септика и подсчета необходимого объема стоков, легко можно определиться и с требуемым объемом септика. От его объема зависит количество бетонных колец, плит для днища и покрытия (можно использовать готовые кольца с днищами).
После приобретения и получения всех материалов, необходимо:
Подготовить котлован. Котлован стоит копать сразу для всех камер (большой котлован), с запасом для монтажа колец на 0,5-1 метр с каждой стороны. Глубина котлована должна соответствовать полной высоте септика.

Днище котлована выровнять и отсыпать песчаной подушкой, толщиной 0,1-0,2 метра. Подушку утрамбовать.

Копку котлована осуществлять только механизированным способом. При сооружении септиков небольших объемов (до 4 кубов), можно обойтись ручным способом.

Приобрести цемент, песок, щебень, канализационные трубы, битумную мастику, колодезный люк. Позаботиться о наличии необходимого инструмента.

Монтаж септика
Для возведения септика, необходимо наличие специальной техники и как минимум 2 человек. Монтаж осуществляется с днища. Днище устанавливается в уровень. Далее:

Монтаж колец, покрытий осуществлять с использованием манипуляторов. Кольца насаживаются на цементно-песчаный раствор, так же как и все плиты покрытия.
После монтажа колец, выполнить обмазочную гидроизоляцию, защитив от влаги как и сам септик, так и предотвратив попадание стоков через стенки септика в грунт.

Соединительную трубу между колодцами септиков располагать минимум на 0,2 метра ниже входной трубы из дома в приемный колодец. В последнем колодце сделать дренированное дно из щебня.

Края отверстия для труб, в стенках септика, заделать цементным раствором. После его затвердевания, это место тщательно промазать битумом.

Выдержать уклон канализационных труб в пределах 3-5%.

Заключение
Бетонный септик не требует много времени и больших средств. Является бюджетным вариантом решения проблем с канализацией.

Монтаж небольших септиков из бетонных колец можно осуществить своими руками, без привлечения специальной техники.

По окончанию работ, септик необходимо снабдить вентиляционными трубами, кольца скрепить между собой продольными вертикальными уголками или пластинами. Наиболее рационально размещать септик в самой нижней точке участка.

Фото септика из бетонных колец






































Также рекомендуем посетить:
strojka-gid.ru
Схемы септика из бетонных колец своими руками: подробное описание
При постройке дома планируется прокладка водопровода и канализационных отводов. Если в вашем районе не предусмотрена централизованная канализация (дачи, загородные и частные дома), рассматривается установка специального устройства для отвода, фильтрации и очистки бытовых стоков – септик. Это очистное сооружение, которое облегчит жизнь хозяевам и сохранит окружающую среду от загрязнения. Прежде чем проектировать канализационную систему, следует изучить почву в месте установки, рассчитать предположительное количество стоков и из множества разновидностей выбрать подходящий именно вам септик, а также начертить схему септика из бетонных колец своими руками.
Разновидности септиков
Традиционно очистные сооружения принято классифицировать по таким признакам:
- тип работы;
- материал изготовления;
- расположение емкостей.
Рассмотрим их более подробно.
Особенности септиков по типу работы.
Септики по типу работы подбираются в зависимости от ежедневного количества сточных вод. Они бывают:

- Накопительные. Это отстойник по типу выгребной ямы. Все отходы собираются в колодце до момента наполнения. Чистка производится с помощью ассенизаторской техники 1 раз в 2 – 3 месяца. Такие конструкции лучше использовать в местах небольшого количества стоков, например, на даче.
- С почвенной доочисткой. Этот септик используется в местах постоянного жительства и большого количества стоков. Работает по принципу разделения на фракции и состоит из двух камер. В первой задерживаются крупные отходы, а во второй происходит очистка поступившей воды с помощью специальных бактерий и сброс ее через поля фильтрации в почву. Такой септик требует очистки 1 раз в 2 – 3 года.
- С глубокой биологической очисткой. Такое сооружение производит практически полную очистку воды. Принцип действия такого септика в разделении стоков на легкие и тяжелые фракции, а далее происходит очистка воды с помощью бактерий и аэраторов. На последнем этапе вода обеззараживается с помощью химических веществ, поэтому ее можно использовать для полива или сбрасывать в водоем. Его особенностью является подключение к электросети. В таком септике остается очень мало не переработанных отходов, поэтому ассенизаторскую технику можно использовать 1 раз в 5 – 8 лет.
Выбор септика по материалу изготовления
Септики могут различаться по материалу изготовления. Например:
- Пластик и стеклопластик. Хорошая герметичность, небольшой вес и устойчивость к коррозии дают возможность установки без специальной техники и гарантию долгой эксплуатации. Не подходят для почв с близким расположением сточных вод.
- Кирпич. Это доступность материалов, легкий монтаж, но требует дополнительной герметичности.
- Железобетон. Надежное и долговечное сооружение. Подходит для подвижных почв.
- Металл. Не лучший выбор, так как он подвержен коррозии.
Характеристики септиков по расположению емкостей
В зависимости от расположения емкостей существуют вертикальные и горизонтальные септики. Для горизонтального требуется большой участок для установки, но его можно устанавливать в случае близкого расположения грунтовых вод. А вертикальный устанавливается в стандартных условиях.
Особенности и преимущества бетонного септика

Бетонный септик один из самых простых и экономичных способов отвода канализации. Данная конструкция очень надежная и долговечная, не требует подключения к электричеству и не поднимется под воздействием сточных вод. Септик из бетона может быть как монолитной конструкцией, так и собирается из бетонных колец.
Преимущества бетонного септика:
- Экологичность. Производится более качественная очистка сточных вод, а хорошая герметизация защитит от загрязнения почвы бытовыми отходами.
- Долговечность. В отличие от металлических и пластиковых емкостей, железобетонная конструкция более вынослива к окружающим условиям (подходит для любой почвы).
- Экономичность. Конструкция такого колодца несложная, доступна для монтажа непрофессионалом. Небольшие затраты на материалы и установку. Отпадает необходимость частого вызова ассенизаторов.
- Выбор размеров. Есть возможность установки отстойника любой высоты и диаметра, в зависимости от необходимости.
- Надежность. Бетонная конструкция армирована металлическими прутами и выдержит любую нагрузку. Она не склонна к разрушению и за счет большого веса выдерживает движение почвы и сточных вод.
- Автономность. Не требует подключения к электричеству и установки насосов.
Схема бетонного септика

Бетонный септик представляет собой несколько секций. Обычно схема септика из бетонных колец — это 2 или 3 колодца соединенных между собой, каждый их которых выполняет определенную функцию. Рассмотрим наиболее распространенную конструкцию из 3-х колодцев.
Первый колодец (накопительный) предназначен для накопления твердых веществ и должен быть с бетонным дном во избежание попадания канализации в грунт. В нем происходит разделение отходов на твердые и жидкие частицы. Твердая часть выпадает в осадок и остается в первой секции, а жидкая часть через соединительную трубу попадает во второй колодец (фильтрующий).
Вторая и третья секции могут быть немного меньше первой или одного размера с ней. Во втором колодце происходит вторичная очистка сточных вод, после чего они поступают в третий резервуар (дренажный колодец). Отсюда жидкость через дренажную подушку на дне удаляется в почву, или выкачивается с помощью насоса. В конструкции из 2-х секций исключается второй колодец, а функция очистки и дренажа выполняется в третьем.
Установка бетонного септика

Правильно сделать септик из бетонных колец не так уж сложно. Для установки очистительной системы данного типа нужно выбрать подходящее место с учетом расположения грунтовых вод (не ближе 1 м) и обеспечить свободный доступ ассенизаторской техники. Для монтажа роется котлован немного больше размера колец. Первый колодец ставится на бетонную плиту или дно заливается бетоном на месте. К нему подводят трубу от дома по легким уклоном. Кольца между собой скрепляют цементом или специальными металлическими пластинами во избежание сдвига во время эксплуатации. Швы между кольцами и подвод трубы тщательно герметизируют. Для этого используется силиконовая смазка, жидкое стекло или специальная мастика. Второй и третий колодцы монтируются по тому же принципу, только второй тоже имеет бетонированное дно, а в третьем на дно насыпается подушка из песка и гравия. Резервуары соединяются между собой трубами диаметром от 50 мм, каждая из которых ставится на 200 мм ниже предыдущей.
Совет: Чтобы обеспечить нормальное функционирование септика в зимний период, защиты колодца от морозов и создания подходящей среды для работы бактерий, следует произвести теплоизоляцию секций с помощью пенополистирола, пенопласта или любого биотоплива.
На заключительном этапе устанавливаются люки и колодцы засыпаются землей.
Цена септика из бетонных колец
В себестоимость устройства бетонного септика входит цена бетонных колец, материалов для гидро- и теплоизоляции, песка, щебня, цемента и прочих материалов. Из-за большого веса элементов конструкции потребуется специальная техника для подъема колец и экскаватор для рытья котлована. Также нужно будет оплатить работу строительной бригады, если вы не планируете делать монтаж собственными руками. Но даже с учетом всех этих расходов, такой септик выйдет дешевле, чем готовая заводская конструкция из пластика. Поэтому рассчитайте бюджет на установку септика и сделайте выбор. Более точные цены на материалы можно найти в интернете на сайтах по продаже стройматериалов.
Отзывы
Изучив отзывы пользователей бетонных септиков, можно сделать некоторые выводы по установке и эксплуатации данных очистных сооружений. Владельцы конструкций из бетонных колец советуют для лучшей фильтрации устанавливать как минимум 3-х секционный септик, не менее 2 – 3 колец в глубину. Гидроизоляцию швов лучше производить эластичными материалами, так как во время использования существуют легкие подвижки конструкции. На каждый колодец желательно устанавливать люк, чтобы был доступ в середину отстойника. Некоторые дачники используют очищенную воду для полива огорода (есть сведения, что она полезна для растений). Если все правильно сделано, такой септик довольно долговечен и не создает проблем.
Установка очистного сооружения в частном дворе – это не прихоть, а необходимость. С его помощью вы забудете о проблемах с канализацией и обеспечите своей семье комфортное существование.
Подробное видео по монтажу септика смотрите здесь:zg-dom.ru
схема установки и видео » SanDizain.ru
Среди новых очистных систем, которые пришли на смену зловонным выгребным ямам, особенно популярны септики. Но поскольку стоимость готовых сооружений не всем по карману, приходится делать септик из бетонных колец своими руками.
Когда канализация на даче или в частном доме не может быть подключена к центральным коммуникациям, актуальным становится вопрос о собственном очистном сооружении и в данном случае септик, является оптимальным вариантом. В отличие от обычных выгребных ям он очищает бытовые стоки, делая их безопасными для окружающей среды, сдерживает неприятные запахи и при правильной организации его откачка может не понадобится много лет. Решая, какой септик установить предпочтение нередко отдают именно конструкции из бетонных колец.
Виды и принцип работы септика из бетонных колец
Принцип работы всех септиков одинаков, отличие заключается только в использовании различных материалов для сооружения септика в частном доме и количестве камер – резервуаров для сбора нечистот.

Однокамерный и двухкамерный септик
- Однокамерный септик устанавливать нецелесообразно, поскольку процесс фильтрации
прекратится, как только произойдет заиливание дна. Во многом это зависит
от количества сточных вод и объем септика, но длительное время такое
очистное сооружение не проработает. Частая откачка осевших фракций потянет дополнительные расходы на услуги ассенизатора и запуск новых бактерий. - Двухкамерный септик вполне функциональный. В первой камере происходит лишь брожение и отстаивание стоков при закрытом дне, во вторую переходят уже достаточно
очищенные стоки, которые уходят в грунт. Скорость фильтрации зависит от
качества устройства дренажной системы.

Трехкамерный септик
- Трехкамерный септик является наиболее совершенным вариантов с точки зрения утилизации бытовых отходов. В данном случае роль отстойников выполняют первые две емкости, вода в них разной степени очистки, а третья выступает роли фильтрационного
поля. Поэтому, решая какой септик сделать, лучше остановиться на этом варианте.
Важно! В рабочем состоянии отстойники септика должны быть заполнены до уровня перелива, а фильтрационные поля содержать лишь некоторое количество очищенной воды.
Расчет необходимого объема септика
Объем стоков, а соответственно и объем емкости рассчитывается по формуле: число проживающих человек умножается на 200 литров, умножается на 3 дня и делится на 1000, полученное число определяет необходимый объем емкости в кубических метрах.

Габариты бетонных колец
200 литров это норма расхода на одного человека, конечно же, по факту она намного меньше. 3 дня – время, за которое вода в септике очищается. Если в доме часто бывают гости, используется стиральная или посудомоечная машина рекомендуют добавить к объему 200 л. Объем второго резервуара может быть меньше первого на 30 %, а третий на 50 %. Исходя из этих расчетов и, зная объем одного бетонного круга, несложно рассчитать, сколько их потребуется.
таб. КОЛОДЕЗНЫЕ КОЛЬЦА ЖЕЛЕЗОБЕТОННЫЕ
НАИМЕНОВАНИЕ | ГАБАРИТНЫЕ РАЗМЕРЫ в мм. | |||
высота | толщина стенки | внутр. диаметр | вес | |
| КС-7-5 | 500 | 80 | 700 | 0,275 |
| КС-7-9 | 900 | 80 | 700 | 0,410 |
| КС-7-10 | 1000 | 80 | 700 | 0,457 |
| КС-10-2 | 300 | 80 | 1000 | 0,200 |
| КС-10-3 | 300 | 80 | 1000 | 0,200 |
| КС-10-5 | 500 | 80 | 1000 | 0,200 |
| КС-10-6 | 600 | 80 | 1000 | 0,400 |
| КС-10-9 | 900 | 80 | 1000 | 0,610 |
| КС-10-9 с/з | 900 | 80 | 1000 | 0,610 |
| КС-10-10ч | 1000 | 80 | 1000 | 0,660 |
| КС-12-10 | 1000 | 80 | 1200 | 1,050 |
| КС-15-3 | 300 | 80 | 1000 | 0,200 |
| КС-15-6 | 600 | 80 | 1500 | 0,670 |
| КС-15-9 | 900 | 90 | 1500 | 1,00 |
| КС-15-10ч | 1000 | 100 | 1500 | 1,240 |
| КС-20-6 | 600 | 100 | 2000 | 1,20 |
| КС-20-9 | 900 | 100 | 2000 | 1,50 |
Септик из бетонных колец: этапы строительства
Канализация с септиком из бетонных колец отличается надежностью, долговечностью и высоким уровнем очистки бытовых нечистот. Цена такого сооружения будет сравнительно невысокой, а при отличной гидроизоляции и правильной схеме, откачка емкостей потребуется не часто. К сложностям строительства можно отнести необходимость привлечения тяжелой техники и особенности монтажа труб между бетонными секциями.
Подготовительный этап
Монтаж септика выполняют с соблюдением всех санитарных, строительных правил и норм. Продумывают конструкцию очистного сооружения, месторасположение на частном участке и согласовывают план в соответствующих инстанциях. Решают, какой септик лучше установить, что бы канализация в частном доме была выполнена максимально комфортной. Правильно рассчитывают объем септика и приступают к строительству.
Земляные работы
Котлован под очистное сооружение в частном доме должен быть настолько большой, чтобы ничего не мешало установке колец. Дно выгребных ям, на месте установки отстойников, бетонируют. Это позволяет исключить попадание еще не очищенных вод в почву.

Котлован для септика
Основание для второй или последующих камер выполняют с таким расчетом, чтобы вода могла уходить в почву. Для этого делают фильтрационную подушку глубиной до 1 метра из гравия и песка.
Совет! Если при монтаже септика котлован под фильтрационным колодцем достигнет песчаного слоя грунта, вода из него будет уходить максимально быстро и легко.
Форма котлована не обязательно должна быть округлой, подойдет и стандартная, квадратная, главное чтобы кольца заходили в него свободно. Кроме этого, в квадратную яму на дно можно уложить уже готовую бетонную плиту, тогда как в круглой можно выполнить только цементную стяжку. На этом этапе работ также стоит помнить, что если расположить каждый последующий колодец на 20-30 см ниже предыдущего, септик и собственно сама канализациябудут более функциональны.
Доставка и монтаж железобетонных колец
Кольца доставляет и устанавливает грузовой транспорт, поэтому заранее стоит обеспечить подъезд к месту строительства, учесть дополнительные экономические затраты и радиус разворота стрелы крана, ей не должны мешать газовые, телефонные или электрические коммуникации.
Между собой кольца, обычно, соединяют металлическими скобами, стыки промазывают раствором из цемента и песка.

Монтаж железобетонных колец
Когда установлены все колодцы в них проделывают отверстия и устанавливают переливные трубы, внешняя канализация соединяется с очистным сооружением через трубу стока, входящую в первую емкость. Места входа труб обязательно герметизируют.
Пространство между установленными кольцами и стенками котлована засыпают грунтом и тщательно, послойно утрамбовывают. Если септик установлен выше уровня промерзания грунта его утепляют, иначе в холодное время года канализация будет нефункциональна.
Совет! Доставку и установку бетонных колец лучше выполнять одновременно, это поможет сэкономить не только средства, а и время. Заранее стоит закончить все земельные работы и разгружать кольца, не просто на участке, а сразу, выполняя монтаж септика.
Гидроизоляция
Хорошая гидроизоляция септика имеет основополагающее значение в его правильной работе.Какой герметик лучше выбрать для этих целей каждый строитель определяет сам. Обычно для обработки швов, используют резинобитумную мастику, полимерные смеси реже. Для более продолжительной эксплуатации выгребных сооружений, выполняют и внутреннюю гидроизоляцию швов емкости.

Гидроизоляция колец колодца
Если герметизация будет выполнена плохо, то попадание неочищенных стоков в грунт будет меньшим из зол. Емкости септика, особенно во время весенней оттепели, будут наполняться водой, а все его содержимое будет вытекать через сантехнику в доме, потребуется неоднократная откачка.
Вентиляция
На первый резервуар обязательно устанавливают вытяжную трубу высотой до 4 метров над уровнем перекрытия септика. Она необходима для того, чтобы, образовавшиеся в результате брожения стоков газы смогли выйти, и на участке не было неприятных запахов. При возможности вентиляционные трубы устанавливают на каждом колодце.

Вентиляция септика
Перекрытие септика
Задача перекрытия заключается не только в закрытии ямы, оно должно обеспечить герметичность емкостей. Как правило, камеры накрывают готовыми железобетонными плитами, на которых предусмотрено отверстие для люка из чугуна или толстого пластика. Затем конструкцию засыпают небольшим слоем грунта. Люки на каждом из колодцев помогут следить за состоянием и наполнением септика, а также дадут возможность периодически добавлять смеси активных бактерий для выгребных ям.
Обслуживание септиков
После запуска системы канализации в частном
доме необходимо принять меры, которые позволят продлить срок ее эксплуатации.
• При эвакуации содержимого емкости на дне оставляют некоторую часть накопившегося ила, чтобы обеспечить в дальнейшем нормальное наполнение камер активными бактериями.
• Откачка содержимого септика выполняется ассенизаторской техникой, которая забирает стоки через разгрузочный патрубок.

Откачка содержимого септика
• Также существуют биологические способы очистки, использование так называемых бактерий для септиков и выгребных ям. Они помогут существенно уменьшить количество осадка, а, следовательно, и откачка жидкости потребуется реже.
• В канализацию категорически не рекомендуют спускать тряпки, спички, салфетки, гигиенические средства и даже туалетную бумагу
Установка септика из бетонных колец: видео
sandizain.ru
устройство, схема и способы сооружения своими руками
Обустройство канализационной системы на дачном участке или в загородном домостроении — один из самых важных этапов создания комфорта для человека. При этом самым популярным резервуаром для сбора нечистот считается септик, сделанный своими руками из железобетонных колец.
Такое устройство выгодно отличается от своих конкурентов сравнительно невысокой стоимостью, длительным эксплуатационным ресурсом и возможностью самостоятельного возведения. Поэтому такая канализация на даче – единственно правильный выбор в плане цены и качества.
Однако не лишено такое септическое устройство и недостатков, которые в основном сводятся к появлению неприятных ароматов из-за неполной герметичности сточного резервуара. Также по мере наполнения септика сточными водами его придётся очищать при помощи спецтехники, хотя такого недостатка не лишены и другие резервуары для сбора отходов жизнедеятельности человека.
Почему именно септик?
Чтобы полностью развеять сомнения в целесообразности использования септика, возводимого из бетонных колец нужно разобраться, чем такое устройство отличается от других канализационных сооружений. Если рассматривать достоинства такого сточного резервуара, то хочется отметить следующие параметры:
- сохранение грунта на приусадебном участке в чистоте;
- возможность переработки большого количества нечистот;
- невысокая стоимость монтажных работ;
- установка септика на любом грунте;
- редкая периодичность проведения мероприятий по очистке;
- долговечность и простота использования;
- возможность сооружения септика с использованием колец из железобетона своими руками.
К недостаткам такого канализационного резервуара можно отнести сложность по его установке, обусловленную с проведением земляных работ и весом готовых колец из железобетона для перемещения которых, может понадобиться спецтехника.
Основные этапы монтажных работ
На первый взгляд возведение септика из железобетонных колец может показаться сложным для самостоятельного выполнения. Но в реальности весь монтажный процесс состоит из нескольких мероприятий, которые под силу каждому домовладельцу:
- составление схемы и расчёт объёмов резервуара;
- выбор места под септик на приусадебном участке;
- земляные работы по копке котлована;
- установка колец из бетона и подключение канализационной трубы;
- обустройство гидроизоляции и герметизация швов;
- перекрытие септика и засыпка ямы.
Выбор схемы подходящего септика зависит от количества очистительных резервуаров. Обычно возводятся одно-, двух- или трёхкамерные сооружения. Септик с одной камерой подходит для небольших загородных построек, где люди не проживают постоянно. Но если в доме живёт большая семья, которая пользуется стиральной или посудомоечной машиной и другими сантехническими приборами целесообразно возводить своими руками многокамерную конструкцию сборника нечистот.
Особенностью однокамерного септика является то, что он работает по накопительному принципу, аккумулируя внутри резервуара отходы и поэтому в процессе наполнения, требует проведения регулярных очисток с помощью ассенизаторской техники. Поэтому целесообразно возводит резервуары из бетонных колец, которые могут вмещать объёмы сточных вод, превышающие суточные сбросы более чем в 15 раз.
Если рассматривать двухкамерную конструкцию, то она более функциональная. В первом резервуаре происходит накопление твёрдых отходов, а в следующую ёмкость перетекает остальная жидкость. При этом если дополнительно обустроить дренажный фильтр из песочно-гравийной смеси, то очищенные отходы будут впитываться в почву. Естественно, без откачки такого септика не обойтись, однако, периодичность проведения мероприятий, будет значительно реже, чем при использовании однокамерного аналога.
Схемы, расчёты и другие особенности септика
Если домовладельцем было принято сооружать своими руками 3-камерную модель септика, состоящего из бетонных колец, то согласно схеме, такое изделие должно состоять из следующих резервуаров:
- отстойник – камера, в которой отстаиваются нечистоты;
- очистительный резервуар, в котором устраняются загрязнения;
- фильтрационный колодец, предназначенный для доочистки сточных вод.
Рассчитывая размеры септика, нужно учитывать количество жильцов, постоянно находящихся в доме, и объёмы суточного потребления воды каждым человеком. Исходя, из усреднённых данных один жилец дома, который регулярно пользуется всей сантехникой, потребляет до 200 л жидкости в течение 24 часов. Поэтому средняя семья из 3 человек вырабатывает до 600 л отходов каждые сутки.
По существующим строительным нормам размер очистительной камеры должен вмещать объёмы сточных вод, которые накапливаются в течение 3 суток. Поэтому проделав несложные расчёты можно определить, что для средней семьи потребуется канализационный резервуар в 1800 л.
Особенности выбора подходящего места под септик
В процессе установки септического резервуара из бетонных колец своими руками нужно в точности следовать нормам и предписаниям, которые прописаны в действующей нормативной документации. По санитарным правилам запрещено располагать сточный резервуар в непосредственной близости от жилого строения и открытых источников питьевой воды. Прежде чем размечать участок, нужно ознакомиться со следующими нюансами:
очистное сооружение должно размещаться не ближе 5-м от жилого дома;- слишком большая отдалённость септика от дома может привести к значительному увеличению трудозатрат по прокладке канализационных труб;
- дистанция от сборника канализационных отходов до ближайшей скважины или колодца должна быть не меньше чем 50-м;
- для монтажа бетонных колец нужно обеспечить возможность подъезда спецтехники.
В месте установки септика не должно быть поверхностных грунтовых вод. При сооружении слишком длинного канализационного трубопровода он должен оснащаться ревизионными колодцами.
Особенности технологии монтажа септиков
Если рассматривать технологический процесс монтажа септического устройства, то он должен происходить согласно выбранной схеме очистительного сооружения. Если выбран 3-камерный септик, то все работы по его возведению своими руками состоят из определённых этапов.
- Возведение септика начинается непосредственно с приобретения бетонных колец. Для стандартного канализационного очистителя достаточно 9 элементов. Помимо этого понадобятся канализационные люки и бетонные крышки.
- На следующем этапе выполняется копка 3 котлованов расположенных в ряд. Полученные колодцы должны быть 3 метровой глубины и шириной на 100–150 мм больше диаметра бетонного кольца.
- Производится бетонирование дна первых 2 резервуаров.
- Следующий этап – монтаж колец из бетона. Для этого с помощью подъёмной техники отдельные элементы устанавливаются один на другой. В каждый котлован монтируется по 3 кольца.
- Выполняется заделывание стыков между соседними элементами с помощью песочно-цементного раствора.
Если следовать схеме установки септика из бетонных колец своими руками, то колодцы должны возводиться последовательно. Кольца устанавливаются друг на друга и стыкуются между собой с максимальной плотностью. Если предполагается нестабильность грунта в районе возведения сточного резервуара, то соседние бетонные элементы дополнительно закрепляются металлическими пластинами или скобами.
Монтаж канализационного трубопровода
При монтаже канализационного трубопровода нужно учитывать, что прохождение стоков из одного резервуара в другой должно быть беспрепятственным. Сам процесс установки труб подразумевает определённые нюансы:
канализационная труба подводится под небольшим углом в сторону сточных вод к первому колодцу;- отрезок трубы, соединяющий первый и второй резервуар, размещается на 20 см ниже входного аналога;
- патрубок, соединяющий последние 2 резервуара, опускается ещё на 20 см.
Несмотря на свою эффективность, септик из железобетонных колец не лишён недостатков, одним из которых является большая площадь для его установки.
Герметизация стыков и обустройство вентиляции
Очень важно качественно заделывать швы между соседними кольцами с помощью цементного раствора или готовых смесей. В первую очередь от этого будет зависеть образование неприятных ароматов на приусадебном участке. Для улучшения гидроизоляционных показателей септика его обрабатывают снаружи обмазочными материалами на основе герметиков.
Первый резервуар обязательно оснащается 4 метровой трубой, возвышающейся над перекрытием. Это позволяет, выходить образующимся в процессе брожения стоков газам. В случае необходимости такая вытяжка устанавливается на всех сточных ёмкостях.
Обратная засыпка выполняется по окончании всех монтажных процедур. Вынутая из ямы почва смешивается с песком и распределяется в пространстве между бетонных колец и котлованом. Каждый резервуар накрывается бетонной крышкой, в которой предусмотрено отверстие для люка.
Особенности эксплуатации самодельного септика
Просто самостоятельно построить септик с использованием бетонных колец недостаточно. Нужно уметь правильно его эксплуатировать. Важно учитывать, что в нормальный режим такое очистное оборудование войдёт только через полгода. Естественно, процесс можно ускорить с помощью использования специальных добавок.
Основным правилом эксплуатации септиков считается регулярный контроль уровня нечистот и своевременная их откачка по мере необходимости. Для контроля уровня осадков в резервуарах используют обычный деревянный шест, опускаемый в люк. Также нужно проверять качество очистки нечистот по их прозрачности. Чтобы не допустить замерзания стоков в септике желательно выполнить работы по его утеплению. Особенно это касается смотрового люка и бетонного перекрытия.
Рекомендации опытных строителей
Приступая к сооружению септика с использованием бетонных колец своими руками, нужно ознакомиться с рекомендациями специалистов, которые смогут поспособствовать ускорению монтажных работ и экономии денежных средств:
Чтобы уменьшить бюджет, предназначенный для сооружения септика перед приобретением колец из бетона целесообразно подготовить котлованы для их размещения. Это в первую очередь обусловлено тем, что разгрузка колец будет проводиться при помощи крана, так почему не выгружать их непосредственно в котлован и не платить дважды за услуги крановщика.- Для перекрытия септика бетонными плитами нужно устанавливать конструкции с отверстием для люка на каждом отдельном резервуаре. Благодаря этому упрощается контроль за наполнением ёмкостей и появляется возможность добавлять живые бактерии для переработки и разложения человеческих отходов на удобрение.
- При возможности желательно каждый колодец снабдить отдельной вентиляционной трубой.
- Не стоит пренебрегать утеплением септика для предотвращения промерзания в зимний период года.
- Чтобы конструкция септика получилась достаточно прочной, соседние элементы скрепляются скобами.
- При возможности нужно обработать кольца из бетона изнутри при помощи проникающей гидроизоляции. Но такие работы потребуют дополнительных денежных вложений.
Если следовать основным правилам монтажа канализационных септиков на приусадебном участке загородного домостроения, то весь процесс, даже проводимый своими руками, не вызовет особых проблем. Единственное, необходимо в точности соблюдать санитарные правила размещения канализационных систем. Однажды самостоятельно соорудив септик, домовладелец на долгое время обеспечит комфорт проживания всех родственников на даче или в загородном строении.
stoki.guru
Септик из бетонных колец: схема, устройство, установка, видео
Добавить в закладки Версия для печатиЧастный дом или дачу практически невозможно представить без дренажных колодцев и отводящих сооружений. Септик из бетонных колец является одни из самых доступных конструкций этого типа, его можно спроектировать и установить своими руками при наличии определенной подъемной техники и знаний.
Устройство
Дренажный колодец он же септик – это специальное сантехническое сооружение, которое необходимо для очистки и отстаивания сточных вод. Существует множество видов таких емкостей, но одними из самых доступных и надежных считаются бетонные кольцевые накопители. Они не поддаются коррозии, не реагируют на перепады температуры и отлично переносят физические нагрузки.
Конструктивно, такой септик состоит из:
- Крышки. Она защищает яму от загрязнения извне, а также обеспечивает должный уровень безопасности;
- Железобетонных колец. Они могут быть различной высоты, стандартной считается 90 сантиметров. По диаметру кольцо подбирается исходя из потребностей владельца дома;
- На дно устилается такое же бетонное изделие, как и крышка, только меньшего диаметра. В некоторых случаях этот септик могут оставлять открытым (без дна), тогда определенный процент стоков попадает в почву, за счет чего экономится место в емкости.
Помимо этого, конструкция бывает однокамерной и двухкамерной. Одна камера является примером септика all in, иными словами, все очистительные процессы производятся только в ней. Она имеет небольшие размеры и удобная в использовании. Однокамерный септик легко можно построить самостоятельно, для откачки воды из него применяется система патрубков и труб, расположенных на разной высоте. Он имеет небольшие объемы, поэтому отлично подойдет для бани или летнего душа, но не для большого дома.
Однокамерная модель септикаНо, двухкамерный септик больше подходит для дачи или частного дома. Он характеризуется высоким уровнем надежности и очистки. В нем установлено две камеры – одна первичной очистки, вторая – доочистки. В первую поступает вода непосредственно из канализации, здесь стоки несколько дней отстаиваются, после чего при помощи насоса или другого устройства перекачиваются в бак доочистки.
Двухкамерная модель септикаТакже есть трехкамерный (переливной) септик из бетонных или пластиковых колец. Использование этого колодца целесообразно в том случае, если он применяется не для одного частного дома, а для нескольких или для промышленного предприятия. Чаще всего в нем дополнительно установлены биофильтры для очистки вод при помощи микроорганизмов (в основном используются анаэробные бактерии).
ЖБ кольцаПринцип работы любого септика из бетонных колец аналогичен стандартному накопительному баку. Через входящий патрубок канализация переправляет в емкость сточные воды. Там они несколько дней отстаиваются, под воздействием силы тяжести крупные и твердые осадки падают на дно. Жидкие отходы проходят фильтровую очистку и по выходному патрубку переправляются до дальнейшего использования.
Установка
Монтаж септика из бетонных колец довольно сложно осуществить самому, отзывы утверждают, что без подъемной техники или нескольких помощников не обойтись. В это же время, изготовить эти самые кольца не составит труда – просто понадобится сделать раствор и залить его в специальную форму. Многие специалисты рекомендуют армировать емкости. Для удачного проектирования можно использовать готовые чертежи.
Принципиальный чертежСхема и инструкция установки септика из бетонных колец:
- Выкапывается яма. Размеры траншеи должны на несколько сантиметров превышать габариты накопителя, после установки колодца в зазоры утрамбуется грунт или зальется глиняной (бетонный) короб;
Фото: подготовка ямы - Дно утрамбовывается песком и щебнем – высота слоя от 20 до 40 см;
Монтаж септика - Самодельный септик по эффективности мало чем уступает профессиональному. Поэтому рассмотрим установку на примере конструкции, изготовленной своими руками. Сначала опускается первое кольцо. После его утрамбовки и выравнивания уровнем устанавливается дно;
- После монтируется второе кольцо и все последующие. На зиму рекомендуется залить зазоры вокруг колодца глиной – так повыситься теплоизоляция конструкции;
- После вся система оставляется для утрамбовки на несколько дней, периодически понадобится присыпать её землей и выравнивать кольца;
- Когда устройство утрамбовалось, остается только закрепить на нем крышку.
Размеры ямы для установки септика превышают диаметр в среднем на 5 сантиметров (это зависит от толщины бетонных колец). После этого устанавливаются бактериологические фильтры. Насосы и отводы к канализации.
Видео по теме:
[relatedYouTubeVideos max=”3″]
Купить готовые комплекты для монтажа колодцев можно на любом заводе-производителе бетонных и сантехнических изделий.
Гидроизоляция и вентиляция
Устройство септика из бетонных колец не является герметичным, поэтому для отвода неприятных канализационных запахов обязательно разрабатывается вентиляция. Для эффективной работы системы необходимо обеспечить отход газов, возникающих в процессах брожения стоков. Чтобы эти ароматы не попали в свежий воздух, вентиляция выводиться в фановую трубу.
Схема колодца с вытяжкойРасчет и изготовление вентиляции для септика из бетонных колец:
- Строительство вентиляции начинается после окончания монтажа всей накопительной системы. Основная воздушная труба крепится к крышке и выводится наружу;
- Вся вентиляции состоит из двух частей: подземной и наземной. Первая является трубой, диаметров не более 100 мм, но если у Вас колодец емкостью более 4 кубов, то нужно взять немного большее сечение. Вторая устанавливается над поверхностью земли и у неё меньший диаметр – 50–70 мм вполне достаточно;
- Многие специалисты рекомендуют эти труб дополнительно утеплить и защитить сеткой от проникновения в трубы листьев и другого сора;
- Наземная часть вентиляции обязательно находится над уровнем земли и выше предполагаемого уровня осадков, иначе через неё при дождях и паводках будет происходить наполнение колодца.
На этом обустройство вентиляционной трубы можно считать завершенным. Два раза в год предусмотрено плановое её обслуживание – очистка от сора и скоплений на стенках. Плановый ремонт осуществляется каждый сезон (замена труб при трещинах).
Отдельно нужно сказать про гидроизоляцию системы. Бетон не повреждается от воздействия воды, но он отличается хорошей впитываемостью, из-за чего работа колодца может быть неэффективной. Для предупреждения этого рекомендуется сделать гидроизоляцию для септика из бетонных колец
Герметизация смолойДля этого после того, как выкопается траншея под него, и её дно уплотнится, на него настилается гидроизоляционная пленка. Она защитит конструкцию от грунтовых вод, независимо от того, какая глубина установки накопительного бака. Такая герметизация будет очень полезна в районах с высоким УГВ и сильными осадками. Для установки септика в болотистых грунтах, яму рекомендуется сначала забетонировать, а после гидроизолировать.
www.kanalizaciya-stroy.ru
