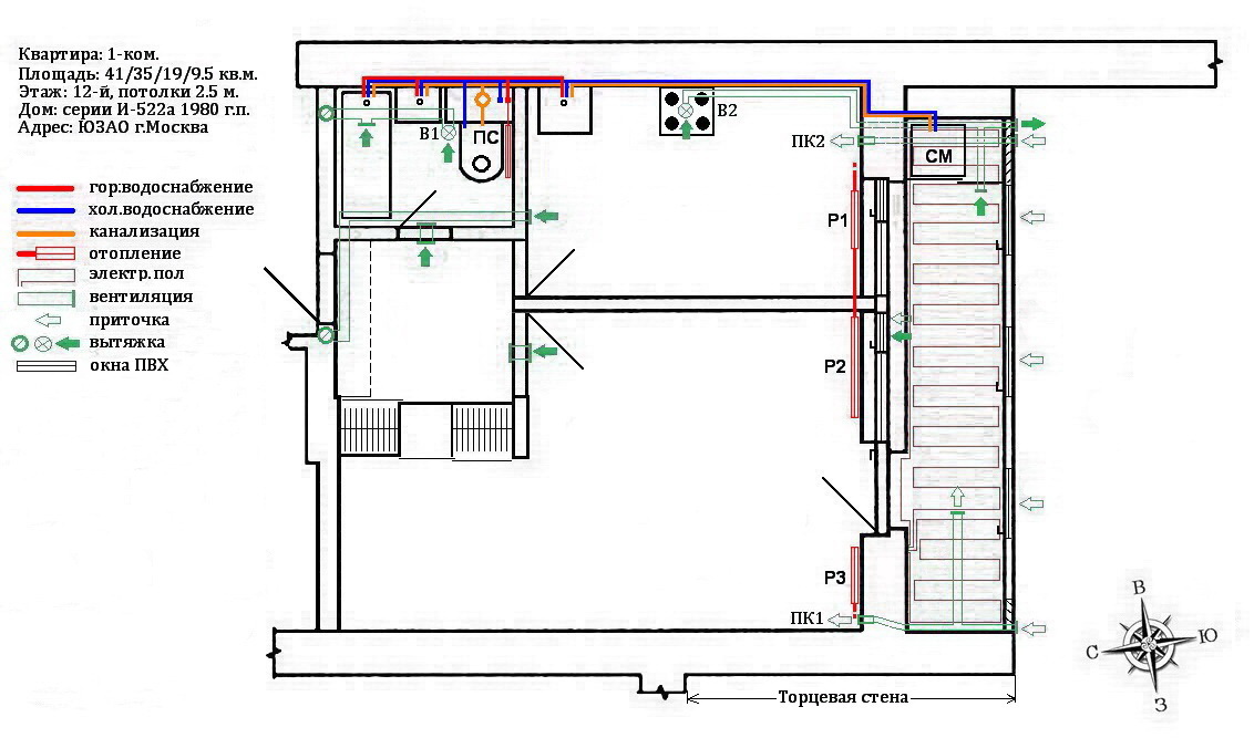
Схема вентиляции в квартире: Схемы систем вентиляции в многоквартирном доме: варианты реализации
Грамотное оборудование вентиляционной схемы в квартире и частном доме
Вентиляция представляет собой грамотно налаженный процесс воздухообмен в помещении, с поступлением достаточного количества свежего воздуха и отводом аналогичного количества отработанных воздушных масс. Данный процесс является жизненно важным не только для человека, домашних животных и комнатных растений, но и для самого помещения, строительных и отделочных материалов. Но человек, конечно же, превыше всего. От легкости дыхания будет зависеть не только самочувствие, но и настроение, работоспособность, желание что-то делать и радоваться жизни. Так что, вопросу загона свежего воздуха внутрь жилого помещения путем оборудования правильной вентиляции нужно уделить большое внимание.
Для чего вообще нужна вентиляционная система?
Свежий воздух, наполняющий помещение квартиры, дома или офиса, несет в себе кислород, одновременно вытесняя за пределы апартаментов вредоносный углекислый газ, лишнюю влагу, тепло, неприятные запахи, пылевые частицы, следы бытовой химии и т.
Какой бывает вентиляция?
Данный вопрос поможет принять решение в пользу того или иного вида вентиляции, являющегося наиболее оптимальным для вашего помещения. Формально, вентиляцию можно разделить на естественную и принудительную (искусственную). Но можно также выделить приточную, вытяжную, приточно-вытяжную, общеобменную, местную, а также канальную и бесканальную вентиляцию. Что касается естественной вентиляции, то в ней будут задействованы естественные физические свойства воздуха. Открываем окно, и свежий воздух самостоятельно будет заходить внутрь помещения, тогда как старый воздух будет столь же автоматически выходить через вентиляционный канал.
Вытяжная вентиляция работает в направлении принудительного отвода отработанных воздушных масс, тогда как приточная работает на приток свежего воздуха. Во многих случаях данные вентиляционные схемы объединяются в приточно-вытяжную вентиляцию, работающую в двух направлениях. Если в составе вентиляции присутствуют трубы-воздуховоды, то ее называют «канальной». Если труб нет, то система носит названия бесканальной. Вентиляция, обслуживающая определенную зону квартиры (например, кухню), называется местной. Если она обслуживает все зоны сразу, то ее называют общеобменной или централизованной.
Насколько продуктивна естественная вентиляция?
Конечно, открыть в доме окна – это не значит запустить полноценный процесс работы естественной вентиляции. Если климат не влажный, то этот процесс работать нормально не будет. Ну а во влажном климате воздух может поступать не только через открытые окна, но и через двери, подоконное пространство и всевозможные щели в вашем доме. Даже при установке пластиковых окон можно предусмотреть наличие встроенных вентиляционных проветривателей, которые компенсируют излишнюю закупоренность оконных конструкций.
Приточные клапаны могут устанавливать прямо над батареями. Это позволит поставлять внутрь помещения уже слегка прогретый воздух, чтобы не переохлаждать дом в зимний период. Данное решение доступно как в первичном, так и во вторичном фонде.
Конечно, если вы живете не в самом благоприятном городском районе, а ваши окна выходят на магистраль, то вместо свежего воздуха вы получите пыль и газ. И в этом случае гораздо лучшим решением будет оборудование принудительной вентиляции, снабженной качественной системой фильтрации. О естественном притоке лучше забыть. Но полностью отказываться от естественной вентиляции также не стоит. К примеру, если у вас все в порядке с вытяжкой, то механическое нагнетание очищенного уличного воздуха можно совместить с удалением отработанных воздушных масс естественным путем. Воздух будет уходить через вентиляционную шахту, которая расположена в районе кухни, туалета или ванной.
Что нужно учитывать при оборудовании естественной вентиляции?
Обычно на пути свободного движения свежего воздуха встают высокие дверные пороги и плотно закрывающиеся дверные полотна.
Конечно, полностью без дверей в доме обойтись не получится. Вместо этого можно встроить в дверное полотно врезаемую вентиляционную решетку. В этом случае стоит помнить о том, что поступление свежего воздуха будет осуществляться через низ, а отвод использованного воздуха – через верх. Полезная информация для организации воздушных перетоков. Вместо вентиляционных решеток можно использовать широкую щель под дверью, размер которой будет составлять от 2 миллиметров.
При организации переточной вентиляционной системы следует учитывать распределение воздушных потоков по помещению. Помещения закрытого типа (к примеру, гардеробная зона), должны оборудоваться нижними вентиляционными решетками для поступления воздуха из чистых зон, и верхними – для отвода воздуха в более загрязненные зоны. К примеру, поступление будет осуществляться из жилой комнаты, а отвод – на кухню. Это позволит защитить внутреннее пространство от пропитывания кухонными ароматами. Если вентиляция будет оборудоваться в стенах, то двери должны закрываться максимально плотно.
Вторым вариантом оборудования естественной вентиляции является установка приточного стенового клапана. Это вентиляционное отверстие поможет вам наладить эффективное проветривание комнаты без открытия окон. При этом отработанные воздушные массы будут отводиться через вентиляционные решетки в смежные комнаты, пока не дойдут до вытяжного канала. Разумеется, отверстие в стене в зимнее время будет предполагать серьезные теплопотери для помещения.
Самым влажным помещением в вашей квартире является ванная комната. При этом смежные помещения с ванной также пребывают в определенной зоне риска. И если из ванной комнаты есть выход в другую комнату, убедитесь в том, что ее пространство защищено плотно закрывающейся дверью. Отток излишком влажного воздуха из ванной комнаты можно обеспечить обычным открытием двери в ванную при работающей вентиляции.
Вытяжка на кухне и в ванной изначально была рассчитана на осуществление вентиляции всей квартиры в целом. Но иногда вытяжные отверстия слишком маленькие, чтобы они смогли осилить весь объем жилого пространства. Так что, не ставьте на вытяжку маленькие вытяжные решетки, тем самым еще более ограничивая ее пропускную способность. Неработающий вентилятор на вытяжке также значительно ухудшает тягу. Поэтому, лучше делать выбор в пользу канального вентилятора. Двери, ведущие в ванную, туалет и кухню не должны закрываться слишком плотно. Это приведет к тому, что отработанный воздух из жилых помещений не попадет к вытяжке. Если открытые и приоткрытые проемы вас не прельщают, поставьте на двери вентиляционные решетки, либо подрежьте жилое полотно на несколько сантиметров в нижней части.
Когда требуется налаживать искусственную вентиляцию?
Основным преимуществом искусственной вентиляции является возможность контролировать интенсивность воздухообменных процессов.
Вы будете пребывать в полной уверенности, что в вашем помещении не сыро, но свежо. Если помещение относится к «мокрому» типу, естественной вентиляции здесь будет недостаточно по умолчанию. Поэтому, в ванных комнатах, площадь которых составляет от 5 квадратных метров и более, имеет смысл поставить принудительную вытяжку. Если для обеспечения воздухообмена устанавливаются вентиляционные каналы, то для оборудования механической вентиляции можно будет использовать трубы меньшего диаметра, что является принципиальным моментом для многих владельцев жилых помещений. Если вы хотите, чтобы воздух можно было увлажнять, охлаждать, нагревать или фильтровать, вам также может понадобиться использовать принудительную вентиляционную схему.
Механическая вентиляция может оборудоваться вентиляционными приточно-вытяжными каналами, а может быть сформирована на базе обычной принудительной вытяжки, не подразумевающей использования воздуховодов. Если было решено использовать трубы, их можно замаскировать в специальных нишах или под подвесным потолком.
Воздуховоды могут иметь прямоугольное или круглое сечение, могут выполняться из пластика или стали, могут быть жесткими, полужесткими и гибкими, могут оснащаться звуко- и теплоизоляцией, либо поставляться без какой-либо изоляции вообще. Гибкий вариант обойдется дешевле жесткого, но срок службы гибкой трубы вдвое меньше, чем у жесткой. С точки зрения защиты от пожара, лучше выбирать металлическую трубу. Но с точки зрения коррозийной устойчивости, даже оцинкованный металл не даст вам 100-процентной защиты от ржавчины.
Если вы совмещаете вытяжку вентиляции с вытяжкой кухни, будьте предельно аккуратны. Кухонные запахи могут направляться не только на улицу, но и обратно в квартиру, на что могут влиять разные факторы. Чтобы этого не допустить, используйте в вытяжке обратный клапан, хотя и он не предоставить 100-процентной защиты от обратной тяги. В общем, если вы хотите, чтобы жилое помещение было полностью защищено от кухонных ароматов, не совмещайте вытяжки. Вместо этого расположите кухонный отвод выше общего.
Методики расчета вентиляции
Перед тем, как приступать к монтажу вентиляции на территории загородного дома, необходимо убедиться в том, что все расчеты были проведены правильно, с составлением грамотного проекта вентиляции. Дело это достаточно сложное, поэтому к проектированию и расчетам лучше подключать специалистов (инженеров, архитекторов). В противном случае, есть большой риск допустить просчет. В проекте должно быть учтено большое количество факторов, включая площадь жилой зоны, количество проживающих людей и животных, количество бытовой техники, возможное наличие «мокрых» зон, условия климата и т.д. Все указанное может оказать существенное влияние на определение разводной схемы вентиляционных каналов, диаметра воздуховодов, места расположения механических вентиляторов, рекуператоров, калориферов, фильтров и клапанов.
Если вы решили заняться проектированием вентиляции самостоятельно, вооружитесь СНиП «Отопление, вентиляция и кондиционирование». Даже если вы доверите дело профессионалам, прочитать данный документ будет совсем не лишним.
Скорость обмена воздуха, равная производительности систем вентиляции, измеряется в кубометрах в част. Приточная вентиляционная система подводится только в комнаты жилого назначения. Оттуда уличный воздух будет поступать в коридор, подсобные помещения, в туалет, кухню и ванную, то есть в места расположения вытяжных каналов.
Чтобы примерно представить норму воздухообмена для помещения, нужно умножить площадь помещения на высоту, после чего удвоить результат. Вы получите количество кубических метров свежего воздуха, которое нужно доставить в помещение в течение часа. К примеру, 45-метровая хрущевка с 2,5-метровыми потолками требует 225 кубометров воздуха в час. В коттеджах данная норма изменяется 1-2 тысячами кубометров ежечасного поступления воздушных масс в помещение. Помните, что чем больше скорость работы вентиляции, тем большей будет ее шумность. Работающая система не должна напрягать обитателей жилого помещения.
Производительность вентиляционной системы будет учитывать высоту и площадь помещения, показатель кратности воздухообмена, а также число живущих или работающих человек.
Если судить по усредненным показателям, то типовые квартиры нуждаются в 200-400 кубических метрах свежего воздуха в час. В частных домах этот показатель возрастает до 500 кубометров и более. В пересчете на людей, речь идет о 30-60 кубометрах воздуха на одного человека в помещении. Все необходимые формулы расчета вы сможете найти на просторах глобальной сети. Обратите внимание, что производительность определяет не только мощность вентиляторов, но и сечение воздуховодов.
Специалист по проектированию канальной вентиляции должен составить грамотную схему, позволяющую доставлять нужное количество свежего воздуха с использованием минимальной длины вентиляционных каналов. Для достижения данной цели архитектор будет располагать не только вентиляторами и воздуховодами, но и всевозможными разветвителями, переходниками, диффузорами, поворотами, дефлекторами, распределительными решетками, шумоглушителями, клапанами и т.д.
Обычно вентиляционные каналы скрываются под подвесным потолком. И чем меньше будет сечение воздуховодов, тем меньше высоты помещения украдет этот самый потолок.
Но следует иметь в виду, то маленький диаметр вентиляционной трубы существенно повысить скорость прохождения воздуха, а значит и увеличит шум от работающей вентиляции. В жилых помещениях не рекомендуется применять системы, скорость движения воздуха в которых превышает 4 метра в секунду. В качестве компромиссного варианта можно использовать воздуховоды прямоугольной формы. Имея с круглыми одинаковое сечение, они будут занимать под подвесным потолком гораздо меньше пространства.
Типы вентиляторов
Вентиляторы являются одним из главных элементов искусственной вентиляционной системы. Их предназначение очевидно. Они нагоняют воздух в систему с мощностью, определяемой своей производительностью. В зависимости от конструктивных особенностей вентиляторы могут быть диаметральными, осевыми и радиальными. В квартирных условиях чаще используют либо осевые (более мощные), либо радиальные (более тихие и экономичные) вентиляторы. По способу крепления выделяют канальные и накладные модели вентиляторов.
Накладные отличаются легким монтажом и ремонтопригодностью, тогда как канальные вентиляторы максимально тихие и незаметные. Работа вентилятора неизменно сопровождается использованием электроэнергии. Провод от устройства прячется в штробу, после чего проводится скрытое подключение. Накладные вентиляторы не стоит ставить над источниками тепла, поскольку устройство будет это тепло активно скрадывать.
Вентиляция или кондиционер?
Многие люди думают, что функции вентиляционной системы может выполнять обычный кондиционер. Это ошибочное мнение. Кондиционеры нужны для поддержания определенного температурного режима, без обеспечения воздухообмена. В принципе, оконные моноблоки и некоторые другие модели климатического оборудования действительно могут подмешивать свежий воздух в циркулирующий воздушный поток. Но если речь идет о масштабах загородного дома, то количество поставляемого свежего воздуха будет совсем незначительным. Стандартные сплит-системы настенного типа вообще не имеют ничего общего с вентиляцией.
А вот что действительно достойно рассмотрения, так это канальные кондиционеры с функцией подачи свежего воздуха. У канального кондиционера наружный блок устанавливается вне помещения, как и в других типах климатического оборудования. Это может быть стена дома или кровельная конструкция. Что же касается внутреннего блока, оснащаемого заборной решеткой, то его устанавливают непосредственно в квартире или в доме под потолком. И уже от внутреннего блока по апартаментам будут расходиться воздуховодные каналы. Обратите внимание, что канальный кондиционер позволяет обустраивать не только приток, но и вытяжку воздушных масс.
Полезные советы
- Планируя вентиляционную систему, обязательно учитывайте сечение входа в вентиляционную шахту. Сечение внутриквартирных воздуховодов не должно быть больше сечения входа. В идеале, должны быть использованы воздуховоды с одинаковым сечением до участка разветвления (если такой имеется). Дальше можно будет сечение уменьшить.
- Воздуховоды гибкого типа часто пережимаются гипсокартонным профилем потолка, что ведет к повышению шумности системы, образованию неприятных свистов и общему снижению производительности системы.

- Гибкие воздуховоды имеют большое количество недостатков. Гладкая труба характеризуется меньшим сопротивлением потоку проходящего воздуха. Оптимальным вариантом с точки зрения уровня шумности являются твердые пластиковые воздуховоды круглого сечения.
- Если ставить на притоке холодные металлические воздуховоды без изоляции, на них будет выпадать конденсат.
- Вытяжка не сможет эффективно функционировать без притока воздуха. При образовании пониженного давления внутри помещения работа вытяжной системы будет холостой. В современных квартирах организация притока достаточно проблематична, поэтому рекомендуется в процессе работы вытяжной системы открывать окна.
- Не стоит объединять кухонную вытяжку с вытяжкой санузла. Использование обратного клапана может полностью отрезать естественную вентиляцию. Если же его не использовать, то появится неприятный ароматический фон.
- Доработка кухонной вытяжки канальным вентилятором позволяет повысить ее эффективность.
Родной вентилятор кухонной вытяжки можно просто демонтировать, оставив в системе только купол и фильтры жироулавливающего типа. Управляющие кнопки будут активировать канальный вентилятор, а подсветка продолжит работать в прежнем режиме. Все это позволит существенно улучшить производительность кухонной вытяжки и снизить уровень ее шумности до нуля. - 90-градусные повороты при обустройстве каналов нежелательны, поскольку это чревато повышением сопротивления воздушному потоку и значительным увеличением шумности системы. Более плавным вариантом будет поворот из двух 45-градусных элементов.
- Проектированием вентиляционной системы в частном доме рекомендуется заниматься на стадии разработки проекта самого дома, поскольку впоследствии можно столкнуться с серьезным удорожанием и усложнением монтажных процедур. В частности, может возникнуть необходимость обхода многочисленных препятствий (стен, балок, колонн), с формированием лишних поворотов, с удлинением воздуховодных трасс и общим понижением уровня подвесного потолка.
Работа в готовом доме будет связана с неустанным поиском компромиссов, где придется выбирать между шумностью, производительностью и высотой потолка. - В каркасных домах с паро- и гидроизоляционными мембранами, а также в домах из СИП-панелей, не оборудованных приточно-вытяжной вентиляцией, формирование комфортных условий проживания людей практически невозможно. Такие дома полностью герметизируются и не «дышат». Вытяжка позволит организовать грамотный обмен воздуха, его очистку, увлажнение и даже регуляцию температурного режима.
Схема приточно-вытяжной вентиляции в частном доме и квартире
Улучшение циркуляции воздуха • Ingrams Water & Air
Похоже, в вашем браузере отключен JavaScript.
Для использования функций этого веб-сайта в вашем браузере должен быть включен JavaScript.
Меню
- Магазин товаров
Ребекка Мюллер 5 минут чтения
В жаркие летние дни, когда выход на улицу напоминает поход в печь или сауну, мы часто собираемся в закрытых помещениях, чтобы спастись от жары.
Хотя в таких ситуациях необходимо кондиционирование воздуха, не менее важна правильная вентиляция воздуха. Однако многие люди не знают, как работает вентиляция квартиры!
Кондиционирование воздуха является типом механической вентиляции. Основное различие между системами кондиционирования и вентиляции заключается в том, что кондиционер перерабатывает и охлаждает воздух. С другой стороны, системы вентиляции всасывают свежий наружный воздух и выталкивают застоявшийся воздух из помещения. Для достижения оптимального качества воздуха и циркуляции необходимо, чтобы кондиционер и вентиляция работали вместе.
Продолжайте читать, чтобы узнать больше о важности хорошей циркуляции воздуха!
Зачем в квартирах хорошая циркуляция воздуха?
По оценкам EPA, американцы проводят около 90% своего времени в помещении, где концентрация загрязняющих веществ в воздухе иногда в два-пять раз выше, чем на открытом воздухе. Из-за этого концентрация, вероятно, будет выше, если в квартире плохая вентиляция.
Некоторые распространенные загрязнители воздуха в квартирах включают:
- Моноксид углерода
- свинец
- Плесени
- Озон
- Пестициды
- PET DARND здоровье и качество воздуха в помещении.
Преимущества хорошей циркуляции воздуха
Помимо ограничения загрязнения воздуха, вот некоторые преимущества квартиры с хорошей циркуляцией воздуха:
- Улучшение качества воздуха в помещении: По мере уменьшения загрязнения воздуха качество воздуха улучшается. Надежные системы циркуляции воздуха снижают уровень влажности и удаляют из воздуха вредные для здоровья вещества. При этом они заменяют загрязненный воздух свежим и чистым наружным воздухом. В дни, когда качество наружного воздуха представляет опасность, вы все равно можете дышать свежим воздухом.
- Повышение энергосбережения: Хотя вентиляция сама по себе может не обеспечить достаточного охлаждения квартиры, она может уменьшить зависимость от переменного тока.
Поскольку системы переменного тока потребляют большое количество энергии, минимизация использования переменного тока при сохранении комфортной температуры может помочь сэкономить затраты на электроэнергию. - Повышенный комфорт: Улучшенное качество воздуха также делает жилое пространство более комфортным. Загрязнители воздуха в помещении могут вызывать обострения астмы или аллергии, боль в горле, сыпь, раздражение глаз и другие проблемы со здоровьем. Поскольку бактерии и вирусы процветают в теплом, прохладном воздухе, хорошая циркуляция воздуха может помочь предотвратить болезни и инфекции. Хорошая циркуляция воздуха также избавит квартиру от затхлых запахов и неприятных запахов. Улучшение здоровья и более свежий воздух оптимизируют жизнь в любой квартире.
Последствия плохой циркуляции воздуха
Преимущества хорошей циркуляции воздуха позволяют легко догадаться о последствиях плохой циркуляции воздуха. Недостаточная циркуляция воздуха часто приводит к ухудшению качества воздуха в помещении, увеличению затрат на электроэнергию и некомфортным условиям проживания.
Другие последствия плохой циркуляции воздуха включают:- Плохой запах.
- Возможные проблемы со здоровьем.
- Повышенное содержание загрязнителей и вредных для здоровья веществ в воздухе.
- Менее эффективное охлаждение и повышенная зависимость от систем переменного тока.
Какие виды вентиляции есть в многоквартирных домах?
Знание различных типов вентиляции, которые используются в многоквартирных домах, поможет понять, как работает вентиляция квартиры и как создать воздушный поток в квартире.
Механическая вентиляция
Системы HVAC включают в себя механическую вентиляционную структуру, в которой используются вентиляторы и воздуховоды для регулирования потока воздуха в здания и из них. Они втягивают теплый влажный наружный воздух и заменяют его прохладным осушенным воздухом.
Механические системы вентиляции также регулируют климат в доме. Они улучшают качество воздуха в помещении, контролируя уровень влажности в помещении и поток наружного воздуха.

Некоторые недостатки механической вентиляции включают увеличение затрат на электроэнергию и потенциальные проблемы с влажностью воздуха. Тем не менее, они эффективно охлаждают ваш дом и обеспечивают надежную циркуляцию воздуха.
Естественная вентиляция
Естественная вентиляция относится к вентиляции, в которой не используются вентиляторы или воздуховоды для втягивания воздуха снаружи. Простейшим примером естественной вентиляции является открытие окон квартиры, чтобы свежий воздух проходил через помещение. Естественная вентиляция предлагает бесплатный способ получить свежий воздух в вашем доме.
Несмотря на то, что вы можете сократить расходы на электроэнергию, максимально используя естественную вентиляцию, важно понимать, что во многих ситуациях это не работает. Хотя естественная вентиляция снижает зависимость от систем механической вентиляции, она не позволяет контролировать уровень влажности в помещении. Он также не удерживает контролируемый климатом воздух внутри многоквартирного дома, и если наружный воздух спертый, пахучий или загрязненный, естественная вентиляция может снизить комфорт в помещении.

Гибридная вентиляция
Гибридные системы вентиляции пытаются использовать преимущества как естественной, так и механической вентиляции, сводя к минимуму их недостатки. Эти системы включают в себя впускные отверстия для свежего воздуха, которые пропускают наружный воздух в здание, и систему воздуховодов, которая направляет воздух к приточному вентилятору. Приточный вентилятор увеличивает давление воздуха и распределяет воздух по всему многоквартирному дому. Затем потолочные вытяжные вентиляторы выгоняют застоявшийся воздух из помещения за пределы здания.
Как улучшить циркуляцию воздуха в квартире?
У вас есть несколько способов улучшить циркуляцию воздуха в квартире! В зависимости от вашей системы вентиляции некоторые варианты более эффективной циркуляции воздуха включают:
- Открытие окон и вентиляционных отверстий: В квартирах обычно меньше окон и вентиляционных отверстий, чем в домах, что затрудняет поддержание свежести воздуха.
С меньшим количеством точек входа еще более важно максимально использовать то, что у вас есть, держа вентиляционные окна квартиры открытыми, когда это возможно. - Стратегическое расположение вентилятора: Размещение вентиляторов перед открытыми окнами может обеспечить приток свежего воздуха внутрь и обеспечить циркуляцию воздуха в квартире.
- Замена воздушных фильтров: Забитые воздуховоды обычно являются причиной плохой циркуляции воздуха в квартирах. Не забывайте часто менять воздушные фильтры или следите за тем, чтобы управляющий недвижимостью менял их регулярно.
- Использование очистителей воздуха: Очистители воздуха удаляют запахи и загрязняющие вещества из воздуха в помещении. Поскольку в квартирах меньше окон и вентиляционных отверстий, очистители воздуха являются отличным вложением для жителей квартир, которые хотят нейтрализовать спертый воздух.
- Назначение зон, свободных от курения: Если возможно, сделайте свою квартиру зоной, свободной от табачного дыма, или обозначьте места, где жильцы или посетители могут курить, например, балкон или возле открытых окон.

- Герметизация воздуховодов: Некачественный воздуховод приводит к различным проблемам с вентиляцией, таким как запахи, просачивающиеся из вентиляционных отверстий, плохой поток воздуха, горячие и холодные точки, дребезжащие звуки и повышенные затраты на электроэнергию. Герметизация воздуховодов может решить многие проблемы с вентиляцией.
- Поперечная вентиляция: Перекрестная вентиляция сочетает в себе стратегическое расположение вентиляторов с открытыми окнами и вентиляционными отверстиями для создания прохладной среды. Открытое окно пропускает наружный воздух, чтобы освежить и охладить внутреннее пространство. Стратегически расположенные вентиляторы увеличивают давление воздуха и направляют его к выходному окну, откуда воздух выходит. Размещение вентилятора перед входным окном прогоняет воздух через ваше пространство, в то время как второй вентилятор меняет свое направление к выходному окну.
Хотите улучшить циркуляцию воздуха уже сегодня?
Позвольте нам помочь вам подобрать подходящий воздушный фильтр или отличный очиститель воздуха уже сегодня.
Для всех ваших потребностей в комфорте и вентиляции выберите Ingrams Water and Air Equipment.Статьи по теме от наших экспертов
Почему домашняя вентиляция так важна?
Домашняя вентиляция важна для того, чтобы сделать воздух в помещении более комфортным и здоровым. Дыхание имеет важное значение, поэтому сделайте дыхание легкой частью вашего дома.Повышение эффективности геотермального теплового насоса
Геотермальная энергия – это эффективный способ обогрева и охлаждения. Но что, если вы хотите пойти дальше? Как можно повысить эффективность геотермального теплового насоса?Кондиционер в квартире становится бесканальным
Кондиционирование квартир раньше управлялось неэффективными, шумными оконными блоками.
Но времена, мой друг, меняются.Вентиляция имеет значение — не игнорируйте ее
Хорошее качество воздуха невероятно важно для здоровья вашей семьи. Правильная вентиляция имеет ключевое значение, поэтому убедитесь, что ваш дом «дышит» правильно в любое время года.
Поделитесь своей историей
Для нас вы не просто клиент, вы семья. А это значит, что мы хотим услышать от вас. Расскажите нам о своем опыте работы с Ingram и о том, как вы используете наши продукты.
Электронная почта Дуга Ингрэма
5 Эффективные вентиляционные решения для квартир и квартир
Опубликовано пользователем Aldes
Общие стены, балансировка воздуха, энергоэффективность, эффект дымовой трубы, изменения в местных нормах… Инженеры сталкиваются с этими и другими проблемами при проектировании централизованных систем вентиляции для многоквартирных домов.
Соблюдать нормы и правила, а также удовлетворять требования владельцев зданий и застройщиков — непростая задача. American Aldes и наши партнеры-производители работали вместе с инженерами в течение почти 35 лет, разрабатывая экономически эффективные решения, которые легко интегрировать в конструкции, устанавливать и обслуживать. Вот пять популярных решений от Aldes, которые помогут вам проектировать системы вентиляции для квартир и многоквартирных домов без головной боли.- Линейка вентиляторов с рекуперацией тепла и энергии с максимальной настраиваемой конфигурацией и размерами до 10 000 кубических футов в минуту. Каждый блок создается в соответствии с вашими спецификациями, с несколькими вариантами ядра, конфигурациями воздуховодов, дополнительным нагревом и охлаждением, элементами управления экономайзером, и они сертифицированы AHRI. HRV и ERV удаляют спертый воздух и влагу из зданий и подают свежий воздух, максимально повышая энергоэффективность и снижая нагрузку на системы отопления и охлаждения.
Регуляторы постоянного воздушного потока - (CAR-II) корректируют эффект дымовой трубы, автоматически адаптируясь к изменениям статического давления, поэтому энергия не тратится впустую и поддерживается оптимальное качество воздуха. CAR не требуют никаких электрических или пневматических датчиков или элементов управления и представляют собой недорогое решение для балансировки вентиляционных систем, исключающее необходимость балансировки на месте и повторного обслуживания, поддерживая оптимальную работу системы круглый год. Они идеально подходят для нового строительства или модернизации проектов. Терминалы регистра зон
- (ZRT) обеспечивают энергосберегающее управление спросом, самобалансирующуюся вентиляцию без необходимости использования отдельных вентиляторов в ванных комнатах или других помещениях с высокой влажностью. Они обеспечивают до четырех различных схем управления без необходимости использования пневматических, электронных или цифровых систем управления. Терминалы регистра зон с параллельным демпфером (ZRT-PDIL) также заменяют отдельные вентиляторы или терминалы VAV и обеспечивают комбинированную вентиляцию с низким расходом воздуха в помещении и точечную вентиляцию с высоким расходом по требованию с использованием одной и той же системы центрального вытяжного или приточного вентилятора.
ZRT-PDIL — это простое решение для подачи свежего воздуха для оборудования, такого как кухонные вытяжки, или для вентиляции по мере необходимости в приложениях с большими объемами. Регистры постоянной вытяжки - и регистры постоянной подачи (CER и CSR) объединяют регуляторы постоянного потока воздуха (описанные в пункте 2 выше) с вытяжной или приточной решеткой, изготовленной из толстого экструдированного алюминия. Скорость воздушного потока устанавливается на заводе в соответствии с указанными параметрами и быстро устанавливается, как и любая решетка, поэтому никаких дополнительных усилий не требуется. Нужен один из них с противопожарным клапаном? У нас есть это. Постоянные вытяжные или приточные регистры с противопожарными заслонками (CER-FEA или CSR-FEA) регулируют поток воздуха и включают решетку и двухчасовой противопожарный клапан. Постоянная вытяжная решетка
- (CEG-II) автоматически регулирует воздушный поток и может быть отрегулирована в соответствии с заранее откалиброванными настройками воздушного потока, что позволяет подрядчику легко вносить коррективы на месте при изменении потребности в вентиляции.

