Ширина душевой – стандартная и минимальная величина от пола до потолка, какие существуют стандарты параметров, душевая кабинка высотой 200 см с крышей
Размеры душевых кабин угловых — варианты и преимущества
Форма, а также габариты или размеры душевых кабин угловых, могут быть очень разными.Вид и размеры сантехнического устройства напрямую зависят от целей использования модели и параметров пространства, в котором будет осуществляться установка.
Угловые душевые кабины
К наиболее значимым преимуществам современных душевых кабин углового типа можно отнести:
- Экономию пространства. Компактные угловые душевые кабинки занимают минимум свободного пространства в ванной комнате.
- Сокращением счетов за горячее водоснабжение. Принятие душа позволяет снизить расход горячей воды примерно в пять раз, что положительно сказывается на расходах.
- Удобство эксплуатации. Модели с глубоким поддоном позволяют совместить удобство традиционной ванны с комфортным принятием душа в разных режимах.
- Чистоту в сантехническом помещении. Дверцы предотвращают попадание водных и мыльных брызг на напольное покрытие или стеновых поверхности.
- Высокие показатели функциональности. Современные модели угловых душевых кабинок часто оснащаются сложными техническими устройствами, включая парогенератор, телефон и декоративную подсветку, а также радиоприемник и музыкальный центр.

Угловая кабина среднего размера
Широкий выбор материалов и оттенков, а также разнообразие форм, делает угловые душевые кабинки невероятно популярными. Следует отметить, что очень красиво и гармонично могут выглядеть не только самые дорогостоящие модели, но и достаточно простые конструкции.
Единственным недостатком душевых кабин углового типа является невозможность принимать полноценные лежачие ванные процедуры.
С прямой фронтальной панелью
Сантехнические конструкции различаются по типу фасадной части. Угловые душевые кабинки, обладающие прямой фронтальной панелью, характеризуются удобством эксплуатации и привлекательным внешним видом.
Вариант с прямой, а не округлой душевой панелью, является идеальным для установки в маленьких ванных комнатах. Однако, следует помнить, что модели с нестандартными размерами чаще всего обладают расширенным функционалом, поэтому их стоимость на порядок выше, чем цена классических душевых кабин.

Душевая кабина Finn 407 H
С закругленным центральным фасадом
Современные модели душевых кабинок с закругленной панелью — очень доступный вариант, позволяющий достаточно легко воплотить в жизнь самые впечатляющие дизайнерские идеи, а также подобрать сантехническое устройство для любого стиля интерьера.
Скругленная угловая душевая кабина может отличаться размерами и высотой или глубиной поддона, но благодаря обтекаемой фасадной части, является на сегодняшний день наиболее популярной и востребованной.Преимущества и характеристики полукруглых моделей
Сантехнические душевые изделия полукруглого типа устанавливаются в уголовной зоне ванной комнаты. Стандартная ширина дверцы в таких моделях варьирует в пределах 70-90 см, поэтому конструкция прекрасно подходит для монтажа в небольших помещениях.

Душевая кабина HUPPE
Угловые полукруглые кабинки, оснащенные дверцами-купе, имеют размеры 70×70 см. Чаще всего полукруглые модели устанавливаются на низком поддоне, высота которого составляет 10-15 см. В этом случае створки и панели конструкции фиксируются к стенам ванной комнаты.
Наиболее функциональные модели полукруглого типа могут иметь размеры поддона 125×125 и 150 × 150 см.
Размер кабин
Душевая кабина углового типа, как правило, относится к категории бюджетных и общедоступных вариантов. Наиболее простая сантехническая конструкция отличается обычным полукруглым или квадратным поддоном и наличием стандартных боковых ограждений. Дверцы в таких устройствах могут быть сдвижного или распашного типа.
В последние годы отечественными и зарубежными фирмами было налажено производство полноценных гидробоксов, имеющих расширенный функционал, представленный гидромассажем, турецкой баней и многими другими наиболее современными опциями, делающими водные и гигиенические процедуры максимально комфортными.

Размеры душевых кабин
Для таких моделей характерна компактность, обеспечивающая свободный доступ к душу, а также эффективное использование полезного пространства. Поддон может быть как глубоким, так и невысоким. Такой универсальный компактный вариант прекрасно подходит для установки в практически любой, даже небольшой по площади ванной комнате.
При выборе угловой душевой кабинки нужно определиться с наиболее предпочтительными размерами и конструкцией многофункционального сантехнического устройства.
С низким поддоном
Традиционные конструкции с высокими бортами не всегда удобны в эксплуатации, особенно для маленьких детей, пожилых людей и лиц с ограниченными возможностями. Такого недостатка полностью лишены душевые кабины углового типа, оснащенные неглубоким поддоном.
Стандартные размеры наиболее популярных моделей составляют 70х70 см, 80х80 см и 90х90 см при разной общей высоте душевой конструкции.

Угловая душевая кабина с низким поддоном
Современные модели с низким поддоном имеют максимальную высоту бортиков в пределах 150 мм, поэтому вполне могут устанавливаться в качестве функционального дополнения для традиционной объёмной ванны.
Душевые кабинки, оснащенные низким поддоном, имеют специальную систему, которая эффективно препятствует задержке воды, поэтому их эксплуатация удобна и полностью безопасна.С высоким поддоном
Душкабины с глубоким поддоном имеют бортики высотой не более 25-35 см. Высокие поддоны способны долгое время сохранять тепло, а показатели глубины сантехнического устройства оказывают непосредственное влияние на скорость и степень прогрева всего внутреннего пространства кабинки. Модельный ряд, имеющий высокие поддоны, очень часто используется как мини-ванна и в качестве ёмкости для стирки достаточно габаритных вещей.

Душевой угол с высоким поддоном
Кроме всего прочего, вода в таких конструкциях расходуется более экономно, по сравнению с традиционной ванной. С целью максимально комфортной эксплуатации, в глубокий поддон может быть установлено небольшое, но удобное сидение. Также к преимуществам высоких конструкций относится возможность облегчить обслуживание всех коммуникаций, установленных в пространстве под угловой душевой кабинкой.
Самым популярным вариантом является установка угловых моделей, имеющих глубокий поддон треугольной формы, дополненный стеклянными или полистирольными дверками.
Советы и рекомендации
Вариативные угловые душевые кабины выпускаются: квадратной, прямоугольной, полукруглой или пятиугольной формы поддона, поэтому выбор модели напрямую зависит от наличия и размеров свободного пространства, выделенного для установки многофункционального сантехнического устройства.Такие устройства выпускаются с размерами от 70×70 до 100×100 см, поэтому внутри грамотно выбранного гидробокса вполне хватает места для комфортного принятия гигиенических процедур.
Видео на тему
delaemvannuu.ru
Душевая кабина — размеры, характеристики и функции
Кабинка с душем позволит комфортно принимать гигиенические процедуры и в маленькой ванной.
Если санузел в жилище небольшой, то многие в нем вместо ванны устанавливают душевые кабины. Это дает возможность экономии свободного места и оснащения комнаты удобным сантехническим прибором. При выборе обязательно необходимо принять во внимание размеры душевой кабинки и ее форму. Об этом и расскажу.
Почему так важны параметры кабинки?
Важны не только параметры душевого устройства, но и объем самой ванной комнаты. Нередко получается, что конструкция не проходит в комнату по высоте. Либо излишне широкий поддон не влезает в то место, для которого предназначен.

Размеры душевой кабины должны перекликаться с габаритами ванной комнаты
Перед установкой душевой кабинки необходимо померить высоту стен. Некоторые из изделий комплектуются поддоном шириной 0,4 м. Конструкции, устанавливаемые на ванне, бывают и более высокими.
При высоте поддона 0,4 м, а фасада устройства 1,75 м, протяженность стен в ванной, минимально, должна составлять 2,35 м. В противном случае сантехнический прибор в комнате не уместится.
Классификация конструкций
Производители в большинстве случаев изготавливают душевые устройства стандартных габаритов и конфигурации, учитывая типовые параметры ванной комнаты.
При классификации конструкций по длине их сторон все модели делятся на три типа:
| Фото | Категория кабинки по размеру |
![]() | Малогабаритная конструкция. Обладает длиной стенок от 0,7 до 1,3 м. Такие устройства идеальны для маленьких ванных комнат. |
![]() | Кабинка со средними параметрами. Длина ее стенок может составлять от 80 до 130 см. Такие модели оптимальны для стандартных санузлов. |
![]() | Крупногабаритные изделия. Длина их стенок составляет от 1.7 м и больше. Такие сантехнические приборы подходят для больших ванн в элитных квартирах и собственных домах. |
Высота кабинок также может быть разной:
- Низкими считаются устройства, если их протяженность по вертикали равна 1,7–1,9 м.
- У высоких устройств это параметр составляет 2,1–2,4 м.
Габариты наименьшей кабинки, какую вы только сможете найти: длина стенок 0,7 м, высота — 1,7 м. Часто такие конструкции производятся без поддона.
Виды кабин по конфигурации
При выборе следует обращать внимание не только на размеры душевых кабин, но и на их форму.
Квадратные

На фото — средняя квадратная кабинка.
Кабинки с равной длиной сторон наиболее распространены. Их монтировать своими руками проще, нежели все остальные. Фасад таких конструкций может оснащаться распашными либо раздвижными дверцами:
- Минимальныестандартные размеры квадратных кабин могут составлять 0,7×0,7 и 0,8×0,8 м. Первый вариант с прямым фасадом оптимален для монтажа в маленьком помещении в любом случае. Второй размер подойдет для небольшой ванной, если передняя сторона модели округлая.
- Средние размеры квадратных кабин равны 0,9×0,9 и 1×1 м. Сантехнические приборы таких габаритов идеально впишутся в стандартную ванную комнату.

Большой сантехнический прибор из ограниченной партии.
- Крупногабаритные квадратные кабины — длина их сторон равняется 1.1×1,1 и 1,2×1,2 м, а высота может достигать 2,4 м. Недостаток таких моделей — при оснащении их фасада распашными дверями, те при отворении отнимают много места.
Прямоугольные конструкции

Самый большой прямоугольный душ длиной 1,2 м и шириной 0,9 м.
Душевые кабинки прямоугольной формы могут выпускаться с такими параметрами в метрах:
- 0,8×1;
- 0,8×1,1;
- 0,8×1,2;
- 0,9×1,1;
- 0,9×1,2.
Габариты стандартных прямоугольных моделей дают возможность установить ее на ванне. Так можно совместить два сантехнических прибора для водных процедур.

Душевой прибор, совмещенный с ванной.
Для этого на ванне необходимо смонтировать перегородки и стойку с душем. Тут надо принять во внимание, что высота ванны на ножках составляет примерно 0,7 м, а минимальный параметр душа – 1,7 м. Следовательно, протяженность стен в комнате должна быть не меньше 2,4 м.
Душевая кабина, устанавливаемая на ванную чашу, называется комбинированной. Но конструкции нельзя совмещать, если первая из них оснащена дополнительными опциями: гидромассажерами, ароматерапией, парилкой и пр.
Душ с поддоном

Форма поддонов, как и их высота, может быть разной.
Душевые устройства можно монтировать:
- на низких поддонах с размером бортиков 0,1–0,15 м;
- на высоких аналогах с бортами 0,4–0,6 м.
Первая разновидность монтируется на напольном покрытии. При ее установке надо принять во внимание, что под поддоном должны поместиться труба канализации и сифон. Души, оснащаемые поддоном, можно ставить лишь в стандартных и крупногабаритных ванных помещениях.
Параметры таких приборов бывают разными:
- высота душа, оборудованного поддоном, колеблется от 2,1 до 2,45 м;
- длина сторон может составлять от 0,9 до 1,7 м.
Угловые модели

Угловые модели кабин экономят пространство.
Душевые приборы могут монтироваться в углу. Фасад у таких моделей обычно полукруглый. Угловой душ оснащается дверками шириной 0,7–0,9 м. Исходя из этого, конструкция оптимальна для монтажа в маленькой ванной комнате, в которой практически нет свободного места.
Чаще всего угловые приборы монтируются на низкой разновидности основания высотой 0,1–1,5 м. Панели и дверцы сантехнического прибора фиксируются к стенкам ванного помещения.

Даже самые маленькие угловые устройства достаточно удобны.
Габариты моделей:
- Минимально, размеры угловой душевой кабины, оснащенной раздвижными дверками, равняются 0,7×0,7 м. Это дает возможность эффективно экономить занимаемую площадь.
- Стандартные (средние) параметры конструкций 0.8×0,8, 0,9×0,9, 1×1 и 1,1×1,1 м.
- Крупные размеры угловых душевых кабин — от 1,25×1,25 до 1,5×1,5 м.
Модели, у которых нет задней стенки

Устройство без задних стенок на невысоком поддоне.
Производители выпускают и душевые устройства без задних панелей. Их заменяют стены помещения. Такие изделия устанавливаются на тонкое основание. Габариты подобных аналогов невелики — 0,7×0,7–1×1 м. Высота сантехнического изделия обычно составляет не больше 2 м.
Наиболее прочные и надежные устройства без задних стенок, фасад которых оснащается распашными либо раздвижными дверцами. Подобные устройства можно использовать только для гигиенических процедур с помощью душа. Для комбинирования с чашей они непригодны.
Закрытые гидробоксы

Гидробокс оснащен множеством дополнительных опций, поэтому стоит дорого.
Гидробоксы закрыты со всех сторон, в том числе оснащаются крышей. Поэтому они наиболее герметичны.
Цена их достаточно высока, так как они оборудуются дополнительными элементами: парогенератором, гидромассажными приспособлениями, ароматерапией, подсветкой, сиденьем и пр. Многие из этих функций становятся возможными благодаря герметичности гидробокса.
Изделия могут оборудоваться высоким либо низким поддоном. Габариты гидробоксов:
- минимальный — 0,9×0,9 м, кабина этого размера оптимальная для маленького санузла;
- максимальный — 1,7×1,7 м.
Вывод
У душевых кабин могут быть самые разные габариты и конфигурация. Выбирать их надо, исходя из размеров ванного помещения и условий установки. Видео в этой статье поможет вам разобраться в теме. Если у вас появились какие-то вопросы, задавайте их в комментариях.
eto-vannaya.club
Габариты душевых кабин, размеры, конструкции и советы выбора
При планировании санузла не обойтись без расчета размеров душа ванной комнаты. Это относится не только к жилым помещениям. Сейчас кабины устанавливают в офисах, спортивных комплексах, на производстве.
Актуально компактное оборудование в квартирах с маленькой площадью и в больших домах в качестве дополнительного пространства для принятия гигиенических процедур.
Виды
Прежде чем остановится на определенной модели, необходимо узнать, какие именно габариты душевой кабины подходят для помещения.
Существует несколько типов оборудования, которые различаются по конструкции и месту установки:
Цельные моноблоки собирают в заводских условиях, на место доставляют в готовом виде.
Их сразу устанавливают в ванной и подключают к водопроводу и канализации.
Некоторые модели требуют подсоединения еще и к электросети для обеспечения дополнительных функций: гидромассажа, световых эффектов, музыкального сопровождения.
Также могут оснащаться секцией для сауны, отделанной деревянной облицовкой.
Сборные устройства доставляют в виде множества элементов и крепежа. Их нужно монтировать на месте с помощью специалиста или самостоятельно.
Для этого к набору прилагается инструкция по подбору и соединения деталей.
Обычно производитель предлагает полную комплектацию, но существует возможность выбора фурнитуры, поддона, перегородок и сантехнических приспособлений.
Каждый элемент можно заказывать по отдельности.
Совмещенные боксы обладают таким достоинством, как компактность, позволяют сэкономить пространство, что важно для небольших помещений.
Устройства являются продолжением ванной, оснащаются дополнительными функциями: гидромассажем, парогенератором.
Но размеры душевых кабин такого типа ограничены, все зависит от параметров площади.
Угловое оборудование не имеет задних перегородок, их функции выполняют стены.
Если моноблочные и сборные модели можно устанавливать в любом месте, даже в центре помещения, то такой душ располагается только в углу.
Он может быть совмещен с ванной или иметь собственный поддон, для которого необходима надежная гидроизоляция и наклон в сторону канализационного стока.
Размещение планируется в той части площади, которая не является проходной.
Если есть возможность оборудовать нишу, это устройство хорошо впишется в нее.
Конструкции
Душевые кабины бывают двух видов:
Открытые
Системы не предусматривают верхнюю часть, устанавливаются без потолка. Их пространство ограничивают только боковые панели. К ним относится также и угловой душ.
Как правило, устройства оснащены только необходимыми функциями и являются бюджетным вариантом, но можно заказать дополнительные приспособления.
Так как монтаж подразумевает металлический крепеж, потребуется предварительное выравнивание поверхностей и гидроизоляция.
Для зрительного увеличения площади и улучшения дизайна дверцы и стенки делают прозрачными. Они могут распахиваться внутрь или раздвигаться в стороны.
Закрытые
Конструкция подразумевает наличие боковых панелей и крыши. Это моноблочные и сборные душевые. Имеют стандартные функции или оснащаются дополнительным оборудованием для комфорта.

Форма бокса бывает круглой, прямоугольной, ассиметричной и квадратной. Каждая из них подходит для помещений с разной площадью.
Например, усеченную конструкцию лучше ставить в маленьких санузлах. Если размеры комнаты позволяют, кабину можно устанавливать в центре.
Еще одно преимущество: оборудование можно демонтировать, когда нужно и перенести в любое удобное место.
Дополнительные функции
Многие виды оснащены гидромассажем. Расположение форсунок зависит от габаритов душа. Горизонтальные струи имеют более дорогие устройства, вертикальные – экономичные варианты.
Отверстия, подающие воду, находятся по бокам и на днище ванной. Кроме этого, существует еще несколько дополнительных функций:
- Эффект сауны обеспечивает парогенератор, наполняющий кабину влажным теплым воздухом. Встроенный вентилятор позволяет равномерно распределять поток, благодаря этому достигаются максимально необходимые условия для оздоровления в бане.
- Для расслабляющей релаксации в крыше душевой встраиваются специальные форсунки, подающие рассеянные струи, имитирующие тропический ливень. Для этого важно выяснить величину напора воды. Приспособление работает только при давлении в 4 и более баров.
- Аромотерапия подразумевает автоматическое поступление паров из емкости, встроенной в конструкцию. Вентиляционное устройство обеспечивает равномерную подачу теплого воздуха с маслами.
- Голосовое управление – функция, доступная для дорогостоящих душевых. Можно изменить все настройки при помощи сенсорных датчиков, реагирующих на звук..
- Многие модели имеют встроенный телефон, большое зеркало, стереосистему, комфортное освещение и дозаторы для моющих средств.
Размеры

Дизайн ванной комнаты с маленькой душевой кабиной
Этот показатель является самым важным при выборе душевой. От параметров зависит возможность установки, комфортное использование и соблюдение требований к эксплуатации и обустройству ванной.
Чем шире сооружение, тем удобнее проводить гигиенические процедуры, но не всегда площадь позволяет установить большую систему.
Чтобы понять, какое оборудование идеально впишется в пространство, нужно знать линейные параметры:
Маленький размер душевой кабины целесообразен для сохранения пространства.
Установка конструкции дат возможность разместить в ванной стиральную машину и необходимые шкафы для косметических средств.
Минусом является то, что постирать мелкие вещи или искупать младенца в таком душе затруднительно, кроме этого, крупные люди чувствуют себя в них не очень комфортно. Параметры: 70 х 70 и 80 х 80 см. Обычно имеют распашные двери.
Совет!
Для маленьких ванных комнат хрущевок, максимально сохраняя тесное внутреннее пространство, рекомендуется установить малогабаритную симметричную душевую кабину размером 70 х 70 или 80 х 80 см.
Стандартные устройства представляют собой модели, пользующиеся наибольшим спросом. В них стоимость и характеристики оптимально сочетаются.
Они достаточно компактны, но позволяют использовать дополнительные элементы для работы.
Габариты: 90 х 90 – угловые, 100 х 100 см — квадратные при минимальной высоте 200 см.
Большие размеры душевых кабин выбирают владельцы крупногабаритных квартир и домов.
Приспособление можно установить в совмещенном санузле, оснастить всеми возможными функциями. В нем размещают удобные сидения, сенсорную панель управления.
Параметры: 120 х 120 и 135 х 135 см.
Размеры душевых угловых кабин с ванной относятся к нестандартным величинам. Отличительная черта – высота поддона от 4 м. Устройство считается просторным, удобным в использовании. Ширина составляет 70-75 см. длина – 150-180 см.
В расчеты входят параметры ванной и шторы, которую можно корректировать. Также существуют прямоугольные виды с линейными величинами: 80 х 100, 90 х 150, 120 х 180, 80 х 170 см.

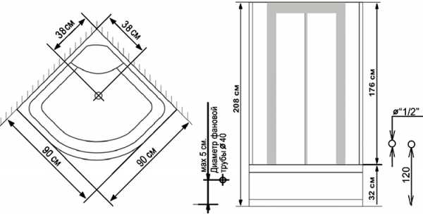
Схема размеров различных элементов душевых кабин
Стоимость и производители
Цена на душевые кабины зависит от геометрических форм, параметров ширины и длины, дополнительного оборудования, материала изготовления и выпускающего бренда. Приблизительная стоимость в таблице:
| Производитель | Размеры, см | Цена, рубль (1USD=66RUB) | Примечание |
|---|---|---|---|
| Acrilan | 80 х 80 х 220 90 х 90 х 220 120 х 120 х 220 85 х 220 х 110 | 20 000-25 000 40 000-50 000 50 000-70 000 25 000-30 000 | Большая линейка моделей всех форм и конструкций |
| Timo | 80 х 80 х 220 90 х 90 х 220 135 х 135 х 220 80 х 220 х 120 | 50 000-60 000 55 000-65 000 100 000-120 000 60 000-70 000 | Панели – стекло акрил, полностенное ограждение и угловые виды. Разнообразный дизайн |
| Apollo | 80 х 80 х 220 90 х 90 х 220 155 х 155 х 220 90 х 220 х 130 | 60 000-65 000 70 000-80 000 200 000-220 000 75 000-90 000 | Включает несколько сот моделей: от эконом-класса до люкс |
| Jacuzzi | 80 х 80 х 215 90 х 90 х 215 150 х 150 х 225 90 х 225 х 120 | 90 000-130 000 120 000-150 000 600 000-650 000 500 000-550 000 | Оснащение климатическим режимом, управлением голосом, паровая сауна |
| Radaway | 80 х 80 х 170 | 15 500-20 000 | Стоимость формируется в зависимости от профиля и материала панелей |
Планируя установку душевой кабины, необходимо точно знать ее размеры. Большая возможность выбора от эконом-класса до оборудования люкс позволяет определиться с наиболее подходящим вариантом.
Дополнительные устройства обеспечивают комфортные гигиенические, расслабляющие и оздоровительные процедуры.
vipvannaya.ru
Душевые кабинки: размеры, цены +фото
Для того, чтобы не разочароваться в покупке такого непростого и дорогого устройства как душевая кабина, следует со всей ответственностью отнестись к процедуре выбора. Нужно учесть условия помещения, где планируется установка, определить размеры душевой кабинки и требуемый функционал, после этого можно начинать изучение рынка предложений.
В этой статье мы попытаемся помочь сделать правильный выбор, дав по возможности максимально полную информацию о видах, формах и размерах таких изделий.
Какими бывают?
Один из важнейших параметров — размеры душевой кабинки. Он определяется в зависимости от габаритов помещения ванной комнаты и ваших предпочтений.
к оглавлению ↑Кабинка угловая симметричная и ассиметричная
Такой тип наиболее распространен и максимально популярен. Фронтальная сторона имеет округлое очертание. На ней смонтированы стеклянные или пластиковые двери.
Типовые размеры душевых кабинок следующие:
- Для равносторонних(схема на фото) – 0,80м, 0,90м, 0,10м, 0,11м, 0,12 м;
- Для ассиметричных (схема на фото)с разными размерами сторон – (0,10м, 0,11 м, 0,12 м)/0,80м, (0,11 м,0,12 м) /0,90 м.

Ассиметричная кабинка
к оглавлению ↑Кабинки для душа квадратной или прямоугольной формы
Такие изделия нередко бывают комбинированного типа — установлены совместно с ванной. В этом случае вы получаете максимальный комфорт – достоинства ванной и душевой кабины в одном изделии.
Отдельно в этой группе стоит выделить дорогие изделия класса люкс – джакузи с разнообразными системами гидромассажа, парогенератором, тропическим душем и различными электронными примочками.
Размеры душевых кабинок этого типа — 0,10/0,80м, 0,11/0,80м, 0,12/0,80 м, 0,12/0,90 м, 0,90/0,90м, 0,10/,010м, 0,11/0,10м.
к оглавлению ↑Нестандартные и выполненные по индивидуальному заказу
Такие кабины бывают круглыми, овальными и других форм, а касаемо эксклюзива под заказ, то здесь ограничением может стать только ваши кошелек и фантазия. Цены на такие изделия довольно высоки.
Все душевые кабинки, размеры и формы делятся на три условных группы:
Малогабаритные: простейшие устройства, ориентированные на малые площади. Размеры таких кабинок – от 0,70– 0,80м на сторону для угловых, 0,90 – 0,10м у квадратных и 0,85 – 0,90/0,70 м, 0,75/0,90м, 0,75/0,10 м, 0,10/0,80 м для прямоугольных конструкций.- Средние: 0,12/0,12 м, 0,13/0,13 м в угловом исполнении,0,12/0,80 м, 0,10/0,12 м,для прямоугольных.
- Крупногабаритные: такие душевые кабины выпускают в прямоугольных или близких к ним формах. Размеры душевых кабинок в этом исполнении от 0,17/0,80 м
По типу защиты от брызг выделяют:
- Открытые. В этих конструкциях отсутствуют потолок и частенько боковые стены. Профили дверной рамы крепятся на поддон и прилегающие к нему стены. Как правило,размеры таких кабин ограничены – 0,80 м по углам.
- Закрытые кабины. Такие системы выполнены в виде вполне самостоятельного бокса, снабженного стенками со всех сторон и потолком.
Одна из важнейших деталей душевых кабин – поддон. Он изготавливается в двух исполнениях для разных типов конструкций:
Неглубокий поддон. Подходит исключительно для принятия душа; Высота борта от дна не более 10 см. У таких кабин, размером 0,90/0,90 м общая высота зачастую составляет всего 1,70 м, что не очень комфортно для рослого человека.- Глубокий поддон. Позволяет принимать ванну.Применяется в средних и крупногабаритных душевых системах. Высота борта сравнима со стандартной ванной, а бывает и больше.
Отдельно стоит рассмотреть душевые кабины с поддоном в виде ванны. В последнее время они обрели большую популярность, поэтому расскажем о них подробно.
Преимущества этих конструкции перед обычными:
- возможность совмещать процедуры – принятие ванны и душа;
они идеально подходят для купания маленьких детей;- их можно использовать для замачивания и стирки белья.
Недостатки:
- высокий борт ванны вызывает некоторые сложности для пожилых и нездоровых людей;
- намного более высокие цены, в сравнении с обычными кабинами.
Стандартные конструкции таких поддонов имеют высоту в пределах 0,28 – 0,44м.
Важно! Выбирая этот тип изделия, обратите внимание на полезную высоту – расстояние от дна ванны до верхнего края кабинки. Считается, что для комфортного использования такая высота должна быть не менее 2 метров.
Встречаются конструкции, состоящие из двух отдельных изделий:
- в качестве поддона — обычная типовая ванна – 0,70 –0,75 мшириной идлиной – 1,50 – 1,70 м;
- кабина с раздвижной шторой или дверьми, которая крепится на корпус ванны и частично к стене. Ширина такой системы соответствует размерам ванны, а длина может быть на всю ванну или на ее часть.
Размеры кабины напрямую зависят от ее комплектации и формы:

Герметичная
Без задней стенки. Максимально надежной считается такая конструкция в угловом исполнении – она более устойчива за счет крепления каркаса к двум угловым стенам. Размеры душевых кабинок такого устройстваот 0,80м до 1,10м на сторону, а высота, как правило, не более 1,80м.- Закрытые со всех сторон – герметичные кабины. Герметичность такой конструкциинужна для обеспечения нормальной работы некоторых режимов, например,парогенератора, симулирующего Турецкую баню. Закрытые кабины не делают малогабаритными. Типоразмеры таких устройств – 1,10/0,90м, 1,20/1,20м, и более.
Все узлы такой кабины установлены внутри конструкции с выводом управляющих элементов на лицевые стенки внутри.
к оглавлению ↑Важно! При расчете высоты кабины стоит учесть, что поддон требует установки сифона, а на это требуется определенное пространство, поэтому общая высота конструкции увеличится.
Безопасность
Для обеспечения экологически комфортной атмосферы в вашем санузле с душевой кабиной обязательно стоит обратить внимание на сертификат качества изделия. Нормативы Российской федерации регламентируют санитарно-гигиеническое качество материалов, и его прочность, а вот что касается размеров и функционального наполнения – решайте сами.
к оглавлению ↑Изделия нестандартных форм
Не всегда удается подыскать стандартное изделие, подходящее под особенности вашей ванной. Для этих случаев существует целый ряд изделий нестандартной формы и размеров.
Наиболее часто такие модели представлены угловыми формами с треугольными или трапециевидными поддонами.
Линейка типоразмеров этих кабин довольно широка. Наиболее востребованные размеры душевой кабинки этого исполнения такие — 1,20/1,20м, 1,50/0,85 м, 1,70/1,10м.
к оглавлению ↑Делаем правильный выбор
Для продуманного выбора обратите внимание на следующие рекомендации:
- Перед тем как выбрать размер, стоит продумать место установки. Кабинка должна гармонично вписаться в интерьер, не мешая при этом другому сантехническому оборудованию – раковине, стиральной машине и так далее. Обязательно нужно предусмотреть удобный доступ ее к узлам для профилактических и ремонтных работ.
Особенно тщательно нужно отнестись к выбору материалов. Хороший поддон должен быть прочен – не гнуться при нажатии. Профили желательно выбирать алюминиевые – они прочны, легки и гигиеничны. Лучший материал для дверей – стекло.- Корпус кабины должен быть жестким, не болтаться, с надежными креплениями к поддону и качественной герметизацией швов.
- Количество различных режимов. Этот параметр зависит исключительно от ваших пожеланий и финансовой состоятельности.
- Производитель. Наилучшим критерием его выбора считаем гарантийные обязательства им предоставляемые. Чем они больше, тем лучше.
Краткий обзор
Опишем кратко некоторые, наиболее популярные в России душевые кабины по версии интернет — ресурса «Эксперт цен».

IdoShowerama. Производства Финляндии. Основной упор разработчики сделали на качество конструкции и функциональность – никаких потеков, плесени и прочей подобной «радости». Эта модель снабжена мраморным поддоном и дверьми из каленого стекла толщиной 6 мм, установленного в алюминиевый профиль.
Недостатки – сложно найти запчасти.
Цены различаются в зависимости от комплектации. Средняя около 90000 р.
IFO SOLID SKR. Производства Швеции. Открытая душевая кабина с функцией гидромассажа. Угловой дизайн организован без щелей и зазоров на конструкции, поэтому за ней очень легко ухаживать.
Цена около 70000 р.

ALBATROS T09 A900 MS. Производства Италии. Победитель в номинации – угловой бокс с гидромассажем и мелким поддоном. Поддон и стенки изготовлены из акрила, двери из ударопрочного стекла. Кабина снабжена сидением и скрытыми в корпусе полочками. В функционале присутствуют гидромассаж, вертикальный массаж, тропический ливень и многое другое.Предусмотрена возможность установки парогенератора.
Цена около 60000 р.
LAGARD LYRA H. Сделано в Германии. Представитель многофункциональных угловых устройств – тропический душ, гидромассаж, парогенератор, системы вентиляции и озонирования, а также радио, диодная подсветка и защита от перепадов давления. Особенность конструкции – глубокий поддон и отсутствие необходимости применения силикона при монтаже.
Цена в пределах 90000 р.
JACUZZIAMEATWIN PREMIUM. Итальянский бренд. Элитный комплект, нетребующий комментарий. Отметим только внушительные размеры поддона — 1,8/0,86 м.
Цена вполне соответствует уровню исполнения – 190000 р.

NOVITEK EVELYN. Финляндия. Закрытый гидромассажный бокс с поддоном – ванной. Позволяет расслабиться в 240 литрах теплой воды, а при желании получить процедуру гидромассажа спины, шейного пояса и ног. Радио, две полки и два сидения добавляют дополнительные удобства.Большие размеры душевой кабинки позволяют принимать душ вдвоем.
Цена 200000 р.
LUXUS 532. Кабина из Чехии. Крупные габариты, функционал, как говорится — полный фарш, включая телефон и громкую связь.
Цена в пределах 70000 р.
LUXUS 023D. Еще оно Чешское изделие. Призер в номинации — гидромассаж эконом класса. Качественные материалы – акрил, стекло 5 мм, вставки под дерево. Есть гидромассаж, тропический и многофункциональный душ, радио, подсветка. Все это управляется пультом. Размеры душевой кабинки невелики, но ее эргономика позволяет ощущать себя в ней вполне комфортно.
Цена 25000 р.
Установка
Стоимость установки душевой кабины сильно зависит от сложности изделия и имеет довольно большой разброс. В таблице ниже указаны предприятия, специализирующиеся на этих работах и цены установки простейших конструкций.
| Предприятие. | Стоимость работ по установке и наладке. | Контактные телефоны. | Гарантийное обслуживание, мес. |
|---|---|---|---|
| «Руки из плеч» Г. Москва. | От 3,2 тысячи р. | 8 (800) 500-66-21 | 24 |
| Сантехник 24 г. Москва. | От 4,6 тысячи р. | (495) 363-84-21 | 12 |
| ДМБ (Дело мастера боится) г. Москва. | От 4 до 12 тысяч р. | (495)769 – 53 – 21 (925)822 – 06 – 28 | 12 |
| Ремонт Центр г. Москва. | 3,2 – 6,45 тысяч р. | (495) 133-16-84 | 36 |
Надеемся, что эта статья несколько облегчит ваши мучения с выбором и поможет избежать ошибок.
Напоследок, хотим дать совет — покупать душевую кабину желательно в крупных торговых точках, где есть возможность хорошенько обследовать выбранный вами экземпляр.
Почти всегда на торговых стендах стоят собранные конструкции, по которым легко оценить общее качество, кроме того, вы не на картинке, а на конкретном образце оцените эстетическую привлекательность изделия.

Олег Кузнецов
Эксперт проекта StrojVanuu.ru
Статья помогла вам?
Дайте нам об этом знать — поставьте оценку
Загрузка…strojvannu.ru
Размеры душевых кабин — это внутренние или габаритные размеры?
Здравствуйте! Подскажите, пожалуйста, размеры душевых кабин: 70*70, 80*80 и т.д. — это внутренние размеры кабины или габаритные размеры? Спасибо.
Елена.
Здравствуйте Елена. Указанные на ценниках размеры — это именно габаритные размеры, т.е. размеры «снаружи». Это сделано потому, что у разных производителей и моделей кабинок разные комплектующие и «начинка», толщина стенок может существенно отличаться.
Габаритные размеры указываются для вашего удобства, чтобы по замерам в вашей ванной комнате понять, достаточно ли места для установки душевой.

Стоит отметить, что внутренние размеры меньше указанных, поэтому рекомендуем перед покупкой тщательно исследовать и подумать о необходимых вам размерах. Большинство магазинов, специализирующихся на продаже душевых кабин предоставляют возможность «залезть» в них перед покупкой, чтобы ощутить размеры.
Рекомендуем вам ознакомиться с отзывами о душевых кабинах, где также упоминается вопрос о размерах и комфорта при пользовании.
Если вы обращаете внимание на компактные модели, размерами 70*70, 80*80 — перед покупкой продумайте, кто кабинкой будет пользоваться. Такие малогабаритные кабины подойдут не всем, у если в вашей семье есть мужчина пропорций больше средних, пользоваться ей он попросту не сможет.
Также, важный момент — если ваша ванная комната не позволяет разместить достаточно объемную кабинку, рекомендуем обратить внимание на душевые уголки, которые по функциям мало отличаются, зато в размерах значительно меньше.
Полезная статья? Оцени и добавь к себе в закладки!
vashavannaya.ru
обзор стандартов и основных габаритов
Мало кто задумывался, почему в строительстве зданий так много похожих технических решений, когда дело касается санузлов. Между тем ещё в 1980 году был принят ГОСТ 18048, где черным по белому давались несколько конструктивных исполнений для панельных домов. Известно, что в те времена как раз велась интенсивная застройка. В эпоху Брежнева мы окунаться не собираемся, а посмотрим, какие размеры душевых кабин можно встретить в России. С 1980 года и по сей день.
Много в интернете споров на тему того, какими должны быть размеры санузла. Столько сказок, на тему того, каковы стандартные габариты уборной. Пугают некими СНиП и СП, но номера упорно не приводят. Где-то даже написано, что от унитаза до двери нужно оставлять 60 см, а ширина – не менее 80. Прямо прокрустово ложе какое-то. Шаг влево, шаг вправо, и расстреляют…
ГОСТ 18048
Эпоха панельного строительства ушла в прошлое. Сегодня по большей части возводится каркас из железобетона, и выкладываются стены из пазогребневых (гипсовых) плит. Что намного облегчает конструкцию, и даёт конструкторам больше места для манёвра. Вот почему габаритные размеры санузлов ничуть не напоминают стандартные. Например, дана на чертеже площадь — 4,14 кв. метра. И куда это?

Ванная комната 4 кв.м.
По стандарту даётся 8 комплектаций. Но сначала обсудим вопрос, почему это вообще мы склонны относить в разряд душевых кабин. Панельные дома для ускорения их возведения набираются сразу из готовых комнат. Санузлы, как совмещённые, так и раздельные, в этой терминологии получили название кабина.
Восемь упомянутых планировок включают в себя все разновидности, существовавшие до перестройки. Не сложно перечислить их размеры для общей эрудиции наших читателей:
- 1СК и 2СК – 2,73х1,6 метра.
- 3СК и 4СК – 2,08х1,82 метра.
- 5СК – 2,14х1,62 метра.
- 6СК – 2,14х1,4 метра.
- 7СК – 1,1х1,6 метра.
- 8СК – 0,94х1,6 метра.
Из перечисленных, согласно ГОСТ, содержать душевые кабины может только планировка 6СК. По той причине, что ширина её слишком мала, чтобы вместить ванну. Внедрение душевого поддона во всех других случаях относится к разряду переустройства и требует официального согласования. Владельцы всех санузлов, в том числе нестандартных, должны заручиться разрешением от местного органа самоуправления. Это проистекает из двух фактов:
- Необходимость изменения в технический план помещения, что закономерно отражается в паспорте квартиры. Что продиктовано нормами ГОСТ 21.205, согласно которому графические обозначения ванны и душевой кабины отличаются друг от друга.
- Необходимость переустройства системы водоснабжения. Даже если раковина остаётся на прежнем месте требуется обустроить отводы для горячей и холодной воды, чтобы подключилась душевая кабина.

Установка душевой кабины в маленькую комнату
ГОСТ 23695 и ГОСТ 18297
Этот документ пришёл на замену более ранней версии и внёс небольшие изменения в габариты поддона, затронув стандартные формы лишь в малой степени. Текст ГОСТ 23695 не регламентирует материал. Однако из названия понятно, что речь идёт об изготовлении стального душевого поддона, покрытого эмалью. Чугунные рассматривает ГОСТ 18297. Размеры настолько похожи, что один документ можно перепутать с другим. Посмотрим, какие бывают стальные и чугунные поддоны.
Обратите внимание, что в отечественной практике отсутствуют нормативы на душевые кабины в целом. Нет документа, устанавливающего их размеры по высоте, материал ограждения или какие-либо другие параметры. В СССР подразумевалось, что ограждение должно быть в виде шторки, либо кафельного фартука на стене. Наверняка допускалась установка ширм или дверей, но сегодня это уже мало кого может заинтересовать.
Стальные поддоны
Согласно нормативам размеры периметра мелкого стального поддона могут быть 80х80 или 90х90 сантиметров, а глубокого – только 80х80. В противовес чугунным эти изделия разной высоты. Глубокий поддон одновременно является и более высоким (44,5 см). Мелкий – чуть ниже (31,5 см). Этим значительно сглаживается разница в плане монтажа. Установочные размеры на присоединения к канализации совершенно одинаковы для глубокого и мелкого поддона.
Это закрепляется тем фактом, что формы и диаметр сливного отверстия стандартные – круг 52 мм (допуск +1,5…-1 мм). В результате мелкий поддон обладает чуть более высоким стоком (примерно на 1 см), могут различаться размеры периметра. Поэтому выбор в пользу того или иного изделия по ГОСТ 23695 не приводит к каким-то фатальным изменениям с точки зрения прокладки инженерных коммуникаций или монтажа.

Душевая кабина со стальным поддоном
Однако большое отличие прослеживается типе фундамента. У поддона с высоким бортом имеются ножки. Низкий ставится на самодельный фундамент или опоры (в комплект не входят). Дополнительные проблемы строителям создаст ярко выраженный уклон дна в сторону сливного отверстия. Сифоны стандартны, однако для поддонов с высоким бортом обязательным является наличие перелива (отверстия, исключающего переполнение).
Чугунные поддоны
Согласно ГОСТ 18297, размеры периметра жёстко заданы – 80х80 см. Характерная особенность изделий в том, что они унифицированы по высоте сливного отверстия – 20 см. Без каких-либо различий, как это наблюдается у стальных. Чем дополнительно упрощается выбор. А вот глубина поддона различна:
- Мелкие – 15 см.
- Глубокие – 35 см.
Чугунные поддоны более тяжёлые, долговечные и не имеют ножек. Понятно, что найти сегодня такие не представляется возможным. Душевые кабины изготавливаются так, чтобы можно было их максимально быстро установить. А это требует наличия готовой опоры, которой и являются ножки.
Добавим к этому, что согласно ГОСТ 18297, все стандартные виды глубоких поддонов имеет во внутреннем углу над переливом удобное сиденье. А некоторые мелкие имеют аналогичный скос. Но на другом углу. Его назначение – служить полкой под банные принадлежности.
Имеется и коренное отличие между глубокими и мелкими поддонами для душевых кабин, регламентируемых по ГОСТ 18297. Слив расположен в разных местах. В советское время, как выразился товарищ И.В. Сталин, правительство думало о народе. Это выразилось в том, что у мелкого поддона слив расположен с краю. Для удобства монтажа сифона. Сравните с этим современный выбор душевых кабин, где сливное отверстие засунуто туда, куда ворон костей не носил. Совершенно непонятно, как ставить современные мелкие лоханки.

Чугунный поддон для душа
Чем отличаются представленные на рынке поддоны от стандартных
Время от времени выбор поддона может привести на сайт, где сказано, что изделие удовлетворяет ГОСТ 18297 или ГОСТ 23695. Не нужно опасаться, что перед нами допотопное изделие, лишённое всяческих средств для удобного монтажа. Соответствие ГОСТ касается размеров и формы внутренней части поддона: сиденья, слива, скоса, перелива, глубины, габаритов периметра. Это некий средний, оптимальный вариант, конкурентоспособный настолько, чтобы эти изделия хотя бы можно было продать. Кто сейчас сделает выбор в пользу поддона без ножек, когда рядом лежат более современные конструкции?
Итак, продаваемые виды душевых кабин снабжаются всеми средствами для их быстрой установки. Не у всех поддонов имеются собственные ножки, но в таком случае присутствует сборная рама, устраняющая все препоны на пути мгновенного монтажа. Ножки простыми методами регулируются по высоте так, чтобы можно было установить изделие строго горизонтально.
Главное же отличие рекламируемого товара в многообразии формы и размеров. Глаза разбегаются, когда нужно сделать выбор. Настолько разными бывают поддоны. Главные отличия (помимо габаритов) заключается в:
- Произвольном расположении сливного отверстия.
- Отсутствии перелива у глубоких поддонов.
- Многочисленных формах: четверть круг, полукруг, прямоугольник и так далее.
Но самое главное – на рынок выходят многочисленные виды поддонов из пластика, делая выбор более богатым.
Душевые уголки
Уже было сказано выше, что ограждение душевых кабин не попало под стандартизацию. Когда советские инженеры делали выбор основных параметров, то главным критерием стала долговечность. Душевые уголки из стекла и пластика не могут соответствовать этому условию по определению. Наличие стареющих и бьющихся частей, движущиеся ролики. Рано или поздно что-нибудь сломается.
Западная промышленность работает так, чтобы покупатель постоянно тратил. Идёт бесконечное обновление товаров с тем, чтобы предоставить выбор из самых современных товаров. Это и обусловило отставании СССР в развитии. Несмотря на мощную промышленность и отличную производственную базу. Человеку предоставлялся минимальный выбор, но надёжность продукции стала притчей во языцех. До сих пор ещё работают и функционируют многие изделия, выпущенные под пятиугольным знаком качества.
Выбор
Вот и наши читатели могут делать упор на долговечность или обновляемость. В первом случае выше цена, но срок эксплуатации приборов просто потрясающий. Во втором – небольшие деньги выплачиваются за возможность попользоваться всеми благами цивилизации в течение 5-10 лет. Какие товары можно отнести к первой категории?
- Фаянс, фарфор.
- Чугун.
- Стекло.
Во вторую категорию входят многочисленные пластиковые поддоны и уголки, конструкции ограждений, содержащие ролики, уплотнители. Такие конструкции не могут жить вечно. Бывают и иные технические решения, другие материалы, не рассмотренные выше. Так например, акриловые поддоны выпускаются по иностранным стандартам. Но перебирать их неблагодарное занятие в силу обширности текстов, большая часть из которых на английском языке.
aqua-sovet.ru
Какие бывают размеры и формы душевых кабин
Как подобрать душевую кабину?

Душевые кабины — достаточно практичное и удобное изобретение человечества. Они имеют сотни преимуществ перед обычными ванными комнатами. Если Вы, наконец – таки, решились на дельную покупку этого товара, то не спешите сразу бежать в ближайший магазин и покупать то, на чем остановится Ваш взгляд. Здесь можно облажаться. Ведь Вы даже не представляете, какими разными душевые кабины могу быть по качеству, цене, применению, способу установки.
В том числе могут быть различными по габаритам. Если купить кабину не того размера, то могут возникнуть проблемы с ее установкой, а там, если повредить ее, то уже невозможно будет вернуть в магазин или поменять.
Перед покупкой в обязательном порядке проведите замеры ванной комнаты (длина, ширина и высота). Обратите внимание, чтобы будущая конструкция не мешала другим элементам ванной – трубам, унитазу, ванне, особенно если комната у вас маленькая.Если в чем то не уверены, то стоит пригласить специалиста, который выполнит замеры и подберет Вам оптимальный вариант кабинки. Помните, что некоторые функции могут увеличить ее размер, например кабина без гидромассажа займет у вас меньше места, чем с ним.
Форма душевой кабины — готовимся к выбору заранее
Самый важный элемент выбора — это форма душевой кабины. В зависимости от формы, Вы сами легко определите будущее место, где будет она располагаться и как удобнее ее будет подключить.
По форме душевые кабины могут быть квадратными, прямоугольными, свободной формы, симметричными, ассиметричными и т.д.
Угловая душевая кабина, размеры и установка
Первый и, пожалуй, самый распространенный тип — это угловая равносторонняя кабина для душа. Две стороны, прилегающие к стенам, одинаковые, а третья имеет вид полукруга. На третью будут крепиться двери кабинки. Такой тип особо ценится для небольших помещений. Имеет достаточно компактный вид.
Если кабина симметричная, то обычно размеры подбираются в соответствии с площадью помещения, и могут быть от восьмидесяти сантиметров до ста двадцати (80-120 см). А в случае асимметричной — одна сторона немного больше второй, но ненамного.
Установка такой кабины не требует каких то дополнительных разрешений на это. Перед установкой необходимо сразу посмотреть наличие всех деталей, чтобы не отвлекаться на их поиски во время работы.
Установка поддона
Сначала нужно перейти к установке поддона. При помощи шлангов, которые входят в комплект, установите систему слива воды. Далее поддон следует поставить на ножки, которые так же прилагаются в комплекте. Обязательно, чтобы пол под поддоном был идеально ровным. После установки, скройте некрасивый вид системы плиткой или пластиком. Проследите, чтобы работа была сделана герметично, в противном случае, при использовании душевой кабины по назначению, может возникнуть протечка с вытекающими, в прямом смысле этого слова, последствиями. А разобрать конструкцию и починить неполадки в дальнейшем будет крайне проблематично. Поэтому наберите в поддон немного воды и слейте.
Сборка каркаса
Далее необходимо начать собирать каркас. Сначала просмотрите все отверстия в панелях. Они должны быть аккуратные, без явных повреждений. На какой части панели больше отверстий, та сторона считается верхом. Теперь Вы примерно представляете, как будет выглядеть вся эта конструкция собранной.
Установка стекол
Самое время аккуратно вставить стекла в панель. Не используйте острых инструментов, чтобы не повредить их. Ведь царапину будет сложно скрыть, тем более это новая дорогостоящая вещь. После того, как Вы вставили все стекла по пазам, немного нажав на него около самого края, пройдитесь по шву герметичным гелем, желательно бесцветным. Этот гель водонепроницаемый. Благодаря ему капельки воды не попадут
за пределы душевой кабинки. Затем можно приступать к крепежу стекла. Винты не затягивайте через — чур, сами понимаете почему. И вообще не применяйте свою силу в большом количестве при сборке кабинки. Часть геля может выступить, если Вы немного переборщили. Остатки необходимо удалить с помощью мягкой сухой тряпки.
Крепеж панелей
Теперь смело крепите панели саморезами, начиная снизу. Закрепили – смазали герметичным гелем, убрали лишнее и
одевайте на края панелей силиконовые (или резиновые) уплотнители. Они так же прилагаются в комплект. Крепим заднюю панель душевой кабины. Только перед началом, убедитесь, что все стыки совпадают, а потом начинайте закручивать саморезами. Закрепили – смазывайте гелем.
Да, кстати, если на поддоне нет разъёмов для соединения конструкции, то их нужно сделать самому, очень точно намечая расстояние. Это не является производственным браком, не переживайте. Просто производители не учитывают этот аспект, т.к. при установке таких кабин может возникнуть такая ситуация, при которой из — за неровной стены или пола произойдет скос или отклонение и придется всю душевую кабину либо менять, либо ровнять стены и замазывать лишние дырки.
Установка дверей
Следующий этап – установка дверей. Обычно двери ходят по пазам с колесиками. Это наиболее прочный и универсальный вариант. Поэтому начните с установки этих роликов в пазы. Верхние изгибаем наверх, а нижние вниз. Крепите на двери уплотнитель и вставляйте в паз. Теперь ролики согните в обратные стороны, чтобы дверь легко закрывалась и открывалась. Важно, чтобы при закрытии дверей не было зазоров или одна не залезала на другую. Если такое произошло, необходимо снять двери и посмотреть, что Вы не правильно сделали с роликами. На все винты необходимо надеть резиновые кнопки – заглушки.
Последние штрихи
И заключительный этап сборки – это монтаж верхней части кабинки. Ее следует сначала собрать на большом
пространстве, затем уже устанавливать на крышу конструкции. Крепите все оставшиеся детали к крышке. Уточню, у Вас должна остаться лейка, динамик, подсветка. Теперь переверните крышку и установите шланг от лейки. Далее закрепите собранную крышку к душевой кабине саморезами, не забывая про герметичный гель. Ваша кабина почти готова. Для того, чтобы прикрепить зеркало и ручки, особого таланта вообще не нужно. И последнее, что осталось, это подсоединение к водопроводу и канализации. Все! Готово! Можете смело проверять Вашу покупку. Если Вы все правильно сделали вначале, то никаких протечек и поломок не будет. Вся работа заняла не более часа, с учетом того, что Вы это делаете в первый, и может, не в последний раз в жизни.
Иная ситуация складывается если у Вас стоял самодельный поддон. В этом случае, мало того, что все отверстия Вы производите сами вручную, так же внимательно следите, чтобы панели крепились строго на одном расстоянии и не уходили в сторону. Воспользуйтесь «уровнем».
Прямоугольная душевая кабина, размеры и установка
Следующий вид душевой кабины — прямоугольная. В принципе, квадратные схожи с прямоугольными, за исключением формы. В этом случае, ширина кабины колеблется от восьмидесяти сантиметров до сотни, а длина – от ста до ста двадцати сантиметров. Квадратная кабинка такая же удобная и компактная, с размерами восемьдесят, девяносто и сто сантиметров (80, 90, 100 см), последние габариты практичнее всего. Но внешняя, третья сторона может быть в форме полукруга. Особого значения этот полукруг не имеет. Это сделано для личного удобства, т.е. кому как нравится. Что касается установки, то она совершенно аналогична с описанной ранее системой. Такой же поддон, на него крепятся все панели, к ним двери и крышка душевой кабины. Ничего сложного нет.
Нестандартные душевые кабины, особенности
Еще один вид – так называемые, кабины для душа нестандартных размеров. Они обычно изготавливаются на заказ, т.к. у заказчика может быть нестандартной формы помещение ванной комнаты, низкий, или наоборот, высокий потолок, свои какие — то идеи на этот счет и так далее. Бывает, что ванная очень узкая, всего сто сантиметров на сто. В этом случае нужен только поддон, опять — таки, если его нет, и внешняя стенка. Такой вариант естественно ниже в цене и проще в сборке. Панели в этом случае крепятся к самим стенам.
Кабина может быть как полностью закрытая, так и без верхней крышки. Последний вариант не настолько герметичный, как остальные предыдущие. Так же производители постарались и разработали кабины с высоким поддоном и вообще без него. Первый вариант самый практичный, то есть совмещает в себе ванную и душевую кабину. Но могут возникнуть трудности при входе в нее из – за высоты. Второй же вариант предназначен только для одной цели. И он значительно дешевле второго. Есть еще модель без задних стенок. Тут необходимо установить только раздвижные дверцы непосредственно на поддон.
Все описанные модели собираются по типу первой, и лишь немного различаются в последовательности сборки.
Фото душевых кабин различных размеров и форм
Видео, какие бывают размеры и формы душевых кабин?
Понравилась статья? Не поленись, поставь лайк!
Читайте также:catchwave.ru



