Складные ворота своими руками чертежи схемы эскизы конструкция: чертежи как сделать подъемные, видео, фото, схемы и эскизы конструкции
чертежи как сделать подъемные, видео, фото, схемы и эскизы конструкции
Приобрести добротную гаражную конструкцию в наше время – удовольствие не из дешевых. Ворота для гаража своими руками сделать дешевле, но необходимы определенные знания и умения. Также желательно иметь навык сварочных работ. Поэтому, как сделать ворота для гаража своими руками, – вопрос, в котором нужно разобраться досконально. А вот тогда можно уже будет и приступать к выполнению поставленной задачи.
На участке в деревне
Вернуться к оглавлению
Содержание материала
- 1 Виды гаражных ворот
- 1.1 Секционные ворота
- 1.2 Распашные ворота
- 1.3 Откатные ворота
- 1.4 Подъемно-поворотные ворота
- 2 Выбор
- 3 Установка своими руками
- 3.1 Каркас
- 3.2 Утепление
- 3.3 Обшивка
- 4 Покраска и фурнитура
- 5 На что обратить внимание
Виды гаражных ворот
Для начала необходимо определить, какая именно модель будет использована для гаража.
В наше время немало их видов, и хозяину нелегко определиться с выбором.
Секционные ворота
Представляют собой набор панелей (сдвижных секций), соединенных между собой петлями. Крепятся и передвигаются по специальным направляющим вверх. При открывании поднимаются одна за другой и заходят в нишу под потолком. Секционные ворота для гаража очень удобны.
Секционные складные ворота используются в частных домах, на фермах, паркингах.
Около частного дома
Большинство пользователей выбирает их за компактный размер.
Преимущества: удобство, защита от взлома, универсальны в использовании. Недостатки: высокая стоимость, складывающиеся конструкции подвержены порче.
Распашные ворота
Распашная модель – классическая гаражная конструкция, состоящая из двух створок, подвешенных на петлях к опорным столбам. Самая распространенная модель. Существует 2 вида: простые и автоматические ворота. Основными достоинствами считают простоту конструкции и надежность.
Недостаток – трудности, связанные с открыванием зимой: необходима чистка снега. Также требуется систематическая смазка петель. Хозяину несложно сделать своими руками именно такие ворота для гаража.
На фото представлен распашной вариант конструкции.
На загородном участке
Откатные ворота
Новая современная модель. Выглядят эстетично и просты в использовании. Принцип действия: внизу и вверху проема крепятся направляющие, по которым 2 створки съезжаются и разъезжаются. Бывает 2 вида открывания: автоматический и ручной. Преимущества: компактные, не занимают много места, долгий срок службы, надежность.
Недостаток – нужен систематический уход за роликовой системой: необходимо исключить попадание снега, воды, посторонних предметов.
Откатной вариант
Подъемно-поворотные ворота
Это наиболее практичные и удобные вертикальные конструкции. При открывании лист металла поднимается вверх и ложится горизонтально в виде козырька. Конструкция такого механизма несложная.
Полотно крепится на раму и движется вокруг оси, меняя горизонтальное положение на вертикальное. Откидные ворота удобны в эксплуатации.
Чертеж подъемной конструкции
Достоинства: стойкость к коррозии и взлому, не требуют дополнительного места.
Недостатки подъемно-поворотных конструкций: высокая стоимость, подходят для проемов только прямоугольной формы, в открытом виде уменьшают высоту проема на 25 см. Сделать подъемные ворота для гаража на даче своими руками будет достаточно проблематично, так же, как и подъёмно-поворотные.
Перечень элементов
Вернуться к оглавлению
Выбор
Разнообразие гаражных конструкций затрудняет выбор. Хозяин автомобиля прежде всего озабочен безопасностью своего транспорта. Только потом он учитывает остальные характеристики, такие, как удобство в эксплуатации, цена, габариты конструкции.
Таблица сравнения основных характеристик гаражных ворот.
Сравнение характеристик
Руководствуясь показателями в таблице, можно сказать, что выбор – только за покупателем.
Все зависит от стоимости и надежности. Например, распашные и секционные модели хорошо ставить в домашнем гараже, но они не подойдут для гаражных кооперативов, так как имеют невысокую степень надежности.
Подъемно-поворотные ворота для гаража подойдут для любого строения, но их главный недостаток – высокая стоимость. Из-за невысокой цены для частного гаража подойдут распашные ворота. При необходимости их можно утеплить, автоматизировать и усилить дополнительным листом металла. К тому же несложно сварить ворота для гаража в домашних условиях.
В процессе установки
Вернуться к оглавлению
Установка своими руками
Распашные ворота для гаража – самый распространенный вид строительной конструкции. Их просто установить и несложно за ними ухаживать. При необходимости их можно модернизировать. Также опытному мастеру будет несложно сделать деревянные ворота для гаража своими руками. Откатные ворота или подъемно-поворотные изготовить и смонтировать намного сложнее.
Тем не менее для установки данных ворот своими руками помогут чертежи, фото и видео со схемами на нашем сайте.
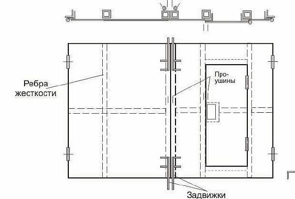
Каркас
Для изготовления каркаса необходимы точные длина и ширина проема гаража. Сначала определяют размеры будущих ворот. Также делают чертежи будущей конструкции. Чтобы сделать основу гаражной конструкции, нужен сварочный аппарат.
Схема устройства каркаса
Каркас выполняется из металлического уголка, который приваривается по всему периметру дверного проема. Таким образом отделывают откос внутри и снаружи. Между собой внутренние и наружные уголки сваривают металлическими полосками в нескольких местах. Должна получиться каркасная рамка.
Далее к наружному уголку приваривают швеллер, который будет частью открывающихся ворот. Сверху он не должен доходить до каркасной рамки на 1 см, а снизу – на 2 см. Справа и слева между уголком и каркасной рамкой должен остаться зазор в 5 мм.
Эскиз распашной рамы
Далее необходимо разрезать верхнюю часть каркасной рамки для того, чтобы дать возможность створкам открываться.
После того как каркас готов, по бокам приваривают разборные петли. Нижнюю часть необходимо соединить наружным уголком, а верхнюю – с каркасной рамкой. Такая конструкция подойдет и для гаража из профнастила.
Подробно узнать об изготовлении металлического каркаса можно из видео, представленного ниже.
Утепление
Металлическим воротам для гаража, сделанным своими руками, необходимо утепление.
В качестве утеплителя используют такие материалы:
- пенопласт;
- пеноизол;
- пенополистирол.
Монтажный чертеж
Пенопласт набивают на заранее приготовленный каркас из бруса, прикрученный на внутреннюю часть металла. Каркас соединяют с металлической основой саморезами с использованием металлических уголков. Пенопласт крепят жидкими гвоздями непосредственно к обрешетке.
Если есть стыки или щели, их необходимо заделать монтажной пеной.
Пеноизол и пенополистирол крепятся по такому же принципу на монтажный профиль. Для начала делается обрешетка из металлического профиля. Каркас выполняют из пристенного профиля, внутренняя обрешетка – из направляющего.
Схема установки
Детальные схемы использования профилей всех видов есть на любом строительном сайте. Затем к обрешетке дюбелями крепится любой из выбранных материалов.
Нежелательно утеплять гаражные ворота минеральной ватой: возможно ее намокание во влажном помещении.
Обшивка
Поверх конструкции из утеплителя необходимо прикрепить облицовочный материал в виде:
- деревянной вагонки;
- пластиковой вагонки;
- ДСП.
На участке
По краю дверь обшивают специальным уплотнителем, не давая проникать холодному воздуху с улицы.
При выборе утепляющих материалов не стоит экономить. Важно найти качественные и долговечные стройматериалы, чтобы после зимнего сезона не пришлось все переделывать.
Вернуться к оглавлению
Покраска и фурнитура
По окончании работ изделие необходимо обработать любым обезжиривающим средством – растворителем или уайт-спиритом, приготовить к покраске. Все повреждения замазывают автомобильной шпатлевкой. Дают средству высохнуть.
Затем место заполнения средством необходимо зашкурить, чтобы выровнять общую поверхность. Далее используют антикоррозийную грунтовку по металлу. После ее высыхания конструкцию красят специальной молотковой краской. Она атмосферостойкая и защитит металл от воздействия осадков.
Петли перед монтажом
Также такая краска устойчива к механической порче. Желательно наносить средство несколько раз. После того как просохнет каждый из слоев, его необходимо обработать самым мелким наждаком. Так краска дольше продержится, и появится глянец.
Засов выступает в качестве дополнительной защиты гаража при использовании автоматизированных и механических замков. Хорошо ставить железные сдвижные засовы, которые повышают степень безопасности.
Снаружи открыть такую защиту практически невозможно.
Чертеж с разрезом
Вернуться к оглавлению
На что обратить внимание
При выборе или изготовлении гаражных распашных конструкций следует обратить внимание на такие нюансы:
- Определить, в какую сторону будут открываться створки, и освободить место для них. Учесть наличие и близость других строений. Створки должны открываться свободно. Чаще всего применяют открытие наружу.
- Сталь лучше выбирать толщиной 5 мм, в этом случае имущество будет под надежной защитой прочного металла.
- Не стоит делать конструкцию из алюминия: она потребует ремонта через несколько лет.
- Чтобы увеличить износоустойчивость изделия, необходимо красить его хорошей машинной краской.
- Можно сделать конструкцию из профнастила своими руками. Такие створки легко монтируются и прослужат долго даже при небольшой толщине листа. Изделия из профлиста имеют хороший вид и подойдут любому строению.

- Изначально одну из створок необходимо делать с калиткой. Ее можно монтировать и отдельно. Этот вариант более практичный. Такое положение удобно при наличии тяжелых массивных ворот, которые неудобно открывать.
- Не стоит выбирать деревянные изделия: они не станут надежной конструкцией. Но могут стать неплохим бюджетным вариантом на время.
- Самодельные металлические ворота позже можно оборудовать автоматикой. В настоящее время на рынке можно найти несколько вариантов приводов.
Петля в разрезе
Обустройство гаражного сооружения – дело ответственное. Необходимо учитывать износостойкость, надежность, простоту монтажа, наличие свободного места для конструкции. Прочные и надежные изделия можно создать своими руками, используя только качественные материалы. По фото можно выбрать дизайн изготавливаемой модели.
чертежи гаражных секционных складных ограждений, самодельная калитка для гаража
Удобство гаража для машины не в последнюю очередь определятся его въездными воротами, которые должны обеспечивать сохранность автомобиля и легко и надежно закрываться. В наше время можно заказать или сделать самостоятельно несколько вариантов автоматических конструкций. Далее будет рассмотрено, как сделать подъемные ворота для гаража своими руками.
Особенности
В отличие от распашных конструкций, имеющих в большинстве случаев 2 створки, которые распахиваются наружу, подъемные ворота имеют секции или роллеты, поднимающиеся вверх. Принцип действия у них различный в зависимости от вида – секционных, поворотных или роллетных. Сама конструкция, включающая различные элементы: коробку, направляющие, ролики, подъемный механизм, намного сложнее, чем у простых распашных ворот.
Но затраты на установку и материалы вполне компенсируют надежность и удобство при регулярном использовании такого гаража.
Имея готовый гараж с прямоугольным въездным проемом, можно легко возвести подъемные ворота своими руками.
Преимущества и недостатки
Прежде чем решиться возводить гаражные ворота с подъемным механизмом, надо взвесить все их плюсы и минусы.
Опытные мастера отмечают следующие достоинства таких систем:
- Экономия свободного места. В отличие от распашных ворот, которым нужно внешнее пространство для открытых створок, подъемные используют место внутри под потолком.
- Пользоваться ими намного удобнее, особенно если они снабжены подъемным механизмом, то вообще не надо прилагать никаких физических усилий.
- Подъемно-поворотные и секционные ворота надежно защищают гараж от взлома.
- Для таких конструкций можно использовать разные виды отделки и декора.
- Подъемные ворота могут использоваться для одинарных и двойных гаражей.
- Створки открываются и закрываются бесшумно.
Стоит обратить внимание и на недостатки подъемных ворот:
- Главный минус – это сложность конструкции и монтажа. Если полностью заказать установку специалистам, то она будет дорогостоящей. Если же делать монтаж самостоятельно, то надо внимательно изучить чертежи, крепить все элементы аккуратно, под уровень, ведь даже небольшая погрешность может привести к тому, что весь механизм будет нерабочим.
- Полностью открытые ворота забирают свободное пространство сверху проема и внутри гаража под потолком.
- Механизмы таких ворот рассчитаны на определенную нагрузку, поэтому створки и корпус нельзя перегружать, например, при утеплении.

- Подъемные ворота устанавливаются только в прямоугольный гаражный проем.
Если хозяин гаража учел все эти особенности, то можно приступать к установке. Но сначала надо определиться с видом подъемных ворот для гаража.
Виды
Наиболее распространены 3 вида самодельных подъемных конструкций:
- подъемно-поворотные или щитовые:
- секционные;
- роллетные.
Подъемно-поворотные ворота для гаража наиболее защищены от взлома благодаря цельной конструкции створки. При открытии она поднимается вверх, разворачиваясь на 90 градусов и принимая горизонтальное положение. Их механизм может быть рычажно-шарнирным или противовесным. Первый вид на рычагах представляет собой наиболее простые конструкции, которые обеспечивают плавное и беспрепятственное перемещение створки в горизонтальное положение.
Противовесные ворота наиболее подходят для створок с большим весом.
Подъемно-поворотные конструкции состоят из рамы (обычно металлической), направляющих, вдоль которых перемещается рама, пружинного механизма или противовеса с лебедкой. Поднятие может быть ручным с помощью ручки в нижней части корпуса. Это делается легко благодаря растянутым пружинам встроенного механизма. Можно усовершенствовать этот механизм подключением электропривода, тогда поднятие-опускание створки происходит простым нажатием кнопки.
Створка подъемно-секционных ворот собрана из нескольких панелей шириной до 50 см, которые соединены между собой шарнирными петлями. При ее поднятии эти панели (их еще называют ламелями) двигаются по направляющим на роликах. Движение обеспечивает пружинный механизм, барабаны и тросы. Эта конструкция напоминает сэндвич панели, применяемые в строительстве.
Механизм роллетных ворот для гаража такой же, как у створок роллетов в торговых центрах. Складные ламели у них более узкие, чем у подъемно-секционных видов, при открытии они поднимаются и закручиваются в специальный короб небольшой ширины.
Поэтому такой тип имеет явное преимущество – экономию места внутри гаража. При этом нет необходимости монтировать под потолком длинные направляющие.
Материалы для каркаса, коробки и направляющих рельс подъемных ворот обычно металлические, но лучше всего выбирать нержавеющую сталь. Коробка может быть выполнена из толстых деревянных брусьев или металлических уголков. Цельные створки подобной конструкции можно изготовить в виде полотна из досок в металлической раме. Снаружи их часто обшивают листовым металлом.
Для сохранения тепла в гараже зимой внутрь можно вшить теплоизолирующие материалы: листовой пенопласт или минеральную вату.
Коробка покрывается антикоррозийной грунтовкой, после этого красится в 2 слоя алкидной или водостойкой эмалью. Откидной щит лучше всего покрыть оцинкованной сталью или алюминием.
Ламели на секционных или роллетных воротах обычно тоже изготавливаются из оцинкованной стали или алюминия, внутри листов можно поместить теплоизоляционный материал.
Поверхность таких панелей может быть с любой расцветкой – на вкус хозяина. Подвижные элементы конструкции – ролики, муфты, делаются из пластмассы или легких металлов, направляющие – из нержавеющей стали или других материалов, не подверженных коррозии.
Автоматика открываемых с помощью электропривода дверей поможет значительно упростить пользование гаражом. Многие водители не хотят возиться с тяжелыми створками, особенно когда на улице мороз или проливной дождь. Для любой конструкции и механизма есть возможность подобрать соответствующий по мощности электромотор, который будет использовать ток от бытовой электросети.
Автоматические подъемные ворота бывают нескольких видов.
Самые распространенные схемы, которые легко сделать самому, это:
- механизмы, установленные на полотно ворот;
- закрепленные на направляющих;
- монтируемые на боковые стойки.
Есть возможность заказать готовую конструкцию, в комплект которой уже будет входить автоматический привод для поднятия, такими, например, снабжены многие роллеты с ламелями из оцинкованной стали.
В этом случае после покупки надо только правильно произвести их монтаж на гаражный проем и подключить электропривод к сети.
Изготовление
Для изготовления простых подъемных ворот для гаража можно воспользоваться уже готовыми эскизами и расчетами, только немного подогнав их размеры в соответствии со своим помещением. Есть много примеров решений для загородного дома, содержащих чертежи и подробный отчет, включающий необходимые инструменты и материалы.
Перед тем, как сделать саму конструкцию с подвижным механизмом, надо позаботиться о том, чтобы проем, прилегающие стены и потолок были способны выдержать ее вес. Для этого надо выбирать прочные и плотные перекрытия без пустот и надежные системы крепления. А само помещение должно быть защищено от проникновения влаги и других природных факторов, которые могут повредить работу ворот.
Выбрав подходящий тип и примерный проект будущих раздвижных ворот, делаем чертеж с точными размерами, исходя из них подсчитываем количество необходимых материалов.
Для прочной и долговечной рамы подъемных гаражных ворот наиболее удачно подойдут металлические профили размером 40х20 мм и толщиной не менее 2 мм. Поперечные и горизонтальные крепления для конструкции можно изготовить из профилей 20х20 мм. Направляющие ворот чаще всего делают из швеллеров шириной до 20 см, в зависимости от нее выбирают и размер роликов.
Коробку рычажно-шарнирного механизма можно изготовить из металлического уголка или бруса. По размерам на созданном чертеже вырезаются детали нужной длины.
Сами ролики, пружины и весь рычажно-шарнирный механизм обычно покупаются уже в готовом виде. Они выбираются в соответствии с размерами направляющих. Остальные детали можно без труда изготовить самому, используя сварочный аппарат и болгарку.
Для изготовления ворот и монтажа их в гаражном проеме потребуются следующие инструменты:
- сварочный аппарат;
- болгарка с обрезными кругами по металлу;
- дрель со сверлами нужного диаметра;
- шуруповерт;
- молоток;
- уровень;
- рулетка, карандаш.

7
фотографий
Для крепления нужно использовать подходящие для данного веса конструкции металлические анкера или дюбель-шурупы. Если планируется применять для крепления металлического уголка анкерные болты, то надо подготовить набор соответствующих гаечных ключей.
Монтаж
Перед тем, как самому монтировать систему подъемных ворот надо убедиться, что проем, на который они устанавливаются, имеет идеально ровную поверхность: строго вертикальный и горизонтальный уровень, прямые углы. Несущая коробка – самый главный силовой элемент подобных ворот, поэтому надо максимально внимательно отнестись к ее изготовлению.
Если для коробки выбран металлический уголок, то ширина его полки должна быть в 1,5 раза больше толщины створки. После того, как все детали отмерены и отрезаны, они крепятся к проему гаража на анкерные болты и надежно затягиваются. Для изготовления коробки можно выбрать и деревянные брусья с размерами сечения 100х50 мм, которые необходимо закрепить на саморезы 100 мм.
Цельная рама откидных ворот должна собираться на ровной горизонтальной поверхности. После того, как металлические профили нужной длины отрезаны, они проверяются угольником и слегка прихватываются сваркой. Далее еще раз проверяют прямые углы и размеры, в том числе по диагонали, прикрепляют угловые косынки и поперечные рейки жесткости, затем полностью проваривают конструкцию.
После сварки рамы ее необходимо зачистить болгаркой в местах стыков от заусениц. Затем она покрывается антикоррозийным раствором и красится. Внутрь металлических профилей вшиваются доски с теплоизоляцией, снаружи она покрывается листовым металлом. На верхние углы рамы крепятся кронштейны с подвижными роликами.
После этого на потолок крепятся направляющие для будущей створки. Монтировать их тоже следует максимально ровно, перепроверив горизонтальный уровень, параллельность и перпендикулярность дверному проему. Затем створка временно устанавливается в проем для того, чтобы отметить место крепления рычажно-пружинного механизма.
После того, как проверена работа ворот и беспрепятственное движение створки по направляющим, она снимается, монтируются пружины, проводится их регулировка. В последнюю очередь на раму по периметру крепится резиновый уплотнитель для герметизации швов и мягкого закрытия, устанавливается дверной замок и ручка открытия.
При аккуратном и правильном монтаже, а также надежной защите от влаги ворота с подобной конструкцией могут прослужить не один десяток лет. А их ремонт может ограничиваться только смазкой подвижных деталей механизма, рычажной системы, опорных роликов и заменой резинового уплотнителя. Для профилактики смазку можно проводить каждый сезон, а внешнюю резиновую прокладку смазывать силиконом перед наступлением холодов для защиты от промерзания.
Для внутренней теплоизоляции таких ворот можно применять различные материалы, которые используются и для утепления стен: минеральную вату, пенопласт или пенополистирол. Последние два более эффективные, так как со временем не дают усадку, но могут быть пожароопасные, поэтому лучше выбирать негорючие виды.
Красивые примеры
Красивых проектов подъемных ворот очень много, их конструкции позволяют сделать какой угодно впечатляющий дизайн. Стоит рассмотреть несколько удачных примеров.
Не только красивый, но и удобный пример просторного гаража для двух автомобилей, для каждого из которых предусмотрен отдельный въезд. Ворота снабжены дистанционным пультом для открытия. Несмотря на то, что раздвижные роллеты подходят только для прямоугольных проемов, здесь архитекторы проявили фантазию и спроектировали фигурную арку.
Единое цветовое решение внешней отделки гаража и створки подъемных ворот. Для облицовки можно использовать различные материалы: листовой металл с покрытием, пластик или фанеру.
Простой, но очень стильный вариант ворот разной ширины для двух автомобилей. Здесь для створок использованы роллеты, легкие и занимающие мало места в сложенном состоянии.
Гаражные ворота с отделкой под дерево в сочетании с остальным интерьером смотрятся очень шикарно.
Если створка ворот цельная, то можно сделать снаружи внушительную облицовку под массив благородного дерева.
Качественные панели выглядят как деталь средневекового замка, сложно представить, что механизм полностью автоматический.
Простой, но симпатичный вариант подъемных ворот роллетов из дешевых материалов. Такой обойдется недорого и быстро монтируется.
Встроенные в приусадебный забор легкие подъемные ворота могут заменить калитку из двух створок. С таким проектом можно припарковать на своем загородном участке пару автомобилей и они будут надежно скрыты от проезжей части.
Смотрите на видео мастер-класс по изготовлнию ворот.
Полное руководство по размерам брошюр и листовок
Логотипы, веб-сайты и многое другое…
Логотипы, веб-сайты, обложки книг и многое другое…
Получить дизайн
Думаете, что знаете о листовках все? Похоже, тут не так уж много нужного для понимания — это бумаги, скрепленные скрепками вокруг вашего района с небольшими отрывными полосками с телефонными номерами, верно? А брошюра — это, по сути, флаер, сложенный гармошкой, что говорит само за себя.
Не совсем.
Итак, в чем разница между листовкой и брошюрой? Основное различие между флаером и брошюрой — это сгиб, но этот сгиб — только начало их различий. Они используются для совершенно разных вещей. Брошюра может сделать много вещей, которые просто не под силу флаеру, и есть определенные профессии, которые лучше всего подходят для флаера и только для флаера. Что касается размеров, существует множество стандартных размеров брошюр, но есть только пара стандартных размеров листовок. Получил все это?
Тщательно измерьте — когда дело доходит до листовок и брошюр, вы хотите выбрать правильные размеры и размеры. Иллюстрация OrangeCrush.Нужен ли вам флаер, брошюра или и то, и другое, зависит от ваших маркетинговых целей — и на этом ваш выбор печати не заканчивается. Ваши маркетинговые цели и потребности также влияют на то, какой размер флаера или брошюры вам нужен и из чего они должны быть сделаны.
Зачем мне листовка?
—
Летуны быстры. Когда у вас есть небольшие всплески информации, которые вам нужно донести, флаер — это то, что вам нужно.
Используйте флаер, когда вам нужно:
- Рассказать о распродаже
- Сообщите всем, что вы открыты для бизнеса
- Начните разговор между вами и вашими клиентами с информационного бюллетеня о вашем продукте
- Рекламируйте, кто вы, что вы делаете и что продвигаете прямо сейчас
- Объявить о предстоящем событии
- Получите купоны в руки ваших клиентов
Листовки низкотехнологичны, поэтому они идеально подходят для ситуаций, когда низкотехнологичность просто уместна или даже предпочтительнее, например, реклама дворовой распродажи или приглашение всего города на торжественное открытие вашего кафе.
Стандартные размеры флаеров
—
Стандартный флаер обычно имеет размер листа компьютерной бумаги. Это 8,5 x 11 дюймов в США или очень похожий формат A4 (8,3 x 11,7 дюйма) в остальном мире. Но меньшие форматы также популярны, когда речь идет о флаерах.
Наиболее распространенные размеры листовок:
- Размер Letter: 8,5 x 11 дюймов или A4: 8,3 x 11,7 дюймов
- A5: 8,3 x 5,8 дюйма
- A6: 5,8 x 4,1 дюйма
- DL (размеры по длине): 8,3 x 3,9 дюйма или треть формата A4
Выбор размера флаера во многом зависит от содержания вашего флаера, а также от того, где и как вы хотите его распространять. Если вы планируете приклеивать свои листовки к стенам или хотите передать много информации, вам следует выбрать больший размер, например, формат Letter или A4. Если вы планируете рассылать листовки по почте, вам нужно выбрать размер, который подходит для стандартного конверта, например, A6 или DL.
Стоимость листовки с выбранным вами принтером также повлияет на размер листовки, который вам следует выбрать, поскольку большие и нестандартные размеры, вероятно, будут дороже.
Лучшие материалы для флаеров
— Листовки — это вершина воронки продаж. Привлеките внимание людей, позвольте им решить, хотят ли они продолжать общение с вами.
Дизайн флаера от Adwindesign.Поскольку срок их службы невелик, их обычно печатают на недорогой бумаге более низкого качества. Это не означает, что вы не можете печатать листовки на более качественной бумаге или что для этого нет необходимости — некоторые листовки предназначены для длительного хранения, например, список процедур обслуживания клиентов, который должен быть размещен в колл-центре. Флаер, предназначенный для этой работы, должен быть на прочной бумаге.
Хотите узнать больше о дизайне флаеров? Ознакомьтесь с этой статьей о том, как создать флаер.
Когда мне нужна брошюра?
— Различные складки создают разные ощущения, например, эта складка ворот, имитирующая открытие двери. Дизайн брошюры от YaseenArt.
Мы только что отправили вам вашу бесплатную электронную книгу-брошюру.
Если у вас есть больше информации, чем вы можете уместить на листовке, вам нужна брошюра. В этом основное отличие флаера от брошюры. Но это не единственная разница между ними.
Есть еще одно, столь же очевидное различие между флаером и брошюрой, о котором следует помнить: у брошюры есть сгибы, а у флаера — нет. Конечно, ты может сложить флаер, но если сгиб является частью его дизайна , это не флаер… это брошюра.
Сгиб имеет ключевое значение. Существует множество способов сложить брошюру, и лучший выбор зависит от размера брошюры и ее дизайна. Обычно используемые типы сгибов брошюр включают:
- Trifold
- Сложенный пополам
- Створка ворот
- Двойная створка
- Параллельная фальцовка
- Z-сгиб
- Складка гармошкой
- Рулонная фальцовка
- и более…
Стандартные размеры брошюр
—
Насколько велика стандартная брошюра? Есть много стандартных размеров брошюр.
Наиболее распространенные размеры бумаги для брошюр (до складывания или в открытом виде):
- Размер Letter: 8,5 x 11 дюймов (или 21,59 x 27,94 см)
- DIN A4: 8,3 x 11,7 дюйма (или 21,0 x 290,7 см)
- Размер Legal: 8,5 x 14 дюймов
- Размер памятки: 5,5 x 8,5 дюймов
- Размер таблоида: 11 x 17 дюймов
- 9” x 12”
- 11” x 25,5”
Когда предпочесть брошюру флаеру
—
Итак, когда лучше напечатать брошюру вместо флаера? По сути, в любое время, когда у вас есть больше информации, чем вы можете уместить на листовке.
Это может быть, когда вы:
- Последующие соединения, которые вы уже установили
- Хотите рассказать заинтересованной аудитории о продукте или рекламной акции
- Необходимо иметь под рукой справочные материалы
Брошюра и флаер могут быть двумя точками в одной воронке. После того, как вы пробудите интерес к своему продукту — скажем, раздав на выставке листовки со списком всего, что делает его удивительным, — вы можете использовать брошюру, чтобы дать людям, которые хотят узнать больше, информацию, которая им нужна. Затем, используя информацию, полученную из брошюры, они либо купят продукт, либо запишутся на консультацию, либо иным образом сделают то, что вам нужно, чтобы совершить продажу.
Из этого пошагового руководства вы узнаете, как создать брошюру.
Как насчет брошюр? А буклеты?
—
Листовки и брошюры — это всего лишь два из множества печатных форматов.
В то время как флаер — это в значительной степени универсальное определение, то, что представляет собой брошюра по сравнению с брошюрой или буклетом, не является общепризнанным.
Брошюра и брошюра — одно и то же. Некоторые определяют памфлет как короткую брошюру, но также часто термины взаимозаменяемы.
Буклеты и журналы — еще один способ печати. Дизайн буклета от duwi.sleman.Буклет – это всего лишь маленькая книжка. И точно так же, как большая книга, буклет переплетается, а не складывается. Как правило, они имеют более качественную бумагу, чем брошюры, и более прочный переплет. Как правило, важная, вечнозеленая информация зарезервирована для буклетов и более высокой стоимости печати, которую они требуют.
Дизайн нужного вам размера
— Дизайн брошюры от дизайнера Амриты
С самого начала вы должны подумать о том, как вы будете распространять свои листовки или брошюры, потому что это будет учитываться в вашем бюджете на них. Если вы планируете рассылать их в формате Letter или в больших манильских конвертах, у вас есть ответ на вопрос «какого размера должен быть мой флаер/брошюра?» Вы также знаете, что вам придется заложить бюджет на конверты.
Спросите себя, будете ли вы:
- Раздавать листовки или брошюры на мероприятиях
- Просовывание их под двери
- Прикрепление их к доскам объявлений сообщества или телефонным опросам
- Приклеивание скотчем к стене
- Отправка их по почте
- Включая их в более крупные пакеты
- Наклеивание их под дворники припаркованных автомобилей
Мы только что отправили вам вашу бесплатную электронную книгу-брошюру.
Трудно понять, работает ли дизайн, если вы не видите, как будет выглядеть готовый продукт. Вот почему вам нужны мокапы. В идеале вы сможете посмотреть на полностью проработанные макеты, демонстрирующие ваш дизайн в действии, но если это не так, подойдет даже простой макет, показывающий, как он будет помещаться на бумаге. Мы рассмотрели мокапы в предыдущем сообщении в блоге, поэтому, если вы не знакомы с ними и с тем, как они работают, ознакомьтесь с этим.
Глядя на свой макет, вы можете понять, где вам нужно изменить свой дизайн.
Шрифт, разборчивый на большом флаере, может быть трудночитаемым на маленькой брошюре. Цветовая палитра, которая хороша на небольшом расстоянии, может иметь слишком низкую контрастность, чтобы ее можно было увидеть издалека, что делает ее плохим выбором для флаера, размещаемого на доске объявлений. Ваше сообщение также определяет правильный выбор дизайна для вашего флаера или брошюры; листовка о распродаже должна быть более яркой и актуальной, чем брошюра с проспектом ETF.
Думаю, нужно что-то…нестандартное
—
Нет проблем! Тот факт, что листовки и брошюры имеют стандартные размеры , не означает, что ваш должен быть стандартного размера.
Может быть, вам нужна брошюра, высокая и узкая, потому что вы будете раздавать ее как закладку между страницами вашего последнего романа, или флаер, достаточно изящный, чтобы его можно было завязать, как маленький свиток в чайной чашке. Или, может быть, вам нужен не нестандартный размер, а материал, который немного отличается от ваших обычных вариантов бумаги (например, водостойкая брошюра, показывающая все виды, которые гость может ожидать увидеть во время приключения наблюдения за китами, или листовка, которая светится под черным светом, рекламируя специальные напитки во время вечеринки в вашем клубе.
)
Вы заплатите немного больше, чтобы получить то, что вам нужно, но инвестиции в идеальную печатную продукцию для вашего бренда окупятся… если ваш бренд требует этого. Иногда простота лучше — например, если вы просто расклеиваете объявления о распродаже в гараже по всему городу и планируете разорвать их обратно через 72 часа. Но когда вы разрабатываете что-то, что окажет большее влияние или будет иметь более длительный срок службы, размер и материал, которые вы выбираете, так же важны для идентичности вашего бренда, как и элементы дизайна, такие как ваш шрифт и цветовая палитра.
Если вам кажется, что традиционные размеры ограничивают ваш проект, выйдите из него и выберите то, что подходит вашему бренду. Дизайн флаера от Литласт.Когда вы решите, что вам нужно что-то нестандартное, вам нужно предусмотреть в бюджете все, что связано с отклонением от нормы, например, изготовленные на заказ конверты, которые подходят для вашего флаера больше среднего или необычной формы.
Вам также необходимо убедиться, что вы работаете с дизайнером, который имеет опыт создания уникальных дизайнов, потому что размер и форма вашего готового продукта должны учитываться с самого первого эскиза.
Попытка масштабировать или переформатировать дизайн, созданный для страницы или брошюры стандартного размера, может привести к тому, что конечный продукт будет казаться шатким или не достигнет желаемого эффекта, потому что пропорции и иерархия размеров неверны.
Помните, размер флаера имеет значение!
—
Когда вы разрабатываете флаер или брошюру (или любую печатную продукцию в этом отношении), всегда, всегда думайте о фактическом размере и форме конечного продукта на каждом этапе процесса проектирования. Дизайн, который подойдет для брошюры размером с букву, вероятно, не подойдет для брошюры размером с бульварную газету, а дизайн, который выглядит потрясающе в тройном сгибе, не подойдет для сгиба гармошкой.
Еще до начала процесса проектирования определите, что вы будете делать, его размер и способ складывания. И прежде чем вы определите их, определите, где предмет будет вписываться в вашу воронку, потому что это приведет вас к размеру, материалу и форме, которые лучше всего продемонстрируют ваш дизайн.
Хотите идеальный флаер или брошюру для вашего бизнеса?
Работайте с нашими талантливыми дизайнерами, чтобы это произошло.
Пойдем!
Планы складных столов для пикника — простые в сборке проекты
Картинки с этих чертежей
Планы складного стола для пикника. Планы включают список покупок, список вырезок и бесплатную загрузку в формате PDF (ссылка внизу сообщения в блоге 9).0211 .
Этот стол для пикника складывается, образуя набор скамеек, или может быть сложен в стол для пикника.
Этот простой проект своими руками можно выполнить за выходные. Для начала следуйте пошаговым иллюстрированным инструкциям. Ссылка для скачивания находится в конце проекта.
Планы складного стола для пикника – Обзор
Планы складного стола для пикника – Список материалов
Список покупок
Список покупок
15 – 2×4 – 12′
4 – петли
2 шурупа 1/2″
Список вырезов
Список вырезов
4 – 2×4 – 5′ 6/″
0 3–0 3×
4 – 0 2
8 – 2×4 – 1′ 4″ (нарезы под углом 15 градусов на обоих концах в одном направлении)
4 – 2×4 – 1′ 5″ (нарезы под углом 15 градусов на обоих концах в противоположных направлениях)
2 – 2×4 – 5’ 3″
16 – 2×4 – 6’
4 – 2×4 – 1’ 2 3/4″ (скос под углом 45 градусов режет оба конца в противоположных направлениях)
4 – 2×4 – 1′ 3 1/2″ (срезы под углом 15 градусов на обоих концах в одном направлении)
4 – 2×4 – 7 1/2″ (срезы под углом 15 градусов на обоих концах в одном и том же направлении)
4 – 2×4 – 5 1/2″ (скос 15 градусов на обоих концах в одном направлении)
4 – 2×4 – 10″ (скос 15 градусов на одном конце)
Соберите две рамы скамейки, как показано выше.
Отрежьте четыре 2 × 4 до 5 футов 6 дюймов в длину и шесть 2 × 4 до 10 3/4 дюймов в длину. Соберите, как показано на рисунке выше, используя 2 1/2″ винты для настила.
Отрежьте восемь брусков 2×4 длиной 1 фут 4 дюйма для ножек скамейки, сделайте надрезы под углом 15 градусов на обоих концах в одном направлении, см. рисунок выше.
Прикрепите ножки к раме скамейки, как показано на рисунке выше, используя винты для настила 2 1/2″.
Отрежьте четыре бруска 2×4 длиной 1 фут 5 дюймов для распорки ноги скамьи. Сделайте надрезы под углом 15 градусов на обоих концах в противоположных направлениях, см. рисунок выше.
Установите распорку для ножек, как показано на рисунке выше, вкрутите 2 1/2 шурупа через распорку в ножки.
Отрежьте два бруса 2×4 длиной 5 футов 3 дюйма для опоры скамьи. Установите, как показано на рисунке выше, вкрутите 2 1/2″ шурупы через распорку ноги в опору скамьи.
Отрежьте восемь брусков 2×4 длиной 6 футов для перекладин верхней части скамейки.
Зазор в планках около 1/4″, концы планок сиденья будут иметь выступ 1 1/2″, передняя и задняя части будут иметь выступ 1/2″.
Отрежьте четыре отрезка 2×4 длиной 1 фут 2 3/4″, сделайте надрезы под углом 45 градусов к концам, как показано на рисунке выше.
Установите 2×4 на планки скамейки, как показано на рисунке выше, используя 2 1/2″ винты для настила.
Вырежьте детали каркаса стола, как показано ниже.
(A) Отрежьте четыре отрезка 2×4 длиной 1 фут 3 1/2″, сделайте надрезы под углом 15 градусов на обоих концах в одном направлении.
(B) Отрежьте четыре отрезка 2×4 длиной до 7 1/2″, сделайте надрезы под углом 15 градусов на обоих концах в одном направлении.
(C) Отрежьте четыре отрезка 2 × 4 длиной до 5 1/2 дюйма, сделайте надрезы под углом 15 градусов на обоих концах в одном направлении.
(D) Отрежьте четыре детали 2×4 длиной до 10 дюймов, сделайте срез под углом 15 градусов на одном конце.
Соберите четыре рамы стола, как показано на рисунке выше, используя винты для настила 2 1/2″.



