Схема коттеджа – Проекты домов и коттеджей бесплатно чертежи и фото
Проекты домов и коттеджей бесплатно чертежи и фото
Сооружение домов без специальной технической документации может привести к неприятностям. С одной стороны, без точных расчетов невозможно получить прочную конструкцию с должными показателями безопасности и теплопроводности. С другой стороны, строительство без проекта – нарушение закона. Дальше рассмотрим примеры, какие могут быть созданы проекты домов и коттеджей, приведем их чертежи и в коротко опишем особенности каждого.
Проекты и чертежи домов (коттеджей)
Проекты домов: одноэтажное сооружение с мансардой
Основные показатели сооружения:
- Количество этажей: 1.
- Наличие мансарды: да.
- Общая площадь застройки: 155 м2.
- Размерные показатели: 12.1 на 9.3 м.
- Непосредственная S застройки: 102 м2.
Особенности конструкции:
- Буронабивное основание с ростверком.
- Многоскатная крыша, сооруженная из бруса и покрытая металлочерепицей.
- Полы сооружаются из шпунтованной доски шириной 0.4 см.
- Что касается мансарды, то ее потолки предусмотрено подшивать по стропилам.
- Окна изготавливаются индивидуально под конкретные проекты домов.
- Для сооружения стен применяется профилированный брус 19х19. Перегородки сооружаются по каркасной технологии, а каркасный остров из бруса 5х15.
- Звукоизоляция полов, потолков и чердака. Для этих целей применяется минвата 15 и 20 см в толщину. Каркасные перегородки также теплоизолируется материалом в 10 см, дополнительно обладающим звукоизоляционными свойствами.
- Цоколь отделывается декоративной плиткой, а наружные стены просто обрабатываются защитным покрытием.
- Двери также изготавливаются на заказ.
Чертеж этажей
Основные характеристики:
Проекты домов, при сооружении которых используются перечисленные материалы, можно назвать образцами экологичности и хорошего вкуса. Брус отлично пропускает воздух, при этом минеральная вата также обладает таким свойством, что в итоге способствует отличному микроклимату в сооружении и при этом дом имеет отличные показатели теплоэффективности. Такое здание будет сооружаться достаточно быстро, при условии соответствующей проектной документации влажности бруса. В целом такой площади жилья будет вполне достаточно для комфортного проживания даже большой семьи.
Проекты домов: садовый домик
Основные показатели сооружения:
- Общая и необходимая площадь для застройки: 24 и 43 м2 соответственно.
- Веранда: 10 м2.
- Размеры мансардного помещения: 15 м2.
Конструктивные характеристики:
- Фундамент для сооружения домов с такими чертежами могут быть бутобетонные или столбчатые.
- Наружные и внутренние стены возводятся из пустотелого керамического и обычного кирпича соответственно.
- Для цоколя также используется обычная кирпичная кладка.
- Междуэтажные и цокольные перекрытия сооружаются из деревянных балок, утепляются плитной минватой и подшиваются листами гипсокартона (в первом случае) или обрезанными досками (во втором).
- Стропила из дерева, а полы из досок.
- Кровля сооружается с помощью изготовления деревянной обрешетки, покрытой асбестоцементными листами.
Чертеж этажей
Краткая оценка:
Такие проекты домов выбирают для сооружения помещений, не предназначенных для круглогодичного проживания. Технология их строительства и ценовой сегмент используемых материалов разрешает получить здание, возведение которого подразумевает минимальное количество материальных и временных затрат
Проекты коттеджей: двухэтажное сооружение из бюджетных материалов
Основные показатели площадей здания (м2):
- 77 – первый этаж;
- 48 – второй этаж;
- 23 – гараж;
- 108 – общая.
Особенности конструкции:
- Для сооружения фундамента используются блоки ФБС.
- Материал сооружения несущих стен – газобетон (утепляется).
- Внутренние перестенки из кирпича.
- Перекрытия создаются из железобетонных элементов.
- Сооружение кровли подразумевает закрепление металлочерепицы на деревянные стропила с обрешеткой.
Чертеж расположения комнат
Оценка проекта:
Способ сооружения и используемые материалы выбирались для достижения максимальной экономии при строительстве, которая не повлияет на комфорт проживания в доме. Именно по этим причинам стены сооружаются из газоблока, крыша имеет двускатную конструкцию и для создания фундамента решено использовать блоки ФСБ.

Конструктивные особенности:
- Монолитное основание – ж\б плита.
- Перекрытия сборного типа – специальные железобетонные конструкции.
- Крыша мансардная. Для ее сооружения применяется битумная черепица, которая крепится на деревянные стропила. Вид крыши: двухскатная.
- Цоколь монолитный ж\б.
- Для кладки перегородок используется силикатный кирпич.
- Внешние стены из газобетонных блоков.
- В окна металлопластиковые.
Чертеж размеров комнат
Впечатление об проекте:
Используемые материалы для возведения сооружения позволяют добиться максимальной прочности и долговечности конструкции при условии качественных железобетонных элементов. Также строительство такого дома позволяет рассчитывать на быстрые осуществления этого процесса. При умелой отделке наружных стен может получиться дом с непревзойденным внешним видом.
Проекты домов: простой одноэтажный домик
Основные особенности:
- Небольшие размеры: 7х7.
- Один этаж без мансарды.
- Площадь: 43 м2.
Конструктивные показатели:
- Стены сооружаются из бревна.
- В качестве стропил используется сосновая обрезная доска.
- Можно использовать основание ленточного типа.
- Крыша шатровая.
- Материал перестенков – брус.
Чертеж внутреннего помещения
Характеристика:
Использование подобного чертежа направлено на сооружение небольшого жилого дома, который может использоваться как для проживания небольшой семьи, так и выполнять роль гостевого домика. Количество человек, которое может в нем проживать с комфортом: до 4.
Использовать готовые проекты домов, а также коттеджей, можно при сооружении и собственного дома. Только внимательно изучайте чертежи и особенности проектной документации. Часто они рассчитаны для сооружения в определенных условиях и для конкретной местности, поэтому выбранный вариант может и не подойти.
jsnip.ru
Как сделать чертеж и проект дома своими руками
Строительство собственного дома, особенно если он возводится собственными руками и силами, без найма подрядных организаций — дело сложное и рискованное. У человека, который берется за эту «авантюру», непременно возникает множество сомнений:
- Правильно ли сделаны расчеты;
- Хватит ли у меня средств;
- Точно ли просчитаны сроки;
- Все ли у меня получится.

Подробный проект двухэтажного дома с чертежами всех этажей
Даже опытные строители знают, что одна небольшая ошибка на этапе проектирования способна загубить весь процесс. Дом так и не будет построен, деньги и время будут потрачены безвозвратно. Чтобы этого не случилось, необходимо до начала строительства и вложения средств провести тщательную подготовительную работу. Именно на этом этапе необходимо сделать подробный чертеж дома.Этот документ станет отправной точкой для дальнейшей работы, в том числе основой для разработки официальной проектной документации и составления сметы объекта.
Вернуться к оглавлениюСодержание материала
Сбор информации и подготовительный этап
Бесплатные чертежи каркасных домов в изобилии представлены в интернете. Речь идет не о комплектах готовой проектной документации, а именно о чертежах частных домов, коттеджей в несколько этажей с мансардой и гаражом. Чертеж в таком случае — это несколько подобных планов внутренней планировки, схем расположения коммуникаций и ориентации здания по сторонам света.

Планировки первого и второго этажа двухэтажного коттеджа
Для того чтобы создать дом своей мечты, необходимо познакомиться с изобилием существующих и бесплатно представленных вариантов планировок. Если раньше все дома были похожи один на другой, и даже по внешнему виду можно было сказать, что и как располагается внутри, то сегодня рушатся все стереотипы.Классический дом с квадратной коробкой может таить в себе самые разнообразные архитектурные решения и дизайнерские изыски. Именно для того, чтобы выбрать для себя наилучшее предложение на сегодняшнем рынке, стоит просмотреть не один десяток свободных проектов, детальных чертежей и планировок частных домов.
Проекты одноэтажных частных домов
Представлены как в качестве дачных домиков, так и капитальных больших строений.

Проект одноэтажного дома с мансардой
Возводятся на достаточно просторных участках, так как имеют большое пятно застройки. Для комфортного проживания семьи из четырех человек — двух детей и двух взрослых — достаточно дома площадью в 120–160 квадратных метров. А если добавить к одноэтажному дому гараж и надворные постройки, то площадь значительно увеличивается. И на небольшом участке может просто не хватить под все это места.Плюс таких проектов — отсутствие лестниц в доме, возможность ставить только один санузел, удобство перемещения по одноуровневому пространству. Минус — широкое пятно застройки, необходимость тщательной планировки, чтобы сократить неиспользуемое мертвое пространство.
Проекты двухэтажных коттеджей
Удобны, если необходимо разместить дом большой площади на маленьком участке, а также четко зонировать помещения: спальни и зону отдыха переносят на второй этаж дома в мансарду, хозяйственные помещения и общие комнаты располагают на первом.
Коттедж в два этажа может быть построен из различных материалов. Здесь и кирпичные проекты, и дома из блоков, из бревна, по каркасно-щитовой технологии. Плюс такого дома в том, что затраты на строительство и отопление обходятся дешевле, чем при строительстве обогрева дома с таким же периметром, но в один этаж. Минус двухэтажного коттеджа в обязательном присутствии лестницы в доме. Она не только усложняет жизнь пожилым людям и маленьким детям, но и съедает значительную часть полезной площади.

Проект двухэтажного коттеджа с планировками
Вернуться к оглавлениюРасположение дома на участке
Когда с этажностью дома все встало на свои места, появилась определенность, будет гараж встроенным или стоящим отдельно, можно приступать к планировке частного дома. Это необходимо не только из-за эстетических соображений, но и из-за практических.
Если частный дом возводится в крупном населенном пункте или коттеджном поселке, то велика вероятность, что участок обеспечен централизованными коммуникациями: электричеством, водопроводом, канализацией, газифицирован.
Грамотное расположение дома позволит выбрать оптимальное расстояние до ввода сетей в дом.
Также в некоторых муниципальных образованиях есть такое понятие, как красная линия. Это обязательное расстояние от края участка, выходящего на центральную улицу, до жилого дома. Где-то оно должно быть не менее пяти метров, а где-то — не более трех. Узнать эту информацию можно в местной администрации.
Правильно расположенный дом на участке не должен затенять прилегающую территорию. Не стоит строить в тени дома веранду или патио, разбивать сад или огород. Так же, как и сажать вблизи дома высокие деревья, которые будут загораживать окна от солнечного света.Далее, дом на участке необходимо сориентировать по сторонам света. Как его поставить смогут решить только будущие владельцы. Кто-то руководствуется учениями фэншуй для расположения дома , кто-то принципами энергоэффективности небольшого дома, а кто-то просто собственным комфортом.
Если вы предпочитаете просыпаться рано утром, то окна спальни и кухни должны выходить на восток, окна кухни лучше не выводить на запад, так как готовка в среднестатистической семье осуществляется по вечерам, после рабочего дня, и в помещении даже без лучей закатного солнца будет достаточно жарко.

Вариант расположения коттеджа на участке в 3D
Если в доме есть маленькие дети, то окна гостиной могут выходить на юго-запад, что позволит постоянно наполнять комнату солнечным светом. Северная и северо-западная сторона должны быть отведены под нежилые помещения. Оптимально располагать там санузлы, лестничное пространство, кладовые, прихожие, тем самым экономя на отоплении.Вернуться к оглавлениюРазмеры помещений и их количество
Чтобы сделать чертежи своими руками, необходимо представлять себе планировку, которая будет у частного дома мечты, а для этого нужно знать количество необходимых помещений с точными размерами.
У каждого понятие о комфорте коттеджей свое. Это зависит от потребностей семьи, их благосостояния и статуса. Кому-то размер и зонирование пространства комнаты в 12 квадратных метров покажется оптимальным, а для кого-то будет неприемлемо тесным.

Планировка двухэтажного коттеджа с гаражом
Среднестатистические данные подтверждают, что семье из двух взрослых и двух детей вполне комфортно живется, если есть помещения следующих размеров:| Помещение | Количество в шт. | Площадь в м2 |
| Спальня | 3 | 12 |
| Гостевая комната | 1 | 12 |
| Гостиная | 1 | 25–30 |
| Кухня | 1 | 15–20 |
| Санузел | 2 | 6 |
| Кладовка | 1 | 10 |
| Гардеробная | 1 | 9 |
| Лестница | 1 | 8 |
| Котельная | 1 | 6 |
| Прихожая + тамбур | 1 + 1 | 12 |
| Общая площадь | 150–160 |
Таким образом, оптимальный размер пятна застройки составляет дом 9 х 9 метров, если дом — двухэтажный или одноэтажный с мансардой.

Планировка дома с мансардой 9×9
Если ставить дом с основанием 8 х 8, то от некоторых помещений придется отказаться, а остальные сделать чуть компактнее. В сети представлено множество готовых проектов и планировок для домов с такими размерами. Листая их, можно выбрать подходящий готовый вариант или подсмотреть интересную идею, и воплотить ее в жизнь в будущем доме своими руками.Разбивку по этажам можно сделать следующим образом. На второй этаж поднять все спальни и гостевую комнату, гардеробную, один санузел и лестничную площадку. Все оставшиеся помещения должны найти свое место на первом этаже.
Когда площадь помещений готова, можно приступать к поиску удачного расположения их на этаже. Для этого стоит учесть, что длина всех строительных материалов кратна шести. Поэтому, чтобы избежать их перерасхода или излишних обрезков, лучше выбирать дом с размерами 9 х 9; 6 х 9; 9 х 12.

Планировка коттеджа 9×12
Дома с размерами не кратными трем и шести тоже строят, например, 6 х 8; 8 х 8; 7 х 9, но нужно приготовиться к тому, что после строительства останется много отходов, а в процессе возведения дома будет очень много работ по подгонке материалов. Вернуться к оглавлениюВнутренняя планировка дома
Планировка должна выполняться не абы как, а с учетом необходимых требований, норм и удобства использования. Чтобы добиться удачного и оптимального расположения помещений, можно обратиться к каталогам готовых проектов, просмотреть бесплатные презентации на сайтах строительных и проектных организаций, скачать чертежи деревянных домов.
Кстати, просмотр планировок в домах из различных материалов: блоков, бревна, каркасно-щитовых, кирпичных — также позволит понять полную картину, почерпнуть свежие идеи и найти подходящие решения.

Проект кирпичного дома с гаражом на два автомобиля
Есть несколько негласных правил, которые позволяют сделать планировку жилых зданий удобной и комфортной:- Спальни родителей и детей не должны находиться в прямом соседстве. Лучше, если их будут разделять какие-либо помещения или пространства;
- Санузел не стоит располагать рядом со спальными комнатами. Лучше обеспечить небольшое удаление объекта, например, через коридор;
- Если частный дом одноэтажный, то санузлы лучше сделать раздельными; если этажей в доме два, то можно на первом разместить совмещенный, а на втором — раздельный. Располагать их лучше друг над другом;
- Вход в котельную должен быть из дома. Единственный или второй. В это помещение необходимо перенести все счетчики и контрольные датчики;
- Лестницу лучше обустраивать около внешней стены, а пространство под ней задействовать под кладовую. Существенная экономия на отоплении, а также возможность использования места в качестве хранения зимних заготовок;

- Прихожая в частном доме должна быть большая, здесь будет храниться больше вещей, чем в квартире. К тому же часть прихожей съест тамбур, он обязателен в любом строении: одноэтажном или двухэтажном, кирпичном, деревянном, каркасном доме 4х6. Это способ предотвратить прямое попадание холодного воздуха в дом;
- Прихожая частного дома должна быть расположена таким образом, чтобы через нее приходилось ходить как можно реже. Это позволит дольше сохранять чистоту и порядок в доме.
Не забудьте предусмотреть наличие окон и дверей в проекте. Большие оконные проемы и значительное их количество — это максимально естественное освещение в доме, эстетичный внешний вид, иллюзия пространства и свободы. А обратная сторона медали — большие теплопотери и высокие затраты на отопление. К тому же поддерживать все окна в должном состоянии круглый год — серьезная задача.
Рисуем проект будущего дома
Когда все подготовительные работы закончены, чужие удачные проекты одноэтажных и двухэтажных домов, кирпичных, из блоков, бревна, планировки домов из бруса, каркасников, просмотрены основательно, тогда можно приступать к созданию своего детища. Чтобы нарисовать понятный план дома, лучше взять миллиметровку или разлинованную в клетку бумагу. Это поможет выдержать масштаб и увидеть наглядно будущую планировку.
Для начала на бумагу нужно нанести периметр будущего дома, затем учесть в проекте ширину стен, которая будет зависеть от используемого строительного материала.
Разместить на получившемся квадрате или прямоугольнике все дверные и оконные проемы, а затем согласно собственным представлениям, разбить оставшуюся площадь на соответствующие помещения. При этом не стоит забывать учитывать толщину несущих стен и внутренних перегородок.
Когда план первого этажа готов, можно приступать к прорисовке второго уровня. Если же строение одноэтажное, то ваша работа на этом окончена.

Эскиз планировки первого этажа двухэтажного дома
Созданный чертеж стоит проверить на соответствие действительности. Для этого специалисты рекомендуют приехать на участок и сделать разбивку на местности. Если после этого этапа все по-прежнему устраивает, и проект не требует внесения корректив, его можно передавать профессионалам — в проектную организацию, которая по вашим чертежам составит полную проектную документацию и предложит оригинальные архитектурные решения по оформлению фасада здания.planvsem.ru
полный комплект чертежей с описанием и рекомендациями
Совсем недавно доступный проект дома можно было найти лишь в альбомах типовых чертежей. Все эти сооружения были однотипными и безликими. Построить по таким проектам мог не каждый человек, ведь для этого необходимо было иметь хоть какое-то строительное образование и уметь разбираться в чертежах и технических терминах.
Мы хотим совершить переворот в мире проектирования и строительства. Теперь практически любой человек, желающий построить дом своими руками, может получить полный проект такого сооружения с подробным описанием всех этапов строительства. Мы настолько подробно и полно опишем каждый этап, что даже человек, не очень хорошо разбирающийся в строительстве, сможет воплотить в жизнь дом своей мечты.
Общая информация о доме
Доступный проект дома представлен в виде одноэтажного домика с двумя боковыми верандами. Фундаменты выполнены в виде сплошной железобетонной монолитной ленты. Наружные стены домика запроектированы из поризованных блоков POROTHERM 51, а стены веранды выполняются из деревянного бруса с дополнительным утеплением при помощи жёстких минераловатных плит. Все внутренние стены возводятся из глиняного полнотелого кирпича. Кровля дома запроектирована простая двухскатная с несущим каркасом из деревянной стропильной конструкции.





Что касается наружной отделки, то проект дома предусматривает использование в качестве облицовки стен декоративную штукатурку с последующей её покраской фасадными красками. Отделка цоколя – декоративная цокольная плитка. Обшивка веранд и фронтона домика может быть выполнена из сайдинга или вагонки для наружного использования. Выбор кровельного покрытия зависит от вашего предпочтения. Это может быть и металлочерепица, и профнастил, и гибкая битумная черепица. Однако стоит помнить, что в случае использования гибких кровельных материалов необходимо устраивать сплошную обрешётку по стропилам.


ЧИТАТЬ ДАЛЕЕ: 1 2 3 4 5 6 7
mainstro.ru
как можно нарисовать чертеж онлайн в программах
Готовые планы одноэтажных и двухэтажных загородных частных домов с размерами. Как можно самому нарисовать чертеж и схему расположения комнат в доме в программах и в режиме онлайн. Варианты планировки коттеджей 8х8, 9х9, 10х10 и других размеров.
При планировке комфортного жилья понадобятся услуги архитектора. Но такая помощь стоит дорого. Мы расскажем, как сделать план дома с размерами, имея начальные навыки работы с компьютерными программами в режиме онлайн. Вы сэкономите время и средства, а также учтете пожелания всех членов семьи. Также вы найдете здесь бесплатно готовые чертежи и схемы планировки частных коттеджей.
Подробная планировка 3-х комнатного дома с размерами и площадью помещенийВернуться к оглавлениюСодержание материала
Зачем нужна планировка с размерами
Планировка дома включает в себя несколько важных моментов. Прежде чем разбираться в архитектурных тонкостях, нужно понять, в чем отличие проекта дома от планировки. Главная специфика проекта загородного здания — характеристики, расчеты, описания будущего строения. В него включен учет стройматериалов, придомовой подсистемы:
- Описание архитектурных элементов: чертежа здания, планировки жилых, хозяйственных помещений, обозначения окон, дверей.
- Расчёт конструкции фундамента, коробки, кровли, схематичное изображение чертежей с разметками.
- Электрическое оснащение с подробным планом подключения дома к энергосети и схемой разводки розеток.

- Инженерные сообщения: вентиляция, газ, септик, водопровод, отопление.
Как показано выше, в структуру схемы входит план дома с мансардой, в котором указывается площадь, внутренняя расположенность помещений основного строения, с нанесением на схему дверей, перегородок, лестницы и окон.
Чертеж и планировка всех этажей здания с мансардойПолучается, что, отказываясь от услуг архитектора, вся составляющая документации проекта ложится на владельца жилья. Ведь планировка квартир отдельно от планового расчета существовать не может. Все же под руководством проектировщика, хозяин владения, может начертить план сам.
Вернуться к оглавлениюКак самостоятельно нарисовать план дома
Чтобы начать строительство особняка, необходимо выполнить проектирование расположения внутренних комнат и перегородок. Чертеж плана должен соответствовать технологическому процессу:
Пример самостоятельного изготовления чертежа здания- определение всех необходимых размеров;
- обозначение середины оси капитальных стен;
- чертеж внутренних перегородок всех комнат;
- метки расположения оконных, дверных проемов.
Затем прорисовываются функциональные конструкции:
Границы нежилых комнат обозначаются пунктиром.
Высота помещений, этажность указывается отдельно. Дальше каждому отдельному объекту присваивается номер, на основе всех данных создается таблица. Дальнейшие действия выполняются непосредственно архитектурным отделом.
Схемы жилого дома с планировкой
Прежде чем подбирать пример проекта для строительства коттеджа на участке, нужно решить, сколько этажей будет в здании. От этого будет зависеть бюджет и площадь. Назначение помещений также играет важную роль.
Условные обозначения на плане жилого домаИногда небольшая территория застройка — неплохой аргумент для постройки одноэтажного здания.
Проект одноэтажного дома 8 на 8
Здания с такой площадью востребованы в загородном строительстве, в условиях плотной городской застройки. Это объясняется их доступной ценой. План одноэтажного дома может изменяться в зависимости от наличия мансардного этажа, гаражных, подвальных помещений.
Планировка с размерами одноэтажного коттеджа 8 на 8 метров с террасойЕсли это необходимо, то сюда включается цокольный этаж.
План загородного дома 9 на 9
В таком доме можно сделать большую гостиную для отдыха всех членов семьиОграниченность земельного ресурса позволяет размещать вполне габаритные коттеджи с размерами 9 х 9 м. Проект таких зданий полноценный, может вместить в себя все необходимые помещения по индивидуальному плану. Материалы и технология застройки могут быть разными.
При планировании учитывают правила компоновки с мансардным этажом или гаражным отсеком.
Планировка дома размером 10 х 10
Такой коттедж подходит для проживания небольших семей. Перед тем как начать планировку, нужно учесть, как будет располагаться здание на участке, сколько жильцов будет тут проживать. Важно учесть виды отопления и водоснабжения, а также возможность пристройки террасы, гаражного помещения.
Планировка и схема расположения помещений двухэтажного здания 10 на 10 метровЛюбители просторных комнат оценят план по достоинству. Большие прямоугольные комнаты соответствуют всем параметрам частного индивидуального строительства.
Смотрите в видео обзор планировки дома 10 на 10.
План двухэтажного дома
Разработку проекта двухэтажного дома больших габаритов поручают архитекторам. Разумное размещение комнат сделает здание комфортным. Нужно заранее обсудить место установки лестницы, расположение помещений относительно сторон света. Окна кухни должны выходить на южную сторону. Гостиной подойдет запад, а в спальнях будет всегда светло, если разместить их с окнами на восток. Лестницу хорошо бы поставить с северной стороны.
Расположение коттеджа относительно улиц тоже надо учитывать. Например, спальни и комнаты для отдыха, нужно располагать вдали от шумных автострад. Все нюансы можно обсудить с проектировщиком.
Чертежи каркасных домов
В чертеж сруба из каркаса входят текстовые и графические материалы, с макетами будущего строения, подробное их описание. Можно купить готовый типовой проект или заказать план дачного дома по индивидуальным запросам.
Каркасная технология быстровозводимых домов состоит из двух частей: архитектурного паспорта и чертежей со схемами, которые необходимы для строительства.
Чертеж возведения конструкции каркасной постройкиОписание конструкции здания и макет фасадного блока, указанные в паспорте, понадобятся, если потребуется подать документы в кредитную организацию для получения ипотеки. В чертежах указан весь макет документов, которые нужны для предоставления в государственное учреждение для подтверждения разрешения на строительство здания.
Вернуться к оглавлениюВиды планов многоэтажных жилых домов
Многоэтажки и многоквартирные постройки занимают первое место в практике жилищного строительства. Это объясняется стремлением увеличить количество жилых помещений, путем плотной застройки поэтажно и сокращения территорий под застройку.
Так выглядит внешний вид фасада и планировка всех этажей жилого многоэтажного домаПоследний пункт особенно важен, так как в противном случае происходит значительное удорожание инженерных сетей, увеличивается расстояние от дома до работы. Выбор несущей конструкции, тип планирования здания в объеме влияют на экономичность, форму и структуру многоэтажного здания.
Дома отличаются по архитектурно–планировочному решению, большое значение имеет расположение помещений. План многоквартирного здания бывает нескольких видов.
Типовая планировка жилого этажа многоэтажного домаСамый распространенный — секционный. Хорошим примером могут быть пятиэтажки, построенные полвека назад. В доме находится лестничная площадка, к которой примыкает несколько квартир.
Сами площадки могут быть разной формы, а квартиры типа студия, однокомнатные, 2–х и 3–комнатные. Такое расположение характерно общим выходом на этаж и отдельным входом в помещение.
3D проект и планировка квартиры студии с панорамными окнамиЭтот вариант отличается экономичностью, хорошей изоляцией квартир. Число подъездов может колебаться от 4 до 12, а в крайнем случае — до 16. Их количество зависит от:
- желания заказчика;
- структуры грунта;
- площади земельного участка под застройку.
Разновидностью секционных панельных корпусов считают точечное расположение. Еще их называют «башня», которая может иметь такой же план этажей, как и в секционном корпусе. Но подъезд тут только один. Например, если под строительство выделено мало земли и грунт имеет сложные рельефы, такой план станет хорошим вариантом.
Планировка двухкомнатной квартиры в панельной многоэтажкеДома второго коридорного типа можно встретить не часто. Отличие здесь состоит в том, что вместо лестничной площадки выстроен длинный коридор, в который и выходят все квартиры.
Ориентирование квартир тут одностороннее — это главный недостаток такого расположения. Изоляция тоже не на высшем уровне. Поэтому такая схема встречается в основном при строительстве гостиниц и общежитий.
Дома галерейного типа чем–то похожи на коридорный тип. У каждой квартиры есть выход на галерею, расположенную вдоль продольной стены конструкции.
Размещение квартир на плане в здании галерейного типаТакие квартиры, даже с самой маленькой площадью хорошо вентилируются. Экономически такой расклад очень выгоден, так как позволяет с помощью малого количества лестниц или лифтов обслуживать большое количество квартир. Все же технологический процесс теплоизоляции в условиях местного сурового климата не всегда отличается хорошим качеством и длительностью службы.
Вернуться к оглавлениюЗаключение
Коттедж, построенный в соответствии с личными пожеланиями, будет оригинальным и неповторимым творением.
Планировка двухэтажного коттеджа с подваломНо самостоятельные расчеты могут себя не оправдать из–за возможных ошибок. Учитывая финансовые расходы и риски, связанные с ними, сами себя не оправдывают. Лучше обратиться к архитектору и сэкономить деньги, время, истраченные нервы.
Уже выполненные типовые решения дешевле индивидуального проектирования. Ввиду популярности этих планов, все ошибки уже давно исправлены, а недочеты доработаны. Если захочется что–либо изменить в проекте, то архитектор посоветует, как это можно сделать.
Вариант проекта и чертеж большого одноэтажного частного загородного домаКардинальные изменения в планах делать нельзя. Можно внести корректировки только во внутреннюю планировку и фасад частного дома. Обсуждаются материалы, из которых будет строиться здание.
Необходимо заранее спланировать место расположения дома относительно сторон света и вида из окон. Иначе потом уже ничего исправить будет нельзя.
proekt-sam.ru
Схема коттеджа
Схема коттеджа
Реализуя собственный проект по строительству загородной недвижимости, собственник еще задолго до этапа проектирования должен составить упрощенный план будущего дома
Схема коттеджа представляет собой эскизный вариант будущего строения, представленный в более простом и доступном виде с сохранением определенного масштаба.
Используя схему, можно заранее представить внешний вид будущего сооружения еще задолго до начала всего комплекса строительных работ.
При этом схема коттеджа может предусматривать также планирование интерьера будущего загородного дома. Для этого в графическом виде изображают схему размещения мебели в комнатах, проектируя, таким образом, дизайн интерьера.
Основу для проектирования представляют типовые проекты, благодаря которым можно изучить различные варианты для реализации того или иного интерьера.
Схема коттеджа менее информативна, чем чертеж и содержит при этом менее подробную информацию о детализации.
Используя схему, собственник может продемонстрировать желаемый внешний вид дома с каждой стороны, который может использоваться для проектировки, как интерьера, так и экстерьера, а также прочего ландшафта.
Этот аспект может играть важнейшую роль при строительстве недвижимости в местах с высокими видовыми характеристиками: в горах и возле моря, у реки и на холмистой местности с большим количеством насаждений.
Как правило, каждая схема коттеджа подразумевает поэтапное отображение процесса планировки. Это особенно важно в том случае, когда строится дом, высота которого составляет два и более этажей.
Схема коттеджа в таком случае представляет собой поэтажный эскиз с указанием, не только формы и вида комнат, но и их расположения, но и функционального назначения.
При этом план строительства подразумевает схемотехническое изображение коммуникаций, среди которых, как существующие сооружения, так и планируемые трубопроводы и подключения.
Разработанная заранее схема коттеджа может ускорить процесс строительства и проектирования, а также, наверняка, поможет реализовать проект согласно требований заказчика.
При этом именно, благодаря схемам и планам в эскизном варианте уже можно построить предварительную смету и определить стоимость будущего сооружения, которая в свою очередь будет во многом зависеть от типа и вида используемого стройматериала.
www.kamend.ru
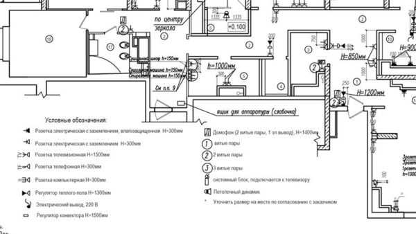
Электрическая схема электроснабжения коттеджа — Energy
Электрическая схема электроснабжения коттеджа
На рисунке выше изображена стандартная комплектация распределительного щитка для дома. Данная электрическая схема электроснабжения коттеджа предполагает установку защитного устройства ВД63 с током 300 мА на вводе.
Такое защитное устройство выбрано не случайно, если в систему подключить УЗО с меньшим током, то в процессе работы цепи могут возникать ложные срабатывания из-за слишком большой протяженности кабелей, а также вследствие значительного естественного фона утечки.
Пример проекта электроснабжения коттеджа
Три первых автомата в сети необходимы для защиты цепи от возникновения короткого замыкания. Для защиты групп розеток на приведенной схеме предполагается также использоваться защитное устройство ВД63 и автоматы ВА63. Для защиты наиболее мощных потребителей электроэнергии в коттедже используется трехфазный автомат ВА63 и отдельное защитное устройство. На конечной линии проекта электроснабжения квартиры расположена группа из защитного устройства и двух автоматов выключения, которые необходимы для защиты сети на группы отдельных строений, к примеру, гараж, схема электрощита в квартире или подсобные помещения.
На рисунке цифрами обозначены:
1 – линия корпуса щитка;
2 – соединение рабочих и нулевых проводов;
3 – соединение зажимов на нулях и проводника, уравнивающего потенциалы;
4 – соединение входных выводов автоматов;
5 – автомат дифференциальный;
6 – дифференциальный выключатель;
7 – автоматы;
8 – группы потребителей;
9 – счетчик электроэнергии.
Важные особенности создания электрической схемы электроснабжения
Электрическая схема коттеджа – это сложный проект, при создании которого нужно учитывать ряд важных нюансов, в частности:
— распределительные коробы, все электрические точки и счетчики размещают в доме таким образом, чтобы жильцы могли получить к ним доступ максимально быстро;
— все токоведущие элементы проводки должны быть закрытыми для безопасности;
— выключатели следует размещать на входе в помещение, на высоте порядка 90 см, причем, открывающаяся входная дверь не должна закрывать к ним доступ;
— все выключатели должны быть расположены на одной стороне от двери и на одной высоте;
— все розетки следует размещать в местах предположительной установки бытовых приборов, на высоте 40 см.
— в соответствии с современными нормами пожарной безопасности, в каждой комнате должно быть размещено количество розеток, из расчета одна точка на неполные или полные 6 квадратным метров площади;
— на кухне нужно расположить не меньше трех розеток;
— внутри комнат с повышенной влажностью монтаж розеток и выключателей не допускается, это правило актуально для всех санузлов, единственное исключение могут составлять розетки для небольших электроприборов, но они должны обладать двойной изоляцией и запитываются от трансформатора;
— трансформатор следует располагать в отдельном блоке, за пределами санузлов;
— рядом с заземленным металлическим оборудованием (раковины, трубы, газовые плиты, батареи и т.д.) электрические точки должны размещаться на расстоянии от 50 см;
— розетки на разделяющих комнаты стенах нужно устанавливать в одном месте с обеих сторон и подключать их параллельно;
— все провода в доме должны прокладываться только под прямыми углами, по горизонтальным и вертикальным линиям, весь маршрут прокладки должен быть точно задокументирован и отображен в проекте электроснабжения офиса или квартиры, чтобы избежать вероятности их механического повреждения в процессе проведения ремонтных работ;
— прокладка провода в горизонтальной проекции рядом с балками допускается на удалении от 5 см, от потолка и плинтуса – от 15 см;
— прокладка по вертикальной линии располагается на удалении в 10 см от всех углов, дверных проемов внутри помещения;
— в процессе прокладки кабеля нужно следить, чтобы он на всем своем маршруте следования не соприкасался с металлическими конструкциями строения;
— рядом с трубопроводом параллельная прокладка должна быть осуществлена на удалении от 40 см и более;
— при расположении рядом с горячими трубопроводами отопления и горячей воды, лучше всего использовать провода с дополнительным защитным покрытием, либо обкладывать кабель прокладками из асбеста;
— провода не должны пересекаться, расстояние между ними должно быть менее 3 мм;
— любые соединения и ответвления кабеля должно быть осуществлено только в специальных распределительных коробах;
— нулевые и заземляющие провода могут быть соединены с помощью сварки;
— соединение проводников с электроприборами, которым необходимо заземление, должно выполняться с помощью болтовых креплений.
Ниже вы можете воспользоваться онлайн-калькулятором для рассчёта стоимости проектирования сетей электроснабжения:
Поделитесь ссылкой
Дата публикации: 17.10.2014
energy-systems.ru
Каталог коттеджей » Проектирование и строительство коттеджей. Группа компаний «Коттедж Строй»
Каталог коттеджей нашей компании вы можете посмотреть, на основном сайте Группа компаний «Пересвет» в разделе Каталог проектов коттеджей
Все этапы постройки и планы коттеджей мы будем рады показать вам у нас в офисе.
1. Дворянское гнездо. Общая площадь: 1329,4 м2
***
Фасады дома:1-й вид, 2-й вид, 3-й вид.Этапы постройки: 1-й этап, 2-й этап, 3-й этап.
Планы этажей: План подвала, План 1 этажа, План 2 этажа, План мансарды.
2. Дом у леса. Общая площадь: 1133,2 м2

***
Фасады дома:1-й вид, 2-й вид, 3-й вид, 4-й видЭтапы постройки:1-й этап, 2-й этап, 3-й этап, 4-й этап.
Планы этажей: План 1 этажа, План 2 этажа, План мансарды
3. Моне. Общая площадь: 736,2 м2
***
Фасады дома:1-й вид, 2-й вид, 3-й вид, 4-й видЭтапы постройки: 1-й этап, 2-й этап, 3-й этап.
Планы этажей: План 1 этажа, План 2 этажа, План мансарды, План цоколя.4. Граф Орлов. Общая площадь: 726,5 м2

Этапы постройки: 1-й этап, 2-й этап, 3-й этап, 4-й этап.
Планы этажей: План 1 этажа, План 2 этажа, План мансарды.
5. Загородный престиж. Общая площадь: 663,53 м2

***
Фасады дома:1-й вид, 2-й вид, 3-й вид, 4-й видЭтапы постройки: 1-й этап, 2-й этап.
Планы этажей: План 1 этажа, План 2 этажа, План подвала
6. Цюрих. Общая площадь: 598,91 м2
***
Фасады дома: 1-й вид, 2-й вид, 3-й видПланы этажей: План 1 этажа, План 2 этажа, План мансарды.
7. Кубик Рубика. Общая площадь: 585,4 м2***Фасады дома:1-й вид, 2-й вид, 3-й вид, 4-й вид
Этапы постройки: 1-й этап, 2-й этап, 3-й этап, 4-й этап
Планы этажей: План 1 этажа, План 2 этажа, План 3 этажа, План подвала.8. Ольгово. Общая площадь: 554 м2

***
Фасады дома:1-й вид, 2-й вид, 3-й видПланы этажей: План подвала, План 1 этажа, План 2 этажа
9. Дом у причала. Общая площадь: 536,8 м2
***
Планы этажей: План 1 этажа, План 2 этажа.
10. Горный воздух. Общая площадь: 521,7 м2

***
Фасады дома:1-й вид, 2-й вид, 3-й вид, 4-й вид.Этапы постройки: 1-й этап, 2-й этап.
Планы этажей: План 1 этажа, План 2 этажа.
11. Светлый дом. Общая площадь: 521,4 м2.
***
Фасады дома: 1 вид, 2 вид, 3 вид. Планы этажей: План подвала, План 1-го этажа, План 2-го этажа.12. Маленькая финляндия. Общая площадь: 501,7 м2

***
Фасады дома:1-й вид, 2-й вид, 3-й вид.
Планы этажей: План цокольного этажа, План 1 этажа, План мансарды.
Этапы постройки: 1-й этап, 2-й этап, 3-й этап.
13. Миллениум. Общая площадь 490,3 м2

***
Фасады дома:1-й вид, 2-й вид, 3-й вид.Этапы постройки: 1-й этап, 2-й этап.
Планы этажей: План подвала, План 1 этажа, План 2 этажа, План мансарды.
11. Общая площадь:
***
Фасады дома: 1-й вид, 2-й вид, 3-й вид, 4-й вид, 5-й вид, 6-й вид, 7-й видПланы этажей:
14. Грегори. Общая площадь: 440,6 м2

***
Фасады дома:1-й вид, 2-й вид.Этапы постройки: 1-й этап, 2-й этап, 3-й этап, 4-й этап.
Планы этажей: План подвала, План 1 этажа, План 2 этажа.
15. Дом Адмирала. Общая площадь: 435,9 м2

***
Фасады дома: 1-й вид 2-й вид 3-й вид 4-й вид 5-й вид 6-й вид Планы этажей: План 1 этажа План 2 этажа План мансарды16. Вилла. Общая площадь: 407,7 м2

***
Фасады дома:1-й вид, 2-й вид, 3-й видЭтапы постройки: 1-й этап,2-ой этап:
Планы этажей: План подвала , План 1 этажа, План 2 этажа
17. Татьянин дом. Общая площадь: 371,05 м2

***
Фасады дома: 1-й вид, 2-й вид, 3-й вид, 4-й вид, 5-й видПланы этажей: План подвала, План 1 этажа, План 2 этажа
18. Романс. Общая площадь: 369,4 м2

***
Фасады дома:1-й вид, 2-й вид, 3-й вид Планы этажей: План подвала , План 1 этажа, План 2 этажа19. Авиатор. Общая площадь:360,2 м2

***
Фасады дома:1-й вид, 2-й вид, 3-й вид.Этапы постройки: 1-й этап.
Планы этажей: План 1 этажа, План 2 этажа, План мансарды.
20. Яхромский дом. Общая площадь: 331,6 м2

***
Фасады дома:1-й вид, 2-й вид, 3-й видЭтапы постройки: 1-й этап, 2-й этап, 3-й этап.
Планы этажей: План 1 этажа, План 2 этажа, План подвала.
21. Русский дом. Общая площадь: 303,119 м2

Фасады дома:1-й вид, 2-й вид
Планы этажей: План 1 этажа, План 2-й этажа План подвала
22. Семейные традиции. Общая площадь: 298,5 м2

***
Фасады дома:1-й вид, 2-й вид, 3-й вид.Этапы постройки: 1-й этап, 2-й этап, 3-й этап.
Планы этажей: План 1 этажа, План 2 этажа, План подвала.
23. Необычный дом. Общая площадь: 284,1 м2

***
Фасады дома:1-й вид, 2-й вид, 3-й вид Планы этажей: План 1 этажа, План 2-й этажа План подвала24. Самурай. Общая площадь: 265,8 м2

***
Фасады дома:1-й вид, 2-й вид, 3-й видПланы этажей: План 1 этажа, План 2-й этажа.
25. Семейное гнездо. Общая площадь: 224,76 м2.

***
Фасады дома: 1-й вид, 2-й вид, 3-й вид, 4-й вид Планы этажей: План 1 этажа, План мансарды26. Дом у воды. Общая площадь: 206,5 м2

***
Фасады дома:1-й вид, 2-й вид, 3-й видПланы этажей: План фундамента, План 1 этажа План 2-й этажа
27. Дом у моря. Общая площадь: 180,7 м2.

***
Фасады дома: 1-й вид, 2-й вид, 3-й вид, 4-й вид Планы этажей: План 1 этажа 28. Домашний. Общая площадь: 171 м2
***
Планы этажей: План 1 этажа, План 2 этажа
29. Английский дом.
***
Фасады дома: 1-й вид, 2-й вид, 3-й вид
31. Общая площадь:
***
Фасады дома: 32. Общая площадь:
***
Фасады дома: 1-й вид 2-й вид 3-й вид 4-й вид Планы этажей: 33. Общая площадь:
***
Фасады дома: Планы этажей:План подвала, план 1-го этажа, план 2-го этажа. 34. Охотничий дом. Общая площадь:
***
Фасады дома:вид 1; 2 вид; 3 вид. Планы этажей: 35. Общая площадь:
***
Фасады дома: Планы этажей: 36. Общая площадь:
***
Фасады дома: Планы этажей: 37. Общая площадь:
***
Фасады дома: Планы этажей: 38. Общая площадь:
***
Фасады дома: Планы этажей:stroy-smy.ru
