Угловой гардероб своими руками – чертежи, схемы и фото функциональных систем
Угловой шкаф своими руками, подробная инструкция с описанием

Современная мебель обладает высокой стоимостью, а для ее изготовления могут использоваться различные материалы, к тому же модели различаются по размерам, форме, внешнему виду и наполнению. Прекрасным решением для гостиной, спальни или другой комнаты будет угловой шкаф, не занимающий много места, отличающийся высокой вместительностью и интересным внешним видом. Создается угловой шкаф своими руками просто, если тщательно разобраться в этом процессе.
Инструменты и материалы
Непосредственно перед процессом создания конструкции следует определиться с размерами, материалами и инструментами, которые будут использоваться, а также продумать предназначение шкафа. Первоначально формируется проект, для чего создаются чертежи, по которым подготавливаются детали, прочно соединяемые друг с другом. Принимается решение, будет ли угловой шкаф треугольным или Г образным, трапециевидным или пятистенным.
Если вы решили самостоятельно собрать мебель, следует подготовиться к этому процессу и приобрести необходимые материалы и инструменты:
- непосредственный материал для создания шкафа, причем актуальным считается формирование конструкции из гипсокартона, который отличается доступной ценой, легкостью применения, экологической чистотой и долговечностью;
- профили, из которых будет формироваться каркас;
- подвесы;
- саморезы и клей;
- зеркала, если планируется оформлять ими шкаф;
- фурнитура, обеспечивающая легкость использования конструкции;
- ролики и направляющие, если делаются двери купе;
- материал обшивки для шкафа;
- дрель, шуруповерт, болгарка, острый нож для разрезания гипсокартона, уровень и другие мелкие инструменты.
Работа с гипсокартоном считается настолько простой, что обычно не требуется наличия специфических инструментов.
Инструменты

Листы гипсокартона
Подготовка деталей
Шкаф из гипсокартона своими руками делается только после предварительного создания схемы. Первоначально следует определиться с размерами конструкции, для чего учитываются габариты угла, куда планируется устанавливать мебель.
Надо решить, из каких деталей будет состоять угловой шкаф. Обычно делается один крупный отдел для вещей, которые располагаются на плечиках. Другой отдел является узким и разделенным на несколько небольших отсеков, для разделения которых используются полки. Нередко дополнительно с какой-либо стороны формируется открытый пенал. Стандартно размеры таких элементов составляют:
- высота самого шкафа может варьироваться от 180 до 220 см;
- ширина двух разных элементов углового шкафа может быть равна от 45 до 80 см;
- между полками желательно оставлять расстояние в пределах от 30 до 35 см;
- ящики и полки обычно обладают шириной от 40 до 45 см;
- ящики желательно делать глубиной от 25 до 30 см.
Оптимальным считается наличие сверху двух больших отделов, называемых антресолями, которые используются для хранения крупных и редко используемых изделий и вещей, а внизу организуется узкий отсек для обуви.
После определения размеров и отсеков конструкции нужно самому выполнить последовательные действия:
- определить угол, где будет располагаться шкаф;
- в зависимости от его параметров определить точные габариты шкафа;
- создать эскиз, что позволит рассчитать основание, крышку и цоколь;
- разделить все внутренне пространство шкафа отдельными секциями, для чего используются вертикальные и горизонтальные перегородки;
- произвести расчет дверей конструкции;
- рассчитать нужное количество торцов, закрываемых торцевой лентой.
На основании полученной схемы можно подготавливать основные части шкафа. Для этого в соответствии с эскизами делаются главные элементы каркаса. Металлические профили разрезаются болгаркой, а срезы зачищаются. Далее на основании заранее сделанных чертежей формируются части из гипсокартона, причем желательно для резки этого материала пользоваться тонким и острым ножом. Все элементы должны обладать одинаковой толщиной.

Материалы
Выбор места и разметка
С местом установки шкафа желательно определиться заранее, так как сама конструкция делается под имеющиеся параметры данного угла. Обычно устанавливается он в гостиной, но может предназначаться для спальни или детской комнаты. Наполнение и размеры зависят от количества вещей, которые будут храниться в мебели.
После определения места установки начинается нанесение разметки, которая позволяет определить, где будут находиться основные элементы шкафа. Так как будет создаваться изделие из гипсокартона, то придется все элементы каркаса прикреплять к стене, потому намечаются участки крепления.

Подготовка поверхности и разметка
Монтаж каркаса
Как сделать угловой шкаф своими руками с использованием гипсокартона? Для этого первоначально надо заняться установкой и креплением каркаса. Весь процесс делится на этапы:
- если планируется наличие в шкафу светильников, то отмечаются участки, где они будут закрепляться, после чего к этому месту подводится электрическая проводка;
- к направляющему профилю приклеивается амортизирующая изоляция из резины, причем важно располагать ее с той части, которая будет уложена далее на основание мебели;
- по линиям ранее нанесенной разметки фиксируются все направляющие, причем для их надежного закрепления применяются дюбель гвозди;
- далее на стене фиксируются прямые подвесы, а для этого надо постоянно ориентироваться на разметку;
- крепеж для закрепления подвесов зависит от того, какой материал применялся для создания основания, так как, если это бетон или кирпич, то желательно пользоваться дюбель гвоздями, а если основание деревянное, газобетонное или керамзитобетонное, то подходят крепкие саморезы или вовсе гвозди, а также допускается применять особые дюбели, оснащенные распорными усами и насечками;
- в закрепленные направляющие вставляются стойки, располагающиеся по вертикали, после чего они закрепляются подвесами, а для этого желательно пользоваться короткими саморезами, оснащенными пресс шайбой;
- между стоечными профилями устанавливаются прочные и надежные ребра жесткости, причем чем больше будет использоваться этих элементов, тем более устойчивая будет получена конструкция, причем особенно много их должно быть в участках, где планируется хранить тяжелые предметы.
Допускается для создания каркаса применять не только металлические профили, но и деревянные рейки, но такое решение используется крайне редко, так как древесина может впитывать влагу или усыхать, поэтому будут меняться габариты шкафа, что приведет к появлению перекосов или повышенной хрупкости.

Оклеивание профилей демпферной лентой

Металлический профиль легко резать

Готовый каркас
Обшивка каркаса
Угловой шкаф из гипсокартона создается достаточно просто, так как после формирования качественного, прочного и устойчивого каркаса можно приступать к его обшивке элементами из гипсокартона. Для этого выполняются этапы:
- делаются заготовки из гипсокартона, для чего в соответствии с чертежами нарезаются детали, причем пользоваться для этих целей рекомендуется ножовкой или электрическим лобзиком;
- желательно для создания шкафа выбирать прочный стеновой гипсокартон, толщина которого будет не меньше 1,25 см;
- все края обрабатываются кромочным рубанком;
- готовые элементы из гипсокартона вставляются в соответствующие участки каркаса, после чего они привинчиваются специальными саморезами для металла;
- окончательно закрепляются листы, для чего важно рассчитать количество саморезов так, чтобы между ними было расстояние в 20 см;
- все шляпки саморезов утапливаются на 1 мм;
- в участках, где будут располагаться полки, устанавливаются мебельные уголки;
- монтируются штанги и светильники;
- по имеющимся размерам начинается создание дверей, которые могут быть заказаны в готовом виде.
После выполненных работ будет получен полноценный шкаф, но для того, чтобы он имел привлекательный внешний вид, следует позаботиться о применении отделочных материалов.

Разметка гипсокартона

Разрез гипсокартона

Крепление панелей гипсокартона

Вкручивание шурупов шуруповертом

Готовая стена
Отделка
Отделка предполагает выполнение этапов:
- все поверхности снаружи и внутри покрываются качественной грунтовкой;
- стыки заполняются гипсовой штукатуркой;
- далее приклеивается серпянка;
- на углах монтируются малярные уголки;
- наносится шпаклевка, которая шлифуется после застывания;
- желательно сделать два слоя шпаклевки;
- далее вновь наносится грунтовка;
- после применяются окончательные отделочные материалы, которые могут быть представлены декоративными панелями, плиткой или иными материалами.
Желательно воспользоваться во время отделки зеркалом для повышения комфортности использования конструкции.

Перфорированный уголок для обработки углов

Отделка шкафа
Чертежи и схемы
Самым важным во время создания углового шкафа является построение правильной и точной схемы и чертежей. Если в них будут иметься какие-либо ошибки, то построить полноценную, долговечную и устойчивую конструкцию не получится.
Чертежи и схемы могут быть получены разными способами:
- самостоятельное создание, причем выполнить процесс можно вручную или с использованием специальных программ для компьютера;
- заказ у специалистов, что потребует значительных финансовых вложений;
- поиск готовых чертежей, но использовать их стоит только в том случае, если вы уверены, что они правильны и точны.
Угловые шкафы считаются прекрасным решением для разных помещений. Они могут создаваться из разных материалов, но наиболее оптимальным считается использование гипсокартона, которым обшивается каркас из металлических профилей. Такой шкаф не потребует вложения существенных средств, а также прост в создании. Во время самостоятельной работы учитываются собственные пожелания и имеющиеся габариты выбранного угла, поэтому конструкция будет идеально подходить для места установки.

Формы угловых шкафов




Видео
mblx.ru
Как сделать угловой шкаф своими руками на примере готового проекта чертежа
Гардеробные шкафы угловой конструкции чрезвычайно эргономичны: за счет скошенной формы они не производят впечатление громоздких и, одновременно с этим, чрезвычайно вместительны. Рассмотрим на примерах, как сделать угловой шкаф своими руками – какие можно реализовать модели, какими могут быть типовые размеры, наполнение и как рассчитать детали на примере готовых чертежей и схем.
Конструкции, чертежи и фото угловых шкафов
Условно угловые шкафы можно разделить на две категории: скошенной трапециевидной и строго прямоугольной формы, с диагонально и перпендикулярно расположенными фасадами. И в том, и другом случае шкаф может быть:
- Симметричным и асимметричным.
- С отдельными антресолями и без антресолей.
- Комбинированного наполнения и выделенного исключительно под полки или плечики.
- С внутренними или наружными ящиками.
- С разным числом фасадов (однодверные, двухдверные, трехдверные).
- С исполнением в виде витрин, открытых стеллажей и рассчитанные под хранение одежды.

Будем рассматривать только схемы гардеробных (плательных) угловых шкафов своими руками.
Угловые шкафы с перпендикулярными створками, чаще всего, представляют приставную композицию из двух обычных шкафов слегка измененной конструкции. В редких случаях могут быть литой конструкции, особенно если фасадная часть раздвижная, «гармошкой».
Преимуществом угловых шкафов трапециевидной формы является большая вместительность и функциональные возможности. Например, ширину наружных боковин можно уменьшить до минимума и это не помешает размещать плечики с объемной одеждой – ведь к центру внутренняя часть расширяется.
Угловой шкаф своими руками: определяемся с размерами
Прежде чем задаваться вопросом, как сделать угловой шкаф своими руками, нужно определиться с габаритными размерами. Эргономичные формы привлекают многих, но не всегда удается осуществить желаемое, если отведенное пространство для размещения слишком мало.
Самые малые размеры углового шкафа своими руками можно сопоставить типовым габаритам кухонного навесного модуля. Он занимает 600х600мм от угла. Чтобы фасад был достаточной ширины (400 мм минимум), глубина стоевых (боковин) задается не более 300мм. Естественно, при таких габаритах речи быть не может о размещении штанги под плечики. Только полки либо крючки под одежду.
Для углового плательного шкафа, с отделением под навесную одежду, расстояние от угла, по крайней мере, с одной стороны должно быть не менее 800мм. Тогда глубина стоевой может быть заложена как 450мм, что вполне хватит для плечиков с легкой одеждой (для «мужской» и верхней одежды требуется от 500мм). Схемы угловых шкафов своими руками примерно такие, в соотношении глубины стоевых и оставшегося места для фасада.
При несимметричных вариантах вполне можно реализовать задуманное с размерами от угла 850х650мм, 800х700мм и т.д.
Как сделать угловой шкаф своими руками на примере чертежа
Рассмотрим типовую симметричную модель, с габаритными размерами 2100х900х900мм. Чертеж углового шкафа своими руками будет выглядеть следующим образом.
Вдоль одной из сторон ширина корпуса допускает размещение полок, сделать их необходимо с учетом требуемого места для навески штанги – от 500мм минимум. В секцию с полками можно встроить ящики. Единственный нюанс, который в дальнейшем следует учесть – это размещение петель на фасад. Петля не должна «попасть» ни в ящик, ни в полку!
Высота шкафа допускает размещения двух штанг под одежду. Расстояния 900-1100 мм достаточно для коротких пиджаков, рубашек, а подол длинных платьев можно просто «перекидывать» через нижнюю штангу. Либо можно сделать полку сверху или снизу, под головные уборы или обувь.
Как рассчитать детали углового шкафа своими руками
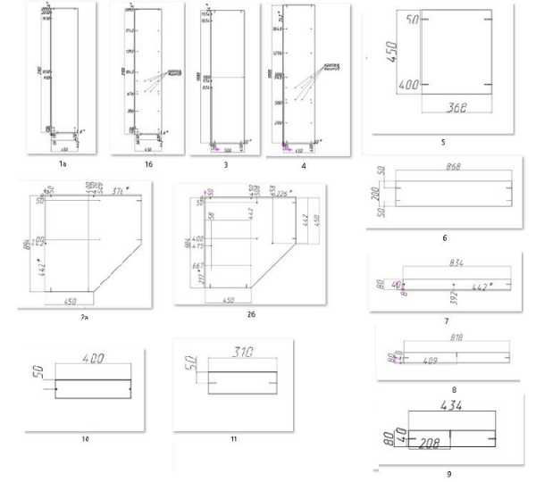
После того, как определились с размерами углового шкафа своими руками, внутренним наполнением, можно начинать рассчитывать детали. Самый простой вариант – в виде таблицы в офисной программе Excel.
- Все детали записываем в строгом соответствии с фактурой рисунка, сначала длина, потом ширина. Если вбить формулу в табличную форму по подсчету квадратуры каждой детали, то можно просуммировать и примерно прикинуть, в какой объем «выльется» шкаф.
- Одновременно обозначаем видимые стороны, которые нужно будет закатать кромкой единичками. Также формулы помогут предварительно подсчитать метраж торцевой ленты.
- Рекомендую выделять детали неправильной формы, чтобы не выпустить их из виду (например, как в приведенной таблице — желтым цветом). А также наглядно показывать, вдоль какой из сторон они будут закатываться кромкой.
- Как посчитать размер фасадов на угловой шкаф можно посмотреть здесь. Строго говоря, фасадная часть может быть выполнена из другого материала – например, МДФ или массива.
- Аналогичным методом считается деталировка ДВП.
Карты кроя углового шкафа своими руками
Расчетные размеры деталей из Excel переносятся в специальную программу раскроя. Детали, для которых непринципиально направление рисунка (например, ребра жесткости, цоколь, внутренние полки) можно вращать, чтобы минимизировать отходы. В нашем случае есть резон делать фасадную часть из другого материала – корпус углового шкафа своими руками экономично «ложится» на два листа.
Распил можно заказать в сторонней организации вместе с закаткой ПВХ. Обычно такие услуги предоставляют все фирмы, торгующие ЛДСП. В домашних условиях ПВХ закатать довольно трудоемко и аккуратно вряд ли получится. Придется довольствоваться меламиновой лентой, единственный плюс которой – дешевизна. По таблице видно, что понадобится 28,83 погонных метра. Но лучше брать с запасом, +10-15%.
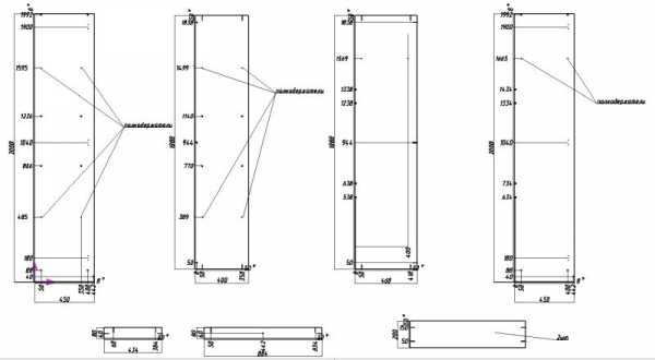
Как разметить детали шкафа под засверловку
Если правильно разметить и засверлить все детали на угловой шкаф своими руками, то в итоге он соберется очень просто, как конструктор. Удобней всего это делать в специальных мебельных программах, например, Базис Мебельщике.
Принципы простые:
- Мебель собирается на евровинты (конфирматы).
- Детали засверливаются в торец и с лицевой стороны.
- Расстояние от края детали лицевой стороны должно быть одинаковым. Например, 50 мм. Или по центру.
После того, как крепеж расставлен, нумеруем детали. Если есть детали одинакового размера, но с разным принципом крепления, используем дополнительную маркировку (а, б, и т.д.).
В Базис Мебельщике можно получить спецификации на засверловку в таком виде.
Но тут надо быть внимательным, четко представлять, где у детали углового шкафа своими руками «лицо», а где «изнанка», по закатанным кромкой сторонам. Программа этого нюанса не видит, расставляет крепеж слева направо. И в процессе засверловки могут попасться детали, которые нужно будет отзеркалить. В принципе, это не сложно. Все равно со спецификациями засверловки весь процесс пройдет гораздо быстрее.
Во сколько обойдется изготовление углового шкафа своими руками?
При правильном составлении чертежей углового шкафа своими руками, всех расчетных этапов риски ошибок, которые ведут к неизбежным дополнительным тратам, сводятся к нулю. Если делать любую мебель своими руками, то она всегда обходится дешевле. Собственно, ничего не мешает спрогнозировать расходы до начала всех работ. Узнайте все цены на материалы, фурнитуру и метизы в вашем городе, которые потребуются при изготовлении шкафа своими руками, и вбейте в простую экселевскую табличку.
Самые существенные затраты будут на закупку ЛДСП и крой. Мы брали типовую модель – от изменений в большую или меньшую сторону на 100-200мм расход материала существенно не поменяется. Также примерно уйдет 2-3 листа в зависимости от количества полок и фасадов (будут они заказываться отдельно или нет).
sdelay-mebel.ru
как сделать систему хранения в комнате своими руками
Каждый из нас хочет, чтобы доме всегда было уютно. Но из-за большого объемы и одежды обуви это становится практически невозможно – постоянно что-то лежит не на своем месте. Если в вашей спальне есть хотя бы небольшой свободный угол, то в нем можно сделать так называемую угловую гардеробную, причем своими руками. Как? Об этом очень подробно в нашей статье.

Мы рассмотрим:
- плюсы и минусы угловой гардеробной;
- виды;
- системы хранения одежды и обуви.
Плюсы и минусы угловой гардеробной
К плюсам угловой гардеробной относится:
- то, что у вас будет не будет беспорядка;
- то, что у вас появляется возможность задействовать неиспользуемое пространство;
- то, что она компактна, выручит владельцев однокомнатных квартир и студий;
- то, что она позволяет скрыть неприглядные коммуникации, стены и часть потолка с какими-то дефектами.
Но привести только плюсы угловой гардеробной было бы неправильным. Поэтому остановимся и на минусах. Ими является:
- то, что некоторые виды (о них будет рассказано ниже) подходят только для больших и средних по площади комнат;
- то, что ограничена зона для примерки;
- то, что нет хорошей звукоизоляции – если один человек будет утром одеваться, то второй может проснуться.
Виды
Есть несколько видов угловой гардеробной:
- Каркасная. Изготавливается на металлическом каркасе, который крепится к двум стенам комнаты. Из достоинств следует отметить невысокую стоимость расходников и возможность менять наполнение неограниченное число раз. Как правило, каркасная угловая гардеробная является открытой.
- Сетчатая. По факту, тоже самое, что и каркасная, только с тем отличием, что полки и ящики не деревянные или пластмассовые, а сетчатые. Достоинства – просторность и легкость. Сетчатая угловая гардеробная идеальна для интерьера в стиле лофт, с ней отлично смотрятся стеклянные двери и комбинированное (основное и дополнительное) освещение.
- Пенальная. Может создать ощущение громоздкости из-за обилия полок и ящиков. Достоинства – вместительность и удобный доступ к вещам. Пенальная угловая гардеробная больше всего подходит для интерьера в стиле хай-тек.
- В виде шкафа. Актуальна только для больших по площади помещений, не поместится в маленьких комнатах. Достоинства – надежность и возможность перестановки без повреждения стен. Гардеробная в виде шкафа сочетается с интерьером в классическом стиле.
Угловые гардеробные можно разделить на группы и по другому признаку – форме:
- Трапециевидная.




Перейдем к тому, как сделать угловую гардеробную этих форм своими руками.
Трапециевидная угловая гардеробная
Для этой конструкции необходима еще одна стена (около одной из стен угла). К ней монтируется простенок и устанавливается дверь. Угол у трапеции должен быть пологим для того чтобы была возможность разместить все системы хранения одежды и обуви.
Трапециевидная угловая гардеробная подходит для больших и средних по площади комнат. В просторных, но длинных и маленьких она будет смотреться тяжелой. В ней помещается вся одежда и обувь – женская, мужская и детская, повседневная, демисезонная и зимняя, аксессуары, а также полотенца, постельное белье и игрушки.
Г-образная угловая гардеробная
Эта конструкция делается из гипсокартона или другого подобного материала. Она может быть как открытой, так и закрытой. Первый вариант предпочтительнее, так как вы не будете испытывать неудобств при одевании и раздевании, сможете поставить рядом зеркало в пол и пуф или полукресло.
Г-образная угловая гардеробная не менее вместительная чем та, которая была приведена выше.
Пятистенная угловая гардеробная
Для этой конструкции потребуется не одна, а две дополнительные стены, из-за чего она будет немного выдаваться вперед. Эти две дополнительные стены нужны для того, чтобы хватило места для всех систем хранения одежды и обуви.
Полки и ящики располагают на четырех стенах, а зеркало вешают на внутренней стороне пятой стены – на той, на которой находится дверь. Пуф или полукресло и при необходимости небольшой столик ставят в центре.
Пятистенная угловая гардеробная – спасение для большой семьи, но только в том случае, если позволяет площадь.
Треугольная угловая гардеробная
Эта конструкция является самым оптимальным вариантом для однокомнатных квартир и студий. Обычный, самый простой простенок из гипсокартона, зеркальная дверь-купе и полки с ящиками – все, что необходимо.
Дверь-купе может быть не прямой, а полукруглой – так вы выиграете еще немного пространства для систем хранения одежды и обуви. Не беспокойтесь, что дверь-купе полукруглой формы быстро поломается. Как показывает практика, она ничем не отличается, это заблуждение.
Системы хранения одежды и обуви
Системы хранения одежды и обуви могут быть самыми разными, начиная от полок и ящиков и заканчивая металлическими штангами с вешалками, выдерживающими несколько десятков килограмм.

В любом случае учитывайте:
- Что для верхней одежды (курток, пуховиков и шуб) требуется не менее 150 см в высоту. В теплое время их следует убирать наверх.
- Что для повседневной одежды – не менее 100 см в высоту.
- Что для одежды, которую можно сложить стопками (джинсы, футболки и т.д.) – не менее 35 см в высоту, не менее 45 см в глубину и не менее 50 см в ширину.
- Что для нижнего белья и мелочевки отделения размещаются на высоте до 120 см от пола.
Обувь ставится внизу, на горизонтальных стеллажах.
Таким образом, воплотить в жизнь мечту о гардеробной более чем реально.
dizajnclub.ru
Как сделать угловой шкаф своими руками подробная инструкция
Собственники малогабаритных квартир сталкиваются с проблемой нехватки места. Хотя практически все углы в комнатах, на кухне и прихожей остаются пустыми.

А ведь если в углу сделать шкаф можно «убить сразу двух зайцев» — украсить интерьер и решить проблему лишних вещей. Давайте подробней рассмотрим вопрос о том как его смонтировать.
Угловой шкаф своими руками
Угловые шкафы могут быть нескольких конфигураций:
- треугольные;
- в виде буквы «Г»;
- в виде трапеции;
- 5-ти стенными.
Классический – 5 стенный, отлично вписывается между мебелью. Теперь переходим к процессу изготовления.
Работу начинаем с подготовки:
- Составляем схему;
- Определяем необходимое количество материала;
- Подготавливаем материал и инструмент.

Необходимый материал:
- ДСП, МДФ или доски;
- дюбеля;
- клей;
- саморезы;
- зеркало;
- мебельная фурнитура;
- ролики – выбирать надо качественные, иначе быстро выйдут из строя;
- профиль –желательно стальной.
Инструмент для монтажа:
- перфоратор, дрель;
- рулетка;
- строительный уровень;
- молоток;
- ножовка или электро лобзик.
Раскроить детали лучше на заказ в мастерской или магазине, но если Вы не боитесь трудностей можно сделать и самостоятельно.
Видео: Угловой шкаф купе.
Выбираем размеры
Размер напрямую зависит от площади помещения где он будет находиться. При этом есть несколько рекомендаций, которые желательно соблюдать:
- отдел для верхней одежды не должен быть менее 80 см;
- минимальная высота для верхней одежды 1,4 м;
- ригель должен располагаться на такой высоте, что бы до него легко можно было достать, для этого нужно учесть рост всех членов семьи.

Сборка
К потолку, стенам и полу, в тех местах где должны находиться стенки крепится металлический уголок. Чтобы не было перекоса дверей проверяем все уровнем. Из заготовок собираем каркас, при ответственном подходе к раскрою сборка пройдет без проблем. На дверь закрепляются ролики.
Монтируются направляющие и устанавливается дверь. После этого можно закрепить фурнитуру и обустроить внутреннее пространство шкафа:
- монтируются перегородки;
- закрепляются вешалки, полочки, зеркала;
- прикручиваем дверные ручки.
Вот и все угловой шкаф –удобный и функциональный готов вам служить верой и правдой.

Угловой шкаф на кухню
Вопрос с нехваткой места в кухне стоит на первом месте. Чтобы получить шкаф высокого качества, сборку желательно производить по следующим рекомендациям:
- раскрой деталей лучше заказать специалистам, это поможет соблюсти геометрию;
- перед заказом необходимо сделать чертеж;
- производить замеры необходимо после выравнивания пола, потолка и стен;
- используйте только качественную фурнитуру, она обойдется дороже, но это того стоит.
В конструктивном исполнении углового шкафа может быть два вида соединения:
- под углом 90 гр., под ним можно установить обычную столешницу;
- под углом 45 гр., можно установить угловую мойку.
Чем конструкция с соединением под углом 90 градусов отличается от стандартной. Модель с таким соединением имеет такие конструктивные особенности как:
- дополнительные вставки, которые стягивают ящики между собой и являются фасадом;
- уступ в верхней и нижней части.
Угловой шкаф, соединяемый под углом 45 гр. Такая конструкция имеет также две особенности:
- Габариты – если нижний будет шириной 60 см, тогда навесной – 90 на 90 см.
- Расположение деталей. В стандартной конструкции боковые части располагаются между верхним и нижним, а тут наоборот – верхний и нижний между боковыми. И по другому установить фасад не получится. Под таким угловым шкафом и столешница должна быть такой же формы.

Из гипсокартона
Монтаж углового шкафа из гипсокартона начинается с чертежа:
- сначала надо определить место, где он будет установлен;
- затем делаем схему, на которую наносим габариты и размеры деталей, даже самых мелких;
- определяем количество выдвижных ящичков, подвесных корзин, дверей и размечаем где они будут установлены;
- указываем толщину гипсокартона, без этого не возможно произвести точный расчет.
Устройство каркаса
На пол, стены и потолок наносим разметку будущего шкафа. Если планируется установка светильников, наносим разметку для их крепления. На направляющий профиль закрепляем резиновую изоляцию с той стороны, которая ляжет на основание. По линиям разметки крепим направляющие с помощью дюбель гвоздей.
Так же крепим по нанесенной разметке и подвесы. В зависимости от основания выбирается и крепеж. Например к кирпичной или бетонной стене, крепят дюбель-гвоздями, для деревянной стены подойдут гвозди или саморезы. От выбора крепежа зависит прочность всей конструкции.
Затем в направляющие вставляются вертикальные стойки и фиксируются подвесами с помощью саморезов с пресс-шайбой. Теперь можно смонтировать ребра жесткости между вертикальными стойками. Стоит заметить, чем больше будет таких ребер, тем устойчивей будет конструкция.
Самыми укрепленными должны быть места , где устанавливаются ящички и полки.
Металлический профиль для каркаса можно заменить на деревянные рейки, главное, чтобы древесина была сухая, сырое дерево даст усадку и произойдет деформация.

Обшиваем каркас
Нарезать заготовки из гипсокартона можно электро лобзиком или ножовкой. Края обработать специальным кромочным рубанком.
Расставляем элементы в отведенных для них местах и прихватываем саморезами. Теперь можно окончательно закрепить листы, саморезы завинчиваются через каждые 20 см. Шляпки саморезов утопляем на 1 мм в лист.
В местах, где будут полочки крепим мебельные уголки и укладываем полки, которые можно сделать из двух склеенных листов гипсокартона. После этого монтируем штанги, устанавливаем светильники.
И вот только после этого можно делать точные замеры и заказать двери. Если дверь заказать раньше, то размеры по факту могут не совпасть с первоначальными.
Отделка
После того как конструкция смонтирована, ее надо облагородить. Для этого нужно:
- заделать все стыки шпаклевкой;
- загрунтовать наружные и внутренние поверхности;
- наклеить ленту серпянку;
- на углы установить малярные уголки;
- зашпаклевать, когда шпаклевка высохнет зашлифовать, после чего еще раз зашпаклевать;
- опять прогрунтовать, и после того, как грунтовка высохнет, провести финишную отделку.
Финишная отделка делается на Ваш вкус, это может быть и покраски, и отделка зеркалами, в ванной можно облицовывать плиткой.
Посмотрите видео: Как собрать шкаф-купе своими руками. Видеоинструкция по установке.
alina-sharapova.ru
Как сделать угловой шкаф своими руками
Чертеж углового шкафа поможет вам собрать его самостоятельно.
Если площадь помещения небольшая, то каждый шкаф занимает много пространства. Есть выход из положения, надо вместо нескольких громоздких шкафов поставить один угловой.
Он очень вместительный, а места займет немного. Узнать о том, как сделать угловой шкаф своими руками, можно из данной статьи.
Вконтакте
Одноклассники
Мой мир
Разновидности угловых шкафов
Прежде чем приступить к работе, надо выяснить какой формы будет будущий шкаф. Он может быть:
- трапециевидным;
- в виде буквы «Г»;
- треугольным;
- 5-стенным.
Каждый вариант по-своему интересен, при выборе надо учесть место, где он будет устраиваться. Обязательно перед работой надо сделать набросок или рисунок планируемого шкафа, сделать подробные чертежи.
При выполнении расчетов необходимо внимательно вымерять размеры всех стенок, полок. О том, как сделать стандартный небольшой шкаф с размерами 900 на 900 мм, высотой от пола до потолка 2.500 мм, будет рассмотрено более подробно ниже. Будут представлены расчеты материалов, подробная схема сборки.
Процесс изготовления
Любая строительная работа начинается с подготовительного этапа.
- Составляется схема углового шкафа.

- Надо высчитать, сколько и какого материала потребуется для работы. Чтобы расчет был более точным, также сначала составляется схема сборки.

Далее согласно схеме производится расчет материалов. Для нашего шкафа понадобится:

- Приготовить необходимые инструменты и материалы.
Далее надо приобрести или подготовить дополнительные материалы:
- саморезы;
- клей;
- дюбеля;
- зеркала;
- фурнитура;
- ролики, тут экономить не стоит, лучше взять качественные, чтобы прослужили долго;
- профиль, предпочтенье отдать стальному.
Возможно, Вас заинтересует статья о том, как обновить старый шкаф.
А о том, как сделать шкаф-купе из гипсокартона, Вы можете прочитать здесь.
[rek_custom1]
Сразу проверить набор инструментов, чтобы потом не было простоя в работе. Нужны будут:
Чтобы работа была сделана аккуратней и быстрей, то лучше раскрой досок доверить мастерам, сделать эту работу в мастерской. Самим можно сделать сборку.
Уточнение размеров
Размеры шкафа надо определить по площади помещения, где планируется его разместить и обязательно надо учитывать общие стандарты.
- Ширина отсека, где хранится верхняя одежда, не может меньше 0,8 м.
- Высота отсека для хранения верхней одежды не может быть менее 1,4 м.
Заранее намеченные схемы помогут не ошибиться размерами.
Сборка
Сборка обычно производится одинаково независимо от типа шкафа. Последовательность следующая:
- сначала монтируются стальные уголки там, где потом надо будет прикреплять боковые стенки к полу и потолку;
- из готовых деталей собрать каркас;
- прикрепить ролики на дверь;
- смонтировать направляющие;
- установить дверки.
Полезно знать: в работе по сборке углового шкафа нужно обязательно пользоваться уровнем, иначе возможно допустить перекосы у дверей.
Когда основная работа сделана, надо собрать шкаф внутри. Установить кронштейны, расставить по местам все полочки. После этого останется установить фурнитуру.
Работа проводится в следующей последовательности:
- установить перегородки;
- закрепить полки, вешалки, зеркала;
- прикрутить ручки.
По этой же схеме можно собрать самому шкаф и из гипсокартона. Принцип работы будет немного отличаться.
Угловой шкаф из гипсокартона

Каркас шкафа из гипсокартона
Для изготовления шкафа из гипсокартона сначала понадобится тщательно поработать над чертежами. От того, как они сделаны, будет зависеть качество и быстрота работы. Чертежи выполняются следующим образом:
- Надо определиться с месторасположением будущего шкафа.
- Сделать эскиз, набросать подробную схему, там же указать размеры все полок, кронштейнов, деталей.
- Весь расчет вести с указанием толщины материала.
Обратите внимание: при выполнении чертежа необходимо учитывать все до мелочей, малейшая нестыковка, и будут сложности при сборке.
Сборка шкафа из гипсокартона начинается с установки каркаса. Сначала делается разметка на полу и потолке. Для удобства надо использовать резиновую амортизирующую ленту.
Далее на нее при помощи дюбелей-гвоздей крепятся металлические профили. Для прочности необходимо установить ребра жесткости. Монтируются они между профилями стоечными.
Обшивка
Когда каркас подготовлен, можно приступать к обшивке.
- Заранее нарезанные заготовки расставляются в намеченные места и привинчиваются саморезами.
- Листы крепятся окончательно, саморезы располагать на расстоянии около 200 мм. Шляпки метизов должны быть утоплены на 1 мм.
- В местах, где будут крепиться полки, надо установить уголки. Далее на них укладываются сами полки.
Возьмите на заметку: заранее заказывать двери для шкафа не надо, часто случается, что после монтажных работ, размеры немного меняются.
Теперь осталось смонтировать светильники, штанги. Когда основной каркас готов, нужно еще раз все измерить и заказать двери.
Отделка
После подготовительной, черновой работы останется лишь немного шкаф приукрасить. Надо сделать следующее:
- прогрунтовать поверхность как изнутри, так и снаружи;
- тщательно заделать все стыки гипсовой штукатуркой;
- наклеить ленту серпирующую;
- на все углы установить малярные уголки;
- нанести тонким слоем шпатлевку, просушить, отшлифовать и еще раз повторно зашпаклевать;
- вновь все прогрунтовать, а после полного высыхания выполнить отделку. Это может быть покраска или отделка плиткой, или другими материалами. Тут хозяин выбирает по усмотрению.
Все шкаф готов и будет долго радовать всех домочадцев.
Как сделать угловой шкаф своими руками, смотрите в следующем видео:
Вконтакте
Google+
Мой мир
Видите неточности, неполную или неверную информацию? Знаете, как сделать статью лучше?
Хотите предложить для публикации фотографии по теме?
Пожалуйста, помогите нам сделать сайт лучше! Оставьте сообщение и свои контакты в комментариях — мы свяжемся с Вами и вместе сделаем публикацию лучше!
anatomia-remonta.ru
Угловой шкаф своими руками — Yvision.kz
В самостоятельном изготовлении мебели нет ничего сложного. Если грамотно составлены все спецификации и карты засверловки – со сборкой может справиться любой, умеющий держать в руках дрель, шуруповерт, отверку, утюг, карандаш и линейку.
Теперь подробней. Допустим, вам нужен угловой шкаф размерами 90см на 90см от угла и высотой под потолок. Скажем 2,5метра. Понятно, что лучше антресоль сделать съемной.

Угловой шкаф без антресоли, высотой 2100 мм и размерами от угла 900х900 рассмотрен здесь, на моем сайте «Мебель своими руками». Также приведены все чертежи, схемы сборки и засверловки, расчет деталировки для самостоятельного изготовления своими руками.
Люблю угловые шкафы. Снаружи смотрятся совершенно не громоздко, зато внутри очень вместительны и удобны. Внутрь уходит плательный отдел длиной 90см, сбоку полки под белье 40см – примерно столько же места будет в шифоньере длиной 1,3метра и глубиной 50см.

Здорово «экономится» и на фасадной части – ведь корпус шкафа обычно делают из обычного ламинированного ДСП, а дверцы стараются «облагородить» используя более красивые и дорогие материалы.
Но вернемся к конструктиву. Картинка шкафа есть, с размерами и внутренним наполнением определились, можно расписать деталировку. Самый простой способ – забить ее в такую табличку в экселе:

Детали располагаются строго по текстуре дерева – сначала длина, потом ширина, заодно и укажем стороны, которые нужно будет торцевать кромкой. Скошенные и радиусные детали торцуются после того, как приобретут нужную форму.
Теперь деталировку нужно перенести в программу для раскроя

Итого уходит почти 3 листа. Распил можно заказать самостоятельно. Практически все фирмы, продающие лдсп, предлагают услуги по распилу. В среднем лист лдсп стоит 6800-9500тг, распил 600-1000тг за лист. Так же можно сразу заказать и закатку видимых торцов в шкафу – по экселевской табличке видно, что кромки уйдет метров 15-20 с запасом (стоимость 12-20тг за метр меламиновой – ее можно наклеить самостоятельно, ПВХ кромка подороже, вместе с работой от 100тг за метр). Скошенные детали закатывать придется самому – по старинке утюгом меламиновой кромкой. Меламиновая кромка идет уже с клеем, края срезаются ножом (удобно сапожным) и зашлифовываются наждачной бумагой. Фасадную часть можно заказать отдельно скажем с МДФ или акрила (стоимость от 7500тг за кв.м.) – либо добавить в раскрой получится шкаф эконом-класса.
Теперь покажу, в каком виде делают карты для засверловки. Если правильно все разметить и засверлить, изделие соберется как конструктор.

Перед началом разметки нужно отметить для себя лицевые стороны деталей (т.е. с какой стороны нужно будет зинковать под шляпку конформата (евровинта))
Разметка для вертикальных деталей шкафа слева направо:

Разметка для вертикальных деталей антресоли слева направо:

Разметка для горизонтальных деталей:

Ну и на дверях отверстия под петли обычно делают на расстоянии 100мм от края. Если дверь больше, чем 1м в длину, то по центру ставят дополнительную петлю. Важно отследить в конструкции изделия установку петель – чтобы она не «попала», скажем, в полку.
Итого угловой шкаф собственного изготовления обойдется вам примерно в следующую сумму:

Понятно, что угловой шкаф при этом может быть и не стандартно-симметричным, а длиннее/короче, шире/уже по любой из сторон, расход материала при этом мало изменится – все те же 2,5-3 листа.
Если Вам требуются услуги по проектированию и разработке мебели – обращайтесь, всегда рада помочь. В следующем посте постараюсь сделать небольшой обзор по материалам, используемых в производстве мебели в Казахстане, используя фото с выставки, которая проходила с 12-15 июня в этом году в Алмате.
yvision.kz
Создание удобного и многофункционального гардероба своими руками
Гардероб – это нужный и удобный вид мебели, позволяющий хранить все вещи в доме. Он создан для защиты вещей от пыли, также способствует порядку в доме, аккуратному и бережному хранению одежды. Конструкция гардероба по принципу проста – он состоит из полок, перекладины для вешалок, выдвижных ящиков. Если помещение маленькое, то гардеробом служит небольшой шкаф, вмещающий в себя всю необходимую одежду и обувь.

Сегодня стало распространенным строить отдельные гардеробные комнаты своими руками. Они удобны и вмещают много одежды, но для них требуется отдельное помещение: кладовая или ненужная комната.
Виды гардеробных шкафов
Стандартный гардеробный шкаф – купе. Самый распространенный и удобный вариант. Он не требует много места, но зато вместителен. Обычно делится на две части: одна состоит из полок, вторая – из штанги для вешалок, и полки наверху. Внутри можно менять структуру своими руками: добавлять выдвижные ящики, полки, устанавливать корзины для нижнего белья.
Если в комнате имеется небольшой закуточек, то в нем можно установить встраиваемый гардероб с

Гардероб-купе (схема)
дверьми купе. Двери купе экономят пространство при открывании, в этом стиль «купе» предпочтительнее. Соорудить такой вид мебели можно и своими руками. Для этого нужно определиться с видом материала для гардероба и внутренней структурой. Необходимо составить предварительный точный чертеж. Купить все необходимое можно в строительном магазине.
Если материл покупается целым куском, то разрезать аккуратно на детали нужных размеров его можно в мебельной мастерской. Так шкаф обойдется дешевле. И отходного материала можно будет создать дополнительные полочки.
Создаем гардероб – купе своими руками
Для сборки такого гардероба по рисунку нам понадобятся:
- Листы ДСП или ЛДСП, гипсокартон.
- Инструменты: карандаш, рулетка, дрель, шурупы, саморезы, шуруповерт, отвертка, крепежная фурнитура.
Ход работы:
- Собираем по чертежу поочередно детали. В намеченных местах сверлим отверстия для соединений.
- Соединяем боковые листы с верхним и нижним листами.
- Заднюю часть обычно закрывают фанерой или гипсокартоном.
- Все элементы собираются, скрепляются.
- На боковых внутренних листах, уже помеченных карандашом, устанавливаются крепежные элементы для полок и штанги.
- Боковые угловые места листов закрывают кромочной лентой

Гардеробный шкаф (схема)
или ПВХ – пленкой, чтобы края не царапались и выглядели эстетично.
- На края верхних и нижних частей гардероба устанавливаем рельсы.
- Двери у нас должны быть уже готовы с механизмом вверху и внизу.
- Вставляем полки и штангу на свои места, крепим тщательно.
- Вставляем и регулируем двери – купе.
- Важно все проверить, чтобы шкаф не качался, полки были крепко зафиксированы, и дверь легко, бесшумно ездила.
- Гардероб готов к эксплуатации.
По такой схеме можно создать гардеробную любой модели из тех же материалов и инструментов. Главное — составить точный чертеж.
Снаружи шкафа можно также заранее продумать, и изготовить своими руками полки. Они часто используются для книг, рамок для фотографий и других сувениров. Еще внутри шкафа можно сразу продумать и установить выдвижные ящики для белья.
Угловой шкаф — гардеробная

Угловой гардеробный шкаф (схема)
Такой тип шкафчика для одежды удобен тем, что он занимает мало места, находясь в углу. Места для одежды в нем меньше, чем в варианте – купе в 2–3 раза. Нужно продумать и установить гардеробный вместительный шкаф угловой с обрезанным передним углом, то есть уже не будет целого треугольника. Тогда места в шкафу сразу станет больше, и пространство визуально расширится. А если на двери еще установить зеркало, то этот шкаф становится беспроигрышным вариантом для маленькой комнаты.
Этот угловой вариант гардероба содержит в себе: полки, штангу и верхнюю полку для особых вещей.
Гардероб в стиле «пенал»
Этот вариант бесподобен тем, что вместится в любое маленькое пространство. Имеет прямоугольную форму. Дверцы его буквально «выезжают», а не открываются – это в одном

Шкаф-пенал (схема)
варианте. В другом – это простой маленький шкафчик, имеющий 2–3 полки, короткую штангу и узкую стандартную дверцу. Внутри можно установить ящики. Такой вид шкафчика подойдет для холостяка, живущего в однокомнатной квартире.
Угловые функциональные гардеробные шкафы, раздвижные – купе, с простыми дверцами – все эти шкафы многофункциональны и полезны по-своему. Главное, чтобы конструкция имела правильное расположение и удобную внутреннюю структуру.
Если у вас в помещение позволяет пространство, то вы можете решиться на отдельную комнату для гардеробной. Такая комната вместит в себя много одежды, обуви, сумок, аксессуаров. Часть каркасного основания гардеробной делается из гипсокартона своими руками. Гипсокартон — хрупкий материал, но прекрасно подходит для отделки. Гардеробная из качественного гипсокартона своими руками делается по специальным чертежам, здесь учитывается каждая мелочь. Точность – принцип работы с этим материалом.
Вместительная гардеробная – отдельная комната
Просторные прямоугольные, угловые, полукруглые гардеробные устанавливают обычно в кладовых шкафах, или маленьких закуточках. Но оформить гардеробную такого типа можно так, что она впишется в любой интерьер и станет вашим любимым местом. Эта комната в основном состоит из полок, штанг, корзинок для нижнего белья, шкафчиков и ящиков.
Такая конструкция устанавливается по всему периметру комнаты. Также можно установить ее в углу, и огородить стенкой и дверьми, для незаметности – если позволяет комната. Закрыть гардеробную комнату можно раздвижной системой дверей. Двери можно по дизайну дополнить декоративными элементами из гипсокартона, но нельзя переусердствовать, так как дверь может искривиться под тяжестью материала.
Гардеробную такой модели можно создать из ДСП, ЛДСП, гипсокартона, дерева. Главное – произвести точные расчеты и замеры. Готовые доски можно отдать на распил по размерам в мастерскую. Готовые шесты, полки, ящики собираются потом по чертежу в нужную конструкцию.
Любую конструкцию гардероба или готовую комнату можно сделать своими руками. Так вы сэкономите деньги, конечно по времени – будет дольше, но зато вас будет переполнять гордость, что вы сделали такую полезную вещи собственноручно. Можно дополнить многофункциональную кладовую декоративными элементами из гипсокартона, и тогда она станет несравнимой и уникальной. К тому же сегодня существует столько программ, которые помогут вам сделать правильные расчеты и подобрать нужную модель шкафа.
Поделись статьей:
Оцените статью:
mebelza.ru
