Π£ΠΏΠ»ΠΎΡΠ½ΠΈΡΠ΅Π»Ρ veka β ΠΠΈΠ΄Ρ ΡΠΏΠ»ΠΎΡΠ½ΠΈΡΠ΅Π»Π΅ΠΉ VEKA (Π²Π΅ΠΊΠ°) Π΄Π»Ρ ΠΎΠΊΠΎΠ½ ΠΈ Π΄Π²Π΅ΡΠ΅ΠΉ
ΠΠ°ΠΌΠ΅Π½Π° ΡΠΏΠ»ΠΎΡΠ½ΠΈΡΠ΅Π»Ρ Π΄Π»Ρ ΠΎΠΊΠΎΠ½ Veka (ΠΠ΅ΠΊΠΎ)
Π£ΠΏΠ»ΠΎΡΠ½ΠΈΡΠ΅Π»Ρ ΡΠ²Π»ΡΠ΅ΡΡΡ ΠΎΠ΄Π½ΠΎΠΉ ΠΈΠ· Π³Π»Π°Π²Π½ΡΡ ΡΠΎΡΡΠ°Π²Π»ΡΡΡΠΈΡ ΠΎΠΊΠ½Π°.
ΠΠΎΠΌΠΏΠ°Π½ΠΈΡ «ΠΠΎΠΌΠΎΡΡ ΠΎΠΊΠ½Π°ΠΌ» ΠΏΡΠΎΠ²ΠΎΠ΄ΠΈΡ ΡΠ΅ΠΌΠΎΠ½Ρ ΠΎΠΊΠΎΠ½ VEKA, ΡΠ΅Π³ΡΠ»ΠΈΡΠΎΠ²ΠΊΡ ΡΡΡΠ½ΠΈΡΡΡΡ, ΠΌΠ΅Π½ΡΠ΅ΠΌ ΡΠΏΠ»ΠΎΡΠ½ΠΈΡΠ΅Π»Ρ ΠΠΠΠ (VEKA). Π Π°Π±ΠΎΡΠ°Π΅ΠΌ Π² ΠΠΎΡΠΊΠ²Π΅ ΠΈ ΠΠΎΡΠΊΠΎΠ²ΡΠΊΠΎΠΉ ΠΎΠ±Π»Π°ΡΡΠΈ.Β Π§ΠΈΡΡΠΎΡΠ°, ΠΏΡΠΎΡΠ΅ΡΡΠΈΠΎΠ½Π°Π»ΠΈΠ·ΠΌ, ΠΎΡΠ²Π΅ΡΡΡΠ²Π΅Π½Π½ΠΎΡΡΡ ΠΈ Π³Π°ΡΠ°Π½ΡΠΈΡ Π½Π° Π²ΡΠ΅ ΡΠ°Π±ΠΎΡΡ β 365 Π΄Π½Π΅ΠΉ.
ΠΠ»Π°Π³ΠΎΠ΄Π°ΡΡ ΡΠΏΠ»ΠΎΡΠ½ΠΈΡΠ΅Π»Ρ ΠΎΠΊΠ½Π° Π½Π΅ ΠΏΡΠΎΠΏΡΡΠΊΠ°ΡΡ Ρ ΠΎΠ»ΠΎΠ΄, ΠΏΡΠ»Ρ, ΡΡΠΌ Π² Π΄ΠΎΠΌΠ° ΠΈ ΠΊΠ²Π°ΡΡΠΈΡΡ. ΠΠΎ ΡΡΠΎ Π΅ΡΠ΅ Π½Π΅ Π²ΡΠ΅, ΠΏΠΎΠΌΠ½ΠΈΡΠ΅, ΡΡΠ΅ΠΏΠ»ΠΈΡΠ΅Π»Π΅ΠΉ ΠΌΠ½ΠΎΠ³ΠΎ, Π° ΠΏΡΠΈΠ½ΡΠΈΠΏ Ρ Π½ΠΈΡ ΠΎΠ΄ΠΈΠ½. Π£ ΠΊΠ°ΠΆΠ΄ΠΎΠ³ΠΎ ΡΠΏΠ»ΠΎΡΠ½ΠΈΡΠ΅Π»Ρ ΡΠ²ΠΎΡ ΠΌΠ°ΡΠΊΠ°, Π½Π°Π·Π²Π°Π½ΠΈΠ΅ ΠΈ ΡΠΎΠΎΡΠ²Π΅ΡΡΡΠ²Π΅Π½Π½ΠΎ ΡΠ΅Π½Π°. ΠΠ΅ΠΊΠΎΡΠΎΡΡΠ΅ ΠΈ Π²ΠΎΠ²ΡΠ΅ Π½Π΅ ΡΠ°Π±ΠΎΡΠ°ΡΡ, ΠΊΠ°ΠΊ Π½ΡΠΆΠ½ΠΎ, Π° Π΄ΡΡΠ³ΠΈΠ΅, Π½Π°ΠΎΠ±ΠΎΡΠΎΡ, ΡΠΎΡ ΡΠ°Π½ΡΡΡ ΡΠ΅ΠΏΠ»ΠΎ Π½Π°ΠΈΠ»ΡΡΡΠΈΠΌ ΠΎΠ±ΡΠ°Π·ΠΎΠΌ.
ΠΠ°ΠΊ ΠΆΠ΅ ΠΏΠΎΠ΄ΠΎΠ±ΡΠ°ΡΡ Π½ΡΠΆΠ½ΡΠΉ ΡΠΏΠ»ΠΎΡΠ½ΠΈΡΠ΅Π»Ρ, ΠΊΠΎΡΠΎΡΡΠΉ Π±ΡΠ΄Π΅Ρ ΠΈΠ΄Π΅Π°Π»ΡΠ½ΡΠΌ Π² ΡΠ΅Π½Π΅ ΠΈ ΠΊΠ°ΡΠ΅ΡΡΠ²Π΅? ΠΡΠ²Π΅Ρ ΠΏΡΠΎΡΡ β ΡΠΏΠ»ΠΎΡΠ½ΠΈΡΠ΅Π»ΠΈ Veka.
ΠΠΎΡΡΠ΅Π±ΠΈΡΠ΅Π»ΡΡΠΊΠΈΠ΅ ΠΊΠ°ΡΠ΅ΡΡΠ²Π° ΠΏΡΠΎΠ΄ΡΠΊΡΠΈΠΈ Veka
ΠΠ° Π²ΡΠ΅ΠΌΡ ΡΠ²ΠΎΠ΅Π³ΠΎ ΠΏΡΠ΅Π±ΡΠ²Π°Π½ΠΈΡ Π½Π° ΡΡΠ½ΠΊΠ΅ ΡΡΡΠΎΠΈΡΠ΅Π»ΡΠ½ΡΡ ΠΌΠ°ΡΠ΅ΡΠΈΠ°Π»ΠΎΠ², Π΄Π°Π½Π½Π°Ρ ΠΌΠ°ΡΠΊΠ° ΠΏΡΠΈΠΎΠ±ΡΠ΅Π»Π° Π½Π΅ ΡΠΎΠ»ΡΠΊΠΎ Π²ΡΡΠΎΠΊΡΡ ΠΏΠΎΠΏΡΠ»ΡΡΠ½ΠΎΡΡΡ ΡΡΠ΅Π΄ΠΈ ΠΏΠΎΠ»ΡΠ·ΠΎΠ²Π°ΡΠ΅Π»Π΅ΠΉ, Π½ΠΎ ΠΈ Π·Π½Π°ΡΠΈΡΠ΅Π»ΡΠ½ΡΠΉ Π°Π²ΡΠΎΡΠΈΡΠ΅Ρ Ρ ΠΌΠ½ΠΎΠ³ΠΈΡ ΠΏΡΠΎΡΠ΅ΡΡΠΈΠΎΠ½Π°Π»ΡΠ½ΡΡ ΠΊΠΎΠΌΠΏΠ°Π½ΠΈΠΉ. ΠΠ΅Ρ Π½ΠΈ ΠΎΠ΄Π½ΠΎΠΉ ΡΠΈΡΠΌΡ ΠΏΠΎ ΡΡΡΠ°Π½ΠΎΠ²ΠΊΠ΅ ΠΎΠΊΠΎΠ½, Π½Π΅ Π·Π½Π°ΡΡΠΈΡ ΠΈΠ»ΠΈ Π½Π΅ ΠΈΡΠΏΠΎΠ»ΡΠ·ΡΡΡΠΈΡ ΠΏΡΠΎΠ΄ΡΠΊΡΠΈΡ ΠΠ΅ΠΊΠ° Π² ΡΠ²ΠΎΠ΅ΠΉ ΠΏΡΠ°ΠΊΡΠΈΠΊΠ΅.
| ΠΠΈΠ΄ ΠΏΡΠΎΡΠΈΠ»Ρ | ΠΠΎΠ»ΠΈΡΠ΅ΡΡΠ²ΠΎ ΠΊΠ°ΠΌΠ΅Ρ ΠΏΡΠΎΡΠΈΠ»Ρ | Π£ΡΠΎΠ²Π΅Π½Ρ ΡΠ΅ΠΏΠ»ΠΎΠΏΠ΅ΡΠ΅Π΄Π°ΡΠΈ |
Π’ΠΎΠ»ΡΠΈΠ½Π° ΡΡΠ΅ΠΊΠ»ΠΎΠΏΠ°ΠΊΠ΅ΡΠ°: 35-42 ΠΌΠΌ | ||
| VEKA Euroline | 3 | 0.64 |
| VEKA Softline | 5 | 0.78 |
| VEKA Topline | 5 | 0.74 |
| VEKA Proline | 4 | 0.75 |
| VEKA Swingline | 5 | 0.77 |
Π’ΠΎΠ»ΡΠΈΠ½Π° ΡΡΠ΅ΠΊΠ»ΠΎΠΏΠ°ΠΊΠ΅ΡΠ°: 35-50 ΠΌΠΌ | ||
| VEKA Alphaline | 6 | 0.94 |
Π’ΠΎΠ»ΡΠΈΠ½Π° ΡΡΠ΅ΠΊΠ»ΠΎΠΏΠ°ΠΊΠ΅ΡΠ°: 40-44 ΠΌΠΌ | ||
| VEKA Topline+ | 4 | 1.37 |
ΠΡΠΎΡΠΈΠ»Ρ ΠΠ΅ΠΊΠΎ
ΠΠΎΠ΄ Π΄Π°Π½Π½ΠΎΠΉ ΠΌΠ°ΡΠΊΠΎΠΉ ΠΏΡΠΎΠΈΠ·Π²ΠΎΠ΄ΠΈΡΡΡ Π½Π΅ ΡΠΎΠ»ΡΠΊΠΎ ΡΠΏΠ»ΠΎΡΠ½ΠΈΡΠ΅Π»ΠΈ Veka, Π½ΠΎ ΠΈ ΠΠΠ₯ ΠΏΡΠΎΡΠΈΠ»Ρ ΠΠ΅ΠΊΠΎ, Π½Π΅ ΠΌΠ΅Π½Π΅Π΅ ΠΊΠ°ΡΠ΅ΡΡΠ²Π΅Π½Π½ΡΠΉ ΠΈ Π΄ΠΎΠ»Π³ΠΎΠ²Π΅ΡΠ½ΡΠΉ.
ΠΡΠΎΠ±Π΅Π½Π½ΠΎΡΡΠΈ ΡΠ΅ΠΌΠΎΠ½ΡΠ° ΠΈ ΠΎΠ±ΡΠ»ΡΠΆΠΈΠ²Π°Π½ΠΈΡ ΠΎΠΊΠΎΠ½ Veka
ΠΡΠ»ΠΈ ΡΠ°ΡΡΠΌΠ°ΡΡΠΈΠ²Π°ΡΡ ΡΠ΅ΠΌΠΎΠ½Ρ ΠΎΠΊΠΎΠ½ Veka, ΠΌΠΎΠΆΠ½ΠΎ ΡΠΊΠ°Π·Π°ΡΡ, ΡΡΠΎ ΠΊΠ°ΡΠ΄ΠΈΠ½Π°Π»ΡΠ½ΡΡ ΠΎΡΠ»ΠΈΡΠΈΠΉ ΠΎΡ ΡΠ΅ΠΌΠΎΠ½ΡΠ° ΠΎΠΊΠΎΠ½ Π΄ΡΡΠ³ΠΈΡ ΠΏΡΠΎΠΈΠ·Π²ΠΎΠ΄ΠΈΡΠ΅Π»Π΅ΠΉ Π½Π΅Ρ.
ΠΠ΅Π·ΡΡΠ»ΠΎΠ²Π½ΠΎ, Π΄Π°ΠΆΠ΅ Π½Π° ΡΡΠΈΡ ΠΎΠΊΠ½Π°Ρ Π½Π΅ΠΎΠ±Ρ ΠΎΠ΄ΠΈΠΌΠΎ ΠΏΡΠΎΠΈΠ·Π²ΠΎΠ΄ΠΈΡΡ Π·Π°ΠΌΠ΅Π½Ρ ΡΠΏΠ»ΠΎΡΠ½ΠΈΡΠ΅Π»Ρ, ΡΠ°ΠΊ ΠΊΠ°ΠΊ ΡΠΎ Π²ΡΠ΅ΠΌΠ΅Π½Π΅ΠΌ ΠΈ Π½Π΅ΡΠΌΠΎΡΡΡ Π½Π° ΠΎΡΠ»ΠΈΡΠ½ΠΎΠ΅ ΠΊΠ°ΡΠ΅ΡΡΠ²ΠΎ, ΠΎΠ½ ΡΡΡΠ°ΡΠΈΠ²Π°Π΅Ρ ΡΠ²ΠΎΠΈ ΠΏΠ΅ΡΠ²ΠΎΠ½Π°ΡΠ°Π»ΡΠ½ΡΠ΅ ΡΠ²ΠΎΠΉΡΡΠ²Π°.
Π‘Π°ΠΌΠΎΡΡΠΎΡΡΠ΅Π»ΡΠ½ΠΎ ΠΏΡΠΎΠ²ΠΎΠ΄ΠΈΡΡ Π΄Π°Π½Π½ΡΡ ΠΏΡΠΎΡΠ΅Π΄ΡΡΡ ΠΊΡΠ°ΠΉΠ½Π΅ Π½Π΅ΠΆΠ΅Π»Π°ΡΠ΅Π»ΡΠ½ΠΎ, ΠΈ Π»ΡΡΡΠ΅ ΠΎΠ±ΡΠ°ΡΠΈΡΡΡΡ Π² ΡΠ΅ΡΠ²ΠΈΡΠ½ΡΠΉ ΡΠ΅Π½ΡΡ, Π³Π΄Π΅ Π²Π°ΠΌ ΠΏΡΠ΅Π΄ΠΎΡΡΠ°Π²ΡΡ ΡΠΈΡΠΌΠ΅Π½Π½ΡΠΉ ΡΠΏΠ»ΠΎΡΠ½ΠΈΡΠ΅Π»Ρ Veka ΠΈ ΡΡΡΠ°Π½ΠΎΠ²ΡΡ Π΅Π³ΠΎ Π·Π° ΠΊΠΎΡΠΎΡΠΊΠΈΠΉ ΠΏΡΠΎΠΌΠ΅ΠΆΡΡΠΎΠΊ Π²ΡΠ΅ΠΌΠ΅Π½ΠΈ.
ΠΠ° ΡΡΠ΅ΡΡ Π½Π°ΡΠ΅ΠΉ ΠΊΠΎΠΌΠΏΠ°Π½ΠΈΠΈ ΠΌΠ½ΠΎΠΆΠ΅ΡΡΠ²ΠΎ Π±Π»Π°Π³ΠΎΠ΄Π°ΡΠ½ΠΎΡΡΠ΅ΠΉ ΠΊΠ»ΠΈΠ΅Π½ΡΠΎΠ², ΠΊΠΎΡΠΎΡΡΠ΅ ΠΏΡΠΎΡΡΠΎ Π² Π²ΠΎΡΡΠΎΡΠ³Π΅ ΠΎΡ ΠΊΠ°ΡΠ΅ΡΡΠ²Π° ΡΠ΅ΠΌΠΎΠ½ΡΠ° ΠΏΠ»Π°ΡΡΠΈΠΊΠΎΠ²ΡΡ ΠΎΠΊΠΎΠ½ ΠΏΡΠΎΠ²Π΅Π΄Π΅Π½Π½ΡΡ Π½Π°ΠΌΠΈ.
- ΠΠ°ΡΠ°Π½ΡΠΈΡ Π½Π° Π²ΡΠ΅ Π²ΠΈΠ΄Ρ ΡΠ°Π±ΠΎΡ ΠΈ ΠΌΠ°ΡΠ΅ΡΠΈΠ°Π»Ρ.
- ΠΠΎΡΡΡΠΏΠ½ΡΠ΅ ΡΠ΅Π½Ρ ΠΈ Π³ΠΈΠ±ΠΊΠ°Ρ ΡΠΈΡΡΠ΅ΠΌΠ° ΡΠΊΠΈΠ΄ΠΎΠΊ.
- 100% Π²ΡΠΏΠΎΠ»Π½Π΅Π½ΠΈΠ΅ Π³Π°ΡΠ°Π½ΡΠΈΠΉΠ½ΡΡ ΠΈ ΠΏΠΎΡΡΠ³Π°ΡΠ°Π½ΡΠΈΠΉΠ½ΡΡ ΠΎΠ±ΡΠ·Π°ΡΠ΅Π»ΡΡΡΠ².
ΠΠΎΠ½ΡΡΠ»ΡΡΠ°Π½Ρ: +7 (499) 755-87-29
Viber: +7 (926) 777-96-26
WhatsApp: +7 (926) 777-96-26
E-mail: ΠΡΠΎΡ Π°Π΄ΡΠ΅Ρ ΡΠ»Π΅ΠΊΡΡΠΎΠ½Π½ΠΎΠΉ ΠΏΠΎΡΡΡ Π·Π°ΡΠΈΡΡΠ½ ΠΎΡ ΡΠΏΠ°ΠΌ-Π±ΠΎΡΠΎΠ². Π£ Π²Π°Ρ Π΄ΠΎΠ»ΠΆΠ΅Π½ Π±ΡΡΡ Π²ΠΊΠ»ΡΡΠ΅Π½ JavaScript Π΄Π»Ρ ΠΏΡΠΎΡΠΌΠΎΡΡΠ°.
www.xn—-8sb3agdedbbf7iob.xn--p1ai
Π£ΠΏΠ»ΠΎΡΠ½ΠΈΡΠ΅Π»ΠΈ Π΄Π»Ρ ΠΎΠΊΠΎΠ½ VEKA — Π³Π°ΡΠ°Π½ΡΠΈΡ Π³Π΅ΡΠΌΠ΅ΡΠΈΡΠ½ΠΎΡΡΠΈ ΠΈ Π΄ΠΎΠ»Π³ΠΎΠ²Π΅ΡΠ½ΠΎΡΡΠΈ
Β
ΠΠΊΠΎΠ½Π½ΡΠ΅ ΡΠΏΠ»ΠΎΡΠ½ΠΈΡΠ΅Π»ΠΈ — ΡΡΠΎ ΡΠΏΡΡΠ³ΠΈΠ΅ ΠΏΡΠΎΠΊΠ»Π°Π΄ΠΊΠΈ ΠΈΠ· ΡΠ»Π°ΡΡΠΈΡΠ½ΠΎΠ³ΠΎ ΠΌΠ°ΡΠ΅ΡΠΈΠ°Π»Π° ΡΠ»ΠΎΠΆΠ½ΠΎΠΉ ΠΊΠΎΠ½ΡΠΈΠ³ΡΡΠ°ΡΠΈΠΈ. ΠΠΌΠ΅Π½Π½ΠΎ ΡΡΠ° ΡΠ»ΠΎΠΆΠ½Π°Ρ ΡΠΎΡΠΌΠ° ΠΏΠΎΠ·Π²ΠΎΠ»ΡΠ΅Ρ ΠΎΠ±Π΅ΡΠΏΠ΅ΡΠΈΠ²Π°ΡΡ ΠΏΠ»ΠΎΡΠ½ΡΠΉ ΠΏΡΠΈΠΆΠΈΠΌ ΡΡΠ²ΠΎΡΠΊΠΈ ΠΏΠ»Π°ΡΡΠΈΠΊΠΎΠ²ΠΎΠ³ΠΎ ΠΎΠΊΠ½Π° ΠΈ ΡΡΠ΅ΠΊΠ»ΠΎΠΏΠ°ΠΊΠ΅ΡΠ° ΠΊ ΡΠ°ΠΌΠ΅.Β
ΠΠ»Ρ ΠΊΠ°ΠΆΠ΄ΠΎΠ³ΠΎ ΠΎΠΊΠΎΠ½Π½ΠΎΠ³ΠΎ ΠΏΡΠΎΡΠΈΠ»Ρ ΡΡΠ΅Π±ΡΠ΅ΡΡΡ ΠΈΡΠΏΠΎΠ»ΡΠ·ΠΎΠ²Π°Π½ΠΈΠ΅ ΡΠΎΠ»ΡΠΊΠΎ Β«ΡΠ²ΠΎΠ΅Π³ΠΎΒ» ΡΠΏΠ»ΠΎΡΠ½ΠΈΡΠ΅Π»Ρ — ΠΈΠ½Π°ΡΠ΅ ΠΏΠ»ΠΎΡΠ½ΠΎΡΡΡ ΠΏΡΠΈΠ»Π΅Π³Π°Π½ΠΈΡ ΠΌΠΎΠΆΠ΅Ρ Π±ΡΡΡ Π½ΠΈΠΆΠ΅ ΠΏΠΎΠ»ΠΎΠΆΠ΅Π½Π½ΠΎΠ³ΠΎ ΡΡΠΎΠ²Π½Ρ.Β
ΠΠΎ Π²ΡΠ΅Ρ ΠΏΡΠΎΡΠΈΠ»ΡΠ½ΡΡ ΡΠΈΡΡΠ΅ΠΌΠ°Ρ VEKA ΠΈΡΠΏΠΎΠ»ΡΠ·ΡΡΡΡΡ ΠΊΠ°ΡΡΡΠΊΠΎΠ²ΡΠ΅ ΡΠΏΠ»ΠΎΡΠ½Π΅Π½ΠΈΡ, Ρ ΠΎΡΠΎΡΠΎ ΠΏΠ΅ΡΠ΅Π½ΠΎΡΡΡΠΈΠ΅ Π½ΠΈΠ·ΠΊΠΈΠ΅ ΡΠ΅ΠΌΠΏΠ΅ΡΠ°ΡΡΡΡ.ΠΡΠΎΠ±Π΅Π½Π½ΠΎΡΡΡ ΡΠΏΠ»ΠΎΡΠ½ΠΈΡΠ΅Π»Π΅ΠΉ VEKA — ΡΠΎΡ ΡΠ°Π½Π΅Π½ΠΈΠ΅ ΡΠ»Π°ΡΡΠΈΡΠ½ΠΎΡΡΠΈ Π² ΡΠ΅ΡΠ΅Π½ΠΈΠ΅ Π΄ΠΎΠ»Π³ΠΎΠ³ΠΎ Π²ΡΠ΅ΠΌΠ΅Π½ΠΈ, Π½Π΅Π·Π°Π²ΠΈΡΠΈΠΌΠΎ ΠΎΡ Π²ΠΎΠ·Π΄Π΅ΠΉΡΡΠ²ΠΈΡ Π²Π½Π΅ΡΠ½Π΅ΠΉ ΡΡΠ΅Π΄Ρ. Π£ΠΏΠ»ΠΎΡΠ½ΠΈΡΠ΅Π»ΠΈ VEKA Π½Π΅ ΡΡΠ΅ΡΠΊΠ°ΡΡΡΡ ΠΎΡ ΠΆΠ°ΡΡ, Π½Π΅ Π²ΠΏΠΈΡΡΠ²Π°ΡΡ Π²Π»Π°Π³Ρ. ΠΡΠΎ ΠΎΡΠΎΠ±Π΅Π½Π½ΠΎ Π²Π°ΠΆΠ½ΠΎ Π² ΡΠΎΡΡΠΈΠΉΡΠΊΠΎΠΌ ΠΊΠ»ΠΈΠΌΠ°ΡΠ΅ (ΡΠΎ ΡΠ²ΠΎΠΉΡΡΠ²Π΅Π½Π½ΡΠΌΠΈ Π΅ΠΌΡ ΠΊΠΎΠ»Π΅Π±Π°Π½ΠΈΡΠΌΠΈ ΡΠ΅ΠΌΠΏΠ΅ΡΠ°ΡΡΡΡ ΠΈ Π²Π»Π°ΠΆΠ½ΠΎΡΡΠΈ) ΠΈ Π°Π³ΡΠ΅ΡΡΠΈΠ²Π½ΠΎΠΉ Π³ΠΎΡΠΎΠ΄ΡΠΊΠΎΠΉ ΡΡΠ΅Π΄Π΅.ΠΡΠ΅ΠΈΠΌΡΡΠ΅ΡΡΠ²Π° Π·Π°ΠΏΠ°ΡΠ΅Π½ΡΠΎΠ²Π°Π½Π½ΡΡ ΡΠΏΠ»ΠΎΡΠ½ΠΈΡΠ΅Π»Π΅ΠΉ VEKA ΡΡΠ°Π½ΠΎΠ²ΡΡΡΡ ΠΎΡΠ΅Π²ΠΈΠ΄Π½ΡΠΌΠΈ ΡΠΆΠ΅ Π² ΠΏΠ΅ΡΠ²ΡΠΉ ΡΠ΅Π·ΠΎΠ½ ΠΈΡΠΏΠΎΠ»ΡΠ·ΠΎΠ²Π°Π½ΠΈΡ. ΠΠ°ΠΆΠ΅ ΡΠ΅ΡΠ΅Π· Π½Π΅ΡΠΊΠΎΠ»ΡΠΊΠΎ Π»Π΅Ρ ΡΠΏΠ»ΠΎΡΠ½ΠΈΡΠ΅Π»ΠΈ Π±ΡΠ΄ΡΡ ΡΠΎΡ ΡΠ°Π½ΡΡΡ Π²ΡΠ΅ ΡΠ²ΠΎΠΈ ΡΠΊΡΠΏΠ»ΡΠ°ΡΠ°ΡΠΈΠΎΠ½Π½ΡΠ΅ Ρ Π°ΡΠ°ΠΊΡΠ΅ΡΠΈΡΡΠΈΠΊΠΈ, ΡΡΠΎ ΠΏΠΎΠ·Π²ΠΎΠ»ΠΈΡ Π²Π°ΠΌ ΡΡΠΊΠΎΠ½ΠΎΠΌΠΈΡΡ Π±ΠΎΠ»ΡΡΡΡ ΡΡΠΌΠΌΡ Π΄Π΅Π½Π΅Π³ Π½Π° ΠΈΡ Π·Π°ΠΌΠ΅Π½Π΅. ΠΠ΅Π΄Ρ ΡΡΠΎΠΊ ΡΠΊΡΠΏΠ»ΡΠ°ΡΠ°ΡΠΈΠΈ ΡΠΏΠ»ΠΎΡΠ½ΠΈΡΠ΅Π»Π΅ΠΉ VEKA ΡΠΎΡΡΠ°Π²Π»ΡΠ΅Ρ Π΄ΠΎ 10 Π»Π΅Ρ (Π½ΠΎ Π½Π° ΠΏΡΠ°ΠΊΡΠΈΠΊΠ΅ ΠΎΠ½ ΡΠΎΡΡΠ°Π²Π»ΡΠ΅Ρ Π±ΠΎΠ»Π΅Π΅ Π΄Π»ΠΈΡΠ΅Π»ΡΠ½ΡΠΉ ΡΡΠΎΠΊ).Β
ΠΡΠΎΡΠ°Ρ Π²Π°ΠΆΠ½Π°Ρ ΠΎΡΠ»ΠΈΡΠΈΡΠ΅Π»ΡΠ½Π°Ρ ΡΠ΅ΡΡΠ° ΡΠΏΠ»ΠΎΡΠ½ΠΈΡΠ΅Π»Π΅ΠΉ VEKA — ΡΡΠΎ ΡΠΏΠ΅ΡΠΈΠ°Π»ΡΠ½ΠΎ ΡΠ°Π·ΡΠ°Π±ΠΎΡΠ°Π½Π½ΡΠΉ ΡΠ³ΠΎΠ» Π½Π°ΠΊΠ»ΠΎΠ½Π° ΡΠΏΠ»ΠΎΡΠ½Π΅Π½ΠΈΠΉ. ΠΠ΅Π΄Ρ Π² Π΄ΠΈΠ·Π°ΠΉΠ½Π΅ ΠΈ ΠΎΠ±Π»ΠΈΠΊΠ΅ ΠΎΠΊΠ½Π° Π΄Π°ΠΆΠ΅ Π½Π΅ΡΡΡΠ΅ΡΡΠ²Π΅Π½Π½ΡΠ΅ (Π½Π° ΠΏΠ΅ΡΠ²ΡΠΉ Π²Π·Π³Π»ΡΠ΄) Π΄Π΅ΡΠ°Π»ΠΈ Π½Π΅ΡΡΡ ΠΎΠ³ΡΠΎΠΌΠ½ΡΡ ΡΠΎΠ»Ρ. ΠΡΠ΅ ΡΠΏΠ»ΠΎΡΠ½ΠΈΡΠ΅Π»ΠΈ Π½Π° ΠΎΠΊΠ½Π°Ρ VEKA ΠΏΡΠ°ΠΊΡΠΈΡΠ΅ΡΠΊΠΈ Π½Π΅Π·Π°ΠΌΠ΅ΡΠ½Ρ.ΠΡΠΎ Π΄ΠΎΡΡΠΈΠ³Π½ΡΡΠΎ ΠΈΡ ΡΠΏΠ΅ΡΠΈΠ°Π»ΡΠ½ΠΎΠΉ ΡΠΎΡΠΌΠΎΠΉ, ΡΠ³Π»ΠΎΠΌ Π½Π°ΠΊΠ»ΠΎΠ½Π°. Π ΠΎΠΊΠ½Π°Ρ ΠΈΠ· Π΄ΡΡΠ³ΠΈΡ ΠΏΡΠΎΡΠΈΠ»ΡΠ½ΡΡ ΡΠΈΡΡΠ΅ΠΌ ΡΠΏΠ»ΠΎΡΠ½ΠΈΡΠ΅Π»ΠΈ ΡΡΠ΅Π·ΠΌΠ΅ΡΠ½ΠΎ Π²ΠΈΠ΄Π½Ρ, ΡΡΠΎ ΠΎΠ±ΡΠ°Π·ΡΠ΅Ρ ΡΠ°ΠΊ Π½Π°Π·ΡΠ²Π°Π΅ΠΌΡΡ Β«ΡΡΠ°ΡΡΠ½ΡΡ ΡΠ°ΠΌΠΊΡΒ». Π ΠΎΠΊΠ½Π°Ρ VEKA ΡΠ°ΠΊΠΎΠ³ΠΎ Π½Π΅Ρ.Β
Π’ΡΠ΅ΡΡΡ ΠΎΡΠΎΠ±Π΅Π½Π½ΠΎΡΡΡ — Π²ΡΠ΅ ΡΠΏΠ»ΠΎΡΠ½ΠΈΡΠ΅Π»ΠΈ Π½Π° ΠΎΠΊΠ½Π°Ρ
ΠΈΠ· ΠΏΡΠΎΡΠΈΠ»Ρ VEKA ΠΈΠΌΠ΅ΡΡ Π·Π°ΠΌΠΊΠ½ΡΡΡΠΉ ΠΊΠΎΠ½ΡΡΡ. ΠΡΠΎ Π·Π½Π°ΡΠΈΡ, ΡΡΠΎ ΠΎΠ½ΠΈ Π²ΡΡΠ°Π²Π»ΡΡΡΡΡ Π² ΠΊΠΎΠ½ΡΡΡ ΠΏΠΎΠ»Π½ΠΎΡΡΡΡ, Π° Π½Π΅ ΠΊΡΡΠΎΡΠΊΠ°ΠΌΠΈ — ΡΠΏΠ»ΠΎΡΠ½Π΅Π½ΠΈΡ ΠΏΡΠ΅Π΄ΡΡΠ°Π²Π»ΡΡΡ ΡΠΎΠ±ΠΎΠΉ ΡΠ΅Π»ΡΠ½ΡΡ Π»Π΅Π½ΡΡ, ΠΊΠΎΡΠΎΡΡΡ Π½Π΅ Π½Π°Π΄ΠΎ ΡΡΡΠΊΠΎΠ²Π°ΡΡ Π² ΡΠ³Π»Π°Ρ
. Π’Π°ΠΊΠΎΠΉ ΡΠΏΠΎΡΠΎΠ± ΡΡΡΠ°Π½ΠΎΠ²ΠΊΠΈ ΡΠΏΠ»ΠΎΡΠ½ΠΈΡΠ΅Π»Π΅ΠΉ ΡΡΡΠ΅ΡΡΠ²Π΅Π½Π½ΠΎ ΠΏΠΎΠ²ΡΡΠ°Π΅Ρ ΡΠ΅ΠΏΠ»ΠΎΠΈΠ·ΠΎΠ»ΠΈΡΡΡΡΠΈΠ΅ ΡΠ²ΠΎΠΉΡΡΠ²Π° Π³ΠΎΡΠΎΠ²ΠΎΠΉ ΠΊΠΎΠ½ΡΡΡΡΠΊΡΠΈΠΈ, Π° Π²Π°Ρ ΠΈΠ·Π±Π°Π²Π»ΡΠ΅Ρ ΠΎΡ Π»ΡΠ±ΠΎΠ³ΠΎ ΠΏΡΠΎΠ΄ΡΠ²Π°Π½ΠΈΡ ΠΎΠΊΠ½Π°.
veka34.ru
Π£ΠΏΠ»ΠΎΡΠ½ΠΈΡΠ΅Π»Ρ Π΄Π»Ρ ΠΎΠΊΠΎΠ½ ΠΠΠ₯ ΠΏΡΠΎΠΈΠ·Π²ΠΎΠ΄ΡΡΠ²Π° ΠΊΠΎΠΌΠΏΠ°Π½ΠΈΠΈ ΠΠ΅ΠΊΠ° Π² Π‘ΠΠ±

ΠΠ»Ρ ΠΊΠ°ΠΆΠ΄ΠΎΠ³ΠΎ Π΄ΠΎΠΌΠ° Π²Π°ΠΆΠ½ΠΎ ΠΏΡΠΈΠΎΠ±ΡΠ΅ΡΡΠΈ Π΄Π΅ΠΉΡΡΠ²ΠΈΡΠ΅Π»ΡΠ½ΠΎ ΠΊΠ°ΡΠ΅ΡΡΠ²Π΅Π½Π½ΡΠ΅ ΠΈ Π΄ΠΎΠ»Π³ΠΎΠ²Π΅ΡΠ½ΡΠ΅ ΠΎΠΊΠ½Π°, ΠΊΠΎΡΠΎΡΡΠ΅ ΡΠΌΠΎΠ³Ρ Π½Π°Π΄Π΅ΠΆΠ½ΠΎ Π·Π°ΡΠΈΡΠΈΡΡ ΠΎΡ Ρ ΠΎΠ»ΠΎΠ΄Π°, ΡΡΡΠΎΡΡΠΈ ΠΈ ΡΡΠΌΠ°. Π ΡΠ΅Π°Π»ΠΈΠ·Π°ΡΠΈΠΈ ΡΡΠΎΠΉ ΡΡΠ½ΠΊΡΠΈΠΈ Π²Π°ΠΆΠ½ΡΡ ΡΠΎΠ»Ρ ΠΈΠ³ΡΠ°ΡΡ ΡΠΏΠ»ΠΎΡΠ½ΠΈΡΠ΅Π»ΠΈ. ΠΡ ΠΈΡ ΠΊΠ°ΡΠ΅ΡΡΠ²Π° ΠΈ ΡΡΡΠ°Π½ΠΎΠ²ΠΊΠΈ Π·Π°Π²ΠΈΡΠΈΡ ΠΊΠΎΠΌΡΠΎΡΡ Π² ΠΏΠΎΠΌΠ΅ΡΠ΅Π½ΠΈΠΈ.
Π§ΡΠΎ ΠΆΠ΅ ΡΠ°ΠΊΠΎΠ΅ ΡΠΏΠ»ΠΎΡΠ½ΠΈΡΠ΅Π»Ρ? ΠΡΠΎ Π² ΡΠΎΠ²ΡΠ΅ΠΌΠ΅Π½Π½ΠΎΠΌ ΠΏΠΎΠ½ΠΈΠΌΠ°Π½ΠΈΠΈ ΡΠΈΠ»ΠΈΠΊΠΎΠ½ΠΎΠ²Π°Ρ ΡΠ΅Π·ΠΈΠ½Π°, ΠΊΠΎΡΠΎΡΠ°Ρ ΠΏΡΠ΅Π΄Π½Π°Π·Π½Π°ΡΠ΅Π½Π° Π΄Π»Ρ ΡΡΡΡΠ°Π½Π΅Π½ΠΈΡ ΡΠ΅Π»Π΅ΠΉ. Π’Π°ΠΊΡΡ ΡΠ΅Π·ΠΈΠ½Ρ ΡΠ΅ΠΉΡΠ°Ρ ΠΈΡΠΏΠΎΠ»ΡΠ·ΡΡΡ Π² ΡΠ°ΠΌΡΡ ΡΠ°Π·Π½ΡΡ ΠΎΠ±Π»Π°ΡΡΡΡ . Π ΠΏΡΠΈΠΌΠ΅ΡΡ, Π² ΠΌΠ΅Π΄ΠΈΡΠΈΠ½Π΅, ΠΏΠΈΡΠ΅Π²ΠΎΠΉ ΠΏΡΠΎΠΌΡΡΠ»Π΅Π½Π½ΠΎΡΡΠΈ, Ρ.Π΄. ΠΡΠ»ΠΈ Π³ΠΎΠ²ΠΎΡΠΈΡΡ ΠΎ ΡΠ΅ΡΠΌΠΎΡΡΠΎΠΉΠΊΠΈΡ ΡΠΏΠ»ΠΎΡΠ½ΠΈΡΠ΅Π»ΡΡ , ΡΠΎ ΠΈΡ ΡΡΠΎΠΊ ΠΈΡΠΏΠΎΠ»ΡΠ·ΠΎΠ²Π°Π½ΠΈΡ Π½Π΅ΡΠΊΠΎΠ»ΡΠΊΠΎ Π²ΡΡΠ΅.
ΠΠ°ΠΊ ΠΏΡΠ°Π²ΠΈΠ»ΡΠ½ΠΎ Π²ΡΠ±ΠΈΡΠ°ΡΡ ΡΠΏΠ»ΠΎΡΠ½ΠΈΡΠ΅Π»ΠΈ?
ΠΠ° ΡΠΎΠ²ΡΠ΅ΠΌΠ΅Π½Π½ΠΎΠΌ ΡΡΠ½ΠΊΠ΅ Π½Π°ΡΡΠΎΠ»ΡΠΊΠΎ ΡΠΈΡΠΎΠΊΠΈΠΉ Π°ΡΡΠΎΡΡΠΈΠΌΠ΅Π½Ρ ΡΠΏΠ»ΠΎΡΠ½ΠΈΡΠ΅Π»Π΅ΠΉ, ΡΡΠΎ ΠΏΠΎΡΠ΅ΡΡΡΡΡΡ ΠΌΠΎΠΆΠ½ΠΎ Π² Π΄Π²Π° ΡΡΠ΅ΡΠ°. ΠΡΠΈ ΡΡΠΎΠΌ ΠΎΡΡΠ°Π΅ΡΡΡ Π²ΠΎΠΏΡΠΎΡ: ΠΊΠ°ΠΊ ΠΆΠ΅ ΡΠ΄Π΅Π»Π°ΡΡ ΠΏΡΠ°Π²ΠΈΠ»ΡΠ½ΡΠΉ Π²ΡΠ±ΠΎΡ? ΠΡ ΠΌΠΎΠΆΠ΅ΡΠ΅ Π²ΡΡΡΠ΅ΡΠΈΡΡ ΡΠΏΠ»ΠΎΡΠ½ΠΈΡΠ΅Π»ΠΈ ΠΈΠ· ΠΠΠ₯, ΡΠ΅Π·ΠΈΠ½Ρ, ΠΏΠΎΡΠΎΠ»ΠΎΠ½Π°, ΠΏΠΎΠ»ΠΈΡΡΠ΅ΡΠ°Π½Π°, ΡΠΈΠ»ΠΈΠΊΠΎΠ½Π° ΠΈ Ρ.Π΄. ΠΠ° ΠΊΠ°ΠΊΠΈΡ
ΡΡΠΎΠΈΡ ΠΎΡΡΠ°Π½ΠΎΠ²ΠΈΡΡΡΡ? ΠΠ° ΡΠ°ΠΌΠΎΠΌ Π΄Π΅Π»Π΅ Π²ΡΠ΅ Π·Π°Π²ΠΈΡΠΈΡ ΠΎΡ Π²Π°ΡΠΈΡ
ΡΠ΅Π»Π΅ΠΉ ΠΈ Π±ΡΠ΄ΠΆΠ΅ΡΠ°.
Π’Π°ΠΊ ΡΠΏΠ»ΠΎΡΠ½ΠΈΡΠ΅Π»ΠΈ ΠΈΠ· ΠΠΠ₯ ΠΏΡΠ΅ΠΊΡΠ°ΡΠ½ΠΎ ΠΏΠ΅ΡΠ΅Π½ΠΎΡΡΡ ΠΌΠΎΡΠΎΠ·Ρ ΠΈ ΠΌΠ΅Π½Π΅Π΅ ΠΏΠΎΠ΄Π²Π΅ΡΠΆΠ΅Π½Ρ Π΄Π΅ΡΠΎΡΠΌΠ°ΡΠΈΠΈ. Π Π΅Π·ΠΈΠ½ΠΎΠ²ΡΠ΅ ΡΠΏΠ»ΠΎΡΠ½ΠΈΡΠ΅Π»ΠΈ ΠΌΠΎΠΆΠ½ΠΎ Π½Π°Π·Π²Π°ΡΡ ΡΠ°ΠΌΡΠΌΠΈ ΠΈΠ·Π½ΠΎΡΠΎΡΡΠΎΠΉΠΊΠΈΠΌΠΈ. ΠΠ°ΠΆΠ½ΠΎ ΠΏΠΎΠ½ΠΈΠΌΠ°ΡΡ, ΡΡΠΎ Π½ΡΠΆΠ½ΠΎ Π²ΡΠ±ΡΠ°ΡΡ Π½Π΅ ΡΠΎΠ»ΡΠΊΠΎ Π²ΠΈΠ΄ ΡΠΏΠ»ΠΎΡΠ½ΠΈΡΠ΅Π»Ρ, Π½ΠΎ ΠΈ ΠΏΡΠ°Π²ΠΈΠ»ΡΠ½ΠΎ Π΅Π³ΠΎ ΡΡΡΠ°Π½ΠΎΠ²ΠΈΡΡ, ΠΏΠΎΠ΄ΠΎΠ±ΡΠ°ΡΡ ΡΠ΅ΡΠ΅Π½ΠΈΠ΅, ΡΠΎΠ»ΡΠΈΠ½Ρ, ΡΠΎΡΠΌΡ ΠΈ ΠΏΡΠΎΡΠΈΠ΅ Ρ Π°ΡΠ°ΠΊΡΠ΅ΡΠΈΡΡΠΈΠΊΠΈ. ΠΡΠ»ΠΈ Π²ΠΎΠ·Π½ΠΈΠΊΠ°ΡΡ ΠΏΡΠΎΠ±Π»Π΅ΠΌΡ ΠΈΠ»ΠΈ Π²Ρ Π½Π΅ ΡΠ²Π΅ΡΠ΅Π½Ρ Π² ΡΠ²ΠΎΠ΅ΠΌ Π²ΡΠ±ΠΎΡΠ΅, ΡΠΎ ΡΡΠΎΠΈΡ ΠΏΡΠΎΠΊΠΎΠ½ΡΡΠ»ΡΡΠΈΡΠΎΠ²Π°ΡΡΡΡ Ρ ΡΠΏΠ΅ΡΠΈΠ°Π»ΠΈΡΡΠΎΠ². ΠΠΈ Π²ΡΠ΅Π³Π΄Π° Π³ΠΎΡΠΎΠ²Ρ ΠΏΠΎΠΌΠΎΡΡ Π²Π°ΠΌ ΡΠ΄Π΅Π»Π°ΡΡ ΠΏΡΠ°Π²ΠΈΠ»ΡΠ½ΡΠΉ Π²ΡΠ±ΠΎΡ!
Π Π΅Π·ΠΈΠ½ΠΎΠ²ΡΠΉ ΡΠΏΠ»ΠΎΡΠ½ΠΈΡΠ΅Π»Ρ ΠΌΠΎΠΆΠ½ΠΎ Π΄ΠΎΡΡΠ°ΡΠΎΡΠ½ΠΎ ΠΏΡΠΎΡΡΠΎ ΠΏΡΠΎΠ²Π΅ΡΠΈΡΡ, ΡΠ°ΡΡΡΠ½ΡΠ² Π΅Π³ΠΎ. ΠΡΠ»ΠΈ ΠΎΠ½ Ρ ΠΎΡΠΎΡΠ΅Π³ΠΎ ΠΊΠ°ΡΠ΅ΡΡΠ²Π°, ΡΠΎ ΠΏΠΎΡΠ»Π΅ ΡΠ°ΡΡΡΠ³ΠΈΠ²Π°Π½ΠΈΡ ΠΎΠ½ Π»Π΅Π³ΠΊΠΎ Π²Π΅ΡΠ½Π΅ΡΡΡ Π² ΠΏΠ΅ΡΠ²ΠΎΠ½Π°ΡΠ°Π»ΡΠ½ΠΎΠ΅ ΡΠΎΡΡΠΎΡΠ½ΠΈΠ΅. ΠΡ ΠΌΠΎΠΆΠ΅ΡΠ΅ ΡΠ°ΠΊΠΆΠ΅ ΠΎΡΠ΅Π½ΠΈΡΡ ΠΊΠ°ΡΠ΅ΡΡΠ²ΠΎ ΠΌΠ°ΡΠ΅ΡΠΈΠ°Π»ΠΎΠ² ΠΏΠΎΡΠ»Π΅ ΡΡΡΠ°Π½ΠΎΠ²ΠΊΠΈ ΠΎΠΊΠ½Π°, Π° ΠΈΠΌΠ΅Π½Π½ΠΎ: ΠΏΡΠΎΡΡΠ½ΡΡΠ΅ Π»ΠΈΡΡΠΈΠΊ Π±ΡΠΌΠ°Π³ΠΈ ΠΈ Π·Π°ΠΊΡΠΎΠΉΡΠ΅ ΠΎΠΊΠ½ΠΎ ΡΠ°ΠΊ, ΡΡΠΎΠ±Ρ ΠΎΠ½ Π·Π°ΠΊΡΠ΅ΠΏΠΈΠ»ΡΡ. ΠΡΠ»ΠΈ Π»ΠΈΡΡ ΡΠ²ΠΎΠ±ΠΎΠ΄Π½ΠΎ ΠΌΠΎΠΆΠ½ΠΎ Π²ΡΡΡΠ½ΡΡΡ, ΡΠΎ ΡΠΏΠ»ΠΎΡΠ½ΠΈΡΠ΅Π»Ρ ΠΏΠ»ΠΎΡ ΠΎΠ³ΠΎ ΠΊΠ°ΡΠ΅ΡΡΠ²Π° ΠΈ Π½Π΅ ΡΠΏΡΠ°Π²Π»ΡΠ΅ΡΡΡ ΡΠΎ ΡΠ²ΠΎΠΈΠΌΠΈ Π·Π°Π΄Π°ΡΠ°ΠΌΠΈ. ΠΡΠΈ Π²ΡΠ±ΠΎΡΠ΅ ΡΡΠΎΠΈΡ ΠΎΡΠ΄Π°Π²Π°ΡΡ ΠΏΡΠ΅Π΄ΠΏΠΎΡΡΠ΅Π½ΠΈΠ΅ ΠΌΡΠ³ΠΊΠΈΠΌ ΡΠΏΠ»ΠΎΡΠ½ΠΈΡΠ΅Π»ΡΠΌ, ΠΊΠΎΡΠΎΡΡΠ΅ Π»Π΅Π³ΠΊΠΎ Π²ΠΎΡΡΡΠ°Π½Π°Π²Π»ΠΈΠ²Π°ΡΡ ΡΠΎΡΠΌΡ ΠΏΠΎΡΠ»Π΅ Π²ΠΎΠ·Π΄Π΅ΠΉΡΡΠ²ΠΈΡ.
Π‘ΡΠΎΠΈΡ ΠΏΠΎΠ½ΠΈΠΌΠ°ΡΡ, ΡΡΠΎ ΡΠΏΠ»ΠΎΡΠ½ΠΈΡΠ΅Π»ΠΈ ΠΈΠΌΠ΅ΡΡ ΡΡΠΎΠΊ ΡΠ»ΡΠΆΠ±Ρ, ΠΏΠΎΡΡΠΎΠΌΡ ΠΈΡ ΠΏΠ΅ΡΠΈΠΎΠ΄ΠΈΡΠ΅ΡΠΊΠΈ Π½ΡΠΆΠ½ΠΎ ΠΌΠ΅Π½ΡΡΡ. ΠΠ΅ ΡΡΠΎΠΈΡ ΡΠ°ΡΡΡΠΈΡΡΠ²Π°ΡΡ, ΡΡΠΎ ΠΎΠ΄ΠΈΠ½ ΡΠ°Π· ΠΏΠΎΡΡΠ°Π²ΠΈΠ² ΠΎΠΊΠ½ΠΎ, Π²Ρ ΠΏΠΎΡΠΎΠΌ Π½Π° 30 Π»Π΅Ρ ΠΌΠΎΠΆΠ΅ΡΠ΅ ΠΎ Π½Π΅ΠΌ Π·Π°Π±ΡΡΡ. Π‘ΡΠΎΠΈΡ ΠΏΡΠΎΠΈΠ·Π²ΠΎΠ΄ΠΈΡΡ ΠΎΠ±ΡΠ»ΡΠΆΠΈΠ²Π°Π½ΠΈΠ΅, Π²ΠΎΠ²ΡΠ΅ΠΌΡ ΠΌΠ΅Π½ΡΡΡ ΠΈΠ·Π½ΠΎΡΠ΅Π½Π½ΡΠ΅ Π΄Π΅ΡΠ°Π»ΠΈ. Π’ΡΠ°Π΄ΠΈΡΠΈΠΎΠ½Π½ΠΎ ΡΠΏΠ»ΠΎΡΠ½ΠΈΡΠ΅Π»ΠΈ ΠΈΠ·Π½Π°ΡΠΈΠ²Π°ΡΡΡΡ Π·Π° 2-4 Π³ΠΎΠ΄Π°. ΠΡΠ΅ Π·Π°Π²ΠΈΡΠΈΡ ΠΎΡ ΡΠ΅ΠΌΠΏΠ΅ΡΠ°ΡΡΡΠ½ΠΎΠ³ΠΎ ΡΠ΅ΠΆΠΈΠΌΠ° ΠΈ ΡΡΠ»ΠΎΠ²ΠΈΠΉ ΡΠΊΡΠΏΠ»ΡΠ°ΡΠ°ΡΠΈΠΈ.
ΠΠΊΠΎΠ½Π½ΡΠΉ Π·Π°Π²ΠΎΠ΄ Β«Π§Π΅ΠΌΠΏΠΈΠΎΠ½Β» ΠΏΡΠ΅Π΄Π»Π°Π³Π°Π΅Ρ Π²Π°ΠΌ ΡΠΎΠ»ΡΠΊΠΎ ΡΠΈΡΠΌΠ΅Π½Π½ΡΠ΅ ΡΠΏΠ»ΠΎΡΠ½ΠΈΡΠ΅Π»ΠΈ Π΄Π»Ρ ΠΎΠΊΠΎΠ½ ΠΏΡΠΎΠΈΠ·Π²ΠΎΠ΄ΡΡΠ²Π° ΠΊΠΎΠΌΠΏΠ°Π½ΠΈΠΈ Veka, ΡΡΠΎ ΠΏΠΎΠ·Π²ΠΎΠ»ΡΠ΅Ρ Π³Π°ΡΠ°Π½ΡΠΈΡΠΎΠ²Π°ΡΡ ΠΏΡΠ΅ΠΊΡΠ°ΡΠ½ΡΠ΅ ΡΠ²ΠΎΠΉΡΡΠ²Π° ΡΠΎΠ²Π°ΡΠ° ΠΈ Π΅Π³ΠΎ ΡΠΊΡΠΏΠ»ΡΠ°ΡΠ°ΡΠΈΠΎΠ½Π½ΡΠ΅ Π²ΠΎΠ·ΠΌΠΎΠΆΠ½ΠΎΡΡΠΈ.
Β
okna-veka.ru
ΠΡΠΎΡΠΈΠ»Ρ Veka ΠΎΠΏΠΈΡΠ°Π½ΠΈΠ΅ ΠΈ ΡΠΎΡΠ½ΡΠ΅ ΡΠ΅Ρ Π½ΠΈΡΠ΅ΡΠΊΠΈΠ΅ Ρ Π°ΡΠ°ΠΊΡΠ΅ΡΠΈΡΡΠΈΠΊΠΈ.
VEKA Π½Π΅ΠΌΠ΅ΡΠΊΠ°Ρ ΠΊΠΎΠΌΠΏΠ°Π½ΠΈΡ, ΠΎΠ΄ΠΈΠ½ ΠΈΠ· Π»ΠΈΠ΄Π΅ΡΠΎΠ² ΠΏΠΎ ΠΏΡΠΎΠΈΠ·Π²ΠΎΠ΄ΡΡΠ²Ρ ΠΏΡΠΎΡΠΈΠ»Π΅ΠΉ ΠΠΠ₯ Π΄Π»Ρ ΠΎΠΊΠΎΠ½ ΠΈ Π΄Π²Π΅ΡΠ΅ΠΉ.
ΠΠΎΠ»ΠΎΠ²Π½ΠΎΠ΅ ΠΏΡΠ΅Π΄ΠΏΡΠΈΡΡΠΈΠ΅ ΠΊΠΎΠ½ΡΠ΅ΡΠ½Π° VEKA AG ΡΠ°ΡΠΏΠΎΠ»ΠΎΠΆΠ΅Π½ΠΎ Π² Π·Π΅ΠΌΠ»Π΅ Π‘Π΅Π²Π΅ΡΠ½Π°Ρ Π Π΅ΠΉΠ½-ΠΠ΅ΡΡΡΠ°Π»ΠΈΡ, Π² Π³ΠΎΡΠΎΠ΄Π΅ ΠΠ΅Π½Π΄Π΅ΡΡ
ΠΎΡΡΡ.
ΠΠΎΡΠ΅ΡΠ½ΠΈΠ΅ ΠΊΠΎΠΌΠΏΠ°Π½ΠΈΠΈ ΠΈΠΌΠ΅ΡΡΡΡ Π² ΠΎΡΠ΅Π½Ρ ΠΌΠ½ΠΎΠ³ΠΈΡ
ΡΡΡΠ°Π½Π°Ρ
, Π² ΡΠΎΠΌ ΡΠΈΡΠ»Π΅ Π² Π‘Π¨Π, ΠΡΠ°Π·ΠΈΠ»ΠΈΠΈ,Β Π€ΡΠ°Π½ΡΠΈΠΈ, ΠΠ΅Π»ΠΈΠΊΠΎΠ±ΡΠΈΡΠ°Π½ΠΈΠΈ, ΠΠΎΠ»ΡΡΠ΅, ΠΠΈΡΠ°Π΅.
ΠΠ΅ΠΌΠ½ΠΎΠ³ΠΎ ΠΈΡΡΠΎΡΠΈΠΈ
ΠΠΎΠΌΠΏΠ°Π½ΠΈΡ Π½Π°ΡΠΈΠ½Π°Π»Π° Π² 1967 Π³ΠΎΠ΄Ρ Ρ ΠΏΡΠΎΠΈΠ·Π²ΠΎΠ΄ΡΡΠ²Π° ΡΠΎΠ»ΡΡΡΠ°Π²Π΅Π½ ΠΈ ΡΡΡΠΎΠΈΡΠ΅Π»ΡΠ½ΡΡ
ΠΏΡΠΎΡΠΈΠ»Π΅ΠΉ.
Π 1969 Π³ΠΎΠ΄Ρ Π²Π»Π°Π΄Π΅Π»ΡΡΠ΅ΠΌ ΠΊΠΎΠΌΠΏΠ°Π½ΠΈΠΈ ΡΡΠ°Π» ΠΎΠ΄ΠΈΠ½ ΠΈΠ· Π΅Ρ ΡΠΎΡΡΡΠ΄Π½ΠΈΠΊΠΎΠ² β ΠΠ΅Π½ΡΠΈΡ
ΠΠ°ΡΠΌΠ°Π½, ΠΈΠΌΠ΅Π½Π½ΠΎ ΡΠΎΠ³Π΄Π° VEKA ΡΡΠ°Π»Π° ΠΏΡΠΎΠΈΠ·Π²ΠΎΠ΄ΠΈΡΡ ΠΎΠΊΠΎΠ½Π½ΡΠ΅ ΠΈ Π΄Π²Π΅ΡΠ½ΡΠ΅ ΠΏΡΠΎΡΠΈΠ»ΠΈ.
Π Π ΠΎΡΡΠΈΠΈ Π΄ΠΎΡΠ΅ΡΠ½ΡΡ ΠΊΠΎΠΌΠΏΠ°Π½ΠΈΡ ΠΊΠΎΠ½ΡΠ΅ΡΠ½Π° Π½ΠΎΡΠΈΡ Π½Π°Π·Π²Π°Π½ΠΈΠ΅ VEKARus
Π‘Π²ΠΎΠΉ ΠΏΠ΅ΡΠ²ΡΠΉ Π·Π°Π²ΠΎΠ΄ Π² Π Π€ ΠΊΠΎΠ½ΡΠ΅ΡΠ½ ΠΎΡΠΊΡΡΠ» Π² 1999 Π³ΠΎΠ΄Ρ, Π² ΠΠ°ΡΠΎ-Π€ΠΎΠΌΠΈΠ½ΡΠΊΠΎΠΌ ΡΠ°ΠΉΠΎΠ½Π΅ ΠΠΎΡΠΊΠΎΠ²ΡΠΊΠΎΠΉ ΠΎΠ±Π»Π°ΡΡΠΈ, Π½Π΅Π΄Π°Π»Π΅ΠΊΠΎ ΠΎΡ Π’ΡΠΎΠΈΡΠΊΠ°.
ΠΡΠΎΡΠΎΠΉ Π·Π°Π²ΠΎΠ΄ Π½Π°ΡΠ°Π» Π²ΡΠΏΡΡΠΊΠ°ΡΡ ΠΏΡΠΎΠ΄ΡΠΊΡΠΈΡ Π² 2004 Π³ΠΎΠ΄Ρ Π² ΠΠΎΠ²ΠΎΡΠΈΠ±ΠΈΡΡΠΊΠ΅.
Π 2005 Π³ΠΎΠ΄Ρ ΠΏΡΠΎΠΈΠ·ΠΎΡΠ»ΠΎ ΠΎΡΠΊΡΡΡΠΈΠ΅ ΡΠΈΠ»ΠΈΠ°Π»Π° Π² Π₯Π°Π±Π°ΡΠΎΠ²ΡΠΊΠ΅.
Π ΠΏΡΠΎΠ΄ΡΠΊΡΠΈΠΈ
VEKA Π²ΡΠΏΡΡΠΊΠ°Π΅Ρ Π±ΠΎΠ»Π΅Π΅ ΠΏΠΎΠ»ΡΡΠΎΡΠ° ΡΡΡΡΡ ΠΏΡΠΎΡΠΈΠ»Π΅ΠΉ Ρ ΡΠ°Π·Π»ΠΈΡΠ½ΡΠΌ ΡΠ΅ΡΠ΅Π½ΠΈΠ΅ΠΌ, Π΄Π»Ρ Π²ΡΠ΅Π²ΠΎΠ·ΠΌΠΎΠΆΠ½ΡΡ
ΠΎΠΊΠΎΠ½Π½ΡΡ
ΠΈ Π΄Π²Π΅ΡΠ½ΡΡ
ΠΊΠΎΠ½ΡΡΡΡΠΊΡΠΈΠΉ.
ΠΡΠΎΡΠΈΠ»ΠΈ ΠΠΠ₯ Π½Π°ΠΈΠ²ΡΡΡΠ΅Π³ΠΎ ΠΊΠ°ΡΠ΅ΡΡΠ²Π°, ΠΎΠΊΡΠ°ΡΠ΅Π½Π½ΡΠ΅ ΠΊΠ°ΠΊ Π±Π΅Π»ΡΠΉ, ΡΠ°ΠΊ ΠΈ Π² Π΄ΡΡΠ³ΠΈΠ΅ ΡΠ²Π΅ΡΠ°, Π² ΠΏΠΎΠΊΡΠ°ΡΠΊΠ΅ Π½Π΅ Π½ΡΠΆΠ΄Π°ΡΡΡΡ. ΠΠΎΠ»Π³ΠΎΠ²Π΅ΡΠ½Ρ, Π½Π΅ Π²ΡΠ³ΠΎΡΠ°ΡΡ ΠΈ Π½Π΅ ΠΆΠ΅Π»ΡΠ΅ΡΡ ΠΎΡ ΡΠΎΠ»Π½Π΅ΡΠ½ΠΎΠ³ΠΎ ΡΠ²Π΅ΡΠ°.
ΠΡΠΌΠΈΡΠΎΠ²Π°Π½ΠΈΠ΅ Π²ΡΠΏΠΎΠ»Π½Π΅Π½ΠΎ Π² ΡΠΎΡΠΌΠ΅ Π·Π°ΠΌΠΊΠ½ΡΡΠΎΠ³ΠΎ ΠΊΠΎΠ½ΡΡΡΠ°, ΡΠ°ΠΊΡΡ Π΅Π³ΠΎ ΡΠ°Π·Π½ΠΎΠ²ΠΈΠ΄Π½ΠΎΡΡΡ ΡΠ°ΡΡΠΎ Π½Π°Π·ΡΠ²Π°ΡΡ Π-ΠΎΠ±ΡΠ°Π·Π½ΡΠΌ.
Π£ΠΏΠ»ΠΎΡΠ½ΠΈΡΠ΅Π»ΠΈ ΠΏΡΠΎΡΠΈΠ»Π΅ΠΉ VEKA Π½Π΅ ΠΏΡΠΎΠΌΠ΅ΡΠ·Π°ΡΡ ΠΈ Π½Π΅ Β«Π΄ΡΠ±Π΅ΡΡΒ» Π² Π·ΠΈΠΌΠ½Π΅Π΅ Π²ΡΠ΅ΠΌΡ, Π»Π΅ΡΠΎΠΌ β Π½Π΅ ΡΠ°ΡΡΡΡ
Π°ΡΡΡΡ.
ΠΡΠΎΡΠΈΠ»ΠΈ Veka
Π‘ΡΡΠ»ΠΊΠΈ-ΠΊΠ°ΡΡΠΈΠ½ΠΊΠΈ Π²ΡΠ³Π»ΡΠ΄ΡΡ Π½Π΅ΠΌΠ½ΠΎΠ³ΠΎ ΠΌΡΡΠ½ΡΠΌΠΈ, Π½ΠΎ Π΅ΡΠ»ΠΈ ΠΏΠ΅ΡΠ΅ΠΉΡΠΈ ΠΈ ΡΠ²Π΅Π»ΠΈΡΠΈΡΡ, ΡΠΎ Π²ΡΡ Π±ΡΠ΄Π΅Ρ Ρ
ΠΎΡΠΎΡΠΎ Π²ΠΈΠ΄Π½ΠΎ.
VEKA Euroline β ΠΊΠ»Π°ΡΡΠΈΡΠ΅ΡΠΊΠ°Ρ ΡΠΈΡΡΠ΅ΠΌΠ° ΠΌΠ½ΠΎΠ³ΠΎΠΊΠ°ΠΌΠ΅ΡΠ½ΡΡ
ΠΎΠΊΠΎΠ½Π½ΡΡ
ΠΈ Π΄Π²Π΅ΡΠ½ΡΡ
ΠΏΡΠΎΡΠΈΠ»Π΅ΠΉ. Π§Π°ΡΠ΅
Π‘ΠΎΠ²ΠΌΠ΅ΡΡΠΈΠΌΠ° Ρ VEKA Softline, ΡΡΠΎ ΠΏΠΎΠ·Π²ΠΎΠ»ΡΠ΅Ρ ΠΏΡΠΈΠΌΠ΅Π½ΡΡΡ Π΄Π»Ρ ΠΎΠ±ΠΎΠΈΡ ΡΠΈΡΡΠ΅ΠΌ ΠΎΠ΄Π½ΠΈ ΠΈ ΡΠ΅ ΠΆΠ΅ ΠΏΡΠΈΡΠΎΠ΅Π΄ΠΈΠ½ΠΈΡΠ΅Π»ΡΠ½ΡΠ΅ ΠΈ Π΄ΠΎΠΏΠΎΠ»Π½ΠΈΡΠ΅Π»ΡΠ½ΡΠ΅ ΠΏΡΠΎΡΠΈΠ»ΠΈ, ΠΏΠ΅ΡΠ΅ΠΊΠ»Π°Π΄ΠΈΠ½Ρ, ΡΡΠ°ΠΏΠΈΠΊΠΈ.
ΠΠΎΠΆΠ΅Ρ Ρ ΡΡΠΏΠ΅Ρ ΠΎΠΌ ΠΈΡΠΏΠΎΠ»ΡΠ·ΠΎΠ²Π°ΡΡΡΡ Π² ΡΠ΅Π³ΠΈΠΎΠ½Π°Ρ Π ΠΎΡΡΠΈΠΈ Ρ Π»ΡΠ±ΡΠΌ ΠΊΠ»ΠΈΠΌΠ°ΡΠΎΠΌ.
Π¦Π΅Π½Π°Β β ΠΎΠΊΠΎΠ»ΠΎ 10000 Ρ.
ΠΠ»Ρ ΠΎΠ·Π½Π°ΠΊΠΎΠΌΠ»Π΅Π½ΠΈΡ Ρ ΡΠ΅Ρ Π½ΠΈΡΠ΅ΡΠΊΠΈΠΌΠΈ Ρ Π°ΡΠ°ΠΊΡΠ΅ΡΠΈΡΡΠΈΠΊΠ°ΠΌΠΈ ΡΠΌΠΎΡΡΠΈΡΠ΅ ΡΠΈΡΡΠ½ΠΎΠΊ Π²Π½ΠΈΠ·Ρ.


VEKA Euroline
Β
VEKA Softline 70 β ΠΊΠ»Π°ΡΡΠΈΡΠ΅ΡΠΊΠ°Ρ ΡΠΈΡΡΠ΅ΠΌΠ° ΠΏΡΡΠΈΠΊΠ°ΠΌΠ΅ΡΠ½ΡΡ ΠΏΡΠΎΡΠΈΠ»Π΅ΠΉ. Π¦ΠΈΡΡΠ° ΠΏΠΎΡΠ»Π΅ Π½Π°Π·Π²Π°Π½ΠΈΡ ΠΎΠ±ΠΎΠ·Π½Π°ΡΠ°Π΅Ρ ΡΠΈΡΠΈΠ½Ρ ΡΠ°ΠΌΡ Π² ΠΌΠΈΠ»Π»ΠΈΠΌΠ΅ΡΡΠ°Ρ . ΠΠ·ΠΎΠ»ΠΈΡΡΡΡΠΈΠ΅ Ρ Π°ΡΠ°ΠΊΡΠ΅ΡΠΈΡΡΠΈΠΊΠΈ ΡΡΠΎΠΉ ΡΠΈΡΡΠ΅ΠΌΡ ΠΎΡΠ΅Π½Ρ Π²ΡΡΠΎΠΊΠΈΠ΅, ΡΡΠΌΠΎΠΈΠ·ΠΎΠ»ΡΡΠΈΡ Π²Π½Π΅ ΠΊΠΎΠ½ΠΊΡΡΠ΅Π½ΡΠΈΠΈ. Π‘ΠΈΡΡΠ΅ΠΌΠ° Ρ ΠΎΡΠΎΡΠΎ ΡΠ΅Π±Ρ Π·Π°ΡΠ΅ΠΊΠΎΠΌΠ΅Π½Π΄ΠΎΠ²Π°Π»Π° Π²ΠΎ Π²ΡΠ΅Ρ ΠΊΠ»ΠΈΠΌΠ°ΡΠΈΡΠ΅ΡΠΊΠΈΡ Π·ΠΎΠ½Π°Ρ Π½Π°ΡΠ΅ΠΉ Π±ΠΎΠ»ΡΡΠΎΠΉ ΡΡΡΠ°Π½Ρ. ΠΠΎΠ΄Ρ ΠΎΠ΄ΡΡ Π²ΡΠ΅ ΡΠ°ΡΠΏΡΠΎΡΡΡΠ°Π½ΡΠ½Π½ΡΠ΅ ΡΡΡΠ½ΠΈΡΡΡΠ½ΡΠ΅ ΡΠΈΡΡΠ΅ΠΌΡ. ΠΠΎΠ²Π΅ΡΡ Π½ΠΎΡΡΡ ΡΠΎΠ²Π½Π°Ρ ΠΈ Π³Π»Π°Π΄ΠΊΠ°Ρ. Π£ΠΏΠ»ΠΎΡΠ½ΠΈΡΠ΅Π»ΠΈ ΡΠ΅ΡΠΎΠ³ΠΎ, ΡΡΡΠ½ΠΎΠ³ΠΎ, ΠΊΠ°ΡΠ°ΠΌΠ΅Π»ΡΠ½ΠΎΠ³ΠΎ ΡΠ²Π΅ΡΠΎΠ².
Π¦Π΅Π½Π°Β β ΠΎΠΊΠΎΠ»ΠΎ 12000 Ρ.


VEKA Softline 70
Β
ΠΡΠΎΡΠΈΠ»Ρ VEKA WHS 60 ΡΠ°ΠΌΡΠΉ Π΄ΠΎΡΡΡΠΏΠ½ΡΠΉ ΠΈΠ· Π²ΡΠ΅ΠΉ Π°Π½Π°Π»ΠΎΠ³ΠΈΡΠ½ΠΎΠΉ ΠΏΡΠΎΠ΄ΡΠΊΡΠΈΠΈ VEKA. ΠΠ΄Π½Π°ΠΊΠΎ Π½Π΅ ΡΠ»Π΅Π΄ΡΠ΅Ρ ΠΏΡΡΠ°ΡΡ Π΅Π³ΠΎ Ρ Π±ΡΠ΄ΠΆΠ΅ΡΠ½ΡΠΌΠΈ, Π΄Π΅ΡΡΠ²ΡΠΌΠΈ ΠΈΠ·Π΄Π΅Π»ΠΈΡΠΌΠΈ ΠΈΠ· Π’ΡΡΡΠΈΠΈ Π»ΠΈΠ±ΠΎ ΠΠΈΡΠ°Ρ. ΠΠ°ΡΠ΅ΡΡΠ²ΠΎ ΠΏΠΎ Π»ΡΠ±ΠΎΠΌΡ ΠΎΡΡΠ°ΡΡΡΡ Π΄ΠΎΡΡΠ°ΡΠΎΡΠ½ΠΎ Π²ΡΡΠΎΠΊΠΈΠΌ, Π²Π΅Π΄Ρ VEKA β Π΅Π²ΡΠΎΠΏΠ΅ΠΉΡΠΊΠΈΠΉ, Π΄ΠΎΡΠΎΠΆΠ°ΡΠΈΠΉ ΡΠ²ΠΎΠ΅ΠΉ ΡΠ΅ΠΏΡΡΠ°ΡΠΈΠ΅ΠΉ ΠΊΠΎΠ½ΡΠ΅ΡΠ½.



VEKA WHS 60
ΠΡΠΎΡΠΈΠ»Ρ VEKA WHS 72 ΠΏΠΎΠ»ΡΡΠΈΠ» ΡΠ°ΡΠΏΡΠΎΡΡΡΠ°Π½Π΅Π½ΠΈΠ΅ Π½Π° ΡΡΠ½ΠΊΠ΅ ΠΎΡΠ½ΠΎΡΠΈΡΠ΅Π»ΡΠ½ΠΎ Π½Π΅ Π΄Π°Π²Π½ΠΎ, Π² 2015 Π³ΠΎΠ΄Ρ.Β ΠΠ»Π°Π³ΠΎΠ΄Π°ΡΡ ΡΠΎΡΠ΅ΡΠ°Π½ΠΈΡ Π΄ΠΎΡΡΡΠΏΠ½ΠΎΠΉ ΡΠ΅Π½Ρ, ΠΎΡΠ»ΠΈΡΠ½ΡΡ Ρ Π°ΡΠ°ΠΊΡΠ΅ΡΠΈΡΡΠΈΠΊ ΠΈ Π΄ΠΎΡΡΠΎΠΉΠ½ΠΎΠ³ΠΎ ΠΊΠ°ΡΠ΅ΡΡΠ²Π° ΡΠΈΡΡΠ΅ΠΌΠ° ΡΠΌΠΎΠ³Π»Π° ΠΎΡΠ΅Π½Ρ Π±ΡΡΡΡΠΎ ΡΡΠ°ΡΡ Π΄ΠΎΠ²ΠΎΠ»ΡΠ½ΠΎ ΠΏΠΎΠΏΡΠ»ΡΡΠ½ΠΎΠΉ.


VEKA WHS 72
Β
VEKA Proline β ΡΠ΅ΡΡΡΡΡ ΠΊΠ°ΠΌΠ΅ΡΠ½Π°Ρ ΠΏΡΠΎΡΠΈΠ»ΡΠ½Π°Ρ ΡΠΈΡΡΠ΅ΠΌΠ°, Π±ΠΎΠ»Π΅Π΅ Π΄ΠΎΡΡΡΠΏΠ½ΡΠΉ Π°Π½Π°Π»ΠΎΠ³ VEKA Softline. ΠΠΌΠ΅Π΅Ρ ΠΎΡΠ»ΠΈΡΠ½ΡΠ΅ ΠΈΠ·ΠΎΠ»ΠΈΡΡΡΡΠΈΠ΅ Ρ Π°ΡΠ°ΠΊΡΠ΅ΡΠΈΡΡΠΈΠΊΠΈ, Π±Π»Π°Π³ΠΎΠ΄Π°ΡΡ Π²ΡΡΠΎΠΊΠΎΠΊΠ°ΡΠ΅ΡΡΠ²Π΅Π½Π½ΠΎΠΌΡ ΠΏΠ»Π°ΡΡΠΈΠΊΡ, Π±Π΅Π· ΠΏΡΠΎΠ±Π»Π΅ΠΌ ΠΏΠ΅ΡΠ΅Π½ΠΎΡΡΡΠ΅Π³ΠΎ Π²ΠΎΠ·Π΄Π΅ΠΉΡΡΠ²ΠΈΡΠΌ ΠΎΠΊΡΡΠΆΠ°ΡΡΠ΅ΠΉ ΡΡΠ΅Π΄Ρ, Π½Π΅ ΠΈΡΠΏΡΡΡΠ²Π°Π΅Ρ Π½ΡΠΆΠ΄Ρ Π² ΠΏΠΎΠΊΡΠ°ΡΠΊΠ΅ ΠΈ ΠΈΠ½ΠΎΠΌ Π²ΠΈΠ΄Π΅ ΡΠΏΠ΅ΡΠΈΠ°Π»ΡΠ½ΠΎΠ³ΠΎ ΡΡ ΠΎΠ΄Π°.


VEKA Proline
VEKA Alphaline β ΡΠ΅ΡΡΠΈΠΊΠ°ΠΌΠ΅ΡΠ½Π°Ρ ΡΠΈΡΡΠ΅ΠΌΠ° Ρ Π½Π°ΠΈΠ»ΡΡΡΠΈΠΌ ΡΠ΅ΠΏΠ»ΠΎΡΠ±Π΅ΡΠ΅ΠΆΠ΅Π½ΠΈΠ΅ΠΌ, ΠΌΠ°ΠΊΡΠΈΠΌΠ°Π»ΡΠ½ΠΎ Π²ΠΎΠ·ΠΌΠΎΠΆΠ½ΠΎΠΉ ΡΠΈΡΠΈΠ½ΠΎΠΉ ΠΏΡΠΎΡΠΈΠ»Ρ (90 ΠΌΠΌ), ΠΌΠ°ΠΊΡΠΈΠΌΠ°Π»ΡΠ½Π°Ρ ΡΠΎΠ»ΡΠΈΠ½Π° ΡΡΠ΅ΠΊΠ»ΠΎΠΏΠ°ΠΊΠ΅ΡΠ° 50 ΠΌΠΌ. ΠΠ±ΠΎΠΉΠ΄ΡΡΡΡ Π΄Π°Π½Π½ΡΠΉ ΠΏΡΠΎΡΠΈΠ»Ρ ΠΏΡΠΈΠΌΠ΅ΡΠ½ΠΎ Π½Π° 10-15% Π΄ΠΎΡΠΎΠΆΠ΅, ΡΠ΅ΠΌ Π΄ΡΡΠ³ΠΈΠ΅.


VEKA Alphaline
VEKA Swingline β Π²ΡΡΠΎΠΊΠΎΠΊΠ°ΡΠ΅ΡΡΠ²Π΅Π½Π½Π°Ρ ΠΏΡΡΠΈΠΊΠ°ΠΌΠ΅ΡΠ½Π°Ρ ΠΏΡΠΎΡΠΈΠ»ΡΠ½Π°Ρ ΡΠΈΡΡΠ΅ΠΌΠ°. ΠΡΠ»ΠΈΡΠΈΡΠ΅Π»ΡΠ½ΠΎΠΉ Π²Π½Π΅ΡΠ½Π΅ΠΉ ΡΠ΅ΡΡΠΎΠΉ ΡΠ²Π»ΡΡΡΡΡ ΠΎΠΊΡΡΠ³Π»ΡΠ½Π½ΡΠ΅ ΡΠ°Π΄ΠΈΡΡΡ Π² Π½Π°ΡΡΠΆΠ½ΠΎΠΌ ΠΊΠΎΠ½ΡΡΡΠ΅. Π‘ΡΡΠ΅ΡΡΠ²ΡΠ΅Ρ Π²ΠΎΠ·ΠΌΠΎΠΆΠ½ΠΎΡΡΡ ΡΡΠΈΠ»Π΅Π½ΠΈΡ Π·Π°ΡΠΈΡΡ ΠΎΡ Π²Π·Π»ΠΎΠΌΠ° Π±Π»Π°Π³ΠΎΠ΄Π°ΡΡ ΡΠΎΠ²ΠΌΠ΅ΡΡΠΈΠΌΠΎΡΡΠΈ Ρ ΡΠΎΠ²ΡΠ΅ΠΌΠ΅Π½Π½ΡΠΌΠΈ ΠΏΡΠΎΡΠΈΠ²ΠΎΠ²Π·Π»ΠΎΠΌΠ½ΡΠΌΠΈ ΡΠ»Π΅ΠΌΠ΅Π½ΡΠ°ΠΌΠΈ.

VEKA Swingline
ΠΠΎΠ·ΠΌΠΎΠΆΠ½ΠΎ Π²Π°Ρ Π·Π°ΠΈΠ½ΡΠ΅ΡΠ΅ΡΡΡΡ ΠΎΠ±ΡΠΈΠ΅ ΡΠ΅ΠΊΠΎΠΌΠ΅Π½Π΄Π°ΡΠΈΠΈ ΠΏΠΎ Π²ΡΠ±ΠΎΡΡ ΠΏΠ»Π°ΡΡΠΈΠΊΠΎΠ²ΡΡ ΠΎΠΊΠΎΠ½ ΠΈΠ»ΠΈ ΠΊΠ°ΠΊ ΠΏΠΎΠ΄Π³ΠΎΡΠΎΠ²ΠΈΡΡ ΠΏΠ»Π°ΡΡΠΈΠΊΠΎΠ²ΡΠ΅ ΠΎΠΊΠ½Π° ΠΊ Π·ΠΈΠΌΠ΅.
Π½Π° ΠΠ°Ρ ΡΠ°ΠΉΡ.
vybiraemtovar.ru
ΠΠΠ «ΠΠΠ «ΠΠΠ‘Π’Π» — ΠΡΠΎΠΈΠ·Π²ΠΎΠ΄ΡΡΠ²ΠΎ ΡΠΏΠ»ΠΎΡΠ½ΠΈΡΠ΅Π»Π΅ΠΉ VEKA Π΄Π»Ρ ΠΠΠ₯ ΠΊΠΎΠ½ΡΡΡΡΠΊΡΠΈΠΉ
Β Β Π£ΠΠΠΠ’ΠΠΠ’ΠΠΠ ΠΠΠ― ΠΠΠ₯ ΠΠΠΠ
- ΠΡΠΎΡΠΈΠ»Ρ: VΠKAΒ Β Β Β
- ΠΠ°ΡΠ΅ΡΠΈΠ°Π»:Β ΡΠ΅ΡΠΌΠΎΡΠ»Π°ΡΡΠΎΠΏΠ»Π°ΡΡ TPE-S (Π’ΠΠ Π½Π° ΠΎΡΠ½ΠΎΠ²Π΅ SEBS)
- Π¦Π²Π΅Ρ:Β ΡΠ΅ΡΠ½ΡΠΉΒ Β ΡΠ΅ΡΡΠΉΒ Β Π±Π΅Π»ΡΠΉΒ
- ΠΠΎΠ·ΠΌΠΎΠΆΠ½ΠΎΡΡΡ ΠΈΠ·Π³ΠΎΡΠΎΠ²Π»Π΅Π½ΠΈΡ ΡΠΏΠ»ΠΎΡΠ½ΠΈΡΠ΅Π»Π΅ΠΉ Π»ΡΠ±ΠΎΠ³ΠΎ ΡΠ²Π΅ΡΠ° ΠΏΠΎΠ΄ Π²Π°ΡΠΈ Π·Π°Π΄Π°ΡΠΈ
| ΠΡΡΠΈΠΊΡΠ» | ΠΠ°ΠΈΠΌΠ΅Π½ΠΎΠ²Π°Π½ΠΈΠ΅ ΡΠΎΠ²Π°ΡΠΎΠ² | ΠΠΎΡΠΌΠ° ΡΠΏΠ°ΠΊΠΎΠ²ΠΊΠΈ |
Β Β Β Β Β Β Β Β Β Β Β VS 03-253 | Π£ΠΏΠ»ΠΎΡΠ½ΠΈΡΠ΅Π»Ρ Π’Π Π, Π°Π½Π°Π»ΠΎΠ³ VΠKA 253 | 400 ΠΌ |
Β Β Β Β Β Β Β Β Β Β Β VS 03-253/1 | Β Β Β Β Β Π£ΠΏΠ»ΠΎΡΠ½ΠΈΡΠ΅Π»Ρ Π’Π Π, Π°Π½Π°Π»ΠΎΠ³ VΠKA 253Β RUS | 400 ΠΌ |
Β Β Β Β Β Β Β Β Β Β Β VS 03-254 | Β Π£ΠΏΠ»ΠΎΡΠ½ΠΈΡΠ΅Π»Ρ Π’Π Π, Π°Π½Π°Π»ΠΎΠ³Β VΠKA 254 | 400 ΠΌ |
Π£ΠΏΠ»ΠΎΡΠ½ΠΈΡΠ΅Π»Ρ ΠΎΠ±ΡΠ°Π±ΠΎΡΠ°Π½ ΡΠΈΠ»ΠΈΠΊΠΎΠ½ΠΎΠ²ΡΠΌ ΠΌΠ°ΡΠ»ΠΎΠΌ, Π½Π°ΠΌΠΎΡΠ°Π½ Π½Π° ΠΊΠ°ΡΡΠΎΠ½Π½ΡΡ Π±ΠΎΠ±ΠΈΠ½Ρ, ΡΠΏΠ°ΠΊΠΎΠ²Π°Π½Β Π² ΠΏΠΎΠ»ΠΈΡΡΠΈΠ»Π΅Π½ΠΎΠ²ΡΠΉ ΠΏΠ°ΠΊΠ΅Ρ ΠΈ ΠΊΠ°ΡΡΠΎΠ½Π½ΡΡ ΠΊΠΎΡΠΎΠ±ΠΊΡ.
Π£ΠΏΠ»ΠΎΡΠ½ΠΈΡΠ΅Π»Ρ VEKA ΠΈΡΠΏΠΎΠ»ΡΠ·ΡΠ΅ΡΡΡ ΡΠ°ΠΊΠΆΠ΅ Π΄Π»Ρ ΡΠ»Π΅Π΄ΡΡΡΠΈΡ Π²ΠΈΠ΄ΠΎΠ² ΠΏΡΠΎΡΠΈΠ»Π΅ΠΉ:
ΠΠΎΡΠΌΠΎΡΡΠ΅ΡΡ ΡΠΏΠ»ΠΎΡΠ½ΠΈΡΠ΅Π»ΠΈ Π΄Π»Ρ Π΄ΡΡΠ³ΠΈΡ ΠΌΠ°ΡΠΎΠΊ ΠΏΡΠΎΡΠΈΠ»Π΅ΠΉ:Β KBE,Β REHAU,Β WINTECH,Β KOMMERLING,Β GEALAN,Β PROVEDALΒ
(Π½Π°ΠΆΠΌΠΈΡΠ΅, ΡΡΠΎΠ±Ρ ΠΏΠ΅ΡΠ΅ΠΉΡΠΈ ΠΏΠΎ ΡΡΡΠ»ΠΊΠ΅).
npk-vasta.ru
| β | ΠΡΡΠΈΠΊΡΠ» | ΠΠ°ΠΈΠΌΠ΅Π½ΠΎΠ²Π°Π½ΠΈΠ΅ ΡΠΏΠ»ΠΎΡΠ½ΠΈΡΠ΅Π»Ρ | ΠΠ»Π»ΡΡΡΡΠ°ΡΠΈΡ |
|---|---|---|---|
| 1 | Π£Π.ΠΠΈΠ-0020.IV.Π° | Π£ΠΏΠ»ΠΎΡΠ½ΠΈΡΠ΅Π»Ρ Π΄Π»Ρ ΠΌΠ΅ΡΠ°Π»Π»ΠΎΠΏΠ»Π°ΡΡΠΈΠΊΠΎΠ²ΡΡ
ΡΠΈΡΡΠ΅ΠΌ (ΠΠΠ-227) | Π£ΠΏΠ»ΠΎΡΠ½ΠΈΡΠ΅Π»Ρ Π΄Π»Ρ ΠΌΠ΅ΡΠ°Π»Π»ΠΎΠΏΠ»Π°ΡΡΠΈΠΊΠΎΠ²ΡΡ
ΡΠΈΡΡΠ΅ΠΌ (ΠΠΠ-227) |
| 2 | Π£Π.ΠΠΈΠ-0021.IV.Π° | Π£ΠΏΠ»ΠΎΡΠ½ΠΈΡΠ΅Π»Ρ Π΄Π»Ρ ΠΌΠ΅ΡΠ°Π»Π»ΠΎΠΏΠ»Π°ΡΡΠΈΠΊΠΎΠ²ΡΡ
ΡΠΈΡΡΠ΅ΠΌ (ΠΠΠ-255) | Π£ΠΏΠ»ΠΎΡΠ½ΠΈΡΠ΅Π»Ρ Π΄Π»Ρ ΠΌΠ΅ΡΠ°Π»Π»ΠΎΠΏΠ»Π°ΡΡΠΈΠΊΠΎΠ²ΡΡ
ΡΠΈΡΡΠ΅ΠΌ (ΠΠΠ-255) |
| 3 | Π£Π.ΠΠΈΠ-0028.IV.Π° | Π£ΠΏΠ»ΠΎΡΠ½ΠΈΡΠ΅Π»Ρ Π΄Π»Ρ ΠΌΠ΅ΡΠ°Π»Π»ΠΎΠΏΠ»Π°ΡΡΠΈΠΊΠΎΠ²ΡΡ
ΡΠΈΡΡΠ΅ΠΌ (ALUPLAST) | Π£ΠΏΠ»ΠΎΡΠ½ΠΈΡΠ΅Π»Ρ Π΄Π»Ρ ΠΌΠ΅ΡΠ°Π»Π»ΠΎΠΏΠ»Π°ΡΡΠΈΠΊΠΎΠ²ΡΡ
ΡΠΈΡΡΠ΅ΠΌ (ALUPLAST) |
| 4 | Π£Π.ΠΠΈΠ-0029.IV.Π° | Π£ΠΏΠ»ΠΎΡΠ½ΠΈΡΠ΅Π»Ρ Π΄Π»Ρ ΠΌΠ΅ΡΠ°Π»Π»ΠΎΠΏΠ»Π°ΡΡΠΈΠΊΠΎΠ²ΡΡ
ΡΠΈΡΡΠ΅ΠΌ (REHAU) | Π£ΠΏΠ»ΠΎΡΠ½ΠΈΡΠ΅Π»Ρ Π΄Π»Ρ ΠΌΠ΅ΡΠ°Π»Π»ΠΎΠΏΠ»Π°ΡΡΠΈΠΊΠΎΠ²ΡΡ
ΡΠΈΡΡΠ΅ΠΌ (REHAU) |
| 5 | Π£Π.ΠΠΈΠ-0029.1.IV.Π° | Π£ΠΏΠ»ΠΎΡΠ½ΠΈΡΠ΅Π»Ρ Π΄Π»Ρ ΠΌΠ΅ΡΠ°Π»Π»ΠΎΠΏΠ»Π°ΡΡΠΈΠΊΠΎΠ²ΡΡ
ΡΠΈΡΡΠ΅ΠΌ (REHAU) | Π£ΠΏΠ»ΠΎΡΠ½ΠΈΡΠ΅Π»Ρ Π΄Π»Ρ ΠΌΠ΅ΡΠ°Π»Π»ΠΎΠΏΠ»Π°ΡΡΠΈΠΊΠΎΠ²ΡΡ
ΡΠΈΡΡΠ΅ΠΌ (REHAU) |
| 6 | Π£Π.ΠΠΈΠ-0030.IV.Π° | Π£ΠΏΠ»ΠΎΡΠ½ΠΈΡΠ΅Π»Ρ Π΄Π»Ρ ΠΌΠ΅ΡΠ°Π»Π»ΠΎΠΏΠ»Π°ΡΡΠΈΠΊΠΎΠ²ΡΡ
ΡΠΈΡΡΠ΅ΠΌ (REHAU) | Π£ΠΏΠ»ΠΎΡΠ½ΠΈΡΠ΅Π»Ρ Π΄Π»Ρ ΠΌΠ΅ΡΠ°Π»Π»ΠΎΠΏΠ»Π°ΡΡΠΈΠΊΠΎΠ²ΡΡ
ΡΠΈΡΡΠ΅ΠΌ (REHAU) |
| 7 | Π£Π.ΠΠΈΠ-0030.1.IV.Π° | Π£ΠΏΠ»ΠΎΡΠ½ΠΈΡΠ΅Π»Ρ Π΄Π»Ρ ΠΌΠ΅ΡΠ°Π»Π»ΠΎΠΏΠ»Π°ΡΡΠΈΠΊΠΎΠ²ΡΡ
ΡΠΈΡΡΠ΅ΠΌ (REHAU) | Π£ΠΏΠ»ΠΎΡΠ½ΠΈΡΠ΅Π»Ρ Π΄Π»Ρ ΠΌΠ΅ΡΠ°Π»Π»ΠΎΠΏΠ»Π°ΡΡΠΈΠΊΠΎΠ²ΡΡ
ΡΠΈΡΡΠ΅ΠΌ (REHAU) |
| 8 | Π£Π.ΠΠΈΠ-0035.IV.Π° | Π£ΠΏΠ»ΠΎΡΠ½ΠΈΡΠ΅Π»Ρ Π΄Π»Ρ ΠΌΠ΅ΡΠ°Π»Π»ΠΎΠΏΠ»Π°ΡΡΠΈΠΊΠΎΠ²ΡΡ
ΡΠΈΡΡΠ΅ΠΌ (Salamander) | Π£ΠΏΠ»ΠΎΡΠ½ΠΈΡΠ΅Π»Ρ Π΄Π»Ρ ΠΌΠ΅ΡΠ°Π»Π»ΠΎΠΏΠ»Π°ΡΡΠΈΠΊΠΎΠ²ΡΡ
ΡΠΈΡΡΠ΅ΠΌ (Salamander) |
| 9 | Π£Π.ΠΠΈΠ-0036.IV.Π° | Π£ΠΏΠ»ΠΎΡΠ½ΠΈΡΠ΅Π»Ρ Π΄Π»Ρ ΠΌΠ΅ΡΠ°Π»Π»ΠΎΠΏΠ»Π°ΡΡΠΈΠΊΠΎΠ²ΡΡ
ΡΠΈΡΡΠ΅ΠΌ (Salamander) | Π£ΠΏΠ»ΠΎΡΠ½ΠΈΡΠ΅Π»Ρ Π΄Π»Ρ ΠΌΠ΅ΡΠ°Π»Π»ΠΎΠΏΠ»Π°ΡΡΠΈΠΊΠΎΠ²ΡΡ
ΡΠΈΡΡΠ΅ΠΌ (Salamander) |
| 10 | Π£Π.ΠΠΈΠ-0040.IV.Π° | Π£ΠΏΠ»ΠΎΡΠ½ΠΈΡΠ΅Π»Ρ Π΄Π»Ρ ΠΌΠ΅ΡΠ°Π»Π»ΠΎΠΏΠ»Π°ΡΡΠΈΠΊΠΎΠ²ΡΡ
ΡΠΈΡΡΠ΅ΠΌ (WELTPLAST) | Π£ΠΏΠ»ΠΎΡΠ½ΠΈΡΠ΅Π»Ρ Π΄Π»Ρ ΠΌΠ΅ΡΠ°Π»Π»ΠΎΠΏΠ»Π°ΡΡΠΈΠΊΠΎΠ²ΡΡ
ΡΠΈΡΡΠ΅ΠΌ (WELTPLAST) |
| 11 | Π£Π.ΠΠΈΠ-0042.IV.Π° | Π£ΠΏΠ»ΠΎΡΠ½ΠΈΡΠ΅Π»Ρ Π΄Π»Ρ ΠΌΠ΅ΡΠ°Π»Π»ΠΎΠΏΠ»Π°ΡΡΠΈΠΊΠΎΠ²ΡΡ
ΡΠΈΡΡΠ΅ΠΌ (WELTPLAST) | Π£ΠΏΠ»ΠΎΡΠ½ΠΈΡΠ΅Π»Ρ Π΄Π»Ρ ΠΌΠ΅ΡΠ°Π»Π»ΠΎΠΏΠ»Π°ΡΡΠΈΠΊΠΎΠ²ΡΡ
ΡΠΈΡΡΠ΅ΠΌ (WELTPLAST) |
| 12 | Π£Π.ΠΠΈΠ-0045.IV.Π° | Π£ΠΏΠ»ΠΎΡΠ½ΠΈΡΠ΅Π»Ρ Π΄Π»Ρ ΠΌΠ΅ΡΠ°Π»Π»ΠΎΠΏΠ»Π°ΡΡΠΈΠΊΠΎΠ²ΡΡ
ΡΠΈΡΡΠ΅ΠΌ (Kommerling) | Π£ΠΏΠ»ΠΎΡΠ½ΠΈΡΠ΅Π»Ρ Π΄Π»Ρ ΠΌΠ΅ΡΠ°Π»Π»ΠΎΠΏΠ»Π°ΡΡΠΈΠΊΠΎΠ²ΡΡ
ΡΠΈΡΡΠ΅ΠΌ (Kommerling) |
| 13 | Π£Π.ΠΠΈΠ-0046.IV.Π° | Π£ΠΏΠ»ΠΎΡΠ½ΠΈΡΠ΅Π»Ρ Π΄Π»Ρ ΠΌΠ΅ΡΠ°Π»Π»ΠΎΠΏΠ»Π°ΡΡΠΈΠΊΠΎΠ²ΡΡ
ΡΠΈΡΡΠ΅ΠΌ (Kommerling) | Π£ΠΏΠ»ΠΎΡΠ½ΠΈΡΠ΅Π»Ρ Π΄Π»Ρ ΠΌΠ΅ΡΠ°Π»Π»ΠΎΠΏΠ»Π°ΡΡΠΈΠΊΠΎΠ²ΡΡ
ΡΠΈΡΡΠ΅ΠΌ (Kommerling) |
| 14 | Π£Π.ΠΠΈΠ-0121.IV.Π° | Π£ΠΏΠ»ΠΎΡΠ½ΠΈΡΠ΅Π»Ρ Π΄Π»Ρ ΠΌΠ΅ΡΠ°Π»Π»ΠΎΠΏΠ»Π°ΡΡΠΈΠΊΠΎΠ²ΡΡ
ΡΠΈΡΡΠ΅ΠΌ (ΠΠ ΠΠ§ΠΠ) | Π£ΠΏΠ»ΠΎΡΠ½ΠΈΡΠ΅Π»Ρ Π΄Π»Ρ ΠΌΠ΅ΡΠ°Π»Π»ΠΎΠΏΠ»Π°ΡΡΠΈΠΊΠΎΠ²ΡΡ
ΡΠΈΡΡΠ΅ΠΌ (ΠΠ ΠΠ§ΠΠ) |
| 15 | Π£Π.ΠΠΈΠ-0122.IV.Π° | Π£ΠΏΠ»ΠΎΡΠ½ΠΈΡΠ΅Π»Ρ Π΄Π»Ρ ΠΌΠ΅ΡΠ°Π»Π»ΠΎΠΏΠ»Π°ΡΡΠΈΠΊΠΎΠ²ΡΡ
ΡΠΈΡΡΠ΅ΠΌ (ΠΠ ΠΠ§ΠΠ) | Π£ΠΏΠ»ΠΎΡΠ½ΠΈΡΠ΅Π»Ρ Π΄Π»Ρ ΠΌΠ΅ΡΠ°Π»Π»ΠΎΠΏΠ»Π°ΡΡΠΈΠΊΠΎΠ²ΡΡ
ΡΠΈΡΡΠ΅ΠΌ (ΠΠ ΠΠ§ΠΠ) |
| 16 | Π£Π.ΠΠΈΠ-0130.IV.Π° | Π£ΠΏΠ»ΠΎΡΠ½ΠΈΡΠ΅Π»Ρ Π΄Π»Ρ ΠΌΠ΅ΡΠ°Π»Π»ΠΎΠΏΠ»Π°ΡΡΠΈΠΊΠΎΠ²ΡΡ
ΡΠΈΡΡΠ΅ΠΌ (ΠΠ ΠΠ§ΠΠ) | Π£ΠΏΠ»ΠΎΡΠ½ΠΈΡΠ΅Π»Ρ Π΄Π»Ρ ΠΌΠ΅ΡΠ°Π»Π»ΠΎΠΏΠ»Π°ΡΡΠΈΠΊΠΎΠ²ΡΡ
ΡΠΈΡΡΠ΅ΠΌ (ΠΠ ΠΠ§ΠΠ) |
| 17 | Π£Π.ΠΠΈΠ-0131.IV.Π° | Π£ΠΏΠ»ΠΎΡΠ½ΠΈΡΠ΅Π»Ρ Π΄Π»Ρ ΠΌΠ΅ΡΠ°Π»Π»ΠΎΠΏΠ»Π°ΡΡΠΈΠΊΠΎΠ²ΡΡ
ΡΠΈΡΡΠ΅ΠΌ (ΠΠ ΠΠ§ΠΠ) | Π£ΠΏΠ»ΠΎΡΠ½ΠΈΡΠ΅Π»Ρ Π΄Π»Ρ ΠΌΠ΅ΡΠ°Π»Π»ΠΎΠΏΠ»Π°ΡΡΠΈΠΊΠΎΠ²ΡΡ
ΡΠΈΡΡΠ΅ΠΌ (ΠΠ ΠΠ§ΠΠ) |
| 18 | Π£Π.ΠΠΈΠ-0136.IV.Π° | Π£ΠΏΠ»ΠΎΡΠ½ΠΈΡΠ΅Π»Ρ Π΄Π»Ρ ΠΌΠ΅ΡΠ°Π»Π»ΠΎΠΏΠ»Π°ΡΡΠΈΠΊΠΎΠ²ΡΡ
ΡΠΈΡΡΠ΅ΠΌ (VEKA) | Π£ΠΏΠ»ΠΎΡΠ½ΠΈΡΠ΅Π»Ρ Π΄Π»Ρ ΠΌΠ΅ΡΠ°Π»Π»ΠΎΠΏΠ»Π°ΡΡΠΈΠΊΠΎΠ²ΡΡ
ΡΠΈΡΡΠ΅ΠΌ (VEKA) |
| 19 | Π£Π.ΠΠΈΠ-0137.IV.Π° | Π£ΠΏΠ»ΠΎΡΠ½ΠΈΡΠ΅Π»Ρ Π΄Π»Ρ ΠΌΠ΅ΡΠ°Π»Π»ΠΎΠΏΠ»Π°ΡΡΠΈΠΊΠΎΠ²ΡΡ
ΡΠΈΡΡΠ΅ΠΌ (VEKA) | Π£ΠΏΠ»ΠΎΡΠ½ΠΈΡΠ΅Π»Ρ Π΄Π»Ρ ΠΌΠ΅ΡΠ°Π»Π»ΠΎΠΏΠ»Π°ΡΡΠΈΠΊΠΎΠ²ΡΡ
ΡΠΈΡΡΠ΅ΠΌ (VEKA) |
| 20 | Π£Π.ΠΠΈΠ-0138.IV.Π° | Π£ΠΏΠ»ΠΎΡΠ½ΠΈΡΠ΅Π»Ρ Π΄Π»Ρ ΠΌΠ΅ΡΠ°Π»Π»ΠΎΠΏΠ»Π°ΡΡΠΈΠΊΠΎΠ²ΡΡ
ΡΠΈΡΡΠ΅ΠΌ (VEKA) | Π£ΠΏΠ»ΠΎΡΠ½ΠΈΡΠ΅Π»Ρ Π΄Π»Ρ ΠΌΠ΅ΡΠ°Π»Π»ΠΎΠΏΠ»Π°ΡΡΠΈΠΊΠΎΠ²ΡΡ
ΡΠΈΡΡΠ΅ΠΌ (VEKA) |
| 21 | Π£Π.ΠΠΈΠ-0139.IV.Π° | Π£ΠΏΠ»ΠΎΡΠ½ΠΈΡΠ΅Π»Ρ Π΄Π»Ρ ΠΌΠ΅ΡΠ°Π»Π»ΠΎΠΏΠ»Π°ΡΡΠΈΠΊΠΎΠ²ΡΡ
ΡΠΈΡΡΠ΅ΠΌ (VEKA) | Π£ΠΏΠ»ΠΎΡΠ½ΠΈΡΠ΅Π»Ρ Π΄Π»Ρ ΠΌΠ΅ΡΠ°Π»Π»ΠΎΠΏΠ»Π°ΡΡΠΈΠΊΠΎΠ²ΡΡ
ΡΠΈΡΡΠ΅ΠΌ (VEKA) |
| 22 | Π£Π.ΠΠΈΠ-0231.IV.Π° | Π£ΠΏΠ»ΠΎΡΠ½ΠΈΡΠ΅Π»Ρ Π΄Π»Ρ ΠΌΠ΅ΡΠ°Π»Π»ΠΎΠΏΠ»Π°ΡΡΠΈΠΊΠΎΠ²ΡΡ
ΡΠΈΡΡΠ΅ΠΌ (VEKA) | Π£ΠΏΠ»ΠΎΡΠ½ΠΈΡΠ΅Π»Ρ Π΄Π»Ρ ΠΌΠ΅ΡΠ°Π»Π»ΠΎΠΏΠ»Π°ΡΡΠΈΠΊΠΎΠ²ΡΡ
ΡΠΈΡΡΠ΅ΠΌ (VEKA) |
| 23 | Π£Π.ΠΠΈΠ-0200.IV.Π° | Π£ΠΏΠ»ΠΎΡΠ½ΠΈΡΠ΅Π»Ρ Π΄Π»Ρ ΠΌΠ΅ΡΠ°Π»Π»ΠΎΠΏΠ»Π°ΡΡΠΈΠΊΠΎΠ²ΡΡ
ΡΠΈΡΡΠ΅ΠΌ (WINTECH) | Π£ΠΏΠ»ΠΎΡΠ½ΠΈΡΠ΅Π»Ρ Π΄Π»Ρ ΠΌΠ΅ΡΠ°Π»Π»ΠΎΠΏΠ»Π°ΡΡΠΈΠΊΠΎΠ²ΡΡ
ΡΠΈΡΡΠ΅ΠΌ (WINTECH) |
| 24 | Π£Π.ΠΠΈΠ-0225.IV.Π° | Π£ΠΏΠ»ΠΎΡΠ½ΠΈΡΠ΅Π»Ρ Π΄Π»Ρ ΠΌΠ΅ΡΠ°Π»Π»ΠΎΠΏΠ»Π°ΡΡΠΈΠΊΠΎΠ²ΡΡ
ΡΠΈΡΡΠ΅ΠΌ (TROKAL) | Π£ΠΏΠ»ΠΎΡΠ½ΠΈΡΠ΅Π»Ρ Π΄Π»Ρ ΠΌΠ΅ΡΠ°Π»Π»ΠΎΠΏΠ»Π°ΡΡΠΈΠΊΠΎΠ²ΡΡ
ΡΠΈΡΡΠ΅ΠΌ (TROKAL) |
| 25 | Π£Π.ΠΠΈΠ-0228 | Π£ΠΏΠ»ΠΎΡΠ½ΠΈΡΠ΅Π»Ρ Π΄Π»Ρ ΠΌΠ΅ΡΠ°Π»Π»ΠΎΠΏΠ»Π°ΡΡΠΈΠΊΠΎΠ²ΡΡ
ΡΠΈΡΡΠ΅ΠΌ (PLAFEN) | Π£ΠΏΠ»ΠΎΡΠ½ΠΈΡΠ΅Π»Ρ Π΄Π»Ρ ΠΌΠ΅ΡΠ°Π»Π»ΠΎΠΏΠ»Π°ΡΡΠΈΠΊΠΎΠ²ΡΡ
ΡΠΈΡΡΠ΅ΠΌ (PLAFEN) |
| 26 | Π£Π.ΠΠΈΠ-0229 | Π£ΠΏΠ»ΠΎΡΠ½ΠΈΡΠ΅Π»Ρ Π΄Π»Ρ ΠΌΠ΅ΡΠ°Π»Π»ΠΎΠΏΠ»Π°ΡΡΠΈΠΊΠΎΠ²ΡΡ
ΡΠΈΡΡΠ΅ΠΌ (PLAFEN) | Π£ΠΏΠ»ΠΎΡΠ½ΠΈΡΠ΅Π»Ρ Π΄Π»Ρ ΠΌΠ΅ΡΠ°Π»Π»ΠΎΠΏΠ»Π°ΡΡΠΈΠΊΠΎΠ²ΡΡ
ΡΠΈΡΡΠ΅ΠΌ (PLAFEN) |
| 27 | Π£Π.ΠΠΈΠ-0061.IV.Π± | Π£ΠΏΠ»ΠΎΡΠ½ΠΈΡΠ΅Π»Ρ-Π°Π½Π°Π»ΠΎΠ³ ΠΠΠ£ | Π£ΠΏΠ»ΠΎΡΠ½ΠΈΡΠ΅Π»Ρ-Π°Π½Π°Π»ΠΎΠ³ ΠΠΠ£ |
| 28 | Π£Π.ΠΠΈΠ-0105.1.IV.Π± | Π£ΠΏΠ»ΠΎΡΠ½ΠΈΡΠ΅Π»Ρ-Π°Π½Π°Π»ΠΎΠ³ ΠΠΠ£ | Π£ΠΏΠ»ΠΎΡΠ½ΠΈΡΠ΅Π»Ρ-Π°Π½Π°Π»ΠΎΠ³ ΠΠΠ£ |
| 29 | Π£Π.ΠΠΈΠ-0219.IV.Π± | Π£ΠΏΠ»ΠΎΡΠ½ΠΈΡΠ΅Π»Ρ-Π°Π½Π°Π»ΠΎΠ³ ΠΠΈΠ΄Π½Π°Π» | Π£ΠΏΠ»ΠΎΡΠ½ΠΈΡΠ΅Π»Ρ-Π°Π½Π°Π»ΠΎΠ³ ΠΠΠ£ |
| 30 | Π£Π.ΠΠΈΠ-0220.IV.Π± | Π£ΠΏΠ»ΠΎΡΠ½ΠΈΡΠ΅Π»Ρ-Π°Π½Π°Π»ΠΎΠ³ ΠΠΈΠ΄Π½Π°Π» | Π£ΠΏΠ»ΠΎΡΠ½ΠΈΡΠ΅Π»Ρ-Π°Π½Π°Π»ΠΎΠ³ ΠΠΠ£ |
| 31 | Π£Π.ΠΠΈΠ-0221.IV.Π± | Π£ΠΏΠ»ΠΎΡΠ½ΠΈΡΠ΅Π»Ρ-Π°Π½Π°Π»ΠΎΠ³ ΠΠΈΠ΄Π½Π°Π» | Π£ΠΏΠ»ΠΎΡΠ½ΠΈΡΠ΅Π»Ρ-Π°Π½Π°Π»ΠΎΠ³ ΠΠΠ£ |
| 32 | Π£Π.ΠΠΈΠ-0222.IV.Π± | Π£ΠΏΠ»ΠΎΡΠ½ΠΈΡΠ΅Π»Ρ-Π°Π½Π°Π»ΠΎΠ³ ΠΠΈΠ΄Π½Π°Π» | Π£ΠΏΠ»ΠΎΡΠ½ΠΈΡΠ΅Π»Ρ-Π°Π½Π°Π»ΠΎΠ³ ΠΠΠ£ |
www.ventoptima.com
ΠΠ»Π°ΡΡΠΈΠΊΠΎΠ²ΡΠ΅ ΠΎΠΊΠ½Π° Veka — ΠΎΡΠΎΠ±Π΅Π½Π½ΠΎΡΡΠΈ, Ρ Π°ΡΠ°ΠΊΡΠ΅ΡΠΈΡΡΠΈΠΊΠΈ, ΠΈΠ½ΡΡΡΡΠΊΡΠΈΡ, ΠΎΡΠ·ΡΠ²Ρ

ΠΡΠΈΠΎΠ±ΡΠ΅ΡΠ°Ρ ΠΏΠ»Π°ΡΡΠΈΠΊΠΎΠ²ΡΠ΅ ΠΎΠΊΠ½Π°, Π² ΠΏΠ΅ΡΠ²ΡΡ ΠΎΡΠ΅ΡΠ΅Π΄Ρ Π½Π΅ΠΎΠ±Ρ ΠΎΠ΄ΠΈΠΌΠΎ ΠΎΠ±ΡΠ°ΡΠΈΡΡ Π²Π½ΠΈΠΌΠ°Π½ΠΈΠ΅ Π½Π° ΠΈΡ ΠΊΠ°ΡΠ΅ΡΡΠ²ΠΎ. ΠΠ΅Π΄Ρ ΡΡΠΎ ΠΏΠΎΠΊΡΠΏΠΊΠ°, ΠΊΠΎΡΠΎΡΠ°Ρ Π±ΡΠ΄Π΅Ρ ΡΠ»ΡΠΆΠΈΡΡ Π½Π°Π΄Π΅ΠΆΠ½ΠΎΠΉ Π·Π°ΡΠΈΡΠΎΠΉ ΠΎΡ Ρ ΠΎΠ»ΠΎΠ΄Π° ΠΈ ΡΡΠΌΠ° Π½Π° ΠΏΡΠΎΡΡΠΆΠ΅Π½ΠΈΠΈ Π΄ΠΎΠ»Π³ΠΎΠ³ΠΎ Π²ΡΠ΅ΠΌΠ΅Π½ΠΈ, Π°, Π·Π½Π°ΡΠΈΡ, ΠΊ Π²ΡΠ±ΠΎΡΡ ΡΡΠΎΠΈΡ ΠΏΠΎΠ΄ΠΎΠΉΡΠΈ ΡΠΎ Π²ΡΠ΅ΠΉ ΠΎΡΠ²Π΅ΡΡΡΠ²Π΅Π½Π½ΠΎΡΡΡΡ. ΠΠ° ΡΠΎΡΡΠΈΠΉΡΠΊΠΎΠΌ ΡΡΠ½ΠΊΠ΅ Π²ΠΎΡ ΡΠΆΠ΅ Π½Π΅ΡΠΊΠΎΠ»ΡΠΊΠΎ Π»Π΅Ρ ΡΡΡΠ΅ΡΡΠ²ΡΠ΅Ρ ΠΊΠΎΠΌΠΏΠ°Π½ΠΈΡ ΠΏΠΎ ΠΏΡΠΎΠΈΠ·Π²ΠΎΠ΄ΡΡΠ²Ρ ΠΎΠΊΠΎΠ½Π½ΡΡ ΡΠΈΡΡΠ΅ΠΌ ΠΈΠ· ΠΠΠ₯ β VEKA. Π ΡΡΠ°ΡΡΠ΅ ΡΠ°ΡΡΠΌΠΎΡΡΠΈΠΌ ΠΎΡΠ½ΠΎΠ²Π½ΠΎΠ΅ ΠΏΡΠ΅ΠΈΠΌΡΡΠ΅ΡΡΠ²ΠΎ Π΄Π°Π½Π½ΠΎΠ³ΠΎ ΠΏΡΠΎΠΈΠ·Π²ΠΎΠ΄ΠΈΡΠ΅Π»Ρ ΠΏΠ΅ΡΠ΅Π΄ ΠΌΠ½ΠΎΠΆΠ΅ΡΡΠ²ΠΎΠΌ Π΄ΡΡΠ³ΠΈΡ .
Π‘ΠΎΠ΄Π΅ΡΠΆΠ°Π½ΠΈΠ΅:
- Π ΠΊΠΎΠΌΠΏΠ°Π½ΠΈΠΈ Β«VEKAΒ»
- ΠΡΡΠΎΡΡΠΈΠΌΠ΅Π½Ρ ΠΏΠ»Π°ΡΡΠΈΠΊΠΎΠ²ΡΡ ΠΎΠΊΠΎΠ½ veka Ρ ΡΠΎΡΠΎ
- ΠΠ»Π΅ΠΌΠ΅Π½ΡΡ ΠΊΠΎΠ½ΡΡΡΡΠΊΡΠΈΠΈ ΠΏΠ»Π°ΡΡΠΈΠΊΠΎΠ²ΡΡ ΠΎΠΊΠΎΠ½ VEKA
- ΠΠΠ₯-ΠΏΡΠΎΡΠΈΠ»Ρ Π΄Π»Ρ ΠΎΠΊΠΎΠ½ VEKA: Ρ Π°ΡΠ°ΠΊΡΠ΅ΡΠΈΡΡΠΈΠΊΠ° ΠΈ ΠΏΡΠΎΠΈΠ·Π²ΠΎΠ΄ΡΡΠ²ΠΎ
- Π’ΠΈΠΏΡ ΠΌΠ΅Ρ Π°Π½ΠΈΠ·ΠΌΠΎΠ² Π΄Π»Ρ ΠΎΡΠΊΡΡΡΠΈΡ ΠΎΠΊΠΎΠ½Π½ΡΡ ΡΠΈΡΡΠ΅ΠΌ
- Π£Ρ ΠΎΠ΄ Π·Π° ΠΏΠ»Π°ΡΡΠΈΠΊΠΎΠ²ΡΠΌΠΈ ΠΎΠΊΠ½Π°ΠΌΠΈ
Π ΠΊΠΎΠΌΠΏΠ°Π½ΠΈΠΈ Β«VEKAΒ»
- Π ΠΊΠΎΠ½ΡΠ΅ 60-Ρ Π³ΠΎΠ΄ΠΎΠ² 20 Π²Π΅ΠΊΠ° ΠΠ΅Π½ΡΠΈΡ ΠΠ°ΡΠΌΠ°Π½Π½ β ΠΎΠ΄ΠΈΠ½ ΠΈΠ· ΡΠΎΡΡΡΠ΅Π΄ΠΈΡΠ΅Π»Π΅ΠΉ ΡΠΈΡΠΌΡ Β«VekaplastΒ», Π·Π°Π½ΠΈΠΌΠ°ΡΡΠ΅ΠΉΡΡ ΠΏΡΠΎΠΈΠ·Π²ΠΎΠ΄ΡΡΠ²ΠΎΠΌ ΠΆΠ°Π»ΡΠ·ΠΈ, ΡΠ΅ΡΠΈΠ» ΠΊΠ°ΡΠ΄ΠΈΠ½Π°Π»ΡΠ½ΠΎ ΡΠΌΠ΅Π½ΠΈΡΡ ΠΎΡΠ½ΠΎΠ²Π½ΠΎΠ΅ Π½Π°ΠΏΡΠ°Π²Π»Π΅Π½ΠΈΠ΅ ΠΈ ΠΎΡΠΊΡΡΠ» Π»ΠΈΠ½ΠΈΡ ΠΏΠΎ ΠΈΠ·Π³ΠΎΡΠΎΠ²Π»Π΅Π½ΠΈΡ ΠΎΠΊΠΎΠ½Π½ΡΡ ΡΠΈΡΡΠ΅ΠΌ. Π¦Π΅Π»ΡΡ ΠΏΡΠ΅Π΄ΠΏΡΠΈΠ½ΠΈΠΌΠ°ΡΠ΅Π»Ρ ΡΡΠ°Π»ΠΎ Π΄ΠΎΠ±ΠΈΡΡΡΡ ΠΎΡΠΌΠ΅Π½Π½ΠΎΠ³ΠΎ ΠΊΠ°ΡΠ΅ΡΡΠ²Π° ΡΠ²ΠΎΠ΅ΠΉ ΠΏΡΠΎΠ΄ΡΠΊΡΠΈΠΈ ΠΈ Π²ΡΠΉΡΠΈ Π½Π° ΠΌΠΈΡΠΎΠ²ΠΎΠΉ ΡΡΠ½ΠΎΠΊ.
- Π ΡΠ΅Π³ΠΎΠ΄Π½Ρ Π½Π΅ΠΌΠ΅ΡΠΊΠ°Ρ ΠΊΠΎΠΌΠΏΠ°Π½ΠΈΡ Β«VEKAΒ» Π·Π°Π½ΠΈΠΌΠ°Π΅Ρ Π»ΠΈΠ΄ΠΈΡΡΡΡΠΈΠ΅ ΠΏΠΎΠ·ΠΈΡΠΈΠΈ Π² ΠΎΠ±Π»Π°ΡΡΠΈ ΠΏΡΠΎΠΈΠ·Π²ΠΎΠ΄ΡΡΠ²Π° ΠΈ ΡΠ°Π·ΡΠ°Π±ΠΎΡΠΊΠΈ Π²ΡΡΠΎΠΊΠΎΠΊΠ°ΡΠ΅ΡΡΠ²Π΅Π½Π½ΡΡ ΠΎΠΊΠΎΠ½Π½ΡΡ ΠΏΡΠΎΡΠΈΠ»Π΅ΠΉ. ΠΠ»Π°Π²Π½ΠΎΠ΅ ΠΏΡΠ΅Π΄ΠΏΡΠΈΡΡΠΈΠ΅ ΡΠ°ΡΠΏΠΎΠ»ΠΎΠΆΠ΅Π½ΠΎ Π² Π³ΠΎΡΠΎΠ΄Π΅ ΠΠ΅Π½Π΄Π΅Π½Ρ ΠΎΡΡΡ (Π‘Π΅Π²Π΅ΡΠ½ΡΠΉ Π Π΅ΠΉΠ½-ΠΠ΅ΡΡΡΠ°Π»ΠΈΡ). ΠΡΠΎΠ΄ΡΠΊΡΠΈΡ ΠΏΠΎΡΡΠ°Π²Π»ΡΠ΅ΡΡΡ Π²ΠΎ ΠΌΠ½ΠΎΠΆΠ΅ΡΡΠ²ΠΎ ΡΡΡΠ°Π½ ΠΏΠΎ Π²ΡΠ΅ΠΌΡ ΠΌΠΈΡΡ.

- ΠΡΠ΅ ΠΏΡΠΎΠΈΠ·Π²Π΅Π΄Π΅Π½Π½ΡΠ΅ ΠΊΠΎΠΌΠΏΠ°Π½ΠΈΠ΅ΠΉ ΡΠΎΠ²Π°ΡΡ ΡΠΎΠΎΡΠ²Π΅ΡΡΡΠ²ΡΡΡ ΠΎΠ΄Π½ΠΎΠΌΡ ΠΈΠ· ΡΠ°ΠΌΡΡ Π°Π²ΡΠΎΡΠΈΡΠ΅ΡΠ½ΡΡ ΡΡΠ°Π½Π΄Π°ΡΡΠΎΠ² Π½Π° ΡΠ΅Π³ΠΎΠ΄Π½ΡΡΠ½ΠΈΠΉ Π΄Π΅Π½Ρ β RAL (ΠΠΎΡ.ΠΊΠΎΠΌΠΈΡΠ΅Ρ ΠΏΠΎ ΡΡΠ»ΠΎΠ²ΠΈΡΠΌ ΠΏΠΎΡΡΠ°Π²ΠΎΠΊ). ΠΡΠΎ Π½Π΅Π·Π°Π²ΠΈΡΠΈΠΌΠ°Ρ ΠΎΡΠ΅Π½ΠΊΠ° ΠΊΠ°ΡΠ΅ΡΡΠ²Π°, ΠΈΠΌΠ΅ΡΡΠ°Ρ ΠΌΠ°ΠΊΡΠΈΠΌΠ°Π»ΡΠ½ΠΎ ΠΆΠ΅ΡΡΠΊΠΈΠ΅ Π½ΠΎΡΠΌΠ°ΡΠΈΠ²Ρ, ΠΎΡΠΎΠ±Π΅Π½Π½ΠΎ ΡΠΆΠ΅ΡΡΠΎΡΠ΅Π½Π½ΡΠ΅ ΡΡΠ΅Π±ΠΎΠ²Π°Π½ΠΈΡ, ΠΏΡΠ΅Π΄ΡΡΠ²Π»ΡΡΡΡΡ ΠΊ Π±Π΅Π·ΠΎΠΏΠ°ΡΠ½ΠΎΡΡΠΈ ΠΎΠΊΠΎΠ½Π½ΡΡ ΡΠΈΡΡΠ΅ΠΌ. RAL β ΡΡΠΎ Π½Π΅ΠΏΡΠΎΡΡΠΎ Π·Π½Π°ΠΊ ΠΊΠ°ΡΠ΅ΡΡΠ²Π°, ΡΡΠΎ Π΄Π΅ΠΉΡΡΠ²ΠΈΡΠ΅Π»ΡΠ½ΠΎ ΠΏΡΠΎΠ²Π΅ΡΠ΅Π½Π½Π°Ρ ΠΈ Π½Π°Π΄Π΅ΠΆΠ½Π°Ρ ΠΏΡΠΎΠ΄ΡΠΊΡΠΈΡ, ΡΡΠΎ ΠΏΠΎΠ΄ΡΠ²Π΅ΡΠΆΠ΄Π΅Π½ΠΎ ΠΌΠ½ΠΎΠ³ΠΎΡΠΈΡΠ»Π΅Π½Π½ΡΠΌΠΈ ΠΏΠΎΠ»ΠΎΠΆΠΈΡΠ΅Π»ΡΠ½ΡΠΌΠΈ ΠΎΡΠ·ΡΠ²Π°ΠΌΠΈ ΠΏΡΠΎ Β ΠΏΠ»Π°ΡΡΠΈΠΊΠΎΠ²ΡΠ΅ ΠΎΠΊΠ½Π° veka.
- Π‘Π΅ΡΡ Π΄ΠΎΡΠ΅ΡΠ½ΠΈΡ ΠΏΡΠ΅Π΄ΠΏΡΠΈΡΡΠΈΠΉ ΠΊΠΎΠΌΠΏΠ°Π½ΠΈΠΈ ΡΠΈΡΠΎΠΊΠΎ ΡΠ°ΡΠΊΠΈΠ½ΡΠ»Π°ΡΡ ΠΏΠΎ Π²ΡΠ΅ΠΌ ΠΊΠΎΠ½ΡΠΈΠ½Π΅Π½ΡΠ°ΠΌ. Π 1999 Π³ΠΎΠ΄Ρ ΡΠΈΡΠΌΠ° ΠΠΠΠ Π²ΠΏΠ΅ΡΠ²ΡΠ΅ ΠΏΠΎΡΠ²ΠΈΠ»Π°ΡΡ ΠΈ Π² Π ΠΎΡΡΠΈΠΈ, ΠΎΡΠΊΡΡΠ² ΡΠΎΠ±ΡΡΠ²Π΅Π½Π½ΡΠΉ Π·Π°Π²ΠΎΠ΄ ΠΏΠΎ ΠΏΡΠΎΠΈΠ·Π²ΠΎΠ΄ΡΡΠ²Ρ ΠΎΠΊΠΎΠ½Π½ΡΡ ΠΏΡΠΎΡΠΈΠ»Π΅ΠΉ ΠΈ ΡΠΎΠΏΡΡΡΡΠ²ΡΡΡΠΈΡ Π°ΠΊΡΠ΅ΡΡΡΠ°ΡΠΎΠ². ΠΡΡ Π²ΡΠΏΡΡΠΊΠ°ΡΡΠ°ΡΡΡ ΠΏΡΠΎΠ΄ΡΠΊΡΠΈΡ ΠΈΠΌΠ΅Π΅Ρ Π·Π½Π°ΠΊ ΠΊΠ°ΡΠ΅ΡΡΠ²Π°. ΠΠ°ΠΆΠ½ΠΎΠ΅ Π΄ΠΎΡΡΠΎΠΈΠ½ΡΡΠ²ΠΎ ΠΎΠΊΠΎΠ½, ΠΏΡΠΎΠΈΠ·Π²Π΅Π΄Π΅Π½Π½ΡΡ ΠΈΠ· ΠΏΡΠΎΡΠΈΠ»Π΅ΠΉ VEKA, Π² ΡΠΎΠΌ, ΡΡΠΎ ΠΎΠ½ΠΈ ΠΌΠΎΠ³ΡΡ ΡΡΡΠ°Π½Π°Π²Π»ΠΈΠ²Π°ΡΡΡΡ Π² Π΄ΠΎΠΌΠ°Ρ , ΡΠ°ΡΠΏΠΎΠ»ΠΎΠΆΠ΅Π½Π½ΡΡ Π² ΡΠ°ΠΌΡΡ ΡΡΡΠΎΠ²ΡΡ ΠΊΠ»ΠΈΠΌΠ°ΡΠΈΡΠ΅ΡΠΊΠΈΡ Π·ΠΎΠ½Π°Ρ , Π° ΡΠ°ΠΊΠΆΠ΅ Π² ΡΠ΅Π³ΠΈΠΎΠ½Π°Ρ Ρ ΠΏΠΎΠ²ΡΡΠ΅Π½Π½ΠΎΠΉ Π²Π»Π°ΠΆΠ½ΠΎΡΡΡΡ.
ΠΡΡΠΎΡΡΠΈΠΌΠ΅Π½Ρ ΠΏΠ»Π°ΡΡΠΈΠΊΠΎΠ²ΡΡ ΠΎΠΊΠΎΠ½ veka Ρ ΡΠΎΡΠΎ
ΠΡΠΎΠ΄ΡΠΊΡΠΈΡ ΠΊΠΎΠΌΠΏΠ°Π½ΠΈΠΈ β ΡΡΠΎ ΡΠΈΡΠΎΡΠ°ΠΉΡΠΈΠΉ Π°ΡΡΠΎΡΡΠΈΠΌΠ΅Π½Ρ ΠΏΡΠΎΡΠΈΠ»ΡΠ½ΡΡ ΡΠΈΡΡΠ΅ΠΌ, ΡΡΠ΅ΠΊΠ»ΠΎΠΏΠ°ΠΊΠ΅ΡΠΎΠ² ΠΈ ΡΠΏΠ΅ΡΠΈΠ°Π»ΡΠ½ΠΎΠΉ ΡΡΡΠ½ΠΈΡΡΡΡ, ΠΊΠΎΡΠΎΡΠ°Ρ ΡΠΏΠΎΡΠΎΠ±Π½Π° ΡΠ΅ΡΠΈΡΡ ΠΏΡΠ°ΠΊΡΠΈΡΠ΅ΡΠΊΠΈ Π»ΡΠ±ΡΠ΅ Π°ΡΡ ΠΈΡΠ΅ΠΊΡΡΡΠ½ΡΠ΅ Π·Π°Π΄Π°ΡΠΈ ΠΈ ΡΠ΄ΠΎΠ²Π»Π΅ΡΠ²ΠΎΡΠΈΡΡ ΠΏΠΎΡΡΠ΅Π±Π½ΠΎΡΡΠΈ Π΄Π°ΠΆΠ΅ ΡΠ°ΠΌΡΡ ΡΡΠ΅Π±ΠΎΠ²Π°ΡΠ΅Π»ΡΠ½ΡΡ ΠΊΠ»ΠΈΠ΅Π½ΡΠΎΠ².
ΠΡΠΎΡΠΈΠ»ΠΈΡΠΎΠ²Π°Π½Π½ΡΠ΅ ΡΠΈΡΡΠ΅ΠΌΡ ΠΏΡΠ΅Π΄ΡΡΠ°Π²Π»Π΅Π½Ρ Π² ΡΠ΅ΠΌΠΈ ΠΎΡΠ½ΠΎΠ²Π½ΡΡ ΠΌΠΎΠ΄ΠΈΡΠΈΠΊΠ°ΡΠΈΡΡ , ΡΠ°Π·Π»ΠΈΡΠΈΠΌΡΡ ΠΏΠΎ ΠΌΠΎΠ½ΡΠ°ΠΆΠ½ΠΎΠΉ Π³Π»ΡΠ±ΠΈΠ½Π΅ (ΡΠΈΡΠΈΠ½Π΅ ΠΏΡΠΎΡΠΈΠ»Ρ) ΠΈ ΠΊΠΎΠ»ΠΈΡΠ΅ΡΡΠ²Ρ ΠΊΠ°ΠΌΠ΅Ρ (ΠΎΡ 3 Π΄ΠΎ 6). ΠΠΊΠ½Π°, ΠΈΠ·Π³ΠΎΡΠΎΠ²Π»Π΅Π½Π½ΡΠ΅ Ρ ΠΏΡΠΈΠΌΠ΅Π½Π΅Π½ΠΈΠ΅ΠΌ ΡΠ°ΠΊΠΈΡ ΠΏΡΠΎΡΠΈΠ»Π΅ΠΉ, ΡΠΎΠΎΡΠ²Π΅ΡΡΡΠ²ΡΡΡ ΠΏΠΎ ΡΡΠ°Π½Π΄Π°ΡΡΡ ΠΊΠ°ΡΠ΅ΡΡΠ²Π° ΠΊΠ»Π°ΡΡΡ Π.
VEKA Alphaline/ΠΠ»ΡΡΠ°Π»Π°ΠΉΠ½

Β
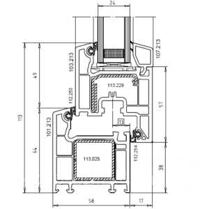
Π’Π΅Ρ Π½ΠΈΡΠ΅ΡΠΊΠΈΠ΅ Ρ Π°ΡΠ°ΠΊΡΠ΅ΡΠΈΡΡΠΈΠΊΠΈ:
- ΡΠΈΡΠΈΠ½Π° ΠΏΡΠΎΡΠΈΠ»Ρ — 9 ΡΠΌ;
- ΡΠΈΡΠΈΠ½Π° ΡΡΠ΅ΠΊΠ»ΠΎΠΏΠ°ΠΊΠ΅ΡΠ° — 24-50 ΠΌΠ»;
- ΡΠΎΠ»ΡΠΈΠ½Π° Π½Π°ΡΡΠΆΠ½ΠΎΠΉ ΡΡΠ΅Π½ΠΊΠΈ — 3 ΠΌΠ»;
- ΠΊΠ»Π°ΡΡ ΡΡΠΌΠΎΠΈΠ·ΠΎΠ»ΡΡΠΈΠΈ β ΠΎΡ II Π΄ΠΎ IV;
- ΠΊΠΎΡΡΡΠΈΡΠΈΠ΅Π½Ρ ΡΠ΅ΠΏΠ»ΠΎΡΠΎΠΏΡΠΎΡΠΈΠ²Π»Π΅Π½ΠΈΡ — 0,94 ΠΌ2ΠΎΠ‘/ΠΡ;
- ΠΊΠΎΠ½ΡΡΡΡΠΊΡΠΈΡ: ΠΎΡΠΊΠΈΠ΄Π½Π°Ρ, ΠΏΠΎΠ²ΠΎΡΠΎΡΠ½Π°Ρ, ΠΏΠΎΠ²ΠΎΡΠΎΡΠ½ΠΎ-ΠΎΡΠΊΠΈΠ΄Π½Π°Ρ, ΡΠ°Π·Π΄Π²ΠΈΠΆΠ½Π°Ρ ΠΈ ΡΡΡΠ»ΡΠΏΠΎΠ²Π°Ρ;
- ΡΡΠ΅ΠΊΠ»ΠΎΠΏΠ°ΠΊΠ΅Ρ: ΠΎΠ±ΡΡΠ½ΡΠΉ, Ρ ΠΏΠΎΠ²ΡΡΠ΅Π½Π½ΡΠΌΠΈ Ρ Π°ΡΠ°ΠΊΡΠ΅ΡΠΈΡΡΠΈΠΊΠ°ΠΌΠΈ ΡΠ½Π΅ΡΠ³ΠΎΡΠ±Π΅ΡΠ΅ΠΆΠ΅Π½ΠΈΡ, ΡΠΏΠ΅ΡΠΈΠ°Π»ΡΠ½ΡΠΉ ΠΈ ΡΡΠΌΠΎΠΈΠ·ΠΎΠ»ΡΡΠΈΠΎΠ½Π½ΡΠΉ.
Β
ΠΡΠΎ ΠΏΠ΅ΡΠ²Π°Ρ ΠΎΠΊΠΎΠ½Π½Π°Ρ ΡΠΈΡΡΠ΅ΠΌΠ°, Π³Π΄Π΅ ΡΠ΅Π°Π»ΠΈΠ·ΠΎΠ²Π°Π½ ΡΠ΅ΡΡΠΈΠΊΠ°ΠΌΠ΅ΡΠ½ΡΠΉ ΠΏΡΠΎΡΠΈΠ»Ρ veka Π΄Π»Ρ ΠΏΠ»Π°ΡΡΠΈΠΊΠΎΠ²ΡΡ ΠΎΠΊΠΎΠ½, Π³Π»Π°Π²Π½ΠΎΠ΅ Π΄ΠΎΡΡΠΎΠΈΠ½ΡΡΠ²ΠΎ ΠΊΠΎΡΠΎΡΠΎΠ³ΠΎ Π² ΡΠΎΠΌ, ΡΡΠΎ ΠΎΠ½ ΠΎΠ±Π΅ΡΠΏΠ΅ΡΠΈΠ²Π°Π΅Ρ ΠΌΠ°ΠΊΡΠΈΠΌΠ°Π»ΡΠ½ΡΠΉ ΠΏΠΎΠΊΠ°Π·Π°ΡΠ΅Π»Ρ ΡΠ½Π΅ΡΠ³ΠΎΡΠ±Π΅ΡΠ΅ΠΆΠ΅Π½ΠΈΡ.
- ΠΠ»Ρ ΡΠ»ΡΡΡΠ΅Π½ΠΈΡ ΡΠ°ΠΊΠΈΡ ΠΏΠΎΠΊΠ°Π·Π°ΡΠ΅Π»Π΅ΠΉ, ΠΊΠ°ΠΊ ΡΠ΅ΠΏΠ»ΠΎΠΈΠ·ΠΎΠ»ΡΡΠΈΡ, ΡΡΠΏΠΎΠΏΠΎΠ³Π»ΠΎΡΠ΅Π½ΠΈΠ΅ ΠΈ Π³Π΅ΡΠΌΠ΅ΡΠΈΡΠ½ΠΎΡΡΡ ΠΈΠΌΠ΅Π΅ΡΡΡ ΡΡΠ΅Ρ ΠΊΠΎΠ½ΡΡΡΠ½Π°Ρ ΡΠΈΡΡΠ΅ΠΌΠ° ΡΠΏΠ»ΠΎΡΠ½Π΅Π½ΠΈΡ β ΡΠΏΠ»ΠΎΡΠ½ΠΎΠΉ ΡΠΏΠ»ΠΎΡΠ½ΠΈΡΠ΅Π»Ρ Π² ΡΠ°ΠΌΠ΅ ΠΈ ΡΡΠ²ΠΎΡΠΊΠ°Ρ . Π£ΠΏΠ»ΠΎΡΠ½ΠΈΡΠ΅Π»Ρ ΠΌΠΎΠΆΠ΅Ρ ΠΈΠΌΠ΅ΡΡ Π½Π΅ΡΠΊΠΎΠ»ΡΠΊΠΎ ΡΠ²Π΅ΡΠΎΠ² β ΡΠ΅ΡΡΠΉ, ΡΠ΅ΡΠ½ΡΠΉ ΠΈ ΠΊΠ°ΡΠ°ΠΌΠ΅Π»ΡΠ½ΡΠΉ ΠΈ Π²ΡΠΏΠΎΠ»Π½ΡΡΡΡΡ ΠΈΠ· ΡΠΈΠ»ΠΈΠΊΠΎΠ½Π°, ΡΠ΅ΡΠΌΠΎΡΠ»Π°ΡΡΠΎΠΏΠ»Π°ΡΡΠ° ΠΈΠ»ΠΈ ΡΡΠΈΠ»Π΅Π½-ΠΏΡΠΎΠΏΠΈΠ»Π΅Π½ΠΎΠ²ΠΎΠ³ΠΎ ΠΊΠ°ΡΡΡΠΊΠ°.
- Π‘ΡΠ΅ΠΊΠ»ΠΎΠΏΠ°ΠΊΠ΅Ρ ΡΡΡΠ°Π½Π°Π²Π»ΠΈΠ²Π°Π΅ΡΡΡ Π½Π° Π³Π»ΡΠ±ΠΈΠ½Ρ Π΄ΠΎ 2 ΡΠΌ. ΠΠ»Π°Π³ΠΎΠ΄Π°ΡΡ ΡΠ²Π΅Π»ΠΈΡΠ΅Π½Π½ΠΎΠΌΡ Π²Π½Π΅ΡΠ½Π΅ΠΌΡ ΡΠ°Π΄ΠΈΡΡΡ ΠΏΡΠΎΡΠΈΠ»Ρ ΠΎΠ±Π»Π°Π΄Π°Π΅Ρ Π½Π°Π΄Π΅ΠΆΠ½ΡΠΌ Π°ΡΠΌΠΈΡΠΎΠ²Π°Π½ΠΈΠ΅ΠΌ ΠΈ ΠΏΡΠΈΠ²Π»Π΅ΠΊΠ°ΡΠ΅Π»ΡΠ½ΡΠΌ Π²Π½Π΅ΡΠ½ΠΈΠΌ Π²ΠΈΠ΄ΠΎΠΌ. Π€ΡΡΠ½ΠΈΡΡΡΠ° Π·Π°ΠΊΡΠ΅ΠΏΠ»ΡΠ΅ΡΡΡ ΡΠ΅ΡΠ΅Π· Π½Π΅ΡΠΊΠΎΠ»ΡΠΊΠΎ ΡΡΠ΅Π½ΠΎΠΊ, ΡΡΠΎ ΠΎΠ±Π΅ΡΠΏΠ΅ΡΠΈΠ²Π°Π΅Ρ ΠΌΠ°ΠΊΡΠΈΠΌΠ°Π»ΡΠ½ΡΡ Π½Π°Π΄Π΅ΠΆΠ½ΠΎΡΡΡ ΠΈ Π΄ΠΎΠ»Π³ΠΎΠ²Π΅ΡΠ½ΠΎΡΡΡ. Π’Π°ΠΊΠΆΠ΅ ΠΏΡΠ΅Π΄ΡΡΠΌΠΎΡΡΠ΅Π½Π° Π²ΠΎΠ·ΠΌΠΎΠΆΠ½ΠΎΡΡΡ ΡΡΡΠ°Π½ΠΎΠ²ΠΈΡΡ ΠΊΠΎΠΌΠΏΠ»Π΅ΠΊΡΡΡΡΠΈΠ΅ Π² ΡΡΠ°Π»ΡΠ½ΠΎΠΉ ΡΡΠΈΠ»ΠΈΡΠ΅Π»Ρ.
- ΠΠ΅ΠΊΠΎΡΠ°ΡΠΈΠ²Π½ΡΠ΅ ΠΏΠ΅ΡΠ΅ΠΊΠ»Π°Π΄ΠΈΠ½Ρ, ΠΊΠΎΡΠΎΡΡΠ΅ ΠΏΡΠΈΠ΄Π°ΡΡ ΡΡΠ΅ΠΊΠ»ΠΎΠΏΠ°ΠΊΠ΅ΡΡ Π½Π΅ΠΏΠΎΠ²ΡΠΎΡΠΈΠΌΠΎΡΡΡ, Π²ΡΠΏΡΡΠΊΠ°ΡΡΡΡ ΡΠΈΡΠΈΠ½ΠΎΠΉ 6,5 ΡΠΌ ΠΈΠ»ΠΈ 20 ΡΠΌ ΠΈ ΠΈΠΌΠ΅ΡΡ Π½Π΅ΡΠΊΠΎΠ»ΡΠΊΠΎ Π²Π°ΡΠΈΠ°Π½ΡΠΎΠ² ΡΡΡΠ°Π½ΠΎΠ²ΠΊΠΈ: Π½Π°ΠΊΠ»Π΅ΠΈΠ²Π°ΡΡΡΡ ΠΏΠΎΠ²Π΅ΡΡ ΡΡΠ΅ΠΊΠ»ΠΎΠΏΠ°ΠΊΠ΅ΡΠ°, ΡΠ°Π·Π΄Π΅Π»ΡΡΡ ΡΡΠ΅ΠΊΠ»ΠΎΠΏΠ°ΠΊΠ΅Ρ ΠΈΠ»ΠΈ ΡΡΡΠ°Π½Π°Π²Π»ΠΈΠ²Π°ΡΡΡΡ Π²Π½ΡΡΡΠΈ. ΠΡΠΎΠΌΠ΅ ΡΠΎΠ³ΠΎ, ΡΡΡΠ΅ΡΡΠ²ΡΠ΅Ρ Π²ΠΎΠ·ΠΌΠΎΠΆΠ½ΠΎΡΡΡ Π»Π°ΠΌΠΈΠ½ΠΈΡΠΎΠ²Π°Π½ΠΈΡ ΠΎΠΊΠΎΠ½Π½ΠΎΠ³ΠΎ ΡΡΠ΅ΠΊΠ»Π° Π² ΡΠ°Π·Π»ΠΈΡΠ½ΡΠ΅ ΡΠ²Π΅ΡΠΎΠ²ΡΠ΅ ΠΎΡΡΠ΅Π½ΠΊΠΈ (Π΄ΠΎ 40 ΡΠ²Π΅ΡΠΎΠ²), ΠΊΠ°ΠΊ Ρ ΠΎΠ΄Π½ΠΎΠΉ ΡΡΠΎΡΠΎΠ½Ρ, ΡΠ°ΠΊ ΠΈ ΠΎΠ΄Π½ΠΎΠ²ΡΠ΅ΠΌΠ΅Π½Π½ΠΎ Ρ Π΄Π²ΡΡ ΡΡΠΎΡΠΎΠ½.
- ΠΠΊΠ½Π° Π΄Π°Π½Π½ΠΎΠΉ ΠΊΠΎΠ½ΡΠΈΠ³ΡΡΠ°ΡΠΈΠΈ ΡΠ΅ΠΊΠΎΠΌΠ΅Π½Π΄ΡΠ΅ΡΡΡ ΡΡΡΠ°Π½Π°Π²Π»ΠΈΠ²Π°ΡΡ Π² ΠΎΡΠΈΡΠ½ΡΡ ΠΏΠΎΠΌΠ΅ΡΠ΅Π½ΠΈΡΡ , Π³Π΄Π΅ ΡΡΠ΅Π±ΡΠ΅ΡΡΡ ΠΌΠ°ΠΊΡΠΈΠΌΠ°Π»ΡΠ½ΠΎΠ΅ ΠΊΠ°ΡΠ΅ΡΡΠ²ΠΎ ΠΈ Π½Π°Π΄Π΅ΠΆΠ½ΠΎΡΡΡ.
- ΠΡΠΎ Π½Π°ΠΈΠ±ΠΎΠ»Π΅Π΅ Π½Π°Π΄Π΅ΠΆΠ½ΡΠΉ, Π½ΠΎ ΠΈ ΡΠ°ΠΌΡΠΉ Π΄ΠΎΡΠΎΠ³ΠΎΠΉ ΠΎΠΊΠΎΠ½Π½ΡΠΉ ΠΏΡΠΎΡΠΈΠ»Ρ. Π ΡΡΠ΅Π΄Π½Π΅ΠΌ ΡΠ΅Π½Π° ΠΎΠΊΠΎΠ½ veka ΠΠ»ΡΡΠ°Π»Π°ΠΉΠ½ Π²ΡΡΠ΅ ΡΠ²ΠΎΠΈΡ Π°Π½Π°Π»ΠΎΠ³ΠΎΠ² Π½Π° 10-20%.
VEKA Euroline/ΠΠ²ΡΠΎΠ»Π°ΠΉΠ½

Β
Π’Π΅Ρ Π½ΠΈΡΠ΅ΡΠΊΠΈΠ΅ Ρ Π°ΡΠ°ΠΊΡΠ΅ΡΠΈΡΡΠΈΠΊΠΈ:
- ΡΠΈΡΠΈΠ½Π° ΠΏΡΠΎΡΠΈΠ»Ρ 5,8 ΡΠΌ;
- ΡΠΈΡΠΈΠ½Π° ΡΡΠ΅ΠΊΠ»ΠΎΠΏΠ°ΠΊΠ΅ΡΠ° 14-32 ΠΌΠ»;
- ΡΠΎΠ»ΡΠΈΠ½Π° Π½Π°ΡΡΠΆΠ½ΠΎΠΉ ΡΡΠ΅Π½ΠΊΠΈ — 3 ΠΌΠ»;
- Π²ΡΡΠΎΡΠ° ΠΏΡΠΎΡΠΈΠ»Ρ 11,3 ΡΠΌ;
- ΠΊΠ»Π°ΡΡ ΡΡΠΌΠΎΠΈΠ·ΠΎΠ»ΡΡΠΈΠΈ β ΠΎΡ II Π΄ΠΎ IV;
- ΠΊΠΎΡΡΡΠΈΡΠΈΠ΅Π½Ρ ΡΠ΅ΠΏΠ»ΠΎΡΠΎΠΏΡΠΎΡΠΈΠ²Π»Π΅Π½ΠΈΡ — 0,64 ΠΌ2ΠΎΠ‘/ΠΡ;
- ΠΊΠΎΠ½ΡΡΡΡΠΊΡΠΈΡ: Π³Π»ΡΡ Π°Ρ, ΠΎΡΠΊΠΈΠ΄Π½Π°Ρ, ΠΏΠΎΠ²ΠΎΡΠΎΡΠ½Π°Ρ, ΠΏΠΎΠ²ΠΎΡΠΎΡΠ½ΠΎ-ΠΎΡΠΊΠΈΠ΄Π½Π°Ρ, ΡΠ°Π·Π΄Π²ΠΈΠΆΠ½Π°Ρ ΠΈ ΡΡΡΠ»ΡΠΏΠΎΠ²Π°Ρ;
- ΠΎΠΊΠΎΠ½Π½ΡΠ΅ ΡΠΈΡΡΠ΅ΠΌΡ: ΡΡΠ°Π½Π΄Π°ΡΡΠ½ΡΠ΅, Ρ ΠΏΠΎΠ²ΡΡΠ΅Π½Π½ΠΎΠΉ ΡΠ΅ΠΏΠ»ΠΎ- ΠΈΠ»ΠΈ Π·Π²ΡΠΊΠΎΠΈΠ·ΠΎΠ»ΡΡΠΈΠ΅ΠΉ, Ρ ΡΠ»ΡΡΡΠ΅Π½Π½ΠΎΠΉ ΡΠΈΡΡΠ΅ΠΌΠΎΠΉ Π±Π΅Π·ΠΎΠΏΠ°ΡΠ½ΠΎΡΡΠΈ ΠΈ Π±Π°Π»ΠΊΠΎΠ½Π½ΡΠ΅.
Β
Π’ΡΠ΅Ρ ΠΊΠ°ΠΌΠ΅ΡΠ½Π°Ρ ΠΏΡΠΎΡΠΈΠ»ΡΠ½Π°Ρ ΡΠΈΡΡΠ΅ΠΌΠ° Ρ Ρ ΠΎΡΠΎΡΠΈΠΌΠΈ ΠΈΠ·ΠΎΠ»ΡΡΠΈΠΎΠ½Π½ΡΠΌΠΈ ΠΊΠ°ΡΠ΅ΡΡΠ²Π°ΠΌΠΈ.
- ΠΡΠΎΡΠΈΠ»Ρ ΠΏΠ»Π°ΡΡΠΈΠΊΠΎΠ²ΡΡ ΠΎΠΊΠΎΠ½ veka Π΅Π²ΡΠΎΠ»Π°ΠΉΠ½ Π²ΡΠΏΠΎΠ»Π½Π΅Π½ ΠΈΠ· Π²ΡΡΠΎΠΊΠΎΠΊΠ°ΡΠ΅ΡΡΠ²Π΅Π½Π½ΠΎΠ³ΠΎ Π³Π»Π°Π΄ΠΊΠΎΠ³ΠΎ ΠΏΠ»Π°ΡΡΠΈΠΊΠ°, ΡΡΡΠΎΠΉΡΠΈΠ²ΠΎΠ³ΠΎ ΠΊ Π²ΠΎΠ·Π΄Π΅ΠΉΡΡΠ²ΠΈΡ Π°Π³ΡΠ΅ΡΡΠΈΠ²Π½ΠΎΠΉ ΡΡΠ΅Π΄Ρ ΠΈ Π½Π΅ ΡΡΠ΅Π±ΡΡΡΠ΅Π³ΠΎ ΠΊΠ°ΠΊΠΎΠ³ΠΎ-Π»ΠΈΠ±ΠΎ ΡΠΏΠ΅ΡΠΈΠ°Π»ΡΠ½ΠΎΠ³ΠΎ ΡΡ ΠΎΠ΄Π°.
- ΠΠΎΠ½ΡΡΡΡΠΊΡΠΈΡ ΠΏΠΎΠ΄ΡΠ°Π·ΡΠΌΠ΅Π²Π°Π΅Ρ Π½Π°Π»ΠΈΡΠΈΠ΅ Π°ΡΠΌΠΈΡΡΡΡΠΈΡ ΡΡΠΈΠ»ΠΈΡΠ΅Π»Π΅ΠΉ ΠΏΠΎ ΠΏΠ΅ΡΠΈΠΌΠ΅ΡΡΡ Π²ΡΠ΅Π³ΠΎ ΠΏΡΠΎΡΠΈΠ»Ρ. Π£ΠΏΠ»ΠΎΡΠ½ΠΈΡΠ΅Π»Ρ Π²ΡΠΏΠΎΠ»Π½Π΅Π½ ΡΠΏΠ»ΠΎΡΠ½ΡΠΌ ΠΊΠΎΠ½ΡΡΡΠΎΠΌ Π² ΡΡΠ²ΠΎΡΠΊΠ°Ρ ΠΈ ΡΠ°ΠΌΠ΅, ΠΌΠΎΠΆΠ΅Ρ Π±ΡΡΡ ΡΠ΅ΡΠΎΠ³ΠΎ ΠΈΠ»ΠΈ ΡΠ΅ΡΠ½ΠΎΠ³ΠΎ ΡΠ²Π΅ΡΠ°. Π‘ΡΠ΅ΠΊΠ»ΠΎΠΏΠ°ΠΊΠ΅Ρ ΡΡΡΠ°Π½Π°Π²Π»ΠΈΠ²Π°Π΅ΡΡΡ Π½Π° Π³Π»ΡΠ±ΠΈΠ½Ρ Π΄ΠΎ 1,8 ΡΠΌ. Π‘ΡΠ²ΠΎΡΠΊΠΈ ΠΌΠΎΠ³ΡΡ ΠΈΠΌΠ΅ΡΡ Π½Π΅ΡΠΊΠΎΠ»ΡΠΊΠΎ Π²Π°ΡΠΈΠ°Π½ΡΠΎΠ² Π΄ΠΈΠ·Π°ΠΉΠ½Π°: ΡΠΌΠ΅ΡΠ΅Π½Π½ΡΠ΅ ΠΈ ΠΏΠΎΠ»ΡΡΠΌΠ΅ΡΠ΅Π½Π½ΡΠ΅. ΠΠ΅ΠΊΠΎΡΠ°ΡΠΈΠ²Π½ΡΠ΅ ΠΏΠ΅ΡΠ΅ΠΊΠ»Π°Π΄ΠΈΠ½Ρ ΡΡΡΠ°Π½Π°Π²Π»ΠΈΠ²Π°ΡΡΡΡ Π²Π½ΡΡΡΠΈ ΠΈΠ»ΠΈ ΠΏΠΎΠ²Π΅ΡΡ ΡΡΠ΅ΠΊΠ»ΠΎΠΏΠ°ΠΊΠ΅ΡΠ° ΠΈ ΠΈΠΌΠ΅ΡΡ ΡΠΈΡΠΈΠ½Ρ 4, 6, 8 ΠΈΠ»ΠΈ 11 ΡΠΌ.
VEKA Proline/ΠΡΠΎΠ»Π°ΠΉΠ½

Β
Π’Π΅Ρ Π½ΠΈΡΠ΅ΡΠΊΠΈΠ΅ Ρ Π°ΡΠ°ΠΊΡΠ΅ΡΠΈΡΡΠΈΠΊΠΈ:
- ΡΠΈΡΠΈΠ½Π° ΠΏΡΠΎΡΠΈΠ»Ρ 7 ΡΠΌ;
- ΡΠΈΡΠΈΠ½Π° ΡΡΠ΅ΠΊΠ»ΠΎΠΏΠ°ΠΊΠ΅ΡΠ° 32 ΠΌΠ» ΠΈ 42 ΠΌΠ»;
- Π²ΡΡΠΎΡΠ° ΠΏΡΠΎΡΠΈΠ»Ρ 11 ΡΠΌ;
- ΡΠΎΠ»ΡΠΈΠ½Π° Π½Π°ΡΡΠΆΠ½ΠΎΠΉ ΡΡΠ΅Π½ΠΊΠΈ — 3 ΠΌΠ»;
- ΠΊΠ»Π°ΡΡ ΡΡΠΌΠΎΠΈΠ·ΠΎΠ»ΡΡΠΈΠΈ β ΠΎΡ II Π΄ΠΎ IV;
- ΠΊΠΎΡΡΡΠΈΡΠΈΠ΅Π½Ρ ΡΠ΅ΠΏΠ»ΠΎΡΠΎΠΏΡΠΎΡΠΈΠ²Π»Π΅Π½ΠΈΡ — 0,75 ΠΌ2ΠΎΠ‘/ΠΡ;
- ΠΊΠΎΠ½ΡΡΡΡΠΊΡΠΈΡ: ΠΎΡΠΊΠΈΠ΄Π½Π°Ρ, ΠΏΠΎΠ²ΠΎΡΠΎΡΠ½Π°Ρ, ΠΏΠΎΠ²ΠΎΡΠΎΡΠ½ΠΎ-ΠΎΡΠΊΠΈΠ΄Π½Π°Ρ, ΡΠ°Π·Π΄Π²ΠΈΠΆΠ½Π°Ρ ΠΈ ΡΡΡΠ»ΡΠΏΠΎΠ²Π°Ρ;
- ΠΎΠΊΠΎΠ½Π½ΡΠ΅ ΡΠΈΡΡΠ΅ΠΌΡ: ΡΡΠ°Π½Π΄Π°ΡΡΠ½ΡΠ΅, Ρ ΠΏΠΎΠ²ΡΡΠ΅Π½Π½ΠΎΠΉ ΡΠ΅ΠΏΠ»ΠΎ- ΠΈΠ»ΠΈ Π·Π²ΡΠΊΠΎΠΈΠ·ΠΎΠ»ΡΡΠΈΠ΅ΠΉ, Ρ ΡΠ»ΡΡΡΠ΅Π½Π½ΠΎΠΉ ΡΠΈΡΡΠ΅ΠΌΠΎΠΉ Π±Π΅Π·ΠΎΠΏΠ°ΡΠ½ΠΎΡΡΠΈ, Π±Π°Π»ΠΊΠΎΠ½Π½ΡΠ΅ ΠΈ ΡΠ°ΡΠ°Π΄Π½ΡΠ΅.
Β
ΠΠΊΠ½Π° Ρ ΡΠ΅ΡΡΡΠ΅Ρ ΠΊΠ°ΠΌΠ΅ΡΠ½ΠΎΠΉ ΠΏΡΠΎΡΠΈΠ»ΡΠ½ΠΎΠΉ ΡΠΈΡΡΠ΅ΠΌΠΎΠΉ, ΠΎΠ±Π΅ΡΠΏΠ΅ΡΠΈΠ²Π°ΡΡΠ΅ΠΉ ΠΏΠΎΠ²ΡΡΠ΅Π½Π½ΡΠ΅ ΡΠ΅ΠΏΠ»ΠΎ- ΠΈ Π·Π²ΡΠΊΠΎΠΈΠ·ΠΎΠ»ΡΡΠΈΠΎΠ½Π½ΡΠ΅ ΡΠ²ΠΎΠΉΡΡΠ²Π°.
- ΠΡΠΎΡΠΈΠ»Ρ ΠΈΠ· Π²ΡΡΠΎΠΊΠΎΠΊΠ°ΡΠ΅ΡΡΠ²Π΅Π½Π½ΠΎΠ³ΠΎ ΠΏΠ»Π°ΡΡΠΈΠΊΠ° ΡΡΡΠΎΠΉΡΠΈΠ² ΠΊ Π²ΠΎΠ·Π΄Π΅ΠΉΡΡΠ²ΠΈΡ ΠΎΠΊΡΡΠΆΠ°ΡΡΠ΅ΠΉ ΡΡΠ΅Π΄Ρ ΠΈ, ΠΈΠΌΠ΅ΡΡΠΈΠΉ Π½Π°Π΄Π΅ΠΆΠ½ΠΎΠ΅ Π°ΡΠΌΠΈΡΠΎΠ²Π°Π½ΠΈΠ΅.
- Π£ΠΏΠ»ΠΎΡΠ½ΠΈΡΠ΅Π»Ρ Π²ΡΠΏΠΎΠ»Π½ΡΠ΅ΡΡΡ Π² ΡΠ΅ΡΠ½ΠΎΠΌ ΡΠ²Π΅ΡΠ΅ ΠΈ ΠΌΠΎΠΆΠ΅Ρ Π±ΡΡΡ Π²ΡΠΏΠΎΠ»Π½Π΅Π½ ΠΈΠ· ΡΠΈΠ»ΠΈΠΊΠΎΠ½Π°, ΡΠ΅ΡΠΌΠΎΡΠ»Π°ΡΡΠΎΠΏΠ»Π°ΡΡΠ° ΠΈΠ»ΠΈ ΡΡΠΈΠ»Π΅Π½-ΠΏΡΠΎΠΏΠΈΠ»Π΅Π½ΠΎΠ²ΠΎΠ³ΠΎ ΠΊΠ°ΡΡΡΠΊΠ°. ΠΠ»ΡΠ±ΠΈΠ½Π° ΡΡΡΠ°Π½ΠΎΠ²ΠΊΠΈ ΡΡΠ΅ΠΊΠ»ΠΎΠΏΠ°ΠΊΠ΅ΡΠ° Π΄ΠΎ 2 ΡΠΌ. Π ΠΊΠΎΠΌΠΏΠ»Π΅ΠΊΡ ΠΏΠΎΡΡΠ°Π²ΠΊΠΈ Π²Ρ ΠΎΠ΄ΠΈΡ: ΡΠ°ΡΡΠΈΡΠΈΡΠ΅Π»ΠΈ, ΡΠΎΠ΅Π΄ΠΈΠ½ΠΈΡΠ΅Π»ΠΈ, Π΄Π΅ΠΊΠΎΡΠ°ΡΠΈΠ²Π½ΡΠ΅, ΡΡΠΈΠ»ΠΈΠ²Π°ΡΡΠΈΠ΅ ΠΈ ΠΏΡΠΈΡΠΎΠ΅Π΄ΠΈΠ½ΠΈΡΠ΅Π»ΡΠ½ΡΠ΅ ΠΏΡΠΎΡΠΈΠ»ΠΈ.
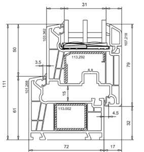
VEKA Softline/Π‘ΠΎΡΡΠ»Π°ΠΉΠ½

Β
Π’Π΅Ρ Π½ΠΈΡΠ΅ΡΠΊΠΈΠ΅ Ρ Π°ΡΠ°ΠΊΡΠ΅ΡΠΈΡΡΠΈΠΊΠΈ:
- ΡΠΈΡΠΈΠ½Π° ΠΏΡΠΎΡΠΈΠ»Ρ 7 ΡΠΌ;
- ΡΠΈΡΠΈΠ½Π° ΡΡΠ΅ΠΊΠ»ΠΎΠΏΠ°ΠΊΠ΅ΡΠ° 14-42 ΠΌΠ»;
- ΡΠΎΠ»ΡΠΈΠ½Π° Π½Π°ΡΡΠΆΠ½ΠΎΠΉ ΡΡΠ΅Π½ΠΊΠΈ — 3 ΠΌΠ»;
- ΠΊΠ»Π°ΡΡ ΡΡΠΌΠΎΠΈΠ·ΠΎΠ»ΡΡΠΈΠΈ β ΠΎΡ II Π΄ΠΎ IV;
- ΠΊΠΎΡΡΡΠΈΡΠΈΠ΅Π½Ρ ΡΠ΅ΠΏΠ»ΠΎΡΠΎΠΏΡΠΎΡΠΈΠ²Π»Π΅Π½ΠΈΡ β 0,78 ΠΌ2ΠΎΠ‘/ΠΡ;
- ΠΊΠΎΠ½ΡΡΡΡΠΊΡΠΈΡ: Π³Π»ΡΡ Π°Ρ, ΠΎΡΠΊΠΈΠ΄Π½Π°Ρ, ΠΏΠΎΠ²ΠΎΡΠΎΡΠ½Π°Ρ, ΠΏΠΎΠ²ΠΎΡΠΎΡΠ½ΠΎ-ΠΎΡΠΊΠΈΠ΄Π½Π°Ρ, ΡΠ°Π·Π΄Π²ΠΈΠΆΠ½Π°Ρ ΠΈ ΡΡΡΠ»ΡΠΏΠΎΠ²Π°Ρ;
- ΡΠΎΡΠΌΠ° ΠΎΠΊΠ½Π°: ΠΏΡΡΠΌΠΎΡΠ³ΠΎΠ»ΡΠ½Π°Ρ, ΠΊΠ²Π°Π΄ΡΠ°ΡΠ½Π°Ρ, ΡΡΠ΅ΡΠ³ΠΎΠ»ΡΠ½Π°Ρ, Π°ΡΠΎΡΠ½Π°Ρ, ΠΊΡΡΠ³Π»Π°Ρ ΠΈΠ»ΠΈ ΡΡΠ°ΠΏΠ΅ΡΠΈΠ΅Π²ΠΈΠ΄Π½Π°Ρ;
- ΠΎΠΊΠΎΠ½Π½ΡΠ΅ ΡΠΈΡΡΠ΅ΠΌΡ: ΡΡΠ°Π½Π΄Π°ΡΡΠ½ΡΠ΅, Ρ ΠΏΠΎΠ²ΡΡΠ΅Π½Π½ΠΎΠΉ ΡΠ΅ΠΏΠ»ΠΎ- ΠΈΠ»ΠΈ Π·Π²ΡΠΊΠΎΠΈΠ·ΠΎΠ»ΡΡΠΈΠ΅ΠΉ, Ρ ΡΠ»ΡΡΡΠ΅Π½Π½ΠΎΠΉ ΡΠΈΡΡΠ΅ΠΌΠΎΠΉ Π±Π΅Π·ΠΎΠΏΠ°ΡΠ½ΠΎΡΡΠΈ, Π±Π°Π»ΠΊΠΎΠ½Π½ΡΠ΅ ΠΈ ΡΠ°ΡΠ°Π΄Π½ΡΠ΅.
Β
ΠΡΠΎΡΠΈΠ»ΡΠ½Π°Ρ ΡΠΈΡΡΠ΅ΠΌΠ° Ρ ΠΏΡΡΡΡ ΠΊΠ°ΠΌΠ΅ΡΠ°ΠΌΠΈ ΠΈ ΡΠ»Π΅Π³Π°Π½ΡΠ½ΡΠΌ ΠΊΠΎΠ½ΡΡΡΠΎΠΌ, ΠΈΠΌΠ΅Π΅Ρ ΡΠ°Π·Π»ΠΈΡΠ½ΡΠ΅ Π΄ΠΈΠ·Π°ΠΉΠ½Ρ ΠΈΡΠΏΠΎΠ»Π½Π΅Π½ΠΈΡ ΡΡΠ²ΠΎΡΠΎΠΊ: ΡΠΌΠ΅ΡΠ΅Π½Π½ΡΠ΅, ΠΏΠΎΠ»ΡΡΠΌΠ΅ΡΠ΅Π½Π½ΡΠ΅ ΠΈ ΡΠΎΠ²ΠΌΠ΅ΡΠ΅Π½Π½ΡΠ΅.
- ΠΡΠΎΡΠΈΠ»Ρ ΠΈΠ·Π³ΠΎΡΠΎΠ²Π»Π΅Π½ ΠΈΠ· Π²ΡΡΠΎΠΊΠΎΠΊΠ°ΡΠ΅ΡΡΠ²Π΅Π½Π½ΠΎΠ³ΠΎ ΠΏΠΎΠ»ΠΈΠ²ΠΈΠ½ΠΈΠ»Ρ Π»ΠΎΡΠΈΠ΄Π°. Π‘ΡΠ΅ΠΊΠ»ΠΎΠΏΠ°ΠΊΠ΅Ρ ΠΈΠΌΠ΅Π΅Ρ ΡΡΠΎΠ²Π΅Π½Ρ Π·Π²ΡΠΊΠΎΠΈΠ·ΠΎΠ»ΡΡΠΈΠΈ Π΄ΠΎ 44 Π΄Π. ΠΠΊΠ½Π° ΡΠΏΠΎΡΠΎΠ±Π½Ρ Π²ΡΠ΄Π΅ΡΠΆΠΈΠ²Π°ΡΡ Π²Π΅ΡΡΠΎΠ²ΡΠ΅ ΠΈ ΡΠ΅ΠΏΠ»ΠΎΠ²ΡΠ΅ Π½Π°Π³ΡΡΠ·ΠΊΠΈ, Π° ΡΠ°ΠΊΠΆΠ΅ Π½Π΅ ΠΈΠ·ΠΌΠ΅Π½ΡΡΡ ΡΠ²ΠΎΠΈΡ Π²ΡΡΠΎΠΊΠΈΡ ΠΈΠ·ΠΎΠ»ΡΡΠΈΠΎΠ½Π½ΡΡ ΠΊΠ°ΡΠ΅ΡΡΠ² ΠΏΡΠΈ Π»ΡΠ±ΡΡ ΠΏΠΎΠ³ΠΎΠ΄Π½ΡΡ ΡΠ²Π»Π΅Π½ΠΈΡΡ .
- ΠΠ°Π»ΠΈΡΠΈΠ΅ Π΄Π²ΡΡ ΠΊΠΎΠ½ΡΡΡΠ½ΠΎΠ³ΠΎ ΡΠΏΠ»ΠΎΡΠ½ΠΈΡΠ΅Π»Ρ ΠΈΠ· APTK ΠΈΠ»ΠΈ Π’Π Π, ΡΠ΅ΡΠΎΠ³ΠΎ ΠΈΠ»ΠΈ ΡΠ΅ΡΠ½ΠΎΠ³ΠΎ ΡΠ²Π΅ΡΠ°, ΠΎΠ±Π΅ΡΠΏΠ΅ΡΠΈΠ²Π°Π΅Ρ Π½Π°Π΄Π΅ΠΆΠ½ΡΡ ΠΏΠ»ΠΎΡΠ½ΠΎΡΡΡ ΠΏΡΠΈΡΠ²ΠΎΡΠ°. Π‘ΡΠ΅ΠΊΠ»ΠΎΠΏΠ°ΠΊΠ΅Ρ ΡΡΡΠ°Π½Π°Π²Π»ΠΈΠ²Π°Π΅ΡΡΡ Π½Π° Π³Π»ΡΠ±ΠΈΠ½Ρ Π΄ΠΎ 2 ΡΠΌ. ΠΠ΅ΡΠ»ΠΈ ΠΈ ΡΡΡΠ½ΠΈΡΡΡΠ° Π·Π°ΠΊΡΠ΅ΠΏΠ»ΡΡΡΡΡ Π² Π°ΡΠΌΠΈΡΡΡΡΠΈΠ΅ ΡΡΠΈΠ»ΠΈΡΠ΅Π»ΠΈ ΠΈΠ· ΠΎΡΠΈΠ½ΠΊΠΎΠ²Π°Π½Π½ΠΎΠΉ ΡΡΠ°Π»ΠΈ.
VEKA Softline 82/Π‘ΠΎΡΡΠ»Π°ΠΉΠ½ 82

Π’Π΅Ρ Π½ΠΈΡΠ΅ΡΠΊΠΈΠ΅ Ρ Π°ΡΠ°ΠΊΡΠ΅ΡΠΈΡΡΠΈΠΊΠΈ:
- ΡΠΈΡΠΈΠ½Π° ΠΏΡΠΎΡΠΈΠ»Ρ 8,2 ΡΠΌ;
- ΡΠΈΡΠΈΠ½Π° ΡΡΠ΅ΠΊΠ»ΠΎΠΏΠ°ΠΊΠ΅ΡΠ° 24-52 ΠΌΠ»;
- ΡΠΎΠ»ΡΠΈΠ½Π° Π½Π°ΡΡΠΆΠ½ΠΎΠΉ ΡΡΠ΅Π½ΠΊΠΈ — 3 ΠΌΠ»;
- ΠΊΠ»Π°ΡΡ ΡΡΠΌΠΎΠΈΠ·ΠΎΠ»ΡΡΠΈΠΈ β ΠΎΡ II Π΄ΠΎ IV;
- ΠΊΠΎΡΡΡΠΈΡΠΈΠ΅Π½Ρ ΡΠ΅ΠΏΠ»ΠΎΡΠΎΠΏΡΠΎΡΠΈΠ²Π»Π΅Π½ΠΈΡ β 1,0 ΠΌ2ΠΎΠ‘/ΠΡ;
- ΠΊΠΎΠ½ΡΡΡΡΠΊΡΠΈΡ: ΠΎΡΠΊΠΈΠ΄Π½Π°Ρ, ΠΏΠΎΠ²ΠΎΡΠΎΡΠ½Π°Ρ, ΠΏΠΎΠ²ΠΎΡΠΎΡΠ½ΠΎ-ΠΎΡΠΊΠΈΠ΄Π½Π°Ρ, ΡΠ°Π·Π΄Π²ΠΈΠΆΠ½Π°Ρ ΠΈ ΡΡΡΠ»ΡΠΏΠΎΠ²Π°Ρ;
- ΠΎΠΊΠΎΠ½Π½ΡΠ΅ ΡΠΈΡΡΠ΅ΠΌΡ: ΡΡΠ°Π½Π΄Π°ΡΡΠ½ΡΠ΅, Ρ ΠΏΠΎΠ²ΡΡΠ΅Π½Π½ΠΎΠΉ ΡΠ΅ΠΏΠ»ΠΎ- ΠΈΠ»ΠΈ Π·Π²ΡΠΊΠΎΠΈΠ·ΠΎΠ»ΡΡΠΈΠ΅ΠΉ, Ρ ΡΠ»ΡΡΡΠ΅Π½Π½ΠΎΠΉ ΡΠΈΡΡΠ΅ΠΌΠΎΠΉ Π±Π΅Π·ΠΎΠΏΠ°ΡΠ½ΠΎΡΡΠΈ, Π±Π°Π»ΠΊΠΎΠ½Π½ΡΠ΅ ΠΈ ΡΠ°ΡΠ°Π΄Π½ΡΠ΅.
Β
ΠΠ½Π½ΠΎΠ²Π°ΡΠΈΠΎΠ½Π½Π°Ρ ΡΠ°Π·ΡΠ°Π±ΠΎΡΠΊΠ°, Ρ Π΄ΠΎΡΡΠ°ΡΠΎΡΠ½ΠΎ Π±ΠΎΠ»ΡΡΠΎΠΉ ΡΠΈΡΠΈΠ½ΠΎΠΉ ΠΏΡΠΎΡΠΈΠ»Ρ, ΡΡΠΎ ΠΏΠΎΠ·Π²ΠΎΠ»ΡΠ΅Ρ ΠΎΠ±Π΅ΡΠΏΠ΅ΡΠΈΡΡ Π½Π°Π΄Π΅ΠΆΠ½ΡΡ ΡΠ΅ΠΏΠ»ΠΎ- ΠΈ Π·Π²ΡΠΊΠΎΠ·Π°ΡΠΈΡΡ.
- Π‘ΡΠ²ΠΎΡΠΊΠΈ Π²ΡΠΏΠΎΠ»Π½ΡΡΡΡΡ Π² Π½Π΅ΡΠΊΠΎΠ»ΡΠΊΠΈΡ Π²Π°ΡΠΈΠ°Π½ΡΠ°Ρ : ΡΠΌΠ΅ΡΠ΅Π½Π½ΡΠ΅, ΡΠΎΠ²ΠΌΠ΅ΡΠ΅Π½Π½ΡΠ΅ ΠΈ ΠΏΠΎΠ»ΡΡΠΌΠ΅ΡΠ΅Π½Π½ΡΠ΅. Π£ΡΡΠ°Π½Π°Π²Π»ΠΈΠ²Π°Π΅ΡΡΡ ΡΡΠ΅Ρ ΠΊΠΎΠ½ΡΡΡΠ½ΡΠΉ ΡΠΏΠ»ΠΎΡΠ½ΠΈΡΠ΅Π»Ρ, Π²ΡΠΏΠΎΠ»Π½Π΅Π½Π½ΡΠΉ Π² ΡΠ΅ΡΠΎΠΌ ΡΠ²Π΅ΡΠ΅.
- Π ΠΏΡΠΎΡΠΈΠ»Π΅ ΠΈ Π² ΠΈΠΌΠΏΠΎΡΡΠ΅ ΠΈΡΠΏΠΎΠ»ΡΠ·ΡΠ΅ΡΡΡ Π°ΡΠΌΠΈΡΠΎΠ²Π°Π½Π½ΡΠΉ ΡΡΠΈΠ»ΠΈΡΠ΅Π»Ρ Ρ Π·Π°ΠΌΠΊΠ½ΡΡΡΠΌ ΡΠ΅ΡΠ΅Π½ΠΈΠ΅ΠΌ, ΡΡΠΎ ΠΎΠ±Π΅ΡΠΏΠ΅ΡΠΈΠ²Π°Π΅Ρ Π΄ΠΎΠΏΠΎΠ»Π½ΠΈΡΠ΅Π»ΡΠ½ΡΡ ΠΏΡΠΎΡΠ½ΠΎΡΡΡ ΠΈ Π½Π°Π΄Π΅ΠΆΠ½ΠΎΡΡΡ, Π° ΡΠ°ΠΊΠΆΠ΅ Π»ΡΡΡΠ΅Π΅ ΡΠΎΠΏΡΠΎΡΠΈΠ²Π»Π΅Π½ΠΈΠ΅ ΡΠ΅ΠΏΠ»ΠΎΠΏΠ΅ΡΠ΅Π΄Π°ΡΠΈ. ΠΠ»Ρ ΠΌΠΈΠ½ΠΈΠΌΠΈΠ·Π°ΡΠΈΠΈ ΠΏΠΎΡΠ΅ΡΡ ΡΠ΅ΠΏΠ»Π° ΠΈ ΠΏΡΠ΅Π΄ΠΎΡΠ²ΡΠ°ΡΠ΅Π½ΠΈΡ ΠΎΠ±ΡΠ°Π·ΠΎΠ²Π°Π½ΠΈΡ ΠΊΠΎΠ½Π΄Π΅Π½ΡΠ°ΡΠ° Π½Π° ΡΡΠ΅ΠΊΠ»ΠΎΠΏΠ°ΠΊΠ΅ΡΠ΅ ΡΠ²Π΅Π»ΠΈΡΠ΅Π½Π° Π²ΡΡΠΎΡΠ° ΡΠ°Π»ΡΡΠ° Π΄ΠΎ 2,5 ΡΠΌ.
VEKA Swingline/Π‘Π²ΠΈΠ½Π³Π»Π°ΠΉΠ½

Π’Π΅Ρ Π½ΠΈΡΠ΅ΡΠΊΠΈΠ΅ Ρ Π°ΡΠ°ΠΊΡΠ΅ΡΠΈΡΡΠΈΠΊΠΈ:
- ΡΠΈΡΠΈΠ½Π° ΠΏΡΠΎΡΠΈΠ»Ρ 7 ΡΠΌ;
- ΡΠΈΡΠΈΠ½Π° ΡΡΠ΅ΠΊΠ»ΠΎΠΏΠ°ΠΊΠ΅ΡΠ° 32 ΠΌΠ», 40 ΠΌΠ»;
- ΡΠΎΠ»ΡΠΈΠ½Π° Π½Π°ΡΡΠΆΠ½ΠΎΠΉ ΡΡΠ΅Π½ΠΊΠΈ — 3 ΠΌΠ»;
- ΠΊΠ»Π°ΡΡ ΡΡΠΌΠΎΠΈΠ·ΠΎΠ»ΡΡΠΈΠΈ β ΠΎΡ II Π΄ΠΎ IV;
- ΠΊΠΎΡΡΡΠΈΡΠΈΠ΅Π½Ρ ΡΠ΅ΠΏΠ»ΠΎΡΠΎΠΏΡΠΎΡΠΈΠ²Π»Π΅Π½ΠΈΡ β 0,77 ΠΌ2ΠΎΠ‘/ΠΡ;
- ΠΊΠΎΠ½ΡΡΡΡΠΊΡΠΈΡ: ΠΎΡΠΊΠΈΠ΄Π½Π°Ρ, ΠΏΠΎΠ²ΠΎΡΠΎΡΠ½Π°Ρ, ΠΏΠΎΠ²ΠΎΡΠΎΡΠ½ΠΎ-ΠΎΡΠΊΠΈΠ΄Π½Π°Ρ, ΡΠ°Π·Π΄Π²ΠΈΠΆΠ½Π°Ρ ΠΈ ΡΡΡΠ»ΡΠΏΠΎΠ²Π°Ρ;
- ΠΎΠΊΠΎΠ½Π½ΡΠ΅ ΡΠΈΡΡΠ΅ΠΌΡ: ΡΡΠ°Π½Π΄Π°ΡΡΠ½ΡΠ΅, Ρ ΠΏΠΎΠ²ΡΡΠ΅Π½Π½ΠΎΠΉ ΡΠ΅ΠΏΠ»ΠΎ- ΠΈΠ»ΠΈ Π·Π²ΡΠΊΠΎΠΈΠ·ΠΎΠ»ΡΡΠΈΠ΅ΠΉ, Ρ ΡΠ»ΡΡΡΠ΅Π½Π½ΠΎΠΉ ΡΠΈΡΡΠ΅ΠΌΠΎΠΉ Π±Π΅Π·ΠΎΠΏΠ°ΡΠ½ΠΎΡΡΠΈ, Π±Π°Π»ΠΊΠΎΠ½Π½ΡΠ΅ ΠΈ ΡΠ°ΡΠ°Π΄Π½ΡΠ΅.
Β
ΠΠ½ΠΎΠ³ΠΎΠΊΠ°ΠΌΠ΅ΡΠ½Π°Ρ ΠΏΡΠΎΡΠΈΠ»ΠΈΡΠΎΠ²Π°Π½Π½Π°Ρ ΡΠΈΡΡΠ΅ΠΌΠ° Ρ ΡΠΊΡΡΠ³Π»Π΅Π½Π½ΡΠΌ Π½Π°ΡΡΠΆΠ½ΡΠΌ ΠΊΠΎΠ½ΡΡΡΠΎΠΌ. Π‘ΡΠ²ΠΎΡΠΊΠΈ ΠΌΠΎΠ³ΡΡ Π±ΡΡΡ Π²ΡΠΏΠΎΠ»Π½Π΅Π½Ρ Π² ΡΠΌΠ΅ΡΠ΅Π½Π½ΠΎΠΌ ΠΈ ΠΏΠΎΠ»ΡΡΠΌΠ΅ΡΠ΅Π½Π½ΠΎΠΌ Π²Π°ΡΠΈΠ°Π½ΡΠ΅.
- ΠΠ΅ΠΆΠ΄Ρ ΡΡΠ΅ΠΊΠ»ΠΎΠΏΠ°ΠΊΠ΅ΡΠΎΠΌ ΠΈ ΡΠ°Π»ΡΡΠ΅ΠΌ ΡΠ°ΡΠΏΠΎΠ»ΠΎΠΆΠ΅Π½ ΡΠ΅Π»ΡΠ½ΡΠΉ ΠΊΠΎΠ½ΡΡΡ ΡΠΏΠ»ΠΎΡΠ½ΠΈΡΠ΅Π»Ρ, Π²ΡΠΏΠΎΠ»Π½Π΅Π½Π½ΡΠΉ ΠΈΠ· ΡΠΈΠ»ΠΈΠΊΠΎΠ½Π° ΠΈΠ»ΠΈ ΡΡΠΈΠ»Π΅Π½-ΠΏΡΠΎΠΏΠΈΠ»Π΅Π½ΠΎΠ²ΠΎΠ³ΠΎ ΠΊΠ°ΡΡΡΠΊΠ°, ΡΠ΅ΡΠ½ΠΎΠ³ΠΎ ΠΈΠ»ΠΈ ΡΠ΅ΡΠΎΠ³ΠΎ ΡΠ²Π΅ΡΠ°
- Π‘ΡΠ΅ΠΊΠ»ΠΎΠΏΠ°ΠΊΠ΅Ρ ΡΡΡΠ°Π½Π°Π²Π»ΠΈΠ²Π°Π΅ΡΡΡ Π½Π° Π³Π»ΡΠ±ΠΈΠ½Ρ Π΄ΠΎ 2 ΡΠΌ. ΠΠ΅ΠΊΠΎΡΠ°ΡΠΈΠ²Π½ΡΠ΅ ΡΠ΅ΠΉΠΊΠΈ ΠΌΠΎΠ³ΡΡ ΡΡΡΠ°Π½Π°Π²Π»ΠΈΠ²Π°ΡΡΡΡ ΠΊΠ°ΠΊ Π²Π½ΡΡΡΠΈ ΡΡΠ΅ΠΊΠ»ΠΎΠΏΠ°ΠΊΠ΅ΡΠ°, ΡΠ°ΠΊ ΠΈ ΡΠ°Π·Π΄Π΅Π»ΡΡΡ Π΅Π³ΠΎ ΠΈ ΠΈΠΌΠ΅ΡΡ ΡΠΈΡΠΈΠ½Ρ 5, 6, 7,5, 8,5, 10 ΠΈ 11 ΡΠΌ. ΠΈΠΌΠ΅Π΅ΡΡΡ Π²ΠΎΠ·ΠΌΠΎΠΆΠ½ΠΎΡΡΡ ΡΡΡΠ°Π½ΠΎΠ²ΠΊΠΈ Π΄ΠΎΠΏΠΎΠ»Π½ΠΈΡΠ΅Π»ΡΠ½ΡΡ ΠΏΡΠΎΡΠΈΠ²ΠΎΠ²Π·Π»ΠΎΠΌΠ½ΡΡ ΠΌΠ΅Ρ Π°Π½ΠΈΠ·ΠΌΠΎΠ².
VEKA Topline/Π’ΠΎΠΏΠ»Π°ΠΉΠ½

Β
Π’Π΅Ρ Π½ΠΈΡΠ΅ΡΠΊΠΈΠ΅ Ρ Π°ΡΠ°ΠΊΡΠ΅ΡΠΈΡΡΠΈΠΊΠΈ:
- ΡΠΈΡΠΈΠ½Π° ΠΏΡΠΎΡΠΈΠ»Ρ 7 ΡΠΌ;
- ΡΠΈΡΠΈΠ½Π° ΡΡΠ΅ΠΊΠ»ΠΎΠΏΠ°ΠΊΠ΅ΡΠ° 32 ΠΌΠ», 42 ΠΌΠ»;
- ΡΠΎΠ»ΡΠΈΠ½Π° Π½Π°ΡΡΠΆΠ½ΠΎΠΉ ΡΡΠ΅Π½ΠΊΠΈ — 3 ΠΌΠ»;
- ΠΊΠ»Π°ΡΡ ΡΡΠΌΠΎΠΈΠ·ΠΎΠ»ΡΡΠΈΠΈ β ΠΎΡ II Π΄ΠΎ IV;
- ΠΊΠΎΡΡΡΠΈΡΠΈΠ΅Π½Ρ ΡΠ΅ΠΏΠ»ΠΎΡΠΎΠΏΡΠΎΡΠΈΠ²Π»Π΅Π½ΠΈΡ β 1,1 ΠΌ2ΠΎΠ‘/ΠΡ;
- ΠΊΠΎΠ½ΡΡΡΡΠΊΡΠΈΡ: ΠΎΡΠΊΠΈΠ΄Π½Π°Ρ, ΠΏΠΎΠ²ΠΎΡΠΎΡΠ½Π°Ρ, ΠΏΠΎΠ²ΠΎΡΠΎΡΠ½ΠΎ-ΠΎΡΠΊΠΈΠ΄Π½Π°Ρ, ΡΠ°Π·Π΄Π²ΠΈΠΆΠ½Π°Ρ ΠΈ ΡΡΡΠ»ΡΠΏΠΎΠ²Π°Ρ;
- ΠΎΠΊΠΎΠ½Π½ΡΠ΅ ΡΠΈΡΡΠ΅ΠΌΡ: ΡΡΠ°Π½Π΄Π°ΡΡΠ½ΡΠ΅, Ρ ΠΏΠΎΠ²ΡΡΠ΅Π½Π½ΠΎΠΉ ΡΠ΅ΠΏΠ»ΠΎ- ΠΈΠ»ΠΈ Π·Π²ΡΠΊΠΎΠΈΠ·ΠΎΠ»ΡΡΠΈΠ΅ΠΉ, Ρ ΡΠ»ΡΡΡΠ΅Π½Π½ΠΎΠΉ ΡΠΈΡΡΠ΅ΠΌΠΎΠΉ Π±Π΅Π·ΠΎΠΏΠ°ΡΠ½ΠΎΡΡΠΈ, Π±Π°Π»ΠΊΠΎΠ½Π½ΡΠ΅ ΠΈ ΡΠ°ΡΠ°Π΄Π½ΡΠ΅.
Β
Π‘ΡΠ°Π½Π΄Π°ΡΡΠ½ΡΠΉ ΠΏΡΡΠΈΠΊΠ°ΠΌΠ΅ΡΠ½ΡΠΉ ΠΎΠΊΠΎΠ½Π½ΡΠΉ ΠΏΡΠΎΡΠΈΠ»Ρ, ΠΈΠΌΠ΅ΡΡΠΈΠΉ ΠΏΠΎΠ²ΡΡΠ΅Π½Π½ΡΠΉ ΠΏΠΎΠΊΠ°Π·Π°ΡΠ΅Π»Ρ ΡΠ΅ΠΏΠ»ΠΎΠΈΠ·ΠΎΠ»ΡΡΠΈΠΈ.
- ΠΠΎΠΌΠΏΠ»Π΅ΠΊΡΠ½Π°Ρ ΡΠΈΡΡΠ΅ΠΌΠ°, ΠΈΠΌΠ΅ΡΡΠ°Ρ 4 Π²Π°ΡΠΈΠ°Π½ΡΠ° ΡΠ°ΠΌ, ΡΠ°Π·Π»ΠΈΡΠ°Π΅ΠΌΡΡ ΠΏΠΎ ΠΌΠΎΠ½ΡΠ°ΠΆΠ½ΠΎΠΉ Π²ΡΡΠΎΡΠ΅ ΠΈ 8 ΡΡΠ²ΠΎΡΠΎΠΊ Ρ Π΅Π²ΡΠΎΠΏΠ°Π·ΠΎΠΌ, ΡΠ°Π·Π»ΠΈΡΠ½ΠΎΠΉ ΡΠΈΡΠΈΠ½Ρ (7, 8 ΠΈ 10 ΡΠΌ).
- Π Π°ΠΌΠ½ΡΠΉ ΡΠΏΠ»ΠΎΡΠ½ΠΈΡΠ΅Π»Ρ ΡΡΡΠ°Π½Π°Π²Π»ΠΈΠ²Π°Π΅ΡΡΡ ΡΠΏΠ»ΠΎΡΠ½ΡΠΌ ΠΊΠΎΠ½ΡΡΡΠΎΠΌ Π±Π»Π°Π³ΠΎΠ΄Π°ΡΡ ΡΠΎΠ΅Π΄ΠΈΠ½Π΅Π½ΠΈΡ ΠΈΠΌΠΏΠΎΡΡΠΎΠ² ΠΎΡΠΎΠ±ΡΠΌ ΠΎΠ±ΡΠ°Π·ΠΎΠΌ.
- ΠΡΠΎΡΠΈΠ»Ρ ΠΈΠΌΠ΅Π΅Ρ ΡΠΊΡΡΠ³Π»Π΅Π½Π½ΡΠ΅ ΠΊΡΠ°Ρ, Π·Π° ΡΡΠ΅Ρ ΡΡΡΠ°Π½ΠΎΠ²ΠΊΠΈ Π΄ΠΎΠΏΠΎΠ»Π½ΠΈΡΠ΅Π»ΡΠ½ΡΡ ΠΈΠΌΠΏΠΎΡΡΠΎΠ².
ΠΠ»Π΅ΠΌΠ΅Π½ΡΡ ΠΊΠΎΠ½ΡΡΡΡΠΊΡΠΈΠΈ ΠΏΠ»Π°ΡΡΠΈΠΊΠΎΠ²ΡΡ ΠΎΠΊΠΎΠ½ VEKA
Β
ΠΠ°ΠΊ ΠΏΡΠ°Π²ΠΈΠ»ΠΎ, ΠΊΠΎΠ½ΡΡΡΡΠΊΡΠΈΡ ΠΏΠ»Π°ΡΡΠΈΠΊΠΎΠ²ΡΡ ΠΎΠΊΠΎΠ½ ΠΏΡΠ°ΠΊΡΠΈΡΠ΅ΡΠΊΠΈ ΠΈΠ΄Π΅Π½ΡΠΈΡΠ½Π° ΠΈ ΡΠΎΠ΄Π΅ΡΠΆΠΈΡ ΡΡΠ΄ ΠΎΠ΄Π½ΠΎΡΠΈΠΏΠ½ΡΡ ΡΠ»Π΅ΠΌΠ΅Π½ΡΠΎΠ².
Β
- Π Π°ΠΌΠ° (ΠΈΠ½Π°ΡΠ΅ Π½Π°Π·ΡΠ²Π°Π΅ΡΡΡ ΠΏΡΠΎΡΠΈΠ»Ρ) β ΡΠΎΡΡΠΎΠΈΡ ΠΈΠ· ΠΌΠ½ΠΎΠ³ΠΎΠΊΠ°ΠΌΠ΅ΡΠ½ΠΎΠ³ΠΎ ΠΠΠ₯-ΠΏΡΠΎΡΠΈΠ»Ρ, ΠΊΠΎΡΠΎΡΡΠΉ Ρ Π²Π½ΡΡΡΠ΅Π½Π½Π΅ΠΉ ΡΡΠΎΡΠΎΠ½Ρ Π°ΡΠΌΠΈΡΠΎΠ²Π°Π½ ΠΎΡΠΈΠ½ΠΊΠΎΠ²Π°Π½Π½ΠΎΠΉ ΡΡΠ°Π»ΡΡ. ΠΡΠΈ ΡΡΠΎΠΌ Π²Π½ΡΡΡΠ΅Π½Π½ΡΡ ΡΠ°ΡΡΡ ΠΌΠΎΠΆΠ΅Ρ ΠΈΠΌΠ΅ΡΡ ΡΠ°Π·Π»ΠΈΡΠ½ΡΡ ΡΠΎΡΠΌΡ (Π-ΠΎΠ±ΡΠ°Π·Π½ΡΡ ΠΈΠ»ΠΈ Π·Π°ΠΌΠΊΠ½ΡΡΡΡ ΠΏΡΡΠΌΠΎΡΠ³ΠΎΠ»ΡΠ½ΡΡ). ΠΠ΅ΠΆΠ΄Ρ ΡΠΎΠ±ΠΎΠΉ Π°ΡΠΌΠΈΡΡΡΡΠΈΠΉ ΠΈ ΠΏΠ»Π°ΡΡΠΈΠΊΠΎΠ²ΡΠΉ ΠΏΡΠΎΡΠΈΠ»ΠΈ ΡΠΎΠ΅Π΄ΠΈΠ½ΡΡΡΡΡ ΡΠ°ΠΌΠΎΡΠ΅Π·Π°ΠΌΠΈ. Π Π°ΠΌΠ° Π½Π΅ΠΎΠ±Ρ ΠΎΠ΄ΠΈΠΌΠ° Π΄Π»Ρ ΠΏΡΠΈΠ΄Π°Π½ΠΈΡ Π²ΡΠ΅ΠΉ ΠΎΠΊΠΎΠ½Π½ΠΎΠΉ ΠΊΠΎΠ½ΡΡΡΡΠΊΡΠΈΠΈ ΠΆΠ΅ΡΡΠΊΠΎΡΡΠΈ ΠΈ ΠΏΡΠΎΡΠ½ΠΎΡΡΠΈ, ΠΏΠΎΡΡΠΎΠΌΡ ΠΎΠ½Π° Π΄ΠΎΠ»ΠΆΠ½Π° Π±ΡΡΡ ΠΈΠ·Π³ΠΎΡΠΎΠ²Π»Π΅Π½Π° ΠΌΠ°ΠΊΡΠΈΠΌΠ°Π»ΡΠ½ΠΎ ΠΊΠ°ΡΠ΅ΡΡΠ²Π΅Π½Π½ΠΎ.

- Π‘ΡΠ΅ΠΊΠ»ΠΎΠΏΠ°ΠΊΠ΅Ρ β ΡΡΠΎ ΠΎΡΠ½ΠΎΠ²Π½Π°Ρ ΠΈ ΡΠ°ΠΌΠ°Ρ Π±ΠΎΠ»ΡΡΠ°Ρ ΡΠ°ΡΡΡ ΠΎΠΊΠ½Π°. Π‘ΠΎΡΡΠΎΠΈΡ ΠΈΠ· 2-Ρ ΠΈ Π±ΠΎΠ»Π΅Π΅ ΡΡΠ΅ΠΊΠΎΠ», ΡΠ°Π·Π΄Π΅Π»Π΅Π½Π½ΡΡ ΡΠΏΠ΅ΡΠΈΠ°Π»ΡΠ½ΠΎΠΉ ΡΠ°ΠΌΠΊΠΎΠΉ, Π° ΠΌΠ΅ΠΆΠ΄Ρ ΡΠΎΠ±ΠΎΠΉ ΡΠΎΠ΅Π΄ΠΈΠ½Π΅Π½Π½ΡΡ Π³Π΅ΡΠΌΠ΅ΡΠΈΠΊΠΎΠΌ. ΠΠ΅ΠΆΠ΄Ρ ΡΡΠ΅ΠΊΠ»Π°ΠΌΠΈ ΡΡΡΠ΅ΡΡΠ²ΡΠ΅Ρ ΠΏΡΠΎΠΌΠ΅ΠΆΡΡΠΎΠΊ Π·Π°ΠΏΠΎΠ»Π½Π΅Π½Π½ΡΠΉ Π²ΠΎΠ·Π΄ΡΡ ΠΎΠΌ ΠΈΠ»ΠΈ Π³Π°Π·ΠΎΠΌ ΠΈ ΠΊΠ°ΠΆΠ΄ΡΠΉ ΡΠ°ΠΊΠΎΠΉ ΠΏΡΠΎΠΌΠ΅ΠΆΡΡΠΎΠΊ Π½Π°Π·ΡΠ²Π°Π΅ΡΡΡ ΠΊΠ°ΠΌΠ΅ΡΠΎΠΉ. ΠΠ°ΠΏΡΠΈΠΌΠ΅Ρ, Π΄Π²ΡΠΊΡ Π°ΠΌΠ΅ΡΠ½ΡΠΉ ΡΡΠ΅ΠΊΠ»ΠΎΠΏΠ°ΠΊΠ΅Ρ ΠΏΡΠ΅Π΄ΠΏΠΎΠ»Π°Π³Π°Π΅Ρ 3 ΡΡΠ΅ΠΊΠ»Π° ΠΈ 2 Π²ΠΎΠ·Π΄ΡΡΠ½ΡΡ ΠΏΡΠΎΡΡΡΠ°Π½ΡΡΠ²Π°. Π‘ΡΠ΅ΠΊΠ»ΠΎΠΏΠ°ΠΊΠ΅ΡΡ ΠΌΠΎΠ³ΡΡ ΠΈΠΌΠ΅ΡΡ ΡΠ°Π·Π»ΠΈΡΠ½ΡΡ ΡΠΈΡΠΈΠ½Ρ (ΠΎΡ 14 ΠΌΠΌ Π΄ΠΎ 52 ΠΌΠΌ), Π² Π·Π°Π²ΠΈΡΠΈΠΌΠΎΡΡΠΈ ΠΎΡ ΡΡΠΎΠ³ΠΎ ΠΈΠΌΠ΅ΡΡ ΡΠ°Π·Π»ΠΈΡΠ½ΡΡ ΡΠΎΡΠΌΡΠ»Ρ, ΡΠ°ΠΊ ΠΎΠ΄Π½ΠΎΠΊΠ°ΠΌΠ΅ΡΠ½ΡΠΉ ΡΡΠ΅ΠΊΠ»ΠΎΠΏΠ°ΠΊΠ΅Ρ ΡΠΈΡΠΈΠ½ΠΎΠΉ Π² 24 ΠΌΠΌ ΠΏΡΠ΅Π΄ΠΏΠΎΠ»Π°Π³Π°Π΅Ρ Π½Π°Π»ΠΈΡΠΈΠ΅ 2-Ρ ΡΡΠ΅ΠΊΠΎΠ» ΡΠΈΡΠΈΠ½ΠΎΠΉ ΠΏΠΎ 4 ΠΌΠΌ ΠΈ Π²ΠΎΠ·Π΄ΡΡΠ½ΠΎΠ³ΠΎ ΠΏΡΠΎΡΡΡΠ°Π½ΡΡΠ²Π° ΠΌΠ΅ΠΆΠ΄Ρ Π½ΠΈΠΌΠΈ Π² 16 ΠΌΠΌ.
- Π‘ΡΠ²ΠΎΡΠΊΠ° β ΡΡΠΎ ΠΎΡΠΊΡΡΠ²Π°ΡΡΠ°ΡΡΡ ΡΠ°ΡΡΡ ΠΎΠΊΠ½Π°, ΠΏΠΎ ΡΠ²ΠΎΠ΅ΠΉ ΠΊΠΎΠ½ΡΡΡΡΠΊΡΠΈΠΈ ΠΎΠ½Π° ΠΈΠ·Π³ΠΎΡΠ°Π²Π»ΠΈΠ²Π°Π΅ΡΡΡ ΡΠ°ΠΊ ΠΆΠ΅ ΠΊΠ°ΠΊ ΠΈ ΡΠ°ΠΌΠ°.
- Π Π΅Π·ΠΈΠ½ΠΎΠ²ΡΠΉ ΡΠΏΠ»ΠΎΡΠ½ΠΈΡΠ΅Π»Ρ Π΄Π»Ρ ΠΏΠ»Π°ΡΡΠΈΠΊΠΎΠ²ΡΡ ΠΎΠΊΠΎΠ½ veka β ΠΎΠ±Π΅ΡΠΏΠ΅ΡΠΈΠ²Π°ΡΡ Π½Π°Π΄Π΅ΠΆΠ½ΠΎΠ΅ ΡΠΎΠ΅Π΄ΠΈΠ½Π΅Π½ΠΈΠ΅ ΠΊΠΎΠ½ΡΡΡΡΠΊΡΠΈΠ²Π½ΡΡ ΡΠ»Π΅ΠΌΠ΅Π½ΡΠΎΠ² ΠΈ ΠΈΡ Π³Π΅ΡΠΌΠ΅ΡΠΈΠ·Π°ΡΠΈΡ. Π ΠΏΡΠΎΡΠΈΠ»ΠΈΡΠΎΠ²Π°Π½Π½ΠΎΠΉ ΡΠΈΡΡΠ΅ΠΌΠ΅ Veka ΡΠΏΠ»ΠΎΡΠ½ΠΈΡΠ΅Π»Ρ ΡΡΡΠ°Π½Π°Π²Π»ΠΈΠ²Π°Π΅ΡΡΡ Ρ ΠΎΡΠΎΠ±ΡΠΌ ΡΠ³Π»ΠΎΠΌ Π½Π°ΠΊΠ»ΠΎΠ½Π°, ΠΏΡΠΈ ΠΊΠΎΡΠΎΡΠΎΠΌ Π΅Π³ΠΎ ΠΏΡΠ°ΠΊΡΠΈΡΠ΅ΡΠΊΠΈ Π½Π΅ Π²ΠΈΠ΄Π½ΠΎ, ΠΊΡΠΎΠΌΠ΅ ΡΠΎΠ³ΠΎ, ΡΠ°Π·ΡΠ°Π±ΠΎΡΠ°Π½Ρ ΡΠΏΠ»ΠΎΡΠ½ΠΈΡΠ΅Π»ΠΈ ΡΡΠ΅Ρ ΡΠ°Π·Π½ΡΡ ΡΠ²Π΅ΡΠΎΠ²: ΡΠ΅ΡΠ½ΡΠΉ, ΡΠ΅ΡΡΠΉ ΠΈ ΠΊΠ°ΡΠ°ΠΌΠ΅Π»ΡΠ½ΡΠΉ. ΠΠΎΠ½ΡΡΡ ΡΠΏΠ»ΠΎΡΠ½ΠΈΡΠ΅Π»Ρ Π²ΡΠΏΠΎΠ»Π½ΡΠ΅ΡΡΡ Π±Π΅Π· ΡΡΡΠΊΠΎΠ², Π·Π° ΡΡΠ΅Ρ ΠΎΡΠΎΠ±ΠΎΠΉ Π³Π΅ΠΎΠΌΠ΅ΡΡΠΈΠΈ ΠΏΡΠΎΡΠΈΠ»Ρ, Π±Π»Π°Π³ΠΎΠ΄Π°ΡΡ ΡΠ°ΠΊΠΎΠΉ ΠΊΠΎΠ½ΡΡΡΡΠΊΡΠΈΠΈ ΠΈΡΠΊΠ»ΡΡΠ°ΡΡΡΡ ΠΏΡΠΎΠ΄ΡΠ²Π°Π΅ΠΌΡΠ΅ Π·ΠΎΠ½Ρ. ΠΡΠΎΠ±Π΅Π½Π½ΠΎ Ρ ΠΎΡΠΎΡΠΎ Π·Π°ΡΠ΅ΠΊΠΎΠΌΠ΅Π½Π΄ΠΎΠ²Π°Π» ΡΠ΅Π±Ρ ΡΠΏΠ»ΠΎΡΠ½ΠΈΡΠ΅Π»Ρ, Π²ΡΠΏΠΎΠ»Π½Π΅Π½Π½ΡΠΉ ΠΈΠ· ΠΊΠ°ΡΡΡΠΊΠ°, ΡΠ°ΠΊ ΠΊΠ°ΠΊ ΠΎΠ½ ΡΠΏΠΎΡΠΎΠ±Π΅Π½ Π²ΡΠ΄Π΅ΡΠΆΠΈΠ²Π°ΡΡ ΡΠ΅Π·ΠΊΠΈΠ΅ ΠΊΠΎΠ»Π΅Π±Π°Π½ΠΈΡ ΡΠ΅ΠΌΠΏΠ΅ΡΠ°ΡΡΡΡ ΠΈΠ»ΠΈ Π½Π°Ρ ΠΎΠ΄ΠΈΡΡΡ Π΄ΠΎΠ»Π³ΠΎ Π² Π°Π³ΡΠ΅ΡΡΠΈΠ²Π½ΠΎΠΉ ΡΡΠ΅Π΄Π΅ Π±Π΅Π· ΠΏΠΎΡΠ΅ΡΡ ΡΠ²ΠΎΠΈΡ ΠΎΡΠ½ΠΎΠ²Π½ΡΡ ΠΊΠ°ΡΠ΅ΡΡΠ².

- Π€ΡΡΠ½ΠΈΡΡΡΠ° β ΠΏΠΎΠ΄ ΡΡΠΈΠΌ ΠΏΠΎΠ½ΡΡΠΈΠ΅ΠΌ ΠΎΠ±ΡΠ΅Π΄ΠΈΠ½Π΅Π½ΠΎ ΠΌΠ½ΠΎΠΆΠ΅ΡΡΠ²ΠΎ ΡΠ»Π΅ΠΌΠ΅Π½ΡΠΎΠ² ΠΎΠΊΠΎΠ½Π½ΠΎΠΉ ΠΊΠΎΠ½ΡΡΡΡΠΊΡΠΈΠΈ. ΠΠ½Π° ΠΌΠΎΠΆΠ΅Ρ Π±ΡΡΡ ΠΏΠΎΠ΄Π²ΠΈΠΆΠ½ΠΎΠΉ ΠΈΠ»ΠΈ Π³Π»ΡΡ
ΠΎΠΉ. ΠΠ°ΠΊ ΠΏΡΠ°Π²ΠΈΠ»ΠΎ, ΠΈΠ·Π³ΠΎΡΠ°Π²Π»ΠΈΠ²Π°Π΅ΡΡΡ ΠΈΠ· ΠΌΠ΅ΡΠ°Π»Π»Π° ΠΈΠ»ΠΈ ΠΏΠ»Π°ΡΡΠΈΠΊΠ°. ΠΡΠ½ΠΎΠ²Π½ΠΎΠ΅ Π΅Π΅ Π½Π°Π·Π½Π°ΡΠ΅Π½ΠΈΠ΅ β ΡΡΠΎ ΡΠΎΠ΅Π΄ΠΈΠ½Π΅Π½ΠΈΠ΅ ΠΊΠΎΠ½ΡΡΡΡΠΊΡΠΈΠ²Π½ΡΡ
ΡΠ°ΡΡΠ΅ΠΉ ΠΌΠ΅ΠΆΠ΄Ρ ΡΠΎΠ±ΠΎΠΉ, Π° ΡΠ°ΠΊΠΆΠ΅ ΠΎΡΠΊΡΡΡΠΈΠ΅ ΠΈ Π·Π°ΠΊΡΡΡΠΈΠ΅ ΠΎΠΊΠΎΠ½. ΠΡΠΎ:
- ΠΏΠ΅ΡΠ»ΠΈ;
- ΡΡΡΠΊΠΈ;
- Π·Π°ΠΌΠΊΠΈ;
- ΠΊΡΡΡΠΊΠΈ ΠΈ Π·Π°Π³Π»ΡΡΠΊΠΈ.
- Π¨ΡΠ°ΠΏΠΈΠΊ β Π½Π΅ΠΎΠ±Ρ ΠΎΠ΄ΠΈΠΌΡΠΉ ΡΠ»Π΅ΠΌΠ΅Π½Ρ Π΄Π»Ρ Π·Π°ΠΊΡΠ΅ΠΏΠ»Π΅Π½ΠΈΡ ΡΡΠ΅ΠΊΠ»ΠΎΠΏΠ°ΠΊΠ΅ΡΠ°, Π²ΡΠΏΠΎΠ»Π½ΡΠ΅ΡΡΡ ΠΈΠ· ΠΏΠ»Π°ΡΡΠΈΠΊΠ° ΠΈ ΠΈΠΌΠ΅Π΅Ρ ΡΠ°Π·Π»ΠΈΡΠ½ΡΡ ΡΠΈΡΠΈΠ½Ρ. ΠΠΎΡΡΠΈΠΆΠ΅Π½ΠΈΠ΅ ΠΊΠΎΠΌΠΏΠ°Π½ΠΈΠΈ VekΠ°, Π·Π°ΠΊΠ»ΡΡΠ°Π΅ΡΡΡ Π² ΡΠΎΠΌ, ΡΡΠΎ Π΄Π°Π½Π½ΡΠΉ ΡΠ»Π΅ΠΌΠ΅Π½Ρ Π½Π°Ρ ΠΎΠ΄ΠΈΡΡΡ Π½Π΅ΠΌΠ½ΠΎΠ³ΠΎ Π²ΡΡΠ΅, ΡΠ΅ΠΌ ΠΏΠ»ΠΎΡΠΊΠΎΡΡΡ ΡΡΠ²ΠΎΡΠΊΠΈ, Π·Π° ΡΡΠ΅Ρ ΡΠ°ΠΊΠΎΠ³ΠΎ Π½ΠΎΠ²ΠΎΠ²Π²Π΅Π΄Π΅Π½ΠΈΡ ΡΠ΄Π°Π»ΠΎΡΡ ΠΌΠΈΠ½ΠΈΠΌΠΈΠ·ΠΈΡΠΎΠ²Π°ΡΡ ΡΠΊΠΎΠΏΠ»Π΅Π½ΠΈΠ΅ ΠΏΡΠ»ΠΈ Ρ ΡΡΠ²ΠΎΡΠΊΠΈ.

- Π€Π°Π»ΡΡ β ΡΠ»Π΅ΠΌΠ΅Π½Ρ, Π½Π° ΠΊΠΎΡΠΎΡΡΠΉ ΡΡΡΠ°Π½Π°Π²Π»ΠΈΠ²Π°Π΅ΡΡΡ ΡΡΠ΅ΠΊΠ»ΠΎΠΏΠ°ΠΊΠ΅Ρ. Π ΠΎΠΊΠ½Π°Ρ Veka ΠΎΠ½ ΠΈΠΌΠ΅Π΅Ρ ΠΏΡΡΠΌΠΎΠΉ Π²ΠΈΠ΄Β ΠΈ ΡΠ°Π·ΠΌΠ΅ΡΠ°Π΅ΡΡΡ Π³ΠΎΡΠΈΠ·ΠΎΠ½ΡΠ°Π»ΡΠ½ΠΎ, ΡΠΎ Π΅ΡΡΡ ΡΠ΅ΠΌ ΡΠ°ΠΌΡΠΌ ΡΠ½ΠΈΠΆΠ°Π΅ΡΡΡ Π΄Π°Π²Π»Π΅Π½ΠΈΠ΅ ΠΎΠΊΠΎΠ½Π½ΠΎΠ³ΠΎ ΡΡΠ΅ΠΊΠ»Π° Π½Π° ΠΏΡΠΎΡΠΈΠ»Ρ, Π° Π·Π½Π°ΡΠΈΡ, ΡΠΌΠ΅Π½ΡΡΠ°Π΅ΡΡΡ Π²ΠΎΠ·ΠΌΠΎΠΆΠ½ΠΎΡΡΡ Π΅Π³ΠΎ Π΄Π΅ΡΠΎΡΠΌΠ°ΡΠΈΠΈ.
- ΠΠΌΠΏΠΎΡΡ β Π½Π΅ΠΏΠΎΠ΄Π²ΠΈΠΆΠ½ΡΠΉ ΠΠΠ₯-ΠΏΡΠΎΡΠΈΠ»Ρ, ΠΏΡΠ΅Π΄Π½Π°Π·Π½Π°ΡΠ΅Π½Π½ΡΠΉ Π΄Π»Ρ ΡΠΎΠ΅Π΄ΠΈΠ½Π΅Π½ΠΈΡ Π½Π΅ΡΠΊΠΎΠ»ΡΠΊΠΈΡ ΡΡΠ²ΠΎΡΠΎΠΊ Π² Π΅Π΄ΠΈΠ½ΡΡ ΠΊΠΎΠ½ΡΡΡΡΠΊΡΠΈΡ.
- Π¨ΡΡΠ»ΡΠΏ β ΠΠΠ₯-ΠΏΡΠΎΡΠΈΠ»Ρ, Π·Π°ΠΊΡΠ΅ΠΏΠ»ΡΠ΅ΠΌΡΠΉ Π½Π° ΠΎΠ΄Π½ΠΎΠΉ ΠΈΠ· ΡΡΠ²ΠΎΡΠΎΠΊ, ΠΏΠ΅ΡΠ΅ΠΌΠ΅ΡΠ°Π΅ΡΡΡ Π²ΠΌΠ΅ΡΡΠ΅ Ρ Π½Π΅ΠΉ Π² ΠΌΠΎΠΌΠ΅Π½Ρ ΠΎΡΠΊΡΡΠ²Π°Π½ΠΈΡ, Π° Π² Π·Π°ΠΊΡΡΡΠΎΠΌ Π²ΠΈΠ΄Π΅ ΡΠ»ΡΠΆΠΈΡ ΠΊΠ°ΠΊ ΡΠΎΠ΅Π΄ΠΈΠ½ΠΈΡΠ΅Π»ΡΠ½ΡΠΉ ΡΠ»Π΅ΠΌΠ΅Π½Ρ.
ΠΠΠ₯-ΠΏΡΠΎΡΠΈΠ»Ρ Π΄Π»Ρ ΠΎΠΊΠΎΠ½ VEKA: Ρ Π°ΡΠ°ΠΊΡΠ΅ΡΠΈΡΡΠΈΠΊΠ° ΠΈ ΠΏΡΠΎΠΈΠ·Π²ΠΎΠ΄ΡΡΠ²ΠΎ
- ΠΠΎΠ»ΠΈΠ²ΠΈΠ½ΠΈΠ»Ρ Π»ΠΎΡΠΈΠ΄ β ΡΡΠΎ ΠΈΡΠΊΡΡΡΡΠ²Π΅Π½Π½ΡΠΉ ΠΌΠ°ΡΠ΅ΡΠΈΠ°Π», ΠΏΠΎΠ»ΡΡΠ°Π΅ΠΌΡΠΉ ΠΏΡΡΠ΅ΠΌ ΠΏΠΎΠ»ΠΈΠΌΠ΅ΡΠΈΠ·Π°ΡΠΈΠΈ Π²ΠΈΠ½ΠΈΠ»Ρ Π»ΠΎΡΠΈΠ΄Π°. ΠΠ»Π°Π²Π½ΠΎΠ΅ Π΅Π³ΠΎ Π΄ΠΎΡΡΠΎΠΈΠ½ΡΡΠ²ΠΎ Π² Ρ ΠΎΡΠΎΡΠ΅ΠΉ ΠΎΠ³Π½Π΅ΡΠΏΠΎΡΠ½ΠΎΡΡΠΈ, Π²ΡΡΠΎΠΊΠΎΠΉ Ρ ΠΈΠΌΠΈΡΠ΅ΡΠΊΠΎΠΉ ΡΡΠΎΠΉΠΊΠΎΡΡΠΈ ΠΈ Π² Π½ΠΈΠ·ΠΊΠΎΠΉ ΡΠ΅ΠΏΠ»ΠΎΠΏΡΠΎΠ²ΠΎΠ΄Π½ΠΎΡΡΠΈ.

- Π§ΡΠΎΠ±Ρ ΠΏΠΎΠ»ΡΡΠΈΡΡ ΠΎΠΊΠΎΠ½Π½ΡΠΉ ΠΏΡΠΎΡΠΈΠ»Ρ ΠΈΠ· ΠΠΠ₯, ΡΠ°Π·ΠΌΡΠ³ΡΠ΅Π½Π½ΡΡ ΠΌΠ°ΡΡΡ ΠΏΡΠΎΠΏΡΡΠΊΠ°ΡΡ ΡΠ΅ΡΠ΅Π· ΠΎΡΠ²Π΅ΡΡΡΠΈΠ΅ Ρ ΡΡΠ΅Π±ΡΠ΅ΠΌΡΠΌ ΡΠ΅ΡΠ΅Π½ΠΈΠ΅ΠΌ (ΠΌΠ΅ΡΠΎΠ΄ ΡΠΊΡΡΡΡΠ·ΠΈΠΈ). ΠΠΎΠ»ΡΡΠ°Π΅ΠΌΠΎΠ΅ Π²Π΅ΡΠ΅ΡΡΠ²ΠΎ ΠΏΠΎΡΡΡΠΏΠ°Π΅Ρ Π² Π²Π°ΠΊΡΡΠΌΠ½ΡΡ ΠΊΠ°ΠΌΠ΅ΡΡ, Π³Π΄Π΅ ΠΏΡΠΎΠΈΡΡ ΠΎΠ΄ΠΈΡ Π΅Π³ΠΎ ΠΏΠ΅ΡΠ²ΠΎΠ½Π°ΡΠ°Π»ΡΠ½ΠΎΠ΅ ΠΎΡ Π»Π°ΠΆΠ΄Π΅Π½ΠΈΠ΅. ΠΠ°ΡΠ΅ΠΌ ΠΏΡΠΎΡΠΈΠ»Ρ ΠΎΡ Π»Π°ΠΆΠ΄Π°Π΅ΡΡΡ ΠΎΠΊΠΎΠ½ΡΠ°ΡΠ΅Π»ΡΠ½ΠΎ, ΠΌΠ°ΡΠΊΠΈΡΡΠ΅ΡΡΡ ΠΈ ΠΎΠ±ΠΎΡΠ°ΡΠΈΠ²Π°Π΅ΡΡΡ Π² Π·Π°ΡΠΈΡΠ½ΡΡ ΠΏΠ»Π΅Π½ΠΊΡ.
- ΠΠ½ΠΎΠ³ΠΎΠΊΠ°ΠΌΠ΅ΡΠ½ΡΠ΅ ΠΏΡΠΎΡΠΈΠ»ΠΈΡΠΎΠ²Π°Π½Π½ΡΠ΅ ΡΠΈΡΡΠ΅ΠΌΡ Veka ΠΈΠΌΠ΅Π΅Ρ ΠΎΡΠΎΠ±ΡΠΉ Π²Π½Π΅ΡΠ½ΠΈΠΉ Π²ΠΈΠ΄ β ΠΌΠ°ΡΠΎΠ²Π°Ρ ΠΏΠΎΠ²Π΅ΡΡ Π½ΠΎΡΡΡ Ρ ΡΡΡΠ΅ΠΊΡΠΎΠΌ Π³Π»ΡΠ½ΡΠ΅Π²ΠΎΠ³ΠΎ Π±Π»Π΅ΡΠΊΠ°. ΠΠ° ΡΠ°ΠΊΠΎΠΌ ΠΏΠ»Π°ΡΡΠΈΠΊΠ΅ ΠΏΡΠ°ΠΊΡΠΈΡΠ΅ΡΠΊΠΈ Π½Π΅Π·Π°ΠΌΠ΅ΡΠ½Ρ Π½Π΅Π±ΠΎΠ»ΡΡΠΈΠ΅ Π΄Π΅ΡΠ΅ΠΊΡΡ, Π½Π΅ΠΈΠ·Π±Π΅ΠΆΠ½ΡΠ΅ Π² ΠΏΡΠΎΡΠ΅ΡΡΠ΅ ΡΠΊΡΠΏΠ»ΡΠ°ΡΠ°ΡΠΈΠΈ, ΠΏΡΠΈ ΡΡΠΎΠΌ ΠΎΠ½ Π²ΡΠ΅Π³Π΄Π° Π²ΡΠ³Π»ΡΠ΄ΠΈΡ ΡΡΡΠ΅ΠΊΡΠ½ΠΎ ΠΈ ΠΊΡΠ°ΡΠΈΠ²ΠΎ.
- ΠΠ° ΠΏΠΎΡΠ»Π΅Π΄Π½Π΅ΠΌ ΡΡΠ°ΠΏΠ΅ ΠΏΡΠΎΠΈΠ·Π²ΠΎΠ΄ΡΡΠ²Π° ΠΏΡΠΎΡΠΈΠ»ΠΈΡΠΎΠ²Π°Π½Π½ΡΠ΅ Π»Π΅Π½ΡΡ ΡΠ°Π·ΡΠ΅Π·Π°ΡΡΡΡ Π½Π° Π½Π΅ΠΎΠ±Ρ ΠΎΠ΄ΠΈΠΌΡΠ΅ ΡΠ°Π·ΠΌΠ΅ΡΡ. ΠΠΎΠΌΠΏΠ°Π½ΠΈΡ VEKA ΠΎΡΠ΅Π½Ρ ΡΡΡΠΎΠ³ΠΎ ΠΎΡΠ½ΠΎΡΠΈΡΡΡ ΠΊ ΠΊΠ°ΡΠ΅ΡΡΠ²Ρ ΡΠ²ΠΎΠ΅ΠΉ ΠΏΡΠΎΠ΄ΡΠΊΡΠΈΠΈ, ΠΏΠΎΡΡΠΎΠΌΡ Π½Π° ΠΊΠ°ΠΆΠ΄ΠΎΠΌ ΡΡΠ°ΠΏΠ΅ ΠΎΡΡΡΠ΅ΡΡΠ²Π»ΡΠ΅ΡΡΡ ΠΊΠΎΠ½ΡΡΠΎΠ»Ρ ΠΊΠ°ΡΠ΅ΡΡΠ²Π°. Π’Π°ΠΊ, Π΅ΡΠ»ΠΈ Π½Π΅ Π²ΡΠ΄Π΅ΡΠΆΠΈΠ²Π°ΡΡ ΠΎΠΏΡΠ΅Π΄Π΅Π»Π΅Π½Π½ΡΡ ΡΠ΅ΠΌΠΏΠ΅ΡΠ°ΡΡΡΡ, ΡΠΎ ΠΏΡΠΎΡΠΈΠ»Ρ ΠΌΠΎΠΆΠ΅Ρ ΠΈΡΠΊΡΠΈΠ²ΠΈΡΡΡΡ Π΅ΡΠ΅ Π½Π° ΡΡΠ°Π΄ΠΈΠΈ ΡΠΊΡΡΡΡΠ·ΠΈΠΈ.
- ΠΠ»Ρ ΠΏΡΠΎΠ²Π΅ΡΠΊΠΈ ΡΠΎΠΎΡΠ²Π΅ΡΡΡΠ²ΠΈΡ ΠΏΡΠΎΠ΄ΡΠΊΡΠΈΠΈ ΡΡΠ°Π½Π΄Π°ΡΡΠ°ΠΌ ΠΎΠ±ΡΠ°Π·ΡΡ Π³ΠΎΡΠΎΠ²ΡΡ ΠΈΠ·Π΄Π΅Π»ΠΈΠΉ ΠΎΡΠΏΡΠ°Π²Π»ΡΡΡ Π² Π»Π°Π±ΠΎΡΠ°ΡΠΎΡΠΈΡ, Π³Π΄Π΅ ΠΈΡ ΠΏΡΠΎΠ²Π΅ΡΡΡΡ Π½Π° Π΄Π΅ΡΠΎΡΠΌΠ°ΡΠΈΡ ΠΏΡΠΈ ΠΏΠΎΠ²ΡΡΠ΅Π½Π½ΠΎΠΉ ΡΠ΅ΠΌΠΏΠ΅ΡΠ°ΡΡΡΠ΅, Π° ΡΠ°ΠΊΠΆΠ΅ Π½Π° ΠΏΡΠΎΡΠ½ΠΎΡΡΡ ΠΎΡ ΠΌΠ΅Ρ Π°Π½ΠΈΡΠ΅ΡΠΊΠΎΠ³ΠΎ Π²ΠΎΠ·Π΄Π΅ΠΉΡΡΠ²ΠΈΡ. Π’Π°ΠΊΠΆΠ΅ Π² ΠΎΠ±ΡΠ·Π°ΡΠ΅Π»ΡΠ½ΠΎΠΌ ΠΏΠΎΡΡΠ΄ΠΊΠ΅ ΠΏΡΠΎΠ²Π΅ΡΡΠ΅ΡΡΡ ΠΊΠ°ΡΠ΅ΡΡΠ²ΠΎ ΡΠ²Π°ΡΠ½ΡΡ ΡΠ²ΠΎΠ² Π² ΡΠ³Π»ΠΎΠ²ΠΎΠΌ ΡΠΎΠ΅Π΄ΠΈΠ½Π΅Π½ΠΈΠΈ. Π ΡΠΎΠ»ΡΠΊΠΎ ΠΏΠΎΡΠ»Π΅ ΡΡΠΎΠ³ΠΎ ΠΏΡΠΎΠ΄ΡΠΊΡΠΈΡ ΠΏΠΎΡΡΡΠΏΠ°Π΅Ρ Π² ΠΏΡΠΎΠ΄Π°ΠΆΡ.
- ΠΠ»Π°ΡΡΠΈΠΊΠΎΠ²ΡΠΉ ΠΏΡΠΎΡΠΈΠ»Ρ VEKA ΠΈΠΌΠ΅Π΅Ρ Π²Π½ΡΡΡΠ΅Π½Π½Π΅Π΅ Π°ΡΠΌΠΈΡΠΎΠ²Π°Π½ΠΈΠ΅ ΠΎΡΠΈΠ½ΠΊΠΎΠ²Π°Π½Π½ΠΎΠΉ ΡΡΠ°Π»ΡΡ, ΡΠ°ΡΠ΅ Π²ΡΠ΅Π³ΠΎ ΠΊΠ²Π°Π΄ΡΠ°ΡΠ½ΠΎΠΉ ΡΠΎΡΠΌΡ. ΠΠ° ΡΡΠ΅Ρ ΡΠ°ΠΊΠΎΠ³ΠΎ ΡΠ΅ΡΠ΅Π½ΠΈΡ ΡΠ΄Π°Π΅ΡΡΡ Π΄ΠΎΠ±ΠΈΡΡΡΡ ΠΌΠ°ΠΊΡΠΈΠΌΠ°Π»ΡΠ½ΠΎΠΉ ΠΏΡΠΎΡΠ½ΠΎΡΡΠΈ, ΠΈ ΠΈΡΠΊΠ»ΡΡΠΈΡΡ Π² ΠΏΡΠΎΡΠ΅ΡΡΠ΅ ΡΠΊΡΠΏΠ»ΡΠ°ΡΠ°ΡΠΈΠΈ Π΄Π΅ΡΠΎΡΠΌΠ°ΡΠΈΠΈ ΠΎΠΊΠ½Π° ΠΈΠ»ΠΈ ΠΏΡΠΎΠ²ΠΈΡΠ°Π½ΠΈΡ ΡΡΠ²ΠΎΡΠΎΠΊ.

- Π’Π°ΠΊΠΆΠ΅ Π² ΡΡΠ²ΠΎΡΠΊΠΈ ΡΡΡΠ°Π½Π°Π²Π»ΠΈΠ²Π°ΡΡΡΡ Π΄ΠΎΠΏΠΎΠ»Π½ΠΈΡΠ΅Π»ΡΠ½ΡΠ΅ ΠΏΠ΅ΡΠ΅Π³ΠΎΡΠΎΠ΄ΠΊΠΈ, ΠΊΠΎΡΠΎΡΡΠ΅ Π½Π°Π΄Π΅ΠΆΠ½ΠΎ ΡΠ΄Π΅ΡΠΆΠΈΠ²Π°ΡΡ ΡΡΡΠ½ΠΈΡΡΡΠ½ΡΠΉ ΠΏΠ°Π· (Π·Π°ΠΏΠΈΡΠ°ΡΡΠΈΠ΅ ΡΠ»Π΅ΠΌΠ΅Π½ΡΡ) ΠΈ ΠΎΠ±Π΅ΡΠΏΠ΅ΡΠΈΠ²Π°ΡΡ Π΄ΠΎΠ»Π³ΠΈΠΉ ΡΡΠΎΠΊ ΡΠ»ΡΠΆΠ±Ρ ΡΡΡΠ½ΠΈΡΡΡΡ.
Π’ΠΈΠΏΡ ΠΌΠ΅Ρ Π°Π½ΠΈΠ·ΠΌΠΎΠ² Π΄Π»Ρ ΠΎΡΠΊΡΡΡΠΈΡ ΠΎΠΊΠΎΠ½Π½ΡΡ ΡΠΈΡΡΠ΅ΠΌ
Π‘ΠΎΠ²ΡΠ΅ΠΌΠ΅Π½Π½ΡΠ΅ ΠΏΠ»Π°ΡΡΠΈΠΊΠΎΠ²ΡΠ΅ ΠΎΠΊΠ½Π° VEKA ΠΈΠΌΠ΅ΡΡ ΡΠ°Π·Π½ΠΎΠΎΠ±ΡΠ°Π·Π½ΡΠ΅ ΠΊΠΎΠ½ΡΡΡΡΠΊΡΠΈΠΈ, ΠΊΠΎΡΠΎΡΡΠ΅ ΠΎΡΠ»ΠΈΡΠ°ΡΡΡΡ ΠΏΠΎ ΡΠΎΡΠΌΠ΅ ΠΈ ΠΏΠΎ ΡΠΏΠΎΡΠΎΠ±Π°ΠΌ ΠΎΡΠΊΡΡΡΠΈΡ/Π·Π°ΠΊΡΡΡΠΈΡ.
ΠΠ»ΡΡ ΠΈΠ΅ ΡΡΠ²ΠΎΡΠΊΠΈ
- ΠΡΠΈ ΡΠ°ΠΊΠΎΠΉ ΠΊΠΎΠ½ΡΡΡΡΠΊΡΠΈΠΈ Π½Π΅Ρ Π²ΠΎΠ·ΠΌΠΎΠΆΠ½ΠΎΡΡΠΈ ΠΎΡΠΊΡΡΡΡ ΠΎΠΊΠ½Π°. ΠΡΠΎ Π½Π°ΠΈΠ±ΠΎΠ»Π΅Π΅ ΠΏΡΠΎΡΡΠΎΠΉ ΠΈ Π½Π΅Π΄ΠΎΡΠΎΠ³ΠΎΠΉ Π²Π°ΡΠΈΠ°Π½Ρ ΠΎΠΊΠΎΠ½Π½ΠΎΠΉ ΡΠΈΡΡΠ΅ΠΌΡ. Π£ΡΡΠ°Π½Π°Π²Π»ΠΈΠ²Π°ΡΡΡΡ ΠΎΠ½ΠΈ Π² ΠΊΠΎΠΌΠΏΠ»Π΅ΠΊΡΠ΅ Ρ ΡΠ°ΡΠΏΠ°ΡΠ½ΡΠΌΠΈ ΡΡΠ°Π²Π½ΡΠΌΠΈ, Π»ΠΈΠ±ΠΎ ΠΎΡΠ΄Π΅Π»ΡΠ½ΠΎ, Π² ΡΠ΅Ρ ΡΠ»ΡΡΠ°ΡΡ , ΠΊΠΎΠ³Π΄Π° Π½Π΅ ΡΡΠ΅Π±ΡΠ΅ΡΡΡ ΠΏΡΠΎΠ²Π΅ΡΡΠΈΠ²Π°Π½ΠΈΠ΅ ΠΏΠΎΠΌΠ΅ΡΠ΅Π½ΠΈΠ΅ (ΠΏΠΎΠ»ΡΠΏΠΎΠ΄Π²Π°Π»ΡΠ½ΡΠ΅ ΠΊΠΎΠΌΠ½Π°ΡΡ, ΡΠΊΠ»Π°Π΄Ρ ΠΈ ΡΠ°ΠΊ Π΄Π°Π»Π΅Π΅). Π‘Π°ΠΌΠΈ ΠΎΠΊΠ½Π° ΠΌΠΎΠ³ΡΡ ΠΈΠΌΠ΅ΡΡ ΡΠ°Π·Π»ΠΈΡΠ½ΡΡ ΡΠΎΡΠΌΡ β ΠΊΡΡΠ³Π»ΡΡ, ΠΊΠ²Π°Π΄ΡΠ°ΡΠ½ΡΡ, ΠΏΡΡΠΌΠΎΡΠ³ΠΎΠ»ΡΠ½ΡΡ, Π² Π²ΠΈΠ΄Π΅ Π°ΡΠΊΠΈ ΠΈ Π΄ΡΡΠ³ΠΈΠ΅.
- Π£ΡΠ»ΠΎΠ²Π½ΠΎ Π½Π΅ΠΎΡΠΊΡΡΠ²Π°Π΅ΠΌΡΠ΅ ΠΎΠΊΠ½Π° ΠΎΠ±ΠΎΠ·Π½Π°ΡΠ°ΡΡΡΡ Π΄Π²ΡΠΌΡ ΠΏΠ΅ΡΠ΅ΡΠ΅ΠΊΠ°ΡΡΠΈΠΌΠΈ Π»ΠΈΠ½ΠΈΡΠΌΠΈ (ΠΊΡΠ΅ΡΡΠΈΠΊ) Π»ΠΈΠ±ΠΎ Π»Π°ΡΠΈΠ½ΡΠΊΠΎΠΉ Π±ΡΠΊΠ²ΠΎΠΉ Β«FΒ». ΠΠΎΡΡΠΎΠΈΠ½ΡΡΠ²ΠΎ ΡΠ°ΠΊΠΈΡ ΠΎΠΊΠΎΠ½ Π² ΡΠΎΠΌ, ΡΡΠΎ ΠΎΡΡΡΡΡΡΠ²ΡΠ΅Ρ Π½Π΅ΠΎΠ±Ρ ΠΎΠ΄ΠΈΠΌΠΎΡΡΡ Π² Π±ΠΎΠ»ΡΡΠΎΠΌ ΠΊΠΎΠ»ΠΈΡΠ΅ΡΡΠ²Π΅ ΠΏΠ΅ΡΠ΅Π³ΠΎΡΠΎΠ΄ΠΎΠΊ, Π° Π·Π½Π°ΡΠΈΡ, ΡΠ²Π΅ΡΠΎΠΏΡΠΎΠΏΡΡΠΊΠ°Π΅ΠΌΠ°Ρ ΡΠΏΠΎΡΠΎΠ±Π½ΠΎΡΡΡ ΡΠ²Π΅Π»ΠΈΡΠΈΠ²Π°Π΅ΡΡΡ, ΠΌΠΈΠ½ΡΡ ΠΆΠ΅ Π·Π°ΠΊΠ»ΡΡΠ°Π΅ΡΡΡ Π² ΡΠΎΠΌ, ΡΡΠΎ ΠΏΠΎΠΌΡΡΡ ΠΈΡ ΠΈΠ·Π½ΡΡΡΠΈ Π½Π΅Π²ΠΎΠ·ΠΌΠΎΠΆΠ½ΠΎ (Π΅ΡΠ»ΠΈ ΠΎΠ½ΠΈ Π½Π΅ ΡΡΡΠ°Π½ΠΎΠ²Π»Π΅Π½Ρ Π² ΡΠΎΠ²ΠΎΠΊΡΠΏΠ½ΠΎΡΡΠΈ Ρ ΡΠ°ΡΠΏΠ°ΡΠ½ΡΠΌΠΈ ΡΡΠ²ΠΎΡΠΊΠ°ΠΌΠΈ).
ΠΠΎΠ²ΠΎΡΠΎΡΠ½ΡΠΉ ΠΌΠ΅Ρ Π°Π½ΠΈΠ·ΠΌ
- ΠΠΎΠ³ΡΡ ΠΎΡΠΊΡΡΠ²Π°ΡΡΡΡ Π² ΠΎΠ΄Π½ΠΎΠΌ ΠΊΠΎΠ½ΠΊΡΠ΅ΡΠ½ΠΎΠΌ Π½Π°ΠΏΡΠ°Π²Π»Π΅Π½ΠΈΠΈ β Π²ΠΏΡΠ°Π²ΠΎ ΠΈΠ»ΠΈ Π²Π»Π΅Π²ΠΎ. ΠΠΎΡΡΠΎΠΈΠ½ΡΡΠ²ΠΎ ΡΠ°ΠΊΠΎΠΉ ΡΠΈΡΡΠ΅ΠΌΡ Π² Π±ΠΎΠ»Π΅Π΅ Π½ΠΈΠ·ΠΊΠΎΠΉ ΡΠ΅Π½Π΅ Π½Π° ΡΡΡΠ½ΠΈΡΡΡΡ. Π Π½Π΅Π΄ΠΎΡΡΠ°ΡΠΊΠ°ΠΌ ΠΎΡΠ½ΠΎΡΠΈΡΡΡ ΡΠΎ, ΡΡΠΎ ΠΏΡΠΈ ΡΠ°ΠΊΠΎΠΉ ΠΊΠΎΠ½ΡΡΡΡΠΊΡΠΈΠΈ ΡΡΠ²ΠΎΡΠΊΠΈ ΠΈΠΌΠ΅ΡΡ ΠΌΠ΅Π½ΡΡΠ΅ ΡΠΎΡΠ΅ΠΊ ΠΏΡΠΈΠΆΠΈΠΌΠ° Ρ ΡΠ°ΠΌΠΎΠΉ, ΠΏΠΎΡΡΠΎΠΌΡ ΡΠΎ Π²ΡΠ΅ΠΌΠ΅Π½Π΅ΠΌ ΠΌΠΎΠ³ΡΡ ΠΏΠΎΡΠ²ΠΈΡΡΡΡ ΠΏΡΠΎΡΠ²Π΅ΡΡ, Π° Π·Π½Π°ΡΠΈΡ, ΠΈ ΡΠΊΠ²ΠΎΠ·Π½ΡΠΊΠΈ.
ΠΡΠΊΠΈΠ΄Π½ΠΎΠΉ ΠΌΠ΅Ρ Π°Π½ΠΈΠ·ΠΌ
- ΠΡΠΊΠΈΠ΄Π½Π°Ρ ΠΊΠΎΠ½ΡΡΡΡΠΊΡΠΈΡ ΠΎΡΠΊΡΡΠ²Π°Π΅ΡΡΡ ΡΠΎΠ»ΡΠΊΠΎ ΡΠ²Π΅ΡΡ Ρ. ΠΠ°ΠΊ ΠΏΡΠ°Π²ΠΈΠ»ΠΎ, ΡΠ°ΠΊΠΈΠ΅ ΠΎΠΊΠ½Π° ΡΡΡΠ°Π½Π°Π²Π»ΠΈΠ²Π°ΡΡΡΡ Π² Π½Π΅Π±ΠΎΠ»ΡΡΠΈΡ ΠΏΠΎΠΌΠ΅ΡΠ΅Π½ΠΈΡΡ , Π³Π΄Π΅ ΠΏΡΠ°ΠΊΡΠΈΡΠ΅ΡΠΊΠΈ Π½Π΅Π²ΠΎΠ·ΠΌΠΎΠΆΠ½ΠΎ ΡΠ΅Π°Π»ΠΈΠ·ΠΎΠ²Π°ΡΡ ΠΏΠΎΠ²ΠΎΡΠΎΡΠ½ΡΡ ΡΠΈΡΡΠ΅ΠΌΡ (Π½Π°ΠΏΡΠΈΠΌΠ΅Ρ, Π½Π° Π»Π΅ΡΡΠ½ΠΈΡΠ½ΡΡ ΠΏΡΠΎΠ»Π΅ΡΠ°Ρ ).
ΠΠΎΠ²ΠΎΡΠΎΡΠ½ΠΎ-ΠΎΡΠΊΠΈΠ΄Π½ΠΎΠΉ ΠΌΠ΅Ρ Π°Π½ΠΈΠ·ΠΌ
- Π’Π°ΠΊΠ°Ρ ΠΊΠΎΠ½ΡΡΡΡΠΊΡΠΈΡ ΡΠΎΠ΅Π΄ΠΈΠ½ΡΠ΅Ρ Π² ΡΠ΅Π±Π΅ ΠΏΠΎΠ²ΠΎΡΠΎΡΠ½ΡΡ ΠΈ ΠΎΡΠΊΠΈΠ΄Π½ΡΡ ΡΠΈΡΡΠ΅ΠΌΡ, ΡΠΎ Π΅ΡΡΡ ΠΎΠΊΠ½Π° ΠΌΠΎΠ³ΡΡ ΠΎΡΠΊΡΡΠ²Π°ΡΡΡΡ ΠΊΠ°ΠΊ Π²ΠΏΡΠ°Π²ΠΎ ΠΈΠ»ΠΈ Π²Π»Π΅Π²ΠΎ, ΡΠ°ΠΊ ΠΈ ΡΠ²Π΅ΡΡ Ρ. ΠΡΠΎ Π½Π°ΠΈΠ±ΠΎΠ»Π΅Π΅ ΡΠ°ΡΠΏΡΠΎΡΡΡΠ°Π½Π΅Π½Π½ΡΠΉ ΡΠΈΠΏ ΠΎΠΊΠΎΠ½Π½ΡΡ ΡΠΈΡΡΠ΅ΠΌ, ΡΠ°Π·Π½ΡΠ΅ ΡΠΈΠΏΡ ΠΎΡΠΊΡΡΡΠΈΡ ΡΠ΅Π°Π»ΠΈΠ·ΠΎΠ²Π°Π½Ρ Π·Π° ΡΡΠ΅Ρ ΡΡΡΠ°Π½ΠΎΠ²Π»Π΅Π½Π½ΠΎΠΉ ΡΡΡΠ½ΠΈΡΡΡΡ. ΠΡΠΎΠΌΠ΅ ΠΏΡΠΎΡΡΠΎΠ³ΠΎ ΠΎΡΠΊΠΈΠ΄Π½ΠΎΠ³ΠΎ Π²Π°ΡΠΈΠ°Π½ΡΠ°, ΡΡΡΠ΅ΡΡΠ²ΡΡΡ ΡΠΈΡΡΠ΅ΠΌΡ Ρ ΠΌΠΈΠΊΡΠΎΠΏΡΠΎΠ²Π΅ΡΡΠΈΠ²Π°Π½ΠΈΠ΅ΠΌ, ΠΊΠΎΠ³Π΄Π° ΠΎΠ±ΡΠ°Π·ΡΠ΅ΡΡΡ ΡΠΎΠ²ΡΠ΅ΠΌ Π½Π΅Π±ΠΎΠ»ΡΡΠ°Ρ ΡΠ΅Π»Ρ, ΠΊΠΎΡΠΎΡΠΎΠΉ Π΄ΠΎΡΡΠ°ΡΠΎΡΠ½ΠΎ ΡΡΠΎΠ±Ρ ΠΏΡΠΎΠ²Π΅ΡΡΠΈΡΡ ΠΏΠΎΠΌΠ΅ΡΠ΅Π½ΠΈΠ΅ Π² Π·ΠΈΠΌΠ½ΠΈΠΉ ΠΏΠ΅ΡΠΈΠΎΠ΄. ΠΠΊΠ½Π° Ρ ΡΠ°ΠΊΠΎΠΉ ΡΠΈΡΡΠ΅ΠΌΠΎΠΉ ΡΡΠΎΡΡ Π½Π΅ΡΠΊΠΎΠ»ΡΠΊΠΎ Π΄ΠΎΡΠΎΠΆΠ΅, ΡΠ΅ΠΌ Π²ΡΠ΅ ΠΎΡΡΠ°Π»ΡΠ½ΡΠ΅, Π½ΠΎ Π·Π° ΡΡΠ΅Ρ ΠΊΠΎΠΌΡΠΎΡΡΠ° ΠΈ ΡΡΠ½ΠΊΡΠΈΠΎΠ½Π°Π»ΡΠ½ΠΎΡΡΠΈ ΡΡΠΈΡΠ°ΡΡΡΡ Π½Π°ΠΈΠ±ΠΎΠ»Π΅Π΅ Π²ΠΎΡΡΡΠ΅Π±ΠΎΠ²Π°Π½Π½ΡΠΌΠΈ.
Π Π°Π·Π΄Π²ΠΈΠΆΠ½ΡΠ΅ ΡΡΠ²ΠΎΡΠΊΠΈ
- Π’Π°ΠΊΠ°Ρ ΠΎΠΊΠΎΠ½Π½Π°Ρ ΡΠΈΡΡΠ΅ΠΌΠ° ΠΏΡΠ΅Π΄ΡΡΠΌΠ°ΡΡΠΈΠ²Π°Π΅Ρ ΡΠ°Π·Π΄Π²ΠΈΠΆΠ΅Π½ΠΈΠ΅ ΡΡΠ²ΠΎΡΠΎΠΊ Π² ΠΎΠ΄Π½Ρ ΠΈΠ· ΡΡΠΎΡΠΎΠ½ Π²Π΄ΠΎΠ»Ρ ΡΠΏΠ΅ΡΠΈΠ°Π»ΡΠ½ΡΡ Π½Π°ΠΏΡΠ°Π²Π»ΡΡΡΠΈΡ . Π§Π°ΡΠ΅ Π²ΡΠ΅Π³ΠΎ ΡΠ°Π·Π΄Π²ΠΈΠΆΠ½ΡΡ ΠΊΠΎΠ½ΡΡΡΡΠΊΡΠΈΡ ΡΡΡΠ°Π½Π°Π²Π»ΠΈΠ²Π°ΡΡ Π½Π° Π±Π°Π»ΠΊΠΎΠ½Π°Ρ ΠΈ Π»ΠΎΠ΄ΠΆΠΈΡΡ , Π³Π΄Π΅ ΠΈΠΌΠ΅Π΅ΡΡΡ Π½Π΅Π±ΠΎΠ»ΡΡΠΎΠ΅ ΠΏΡΠΎΡΡΡΠ°Π½ΡΡΠ²ΠΎ ΠΈΠ»ΠΈ Π½Π° Π·Π°ΡΡΠ΅ΠΊΠ»Π΅Π½Π½ΡΡ ΡΠ΅ΡΡΠ°ΡΠ°Ρ , Π³Π΄Π΅ Π½Π΅ΠΎΠ±Ρ ΠΎΠ΄ΠΈΠΌΠΎ ΠΎΠ³ΡΠ°Π½ΠΈΡΠΈΡΡ Π²Π΅Ρ ΠΎΠΊΠΎΠ½Π½ΠΎΠΉ ΠΊΠΎΠ½ΡΡΡΡΠΊΡΠΈΠΈ. ΠΠ΅Π΄ΠΎΡΡΠ°ΡΠΎΠΊ ΡΠ°ΠΊΠΈΡ ΠΎΠΊΠΎΠ½ Π² Π½ΠΈΠ·ΠΊΠΎΠΌ ΠΏΠΎΠΊΠ°Π·Π°ΡΠ΅Π»Π΅ ΡΠ΅ΠΏΠ»ΠΎ- ΠΈ Π·Π²ΡΠΊΠΎΠΈΠ·ΠΎΠ»ΡΡΠΈΠΈ.
Π¨ΡΡΠ»ΡΠΏΠΎΠ²ΡΠ΅ ΡΡΠ²ΠΎΡΠΊΠΈ
- ΠΠΎΠ½ΡΡΡΡΠΊΡΠΈΡ ΠΏΡΠ΅Π΄ΠΏΠΎΠ»Π°Π³Π°Π΅Ρ ΠΎΡΠΊΡΡΡΠΈΠ΅ Π΄Π²ΡΡ ΡΠΎΡΠ΅Π΄Π½ΠΈΡ ΡΡΠ²ΠΎΡΠΎΠΊ, ΠΏΡΠΈ ΡΡΠΎΠΌ ΠΌΠ΅ΠΆΠ΄Ρ Π½ΠΈΠΌΠΈΠ½Π΅ Π±ΡΠ΄Π΅Ρ Π²Π΅ΡΡΠΈΠΊΠ°Π»ΡΠ½ΠΎΠΉ ΠΏΠ΅ΡΠ΅Π³ΠΎΡΠΎΠ΄ΠΊΠΈ, ΡΠΎ Π΅ΡΡΡ ΡΡΡΠ»ΡΠΏ ΡΠΎΠ΅Π΄ΠΈΠ½Π΅Π½ Ρ ΠΎΠ΄Π½ΠΎΠΉ ΠΈΠ· ΡΡΠ²ΠΎΡΠΎΠΊ ΠΈ ΠΎΡΠΊΡΡΠ²Π°Π΅ΡΡΡ Π²ΠΌΠ΅ΡΡΠ΅ Ρ Π½Π΅ΠΉ. Π ΡΠ°ΠΊΠΎΠΉ ΠΎΠΊΠΎΠ½Π½ΠΎΠΉ ΡΠΈΡΡΠ΅ΠΌΠ΅ ΠΎΠ΄Π½Π° ΠΈΠ· ΡΡΠ²ΠΎΡΠΎΠΊ ΠΈΠΌΠ΅Π΅Ρ ΠΏΠΎΠ²ΠΎΡΠΎΡΠ½ΠΎΠ΅ ΠΈΠ»ΠΈ ΠΏΠΎΠ²ΠΎΡΠΎΡΠ½ΠΎ-ΠΎΡΠΊΠΈΠ΄Π½ΠΎΠ΅ ΠΎΡΠΊΡΡΠ²Π°Π½ΠΈΠ΅, Π° Π²ΡΠΎΡΠ°Ρ ΠΏΡΠΎΡΡΠΎ ΠΈΠΌΠ΅Π΅Ρ ΡΠ°ΡΠ½ΠΈΡΡ, Π½ΠΎ Π±Π΅Π· ΠΎΡΠ²ΠΎΡΠ΅Π½ΠΈΡ Π°ΠΊΡΠΈΠ²Π½ΠΎΠΉ ΡΡΠ²ΠΎΡΠΊΠΈ, ΠΎΡΠΊΡΡΡΡ ΠΏΠ°ΡΡΠΈΠ²Π½ΡΡ Π½Π΅Π²ΠΎΠ·ΠΌΠΎΠΆΠ½ΠΎ.

Π£Ρ ΠΎΠ΄ Π·Π° ΠΏΠ»Π°ΡΡΠΈΠΊΠΎΠ²ΡΠΌΠΈ ΠΎΠΊΠ½Π°ΠΌΠΈ
ΠΠ»Ρ ΡΠΎΠ³ΠΎ ΡΡΠΎΠ±Ρ ΠΎΠΊΠ½Π° Π½Π°Π΄Π΅ΠΆΠ½ΠΎ Π·Π°ΡΠΈΡΠ°Π»ΠΈ ΠΎΡ Π½Π΅Π±Π»Π°Π³ΠΎΠΏΡΠΈΡΡΠ½ΡΡ ΠΏΠΎΠ³ΠΎΠ΄Π½ΡΡ ΡΠ²Π»Π΅Π½ΠΈΡΡ , Π° ΡΠ°ΠΊΠΆΠ΅ Π²ΡΠΏΠΎΠ»Π½ΡΠ»ΠΈ ΡΠ²ΠΎΠΉ Π½Π΅ΠΏΠΎΡΡΠ΅Π΄ΡΡΠ²Π΅Π½Π½ΡΠΉ ΡΡΠ½ΠΊΡΠΈΠΎΠ½Π°Π» Π½Π΅ΠΎΠ±Ρ ΠΎΠ΄ΠΈΠΌΠΎ ΠΏΡΠ°Π²ΠΈΠ»ΡΠ½ΠΎ ΡΡΡΠ°Π½ΠΎΠ²ΠΈΡΡ ΠΏΠ»Π°ΡΡΠΈΠΊΠΎΠ²ΡΠ΅ ΠΎΠΊΠ½Π° veka ΠΈ Π΄ΠΎΠ»ΠΆΠ½ΡΠΌ ΠΎΠ±ΡΠ°Π·ΠΎΠΌ ΡΡ Π°ΠΆΠΈΠ²Π°ΡΡ Π·Π° Π½ΠΈΠΌΠΈ. ΠΠΎΠ½ΡΠ°ΠΆΠ½ΡΠ΅ ΡΠ°Π±ΠΎΡΡ ΡΠ΅ΠΊΠΎΠΌΠ΅Π½Π΄ΡΠ΅ΡΡΡ ΠΏΡΠ΅Π΄ΠΎΡΡΠ°Π²ΠΈΡΡ ΠΏΡΠΎΡΠ΅ΡΡΠΈΠΎΠ½Π°Π»Π°ΠΌ, ΡΡΠΎΠ±Ρ Π½Π΅Π΄ΠΎΡΠ΅ΡΡ ΠΏΡΠΈ ΡΡΡΠ°Π½ΠΎΠ²ΠΊΠ΅ Π½Π΅ ΠΏΠ΅ΡΠ΅ΡΠ΅ΡΠΊΠ½ΡΠ»ΠΈ Π²ΡΠ΅ Π΄ΠΎΡΡΠΎΠΈΠ½ΡΡΠ²Π° Π²ΡΡΠΎΠΊΠΎΠΊΠ°ΡΠ΅ΡΡΠ²Π΅Π½Π½ΡΡ ΠΏΡΠΎΡΠΈΠ»Π΅ΠΉ.
Π£Ρ ΠΎΠ΄ Π·Π°ΠΊΠ»ΡΡΠ°Π΅ΡΡΡ Π² ΡΠ»Π΅Π΄ΡΡΡΠΈΡ Π½Π΅ΡΠ»ΠΎΠΆΠ½ΡΡ Π΄Π΅ΠΉΡΡΠ²ΠΈΡΡ .
- ΠΡΠΈ ΠΌΡΡΡΠ΅ ΡΡΠ΅ΠΊΠΎΠ», ΡΠ°ΠΌ, ΠΏΠΎΠ΄ΠΎΠΊΠΎΠ½Π½ΠΈΠΊΠ° ΠΈΠ»ΠΈ ΡΡΠ²ΠΎΡΠΎΠΊ Π½Π΅ ΡΠ»Π΅Π΄ΡΠ΅Ρ ΠΏΡΠΈΠΌΠ΅Π½ΡΡΡ ΠΌΠΎΡΡΠΈΠ΅ ΡΡΠ΅Π΄ΡΡΠ²Π°, Π² ΡΠΎΡΡΠ°Π²Π΅ ΠΊΠΎΡΠΎΡΡΡ Π΅ΡΡΡ ΡΠ²Π΅ΡΠ΄ΡΠ΅ ΡΠ°ΡΡΠΈΡΡ ΠΈΠ»ΠΈ Ρ ΠΈΠΌΠΈΡΠ΅ΡΠΊΠΈΠ΅ ΡΠ°ΡΡΠ²ΠΎΡΠΈΡΠ΅Π»ΠΈ, ΡΠΈΠΏΠ° Π°ΡΠ΅ΡΠΎΠ½Π°. Π Π΅ΠΊΠΎΠΌΠ΅Π½Π΄ΡΠ΅ΡΡΡ ΠΏΡΠΎΡΡΠΎΠΉ ΠΌΡΠ»ΡΠ½ΡΠΉ ΡΠ°ΡΡΠ²ΠΎΡ ΠΈΠ»ΠΈ ΡΠΏΠ΅ΡΠΈΠ°Π»ΡΠ½ΡΠ΅ ΡΡΠ΅Π΄ΡΡΠ²Π° Π΄Π»Ρ ΠΠΠ₯-ΠΈΠ·Π΄Π΅Π»ΠΈΠΉ ΠΈ ΡΡΠ΅ΠΊΠ»ΠΎΠΎΡΠΈΡΡΠΈΡΠ΅Π»ΠΈ.
- ΠΠ΅ Π΄ΠΎΠΏΡΡΠΊΠ°ΡΡ Π²ΠΎΠ·Π΄Π΅ΠΉΡΡΠ²ΠΈΡ ΡΡΠΆΠ΅Π»ΡΡ ΠΏΡΠ΅Π΄ΠΌΠ΅ΡΠΎΠ² Π½Π° ΠΏΡΠΎΡΠΈΠ»ΠΈ ΠΈ ΠΎΡΡΠ΅ΠΊΠ»Π΅Π½ΠΈΠ΅, ΡΠ°ΠΊ ΠΊΠ°ΠΊ ΡΡΠΎ Π»Π΅Π³ΠΊΠΎ ΠΌΠΎΠΆΠ΅Ρ ΠΏΠΎΠ²ΡΠ΅Π΄ΠΈΡΡ ΠΈΡ .
- ΠΠ΅ ΠΏΡΠΈΠΊΠ°ΡΠ°ΡΡΡΡ ΠΊ ΠΏΠ»Π°ΡΡΠΈΠΊΠΎΠ²ΡΠΌ ΠΏΠΎΠ²Π΅ΡΡ Π½ΠΎΡΡΡΠΌ ΠΎΠΊΠΎΠ½Π½ΡΡ ΡΠΈΡΡΠ΅ΠΌ Π³ΠΎΡΡΡΠΈΠΌΠΈ ΠΏΡΠ΅Π΄ΠΌΠ΅ΡΠ°ΠΌΠΈ, Π½Π΅ ΡΡΠ°Π²ΠΈΡΡ ΡΡΡΠ³ΠΈ, Π³ΠΎΡΡΡΠΈΠ΅ ΠΊΠ°ΡΡΡΡΠ»ΠΈ, ΠΏΠ»ΠΎΠΉΠΊΠΈ ΠΈ ΡΠ°ΠΊ Π΄Π°Π»Π΅Π΅.
- ΠΡΠΎΠ²Π΅ΡΡΠΈΠ²Π°ΡΡ ΠΏΠΎΠΌΠ΅ΡΠ΅Π½ΠΈΠ΅, ΡΡΠΎΠ±Ρ Π½Π΅ Π΄ΠΎΠΏΡΡΡΠΈΡΡ Π·Π°ΠΏΠΎΡΠ΅Π²Π°Π½ΠΈΠ΅ ΡΡΠ΅ΠΊΠ»ΠΎΠΏΠ°ΠΊΠ΅ΡΠΎΠ².
- ΠΠ°ΠΊ ΠΌΠΈΠ½ΠΈΠΌΡΠΌ ΡΠ°Π· Π² Π³ΠΎΠ΄ ΡΠΌΠ°Π·ΡΠ²Π°ΡΡ ΠΏΠΎΠ΄Π²ΠΈΠΆΠ½ΡΠ΅ ΡΠ°ΡΡΠΈ ΠΌΠ°ΡΠΈΠ½Π½ΡΠΌ ΠΌΠ°ΡΠ»ΠΎΠΌ, Π° ΡΠΏΠ»ΠΎΡΠ½ΠΈΡΠ΅Π»ΠΈ β ΡΠΎΡΡΠ°Π²ΠΎΠΌ, Π² ΠΊΠΎΡΠΎΡΠΎΠΌ Π΅ΡΡΡ ΡΠΈΠ»ΠΈΠΊΠΎΠ½, ΡΠ°ΠΊΠ°Ρ ΠΏΡΠΎΡΠ΅Π΄ΡΡΠ° ΠΏΡΠΎΠ΄Π»ΠΈΡ ΡΡΠΎΠΊ ΡΠ»ΡΠΆΠ±Ρ ΡΡΡΠ½ΠΈΡΡΡΡ.
Β
ΠΡΠ±ΠΈΡΠ°Ρ ΠΈ ΡΡΡΠ°Π½Π°Π²Π»ΠΈΠ²Π°Ρ ΠΎΠΊΠ½Π° VEKA, Π½Π΅ ΡΠ»Π΅Π΄ΡΠ΅Ρ Π·Π°Π±ΡΠ²Π°ΡΡ, ΡΡΠΎ ΠΊΠ°ΡΠ΅ΡΡΠ²ΠΎ Π²ΡΠ΅Π³ΠΎ ΠΎΠΊΠ½Π° Π·Π°Π²ΠΈΡΠΈΡ Π½Π΅ ΡΠΎΠ»ΡΠΊΠΎ ΠΎΡ ΠΏΡΠΎΡΠΈΠ»Ρ ΠΈ ΠΎΡΡΠ΅ΠΊΠ»Π΅Π½ΠΈΠ΅, Π½ΠΎ ΠΈ ΠΏΡΠΈΠ»Π°Π³Π°Π΅ΠΌΠΎΠΉ ΡΡΡΠ½ΠΈΡΡΡΡ. Π Π°Π·Π½ΡΠ΅ ΡΠΈΡΠΌΡ ΠΏΡΠ΅Π΄Π»Π°Π³Π°ΡΡ ΡΡΡΠ½ΠΈΡΡΡΡ, ΠΏΡΠΎΠΈΠ·Π²Π΅Π΄Π΅Π½Π½ΡΡ Π² ΠΠΈΡΠ°Π΅ ΠΈΠ»ΠΈ Π’ΡΡΡΠΈΠΈ, Π½ΠΎ Π»ΡΡΡΠ΅ Π²ΡΠ΅Π³ΠΎ Π·Π°ΡΠ΅ΠΊΠΎΠΌΠ΅Π½Π΄ΠΎΠ²Π°Π»Π° ΡΠ΅Π±Ρ Π½Π΅ΠΌΠ΅ΡΠΊΠ°Ρ ΡΡΡΠ½ΠΈΡΡΡΠ°, ΠΏΠΎΡΡΠΎΠΌΡ Π΅ΠΉ ΠΈ ΡΡΠΎΠΈΡ ΠΎΡΠ΄Π°ΡΡ ΠΏΡΠ΅Π΄ΠΏΠΎΡΡΠ΅Π½ΠΈΠ΅. Π ΡΠΎΠΌΡ ΠΆΠ΅ ΠΎΡΠ΅Π½Ρ Π²Π°ΠΆΠ½ΠΎ Π½Π° ΠΏΠ΅ΡΠ²ΠΎΠ½Π°ΡΠ°Π»ΡΠ½ΠΎΠΌ ΡΡΠ°ΠΏΠ΅ ΠΏΡΠ°Π²ΠΈΠ»ΡΠ½ΠΎ ΠΏΡΠΎΠΈΠ·Π²Π΅ΡΡΠΈ ΡΠ΅Π³ΡΠ»ΠΈΡΠΎΠ²ΠΊΡ ΠΏΠ»Π°ΡΡΠΈΠΊΠΎΠ²ΡΡ ΠΎΠΊΠΎΠ½ veka, ΡΡΠΎΠ±Ρ ΠΎΠ½ΠΈ Π΄ΠΎΠ»Π³ΠΈΠ΅ Π³ΠΎΠ΄Ρ ΡΠ°Π΄ΠΎΠ²Π°Π»ΠΈ ΡΠ²ΠΎΠΈΡ Π²Π»Π°Π΄Π΅Π»ΡΡΠ΅Π².
strport.ru
