Веранда угловая – Угловая веранда своими руками
Угловая веранда своими руками
Угловая веранда – подробный пошаговый фото проект для строительства своими руками. Мы в прошлом выпуске делали уже обзор, “как построить веранду своими руками”, и этот обзор по сути логическое продолжение данной темы. Только на этот раз мы сделаем угловую веранду. Эта постройка требует уже большего опыта и навыков в работе с инструментами, хотя в ней также особо сложного нечего нет, главное понять принцип и всё получится. Сложное в ней собственно только сам угол, остальное всё просто.

Строительство угловой веранды начнём с установки опорных столбов или стоек. Особо акцентироваться на этом не будем, кому будет интересно прочитают наш прошлый обзор, там более подробно про это написано.

Тут мы только добавим, если вы испытываете трудности с прочностью установленных опорных столбов, то можете уложить брус между опорными столбами, закрепив его в свою очередь к полу, а столбы дополнительно прикрутить к уложенному брусу.

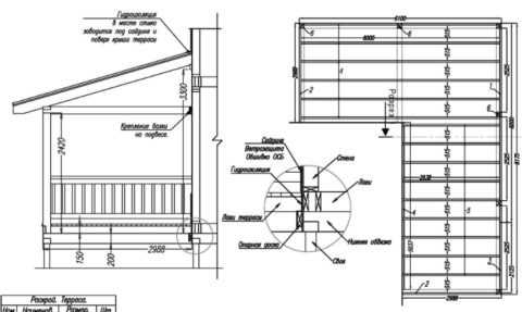
Итак, устанавливаем опорные столбы, угол веранды (террасы) делаем из трёх стоек.

Укладываем и крепим мауэрлат и пристенный брус.

Делаем ограждение нашей будущей веранды. По внешнему периметру опорных столбов прикручиваем доски. Они же будут служить нижней обвязкой и придадут дополнительную прочность веранде.

Далее укладываем стропило. Чтобы не мучатся с запилами на стропилинах, между стропилинами укладываем брусок и закрепляем его к мауэрлату и пристенному брусу. Стропило в свою очередь крепим сбоку к бруску.

Эта манипуляция сэкономит время и нервы.

Особое внимание следует уделить углу веранды, и выдержать правильную геометрию поворота.

Собираем всю стропильную систему.

Делаем перила из доски.

При изготовлении перил, придётся немного помучатся на углах. Задачу нам облегчит в выпиливании угла под столб, обычный строительный угольник. Перила укладываем так, чтобы доска не выпирала за столбы, всё лишнее должно остаться снаружи.
Используемые материалы для строительства угловой веранды или террасы. Брус 100×100, ограждение доска 100×25, перила доска 150×25. Итого на улицу у нас будет выступ 2,5 сантиметра, своего рода козырёк, этого как раз хватит чтобы уложить без проблем поликарбонат на ограждение.

На прямых участках, проблем возникнуть не должно. Если вы где то ошиблись и резанули лишнего, то можно проблему исправить с помощью шпаклёвки по дереву. После чего перила красим в нужный нам цвет.

Последним этапом будет отделка веранды поликарбонатом.

В итоге должны получить вот такую угловую веранду или террасу построенную своими руками. На этом всё, спасибо за внимание до новых встреч.
Как построить веранду
proektlife.ru
Угловая терраса. Открытая терраса с угловой перголой — как построить самому
Терраса своими руками: чертежи и размеры
Загородный отдых на даче — это, прежде всего, возможность двадцать часов в сутки дышать свежим воздухом сада или леса. Отдыхать и одновременно находиться в душной коробке дачного домика невозможно, поэтому ценящий свое здоровье дачник рано или поздно обустраивает на даче своими руками полноценную летнюю террасу с тентом или крышей. Строительство террасы своими руками намного проще беседки или веранды, поэтому обустройство специальной площадки для стола и садовой мебели, как правило, больших капиталовложений не потребует, при том, что эффект получится достаточно внушительным.
В чем секрет террасы
Несмотря на определенное внешнее сходство между верандой и террасой, назначение этих построек отличается, как разнятся, собственно, размеры и конструкции. Веранда – это часть дома с закрытыми стенами, окнами и полноценной крышей. Терраса представляет собой благоустроенную открытую площадку для отдыха в солнечный день с балдахином, тентовым навесом или маркизой. Разницу проще понять, если взглянуть на фото или чертежи классической террасы.
При выборе места и способа, как построить террасу своими руками, можно воспользоваться классическими приемами обустройства площадки для отдыха:
- В непосредственной близости к дому, используя площадку и ступени в качестве крыльца и площадки перед входом в дом;
- Вынести ее отдельной площадкой и расположить в уютном, солнечном и менее продуваемом месте дачного участка. При этом обязательным условием является обустройство дорожки, лестницы или ступеней, с помощью которых можно быстро попасть внутрь дома;
- Построить для террасы своими руками специальный тип крыши или потолочного перекрытия дачного дома, на котором расположится площадка для отдыха.
Важно! Понятно, что веранды и беседки так не строят, поэтому любые чертежи и рекомендации по строительству террас можно перерабатывать творчески, изменяя размеры с учетом своих пожеланий. Главное, чтобы конструкция получилась удобной, прочной и безопасной в пользовании.
Размеры террасных площадок, как правило, могут в несколько раз превышать размеры беседочных построек, и тем более, веранд. Почти всегда основание площадки строят из дерева или композита, поднимая конструкцию над грунтом так, чтобы влага и сырость не влияли на состояние дощатого настила.
Выбираем устройство, конструкцию и размеры
Терраса — единственная в своем роде постройка, рассчитанная не на создание тени, а наоборот, направленная на обеспечение возможности комфортного и безопасного пребывания на солнце. Поэтому, подбирая проект и площадку для строительства террасы своими руками, чертежи и размеры, необходимо учесть следующие особенности:
- В конструкции площадки любого размера, поднятой над грунтом более чем на 18-20 см, должно присутствовать ограждение и перила для террасы. Для построек, включающих несколько площадок, расположенных на различной высоте, предусматриваются промежуточные ступеньки и поручни;
- Пол, перила и ограждения должны изготавливаться из дерева или аналогичного по свойствам материала, например,полимерного композита. На чертеже обязат
skalice.ru
Угловая веранда к дому под ключ Санкт-Петербург
Представления о строительстве веранды к загородному дому очень разные. На самом деле многие люд считают, что это экономичное производство, в процессе которого нет никаких сложностей. Но это далеко не так, особенно для построек, предназначенных для постоянного проживания. Себестоимость подобных проектов сравнима с ценовой категорией загородных домов, которые относят с сегменту экономического класса. А потому в некоторых случаях люди входят в заблуждение, так как ожидание по себестоимости не совпадает с реальностью дел.
В данной статье мы затронем тему изготовления именно угловой веранды, так как часто именно такой конфигурации люди хотят пристраивать дополнительные объекты к существующему дому. Сразу же уточним, что для производства применяется каркасный способ строительства, так как он наиболее лучше приживается в данном вопросе. Далее подробнее про преимущества такого строительства, в процессе которого мы раскроем некоторые важные особенности.
Выбор фундамента для веранды
Перед любым строительством нужно сначала обсудить суть этапов работ. В процессе этого уточняется не только технология всех этапов работ, но также и согласовывается применение строительного материала. Особенно важно обсудить применение фундамента для веранды, так как он должен потом не вызывать проблем у собственника дома после завершения основного строительства. И это важнейшая составляющая качественного строительства, основной целью которой является высокая результативность выполненной работы.
Не секрет, что основное направление по деятельности нашей строительной организации — это именно ремонт и реконструкция дома. А потому, нашим специалистам не по наслышке знакомы уже очень многие ситуации, которые происходят при эксплуатации большинства загородных домов. И скажем сразу — в большинстве случаев там далеко всё несладко. Часто кстати причиной дефектов являются ошибки именно с фундаментом.
Так вот — веранда и основной дом это совершенно два разных строения. У них имеются следующие отличительные особенности:
- Разница в общей нагрузке;
- Отличие типа фундаментов в основании;
- Расхождение в материалах;
- Другие свойства прогрева помещения.
По собственному опыту, при строительстве новых объектов к уже существующим домам нужно предусматривать особенности пучения грунта. Если этот момент упустить, то получается очень высокой вероятность возникновения проблем, которые связаны с разрывов несущих конструкций, а также ухудшению эстетических свойств объекта. Также в процессе этого появляются мостики холода, которые существенно ухудшают внутреннее прогревание помещения и вызывают образование конденсата в различных конструкциях объекта.
Именно поэтому правильное техническое решение берётся исходя из опыта строителей, а также особенностей планируемого строительства. И нужно очень тонко разбираться в этом моменте, так как вероятность ошибки очень высока. А последствия всего этого потом приводят к тому, что страдает качество реализованного объекта. Это всё однозначно тревожит клиента, так как он в любом случае даже не предполагает, что такие последствия могут потом происходить.
Срок действия утеплителя для каркаса
Как показывает практика, очень мало людей реально понимает особенности каркасного строительства. Помимо правильного устройства фундамента для угловой веранды нужно ещё продумать как правильно будут производиться наружные стены. Вот тут важную составляющую имеет правильное заложение утеплителя. Но не только сама выполненная работа определяет общую результативность. Важно ещё в процессе применить соответствующий по качеству строительный материал, а данном случае именно утеплитель.
А смысл подбора утеплителя следующий: срок службы очень отличается, как впрочем и себестоимость продукции. Имеются также и отличия по плотности материала, а также ширине и высоте плит. Минеральный рулонный вариант мы даже не рассматриваем — это вариант для утепления бытовок, но никак не пристроек к домам. Хотя в стандартной комплектации экономичных домов можно увидеть предложение именно по самому экономичному утеплителю.
Утеплитель помимо своих теплоизоляционных свойств обладает ещё и звукоизоляционными характеристиками. Так вот, чем он плотнее, тем меньше будет ощущаться внутри помещения слышимость с уличной части. Также важно ставить оптимальные по качеству окна — они должны быть двухкамерные (три стекла) и обязательно иметь положение режима микро проветривания. Каркасное строение важно время от времени вентилировать — воздух не должен застаиваться на длительное время.
В данную тему важно вникнуть самостоятельно и понять для себя, какой именно утеплитель использовать при строительстве. Также нужно определить правильный способ утепления каркаса, а также установки последующих ветровых и пароизоляционных мембран. Если этот момент упустить, то можно столкнуться с тем, что внутри помещения будет холодно уже через 3-5 лет. Поможет в решении данного вопроса лишь полная замена утеплителя, который можно заменить только при помощи снятия отделочного материала со стен дома.
Особенности угловой веранды
Строительство подобной веранды чаше всего необходимо для создания входной группы в загородный дом. Именно поэтому вдоль стен основного дома делается дополнительное строение, которое может использоваться для различных назначений. А вот выступ веранды, который выходит за угол дома, обычно обустраивается для входной части. Это очень удобно на самом деле — отделить помещение от основного дома, выведя его за наружные границы.
Некоторые сложности имеет планирование устройства крыши, в частности отдельных конфигураций. Можно сделать вариант одного ската — так часто делают при изготовлении деревянной веранды. Можно наблюдать также вариант двухскатной крыши, особенно во входной группе. В некоторых случаях делается сложная крыша с несколькими скатами. Они имеют разные наклоны, а техническая часть её планируется уже индивидуальным образом.
Также важно предусмотреть потенциальную ветровую нагрузку на стены пристройки. Для этого нужно усиливать каркас специальными древесными плитами. Они помогают стать каркасу плотнее и жёстче. Остаётся с наружной части отделать облицовочным материалом. А вот изнутри рекомендуется делать горизонтальную отделку вагонкой или имитатором бруса. Такой вариант также повышает несущие способности каркаса и однозначно продлевает срок его службы.
Дополнительно к веранде пристраивают ступеньки. Особенность их в том, что они должны быть на аналогичном фундаменте, как и основное строение. Иначе можно столкнуться с проблемой пучения грунта. Исходя из этого, в некоторых случаях специалисты принимают решение сделать плавающий вариант, который функционирует сам по себе — в таком случае законы физики не будут вызывать появление отдельных деформаций у готовых конструкций.
Наша строительная организация очень хорошо разбирается в данном вопросе. Мы регулярно производим реконструкции загородных строений различной сложности. И в процессе этого часто требуется выполнить возведение веранды. За последние годы накоплен колоссальный опыт производства объектов, который однозначно поможет вам качественно реализовать задачу по изготовлению веранды к частному дому различной конфигурации. Если у вас нет понимания по техническому решению — мы вам его обязательно предложим. А потому звоните нам и задавайте свои вопросы — будем рады ответить на них.
www.lenoblaststroy.ru
Веранда своими руками
Как построить веранду своими руками – поэтапная технология строительства красивой и простой в изготовлении веранды с крышей из поликарбоната своими руками. Данный проект идеально подойдёт для тех, кто хочет попробовать себя в строительстве чего нибудь полезного для себя и для своей семьи и испытать то неповторимое чувство удовлетворения от построенной к примеру такой веранды своими руками. Данный проект специально оптимизирован для этого, чтобы можно было использовать минимальное количество инструментов и избежать лишних расходов и телодвижений.

Технология строительства веранды своими руками

Итак, чтобы построить эту веранду, для начала нам нужно установить опорные столбы. Для изготовления опорных столбов мы будем использовать брус сечением 100х100 миллиметров. В данном проекте, опорные столбы будем устанавливать на готовое бетонное основание, если нет бетонного основания, будем устанавливать на столбчатый фундамент.
Первую стойку или опорный столб прикручиваем к стене с помощью шурупа в виде стержня с шестигранной головкой, в простонародии “глухарь” или с помощью нагеля.
Остальные стойки крепим через металлическую пластину анкерами к полу.

На стойки устанавливаем и закрепляем брус (мауэрлат). К стене также крепим брус, но сантиметров 10 выше уровня бруса установленного на стойках. В принципе, если хотите чтобы уклон крыши был больше, выше поднимите пристенный брус.

Чтобы придать большую прочность нашей конструкции перед установкой крыши, делаем ограждение.

После чего начинаем устанавливать стропилины. Чтобы избежать запилов на стропилинах, мы устанавливаем стропилину на мауэрлат так как есть. Затем, отрезаем два одинаковых по размеру бруска, и прикручиваем их мауэрлату, тем самым зажимая стропилину.

Стропилины в свою очередь крепим к брускам с боков.

Таким образом собираем всю стропильную систему.

Настилаем крышу из поликарбоната.

Делаем перила.
Из всей конструкции, перила наверно самый сложный элемент, так как тут придётся немного повозится с пропилами под столбы на углу веранды.

В середине веранды сделать запил особого труда не составит.

После того, как собраны и закреплены перила, окрашиваем веранду в любой цвет по вашему вкусу.
Веранда своими рукамиВеранда построенная своими руками готова. Конечно, чтобы веранда выглядела дорого, следует обработать все элементы веранды наждачной бумагой при помощи шлифовальной машинки, тогда внешний вид будет совсем другой. На этом всё, надеюсь вам этот проект понравился своей невозмутимой простотой, пишите комментарии ставьте лайки, до новых встреч.
Как построить угловую веранду
proektlife.ru
Как Построить Веранду Своими Руками: Инструкция
Соорудить такую веранду гораздо проще, чем кажетсяСегодня мы разберемся как построить веранду своими руками. Это не самый сложный вид работ, поэтому он по силам каждому, кто готов потратить время и силы на подобный проект. Для простоты все работы описываются шаг за шагом, и параллельно рассказывается, какие материалы использовались в нашем случае.
Содержание статьи
Проектирование и дизайн
Конечно, самым идеальным вариантом является одновременное проектирование и строительство дома и летней пристройки к нему. Хотя бы потому, что так можно создать изначально цельный ансамбль. Но это получается не всегда, и тогда веранда своими руками на даче может быть пристроена к основному зданию позже.
В любом случае, перед началом строительства необходимо сделать проект. Пусть простенький, нарисованный от руки на бумаге, но он должен быть. Это поможет рассчитать необходимое количество материалов, и не наделать ошибок в процессе реализации.
По своему расположению дачные веранды могут быть:
- Выносными – пристроенными к дому с одной стороны, и имеющими собственную кровлю, либо находящимися под удлиненным скатом основной крыши.
Для справки. Чаще всего они прилегают к фасаду и главному входу в дом. Но в последнее время, более популярными стали пристройки к той стороне дома, куда выходят окна гостиной или столовой с обязательным устройством выхода из этих помещений.
- Угловыми или круговыми – когда конструкция окружает основное здание целиком или прилегает к двум и более стенам. Маленький дачный домик с верандой такого типа, превращается в удобное и просторное летнее пристанище.
- Встроенными – когда и дом, и веранда построены на одном фундаменте под общей кровлей.
Что же касается дизайна, то его стараются привести в соответствие со стилем и экстерьером дома. Проще всего сделать это, используя те же строительные или облицовочные материалы, что и для основного строения.
Но это не обязательное условие. Очень гармонично могут смотреться деревянные веранды дачные с кирпичными домами, или стеклянные конструкции с деревянными.
Как видите, веранды бывают очень разными. И различаются не только формой или использованными при строительстве и отделке материалами, но и степенью открытости. Это может быть как навес на опорах с перилами между ними, так и закрытая полностью, или частично остекленная постройка.
Последовательность работ
Поэтапное строительство веранды своими руками включает большой перечень работ, которые требуют определенных затрат времени. Не стоит надеяться, что вы справитесь с постройкой за выходные или даже за неделю.
При всей своей простоте, все работы занимают время — что-то больше, что-то меньше. Важно делать все правильно и не допускать ошибок, чтобы не тратить время на переделку.
Прежде чем приступить к работе, нужно сделать примерный проект со всеми размерами конструкции и расположением окон и дверей. Также сразу решите, какие материалы будут использоваться, от этого во многом зависит технология строительства. К тому же, если у вас есть эскиз, рассчитать необходимый объем материалов будет намного проще.
Можно заказать проект у профессионалов, а можно сделать его самостоятельноСооружение фундамента
Этот этап работ можно назвать предварительным, так как чаще всего он проводится заранее. Это связано с тем, что для набора прочности бетону нужно определенное время — от недели и более.
Что касается вариантов, то тут может быть как простой столбчатый вариант, так и капитальный ленточный или плитный.
Выбираем один из следующих видов основания:
- Ленточный фундамент. Это самое надежное решение, особенно если на даче веранда будет тяжелой: кирпичной, каменной или бревенчатой, с утепленной кровлей и остеклением. Для его устройства по периметру будущего строения выкапывается траншея, глубина которой зависит от типа грунта и опять же веса конструкции. На её дно насыпается и утрамбовывается слой щебня толщиной не менее 10 см. Затем в траншею устанавливается опалубка, а в неё заливается бетон.
Совет. Чтобы основание получилось прочным и надежным, перед заливкой раствора в опалубку желательно установить арматуру из металлических прутьев.
- Столбчатый фундамент. Самый простой и быстрый вариант для легких деревянных конструкций. Столбики изготавливаются так же, как лента – путем заливки бетона в опалубку. Однако и времени на их сооружение уходит меньше, и цена основания за счет сокращения объема материалов существенно снижается.
Для справки. Столбики можно выложить из кирпича или строительных блоков, предварительно выкопав под них ямки по периметру и усилив дно щебеночной подушкой.
- Свайный фундамент. Единственный надежный вариант основания для подвижных грунтов. Металлическая винтовая свая на несколько метров вкручивается в землю, обеспечивая строению исключительную устойчивость, и выдерживая очень большие нагрузки.
В нашем случае будет столбчатый фундамент, инструкция по его сооружению выглядит так:
| Иллюстрация | Описание |
Цемент — основной материал для фундамента | Из материалов нужно следующее:
Количество компонентов зависит от объемов работ и размеров будущих опор. |
Рытье ям под фундамент | В первую очередь, нужно сделать ямы под будущие опоры. Выполняются такие действия:
|
Опалубка под опору | Делается опалубка для наземной части фундамента. Для этого используется доска не тоньше 25 мм. Внутрь для армирования можно вставить несколько прутьев арматуры. Также можно засыпать камни как наполнитель, они позволят заметно сократить количество расходуемого раствора. |
Приготовление раствора | Готовится раствор по следующему алгоритму:
|
Заливка раствора | Раствор заливается в опалубку. Нужно заполнить им пространство до необходимого уровня. Сверху можно вставить шпильку, чтобы она выступала на 12-15 см, на нее будет удобно крепить балки впоследствии. Если объемы работ велики, то лучше взять напрокат бетоносмеситель, он существенно упростит и ускорит рабочий процесс. |
Готовые опоры | Через сутки опалубку можно снять. Верхняя часть опор закрывается кусками рубероида или пленки. Элементы оставляются примерно на неделю, чтобы бетон набрал прочность. В это время можно готовиться к следующим этапам, и собирать все необходимые материалы. |
Сооружение каркаса
После того как бетон набрал прочность, можно приступать к сооружению несущей конструкции. В нашем случае разбирается, как осуществляется постройка веранды своими руками с использованием дерева — поэтому каркас будет делаться из бруса (подробней читайте тут).
Процесс выглядит так:
| Иллюстрация | Описание |
Деревянный брус | Приобретается брус сечением 100х100 мм. Чаще всего используется недорогая сосна — главное, чтобы древесина имела влажность не более 20%, и не имела следов поражения плесенью. Длина подбирается исходя из размеров вашей веранды. Для распорок можно использовать доску толщиной 30 мм. Для верхней обвязки можно использовать или тот же брус, или элементы с сечением поменьше, если они обеспечат надежность конструкции. |
Крепление шпилькой | Крепится нижняя обвязка. На верхнюю часть фундамента кладется рубероид для гидроизоляции. Если вы бетонировали шпильку, то делайте так, как показано на фото: сверлится отверстие, и балка просто надевается на опору. Сверху закручивается гайка. Соединение делается путем зарезки элементов наполовину, на фото это тоже очень хорошо видно. Если шпильки нет, то элементы фиксируются с использованием анкеров с гайкой. |
Крепление вертикальной опоры | Вертикальные элементы ставятся на нужном вам расстоянии, и закрепляются с помощью перфорированного уголка размером 70х70 мм или больше. Чаще всего опоры ставятся в местах крепления поперечных балок нижней обвязки. Высота подбирается исходя из вашего проекта. Помните о том, что кровля должна иметь скат, поэтому наружный ряд делается ниже ряда, расположенного около стены дома или другого строения. |
Крепление угловой стойки | По углам стойки крепятся аналогичным образом — с помощью уголков. Если этого недостаточно, то можно поставить с наружной стороны еще пластины. Но чаще всего достаточно и уголков, тем более, что впоследствии каркас будет усиливаться перемычками. |
Укрепление стоек раскосами | Чтобы усилить стойки до монтажа перемычек, фиксируйте их с помощью раскосов. Так называются доски, которые прибиваются под углом с двух сторон вертикальных элементов, тем самым фиксируя их в требуемом положении. Тут можно использовать любую доску, особая аккуратность не нужна, потом эти элементы все равно уберутся. |
Крепление к стене | Стойки, которые располагаются около здания, дополнительно фиксируются к стене с помощью анкерных болтов. Это позволяет придать веранде дополнительную прочность, ведь теперь она будет жестко связана с массивным строением. Длина анкеров подбирается исходя из типа стены и ее твердости. |
Крепление горизонтальной перемычки | Поверх вертикальных элементов делается горизонтальная обвязка. Но так как стойки имеют разную высоту, то крепить их нужно так, как показано на фото. В более высоком вертикальном элементе делается врезка, и соединение усиливается все теми же металлическими уголками. |
Брус, закрепленный на стене | Верхний брус, на который будут опираться стропила, крепится не только к стойкам, но и к стене. Это придаст ему дополнительную жесткость.
|
Крепление перемычки под монтаж окна | Для усиления каркаса можно сразу закрепить горизонтальные перемычки. Они располагаются так, чтобы впоследствии вы могли поставить на них оконные рамы. Заранее продумайте размер окон, чтобы потом не переставлять эти элементы. |
Установка дополнительных раскосов | Для придания каркасу дополнительной жесткости можно врезать в нижнюю часть раскосы. Они делаются из доски толщиной 30 мм и шириной 120 мм. Под нее на вертикальных стойках делается врезка, после чего элементы закрепляются гвоздями или саморезами. |
Монтаж стропильной системы и укладка кровли
Чтобы закрыть наш каркас от осадков, нужно в первую очередь соорудить крышу. Рассматриваем дальше, как мы строим своими руками веранду:
| Иллюстрация | Описание |
Материал для стропил | Стропила мы будет делать из доски 50х120. Если поставить ее на ребро, то получатся очень прочные ребра, способные выдержать большие нагрузки. Доска должна быть сухой, длина подбирается под объект. Для обрешетки будет использоваться доска 30х120 |
nasha-besedka.ru

Цемент — основной материал для фундамента
Рытье ям под фундамент
Опалубка под опору
Приготовление раствора
Заливка раствора
Готовые опоры
Деревянный брус
Крепление шпилькой
Крепление вертикальной опоры
Крепление угловой стойки
Укрепление стоек раскосами
Крепление к стене
Крепление горизонтальной перемычки
Брус, закрепленный на стене
Крепление перемычки под монтаж окна
Установка дополнительных раскосов
Материал для стропил