Вибростол своими руками для производства тротуарной плитки чертежи – Как сделать вибростол для тротуарной плитки
Тротуарная плитка своими руками — формы и вибростол (чертежи) | Своими руками
Как сделать тротуарную плитку своими руками с помощью форм и вибростола

Самостоятельно изготовить бетонные плитки для мощения дорожек в саду — по силам любому хозяину, было бы желание.
Так, Иван Столетов из г. Гродно сделал комплект плиток для своего участка, причём их стоимость в сравнении с покупными оказалась в два раза ниже, не считая затрат на доставку.
Наверное, мне не пришлось бы заниматься изготовлением тротуарных плиток самому, но на фирме, где я заказал комплект этих бетонных изделий, произошёл технологический сбой – и простой мог затянуться на несколько месяцев, что не входило в мои планы. Это и навело меня на мысль изготовить комплект плиток своими руками, благо была хорошая тёплая погода и я располагал свободным временем.
Учитывая небольшой объём работ, я решил формовать плитку в пластиковых формах, а бетон замешивать вручную. По этой же причине не стал изготавливать специальный вибростол, а использовал простое приспособление, о котором скажу чуть позже. У меня был определённый опыт изготовления крупных по размеру плит с применением деревянных и металлических форм, но там была своя специфика, и кое в чём мне пришлось экспериментировать.
Читайте также: Тротуарная плитка своими руками – простейший способ изготовления тротуарной плитки
ИНСТРУМЕНТ, МАТЕРИАЛЫ И ПРИСПОСОБЛЕНИЯ ДЛЯ ИЗГОТОВЛЕНИЯ САМОДЕЛЬНОЙ ТРОТУАРНОЙ ПЛИТКИ
Покупные пластиковые формы, мастерок, шпатель, правило, лопата, тяпка, молоток, сетка для просева гравия и песка, цемент, вода, ведро, смазочный материал и малярная кисть (для смазки форм), вибростол для формовки, арматура, вязальная проволока.
Формы для плиток
Мне понадобились всего четыре пластмассовые формы, чтобы осилить необходимое количество, а это примерно 500 плиток. Было большим искушением приобрести формы больших размеров – 50 Х 50 Х 5,5 см или 60 * 60 * 5,5 см: подкупала простота формовки и большая площадь плитки. Для сравнения я одну такую форму купил и изготовил неснолько опытных образцов. Плитки меньших размеров оказались более выгодными, поэтому решил использовать формы размерами 30 “30 “Зсм.
На изготовление всей партии у меня ушло чуть больше месяца. Процесс можно было ускорить, но я не торопил события: на дачном участке всегда хватает работы, и плитками я занимался параллельно, поскольку бетону в процессе изготовления плиток нужно время для набора прочности как до рас-формовки, так и после неё.
Состав бетонной смеси
Состав бетонной смеси, консистенцию и вязкость я подбирал опытным путём. Эти параметры заметно влияют на качество плитки (наличие пор. раковин в бетоне) и на скорость набора смесью прочности. Также предстояло подобрать нужную консистенцию смазки, от которой зависит и качество плиток, и удобство расформовки.
Бетонную смесь я брал в следующей пропорции: песок с мелким гравием -три объёмные части, цемент – одна часть. Смесь засыпал в металлическое корыто и тщательно перемешивал тяпкой (ею легче перемешивать, чем лопатой), постепенно добавляя воду и доводя раствор до состояния густой сметаны. А потом приспособился использовать дрель с насадкой для перемешивания раствора.
Замешивая бетон, нужно быть внимательным и не спешить. Жидкая смесь хорошо заполняет форму, но до расформовки её надо выдерживать довольно долго, иначе плитки легко ломаются, особенно углы, да и потом они дольше набирают прочность. И наоборот, если приготовить очень густую бетонную смесь, её трудно провибрировать, да и результат будет неидеальным: плиты получаются непрочными, с раковинами и имеют неприглядный вид. В общем, надо найти золотую середину.
Опытным путём подобрал и необходимый размер фракций песчано-гравийной смеси для приготовления бетона, используя для просева гравия сетку с ячейками необходимых размеров. Это тоже влияет как на вид плиток, так и на их прочность. При использовании пескобетона прочность снижается, а время для набора прочности увеличивается, поэтому такой вариант я исключил. При использовании крупного гравия без просева прочность получается неплохой, а вот вид плиток (особенно при толщине 3-4 см) мне не понравился. Для меня оптимальным вариантом оказалась смесь гравия мелкой фракции с крупным песком.
Сначала смазанные пластиковые формы заливаю бетоном на высоту чуть больше половины их высоты (рис. 1), укладываю обрезки металлической сетки или прутки остатков арматуры и после этого формы заполняю бетоном до краёв. Плитка будет более прочной, если отдельные стержни арматуры связать между собой вязальной проволокой.
Надо внимательно следить, чтобы арматура была покрыта бетоном со всех сторон. Излишки бетона после заливки убираю с поверхности и выравниваю ее мастерком. Можно, конечно, не укладывать арматуру при формовке, но тогда требуется почти в два раза больше времени, чтобы плитка набрала необходимую прочность (или увеличить расход цемента) для безопасной расформов-ки, да и прочность плит при толщине 3-4 см оставляет желать лучшего.
Смазка форм для тротуарной плитки
Смазку можно приготовить самостоятельно, но при этом надо быть внимательным при подборе пропорций составляющих. Если смазка будет слишком жирной, то поверхность плиток получится дырчатой, словно они изготовлены из ракушечника. Если жирность смазки окажется недостаточной, плитку не вытащить из формы без повреждений.
Для приготовления смазки можно взять около 50 г машинного масла и примерно 1,5 л воды, хорошенько перемешать – потрясти в пластиковой бутылке с усилием и продолжительностью не менее получаса.
Правильно подобранная смазка увеличивает срок службы форм: оборот может составить 600-800 раз. Для меня оптимальным оказался следующий состав смазки. Это отработка масла (или чистое масло) для дизеля – она более жидкая по сравнению с маслом для бензиновых двигателей. Разбавляю отработку солярной (керосином) в соотношении примерно 1 : 10 – и смазка готова. Расход при смазки форм получается незначительный, а качество -хорошее.
Вибростол для тротуарной плитки своими руками
От того, насколько тщательно будет провибрирована залитая форма, зависит и прочность плитки, и время её изготовления. Сначала я заливал формы, разложив их на старых стульях, и киянкой простукивал подставки и ножки стула до тех пор, пока на поверхности заготовки не начинали образовываться пузырьки.
Появление пузырьков означает, что воздуха в бетоне нет, и в плитках не будет раковин. Это удобно при изготовлении небольших плиток в небольших количествах.
При заливке нескольких партий в день необходимо укладывать более жёсткую бетонную смесь. 8 этом случае руками уже столько не постучишь. Я использовал электрическое точило, установленное на подставку из широкой доски.
Старый точильный наждачный круг с большим посадочным гнездом я установил на вал двигателя со смещением от центра примерно на 1 см. При включении на холостом ходу точило начинает заметно вибрировать – этого достаточно при изготовлении небольших тротуарных плит. Хороший результат даёт точило с двумя наждачными кругами.
Время вибрирования одной партии – от двух до пяти минут. Как только на поверхности смеси появляется пенка, то есть воздух весь вышел, точило можно останавливать. В процессе вибрирования полусухая цементная смесь на глазах становится мокрой, и может показаться, что состав в формах -очень жидкий, но на самом деле это не так. Если взять форму и перевернуть, то кажущийся жидким бетон не выльется из нее. Это говорит о том, что всё сделано правильно – и бетонная смесь получилась прочная.
После вибрирования я дополнительно ещё обстукивал подставки и стол молотком или киянкой. По окончании перемещал формы на свободную площадку, защищенную от прямых солнечных лучей. Плитки из форм вынимал через несколько часов.
Если бетон в формах передержать, то плитку будет трудно вытащить из формы. В этом случае помогает такой приём: надо положить форму на пару минут в тёплую (*60°С) воду, а затем установить на вибростол и провибрировать в течение 10 секунд.
В холодную погоду следует применять пластификаторы, нередко добавляемые 8 бетонную смесь. Надо помнить, что доля пластификатора должна составлять 0,5% от количества всего бетона. Пластификатор нельзя добавлять в сухом виде – его необходимо развести в горячей воде в пропорции 200 г/л. Нельзя разводить пластификатор в холодной воде – так он не растворится. Его необходимо перемешать до полного растворения, потому что даже малейший осадок приведёт к образованию кратеров в готовом изделии.
Читайте также: Бетонная тротуарная плитка своими руками: фото изготовления
Цветная плитка своими руками
Для получения цветной плитки необходимо приготовить раствор красителя нужного цвета, причём его должно быть не менее 5% от общего объёма смеси в сухом виде. При меньшем количестве красителя готовая плитка быстро потеряет цвет. Чем ярче мы котим получить готовую плитку, тем больше красителя придётся добавлять. Проблема – в том, что краситель недёшев.
Однако и здесь можно сэкономить, если цветным бетоном заливать форму только наполовину (рис. 3), а другую половину заполнять обычным бетоном. Готовая плитка получится не только дешевле, но и прочнее той, что сделана полностью из цветного бетона.
Краситель необходимо предварительно развести тёплой водой в пропорции 1 : 3 до полного растворения. Приготовленная бетонная смесь по консистенции (при использовании красителя и пластификатора) должна напоминать мокрый песок. При приготовлении цветной плитки с пластификаторами для создания однородной массы цветного бетона лучше пользоваться бетономешалкой или дрелью с насадками для замеса раствора.
В заключение скажу: не надо бояться экспериментировать – тогда вы обязательно найдёте свою оптимальную технологию, красиво и недорого обустроите свой участок. Была бы охота, тогда наладится любая работа!
Вибростол для тротуарной плитки – чертежи

Рис. 1. Последовательность укладки бетона в пластиковые формы: 1 — форма; 2 — первый слой бетонной смеси; 3 — арматура; 4 — второй слой бетона.
Рис. 2. Самодельный вибрационный стол с применением электрического точила: 1 — опора; 2 — форма; 3 — широкая доска; 4 — точило.
Рис. 3. Последовательность заливки пластиковых форм при экономном способе изготовления цветных плиток.
Тротуарная плитка своими руками: фото

Общий вид пластиковых форм, в том числе больших размеров.
Просев песчано-гравийной смеси при помощи сетки.
Перед заливкой пластиковой формы бетоном её необходимо смазать.
Рабочий стол перед заливкой форм.
Вид набравших прочность готовых плит.
Готовые плитки легко извлекать из форм при правильно подобранной смазке.
Тротуарная плитка своими руками: видео
В этом видео рассказывается как сделать максимальное количество тротуарной плитки имея под рукой небольшое количество форм
© Автор: Иван Столетов. Рисунки В.Давдов
ИНСТРУМЕНТ ДЛЯ МАСТЕРОВ И МАСТЕРИЦ, И ТОВАРЫ ДЛЯ ДОМА ОЧЕНЬ ДЕШЕВО. БЕСПЛАТНАЯ ДОСТАВКА. РЕКОМЕНДУЕМ — ПРОВЕРЕНО 100% ЕСТЬ ОТЗЫВЫ.

Реклама
Ниже другие записи по теме «Как сделать своими руками — домохозяину!»
Подпишитесь на обновления в наших группах.
Будем друзьями!
kak-svoimi-rukami.com
Вибростол для тротуарной плитки: как сделать своими руками?
Облицованные тротуарной плиткой дорожки и площадки выглядят заманчиво, но цена этого материала в пересчёте на десятки и сотни квадратных метров составляет значительную сумму. Поэтому изготовление брусчатки своими руками даст значительную экономию денежных средств, а использование вибростола для уплотнения смеси в формах сэкономит время, силы и обеспечит качество плитки. Так как цена этого агрегата, изготовленного в промышленных условиях, сравнительно высока, рассмотрим, как сделать вибростол своими руками.

Для работы потребуется набор оборудования и подготовленные чертежи
Любой вибростол состоит из неподвижной части (стол), не жёстко закреплённой на нём столешницы и электродвигателя (вибратора) с приводом к столешнице. Рассмотрим, как и из каких материалов эти узлы можно изготовить, чтобы смонтировать вибростол для тротуарной плитки своими руками.
Все работы по монтажу и сборке вибростола (кроме крепления электродвигателя), производятся электросваркой, так как болтовые соединения ослабляются под воздействием вибрации. Сварочные швы очищаются от шлака и шлифуются болгаркой со шлифовальным диском, после чего вся конструкция покрывается двумя слоями антикоррозионной краски.
Неподвижная часть
Конструкция этой составной части вибростанка представляет собой стол без столешницы на четырёх ножках-опорах. Для удобства изготовления целесообразно, несмотря на простоту конструкции, предварительно выполнить от руки чертежи этой конструкции. Формат вибростола выбирается квадратным или прямоугольным, для бытовых потребностей габариты в горизонтальной плоскости выбирают не более метра, достаточно 70х70 см. Следует учитывать, что, чем большего размера изготавливается столешница, тем мощнее должен быть электродвигатель или вибратор. Высота станка подбирается индивидуально, в зависимости от роста человека, в пределах 80–110 см.

Конструирование вибропресса необходимо начинать с вибростола
Изготовление каркаса
Монтаж каркаса начинают со сборки верхней рамы, к которой в дальнейшем будут приварены ножки. Рама изготавливается из швеллера №8, №10 или стального уголка сечением не менее 50х5. Если её габариты превышают 70 см, то для жёсткости, кроме периметра, варятся поперечные распорки. Резка материала осуществляется болгаркой с каменным диском для резки металла. Сборку и сварку рамы производят на горизонтальной поверхности, чтобы готовое изделие не имело отклонений от горизонтальной плоскости.
Ножки стола изготавливаются из швеллера №8 или 10, можно использовать и трубу диаметром 50, 80 мм. Срезы ножек должны быть тщательно отторцованы. Если вибростол изготавливается переносным, то его ножки должны быть строго одинаковой длины и оканчиваться приваренными стальными пластинами размером 100х150 или 150х200 мм для равномерного распределения веса станка на основании. При стационарном ра
zonaplitki.ru
Вибростол для тротуарной плитки своими руками: параметры, советы
Что можно предпринять, чтобы сэкономить свой бюджет при обустройстве участка, тропинок в саду и сделать красивый и удобный подъезд к гаражу? Одним из вариантов является самодельный вибростол. С его помощью вы сможете изготавливать плитку разных размеров и расцветок.
Вибростол – это так называемая столешница, которая находясь под воздействием электродвигателя, вибрирует и приводит к вибрации формы с раствором для плитки.
Если вы решите производить плитку только для себя, то вибростол можно изготовить небольших размеров, чтоб он не занимал много места.
Стандартные параметры вибростола
Оптимальным размером рабочей поверхности вибростола считается 600х600 сантиметров. В качестве станины стола можно использовать подручные прочные металлические листы или старую столешницу.
В любом случае используйте такой материал, чтобы после окончательного приготовления плитки, он вам пригодился для других работ и не пылился в сторонке без дела.
Следует учесть, что качество вашей плитки будет напрямую зависеть от материалов, из которых она будет изготавливаться. Поэтому рекомендуем все основательно просчитать.
Количество получаемой плитки складывается из количества форм, купленных в качестве заготовок под плитку. Сразу же после изготовления вы не сможете вытащить готовый продукт из формы, ему надо основательно полежать в свое форме около 24 часов.
То есть, если вы купите 50 форм, то в день сможете производить не более 50 штук плиток.
Производство вибростолов
Итак, какие первоначальные задачи необходимо решить перед началом работ по изготовлению вибростола:
- Необходимо приобрести пружины, с помощью которых стол будет легко вибрировать и не заваливаться из стороны в сторону. Аналогом пружин служат канаты или прочные цепи, но в таком случае столешница по своим размерам должна быть шире каркаса и соединяться с ним специальными направляющими.
- Мотор закрепить нужно на специальную подставку под столом, либо на сам стол специальными жгутами так прочно, чтоб при вибрации не произошло разматывания. Мы рекомендуем на столешницу крепить только вибродвигатели, которые производились на заводе. Такие изделия оснащены эксцентриками, с помощью которых можно регулировать силу вибрации.
- Для лучшего сцепления стола с каркасом приобретите перемычки, чтоб по своей прочности они выдерживали интенсивные вибрационные нагрузки.
Оптимальную высоту вибростола вы должны определить сами, в зависимости от своего роста и комплекции, так как комфортная работа добавит эффективности и продуктивности в изготовлении плитки. Обычно рекомендуется высота до одного метра.
После того, как вы определились с размерами, начинаем собирать вибростол, его обычно крепят на четыре ножки, в качестве которых используют б/у трубы, но только помните, что они должны быть с пружинами сходными по размеру. Пружины должны неплотно сидеть в трубах на высоте пары витков.
Либо в качестве ножек используют уголки, сваренные между собой в каркас. Но в таком случае пружины нужно будет с помощью сварки соединить с каркасом, либо вырезать небольшие отрезки из труб и уже в них вставить пружины, а сами трубы приварить к каркасу.
В любом случае, вибростол должен устойчиво стоять, не шататься и не заваливаться на бок. Здесь уже решаете вы сами, какого качества вы хотите сделать стол и сколько денег вы готовы в него вложить.
Если же изготавливать вибростол не входит в ваши планы, а плитку своими руками сделать желание есть, то тогда рекомендуем купить вибростол для плитки по объявлению на авито.
Таким образом, вы сэкономите свое время и непосредственно сразу начнете процесс изготовления плитки.
Классический вибростол имеет следующие размеры каркаса:
- Ширина 0,5 м;
- Длина 1 м;
- Высота 1 м.
Важный совет: больше не значит лучше! Не думайте, что если вы сконструируете огромный стол, то будете производить большой объем плитки.
Чем больше стол, тем значительно труднее добиться равномерной вибрации посредством обычного мотора. В такой ситуации вам придется потратиться и купить мощный вибродвигатель.
Вибростол из автомобильных шин
Интересным решением стало изготовление стола из бывших в употреблении автомобильных шин. У любого водителя найдется такой материал. И не придется искать трубы или металлические уголки.
Чтобы изготовить такой вид вибростола, вам понадобится 3 шины. Соедините их между собой в четырех местах болтами. Мотор крепим к нижней крышке стола, ровно посередине. Таким образом, ваша конструкция будет устойчива.
Подведем итоги.
Мы привели вам несколько примеров по изготовлению вибростолов. В ход могут пойти все подручные средства, которые есть в вашем гараже: покрышки, болты, электродвигатель, пружины от авто, отрезки труб и металлические уголки.
Вы можете после изготовления плитки использовать свой вибростол не по назначению, например, в качестве станка для распила досок и другого материала.
Количество выполненной работы зависит только от вас и того объема форм, которые вы приобретете для своей работы. Устанавливайте стол на оптимальной, по своему росту, высоте, это способствует комфорту и скорости по созданию плитки.
polsdelat.ru
Вибростол для тротуарной плитки — конструкция и изготовление своими руками

Вибростол для тротуарной плитки – незаменимая конструкция, которая широко применяется в процессе самостоятельного изготовления уличного покрытия.
Такие столы отличаются не только по своим размерам и габаритам, но и характеризуются разной комплектацией, а также сферой применения и показателями производительности.

Вибростол для плитки: что это?
В процессе изготовления тротуарной плиты на основе бетона возникает серьезная проблема в виде высокого уровня пористости уже готового строительно-отделочного материала. Применение вибрационного стола позволяет перед сушкой плитки минимизировать пористость.
Вибрация усиливает процесс оседания бетонных частиц, вытесняющих воздушные пузырьки на поверхность. В результате тротуарная плитка имеет более высокое качество, а также обладает устойчивостью к истиранию и достаточной морозостойкостью.

Небольшой вибростол
Как следствие, такой материал на основе бетонов может эксплуатироваться длительное время даже в неблагоприятных внешних условиях.
Применение вибрационного стола требует некоторых навыков, так как несоблюдение правил эксплуатации и превышение времени вибрационного воздействия часто становится основной причиной расслоений цемента и песка.
Виды и типы
Вибростолы отличаются не только размерами и конструкционными особенностями, то также своим назначением и областью применения:

- направление вибрационного воздействия позволяет подразделять все конструкции на горизонтальные и вертикальные модели, что обусловлено местом установки ротора;
- в зависимости от способа установки, вибростолы могут быть мобильными или переносными, а также стационарными, установленными в специально выделенном помещении;
- по назначению стол может быть формовочным и распалубочным, а основное отличие таких моделей представлено наличием во втором варианте специальной насадки с отверстиями.
При использовании гибких форм под заливку бетонного раствора есть возможность полностью исключить необходимость применения распалубочного стола.
В условиях индивидуального строительства, а также при необходимости получить самостоятельно не слишком большое количество тротуарных плит, целесообразно отдавать предпочтение простым горизонтальным моделям.
Конструкция вибропресса для тротуарной плитки
Строительно-отделочный материал, изготавливаемый посредством вибропрессования, не только имеет высокие показатели качества, но также может быть извлечен из матрицы ещё до полного затвердевания раствора, что положительно сказывается на продуктивности эксплуатируемого оборудования.
Самостоятельно собрать вибростол для изготовления тротуарных плит не слишком сложно, но необходимо учитывать некоторые конструкционные особенности такого вибропрессовального мини-станка.

Чертеж вибростола для тротуарной плитки
Стандартная конструкция вибропресса приставлена столом и столешницей, а также устройствами для вибрирования и прессования.
Все части пресса объединяются между собой конструктивно и технологически, поэтому перед самостоятельным изготовлением обязательно выполняются грамотные чертежи и схемы соединений элементов.
Нужен станок для плитки? Особенности выбора станка для тротуарной плитки рассмотрим подробно.
Технология изготовления бетонной тротуарной плитки описана тут.
Хотите изготовить тротуарную плитку необычной формы? Тогда сделайте форму для плитки своими руками. Советы читайте здесь.
Как сделать вибростол своими руками
Заводские вибростолы для тротуарной плитки позволяют автоматизировать производство, получить высокопрочный и долговечный материал с точными пропорциями, что обусловлено наличием специальных программ.
Тем не менее, такие конструкции отличаются высокой стоимостью, поэтому в большинстве случаев частные застройщики отдают предпочтение самостоятельному изготовлению таких приборов.

Самодельный вибростол
Заводские вибростолы для производства тротуарной плитки, а также любые самодельные варианты, обязательно включают в себя одинаковые компоненты, а основной разницей является исполнение отдельных элементов и деталей:
- Основа представлена станиной, обеспечивающей достаточную устойчивость всей конструкции. В самодельных моделях при изготовлении используется металлический уголок с сечением 8 см, а повышения устойчивости можно добиться при помощи перемычек и крепления к полу. В верхней части осуществляется наваривание стаканов под пружины.
- С целью амортизации в процессе вибрации применяются пружинные элементы от автомобильной или мотоциклетной техники. Допускается заменить пружины ременными амортизаторами, фиксируемыми на столешнице.
- Столешница является рабочей поверхностью, предназначенной для вибропрессования уже готовых тротуарных плит.
На выбор толщины столешницы оказывают непосредственное влияние размеры, а также вес обрабатываемых тротуарных плиток. Как правило, толщина поверхности варьируется в пределах 0,5-1,0 см.
Важно помнить, что на массивных столешницах можно вырабатывать как толстые, так и тонкие плиты, а малопрочные поверхности предназначены исключительно для изготовления легких строительно-отделочных материалов.
Выбор двигателя
Правильно выполненный вибрационный узел – гарантия получения качественных и долговечных материалов.Вибромотор или электродвигатель заводского изготовления фиксируется на столешнице, что позволяет создавать необходимую вибрацию.
Не менее популярно применение кинематической схемы, при которой фиксация двигателя осуществляется на станине.
В этом случае предполагается использование клиноременной передачи.
Самым популярным и удобным, с точки зрения эксплуатации вариантом, является обустройство вибрационного стола для изготовления тротуарной плитки электродвигателем и последующее закрепление эксцентрика на валу. На хомуте, который располагается на валу, в обязательном порядке закрепляется специальный дисбаланс.
Очень удобно использовать в качестве дисбаланса достаточно тяжелый и массивный болт, при помощи которого регулируется сила вибрации в процессе накручивания определенного количества гаек.
Сборка
Проще всего самостоятельно собрать вибростол, оснащенный стандартным электрическим двигателем.
На первом этапе осуществляется сваривание рамы на основе металлического уголка и приваривание ножек, в качестве которых можно использовать не только уголок, но и стальной швеллер или трубы.
Затем выполняется приваривание к опорам или раме металлических стаканов с амортизирующими пружинами для получения эффекта вибрации. Не рекомендуется применять для изготовления станины древесину, которая в процессе эксплуатации рассыхается, что нарушает геометрию и центровку.
На нижние части ножек привариваются «пятаки» для повышения показателей устойчивости. Правильно выбранная высота стола позволяет обеспечить комфорт при проведении всего объёма работ. Оптимальные показатели высоты составляют 75-85 см. На следующем этапе монтируется виброузел, мощность которого при изготовлении тротуарной плитки должна быть в пределах 0,65-0,75 кВт.
Настроить работу вибрационного стола можно исключительно опытным путем, регулируя уровень частоты и амплитуду вибраций посредством регулировочных болтов.
Заключение
Тротуарная плитка, изготавливаемая методом вибропрессования, отличается не только по технологии производственных процессов, но и основными техническими параметрами.
Такой строительно-отделочный материал выгодно отличается очень высокими эксплуатационными характеристиками, легко переносит практически любые неблагоприятные механические и климатические внешние воздействия.
Видео на тему
masterlandshafta.ru
Вибростол для тротуарной плитки своими руками, чертежи, видео руководство
Осуществление идеи о собственном производстве искусственного камня или тротуарной плитки начинают с определения перечня необходимого оборудования. Самым дорогостоящим приобретением будет электрический вибростол. Изготовление своими руками позволит сократить финансовые вложения в собственный бизнес.
Оглавление:
- Преимущества вибростола
- Технология сборки
- Советы и рекомендации
Описание конструкции
Это изделие для мощения пешеходных дорожек, площадок в парках и вокруг домов. Материалом служат:
- Бетон.
- Резина.
- Природный камень.
- Клинкерная глина.
- Дерево.
Самый доступный способ производства тротуарной плитки – изготовление из бетона методом вибролитья или вибропрессования. В том и другом случае формы с раствором устанавливаются на вибростол с электродвигателем – устройство, осуществляющее колебательные движения. Вибрация обеспечивает:
- прочность;
- удаление пузырьков воздуха из смеси, уплотнение;
- однородность.
Главные элементы:
- Основание – конструкция для крепежа столешницы.
- Вибратор – электродвигатель с эксцентриком, закрепленным на вал.
- Столешница – рама с листовым материалом (металл, ДСП, ДВП).
- Амортизаторы – узел, предназначенный передачи вибрации.
Как самому собрать вибростол?
Воплощение идеи начинается с создания схем, чертежей с указанием размеров.
1. Изготовление основания.
В качестве опоры применяются:
- Сварная конструкция из металлического профиля.
- Автомобильные покрышки.
- Стиральная машина.
Станина из металла – сваривается из уголка, квадратной (прямоугольной) трубы, швеллера. Оптимальный размер сечения: 50-80 мм, зависит от габаритов стола, общей массы форм, заполненных смесью.

Высоту станины подбирают, учитывая:
- Рост оператора.
- Установка стола на фундамент, постамент.
- Вкапывание в грунт.
Ширина и длина основания равна или незначительно, в меньшую сторону, отличается от габаритов столешницы. Размеры делают в соответствии с параметрами, количеством в одной партии литьевых форм для тротуарной плитки.
2. Выбор вибрационного устройства.
Делать мотор с эксцентриком самостоятельно или приобрести готовое изделие – решать мастеру. Изготовление из двигателя, завалявшегося в кладовке, гараже, подойдет для разового выпуска незначительной партии тротуарной плитки. Производство в промышленных масштабах потребует применения более надежных электромеханических приборов с возможностью регулировки частоты колебаний.

Модификация вибратора подбирается по массе, дисперсности, количеству форм партии:
| Вибратор | Тип | Частота колебаний, Гц (об/мин) |
| ЭВ-320 (Е) | площадочный | 50 (3000) |
| ИВ-98, -99 | ||
| ИВ-101 | поверхностный | |
| ИВ-0,5(2,5)-25, ЭВ-320-4 | площадочный | 25 (1500) |
| ИВ-0.5-16 | 16.7 (1000) |
Способы крепления вибрационного устройства:
- К столешнице вибростола.
- К дополнительной горизонтальной плоскости из листа металла или швеллера.

Крепить удобнее выполнять на приваренный швеллер или прямоугольную трубу. Приобретая вибратор, внимательно прочитайте инструкцию. Выполнение требований по соблюдению техники безопасности при эксплуатации сократит вероятность возникновения непредвиденных, опасных ситуаций для жизни оператора.
3. Как сделать столешницу?
Горизонтальная плоскость для размещения форм с бетонной смесью может быть выполнена из прочного листового материала:
- Чаще всего применяют металл толщиной 6-10 мм.
- Использование фанеры, ДСП, ОСБ сэкономит денежные средства, но сократит срок эксплуатации.
Бортик по краю предотвратит сползание, падение форм. Конструкция имеет различия в зависимости от вида амортизации. Столешница на чертеже №2 предусматривает дополнительную раму для крепления ремней, цепей.

4. Установка амортизаторов.
Гашение вибрации необходимо для снижения передачи колебаний от столешницы к основанию, увеличения амплитуды. Виды амортизаторов:
- Стальные пружины автомобильные новые, бывшие в употреблении. Устанавливаются на кусок трубы, пруток, приваренный к станине. Количество ‒ от 4 штук, по углам. Стаканы, закрепленные к столешнице, надеваются на пружину, жесткая фиксация отсутствует (схема №1).
- Резиновые ‒ втулки, проставки. Крепеж, как в предыдущем варианте.
- Подвесы рамы со столешницей ‒ ремень, цепь, металлический трос, пружина на растяжение. Целесообразно применять для столов с горизонтальными (круговыми) колебаниями (чертеж №2).
Отсутствие жесткого крепления объясняется необходимостью периодически менять изношенные, деформированные амортизаторы. Вес столешницы не допускает нарушения соединения со станиной.
5. Технология сборки элементов конструкции.
Самодельный вибростол можно отнести к производственному оборудованию. Требования по его сборке и эксплуатации не зависят от места применения: в домашних условиях, на заводе. В целях обеспечения безопасности оператора выполните заземление.

Сборка по шагам:
- Подготовка площадки под стол. Соблюдение горизонтальности поверхности обязательно.
- Установка станины выполняется мобильно или стационарно. Выбор варианта зависит от необходимости перемещения в процессе эксплуатации. Жесткий крепеж важен для малогабаритных вариантов с малой массой.
- Производят крепление двигателя и вибратора к столешнице.
- Пружины (резиновые втулки) одевают на трубы (пруток), приваренные к станине.
- Столешница укладывается на основание. Амортизаторы располагают внутри стаканов на раме.
- Выполняется выравнивание поверхности по горизонтали с помощью уровня. Это обеспечит равномерное распределение бетона в форме, правильную геометрию плитке.
- Проводят испытания, регулировку амплитуды колебаний.
Советы
Существуют нюансы, которые важно учесть:
1. Высота стола должна соответствовать не только росту человека, но и способу заполнения форм раствором бетона. Учитывайте большую массу емкости для ручного разлива смеси.
2. Большие габариты оборудования могут потребовать установки 2 вибраторов. В этом случае важно избегать возникновения резонанса.

3. Определение амплитуды колебаний:
- Закрепить карандаш на поверхности, грифель должен выступать за кромку стола.
- Включить двигатель.
- Поднести лист бумаги, закрепленный к жесткому основанию. След от карандаша позволит определить амплитуду.
4. Металлические детали для исключения коррозии покрывают грунтом, краской или лаком.
5. До покупки выполните анализ стоимости изделия, рассмотрите варианты замены дорогостоящих элементов на более дешевые:
- Лист металла заменить фанерой или деталью от старой мебели.
- Пружины приобрести на автомобильных «развалах».
- Вибратор заменить двигателем от стиральной машины, использовать перфоратор или ударную дрель.
- Б/у покрышки могут сыграть роль станины.
- Вместо стола использовать старую стиральную машину в режиме отжима, с покрывалом в баке.
6. Вибростол при незначительной модернизации может использоваться в качестве оборудования для просеивания сыпучих продуктов (песок, цемент).
7. Не стоит экономить при изготовлении плитки на продажу. Чем выше культура производства, тем лучше качество изделия, ниже себестоимость. Возможно, имеет смысл приобрести готовое оборудование с точной регулировкой технологии процесса.
cemgid.ru
Чертежи вибростола для тротуарной плитки разных моделей
Одной из технологий изготовления тротуарной плитки является вибролитье. Несмотря на трудоемкость и низкую производительность этой технологии, она имеет важные особенности, которые делают ее незаменимой в некоторых случаях. Во-первых, возможность получения тротуарной плитки с гладкой и даже глянцевой поверхностью. Вибропрессованием этого добиться невозможно. Методом забивки невозможно изготовить заборные секции большой площади с армирующим каркасом.
Изготовлением тротуарной плитки многие мастера занимаются самостоятельно. Покупать заводские станки дорого, а вибростол изготовить самому намного проще, чем своими руками сконструировать работоспособный станок для вибропрессования.
Виды конструкции
Конструкция вибростола представляет собой раму с подвижным столом. Стол имеет электропривод с эксцентриком, за счет чего он совершает колебательные движения высокой частоты. Стол является рабочей поверхностью, на которую укладываются формы, заполненные бетонной смесью. За счет колебаний бетон уплотняется, пузырьки воздуха удаляются, и плитка приобретает необходимую прочность.
Чертежи для самостоятельного изготовления можно найти в интернете. Все модели вибростола делятся на разные виды в зависимости от типа вибрации, типа электропривода, количества двигателей, размеров рабочего стола, и еще от массы других конструктивных решений.
Типы вибрации
Существует три типа вибрации, которые реализуются разными конструктивными решениями:
Модели, в которых вибрация стола происходит в вертикальной плоскости. Технически это достигается двумя способами. Первый – использование эксцентрических электродвигателей, жестко прикрученных к нижней поверхности стола. В этой конструкции стол устанавливается на пружины. Второй вариант вибростола наиболее распространенный – это конструкция с обычным электродвигателем, закрепленным на нижней опорной тумбе. К столу снизу прикручен вал с регулируемым эксцентриком (обычно в виде наваренных шпилек с резьбой для накручивания грузика), на который при помощи ремня передается вращение от двигателя.
Важно! Несмотря на более сложную конструкцию стола с ременным механизмом передачи, его сооружают чаще всего из-за возможности использовать обычные электродвигатели.

Виброплощадка с ременной передачей
Конструкция вибростола с ременной передачей:
- Рамочная тумба с посадочным местом для двигателя и пружинами по углам.
- Металлический стол. Он может быть с бортиками или без них.
- Электродвигатель.
- Эксцентрик с ремнем.

Вибростол горизонтального колебания на подвесах
Вибростол с горизонтальным направлением вибрации. В таких конструкциях двигатель закреплен к столешнице в вертикальном положении, и вращающийся эксцентрик будет придавать столешнице круговые колебательные движения в горизонтальной плоскости. Особенностью таких станков является ременной или цепной подвес столешницы на нижнюю опорную тумбу.
Столешница
От размера столешницы зависят производственные возможности вибростола, необходимая мощность двигателя и жесткость пружин:
- Столы стандартных размеров (1200х1400), позволяющие выполнять изготовление тротуарной плитки, бордюров.
- Универсальные площадки (800х2200). Позволяют выполнять все виды работ, в том числе и изготавливать заборные секции.
- Маленькие (600х600). Такие конструкции изготавливают для производства тротуарной плитки для собственных нужд.
Столешницы всегда оснащаются бортиками. Они удерживают формы на столе во время работы станка, не давая им слетать на пол. Бортики могут быть стационарными, приваренными с двух или трех сторон к площадке, а могут быть регулированными. В этом случае к пластинам привариваются гладкие шпильки, а на опорной раме – соответствующие муфты с зажимом. Бортики вставляются в эти муфты, и при необходимости их можно снять или подрегулировать высоту выступа.
Важно! Как минимум с одной стороны площадки бортик не приваривается. Это необходимо для того, чтобы было удобно чистить поверхность стола.
Поскольку принудительное усилие вибрация в такой конструкции высокое (до 5 килоньютонов), столешница должна быть мощной. Ее изготавливают из толстого цельнолистового металла (минимум 10 мм).
Амортизаторы
В зависимости от типа конструкции, площадка может монтироваться такими способами:
- На пружины. Самый простой вариант. Рессорные пружины подбирают в зависимости от массы столешницы и мощности двигателя. Способов монтажа столешни на пружины три: пружины в стакане, пружины на стержнях, приваренные пружины. Последний способ годится только в легких маломощных конструкциях. Самый оптимальный – пружины в стаканах, а самый простой – на стержнях.

Пружины
- Цепи, подвижные скобы или промышленные резиновые ремни. Используются в конструкциях с горизонтальным колебанием. Использование цепей и скоб – метод надежный и простой, то при этом станок в процессе работы будет ужасно греметь. Резиновые ремни бесшумные.
- Резиновые подушки. Используются редко, но они позволяют получить мягкие и равномерные колебания.
Двигатели
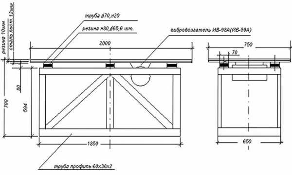
Для монтажа конструкции с креплением мотора непосредственно к столешнице используют только заводские площадочные вибраторы. В продаже имеются двигатели для подключения к бытовой сети и трехфазные модели. Из всех моделей для вибростола подойдут модели ИВ-98 или ИВ-99 (для сети в 220 в модель ИВ-99 Е) с номинальной мощностью 0,25 кВт. В них предусмотрено шесть положений эксцентрика, за счет чего можно регулировать вынуждающую силу вибрации в широком диапазоне – от 2,6 до 5 килоньютонов. Регулировка выполняется быстро: отвинчивается кожух, и деболансы переставляются в нужное положение.
Эти механизмы выносливые, они выдерживают 900 часов работы в режиме краткосрочных пусков (по 5-6 минут работы).
Важно! Если установить мотор от стиральной машины, он будет справляться с работой, но недолго. Он выдержит максимум до 30 циклов включения.
Если необходимо организовать высокотехнологичное производство, в котором необходимо создать направленные колебания (бетон род мрамор), используют модель ИВ-101. Также для получения направленного колебания устанавливают два вибратора со встречным вращением.

Вибратор и схемы расположения
При использовании двух вибраторов, необходимо синхронизировать их работу так, чтобы не возникало резонансных колебаний.
Каркас для стола с ременной передачей
В этой конструкции основная сложность заключается в соосном расположении подающего шкива двигателя и шкива эксцентрика, приваренного к нижней части стола. Для этого в креплении для двигателя на опорной раме необходимо предусмотреть возможность регулирования его положения.
Вначале вырезают прямоугольную столешню, к которой по центру приваривают крепежные уголки для монтажа эксцентрика. Важно, чтобы вал эксцентрика после монтажа располагался параллельно длинной стороне столешни.
Каркас представляет собой четыре стойки с двумя ярусами обвязки.

Каркас опорной рамы
Для изготовления каркаса тумбы используют уголок или трубу. С уголком работать проще и быстрее. Вертикальные стойки делают стандартного размера (80 см), при котором высота стола будет удобной для работы.
Между нижними уголками обвязки длинной стороны наваривают два уголка, к которым будет крепиться двигатель. Место расположения крепежных уголков определяют измерением. Вначале определяют, в каком месте должен находиться шкив двигателя в соответствии с установленным эксцентриком. Потом замеряют расстояние между шкивом двигателя и крепежными отверстиями. Для точной регулировки положения двигателя в уголках делают длинные пазы.
Видео вибростола своими руками:
Каждый хозяин частного дома, который самостоятельно занимается его строительством и облагораживанием прилегающей территории при помощи тротуарной плитки, имеет в хозяйстве вибростол, изготовленный собственноручно
Вконтакте
Google+
trotuaplitka.ru
Изготовление тротуарной плитки без вибростола

Здравствуйте, в этой статье хотел бы поделиться своим небольшим опытом в области литья тротуарной плитки, без применения вибростола.
По большому счету, вибрация необходима для ускорения процесса производства в больших масштабах. На производстве необходима скорость изготовления, которую и задает вибростол. Под действием вибрации, даже самый густой раствор, моментально растекается по форме, то есть процесс формовки идет практически непрерывно.
Но это все оставим производителям гигантам, а нам много не надо, к примеру на даче дорожки заплатить, или возле частного дома сделать красивые дорожки. Для малых объемов, я вас уверяю, вибростол вам не нужен, я отлично справляюсь и без него, потому что у нас на даче нет электричества))).
Вибрацию мне заменяет киянка, я просто несколько раз ударяю по краям формы, и растворчик быстро распределяется по матрице.
Раствор тоже довольно простой, 1 часть цемента , 2 песка , воду добавляют до приобретения полужидкого раствора.
И так теперь рассмотрим какие инструменты мне понадобились и как я производил процесс заливки форм.
Материалы: форма для тротуарной плитки, цемент, песок, вода, смазка.
Инструменты: шуруповерт, киянка, мастерок, ведро для замеса раствора.
Сначала я подготовил весь нужный мне инструмент, и остальные составляющие.
И далее готовлю раствор по выше указанной пропорции, 1 к 2.
Как видно на фото раствор мешу шурупа-вертом с насадкой, очень удобно кстати.
Затем подготавливаю форму под заливку, брызгаю из боллончика смазкой-это нужно для того чтобы плитка после застывания хорошо выходила.


Ну и в подготовленную форму закладываю раствор.

Затем разравнивание мастерком.

По краям формы постукивая киянкой, выпускаю пузырьки воздуха, и утресаю раствор.

И дальше в заданном темпе))). Затем залитые формы ставлю для сушки на ровную поверхность, для экономии места, матрицы савлю друг на друга, перекладывая дощечками.


По истечении 24 часов достаю готовую плитку из формы.

Вот и все тротуарная плитка готова, конечно ей еще нужно немного полежать, и окрепнуть. Нечего сложного в этом нет, все предельно просто, и понятно. При данном виде заливки не расходуется электроэнергия, что удешевляет и без того конечный процесс производства. Так что дерзайте мои друзья))).
Доставка новых самоделок на почтуПолучайте на почту подборку новых самоделок. Никакого спама, только полезные идеи!
*Заполняя форму вы соглашаетесь на обработку персональных данных
usamodelkina.ru
