Водоснабжение на даче из колодца – Как сделать водопровод на даче из колодца своими руками
Как сделать водопровод на даче из колодца
Современный человек, привыкший к благам цивилизации, с трудом переносит их отсутствие, поэтому стремится обеспечить свой дачный домик водопроводом. Однако это не так просто сделать в отсутствии необходимых инженерных коммуникаций. Впрочем, даже в таких условиях подвести воду можно несколькими способами, один из них – водопровод на даче из колодца.
Почему именно колодец?
Основой автономной водопроводной системы может стать скважина или колодец. Многие предпочитают именно второй вариант. И это легко объяснить, ведь такое устройство имеет множество преимуществ:
- Небольшие денежные затраты на обустройство.
- Сооружение прослужит намного дольше скважины любого типа.
- Водоносные каналы колодца реже заиливаются. Даже если это произошло, прочистить их можно самостоятельно, воспользовавшись лопатой и ведром.
- Водопровод такого типа более удобен в эксплуатации и обслуживании. Так же гораздо более прост процесс консервации системы.
Замену электромагнитного клапана или насоса можно осуществлять без демонтажа конструкции.

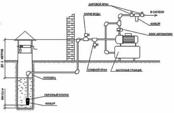
Схема устройства дачного водопровода из колодца
Основные компоненты и устройство системы
Любая схема водопровода из колодца включает в себя несколько основных элементов:
Подбор насоса
Прибор может быть как погружным, так и поверхностным. Специалисты рекомендуют выбирать погружные устройства. Они имеют высокую производительность, могут работать на больших глубинах, отличаются экономичностью и низким уровнем шума. Марку устройства и его мощность подбирают в зависимости от глубины, на которой оно будет работать.
Гидроаккумулятор
Оборудование необходимо для защиты системы от гидроудара и стабилизации давления в водопроводе. Гидроаккумулирующая емкость с мембраной накапливает воду, поэтому даже в случае перебоев с электроэнергией ее подача какое-то время будет продолжаться.
Объем бака может быть разным. При его выборе нужно учитывать, что количество воды, которое будет находиться в емкости, гораздо меньше номинального объема устройства.
Сливной клапан
Конструкция устанавливается в самую нижнюю точку системы, то есть сразу после насоса. Используется для слива воды из системы при консервации. В случае если колодец имеет глубину не больше 8 м и находится недалеко от жилья, вместо сливного клапана можно установить другое устройство. В доме монтируется обратный клапан, а непосредственно перед ним – обходная система с краном. Как только кран открывается, уходит вакуум, созданный обратным клапаном, и вся вода из системы сливается.

Для водопровода из колодца можно выбрать погружной или поверхностный насос
Реле давления
Устанавливается рядом с гидроаккамулятором для поддержания оптимальных значений давления в сооружении. Реле уменьшает или увеличивает давление в трубопроводе в то время как насос обеспечивает подачу воды в гидроаккумуляторную емкость. Как только достигается максимальный показатель давления, устройство отключает насос. Когда величина уменьшается до минимума, реле замыкает контакты и начинается закачка воды.
Кроме этих устройств понадобятся водопроводные трубы. Профессионалы рекомендуют использовать детали из полипропилена, которые отличается прочностью, надежностью, экологичностью, простотой монтажа и доступной ценой. Так же может понадобиться водонагревательный кабель, который не даст перемерзать трубам в холодное время года. Если количество воды в колодце невелико, рекомендуется установить реле сухого хода, которое защитит насос в случае резкого понижения уровня воды.
Еще один нюанс: водопровод от колодца в дом в обязательном порядке устанавливается под уклоном, который направлен в сторону сливного клапана. Таким образом удается без проблем полностью сливать воду из сооружения. Внутри дома вся разводка так же обустраивается с обязательным уклоном в сторону подающей трубы, которая становится сливной в процессе консервации системы.
Зимний и летний вариант водопровода
Система в зависимости от потребностей владельцев может быть смонтирована:
- В летнем варианте, когда предполагается функционирование устройства только в теплое время.
- Зимнее сооружение, которое способно работать круглогодично, даже если в холода на даче не будут жить постоянно, а только приезжать на короткое время.
Оба варианта считаются условно автономными, поскольку зависят от наличия электроэнергии.
Летняя система
Устройство летнего водопровода из колодца может быть выполнено двумя способами: разборным или постоянным. Второй вариант представляет собой проложенный в земле обычный трубопровод с выходящими на поверхность водоразборными кранами. Стоит отметить, что глубина закладки труб в данном случае невелика, они буквально присыпаны землей. Конструкция очень удобна тем, что точки водоразбора можно организовать в любом нужном месте.
Существенным недостатком системы считается необходимость укладывать трубы с уклоном к магистрали, туда, где находится самая низкая точка системы с краном для слива воды. Если этим правилом пренебречь, в трубах останется вода, которая при понижении температуры до отрицательных значений попросту разорвет их.

Летний разборный водопровод прокладывается прямо по поверхности
Разборная конструкция отличается предельной простотой установки. Она устанавливается в теплое время года и перед наступлением холодов убирается на хранение. Сооружение представляет собой трубы или шланги, проложенные поверх земли в нужном направлении. Детали должны быть достаточно прочными и по возможности армированными. Чтобы сделать конструкцию максимально надежной устанавливаются соединительные переходники из пластмассы или оцинкованной стали.
Зимнее сооружение
Зимний водопровод из колодца, который также можно обустроить своими руками, выполняется только по постоянной схеме. Для его функционирования понадобится утеплить всю систему, поскольку она будет работать даже при отрицательных температурах. Начать следует с участка подключения насоса к источнику напряжения. Можно совместить кабель и водопровод внутри общего кожуха из пластиковой канализационной трубы большого диаметра, который защитит детали от замерзания и механических повреждений.
Водопроводные трубы в этом случае укладываются ниже уровня промерзания грунта, что гарантирует их сохранность и работоспособность. Однако в силу различных причин это не всегда бывает выполнимо. В этом случае можно поступить следующим образом. Копаем траншею глубиной 60 см, укладываем трубы и засыпаем их утеплителем слоем 30 см. Для этих целей подойдет шлак, крошка пенопласта или керамзит. Сверху укладываем грунт. Так же на трубопровод может быть установлен водонагревательный кабель, эффективное, но достаточно дорогое в эксплуатации устройство.

Трубы для зимнего варианта водопровода укладывают ниже уровня промерзания грунта
Для подключения насоса к трубопроводу обустраиваем так называемый приямок. Его размеры в среднем составляют 75х75 см, глубина – 1 метр. Стенки сооружения укрепляются кирпичом или досками, дно утрамбовывается, засыпается щебнем или заливается бетоном. Трубопровод выводится внутрь конструкции, где и подключается к насосу. Для защиты от замерзания приямок хорошо утепляется.
Надо подчеркнуть, что зимний вариант системы обязательно оснащается системой консервации. В холодное время года перед каждым отъездом жильцов с дачи из трубопровода сливается вода, что позволяет сохранить сооружение в работоспособном состоянии. По приезду систему легко будет запустить снова.
Автономное водоснабжение позволяет обеспечивать дачный дом водой даже при отсутствии подведенных централизованных коммуникаций. Водопровод, проведенный из колодца, отличается практичностью, эффективностью и относительной дешевизной. Не важно, летний или зимний вариант системы будет установлен, при грамотном обустройстве сооружения дачный участок будет обеспечен бесперебойной подачей воды.
aqua-rmnt.com
Как сделать водопровод на даче из колодца
Когда дачный участок использовался исключительно для садово-огородных работ, можно было мириться с тем, что воду или приходится носить из источника, или подаётся она централизовано в дни, определенные правлением садоводческого товарищества. Сегодня на участках возводятся коттеджи, владельцы которых проводят за городом не только лето, но и зиму. При таких обстоятельствах водопровод на даче из колодца или скважины становится насущной потребностью. Вода в дом должна поступать круглосуточно и быть чистой: от этого зависит здоровье всех членов семьи.
Сам колодец и составляет основное преимущество при выборе источника водоснабжения. Если на участке уже есть это сооружение, его непременно нужно использовать. Если источник ещё предстоит сделать, то важным фактором является глубина залегания воды в конкретной местности.
О том, как найти воду для колодца, подробнее можно узнать из материала: https://diz-cafe.com/voda/kak-najti-vodu-dlya-kolodca.html

Колодец – замечательный источник воды: с ним вода на участке будет всегда, если есть ведро, а для работы скважины наличие электричества является непременным условием
Если глубина залегания питьевой воды позволяет построить колодец, его преимущества становятся очевидными:
- При наличии колодца не стоит беспокоиться, что при отключении электроэнергии воды на участке не будет. Если вода есть в нем самом, то извлечь её оттуда несложно и вручную.
- Колодезная вода, как правило, содержит меньше нежелательных примесей железа, которые зачастую присутствуют в скважинной. И дело здесь не в обсадной трубе, которая может быть и из пластика, а в качестве водных пластов. Конечно, и ту, и другую воду лучше подвергать очистке фильтрами, чтобы примеси не нанесли вред здоровью.
- Водоносные каналы могут заилиться или запесочиться. Если такая неприятность случается с колодцем, очистить его владелец сможет самостоятельно: для этого необходимы только ведро и лопата. Что касается скважины, то первоначально придётся выяснять причину, по которой вода перестала поступать, потом нужно будет искать специалистов, которые смогут эту причину устранить.
- При эксплуатации колодца удобнее использовать погружной насос. Здесь-то он не застрянет. Произвести его ремонт или смену электромагнитного клапана, имея дачный водопровод из колодца, гораздо проще, чем аналогичные работы при источнике в виде скважины. Электромагнитный клапан отсоединяется, после чего насос можно поднять на поверхность при помощи троса. Для таких же работ при скважинном варианте нужно демонтировать герметичный оголовок, что не всякому под силу.
- Труба в скважине имеет небольшой объём, по этой причине вода, в процессе консервации, уходит и в скважину, и в сеть канализации. При использовании колодца, вода попадает только в него. И соорудить, и законсервировать водопровод, идущий от колодца в дом, проще.
В ряде регионов на бурение скважины придется получить специальное разрешение, а всевозможные согласовательные процедуры существенно усложняют процесс выполнения работ.

В зависимости от того, в какой местности находится колодец, его водоносные каналы могут заиливаться или запесочиться, тогда его легко можно очистить

Колодец отлично вписывается в любой ландшафт и становится декоративным элементом, но при этом сохраняет свою неизменную функциональность
Косвенное, но несомненное достоинство любого колодца – его внешний вид. При желании, можно обыграть его наличие, сделав его заметным и привлекательным элементом, способным стать изюминкой дизайна ландшафтного участка. Об этом читайте: https://diz-cafe.com/voda/oformlenie-kolodca-na-dache.html
Задумываясь о том, как сделать водопровод из колодца, дачники-умельцы ждут сухих теплых дней, когда можно будет приступить к практическому воплощению собственных идей.
Разработка схемы водоснабжения
Чтобы не оказаться ситуации, когда результат не соответствует тому, что было задумано, необходимо все собственные задумки воплотить в детальную схему водопровода из колодца. В этой схеме изначально должны быть учтены все составляющие элементы: насос, трубы, гидроаккумулятор, реле, фильтры, бойлер, коллекторы и точки потребления воды.
Также полезен будет материал о видах фильтров для очистки воды: https://diz-cafe.com/voda/filtr-ochistki-vody-dlya-dachi.html
Все элементы будущего сооружения должны быть обозначены, а пути прокладки труб по дому размечены. Хорошо, если схема будет выполнена с соблюдением определенного масштаба. Тогда сразу станут понятно, сколько и какого материала и комплектующих необходимо закупить.

Коллекторная схема подключения водоснабжения позволяет сохранить оптимальное давление в трубах, независимо от того сколько точек водозабора будут эксплуатироваться одновременно
Трубы в доме можно проложить двумя способами, так, чтобы точки потребления оказались подключены:
- Последовательно. Такой вариант устроит владельцев небольшого дома, в котором постоянно поживают 1-2 человека. Вода проходит по всему дому через основной трубопровод. Напротив точек потребления монтируется тройник с отводом. Если несколько потребителей захотят воспользоваться водой одновременно, из-за низкого давления в сети сделать это будет проблематично.
- Коллекторным способом. К каждой точке потребления от коллектора отводится собственная труба. Каждая точка будет получать практически равное давление воды. Потери, которые будут складываться ввиду удаленности от насосной станции, неизбежны, но они не столь существенны.
Второй вариант обойдется дороже из-за большего числа труб, необходимого для его реализации, но результат стоит и усилий, и затрат. Выбираем коллекторную схему, о которой далее и пойдет речь.
Монтаж дачного водопровода
Для устройства водопровода из колодца чаще всего выбирают погружной насос. Выбор в пользу насоса этого вида делают из-за того, что его работа протекает без шума. Насос помещен под воду, которая является естественным шумоизолятором, и звук работы оборудования на поверхность не проникает.

Погружной насос должен находиться в колодце на расстоянии примерно 0,8м от его дна, работает он абсолютно бесшумно, потому что располагается под водой
При применении погружного насоса проще происходит и процедура консервации, если в ней возникнет потребность. Вода из системы полностью вытекает после того, как открывается специальный сливной электромагнитный клапан. Если в системе водопровода используется поверхностный насос, приходится сливать воду из самого корпуса насоса. При последующем запуске поверхностный насос снова нужно заполнять водой.
В выборе наиболее подходящего насоса поможет обзор видов насосных конструкций: https://diz-cafe.com/tech/nasos-dlya-vody-dlya-doma.html
Погружной насос располагается не менее чем в 0,8 метра от дна сооружения. Сливной клапан системы должен находиться на высоте более 3-х метров, считая от поверхности земли. Чтобы через этот клапан вода из системы полностью могла быть спущена, подземная часть трубопровода также прокладывается с наклоном к источнику.
Для прокладки труб следует выкопать траншеи. Глубина траншей полностью зависит от того, как предполагается эксплуатировать дачный водопровод. Если вода необходима только в теплый период с поздней весны до ранней осени, то достаточно будет траншей в 1 метр глубиной.
Если же эксплуатация водопровода не будет прекращена и в зимний период, то прокладывать его следует на глубине, которая была бы ниже уровня промерзания почвы. Для средней полосы глубина траншеи при входе в источник воды должна примерно составить 2 метра от поверхности земли.
При постройке нового дома трубы легче проложить под фундаментом. Если такая возможность отсутствует, и доступа в подпол нет, можно использовать и поверхностный метод прокладки. В обоих случаях можно сделать так, что эксплуатация водопровода будет возможна и в период значительных холодов. В тот участок трубы, который располагается в зоне холода, помещается нагревательный кабель. В этой части трубопровода будет поддерживаться положительная температура воды, что не позволит системе замораживаться.
При монтаже дачной системы снабжения водой в доме необходимо создавать уклон в сторону подающей трубы, потому что в процессе консервации она же будет сливной. В состав схемы водопровода, находящегося в доме, входит гидроаккумулятор, который играет стабилизирующую роль в работе системы. Благодаря нему, компенсируются перепады, которые формируются при пуске и остановке насоса.

Легенда схемы: 1-кабель подогрева; 2,9,10,18,19,21,22,25,26 — запорный вентиль; 3,11,23,24 — слив; 4-грязевик; 5-реле давления; 6-гидроаккумулятор;7 -реле сухого хода; 8 -фильтры угольные; 12-нагреватель; 15-фильтр обезжиривания; 13,14,16,17,20,27 — точки потребления; 28-клапан
В системе должно поддерживаться постоянное давление в пределах 2,5-4 атм. За его поддержание отвечает реле давления, которое необходимо включать в систему водоснабжения. Функцию своеобразного предохранителя выполняет другое реле – сухого хода. Оно используется на тот случай, если воды в колодце не слишком много. При падении уровня воды до отметки, когда продолжение нормальной работы системы невозможно, это реле отключает насос, не допуская аварийной ситуации.
После гидроаккумулятора можно предусмотреть тройник, снабженный запорным механизмом, который разделит воду по виду дальнейшего использования на техническую и питьевую. Последняя подлежит очистке в системе фильтров.
Также будет полезен материал об особенностях устройства водоснабжения загородного дома из колодца: https://diz-cafe.com/voda/vodosnabzheniya-zagorodnogo-doma-iz-kolodca.html
Ещё один тройник разделит поток на холодную и горячую воду. Труба для холодной воды подключается к коллектору с запорными кранами на линиях потребления. Труба для горячего водоснабжения подводит воду к нагревателю, после чего она будет распределена через коллектор по дому.

Водопровод в частном доме – доступная роскошь, которую могут себе позволить многие, если проявят смекалку, терпение, трудолюбие и работоспособность
Водопровод в доме значительно облегчает жизнь дачникам в теплый период, а в холодные месяцы его наличие превращается в насущную потребность.
diz-cafe.com
Водоснабжение дачи из колодца, водоснабжение из колодца на даче, дачное водоснабжение из колодца
Работы по монтажу систем водоснабжения выполненные специалистами нашей компании >>>
В отличие от любой малозаглубленной скважины, колодец при нерегулярном использовании не заиливается, и даже если такое случится почистить его можно собственными силами.
Это основное и очень важное преимущество питьевого колодца перед малозаглубленной скважиной.
Водоснабжение на даче, в частном доме, может быть запитатно от глубокой скважины пробуренной на известняк. Но так как на больших глубинах в большинстве случаев много растворенного железа, возникает необходимость в установке группы фильтров очистки, использование которых неудобно для кратковременного использования, в том числе в частных домах, на дачах. На зимний период воду из них сливать достаточно проблематично, автоматическим путем сделать это к сожалению невозможно.
Чем удобно водоснабжение дачи, частного дома из колодца?
Водоснабжение частного дома, дачи из колодца выполненное нашей компанией очень простое в эксплуатации, все манипуляции по включению, отключению и сливу воды, легко может сделать даже не подготовленный пользователь, в том числе не сведущие в технике женщины.
Данная система загородного водоснабжения полностью автоматическая и работает абсолютно беззвучно!
Слив воды из всей водопроводной системы, включающей емкостный обогреватель и гидроаккумулятор, фильтр производится очень просто — поворотом 1 — 2 вентилей и нажатием клавиши обычного выключателя.
В системе автономного водоснабжения с применением скважины сливать воду приходиться не только в скважинную трубу, но и в канализационную сеть. Это усложняет процесс консервации добавлением еще одного вентеля, также водоснабжение из скважины сложнее в обслуживании. Сливной клапан и насос в такой системе распологается в скважинной трубе, а так как ее окончанием является скважинный оголовок, то при поломке добраться до них достаточно сложно.
В нашем исполнении, водоснабжение на даче из колодца всегда оснащется системой полного слива воды на зиму или во время зимы!
Пример одной из смонтированных нами систем водоснабжения из колодца на даче
Более подробно об этой системе >>>
Горячее водоснабжение на даче, в частном доме
Загородное водоснабжение частного дома, дачи из колодца обязательно включает в себя и горячее водоснабжение.
Источником горячей воды на даче как правило являются емкостные водонагреватели различного объема, как правило от 50 до 100 литров, в зависимости от количества и значимости точек разбора воды. Как правило это электрические водонагреватели, но в случаях когда на даче есть газовое отопление, возможна установка водонагревателей косвенного нагрева — вода в них нагревается от теплоносителя системы отопления.
В системах водоснабжения мы применяем гидроаккумуляторы
Водоснабжение на даче из колодца также оборудовается гидроаккумулятором. Данные системы достаточно экономичные, удобные, простые и поэтому крайне надежные. В них отсутствует какая либо электроника, а только лишь устанавливается автоматика поддерживающая стабильное давление в системе. На дачах как правило мы устанавливаем гидроаккумуляторы объемом от 50 до 80 литров, этого объема с лихвой хватает для поддержания стабильного давления при разборе воды 4-5 точками.
Мы выполняем подземную прокладку водопровода
Водоснабжение дачного дома из колодца включает в себя подземный водопровод проходящий от колодца к дому.
Как и вся водопроводная система он прокладывается под наклоном в сторону колодца, на глубине от 1.3 до 2 метров. Рытье траншеи осуществляется вручную, одновременно с монтажом части системы находящейся внутри дома. После выравнивания основания траншеи прокладывается подающий трубопровод. Для подземной прокладки мы применяем трубы ПНД (полиэтилен низкого давления) диаметром 32 мм.
В колодец, устанавливается погружной насос и специальный сливной клапан, прокладываются электрические кабели, после чего траншея закапывается. Засыпка траншеи происходит поэтапно с тромбованием каждого слоя, из оставшегося грунта по длине всей траншеи делается насыпь в виде аккуратного холмика.
Все выше перечисленные работы выполняются нашими специалистами аккуратно и в максимально короткое время!
Установка водонагревательного кабеля по новым технологиям!
В случаях, когда Вы собираетесь находиться на даче не только летом, но и зимой возможна установка водонагревательного кабеля.
Водонагревательный кабель необходим для прогрева воды в участке трубы находящейся подполом или в неотапливаемом подвале.
Устанавливается он через специальную муфту непосредственно в трубу, тем самым в отличии от старых технологий, когда кабель прекреплялся на поверхность трубы, он сразу же прогревает воду, а не трубу.
Благодаря этому увеличивается его эффективность и появляется возможность пользоваться системой водоснабжения даже при очень сильных морозах!
Материал используемый нами — полипропилен!
Материал из которого мы изготавливаем трубопроводные системы — полипропилен.
Все соединения в водопроводной системе смонтированной с применением данного материала соединяются путем сварки. Происходит это следующем образом: — специальным паяльником одновременно нагревается до температуры 300 гр., поверхность трубы и внутренняя часть соединительного фитинга, после чего одно вставляется в другое, тем самым создавая монолитное соединение.
Соединения полипропиленового водопровода абсолютно герметичны поэтому его можно прокладывать не только открытым, но и скрытым способом — под обшивку стен в деревянных домах, под штукатурку в кирпичных.
Комбинированное водоснабжение на даче из колодца
Водоснабжение дачи, частного дома из колодца, также может быть комбинированным!
Например у Вас на дачном участке есть не только дом но и баня и летняя кухня, в таком случае оно Вам просто необходимо!
Мы осуществляем монтаж систем загородного водоснабжения в которых водопроводная система одного строения может работать независимо от системы другого или когда одна является основной, а другая подключаемой. Узнать больше >>>
У наших специалистов, монтаж системы водоснабжения на даче из колодца, как правило не превышает 1 — 2 дней!
Некоторые примеры смонтированных нами систем водоснабжения из колодца:
Объект№1 (Волоколамский р-н, село Петровское, закрытый поселок)
Объект№2 (Ногинский р-н, г. Апрелевка, СНТ Ветеран)
Объект№3 (Домодевский р-н., дер. Истомиха, СНТ «Мечта»)
Объект№4 (Домодедовский р-н., дер. Буняково, СНТ)
Объект№5 (Московская обл., Ногинский р-н, дер. Татаринцево)
Объект№6 (Ногинский р-н, дер. Афинеево, СНТ)
Объект№7 (Ногинский р-н, пос. Кубинка, СНТ Старт)
И многие многие другие >>>
Звоните в нашу компанию «Комфорная дача»и наши сотрудники подберут тот вариант системы водоснабжения, который будет удобен именно Вашем случае! Наши специалисты работают слаженно, поэтому все за что мы беремся получается качественно и в срок!
Или >>> водоснабжение на даче из колодца своими руками / как видим его мы…
Тут вы можете рассчитать стоимость:
Остались вопросы?Звоните нам: 8 (905) 556-28-56
com-dacha.ru
Зимний водопровод из колодца своими руками – дача с водой круглый год
Для организации водоснабжения на даче чаще всего используется вода из колодца. Автономный источник позволяет наладить быт со всеми благами цивилизации. Чтобы не пришлось носить воду ведрами, дачники монтируют систему водоснабжения. Если загородный дом эксплуатируется круглый год, придется обеспечить прокладку коммуникаций, исключающую замерзание воды при отрицательной температуре. Зимний водопровод из колодца своими руками должен монтироваться с учетом всех требований и строительных норм.
Колодец – автономный источник на даче
Водоснабжение из колодца – плюсы и минусы
Выкопать собственный источник – для многих дачников это единственная возможность обеспечить себя и огород живительной влагой. Для автономного водоснабжения сооружают колодец или скважину. Первый вариант проще устроить своими руками, поэтому для дачи выбирают именно его. Среди преимуществ использования колодца:
- не требуется разрешение на обустройство;
- источник служит долгий срок;
- при заиливании дна можно почистить собственными силами;
- небольшая глубина позволяет устанавливать более дешевые модели насосного оборудования;
- при отсутствии электричество воду легко достать с помощью поворотного механизма.
Учитывая многочисленные достоинства гидротехнического сооружения, нельзя забывать о минусах:
- сезонное колебание уровня жидкости;
- ежегодная очистка;
- вероятность попадания загрязненных поверхностных вод.
Особенности устройства зимнего водопровода
На этапе проектирования водоснабжения необходимо решить, какой вариант системы выбрать – для летнего или круглогодичного пользования. Сезонная система подачи воды требует меньших сил и затрат на реализацию. Монтаж зимнего водопровода из колодца своими руками выполняется по специальным требованиям:
- Обязательное утепление колодца.
- Укладывание коммуникаций ниже уровня промерзания грунта.
- Теплоизоляция труб специальными материалами.
- Соблюдение уклона при монтаже трубопровода, обеспечивающего стекание жидкости при консервации.
- Обеспечение возможности полного слива воды и отключения насосного оборудования.
Схема водоснабжения из колодца
Внимание. Нормы по глубине укладки труб зависят от региона. Следует ориентироваться на данные об уровне промерзания почвы.
Способы теплоизоляции колодца
Своевременное утепление зимнего колодца поможет избежать проблем с промерзанием подземного участка шахты. Образование ледяной корки приводит к негативным последствиям:
- выходит из строя насос и другое оборудование;
- лед оказывает давление на стенки бетонных колец, вызывая образование трещин.
Внимание. Скорость замерзания жидкости зависит от ее уровня, чем он выше, тем скорее образуется лед.
Монтаж пенополистирола
Утеплить конструкцию можно плитами пенополистирола или другого материала с аналогичными свойствами. Для эффективности изоляции кольца откапываются на глубину до 1,5 м, а затем обклеиваются утеплителем и засыпаются землей. Такой вариант имеет несколько преимуществ:
- доступная стоимость;
- долговечность;
- пенопласт устойчив к влаге и гниению.
Для утепления колодца используют пенополистирол
Изготовление колодезного домика
Монтаж деревянного колодезного домика действенный, но дорогостоящий метод утепления. Дерево служит хорошим изолятором тепла, исключая риск промерзания верхней части шахты. Оригинальная деревянная конструкция кроме практического использования служит декоративным украшением дачного участка.
Такой домик — один из вариантов утепления источника водоснабжения
Напыление полиуретана
Один из методов защиты источника от зимних морозов – напыление на наружную часть ствола полиуретановой пены. Получается прочный монолитный слой, надежно защищающий бетонные кольца от холода. Работа довольно трудоемкая, придется откопать шахту на 1,5-2 м, а после застывания пены снова засыпать.
Напыление полиуретана
Внимание. Если длина прямого участка магистрали превышает 30 м, то понадобится установка смотрового колодца.
Составные элементы водоснабжения
На этапе проектирования разрабатывается схема системы водоснабжения, рассчитывается количество необходимого материала. Для надежной подачи воды система должна включать обязательные элементы:
- Насос – погружной или поверхностной модели. Производительность оборудования зависит от потребностей владельцев дачи и глубины источника.
- Гидроаккумулятор – мембранный бак, необходимый для поддержания стабильного давления в системе.
- Трубы – полимерные или металлические изделия служат для транспортировки воды от колодца в дом и разводки к точкам потребления.
- Реле давления и манометр – автоматика, контролирующая работу насосного оборудования.
- Обратный клапан – устройство используется для сливания жидкости перед зимней консервацией.
- Фильтры – приборы для очистки воды, которые устанавливаются перед накопительным баком. Их выбирают после проведения анализа жидкости, но обязательно включается фильтр грубой очистки.
Схема водоснабжения
Из этих элементов складывается любая схема водоснабжения. Зимний вариант требует утепления трубопровода и приямка, в котором размещается насосное оборудование.
Монтаж трубопровода
Чтобы водоснабжение зимой не прекратилось из-за ледяной пробки, трубы укладывают ниже отметки промерзания или выполняют их утепление. Первый способ требует выкопать канаву глубиной до 1,5 м. На дно траншеи насыпается песчаный слой высотой в 10 см, он обеспечит стабильность грунта. Лучше выбирать трубы из полипропилена, этот материал не подвержен коррозии как сталь и не боится давления как полиэтилен. Среди плюсов изделий:
- небольшой вес;
- долговечность;
- доступная стоимость.
Они укладываются под уклоном в 3 см на 1 м, направленны в сторону колодца. Оптимальный диаметр труб 32 мм.
Траншея трубопровода
Совет. Поверх магистрали насыпьте утепляющий слой до 30 см из керамзита, шлака или битого кирпича.
Разводка труб в доме выполняется одним из 2-х способов:
- Последовательный – основная магистраль проходит по всей даче, а от нее подключаются точки забора воды. Система используется для построек с небольшим количеством жильцов 2-3 человека.
- Коллекторный – к каждому сантехническому прибору подходит отдельная труба. Метод позволяет удерживать везде одинаковое давление.
Варианты теплоизоляции трубопровода
Если особенности рельефа не позволяют опустить магистраль на достаточную глубину, то копается траншея в 50-60 см и выполняется утепление. Организовать изоляцию труб от мороза можно твердыми и мягкими материалами. Жесткий утеплитель для труб – это скорлупа из пенопласта, отличающаяся доступной стоимостью и отличными теплоизолирующими свойствами. В качестве мягкой энергосберегающей оболочки популярны и другие материалы:
- цилиндры из базальтовой ваты с фольгированным покрытием;
- оболочка из вспененного полиэтилена.
Утеплители не восприимчивы к низкой температуре и просты в монтаже. Их достаточно надеть на трубу и заклеить шов металлизированным скотчем.
Утеплители труб бывают мягкие…
…и жесткиеВнимание. Для трубопровода в регионах с холодным климатом рекомендуются трубу с готовым заводским утеплением и каналом для монтажа греющего кабеля.
Греющий кабель
Труба с греющем кабелем
Если трубы уложены близко к поверхности земли, то им угрожает промерзание. Теплоизоляционные материалы частично защищают трубопровод от низких температур, но не могут противостоять сильным морозам. Самый незащищенный участок – точка прохождения трубы через фундамент дачи. Температура воды на входе в дом близка к нулю, поэтому требует дополнительное утепление. Обеспечить бесперебойное водоснабжение позволит использование нагревательного кабеля. Для монтажа на водопровод используется 2 вида устройств:
- Резистивный кабель – металлические жилы нагреваются при прохождении тока. Температура провода постоянная, она зависит от заложенной мощности. При монтаже требуется установка датчика. Нельзя допускать пересечения витков кабеля, иначе он сгорит.
- Саморегулирующийся кабель – его действие основано на свойствах металлополимерной матрицы. Устройство самостоятельно регулирует температуру на различных участках. Плюс кабеля – низкое потребление электричества.
Саморегулирующийся кабель
Греющий кабель можно проложить по всей длине зимнего водопровода, но это дорогостоящая процедура. Потребуется купить кабель и защитную теплоизоляцию. Чтобы сэкономить без ущерба качества, достаточно установить саморегулирующийся кабель в месте ввода трубопровода в постройку.
Совет. Перед монтажом кабеля полимерную трубу обматывают металлическим скотчем. Эта процедура повысит теплопроводность пластика и сделает обогрев более эффективным.
Если на даче пропадет электричество и кабель перестанет греть трубы, теплоизоляционная оболочка на время защитит их от мороза.
Методы утепления составных частей системы водоснабжения
Для соединения насоса и водопроводных труб устраивается приямок размером 0,7×0,7×1 м. Стены конструкции утепляются и обшиваются досками или обкладываются кирпичом. Пол можно сделать из щебня или залить бетонную стяжку. Если в зимний период дача редко посещается, стоит выполнить теплоизоляцию гидроаккумулятора. Защитную оболочку делают из рулонного вспененного полиэтилена или минеральной ваты.
Зимний водопровод на даче из колодца консервируется на время отсутствия владельцев . Процедура происходит сливанием воды из системы обратно в источник.
Устройство зимнего водопровода оптимальный вариант для дачи. Он позволяет пользоваться благами цивилизации круглый год. Самостоятельный монтаж системы – это существенная экономия на услугах мастеров.
Не забудьте оценить статью:
Загрузка…otepleivode.ru
Водоснабжение из колодца: особенности изготовления
Читайте в этой публикации:
Водоснабжение из колодца: несколько слов о насосном оборудовании
Устройство водоснабжения из колодца: вся система от «А» до «Я»
Водоснабжение на даче своими руками из колодца: подогрев не проблема
Имея на даче колодец, грешно будет не воспользоваться им и не наладить стационарное водоснабжение дома из колодца – можно, конечно, носить живительную влагу ведрами в дом и подогревать ее при необходимости на печке, но, согласитесь, это неудобно и утомительно. Потратив сравнительно немного средств и своих физических усилий, от этой проблемы весьма несложно избавиться – все, что для этого необходимо, это приобрести небольшую насосную станцию, энное количество труб и комплектующих и ознакомиться с принципом работы независимой водопроводной системы. Обо всем этом пойдет разговор в данной статье, в которой вместе с сайтом moyadacha.org мы разберемся с вопросом, как сделать водоснабжение из колодца на даче своими руками.
Водоснабжение из колодца: несколько слов о насосном оборудовании
Прежде чем изучать автономную систему водоснабжения, для начала следует разобраться с оборудованием, которое в полной мере отвечает за подачу воды в дом. Качать живительную влагу из источника можно посредством разных типов насосов.
- Поверхностный насос. Весьма недорогое и простое в подключении устройство, у которого имеется только один серьезный недостаток – он устанавливается в колодце над поверхностью воды. Что это значит? Как минимум то, что в ваше отсутствие его могут украсть. Как вариант, придется снимать его каждый раз, когда вы решите оставить дачный участок и устанавливать его заново, когда вернетесь.

Водоснабжение из колодца своими руками фото
- Погружной насос. Практически то же самое, что и с поверхностным оборудованием этого типа. В принципе, если правильно оборудовать колодезный домик и грамотно подключить такой насос, то вытащить его из колодца будет достаточно сложно – на это дело понадобится много времени. Использование погружного насоса целесообразно только в том случае, когда речь идет про дачное водоснабжение из колодца большой глубины.
- Насосная станция. Можно сказать, что это оптимальный вариант для дачного водоснабжения. Основное преимущество данного насосного оборудования заключается в его автономной работе – вернее не в автономной работе, а в независимой или полностью автоматической. Она включается исключительно только тогда, когда в системе водопровода падает давление, что происходит только тогда, когда открывается кран и из него начинает бежать водичка. При закрывании крана давление повышается и при его определенном значении насосная станция отключается. И это еще не все преимущества данного приспособления для забора воды из колодца – установить его можно в любом месте, в том числе и внутри дома.

Дачное водоснабжение из колодца фото
В общем, выбор здесь весьма простой – что-либо лучше, чем насосная станция, для забора воды из колодца не придумаешь. Добавьте еще ко всему этому весьма несложную установку и вы получите практически идеальный вариант насоса для индивидуальных систем водоснабжения из колодца на даче.
Устройство водоснабжения из колодца: вся система от «А» до «Я»
Использование такого элемента водопровода на даче, как насосная станция, сводит на «нет» все сложности ее изготовления – или, говоря другими словами, он упрощает ее изготовление до минимума. По сути, человеку, задавшемуся вопросом, как сделать водоснабжение на даче из колодца, остается произвести три этапа работ.
- Установка насосной станции. Монтируется она сравнительно несложно – о том, как выполняется установка и подключение насосной станции, можно почитать в другой статье нашего сайта. Здесь добавим только одно – установить подобный агрегат можно в любом месте. В смысле, как непосредственно возле самого колодца, так и в доме, как говорится, под надежной защитой стен и капитальных дверей. Не исключением в этом отношении является и подвал строения.

Монтаж водоснабжения из колодца фото
- Монтаж магистрального, подающего в дом воду водопровода – если монтаж насосной станции производится в доме, то этим самым магистральным водоводом является заборный шланг или труба насосной станции. Это прямой, без ответвлений и тройников шланг, на конце которого в обязательном порядке должен быть установлен обратный клапан – как вариант, его можно смонтировать непосредственно возле самой насосной станции, но это не совсем правильно. Кроме него, перед входом в насосную станцию, вода должна очищаться от мусора, дабы не повредить оборудование – дополнительно необходимо будет поставить фильтр грубой очистки.

Система водоснабжения из колодца фото
- Устройство внутридомовой разводки водопровода. Об этом тоже имеется отдельная статья, и подробно о том, как монтируется внутренний водопровод в доме, здесь мы рассказывать не будем. Скажем только одно – внутренняя разводка водопровода в дачном доме может предусматривать подключение как одного потребителя, так и множества. Это к тому, что количество потребителей в дачном доме особой роли не играет – если правильно соблюдены диаметры труб при монтаже, то воды хватит всем, и недостатка в давлении не будут испытывать даже три полноценных санузла с кухней.
Это в общих чертах, но на деле, как и в любой другой работе, монтаж системы водоснабжения из колодца может вызвать у многих людей некоторые сложности – все-таки это специализированная система, собрать которую может только более или менее подготовленный человек, как минимум обладающий знаниями о принципе работы и конструировании водопроводных коммуникаций. Посмотреть о принципе изготовления водопроводной системы из колодца можно в данном видеоролике.
Водоснабжение на даче своими руками из колодца: подогрев не проблема
Логичным будет предугадать следующий вопрос, который, возможно, будет звучать следующим образом – как подогревать холодную воду? К сожалению, современный человек настолько привык к различным благам цивилизации, что даже не представляет свою жизнь без горячей воды. Подогреть жидкость, поставляемую из колодца, на сегодняшний день не является проблемой, и для этой цели существует масса различных вариантов, выбор которых зависит от наличия того или иного типа энергии.
- Электрические водонагреватели. Они известны практически всем городским жителям – это проточные и накопительные водонагреватели. Отличный вариант для электрифицированной, но не газифицированной дачи. Если вы подолгу проживаете на даче, то предпочтение следует отдать накопительным бакам – в зависимости от объема, единовременно они способны нагревать до 200 литров воды и держать в подогретом состоянии весьма длительное время. Если дача посещается время от времени (к примеру, по выходным), то целесообразнее использовать проточные нагреватели, интересным вариантом которого является кран-нагреватель. Он монтируется вместо обычного смесителя и обеспечивает водой один сантехнический прибор.

Как сделать водоснабжение на даче из колодца фото
- Газовые водонагреватели. С газовой колонкой знакомы многие люди, и что это такое, рассказывать не приходится – она греет воду за счет магистрального газа, что и определяет целесообразность использования такого водонагревателя.
- Твердотопливные нагреватели воды. Еще лет пятьдесят назад (или даже более) в сельской местности можно было встретить такого динозавра для подогрева воды, как «Титан» – твердотопливный водонагреватель. По своей сути, это печка, вокруг дымохода которой смонтирован накопительный резервуар. Сейчас такие агрегаты практически не встречаются, но его весьма несложно сделать самостоятельно. Целесообразность таких нагревательных баков продиктована отсутствием на даче и газа, и электричества.
В принципе, имеется и еще ряд различных приспособлений, способных нагревать холодную воду до высокой температуры. Мало того, среди всего их множества существуют и такие, для которых не нужны сетевые источники энергии – например, солнечный коллектор с вакуумными трубками способен обеспечивать горячей водой весьма большие постройки. Единственное «но» в их использовании – это слишком высокая стоимость, которую для дачи можно назвать неоправданной.

Водоснабжение из колодца фото
И в заключение темы про водоснабжение из колодца остается добавить только одно – ни одна система подачи в дом не работает нормально без своего постоянного спутника – канализации. Именно поэтому, монтируя водопровод на даче, не стоит забывать о такой статье расходов, как обустройство автономной канализации – как минимум это система труб и сливная яма или септик, почитать об изготовлении которых вы можете в других статьях нашего сайта.
moyadacha.org
видео-инструкция по монтажу своими руками, особенности устройства, как сделать, схема, цена, фото
Многие обладатели дачных участков или частных домов используют воду, которую берут из колодца. При этом процесс забора жидкости с использованием обычного ведра довольно утомительный и вызывает массу дискомфорта. Именно поэтому вопрос о том, как сделать водопровод на даче из колодца очень интересует обладателей земельных наделов.

Любительское фото установленной в колодец системы для подачи воды в водопровод
Выбор насоса
Для начала необходимо сказать о том, что все подобные конструкции основаны на принудительной подаче жидкости из глубины на поверхность. Поэтому для этих целей нужно использовать насос, который способен работать в заданных условиях и иметь нужные характеристики. Однако каждая отдельная модель может потребовать особого типа подключения или наличия некоторых дополнений.

Наглядное пособие по монтажу различных систем и узлов, необходимых при изготовлении водопровода, выполненное из фотографии готового изделия с подписями и маркировкой
Поверхностные насосы
Данные типы агрегатов обычно устанавливаются на поверхности, в то время как их шланги опускаются в источник воды. При этом, создавая водопровод на даче своими руками из колодца, эти виды устройств стоит принимать во внимание в первую очередь, поскольку их можно устанавливать на время, перенося в дом в холодный период.

Принцип присоединения поверхностных насосов, которые используются в неглубоких бассейнах
Следует отметить, что такие агрегаты очень хорошо подходят для подачи воды на огород. Они очень просто переключаются на вспомогательную линию или обслуживают два направления в зависимости от модели. Также нужно сказать и о том, что подобные насосы обычно сразу комплектуются всеми необходимыми системами и элементами, необходимыми для полноценной работы.

Принцип присоединения всех необходимых элементов к поверхностному агрегату типовой модели
Среди недостатков такого оборудования можно отметить то, что цена полноценных конструкций может быть довольно большой. При этом их область применения практически всегда ограничена глубиной колодца. Это обстоятельство практически всегда является решающим в момент определения конкретного типа и модели.
Совет!
Приобретая такие изделия нужно внимательно изучить руководство по эксплуатации, поскольку в нем могут сдержаться некоторые особенности подключения и эксплуатации.

Погружной насос отлично справляется с поставленными задачами и благодаря своей надежности используется довольно часто
Погружные насосы
Некоторые специалисты, делая дачный водопровод своими руками из колодца, предлагают использовать агрегаты, которые необходимо погружать в воду. При этом к ним крепят шланг и провод, падающий электроэнергию.

Принцип подключения глубинного агрегата с размещением труб ниже уровня промерзания грунта
Стоит отметить, что такие системы хороши тем, что их можно использовать в глубоких емкостях или конструкциях, созданных по принципу скважины. Однако подобные изделия очень плохо переносят частый подъем и погружение, поскольку при такой эксплуатации и хранении существует большая вероятность повредить конструкцию.
При этом если глубина колодца находится ниже уровня промерзания грунта, то изделие можно не извлекать даже на зиму, но только с учетом соответствующего утепления.
Необходимо сказать о том, что в данном случае потребуется не простая схема водопровода на даче из колодца, поскольку в отличие от поверхностных изделий такие насосы не комплектуются дополнительными элементами. Однако это совершенно не означает, что готовая конструкция будет работать хуже или создаст проблемы при эксплуатации.
Совет!
Прежде чем приобретать конкретный тип насоса стоит посоветоваться со специалистами с учетом конкретных технических условий.
При этом не помешает создать отдельный проект с указанием всех элементов и типов соединения.
Порой для выполнения поставленной задачи необходимо спуститься на дно колодца, где можно произвести дополнительную чистку или профилактику
Особенности конструкции и изготовления
Прежде всего, необходимо сказать о том, что существует просто огромное количество всевозможных систем изготовления таких конструкций. Однако создавая данный водопровод своими руками, стоит выбирать самые простые его виды, но при этом они должны полностью удовлетворять требования пользователя, предоставляя максимальный комфорт.

Некоторые мастера предпочитают делать отвод сразу возле конструкции или создают трубу для проводов подачи электричества
Устройство колодца
- Прежде всего, профессионалы рекомендуют оборудовать в самом рукаве емкости своеобразную полку, на которой будет размещено необходимо оборудование. При этом стоит устанавливать ее ниже уровня промерзания грунта, если планируется использовать конструкцию в зимнее время. Поэтому ввод в колодец делают под землей, выкапывая также траншею до самого дома.

При правильном подходе к работе можно все необходимое оборудование разместить в самой конструкции колодца
- Некоторые пользователи считают подобные технические решения слишком сложными, но если тратиться на изготовления системы подачи воды, то стоит делать это правильно, чтобы не испытывать трудностей при эксплуатации. При этом если учитывать, что крышка на конструкции будет закрыта на замок, то вся система будет под охраной.
- Принимая во внимание такое устройство водопровода на даче от колодца используемый тип насоса не важен. Погружную конструкцию опускают с трубой или шлангом вниз, используя полку для фиксации, а поверхностное изделие просто на ней устанавливается.

Некоторые мастера предпочитают устанавливать небольшие изделия для подачи воды, но они не всегда могут подавать большой объем на поверхность и имеют определенный период беспрерывной работы
- Также внутри рукава можно поместить гидравлический конденсатор. Он будет контролировать давление в системе, и пополнять объем накопительного бака, а также производить отключение. Однако сразу стоит сказать, что его габариты будут сильно ограничены внутренним пространством.
Совет!
Если будет использоваться простейшая схема подключения, то все ее элементы можно поместить именно в самом колодце.
При этом его рекомендуется утеплить и по возможности герметизировать.

Траншея должна быть достаточно глубокой, поскольку только так можно защитить трубы от замерзания зимой и снизить вероятность механического повреждения
Траншея
Когда делается монтаж водопровода на даче из колодца, то обычно стараются сэкономить на материалах. Однако не стоит этого делать, поскольку количество сохраненных денег будет невелико, а при правильном их распределении можно получить полноценную систему.
Для начала выкапывают траншею, которая должна быть глубже линии промерзания грунта. Именно на этом же расстоянии от поверхности и делают ввод в сам колодец, и даже здание. При этом водопроводную трубу или шланг, используемый для этих целей, стоит дополнительно утеплить и защитить от механического воздействия.

Ввод в дом лучше всего производить на уровне цокольного этажа или делать небольшой подкоп под фундамент
Стоит отметить, что когда изготавливается дачный водопровод из колодца, то к нему необходимо относиться точно так же, как и к обычной магистрали. Поэтому на вводах в конструкции устанавливают специальные проходные системы, а в местах прохода под трассами или пешеходными дорожками нужно делать дополнительную защиту от вертикальных нагрузок.
Совет!
Для подобных целей лучше всего применять полипропиленовые трубы, поскольку они идеально подходят для таких условий и отлично справляются как с нагрузками, так и с перепадами температуры.

Типовая схема создания водопровода в частном доме
Внутреннее обустройство
Профессиональные мастера стараются, чтобы схема дачного водопровода из колодца содержала в себе все необходимые элементы, но при этом они должны располагаться в самой конструкции. Однако есть такие узлы, которые просто невозможно поместить в такое пространство или же их обслуживание требует монтажа в здании.
Прежде всего, стоит отметить, что, прежде всего в подобных системах рекомендуется устанавливать специальный бак, которой послужит своеобразным резервуаром для бесперебойного использования. Его обычно размещают на чердаке, позволяя воде поступать самотеком. Также можно дополнительно установить фильтр тонкой очистки и счетчик.
Совет!
Выбирая тип конкретной схемы, изготовления подобных систем стоит учитывать технические характеристики самой емкости с водой и скорость ее пополнения в ней, если это уместно.
В противном случае лучше применить простейшие варианты монтажа.

Еще одна схема с использованием погружного насоса конкретной марки
Вывод
Ознакомившись подробнее с видео в этой статье можно более детально узнать о типах такого монтажа и способах его реализации. При этом на основании статьи, приведенной выше, стоит сделать вывод о том, что не стоит экономить на произведении подобных работ и намного лучше создавать полноценную конструкцию, чем применять дешевые материалы и оборудование.
gidroguru.com
Как правильно организовать водопровод на даче из колодца
Содержание статьи
Довольно часто люди решают организовать водопровод на даче из колодца. Источником воды может быть и ключ, и скважина, однако конструкция из колодца имеет важные достоинства:

Водопровод на даче из колодца
- Небольшие затраты;
- Долгий срок службы относительно водопровода, источником которого является ключ или скважина;
- Поверхность такого водопровода редко заиливается, что позволяет сэкономить на чистке и обслуживании;
- Чистка может проводиться своими руками. Для этого потребуется только лопата и ведро;
- Удобство и экономия в использовании, обслуживании и чистке;
- Простота консервации системы из колодца;
- Замена элементов насоса или самого насоса может проводиться без монтажа системы водоснабжения, своими руками.
Особенности конструкции и ее составляющие
Чтобы лучше понять, как провести водопровод, должна быть составлена схема. Схема включает в себя указание расположения водопровода снаружи и внутри дачи. Схема нужна по следующим причинам:
- Она позволяет рассчитать количество материала;
- Схема позволяет не допустить различных ошибок и недочетов, которые могут негативно повлиять на работу водопровода;
- С ней проще проводить работу своими руками.
Схема обязательно составляется и в том случае, если вы заказали монтаж системы под ключ. Она необходима при подземной прокладке. Устройство, в этом случае, проще обслуживать и ремонтировать.

Схема простого водопровода из колодца
Схема включает в себя следующие составляющие:
- Насос. Важно правильно его выбрать. Погружное устройство для колодца подходит для дачи, где проживает не более 1-2 человек. При одновременно использовании нескольких кранов возможны перепады давления и некачественное водоснабжение. Погружное устройство довольно популярно благодаря своим достоинствам: отличная производительность, работа на большой глубине, бесшумность, экономичность;
- Гидроаккумулятор. Гидроаккумулятор требуется для водопровода на даче по той причине, что он позволяет защитить конструкцию от гидроударов, стабилизирует давление. Кроме того, устройство имеет бак, в котором накапливается вода. При нарушениях водоснабжения на даче, таким образом, будет обеспечена подача воды;
- Сливной клапан. Устройство необходимо для глубокого и среднего колодца для слива воды при консервировании. Если глубина колодца составляет менее 8 метров, сливной клапан может не применяться;
- Реле давления. Необходимо для стабилизации давления. Реле позволяет уменьшать или увеличивать давление. В случае очень высокого давления, реле отключает насосное устройство. Если давление небольшое, то реле производит закачку жидкости.
Если вы решили выполнить монтаж своими руками, а не заказать работу под ключ, требуется знать некоторые правила. В частности, водопровод, проводимый от колодца, монтируется под уклоном. Уклон выполняется в сторону сливного клапана. Этот нюанс позволяет, при необходимости, быстро сливать жидкость из системы. Внутри дачи водопровод также устанавливается под уклоном к трубе, являющейся сливной.
Вернуться к содержанию ↑Особенности конструкции для эксплуатации летом
Конструкция из колодца для водоснабжения может быть выполнена в двух вариантах:
- Летний. В этом случае эксплуатировать водопровод можно только при теплых температурах;
- Зимний. В этом случае водопровод на даче может работать круглый год.
И летний, и зимний вариант являются автономными. Их функционирования зависит от электроэнергии.

Летний трубопровод для дачи
Летняя конструкция из колодца на даче может быть:
- Постоянная. В этом случае водопровод прокладывается в земле. Он имеет водоразборные краны, которые выходят наружу. Глубина установки такой системы водоснабжения совсем небольшая. Такой водопровод может прокладываться на любом участке дачи, он прост в монтаже. Среди минусов такого водоснабжения можно отметить сложность с установкой водопровода, связанную с тем, что прокладывать его нужно с уклоном. В ином случае, возникает опасность разрыва труб;
- Разборный. Такой водопровод обычно армирован, переходники его выполнены из пластмассы или оцинковки. Установка может проводиться в любое теплое время. С наступлением зимы конструкция просто убирается на хранение.
Система водоснабжения для летнего периода может монтироваться своими руками. Она довольно проста в установке. Однако, при необходимости, можно воспользоваться услугами под ключ.
Вернуться к содержанию ↑Особенности конструкции для эксплуатации зимой
Если конструкция водоснабжения из колодца планируется применяться в зимний период, монтируется она исключительно по постоянной схеме. Главное для такого водопровода – утеплить его. С этим вы сможете справиться и своими руками.
Работу своими руками рекомендуется начать с соединения насоса к источнику напряжения. При желании можно утеплить и кабель, и трубопровод, применив для этого пластиковую трубу большого размера. Она позволит защитить систему водоснабжения не только от низких температур, но и от внешних воздействий, повреждений.

Утепление скважины колодца на зиму
Укладка водопровода производится ниже уровня промерзания земли. Этот уровень зависит от климатических особенностей местности. При заказе под ключ вы сможете быть уверены, что профессионалы правильно рассчитают этот показатель. Однако провести расчеты вполне можно и самостоятельно. Такая прокладка необходима для того, чтобы сохранить работоспособность системы при низких температурах.
В некоторых случаях, климат в местности таков, что довольно проблематично копать траншеи на нужную глубину своими руками. В этом случае можно раскопать среднюю траншею (60 см), и засыпать конструкции в ней утеплителем. Слой утеплителя должен составлять примерно 30 см. В качестве утеплителя можно использовать шлак, керамзит, пенопласт. После слоя утеплителя вновь идет слой грунта.
Очень эффективен для теплоизоляции водонагревательный кабель. Однако он довольно дорог.
Вернуться к содержанию ↑Важно помнить, что зимний трубопровод должен обязательно иметь систему консервации. Если планируется еще не скоро его применять, вся вода сливается, что обеспечивает дальнейшую работоспособность. При заказе под ключ система консервации встраивается по умолчанию.
Водопровод в частном доме и на даче
| Автор | Поделитесь | Оцените | Виктор Самолин |
|---|
vseotrubax.com
