Ворота веерного типа чертеж – изготовление универсальной конструкции, как сделать из профильной трубы, самодельные рулонные ворота из ПВХ
Выбор и монтаж ворот
Автоматические ворота относятся к преграждающему оборудованию. Они выполняют функции контроля и ограничения доступа людей и автотранспорта на любые территории, от частных домов и гаражей до заводов и режимных объектов. Такие ворота позволяют управлять доступом в ручном, автоматическом режиме и под контролем системы контроля и управления доступом (СКУД).
Виды автоматических ворот
По применению ворота бывают
- Въездные — устанавливаются снаружи при въезде на территорию объекта;
- Промышленные — на въезде внутрь крупных промышленных зданий: цехов, складов, логистических терминалов и т.д.
- Гаражные — ставятся внутри гаражей.
Конструкции автоматических ворот:
Распашные ворота. Самый традиционный вариант ворот, дополненный управляемым приводом. Представляют собой две створки, закреплённые шарнирно на петлях (шпугах) к вертикальным элементам проёма и приводимые в движение рычажным приводом, электрическим или электрогидравлическим. К достоинствам таких ворот можно отнести возможность изготовления полотна из самых разных материалов, например, из древесины. Шпуги для красоты возможно выполнить в виде кованых элементов, такими же элементами украсить и сами ворота. Это аргумент в пользу выбора распашных ворот на объектах, требующих определённой эстетики — гостиницы, рестораны, офисы с соответствующей архитектурой, базы отдыха и т.д.

Распашные ворота
Плюсы распашных ворот:
- Простота конструкции
- Относительная дешевизна
- Презентабельность, возможность стильного оформления
Минусы:
- Невысокая надёжность
- Требуют сравнительно большой свободной площади в зоне проезда
- Плохая теплоизоляция в закрытых помещениях
- Большая масса
Откатные (раздвижные, консольные) ворота — представляют собой одиночное (в консольных) или двойное (в раздвижных) полотно, отъезжающее в сторону параллельно стене. На полотне крепится рельс, а на консольной балке над проёмом — ролики, по которым оно отъезжает в сторону. Полотно приводится в движение мотор-редуктором, входящим в зацепление с зубчатой линейкой.

Откатные ворота
Плюсы:
- Оптимальные массогабаритные показатели, позволяющие перекрывать проходы большой ширины
- Не требуют свободной площади в зоне проезда
- Высокая надёжность, возможность работы при низких температурах
Минусы:
- Требуют участка стены такой же ширины, как и проём, поэтому не применяются в качестве гаражных ворот
- Не обеспечивают теплоизоляцию
- Нужен квалифицированный монтаж с точным соблюдением привязочных размеров
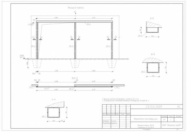
Ворота веерного типа
Эти ворота появились на рынке сравнительно недавно и до сих пор являются скорее оригинальной дизайнерской «фишкой», чем широко распространённым продуктом. Конструктивно состоят из перекрывающихся ламелей, которые в закрытом состоянии свободно свисают вниз, а при открытии ворот поднимаются, заходя друг за друга подобно складывающемуся вееру. Пока изготавливаются главным образом под заказ.
Плюсы:
- Оригинальный дизайн
- В открытом виде очень компактны
- Относительная простота конструкции
Минусы:
- Мало представлены на рынке, изготавливаются под заказ
- Сравнительно высокая цена
- Средняя надёжность
- Не обеспечивают теплоизоляции
Подъёмно-поворотные ворота
Имеют сплошное полотно площадью во весь проём, которое при открытии ворот поднимается, а затем по специальным направляющим принимает горизонтальное положение под потолком. Такие ворота хороши тем, что не занимают места в проёме и по бокам от него, они отлично подходят даже для небольшого гаража. Конструкция имеет дополнительные механизмы, позволяющие открыть эти ворота даже при отсутствии электропитания — газлифты, торсионные пружины. Полость между листами полотна обычно заполняется пенополиуретаном для шумо- и теплоизоляции. Используются в качестве промышленных ворот или гаражных.
Плюсы:
- Конструктивная жёсткость и прочность
- Хорошие теплоизоляционные свойства, подходят для гаражей, в том числе утеплённых
- Стойкость ко взлому
- Можно открывать вручную
- Отличное соотношение цена/качество
Минусы:
- Требуют зоны безопасности перед воротами. Створка при открытии сначала выдвигается вперёд как минимум на половину своей высоты, об этом надо помнить при открывании ворот
- Необходима определённая высота притолоки (расстояние от верхнего края проёма до потолка здания), в это пространство уходит створка и там же крепится механизм
- Нужен квалифицированный монтаж и наладка
Секционные ворота
Относятся к категории гаражных либо промышленных. Створка секционных ворот разделена на горизонтальные секции, шарнирно соединённые между собой. Они открываются путём поочерёдного перемещения секций в пространство притолоки помещения подобно подъёмно-поворотным, однако конструктивно проще. Такие ворота удобны надёжны, весьма эстетично и современно выглядят. Есть возможность ручного открытия при отсутствии питания.
Как и подъёмно-поворотные ворота, секционные крепятся к потолку. Поэтому при выборе необходимо произвести замеры высоты притолоки и просчитать нагрузочную способность потолка и элементов крепления конструкции.

Секционные гаражные ворота
Плюсы:
- Универсальность
- Эстетичный внешний вид
- Плотное перекрывание проёма, хорошая теплоизоляция
- Низкое энергопотребление привода, возможность применять низковольтный резервный источник питания (аккумулятор)
- Прочность
- Относительная простота и надёжность конструкции
Минусы:
- Сравнительно высокая цена
- Нужен квалифицированный и относительно трудоёмкий монтаж, что увеличивает стоимость
- Требуется регулярное обслуживание
- Относительно невысокая взломоустойчивость
- Крепление механики к потолку требует достаточной прочности и наличия необходимого пространства притолоки
Рулонные (рольворота)
Являются более прочной разновидностью автоматизированных ролет, но свободны от некоторых присущих им недостатков. Как и у ролет, полотно рулонных ворот состоит из горизонтальных металлических ламелей, сворачивающихся в рулон при намотке на вращающийся барабан. Однако сами ламели изготавливаются не только в обычном, но и в утеплённом и антивандальном варианте. Утеплённые ламели имеют полость, заполненную вспененным полиуретаном, а шарнирные соединения бывают дополнительно закрыты эластичным материалом, например, силиконом или стеклотканью. Антивандальный вариант имеет стальные ламели, которые намного прочнее и жёстче алюминиевых. Рольворота тоже можно открыть вручную после разблокировки замка. При отсутствии достаточного места внутри здания рольворота можно разместить и снаружи.

Рулонные ворота
Плюсы:
- Простота и надёжность механизма
- Невысокая цена
- Стойкость ко взлому, есть антивандальные варианты
- При удачном выборе и правильном монтаже — неплохие теплоизоляционные свойства
- Возможность как полной автоматизации, так и ручного управления
- Компактность
- Защита от окружающего шума и проникновения пыли
Минусы:
- Створки могут подвергаться обледенению при минусовых температурах, что приводит к блокировке ворот
- Стандартные варианты не всегда обеспечивают хорошую защиту от взлома
- Многие модели рольворот имеют множество незакрытых зазоров между ламелями, это делает их теплоизоляционные свойства неудовлетворительными
Выбор ворот
Ориентировочный выбор оптимальных ворот лучше всего делать на этапе проектирования объекта. Тогда вам будет предоставлена полная свобода в выборе, не ограниченная заданными параметрами помещения или территории.
Для готового же объекта первое, на что надо обратить внимание — на требования к габаритам и наличию места для установки ворот, а для подвесных конструкций — ещё и к прочности перекрытий, на которых они будут крепиться. Например, иногда при недостаточной прочности потолков и большой массе ворот приходится по пролёту наваривать сплошную металлическую обвязку с опорой на стены или фермы, что значительно удорожает монтаж и возможно лишь при наличии достаточного пространства по высоте.
Из описанных выше свойствах ворот понятно, какие варианты подойдут для въезда во двор, какие — для гаража или промышленного помещения. Надо учесть и климатические особенности, и требования к теплоизоляции, чтобы зимой не «отапливать улицу» за свой счёт.
Вносят свой вклад и требования к безопасности. Для объектов повышенной секретности надо выбирать самые взломоустойчивые ворота с возможностью контроля доступа централизованным контроллером или сервером СКУД. Антивандальные варианты понадобятся и владельцам гаражей на дачных участках, где люди бывают лишь периодически. Но даже это не отменяет необходимости применения систем охранной сигнализации и/или видеонаблюдения.
Профессионалы компаний, специализирующихся на поставке и монтаже автоматических ворот, всегда помогут вам определиться в выборе, исходя из вашей конкретной ситуации.
Подготовка к монтажу ворот
Начинают подготовку прежде всего с изучения проекта и резервирования места под выбранную вами конструкцию ворот. Если это раздвижные ворота, нужно обеспечить возможность свободного проезда створки вдоль стены, если распашные — расчистить и выровнять пространство перед или за воротами, в зависимости от того, внутрь они будут открываться или наружу. Необходимо также предусмотреть место для установки привода и подвести к нему необходимые коммуникации — провода питания и/или передачи сигналов.
Для секционных, рулонных и подъёмно-поворотных ворот могут понадобиться дополнительные закладные элементы на крыше помещения, например, пластины, к которым изнутри будут крепиться шпильками либо болтами конструкции ворот.
Если подготовка к монтажу ворот требует работ с бетоном, монтаж начинают только после его окончательного отверждения.
Монтаж ворот
Монтаж начинают с разметки и закрепления несущих конструкций.
Раздвижные ворота: крепят к стене или фермам консольную балку, затем укрепляют на ней ролики. Точность и горизонтальность установки контролируют уровнем. После проверки навешивают на ролики рельс, к которому крепят полотно ворот. Проверяют свободу перемещения полотна в проёме. Затем устанавливают привод и зубчатую линейку, подключают провода, разблокируют привод и проверяют правильность перемещения полотна. Подают питание на привод, проверяют работу ручного управления и убеждаются в правильности работы механизма. Затем устанавливают в нужных местах концевые датчики так, чтобы один из них срабатывал в полностью открытом положении, а второй — в полностью закрытом. ВНИМАНИЕ! При регулировке концевиков необходимо учитывать инерцию полотна!
Виды и порядок монтажных работ могут отличаться для ворот разных моделей.
Распашные ворота монтируют обычно так: крепят петли, шпуги либо их ответные части к несущим конструкциям проёма, затем устанавливают и закрепляют одну створку в вертикальном положении (подкладывают опору — кирпичи, брус и т.д.), после чего крепят к ней петли. Проводят ту же операцию для второй створки, крепят привод, подключают к нему коммуникации, затем соединяют его рычагами со створками полотна. Разблокируют привод, убеждаются в правильности открытия-закрытия ворот, затем привод переводят в автоматический режим, подают питание и проверяют работу привода в этом режиме.
Монтаж секционных и подъёмно-поворотных ворот — работа достаточно сложная и ответственная, неточности и несоблюдение последовательности операций могут привести к их неработоспособности. Поэтому монтаж таких ворот лучше доверить специалистам. В любом случае, нужно внимательно изучить инструкции производителя, ведь конструкции и параметры этих ворот весьма разнообразны, универсальных рецептов здесь не существует. В общих чертах процесс тот же: крепят несущие конструкции, к ним всю остальную механику. Полотно также может крепиться и перед, и после механизма, как это предусмотрено изготовителем.
Рольворота в монтаже обычно достаточно просты. К стене и/или потолку крепится основание барабана, затем закрепляют по бокам направляющие, а потом устанавливают на место барабан, пропустив край полотна в их пазы. Монтируют механизм, проверяют его свободную работу в ручном режиме, затем подсоединяют привод, подают на него питание и контролируют бесперебойную работу в автоматическом режиме.
Веерные ворота обычно монтируют представители фирмы-изготовителя либо сами «народные умельцы». Этот вид изделий у нас пока мало распространён, и каждый экземпляр имеет свои конструктивные особенности.
Элементы индикации (сигнальные лампы) монтируют и подключают последними. Необходимо обеспечить их прямую видимость как изнутри, так и снаружи ворот. Иногда приходится докупать дополнительные сигнальные лампы.
Некоторые ворота оборудуются датчиками безопасности, необходимыми для предотвращения закрытия ворот при нахождении в проёме транспортного средства. Их также необходимо подключить к плате управления привода.
Проверка работоспособности, настройка контроллеров
Работу автоматических раздвижных ворот проверяют, как сказано выше, сначала в разблокированном режиме привода. ВНИМАНИЕ! Попытки открыть ворота вручную без разблокировки привода могут привести к поломке механизма и выходу привода из строя!
Затем на привод подаётся питание и проверяется работа от ручного пульта управления или выключателей внутри блока привода, при их наличии.
Обычно приводы, срабатывающие от пульта радиоуправления, необходимо «обучить» распознавать определённое количество пультов. Как это сделать, описано в руководстве по эксплуатации. Типовая процедура — внутри привода замыкается перемычка или нажимается кнопка, индикация мигает, показывая готовность. Затем на пульте нажимают указанную кнопку или последовательность, индикатор сигнализирует приём команды либо ошибку. Если команда принята, привод начинает реагировать на команды с пульта.
При наличии датчиков безопасности их также надо проверить и при необходимости отрегулировать согласно инструкции производителя.
Затем при наличии сетевого контроллера налаживается связь, устанавливаются адреса устройств и проверяется прохождение команд.
sigadoma.ru
75 фото типовых и оригинальных проектов
Ворота и забор используют все владельцы загородных или дачных участков. Ведь благодаря таким конструкциям у владельцев есть возможность оградить свое личное пространство. Не обязательно при этом использовать помощь специалистов. Намного экономнее сделать все работы самостоятельно, уделив внимание определенным вещам.

Перед началом рабочего процесса следует особое внимание уделить созданию чертежей, ознакомиться с установкой столбов, правильно подобрать материалы для конструкции.
Достоинства распашного типа
Независимо от того, какую модель вы подберете, следует подобрать наружный или внутренний метод открывания створок. При этом сложностей во время работы не должно возникнуть.

При правильном выполнении всех основных этапов ваша конструкция будет служить продолжительный период времени. Стоит рассмотреть основные достоинства такого выбора:
- комфорт при использовании;
- широкая вариация материалов, Все зависит от личных предпочтений, подбор в зависимости от интерьера;
- высокий показатель функциональности;
- компактная конструкция;
- отсутствуют ограничения касательно размера.

Распашной тип известен простыми монтажными работами. Изделие не требует к себе дополнительных мер ухода, они прочные, дополнят ваш интерьер. При желании можно оборудовать ворота с помощью автоматической системы.

Стоит рассмотреть также недостатки такого изделия. Это учет внешних факторов, например, ветра, снега. То есть, модель подбирается с учетом региона, в котором вы проживаете. Необходимо для такой модели освободить место.

Особенности конструкции
Необходимо рассмотреть основные составляющие чертежов ворот своими руками:
- выполненная из дерева или металлического материала рама. Она должна обладать высоким показателем жесткости;
- соответственно с типом ворот подбираются опорные стойки;
- металлический профиль пользуется спросом среди покупателей, как качественный обшивочный материал;
- зависимо от типа конструкции, например, ворота с калиткой, подбирают петли. Учитывают также массу изделия;
- обеспечивают надежную защиту от проникновения злоумышленников замки, или запоры. Выбор механизмов широкий, можно подобрать что-то себе.

Все детали выполняют определенную нагрузку, их правильная установка и качественные характеристики обеспечат продолжительный срок эксплуатации. Важно уделить время чертежу ворот из профнастила, сделать соответственные эскизы.
Профлист
Ворота, выполненные из данного материала, пользуются особой популярностью. Ведь створки могут открывать в разные стороны, а не исключительно в одну сторону. Из этого полотно можно сделать калитку.

По сравнению с деревянными изделиями в этом случае необходимость в дополнительном ремонте, уходе отпадает. При желании изделия дополняют с помощью автоматики. Итак, выделяют такие достоинства данного выбора:
- низкая, доступная широкому кругу потребителей стоимость;
- эстетичность, изделие достаточно привлекательно выглядит;
- высокие качественные характеристики;
- продолжительный срок эксплуатации;
- рабочий процесс, который можно организовать самостоятельным путем.

Среди недостатков выделяют подверженность внешним фактором. В большей мере это касается ветра, или же снега. Также необходима установка петель, правильно установить столбы.

Установка
Выбирая материал профлист, следует позаботиться об крепких и надежных столбах. Диаметр трубы 80 мм считается наиболее подходящим для опоры. С нагрузками может справиться также квадратная труба.

Обращайте внимание на трубы квадратного сечения, которых сваривают к створкам. На фото чертежа ворот можно отметить оптимальные размеры 10*25*3000 мм. Для соединения изделия таких габаритов потребуется сварка.

С помощью использования диагональных натяжителей можно усилить конструкцию каркаса. Определитесь с местом, предназначенным для замка, запора, ограничителей.

Рабочий процесс начинается с монтажных работ касательно опор. Необходима для данной процедуры определенная подготовка. На видео видны основные этапы, их можно детальнее рассмотреть.

Варианты установки
Стоит отметить, что опорные столбы можно забетонировать, или же забить в землю. Для большей надежности конструкции необходимо отдавать предпочтение бетонированному варианту.

Важно правильно установить петли. Опоры погружают в грунт на глубину около 130 см. Данный способ экономит время, при этом можно сразу приступать к следующему этапу – крепление петель, вешание створок.

Ямы для способа бетонирования используют глубиной 150-200 см. Зависимо от сечения закапывания трубы подбирают определенный диаметр. Необходимо заняться подушкой. То есть приготовить песок, щебень, затем залить все с помощью бетона.

Выводы
Независимо от того, какой тип ворот вы выберете, стоит выполнять все роботы исходя из чертежей. Если вы хотите распашную конструкцию, тогда необходимо помнить об их использовании на предприятиях. Раздвижные механизмы применяют для въезда, выезда из территории.
Достоинства и недостатки можно найти в каждом типе. Подберите наиболее оптимальный для себя вариант.

Фото чертежей ворот















































Также рекомендуем посетить:
mojdominfo.ru
Сообщества › Сделай Сам › Блог › Прямой односкатный веерный навес и откатные ворота

Полный размер
Раз первая запись вызвала интерес, то продолжу.
Расскажу и покажу один из первых сложных веерных навесов, вернее навес для авто и откатные ворота с автоматикой.
Может кому пригодиться.
Задача.
Спроектировать, изготовить и смонтировать навес сложной формы + изготовить и смонтировать откатные ворота с автоматикой.
Осложняется тем что имеем не прямоугольник, а трапецию, то есть дом и забор идут на сужение, а высота должна выть везде одинаковая, по дому своя, по забору своя.
По материалам.
Столбы 120*120*3, по столбам обратные фермы с укосинами верх 60*40, низ 40*40 и наполнение 40*25, верхние фермы тоже верх 60*40, низ 40*40 и наполнение 40*25, по фермам обрешетка 40*25.
Откатные ворота.
Слева, опорный столб навеса и тумба под откатные сварены вместе и залиты бетоном с щебнем.
Рама ворот из 60*40, наполнение 40*25, профнастил С8.
Покрытие навеса — сотовый поликарбонат премиум, цвет бронза, толщина 8 мм, стыковой профиль разъемный.
Заканчивали по темному, поэтому не делали фоток.
Спустя полтора месяца были там проездом и …
Как то вот так получилось в итоге.

Полный размер

Полный размер

Полный размер

Полный размер

Полный размер

Полный размер

Полный размер

Полный размер

Полный размер

Полный размер
www.drive2.ru
Ворота своими руками: чертежи, схемы, эскизы, конструкция
Практически у каждого владельца загородного строения рано или поздно возникают различные вопросы, касающиеся благоустройству участка, среди которых: какие лучше поставить ворота и можно ли их изготовить своими руками.
Как выбрать оптимальный вариант ворот?

Для того, чтобы выбрать один из вариантов ворот, необходимо узнать о каждой их разновидности по-отдельности. Самыми популярными среди населения считаются распашные и раздвижные конструкции. Каждая из данных типов имеет свои положительные и отрицательные стороны при возведении и дальнейшем использовании.
Распашная конструкция

Фото варианта распашных ворот.





Распашные ворота (книжка) – самая распространенная разновидность ограждения, которую можно увидеть, в основном, на территории частных домов и дачных построек. Она пользуется популярностью, так как для возведения данной конструкции материалы можно подобрать самые доступные, к тому же установить ее своими руками под силу даже новичкам.
Схема ворот-книжки представляет собой несложный каркас в виде двух или трех столбов, на которые с помощью петель фиксируются створки. В зависимости от того, с какой стороны опор они прикреплены, определяется, вовнутрь или наружу двора будут открываться ворота.
Створки, как правило, выполняются из профильной трубы и внешне выглядят как рамная конструкция, которая может быть обшита различным материалом, таким как дерево или листы из металла. При изготовлении рамы и установке обшивки важно учитывать, что их общий вес не должен получиться слишком большим, так как опорные столбы могут прогнуться, а сами ворота не будут функционировать должным образом.
Главным недостатком в использовании распашной конструкции считается наличие свободного пространства для открытия створок. Особенно неудобно ей пользоваться во время зимнего периода, когда появляется необходимость расчищать снег, чтобы заехать или выехать во двор автотранспорту.
Разновидности раздвижных конструкций

Фото консольных ворот с направляющей балкой, расположенной посередине.

Откатные.

Подвесные откатные.
Раздвижные ворота, которые можно сделать самостоятельно, подразделяются на несколько подвидов: консольные, откатные и подвесные. Последние из перечисленных редко используются в качестве части ограждения, так как их конструкция имеет важную отличительную особенность – створки вешаются сверху, что существенно ограничивает высоту автомашин, которые могут заехать во двор.
Консольные и откатные ворота изготавливаются, в основном, для частных и промышленных территорий.
Для справки! Консольные и откатные ворота обычно устанавливают со встроенным автоматическим механизмом, что позволяет дистанционно ими управлять.
Их конструкции схожи тем, что на опоры вешается одна створка, которая при открытии отъезжает в сторону. Благодаря такой схеме, пространство возле ворот используется самым оптимальным образом.
В отличие от откатной, отличие консольной конструкции в том, что балка, по которой перемещается полотно створки, располагается на каркасе сооружения на разной высоте, в зависимости от предпочтения владельца. Кроме того, она имеет только один столбец-опору.
Такая разновидность ограждения считается самой практичной, но и самой затратной по сравнению с распашными и откатными. Кроме того, установить данный тип ворот своими руками будет достаточно сложно, не имея ранее полученного опыта в строительстве подобных сооружений.
Как сделать распашные ворота?

К любому новому виду постройки, следует отнестись серьезно и с особой тщательностью, и к возведению самой простой разновидности ворот – распашных – тоже.
Для изготовления таких ворот потребуется, прежде всего, определиться с их дизайном, а затем подготовить чертеж с точными размерами, благодаря которому можно рассчитать количество необходимого материала. В основном для опор используется брус или металлический профиль, а в качестве обшивки – доски и профнастил.
Независимо от выбранного для строительства материала, перед тем, как использовать, его необходимо тщательно осмотреть на наличие изъянов и обработать. Если это древесина, она пропитывается несколькими слоями антисептического раствора, а в случае с металлом – все коррозийные образования зачищаются с помощью наждачной бумаги. Затем материал разрезается на части в соответствии с размерами, указанными на чертеже. После чего можно приступать непосредственно к возведению конструкции.
Установка столбов

Установку распашных ворот следует начинать с возведения опорных столбов. Для этого необходимо поставить разметки, в соответствии с расстояниями в чертеже, и выкопать 2 или 3 скважины, в зависимости от наличия калитки в конструкции. Их глубина, как правило, составляет не более 1 метра.
Для справки! В некоторых проектах калитка предусматривается в одной из створок ворот, поэтому отдельного столба для нее не потребуется. Однако, такая конструкция не совсем удачна, так как дополнительный вес может повлиять на уровень каркаса и его возможное отклонение.
Дно скважин засыпается песком либо щебнем на толщину около 0,1 м и тщательно утрамбовывается. После чего в них устанавливаются опоры строго в вертикальном положении, низ которых иногда обвязывается каркасом из металла, чтобы обеспечить более надежную фиксацию.
Затем опоры заливают бетонирующей смесью до краев ямок и выжидают ее полного застывания. Как правило, процесс затвердевания цемента занимает несколько недель.
Изготовление каркаса и возведение конструкции

Пока фундамент под опорами застывает, можно заняться изготовлением каркаса ворот. Для этого берут заранее подготовленные заготовки, которые чаще всего, выполняются из стального профиля, и сваривают между собой, чтобы получилась рама. Также на каркас крепятся определенные перекладины, на которые будет фиксироваться обшивка ворот.
Обшивку можно зафиксировать до того, как повесить раму, либо уже после того, как она будет установлена. Крепится материал на створки с помощью саморезов или заклепок, а сам каркас – на заранее приваренные к опорным столбам мощные петли.
После того, как конструкция установлена, приступают к ее внешней отделке. Ее необходимо обезжирить, если она выполняется из металла, загрунтовать и покрасить. Затем, после высыхания краски, на ворота вешаются закрывающиеся устройства, а также элементы декора.
Выполняя все вышеуказанные действия по порядку, изготовить распашные железные ворота даже своими руками будет достаточно просто. К тому же, возведение такого вида конструкции считается наименее затратным, так как материалы для этого можно использовать не только самые дешевые, но и не новые.
Особенности установки откатных ворот

Фото откатной конструкции для дома.
Откатные ворота наиболее распространены на территориях, не подверженных обильным снегопадам и сильному снижению температуры воздуха в зимнее время. Их конструкция выполняется таким образом, что створка при открытии и закрытии движется по швеллеру, вмонтированному в бетонный фундамент.
Для справки! Управляется такой тип ворот, в основном, с помощью автоматического механизма, что позволяет управлять ими дистанционно.
Как и в случае с распашными, начинать возведение откатных ворот следует с разработки эскиза и составления чертежа конструкции с указанием всех размеров. Ширина проема в этом случае обычно составляет не более 4-х метров, а высота должна быть равной основному ограждению.
Кроме того, необходимо заранее подготовить комплектующие, материалы и инструменты для работы. Самыми оптимальными полотнами для этого считаются профили из металла и листы профнастила, однако, некоторые владельцы приусадебных участков используют в качестве обшивки конструкции деревянный брус или кованые чугунные элементы.
Закладка фундамента

Под установку откатной конструкции, необходимо вырыть траншею согласно ранее обозначенным в чертеже размерам. Копается она с той стороны ворот, куда приходится основная нагрузка, то есть, где будет фиксироваться створка.
Далее дно траншеи покрывается слоями щебня и песка, которые необходимо утрамбовать. После чего в нее устанавливается опалубок, поверх которого укладывается гидроизоляционный материал и каркас из армирующих стальных прутьев.
Затем траншея заливается бетонирующей смесью, и в нее кладется швеллер полками вниз до их полного погружения. Продолжать процесс установки ворот можно будет лишь через несколько недель после закладки фундамента, дождавшись полного высыхания цемента.
Опорами в откатных воротах, как правило, служат кирпичные или бетонные столбы, которые устанавливаются по обычной схеме после затвердевания фундамента.
Соединение рамной конструкции и крепление обшивки

Каркас откатных ворот чаще всего делается из профильной трубы с сечением 60х40 или 60х30 мм. Для установки перемычек потребуются стальные прутья с меньшим сечением. Весь материал следует заранее обработать растворителем, разрезать с помощью болгарки на заготовки необходимого размера и покрасить.
Части профтрубы с большим сечением свариваются между собой по периметру, образовывая рамную конструкцию. После чего устанавливаются на внутреннюю ее часть перемычки посередине и по диагонали, а к нижней части приварить несущую балку.
Внимание! Все места сварки следует отшлифовать, чтобы не было грубых наплывов, покрыть антикоррозийной грунтовкой и краской.
Монтаж обшивки можно выполнить сразу, до того как рама будет закреплена на столбы. Для этого профнастил разрезается на листы и закрепляется на каркасе саморезами или специальными заклепками таким образом, чтобы второй и последующие листы шли немного внахлест предыдущему.
При этом, расстояние между местами крепления не должно быть слишком большим, приблизительно на 1 м2 полотна выходит по 6 фиксаторов.
Установка ворот

Для установки готовой конструкции сначала потребуется выполнить сборку откатного механизма. Для этого каретки насаживаются на монтажную пластину и по отмеченному расстоянию привариваются к швеллеру. На них и на створку с помощью болтов и сварки устанавливаются ролики и уловители, работу которых необходимо сразу проверить.
Чтобы изготовить въездные ворота с автоматическим управлением, следует заранее выбрать подходящий комплект автоматики, учитывая размер и вес всей конструкции. Лучше всего ее монтаж выполнять не самому, а доверить установку специалистам.
Как бы сложна ни казалась на первый взгляд установка металлических или деревянных ворот различных конструкций, выполнить все работы для этого своими руками все же можно. При этом, сделанное самостоятельно ограждение не только позволит сэкономить на привлечении специалистов, но и принесет бесценный опыт, который может пригодиться в дальнейшем, а также доставит удовольствие от самого процесса.
rusolymp.ru
Ворота своими руками + чертежи, схемы, фото
Любой дачный участок в обязательном порядке оборудуется забором и воротами. Если у вас есть автомобиль, то процессу по изготовлению ворот следует уделить особое внимание. Сегодня существует несколько типов ворот, которые можно сделать. Большой популярностью пользуются откатные или консольные ворота. В этой статье мы расскажем вам о том, как сделать откатные ворота своими руками.
Достоинства и недостатки консольных ворот
Прежде чем приступить к подробному изучению вопроса о монтаже и изготовлении откатных ворот своими руками, предлагаем вам ознакомиться с их положительными и отрицательными сторонами.
Преимущества:
- За счет отсутствия открывающихся консольных створок, внутри и снаружи двора появляется гораздо большее полезное пространство. Объясняется это тем, что открытые ворота направляются вдоль забора.
- Особая конструкция откатных ворот сводится к тому, что снизу и сверху нет никаких ограничений по габаритам.
- Установленное полотно откатных ворот своими руками подвешивается над уровнем земли около 100 мм. Поэтому если будут обильные снегопады, ничто не будет мешать процессу их открывания.
- Механизм открывания скрыт в балке. Как следствие они защищены от негативного воздействия влаги и других атмосферных явлений.
- Если устанавливается автоматика своими руками, то открыть откатные ворота сможет даже ваш ребенок.
- При соблюдении технологии изготовления фундамента под консоль, устройство откатных ворот способно справиться с серьезной ветровой нагрузкой.
- Изготовленные откатные ворота легко оборудовать автоматикой. Так, открывание может выполняться при помощи дистанционного управления.
Есть и минусы этого решения:
- Если у вас нет никаких навыков в строительстве подобных конструкций, то можете столкнуться с затруднениями. Объясняется это тем, что из всех видов откатных ворот, консольные сделать своими руками сложнее всего.
- Для открывания консольной створки откатных ворот вдоль забора должно быть свободное пространство в 1,5 раза больше, чем размер самих откатных ворот. Не всегда есть возможность обеспечить это.
Разновидности конструкций
Что касается типа откатных конструкций, то ворота подразделяются на консольные, подвесные и откатные по рельсе. Что касается консольных, то это те откатные ворота, большая часть которых подвешена в воздухе. Сама балка оснащается П-образным профилем, внутри которой ступеньки. Внутри этой балки осуществляет движение ролик. Так, вся образующаяся нагрузка от передвижения полотна откатных ворот направляется на балку через ролики. Консольные откатные ворота также подразделяются по месту расположения: вверху, посередине, снизу.
Что касается подвесных, то здесь также имеется балка. Но ее упор осуществляется на два столба, которые установлены в проеме своими руками. Эта балка имеет особое строение. Ее края загнуты внутрь. Внутри балки устанавливаются ролики, по которым осуществляется передвижение откатных ворот.
Если говорить за откатные конструкции по рельсе, то внизу консольной створки крепится ролик, который при открывании двигается по направляющей балке, располагающейся в основании. Данный тип откатных ворот самый простой в изготовлении. Однако если говорить за минус откатной створки, то он сводится к тому, что в рельсе может скапливаться мусор, листва и набиваться снег. Все это будет затруднять процесс передвижения откатных ворот.
На чем остановить выбор
Какой тип откатных ворот лучше трудно сказать однозначно. Однако стоит их разделить по некоторым критериям. Если вы хотите большую надежность, то стоит отдать предпочтенье подвесным откатным воротам. Данная система имеет продолжительный срок эксплуатации. Плюс ко всему, они очень просты в использовании. Их эксплуатационный срок может достигать до нескольких десятков лет. Однако они имеют один недостаток – имеющаяся балка создает ограничения по высоте, въезжающей машине к вам во двор.
Важно! Сегодня существует одно оригинальное решение, которое нивелирует этот недостаток. Так, при открытых откатных воротах перемычка над въездом попросту снимается, а потом одевается по необходимости. Особенно это эффективно, если время от времени к вам заезжает крупногабаритный транспорт.
Если смотреть на вопрос со стороны цены, то откатные ворота по рельсе самые доступные и дешевые. Вам необходимо заложить в направляющую, сварить дверное полотно и снизу закрепить колесико. Ну и самая дорогая конструкция – консольная. Она очень трудная в исполнении. Однако в ее сторону имеется большое количество положительных сторон, перечислим некоторые:
- Очень проста в эксплуатации.
- Можно автоматизировать процесс открывания.
- Никакие природные явления не выведут из строя систему, разве что у вас в поселке будет ураган.
Что необходимо продумать заранее
Итак, прежде всего следует понять, возможно ли в вашем случае установить именно откатные консольные ворота своими руками. Ведь в некоторых ситуациях это вообще невозможно. Итак, прежде всего следует подумать о таких нюансах и моментах:
- Возле откатных ворот вдоль забора должно быть достаточно свободного места как минимум в 1,5 раза. Причина в том, что консольная откатная конструкция имеет не только полотно, закрывающее проем, но и особую конструкцию, которая имеет размер приблизительно в половину всего проема. За счет этого работа всей системы будет проходить исправно.
- Вдоль забора от ворот должен быть свободный прямой участок, так как откатные ворота двигаются только по прямой.
- Рельеф всей площади основания должен быть ровным. Ничто не должно препятствовать свободному передвижению консольной створке ворот.
- В сторону, куда откатываются ворота не должна присутствовать калитка. Она должна быть с противоположной стороны. Плюс ко всему, исключите высокие пороги, чтобы даже пожилым не составляло труда перешагивать его.
- Не рекомендуется использовать откатные ворота в качестве калитки одновременно. Почему? Дело в том, что любой механизм рассчитан на определенное количество циклов. А если при каждом удобном случае открывать откатные ворота, да еще и не полностью, они могут прослужить вам меньше заявленного времени.
Если по всем этим параметрам у вас все проходит, то можно приступать к выполнению расчетов. Также можно подготовить ворота своими руками чертежи, схемы и эскизы конструкции. Наличье этого значительно упростит выполнение поставленной задачи.
Делаем правильные расчеты
Итак, прежде всего следует произвести правильные расчеты, без них никуда. Если проигнорировать этот этап, то вряд ли ваш проект закончится с успехом. Итак, процесс расчет обязательно включает следующее:
- Высота и ширина проема.
- Противовес.
- Общий вес всех элементов откатного полотна.
- Изготовление схемы или чертежа.
При расчете высоты и ширины полотна откатных ворот необходимо учитывать и современный рынок. Например, если необходимо нарастить профиль, то здесь никаких проблем не будет. Но если необходимо раскроить лист профнастила, то здесь возникают определенные затруднения. Плюс ко всему, конечный результат с раскроенным листом профнастила будет не очень красивым.
Также учитывается и вес всей откатной конструкции. Если этого не сделать, то сложно будет подобрать соответствующий механизм открывания ворот. Ведь ролики и другой механизм должен справляться со всей нагрузкой на протяжении всего эксплуатационного срока.
Важно! Если по схеме полотно откатных ворот будет большим, то обязательно учитывается ветровая нагрузка. Поэтому вам следует оценить особенность ветров в вашей местности. Но в любом случае необходимо в конструкцию откатного каркаса ворот задать небольшой запас прочности.
Итак, проще всего – получить готовый эскиз от специализированной компании. Но в этом случае вам придется попрощаться с энной суммой денег. Но при желании такие расчеты делаются своими руками без привлечения специалистов в этом профиле. Далее приводим вычисления, которые касаются консольных ворот.
Высота и ширина проема
Так, ширина консольной створки ворот будет равна ширине проема, минимальному расстоянию между центрами кареток, технологическим отступам закрытия/открытия. В любом случае в конечном счете консольная створка должна быть большей от габаритов проема, чтобы она перекрывали все возможные щели и зазоры.
Противовес
Вот это один из важных моментов. Чтобы консольные ворота имели уравновешенность обязательно сооружается противовес. Наличье противовеса будет содействовать тому, чтобы на каретки приходилась равномерная нагрузка. Поэтому логично предположить, что противовес будет большим.
В любом случае размер противовеса не должен быть меньше чем на 40 процентов от ширины ворот. В идеале, когда противовес имеет 50 процентов ширины консольной створки. Так, если консольная створка имеет 4000 мм, значит, противовес должен иметь 2000 мм.
Вес
Для вычисления этих показателей, заранее следует определить из какого материала будут делаться откатные ворота. Например, профнастил имеет 4 кг/м2. Что касается стали, то лист, толщиной в 2 мм имеет 17 кг/м2. Так, если учесть все детали и элементы, то вес всей консольной створки вместе с каркасом может достигать до 200 кг.
Если вы уже определились с этими данными, то вы сможете правильно подобрать балку, механизм, ролики и тому подобное. Например, если ворота имеют вес в 300 кг, то балка может иметь толщина 3,5 при габаритах 9×5 см. В любом случае требуется запас прочности.
Прочность фурнитуры
Если вы не рассчитаете возможную нагрузку на фурнитуру, то все может закончиться быстрым выходом ее из строя. Итак, для откатных ворот необходимо приобрести следующую фурнитуру:
- Ролики.
- Поддерживающая шина.
- Улавливатели.
Как исключить вероятность негативных последствий от воздействия ветровой нагрузки? В этом случае необходимо отталкиваться от таких параметров: ветровая нагрузка в 12 м/с составляет до 90 кг/м2. Вся эта масса равномерно распределяется по всем откатным воротам. Более того, выбранная фурнитура должна также иметь запас прочности, чтобы при сильном ветре она не дала сбой в работе. Так, учитываете боковой момент в 100 кг/м2. Его следует умножить на 8 кг/м2. В результате получится 800 кг/м2. На каждый опорный элемент будет приходиться нагрузка до 180 кг и это немного. Итак, выбранный вами ролик или другая фурнитура должна иметь запас прочности и быть мощнее от заявленной массы полотна минимум на 30 процентов. Но помните, это никак не будет влиять на срок эксплуатации. Данный параметр непосредственно зависит от расстояния между центрами кареток.
Другие расчеты
Не менее важно убедиться в качестве рейки откатных ворот. Также опоры под роликовый механизм должны справиться со всеми нагрузками. Следует заранее рассчитать, какое количество анкеров будет использоваться для крепления. На столбах опоры должны быть правильно рассчитаны закладные. Что касается обустройства фундамента, то его стоимость может занимать около 40 процентов от всего бюджета по изготовлению консольных ворот.
Какие комплектующие выбрать
Как уже говорилось, выбор комплектующих будет зависеть от веса, ширины и высоты откатных ворот. Стоит выделить несколько хороших компаний, которые действительно производят качественные комплектующие для изготовления и установки консольных ворот:
- Flatelli Comunello и Combi Arialdo – итальянский бренд.
- Doorhan и Ролтэк – отечественный бренд.
- Alutech – из соседней Беларуси.
Так, допустим, в вашем случае будет использоваться рельса, имеющая длину в 6 метром. Как сделать правильный выбор комплектующих к ней? Для этого следует учесть длину ворот и добавить к этому 40 процентов. Еще продумываются возможные нагрузки и учитывается длина самой балки. Итак, если в вашем случае проем имеет ширину 4 метра, то выполняете такое действие: 4 м + 40% = 5,6 метров. Отталкиваясь от этого, вам стоит купить набор с балкой в 6 метров.
Последовательность монтажа откатных ворот
Итак, теперь предлагаем вам рассмотреть всю последовательность монтажа консольных ворот своими руками. Сразу отметим, что сложный этап – создание чертежа ворот. В остальном вся работа выглядит следующим образом:
- Заливка фундамента.
- Прокладка электричества, если планируется сделать процесс открывания откатных ворот автоматическим.
- Установка ворот своими руками.
- Монтаж ответного столба.
- Монтаж автоматики.
- Проверка работы.
Итак, теперь шаг за шагом, вкратце ознакомимся с технологическим процессом. Но сперва определим список необходимых инструментов, которые пригодятся при изготовлении консольных ворот:
- Сварочный аппарат. Без него никак не обойтись, ведь каркас преимущественно изготавливается их профильной трубы. Лучше использовать инверторную модель, так как такой сварочный агрегат обеспечит прекрасный сварочный шов.
- Воздушный компрессор. Он поможет вам сделать качественную покраску уже готовых консольных створок. Краска будет ложиться на поверхность равномерным слоем.
- Болгарка.
- Отрезные диски на болгарку.
- Шлифовальные диски на болгарку.
- Молоток.
- Дрель.
- Строительный уровень.
- Зажимы.
- Струбцины.
- Рулетка.
- Маркер и прочее.
Итак, при наличье всего этого инструмента и необходимого материала можно сделать ворота своими руками по чертежам, фото и видео. Поэтому будьте предельно внимательными к ним, а также к просмотру подготовленного видеоматериала в этой статье.
Делаем фундамент
Прежде всего изготавливается фундамент. Для этого выполняется разметка будущей ямы. Так, отмеряете на участке расстояние, которое в 1/2 равно ширине проема. От ворот в сторону участка, ширины ямы будет равна приблизительно 500 мм. В качестве столбов опоры можно использовать опорные столбы от уже имеющегося забора. Если такой возможности нет, то обязательно устанавливается ответный столб. Для его установки выкапываете яму напротив проема.
В процессе изготовления фундамента также побеспокойтесь о прокладке электрического кабеля. Его можно уложить в специальный рукав или трубу, которая заливается в бетон. Это необходимо делать в том случае, если будет использоваться система автоматики.
Что касается глубины фундамента под консольные ворота, то она должна быть глубже уровня промерзания почвы в вашем регионе. Как следствие, глубина будет в районе 2000 мм. Далее вам следует взять швеллер, из которого будет изготавливаться закладная. Его укладка должна выполняться так, чтобы он как можно плотнее прилегал к столбу опоры. Направление швеллера должно идеально совпадать с будущим ходом створки. Плюс ко всему, швеллер необходимо выложить строго по уровню.
На следующем этапе осуществляется заливка фундамента. Бетон должен незначительно скрыть закладной элемент. После заливки должно пройти как минимум шесть дней. Как только бетон застыл, можно приступать к следующему процессу – установка ворот своими руками.
Существует еще несколько способов того, как обустроить фундамент под консольные ворота. Так, существует технология свайно-монолитного фундамента. Для этого в почву вам следует вкапать два армированных столба. Между собой они соединяются при помощи швеллера.
Важно! Данный способ не требует большого количества бетона. Как следствие он считается менее трудоемким и менее затратным. Также необходимо меньшее время на ожидания его высыхания.
Под каждый армированный столб вынимается грунт при помощи садового бура. Диаметр одного столба может достигать до 300 мм. Эти отверстия располагаются как можно ближе к забору. Более того, между ними должна быть траншея, которая заполняется бетоном.
Другой способ закладки фундамента сводится к тому, чтобы забить свайно-винтовой фундамент. Это наиболее простое решение, ведь не следует проводить земляные работы. Также исключается процесс бетонирования. Вся суть работы в том, что сваи закручиваются в почву. Предварительно их следует обработать эпоксидной смолой, чтобы исключить образование коррозии.
Каркас ворот
На следующем этапе, пока залитый фундамент сохнет, можно приступить к свариванию каркаса откатных ворот. За основу можно использовать уже готовые чертежи ворот. Сварить консольную створку можно из профильной трубы. Это прекрасное решение, ведь дальнейшая их облицовка не будет создавать никаких затруднений.
Итак, для сваривания каркаса откатных ворот, вам необходимо нарезать все элементы соответствующих размеров. Выкладываете их на ровной поверхности. Сперва рекомендуется сваркой нанести прихватки, чтобы была возможность проверить диагональ и ровность всей откатной конструкции каркаса. Если все отлично, то каждый шов тщательно обвариваете. После этого сварочные швы следует отшлифовать болгаркой со специальным шлифовальным кругом. Перед их установкой, можно обработать каркас антикоррозийным составом своими руками.
Установка ворот
Следующий этап – монтаж откатных ворот своими руками. Сперва выполняете разметку. Вам необходимо натянуть шнурок, который будет обозначать направление движение консольной створки. Далее выполняется крепление регулировочных площадок. После, определите крайние положения роликовых опор. От края проема следует отступить 150 мм вдоль закладного элемента. Проводите для первой тележки касательную. Чтобы определить положение второй тележки, то от общей длины откатных ворот отнимаете 100 мм по плоскости закладного элемента.
Сделав все вычисления и измерения, выполняется установка откатных ворот своими руками. Сваркой привариваете к второй тележки регулировочные площадки. После этого консольная створка вкатывается в проем. Сразу регулируете ее по уровню и по всем положениям. Если все четко, то осуществляется заключительное крепление.
Так, этот процесс выглядит следующим образом:
- С роликов аккуратно снимаете откатные ворота.
- Также следует снять с регулировочных площадок и тележки.
- Теперь привариваете к закладному элементу площадки.
- На них фиксируете роликовую тележку.
- После этого на тележке полностью задвигаете ворота, то есть приводите и в закрытое положение.
- Чтобы произвести окончательную регулировку, используете гаечный ключ. Все подгоняется четко по размеру.
Кроме всего прочего, вам необходимо проконтролировать, чтобы крепление тележки было выполнено правильно. Для этого внутри несущего профиля в месте крепления к площадке следует послабить гайки, расположенные сверху. После этого, ворота необходимо несколько раз подряд открыть, а потом закрыть. Если во время этих испытаний вы обнаружили что откатные ворота двигаются сравнительно свободно, то гайки следует затянуть обратно. Если же с трудом, то это признак наличья перекоса в перпендикулярной плоскости к движению откатных ворот.
Выполнив полную регулировку консольных ворот, можно приступать к монтажу ролика концевого. Его установка выполняется внутри несущего профиля. Крепление происходит посредством специальных крепежных болтов. После этого крышка к профилю ворот приваривается.
Совет! Некоторые это крепление делают при помощи болтов. Но учитывая нагрузки, лучше все приварить.
Здесь стоит учесть еще один важный нюанс. В период снегопада внутрь несущего профиля может набиваться снег. Как следствие, это будет препятствовать нормальному передвижению откатных ворот. Чтобы подобное не случилось в вашем случае, рекомендуется с внутренней стороны откатных ворот приварить заглушки несущего профиля.
При установке ворот своими руками также выполняется крепление фиксатора и роликов. Ролики обязательно должны захватывать верх полотна откатных ворот. Кронштейны, в свою очередь, направляются в сторону столбов опоры.
Еще один элемент – уловитель. Устанавливается он снизу. Его наличье позволяет уменьшить нагрузку на роликовые тележки, когда ворота полностью закрыты. Чтобы выполнить правильную установку уловителя своими руками, консольные ворота полностью закрываете и так определяете их месторасположение. Также монтируется и верхний уловитель.
Обшивка и покраска консольных ворот
Заключительный этап работ сводится к тому, чтобы покрасить каркас ворот. Для этого используется специальная краска, способная справляться с прямыми ультрафиолетовыми лучами и резкими скачками температуры. Цвет выбирается по цвету облицовки, например, профнастила или по цвету забора. Перед нанесением слоем краски, вам необходимо убедиться в том, что на всей поверхности отсутствуют зазубрены и другие торчащие элементы, которые будут портить весь внешний вид. После шлифовки, поверхность обрабатываете ацетоном, с целью обезжиривания. Далее наносится слой грунтовки. Намного проще наносить краску пульверизатором. Это исключит образование потеков и тому подобное. Покраска осуществляется в два слоя.
Далее выполняется облицовка откатных ворот. Один из доступных материалов – профнастил. Его крепление можно осуществлять при помощи заклепок. Некоторые используют саморезы по металлу. Монтаж листов выполняется внахлест на одну или две волны своими руками.
Установка фурнитуры
Также необходимо установить замок своими руками, если он предполагается. Замок врезается в профильную трубу. Чтобы защитить его от прямого попадания дождя и других осадков, для замка можно сварить защитный кожух.
Установка автоматики
Если вы решили установить автоматику на откатные ворота своими руками, то крайне важно сделать правильный выбор системы автоматики. Она должна быть устойчивой к негативному воздействию окружающей среды. Что касается ее выбора, то обязательно учитывайте следующие параметры:
- Мощность двигателя. Он должен иметь небольшой запас по мощности. Опять же, мощность двигателя выбирается исходя из общей массы консольных ворот. А если в вашей местности крепкие морозы, то двигатель, тем более должен справляться с такими нагрузками.
- Из чего изготовлена шестерня в редукторе. Самый надежный материал – металл. Он прекрасно справляется со всеми воздействиями окружающей среды.
- Способ или тип выключателя. Если перед вами металлический концевой выключатель, то будьте готовы к тому, что при морозах он может давать сбои в работе. Поэтому предпочтение следует отдавать магнитным аналогам.
Заключение
Итак, вот мы и рассмотрели все особенности изготовления откатных ворот своими руками. Как видно, здесь существует большое количество нюансов, которые крайне важно учитывать. Мы надеемся, что этот материал был полезным для вас и получили предостаточно пищи для размышления. Чтобы закрепить и усвоить весь изложенный материал, предлагаем просмотр подготовленного видеоматериала по изготовлению ворот откатных своими руками.
Отправить комментарий
2proraba.com
Ворота своими руками + чертежи, фото и видео
Любой приусадебный участок огражден забором и воротами. Такие конструкции обеспечивают безопасность личного имущества. Выбор и возведение ворот можно осуществить самостоятельно. Перед работой понадобится создать чертежи, учесть основы установки столбов и правильно подобрать материал конструкции. В процессе установки лучше следовать советам опытных строителей. При установке ворот своими руками понадобятся чертежи, фото и видео готовых конструкций.

Преимущества распашных ворот
Вне зависимости от конструкции, владелец участка может выбирать метод открывания створок – наружу или внутрь. Монтаж распашных ворот осуществляется без особых сложностей. Если правильно выполнять все этапы постройки, конструкция будет служить долго и исправно. Классические распашные ворота обладают рядом преимуществ:
- высокая функциональность;
- компактность;
- отсутствие ограничений по размеру;
- возможность использования любых материалов;
- удобство эксплуатации.
Также такие ворота отличаются простотой монтажа, они нетребовательны к обслуживанию, достаточно прочны и могут быть возведены в самых разных дизайнерских решениях. Также распашные конструкции отличаются продолжительным сроком службы. Если появится необходимость, на них можно установить систему автоматического управления.

К недостаткам таких ворот относят:
- важность учета ветровой нагрузки, актуальной для данного региона;
- необходимость освобождения достаточного пространства для открытия- закрытия ворот.
Простой учет этих факторов позволяет понять, что плюсов у распашных ворот гораздо больше, чем минусов.
Конструкция распашных ворот
Вне зависимости от размеров, отделки, направления открытия и материалов исполнения распашные ворота включают:
- Опорные стойки. Столбы должны соответствовать типу ворот.
- Рама. Она выполняется из металла или дерева. Главное требование к раме – большая жесткость.
- Обшивочный материал. Большой популярностью пользуется металлопрофиль.
- Петли. Их выбирают в соответствии с массой ворот и их конструктивными особенностями.
- Замки и запоры. Они представляют собой устройства, которые предотвращают попадание злоумышленников на территорию участка. Также такие механизмы имеют разнообразное исполнение.
Каждая деталь распашных ворот выполняет важную функцию. Правильная установка каждой из них является залогом долгой службы ворот. При постройке ворот своими руками необходимы чертежи, схемы, эскизы конструкций.

Ворота из профлиста
Наибольшей популярностью среди частных застройщиков пользуются распашные ворота. Створки могут открываться как в одну, так и в обе стороны. В качестве материала, который крепится к каркасу, используют профнастил. Также в полотне ворот можно сделать калитку.
Популярность распашных ворот достигается за счет продолжительного срока службы таких изделий. Металлические конструкции не требуют ремонта в сравнении с деревянными. Нередко ворота из профнастила дополняют системами автоматики. Кроме того, профилированный лист имеет ряд преимуществ:
- дешевизна используемых материалов;
- простой процесс изготовления;
- достаточно большой срок эксплуатации;
- внешняя привлекательность;
- отличные характеристики.
Недостатком ворот из профлиста является подверженность воздействиям ветровых нагрузок. Такие створки необходимо устанавливать на усиленные петли. Также стоит заранее позаботиться о правильной установке столбов. К недостаткам таких конструкций относится необходимость освобождения пространства для открывания.

Однако достоинства ворот из металлопрофиля существенно превосходят их недостатки. Тем более многие проблемы не так критичны, чтобы обращать на них внимание.
Установка распашных ворот
Если распашные ворота планируется изготавливать из профлиста, понадобится установить достаточно крепкие столбы. Для опор лучше выбрать трубы диаметром от 80 мм. Также отлично справится с нагрузками и квадратная труба.
Створки сваривают из труб квадратного сечения. Лучше выбирать изделия с габаритами 10х25х3000 мм. Для их соединения потребуется использовать сварку. Каркас необходимо усилить диагональными натяжителями. Также обязательно предусматривается место для запора, замка и ограничителей.

Начинаются работы с монтажа опор. Этот этап требует определенной подготовки. Также важно пользоваться готовыми чертежами вороти фото. Из видео, на которых поэтапно выполняется монтаж распашных ворот, также можно получить немало информации. Полезная информация по теме находится в этом материале:
Способы установки столбов
Опорные столбы могут быть просто забыты в землю или забетонированы. Во втором случае опоры окажутся намного прочнее и надежнее. Также не стоит забывать о необходимости правильной установки петель. При забивании необходимо погрузить опоры в грунт на 130 см.
Использование такого метода установки столбов для ворот позволяет сэкономить время. Практически сразу после забивания опор можно крепить петли и вешать створки.
Другим способом является бетонирование. Его лучше совмещать с армированием опоры. Глубина ям составляет 150- 200 см. Диаметр каждого котлована зависит от сечения закапываемой трубы. Сначала подготавливается подушка (из песка и щебня, а затем заливается бетон).
Важно! Перед бетонированием в яму стоит поместить гидроизоляционный «стакан» из рубероида. Благодаря этому бетонное молочко не уйдет в землю, что сделает раствор более прочным. Бетон периодически надо утрамбовывать, выгоняя лишний воздух.

Изготовление и установка створок
После установки столбов понадобится выполнить створки. Этому процессу следует уделить особенно много времени. Работа выполняется поэтапно:
- Сначала на ровную поверхность необходимо выложить профильную трубу или уголки, и сварить форму по чертежу.
- Чтобы прочность конструкции была высокой, важно укрепить створки диагоналями.
- Когда каркас будет готов, можно начинать его обшивку профилированным листом. Материал должен быть толщиной 2 мм. Слишком толстый металл выбирать не следует – тогда придется думать об усилении стоек.
- После этого устанавливают петли. Сначала их одной половинкой приваривают к раме ворот, а затем второй – к столбу.
- Когда все работы выполнены, необходимо позаботиться о безопасности – на ворота устанавливают замок и запор.

Такой же принцип лежит в основе монтажа калитки. Покраску створок можно выполнять как на весу, так и на земле – еще до монтажа на опоры. Разница в том, что на уже установленных воротах в процессе нанесения краски могут появиться потеки. По этой причине нужно отнестись к работам с особой внимательностью.
Раздвижные ворота
Раздвижные ворота отличаются особой функциональностью. Они не занимают много места, бесшумны, открываются достаточно быстро. Существует несколько типов раздвижных ворот:
- откатные;
- подвесные;
- консольные.
Меньше всего востребованы ворота подвесного типа. Это объясняется появлением ограничений проезда, сложностью установки, множеством требований таких конструкций.
Если в регионе регулярно наблюдаются сильные заморозки, устанавливать откатные ворота на своем участке не стоит. Направляющие будут покрываться наледью, что снизит функциональность конструкции. Такие ворота будут требовать постоянного ухода. В остальном они достаточно хороши.

Соорудить откатные ворота своими руками может каждый. Для этого надо иметь чертежи и определиться с размерами створки. Также могут помочь различные видео и фото готовых конструкций. Основным условием монтажа откатных ворот является необходимость освобождения пространства вдоль забора.
На поверхности грунта устанавливают специальный профиль. Створка будет двигаться именно по нему. Сверху ворот также устанавливают специальные ролики. Чтобы ворота останавливались в нужном месте, проводят монтаж специальных фиксирующих элементов. Полезная информация находится в этом видео:
Установка консольных ворот
Консольные ворота считаются одними из самых сложных. Преимущество таких конструкций заключается в отсутствии необходимости оборудовать наземный рельс. Ворота не касаются поверхности грунта во время движения. Также при установке консольных ворот нет ограничений по высоте. Кроме того, необходимо устанавливать только 1 опорный столб. Используются такие конструкции в любое время и при любой погоде.
Створка выполняется достаточно просто. Она состоит из рамы и обшивки. К нижней части створки приваривают направляющую, внутрь которой помещаются роликовые каретки. По ним ворота могут перемещаться в обе стороны.

Совет! Как только каркас будет сварен, необходимо зачистить сварочные швы. Кроме того, со всех поверхностей следует убрать следы коррозии.
Створка консольных ворот условно делится на две части – ту, что закрывает проем, и ту, которая служит противовесом. Вторая часть должна иметь длину, равную 35- 50% длины первой. Под консольной частью оборудуется специальный фундамент, способный выдерживать значительные нагрузки во время эксплуатации ворот.
Для оборудования фундамента понадобится подготовить швеллер, который будет равен длине консольной части створки. Также стоит выкопать котлован, в который будет залит бетонный раствор. Длина ямы должна на несколько десятков сантиметров превышать длину швеллера. Фундамент заливается на глубину ниже уровня промерзания грунта. Кроме того, чтобы надежно закрепить швеллер в фундаменте, понадобится выполнить специальный арматурный каркас.

После того как заливка фундамента будет завершена, можно устанавливать створку. Такая работа также имеет свои нюансы и требует особого подхода.
Необходимая фурнитура
Необходимые для установки консольных ворот элементы представлены в строительных магазинах в большом разнообразии. Чтобы правильно выбрать фурнитуру, понадобится определиться с массой створки и ее габаритами. Также важно знать ширину проема.
Стандартный комплект элементов для установки раздвижных консольных ворот включает:
- направляющую балку;
- заглушки, которыми оборудуется балка;
- концевые ролики;
- дополнительное устройство, оснащенное 2 роликами;
- роликовые опоры;
- ловители роликов.
Такой набор является необходимым при установке консольных ворот. В процессе выбора важно узнать мнение специалиста.

Подъемно- поворотные ворота
Подобные конструкции отлично подходят для стандартного гаража. Применять их в качестве ворот на участке не рекомендуется – они имеют ограничение по высоте. Принцип работы конструкций достаточно прост – полотно сдвигается вверх, принимая горизонтальное положение. Такие ворота быстро открываются и закрываются, отличаются относительной простотой монтажа.
Когда происходит открывание створки подъемно- поворотных ворот, она начинается немного выступать наружу. Это стоит учитывать, подгоняя машину к гаражу. Если не рассчитать расстояние, ворота могут задеть автомобиль.
Такие ворота стали популярны отчасти благодаря своей компактности. В сложенном состоянии они практически не занимают места. Также они отличаются доступностью. Выполняется обшивка рамы из дерева, металлических листов или композита. Если сравнивать такие конструкции с распашными, они явно имеют больше преимуществ для установки в гараже.

Для изготовления подъемно- поворотных ворот понадобится начертить схему. Особенности монтажа конструкций:
- При подготовке к установке подъемно- поворотной конструкции понадобится выполнить 2 рамы – для створки и ту, по которой ворота будут перемещаться.
- Внутри гаража рама окажется г-образной формы.
- Полотно оборудуется створками сверху и снизу.
- Также к раме монтируют рычаги, поднимающие полотно в процессе открывания.
- Обязательно предусмотреть амортизаторы, которые будут смягчать удар полотно во время закрытия.
Опорную раму крепят к проему при помощи анкеров. Установку автоматики следует проводить только после всех процедур по монтажу ворот. Работу лучше доверить специалистам, которые помогут провести электропитание.

Установка ворот подъемно- поворотного типа не займет много времени, если хорошо подготовиться к работе. Также процесс ускорится, если пригласить опытного мастера. Кроме того, необходимо пользоваться чертежами конструкции заранее рассчитать размеры створки и направляющей рамы. Как устанавливаются такие ворота, можно узнать из видео:
Итоги
Устанавливать ворота любого типа лучше согласно чертежам. Распашные конструкции чаще используются в индивидуальном строительстве, раздвижные – как для закрытия въездов на частные территории, так и при ограждении промышленных объектов. Подъемно- поворотные конструкции идеально подходят для оборудования въезда в гараж.
Каждый тип ворот обладает определенными преимуществами. Также у них имеются и определенные недостатки. Самый простой и доступный вариант – распашные ворота с двумя створками. В процессе монтажа таких конструкций особое внимание следует уделить установке опорных столбов.
bouw.ru
Ворота своими руками. Чертежи, фото и видео
ПОДЕЛИТЕСЬ
В СОЦСЕТЯХ
При обустройстве ограждений вокруг дома или дачного участка обязательно возникает вопрос: как сделать ворота своими руками. Чертежи, фото и видео материалы, приведенные в этой статье, помогут разобраться с процессом установки таких конструкций, а также определиться с выбором способа открывания. После тщательного просчета всех тонкостей и нюансов можно подобрать оптимальную, подходящую конкретному участку конструкцию и заранее подготовить все необходимое.

Современные распашные ворота
Распашные ворота
Самым простым и довольно удобным считается вариант распашных ворот со встроенной калиткой. Подобную схему чаще всего используют при обустройстве ограждений для частного дома ввиду простоты конструкции и возможности установки своими руками.

Чертеж обустройства распашных ворот с калиткой
Согласно этой схеме створки и калитка устанавливаются на обычные петли, приваренные к опорным столбам. Их крепление может производиться двумя способами: с внутренней и внешней стороны опор. От варианта монтажа и разновидности петель зависит сторона открывания ворот. Чаще всего створки изготавливаются в виде металлических рам, выполненных из профильной трубы или металлического уголка. Обшивка может проводиться из разных отделочных материалов, сюда можно отнести:
- древесину;
- листы тонкого металла;
- профнастил.

Схема создания кованых ворот своими руками
Неплохо смотрятся и кованые створки, но их создание лучше всего доверить мастеру ввиду сложности такого процесса. Без специальных навыков невозможно собрать такие ворота своими руками. Чертежи, фото и видео для облегчения самостоятельного монтажа других типов ворот можно найти ниже.
Распашные ворота своими руками (видео 1)
Монтаж распашных ворот
Если распашные ворота планируется выполнять из сравнительно легкого материала – профнастила, то в качестве опорных столбов прекрасно подойдут металлические трубы, имеющие диаметр 80-100 мм. Для такой задачи подойдет и профилированная квадратная труба.
Сами створки выполняются из труб с квадратным сечением, но меньшего размера. Рекомендуемые габариты 40х25х3000 мм. С помощью сварки изготавливают каркас створок в виде обычных рамок и затем усиливают поперечинами или диагоналями из того же материала. Обязательно нужно предусмотреть на створках места для засовов, замков и ограничителей открывания-закрывания.

Распашные ворота в частном доме
Начинают монтаж подобных конструкций с установки опорных столбов. Ниже описано, как выполнить монтаж опор для ворот своими руками. Чертежи, фото и видео помогут разобраться во всех тонкостях работ.
Статья по теме:
Устройство ворот для частного дома. Фото возможных вариантов. Виды ворот для частного дома. Фото вариантов установки. Обустройство распашных и раздвижных въездных групп. Автоматизация ворот.
Установка опорных столбов: два способа
Установка опор может производиться двумя методами: обычным забиванием или бетонированием. Чтобы качественно установить металлическую трубу в землю, необходимо заранее проделать отверстие и с помощью большой кувалды забить опору. Уровень забивания составляет примерно 120-130 см.
Такой способ считается самым простым, гарантирует быстроту выполнения и высокую надежность будущей конструкции. После установки опоры нужно закрепить к стойкам ограждения или, если требуется к дворовым постройкам. Далее привариваются навесы, на которые впоследствии подвешиваются собранные заранее створки.

Схематическое изображение опор и каркаса распашных ворот
В качестве другого способа установки опор можно использовать бетонирование. Его можно выполнить с армировкой или без обвязки металлической арматурой. Для этого подготавливают отверстия, диаметром примерно 25-30 см, а глубиной 150-200 см. Эти значения могут изменяться в зависимости от сечения опорного столба. На дно подготовленных ям засыпают так называемую подушку – слои песка и щебенки, которые потом утрамбовываются.

Распашные деревянные ворота
После этого столб устанавливается на подготовленную подушку, при необходимости устанавливается арматурная обвязка и вся конструкция заливается бетоном. Для этого можно использовать цемент марок М-200, 250. Пока раствор свежий, столб устанавливают по уровню и фиксируют дополнительными подпорками. Неплохо смотрятся опорные столбы, выполненные из кирпича. В этом случае места для крепления петель встраиваются прямо в кладку.
Распашные ворота своими руками (видео 2)
Раздвижные ворота
Из всех вариантов раздвижных ворот можно выделить три самых распространенных. Они бывают:
- консольными;
- откатными;
- подвесными.
Наименьшей популярностью из этих разновидностей пользуются подвесные ворота. При их установке ограничивается высота проезда, так как сверху монтируется металлический профиль, на который подвешивается створка.
В регионах, где зимы холодные и снежные не стоит устанавливать откатной вариант ворот. Для их полноценного использования придется постоянно очищать их ото льда и снежных заносов, что не всегда удобно. В остальном подобные конструкции довольно хороши, они не требуют большой площади для полного открывания.

Конструкция откатных ворот
Совсем несложно изготовить откатные ворота своими руками. Чертежи, фото и видео материалы помогут разобраться с особенностями монтажа таких конструкций. Для откатных ворот нужно предусмотреть свободное пространство вдоль забора. Примерные размеры створки приведены на рисунке.
На поверхности земли оборудуется специальный рельс или профиль, по которому створка будет передвигаться с помощью специальных роликов. В верхней части также устанавливаются роликовые элементы и дополнительные скобы, которые будут придерживать полотно при передвижении.

Раздвижные ворота на роликах
Как установить консольные ворота своими руками.
Чертежи, фото и видео этапов работ
Консольные ворота считаются сложнее в устройстве, чем их собратья. Но именно специальное устройство гарантирует надежную работу даже в морозное время года. Основные преимущества ворот такого типа: отсутствие ограничения по высоте и возможность установки только одного опорного столба. Они не имеют контакта с наземным рельсом, поэтому их использование в любую погоду не доставляет особых проблем.
Откатные ворота своими руками (видео)
Особенности сборки створки и подготовки фундамента
Полотно ворот монтируется на заранее подготовленную раму, выполненную из металлической трубы, профиля или уголка. Снизу к раме приваривается направляющая балка, внутри которой устанавливаются роликовые каретки. Именно по ним основание перемещается в обе стороны, осуществляя открытие и закрытие конструкции.

3D-эскиз консольных ворот
Полезный совет! После сварки каркаса, полученные швы необходимо зачистить болгаркой, а также устранить со всей поверхности очаги коррозии.
Чтобы узнать необходимый размер таких ворот, нужно условно их разделить на две части: закрывающую проем и противовес. Длина противовеса (консольной части) должна составлять 35-50% от ширины необходимого проема. Под консольную часть требуется обустройство фундамента, чтобы выдерживать нагрузки, создаваемые воротами при движении.

Откатные ворота в частном доме
Полезный совет! Стандартный проем для удобства въезда через ворота должен составлять 4 метра. Соответственно длина консольной части будет около 2 метров.
Для этого необходимо подготовить швеллер №20, длиной равной консольной части ворот. Затем выкапывается котлован, примыкающий к опорному столбу. Его габариты должны быть немного больше размеров швеллера, а глубина ниже уровня промерзания почвы. Также необходимо создание как минимум двух арматурных каркасов для привязки швеллера к фундаменту.

Швеллер 200 мм укладывается вплотную к столбу. Швеллер 160 мм укладывается с отступом 50 мм от столба. Закладные в столбах монтируются заподлицо с кирпичной кладкой (отделкой)
После заливки готовому фундаменту требуется около месяца, чтобы окончательно выстояться, но уже через неделю он наберет максимальную прочность, после чего можно начинать монтаж створки.

Примеры конструкций различных видов откатных ворот
Необходимая фурнитура
Фурнитура для консольных ворот, представленная на строительном рынке, довольно разнообразна. При ее выборе нужно учитывать ширину проема и вес готовой створки. Стандартный набор включает в себя:
- 6 метровая направляющая балка;
- две роликовые опоры;
- концевые ролики;
- ловители концевых роликов;
- дополнительное устройство с 2 роликами;
- заглушки для концов балки.

Распашные металлические ворота
Полезный совет! Чтобы работа механизмов не вызвала проблем, ролики необходимо крепить в одной плоскости.
В комплекте обычно находится инструкция по сборке, с ее помощью можно собрать всю конструкцию ворот своими руками. Чертежи, фото и видео, собранные в этой статье, помогут детально разобраться со всеми нюансами.
Распашные ворота (видео)
ОЦЕНИТЕМАТЕРИАЛ Загрузка… ПОДЕЛИТЕСЬ
В СОЦСЕТЯХ
СМОТРИТЕ ТАКЖЕ
REMOO В ВАШЕЙ ПОЧТЕremoo.ru
