Входная дверь из дерева своими руками – Как сделать деревянную дверь своими руками: фото-инструкция
Как сделать деревянную дверь своими руками: фото-инструкция
Двери изготавливаются из досок, мебельных щитов или брусьев по предварительно подготовленным чертежам. Чтобы разобраться, из чего и как делают деревянные двери, ознакомимся с их разновидностями.
Типы дверей по конструкции
Коробка из массива обладает следующими плюсами:
- низкая теплопроводность;
- высокая прочность и морозостойкость;
- долговечность;
- экологичность;
- возможность реализовать разные дизайнерские идеи.

В то же время деревянное полотно обладает следующими особенностями:
- необработанное сырье быстро поглощает влагу;
- наличие трещин и сучков;
- горючесть.
Чтобы снизить абсорбцию, доска просушивается, обрабатывается горячим паром и пропитками.
Массивные двери
Перед изготовлением деревянных дверей рекомендуется определиться с особенностями производственного процесса. Дача может быть защищена от грабителей массивным полотном, для изготовления которого применяются толстые шпунтованные либо строганные доски. Полученная конструкция укрепляется горизонтальными либо наклонными перемычками.
Для изготовления массивной двери используют дерево плотной структурыДля изготовления входной массивной двери используют кедр, лиственницу либо дуб. Для такой древесины характерна плотная структура и фактурный рисунок.
Если проект дачного участка включает баню, тогда для обустройства проема используется липа, сосна. Баня должна эксплуатироваться после обработки древесины антисептиком.
Филенчатые двери
Для изготовления филенчатого полотна используются доски и брусья, полученные путем склеивания ламелей. Затем заготовка покрывается шпоном. Прежде чем соорудить полотно, подготавливается чертеж. На нем указывают конфигурацию филенок. Она может быть одинаковой либо разной. Вместо деревянных элементов можно использовать стекло.
Филенчатые двери чаще всего устанавливают внутри помещений
Чтобы обустроить вертикальные и поперечные элементы, потребуется клеить брус. Для изготовления полотна применяется половая доска соответствующей толщины. Для фиксации отдельных элементов применяются шипы.
Схема сборки двериЕсли для изготовления полотна применяется филенка, нужно учесть:
- на надежность изделия прямое влияние оказывает количество поперечен;
- самодельный короб формируется из бруса, а рейка или пластик используется для изготовления панели;
- штапик применяется для фиксации панелей.
Так как филенчатая дверь отличается небольшой толщиной, она считается оптимальным вариантом, чтобы обустроить межкомнатный дверной проем.
Щитовые двери
Щитовой короб изготавливается из ДВП, шпона либо ламината. Сборка каркаса производится из досок. В качестве щита используют листы ДВП, МДФ либо ДСП.
Конструкция щитовой двериРассматриваемые полотна классифицируются на следующие виды:
- сплошные – заполняются брусьями, скрепленными между собой;
- пустотелые – изготавливаются из боковых и поперечных брусьев. Для обшивки используется вагонка;
- мелкопустотные – имеют разное заполнение.
Чтобы самостоятельно создать качественное полотно, каркас предварительно покрывается клееной фанерой. Материал укладывается в 2 слоя. Размер 1 слоя – 24 мм. Подобная технология предотвращает деформацию покрытия.
Инструменты для работы
Из инструментов потребуется:
- чтобы создать пазы и отверстия, потребуется фрезер;
- ножовка;
- чтобы отшлифовать торцы дверей, потребуется рубанок;
- стамески;
- молоток;
- шуруповерт.
Стандартный набор инструментов для изготовления двериДля сборки дверей понадобятся следующие материалы:
- доски из шпунта;
- саморезы;
- клей.
Приобретенная древесина дополнительно просушивается. Доски укладывают так, чтобы они не соприкасались между собой.
Выбор пиломатериалов
Перед сборкой полотна составляется индивидуальный план предстоящих работ. Особое внимание уделяется выбору досок. При этом учитывают следующие критерии:
- финансовые возможности;
- приобретение «деловой древесины;
- остаточная влажность – 15%;
- проверка ровности материала;
- толщина досок – 25-50 мм;
- массив шлифуется.
Пошаговая инструкция по изготовлению
Любой поэтапный план по изготовлению двери предусматривает сборку щита. Если предусматривается установка полотна в баню, тогда осуществляется простая сборка щита. Для фиксации досок используются поперечные и продольные элементы. Теплый короб для дома изготавливается с учетом эстетичности. Собранный щит шлифуется.
Изготовление двери из массива
В пошаговый план сборки полотна входит правильный выбор расходного материала. Чтобы сделать щит, потребуются шпунтованные доски толщиной более 25 мм. Затем расходный материал распиливается на отрезки.
Шпунтованные доски должны быть ровными и без пазов на лицевых сторонахПри сборке щита рекомендуется учитывать направление годовых колец. Для соединения шпунтованных досок используется замок «шип-паз» и столярный клей. Если расходный материал – нешпунтованные доски, тогда их собирают с помощью клея.
Работа производится на поверхности большой площади. Собранное покрытие поджимается струбцинами. Если щит высох, его обрабатывают фрезером. Чтобы была хорошая звукоизоляция, рекомендуется собрать щит из нескольких слоев досок. Полученная конструкция зажимается струбцинами.
Склейка массива
Традиционные способы перевязки досок в двери из массиваДля обвязки применяются поперечины, установленные вверху, в середине и внизу покрытия. На полотне выполняется разметка для пазов. Выполняемые углубления должны составлять ½ толщины расходного материала.
Схема сборкиС помощью фрезера вырезают отверстия. Сложнее вырезать пазы ручным способом. Для этого потребуется стамеска. Для вставки поперечины используется резиновый молоток. Если на полученный щит планируется нанести рисунок, предварительно карандашом обводится его контур по шаблону. Для вырезки используется фреза.
Вырезы фрезеруются по предварительно нанесенному карандашом рисункуЗатем выполняется покраска полотна с предварительной обработкой антисептиком. На полотне и коробе делают разметку для монтажа петель. Аналогичным образом выполняется разметка для ручки и замка. Последний этап – навес полотна в проем.
Обработка антисептиком и лакомИзготовление щитовой двери
Инструкция по изготовлению щитовидного полотна позволяет использовать мелкозаполненные доски. Специалисты выделяют 3 метода сборки такой конструкции:
- предварительная сборка рамы с последующим заполнением его внутреннего пространства. С помощью такой технологии можно создать цельный либо мелкозаполненный щит;
- отдельное изготовление щита с последующей его фиксацией в раму. Последний этап – обшивка отделочным материалом;
- изготовленный щит монтируется в раму, облицовывается.
Чтобы собрать полотно по первой методике, проводится первичная обвязка. Она определит размер будущей двери. Для конструкции используется брус сечением 30×120 мм. Расходный материал нарезается с учетом размеров будущей конструкции.

Следующий этап – выбор типа соединения в углах. Специалисты советуют воспользоваться методом «в полдерева». Точная разметка будущих пазов – важный этап сборки щита.
Схема соединения элементов каркасаВсе пазы промазывают клеем. Соединение бруса проводится на ровной, но большой площади. Если клей высох, соединения фиксируют нагелями. Для этого выполняют сквозные отверстия диаметром 8-10 мм.
Для облицовки рамы используется фанера либо ДВП. Выполняется разметка, рама снимается. Рама возвращается на прежнее место. Её нужно прижать к облицовочному материалу, обработанному клеем.
Для облицовки используется фанера либо ДВПЧтобы заполнить внутреннее пространство, используется МДФ. Его склеивают с нижним листом отделочного материала. Но предварительно клей должен хорошо подсохнуть. Параллельно рекомендуется подготовить расходный материал для внешней облицовки полотна.
Внутреннее заполнение придает полотну жесткостьЕсли потребуется приклеить 2 листа, тогда первый лист – это ДВП, а второй – ламинированный материал либо ШФ. Полученная конструкция отправляется под пресс.
Можно обшить дверь натуральными деревянными рейками. Их фиксируют к раме. Сделанные отверстия заполняются смесью из клея и опилок. Если поверхность высохла, её обрабатывают наждачной бумагой. Все углы и торцы обрабатываются фрезой. В готовое дверное полотно врезается ручка и замок, фиксируются петли. Дверь монтируется в соответствующую коробку.
По аналогичной методике изготавливается каркасная дверь – внутреннее пространство дополнительно укрепляется брусьями. Но перед началом работы проводятся точные расчеты, подготавливается чертеж.
Изготовление филенчатой двери
Чтобы изготовить филенчатую дверь, потребуются специальные столярные инструменты и опыт. Составные элементы конструкции изготавливаются из фанеры, массивных досок. Предварительно подготавливается чертеж, на котором отмечаются 4 филенка.
Филенчатая дверь в разрезеРама изготавливается из бруса. Предварительно его обрабатывают фрезой. Затем с одной его стороны делается паз. На поперечинах вырезаются шипы, а края обрабатываются фрезером. В пазы вставляют филенки и средники.
Схема сборки филенчатой двериТорцевая часть покрытия, которая будет выходить на торец полотна, должна быть ровной. В вертикальных элементах выполняются прорези для сборки конструкции.
Чтобы сделать филенки, используется фанера либо ДСП. Некоторые филеночные элементы заменяются стеклом. В таком случае дополнительно используют штапики. Филенки с ровной плоскостью монтируются и обрамляются штапиком.
В противном случае филенки обрабатываются фрезером. Таким способом создается рельефная конфигурация. Для изготовления филенков используется фанера. Каждый элемент будущего полотна обрабатывается антисептиком, просушивается.
Схема фрезеровки 1
Схема фрезеровки 2Все детали собираются в единую конструкцию на ровной поверхности, а каждый шип промазывается специальным клеем. Пошаговая сборка двери:
- вклеивание поперечин в пазы вертикальных брусьев;
- монтаж средников;
- монтаж оставшихся филенков;
- вклеивание вертикального бруса;
- фиксация штапиков для отделки.
Чтобы установить шипы в пазы, применяется прорезиненый молоток. Полотно подбивается со сторон. Для проверки углов используется строительный уголок. Покрытие сжимается струбцинами.
На полотне выполняются разметки для установки петель и ручки с замком. Монтаж фурнитуры производится после завершения отделочных работ. Для финишной отделки применяется акриловая краска либо лак. Чтобы получить темное покрытие, используется морилка.
Утепление и звукоизоляция
Для проведения теплоизоляционных работ применяется утеплитель. С его помощью обклеивается та часть полотна, которая покрыта ДВП. Если поролон вылезает за рамки, его обрезают ножом. Сверху фиксируется отделочный материал – ткань либо кожзаменитель. Для фиксации материала применяется степлер. Подробнее об этом читайте в статье “Как утеплить входную деревянную дверь“.
Схема утепления двериПокраска
На следующем этапе проводится обработка и декорирование изготовленной конструкции. При этом рекомендуется придерживаться следующего плана:
- обработка покрытия наждачной бумагой либо шлифовочной машинкой;
- пропитка древесины антисептиком. Первый слой должен хорошо подсохнуть. Затем обработка повторяется;
- полотно покрывается специальной шпаклевкой, которую можно заменить грунтовкой. В таком случае полотно обрабатывается 2 раза. Но каждый нанесенный слой должен хорошо высохнуть. Для этого потребуется около 2 дней;
- для финишной обработки покрытия применяется краска, лак, морилка. Морилку нужно наносить на грунтовку. С учетом нужного оттенка наносится соответствующее количество слоев морилки. Для высыхания каждого слоя понадобится 4 часа. Чтобы зафиксировать результат, морилка покрывается двумя слоями лака.
Для финишной обработки двери применяется краска, лак, морилкаСпециалисты советуют обрабатывать дверь специальными защитными средствами от влаги и вредителей. Если дверное полотно будет устанавливаться в квартиру, тогда его покрывают антипиреном. Чтобы выполнить более сложный вариант декорации, потребуется помощь специалиста. Подробнее о покраске и обработке двери читайте в статье “Покраска деревянных дверей“.
domzastroika.ru
Входная деревянная дверь своими руками

Входная деревянная дверь в частный дом, фото
Входная деревянная дверь может быть изготовлена любым человеком с правильно поставленными руками. Двери являются одним из главных элементов для интерьеров большинства зданий.
Они несут определенные функции: защита от нежеланных посетителей, сохранение тепла, ограждение от лишних шумов и т.д. Подобные конструкции в нынешнее время все чаще изготавливают из металла, а вот внутренние почти всегда деревянные.
Остановимся подробнее на самом процессе изготовления.
Вкратце о чем пойдет речь:
- Шпонки
- Филенчатые
- Блоки
- Крепление для блоков
- Наличники
- Штифты
- Установка петель
- Виды петель
- Зазоры
- Регулирование
- Замки
Материал
Шпонки

как сделать
Главными конструктивными элементами для дверей являются доски, которые образуют полотнище, шпонки в кол-ве двух штук и подкос. Он располагается по диагонали и служит предохранению от перекосов.
Обычно откос и шпонки подбиваются на полотнище. Для этого используются бруски. В более сложных случаях шпонки врезаются непосредственно в доски. Для этих целей шпонки изготавливаются по размерам как на рисунке.
Пропилы делаются циркулярными электрическими пилами, выставляя их под нужным уклоном (около 60 градусов).
Филенчатые

Типы филенок
Деревянная дверь своими руками, скорее всего, будет филенчатой. Деревянная филенчатая дверь — гладкий, резной или профилированный щит, вставляемый в обвязку. Такой щит изготавливается из нескольких (или одной) досок.
В брусках делается паз, а доски филенки на торцах имеют профиль, входящий в паз обвязки. Филенчатые собираются из обычных, качественно обработанных обвязок (брусков), с последующей вставкой в них филенок.
Филенки существуют:
- плоские
- наплавные
- с окладными калевками (профили фигурные, сочетающие прямые и кривые линии),
- с фигареями (края, выструганные фигурно)
Часто филенчатые изделия производятся с остеклением.
Бывают наружными и внутренними:
- Наружные имеют толщину от 40 до 60 мм.
- Внутренние — менее 40 мм.

Филенчатые изделия со стеклом
Блоки
Из чего изготавливают
Деревянные двери состоят из полотнища и рамки. Все это в целом называется дверным блоком.
Наружные двери имеют рамку из бруса толщиной приблизительно 75-150 мм. На внутренние используется брус толщиной 40-50 мм.
Рамка
Деревянная входная дверь своими руками изготовленная (если она наружная или банная) должна иметь нижний брусок, предназначенный для улучшения теплоизоляционных свойств.
Рамка выбирается (по внутренней поверхности) в четверть. Это нужно для более плотного прилегания полотнища к рамке. Таким образом, улучшается звукозащита и сохранение тепла.
Щель под полотном необходима не только с целью проветривания, но и для компенсации деформации в ходе ее эксплуатации. Нужна щель так же и на случай застила полов ламинатом, линолеумом и т.п.
Рамки для деревянных дверей в срубах, которые подвержены оседанию, имеют пазы по вертикальным брускам, в сочетании с шипами по стенам.
Крепление блоков
В тех строениях, которые не подвержены осадке (каркасно-щитовые), рамка дверей крепится к стойкам стен саморезами и гвоздями, находящимися в четвертях. В этом случае они менее заметны, так как прикрыты полотном. Углубления смазываются шпаклевкой или закрываются заглушками в цвет.
Крепятся блоки исключительно по уровню как по горизонтали, так и по вертикали при помощи клиньев. Для вертикальных брусков используется не меньше трех гвоздей. В срубах крепление делается по нижнему венцу. Окончательное крепление производится через год-два (вслед за осадкой).
Рамка в каменных домах крепится к закладным брускам. Существуют и др. методы (анкерные болты, арматурные штыри). Щели между стенами и рамками можно заделывать паклей или цементным раствором.
Наличники
Существуют наружные и внутренние наличники. Внутренние имеют ширину 60-200 мм. Они обязательно должны быть шире брусков коробки не менее чем на 200 мм. Классический вид наличников имеет 5-миллиметровый паз в с внутренней стороны (см. Установка наличников).
Наружная сторона может быть как простой, так и рельефной. Углы наличников образуют «ус» под 45 градусов.В начале запиливаются и устанавливаются по уровню вертикальные наличники.
Потом под верхнюю их часть подставляется наличник (горизонтальный). Отмечается угол карандашом с одной стороны, отпиливается. Затем тоже делается с другим углом.
Деревянные входные двери своими руками устанавливаются крепления наличников финишными гвоздями или саморезами.
Штифты

Штифты
Дефекты, наиболее часто встречающиеся — коробление из-за сухого материала. Если имеются штифты, то в случае коробления она не рассыплется. Отсутствие штифтов недопустимо.
Петли
Делая входные деревянные двери своими руками, не обойтись без петель. Петли бывают более 20 видов (см. Петли для межкомнатных дверей). Высота петлей может колебаться от 30 до 40 см. Для домашних дверей достаточно 75-150 см.

Типы петель
К самым распространенным относятся полушарнирные съемные, состоящие их двух карт (одна со стержнем, другая без). Иногда используются петли на шарнирах. Петли могут быть левыми и правыми, а также универсальными.
Зазоры
Прежде чем устанавливать петли, полотнище кладут так, что бы между проемом и им не возникал зазор по линии петель. Для этого используют обрезки оргалита или же одинаковые рейки, размещая их так, чтобы иметь равномерный зазор.
Петли врезаются на расстоянии равном их высоте, отмеренным от внутреннего угла рамки. Если же в том месте есть шипы, от них нужно отступить на 1 см.
После установки прокладок, измерения расстояния, на котором будут находиться петли, карты обводятся карандашом по контуру. Гнезда для петлей выбираются стамеской из расчета глубины толщины. Поверхность петель должна быть заподлицо с дверным полотнищем, а также бруском стойки.
Полезный совет! Дверные петли прикрепляются саморезами. Если используются цветные саморезы, то нужно знать, они непрочные. Черные саморезы для дерева лучше закалены, более прочные.
Регулировка дверей
Если они со временем начнут неплотно или со скрипом закрываться, их нужно отрегулировать. Регулировка (см. Как отрегулировать входную дверь: ухаживаем правильно) представляет собой смазку петлей, подтяжку саморезов, замену их на более длинные, установку клинышков в отверстия (если они разболтаны).
Смазочными материалами являются густые и твердые консистенции: кусочки графитового стержня, солидол, смазки. После снятия или в результате ее приподнимания, нужно натолкать смазки в петлевое отверстие в определенном количестве. Если спустя время смазка станет выделяться из петель, значит, ее положили слишком много.
Иногда они сильно проседают, цепляясь за половые доски. Для того, чтобы устранить это нужно поместить между картами петель шайбы определенной толщины внутреннего и внешнего диаметра.
Также можно переставить петли выше, или же простругать нижний торец дверного полотна. Состругивать нужно умеренно, чтобы при допустимой влажности помещения сохранить минимальный зазор.
Изготавливая своими руками входные деревянные двери, нужно иметь в виду, что если между филенками полотнища образовались щели, их нужно заклеить и зашпаклевать, или перебрать, или закрыть планками.
Полезный совет! Чтобы избежать ударов двери полотном или ручкой о стену при открывании, на пол нужно закрепить буфер (упор). Чем дальше он будет располагаться от петель, тем лучше.
О дверных замках
Лучше, если замка нет, но имеется дверная ручка. В случае правильной подгонки, ручки вполне хватит для закрывания двери с хорошей плотностью. Если же дверь немножко приоткрывается, на нее набивают кожаную набойку.
Набойка набивается нужной толщины на полотнище ближе к ручке, или на верхний торец. Ручку нужно обязательно прикреплять к обвязке, но не к филенчатой доске, поскольку так будет прочнее. Устанавливая ручку, ее отводят подальше от проема, чтобы не поранить руку.
На наружные двери устанавливаются замки. Наиболее часто применяются замки висячие с наличием петлей-ушек, а также накладные и врезные. Самый простой вариант — висячие, но они менее надежны.
Также на наружные двери могут устанавливаться цепочки, доводчики, щеколды, засовы, глазки и другие элементы.
Сборка деревянной двери своими руками
Выбор материала двери
Перед тем как сделать деревянную дверь своими руками, необходимо подобрать материал. Для этих целей лучше всего использовать породы древесины, которые отличаются прочностью, но при этом легко обрабатываются. К таким относятся:
| ип древесины | Особенности |
| Сосна | Среди достоинств можно выделить такие моменты, как:
Единственное, следует отметить, что сосна со временем может рассыхаться, поэтому не всегда уместна. |
| Ольха | Также отличается простотой обработки и небольшим весом. Единственное, ольху необходимо тщательно обрабатывать антисептическими составами, так как она сильно подвержена загниванию. |
| Береза | Достаточно твердая и плотная древесина, обладающая красивой текстурой. |
| Дуб | Является очень прочной и долговечной древесиной, однако, тяжелой в обработке. Кроме того, дуб стоит довольно дорого. |
| Бук | Прочная и долговечная порода, устойчивая к механическим нагрузкам. Единственное, выполняя двери из бука, следует учитывать, что данная древесина восприимчива к воздействию влаги. Поэтому она требует особой обработки. |
| Лиственница | Является прочным и долговечным материалом, устойчивым к воздействию влаги. Единственным недостатком лиственницы является достаточно высокая стоимость. |
| Клен | Обладает хорошей прочностью и при этом легко обрабатывается. Среди других достоинств клена можно выделить устойчивость к влаге. |
Обратите внимание!
Если вы хотите сделать деревянные двери в баню своими руками , то лучше использовать липу, так как при нагреве эта древесина не выделяет смолы.
Надо сказать, что изменить те или иные качества древесины позволяют специальные пропитки.
Поэтому основными критериями выбора обычно являются:
- Вес материала;
- Стоимость;
- Доступность.

Пример чертежа филенчатой конструкции
Изготовление полотна
- Первым делом надо вырезать лист ДВП, который по размерам должен подходить к дверной коробке.
- По периметру лист обшивается досками. Если в наличии имеется фрезер, следует выполнить профили для соединения досок между собой по принципу шип/паз. Прикрепить доски к ДСП можно саморезами и столярным клеем.
- Затем по центру точно так же монтируются ребра жесткости.
- Далее с двух сторон изделие обшивается фанерой и шпоном в качестве финишного покрытия.
Существует еще одно технология изготовления щитовой конструкции, в которой используется утеплитель. Для ее изготовления понадобится доски толщиной 25 мм и шириной не менее 50 мм, а также листы фанеры.

Изготовление утепленной двери
Итак, теплая деревянная дверь своими руками изготавливается в такой последовательности:
- Вначале из досок нужно выполнить каркас, который представляет собой раму и поперечины посередине. Для придания большей жесткости также можно использовать раскосы.
- Далее с одной стороны к каркасу крепится фанера.
- Затем в каркас укладывается теплоизолятор, и изделие с другой стороны обшивается листовым материалом.
Гораздо более сложной в исполнении является филенчатая конструкция, так как она состоит из множества деталей. Поэтому браться за ее изготовления лучше после получения опыта изготовления более простых изделий. Правда, после изготовления всех элементов, филенчатая дверь собирается как конструктор, без каких-либо сложностей.

Схема конструкции филенчатой двери
По устройству, она напоминает оконную раму, так как состоит из каркаса (обвязки) и филенок, которые заполняют пространство рамы.
Совет!
Так как дверь представляет собой разборную конструкцию, когда приходит в негодность какая-либо ее деталь, можно выполнить ремонт деревянных дверей своими руками , заменив испорченный элемент новым.
Итак, процесс ее изготовления выглядит следующим образом:
- В первую очередь выполняется каркас, который, как правило, состоит из четырех деталей, соединяющихся между собой по принципу шип/паз. Кроме того посередине обычно устанавливается горизонтальное ребро жесткости, которое крепится к вертикальным стойкам каркаса.
- С внутреннего торца всех деталей выполняется паз для вставки филенок.
- Затем изготавливаются филенки. Они могут быть выполнены из самых разных материалов – цельной доски, МДФ, ДСП, фанеры, стекла и пр.
- Филенки вставляются в пазы и дополнительно закрепляются декоративными штапиками.

Готовая филенчатая дверь
Надо сказать, что после изготовления дверей, вне зависимости от типа ее конструкции, сразу же выполняется монтаж всей необходимой фурнитуры. В частности, врезаются навесы, замки и пр. Кроме того, изделие нужно вскрыть лаком или покрасить.
Монтаж
- Замеры. Прежде чем покупать изделия, проведите замеры ширины и высоты проема (см. Размеры входных дверей). Если финишное напольное покрытие отсутствует, добавьте к расчетам его планируемую высоту.
- Сборка коробки. Разложив детали коробки на полу, просмотрите присутствие всего необходимого. Вновь проведите замеры. Не забывайте, одна ошибка, и работа пойдет насмарку. Склейте детали по углам, закрепив их саморезами.
- Запенивание. Поставьте коробку в проем. Зафиксируйте раму клиньями по углам и по центру. Проверьте уровнем установленную раму. Напротив клиньев установите жесткие распорки. Затем заполните полости межу стенкой и коробкой пеной.
- Монтаж. Дождитесь высыхания пены, через 12 часов нужно удалить ее торчащие куски. Потом удалите клинья, уберите распорки. Теперь пришел черед наличников. Запилите предварительно необходимую длину под углом сорок пять градусов, высверлите отверстия для гвоздей. Наличник приложите к проему, зафиксируйте его финишными гвоздями. Дверь можно устанавливать на петли.
- Ручки. После завершения всех работ, осталось прикрутить ручки. Врезать замок лучше заранее.
sdelaidver.com
Входная деревянная дверь своими руками доступна многим
Любой дом требует защиты от внешнего мира с его взглядами, холодом, шумом. Выполняет такую задачу входная дверь металлическая или деревянная. Современный рынок предлагает различные модели, но многие мужчины могут сделать ее самостоятельно, не затратив много средств.
Любое помещение должно быть оснащено качественной входной дверью. На фото представлен вариант деревянной модели.Входная деревянная дверь своими руками — это тема нашей статьи. Возможно ли сделать качественную дверную конструкцию в домашних условиях? Что для этого требуется? Подойдет ли она для защиты жилья?
Входная деревянная дверь своими руками: разные технологии
Она устанавливается на любом здании, даже подсобных помещениях. Это может быть калитка, деревянная в баню, сарай и, конечно же, в дом. Фасады из массива бывают щитовые или цельные (филенчатые). Каждая конструкция выполнена из цельного или сборного дерева.
Щитовые двери самые простые для изготовления своими руками. Имея в наличии:
- инструменты плотника;
- несколько досок одного размера;
- бруски;
- гвозди;
- петли;
- саморезы.
Собрать изделие можно за пару часов. Рассмотрим конструктивные особенности щитовой входной модели.
Щитовая входная дверь: разные способы изготовления своими руками
Конструкция довольно проста. В основе идет щит, собранный из досок равной ширины, длины, толщины. Заготовки обязательно должны быть обработаны, чтобы не занозить руки при изготовлении и использовании. Если в наличии есть доски разной длины, их необходимо опилить до нужного размера. Для щита можно использовать цельный лист фанеры или ДСП, если блок будет в дальнейшем облагорожен.
Щитовая дверь может быть собрана разными способами. Шпонки и подкос — один из вариантов крепления полотна.Для сборки понадобится брус, который будет распилен на детали для обвязки: шпонки, подкос.
- Шпонки — это горизонтальные элементы, к которым закрепляется щит. Шпонок должно быть две штуки для верхней и нижней части щита.
- Подкос — это соединительный элемент, устанавливаемый враспор шпонкам по диагонали. Если входная деревянная дверь изготавливается из досок, подкос обеспечит сохранность пропорций конструкции. Полотно не поведет и не перекосит.
- Если использовать только шпонки для жесткости двери, их придется устанавливать по периметру щита, что увеличит нагрузку на петли и коробку.
Выбираем подходящие петли. Их ассортимент достаточно большой. Учитывайте способ открывания (направо или налево) и вес полотна. Петли должны быть надежными.
Подготовьте замок и ручку для установки на полотно после сборки конструкции. Выбор зависит от ее функционального. Будет она ограждать дом, баню, сарай, гараж.
Подготавливаем материал согласно предварительно произведенным замерам входного проема.
Подберите доски одного размера, разложите на полу и соедините в цельное полотно шпонками и подкосом.Раскладываем детали на полу и приступаем к сборке.
- Традиционным способом сборки щитовой двери является соединение элементов гвоздями и молотком.
- Современные технологии позволяют ускорить процесс и обеспечить лучшее сцепление досок с брусками. Возьмите дрель, шуруповерт и саморезы по дереву нужного размера. Соберите щит в единую дверь, проверяя все этапы уровнем и рулеткой.
- В прежние времена опытные столяры собирали изделие без гвоздей, делая специальный запил в досках под установку шпонок в углубление. Такая технология требует опыта в обращении со слесарным предметами и хорошего глазомера.
Входная конструкция из цельных листов своими руками
К щитовым видам фасадов относятся и комплекты, собранные из цельных листов. Для примера возьмем фанеру.
- Опиливаем листы и брус по габаритам проема.
- Обвязку из шпонок делаем по периметру.
- Враспор закрепляем подкос по диагонали короба.
- Закрепляем наружный лист фанеры на каркас.
- Закладываем утеплитель, изоляционный слой внутрь будущей двери.
- Зашиваем каркас вторым листом фанеры. Цельная щитовая конструкция готова.
Облицовочным материалом может выступать любой строительный лист, способный придать эстетический вид.
Далее следует монтаж фурнитуры, схожий для всех типов щитовых конструкций — установите замок, петли и ручку. (Подробно о способах установки дверной фурнитуры можно ознакомиться на страницах нашего сайта).
Щитовую дверь можно собрать без гвоздей, если уметь обращаться с фрезерными инструментами и иметь хороший глазомер.Деревянная щитовая дверь требует обработки средствами против гнили, влаги. Ведь дерево по своим свойствам подвергается влиянию окружающей среды, от которой должна быть защищена, чтобы продлить срок службы. Можно использовать бесцветный лак или специальную краску по дереву.
После окончания сборки. Можно смело производить монтаж в проем. (см. Установка деревянной двери).
Такая дверная конструкция не является надежной по причине слабости фасада. Для основательной защиты дома от посторонних людей требуется более современная и прочная входная деревянная дверь. Ее тоже можно изготовить своими руками, но приложив больше сил и используя более крепкий массив. Рассмотрим дверь филенку.
Филенчатая дверь своими руками
Филенчатая дверь — это более серьезная конструкция для входного проема. Может устанавливаться как в частном доме, так и в квартире.
Филенчатые двери более надежны для входного проема. Могут иметь разный внешний вид.Состоит из бруса по всему периметру, называемому обвязкой. Имеет с одной внутренней стороны специальный паз, профиль для вставки. Внутреннюю часть полотна представляет филенка из массива, фанеры, тонкого ДСП. Вставка может быть;
- цельной/составной;
- гладкой/выпуклой;
- глухой / со стеклом.
Ставится в паз коробки или с помощью специальной декоративной накладки, которая крепится с помощью клея (в основном используется в конструкции со стеклом).
При изготовлении филенчатой двери используйте качественную древесину.При производстве филенчатого фасада своими руками возьмите дерево более плотной текстуры, чтобы дверь со временем не повело, она не разбухла или не растрескалась от перепада температур. Часто используют сосну как более доступный материал, но желательно брать дуб, кедр, лиственницу.
Определившись с тем, какая она будет, закупаем все необходимое:
- брус для горизонтальных и вертикальных стоек обвязки;
- вставка в соответствии с желаемым рисунком фасада;
- фурнитуру;
- крепежи;
- отделочные материала и средства.
Приступаем к сборке своими руками.
- Не забудьте перед началом работ еще раз произвести замеры проема, учесть зазоры для установки коробки. Если все замерено правильно, переходим к изготовлению деревянной двери своими руками.
- Разложите инструменты, материал, фурнитуру на полу, подложив картон.
- Рулеткой отмечаем на брусе все размеры будущей дверной обвязки.
- Отпиливаем детали пилой.
- Соединяем предварительно бруски в единую конструкцию без использования саморезов. Производим своего рода примерку деталей. Для большей жесткости дверного полотна лучше установить горизонтальный брус в трех местах: верх, центр, низ, если вставка не подразумевается из цельной панели во всю высоту полотна. Дополнительно можно усилить места, где будет врезаться замок, ручка.
- Переходим к установке выбранной вставки. Она вставляется в специальный паз, подготовленный заранее на обвязке из бруса. Если сделать профиль по внутренней стороне бруса не получилось, можно использовать штапики для закрепления вставки к обвязке двери. Но такой метод менее надежен, чем заглубление филенки в паз.
- Все элементы готовы, соответствуют размерам, соединяем их в единую конструкцию.
Филенчатая дверь требует больших усилий и материалов для производства.
Деревянная филенчатая дверь собрана. Дело остается за обработкой древесины специальными составами, лаком или краской.
Работы со стеклянной вставкой и наборными панелями
Выбирая входную деревянную дверь со стеклом или сложным рисунком филенки, процесс сборки может немного усложниться.
Стеклу необходима дополнительная рамка, которая обеспечит устойчивость стекла в раме. Можно его закрепить дедовским способом, используя штапики, маленькие гвозди или клей. Но лучше воспользоваться внутренней обрешеткой, имеющей различный рисунок проемов.
Стеклянная вставка требует дополнительной обрешетки, чтобы не выпасть из профиля при сильном ударе.Обрешетка выполняется из тонких брусков, закрепляется в основную обвязку. Далее ставится стекло. Край можно дополнительно обработать силиконом, чтобы было надежнее. Сверху стекло закрывается симметричной накладкой, которая крепится на жидкие гвозди или силикон.
Особый подход необходим и к филенчатым дверям, вставка которых собирается из отдельных дощечек в специальный замок. Рисунок может быть разнообразным. Такие заготовки лучше купить в готовом виде, чем подгонять каждый паз и профиль самостоятельно. Обычно при сборке необходимо добавить центральный вертикальный брус, в который будут вставляться наборные элементы вставки.
В остальном производство входной деревянной двери филенчатого типа своими руками осуществляется по вышеописанному алгоритму.
Любая деревянная дверь может быть собрана своими руками, если иметь большое желание и способность пользоваться инструментами.Особо стоит отметить, что мы изготавливаем входную дверь, которая должна надежно защитить от холода и шума. Проектируя дверной блок, предусмотрите толщину бруса, чтобы в паз могли войти две панели (внешняя и внутренняя), изоляционный слой, утеплитель. Так вы обеспечите дом качественной дверью.
Если деревянная дверь для входа будет слишком тонкой, полотно необходимо утеплить, скрыть щели от проникновения сквозняков. Если есть желание сохранить внешний вид двери снаружи, утепление производим изнутри любым удобным способом:
- обшить кожей;
- уложить слой теплоизоляции внутри обвязки и сверху закрыть листом фанеры или тонкого ДСП (воспользуйтесь советами из нашей статьи «Как утеплить входную дверь»).
Рассмотрев несколько способов производства, входная деревянная дверь своими руками становится доступной любому мужчине, стремящемуся создавать уют в доме самостоятельно. Дополнительно рекомендуем просмотреть видео инструкцию о том, как сделать входную деревянную дверь в домашних условиях:
vseprodveri.ru
Деревянная дверь своими руками чертежи
Входная дверь из дерева своими руками: рекомендации по подбору материалов, сборке и установке
В этой статье мы расскажем о том, как сделать входную деревянную дверь своими руками. В настоящее время приобрести готовую входную группу не представляется чем-то особенно сложным. Но, цена такой покупки наверняка будет высока. В то же время, ставить новую дверь из магазина на дачу необязательно, так как несложную конструкцию можно собрать своими руками.
Итак, изготовление дверного полотна и сопутствующих элементов полностью оправдано. Но, перед тем как приступить непосредственно к изготовлению, выберем схему по которой будем работать и определимся с подбором производственных материалов.

Схема сборки входной двери
Требования, предъявляемые к входным дверям

Схема устройства стандартной квартирной двери
Входные двери, которые можно установить в загородном доме, должны отличать следующие качества:
- малая теплопроводность ;
- устойчивость к негативному воздействию факторов внешней среды ;
- устойчивость к механическим нагрузкам ;
- привлекательный внешний вид ;
- надёжность фурнитуры ;
- доступная цена производственных материалов и, как следствие, невысокая себестоимость готового изделия.
Теперь мы знаем, какие входные деревянные двери своими руками можно изготовить, осталось выяснить, из каких материалов эти изделия можно собрать.
Выбор материалов

На фото заполнение дверного полотна утеплителем
На рынке представлен широкий выбор пиломатериалов, которые отличаются стоимостью и эксплуатационными характеристиками.
Предпочтительнее приобретать древесину хвойных пород, так как такие пиломатериалы относительно недороги, а кроме того, после дополнительной обработки отличаются высокой прочностью и долговечностью.
Древесину бука, дуба и прочих твёрдых пород брать не стоит. Во-первых, это дорого, а во-вторых, такие материалы трудно обрабатывать вручную.

Обрезная доска из древесины хвойных пород
В продаже можно встретить самую разную дверную фурнитуру, включая петли и запорные механизмы для деревянных дверей. Представленная в продаже фурнитура отличается конфигурацией, надежностью и ценой.
В качестве бюджетного варианта можем порекомендовать продукцию отечественных предприятий. Качество отечественной фурнитуры на порядок выше, чем качество “no name” изделий, предложенных на рынке.
Выбор схемы сборки

Такие чертежи входной деревянной двери своими руками может нарисовать каждый
Можно приложить немалые усилия, потратить много времени и в результате собрать красивую дверь, которая несомненно украсит ваш дом. В то же время, можно изготовить простую и, тем не менее, прочную дверь, которая будет надежной, и при этом будет неплохо выглядеть.
Рассмотрим, какова инструкция сборки простой двери с размером полотна, подобранным в соответствии с уже имеющейся в наличии дверной коробкой. В предложенной конструкции обвязка будет изготовлена из трех горизонтальных и двух вертикальных элементов.

Дверная коробка и полотно — вид сверху
Дверь, в нижней части, будет полностью закрытой (глухой). Эту часть полотна можно будет выполнить из специально приобретённой шпунтованной доски, которая в процессе монтажа будет собрана в щит.
Совет: Для того чтобы упростить сборку щита можно заготовить специальную половую доску с фрезерованной боковиной (с одной стороны шип, с другой — паз).
Верхняя часть конструкции представляется собой раму с остеклением. Остекление будет удачно сочетаться с оформлением дачной веранды.
Приступаем к сборке

Горизонтальные планки для обвязки
- Готовим элементы обвязки.
Это три планки, одна из которых будет располагаться в нижней части, другая – посредине, а третья — сверху.

Нижняя и средняя планка с пазами для щита
- 222В заготовках, которые будут расположены в верхней части и посредине, при помощи стамески выбираем углубления под шипы, как это показано на фото. Глубина выемок, а, следовательно, величина шипа должна быть не меньше 40 мм.
Углубление делаем следующим образом:
- Размечаем контур.
- В дрель вставляем сверло диаметром 1 см и сверлим на нужную глубину два отверстия, так чтобы они располагались в крайних точках размеченного контура.
- Фиксируем доску в тисках и при помощи узкой стамески и молотка выбираем древесину из углубления.
- 3333Изготавливаем вертикальные и горизонтальные элементы обрешётки, которые шипами встанут в предварительно выбранные пазы.
Шипы делаем следующим образом:
- От торца доски отмеряем длину шипа и размечаем линию.
- По линии делаем надрез глубиной 3-5 мм.
- С торца на этом же расстоянии приставляем к доске топор, и нанося удары средней силы по обуху топора, снимаем слой дерева. То же самое проделываем и с другой стороны шипа.

Щит из шпунтованной доски
- Из шпунтованной доски собираем щит, как показано на фото, который будет установлен в нижнюю обвязку.
- В планке, которая будет установлена в нижней части двери, делаем продольное углубление по всей длине с тем расчетом, чтобы туда поместился шип крайней доски в заранее подготовленном щите.
Поперечная планка, которая будет расположена в центральной части двери, обрабатывается таким образом, чтобы в ее нижней части был шип. При сборке этот шип войдет в паз в верхней части дощатого щита. - Заготавливаем боковые доски, с которыми можно будет собрать всю конструкцию воедино. В боковых досках также выбирается древесина с тем расчетом, чтобы туда встали три планки, которые мы подготовили на начальном этапе.

Сборка всех элементов воедино
- После того как все компоненты заготовлены, можно приступать к сборке.
Делается это следующим образом:
- Боковые доски укладываются на необходимом расстоянии друг от друга на ровное основание.
- Между ними выкладываются все остальные элементы конструкции.
- Шипы конструкционных элементов смазываются столярным клеем и вдвигаются в пазы. Для того чтобы конструкция была прочнее, соединение шип-паз снаружи прихватывается саморезом.
Остекление и фурнитура
После того как дверное полотно собрано, можно приступать к остеклению и монтажу фурнитуры.
Остекление делается при помощи реек, которые прибиваются по периметру каждого отдельно взятого сегмента рамы окошка. Толщина реек должна быть подобрана с тем расчетом, чтобы кроме них в проем поместилось стекло и штапики.
Важно: Если дверь собирается не для веранды, а для обычной прихожей, вместо остекления изготавливается такой же дощатый щит, как и в нижней обвязке

Примерка врезного замка
Для установки врезного замка с торца дверного полотна сверлом, а затем стамеской выбирается древесина на глубину, равную ширине корпуса замка. В полотне сверлится сквозное отверстие, в которое будет установлена сердцевина.

С обратного торца полотна прикладываем петли и помечаем карандашом их периметр. Затем стамеской выбираем дерево по намеченному периметру на глубину 2 мм. На подготовленный торец полотна прикладываем петли и вкручиваем шурупы.
После этого, дверное полотно прикладывается к коробке на которой помечается расположение петель и расположение замка деревянной двери. На коробке подготавливаются монтажные места для установки петель.
На уровне замка выбирается древесина на ширину и глубину запорного механизма. Затем на это место монтируется металлическая планка, которая идет в комплекте с замком. После этого дверь можно вешать на петли и приступать к покрасочным работам.
Итак, вы получили общее представление о том, как выполняется сборка и установка входной деревянной двери своими руками. Следовательно, можно запастись соответствующими материалами и инструментом, для того чтобы попробовать что-нибудь сделать самостоятельно.
Остались вопросы, требующие пояснений? Больше полезных сведений вы найдете посмотрев видео в этой статье.
Деревянные двери своими руками: схемы, чертежи. Как сделать деревянную дверь своими руками
December 24, 2014
Часто люди не могут выбрать подходящую дверь из имеющегося ассортимента. Одни покупают то, что есть, а другие решают всё сделать сами. Чтобы изготовить деревянные двери своими руками, потребуется некоторое специальное оборудование для деревообработки, инструменты и, конечно, лучше иметь плотницкие навыки. Но всё же, если в наличии всего нет, то по ходу можно импровизировать и добиться необходимого успеха. Помимо этого читатели узнают, как выбрать и просушить доски для будущей двери.
Материал для двери

Обычно для изготовления деревянных дверей применяют сосну, реже – ель. Её плохо использовать для изделий, потому что в её древесине много сучьев, которые существенно затрудняют работу. Помимо этого структура волокна неоднородная и часто расслаивается. Вот по этим причинам оптимальная порода дерева, чтобы сделать деревянные двери своими руками, – это сосна.
Выбираем доски
Чтобы дверь получилась красивой и ровной, нужно тщательно выбирать доски. Они должны быть без изъянов, не иметь крупных сучьев, а также, чтобы сама структура волокон была ровной. Если на поверхности видна синева, это значит, что была нарушена технология хранения и материал начал преть. Такую древесину лучше не использовать, потому что она в дальнейшем начнёт гнить.
Сушка купленных досок

В любом случае, чтобы полностью быть уверенным в материале, его нужно высушить. Даже если он с виду готов к использованию, лучше перестраховаться, перед тем как изготавливать деревянные двери своими руками. Каждую доску нужно уложить на прокладки, которые не позволят дереву соприкасаться друг с другом. Это нужно для того, чтобы влага, содержащаяся внутри волокон, могла беспрепятственно выходить. Если этого не сделать, будет образовываться плесень, которая испортит материал.
Место, где будет сушиться древесина, должно быть хорошо проветриваемым и, желательно, чтобы температура была выше 25 °C. Этот процесс занимает от месяца до двух.
Дерево можно просушить и быстрее, поместив его в специальную камеру для этого. В ней создают температуру не более 50 °C. Если сделать её выше, то смола может вытечь, а она скрепляет волокна. Чтобы изготовленная деревянная входная дверь своими руками была прочной и долго служила, не стоит спешить в этом процессе.

Сушильную камеру можно сделать в гараже, будке необходимого размера, или автомобильном кузове. Доски укладываются, как и при сушке на открытом воздухе, перемежевывая их прокладками.
Материалы и инструменты для создания двери
Хорошая деревянная входная дверь своими руками должна качественно защищать жилище не только от злоумышленников, но и от холода, а также шума. Поэтому одну сторону делают абсолютно ровной и обклеивают ДВП, на которое потом кладётся утеплитель.

По внутренним размерам дверной коробки устанавливаем габариты самой двери. Помимо этого нужно определиться с зазорами и нижним просветом. Когда всё готово, можно из листа ДВП вырезать прямоугольник, который в точности будут повторять форму и размер двери. Стоит особенно тщательно отнестись к разметке и выпиливанию углов. Все они должны быть по 90°.
Итак, обстругиваем две доски, сделав их толщиной в 5 см, а шириной 11 см. Будем создавать деревянные двери своими руками для стандартной коробки 200*90 см. Чтобы полотно не тёрлось о поверхности, а также свободно открывалось и закрывалось, нужно его размеры немного сократить. Поэтому двери будут 192*82.
Перед проектированием и сборкой двери нужно проверить геометрию коробки, чтобы её углы были чётко по 90°. Для входных дверей чаще всего изготавливают пять филёнок. Такое решение позволяет их делать из целых отрезков материала. Итак, нужно обстрогать две доски длиной 192 см, и четыре по 72 см, это с учётом шпилек 5 см с каждой стороны.

Филёнки лучше располагать симметрично, но если требуется добиться асимметричной формы, можно закрепить их как необходимо, на функционал конструкции это не повлияет. Стоит помнить о пазах в 5 см.

Когда всё готово, собирается деревянная входная дверь своими руками и проверяется всё ли ровно. При этом следят за тем, чтобы в пазах не было щелей, и в то же время шип заходил свободно. Если всё отлично, то дверь разбирают, после чего собирают обратно, но уже с клеем. Так как это дверь входная, то на неё будет воздействовать внешняя среда. По этой причине, лучше конструкцию дополнительно укрепить шкантами. Они представляют собой деревянные чопики, шириной в 1 см. Затем берём сверло такого же диаметра, и сверлим под них отверстия на стыках. Они должны проходить через шип. После этого шканты обмазывают клеем и вбивают.

Когда всё высохло, можно подравнять стыки и сточить выступающие части шкантов, чтобы поверхность была абсолютно гладкой.
Выбираем пазы
Теперь, чтобы сделать деревянную дверь своими руками, придётся поработать фрезой. Надеваем так называемую оконную фрезу. Ею нужно выбрать материал на половину толщины полотна, для установки в эти пазы филенок. Углы получатся скруглёнными, поэтому их нужно будет доработать стамеской.
Делаем филёнки
Их вытачивают из цельных частей дерева, они должны плотно входить в пазы без щелей. Одна сторона филёнки делается плоской, а с другой можно вырезать даже узор, тут всё на усмотрение мастера. Далее, эта часть двери шлифуется для более лёгкого сбора всех составляющих полотна. Филёнки должны быть вровень с поверхностью. Нельзя, чтобы какая-нибудь их часть выступала, это в последующем может привести к деформированию листа ДВП, которым дверь будет оббиваться.
Когда всё размещается идеально, можно филёнки крепить саморезами. Их нужно вкручивать под углом с той стороны, где будет ДВП. Ну и, конечно, ни один саморез не должен вылезти на лицевой части. Поэтому их размер нужно тщательно подбирать. Теперь осталось прибить лист ДВП и можно покрывать морилкой или лаком, кто чем захочет. Здесь подробно описывается изготовление деревянных дверей своими руками, пошаговая инструкция.
Установка деревянной двери
Первоначально решают, на сколько петель будет крепиться дверь. Затем тщательно размечают, чтобы всё сошлось, и при помощи саморезов закрепляют петли на полотне и коробке. Затем дверь навешивают, чтобы проверить, как она открывается и закрывается. Если всё сделано правильно, то, будучи полностью открытой, дверь будет в том же положении, как её оставили. Если же есть малейший перекос, то она будет открываться или закрываться. Регулировка и установка деревянных дверей своими руками может быть кропотливым процессом, однако его нужно сделать идеально, ведь от этого зависит комфортное проживание в доме.
Утепление деревянной двери
Чтобы внешние шумы не беспокоили, а холод не мог пройти через полотно, его нужно утеплить. Ведь если покрыть защитным слоем только деревянную дверь, она будет хорошо выполнять свои функции только в тёплое время года. Да и звуки улицы будут больше проходить. Чтобы улучшить дверь, стоит утеплить её.
Чтобы утеплить деревянную дверь своими руками, нужно обклеить поролоном ту её половину, которая покрыта ДВП. Делать это нужно так, чтобы оставить по всему краю полотна один сантиметр свободного от утеплителя места. На него впоследствии мы будем прибивать внешний материал. В том случае если всё же поролон вылез за рамки, его нужно обрезать при помощи острого ножа.
Материал для обивки может быть разным, обычно выбирают кожзаменитель, реже ткань. Чтобы сделать всё качественно, лучше воспользоваться услугами помощника. Так утепление деревянной двери своими руками пройдёт намного быстрее и, главное, качественнее. Нужно крепить материал при помощи строительного степлера на участок шириной в сантиметр, который мы не заклеивали поролоном. Когда конец закреплён, материал разравнивают, и далее продолжают работу. Натяг должен быть равномерным, чтобы избежать складок.
Когда одна часть сделана, переходят на ту, которая напротив. Для этого один работник натягивает материал, а другой его закрепляет всё тем же степлером. Когда работа сделана, по периметру полотна нужно прибить валики, которые не дадут холодному воздуху и посторонним звукам извне заходить в жилище.
Делаем валики для двери
Из материала, которым оббивается дверь, сворачивают валики, они должны быть около сантиметра в толщину. Затем их прибивают по краям двери при помощи строительных гвоздей.
Материала для обивки лучше покупать больше, ведь он будет натягиваться и на поролон. А также из него понадобится будет сделать валики, поэтому необходимо тщательно всё просчитать.
Вот теперь всё, что касается вопроса о том, как сделать деревянные двери своими руками, чертежи, схемы и тонкости в работе, мы рассмотрели. По изображениям легко понять весь принцип, из каких частей состоит полотно. Необязательно делать дверь тех размеров, что и на чертежах, ведь проёмы и коробка бывают разные. Однако будет намного легче на их основе создать свой проект.
Чтобы дверь служила долго, нужно выбрать подходящие петли, на которых она и будет крепиться. Их есть множество видов, однако самые распространённые – это полушарнирные. Их конструкция проста, и при необходимости хозяин может легко снять дверь, подняв её вверх в открытом положении.
Также можно навесить полотно при помощи шарнирных петель. Они похожи на первые, только ось в них выкручивается. Такую дверь нельзя просто поднять, чтобы снять.
Наши предки спали не так, как мы. Что мы делаем неправильно? В это трудно поверить, но ученые и многие историки склоняются к мнению, что современный человек спит совсем не так, как его древние предки. Изначально.
Зачем нужен крошечный карман на джинсах? Все знают, что есть крошечный карман на джинсах, но мало кто задумывался, зачем он может быть нужен. Интересно, что первоначально он был местом для хр.
Неожиданно: мужья хотят, чтобы их жены делали чаще эти 17 вещей Если вы хотите, чтобы ваши отношения стали счастливее, вам стоит почаще делать вещи из этого простого списка.
9 знаменитых женщин, которые влюблялись в женщин Проявление интереса не к противоположному полу не является чем-то необычным. Вы вряд ли сможете удивить или потрясти кого-то, если признаетесь в том.
Эти 10 мелочей мужчина всегда замечает в женщине Думаете, ваш мужчина ничего не смыслит в женской психологии? Это не так. От взгляда любящего вас партнера не укроется ни единая мелочь. И вот 10 вещей.
Как выглядеть моложе: лучшие стрижки для тех, кому за 30, 40, 50, 60 Девушки в 20 лет не волнуются о форме и длине прически. Кажется, молодость создана для экспериментов над внешностью и дерзких локонов. Однако уже посл.
Входная деревянная дверь своими руками чертежи
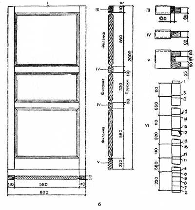
Входная деревянная дверь своими руками, чертежи деталей, самой распространенной конструкции, для изготовления которой потребуется деревообрабатывающее оборудование и некоторый опыт работы владением столярными инструментами и оборудованием.
Рассматриваемая модель, унифицирована и состоит из пяти однотипных деталей:

1. Стойка.
2. Верхняя поперечина.
3. Средняя поперечина.
4. Нижняя поперечина.
5. Верхний средник.
6. Нижний средник.
7. Филенка.
8. Деревянный шкант 8 х 40 (мм)
ВЕРХНЯЯ И НИЖНЯЯ ПОПЕРЕЧИНА
ВЕРХНИЙ И НИЖНИЙ СРЕДНИК

Все детали двери делаются из клееных деревянных щитов или из цельной древесины.
Преимущества деревянного мебельного щита:
• длительный срок службы
• возможность ремонта и восстановления
• гигроскопичен
• такой щит способен адсорбировать вредные вещества
• возможность подборки рисунка по волокнам
Порядок изготовления входной деревянной двери своими руками по предложенным чертежам:
1. Деревянные щиты стругаем с обеих сторон до нужного размера.
2. Кроим щиты на нужные заготовки.
3. Фрезеруем необходимый контур у каждой заготовки и получаем сборочную деталь.
4. Все детали соединяем между собой на клею.
5. Дверь сжимаем струбцинами.
6. Дополнительно, для усиления соединения деталей рамочного каркаса, поперечины соединяем со стойками деревянными шкантами на клею.
7. После того как высохнет клей, производим шлифовку поверхностей собранной конструкции мелкой наждачной бумагой.
8. Наносим декоративное лакокрасочное покрытие.

В дополнение, можно посмотреть видео материал о том, как изготавливается входная деревянная дверь своими руками
Изготовленную дверь установим в дверную коробку.
Источники: http://rubankom.com/montazh/stroitelstvo/242-vhodnaya-dver-iz-dereva-svoimi-rukami, http://fb.ru/article/162343/derevyannyie-dveri-svoimi-rukami-shemyi-cherteji-kak-sdelat-derevyannuyu-dver-svoimi-rukami, http://chertegnik.ru/stolyarnye-izdeliya/394-vhodnaya-derevyannaya-dver-svoimi-rukami-chertezhi.html
gorodverey.ru
Деревянная дверь своими руками в доме
Довольно часто люди не могут подобрать дверь под свой интерьер, либо не имеют достаточно средств для этого. В итоге решают сделать и поставить входную деревянную дверь своими руками. Однако для ее изготовления потребуются специальные инструменты и минимальные навыки плотника.
Что понадобится для изготовления деревянной двери?
Входная деревянная дверь своими руками подходит для установки в любом здании, включая подсобные помещения, баню, сарай, склад или погреб. Она может быть в виде калитки, сбитой из щитов, либо цельной. Самыми простыми считаются входные щитовые двери. Основной материал и инструмент, который необходим для ее изготовления и ремонта: бруски, гвозди, инструменты плотника, саморезы и петли. Достаточно потратить два-три часа, и дверь будет готова.
Особое внимание перед сборкой изделия нужно уделить подбору инструментов.
Ведь деревянная дверь и окосячка своими руками изготавливается многими способами, и для каждого из них потребуется свой комплект инструментов. Вот основной набор, который должен быть всегда под рукой:
- стамеска;
- рулетка;
- дрель;
- ножовка;
- длинная жесткая линейка;
- угольник;
- набор отверток;
- шуруповерт;
- острый прочный нож;
- шлифовальное приспособление.
Обычно для изготовления дверей используют лиственные породы дерева, так как данный материал отличается красивым цветом, высокой плотностью, уникальной текстурой. Среди наиболее востребованных стоит выделить: ясень, дуб, бук, орех и вишню.
Пошаговая инструкция: как сделать деревянную дверь своими руками?
Деревянная дверь своими руками может изготавливаться по разным методам, но в большинстве случаев работа выполняется по стандартной технологии. Вот инструкция пошагово для новичка:
- Короб. Собирается стандартная прямоугольная конструкция, которая помещается в проем.
- Дверное полотно. Оно зависит от конкретной модели, а также исходя из чертежа и использованных материалов.
- Изготовление коробки. Собирается прямоугольная форма из дерева.
- Полотно. Оно раскраивается по размеру, соответствующему чертежу.
- Обработка двери. Для этого используются антисептические средства и шлифовка, покраска.
- Подготовка к монтажу. Устанавливаются ручки, глазки, защелки, петли, замок.
Подготовка и полировка досок
До того, как будет изготовлена деревянная дверь своими руками, материал нужно просушить на протяжении определенного времени. Так как некачественная, сырая древесина приведет к деформации и образованию трещин, в итоге эстетические свойства изделия будут ухудшенными. Изначально дерево просушивают в течение нескольких лет. Для этого необходима естественная атмосферная температура, поэтому подойдет обычный навес. Далее его выдерживают в вакуумной камере, данное мероприятие необходимо для того, чтобы предохранить массив дерева от трещин.
Второй этап после сушки – это изготовление дверного полотна в соответствии с нужными размерами. После этого приступают к заключительной обработке материала, куда входит использование пропитки, грунтовки и краски. Завершающий этап – это окончательная отделка, для которой требуются лакокрасочные составы.

Главная цель подобной обработки – это подчеркнуть природную красоту дерева. А еще эти составы защищают дерево от излишней влаги. Если уличная деревянная дверь своими руками изготовлена из массива дерева, то профессионалы рекомендуют использовать полиуретановое покрытие. Независимо от того, самодельные двери или готовые, их желательно покрывать лаком, на не обработанную древесину его наносят не меньше 4-х раз. Это необходимо для того, чтобы конструкцию не повело, ведь лак имеет свойство растягиваться и заполнять трещины. А для того чтобы поверхность дверного полотна стала идеальной, ее технология изготовления включает в себя использование морилки, которую наносят на заранее подготовленную поверхность. Затем необходимо нанести первый слой, который защитит древесину, а именно грунтовку. Далее поверхность шлифуют и делают подобную работу перед каждым слоем лака.
Фрезеровка и округление углов
До того, как приступать к фрезеровке дверного полотна, необходимо заготовить нужный шаблон. Для этого подойдет обычный плотный картон, на котором рисуют нужную фигуру обычным маркером или карандашом. Данная работа выполняется максимально аккуратно. Так как от нее зависит качество деревянных деталей.
Деревянная дверь своими руками может состоять из нескольких деталей, поэтому количество заготовок по шаблону должно соответствовать чертежу. Чтобы вырезать детали по шаблону, нужно обвести каждую составляющую, прибавляя припуски около 0,5 см по всему контуру. Дальше в цангу фрезера ставят насадку с подшипником, при помощи которой выполняется выпиливание деталей.
Для проверки следует взять любую заготовку и по ее контуру приклеить картонный образец при помощи двухстороннего скотча.
Это поможет убедиться в том, что заготовка и шаблон полностью совпадают. После этого можно приступать к работе с фрезой, ее подшипник должен вплотную соприкасаться с краем шаблона, благодаря этому лезвие производит точную обрезку. Важно знать, что фрезы имеют два предназначения, они используются для работы на столе, либо в руках. На столе работать проще, особенно с крупными деталями, которые имеют сложные края. Во время такой работы необходимо равномерно распределять свою силу на фрезу.
Подрезка торцов доски
До того, как будет изготовлена теплая деревянная дверь своими руками, проводится подрезка торцов досок, которые используются в работе. Для этого потребуется дисковая ручная пила. Чтобы работа была выполнена правильно, учитывается два главных нюанса: точный угол подрезки и четкая длина досок. Углы измеряют при помощи обычного транспортира. Относительно длины, то максимальный размер дверного полотна составляет 2 метра, то есть дверной стандарт. Длина нижней и верхней вставки обязательно должны соответствовать ширине дверного полотна. Например, если в планах сделать межкомнатные или входные двери из дерева с шириной 70 см, то использованные элементы конструкции в ее самой длинной части должны составлять 70 см.
Соединение полученных деталей
Чтобы деревянная дверь и обсада своими руками получилась качественной, изготовление дверного полотна должно быть максимально точным, так как – это самый важный этап работы. Существует очень много способов для изготовления деревянной двери с коробкой. Если она устанавливается в гараж, то снаружи ее обшивают металлическими листами и устанавливают козырек. При желании можно оббить и утеплить минеральной ватой.
В большинстве случаев входная деревянная дверь своими руками изготавливается при помощи цельного деревянного полотна. Благодаря этому дом будет защищен от сквозняков и шума с улицы. А для того чтобы получилось фигурное изделие, имеющее декоративные накладки и вставки, используется не только цельное полотно, но и отдельные доски. В конце может использоваться обивка дермантином и прочая отделка, а также врезка фурнитуры.
Если изготавливается самая обычная каркасная деревянная дверь своими руками в погреб, то вначале требуется замерить дверной проем и приступать к изготовлению каркаса для жалюзийной двери. На одну из его сторон набивают доски и приступают к звукоизоляции, для чего внутреннюю часть двери заполняют утеплителем. Только после этого следует набить доски на другую сторону. Если же выполняется изготовление более сложной конструкции деревянной двери, то здесь все детали соединяются в паз и требуют максимальной точности.
Декорирование деревянной двери
Как выполнить декорирование двери для дачи и сделать ее эксклюзивной по фото? Для этой работы можно использовать много вариантов, вот основные из них:
Покраска. Этот способ подходит для реставрации старой двери, либо для украшения новой. Самый востребованный вариант – это акриловая краска, она удобная в работе, не имеет резкого запаха и отличается широкой цветовой гаммой. Отличным решением станет отделка из латексной краски, которая не боится воды, быстро сохнет, не имеет специфического запаха. Ее можно использовать для украшения межкомнатной двери со стеклом, придумывая всевозможные рисунки. Но до того, как расписать дверь, желательно обдумать ее дизайн.- Пэчворк. Довольно интересная техника, чтобы обновиться старую дверь или украсить новую дверную конструкцию. Данный метод включает использование лоскутов ткани, куски обоев, вырезки из журнала, фото и прочие аксессуары, которые будут красиво выглядеть в общем коллаже. Ткань для пэчворка должна быть специальной, она отличается мелкими рисунками и плотной структурой. Очень часто такой декор используют для детских комнат.
- Витраж. Если нужно снаружи стеклянной двери придумать декор, то идеальный вариант – витраж. Самый простой вариант – это специальные витражные краски и трафареты. Для этого готовый эскиз наклеивают на стеклянные вставки двери и обводят все линии подготовленным художественным контуром. Когда краска высохнет, свободное пространство заполняют витражными красками. Подробный мастер-класс по изготовлению витража на стеклянных вставках дверей можно найти в сети.
Мозаика. Любые резные деревянные или толстые металлические двери можно украсить мозаикой. Помимо этого, она станет самым приемлемым вариантом для банной двери, так как не боится влаги. Кусочки мозаики изготавливаются из прозрачного стекла, керамики и даже металла. Иногда для работы используют морскую гальку, однако до того, как усилить вес двери данным материалом, следует рассчитать нагрузку на дверную конструкцию. И если ее недостаточно, то вместо камней используют акриловое стекло или деревянный шпон. Для крепления мозаики подойдут жидкие гвозди. До нанесения материала на дверь делают нужный рисунок и подготавливают необходимое количество материала для работы. Обычно начинают процесс крепления деталей самых крупных фрагментов, постепенно переходя к самым маленьким.- Художественная роспись. Отличный вариант, чтобы состарить дверь и сделать ее под старину. Для этого используют специально изготовленные трафареты, которые продаются в любом художественном магазине. Наносят рисунок разными способами, например, при помощи кисточки, губки или баллона. Идея для трафарета может быть самой разной, начиная от растительных орнаментов и заканчивая картинами известных художников.
Независимо от выбранного способа декорирования, дверь может стать настоящим произведением искусства и эксклюзивной деталью в интерьере, если к этому приложить немного усилий и проявить фантазию. Если нет опыта в данном деле, то можно использовать самую простую идею, например, покраску или роспись по трафарету. В любом случае такая дверь станет единственной и неповторимой. Видео процесса смотрите ниже.
armatef.ru
установка, как утеплть и обновить, обивка дермантином, изготовление, монтаж
Как сделать двери входные деревянные своими руками? В настоящее время промышленность выпускает большое количество входных дверей из различных материалов и с различной отделкой. Но стоимость таких изделий достаточно высокая.

Схема деревянной входной двери.
Если вы хотите установить входную деревянную дверь и при этом сэкономить семейный бюджет, то можете сделать прочную входную деревянную дверь своими руками. Для этого надо приобрести необходимые материалы и строго следовать технологии выполнения работ.
Как устанавливают входную деревянную дверь
Материалы и инструменты:
- доски;
- деревянные клинья;
- распорки;
- столярный клей;
- саморезы;
- шуруповерт;
- молоток;
- монтажная пена;
- дрель;
- гвозди;
- петли;
- рулетка;
- строительный уровень.
Изготовление дверной коробки
Инструменты для изготовления деревянной двери.
Вначале необходимо выполнить измерения проема. После этого приступают к монтажу дверной коробки. Для этого надо на ровной поверхности, можно на полу, сложить элементы коробки. Проверяют правильность прямых углов при помощи строительного уровня. Потом нужно приклеить элементы коробки на углах. Соединение фиксируют при помощи саморезов.
Устанавливают коробку в дверной проем. Затем надо монтировать раму при помощи установки клиньев в середине и по углам. При помощи строительного уровня проверяют правильность установки коробки. Потом ставят распорки напротив клиньев. При помощи монтажной пены заполняют промежуток между дверной коробкой и стеной.
После того как пена высохнет, приблизительно через 12 часов, убирают лишние части пены. Затем убирают клинья и распорки.
Затем устанавливают наличники. Для этого надо выпилить деталь необходимой длины, просверлить нужное количество отверстий для гвоздей. Монтируют наличник к проему при помощи гвоздей. Изделие будут монтировать на петли.
Входная деревянная дверь своими руками
Материалы и инструменты:
- доски;
- ДВП;
- цельный массив дерева;
- теплоизоляция;
- столярный клей;
- рулетка;
- строительный уровень;
- рубанок;
- стамеска;
- дрель;
- фрезер;
- саморезы;
- петли;
- молоток;
- гвозди;
- наждачная бумага.
Схема сборки деревянной двери.
Входная модель должна быть прочной, надежно защищать дом, не пропускать холода. Конструкцию нужно изготавливать с утеплением. Одна сторона изделия должна быть обшита теплоизоляционным материалом. Поэтому на этой стороне не будет филенок. Ее изготавливают ровной, без филенок, и оклеивают при помощи ДВП.
Необходимо приобрести доски, имеющие толщину 50 мм. Ширина доски должна составлять 11 см. Данную конструкцию изготовляют для дверной коробки, имеющей размеры 200х90 см. После измерения коробки уточняют ее размеры и определяют габариты будущей двери. Для этого надо размер коробки уменьшить с каждой стороны на 0,5 см.
Затем выполняют измерения. Размеры изделия уменьшают с каждой стороны. При этом получится около 192х82 см.
Изделие надо изготовить с 5 филенками. Их выполняют из цельного массива дерева.
Для выполнения конструкции понадобятся 2 продольных доски, которые будут расположены в длину изделия и иметь размеры 192 см. Затем изготавливают 4 поперечных доски длиной 72 см.
При монтаже расстояния между поперечинами оставляют такими, чтобы все филенки были одного размера. Соединение выполняют по принципу шип-паз, величина которого будет 5х6 см.
Соединяют все детали конструкции между собой. Проверяют горизонтальность и вертикальность элементов при помощи строительного уровня. После этого проверяют правильность монтажа изделия.
Между соединениями шип-паз не должно оставаться зазоров. При этом шип должен входить в паз не совсем вплотную. Если при проверке выяснилось, что конструкция собрана правильно, обрабатывают все соединения столярным клеем.
Поскольку изделие будет находиться под воздействием резкого перепада температур и различных осадков, то для увеличения его прочности необходимо сделать шканты.
Для изготовления шкантов в продольных досках просверливают при помощи дрели отверстия глубиной 10 мм. Они должны проходить через шипы поперечников. Для конструкции устанавливают 8 шкантов.
Типы филенок для деревянных дверей.
Затем при помощи рубанка устраняют деформации между соединениями. После этого надо приготовить фрезер со специальной насадкой. Эта насадка предназначена для выработки пазов. Можно использовать оконную фрезу.
При помощи фрезера изготавливают паз. Он должен быть расположен с одной стороны изделия и составлять половину толщины полотна двери под филенки. Затем при помощи стамески закругляют углы соединений.
После этого изготавливают филенки. Их делают из цельного массива дерева. Для этого их выпиливают с учетом необходимых размеров. Нужно, чтобы они надежно фиксировались в пазы.
На фрезерном станке с одной стороны доски изготавливают филенку. Необходимо отрегулировать положение поверхности фрезерного станка.
Затем надо отшлифовать филенку с лицевой стороны. Потом ее монтируют в каркас двери.
Филенки нужно прикреплять заподлицо с дверным каркасом. Это необходимо для того, чтобы листы ДВП были установлены правильно.
Филенки фиксируют при помощи саморезов. Их прикручивают под углом, чтобы не было заметно с обратной стороны полотна. После этого устанавливают ДВП и прибивают молотком при помощи гвоздей.
Для отделки внешней стороны двери изготавливают кромочную фрезу. После изготовления ее на фрезерном станке необходимо отшлифовать наждачной бумагой. После этого прикручивают ручки и врезают замок. Затем изделие устанавливают в дверную коробку на петли. На этом изготовление и монтаж входной двери из дерева заканчивается.
Входная дверь, изготовленная своими руками по данной технологии, будет прочной, надежной и долговечной.
1podveryam.ru
видео-инструкция установке, как сделать, чертежи, цена, фото
Все фото из статьи
В этой статье мы расскажем о том, как сделать входную деревянную дверь своими руками. В настоящее время приобрести готовую входную группу не представляется чем-то особенно сложным. Но, цена такой покупки наверняка будет высока. В то же время, ставить новую дверь из магазина на дачу необязательно, так как несложную конструкцию можно собрать своими руками.
Итак, изготовление дверного полотна и сопутствующих элементов полностью оправдано. Но, перед тем как приступить непосредственно к изготовлению, выберем схему по которой будем работать и определимся с подбором производственных материалов.

Схема сборки входной двери
Требования, предъявляемые к входным дверям

Схема устройства стандартной квартирной двери
Входные двери, которые можно установить в загородном доме, должны отличать следующие качества:
- малая теплопроводность;
- устойчивость к негативному воздействию факторов внешней среды;
- устойчивость к механическим нагрузкам;
- привлекательный внешний вид;
- надёжность фурнитуры;
- доступная цена производственных материалов и, как следствие, невысокая себестоимость готового изделия.
Теперь мы знаем, какие входные деревянные двери своими руками можно изготовить, осталось выяснить, из каких материалов эти изделия можно собрать.
Выбор материалов

На фото заполнение дверного полотна утеплителем
На рынке представлен широкий выбор пиломатериалов, которые отличаются стоимостью и эксплуатационными характеристиками.
Предпочтительнее приобретать древесину хвойных пород, так как такие пиломатериалы относительно недороги, а кроме того, после дополнительной обработки отличаются высокой прочностью и долговечностью.
Древесину бука, дуба и прочих твёрдых пород брать не стоит. Во-первых, это дорого, а во-вторых, такие материалы трудно обрабатывать вручную.

Обрезная доска из древесины хвойных пород
В продаже можно встретить самую разную дверную фурнитуру, включая петли и запорные механизмы для деревянных дверей. Представленная в продаже фурнитура отличается конфигурацией, надежностью и ценой.
В качестве бюджетного варианта можем порекомендовать продукцию отечественных предприятий. Качество отечественной фурнитуры на порядок выше, чем качество “no name” изделий, предложенных на рынке.
Выбор схемы сборки

Такие чертежи входной деревянной двери своими руками может нарисовать каждый
Можно приложить немалые усилия, потратить много времени и в результате собрать красивую дверь, которая несомненно украсит ваш дом. В то же время, можно изготовить простую и, тем не менее, прочную дверь, которая будет надежной, и при этом будет неплохо выглядеть.
Рассмотрим, какова инструкция сборки простой двери с размером полотна, подобранным в соответствии с уже имеющейся в наличии дверной коробкой. В предложенной конструкции обвязка будет изготовлена из трех горизонтальных и двух вертикальных элементов.

Дверная коробка и полотно — вид сверху
Дверь, в нижней части, будет полностью закрытой (глухой). Эту часть полотна можно будет выполнить из специально приобретённой шпунтованной доски, которая в процессе монтажа будет собрана в щит.
Совет: Для того чтобы упростить сборку щита можно заготовить специальную половую доску с фрезерованной боковиной (с одной стороны шип, с другой — паз).
Верхняя часть конструкции представляется собой раму с остеклением. Остекление будет удачно сочетаться с оформлением дачной веранды.
Приступаем к сборке

Горизонтальные планки для обвязки
- Готовим элементы обвязки.
Это три планки, одна из которых будет располагаться в нижней части, другая – посредине, а третья — сверху.

Нижняя и средняя планка с пазами для щита
- 222В заготовках, которые будут расположены в верхней части и посредине, при помощи стамески выбираем углубления под шипы, как это показано на фото. Глубина выемок, а, следовательно, величина шипа должна быть не меньше 40 мм.
Углубление делаем следующим образом:
- Размечаем контур.
- В дрель вставляем сверло диаметром 1 см и сверлим на нужную глубину два отверстия, так чтобы они располагались в крайних точках размеченного контура.
- Фиксируем доску в тисках и при помощи узкой стамески и молотка выбираем древесину из углубления.
- 3333Изготавливаем вертикальные и горизонтальные элементы обрешётки, которые шипами встанут в предварительно выбранные пазы.
Шипы делаем следующим образом:
- От торца доски отмеряем длину шипа и размечаем линию.
- По линии делаем надрез глубиной 3-5 мм.
- С торца на этом же расстоянии приставляем к доске топор, и нанося удары средней силы по обуху топора, снимаем слой дерева. То же самое проделываем и с другой стороны шипа.

Щит из шпунтованной доски
- Из шпунтованной доски собираем щит, как показано на фото, который будет установлен в нижнюю обвязку.
- В планке, которая будет установлена в нижней части двери, делаем продольное углубление по всей длине с тем расчетом, чтобы туда поместился шип крайней доски в заранее подготовленном щите.
Поперечная планка, которая будет расположена в центральной части двери, обрабатывается таким образом, чтобы в ее нижней части был шип. При сборке этот шип войдет в паз в верхней части дощатого щита. - Заготавливаем боковые доски, с которыми можно будет собрать всю конструкцию воедино. В боковых досках также выбирается древесина с тем расчетом, чтобы туда встали три планки, которые мы подготовили на начальном этапе.

Сборка всех элементов воедино
- После того как все компоненты заготовлены, можно приступать к сборке.
Делается это следующим образом:
- Боковые доски укладываются на необходимом расстоянии друг от друга на ровное основание.
- Между ними выкладываются все остальные элементы конструкции.
- Шипы конструкционных элементов смазываются столярным клеем и вдвигаются в пазы. Для того чтобы конструкция была прочнее, соединение шип-паз снаружи прихватывается саморезом.
Остекление и фурнитура
После того как дверное полотно собрано, можно приступать к остеклению и монтажу фурнитуры.
Остекление делается при помощи реек, которые прибиваются по периметру каждого отдельно взятого сегмента рамы окошка. Толщина реек должна быть подобрана с тем расчетом, чтобы кроме них в проем поместилось стекло и штапики.
Важно: Если дверь собирается не для веранды, а для обычной прихожей, вместо остекления изготавливается такой же дощатый щит, как и в нижней обвязке
.

Примерка врезного замка
Для установки врезного замка с торца дверного полотна сверлом, а затем стамеской выбирается древесина на глубину, равную ширине корпуса замка. В полотне сверлится сквозное отверстие, в которое будет установлена сердцевина.

Установка петель
С обратного торца полотна прикладываем петли и помечаем карандашом их периметр. Затем стамеской выбираем дерево по намеченному периметру на глубину 2 мм. На подготовленный торец полотна прикладываем петли и вкручиваем шурупы.
После этого, дверное полотно прикладывается к коробке на которой помечается расположение петель и расположение замка деревянной двери. На коробке подготавливаются монтажные места для установки петель.
На уровне замка выбирается древесина на ширину и глубину запорного механизма. Затем на это место монтируется металлическая планка, которая идет в комплекте с замком. После этого дверь можно вешать на петли и приступать к покрасочным работам.
Вывод
Итак, вы получили общее представление о том, как выполняется сборка и установка входной деревянной двери своими руками. Следовательно, можно запастись соответствующими материалами и инструментом, для того чтобы попробовать что-нибудь сделать самостоятельно.
Остались вопросы, требующие пояснений? Больше полезных сведений вы найдете посмотрев видео в этой статье.
rubankom.com
