Забежная лестница с поворотом – Забежная лестница своими руками — от расчетов до монтажа
особенности конструкции и оптимальные размеры
Забежные ступени делают лестницу более изящной, хоть и снижают удобство пользования.Каким бы совершенным ни был интерьер коридора, холла или гостиной, лестница в этих помещениях всегда приковывает взгляд и вызывает неподдельный интерес. Лестница с поворотом (или забежная лестница) наделена этим даром вдвойне. Разобраться в поворотах лестницы и забежных ступеней не так уж и сложно. Потратив немного времени и вникнув в суть вопроса, вы сможете самостоятельно изготовить лестницу с поворотами или, в крайнем случае, проконтролировать процесс её возведения.
Как дважды два
Хорошо, когда лестница натянута как струна и ничто не препятствует летать с этажа на этаж по прямой. Единственное неудобство – нужно высвободить много места вдоль одной из стен. Чтобы лестница была максимально удобной и безопасной, необходимо придерживаться определенных параметров. Так, например, удобной считается ступень с высотой подступенка около 15 см и глубиной проступи 30 см. Если планируется вылет проступи, то его размер должен быть не больше 5 см. Площадка перед лестничным маршем должна иметь площадь не менее 90 квадратных сантиметров. Среднестатистическая высота потолка – 2,5 метра. Для прямолинейной лестницы с такими параметрами необходимо оставить вдоль одной стены более пяти погонных метров свободного пространства.
Прямая маршевая лестница, безусловно, является самой простой в проектировании и самой удобной.Если в помещении нет столько свободного места, приходится делать лестницу с несколькими маршами и поворотными площадками. Поворот лестницы на 90 или 180 градусов можно обустроить забежными ступенями. У таких ступеней внутренняя сторона меньше наружной, поэтому переход по ним менее комфортный, чем по лестнице с поворотной площадкой.
Забежные ступени могут устанавливаться, как на двухмаршевую лестницу…
…так и на трехмаршевую конструкцию.Лестница с поворотными ступенями имеет довольно оригинальный, изящный внешний вид. При этом она занимает совсем немного места: 2,5 метра вдоль одной стены и 1,5 метра – вдоль другой. Данные размеры являются усредненными для лестницы с поворотными ступенями на 90 градусов.
Особенности конструкции
Несмотря на кажущуюся хрупкость конструкции, поворотная лестница является достаточно прочной. С одной стороны косоур крепится на стену, а с другой – опирается на центральную опору. Если высота помещения и площадь, отведённая для лестницы, позволяют дизайнерской фантазии развернуться, то можно сконструировать лестницу с тремя маршами и дважды развернуть её на девяносто градусов. В таком случае, центральный наружный косоур будет крепиться между двух опорных колонн, а верхний и нижний наружные косоуры будут распирать всю конструкцию. С подступенками или без них, деревянная или металлическая, лестница с плавными поворотами организует пространство вокруг себя. Ещё один момент. Во время спуска и подъёма по любой лестнице человеку свойственно наступать на центральную часть проступи. Это продиктовано внутренним инстинктом самосохранения. Забежные ступени имеют треугольную форму или форму усечённого треугольника.
К примеру, в данном случае двигаться по узкой части ступеней практически невозможно.Правила безопасности движения
ГОСТ и СНиП – образчики библии для строителей, – зафиксировали минимальные размеры, при соблюдении которых, лестница с забежными ступенями будет безопасной:
Лестницы с забежными ступенями – это прочная и безопасная конструкция. Но только соблюдение положений ГОСТа и СНиПа делают её таковой. При несоблюдении основных параметров и размеров, резко возрастают риски падения и соскальзывания на ступенях. Никакие поручни и перила не смогут свести к минимуму риски травматизма из-за неправильной конструкции «г» или «п» образной лестницы.
Пример удобной лестницы с забежными ступенями.Забежные ступени
Смысл забежных ступеней состоит в том, чтобы горизонтальную площадку между маршами заменить ступеньками и использовать это поворотное место для продолжения подъёма/спуска. За счёт этого эффекта и экономится пространство, необходимое для обустройства забежной лестницы. Делать забежные ступени с глубиной более, чем 40 сантиметров у стены, нет смысла. Чем глубже проступь у стены, тем глубже она и у центральной опоры, а это влечёт к увеличению радиуса закругления и экономия места куда-то девается. Если глубина проступи у стены более, чем 40 сантиметров, а глубина у центральной опоры в пределах нормы, то разбиваются стройные ряды проступей. На месте трёх «лопухов» могли бы поместиться четыре ступеньки и поворот сохранил бы свой угол и динамику подъёма/спуска.
При повороте на 90 градусов рекомендуют устанавливать 4-6 забежных ступеней.Если глубина проступи у центральной опоры будет меньше, чем десять сантиметров, то по центру проступи глубина не «вырастет» до минимальных двадцати сантиметров. Высота подступенка напрямую зависит от угла наклона всей конструкции.
Важно!Необходимо выдерживать угол наклона лестницы в местах забежных ступеней.
Формулы успеха
Прежде, чем взять инструмент в руки и приступить к сборке лестницы, необходимо составить чертёж. Далее нужно подробно прорисовать все моменты: высоту перекрытия, размеры места для установки лестницы, форму и место крепления центральной опоры. Рассчитать угол наклона конструкции и высоту подступенков, глубину прямой проступи и количество забежных ступеней. При этом учитывайте минимальные и максимальные параметры и сверяйте их с ГОСТом и СНиПом. Перед тем как ставить окончательную точку на чертеже, не лишним будет проверить несколько формул и понять, насколько будущая конструкция будет комфортной во всех отношениях.
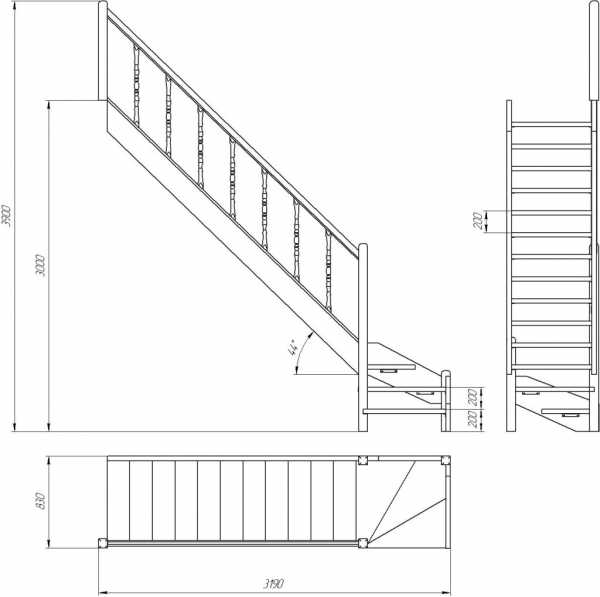
Чертеж лестницы с забежными ступенями в 3-х проекциях.За высоту подступенка отвечает «а», за глубину проступи отвечает «b» из чего имеем следующие параметры удобной конструкции:
- Формула удобного пользования: b – a = 12 см.
- Формула безопасного передвижения: b + a = 46 см.
- Формула лёгкого шага: 2a + b = 62 (60-64) см.
Делаем детальный чертеж забежной лестницы
Совет!Чтобы не набивать шишки на коленях, локтях и подбородке, стоить ответственно подойти к проектированию забежной лестницы.
Металлическая или деревянная, они отличаются только в части конструкции каркасов. Основные принципы построения лестницы с забежными ступенями остаются неизменными. Методы построения чертежей и определения формы забежных ступеней отличаются выбором отправных точек и построения лучей. Будете ли вы применять метод пропорций, подъёма линий, датский метод или метод развёртки зависит от ваших математических способностей. Делаем лестницу с забежными ступенями
Если вы никогда не держали в руках инструмент, то формулы и методы вам не помогут и лучше будет доверить изготовление лестницы со ступенями на повороте профессионалу. Он знает, что металлическая лестница может иметь один центральный косоур и его будет достаточно для надёжности всей конструкции. Ступеньки он сварит из уголка, а подступенки может и вовсе не устанавливать. Деревянная лестница будет посажена им на косоуры с опорой на стойки и стены, при помощи запилов и клея с опилками. Деревянные ступени, которые вечно «забегают», он расположит горизонтально по уровню. Даже нижний край наружной тетивы подрежет вертикально для его крепления к первой опорной балясине. В общем, вопрос остается только в бюджете и вашем желании! А сложность конструкции – это дело второстепенное. ПредыдущаяСтационарныеОсобенности разных конструкций деревянных лестниц
СтационарныеТипы винтовых лестниц и их особенности
lestnitsygid.ru
Забежная лестница с поворотом на 90 градусов
Расчет лестниц с поворотными ступенями на 90°
Методика расчета деревянной лестницы
Укажите необходимые размеры
X – ширина проема лестницы
Y – высота проема
E – ширина лестницы
F – выступ ступеней
Z – толщина ступеней
C – количество всех ступеней
C1 – количество ступеней на нижнем марше
C2 – количество поворотных ступеней
Расчет лестниц с поворотными ступенями на 90°.
Деревянная лестница с поворотными ступенями позволяет значительно съэкономить пространство в доме без потери удобства и функциональности.
При расчете обратите внимание на оптимальное число поворотных ступеней. По моему опыту оптимально 3 ступени при ширине лестницы в 80 см. Больше – ступени будут слишком узкими и поэтому неудобными.
Если проем располагается только над верхней частью лестницы, то важна высота в месте поворота до перекрытия, во избежание травм головы. Она должна быть не менее 2 метров.
При данной конструкции ширина лестницы играет важную роль. Поскольку напрямую влияет на удобство поворотных ступеней. Чем шире лестница – тем большее количество ступеней возможно применить без потери удобства.
В силу разнообразия проектов и конструкций, перила для лестниц в программе никак не рассчитываются и не показываются.
Важно! Обратите внимание на размеры поворотных ступеней. Что бы получить размеры ступени – не забудьте прибавить к этим размерам величину выступа.
Расчет каменной лестницы для ничем не отличается от расчета деревянной или металлической лестницы. Главное – правильно рассчитать размеры ступеней. Их высота обязательно должна быть одинаковой для всех ее частей.
Расчет удобства лестницы вычисляется по формуле, основанной на длине шага.
Длина шага человека составляет от 60 до 66 см, в среднем – 63 см.
Удобная лестница соответствует формуле: 2 высоты ступени + глубина ступени = 63±3 см.
Наиболее удобный наклон лестницы – от 30° до 40°.
Глубина ступеней лестницы должна соответствовать 45 размеру обуви – не меньше 28-30 см.
Недостаток глубины можно компенсировать выступом ступени.
Высота ступени должна быть до 20-25 см.
Программа нарисует чертежи лестницы с поворотными ступенями с основными углами и размерами.
На чертежах показаны общие размеры лестницы, разметка верха ступеней на тетивах, углов ступеней и основные размеры самих ступеней.
Надеюсь, программа поможет вам спроектировать и изготовить лестницу для дачи или дома своими руками.
Расчет лестниц с поворотными ступенями на 90°.
Деревянная лестница с поворотными ступенями позволяет значительно съэкономить пространство в доме без потери удобства и функциональности. При расчете обратите внимание на оптимальное число поворотных ступеней. По моему опыту оптимально 3 ступени при ширине лестницы в 80 см. Больше – ступени будут слишком узкими и поэтому неудобными.
Если проем располагается только над верхней частью лестницы, то важна высота в месте поворота до перекрытия, во избежание травм головы. Она должна быть не менее 2 метров.
При данной конструкции ширина лестницы играет важную роль. Поскольку напрямую влияет на удобство поворотных ступеней. Чем шире лестница – тем большее количество ступеней возможно применить без потери удобства.
В силу разнообразия проектов и конструкций, перила для лестниц в программе никак не рассчитываются и не показываются.
Важно! Обратите внимание на размеры поворотных ступеней. Что бы получить размеры ступени – не забудьте прибавить к этим размерам величину выступа.
Расчет каменной лестницы для ничем не отличается от расчета деревянной или металлической лестницы. Главное – правильно рассчитать размеры ступеней. Их высота обязательно должна быть одинаковой для всех ее частей.
Расчет удобства лестницы вычисляется по формуле, основанной на длине шага.
Длина шага человека составляет от 60 до 66 см, в среднем – 63 см.
Удобная лестница соответствует формуле: 2 высоты ступени + глубина ступени = 63±3 см.
Наиболее удобный наклон лестницы – от 30° до 40°.
Глубина ступеней лестницы должна соответствовать 45 размеру обуви – не меньше 28-30 см.
Недостаток глубины можно компенсировать выступом ступени.
Высота ступени должна быть до 20-25 см.
Программа нарисует чертежи лестницы с поворотными ступенями с основными углами и размерами.
На чертежах показаны общие размеры лестницы, разметка верха ступеней на тетивах, углов ступеней и основные размеры самих ступеней.
Надеюсь, программа поможет вам спроектировать и изготовить лестницу для дачи или дома своими руками.
Расчет лестницы на 90° с поворотными ступенями
Онлайн калькулятор расчета деревянной лестницы на90°с забежными ступенями
Как рассчитать лестницу на второй этаж
Простой онлайн калькулятор рассчитает количество ступеней, глубину ступеней, высоту ступеней для забежной лестницы на 90° на второй этаж. Начните расчет лестницы!
Как рассчитать ступени лестницы
Приведем известную формулу французского архитектора Франсуа Блонделя, для расчета чаще всего используют именно его формулу удобства ступеней лестницы, она основана на средней длине человеческого шага в 63 см.
s – величина среднего шага
a – ширина проступи
h – высота подъема ступени (подступенка)
Благодаря этим трем формулам определяется удобство и безопасность лестницы.
Необходимо учесть, что ширина проступи – величина a должна быть в пределах 25 – 30 см. А высота ступени – величина h лежать в пределах 15 – 20 см.
Р.S. при других заданных параметрах лестница будет не удобной, в других случая и опасной.
Программа расчета ступеней лестницы с забежными ступенями выдаст точный расчет количества удобных ступеней, глубину и высоту ступеней, а так же угол наклона вашей лестницы и на сколько ваша забежная лестница «удобная», «неудобная» и в итоге безопасная. В зависимости от итоговых результатов вы всегда сможете подогнать все значения до идеальных параметров лестницы для максимально безопасного передвижения по ней. Меняйте количество ступеней, подбирайте самое подходящее количество ступеней для вашей лестницы с забежными ступенями. Учитывайте, что ширина лестничной поворотной площадки равна ширине лестницы, которую вы указываете в калькуляторе сами.
Безопасность поворотной лестницы с забежными ступенями
Рекомендуем делать количество ступеней поворотной лестницы не четным, чтобы начиная восхождение и спускаясь, вы смогли это сделать с одной и той же ноги, с опорной, это гораздо удобнее. Желательно, чтобы в одном лестничном марше было минимум 3 ступеньки. Чтобы ваша лестницы была максимально безопасной, необходимо знать, что высота ограждений лестницы должны быть всегда выше центра тяжести человека, таким образом, безопасной высотой ограждения считается 90 — 120 см.
Чертеж забежной лестницы
Калькулятор онлайн автоматически по вашим параметрам выведет чертеж забежной лестницы на 90 градусов и выдаст полные расчеты деревянной лестницы с косоурами, рассчитает угол наклона и размеры верхней и нижней тетивы. А также покажет рекомендации связанные с количеством ступеней, угла наклона лестницы и длиной проема, если таковые понадобятся, относительно заданных вами размеров. При желании вы сможете сохранить итоговые расчеты и чертеж лестницы на ваш компьютер.
Источники: http://www.zhitov.ru/lestnica3/, http://rubankom.com/calc/raschet-osnovnyh-razmerov-lestnicy-s-povorotnymi-stupenyami-90-gr, http://zamer-doma.ru/raschet-zabezhnoj-lestnicy/
lestnica-mpl.ru
Как рассчитать лестницу с забежными ступенями

При расчете и проектировании лестницы в двухэтажном доме или двухуровневой квартире частой проблемой является недостаток свободного места для ее установки. В такой ситуацие отличным решением будет деревянная лестница с забежными ступенями. Но такая конструкция имеет свои особенности в расчете и установке, об этом и поговорим ниже.
Описание и особенности
Лестница с забежными ступенями представляет из себя маршевую лестницу с поворотом на 90 или 180 градусов. Ее особенностью являются забежные ступени, позволяющие значительно сэкономить площадь которую занимает лестница после установки. Забежные ступени устанавливаются в месте поворота лестницы вместо промежуточной площадки.
Лестница с забежными ступенями и поворотом 180 градусовРассмотрим основные преимущества и недостатки. К плюсам лестниц такой конструкции можно отнести:
- занимают мало места
- эстетическая привлекательность
- визуально делают помещение шире
к минусам:
- сложность расчетов
- забежные ступени уже обычных, что вызывает неудобства
- повышенная травмоопасность
Как рассчитать лестницу с забежными ступенями
Прежде чем приступать к проектированию, вы должны понимать, что любой расчет это сложная процедура, которая требует определенных знаний и применение специальных формул. Поэтому чтобы избежать ошибок и проблем в дальнейшем рекомендуется использовать специальные программы, например AutoCAD, StairDesigner, Compass, или воспользоваться услугами специалистов.
Изготовление любой лестницы из дерева начинается с расчетов габаритов и представления ее графически. Перед расчетом габаритов следует помнить о рекомендуемых размерах элементов лестницы, а именно:
- ширина марша лестницы в частном доме должна составлять 600 — 700 мм для одного человека, но не стоит забывать о возможности встречного движения, поэтому оптимальной шириной будет 900 мм
- угол наклона. Идеальным соотношением высоты марша к его горизонтальной проекции равняется 1:2 — 1:1.75, в таком случае наклон лестницы около 30º. Если места недостаточно, то максимальным допустимым наклоном считается 40º, что в соотношении марша к проекции равно 1:1.25
- толщина проступи обычно зависит от ширины марша в соотношении 1:20, так например для марша шириной 900 мм толщина проступи должна быть около 45 мм
- особых требований к подступенку нет, он может быть изготовлен из любого дерева, а рекомендованная толщина 15 — 25 мм. Также часто для изготовления подступенков используется шпонированная фанера
- косоуры должны быть прямыми и без сучков, ширина доски из которого они изготовлены должна быть 250 — 300 мм, а толщина 40 — 70 мм
- для удобного спуска и подъема перила устанавливаются на уровне около 900 мм
- размеры ступеней должны соответствовать формуле 2*h + b = 600…650 мм, где h это высота ступени, и b ее ширина. Комфортной высотой считается размер 140 — 180 мм, а ширина 250 — 300 мм
- количество забежных ступеней рекомендуется делать три, реже четыре штуки. Все зависит от конкретной ситуации
Лестница с тремя забежными ступенями (отмечены зеленым)Деревянная лестница с забежными ступенями своими руками
Начать расчет лестницы из дерева нужно с определения количества ступеней, для этого нужно взять расстояние от пола первого этажа до пола второго этажа и разделить на примерную высоту ступени. Рассмотрим на примере, где высота лестницы 2700 мм, а длина свободного места выделенного для лестницы 3300 мм.
Габариты будущей лестницыРазделив расстояние между полами первого и второго этажа на среднюю рекомендованную высоту ступени 2700 / 155, мы получаем количество ступеней равное 17,41 штук, округляем до 17 штук и отнимаем одну ступень, так как пол второго этажа уже является одной из ступеней нашей будущей лестницы. Таким образом мы получаем количество ступеней равное 16. Разделив высоту лестницы на количество ступений мы получаем точный размер нашей ступени, равный 169 мм.
На следующем этапе расчета нужно решить сколько прямых ступеней будет до поворота лестницы и соответственно до забежных ступеней. Предположим, что прямых ступеней будет три. Следующим элементом лестницы будет поворот с забежными ступенями. Первым делом нужно определиться с шириной лестничного марша, так как для поворота лестницы на 90 градусов необходимо выделить пространство для забежных ступеней в виде квадрата, стороны которых имеют длину равную ширине лестничного марша. Возьмем за ширину лестничного марша размер в 900мм. Теперь зная размер элемента с забежными ступенями и количество ступеней после, мы можем рассчитать ширину ступени. В нашем случае количество ступеней в верхнем марше 10 штук (общее количество ступеней 16, 3 ступени до поворота, 3 забежные ступени)
(3300 — 900) / 10 = 240 мм
Имея ширину и высоту ступени, мы можем проверить, будут ли они удобными для хождения используя формулу 2 h + b = 600…650 мм.
2*169 + 240 = 578
Как мы видим 578 мм гораздо меньше рекомендованных 600 — 650 мм, поэтому для увеличения ширины проступи нам нужно сократить количество ступеней после поворота. Для этого можно увеличить количество ступений до поворота или увеличить количество забежных ступеней до четырех. Мы увеличим количество ступеней перед поворотом до четырех штук, уменьшив тем самым количество после поворота. Проведем еще раз наши расчеты с шириной проступи:
(3300 — 900) / 9 = 267 мм
Ширина увеличилась. Проверим теперь комфорт передвижения с такими размерами
2*169 + 267 = 605 мм
Такой результат попадает в рекомендованные значения, а это значит, что спуск и подъем по лестнице будет комфортным.
Теперь зная размер и количество ступеней до и после поворота, мы можем вычислить угол наклона лестницы и проверить попадает ли он в рекомендованный диапазон.
Для этого нам нужно узнать высоту последнего марша и длину его проекции на пол. Высоту мы можем получить умножив количество ступеней до него на их высоту и вычесть это значение из общей высоты
2700 — 7*169 = 1517
Длина проекции будет равна разнице длины ниши и площадки для забежных ступеней
3300 — 900 = 2400
Зная эти данные и воспользовавшись формулой угла тангенса мы сможем определить угол наклона лестницы, который равен примерно 32º, данный результат попадает в рекомендованный диапазон.
Примерный внешний вид готовой лестницы сделанной по размерам взятым вышеОсталось только рассчитать размер деревянных забежных ступеней. При назначении размера клинообразных забежных ступеней расчетные величины принимают посередине марша. Из практики могу сказать, что в среднем на квадрат идет 3, реже 4 ступени все зависит от конкретного случая. При трех ступенях угол поворота забежных ступеней кратный 30 градусам, при 4 ступенях алгоритм иной. Угол первой ступени 24º, второй 45º, третий 67º и четвертый соответственно 90º.
Угол поворота забежных ступенейКонечно 3 ступени комфортнее нежели 4 так как среднее значение проступи при трех ступенях будут равны 290 — 300 мм, а при четырех 210 — 220 мм. Это видно на рисунке ниже.
Размер ступенейПоследним, но необязательным этапом рекомендуется начертить лестницу в реальном размере на стене в том месте где она будет установлена. Такие действия помогут вам представить конструкцию в пространстве и проверить правильность своих расчетов.
Советы и рекомендации
Перед тем как начать изготовление деревянной лестницы с забежными ступенями своими руками, нужно определиться с породой дерева из которого она будет изготовлена. Самыми распространенными породами для производства являются дуб, ясень, бук, клен и лиственница. Также большой популярностью пользуется сосна, но по сравнению с перечисленными породами она не обладает такой же плотностью, зато значительно дешевле.
Список инструментов, которые могут понадобиться вам для изготовления и установки лестницы:
- дрель
- шуруповерт
- электролобзик
- ручная пила
- молоток
- рубанок
- стаместка
- рулетка
- уровень
- шурупы, саморезы, гвозди и прочие крепления
Лестница с забежными ступенями может быть изготовлена двумя способами: на косоурах или тетивах. Вариант с тетивами более распространенный и простой в монтаже, в случае с косоурами изготовление и установка сложнее, но такая конструкция выглядит более элегантно и красивее.
Монтаж деревянной лестницы происходит поэтапно:
- установка тумбы под забежные ступени и первого марша
- установка и крепление несущей конструкции второго марша
- установка ступеней, следует производить снизу вверх
- установка опор, балясин и столбов
- установка и крепление перил
Итог
В этой статье мы рассмотрели как сделать забежную лестницу и как ее рассчитать. Изготовление деревянной лестницы с забежными ступенями сложный процесс, но если вы обладаете определенными навыками в работе с деревом и достаточными знаниями в геометрии, то это процесс вполне выполнимый собственноручно. Не забывайте о том, что при должном уходе и эксплуатацие деревянная лестница прослужит вам не один год, поэтому проводя расчеты соблюдайте рекомендации изложенные в этой статье, это поможет изготовить ее безопасной, а ходьба по лестнице все эти годы будет приносить вам только удовольствие.
boberprofi.ru
Лестница с забежными ступенями: особенности конструкции
Читайте в этой публикации:
Лестница с забежными ступенями: требования к изготовлению
Расчет лестницы с забежными ступенями: основной принцип
Лестница с забежными ступенями своими руками: особенности изготовления
На вопрос, что такое забежная лестница, коротко можно ответить, что это вполне удачная комбинация обычной маршевой и винтовой лестницы. Последняя в этом тандеме заменяет переходную площадку, за счет чего и происходит экономия места при ее установке. Вообще преимуществ у лестницы для дома такой конструкции весьма много. Во-первых, это малая площадь для установки. Во-вторых, удобное передвижение (по сравнению с винтовой лестницей). И, в-третьих, это стильный, привлекательный, можно даже сказать, уникальный и богатый внешний вид. Именно о таком изделии пойдет разговор в данной статье от сайта stroisovety.org, в которой мы разберемся с особенностями, которыми обладает лестница с забежными ступенями.

Г-образная лестница с забежными ступенями фото
Лестница с забежными ступенями: требования к изготовлению
Как и любое другое изделие, которое использует в своей жизни человек, лестница с забежными ступенями обязана обладать определенными качествами. Соответствие им и обуславливает выдвигаемые к ее конструкции требования.
- Ступени – их ширина. В самой большой своей части она не должна превышать 400мм, а в самой узкой 100мм. Следует понимать, что выходя за эти пределы, вы будете создавать предпосылки к неудобному передвижению по лестнице.
- Между поворотами, на прямых участках лестницы, все ступени должны иметь одинаковую ширину.
- Высота ступеней. Для удобного передвижения (для того, чтобы человек не перецепался через них, и ему не приходилось слишком высоко задирать ногу) высота ступеней должна составлять порядка 120-220 мм.
- Выступ – нависание верхней ступени над нижней ступенью, опять-таки, в целях безопасности не должен превышать 40мм.
- П-образная лестница, которая имеет два поворота, составляющие 180 градусов. В них расстояние от одного марша до второго не должно быть меньше четвертой части ширины ступеней. В противном случае получается несостыковка по высоте ступеней – вы получите ступени высотой менее 100мм, что нарушает технические требования, обуславливающие удобство и безопасность передвижения по лестнице.
- Ограничивается здесь и расстояние от марша до перекрытия, не менее 2м. В противном случае изготовление лестницы с забежными ступенями с поворотом не получается.

Лестница с забежными ступенями фото
Соблюсти все эти требования, создав надежную, удобную и красивую забежную лестницу своими руками, можно только проведя предварительный расчет ее конструкции. В принципе, это дело несложное и вполне доступное для каждого технически мыслящего человека.
Расчет лестницы с забежными ступенями: основной принцип
Как и говорилось выше, рассчитать простую поворотную, Г-образную лестницу с забежными ступенями весьма несложно – по большому счету, речь идет о расчете высоты ступеней и определении их количества. Выполняются такие расчеты весьма просто.
- Для начала определяем высоту между полом первого этажа и низом перекрытия. Просто берем и меряем его посредством рулетки.
- Полученную цифру делим на такое количество ступеней, чтобы расстояние между ними по высоте соответствовало требованию и находилось в пределах от 120 до 220мм. К примеру, если имеем высоту от пола до перекрытия равную 2500мм, то разделив ее на 20 ступеней, получим 125мм. По правде говоря, это несколько низкая ступень (несмотря на то, что размер в допуске), поэтому лучше попробовать добавить еще одну – поделив 2500мм на 21 ступень, получим уже 119мм. А если поделить 2500 на 22 ступени, то их высота уже составит 113,6мм. Можно пойти и в сторону уменьшения количества ступеней – если их количество составит 19, то высота между ними получится равной 131,5мм. Если уменьшать количество ступеней еще на единицу, то высота увеличится уже до 138,8 мм. В общем, правильных вариантов расчетов, не выбивающихся за рамки требований, может быть много, и здесь самое главное – найти для себя самый удобный вариант. Практика показывает, что оптимальной высотой ступеней является расстояние порядка 180мм, а это в нашем случае соответствует примерно 14 ступеням.

Расчет лестницы с забежными ступенями фото
- Есть и такое понятие, как угол наклона лестницы. Сами понимаете, что по слишком крутой лестнице взбираться на второй этаж не очень удобно. Именно по этой причине рассчитать придется и его. Вернее не рассчитать, а определить – делается это исходя из ширины и количества ступеней. По сути, здесь нужно определить не сам угол, а расстояние по горизонтали от верхней точки крепления лестниц до нижней – подогнать ширину ступени в соответствие этому расстоянию. Или, наоборот, задав оптимальную ширину ступеней (200-280мм) и умножив ее на количество ступеней, определить расстояние. В нашем случае 250*14= 3500мм. У вас имеется такое расстояние? Думаю, что нет. Придется сокращать ширину ступеней и немного увеличивать расстояние между ними.
В общем, для несведущего человека это настоящая головоломка, решать которую проще в обратном направлении и исходить не из требуемых размеров, а из имеющегося для лестницы пространства. С одной стороны это не совсем правильно, но таким образом из лестницы можно выдавить максимум. Побочная сторона такого подхода к делу – это сильная крутизна лестницы. В такой ситуации стандартный прямой марш оборудовать специальными ступенями под названием гусиный шаг.
Лестница с забежными ступенями своими руками: особенности изготовления
Конструкция забежной лестницы считается сложной – ее весьма трудно рассчитать и так же непросто изготовить своими руками. Но, как говорится, для мыслящего человека, нет ничего невозможного – изготовление лестницы с забежными ступенями в этом отношении не является исключением. Здесь главное – правильно продумать последовательность работ, которую условно можно разбить на два основных этапа.
- Поворотная, забежная часть. Для начала здесь нужно рассчитать место установки угловой опоры – как правило, оно определяется исходя из ширины лестницы (800 и более миллиметров). Если забежная часть конструкции располагается в углу, то это расстояние необходимо отступить от обеих стен. Вообще расположение забежных ступеней в углу намного облегчает процесс изготовления такой лестницы – ступени в таком случае можно крепить непосредственно к стене, что и делается следующим этапом. Один их конец привязывается к опоре, а второй к стене – после того, как поворотные ступени или их металлический каркас будут смонтированы, смело можно будет переходить к маршевой части лестницы.

Как сделать лестницу с забежными ступенями фото
- Прямой лестничный марш. Здесь ничего сверхъестественного нет, и все работы производятся стандартно, то есть сначала устанавливаются несущие конструкции (косоуры), а потом на них укладываются ступени. Единственная сложность, которая здесь может возникнуть, это крепление косоура к опоре забежной части лестницы – в принципе, если каркас варится из стали, то это не проблема. Для деревянной лестницы в опоре придется выбирать выемку, а на косоуре делать шип.

Металлическая лестница с забежными ступенями фото
И завершает процесс изготовления лестницы с забежными ступенями такой процесс, как установка балясин и перил. О том, как это делается, можно почитать в других статьях нашего сайта.
И в заключение темы о том, как изготавливается лестница с забежными ступенями, скажу несколько слов о материалах, из которых она изготавливается. В принципе, здесь все, как и в случае с лестницами других конструкций – самыми распространенными вариантами является металл, древесина и их комбинация. Проще всего в плане крепления отдельных элементов и вообще монтажа изготовить лестницу на металлическом каркасе – с деревом дела обстоят несколько сложнее, так как для работы с ним необходима масса специализированного оборудования. В первом варианте понадобится только болгарка и сварочный аппарат – в противовес этому преимуществу можно выдвинуть такой недостаток, как скрипучесть, происходит это из-за комбинирования материала – как ни крути, а все равно придет тот час, когда появятся скрипы.
Автор статьи Александр Куликов
stroisovety.org
Забежная лестница своими руками — забежные ступени
Для того чтобы уменьшить габариты лестничной клетки при недостатке свободного пространства, вместо межлестничной площадки изготавливают забежные ступени, ширина по линии движения которых равна ширине прямых ступенек. Эти ступени не очень удобны, поскольку спускаясь с лестницы, их ширина становится меньше при приближении к середине и просто неудобна для постановки ноги. В тоже время на другом конце ступени становятся намного шире человеческого шага. Для того чтобы уменьшить неудобства стоит на повороте оборудовать закругленные стены лестничной клетки, чтобы уменьшить размеры ступеней, а соответственно и затраты на их сооружение.
Обратите внимание! Самый узкий лестничный приступ должен составлять не меньше 10 см.
Устройство забежной лестницыДля того чтобы уменьшить перечисленные недостатки нужно использовать два способа:
- Забежная лестница может быть устроена лишь в том случае, когда горизонтальное расстояние между параллельными маршами составляет ¼ ширины ступеней;
- Для расчета ширины ступенек использовать один из предложенных способов, который основывается на пропорциональном расширении концов забежных ступенек за счет ширины прямых.
Расчет
Расчет забежных ступеней при параллельных маршахЕсли взять для примера лестницу, имеющую два параллельных марша и поворот на забежных ступенях с учетом расчета ширины ступеней, которые заменят площадку между этажей, расчеты проводятся следующим образом:
- По центру марша проводится черта АВС – средняя линия движения, согласно которой наносится ширина поступей. При этом линия должна начинаться от закругленной вершины таким образом, чтобы расположенная посередине ступень была разделена вертикальной линией ВС ровно наполовину. В итоге получатся порядковые деления. Чем больше количество прямых ступеней, тем комфортней получится лестница, и переход от прямых ступенек к забежным будет плавней. Захватив три прямых ступеньки, проведите линию по горизонтали ДЕ, оградив высшую из них. Именно с нее начинается регулирование ширины поступи, соединив середину А с двумя чертами на линии движения. После того как линия будет проведена до пересечения линий с чертой ДЕ и получен следующий отрезок, его необходимо продолжить от Д к Е до нахождения следующих точек. Соедините полученные точки с соответствующими точками по номерному значению, которые отмечены пол линии движения. Итоговым результатом выполненных расчетов станет горизонтальная проекция формы поступей забежных лестниц с левой стороны. Аналогичным образом произведите расчеты правой стороны.
- Иной расчетный способ состоит в следующем: продвигаясь от точки В по линии движения, отмерьте ширину поступей в соответствии с нормами таким образом, чтобы вертикально расположенная черта ДВ делила среднюю ступень вдоль напополам. Опираясь на количество прямых ступенек (3) получите отрезок АВ от вертикально расположенной черты ДВ и проведите наклонную линию АС по направлению к ней. При этом длина отрезка может быть любой и располагаться он должен под острым углом, с дальнейшим нанесением на него 7 отметок, которые будут соответствовать семи ступеням. Одна часть может быть равна от 3-10 мм в зависимости от масштаба бумаги для рисования схемы.
Строительство забежной лестницы
Сборка забежных ступеней на тетивах После соединения точки С с точкой В и проведения из каждой точки параллельных ВС линий получаются аналогичные отрезки на вертикальной линии АВ. Далее соедините все точки деления с соответствующими им точками на центральной линии движения и проведите их до поверхности стены, которая окружает клетку. Таким образом, будут получены габариты и форма поступей в горизонтальной проекции.Аналогичным образом производятся расчеты забежных лестниц с двумя маршами.
Обратите внимание! Лестницы, предполагающие наличие радиального поворота гораздо сложнее в изготовлении. Они требуют производства косоуров, тетивы, либо изготовления дополнительных опорных элементов под ступеньки, которые будут повторять радиус в лестничном изгибе. По этой причине забежные поворотные лестницы зачастую выполняются без радиуса на изгибе, а с поворотом под прямым углом.
Габариты лестницы с поворотом под прямым углом рассчитываются графическим пропорциональным способом. Этот вариант, наиболее востребованный при самостоятельном изготовлении забежных ступеней, поэтому их расчет стоит рассмотреть более подробно.
Видео
Полезное видео о расчете количества и высоты ступеней любых лестниц:
Лестница с двумя маршами с поворотом под прямым углом
Расчет забежной лестницыПри изготовлении графического расчета стоит делать поправку на их неточный результат. В этом случае допускается изменение габаритов при отрисовке, но с условием, что ступеньки останутся неизменными по ширине и линия движения будет не затронута. Определенные ступеньки можно изменять в размере на концах в сторону увеличения или уменьшения, при этом оставляя прежней ширину поступи по центру.
Схема забежной лестницы на косоурахСнимая габариты с выполненного чертежа, соотнесите размеры всех ступенек с помощью сложения. Итоговая сумма с одной стороны, должна совпадать с размерами ступеней на указанном участке.
Это все ключевые моменты для самостоятельного изготовления забежной лестницы. Учтите, что без наличия определенных навыков вам вряд ли удастся выполнить данную работу.
Видео
В этом видеоматериале описан монтаж лестницы с поворотными ступенями:
stroysvoimirukami.ru
Поворотная лестница на 180 градусов с забежными ступенями

Поворотные лестничные конструкции представляют собой компактное изделие, которое подойдет для частных домов. Надежная забежная лестница с поворотом на 180 градусов — решение простое в исполнении и легкое в эксплуатации. Главной особенностью в данном случае является наличие забежных ступеней. Такие элементы заменяют лестничную площадку и обеспечивают разворот конструкции. При этом сооружение на второй этаж отличается безопасностью, простой архитектурой и может быть изготовлено из различных материалов.
Особенности

Поворотная лестничная конструкция является компактным изделием, обеспечивающим комфортный подъем на второй этаж в частном доме. Сооружение с забежными ступенями не занимает много места и поэтому может быть установлено на небольшой площади. Такие ступени представляют собой несколько элементов, размер и форма которых отличаются от остальных ступеней марша. Благодаря такой особенности лестницы с поворотом практичны и удобны в эксплуатации.
Главные преимущества и свойства конструкции с забежными ступенями заключаются в следующем:
- Изделие может иметь Г-образную, П-образную или криволинейную форму;
- Каждый тип конструкции требует тщательного проектирования, расчета параметров, выбора материалов и учета особенностей;
- Лестницы с поворотом и забежными ступенями должны соответствовать требованиям и установленным стандартам, что обеспечивает безопасную эксплуатацию;
- Данный вариант изделия отличается компактностью, надежностью и безопасностью.

В процессе проектирования лестничной конструкции важно составить точный и правильный чертеж. Забежные ступени чаще всего присутствуют в количестве 3-5 штук, что обеспечивает комфортную эксплуатацию сооружения. При этом важно определить оптимальную форму и размеры данных элементов, а также угол наклона конструкции. Итоговый чертеж должен отражать все особенности и параметры изделия.
Создать лестницы с поворотом своими руками достаточно просто. Для этого необходим правильный выбор материала. Основой может служить металлокаркас, древесина, камень или бетон. Также обязательно необходим чертеж и проект для сооружений с поворотом. При этом учитываются размеры изделия, количество забежных элементов, угол поворота и наклона, ширина проступи, высота ступени и многие другие важные детали. Без учета данных особенностей невозможно составить точный чертеж и создать своими руками удобное и надежное изделие. Эксплуатация оптимальной конструкции не требует особенных условий, но следует учитывать свойства материала, из которого изготовлено сооружение. Правильный и комплексный подход, соблюдение технологии изготовления и точные параметры позволяют создать безопасное и долговечное сооружение.
prolestnitsy.ru
фото ступеней своими руками и чертежи

Забежные проступи придают лестничному маршу изящество и движение
Многие владельцы двух- трехэтажных частных домов или садовых, дачных домиков сталкиваются с проблемой дефицита жилой площади на первом этаже. Для того чтобы построить обычную Г- или П-образную лестницу, потребуется «отнимать» у первого этажа довольно значительное по площади пространство. Спасти ситуацию и сэкономить лишний квадратный метр поможет изготовленная забежная лестница своими руками. Ориентируясь на фото в специализированных журналах и в каталогах строительных фирм, владельцы проникаются симпатией к таким конструкциям как эстетически очень привлекательным, экономным по площади и надежным. Несмотря на то, что забежные ступени сделать не так просто, как обычные, и стоимость изготовления может оказаться выше, но для того, чтобы сохранить драгоценное жилое пространство, приходится идти на такие жертвы.

В узком пространстве это идеальное решение
Технические требования к забежным лестницам
Как и любая другая конструкция, которой пользуются люди, лестница должна строго соответствовать требованиям безопасности и изготавливаться в точном соответствии с техническим регламентом. Начинать строительство, ориентируясь просто на фото, безрассудно.
В самом начале строительства нужно произвести все замеры помещения, где планируется установить лестницу, сделать фото этого места, произвести определенные расчеты и создать точные чертежи будущего изделия с привязкой к месту установки.
Основные технические требования:
- В самой широкой части ступени не должны быть шире 40 см, а в самой узкой – меньше 10 см.
- На прямых интервалах между поворотами все ступени должны иметь одинаковую ширину.
- Высота ступени должна быть в пределах 12-22 см.
- Выступ края проступи не может превышать 4 см.
- При строительстве П-образной лестницы с двумя поворотами (т.е. на 180 градусов) расстояние от одного марша до следующего не может быть менее четверти ширины ступени. Если не соблюсти это правило, то глубина ступени на повороте будет слишком маленькой – меньше 10 см, а это является нарушением технических требований и правил безопасности.
- Расстояние от марша до межэтажного перекрытия — не менее 2 м.
Грамотный и правильный расчет, планировка строительства на основании сделанных фото и замеров позволят сделать забежную лестницу не только красивой, но и удобной, и надежной, и безопасной. Небрежное отношение к техническим требованиям скажется на качестве конструкции, которая может в лучшем случае просто сломаться через некоторое время, а в худшем – привести к трагедии.

Полностью деревянный антураж
Виды лестниц с забежными ступенями
К каком виду относится та или иная лестница, можно определить даже просто по фото. Правильно и досконально сделанные расчеты позволят заранее определиться, конструкция какого вида будет оптимальной в каждом конкретном случае:
- Г-образная – один поворот на 90 градусов.
- П-образная – два поворота с итоговым поворотом на 180 градусов.
- Изогнутая – количество поворотов произвольное, индивидуальное.
Независимо от того, какой из видов будет в итоге выбран, каждый поворот должен в точности соответствовать техническим регламентам и установленным правилам.

Чертеж рассчетов параметров забежной летсницы
Этапы изготовления лестницы с забежными ступенями
Процесс создания лестницы происходит в несколько последовательных этапов:
- Делаем косоуры или тетивы.
- Делаем забежные ступени.
- Собираем конструкцию.
- Устанавливаем опорный столб.
- Устанавливаем балясины и перила.
Для формирования поворота на 90 градусов необходимо 3-4 забежных ступени, которые с одной стороны крепятся к косоуру или тетиве, а с другой – к опорному столбу. Ступени марша, который примыкает к стене, крепятся с одной стороны к косоуру, с другой – к стене. Фрагмент лестницы, который не примыкает к стене, с обеих сторон укрепляется на косоурах. Изготовление и установка балясин и перил производится по тем же правилам, что и для всех других видов лестниц.
Материалы для изготовления лестниц с забежными ступенями

Простая забежная конструкция с открытыми подступенками
Так же, как и для всех других видов лестниц, для изготовления лестницы с забежными ступенями используют следующие материалы: дерево, металл, стеклопластик, железобетон.
Косоуры и тетивы с одинаковым успехом могут быть сделаны как из металлических, так и из деревянных балок. Ступени – почти всегда деревянные. Стеклопластик используется сравнительно нечасто. Железобетон – очень редко. Это связано с тем, что сама конструкция практически всегда является совершенно оригинальной, индивидуальной, поэтому изготовление производится вручную по уникальным чертежам, с учетом особенностей каждого конкретного помещения.
Дерево намного проще использовать в индивидуальном строительстве, чем любые другие материалы. Оно легче поддается обработке, не требует применения каких-то узкоспециализированных инструментов. Это в первую очередь относится к изготовлению ступеней и тетив. Косоуры с успехом могут быть металлическими на маршах, а в местах поворота закрепляться под прямым углом, их все равно не видно.
Перила и балясины могут быть сделаны из любого материала – дерева, металла, стеклопластика, декоративных материалов. Все зависит только от вкусов домовладельца или замысла дизайнера.
Лестницу можно дополнительно декорировать самыми разнообразными материалами – керамической плиткой, гипсовой лепниной, художественной ковкой и т. д. При укладке покрытия на ступени нужно обратить внимание на то, чтобы оно имело противоскользящие свойства.
Поворотные лестницы с забежными ступенями прекрасно смотрятся, могут послужить самостоятельной частью интерьера и украшением помещения. Несмотря на привлекательный внешний вид, немногие стремятся их устанавливать в своем доме вследствие сложностей в изготовлении, проблем, которые часто возникают еще на этапе планирования строительства, расчетов и чертежей. Конечно, можно попытаться все сделать своими руками, но слишком велик риск допустить ошибку в расчетах. Поэтому помощь профессионалов оказывается зачастую просто необходимой.
Загрузка…makeladder.com




