Дом шалаш смотреть картинки – 100+ фото фасадов [Красивые дома 2019]
Деревянный дом-шалаш в Швеции (фото)
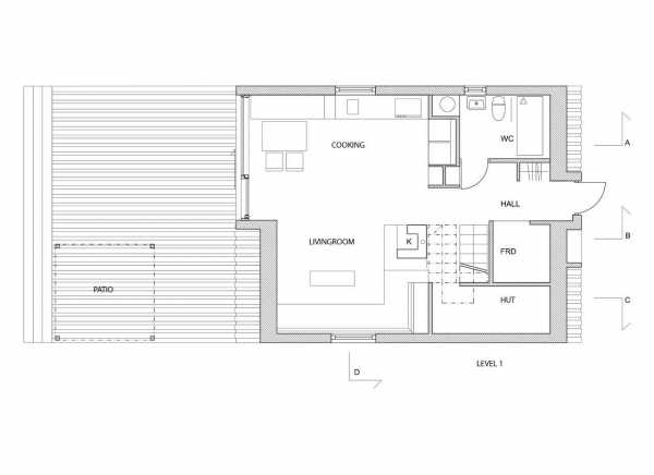
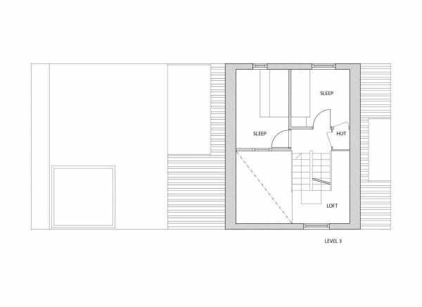
Проект этого недорогого, но уютного летнего домика площадью 90 кв. метров разработал архитектор Лео Кварсебо (Leo Qvarsebo) из Швеции.
При постройке деревянного дома широко применялось вторсырье. Так, внутренние потолки, стены и полы покрыты фанерой из закрытого завод головоломок. Двери и окна найдены в секонд-хенде, а мебель также сделана из фанеры.

Каркас изготовлен из деревянных балок, образующих A от основания к вершине. Крыша и стены выполнены из шведской сосны.





















deadbees.net
фото, видео, идеи для проекта, преимущества, недостатки
Дом-шалаш: фото идеи для загородного жилья
Из этой статьи можно узнать, какими конструктивными особенностями обладает дом-шалаш: достоинства и недостатки построек А-образной формы, их специфичность и распространенные варианты дизайна с фотографиями. В тексте содержится пошаговое описание технологии строительства треугольного дома: популярные проекты и выбор подходящего варианта, подготовка к работе и основные этапы возведения постройки, а также дополнительные рекомендации.
Дома-шалаши встречаются не так часто, сразу выделяясь своим нетривиальным видом из ряда строений привычной традиционной форм
Треугольные постройки: фото шалашей, их преимущества и недостатки
Для строительства дачных домиков большинство владельцев подбирают традиционные конструкции со стандартной планировкой. Тем не менее, располагая собственным участком земли, можно рассмотреть и альтернативные варианты сооружений с необычным дизайном. Картинки шалашей в лесу, которые можно встретить в интернете, наглядно отражают, насколько привлекательной и естественной может быть конструкция А-образного дома.

Дом-шалаш можно назвать одной большой мансардой, которая может иметь два или три уровня — сколько позволяет высота кровли
Особенности домов-шалашей: фото и нюансы конструкции
Конструкция шалаша выполнена в форме треугольника. Такой дом имеет два фасада. Стены отсутствуют, их функцию выполняют скаты крыши. Если говорить в общих чертах, здание состоит из каркасной основы, которая выполнена из нескольких рам треугольной формы. Крыша двускатного типа опущена к самому фундаменту. На некоторых фото дачных домов можно увидеть и другие варианты дизайна, где кровля начинается с невысокого цоколя.

В доме по типу шалаш отсутствуют стены, заменяет их увеличенная в размерах крыша, под которой расположены жилые комнаты
Такие постройки успешно используются как в качестве временного, так и постоянного жилья. В зависимости от проекта дом может иметь один или два прохода, и даже балкон.
Полезный совет! Сквозное размещение проходов позволит рационально организовать перемещение жильцов с одной стороны двора на другую через внутреннее пространство дома. К тому же такое расположение обеспечит летом дополнительную прохладу за счет сквозняка.

Затратив минимум времени, сил и денег можно возвести отличный домик для сезонного или даже круглогодичного проживания
Треугольные сооружения достаточно просты в сборке, поэтому владельцы дачных участков могут воплощать в жизнь красивые проекты каркасных домов своими руками без помощи специалистов.
Для строительства можно использовать:
- деревянные щиты;
- вагонка;
- брус;
- сухая доска.

Чтобы в доме-шалаше было комфортно зимой, крышу необходимо тщательно утеплять
Поскольку внутреннего пространства в треугольных постройках не так много, с целью экономии полезной площади каминная и печная труба выносится за пределы здания. На фото дома в лесу с таким дизайном выглядят очень эффектно. Хотя данный подход имеет и недостатки, так как значительная часть тепла будет уходить на улицу.

Вариант постройки дома-шалаша с печной трубой, вынесенной на улицу
Дом-шалаш и выгодные преимущества подобных проектов
Популярность шалашей обусловлена большим количеством преимуществ. Подобные постройки характеризуются простой системой монтажа. Для строительства не требуется помощь специалистов, поскольку владелец земельного участка может собрать конструкцию модульного дома своими руками. С каркасной конструкцией придется повозиться немного дольше, но и она не вызовет серьезных проблем.

Важным преимуществом дома-шалаша является экономия пространства, благодаря треугольному типу постройки, которая к тому же не будет заслонять солнце растениям
У здания отсутствуют стены, поэтому для его возведения потребуется меньше времени. Нет необходимости в проведении кладочных работ или заливке опалубочных конструкций. Простотой монтажа объясняется и невысокая цена построек в виде шалаша. В смете отсутствуют расходы на выполнение кладочных работ, а также покупку раствора для них. К тому же конструкция не требует тяжелого и массивного фундамента, поэтому затраты на строительство значительно сокращаются.

Относительная простота возведения конструкции и высокие темпы строительства, благодаря отсутствию стен — являются важными преимуществами дома-шалаша
Здания треугольной формы позволяют экономить свободную площадь на земельных участках небольшого размера. В сети можно найти множество готовых проектов домов на 6 сотках с компактными габаритами, которые идеально подходят для временного проживания на даче. Благодаря своей конфигурации сооружения в виде шалаша дают минимум тени, что является преимуществом, если на участке выращиваются светолюбивые растения.

Двухскатная крыша, доходящая до самого фундамента или цоколя – это самый подходящий вариант для регионов с влажным климатом
Дом из натуральных материалов идеально впишется в любой ландшафт, будь то шалаш в лесу или треугольное здание в сельской местности. Конструкция одинаково хорошо будет смотреться на открытом пространстве, по соседству с другими данными постройками или в окружении высоких деревьев и гор.

Оригинальный внешний вид дома по типу шалаш прекрасно гармонирует с сельской местностью
Крыша с двумя скатами станет оптимальным вариантом, если строительство дома осуществляется на территории с влажными климатическими условиями, где осенью идут продолжительные дожди, а зима сопровождается обильным выпадением снега. Благодаря низкому размещению кровля защищает фундамент и другие участки здания от намокания и разрушения.
Какими недостатками сопровождается строительство домов-треугольников
Функцию основных ограждающих конструкций выполняет крыша, которая не способна обеспечить высокий уровень защиты от холода. Чтобы создать комфортные условия для проживания в зимнее время, придется дополнительно утеплить постройку качественным теплоизоляционными материалами.
Формируя боковые стены здания, скаты крыши постепенно сужаются кверху. Из-за этого жилье теряет значительную часть внутреннего пространства, которое могло быть использовано под комнаты. Если проект дома своими руками предполагает строительство двух этажей, придется соорудить внутри лестничную конструкцию. Она не только сложна в исполнении, но и приводит к дополнительной потере полезной площади.
Летом двускатная крыша за счет своего немалого размера подвергается сильному нагреванию. В результате тепло передается внутренним помещениям, поэтому монтаж системы кондиционирования будет нелишним. К тому же крутые скаты усложняют процесс монтаж кровельного материала.

Двускатная крыша дома-шалаша сильно нагревается летом, за счет ее значительных размеров
Большой наклон крыши налагает и другие ограничения, поэтому для строительства придется купить удлиненные стропила нестандартного размера. Подобные изделия изготавливаются исключительно на заказ. Для этого используется качественная древесина. Такие же сложности возникают и с панорамным остеклением. Чаще всего оно используется в торцевых частях дома, занимая большую часть фасада. Панорамные окна, как и особые стеклопакеты, придется покупать на заказ. К тому же мытье таких больших стекол в будущем – занятие непростое.
Наклонные стены требуют особого подхода в отношении интерьера. Придется тщательно подбирать предметы мебели или даже изготавливать их на заказ, поскольку стандартные конструкции могут скрадывать полезные сантиметры в помещениях с необычной конфигурацией.

Наклонные стены могут понравится далеко не всем, ведь расставить мебель в подобном помещении — задача не из простых
Разработка проекта дома-шалаша: размеры и фото, технология строительства
Перед тем, как всерьез задуматься над строительством жилья в виде шалаша, следует предварительно просмотреть фото домов на даче и подобрать наиболее походящий проект.
Ошибки, допущенные на этом этапе, исправить очень трудно, а иногда и невозможно. Поэтому необходимо тщательно подбирать дизайн здания, его размеры и разработать план территории. Эти данные помогут правильно определить место под строительную площадку. Особенно этот вопрос актуален для участков небольшого размера.

Найти готовый типовый проект дома-палатки сложно, так как такой вариант строительства не слишком популярен и распространён
Важно! Подбирая место под строительство дома, следует обращать внимание на растения, которые есть на участке. Постройка не должна создавать помех для роста деревьев или затенять насаждения, нуждающиеся в солнце.
При отсутствии опыта в строительстве можно заказать готовый проект А-образного дома. В этом случае профессионалы подберут оптимальное место для размещения, рассчитают все параметры и размеры.
В большинстве случаев стандартный проект предполагает выполнение следующих видов работ:
- изготовление фундамента;

Вариант схемы дома-шалаша
- создание каркаса и перегородок;
- строительство кровли;
- монтаж окон, лестницы и дверных конструкций, а также формирование пола;
- утепление и отделка.
Каждая компания предлагает собственный перечень стандартных работ. Перед тем, как заказывать исполнение проекта желательно уточнить этот момент.
Как составить оптимальный проект дома-шалаша
Из-за крутого наклона скатов крыши здание лишается значительного количества внутренней площади. Именно поэтому многие застройщики предпочитают вместительные и низкие дома-бунгало. Чтобы свести эти потери к минимуму, подбирая пропорции сооружения, желательно остановиться на варианте, состоящем из двух треугольников правильной формы. В этом случае фигуры будут иметь следующий размер углов: 30°, 90° и 60°.

По сути дом-шалаш состоит из повторяющихся конструкций, а именно деревянных рам, которые напоминают букву «А»
Если угол ската кровли будет равен 28°, то человек с ростом 1,8-1,9 м сможет стоять на расстоянии 1 м от наклонной поверхности стены. Участок под скатами, который находится ниже роста человека, можно разделить с помощью вертикальных перегородок и оформить в этой зоне кладовки или шкафчики для хранения вещей. Если люди будут проживать в доме круглогодично, стены, используемые для вертикального зонирования, необходимо утеплить.

Пространство ниже роста человека под наклонными стенами шалаша может быть отделено вертикальными перегородками
В качестве кровельных материалов чаще всего используется профнастил или металлочерепица. Эти покрытия имеют гладкую поверхность, поэтому снеговая нагрузка на крышу минимальна. Осадки не задерживаются на кровле, съезжая по крутым скатам. По этой причине строительство дома-шалаша своими руками станет оптимальным вариантом для участков, расположенных в горных районах или регионах со снежными зимами.
Важно! Не стоит забывать, что высокая крыша создает парусность, из-за чего здание подвергается значительным ветровым нагрузкам. Подбирая место под строительство, обязательно следует учитывать розу ветров. Лучше отдать предпочтение надежному основанию и качественной обвязке каркасной части.

Высокая кровля дома-шалаша обуславливает значительную ветровую нагрузку на его фундамент
Начальный этап строительства дома: фото и описание процесса создания фундамента
Выбранную площадку под строительство следует выровнять и очистить от камней, мусора, пней. Затем с помощью колышков и шнуров размечаются базовые оси будущего фундамента. С учетом разработанного плана территории выкапывается траншея. Ее размер должен немного превышать параметры, которые обозначены в проекте.

Типовые размеры и схема устройства монолитного основания
На дне траншеи формируется песчано-гравийная подушка. При этом камешки укладываются вниз, а сверху насыпается песок до нижнего уровня разметки. Каждая прослойку материала следует тщательно утрамбовать. Вдоль каждой траншеи необходимо установить опалубочные щиты. Верхняя часть этой конструкции соединяется с помощью досок. Сделать это нужно так, чтобы между стенками образовалось расстояние в 0,3 м.

Закладка ленточного фундамента для постройки дома-шалаша
Далее закладывается бутовый камень. Для первого ряда используются булыжники большого размера. Они укладываются всухую и утрамбовываются. Только после этого можно выполнить заливку бутоном. Для этого лучше использовать марку М100. Следующие ряды формируются так, чтобы камни немного утапливались в растворе, покрывающем предыдущую кладку.

Бутовые фундаменты для дома являются экологически чистыми и отлично противостоят воздействиям почвенных вод
Выполняя такие операции, как укладка материала и заливка бетона, следует ориентироваться на проектную отметку – 0,230. От того, насколько качественно и правильно установлены эти элементы, зависит монтаж несущих прогонов. Перед тем, как опустить металлические штыри в раствор, нужно нанести на них соответствующую разметку, чтобы обозначить отступ от базовых и параллельных осей. Этот отрезок равен 2,5 см. В тех местах, где монтируются закладные детали, желательно использовать заполнитель мелкого размера.

Схема ленточного фундамента в разрезе
Готовый фундамент выдерживается в опалубочной конструкции на протяжении 3-х дней. Все это время основу необходимо регулярно смачивать водой. После демонтажа опалубки, образовавшиеся в результате этого пустоты, следует заполнить песком, и соорудить по периметру здания отмостку шириной 0,7 м. Оптимальная конструкция отмостки состоит из слоя песка (0,1-0,15 м) и щебня (0,1 м), а также бетонного или асфальтного покрытия.

Деревянная съемная опалубка для ленточного фундамента
Полезный совет! Желательно, чтобы покрытие отмостки располагалось под небольшим наклоном, чтобы дождевая вода стекала вниз. Благодаря этому фундамент не будет сыреть и прослужит гораздо дольше.
Как сделать дом-шалаш: строительство каркасной части здания
Каркасная часть здания конструируется уже на готовом фундаменте. Поскольку она изготавливается из древесины, важно защитить материал от влияния влаги. Особенно это касается тех элементов, которые находятся в земле. Их следует обработать антисептическим средством и застелить гидроизоляционным материалом, например, рубероидом. Детали, которые возвышаются над фундаментом, необходимо пропустить через прорези в этом защитном покрытии, после чего они заливаются горячим битумом. После этого на гидроизоляцию монтируются несущие прогоны.

Схема строительства каркасной части дома по типу шалаш
Чтобы упростить работу при создании каркасного дачного домика своими руками, эту операцию можно разделить на несколько небольших этапов. Стропильные ноги необходимо разместить на земле, учитывая при этом конфигурацию крыши. После этого концы балок соединяются с помощью коньковых накладок. Можно немного прихватить их, используя болты М10. Затем, проверив отрезок между свободными концами, балки перекрытий фиксируются в необходимом положении. Только после этого болты конькового узла полностью затягиваются.

А-образные стропила дома шалаша собираются на готовом утепленном перекрытии первого этажа по шаблону и поднимаются в проектное положение
При дальнейшей сборке стропил желательно соорудить некое подобие стапеля, ориентируясь на первые установленные детали. На этом этапе собранная конструкция фиксируется на ровной поверхности с помощью колышков. Они забиваются так, чтобы в будущем весь элементы можно было снять. Затем на его место укладываются следующие детали, сборка которых осуществляется аналогичным образом.

Сборка А-образных элементов каркаса дома шалаша
Порядок монтажа каркаса на несущие прогоны:
- Установка крайних стропил, являющихся частью фронтона фасадов.
- Проверка вертикальности с помощью отвеса.
- Фиксация стропил с помощью подпорок и скрепление нижних углов с помощью металлических накладок и болтов М12.
- Разметка зоны фиксации рам на коньковой доске.
- Монтаж рам с помощью гвоздей.
- Установка стропил под коньком.

Проблема может возникнуть с длиной балок кровли, возможно, их придётся сращивать, чтобы добиться нужной высоты
После того, как окончены перечисленные работы, в верхней части каркаса нужно прикрепить ветровые связи. Они фиксируются к стропильным ногам. Затем можно убрать временные подпорки. Аналогичным образом с каждого края соединяются все три рамы.

При всей своей простоте треугольное здание имеет оригинальный вид, лаконичные формы, а излом верхней стены подчеркивает своеобразие и уют
Как построить дом-шалаш: укладка кровельного материала
В качестве кровельного материала будет использоваться листовой шифер. Работы по его монтажу начинаются с установки обрешеточной конструкции. Для этого следует взять брусья со средним размером сечения и закрепить их на стропилах. Эти деревянные элементы устанавливаются с шагом в 0,5 м. После этого брусья следует выпустить за пределы рам, расположенных с краю, примерно на 50 см. Поверх полученной обрешетки необходимо расстелить рубероид, уложить и закрепить шифер с помощью гвоздей.




Важно! Для фиксации листов обязательно следует использовать резиновые прокладки. Шифер очень хрупкий и может повредиться в процессе установки.
Все работы по монтажу кровельного покрытия лучше выполнять в направлении снизу вверх. В этом случаи листы будут перекрывать друг друга, препятствуя попаданию влаги под кровлю. Конек также нуждается в защите. Для этого можно использовать полоску кровельного металла, согнутую соответствующим образом.

Монтаж шифера ведется с нахлестом вдоль кромки в одну или две волны
Отделочные работы в доме-шалаше для круглогодичного проживания
На первом этапе отделочных работ формируется пол. Для этого по несущим прогонам стропильных рам укладываются деревянные лаги. Данные элементы размещаются с шагом в 50 см. Для их фиксации желательно использовать гвозди.

Устройство нижнего перекрытия каркасного дома шалашного типа
Затем необходимо сформировать чистовой пол. Для этого используются качественные и прочные доски. Они размещаются перпендикулярно лагам. Доски можно заменить специальными рейками, предназначенными для пола. Их толщина составляет 2,8 см. Преимущество реек заключается в наличии шипов и пазов. Благодаря этим конструкционным особенностям напольное покрытие получается прочным и надежным, а сборка осуществляется по тому же принципу, что и укладка ламината. Нет необходимости подгонять детали и контролировать размер зазора между ними.




Для внешней отделки здания можно использовать доски. Их следует размещать горизонтально. Для этих целей можно использовать обычный материал, который прибивается внахлест. Допускается применение досок с четвертями.

Облицовочное покрытие из дерева обладает высокой прочностью и исключительными изоляционными свойствами
Как выполнить внутреннюю отделку А-образного дома
Внутренние стены нуждаются в хорошей изоляции. Для этих целей прекрасно подойдут древесноволокнистые плиты с мягкой структурой. Оптимальная толщина составляет 2,5 см. Для изоляции используются и твердые варианты материала, например, оргалит. В этом случае материал должен быть тонким – не более 4 мм.

Использование такого изоляционного материала, как ДВП с мягкой структурой безопасно даже для людей склонных к аллергии
Если в качестве отделки применяется листовой материал, для его монтажа следует закрепить на несущей конструкции специальные бруски. Они устанавливаются вдоль каркаса на расстоянии 2,5 см от лицевой кромки. Монтаж оргалита осуществляется поверх мягкого утеплителя. Для маскировки углов можно использовать плинтус. Рейки-накладки перекроют стыки.








Когда внутренняя отделка закончена, останется только установить дверные и оконные блоки. Под них заранее подготавливаются проемы. Чтобы обеспечить отвод дождевой воды можно выполнить монтаж металлического слива. Конструкция такого дома очень проста в исполнении. Обустройство террасы и веранды позволит расширить пространство. Интересно выглядят проекты с флигелями, масштабным.
Видео: дом шалаш строительство
openfile.ru
Подборка Дом-шалаш — оригинальный вариант загородной постройки и необычная альтернатива стандартным дачным домикам на фото
Дом-шалаш — оригинальный вариант загородной постройки и необычная альтернатива стандартным дачным домикам на фото.Как правило, дачные домики – это традиционные конструкции стандартной планировки. Но почему бы не построить на собственном участке что-то более необычное и впечатляющее? Фото домов-шалашей – наглядный пример того, насколько может быть естественной и привлекательной конструкция А-образной формы.










Визуально строение выглядит как треугольник. Его каркас сооружен из треугольных рам. Особенность таких домов – отсутствие стен: двускатная кровля исходит от фундамента, иногда из цоколя. Среди преимуществ домов-шалашей можно отметить:








Но для принятия верного решения, не стоит забывать и об отрицательных моментах данной конструкции:















При самостоятельном строительстве такого дома, важно соблюдать следующие этапы работ:

Сначала нужно разровнять площадку, после чего разметить базовые оси. Здесь понадобятся колышки и шнуры. Выкапывая траншею, ориентируйтесь на параметры, немного превышающие размеры, которые предусмотрены в проекте. Далее дно засыпьте гравием, а затем песком до нижней разметки. Каждый слой нужно тщательно утрамбовать.






Это основные процессы строительства, после которых можно приступать к обшивке фасада и отделочным работам.
Если у вас нет опыта в строительстве, проще заказать уже готовый проект «под ключ» у профессионалов. В таком доме можно проживать не только в летнее время – стоит лишь утеплить стены.

Что важно предусмотреть, заказывая дом-шалаш под ключ? Прежде всего, нужно определиться с комплексом строительных процессов. Это может быть базовый вариант или более «расширенная версия».
Выбирая базовую комплектацию, вы можете рассчитывать на проведение таких работ:



Такой тип конструкции особо популярен в скандинавских странах. Поэтому вдохновением для постройки могут служить готовые конструктивные решения скандинавских дизайнеров. Самыми гармоничными стилистическими решениями являются следующие:
Шведская модель также предусматривает отдельный вход на крыше, попасть на которую можно через лестницу, ведущую к балкону.









Отдельное внимание стоит уделить окнам. Крупные оконные проемы откроют вид на местность вокруг. Кроме этого, они сделают помещение более светлым и просторным. Большое окно с треугольными створками – стильный вариант для шалаша. Но чтобы не замерзнуть зимой, предусмотрите деревянные плотные ставни. Не будут они лишними и в летнее время. С помощью шкивов, опор, специальных веревок их можно легко откинуть вверх. В данном случае получится отличная терраса, а ставни защитят от обжигающих лучей.







Планированию интерьера такого дома следует уделить должное внимание. И здесь стоит прислушаться к некоторым советам дизайнеров:














Безусловно, дом-шалаш – это эффектный и необычный вариант постройки. Но прежде чем сделать свой выбор в его пользу, стоит подумать, насколько для вас будут существенны недостатки подобной конструкции, будете ли вы проживать здесь постоянно или только в летний сезон. Взвесьте все за и против и только тогда принимайте решение.
Комментируйте подборку Дом-шалаш — оригинальный вариант загородной постройки и необычная альтернатива стандартным дачным домикам.- Категория: Интерьер
evrookna-mos.ru
