ΠΡΠΎΠ΅ΠΊΡ ΠΎΠ΄Π½ΠΎΡΡΠ°ΠΆΠ½ΡΠΉ Π΄ΠΎΠΌ 9Ρ 12 β ΠΡΠΎΠ΅ΠΊΡΡ Π΄ΠΎΠΌΠΎΠ² 9 Π½Π° 12 Π² ΠΎΠ΄ΠΈΠ½ ΡΡΠ°ΠΆ. ΠΠΎΠΌ 9 Π½Π° 12 ΠΌ Π² 1 ΡΡΠ°ΠΆ. ΠΡΠΎΠ΅ΠΊΡΡ Π΄ΠΎΠΌΠΎΠ² 9Ρ 12 ΠΎΠ΄Π½ΠΎΡΡΠ°ΠΆΠ½ΡΠ΅
| Π€ΡΠ½Π΄Π°ΠΌΠ΅Π½Ρ Π»Π΅Π½ΡΠΎΡΠ½ΡΠΉ | ΠΠ»ΡΠ±ΠΈΠ½Π° Π·Π°Π»ΠΎΠΆΠ΅Π½ΠΈΡ 70 ΡΠΌ. ΠΈΠ· Π½ΠΈΡ 20 ΡΠΌ. ΠΏΠ΅ΡΡΠ°Π½Π°Ρ ΠΏΠΎΠ΄ΡΡΠΊΠ°, Π²ΡΡΠΎΡΠ° ΡΠΎΠΊΠΎΠ»Ρ 50 ΡΠΌ., ΡΠΈΡΠΈΠ½Π° Π»Π΅Π½ΡΡ 30 ΡΠΌ., Π°ΡΠΌΠ°ΡΡΡΠ° Π΄ΠΈΠ°ΠΌΠ΅ΡΡ 10-12 ΠΌΠΌ., ΠΏΡΠΎΠ΄ΡΠ²Π½ΡΠ΅ ΠΎΡΠ²Π΅ΡΡΡΠΈΡ Π΄ΠΈΠ°ΠΌΠ΅ΡΡ 100 ΠΌΠΌ., ΠΎΠ±ΡΠ΅Π·Π½Π°Ρ Π΄ΠΎΡΠΊΠ° Π½Π° ΠΎΠΏΠ°Π»ΡΠ±ΠΊΡ 25Ρ 150 ΠΌΠΌ. ΠΈ 50Ρ 50 ΠΌΠΌ., Π±Π΅ΡΠΎΠ½ ΠΌΠ°ΡΠΊΠΈ Π300 | 360Β 000Β Ρ. |
| Π€ΡΠ½Π΄Π°ΠΌΠ΅Π½Ρ ΠΈΠ· ΠΠ ΡΠ²Π°ΠΉ | ΠΠ»ΠΈΠ½Π° ΡΠ²Π°ΠΉ 3,00 ΠΌ., ΡΠ΅ΡΠ΅Π½ΠΈΠ΅ ΡΠ²Π°ΠΈ 150Ρ 150 ΠΌΠΌ., ΠΌΠ΅ΡΠ°Π»Π»ΠΈΡΠ΅ΡΠΊΠ°Ρ ΠΏΠ»Π°ΡΡΠΈΠ½Π° Π½Π° ΡΠ²Π°Ρ 200Ρ 200 ΠΌΠΌ. ΠΠΎΠ½ΡΠ°ΠΆ ΡΠ²Π°ΠΉ ΠΌΠ΅Ρ Π°Π½ΠΈΡΠ΅ΡΠΊΠΈΠΌ ΡΠΏΠΎΡΠΎΠ±ΠΎΠΌ ΡΠΏΠ΅Ρ-ΡΠ΅Ρ Π½ΠΈΠΊΠΎΠΉ ΠΏΠΎ ΡΡΠΎΠ²Π½Ρ | ΠΠΎ Π·Π°ΠΏΡΠΎΡΡ |
| Π€ΡΠ½Π΄Π°ΠΌΠ΅Π½Ρ ΠΈΠ· Π²ΠΈΠ½ΡΠΎΠ²ΡΡ ΡΠ²Π°ΠΉ | ΠΠ»ΠΈΠ½Π° ΡΠ²Π°ΠΉ 2,50 ΠΌ., Π΄ΠΈΠ°ΠΌΠ΅ΡΡ ΡΡΠ²ΠΎΠ»Π° 108 ΠΌΠΌ., ΠΎΠ³ΠΎΠ»ΠΎΠ²ΠΎΠΊ ΡΠ²Π°ΠΉ 150Ρ 150 ΠΌΠΌ. ΠΠΎΠ½ΡΠ°ΠΆ ΠΌΠ΅Ρ Π°Π½ΠΈΡΠ΅ΡΠΊΠΈΠΌ ΡΠΏΠΎΡΠΎΠ±ΠΎΠΌ ΡΠΏΠ΅Ρ-ΡΠ΅Ρ Π½ΠΈΠΊΠΎΠΉ, ΠΎΠ±ΡΠ΅Π·ΠΊΠ° ΡΠ²Π°ΠΉ ΠΏΠΎ ΡΡΠΎΠ²Π½Ρ, Π·Π°ΠΏΠΎΠ»Π½Π΅Π½ΠΈΠ΅ ΡΠ²Π°ΠΉ ΡΠ°ΡΡΠ²ΠΎΡΠΎΠΌ, ΠΏΡΠΈΠ²Π°ΡΠΊΠ° ΠΎΠ³ΠΎΠ»ΠΎΠ²ΠΊΠΎΠ² | 116Β 000Β Ρ. |
| ΠΡΡΡΠΎΠ²Π°Ρ ΠΎΠ±Π²ΡΠ·ΠΊΠ° ΡΠ²Π°ΠΉ | ΠΠ°ΡΡΠΆΠ½ΡΠΉ ΠΏΠ΅ΡΠΈΠΌΠ΅ΡΡ Π±ΡΡΡ ΠΎΠ±ΡΠ΅Π·Π½ΠΎΠΉ 150Ρ 150 ΠΌΠΌ., Π²Π½ΡΡΡΠΈ Π±ΡΡΡ ΠΎΠ±ΡΠ΅Π·Π½ΠΎΠΉ 100Ρ 150 ΠΌΠΌ. ΠΠΎΠ½ΡΠ°ΠΆ ΠΎΠ±Π²ΡΠ·ΠΊΠΈ Π½Π° ΡΠ²Π°ΠΈ ΡΡΠ½Π΄Π°ΠΌΠ΅Π½ΡΠ°, ΠΊΡΠ΅ΠΏΠ΅ΠΆ Π±ΡΡΡΠ° Π³Π»ΡΡ Π°ΡΡΠΌΠΈ, ΠΎΠ±ΡΠ°Π±ΠΎΡΠΊΠ° Π°Π½ΡΠΈΡΠ΅ΠΏΡΠΈΠΊΠΎΠΌ | ΠΠΎ Π·Π°ΠΏΡΠΎΡΡ |
| ΠΡΠΎΠ²Π»Ρ ΠΌΠ΅ΡΠ°Π»Π»ΠΎΡΠ΅ΡΠ΅ΠΏΠΈΡΠ° | ΠΠΎΠΊΡΡΡΠΈΠ΅ ΠΊΡΡΡΠΈ ΠΌΠ΅ΡΠ°Π»Π»ΠΎΡΠ΅ΡΠ΅ΠΏΠΈΡΠ° ΠΏΠΎ ΡΠ΅Ρ Π½ΠΎΠ»ΠΎΠ³ΠΈΠΈ Ρ ΠΊΠΎΠ½ΡΡ-ΠΎΠ±ΡΠ΅ΡΠ΅ΡΠΊΠΎΠΉ ΠΈ Π³ΠΈΠ΄ΡΠΎΠΈΠ·ΠΎΠ»ΡΡΠΈΠ΅ΠΉ. Π¦Π²Π΅Ρ ΠΊΡΠΎΠ²Π»ΠΈ Π½Π° Π²ΡΠ±ΠΎΡ ΠΊΠ»ΠΈΠ΅Π½ΡΠ° | 217Β 000Β Ρ. |
| ΠΡΠΎΠ²Π»Ρ ΠΏΡΠΎΡΠ½Π°ΡΡΠΈΠ» | ΠΠΎΠΊΡΡΡΠΈΠ΅ ΠΊΡΡΡΠΈ ΠΏΡΠΎΡΠ½Π°ΡΡΠΈΠ» ΠΏΠΎ ΡΠ΅Ρ Π½ΠΎΠ»ΠΎΠ³ΠΈΠΈ Ρ ΠΊΠΎΠ½ΡΡ-ΠΎΠ±ΡΠ΅ΡΠ΅ΡΠΊΠΎΠΉ ΠΈ Π³ΠΈΠ΄ΡΠΎΠΈΠ·ΠΎΠ»ΡΡΠΈΠ΅ΠΉ. Π¦Π²Π΅Ρ ΠΊΡΠΎΠ²Π»ΠΈ Π½Π° Π²ΡΠ±ΠΎΡ ΠΊΠ»ΠΈΠ΅Π½ΡΠ° | ΠΠΎ Π·Π°ΠΏΡΠΎΡΡ |
| ΠΡΠΎΠ²Π»Ρ ΠΎΠ½Π΄ΡΠ»ΠΈΠ½ | ΠΠΎΠΊΡΡΡΠΈΠ΅ ΠΊΡΡΡΠΈ ΠΎΠ½Π΄ΡΠ»ΠΈΠ½ ΠΏΠΎ ΡΠ΅Ρ Π½ΠΎΠ»ΠΎΠ³ΠΈΠΈ Ρ ΠΊΠΎΠ½ΡΡ-ΠΎΠ±ΡΠ΅ΡΠ΅ΡΠΊΠΎΠΉ ΠΈ Π³ΠΈΠ΄ΡΠΎΠΈΠ·ΠΎΠ»ΡΡΠΈΠ΅ΠΉ. Π¦Π²Π΅Ρ ΠΊΡΠΎΠ²Π»ΠΈ Π½Π° Π²ΡΠ±ΠΎΡ ΠΊΠ»ΠΈΠ΅Π½ΡΠ° | ΠΠΎ Π·Π°ΠΏΡΠΎΡΡ |
| Π£ΡΠ΅ΠΏΠ»Π΅Π½ΠΈΠ΅ ΠΊΡΠΎΠ²Π»ΠΈ | Π£ΡΠ΅ΠΏΠ»Π΅Π½ΠΈΠ΅ ΠΊΡΡΡΠΈ ΡΠΎΠ»ΡΠΈΠ½ΠΎΠΉ Π² 150 ΠΌΠΌ. ΠΌΠΈΠ½Π΅ΡΠ°Π»ΡΠ½ΠΎΠΉ Π²Π°ΡΠΎΠΉ ΠΏΠΎ ΡΠ΅Ρ Π½ΠΎΠ»ΠΎΠ³ΠΈΠΈ Ρ Π½ΠΈΠΆΠ½Π΅ΠΉ ΡΠ°Π·ΡΡΠΆΠ΅Π½Π½ΠΎΠΉ ΠΎΠ±ΡΠ΅ΡΠ΅ΡΠΊΠΎΠΉ ΠΈ ΠΏΠ°ΡΠΎΠΈΠ·ΠΎΠ»ΡΡΠΈΠ΅ΠΉ | ΠΠΎ Π·Π°ΠΏΡΠΎΡΡ |
| ΠΡΠ΅Π½Π΄Π° Π³Π΅Π½Π΅ΡΠ°ΡΠΎΡΠ° | ΠΠ΅Ρ ΡΠ»Π΅ΠΊΡΡΠΈΡΠ΅ΡΡΠ²Π° Π½Π° ΡΡΠ°ΡΡΠΊΠ΅ β ΠΏΡΠ΅Π΄ΠΎΡΡΠ°Π²ΠΈΠΌ Π±Π΅Π½Π·ΠΎΠ³Π΅Π½Π΅ΡΠ°ΡΠΎΡ. ΠΠ΅Π½Π·ΠΈΠ½ ΠΎΠΏΠ»Π°ΡΠΈΠ²Π°Π΅Ρ Π·Π°ΠΊΠ°Π·ΡΠΈΠΊ | ΠΠ΅ΡΠΏΠ»Π°ΡΠ½ΠΎ |
| Π§Π΅ΡΠ½ΠΎΠ²ΠΎΠΉ ΠΏΠΎΠ» 1-ΠΉ ΡΡΠ°ΠΆ | ΠΠΎΠ½ΡΠ°ΠΆ ΡΠ΅ΡΠ½ΠΎΠ²ΠΎΠ³ΠΎ ΠΏΠΎΠ»Π° 1-Π³ΠΎ ΡΡΠ°ΠΆΠ° ΠΈΠ· ΠΎΠ±ΡΠ΅Π·Π½ΠΎΠΉ Π΄ΠΎΡΠΊΠΈ 25Ρ 150 ΠΌΠΌ. ΠΠΎΠ½ΡΠΈΡΡΠ΅ΡΡΡ Π½Π° ΡΠ΅ΡΠ΅ΠΏΠ½ΡΠ΅ Π±ΡΡΡΠΊΠΈ 50Ρ 50 ΠΌΠΌ. ΠΌΠ΅ΠΆΠ΄Ρ Π»Π°Π³ ΠΏΠΎΠ»Π° | ΠΠΎ Π·Π°ΠΏΡΠΎΡΡ |
| Π ΠΎΠΉΠΊΠΈ Π² ΠΏΡΠΎΠ΅ΠΌΡ ΠΎΠΊΠΎΠ½ ΠΈ Π΄Π²Π΅ΡΠ΅ΠΉ | ΠΠΎΠ½ΡΠ°ΠΆ ΠΏΡΠΎΠ΅ΠΌΠ° ΠΏΠΎΠ΄ ΡΠ°Π·ΠΌΠ΅Ρ ΠΎΠΊΠ½Π° ΠΈΠ»ΠΈ Π΄Π²Π΅ΡΠΈ. ΠΡΡΠ΅Π·ΠΊΠ° ΡΠΎΠ΅ΠΊ Π² ΡΠΎΡΡΠ°Ρ ΠΏΡΠΎΠ΅ΠΌΠ°, ΠΎΠ±ΡΠ°Π±ΠΎΡΠΊΠ° ΠΏΡΠΎΠ΅ΠΌΠ° ΠΈ Π±ΡΡΡΠΊΠ° 25Ρ 50 ΠΈΠ»ΠΈ 50Ρ 50 ΠΌΠΌ. Π°Π½ΡΠΈΡΠ΅ΠΏΡΠΈΠΊΠΎΠΌ, Π²ΡΡΠ°Π²ΠΊΠ° Π±ΡΡΡΠΊΠ° Π² ΠΏΠ°Π· ΡΠΎΠΉΠΊΠΈ, 1ΠΏΠΎΠ³/ΠΌ | 640 Ρ |
| ΠΠ±ΡΠ°Π΄Π° Π² ΠΏΡΠΎΠ΅ΠΌΡ ΠΎΠΊΠΎΠ½ ΠΈ Π΄Π²Π΅ΡΠ΅ΠΉ | ΠΠΎΠ½ΡΠ°ΠΆ ΠΎΠ±ΡΠ°Π΄Ρ ΠΎΠΊΠΎΠ½ ΠΈΠ»ΠΈ Π΄Π²Π΅ΡΠ΅ΠΉ ΠΈΠ· ΠΎΠ±ΡΠ΅Π·Π½ΠΎΠΉ Π΄ΠΎΡΠΊΠΈ 50Ρ 100 ΠΈΠ»ΠΈ 50Ρ 150 ΠΌΠΌ. ΠΠ±ΡΠ°Π±ΠΎΡΠΊΠ° Π°Π½ΡΠΈΡΠ΅ΠΏΡΠΈΠΊΠΎΠΌ ΠΈ ΡΡΡΠ°Π½ΠΎΠ²ΠΊΠ° Π² ΠΏΡΠΎΠ΅ΠΌ, 1ΠΏΠΎΠ³/ΠΌ | 400 Ρ |
domrs.ru
ΠΠΎΠΌ 9 Π½Π° 12 ΠΎΠ΄Π½ΠΎΡΡΠ°ΠΆΠ½ΡΠΉ, ΠΏΡΠΎΠ΅ΠΊΡ Π΄ΠΎΠΌΠ° 9 Π½Π° 12 ΠΎΠ΄Π½ΠΎΡΡΠ°ΠΆΠ½ΡΠΉ, ΠΏΠ»Π°Π½ΠΈΡΠΎΠ²ΠΊΠ°.
ΠΡΠΎΠ΅ΠΊΡ ΠΈ ΠΏΠ»Π°Π½ΠΈΡΠΎΠ²ΠΊΠ° ΠΎΠ΄Π½ΠΎΡΡΠ°ΠΆΠ½ΠΎΠ³ΠΎ Π΄ΠΎΠΌΠ°. ΠΠβ42
Π Π½Π°ΡΠΈ Π΄Π½ΠΈ ΠΏΠΎΠ»ΡΡΠΈΡΡ ΠΊΠ²Π°ΡΡΠΈΡΡ Π² Π±ΠΎΠ»ΡΡΠΎΠΌ Π³ΠΎΡΠΎΠ΄Π΅ ΠΏΡΠ°ΠΊΡΠΈΡΠ΅ΡΠΊΠΈ Π½Π΅ΡΠ΅Π°Π»ΡΠ½ΠΎ. Π§Π°ΡΡΠ½ΡΠ΅ ΡΡΡΠΎΠΈΡΠ΅Π»ΡΠ½ΡΠ΅ ΠΊΠΎΠΌΠΏΠ°Π½ΠΈΠΈ ΠΏΡΠΎΠ΄Π°ΡΡ ΠΊΠ²Π°ΡΡΠΈΡΡ Π² Π½ΠΎΠ²ΠΎΡΡΡΠΎΠΉΠΊΠ°Ρ , Π° ΠΎΡΠ΅ΡΠ΅Π΄ΠΈ Π½Π° ΠΏΠΎΠ»ΡΡΠ΅Π½ΠΈΠ΅ Π³ΠΎΡΡΠ΄Π°ΡΡΡΠ²Π΅Π½Π½ΠΎΠΉ ΠΊΠ²Π°ΡΡΠΈΡΡ ΠΏΡΠ°ΠΊΡΠΈΡΠ΅ΡΠΊΠΈ Π½Π΅ ΠΏΡΠΎΠ΄Π²ΠΈΠ³Π°ΡΡΡΡ. Π ΡΠ°ΠΊΠΎΠΉ ΡΠΈΡΡΠ°ΡΠΈΠΈ Π²ΠΎΠ·Π½ΠΈΠΊΠ°Π΅Ρ ΠΆΠΈΠ·Π½Π΅Π½Π½Π°Ρ Π½Π΅ΠΎΠ±Ρ ΠΎΠ΄ΠΈΠΌΠΎΡΡΡ ΠΊΡΠΏΠΈΡΡ ΠΆΠΈΠ»ΡΠ΅ Π±ΠΎΠ»ΡΡΠ΅Π³ΠΎ ΡΠ°Π·ΠΌΠ΅ΡΠ°. ΠΠΎ Π½Π΅ Ρ ΠΊΠ°ΠΆΠ΄ΠΎΠΉ ΡΠ΅ΠΌΡΠΈ Ρ Π²Π°ΡΠΈΡ ΡΡΠ΅Π΄ΡΡΠ², ΡΡΠΎΠ±Ρ ΠΏΡΠΈΠΎΠ±ΡΠ΅ΡΡΠΈ Π³ΠΎΡΠΎΠ΄ΡΠΊΡΡ ΠΊΠ²Π°ΡΡΠΈΡΡ Π±ΠΎΠ»ΡΡΠ΅ΠΉ ΠΏΠ»ΠΎΡΠ°Π΄ΡΡ. Π‘ΡΡΠΎΠΈΡΠ΅Π»ΡΠ½ΡΠ΅ ΠΊΠΎΠΌΠΏΠ°Π½ΠΈΠΈ ΠΏΡΠ΅Π΄Π»Π°Π³Π°ΡΡ ΠΈΠΌ ΡΠ΅Π°Π»ΡΠ½ΡΠΉ Π²ΡΡ ΠΎΠ΄ ΠΏΠΎΠΊΡΠΏΠΊΠΈ Π·Π°Π³ΠΎΡΠΎΠ΄Π½ΠΎΠ³ΠΎ ΠΆΠΈΠ»ΡΡ ΠΏΠΎ Π΄ΠΎΡΡΡΠΏΠ½ΠΎΠΉ ΡΠ΅Π½Π΅. ΠΠΎΠ»ΡΡΠΎΠΉ Π΄ΠΎΠΌ 9 Π½Π° 12 ΠΎΠ΄Π½ΠΎΡΡΠ°ΠΆΠ½ΡΠΉ, Π² ΠΆΠΈΠ²ΠΎΠΏΠΈΡΠ½ΠΎΠΌ Π·Π°Π³ΠΎΡΠΎΠ΄Π½ΠΎΠΌ ΡΠ°ΠΉΠΎΠ½Π΅, Π²ΠΎΠ·Π²Π΅Π΄Π΅Π½Π½ΡΠΉ ΠΈΠ· ΠΏΡΠΎΡΠΈΠ»ΠΈΡΠΎΠ²Π°Π½Π½ΠΎΠ³ΠΎ Π±ΡΡΡΠ°, Π² ΠΊΠΎΡΠΎΡΠΎΠΌ ΠΏΡΠ΅Π²ΠΎΡΡ ΠΎΠ΄Π½ΠΎ ΡΠΌΠΎΠΆΠ΅Ρ ΡΠ°Π·ΠΌΠ΅ΡΡΠΈΡΡΡΡ Π²ΡΡ ΡΠ΅ΠΌΡΡ, ΠΌΠΎΠΆΠ΅Ρ ΡΠ΅ΡΠΈΡΡ ΠΏΡΠΎΠ±Π»Π΅ΠΌΡ ΠΈΠ·ΠΌΠ΅Π½Π΅Π½ΠΈΡ ΠΆΠΈΠ»ΠΈΡΠ½ΡΡ ΡΡΠ»ΠΎΠ²ΠΈΠΉ ΠΊ Π»ΡΡΡΠ΅ΠΌΡ. ΠΡΠΎΠΌΠ΅ ΡΠΎΠ³ΠΎ, ΡΡΠΎ ΡΡΡΠΎΠ΅Π½ΠΈΠ΅ ΠΏΠΎΠ΄Β Π΄Π²ΡΡ ΡΠΊΠ°ΡΠ½ΠΎΠΉ ΠΊΡΡΡΠ΅ΠΉ, ΠΊΡΡΡΠΎΠΉ ΠΌΠ΅ΡΠ°Π»Π»ΠΎΡΠ΅ΡΠ΅ΠΏΠΈΡΠ΅ΠΉ, ΠΎΠΊΡΡΠΆΠ΅Π½ΠΎ ΡΡ ΠΎΠΆΠ΅Π½Π½ΡΠΌ ΠΏΡΠΈΡΡΠ°Π΄Π΅Π±Π½ΡΠΌ ΡΡΠ°ΡΡΠΊΠΎΠΌ. Π‘Π°ΠΌ ΡΡΠ°ΡΡΠΎΠΊ ΠΎΠ±Π½Π΅ΡΠ΅Π½ Π΄Π΅ΡΠ΅Π²ΡΠ½Π½ΡΠΌ Π·Π°Π±ΠΎΡΠΎΠΌ, ΡΡΠΎΠ±Ρ Π½ΠΈΠΊΡΠΎ Β Π½Π΅ ΡΠΌΠΎΠ³ Π±Π΅ΡΠΏΡΠ΅ΠΏΡΡΡΡΠ²Π΅Π½Π½ΠΎ ΠΏΡΠΎΠ½ΠΈΠΊΠ½ΡΡΡ Π½Π° Β ΡΠ΅ΡΡΠΈΡΠΎΡΠΈΡ Π²Π»Π°Π΄Π΅Π½ΠΈΡ. Π Π΄ΠΎΠΌΠ΅ Π² ΠΎΠ΄ΠΈΠ½ ΡΡΠ°ΠΆ ΠΌΠΎΠΆΠ½ΠΎ Π·Π°ΠΊΠ°Π·Π°ΡΡ ΠΏΠ»Π°ΡΡΠΈΠΊΠΎΠ²ΡΠ΅ ΠΈΠ»ΠΈ Π΄Π΅ΡΠ΅Π²ΡΠ½Π½ΡΠ΅ ΠΎΠΊΠ½Π°, Π° ΠΏΡΡΠΌΠΎ ΠΏΠ΅ΡΠ΅Π΄ Π²Ρ ΠΎΠ΄ΠΎΠΌ ΡΡΡΠ½Π°Ρ ΠΊΡΡΡΠ°Ρ ΡΠ΅ΡΡΠ°ΡΠ°.
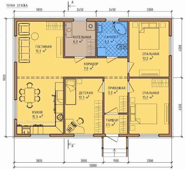
ΠΡΠΎΠΌΠ΅ ΡΠ΅ΡΡΠ°ΡΡ 12,00 ΠΊΠ². ΠΌ, Π² Π΄ΠΎΠΌΠ΅ ΠΈΠΌΠ΅Π΅ΡΡΡ ΡΠΎΠΏΠΎΡΠ½Π°Ρ 4,04 ΠΊΠ². ΠΌ, Π³ΠΎΡΡΠΈΠ½Π°Ρ 23,05 ΠΊΠ². ΠΌ, ΠΊΡΡ Π½Ρ 8,59 ΠΊΠ². ΠΌ, Ρ/Ρ 5,06 ΠΊΠ². ΠΌ ΠΈ ΡΡΠΈ ΠΏΡΠΎΡΡΠΎΡΠ½ΡΡ ΡΠΏΠ°Π»ΡΠ½ΠΈ, ΠΏΠ»ΠΎΡΠ°Π΄ΡΡ 12,36 ΠΊΠ². ΠΌ, 18,03 ΠΊΠ². ΠΌ ΠΈ 14,25 ΠΊΠ²Π°Π΄ΡΠ°ΡΠ½ΡΡ ΠΌΠ΅ΡΡΠ°.
ΠΡΠΎΠ΅ΠΊΡ: ΠΠ-42
Π Π°Π·ΠΌΠ΅ΡΡ: 9Ρ 12 ΠΌ.
ΠΠ»ΠΎΡΠ°Π΄Ρ: 97,36 ΠΊΠ².ΠΌ.
ΠΡΠ°ΠΆΠ½ΠΎΡΡΡ: ΠΎΠ΄ΠΈΠ½ ΡΡΠ°ΠΆ
Π’ΠΈΠΏ ΠΌΠ°ΡΠ΅ΡΠΈΠ°Π»Π°: Π±ΡΡΡΠΎΠ²ΠΎΠ΅ ΠΈΡΠΏΠΎΠ»Π½Π΅Π½ΠΈΠ΅
Π¦Π΅Π½Π°: ΠΏΡΠΎΡΠΈΠ»ΠΈΡΠΎΠ²Π°Π½Π½ΡΠΉ Π±ΡΡΡ 100Ρ 150 ΠΌΠΌ.(ΡΠΎΠ»ΡΠΈΠ½Π° ΡΡΠ΅Π½Ρ 10ΡΠΌ.): 000.000 ΡΡΠ±
Π¦Π΅Π½Π°: ΠΏΡΠΎΡΠΈΠ»ΠΈΡΠΎΠ²Π°Π½Π½ΡΠΉ Π±ΡΡΡ 150Ρ 150 ΠΌΠΌ.(ΡΠΎΠ»ΡΠΈΠ½Π° ΡΡΠ΅Π½Ρ 15ΡΠΌ.): 000.000 ΡΡΠ±
Π¦Π΅Π½Π°: ΠΏΡΠΎΡΠΈΠ»ΠΈΡΠΎΠ²Π°Π½Π½ΡΠΉ Π±ΡΡΡ 150Ρ 200 ΠΌΠΌ.(ΡΠΎΠ»ΡΠΈΠ½Π° ΡΡΠ΅Π½Ρ 20ΡΠΌ.): 000.000 ΡΡΠ±
Π’ΠΈΠΏ ΠΌΠ°ΡΠ΅ΡΠΈΠ°Π»Π°: ΠΊΠ°ΡΠΊΠ°ΡΠ½ΠΎΠ΅ ΠΈΡΠΏΠΎΠ»Π½Π΅Π½ΠΈΠ΅
Π¦Π΅Π½Π°: ΡΠΎΠ»ΡΠΈΠ½Π° ΡΡΠ΅ΠΏΠ»Π΅Π½ΠΈΡ 100ΠΌΠΌ.(ΠΏΠ»ΠΈΡΠ½ΡΠΉ ΡΡΠ΅ΠΏΠ»ΠΈΡΠ΅Π»Ρ Rockwool), ΠΎΡΠ΄Π΅Π»ΠΊΠ° Π²Π°Π³ΠΎΠ½ΠΊΠ°: 000.000
Π¦Π΅Π½Π°: ΡΠΎΠ»ΡΠΈΠ½Π° ΡΡΠ΅ΠΏΠ»Π΅Π½ΠΈΡ 200ΠΌΠΌ (ΠΏΠ»ΠΈΡΠ½ΡΠΉ ΡΡΠ΅ΠΏΠ»ΠΈΡΠ΅Π»Ρ Rockwool), ΠΎΡΠ΄Π΅Π»ΠΊΠ° Π²Π°Π³ΠΎΠ½ΠΊΠ°: 000.000
Β
Β
Π’Π΅Ρ Π½ΠΈΡΠ΅ΡΠΊΠΎΠ΅ ΠΎΠΏΠΈΡΠ°Π½ΠΈΠ΅:
| Π€ΡΠ½Π΄Π°ΠΌΠ΅Π½ΡΡ Π‘ΡΠΎΠ»Π±ΡΠ°ΡΡΠΉ: | ΠΡΠ΅Π΄Π»Π°Π³Π°Π΅ΠΌ ΡΡΠΈ Π²Π°ΡΠΈΠ°Π½ΡΠ° ΡΡΠ½Π΄Π°ΠΌΠ΅Π½ΡΠ°. ΠΠΏΠΎΡΠ½ΠΎ-ΡΡΠΎΠ»Π±ΡΠ°ΡΡΠΉ ΡΡΠ½Π΄Π°ΠΌΠ΅Π½Ρ. ΠΠ°Π·ΠΎΠ²ΡΠΉ ΠΈ Π΄ΠΎΡΡΡΠΏΠ½ΡΠΉ ΡΡΠ½Π΄Π°ΠΌΠ΅Π½Ρ, ΡΡΠΎΠ»Π±ΡΠ°ΡΡΠΉ Π½Π° ΠΎΠΏΠΎΡΠ°Ρ ΠΈΠ· Π±Π»ΠΎΠΊΠΎΠ². Β ΠΠ»ΠΎΠΊ Ρ ΡΠ°Π·ΠΌΠ΅ΡΠ°ΠΌΠΈ 20Ρ 20Ρ 40ΡΠΌ, Π² ΠΎΠ΄Π½ΠΎΠΉ ΠΎΠΏΠΎΡΠ΅ 4 ΡΡ. Π±Π»ΠΎΠΊΠ° (Π²ΡΡΠΎΡΠ° Π½Π°Π΄ Π·Π΅ΠΌΠ»ΡΠΉ) 40ΡΠΌ. ΠΠΎΠ΄ΡΠΎΠ±Π½Π΅Π΅ ΡΡΠΎΠ»Π±ΡΠ°ΡΡΠΉ ΡΡΠ½Π΄Π°ΠΌΠ΅Π½Ρ |
|---|---|
| Π‘Π²Π°ΠΉΠ½ΡΠΉ: | Π‘Π²Π°ΠΉΠ½ΠΎ-Π²ΠΈΠ½ΡΠΎΠ²ΠΎΠΉ ΡΡΠ½Π΄Π°ΠΌΠ΅Π½Ρ.Β ΠΠ»ΠΈΠ½Π½Π° ΡΠ²Π°ΠΈ ΠΌΠ΅ΡΠ°Π»Π»ΠΈΡΠ΅ΡΠΊΠΎΠΉ 2,5 ΠΌ., Π΄ΠΈΠ°ΠΌΠ΅ΡΡ ΡΡΠ²ΠΎΠ»Π° 108 ΠΌΠΌ., ΡΠΎΠ»ΡΠΈΠ½Π΅ ΡΡΠ΅Π½ΠΊΠΈ ΡΡΠ²ΠΎΠ»Π° 4 ΠΌΠΌ., Π΄ΠΈΠ°ΠΌΠ΅ΡΡ Π»ΠΎΠΏΠ°ΡΡΠΈ 300 ΠΌΠΌ. ΠΈ ΡΠΎΠ»ΡΠΈΠ½Π° Π»ΠΎΠΏΠ°ΡΡΠΈ 4-5 ΠΌΠΌ. ΡΠ°Π±ΠΎΡΠ°Ρ Π½Π°Π³ΡΡΠ·ΠΊΠ° Π½Π° Π²ΠΈΠ½ΡΠΎΠ²ΡΡ ΡΠ²Π°Ρ ΡΠΎΡΡΠ°Π²Π»ΡΠ΅Ρ Π½Π΅ ΠΌΠ΅Π½Π΅Π΅ 4 Ρ. (ΠΠΎ Π‘ΠΠΈΠ 2.02.03-85. Π‘Π²Π°ΠΉΠ½ΡΠ΅ ΡΡΠ½Π΄Π°ΠΌΠ΅Π½ΡΡ).Π‘Π½Π°ΡΡΠΆΠΈ ΡΠ²Π°Ρ ΠΏΠΎΠΊΡΡΠ²Π°Π΅ΡΡΡ Π°Π½ΡΠΈΠΊΠΎΡΡΠΎΠ·ΠΈΠΉΠ½ΡΠΌ ΡΠΎΡΡΠ°Π²ΠΎΠΌ Π΄ΠΎ ΠΌΠΎΠ½ΡΠ°ΠΆΠ°. ΠΠΎΠ΄ΡΠΎΠ±Π½Π΅Π΅ ΡΠ²Π°ΠΉΠ½ΡΠΉ ΡΡΠ½Π΄Π°ΠΌΠ΅Π½Ρ |
| ΠΠ΅Π½ΡΠΎΡΠ½ΡΠΉ: | ΠΠ΅Π½ΡΠΎΡΠ½ΡΠΉ ΠΌΠ΅Π»ΠΊΠΎΠ·Π°Π³Π»ΡΠ±Π»Π΅Π½Π½ΡΠΉ ΡΡΠ½Π΄Π°ΠΌΠ΅Π½Ρ. ΠΡΠ½ΠΎΠ²Π½ΡΠ΅Β ΡΠ°Π·ΠΌΠ΅ΡΡ Π°ΡΠΌΠΈΡΠΎΠ²Π°Π½Π½ΠΎΠΉ Π±Π΅ΡΠΎΠ½Π½ΠΎΠΉ Π»Π΅Π½ΡΡ 40Ρ 20, 70 Ρ 20, 30Ρ 80 ΡΠΌ. Π ΠΌΠΎΠ½ΡΠ°ΠΆ Π²Ρ ΠΎΠ΄ΠΈΡ ΡΡΡΡΠ΅ ΡΡΠ°Π½ΡΠ΅ΠΉ, ΡΡΡΡΠΎΠΉΡΡΠ²ΠΎ ΠΎΠΏΠ°Π»ΡΠ±ΠΊΠΈ, Π°ΡΠΌΠ°ΡΡΡΠ½ΠΎΠ³ΠΎ ΠΊΠ°ΡΠΊΠ°ΡΠ°, Π·Π°Π»ΠΈΠ²ΠΊΠ° Π³ΠΎΡΠΎΠ²ΠΎΠΉ Π±Π΅ΡΠΎΠ½Π½ΠΎΠΉ ΡΠΌΠ΅ΡΡΡ, Π΄ΠΎΡΡΠ°Π²Π»ΡΠ΅ΠΌΠΎΠΉ ΠΌΠΈΠΊΡΠ΅ΡΠΎΠΌ Π½Π° ΠΎΠ±ΡΠ΅ΠΊΡ, ΡΡΡΡΠΎΠΉΡΡΠ²ΠΎ ΠΏΡΠΎΠ΄ΡΡ ΠΎΠ² Π² ΡΠΎΠΊΠΎΠ»Π΅. ΠΠΎΠ΄ΡΠΎΠ±Π½Π΅Π΅ Π»Π΅Π½ΡΠΎΡΠ½ΡΠΉ ΡΡΠ½Π΄Π°ΠΌΠ΅Π½Ρ |
| ΠΠ±Π²ΡΠ·ΠΊΠ° | ΠΡΡΡ Β ΡΠ΅Π»ΠΈΠΊΠΎΠ²ΡΠΉ 150Ρ 150 ΠΌΠΌ ΠΠΎΠ΄ΡΠΎΠ±Π½Π΅Π΅ ΠΎΠ±Π²ΡΠ·ΠΊΠ° |
| ΠΠΎΠ»ΠΎΠ²ΡΠ΅ Π»Π°Π³ΠΈ: | ΠΡΡΡ 100Ρ 150 ΠΌΠΌ, ΡΠ΅ΡΠ΅Π· 90-100 ΡΠΌ. ΠΠΎΠ΄ΡΠΎΠ±Π½Π΅Π΅ Π»Π°Π³ΠΈ |
| ΠΠ°ΠΏΠΈΡΠ°Π»ΡΠ½ΡΠ΅ ΡΡΠ΅Π½Ρ: | Π‘ΡΡΠΎΠ³Π°Π½Π½ΡΠΉ ΠΏΡΠΎΡΠΈΠ»ΠΈΡΠΎΠ²Π°Π½Π½ΡΠΉ Π±ΡΡΡ 95Ρ 145 (145Ρ 145ΠΌΠΌ, 190Ρ 145ΠΌΠΌ), Π½Π° Π΄ΠΆΡΡΠΎΠ²ΠΎΠΌ ΠΏΠΎΠ»ΠΎΡΠ½Π΅. ΠΠΎΠ΄ΡΠΎΠ±Π½Π΅Π΅ ΠΏΡΠΎΡΠΈΠ»ΠΈΡΠΎΠ²Π°Π½Π½ΡΠΉ Π±ΡΡΡ |
| ΠΠΆΡΡ: | ΠΠ΅ΠΆΠ²Π΅Π½ΡΠΎΠ²ΡΠΉ ΡΡΠ΅ΠΏΠ»ΠΈΡΠ΅Π»Ρ Β«Π΄ΠΆΡΡΒ», Π΄ΠΆΡΡΠΎΠ²ΠΎΠ΅ Π²ΠΎΠ»ΠΎΠΊΠ½ΠΎ ΠΏΡΠΎΠΊΠ»Π°Π΄ΡΠ²Π°Π΅ΡΡΡ ΠΌΠ΅ΠΆΠ΄Ρ ΡΡΠ΄Π°ΠΌΠΈ Π±ΡΡΡΠ°. ΠΠΎΠ΄ΡΠΎΠ±Π½Π΅Π΅ Π΄ΠΆΡΡ |
| Π’ΠΈΠΏ ΡΡΠ±ΠΊΠΈ: | Π’ΠΈΠΏ ΡΡΠ±ΠΊΠΈ ΡΡΠ΅Π½ ΡΡΡΠ±Π° Β«Π² ΡΡΠΏΠ»ΡΠΉ ΡΠ³ΠΎΠ»Β»(ΡΠΈΠΏ-ΠΏΠ°Π·) ΠΠΎΠ΄ΡΠΎΠ±Π½Π΅Π΅ ΡΡΠ±ΠΊΠ° ΡΠ³Π»ΠΎΠ² |
| Π‘ΡΠ΅Π½Ρ 1-Π³ΠΎ ΡΡΠ°ΠΆΠ°: | Π‘ΡΡΠΎΠ³Π°Π½Π½ΡΠΉ ΠΏΡΠΎΡΠΈΠ»ΠΈΡΠΎΠ²Π°Π½Π½ΡΠΉ Π±ΡΡΡ 95Ρ 145ΠΌΠΌ Π½Π° Π΄ΠΆΡΡΠ΅. ΠΠΎΠ΄ΡΠΎΠ±Π½Π΅Π΅ ΠΏΠ΅ΡΠ΅Π³ΠΎΡΠΎΠ΄ΠΊΠΈ 1 ΡΡΠ°ΠΆΠ° |
| Π‘ΡΠ΅Π½Ρ 2-Π³ΠΎ ΡΡΠ°ΠΆΠ°: | ΠΠ΅ΡΒ |
| Π€ΡΠΎΠ½ΡΠΎΠ½Ρ: | ΠΡΡΡΠΎΠ²ΡΠ΅: ΡΡΡΠΎΠ³Π°Π½Π½ΡΠΉ ΠΏΡΠΎΡΠΈΠ»ΠΈΡΠΎΠ²Π°Π½Π½ΡΠΉ Π±ΡΡΡ 95Ρ
145ΠΌΠΌ (145Ρ
145ΠΌΠΌ 190Ρ
145ΠΌΠΌ) ΠΠΎΠ΄ΡΠΎΠ±Π½Π΅Π΅ ΡΡΠΎΠ½ΡΠΎΠ½.Β ΠΠ»ΠΈ ΠΊΠ°ΡΠΊΠ°ΡΠ½ΠΎ-ΡΠΈΡΠΎΠ²ΡΠ΅ (Ρ ΠΎΡΠ΄Π΅Π»ΠΊΠΎΠΉ Π²Π°Π³ΠΎΠ½ΠΊΠΎΠΉ) |
| Π£ΡΠ΅ΠΏΠ»Π΅Π½ΠΈΠ΅: | ΠΠΎΠ» ΠΈ ΠΏΠΎΡΠΎΠ»ΠΎΠΊ Π½Π° 100ΠΌΠΌ, ΡΡΠ΅ΠΏΠ»ΠΈΡΠ΅Π»Ρ Β«ursaΒ» (ΠΈΠ»ΠΈ Π°Π½Π°Π»ΠΎΠ³ΠΈ), Ρ ΠΏΡΠΎΠΊΠ»Π°Π΄ΠΊΠΎΠΉ ΠΏΠ°ΡΠΎΠΈΠ·ΠΎΠ»ΡΡΠΈΠΎΠ½Π½ΠΎΠΉ ΠΏΠ»ΡΠ½ΠΊΠΈ. ΠΠΎΠ΄ΡΠΎΠ±Π½Π΅Π΅ ΡΡΠ΅ΠΏΠ»Π΅Π½ΠΈΠ΅ |
| ΠΠ²Π΅ΡΠΈ: | ΠΡ ΠΎΠ΄Π½Π°Ρ β ΠΌΠ΅ΡΠ°Π»Π»ΠΈΡΠ΅ΡΠΊΠ°Ρ. Π€ΠΈΠ»Π΅Π½ΡΠ°ΡΡΠ΅, ΠΎΠ±Π½Π°Π»ΠΈΡΠ΅Π½Π½ΡΠ΅, Π±Π΅Π· ΡΡΡΠ½ΠΈΡΡΡΡ, ΡΠ°Π·ΠΌΠ΅ΡΠΎΠΌ 2Ρ 0,8 ΠΌ. ΠΠΎΠ΄ΡΠΎΠ±Π½Π΅Π΅ Π΄Π²Π΅ΡΠΈ |
| ΠΠΊΠ½Π°: | ΠΠ΅ΡΠ΅Π²ΡΠ½Π½ΡΠ΅ Ρ Π΄Π²ΠΎΠΉΠ½ΡΠΌ ΠΎΡΡΠ΅ΠΊΠ»Π΅Π½ΠΈΠ΅ΠΌ, Ρ ΡΡΡΠ½ΠΈΡΡΡΠΎΠΉ, ΠΎΠ±Π½Π°Π»ΠΈΡΠ΅Π½Π½ΡΠ΅, ΡΠ°Π·ΠΌΠ΅ΡΠΎΠΌ 1,0Ρ 1,2 ΠΌ. ΠΠΎΠ΄ΡΠΎΠ±Π½Π΅Π΅ ΠΎΠΊΠ½Π° |
| Π‘ΡΡΠΎΠΏΠΈΠ»Π°: | Π‘ΡΡΠΎΠΏΠΈΠ»Π° ΠΈΠ· Π΄ΠΎΡΠΊΠΈ 40Ρ 150ΠΌΠΌ Ρ ΡΠ°Π³ΠΎΠΌ Π½Π΅ Π±ΠΎΠ»Π΅Π΅ 0,9ΠΌ ΠΠΎΠ΄ΡΠΎΠ±Π½Π΅Π΅ ΡΡΡΠΎΠΏΠΈΠ»Π° |
| ΠΠ±ΡΠ΅ΡΡΡΠΊΠ°: | ΠΠ±ΡΠ΅ΡΠ΅ΡΠΊΠ° Π²ΡΠΏΠΎΠ»Π½ΡΠ΅ΡΡΡ ΠΈΠ· ΠΎΠ±ΡΠ΅Π·Π½ΠΎΠΉ Π΄ΠΎΡΠΊΠΈ ΡΠΎΠ»ΡΠΈΠ½ΠΎΠΉ 20 ΠΌΠΌ Ρ ΡΠ°Π³ΠΎΠΌ Π½Π΅ Π±ΠΎΠ»Π΅Π΅ 400ΠΌΠΌ. ΠΠΎΠ΄ΡΠΎΠ±Π½Π΅Π΅ ΠΎΠ±ΡΠ΅ΡΡΡΠΊΠ° |
| ΠΡΠΎΠ²Π»Ρ: | ΠΠ½Π΄ΡΠ»ΠΈΠ½ (Π½Π° Π²ΡΠ±ΠΎΡ: ΠΊΡΠ°ΡΠ½ΡΠΉ, Π·Π΅Π»Π΅Π½ΡΠΉ, ΠΊΠΎΡΠΈΡΠ½Π΅Π²ΡΠΉ). ΠΠΎΠ΄ΡΠΎΠ±Π½Π΅Π΅ ΠΎΠ½Π΄ΡΠ»ΠΈΠ½ ΠΈΒ ΠΊΡΠΎΠ²Π»Ρ |
| ΠΠΎΠ» ΡΠ΅ΡΠ½ΠΎΠ²ΠΎΠΉ: | ΠΠΎΠ½ΡΡΡΡΠΊΡΠΈΡ ΠΏΠΎΠ»Π° ΡΠΎΡΡΠΎΠΈΡ ΠΈΠ· ΠΏΠΈΡΠΎΠ³Π°: ΡΠ΅ΡΠ½ΠΎΠ²ΠΎΠΉ β ΠΎΠ±ΡΠ΅Π·Π½Π°Ρ Π΄ΠΎΡΠΊΠ° 20 ΠΌΠΌ, ΡΠΈΡΡΠΎΠ²ΠΎΠΉ β ΡΠΏΡΠ½ΡΠΎΠ²Π°Π½Π½Π°Ρ Π΄ΠΎΡΠΊΠ° 28 ΠΌΠΌ, Ρ ΠΏΠ°ΡΠΎΠ³ΠΈΠ΄ΡΠΎΠΈΠ·ΠΎΠ»ΡΡΠΈΠ΅ΠΉ ΠΈΠ·ΠΎΡΠΏΠ°Π½ ΠΈ ΡΡΠ΅ΠΏΠ»Π΅Π½ΠΈΠ΅ΠΌ Β«ursaΒ» (100 ΠΌΠΌ). ΠΠΎΠ΄ΡΠΎΠ±Π½Π΅Π΅ ΡΠ΅ΡΠ½ΠΎΠ²ΠΎΠΉ ΠΏΠΎΠ» |
| ΠΠΎΠ» ΡΠΈΡΡΠΎΠ²ΠΎΠΉ: | Π§ΠΈΡΡΠΎΠ²Π°Ρ Π΄ΠΎΡΠΊΠ° ΠΏΠΎΠ»Π° ΡΠΏΡΠ½ΡΒ 28ΠΌΠΌ. ΠΠΎΠ΄ΡΠΎΠ±Π½Π΅Π΅ ΡΠΈΡΡΠΎΠ²ΠΎΠΉ ΠΏΠΎΠ» |
| ΠΡΡΠΎΡΠ°: | ΠΡΡΠΎΡΠ° ΡΡΠ°ΠΆΠ° β 2,5 ΠΌ. (18 Π²Π΅Π½ΡΠΎΠ²). |
| ΠΠΎΡΠΎΠ»ΠΊΠΈ: | ΠΠΎΡΠΎΠ»ΠΊΠΈ ΠΏΠΎΠ΄ΡΠΈΠ²Π°ΡΡΡΡ ΡΡΡ ΠΎΠΉ Π²Π°Π³ΠΎΠ½ΠΊΠΎΠΉ, ΡΠΎΡΡ B. ΠΠΎΠ΄ΡΠΎΠ±Π½Π΅Π΅ ΠΏΠΎΡΠΎΠ»ΠΊΠΈ |
| ΠΠ°ΡΠΎΠΈΠ·ΠΎΠ»ΡΡΠΈΡ: | ΠΠ°ΡΠΎ- ΠΈ Π³ΠΈΠ΄ΡΠΎΠΈΠ·ΠΎΠ»ΡΡΠΈΠΎΠ½Π½ΡΠ΅ Β«ΠΈΠ·ΠΎΡΠΏΠ°Π½Β» (Β«ΠΎΠ½Π΄ΡΡΠΈΡΒ»). ΠΠΎΠ΄ΡΠΎΠ±Π½Π΅Π΅ ΠΏΠ°ΡΠΎΠΈΠ·ΠΎΠ»ΡΡΠΈΡ |
| ΠΠ΅ΡΡΠ½ΠΈΡΠ°: | ΠΠ΅ΡΡΠ½ΠΈΡΠ° Π΄Π΅ΡΠ΅Π²ΡΠ½Π½Π°Ρ Π½Π° Π²ΡΠΎΡΠΎΠΉ ΡΡΠ°ΠΆ ΠΎΠ΄Π½ΠΎΠΌΠ°ΡΡΠ΅Π²Π°Ρ(Π΄Π²ΡΡ ΠΌΠ°ΡΡΠ΅Π²Π°Ρ) Ρ ΠΏΠ΅ΡΠΈΠ»Π°ΠΌΠΈ ΠΈ ΠΎΠ³ΡΠ°ΠΆΠ΄Π΅Π½ΠΈΠ΅ΠΌ ΠΈΠ· ΡΠ΅Π·Π½ΡΡ Π±Π°Π»ΡΡΠΈΠ½. ΠΠΎΠ΄ΡΠΎΠ±Π½Π΅Π΅ Π»Π΅ΡΡΠ½ΠΈΡΡ |
| ΠΠ°ΡΠ½ΠΈΠ·Ρ: | ΠΠ°ΡΠ½ΠΈΠ·Ρ (ΡΠ²Π΅ΡΡ), ΠΏΠΎΠ΄Π½Π΅Π±Π΅ΡΠ½ΠΈΠΊΠΈ ΠΏΠΎΠ΄ΡΠΈΠ²Π°ΡΡΡΡ Π²Π°Π³ΠΎΠ½ΠΊΠΎΠΉ. ΠΠΎΠ΄ΡΠΎΠ±Π½Π΅Π΅ ΠΊΠ°ΡΠ½ΠΈΠ· |
| ΠΠ°Π»ΠΈΡΠ½ΠΈΠΊΠΈ: | ΠΠ°Π»ΠΈΡΠ½ΠΈΠΊΠΈ Π½Π° ΠΎΠΊΠΎΠ½Π½ΡΠ΅ ΠΈΠ»ΠΈ Π΄Π²Π΅ΡΠ½ΡΠ΅ ΠΏΡΠΎΡΠΌΡ Ρ Π΄Π²ΡΡ ΡΡΠΎΡΠΎΠ½ |
| Π£Π³Π»Ρ Π²Π½ΡΡΡΠΈ: | ΠΠ° Π²ΡΠ΅ ΡΡΡΠΊΠΈ ΠΏΠΎΡΠΎΠ»ΠΊΠ°,ΡΡΠ΅Π½ ΠΈ ΠΏΠΎΠ»Π° ΠΏΡΠΈΠ±ΠΈΠ²Π°Π΅ΡΡΡ ΠΏΠ»ΠΈΠ½ΡΡΡ |
| Π£Π³Π»Ρ ΡΠ½Π°ΡΡΠΆΠΈ: | Π£Π³Π»Ρ ΡΡΠ΅Π½ ΡΠ½Π°ΡΡΠΆΠΈ ΠΏΡΠΈΠΊΡΡΠ²Π°ΡΡΡΡ Π½Π°Π»ΠΈΡΠ½ΠΈΠΊΠ°ΠΌΠΈ |
Β β β β
ΠΠΎΠΏΠΎΠ»Π½ΠΈΡΠ΅Π»ΡΠ½ΠΎ ΠΊ ΠΊΠΎΠΌΠΏΠ»Π΅ΠΊΡΠ°ΡΠΈΠΈ ΠΌΠΎΠΆΠ½ΠΎ Π·Π°ΠΊΠ°Π·Π°ΡΡ:
Β >>> ΠΏΠΎΠ΄ΡΠΎΠ±Π½Π΅Π΅ Π΄ΠΎΠΏΠΎΠ»Π½ΠΈΡΠ΅Π»ΡΠ½ΡΠ΅ ΡΡΠ»ΡΠ³ΠΈ
ΠΠ΅ΡΠ΅ΡΠ΅Π½Ρ ΠΌΠ°ΡΠ΅ΡΠΈΠ°Π»ΠΎΠ², ΠΏΡΠΈΠΌΠ΅Π½ΡΠ΅ΠΌΡΡ Π² ΡΡΡΠΎΠΈΡΠ΅Π»ΡΡΡΠ²Π΅
Π‘ΠΎΠ±ΡΡΠ²Π΅Π½Π½ΠΎΠ΅ ΠΏΡΠΎΠΈΠ·Π²ΠΎΠ΄ΡΡΠ²ΠΎ ΠΏΡΠΎΡΠΈΠ»ΠΈΡΠΎΠ²Π°Π½Π½ΠΎΠ³ΠΎ Π±ΡΡΡΠ°
>>> ΠΏΠΎΠ΄ΡΠΎΠ±Π½Π΅Π΅ ΠΎ ΠΏΡΠΎΠΈΠ·Π²ΠΎΠ΄ΡΡΠ²Π΅
domato.ru
ΠΡΠΎΠ΅ΠΊΡ ΠΎΠ΄Π½ΠΎΡΡΠ°ΠΆΠ½ΡΠΉ Π΄ΠΎΠΌ 9Ρ 12. ΠΡΠΎΠ΅ΠΊΡ ΠΎΠ΄Π½ΠΎΡΡΠ°ΠΆΠ½ΠΎΠ³ΠΎ Π΄ΠΎΠΌΠ° 9Ρ 12
ΠΡΠΎΠ΅ΠΊΡ ΠΠ-45 (ΡΡΠΏΠ΅Ρ-ΠΊΠΎΠΌΡΠΎΡΡ), ΠΠ°ΡΠΊΠ°ΡΠ½ΡΠΉ Π΄ΠΎΠΌ 9Ρ 12 108ΠΌ2 Π΄Π»Ρ ΡΡΡΠΎΠΈΡΠ΅Π»ΡΡΡΠ²Π° ΡΠ²ΠΎΠΈΠΌΠΈ ΡΡΠΊΠ°ΠΌΠΈ / ΠΠ°ΡΠΊΠ°ΡΠ½ΡΠΉ Π΄ΠΎΠΌ ΡΠ²ΠΎΠΈΠΌΠΈ ΡΡΠΊΠ°ΠΌΠΈ
Π ΠΊΠ°ΠΆΠ΄ΡΡ ΡΠ΅Π½Ρ Π²ΠΊΠ»ΡΡΠ΅Π½ΠΎ ΡΡΠ΅ΠΏΠ»Π΅Π½ΠΈΠ΅ 200-250ΠΌΠΌ ΠΌΠΈΠ½. Π²Π°ΡΡ, ΠΈ ΠΌΠΎΠ½ΠΎΠ»ΠΈΡΠ½ΡΠΉ Π»Π΅Π½ΡΠΎΡΠ½ΡΠΉ ΡΡΠ½Π΄Π°ΠΌΠ΅Π½Ρ (ΠΠΠΠ€) Π²50ΡΠΌ Ρ Ρ40ΡΠΌ. ΠΠΎΠΌ ΠΏΠΎΠ΄ ΡΠΈΡΡΠΎΠ²ΡΡ ΠΎΡΠ΄Π΅Π»ΠΊΡ Ρ ΠΊΠΎΠΌΠΌΡΠ½ΠΈΠΊΠ°ΡΠΈΡΠΌΠΈ.
ΠΡΠΎΠ΅ΠΊΡ ΠΊΠ°ΡΠΊΠ°ΡΠ½ΠΎΠ³ΠΎ Π΄ΠΎΠΌΠ° 9Ρ 12 108ΠΌ2 Π΄Π»Ρ ΡΡΡΠΎΠΈΡΠ΅Π»ΡΡΡΠ²Π° ΡΠ²ΠΎΠΈΠΌΠΈ ΡΡΠΊΠ°ΠΌΠΈ, ΠΡΠΎΠ΅ΠΊΡ ΠΠ-45 (ΡΡΠΏΠ΅Ρ-ΠΊΠΎΠΌΡΠΎΡΡ).
Π¦Π΅Π½Π° Π΄ΠΎΠΌΠ° Ρ ΡΡΠ΅ΠΏΠ»Π΅Π½ΠΈΠ΅ΠΌ 200ΠΌΠΌ ΠΌΠΈΠ½. Π²Π°ΡΡ ΠΈ ΠΎΡΠ΄Π΅Π»ΠΊΠΎΠΉ 538Ρ.Ρ. Π¦Π΅Π½Π° Π΄ΠΎΠΌΠ° Ρ ΡΡΠ΅ΠΏΠ»Π΅Π½ΠΈΠ΅ΠΌ 200ΠΌΠΌ ΠΌΠΈΠ½. Π²Π°ΡΡ ΠΈ ΠΎΡΠ΄Π΅Π»ΠΊΠΎΠΉ + ΡΡΠ½Π΄Π°ΠΌΠ΅Π½Ρ 639Ρ.Ρ. Π¦Π΅Π½Π° Π΄ΠΎΠΌΠ° Ρ ΡΡΠ΅ΠΏΠ»Π΅Π½ΠΈΠ΅ΠΌ 200ΠΌΠΌ ΠΌΠΈΠ½. Π²Π°ΡΡ ΠΈ ΠΎΡΠ΄Π΅Π»ΠΊΠΎΠΉ + ΡΡΠ½Π΄Π°ΠΌΠ΅Π½Ρ + ΡΠ»Π΅ΠΊΡΡΠΈΠΊΠ° ΠΈ ΡΠ°Π½ΡΠ΅Ρ Π½ΠΈΠΊΠ° 687Ρ.Ρ. Π‘ΡΠ°Π½Π΄Π°ΡΡΠ½ΠΎΠ΅ ΡΡΠ΅ΠΏΠ»Π΅Π½ΠΈΠ΅ 200ΠΌΠΌ Π±Π°Π·Π°Π»ΡΡΠΎΠ²ΠΎΠΉ ΠΌΠΈΠ½. Π²Π°ΡΡ, ΡΠ΅Π½Π° 250ΠΌΠΌ +15Ρ.Ρ. ΠΊ ΡΠ΅Π½Π΅ Π²ΡΡΠ΅. Π¦Π΅Π½Π° ΠΏΡΠΎΠ΅ΠΊΡΠ° Π΄Π»Ρ ΡΠ°ΠΌΠΎΡΡΠΎΡΡΠ΅Π»ΡΠ½ΠΎΠΉ ΡΠ±ΠΎΡΠΊΠΈ 14Ρ.Ρ. Π‘ΠΌΠ΅ΡΠ° ΠΈ ΡΠΈΡΠ°ΡΡ ΠΏΠΎΠ΄ΡΠΎΠ±Π½Π΅Π΅…ΠΠΎΠ²ΡΠΉ ΠΏΡΠΎΠ΅ΠΊΡ! ΠΠΎΠ»ΡΡΠΎΠΉ ΠΊΠ°ΡΠΊΠ°ΡΠ½ΡΠΉ Π΄ΠΎΠΌ Π² ΠΎΠ΄ΠΈΠ½ ΡΡΠ°ΠΆ.
Π‘ΠΊΠ°ΡΠ°ΡΡ, ΠΡΠΎΠ΅ΠΊΡ ΠΠ-45 (ΡΡΠΏΠ΅Ρ-ΠΊΠΎΠΌΡΠΎΡΡ) 0.41 ΠΠ± (pdf) >>> ΠΏΠΎΠ΄ΡΠΎΠ±Π½ΠΎΠ΅ ΠΎΠΏΠΈΡΠ°Π½ΠΈΠ΅.ΠΡΠΎΠ΅ΠΊΡ ΠΊΠ°ΡΠΊΠ°ΡΠ½ΠΎΠ³ΠΎ Π΄ΠΎΠΌΠ° 9 Ρ 12ΠΌ — Π½Π΅ Π±ΠΎΠ»ΡΡΠΎΠΉ, Π½ΠΎ ΠΎΡΠ΅Π½Ρ ΠΊΠΎΠΌΡΠΎΡΡΠ½ΡΠΉ ΠΈ ΡΠ΄ΠΎΠ±Π½ΡΠΉ Π΄ΠΎΠΌ Π΄Π»Ρ ΠΏΠΎΡΡΠΎΡΠ½Π½ΠΎΠ³ΠΎ ΠΏΡΠΎΠΆΠΈΠ²Π°Π½ΠΈΡ.
ΠΡΠ΄Π΅Π»ΠΊΠ° Π΄ΠΎΠΌΠ° ΠΌΠΎΠΆΠ΅Ρ Π±ΡΡΡ ΠΈΠ·ΠΌΠ΅Π½Π΅Π½Π° ΠΏΠΎΠ΄ Π²Π°ΡΠΈ ΠΏΡΠ΅Π΄ΠΏΠΎΡΡΠ΅Π½ΠΈΡ, ΠΏΠΎ ΠΏΡΠΎΠ΅ΠΊΡΡ: Π½Π°ΡΡΠΆΠ½Π°Ρ ΡΠΈΡΡΠΎΠ²Π°Ρ ΠSB ΠΈ Π²Π½ΡΡΡΠ΅Π½Π½ΡΡ ΡΠΈΡΡΠΎΠ²Π°Ρ ΠΎΡΠ΄Π΅Π»ΠΊΠ° ΠΠΠ Π²Ρ ΠΎΠ΄ΡΡ Π² ΡΡΠΎΠΈΠΌΠΎΡΡΡ ΠΏΡΠΎΠ΅ΠΊΡΠ°. Π’Π°ΠΊΠΆΠ΅ Π² ΡΠ΅Π½Ρ ΠΏΡΠΎΠ΅ΠΊΡΠ° Π²ΠΊΠ»ΡΡΡΠ½ ΡΡΠ½Π΄Π°ΠΌΠ΅Π½Ρ, ΡΡΠ΅ΠΏΠ»Π΅Π½ΠΈΠ΅ 200ΠΌΠΌ ΠΌΠΈΠ½. Π²Π°ΡΡ (Π²ΠΎΠ·ΠΌΠΎΠΆΠ½ΠΎ Π΄ΠΎ 250ΠΌΠΌ), ΡΠ»Π΅ΠΊΡΡΠΎΠΏΡΠΎΠ²ΠΎΠ΄ΠΊΠ° ΠΈ ΡΡΡΠ°Π½ΠΎΠ²ΠΎΡΠ½ΡΠ΅ ΠΈΠ·Π΄Π΅Π»ΠΈΡ, Π°Π²ΡΠΎΠΌΠ°ΡΠΈΠΊΠ° Π²ΠΎΠ΄ΠΎΡΠ½Π°Π±ΠΆΠ΅Π½ΠΈΠ΅ ΠΈ ΠΊΠ°Π½Π°Π»ΠΈΠ·ΠΎΠ²Π°Π½ΠΈΠ΅ Ρ ΡΡΡΠ°Π½ΠΎΠ²Π»Π΅Π½Π½ΠΎΠΉ ΡΠ°Π½ΡΠ΅Ρ Π½ΠΈΠΊΠΎΠΉ.
ΠΠΎΠΌ ΠΎΠ΄Π½ΠΎΡΡΠ°ΠΆΠ½ΡΠΉ 108ΠΌ2 : ΠΡΡΠΎΡΠ° ΠΏΠΎΡΠΎΠ»ΠΊΠΎΠ² 2,8ΠΌ, Π‘ΠΏΠ°Π»ΡΠ½Ρ 13,2ΠΌ2, Π‘ΠΏΠ°Π»ΡΠ½Ρ 13,2ΠΌ2, ΡΠΏΠ°Π»ΡΠ½Ρ Π΄Π΅ΡΡΠΊΠ°Ρ 12,3ΠΌ2, ΠΡΡ Π½Ρ 15,3ΠΌ2 ΠΠΎΡΡΠΈΠ½Π°Ρ 15,3ΠΌ2, ΠΠΎΡΠΈΠ΄ΠΎΡ 7ΠΌ2, ΠΠΎΡΠ΅Π»ΡΠ½Π°Ρ 6,3ΠΌ2, Ρ/Ρ 6,3ΠΌ2, ΠΡΠΈΡ ΠΎΠΆΠ°Ρ 5,3ΠΌ2, ΠΡΠΈΡ ΠΎΠΆΠ°Ρ 2,52
ΠΠΎΡ ΠΎΠΆΠΈΠ΅ ΠΏΡΠΎΠ΅ΠΊΡΡ: ΠΠ-31 ΠΈ ΠΠ-3 ΠΈΠ»ΠΈ ΠΠ-4 ΠΈ ΠΠ-43ΠΠ»Ρ ΡΠ²Π΅Π»ΠΈΡΠ΅Π½ΠΈΡ ΠΊΠ°ΡΡΠΈΠ½ΠΊΠΈ Π½Π°ΠΆΠΌΠΈΡΠ΅ Π½Π° Π½Π΅Ρ.
1. ΠΠ°ΡΠΈΠ°Π½Ρ ΡΡΠ°Π½Π΄Π°ΡΡΠ½ΡΠΉ. 
ΠΠ»Π°Π½ ΡΡΠ°ΠΆΠ°, ΠΠΈΠ΄ Π² 3D.
ΠΠ°ΡΠΈΠ°Π½ΡΡ Π²Π½Π΅ΡΠ½Π΅Π³ΠΎ Π²ΠΈΠ΄Π°: Π²ΠΎΠ·ΠΌΠΎΠΆΠ½Π° Π»ΡΠ±Π°Ρ ΠΎΡΠ΄Π΅Π»ΠΊΠ°, ΡΠΌ. Π²Π°ΡΠΈΠ°Π½ΡΡ, ΠΏΡΠΎΠ΅ΠΊΡ ΠΠ-3, ΠΠ-33, ΠΠ-4 ΠΈ ΡΠ΄.

ΠΡΡΠΎΡΠ½ΡΠ΅ ΠΎΡΠΌΠ΅ΡΠΊΠΈ:

Π€ΡΠ½Π΄Π°ΠΌΠ΅Π½Ρ Π΄Π»Ρ ΡΡΠΎΠ³ΠΎ Π΄ΠΎΠΌΠ°: ΠΏΠΎ ΠΏΡΠΎΠ΅ΠΊΡΡ ΠΠΠΠ€ 50Π² Ρ
40Ρ. Π²ΠΎΠ·ΠΌΠΎΠΆΠ½Ρ Π²ΠΈΠ½ΡΠΎΠ²ΡΠ΅ ΠΈΠ»ΠΈ Π±ΡΡΠΎΠ½Π°Π±ΠΈΠ²Π½ΡΠ΅ ΡΠ²Π°ΠΈ ΠΌΠΈΠ½. 33 ΡΡΡΠΊΠ°, (ΠΌΠ°ΠΊΡ 40ΡΡ.). 
Π‘ΡΠ΅Π΄Π½Π΅ ΡΡΠ½ΠΎΡΠ½Π°Ρ ΡΡΠΎΠΈΠΌΠΎΡΡΡ ΠΏΠΎΠ΄ΠΎΠ±Π½ΠΎΠ³ΠΎ Π΄ΠΎΠΌΠ°, Π²ΡΡΠ΅ Π½Π°ΡΠ΅ΠΉ Π² 4 ΡΠ°Π·.
Π§Π°ΡΡΡΠ΅ Π²ΠΎΠΏΡΠΎΡΡ ΠΊΠ»ΠΈΠ΅Π½ΡΠΎΠ²:
Π§ΡΠΎ Π΄Π΅Π»Π°ΡΡ, Π΅ΡΠ»ΠΈ Π½Π°Π΄ΠΎ ΡΡΠΎ-ΡΠΎ ΠΏΠΎΠΌΠ΅Π½ΡΡΡ Π² ΠΏΠΎΠ½ΡΠ°Π²ΠΈΠ²ΡΠ΅ΠΌΡΡ ΠΏΡΠΎΠ΅ΠΊΡΠ΅?
ΠΠ΅Π·Π½Π°ΡΠΈΡΠ΅Π»ΡΠ½ΡΡ Π΄ΠΎΡΠ°Π±ΠΎΡΠΊΡ ΠΏΡΠΎΠ΅ΠΊΡΠ° ΠΏΠΎΠ΄ Π²Π°Ρ ΠΌΡ ΡΠ΄Π΅Π»Π°Π΅ΠΌ ΠΠ΅ΡΠΏΠ»Π°ΡΠ½ΠΎ.
ΠΡΠ»ΠΈ ΠΌΠ½Π΅ Π½Π΅ ΠΏΠΎΠ΄Ρ ΠΎΠ΄ΠΈΡ Π½ΠΈ ΠΎΠ΄ΠΈΠ½ ΠΏΡΠΎΠ΅ΠΊΡ, ΡΡΠΎ Π΄Π΅Π»Π°ΡΡ?
ΠΡ ΠΌΠΎΠΆΠ΅ΠΌ ΡΠ΄Π΅Π»Π°ΡΡ ΠΈΠ½Π΄ΠΈΠ²ΠΈΠ΄ΡΠ°Π»ΡΠ½ΡΠΉ ΠΏΡΠΎΠ΅ΠΊΡ, Π½ΠΎ ΡΡΠΎ Π·Π°ΠΉΠΌΡΡ Π½Π΅ΡΠΊΠΎΠ»ΡΠΊΠΎ ΠΌΠ΅ΡΡΡΠ΅Π² ΠΈ Π±ΡΠ΄Π΅Ρ Π½Π΅ΡΠΊΠΎΠ»ΡΠΊΠΎ Π΄ΠΎΡΠΎΠΆΠ΅ ΡΡΠ°Π½Π΄Π°ΡΡΠ½ΠΎΠ³ΠΎ ΠΏΡΠΎΠ΅ΠΊΡΠ°.
ΠΠΎΠ·ΠΌΠΎΠΆΠ½ΠΎ, Π²Π½Π΅ΡΡΠΈ ΠΈΠ·ΠΌΠ΅Π½Π΅Π½ΠΈΡ Π² ΠΏΡΠ΅Π΄Π»ΠΎΠΆΠ΅Π½Π½ΡΡ ΠΊΠΎΠΌΠΏΠ»Π΅ΠΊΡΠ°ΡΠΈΡ ΠΈ ΡΠΌΠ΅ΡΡ?
ΠΠ°, ΠΊΠΎΠ½Π΅ΡΠ½ΠΎ, ΠΌΡ ΡΠΊΠΎΡΡΠ΅ΠΊΡΠΈΡΡΠ΅ΠΌ ΡΠΌΠ΅ΡΡ ΠΏΠΎΠ΄ Π²Π°ΡΠΈ ΡΡΠ΅Π±ΠΎΠ²Π°Π½ΠΈΡ, Π° Π΅ΡΠ»ΠΈ Π²Ρ Π½Π°ΠΌ ΠΏΡΠΈΡΠ»ΡΡΠ΅ ΡΠ΅Π½Ρ Π²Π°ΡΠ΅Π³ΠΎ ΡΠ΅Π³ΠΈΠΎΠ½Π°, ΡΠΎ ΠΌΡ ΡΠ΄Π΅Π»Π°Π΅ΠΌ ΡΠΌΠ΅ΡΡ ΡΠΊΡΠΊΠ»ΡΠ·ΠΈΠ²Π½ΠΎ ΠΏΠΎΠ΄ Π²Π°Ρ.
ΠΠ°ΠΊΠΈΠ΅ Π²ΠΎΠ·ΠΌΠΎΠΆΠ½Ρ Π²Π°ΡΠΈΠ°Π½ΡΡ ΡΡΠ΅Π½ΠΎΠ²ΠΎΠ³ΠΎ ΠΌΠ°ΡΠ΅ΡΠΈΠ°Π»Π° ΠΈ ΡΡΠ΅ΠΏΠ»Π΅Π½ΠΈΡ Π² ΡΡΠΎΠΉ ΠΊΠΎΠΌΠΏΠ»Π΅ΠΊΡΠ°ΡΠΈΠΈ?
ΠΠΎΡΠΊΠ° ΠΎΠ±ΡΠ΅Π·Π½Π°Ρ: ΡΡΠ΅Π½Ρ ΠΈ ΡΠ°ΡΡΡ ΠΏΠ΅ΡΠ΅Π³ΠΎΡΠΎΠ΄ΠΎΠΊ 150Ρ 50ΠΌΠΌ, ΡΡΠ΅ΠΏΠ»Π΅Π½ΠΈΠ΅ ΠΌΠΈΠ½. Π²Π°ΡΠ° Π±Π°Π·Π°Π»ΡΡΠΎΠ²ΡΡ ΠΏΠΎΡΠΎΠ΄ 150ΠΌΠΌ, ΠΏΠ»ΡΡ 50ΠΌΠΌ Π³ΠΎΡΠΈΠ·ΠΎΠ½ΡΠ°Π»ΡΠ½ΠΎ, ΠΌΠ°ΠΊΡ. 250ΠΌΠΌ.
ΠΠ°ΠΊΡΡ ΡΠΎΠ»ΡΠΈΠ½Ρ ΡΡΠ΅Π½ Π²ΡΠ±ΡΠ°ΡΡ?
ΠΠ»Ρ ΡΠΎΠ³ΠΎ ΡΡΠΎΠ±Ρ ΠΏΡΠ°Π²ΠΈΠ»ΡΠ½ΠΎ Π²ΡΠ±ΡΠ°ΡΡ ΡΠΎΠ»ΡΠΈΠ½Ρ ΡΡΠ΅Π½, Π½Π΅ΠΎΠ±Ρ ΠΎΠ΄ΠΈΠΌΠΎ ΠΎΠΏΡΠ΅Π΄Π΅Π»ΠΈΡΡΡ Ρ ΡΠ΅Π»Π΅Π²ΡΠΌ ΠΈΡΠΏΠΎΠ»ΡΠ·ΠΎΠ²Π°Π½ΠΈΠ΅ΠΌ Π΄ΠΎΠΌΠ° ΠΈ ΡΠ΅Π³ΠΈΠΎΠ½Π° Π΅Π³ΠΎ ΡΡΡΠΎΠΈΡΠ΅Π»ΡΡΡΠ²Π°.
ΠΡΠΈ ΡΡΠ»ΠΎΠ²ΠΈΠΈ, ΠΊΠΎΠ³Π΄Π° ΡΠ΅ΡΡ ΠΈΠ΄Π΅Ρ ΠΎ Π΄ΠΎΠΌΠ΅ Π΄Π»Ρ ΠΏΠΎΡΡΠΎΡΠ½Π½ΠΎΠ³ΠΎ ΠΏΡΠΎΠΆΠΈΠ²Π°Π½ΠΈΡ Ρ Π³Π°Π·ΠΎΠ²ΡΠΌ ΠΎΡΠΎΠΏΠ»Π΅Π½ΠΈΠ΅ΠΌ: ΡΠΎΠ»ΡΠΈΠ½Ρ ΡΡΠ΅Π½Ρ Π² 150ΠΌΠΌ Π±ΡΠ΄Π΅Ρ Π²ΠΏΠΎΠ»Π½Π΅ Π΄ΠΎΡΡΠ°ΡΠΎΡΠ½ΠΎ, Π΄Π»Ρ ΠΊΠΎΠΌΡΠΎΡΡΠ½ΠΎΠ³ΠΎ ΠΏΡΠΎΠΆΠΈΠ²Π°Π½ΠΈΡ ΠΈ Π·ΠΈΠΌΠΎΠΉ ΠΈ Π»Π΅ΡΠΎΠΌ ΡΠ΅ΠΊΠΎΠΌΠ΅Π½Π΄ΡΠ΅ΠΌ ΡΡΠ΅ΠΏΠ»Π΅Π½ΠΈΠ΅ 150ΠΌΠΌ ΠΌΠ΅ΠΆΡ ΡΡΠΎΠ΅ΠΊ, ΠΏΠ»ΡΡ 50ΠΌΠΌ Π³ΠΎΡΠΈΠ·ΠΎΠ½ΡΠ°Π»ΡΠ½ΠΎ ΡΠΎ ΡΡΠΎΡΠΎΠ½Ρ Π΄ΠΎΠΌΠ°. ΠΡΠ»ΠΈ Π΄ΠΎΠΌ ΠΏΠ»Π°Π½ΠΈΡΡΠ΅ΡΡΡ ΠΊΠ°ΠΊ Π»Π΅ΡΠ½ΠΈΠΉ ΠΈΠ»ΠΈ Π³ΠΎΡΡΠ΅Π²ΠΎΠΉ: ΡΠΎΠ»ΡΠΈΠ½Ρ ΡΡΠ΅Π½Ρ ΠΈ ΡΡΠ΅ΠΏΠ»ΠΈΡΠ΅Π»Ρ Π² 150ΠΌΠΌ ΠΌΠ΅ΠΆΠ΄Ρ ΡΡΠΎΠ΅ΠΊ Π²ΠΏΠΎΠ»Π½Π΅ Π΄ΠΎΡΡΠ°ΡΠΎΡΠ½ΠΎ.
ΠΠ΅ΠΎΠ±Ρ ΠΎΠ΄ΠΈΠΌΠΎΡΡΡ ΡΡΠ΅ΠΏΠ»Π΅Π½ΠΈΡ
Π£ΡΠ΅ΠΏΠ»Π΅Π½ΠΈΠ΅ Π΄ΠΎΠΌΠ° Π² ΡΠ°Π·Ρ ΠΏΠΎΠ²ΡΡΠ°Π΅Ρ Π΅Π³ΠΎ ΡΠ½Π΅ΡΠ³ΠΎΡΠ±Π΅ΡΠ΅Π³Π°ΡΡΠΈΠ΅ ΠΏΠΎΠΊΠ°Π·Π°ΡΠ΅Π»ΠΈ. ΠΠ°ΠΏΡΠΈΠΌΠ΅Ρ, ΡΡΠ΅ΠΏΠ»ΠΈΠ² Π΄ΠΎΠΌ 150ΠΌΠΌ ΠΌΠ΅ΠΆΡ ΡΡΠΎΠ΅ΠΊ, ΠΏΠ»ΡΡ ΠΏΠΎ 50ΠΌΠΌ Π³ΠΎΡΠΈΠ·ΠΎΠ½ΡΠ°Π»ΡΠ½ΠΎ ΡΠΎ ΡΡΠΎΡΠΎΠ½Ρ ΡΠ»ΠΈΡΡ ΠΈ Π΄ΠΎΠΌΠ°, Π² Π½Π΅ΠΌ ΡΠΆΠ΅ ΠΌΠΎΠΆΠ½ΠΎ Π±ΡΠ΄Π΅Ρ ΠΏΡΠΎΠΆΠΈΠ²Π°ΡΡ ΠΊΡΡΠ³Π»ΡΠΉ Π³ΠΎΠ΄, ΠΈ ΡΠ°Π·ΡΠΌΠ½ΠΎ ΠΈΡΠΏΠΎΠ»ΡΠ·ΠΎΠ²Π°ΡΡ Π΄ΡΡΠ³ΠΈΠ΅ ΠΈΡΡΠΎΡΠ½ΠΈΠΊΠΈ ΡΠ½Π΅ΡΠ³ΠΈΠΈ, Π² ΡΠΎΠΌ ΡΠΈΡΠ»Π΅ ΠΈ ΡΠ»Π΅ΠΊΡΡΠΈΡΠ΅ΡΡΠ²ΠΎ.
ΠΡ Π² ΡΠ²ΠΎΠΈΡ ΠΏΡΠΎΠ΅ΠΊΡΠ°Ρ ΠΏΡΠ΅Π΄Π»Π°Π³Π°Π΅ΠΌ ΡΠ°Π·Π»ΠΈΡΠ½ΡΠ΅ Π²Π°ΡΠΈΠ°Π½ΡΡ ΡΡΠ΅ΠΏΠ»Π΅Π½ΠΈΡ, Π² Π·Π°Π²ΠΈΡΠΈΠΌΠΎΡΡΠΈ ΠΎΡ Π·Π°ΡΠ²Π»Π΅Π½Π½ΡΡ ΡΡΠ΅Π±ΠΎΠ²Π°Π½ΠΈΠΉ ΠΊ ΡΠ½Π΅ΡΠ³ΠΎΡΠ±Π΅ΡΠ΅ΠΆΠ΅Π½ΠΈΡ, ΡΡΠΎ ΠΌΠΎΠΆΠ΅Ρ Π±ΡΡΡ ΡΡΠ΅ΠΏΠ»Π΅Π½ΠΈΠ΅, ΡΡΠ½Π΄Π°ΠΌΠ΅Π½ΡΠ°, ΠΎΡΠΌΠΎΡΡΠΊΠΈ, Π΄ΠΎΠΏΠΎΠ»Π½
skalice.ru
ΠΠΎΠΌ ΠΎΠ΄Π½ΠΎΡΡΠ°ΠΆΠ½ΡΠΉ 9 Ρ 12 ΠΌ
Π₯Π°ΡΠ°ΠΊΡΠ΅ΡΠΈΡΡΠΈΠΊΠΈ:
| 1) Π Π°Π·ΠΌΠ΅Ρ: | Β 9 Ρ 12 ΠΌΒ Β | Β Β ![]() Β Β Β |
| 2) ΠΡΡΠΎΡΠ° ΠΏΠ°Π½Π΅Π»Π΅ΠΉ:Β | Β 2500 | |
| 3) ΠΠΎΠ»ΠΈΡΠ΅ΡΡΠ²ΠΎ ΠΏΠΎΠ»Π½ΡΡ ΡΡΠ°ΠΆΠ΅ΠΉ: | 1 | |
| 4) ΠΠ²Π΅ΡΠ½ΡΠ΅ ΠΏΡΠΎΡΠΌΡ: | 8 | |
| 5) ΠΠΊΠΎΠ½Π½ΡΠ΅ ΠΏΡΠΎΡΠΌΡ: | 8 |
Π‘ΠΌΠ΅ΡΠ° Π½Π° Π΄ΠΎΠΌ
|
1) Π€ΡΠ½Π΄Π°ΠΌΠ΅Π½Ρ |
ΠΠ΅Π½ΡΠΎΡΠ½ΡΠΉ ΠΏΠΎ Π³ΡΡΠ½ΡΡ (ΠΌΠΎΠ½ΠΎΠ»ΠΈΡΠ½Π°Ρ ΠΏΠ»ΠΈΡΠ°) |
|||||
|
ΠΠ°ΡΠ΅ΡΠΈΠ°Π»Ρ |
232 240,00 |
|||||
|
Π Π°Π±ΠΎΡΡ |
77 526,00 |
|||||
|
ΠΡΠΎΠ³ΠΎ ΠΏΠΎ 1 ΡΠ°Π·Π΄Π΅Π»Ρ |
309 766,00 |
|||||
| Β | ||||||
|
2) ΠΠΎΠ½ΡΡΡΡΠΊΡΠΈΠ² |
ΠΠ°Π½Π΅Π»ΠΈ |
|||||
|
ΠΠ°ΡΠ΅ΡΠΈΠ°Π»Ρ |
426 920,15 |
|||||
|
Π Π°Π±ΠΎΡΡ |
101 175,00 |
|||||
|
ΠΡΠΎΠ³ΠΎ ΠΏΠΎ 2 ΡΠ°Π·Π΄Π΅Π»Ρ |
528 095,15 |
|||||
| Β | ||||||
|
3) ΠΠ΅ΡΠ΅ΠΊΡΡΡΠΈΡ |
ΠΠΎΠ» OSB |
|||||
|
ΠΠ°ΡΠ΅ΡΠΈΠ°Π»Ρ |
116 172,00 |
|||||
|
Π Π°Π±ΠΎΡΡ |
42 601,50 |
|||||
|
ΠΡΠΎΠ³ΠΎ ΠΏΠΎ 3 ΡΠ°Π·Π΄Π΅Π»Ρ |
158 773,50 |
|||||
| Β | ||||||
|
4) ΠΠ½ΡΡΡ. ΠΡΠ΄Π΅Π»ΠΊΠ° |
ΠΠΠ |
|||||
|
ΠΠ°ΡΠ΅ΡΠΈΠ°Π»Ρ |
114 839,20 |
|||||
|
Π Π°Π±ΠΎΡΡ |
132 030,00 |
|||||
|
ΠΡΠΎΠ³ΠΎ ΠΏΠΎ 4 ΡΠ°Π·Π΄Π΅Π»Ρ |
246 869,20 |
|||||
| Β | ||||||
|
5) ΠΠ°ΡΡΠΆΠ½Π°Ρ ΠΎΡΠ΄Π΅Π»ΠΊΠ° |
ΠΠΈΡΠΏΠΈΡ |
|||||
|
ΠΠ°ΡΠ΅ΡΠΈΠ°Π»Ρ |
84 288,96 |
|||||
|
Π Π°Π±ΠΎΡΡ |
75 978,00 |
|||||
|
ΠΡΠΎΠ³ΠΎ ΠΏΠΎ 5 ΡΠ°Π·Π΄Π΅Π»Ρ |
160 266,96 |
|||||
| Β | ||||||
|
6) Π‘ΡΡΠΎΠΏΠΈΠ»ΡΠ½ΠΎ-ΠΊΡΠΎΠ²Π΅Π»ΡΠ½Π°Ρ ΡΠΈΡΡΠ΅ΠΌΠ° Π±Π΅Π· ΡΡΠ΅ΠΏΠ»Π΅Π½ΠΈΡ |
ΠΠ΅ΡΠ°Π»Π»ΠΎΡΠ΅ΡΠ΅ΠΏΠΈΡΠ° |
|||||
|
ΠΠ°ΡΠ΅ΡΠΈΠ°Π»Ρ |
139 865,60 |
|||||
|
Π Π°Π±ΠΎΡΡ |
188 389,85 |
|||||
|
ΠΡΠΎΠ³ΠΎ ΠΏΠΎ 6 ΡΠ°Π·Π΄Π΅Π»Ρ |
328 255,45 |
|||||
| Β | Β | Β | Β | Β | Β | Β |
| Β | ||||||
|
ΠΠ’ΠΠΠ |
1 732 026,26 |
|||||
ΠΠ»Π°Π½ΠΈΡΠΎΠ²ΠΊΠ° Π΄ΠΎΠΌΠ°
Β 
Π€ΠΎΡΠΎΠ³Π°Π»Π΅ΡΠ΅Ρ — Π²Π½Π΅ΡΠ½ΠΈΠΉ Π²ΠΈΠ΄, Π²ΠΈΠ΄ Π²Π½ΡΡΡΠΈ, ΡΡΡΠΎΠΈΡΠ΅Π»ΡΡΡΠ²ΠΎ Π΄ΠΎΠΌΠ°
xn--d1ailbhbagkjl.xn--p1ai
ΠΠΎΠΌ Β«ΠΡΠΈΠΌΠΎΠ²ΡΠΊΠΈΠΉΒ» 9Ρ 12 (108ΠΌΒ²)
ΠΠ°ΡΠΈΠ°Π½ΡΡ ΠΊΠΎΠΌΠΏΠ»Π΅ΠΊΡΠ°ΡΠΈΠΈ:
ΠΠΎΠΌΠΎΠΊΠΎΠΌΠΏΠ»Π΅ΠΊΡ ΠΡ ΠΏΡΠΎΡΡΠΎ ΠΏΡΠΈΠΎΠ±ΡΠ΅ΡΠ°Π΅ΡΠ΅ ΠΊΠΎΠΌΠΏΠ»Π΅ΠΊΡ Π΄ΠΎΠΌΠ°. ΠΠΎΠ½ΡΠ°ΠΆ ΠΈ ΠΏΠΎΠ΄ΠΊΠ»ΡΡΠ΅Π½ΠΈΠ΅ ΡΠΈΡΡΠ΅ΠΌ ΠΏΡΠΎΠΈΠ·Π²ΠΎΠ΄ΠΈΡΡΡ ΡΠ²ΠΎΠΈΠΌΠΈ ΡΠΈΠ»Π°ΠΌΠΈ. ΠΠΎΠΌΠΎΠΊΠΎΠΌΠΏΠ»Π΅ΠΊΡ+ΠΌΠΎΠ½ΡΠ°ΠΆ Β«ΠΏΠΎΠ΄ ΠΊΠ»ΡΡΒ» ΠΠΎΠΌΠΏΠ»Π΅ΠΊΡ + ΠΏΠΎΠ»Π½Π°Ρ ΡΡΡΠ°Π½ΠΎΠ²ΠΊΠ° Π΄ΠΎΠΌΠ° ΠΏΠΎΠ΄ ΠΊΠ»ΡΡ.
ΠΠ°ΡΠ΅ΡΠΈΠ°Π» ΡΠ°ΡΠ°Π΄Π°:
ΠΠ΅ΡΠ°Π»Π»ΠΎΡΠ°ΠΉΠ΄ΠΈΠ½Π³ (RAL) ΠΠ΅ΠΊΠΎΡΠ°ΡΠΈΠ²Π½ΡΠΉ ΡΠ»Π΅ΠΌΠ΅Π½Ρ, ΠΈΠΌΠΈΡΠΈΡΡΡΡΠΈΠΉ Π΄ΠΎΡΠ°ΡΡΡ ΠΎΠ±ΡΠΈΠ²ΠΊΡ ΡΠ°ΡΠ°Π΄ΠΎΠ².
Π¦Π΅Π½Π° Π·Π° ΠΌ2: ΠΎΡ 13 572 Ρ. Β Β ΠΠ±ΡΠ°Ρ ΡΡΠΎΠΈΠΌΠΎΡΡΡ: ΠΎΡ 1028484 Ρ.
Π¦Π΅Π½Π° Π·Π° ΠΌ2: ΠΎΡ Ρ. Β Β ΠΠ±ΡΠ°Ρ ΡΡΠΎΠΈΠΌΠΎΡΡΡ: ΠΎΡ Ρ.
Π¦Π΅Π½Π° Π·Π° ΠΌ2: ΠΎΡ Ρ. Β Β ΠΠ±ΡΠ°Ρ ΡΡΠΎΠΈΠΌΠΎΡΡΡ: ΠΎΡ Ρ.
Π¦Π΅Π½Π° Π·Π° ΠΌ2: ΠΎΡ Ρ. Β Β ΠΠ±ΡΠ°Ρ ΡΡΠΎΠΈΠΌΠΎΡΡΡ: ΠΎΡ Ρ.
Π¦Π΅Π½Π° Π·Π° ΠΌ2: ΠΎΡ Ρ. Β Β ΠΠ±ΡΠ°Ρ ΡΡΠΎΠΈΠΌΠΎΡΡΡ: ΠΎΡ Ρ.
Π¦Π΅Π½Π° Π·Π° ΠΌ2: ΠΎΡ Ρ. Β Β ΠΠ±ΡΠ°Ρ ΡΡΠΎΠΈΠΌΠΎΡΡΡ: ΠΎΡ Ρ.
Π¦Π΅Π½Π° Π·Π° ΠΌ2: ΠΎΡ 25000 Ρ. Β Β ΠΠ±ΡΠ°Ρ ΡΡΠΎΠΈΠΌΠΎΡΡΡ: ΠΎΡ 2700000 Ρ.
Π¦Π΅Π½Π° Π·Π° ΠΌ2: ΠΎΡ Ρ. Β Β ΠΠ±ΡΠ°Ρ ΡΡΠΎΠΈΠΌΠΎΡΡΡ: ΠΎΡ Ρ.
Π¦Π΅Π½Π° Π·Π° ΠΌ2: ΠΎΡ Ρ. Β Β ΠΠ±ΡΠ°Ρ ΡΡΠΎΠΈΠΌΠΎΡΡΡ: ΠΎΡ Ρ.
insi-dom.ru
ΠΡΠΎΠ΅ΠΊΡ ΠΊΠ°ΡΠΊΠ°ΡΠ½ΠΎΠ³ΠΎ Π΄ΠΎΠΌΠ° ΠΠ-45 ΡΡΠΏΠ΅Ρ-ΠΊΠΎΠΌΡΠΎΡΡ / ΠΊΠ°ΡΠΊΠ°ΡΠ½ΡΠΉ Π΄ΠΎΠΌ ΡΠ²ΠΎΠΈΠΌΠΈ ΡΡΠΊΠ°ΠΌΠΈ
Π¦Π΅Π½Π° Π΄ΠΎΠΌΠ° Ρ ΡΡΠ΅ΠΏΠ»Π΅Π½ΠΈΠ΅ΠΌ 200ΠΌΠΌ ΠΌΠΈΠ½. Π²Π°ΡΡ ΠΈ ΠΎΡΠ΄Π΅Π»ΠΊΠΎΠΉ 698Ρ.Ρ.Π¦Π΅Π½Π° Π΄ΠΎΠΌΠ° Ρ ΡΡΠ΅ΠΏΠ»Π΅Π½ΠΈΠ΅ΠΌ 200ΠΌΠΌ ΠΌΠΈΠ½. Π²Π°ΡΡ, ΠΎΡΠ΄Π΅Π»ΠΊΠΎΠΉ ΠΈ ΡΡΠ½Π΄Π°ΠΌΠ΅Π½ΡΠΎΠΌ 808Ρ.Ρ.
Π¦Π΅Π½Π° Π΄ΠΎΠΌΠ° Ρ ΡΡΠ΅ΠΏΠ»Π΅Π½ΠΈΠ΅ΠΌ 200ΠΌΠΌ ΠΌΠΈΠ½. Π²Π°ΡΡ, ΠΎΡΠ΄Π΅Π»ΠΊΠΎΠΉ, ΡΡΠ½Π΄Π°ΠΌΠ΅Π½ΡΠΎΠΌ, ΡΠ»Π΅ΠΊΡΡΠΈΠΊΠΎΠΉ, ΡΠ°Π½ΡΠ΅Ρ Π½ΠΈΠΊΠΎΠΉ ΠΈ Π²ΠΎΠ΄ΠΎΡΠ½Π°Π±ΠΆΠ΅Π½ΠΈΠ΅ΠΌ 869Ρ.Ρ.
Π‘ΡΠ°Π½Π΄Π°ΡΡΠ½ΠΎΠ΅ ΡΡΠ΅ΠΏΠ»Π΅Π½ΠΈΠ΅ 200ΠΌΠΌ Π±Π°Π·Π°Π»ΡΡΠΎΠ²ΠΎΠΉ ΠΌΠΈΠ½. Π²Π°ΡΡ, ΡΠ΅Π½Π° 250ΠΌΠΌ +20Ρ.Ρ. ΠΊ ΡΠ΅Π½Π΅ Π²ΡΡΠ΅.
Π¦Π΅Π½Π° ΠΏΡΠΎΠ΅ΠΊΡΠ° Π΄Π»Ρ ΡΠ°ΠΌΠΎΡΡΠΎΡΡΠ΅Π»ΡΠ½ΠΎΠΉ ΡΠ±ΠΎΡΠΊΠΈ 14Ρ.Ρ. ΠΠ°ΠΊΠ°Π·Π°ΡΡ ΠΏΡΠΎΠ΅ΠΊΡ. Π‘ΠΊΠ°ΡΠ°ΡΡ ΡΠΌΠ΅ΡΡ ΠΈ ΡΠΈΡΠ°ΡΡ ΠΏΠΎΠ΄ΡΠΎΠ±Π½Π΅Π΅…
ΠΡΠ»ΠΈ ΠΏΠΎ ΠΊΠ°ΠΊΠΈΠΌ-ΡΠΎ ΠΏΡΠΈΡΠΈΠ½Π°ΠΌ, Π²Ρ Π½Π΅ Ρ ΠΎΡΠΈΡΠ΅ ΠΈΠ»ΠΈ Π½Π΅ ΠΌΠΎΠΆΠ΅ΡΠ΅ ΡΠ°ΠΌΠΈ ΠΏΠΎΡΡΡΠΎΠΈΡΡ Π΄ΠΎΠΌ ΠΏΠΎ Π½Π°ΡΠ΅ΠΌΡ ΠΏΡΠΎΠ΅ΠΊΡΡ, ΡΠΎ ΠΌΡ ΠΌΠΎΠΆΠ΅ΠΌ ΡΠ΄Π΅Π»Π°ΡΡ Π²ΡΡ ΡΡΠΎ Π·Π° Π²Π°Ρ, ΠΏΡΠΈΡΡΠΌ Π½Π΅Π΄ΠΎΡΠΎΠ³ΠΎ ΠΈ Π² ΠΊΡΠ°ΡΡΠ°ΠΉΡΠΈΠ΅ ΡΡΠΎΠΊΠΈ, ΠΏΠΎΠ΄ΡΠΎΠ±Π½Π΅Π΅ ΠΎ ΡΠ΅Π½Π°Ρ ΠΈ ΠΏΡΠ΅ΠΈΠΌΡΡΠ΅ΡΡΠ²Π°Ρ ΡΡΡΠΎΠΈΡΠ΅Π»ΡΡΡΠ²Π° ΠΏΠΎΠ΄ ΠΊΠ»ΡΡ, ΡΠΈΡΠ°ΠΉΡΠ΅ Π² ΡΠ°Π·Π΄Π΅Π»Π΅ «Π¦Π΅Π½Π° ΠΏΠΎΠ΄ ΠΊΠ»ΡΡ».
ΠΠΎΠΌΡΠΎΡΡΠ½ΡΠΉ ΠΊΠ°ΡΠΊΠ°ΡΠ½ΡΠΉ Π΄ΠΎΠΌ Π² ΠΎΠ΄ΠΈΠ½ ΡΡΠ°ΠΆ.
Π‘ΠΊΠ°ΡΠ°ΡΡ, ΠΡΠΎΠ΅ΠΊΡ ΠΠ-45 (ΡΡΠΏΠ΅Ρ-ΠΊΠΎΠΌΡΠΎΡΡ) 0.41 ΠΠ± (pdf) >>> ΠΏΠΎΠ΄ΡΠΎΠ±Π½ΠΎΠ΅ ΠΎΠΏΠΈΡΠ°Π½ΠΈΠ΅.
ΠΡΠΎΠ΅ΠΊΡ ΠΊΠ°ΡΠΊΠ°ΡΠ½ΠΎΠ³ΠΎ Π΄ΠΎΠΌΠ° 9 Ρ 12ΠΌ — Π½Π΅Π±ΠΎΠ»ΡΡΠΎΠΉ, Π½ΠΎ ΠΎΡΠ΅Π½Ρ ΠΊΠΎΠΌΡΠΎΡΡΠ½ΡΠΉ ΠΈ ΡΠ΄ΠΎΠ±Π½ΡΠΉ Π΄ΠΎΠΌ Π΄Π»Ρ ΠΏΠΎΡΡΠΎΡΠ½Π½ΠΎΠ³ΠΎ ΠΏΡΠΎΠΆΠΈΠ²Π°Π½ΠΈΡ. Π Π΄ΠΎΠΌΠ΅ Π΅ΡΡΡ ΠΊΠΎΡΠ΅Π»ΡΠ½Π°Ρ ΠΏΠΎ Π½ΠΎΡΠΌΠ°ΠΌ ΠΏΠΎΠ΄ Π³Π°Π·ΠΎΠ²ΡΠΉ ΠΊΠΎΡΡΠ» ΠΈ Π±ΠΎΠ»ΡΡΠΎΠΉ Ρ/Ρ. Π’Π°ΠΊΠΎΠΉ Π΄ΠΎΠΌ Π²Ρ ΠΌΠΎΠΆΠ΅ΡΠ΅ ΠΏΠΎΡΡΡΠΎΠΈΡΡ ΡΠ°ΠΌΠΈ, ΡΠ²ΠΎΠΈΠΌΠΈ ΡΡΠΊΠ°ΠΌΠΈ ΠΏΠΎ Π½Π°ΡΠΈΠΌ ΡΠ΅ΡΡΠ΅ΠΆΠ°ΠΌ ΠΈΠ»ΠΈ Π½Π°ΡΠΈΠΌΠΈ ΡΠΈΠ»Π°ΠΌΠΈ.
ΠΡΠ΄Π΅Π»ΠΊΠ° Π΄ΠΎΠΌΠ° ΠΌΠΎΠΆΠ΅Ρ Π±ΡΡΡ ΠΈΠ·ΠΌΠ΅Π½Π΅Π½Π° ΠΏΠΎΠ΄ Π²Π°ΡΠΈ ΠΏΡΠ΅Π΄ΠΏΠΎΡΡΠ΅Π½ΠΈΡ, ΠΏΠΎ ΠΏΡΠΎΠ΅ΠΊΡΡ: Π½Π°ΡΡΠΆΠ½Π°Ρ ΡΠΈΡΡΠΎΠ²Π°Ρ ΠSB ΠΈ Π²Π½ΡΡΡΠ΅Π½Π½ΡΡ ΡΠΈΡΡΠΎΠ²Π°Ρ ΠΎΡΠ΄Π΅Π»ΠΊΠ° ΠΠΠ Π²Ρ ΠΎΠ΄ΡΡ Π² ΡΡΠΎΠΈΠΌΠΎΡΡΡ ΠΏΡΠΎΠ΅ΠΊΡΠ°. Π’Π°ΠΊΠΆΠ΅ Π² ΡΠ΅Π½Ρ ΠΏΡΠΎΠ΅ΠΊΡΠ° Π²ΠΊΠ»ΡΡΡΠ½ ΡΡΠ½Π΄Π°ΠΌΠ΅Π½Ρ, ΡΡΠ΅ΠΏΠ»Π΅Π½ΠΈΠ΅ 200ΠΌΠΌ ΠΌΠΈΠ½. Π²Π°ΡΡ (Π²ΠΎΠ·ΠΌΠΎΠΆΠ½ΠΎ Π΄ΠΎ 250ΠΌΠΌ), ΡΠ»Π΅ΠΊΡΡΠΎΠΏΡΠΎΠ²ΠΎΠ΄ΠΊΠ° ΠΈ ΡΡΡΠ°Π½ΠΎΠ²ΠΎΡΠ½ΡΠ΅ ΠΈΠ·Π΄Π΅Π»ΠΈΡ, Π°Π²ΡΠΎΠΌΠ°ΡΠΈΠΊΠ°, Π²ΠΎΠ΄ΠΎΡΠ½Π°Π±ΠΆΠ΅Π½ΠΈΠ΅ ΠΈ ΠΊΠ°Π½Π°Π»ΠΈΠ·ΠΎΠ²Π°Π½ΠΈΠ΅ Ρ ΡΡΡΠ°Π½ΠΎΠ²Π»Π΅Π½Π½ΠΎΠΉ ΡΠ°Π½ΡΠ΅Ρ Π½ΠΈΠΊΠΎΠΉ.
ΠΠΎΠΌ ΠΎΠ΄Π½ΠΎΡΡΠ°ΠΆΠ½ΡΠΉ 108ΠΌ2 : ΠΡΡΠΎΡΠ° ΠΏΠΎΡΠΎΠ»ΠΊΠΎΠ² 2,8ΠΌ, Π‘ΠΏΠ°Π»ΡΠ½Ρ 13,2ΠΌ2, Π‘ΠΏΠ°Π»ΡΠ½Ρ 13,2ΠΌ2, ΡΠΏΠ°Π»ΡΠ½Ρ Π΄Π΅ΡΡΠΊΠ°Ρ 12,3ΠΌ2, ΠΡΡ Π½Ρ 15,3ΠΌ2 ΠΠΎΡΡΠΈΠ½Π°Ρ 15,3ΠΌ2, ΠΠΎΡΠΈΠ΄ΠΎΡ 7ΠΌ2, ΠΠΎΡΠ΅Π»ΡΠ½Π°Ρ 6,3ΠΌ2, Ρ/Ρ 6,3ΠΌ2, ΠΡΠΈΡ ΠΎΠΆΠ°Ρ 5,3ΠΌ2, ΠΡΠΈΡ ΠΎΠΆΠ°Ρ 2,5ΠΌ2
ΠΠΎΡ ΠΎΠΆΠΈΠ΅ ΠΏΡΠΎΠ΅ΠΊΡΡ: ΠΠ-451 ΠΈΠ»ΠΈ ΠΠ-47 ΠΈ ΠΠ-3 ΠΈ ΠΠ-35 ΠΈΠ»ΠΈ ΠΠ-4 ΠΈ ΠΠ-43 ΠΈ ΠΠ-42 ΠΈ ΠΠ-68ΠΠ»Ρ ΡΠ²Π΅Π»ΠΈΡΠ΅Π½ΠΈΡ ΠΊΠ°ΡΡΠΈΠ½ΠΊΠΈ Π½Π°ΠΆΠΌΠΈΡΠ΅ Π½Π° Π½Π΅Ρ.
1. ΠΠ°ΡΠΈΠ°Π½Ρ ΡΡΠ°Π½Π΄Π°ΡΡΠ½ΡΠΉ. 
ΠΠ»Π°Π½ ΡΡΠ°ΠΆΠ°, ΠΠΈΠ΄ Π² 3D.
ΠΠ°ΡΠΈΠ°Π½ΡΡ Π²Π½Π΅ΡΠ½Π΅Π³ΠΎ Π²ΠΈΠ΄Π°:
Π²ΠΎΠ·ΠΌΠΎΠΆΠ½Π° Π»ΡΠ±Π°Ρ ΠΎΡΠ΄Π΅Π»ΠΊΠ°, ΡΠΌ. Π²Π°ΡΠΈΠ°Π½ΡΡ, ΠΏΡΠΎΠ΅ΠΊΡ ΠΠ-33, ΠΠ-34, ΠΠ-42 ΠΈ ΡΠ΄.

ΠΡΡΠΎΡΠ½ΡΠ΅ ΠΎΡΠΌΠ΅ΡΠΊΠΈ:

Π€ΡΠ½Π΄Π°ΠΌΠ΅Π½Ρ Π΄Π»Ρ ΡΡΠΎΠ³ΠΎ Π΄ΠΎΠΌΠ°:
ΠΏΠΎ ΠΏΡΠΎΠ΅ΠΊΡΡ ΠΠΠΠ€ 50Π² Ρ
40Ρ.
Π²ΠΎΠ·ΠΌΠΎΠΆΠ½Ρ ΡΠ²Π°ΠΈ (Π²ΠΈΠ½ΡΠΎΠ²ΡΠ΅, Π±ΡΡΠΎΠ½Π°Π±ΠΈΠ²Π½ΡΠ΅ ΠΈ Ρ.Π΄.) ΡΠ²Π°ΠΈ ΠΌΠΈΠ½. 32ΡΡ, ΠΆΠ΅Π»Π°ΡΠ΅Π»ΡΠ½ΠΎ 38ΡΡ. 
ΠΠ»ΠΈΠΊΠ½ΡΠ² ΠΏΠΎ ΡΠΎΡΠΎΠ³ΡΠ°ΡΠΈΡΠΌ Π½ΠΈΠΆΠ΅, Π²Ρ ΡΠΌΠΎΠΆΠ΅ΡΠ΅ ΠΏΠΎΡΠΌΠΎΡΡΠ΅ΡΡ ΡΠΎΡΠΎΠ³Π°Π»Π΅ΡΠ΅ΠΈ Π΄ΠΎΠΌΠΎΠ², ΠΏΠΎΡΡΡΠΎΠ΅Π½Π½ΡΡ ΠΏΠΎ Π΄Π°Π½Π½ΠΎΠΌΡ ΠΏΡΠΎΠ΅ΠΊΡΡ Π½Π°ΡΠΈΠΌΠΈ ΡΡΡΠΎΠΈΡΠ΅Π»ΡΠΌΠΈ ΠΈΠ»ΠΈ ΡΠ°ΠΌΠΎΡΡΠΎΡΡΠ΅Π»ΡΠ½ΠΎ Π·Π°ΠΊΠ°Π·ΡΠΈΠΊΠ°ΠΌΠΈ (ΡΠΌ. ΠΏΡΠΈΠΌ. Π² Π³Π°Π»Π΅ΡΠ΅ΡΡ ):

Π’Π°ΠΊΠΆΠ΅, ΡΠΌΠΎΡΡΠΈΡΠ΅ Π²ΠΈΠ΄Π΅ΠΎΡΠΊΡΠΊΡΡΡΠΈΠΈ ΠΏΠΎ ΠΏΠΎΡΡΡΠΎΠ΅Π½Π½ΡΠΌ Π΄ΠΎΠΌΠ°ΠΌ Karkasdom.info.
Π‘ΡΠ΅Π΄Π½Π΅ΡΡΠ½ΠΎΡΠ½Π°Ρ ΡΡΠΎΠΈΠΌΠΎΡΡΡ ΠΏΠΎΠ΄ΠΎΠ±Π½ΠΎΠ³ΠΎ Π΄ΠΎΠΌΠ°, Π²ΡΡΠ΅ Π½Π°ΡΠ΅ΠΉ Π² 4 ΡΠ°Π·Π°.
ΠΠ°ΠΊΠ°Π· ΠΏΡΠΎΠ΅ΠΊΡΠ°
ΠΠ»Ρ ΡΠΎΠ³ΠΎ, ΡΡΠΎΠ±Ρ ΠΎΡΠΎΡΠΌΠΈΡΡ Π·Π°ΠΊΠ°Π·, Π²ΡΠ±Π΅ΡΠΈΡΠ΅ ΡΠΈΠΏ ΡΡΠ½Π΄Π°ΠΌΠ΅Π½ΡΠ° ΠΈ Π΄ΡΡΠ³ΠΈΠ΅ Π²ΠΎΠ·ΠΌΠΎΠΆΠ½ΡΠ΅ ΠΎΠΏΡΠΈΠΈ, Π·Π°ΡΠ΅ΠΌ Π½Π°ΠΆΠΌΠΈΡΠ΅ ΠΊΠ½ΠΎΠΏΠΊΡ «ΠΠ°ΠΊΠ°Π·Π°ΡΡ ΠΏΡΠΎΠ΅ΠΊΡ». Π ΠΎΡΠΊΡΡΠ²ΡΠ΅ΠΉΡΡ ΡΠΎΡΠΌΠ΅ ΡΠΊΠ°ΠΆΠΈΡΠ΅ ΠΏΡΠ°Π²ΠΈΠ»ΡΠ½ΠΎ ΠΠ°Ρ email ΠΈ Π΄ΡΡΠ³ΠΈΠ΅ Π½Π΅ΠΎΠ±Ρ ΠΎΠ΄ΠΈΠΌΡΠ΅ Π΄Π°Π½Π½ΡΠ΅. ΠΡΠ»ΠΈ Π·Π°ΠΊΠ°Π· ΠΎΡΠΎΡΠΌΠ»Π΅Π½ Π²Π΅ΡΠ½ΠΎ, ΡΠΎ ΡΡΠ°Π·Ρ ΠΏΠΎΡΠ»Π΅ ΠΎΠ±ΡΠ°Π±ΠΎΡΠΊΠΈ Π·Π°ΠΊΠ°Π·Π° Π½Π°ΡΠΈΠΌ ΡΠΏΠ΅ΡΠΈΠ°Π»ΠΈΡΡΠΎΠΌ, ΠΊ Π²Π°ΠΌ Π½Π° ΠΏΠΎΡΡΡ ΠΏΠΎΡΡΡΠΏΠΈΡ ΠΏΠΎΠ΄ΡΠ²Π΅ΡΠΆΠ΄Π΅Π½ΠΈΠ΅ Π·Π°ΠΊΠ°Π·Π° Ρ ΡΡΠΎΡΠ½Π΅Π½ΠΈΠ΅ΠΌ Π΄Π΅ΡΠ°Π»Π΅ΠΉ ΠΈ Π²Π°ΡΠΈΠ°Π½ΡΠ°ΠΌΠΈ ΠΎΠΏΠ»Π°ΡΡ.
ΠΡΠΎΠ΅ΠΊΡ ΠΠ-45
ΠΡΠ±ΡΠ°ΡΡ Π²Π°ΡΠΈΠ°Π½Ρ ΡΡΠ½Π΄Π°ΠΌΠ΅Π½ΡΠ°:
ΠΠ΅Π½ΡΠ° (ΠΠΠΠ€)Π‘Π²Π°ΠΈ
Π¦Π΅Π½Π° ΠΏΡΠΎΠ΅ΠΊΡΠ° 14Ρ.Ρ.
(ΠΊΠΎΠΌΠΏΠ»Π΅ΠΊΡ ΡΠ°Π±ΠΎΡΠΈΡ
ΡΡ
Π΅ΠΌ ΠΈ ΡΠ·Π»ΠΎΠ²: ΠΊΠ°ΡΠΊΠ°ΡΠ½ΡΠΉ Π΄ΠΎΠΌ, ΡΡΠ½Π΄Π°ΠΌΠ΅Π½Ρ, ΠΈΠ½ΠΆΠ΅Π½Π΅ΡΠΈΡ ΡΠ»Π΅ΠΊΡΡΠΈΠΊΠ°, ΡΠΌΠ΅ΡΠ° ΠΈ Ρ.Π΄.)
ΠΠ°ΠΊΠ°Π·Π°ΡΡ ΠΏΡΠΎΠ΅ΠΊΡ
Π§Π°ΡΡΡΠ΅ Π²ΠΎΠΏΡΠΎΡΡ ΠΊΠ»ΠΈΠ΅Π½ΡΠΎΠ²:
Π§ΡΠΎ Π΄Π΅Π»Π°ΡΡ, Π΅ΡΠ»ΠΈ Π½Π°Π΄ΠΎ ΡΡΠΎ-ΡΠΎ ΠΏΠΎΠΌΠ΅Π½ΡΡΡ Π² ΠΏΠΎΠ½ΡΠ°Π²ΠΈΠ²ΡΠ΅ΠΌΡΡ ΠΏΡΠΎΠ΅ΠΊΡΠ΅?
ΠΠ΅Π·Π½Π°ΡΠΈΡΠ΅Π»ΡΠ½ΡΡ Π΄ΠΎΡΠ°Π±ΠΎΡΠΊΡ ΠΏΡΠΎΠ΅ΠΊΡΠ° ΠΏΠΎΠ΄ Π²Π°Ρ ΠΌΡ ΡΠ΄Π΅Π»Π°Π΅ΠΌ Π±Π΅ΡΠΏΠ»Π°ΡΠ½ΠΎ.
ΠΡΠ»ΠΈ ΠΌΠ½Π΅ Π½Π΅ ΠΏΠΎΠ΄Ρ ΠΎΠ΄ΠΈΡ Π½ΠΈ ΠΎΠ΄ΠΈΠ½ ΠΏΡΠΎΠ΅ΠΊΡ, ΡΡΠΎ Π΄Π΅Π»Π°ΡΡ?
ΠΡ ΠΌΠΎΠΆΠ΅ΠΌ ΡΠ΄Π΅Π»Π°ΡΡ ΠΈΠ½Π΄ΠΈΠ²ΠΈΠ΄ΡΠ°Π»ΡΠ½ΡΠΉ ΠΏΡΠΎΠ΅ΠΊΡ, Π½ΠΎ ΡΡΠΎ Π·Π°ΠΉΠΌΡΡ ΠΏΡΠΈΠΌΠ΅ΡΠ½ΠΎ ΠΌΠ΅ΡΡΡ ΠΈ Π±ΡΠ΄Π΅Ρ Π½Π΅ΡΠΊΠΎΠ»ΡΠΊΠΎ Π΄ΠΎΡΠΎΠΆΠ΅ ΡΡΠ°Π½Π΄Π°ΡΡΠ½ΠΎΠ³ΠΎ ΠΏΡΠΎΠ΅ΠΊΡΠ°.
ΠΠΎΠ·ΠΌΠΎΠΆΠ½ΠΎ, Π²Π½Π΅ΡΡΠΈ ΠΈΠ·ΠΌΠ΅Π½Π΅Π½ΠΈΡ Π² ΠΏΡΠ΅Π΄Π»ΠΎΠΆΠ΅Π½Π½ΡΡ ΠΊΠΎΠΌΠΏΠ»Π΅ΠΊΡΠ°ΡΠΈΡ ΠΈ ΡΠΌΠ΅ΡΡ?
ΠΠ°, ΠΊΠΎΠ½Π΅ΡΠ½ΠΎ, ΠΏΡΠΎΠ΅ΠΊΡ Π½Π΅ ΠΏΡΠΈΠ²ΡΠ·Π°Π½ ΠΆΡΡΡΠΊΠΎ ΠΊ ΡΠΊΠ°Π·Π°Π½Π½ΡΠΌ ΡΠ°ΠΌ ΠΌΠ°ΡΠΊΠ°ΠΌ ΠΌΠ°ΡΠ΅ΡΠΈΠ°Π»ΠΎΠ², ΠΏΠΎ ΡΠ²ΠΎΠ΅ΠΌΡ ΠΆΠ΅Π»Π°Π½ΠΈΡ, Π²Ρ ΠΌΠΎΠΆΠ΅ΡΠ΅ Π²ΡΠ±ΡΠ°ΡΡ Π±ΠΎΠ»Π΅Π΅ Π΄ΠΎΡΠΎΠ³ΠΈΠ΅ ΠΈΠ»ΠΈ Π±ΠΎΠ»Π΅Π΅ Π±ΡΠ΄ΠΆΠ΅ΡΠ½ΡΠ΅ ΠΌΠ°ΡΠ΅ΡΠΈΠ°Π»Ρ, Π³Π»Π°Π²Π½ΠΎΠ΅ ΡΠΎΡ ΡΠ°Π½ΠΈΡΡ ΠΊΠΎΠ½ΡΡΡΡΠΊΡΠΈΠ² ΠΈ ΡΠ΅Ρ Π½ΠΎΠ»ΠΎΠ³ΠΈΡ ΡΡΡΠΎΠΈΡΠ΅Π»ΡΡΡΠ²Π° ΠΏΠΎ ΡΠ°ΠΌΠΎΠΌΡ ΠΏΡΠΎΠ΅ΠΊΡΡ. Π ΡΠΌΠ΅ΡΠ΅ ΠΊ ΠΏΡΠΎΠ΅ΠΊΡΡ ΡΠΎΠ΄Π΅ΡΠΆΠ°ΡΡΡ ΠΏΠΎΡΡΠ½Π΅Π½ΠΈΡ ΠΏΠΎ Π²ΠΎΠ·ΠΌΠΎΠΆΠ½ΠΎΠΉ Π·Π°ΠΌΠ΅Π½Π΅ ΠΌΠ°ΡΠ΅ΡΠΈΠ°Π»ΠΎΠ².
ΠΠ°ΠΊΠΈΠ΅ Π²ΠΎΠ·ΠΌΠΎΠΆΠ½Ρ Π²Π°ΡΠΈΠ°Π½ΡΡ ΡΡΠ΅Π½ΠΎΠ²ΠΎΠ³ΠΎ ΠΌΠ°ΡΠ΅ΡΠΈΠ°Π»Π° ΠΈ ΡΡΠ΅ΠΏΠ»Π΅Π½ΠΈΡ Π² ΡΡΠΎΠΉ ΠΊΠΎΠΌΠΏΠ»Π΅ΠΊΡΠ°ΡΠΈΠΈ?
ΠΠΎΡΠΊΠ° ΠΎΠ±ΡΠ΅Π·Π½Π°Ρ: ΡΡΠ΅Π½Ρ ΠΈ ΡΠ°ΡΡΡ ΠΏΠ΅ΡΠ΅Π³ΠΎΡΠΎΠ΄ΠΎΠΊ 150Ρ 50ΠΌΠΌ, ΡΡΠ΅ΠΏΠ»Π΅Π½ΠΈΠ΅ ΠΌΠΈΠ½Π΅ΡΠ°Π»ΡΠ½Π°Ρ Π²Π°ΡΠ° Π±Π°Π·Π°Π»ΡΡΠΎΠ²ΡΡ ΠΏΠΎΡΠΎΠ΄ 150ΠΌΠΌ, ΠΏΠ»ΡΡ 50ΠΌΠΌ Π³ΠΎΡΠΈΠ·ΠΎΠ½ΡΠ°Π»ΡΠ½ΠΎ, ΠΌΠ°ΠΊΡ. 250ΠΌΠΌ.
ΠΠ°ΠΊΡΡ ΡΠΎΠ»ΡΠΈΠ½Ρ ΡΡΠ΅Π½ Π²ΡΠ±ΡΠ°ΡΡ?
ΠΠ»Ρ ΡΠΎΠ³ΠΎ ΡΡΠΎΠ±Ρ ΠΏΡΠ°Π²ΠΈΠ»ΡΠ½ΠΎ Π²ΡΠ±ΡΠ°ΡΡ ΡΠΎΠ»ΡΠΈΠ½Ρ ΡΡΠ΅Π½, Π½Π΅ΠΎΠ±Ρ ΠΎΠ΄ΠΈΠΌΠΎ ΠΎΠΏΡΠ΅Π΄Π΅Π»ΠΈΡΡΡΡ Ρ ΡΠ΅Π»Π΅Π²ΡΠΌ ΠΈΡΠΏΠΎΠ»ΡΠ·ΠΎΠ²Π°Π½ΠΈΠ΅ΠΌ Π΄ΠΎΠΌΠ° ΠΈ ΡΠ΅Π³ΠΈΠΎΠ½ΠΎΠΌ Π΅Π³ΠΎ ΡΡΡΠΎΠΈΡΠ΅Π»ΡΡΡΠ²Π°.
Π Π΄ΠΎΠΌΠ΅ Π΄Π»Ρ ΠΏΠΎΡΡΠΎΡΠ½Π½ΠΎΠ³ΠΎ ΠΏΡΠΎΠΆΠΈΠ²Π°Π½ΠΈΡ Ρ Π³Π°Π·ΠΎΠ²ΡΠΌ ΠΎΡΠΎΠΏΠ»Π΅Π½ΠΈΠ΅ΠΌ: ΡΠΎΠ»ΡΠΈΠ½Ρ ΡΡΠ΅Π½Ρ Π² 150ΠΌΠΌ Π±ΡΠ΄Π΅Ρ Π²ΠΏΠΎΠ»Π½Π΅ Π΄ΠΎΡΡΠ°ΡΠΎΡΠ½ΠΎ. ΠΠ»Ρ ΠΊΠΎΠΌΡΠΎΡΡΠ½ΠΎΠ³ΠΎ ΠΏΡΠΎΠΆΠΈΠ²Π°Π½ΠΈΡ ΠΈ Π·ΠΈΠΌΠΎΠΉ, ΠΈ Π»Π΅ΡΠΎΠΌ ΡΠ΅ΠΊΠΎΠΌΠ΅Π½Π΄ΡΠ΅ΠΌ ΡΡΠ΅ΠΏΠ»Π΅Π½ΠΈΠ΅ 150ΠΌΠΌ ΠΌΠ΅ΠΆΠ΄Ρ ΡΡΠΎΠ΅ΠΊ, ΠΏΠ»ΡΡ 50ΠΌΠΌ Π³ΠΎΡΠΈΠ·ΠΎΠ½ΡΠ°Π»ΡΠ½ΠΎ ΡΠΎ ΡΡΠΎΡΠΎΠ½Ρ Π΄ΠΎΠΌΠ°. ΠΡΠ»ΠΈ Π΄ΠΎΠΌ ΠΏΠ»Π°Π½ΠΈΡΡΠ΅ΡΡΡ ΠΊΠ°ΠΊ Π»Π΅ΡΠ½ΠΈΠΉ ΠΈΠ»ΠΈ Π³ΠΎΡΡΠ΅Π²ΠΎΠΉ: ΡΠΎΠ»ΡΠΈΠ½Ρ ΡΡΠ΅Π½Ρ ΠΈ ΡΡΠ΅ΠΏΠ»ΠΈΡΠ΅Π»Ρ Π² 150ΠΌΠΌ ΠΌΠ΅ΠΆΠ΄Ρ ΡΡΠΎΠ΅ΠΊ Π²ΠΏΠΎΠ»Π½Π΅ Π΄ΠΎΡΡΠ°ΡΠΎΡΠ½ΠΎ.
ΠΠ΅ΠΎΠ±Ρ ΠΎΠ΄ΠΈΠΌΠΎΡΡΡ ΡΡΠ΅ΠΏΠ»Π΅Π½ΠΈΡ
Π£ΡΠ΅ΠΏΠ»Π΅Π½ΠΈΠ΅ Π΄ΠΎΠΌΠ° Π² ΡΠ°Π·Ρ ΠΏΠΎΠ²ΡΡΠ°Π΅Ρ Π΅Π³ΠΎ ΡΠ½Π΅ΡΠ³ΠΎΡΠ±Π΅ΡΠ΅Π³Π°ΡΡΠΈΠ΅ ΠΏΠΎΠΊΠ°Π·Π°ΡΠ΅Π»ΠΈ. ΠΠ°ΠΏΡΠΈΠΌΠ΅Ρ, ΡΡΠ΅ΠΏΠ»ΠΈΠ² Π΄ΠΎΠΌ 150ΠΌΠΌ ΠΌΠ΅ΠΆΠ΄Ρ ΡΡΠΎΠ΅ΠΊ, ΠΏΠ»ΡΡ ΠΏΠΎ 50ΠΌΠΌ Π³ΠΎΡΠΈΠ·ΠΎΠ½ΡΠ°Π»ΡΠ½ΠΎ ΡΠΎ ΡΡΠΎΡΠΎΠ½Ρ ΡΠ»ΠΈΡΡ ΠΈ Π΄ΠΎΠΌΠ°, Π² Π½Π΅ΠΌ ΡΠΆΠ΅ ΠΌΠΎΠΆΠ½ΠΎ Π±ΡΠ΄Π΅Ρ ΠΏΡΠΎΠΆΠΈΠ²Π°ΡΡ ΠΊΡΡΠ³Π»ΡΠΉ Π³ΠΎΠ΄, ΠΈ ΡΠ°Π·ΡΠΌΠ½ΠΎ ΠΈΡΠΏΠΎΠ»ΡΠ·ΠΎΠ²Π°ΡΡ Π΄ΡΡΠ³ΠΈΠ΅ ΠΈΡΡΠΎΡΠ½ΠΈΠΊΠΈ ΡΠ½Π΅ΡΠ³ΠΈΠΈ, Π² ΡΠΎΠΌ ΡΠΈΡΠ»Π΅ ΠΈ ΡΠ»Π΅ΠΊΡΡΠΈΡΠ΅ΡΡΠ²ΠΎ.
ΠΡ Π² ΡΠ²ΠΎΠΈΡ ΠΏΡΠΎΠ΅ΠΊΡΠ°Ρ ΠΏΡΠ΅Π΄Π»Π°Π³Π°Π΅ΠΌ ΡΠ°Π·Π»ΠΈΡΠ½ΡΠ΅ Π²Π°ΡΠΈΠ°Π½ΡΡ ΡΡΠ΅ΠΏΠ»Π΅Π½ΠΈΡ, Π² Π·Π°Π²ΠΈΡΠΈΠΌΠΎΡΡΠΈ ΠΎΡ Π·Π°ΡΠ²Π»Π΅Π½Π½ΡΡ ΡΡΠ΅Π±ΠΎΠ²Π°Π½ΠΈΠΉ ΠΊ ΡΠ½Π΅ΡΠ³ΠΎΡΠ±Π΅ΡΠ΅ΠΆΠ΅Π½ΠΈΡ, ΡΡΠΎ ΠΌΠΎΠΆΠ΅Ρ Π±ΡΡΡ ΡΡΠ΅ΠΏΠ»Π΅Π½ΠΈΠ΅: ΡΡΠ½Π΄Π°ΠΌΠ΅Π½ΡΠ°, ΠΎΡΠΌΠΎΡΡΠΊΠΈ, Π΄ΠΎΠΏΠΎΠ»Π½ΠΈΡΠ΅Π»ΡΠ½ΠΎΠ΅ ΡΡΠ΅ΠΏΠ»Π΅Π½ΠΈΠ΅ Π΄ΠΎΠΌΠ° ΡΠ½Π°ΡΡΠΆΠΈ, ΠΊ ΡΡΡΠ΅ΡΡΠ²ΡΡΡΠΈΠΌ 150-200ΠΌΠΌ Π΅ΡΡ ΠΏΠ»ΡΡ 50-100ΠΌΠΌ.
ΠΠ°Π·Π°Π΄ Π² ΡΠ°Π·Π΄Π΅Π», ΠΡΠΎΠ΅ΠΊΡΡ ΠΊΠ°ΡΠΊΠ°ΡΠ½ΡΡ Π΄ΠΎΠΌΠΎΠ²
karkasdom.info
ΠΡΠΎΠ΅ΠΊΡ Π΄ΠΎΠΌΠ° 9 Π½Π° 12 ΠΌΠ΅ΡΡΠΎΠ²

ΠΡΠΎΠ΅ΠΊΡ ΠΎΠ΄Π½ΠΎΡΡΠ°ΠΆΠ½ΠΎΠ³ΠΎ ΠΊΠΈΡΠΏΠΈΡΠ½ΠΎΠ³ΠΎ Π΄ΠΎΠΌΠ° 9 Π½Π° 12 ΠΌΠ΅ΡΡΠΎΠ². Π Π°ΡΡ ΠΈΠ²Π΅ ΡΠ΅ΡΡΠ΅ΠΆΠΈ ΡΡΠ°Π΄ΠΈΠΈ Π Π, Π°ΡΡ ΠΈΡΠ΅ΠΊΡΡΡΠ½ΠΎ-ΡΡΡΠΎΠΈΡΠ΅Π»ΡΠ½ΡΠ΅ ΡΠ΅ΡΡΠ΅ΠΆΠΈ (ΠΠ‘). ΠΡΠΎΠ΅ΠΊΡΠΎΠΌ ΠΏΡΠ΅Π΄ΡΡΠΌΠΎΡΡΠ΅Π½Ρ Π»Π΅Π½ΡΠΎΡΠ½ΡΠ΅ ΡΡΠ½Π΄Π°ΠΌΠ΅Π½ΡΡ ΠΈ Π±Π°Π»ΠΎΡΠ½ΡΠ΅ ΠΏΠ΅ΡΠ΅ΠΊΡΡΡΠΈΡ. ΠΡΡΡ Π½Π΅ΡΠΊΠΎΠ»ΡΠΊΠΎ Π΄Π΅ΡΠ°Π»ΠΈΡΠΎΠ²ΠΎΠΊ ΡΠ·Π»ΠΎΠ², Π½ΠΎ ΡΠ°ΠΌΠΈΡ Π»ΠΈΡΡΠΎΠ² Π½Π΅ΠΌΠ½ΠΎΠ³ΠΎ β Π²ΡΠ΅Π³ΠΎ 11. Π ΠΊΠΎΠΌΠΏΠ»Π΅ΠΊΡ Π²Ρ ΠΎΠ΄ΠΈΡ Π½Π΅Π±ΠΎΠ»ΡΡΠ°Ρ ΠΏΠΎΡΡΠ½ΠΈΡΠ΅Π»ΡΠ½Π°Ρ Π·Π°ΠΏΠΈΡΠΊΠ° ΠΈ ΠΏΡΠΈΠΌΠ΅ΡΠ°Π½ΠΈΡ. Π‘ΠΏΠ°Π»ΡΠ½ΠΈ Π½Π΅Π±ΠΎΠ»ΡΡΠΈΠ΅. Π₯ΠΎΠ»Π» ΠΎΡΠ΅Π½Ρ ΠΏΡΠ΅Π΄ΡΡΠ°Π²ΠΈΡΠ΅Π»ΡΠ½ΡΠΉ, Ρ ΠΎΡΡ ΡΠΎΠ»ΠΊΡ ΠΎΡ ΡΠΎΠ³ΠΎ, Π΅ΡΠ»ΠΈ Π½Π° Π½Π΅Π³ΠΎ Π²ΡΡ ΠΎΠ΄ΠΈΡ Π΄Π²Π΅ΡΡ Ρ ΡΡΠ°Π»Π΅ΡΠ°.
ΠΠ±ΡΠ°Ρ ΠΏΠ»ΠΎΡΠ°Π΄Ρ: | 79,0 |
ΠΠΈΠ»Π°Ρ ΠΏΠ»ΠΎΡΠ°Π΄Ρ: | 46,0 |
ΠΠ»ΠΎΡΠ°Π΄Ρ Π·Π°ΡΡΡΠΎΠΉΠΊΠΈ: | 108,0 |
Π‘ΡΡΠΎΠΈΡΠ΅Π»ΡΠ½ΡΠΉ ΠΎΠ±ΡΠ΅ΠΌ: | 214,0 |
K1: | 0,6 |
K2: | 2,7 |
Π‘ΡΠ΅Π½Ρ: | ΠΊΠΈΡΠΏΠΈΡ |
Π€ΡΠ½Π΄Π°ΠΌΠ΅Π½Ρ: | Π»Π΅Π½ΡΠΎΡΠ½ΡΠΉ |
ΠΠ΅ΡΠ΅ΠΊΡΡΡΠΈΡ | ΡΠ±ΠΎΡΠ½ΠΎΠ΅ ΠΈΠ· ΠΆΠ± ΠΏΠ»ΠΈΡ |
proektabc.ru

