Естественная вентиляция в коттедже – Система вентиляции в загородном доме: разновидности и назначение, основы проектирования
Система вентиляции в загородном доме: разновидности и назначение, основы проектирования
21 Мая 2018 2018-05-21
2594
Время чтения 8 минут
Прочитать позжеОтправим материал на почту
Распечатать
Для комфортного проживания в коттедже важно обеспечить хорошую циркуляцию воздуха. Вентиляция коттеджа имеет специальную схему и должна разрабатываться квалифицированными специалистами. Владельцам будущего жилья могут предложить несколько вариантов системы циркуляции воздуха – естественная, комбинированная и принудительная. Важно помнить, что проектирование коттеджа и системы вентиляции взаимосвязано, поэтому процесс происходит одновременно.

Типы вентиляции коттеджей
Естественный тип вентиляции позволяет экономить электричество, но имеет некоторые минусы. Для обеспечения полноценного воздухообмена надо подготовить систему оттока в виде вентиляционных каналов. Уровень тяги достигается только соответствующей длиной этих каналов, поэтому вариант подходит для двухэтажных строений и больше.
Для одноэтажных домов рекомендуется выбирать комбинированный тип вентиляции. В этом случае на входе шахт монтируются вентиляторы – приток воздуха остается естественным, а вытяжка работает при помощи вентиляторов. Для равномерного поступления и оттока воздушных масс важно правильно подобрать мощность вентиляторов относительно площади помещений.
Принудительное вентилирование используется, если предыдущие варианты являются неэффективными. Для обустройства системы сети воздуховода используются фильтры, вентиляторы, клапаны, охладители и нагреватели. Система может работать автоматически по предварительно заданным параметрам.

Назначение вентиляции
Современные коттеджи строятся из теплозащитных материалов, обеспечивающих высокую герметичность, но предотвращающие естественной циркуляции воздуха. Решить проблему можно качественной вентиляцией, которая обеспечивает следующие показатели:
-
создание комфортных условий для проживания;
-
подается свежий воздух во все помещения;
-
выводится испарения и отработанный воздух;
-
сохраняются предметы интерьера и жилье;
-
отсутствует застой воздуха, влага не накапливается;
-
не появляется плесень или грибок;
-
воздух очищается от болезнетворных примесей.
Между вентиляцией коттеджа и любой квартиры есть конструктивные отличия, поэтому организация осуществляется иначе. Отличия заключаются в упрощенной системе фильтрации, в коттедже может монтироваться оборудование автономной работы, достаточно правильно разместить все элементы и соотношении с коммуникациями. Для специализированных помещений требуется особый режим проветривания.

Надо учитывать особые нюансы проектирования системы:
-
периодичность использования;
-
климатические особенности местности;
-
назначение всех помещений;
-
общая площадь сооружения.
Это важные пункты, которые обязательно надо учитывать, чтобы создать качественную и высокоэффективную вентиляцию здания.
На нашем сайте Вы можете найти контакты строительных компаний, которые предлагают услугу электротехнических работ. Напрямую пообщаться с представителями можно посетив выставку домов «Малоэтажная Страна».
Основы естественной и принудительной вентиляции
Естественная вентиляция загородного дома является самым простым вариантом. В его основе природные условия и использование разницы температуры и давления внутри. Появляется естественная тяга, которая обеспечивает циркуляцию воздуха, удаляя из здания отработанные потоки, на место которые поступают чистые. Для поступления воздуха устанавливаются специальные клапаны в виде отверстий с закрытыми решетками. Они не создают сквозняки, но обеспечивают необходимый приток воздуха. Такие клапаны могут закрываться, если на улице очень холодно. Дополнительно могут оснащаться фильтрами, датчиками влажности и шумоглушителями, могут работать в автоматическом режиме.
Отвод отработанных масс осуществляется системой труб, выводные отверстия размещаются в самых загрязненных помещениях. Вывод воздуха происходит при помощи тяги, для чего выход трубы размещается на высоте минимум 0,7 м над крышей, отверстие прикрывается «зонтом», который защищает систему от попадания осадкой, мусора, мелких животных и птиц.

Это может быть интересно! В статье по следующей ссылке читайте про приточно-вытяжную вентиляцию.
Такая система имеет свои преимущества:
-
небольшая стоимость;
-
бесшумность функционирования;
-
отсутствие затрат во время эксплуатации;
-
простой монтаж.
Недостатками системы являются зависимость от погодных условий, теплопотери в холодное время года, отсутствие контроля выходящих и поступающих масс, неэффективность при наличии в коттедже бассейна или сауны.
Еще некоторые размышления по естественной вентиляции смотрите в видео:
При неэффективном или неподходящем вентилировании используется принудительный тип, для которого используется высокотехнологичное оборудование:
-
фильтры, вентиляторы, клапаны;
-
охладители и нагреватели воздуха;
-
сети воздуховодов.
Система одновременно подает в дом комфортной температуры чистый воздух и выводит уже отработанный. Параметры можно задать заранее, что позволяет работать системе автоматически. Монтаж системы осуществляется с установкой вентиляционного агрегата внутри помещения. Производится прокладка воздуховодов с установкой всех комплектующих, производится подготовка системы к работе. Монтаж оборудования в каждом случае рассматривается индивидуально, размещение агрегата, комплектующих и воздуховода согласовывается с заказчиком. Самый экономичный и технологичный вариант – это приточно-вытяжная вентиляционная система с рекуператором. Специальный рекуператор забирает тепло от отводимого нагретого воздуха, а затем нагревает свежий, поступающий с улицы.

Это эффективный метод проветривания помещений, работа системы не зависит от различных природных факторов. Но сама система достаточно сложная, поэтому разрабатывать должны соответствующие специалисты. Важно разработать грамотную разводку всех магистралей, диаметр и длину, подобрать все элементы. Требуется периодическое обслуживание, но это позволяет с полной гарантией обеспечить благоприятные и комфортные условия проживания.
Это может быть интересно! В статье по следующей ссылке читайте про вентиляцию в каркасном доме.
Проектирование вентиляции
Любой проект будущей вентиляции осуществляется с обязательным учетом норм обмена воздуха для каждого отдельного помещения и в общем для всего здания. В соответствии с нормами и требованиями воздухообмен должен соответствовать следующим показателям:
-
комната 3 м3/ч на каждый 1м2 жилых помещений;
-
ванная, уборная, душевая 25 м3/ч;
-
совмещенное помещение 50 м3/ч, 25.
Параметры указаны для температуры в холоднее время года, внутри помещении температура составляет 16-25 °С.
Про основы проектирования вентиляции смотрите в видеоролике:
Проект вентиляции коттеджа разрабатывается специалистами на стадии проектирования строения. Для этого составляется техническое задание, в нем учитываются следующие пункты:
-
архитектура строения;
-
количество и функции комнат;
-
площадь помещений;
-
дополнительные объекты, влияющих на движение воздуха;
-
количество постоянно проживающих людей.
В расчетах определяется мощность системы для каждого помещения в отдельности и всего строения в целом. Этот параметр зависит от кратности воздухообмена комнат и максимального количества человек в одной комнате.

После создания проекта может осуществляться монтаж вентиляции, над чем также должны работать только специалисты. Сам процесс происходит в несколько этапов – подготовка схемы и проекта дома. При этом обязательно учитываются все другие коммуникации и системы. Монтаж и проектирование вентиляции в загородных домах довольно сложная процедура и здесь нельзя допускать ошибок. В противном случае они не смогут обеспечивать поставленные цели. Например, система вентиляции требует проведение подготовительных действий:
-
определение мощности электросетей, их закладка и возможное сокращение энергопотребления;
-
возможность монтажа специального оборудования, а также обустройство воздуховодов;
-
подбор оборудования с учетом особенностей помещений и условий эксплуатации;
-
монтаж всего подобранного оборудования.
Это может быть интересно! В статье по следующей ссылке читайте про вентиляцию в доме.
Заключение
Профессиональная вентиляция позволит сделать проживание в коттедже безопасным и комфортным. Система будет постоянно функционировать на благо человека.
При использовании современного оборудования можно контролировать приток свежего воздуха или установить функционирование системы в автоматическом режиме.
Подобные системы позволяют сделать проживание максимально комфортным в любое время года и в самых разных погодных условиях. Кроме того, качественная система вентилирования помещений позволяет очищать воздух от болезнетворных микробов и микроорганизмов. Это очень важный показатель, особенно если в доме есть маленький ребенок. Правильный расчет вентиляции – это достаточно сложная задача, решением которой должны заниматься профессионалы.
Прочитать позжеОтправим материал на почту
Распечататьm-strana.ru
Как сделать вентиляцию в коттедже

Комфортное проживание в собственном загородном коттедже во многом зависит от созданного в нем микроклимата. И важную роль в его создании играет грамотная вентиляция коттеджа. Устройство вентиляции коттеджа является одним из приоритетных вопросов, которые необходимо учитывать при его строительстве. Создать систему вентиляции не составит особого труда. Главное при этом знать и понимать основные принципы действия, а также уметь произвести необходимые расчеты.
- Виды вентиляции коттеджа
- Проект вентиляции коттеджа
- Монтаж вентиляции коттеджа
Виды вентиляции коттеджа
Начиная создание и проектирование вентиляции коттеджа, первое, с чем придется столкнуться, это выбор вида вентиляции. По сути их всего два: естественная и принудительная вентиляция. В свою очередь каждый из них имеет свои подвиды, но основное отличие заключается в способе поступления и отвода воздуха.
Естественная вентиляция в коттедже
Этот вид вентиляции подразумевает создание системы продухов и вентиляционных каналов, принцип работы которых основан на естественном движении воздуха, которое достигается путем разности температур и давления в начале и в конце системы. Основными преимуществами естественной вентиляции являются простота и малые затраты на обустройство и обслуживание. Недостаток такой системы один – в результате определенных погодных условий, например, при сильном ветре, может возникнуть обратная тяга.

Элементы естественной вентиляции:
- приточные и вытяжные вентиляционные каналы;
- воздушные клапаны и продухи.
Принудительная вентиляция в коттедже
В отличие от системы естественной вентиляции, принудительная система вентиляции коттеджа основывается на использовании специального вентиляционного оборудования. Принудительная система позволяет качественно фильтровать поступающий воздух, при необходимости нагревать или охлаждать его в независимости от погодных условий. Механическая система лишена такого недостатка, как обратная тяга. Но при этом стоимость такой системы вентиляции коттеджа довольно большая, что в сочетании с высокими ценами на её обслуживание делает принудительную систему дорогостоящим удовольствием.

Элементы принудительной вентиляции:
- воздухозаборная решетка;
- воздушный клапан;
- фильтр;
- калорифер или кондиционер;
- вентилятор;
- рекуператор;
- шумоглушитель;
- воздуховоды;
- распределители воздуха;
- системы регулировки, датчики температур и подачи воздуха;
- крепежные элементы и хомуты.

По назначению вентиляция может быть вытяжной, приточной или приточно-вытяжной. Это значит, что движение воздуха в помещениях достигается несколькими путями. Либо за счет вытяжки воздуха, либо за счет подачи воздуха, либо и того и другого. И если приточно-вытяжная система – это сугубо принудительная вентиляция, то приточная и вытяжная вентиляции являются гибридом, сочетающим в себе преимущества естественной и принудительной систем вентиляции.
Проект вентиляции коттеджа
Сегодня при строительстве загородных домов и коттеджей многие стремятся максимально использовать те преимущества, что дарят технологии. Результатом таких действий становится практически полная изоляция помещений от окружающей среды. Это в свою очередь усложняет или практически полностью перекрывает поступление свежего воздуха. Добавив к этому результаты человеческой жизнедеятельности, в результате получаем воздух внутри помещений насыщенный углекислым газом и с избытком влаги. Именно поэтому так важно заранее, еще на этапе проектирования дома, позаботиться о вентиляции и создать её проект-схему, которая органично впишется в общую концепцию коттеджа.

Для создания проекта системы вентиляции можно воспользоваться специализированными программами или выполнить схему на листе бумаги. В любом случае в проекте должна быть подробная схема вентиляции коттеджа с расчетами и указанием вида вентиляции.
Выбор вида вентиляции – это, пожалуй, первостепенная задача при создании проекта. Какую из описанных выше систем выбрать, зависит от того, где находится коттедж. Если он далеко от источников шума и загрязнения воздуха, например, шоссе или дороги, то однозначно следует делать естественную вентиляцию. Это и дешевле, и целесообразней с точки зрения здорового образа жизни. В противном случае выбор остается за принудительной вентиляцией. Также следует обратить внимание на стоимость обслуживания и возможность постоянной подачи энергии для принудительной вентиляции. Как уже отмечалось, в сравнении с естественной стоимость обустройства и обслуживания принудительной вентиляции больше в разы, и не каждый захочет переплачивать. И последнее, что необходимо учесть, – это объемы вентилируемого воздуха и скорость его обмена, которые может предоставить та или иная система. А для этого необходимо произвести расчеты, а также заглянуть в СНиП 2.04.05-91.
Расчеты вентиляции
Устройство вентиляции в коттедже требует выполнения определенных расчетов для вентиляционной системы. Дело весьма непростое и требует специализированных навыков. Но если возникнет необходимость сделать это самостоятельно, то выход есть. Конечно, точность всех расчетов будет иметь определенную погрешность, но при необходимости можно проконсультироваться со специалистом, который укажет на явные ошибки. Сами расчеты для вентиляции коттеджа основываются на нормах кратности обмена воздуха, разработанных на основе исследований для различных видов помещений. В приведенной ниже таблице можно найти основные показатели по воздухообмену:
Как следует из таблицы, для комфортного проживания в доме необходимо, чтобы в помещениях весь объем воздуха полностью заменялся на чистый определенное количество раз на протяжении часа. На основании этой таблицы рассчитывается полный объем воздуха, который необходимо заменить на протяжении часа, по формуле:
Альтернативным вариантом расчета является расход воздуха на 1 человека в помещении. Выполняется он по формуле:
В приведенной ниже таблице указаны нормы по количеству воздуха на 1 человека в 1 м3 за час:
На основании полученных данных проводится подбор вентиляционного оборудования, диаметра вентиляционных каналов и прочего. Следует отметить, что приведенных выше данных будет достаточно для подбора оборудования и создания естественной вентиляции. Тем более что опытным путем доказано: для помещений менее 40 м2 вентиляционные каналы диаметром 12 см позволяют делать обмен воздуха кратный двум объемам. Для увеличения скорости обмена можно сделать канал большего сечения.
Для принудительной системы необходимо рассчитать требуемую мощность вентиляторов. Это делается достаточно просто. Берем объем помещения и умножаем его на кратность обмена. В результате получаем производительную мощность вентилятора. Так как принудительная вентиляция представляет собой систему вентиляционных каналов определенной длины, то на всей её протяженности возможны потери давления, что чревато снижением качества вентиляции. Поэтому вентилятор следует подбирать с запасом. С помощью приведенной ниже таблицы можно подобрать оборудование с наиболее оптимальными показателями на основании ранее полученных данных:

Разобравшись в том, как надо подбирать оборудование, вернемся к кратности обмена воздуха для каждого помещения и на основе этого создадим всю систему вентиляции коттеджа. Итак, первое, что делаем, это суммируем объемы обмена воздуха за час для каждого помещения. Это будет производственная мощность установки. От нее будут отходить каналы для каждого помещения в отдельности. Диаметр приточных каналов подбираем на основе таблиц.
Разобравшись с подводом воздуха, переходим к его вытяжке. Суть та же, что и при подборе подающих каналов, но при этом следует учесть один важный фактор. Мощность вытяжной вентиляции должна быть на 10 – 15% больше, чем приточной. Это необходимо, чтобы в помещении не скапливался отработанный воздух.
Схема вентиляции
Перед тем как сделать вентиляцию в коттедже, придется нарисовать от руки или при помощи программы чертеж дома, указать на нем места расположения приточных и вытяжных каналов. На этом этапе следует остановиться и прояснить некоторые правила расположения вентиляционных каналов.
Для естественной вентиляции продухи и клапаны располагаются поверх окон. Вытяжные каналы располагаются внутри стен кухни, ванной и санузла. Внизу межкомнатных дверей делается зазор в 10 – 20 мм или монтируются 2 – 4 воздушных продуха для обеспечения движения воздуха к вытяжным каналам. Все это в разрезе отображается на плане дома.
Важно! Чтобы естественная вентиляция работала как надо, вытяжные каналы всегда должны располагаться внутри дома. Это связано с самим принципом работы такой вентиляции. Все дело в том, что если температура вытяжного канала будет ниже или равна температуре на улице, ни о каком движении воздуха речи быть не может. Сами вытяжные каналы должны выступать не менее чем на 0,5 м над уровнем крыши. Это связано с разницей давления, что также влияет на движение воздуха.

Для принудительной вентиляции схема будет выглядеть несколько иначе. На чертеже дома необходимо указать место размещения вентиляционного оборудования. От кондиционера или калорифера будут отводиться подающие каналы для каждого помещения по отдельности. Сами точки подачи воздуха размещаем как можно ближе к окнам помещений, а места забора отработанного воздуха размещаем в ванной, кухне и санузле. Не забываем о продухах внизу дверей для движения воздуха от места подачи до места забора. Сами вентиляционные каналы будут размещены и скрыты в потолочном перекрытии или в стенах. Но их место расположения должно быть выше уровня окон.
Монтаж вентиляции коттеджа
Вентиляцию в коттедже можно сделать на этапе строительства дома или в уже построенном. Разница заключается в сложности и объеме проделываемых работ. Так ключевые элементы естественной вентиляции и вентиляционные каналы принудительной удобнее всего создавать еще на этапе возведения стен. Их можно сразу же скрыть в стенах, что избавит от необходимости использования различных декоративных элементов. И уже после финишной отделки установить оставшееся вентиляционное оборудование.
Несколько иначе обстоят дела в случае, если приходится создавать вентиляцию в уже построенном доме. Тут придется приложить больше усилий. В первую очередь это будет касаться создания в стенах отверстий для вентиляционных каналов, а во-вторых, создания декоративных элементов, скрывающих сами каналы. Рассмотрим именно этот вариант, так как он в полной мере раскроет особенности монтажа вентиляции в коттедже.
Обустройство естественной вентиляции
Для естественной вентиляции коттеджа придется сделать следующее:

- внизу окон, на уровне приблизительно 15 – 20 см от рамы проделываем отверстия для вентиляционных клапанов. Их количество берется из расчета их пропускной способности и вентилируемого объема воздуха за час;
Важно! В современных металлопластиковых окнах такой клапан устанавливается в саму раму, в её верхней части. Но если его нет, тогда придется все делать отдельно.
- в дверях, в нижней части дверного полотна, проделываем 3 отверстия и устанавливаем туда вентиляционные решетки для возможности отвода воздуха из помещения;
- в помещениях кухни, ванной, санузла пробиваем отверстие в потолочном перекрытии и крыше. Затем вставляем в полученное отверстие вентиляционный канал. При этом следим, чтобы в помещении воздухозаборное отверстие канала было на уровне 25 – 30 см от потолка. Сам канал можно зафиксировать к стене хомутами. Часть канала, что находится на чердаке, следует утеплить. Также можно использовать сэндвич трубы с утеплителем;
- на верхнюю часть канала, выступающую над крышей дома, устанавливаем защиту от попадания осадков;

Важно! Если создается естественная вытяжная система, в начале вытяжного канала устанавливается вентилятор. То же самое делается, если создается приточная система.
- в завершение на все точки подачи и забора воздуха устанавливаем решетки с сеточкой.
Обустройство принудительной вентиляции
Для создания принудительной вентиляции придется выполнить несколько больший объем работ в сравнении с естественной. Но в целом этапы работ те же. Чтобы создать принудительную вентиляцию коттеджа, необходимо сделать следующее:
- на чердаке или в отдельном помещении разместить и закрепить вентиляционное оборудование – кондиционер, калорифер, а также присоединить к ним фильтры;

- в стене рядом с оборудованием пробивается отверстие для установки канала для забора воздуха с улицы. Сам канал присоединяется к ранее установленному оборудованию;
- если дом одноэтажный, тогда внутри помещений в местах подачи воздуха, отмеченных на схеме, делаем отверстия в потолке для вывода вентиляционного канала;
- далее собираем и устанавливаем на чердаке вентиляционный канал и подводим его к отверстию в потолке комнаты. После чего заводим часть канала внутрь и устанавливаем на него диффузор с решеткой;

- в кухне, ванной и санузле делаем отверстия под выводящие вентиляционные каналы;
- на чердаке прокладываем каналы до отверстий, заводим внутрь и устанавливаем диффузор с решеткой;
- все вытяжные каналы подводятся к вытяжной трубе с вентилятором, которую мы устанавливаем вертикально с таким расчетом, чтобы она выступала над уровнем крыши на 0,5 м.
Бывают случаи, когда приходится оборудовать принудительную вентиляцию в доме с несколькими этажами. Тогда вентиляционные каналы подвешиваются к потолку, а основной канал обустраивается в наименее заметном углу помещения. Сами каналы на потолке можно скрыть при помощи системы подвесных или натяжных потолков. Для составляющих элементов вентиляции используются различные материалы. Сегодня на рынке можно найти короба каналов из пластика и оцинкованного металла. Металл конечно предпочтительней, но на полностью металлическую вентиляцию коттеджа цена будет довольно высокой. Наиболее приемлемым вариантом будет комбинирование металлических и пластиковых деталей.
strport.ru
Вентиляция в коттедже своими руками: схемы, проекты, устройство
Содержание статьи:
Система вентиляции в коттедже необходима даже если вокруг лес или чистое поле, речка и никаких промышленных гигантов, а сам дом возведен из природных «дышащих» материалов.
В зависимости от размеров и архитектурных особенностей коттеджа проект вентиляции может основываться на естественной тяге или на механической. Каково устройство вентиляции коттеджа и можно ли собрать ее своими руками?
Проектирование и виды вентиляции коттеджей

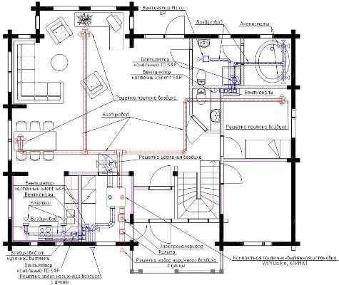
типичный проект вентиляции
При проектировании вентиляции для коттеджа учитываются площадь, назначение помещений, географическое расположение и режим использования здания. Принципиальное отличие схемы вентиляции коттеджа от квартиры в облегченных системах фильтрации наружного воздуха. Кроме этого, проектируя коттедж, можно сразу предусмотреть прокладку вентиляционных шахт.
В коттеджах своими руками можно оборудовать один из трех видов вентиляции:
- приточно-вытяжное устройство вентиляции коттеджа с естественной тягой;
- приточно-вытяжная с принудительной тягой, в том числе энергоэффективная с рекуперацией тепла;
- комбинированная приточно-вытяжная.
О том, как подобрать подходящую вентиляцию для своего коттеджа и сделать ее своими руками мы расскажем далее.
Естественная вентиляция коттеджа
схема естественной вентиляции коттеджа» title=»схема естественной вентиляции коттеджа»>схема естественной вентиляции коттеджа
Естественная вентиляция в коттедже – это самый простой, древний и широко используемый вид вентиляции. Движение воздуха в дом и из него осуществляется за счет разницы давления и температуры воздуха на улице и внутри. На интенсивность тяги влияет направление ветра, температура воздуха и атмосферное давление.
При естественной вентиляции коттеджа воздух вытягивается из помещений и замещается уличным. Чтобы эта схема эффективно работала в современных условиях необходимо обеспечить приток воздуха.
В изначальном варианте воздух поступал через щели между бревнами, в оконных проемах и под дверями. Вытягивался же через печную трубу.
Технологии, используемые в современном коттеджном строительстве, позволяют достичь практически полной герметичности здания. А печи и камины есть далеко в каждом доме. Как сделать вентиляцию в коттедже с пластиковыми окнами и современной системой отопления?
Перед тем, как начать обустройство вентиляции в коттедже, следует взвесить все плюсы и минусы естественной системы вентиляции для коттеджа.
Плюсы:
- недорогое оборудование;
- несложный монтаж;
- отсутствие затрат при эксплуатации;
- работает неслышно.
Минусы:
- эффективность вентиляции зависит от погодных условий;
- зимой в жилые помещения подается холодный воздух, то есть затраты на отопление могут возрасти;
- естественная вентиляция не справится, если в доме есть бассейн.
О дополнительной вентиляции придется подумать и для парилки.
Вооружившись знаниями, соорудить такую систему вентиляции коттеджа своими руками сможет сам хозяин.
Приток воздуха в коттедже
оконный приточный клапан
Можно понадеяться на форточки и периодическое проветривание. Но качественная естественная вентиляция коттеджа должна обеспечивать постоянное движение воздуха со скоростью не более 0,2 метров в секунду. Поэтому для притока устанавливаются специальные клапаны.
Оконные приточные клапаны встраиваются непосредственно в оконную раму. Они пропускают небольшое количество воздуха, достаточное для естественного воздухообмена. При этом в доме нет сквозняка и клапан можно закрыть, если на улице очень холодно.
По такому же принципу работают и стеновые приточные клапаны. Это трубы, с двух сторон прикрытые решетками. С улицы к решетке примыкает шумоглушитель и иногда фильтр. Изнутри воздуховод прикрывается регулирующей шторкой, с помощью которой поток воздуха делается больше, меньше или полностью перекрывается.
Усовершенствованные приточные клапаны для естественной системы вентиляции коттеджа автоматически открываются и закрываются. Работают они под управлением датчиков влажности.
Отток воздуха
Проект вентиляции коттеджа обеспечивается воздуховодами, выходы которых располагаются в наиболее «грязных» или влажных частях дома: санузел и кухня.
Внутри помещений выходы прикрываются пластиковыми решетками. Наружный конец трубы должен выходить на 0,7 – 1 метр над уровнем крыши. Иначе хорошей тяги не видать. Конец вытяжного воздуховода коттеджа прикрывается зонтиком от дождя и снега. В двух- или трехэтажных коттеджах вентиляция будет работать лучше, чем в одноэтажных.
Предусмотреть вентиляционные шахты нужно заранее, еще на этапе возведения стен. Желательно заказать проект естественной вентиляции коттеджа профессионалу, он точно рассчитает ширину вентканалов, количество приточных клапанов.
Если дом куплен готовым и система воздухообмена в нем не предусмотрена, владелец неминуемо сталкивается с вопросом «как устроить вентиляцию в коттедже?». Придется немного нарушить внутреннюю отделку, но даже в полностью готовом доме можно найти место для вытяжных вентканалов. Приточные же клапана для вентиляции коттеджа своими руками может установить хозяин.
Комбинированная вентиляция коттеджа
Комбинированное устройство вентиляции коттеджа это естественная, усиленная техническими средствами.
Как правило, приток обеспечивается все теми же клапанами. А вот отток воздуха осуществляется принудительно. При выборе вентиляторов следует учитывать не только мощность, но еще и шумопроизводительность. Ведь если в шумном городе 20 децибел совершенно незаметны для жильцов, на природе они могут создавать неудобства.
Способы организации принудительного отвода воздуха:
- В небольшом коттедже вполне достаточно в каждый вентиляционный выход (в туалете и ванной и на кухне) установить по вытяжному вентилятору. На кухне дополнительно устраивается механическая вытяжка над варочной поверхностью. Можно установить самые простые вентиляторы, которые включаются кнопкой или запитаны от одной линии с освещением. Свет включен – вытяжка работает. Есть модели, работающие от датчиков присутствия – в помещении есть человек – вытяжка работает. Серьезный минус такой системы в том, что нет постоянного воздухообмена. Тянет лишь когда включены вентиляторы. В остальное время работа системы зависит от погоды;
- Воздуховоды из кухни и санузлов собираются в один вентканал, в который и монтируется вентилятор. Устанавливается он обычно на чердаке. Здесь же располагается и некоторое дополнительное вентиляционное оборудование. Такой проект вентиляции для коттеджа должен разрабатывать профессионал. Важно правильно подобрать мощность вентилятора и снабдить систему датчиками влажности. Таким образом, все происходит как бы само собой. Механическая вытяжка создает разряжение воздуха в доме, которое компенсируется за счет засасывания свежего через приточные клапана.
Планируя, как сделать в коттедже вентиляцию, можно выбрать еще один вариант. Он более дорогостоящий и сложный в монтаже, но зато обеспечивает наилучшие условия для жильцов.

направленный воздухообмен в коттедже
Это принудительный приток воздуха, устраняющий существенный недостаток естественной системы вентиляции коттеджа: подачу холодного воздуха. Приточное оборудование подогревает чистый уличный воздух электротеном или водяным калорифером и в жилые комнаты он поступает оптимальной температуры. Приточная установка может быть наборной или моноблочной. Распределяется по комнатам воздух через воздуховоды, а подается в помещение диффузором в потолке или на стене.
За счет повышения давления в комнатах отработанный воздух просто «выдавливается» в коридоры, а оттуда в вентиляционные каналы (кухня и санузел).
Приточная установка недешева, да еще и довольно громоздка. В больших и комфортабельных коттеджах для оборудования выделяется специальное помещение.
Приточно-вытяжная вентиляция коттеджа

схема приточно-вытяжной вентиляции
Это наиболее эффективная система вентиляции коттеджа. Проектируют приточно-вытяжную систему вентиляции коттеджей только специалисты. Необходимо грамотно развести по дому сеть воздуховодов, рассчитать их диаметр, в нужных местах установить дополнительное оборудование, а также подобрать вентиляторы. Поэтому проектировать вентиляцию коттеджа нужно одновременно с проектированием самого здания.
При такой схеме вентиляции в комнаты поступает фильтрованный и подогретый (охлажденный) воздух и одновременно вытягивается отработанный. Главное преимущество приточно-вытяжной системы вентиляции – это работа в автоматическом режиме при заданных параметрах. В коттедже с приточно-вытяжной системой вентиляции не нужно кондиционировать воздух.
Самые современные системы оборудованы рекуператором, позволяющим использовать тепло отработанного воздуха для подогрева приточного. Рекуператор представляет собой теплообменник, принимающий тепло у одного потока воздуха и передающий другому. За счет рекуперации экономятся тепловые ресурсы, расходы на эксплуатацию снижаются в среднем на треть.
Вентиляция помещений различного назначения в коттедже
Вентиляция гаража

пример вентиляции гаража
В гараже скапливаются выхлопные газы, испарения смазочных материалов и горючего. В определенной концентрации они опасны для здоровья и жизни. Особенно важно правильно оборудовать вентиляцию, если гараж устроен в цоколе коттеджа или пристроен к нему вплотную. Устанавливается мощная принудительная вытяжка.
Вентиляция кухни
Это помещение, нуждающееся в усиленной вентиляции. Испарения, запахи приготовляемой пищи и жар не должны распространяться по дому. Поэтому над варочной поверхностью делают вытяжку, а для оттока паровых скоплений под потолком оборудуют выход вытяжного вентканала.
Кстати, механическая кухонная вытяжка может значительно изменить движение потоков воздуха и нарушить вентиляцию дома!
Подробнее о проектировании естественной вентиляции коттеджа консультируйтесь со специалистом.
Вентиляция санузла
В наиболее влажных местах коттеджа обычно проектируют естественную вентиляцию. Иногда воздухообмен усиливается за счет принудительной тяги – вытяжных вентиляторов. По правилам оборудования вытяжной вентиляции коттеджей воздуховоды из туалета и ванной комнаты не объединяются с воздуховодами из других помещений.
Вентиляция бассейна
Обилие постоянно испаряющейся влаги требует интенсивной вытяжки. Одновременно с этим необходимо поддерживать комфортную температуру воздуха. Поэтому такие помещения в коттеджах оборудуют приточно-вытяжными системами вентиляции, а также осушителями воздуха.
Вентиляция жилых помещений
Для жилых помещений вполне достаточно обеспечить постоянный приток свежего воздуха с улицы, который будет вытеснять использованный через щели в дверных коробках, под межкомнатными дверями. Поэтому при проектировании вентиляции коттеджа можно ограничиться приточными клапанами или приточными воздуховодами в зависимости от выбранной воздухообменной системы.
Вентиляция цокольного этажа коттеджа
В цокольном этаже коттеджа могут размещаться мастерские, сауна, бассейн, прачечная, кладовые. Для создания нормального микроклимата необходимо оборудовать вентиляцию цокольного этажа коттеджа. Она состоит из вентиляционных каналов, а также одной или нескольких форточек.
Обязательно на стадии проектирования коттеджа вентиляционные отдушины цоколя предусматриваются. Количество и площадь отдушин зависит от размеров дома, его расположения, рельефа местности, типа почвы. О том, как правильно их рассчитать, смотрите видео.
Вентиляция в цокольном этаже коттеджа обеспечивается и приточно-вытяжной системой. Она состоит из двух труб: по одной воздух попадает в подвал, по другой вытягивается наружу. Трубы устанавливают вертикально в противоположных углах помещения. Выход вытяжной трубы должен быть на 20 – 30 см. ниже потолка. А выход приточной – на 20 см. выше пола. Вытяжная труба выводится на чердак.
Если в коттедже оборудован камин, желательно вентиляцию цокольного этажа коттеджа располагать возле дымохода. Это усиливает тягу.
Чтобы регулировать движение воздуха используются шиберные заслонки.
Если влажность в цокольном этаже велика и естественная вентиляция не справляется, в вытяжную трубу устанавливается вентилятор, принудительно удаляющий влажный и спертый воздух.
strojdvor.ru
Вентиляция в коттедже
Нет времени разбираться?
Позвоните по телефону, мы с радостью подскажем какое оборудование подойдет именно Вам.
+7(495) 517-33-71
Мы перезвоним в удобное для Вас время!
Отправьте запрос на расчет стоимости решения на почту — [email protected]
Компания «Айрвек» предлагает комплексные решения для обустройства систем вентиляции коттеджей и загородных домов различной площади и этажности.
Заказчикам из Москвы и Подмосковья доступен полный спектр услуг, включающий проектирование, подключение и сервисное обслуживание оборудования циркуляции воздуха любых видов. Наши специалисты имеют огромный опыт создания систем естественной и принудительной вентиляции в сооружениях различного назначения, что позволяет быстро находить оптимальные варианты, которые гарантированного устроят вас по цене и времени реализации.
Убедиться в этом можно, ознакомившись с выполненными нашими специалистами.
Виды вентиляции коттеджа
Каждый дом — это уникальное сооружение, полноценное использование которого невозможно без грамотно организованной циркуляции воздуха. Для разделения вентиляции на классы используют несколько критериев:
- Особенности течения потока (естественная, принудительная вентиляция)
- Назначение (приточная, вытяжная, приточно-вытяжная)
Метод вентилирования закладывается на этапе подготовки архитектурной документации для строительства дома.
Прежде чем включать проект вентиляции коттеджа в общий план объекта, необходимо разобраться с особенностями каждой технологии обеспечения движения воздушных потоков.
Естественная вентиляция в доме
Подразумевает обустройство системы продушин и каналов, посредством которых воздух природным способом поступает в комнаты.
Поток приходит в движение за счет разницы температур и давлений на входе и выходе системы.
Компоненты системы естественной вентиляции:
- Воздушные клапаны
- Продухи
- Приточные/вытяжные каналы
Главными преимуществами естественной вентиляции считаются простота монтажа, а также дешевизна установки и сервисного обслуживания.
К недостаткам стоит отнести риски возникновения обратной тяги при сильном ветре, отсутствие фильтрации воздуха, перепад температур.
Принудительная
Принцип действия основан на использовании специальной аппаратуры.
Механические комплексы лишены такого недостатка, как тяга, качественно фильтруют воздух и, если это предусмотрено функционалом, нагревают или охлаждают его.
Принудительная вентиляция состоит из следующих элементов:
- Воздухозаборные решетки
- Клапана
- Фильтры
- Калорифер (теплообменник)
- Вентилятор
- Рекуператор
- Устройство для глушения шумов
- Воздуховоды
- Регулировочный комплекс (датчики температур, контроллеры подачи воздуха)
- Крепежи, фиксаторы, хомуты
Стоимость подключения и обслуживания системы принудительной вентиляции довольно высока, что делает ее дорогостоящим удовольствием.
Этот аспект является единственным недостатком этого вида вентилирования коттеджей.
Комбинированная (приточная, вытяжная)
Эта разновидность вентилирования сочетает элементы естественной и принудительной методик. Для приточной вентиляции характерно движение воздуха за счет его подачи из вне. Принцип работы вытяжной основан на откачке загрязненных масс.
Комбинированные комплексы являются сугубо принудительными, поэтому сложнее предыдущих разновидностей.
Проект вентиляции коттеджа
Вне зависимости от архитектурных особенностей сооружения, проект вентиляции дома содержит разметку воздуховодов, обозначения мест обустройства технологичных отверстий для закачки/отвода воздуха, а также точек монтажа устройств для фильтрации, нагрева, охлаждения и прокачки воздуха.
Как правило, все компоненты размещаются вдоль стен, крыш или специальных перекрытий.

Особенности проектирования вентиляции коттеджа
Проектирование вентиляции — сложная задача, при реализации которой необходимо учесть множество факторов:
- Количество комнат
- Совокупный объем коттеджа и каждого помещения в отдельности
- Предполагаемый расход воздуха пребывающими в жилище людьми
Точно произвести все расчеты смогут только профильные специалисты, поэтому подготовку документации и непосредственное проектирование вентиляции коттеджа стоит поручить профессионалам.
Ключевые этапы проектирования вентиляции
Проектирование вентиляции дома происходит в несколько этапов:
- Составление предварительной схемы
- Подсчет мощности теплопритоков
- Технико-экономическое обоснование параметров системы вентиляции
- Подготовка окончательного рабочего проекта
О схеме
Для комплексов кондиционирования и вентиляции воздуха разработана обширная нормативная документация, включающая положения СНиП 2.04.05-91 (2000) «Отопление, вентиляция и кондиционирование», регламентирующего санитарные требования к определенным видам зданий, и приложения к другим подзаконным актам.
Виды и проектирование вентиляции коттеджа
Вся документация для проекта вентиляции дома составляется на основании имеющейся документации по схеме вентиляции обустраиваемого здания, свода СНиП и специфических пожеланий заказчика. Она призвана обеспечить соответствие проекта следующим критериям:
- Санитарные требования (не менее 10 м3 на каждого обитателя)
- Строительно-архитектурные нормативы
- Противопожарные требования
- Общая надежность системы
- Пожелания заказчика касательно эксплуатационных особенностей и стоимости проекта
Такой подход позволяет получить эффективную систему вентилирования, которая обеспечит зданию оптимальный микроклимат в жару и морозы.
О теплопритоках
При расчете теплопритоков опираются на наружные и внутренние тепловые нагрузки здания.
Первые генерируются окружающей средой, вторые — людьми и установленными в комнатах приборами.
Технико-экономическое обоснование
В этом вопросе учитываются следующие критерии:
- Выбор принципа вентиляции (естественная, принудительная)
- Производительность системы
- Спецификация предполагаемого к установке оборудования
- Место монтажа аппаратуры
- Стоимость компонентов системы и их подключения
Рабочий проект
Обязательно включает детализацию оборудования, схему его установки, план сети трубо- и воздуховодов.
Документ утверждается в соответствующих организациях, таких как СЭС, пожарная инспекция и прочих контролирующих структурах.
На основании выданных заключений вносятся правки, после чего чертежи передаются непосредственным исполнителям работ.
Специалисты компании «Айрвек» помогут в осуществлении всех этапов составления и реализации проекта вентиляции коттеджа, а также модернизации и обслуживания уже эксплуатируемых систем. Мы ценим каждого клиента, поэтому все работы выполняем точно в срок и с минимальными для клиента затратами.
Правильно оборудованная вентиляция квартир повышает комфорт проживания в стране, которая обеспечивает определенную часть свежего воздуха в каждой функциональной зоне квартиры. И действительно хорошая вентиляция удерживает владельца хижины от устаревшего воздуха и шероховатых стен, не понижая температуру в доме.

Хижины системы вентиляции
В этой статье мы рассмотрим примеры организации именно таких систем воздушного обмена, которые ориентированы на потребности владельцев государственных домов.
Хижины вентиляционной системы — сложность проекта
Система воздушного обмена в стране, конечно же, отличается от вентиляции в жилом доме:
- Во-первых, коттедж расположен в более успешной, в зависимости от окружающей среды, области.
Таким образом, владелец дома может сэкономить на фильтрационных установках. Воздушные массы, как правило, только чистые грубые примеси — пыль, пыльца, насекомые и т. Д.
- Во-вторых, территория загородного дома намного больше, размеры городского жилья. Поэтому проект вентиляции хижины потребовал обеспечить воздухообмен в достаточно большом здании, поэтому используются сильные генераторы мотивации и дальние воздушные линии.
- В-третьих, на родине есть специальные функциональные зоны, для которых требуется более высокая интенсивность воздушного обмена.
В этом случае речь идет о подвалах, бассейнах, зимних садах, спортзалах, домашних кинотеатрах и других необычных жилых районах. Такие помещения оснащены специальными силовыми и вытяжными устройствами.
- В-четвертых, современные строительные и отделочные материалы показывают гораздо лучшую паропроницаемость.
Модель для двойных стеклопакетов и изоляция фасадов уменьшает естественный поток воздуха, тем самым увеличивая интенсивность «входящего» потока.
- В-пятых, в современных домах используется только энергетическая вентиляция хижины — входная ветвь такой системы нагревается энергией выхлопного тока. В противном случае автономный обогрев кабины просто не может справиться с потерями тепла, вызванными потоком холодного воздуха.
Поэтому проектировщику системы воздушного потока необходимо добиться баланса между необходимостью интенсивного воздушного обмена и желаемой энергоэффективности системы.
Успех проекта зависит от точности определения степени функциональных областей и характеристик подающих и выхлопных устройств, обслуживающих эти районы.
Приточная и вытяжная вентиляция хижины — возможные возможности дизайна
Типичный проект вентиляции дома основан на следующих конструктивных решениях:

- Схема с естественной мотивацией для входа и потока выхлопных газов.
Естественная вентиляция хижины обеспечивает наивысшую экономию энергии, поскольку голова и давление в каналах обеспечивается разностью давлений между подачей и выхлопной трубой или разностью температур между домом и дорогой.
Слабой стороной такой схемы является наименьшая интенсивность воздушного обмена, так как скорость естественного индукционного тока не превышает 1-2 метров в секунду. Кроме того, необходимо учитывать размеры воздуховодов, что затрудняет маскировку «внутренних» каналов в помещениях.
- Схема с механической стимуляцией подаваемых и выхлопных газов.
Этот параметр обеспечивает максимальную интенсивность воздушного обмена. В этом случае механические блоки могут быть установлены не только на выходе или входе в систему, но и на любую часть линий, которые регулируют обмен воздуха в данной области жилого помещения.
Однако энергоэффективность такой системы далеко не идеальна. Кроме того, механическая вентиляция очень громкая и не работает в случае сбоя питания.
- Комбинированная схема с естественной стимуляцией приточного воздуха и механической стимуляцией крышки.
В этом случае вытяжная вентиляция хижины работает от лопастей вентилятора, и поток обеспечивает разность давлений на уровне пола и потолка помещения.
Вентиляция в коттедже
Этот вариант можно назвать истинным «золотым» центром. В конце концов, он обеспечивает приемлемую энергоэффективность и обеспечивает высокую интенсивность воздушного обмена.
Кроме того, контролируя скорость вращения вентилятора в выхлопе определенной функциональной зоны, можно регулировать интенсивность воздушного обмена в определенном помещении.
Поэтому небольшие дома или жилые помещения с автономными системами электроснабжения должны быть лучше оснащены естественной вентиляцией.
Большие объекты оснащены только принудительной вентиляцией с механическим движением потока. Малые дома оснащены смешанной вентиляцией с естественным притоком и принудительной экстракцией.
Повышение энергоэффективности систем вентиляции
В дополнение к переключению на естественную циркуляцию токов существует несколько других способов повышения энергоэффективности системы вентиляции:
- Оптимизация характеристик оборудования под давлением и пропускной способности воздуховода.
Эти параметры адаптированы к потребностям конкретной функциональной области. В результате, жилые помещения, в которых требуется всего 3 кубических метра воздуха на квадратный квадрат, оснащены механическими напитками с естественной или низкой мощностью, кухня, подвал, бассейн и другие проблемные зоны — это колпачки с наивысшей мощностью. В этом случае, в качестве оборудования давления используются только под давлением лопасти управления.
- Применение эффекта обработки — передача энергии горячего выхлопа в холодный приточный воздух.
В этом случае в систему встроен специальный узел — рекуператор, по которому закрываются исходящие и входящие потоки.
- Практика использования местных воздушных сепараторов, уменьшая процент влажности без осаждения воздушной массы над стенами хижины.
- Он используется в качестве вентилятора для потока фанкойлов — водяных радиаторов, встроенных в систему отопления хижин.
- Использование вторичного воздуха — это замена холодного притока увлажненной и очищенной вентиляцией.
Согласованное использование вышеуказанных рекомендаций поможет снизить потребление энергии даже в самой «неустанной» вентиляционной системе.
Система вентиляции в коттедже является типичным решением для кабины 1100 квадратных метров.
Система воздухозаборника системы воздухообмена в коттедже может выглядеть так:

Вентиляционная установка Breezart, воздуховоды и воздухораспределители Trox
- Установка Breezart Aqua обеспечивает ограждение, нагрев и подачу тока в кабину (фанкойл, электромагнитный клапан, EBMPapst конверсионный клапан, производительность до 2500 м3 / ч).
- Фильтры Carel и увлажнители, которые обеспечивают грубую очистку потока.
- Дистрибьюторов Trox и воздушных каналов того же бренда, которые приносят измеренные токи в каждую функциональную область дома.
- Баланс-S-диффузоры, которые распределяют поток в области, свежий воздух пьют всю комнату от пола до потолка.
- Абсорбенты шума LDC, компенсация вибрации блока давления и воздуховодов.
Возможная версия системы вытяжки вторичного воздуха может быть выполнена следующим образом:
- Основой внутреннего оборота является Mitsubishi Airbus Heavy KX4.
- Дистрибьюторы — это каналы Arktos или Trox.
- Системные коллекторы — это блоки Mitsubishi.

Воздушные и вентиляционные каналы для вентиляции и кондиционирования воздуха
В этом случае выхлопная секция лучше оснащена следующим образом:
- Установка Breezart Extra, обеспечивающая мотивацию в выхлопном канале (звукоизолированный вентилятор, вентилятор EBMPapst с инвертором, магнитный приводной клапан, производительность до 2000 м3 / ч).
- Каналы Arktos или Trox.
- Рекуператор или блок VAV.
Блок управления, который регулирует интенсивность воздушного обмена в разных зонах хижины, состоит из следующих элементов:
- Датчики давления JetLogic JL201DPR
- Электромагнитные клапаны с модулем управления JL201
- Контроллеры для центральных канальных тормозов и боковых рычагов JLC-100
- Термостаты, датчики движения и поток.
- Панели управления MT-6070iH
- Кросс-модуль RSCON-01.
Данное оборудование предназначено для использования блоков Breezart VAV (системы управления воздушным потоком).
Эта конфигурация обеспечивает воздушный обмен в коттедже общей площадью 600-700 квадратных метров.
Кроме того, здания с меньшим пространством могут комплектоваться только входом или выходом, дополненными подходящими каналами для естественного извлечения или приближения.
Мы также рекомендуем вам посмотреть:
Как сделать систему вентиляции в коттедже своими руками. Устройство, схемы и проекты
Система вентиляции в коттедже необходима даже если вокруг лес или чистое поле, речка и никаких промышленных гигантов, а сам дом возведен из природных «дышащих» материалов.
В зависимости от размеров и архитектурных особенностей коттеджа проект вентиляции может основываться на естественной тяге или на механической.
Каково устройство вентиляции коттеджа и можно ли собрать ее своими руками?
Проектирование и виды вентиляции коттеджей
так выглядит проект вентиляции коттеджа)
При проектировании вентиляции для коттеджа учитываются площадь, назначение помещений, географическое расположение и режим использования здания. Принципиальное отличие схемы вентиляции коттеджа от квартиры в облегченных системах фильтрации наружного воздуха.
Кроме этого, проектируя коттедж, можно сразу предусмотреть прокладку вентиляционных шахт.
В коттеджах своими руками можно оборудовать один из трех видов вентиляции:
- приточно-вытяжная вентиляция коттеджа с естественной тягой;
- приточно-вытяжная с принудительной тягой, в том числе энергоэффективная с рекуперацией тепла ;
- комбинированная приточно-вытяжная.
О том, как подобрать подходящую вентиляцию для своего коттеджа и сделать ее своими руками мы расскажем далее.
Естественная вентиляция коттеджа
Естественная вентиляция в коттедже – это самый простой, древний и широко используемый вид вентиляции.
Движение воздуха в дом и из него осуществляется за счет разницы давления и температуры воздуха на улице и внутри. На интенсивность тяги влияет направление ветра, температура воздуха и атмосферное давление.
При естественной вентиляции коттеджа воздух вытягивается из помещений и замещается уличным.
Чтобы эта схема эффективно работала в современных условиях необходимо обеспечить приток воздуха.
В изначальном варианте воздух поступал через щели между бревнами, в оконных проемах и под дверями. Вытягивался же через печную трубу.
Технологии, используемые в современном коттеджном строительстве, позволяют достичь практически полной герметичности здания.
А печи и камины есть далеко в каждом доме. Как сделать вентиляцию в коттедже с пластиковыми окнами и современной системой отопления?
Перед тем, как начать обустройство вентиляции в коттедже, следует взвесить все плюсы и минусы естественной системы вентиляции для коттеджа.
Плюсы:
- недорогое оборудование;
- несложный монтаж;
- отсутствие затрат при эксплуатации;
- работает неслышно.
Минусы:
- эффективность вентиляции зависит от погодных условий;
- зимой в жилые помещения подается холодный воздух, то есть затраты на отопление могут возрасти;
- естественная вентиляция не справится, если в доме есть бассейн.
О дополнительной вентиляции придется подумать и для парилки.
Вооружившись знаниями, соорудить такую систему вентиляции коттеджа своими руками сможет сам хозяин.
Приток воздуха в коттедже
оконный приточный клапан
Можно понадеяться на форточки и периодическое проветривание.
Но качественная естественная вентиляция коттеджа должна обеспечивать постоянное движение воздуха со скоростью не более 0,2 метров в секунду. Поэтому для притока устанавливаются специальные клапаны.
Оконные приточные клапаны встраиваются непосредственно в оконную раму.
Они пропускают небольшое количество воздуха, достаточное для естественного воздухообмена.
Варианты устройства вентиляции загородного дома
При этом в доме нет сквозняка и клапан можно закрыть, если на улице очень холодно.
По такому же принципу работают и стеновые приточные клапаны. Это трубы, с двух сторон прикрытые решетками. С улицы к решетке примыкает шумоглушитель и иногда фильтр. Изнутри воздуховод прикрывается регулирующей шторкой, с помощью которой поток воздуха делается больше, меньше или полностью перекрывается.
Усовершенствованные приточные клапаны для естественной системы вентиляции коттеджа автоматически открываются и закрываются.
Работают они под управлением датчиков влажности.
Отток воздуха
Вытяжная вентиляция в коттедже обеспечивается воздуховодами, выходы которых располагаются в наиболее «грязных» или влажных частях дома: санузел и кухня.
Внутри помещений выходы прикрываются пластиковыми решетками. Наружный конец трубы должен выходить на 0,7 – 1 метр над уровнем крыши. Иначе хорошей тяги не видать. Конец вытяжного воздуховода коттеджа прикрывается зонтиком от дождя и снега.
В двух- или трехэтажных коттеджах вентиляция будет работать лучше, чем в одноэтажных.
Предусмотреть вентиляционные шахты нужно заранее, еще на этапе возведения стен. Желательно заказать проект естественной вентиляции коттеджа профессионалу, он точно рассчитает ширину вентканалов, количество приточных клапанов.
Если дом куплен готовым и система воздухообмена в нем не предусмотрена, владелец неминуемо сталкивается с вопросом «как устроить вентиляцию в коттедже?».
Придется немного нарушить внутреннюю отделку, но даже в полностью готовом доме можно найти место для вытяжных вентканалов. Приточные же клапана для вентиляции коттеджа своими руками может установить хозяин.
Комбинированная вентиляция коттеджа
Комбинированная схема вентиляции коттеджа это естественная, усиленная техническими средствами.
Как правило, приток обеспечивается все теми же клапанами.
А вот отток воздуха осуществляется принудительно. При выборе вентиляторов следует учитывать не только мощность, но еще и шумопроизводительность. Ведь если в шумном городе 20 децибел совершенно незаметны для жильцов, на природе они могут создавать неудобства.
Способы организации принудительного отвода воздуха:
направленный воздухообмен в коттедже
Это принудительный приток воздуха, устраняющий существенный недостаток естественной системы вентиляции коттеджа: подачу холодного воздуха.
Приточное оборудование подогревает чистый уличный воздух электротеном или водяным калорифером и в жилые комнаты он поступает оптимальной температуры.
Приточная установка может быть наборной или моноблочной. Распределяется по комнатам воздух через воздуховоды, а подается в помещение диффузором в потолке или на стене.
За счет повышения давления в комнатах отработанный воздух просто «выдавливается» в коридоры, а оттуда в вентиляционные каналы (кухня и санузел).
Приточная установка недешева, да еще и довольно громоздка. В больших и комфортабельных коттеджах для оборудования выделяется специальное помещение.
Приточно-вытяжная вентиляция коттеджа
схема приточно-вытяжной вентиляции
Это наиболее эффективная система вентиляции коттеджа.
Проектируют приточно-вытяжную систему вентиляции коттеджей только специалисты. Необходимо грамотно развести по дому сеть воздуховодов, рассчитать их диаметр, в нужных местах установить дополнительное оборудование, а также подобрать вентиляторы. Поэтому проектировать вентиляцию коттеджа нужно одновременно с проектированием самого здания.
При такой схеме вентиляции в комнаты поступает фильтрованный и подогретый (охлажденный) воздух и одновременно вытягивается отработанный.
Главное преимущество приточно-вытяжной системы вентиляции – это работа в автоматическом режиме при заданных параметрах. В коттедже с приточно-вытяжной системой вентиляции не нужно кондиционировать воздух.
Самые современные системы оборудованы рекуператором, позволяющим использовать тепло отработанного воздуха для подогрева приточного.
Рекуператор представляет собой теплообменник, принимающий тепло у одного потока воздуха и передающий другому. За счет рекуперации экономятся тепловые ресурсы, расходы на эксплуатацию снижаются в среднем на треть.
Вентиляция помещений различного назначения в коттедже
Вентиляция гаража

пример вентиляции гаража
В гараже скапливаются выхлопные газы, испарения смазочных материалов и горючего.
В определенной концентрации они опасны для здоровья и жизни. Особенно важно правильно оборудовать вентиляцию, если гараж устроен в цоколе коттеджа или пристроен к нему вплотную. Устанавливается мощная принудительная вытяжка.
Вентиляция кухни
Это помещение, нуждающееся в усиленной вентиляции.
Испарения, запахи приготовляемой пищи и жар не должны распространяться по дому. Поэтому над варочной поверхностью делают вытяжку, а для оттока паровых скоплений под потолком оборудуют выход вытяжного вентканала.
Кстати, механическая кухонная вытяжка может значительно изменить движение потоков воздуха и нарушить вентиляцию дома!
Подробнее о проектировании естественной вентиляции коттеджа консультируйтесь со специалистом.
Вентиляция санузла
В наиболее влажных местах коттеджа обычно проектируют естественную вентиляцию.
Иногда воздухообмен усиливается за счет принудительной тяги – вытяжных вентиляторов. По правилам оборудования вытяжной вентиляции коттеджей воздуховоды из туалета и ванной комнаты не объединяются с воздуховодами из других помещений.
Вентиляция бассейна
Обилие постоянно испаряющейся влаги требует интенсивной вытяжки.
Одновременно с этим необходимо поддерживать комфортную температуру воздуха. Поэтому такие помещения в коттеджах оборудуют приточно-вытяжными системами вентиляции, а также осушителями воздуха.
Вентиляция жилых помещений
Для жилых помещений вполне достаточно обеспечить постоянный приток свежего воздуха с улицы, который будет вытеснять использованный через щели в дверных коробках, под межкомнатными дверями.
Поэтому при проектировании вентиляции коттеджа можно ограничиться приточными клапанами или приточными воздуховодами в зависимости от выбранной воздухообменной системы.
Вентиляция цокольного этажа коттеджа
В цокольном этаже коттеджа могут размещаться мастерские, сауна, бассейн, прачечная, кладовые.
Для создания нормального микроклимата необходимо оборудовать вентиляцию цокольного этажа коттеджа. Она состоит из вентиляционных каналов, а также одной или нескольких форточек.
Обязательно на стадии проектирования коттеджа вентиляционные отдушины цоколя предусматриваются.
Количество и площадь отдушин зависит от размеров дома, его расположения, рельефа местности, типа почвы. О том, как правильно их рассчитать, смотрите видео.
Вентиляция в цокольном этаже коттеджа обеспечивается и приточно-вытяжной системой.
Она состоит из двух труб: по одной воздух попадает в подвал, по другой вытягивается наружу. Трубы устанавливают вертикально в противоположных углах помещения. Выход вытяжной трубы должен быть на 20 – 30 см. ниже потолка. А выход приточной – на 20 см. выше пола. Вытяжная труба выводится на чердак.
Если в коттедже оборудован камин, желательно вентиляцию цокольного этажа коттеджа располагать возле дымохода. Это усиливает тягу.
Чтобы регулировать движение воздуха используются шиберные заслонки.
Если влажность в цокольном этаже велика и естественная вентиляция не справляется, в вытяжную трубу устанавливается вентилятор, принудительно удаляющий влажный и спертый воздух.
Рекомендуем ознакомится: http://strojdvor.ru
stroitel12.ru
Как самостоятельно сделать вентиляцию в частном доме
При строительстве коттеджа или частного дома своими руками возникает много вопросов. От правильного решения всех задач зависит комфорт и уют в вашем доме. На стадии проектирования важно учесть все нюансы, касающиеся обустройства отопления, водоснабжения, электроснабжения. Также, возникает вопрос о том, как сделать вентиляцию в частном доме, обеспечивающую бесперебойное поступление чистого воздуха в помещение. Правильное обустройство вентиляционной системы позволит не только создавать благоприятный микроклимат, но и удалять из помещения запахи и вредные вещества, выделяемые мебелью, краской, линолеумом и т.д. Также качественная система вентиляции для частного дома предотвратит образование конденсата и плесени в комнатах с повышенной влажностью.

Пример естественной вентиляции
Раньше, естественную вентиляцию в домах обеспечивали деревянные окна, имеющие неплотные оконные проёмы, и вытяжки, установленные в санузлах и на кухнях. Но, с появлением металлопластиковых окон, обеспечивающих полную герметизацию, об естественной вентиляции частного дома через оконные проёмы пришлось забыть. Постоянное проветривание лишь частично решает проблему, а иногда только усугубляет её. Например, летом вместе с воздухом в дом попадает пыль, насекомые и различные аллергены. Но как же обеспечить необходимую циркуляцию воздуха? Нас интересует устройство вентиляции в частном доме своими руками. При строительстве домовладения можно использовать один из двух вариантов вентиляции: естественную или механическую.
Естественная — функционирует за счёт разницы давления в помещении и за его пределами. При механической системе вентиляции воздухообмен осуществляется с помощью нагнетательных устройств.
Какую систему вентиляции выбрать?
Комфортный для домочадцев микроклимат обуславливается температурой и скоростью поступающего свежего воздуха. Чем меньше скорость воздушных потоков, тем комфортнее условия.
Естественная система вентиляции предусматривает движение воздуха со скоростью около 1 куб.м/час. При механической (принудительной) вентиляции скорость воздушного потока увеличивается до 3–5 куб.м/час.
Из этого следует вывод: естественная вентиляция наиболее предпочтительнее для создания благоприятного микроклимата.
Естественная вентиляция в частном доме своими руками возможна в тех случаях, когда:
— домовладение находится в экологически чистом районе;
— для строительства использовались следующие материалы: саман, шлакоблок, дерево, кирпич, керамзитобетон.
Преимущества естественной вентиляции:
— не требуется установка дополнительного оборудования;
— энергонезависимая, отсутствует необходимость технического обслуживания;
— бесшумность работы.
Недостатки:
— недостаточный обмен воздуха, грозящий образованием конденсата и плесени;
— невозможность регулировать воздухообмен.
Зачастую случается так, что обустройство естественной вентиляции невозможно по тем или иным причинам. Например, если частный дом расположен в районе с загрязнённым выхлопными газами воздухом. Для того, чтобы естественный воздухообмен нормально функционировал, отдушина должна иметь достаточно большой диаметр, обеспечить который не всегда возможно. В таких случаях следует использовать механическую систему вентиляции, которая также уместна, если домовладение будет строиться из сотопанелей, 3d панелей, сендвич-панелей и других воздухонепроницаемых материалов.

Схема с механическим побуждением
Преимущества механической вентиляции в доме:
— не зависит от погодных условий;
— возможность подачи доведённого до комфортной температуры воздуха;
— возможность увлажнения и очищения воздушных масс с помощью устанавливаемых в систему вентиляции фильтров;
— регулирование воздухообмена.
Недостатки:
— необходимость регулярного техобслуживания;
— зависимость от электроэнергии;
— затраты на покупку и монтаж вентиляции в частном доме.
Обустройство естественной вентиляции
Для устройства естественной вентиляции в частном доме своими руками необходимо, в первую очередь нужен расчёт вентиляционной системы, сделанный на основании таких данных, как объём воздуха в помещении и число проживающих в нём людей. Перед тем как установить вентиляционную систему, также стоит учесть приборы, сжигающие кислород и выделяющие вредные вещества.
Установка и естественной, и механической вентиляции осуществляется в семь этапов:
- Расчёт объёма воздухообмена (определение нужного количества поступающих воздушных масс, соответствующих санитарным требованиям).
- Определение размеров воздуховодов.
- Выбор системы вентиляции (естественной или механической). Решение принимается после тщательного анализа параметров помещения и окружающей среды.
- Составление схемы вентиляционных каналов.
- Определение местоположения вентиляционного оборудования.
- Выбор мест забора и вывода воздушных масс.
- Монтаж системы вентиляции.

Проектная схема вентканалов
Чтобы построить естественную вентиляцию в коттедже своими руками не обязательно обладать профессиональными навыками. Просто надо изучить некоторые моменты монтажа. Одним из них является прокладка в несущей стене вытяжного канала диаметром 14 см, с толщиной кладки полтора кирпича. Данное условие необходимо для предотвращения эффекта обратной тяги. Далее, от центрального канала прокладывают горизонтальную разводку по комнатам, диаметр которой составляет 10 см. Для обеспечения достаточной силы тяги вытяжную трубу делают выше конька.
Приток свежего воздуха может осуществляться через приточный оконный клапан, устанавливаемый в металлопластиковых окнах производителем. Клапан представляет собой регулируемую щель в верхней части окна. Данный способ рассматривается при необходимости замены старых или установки новых металлопластиковых оконных блоков.
Если же окна уже установлены, естественная вентиляция в частном доме может быть обеспечена приточным стеновым клапаном. В стене делается сквозное отверстие и вставляется круглый патрубок, оснащённый с обеих сторон решетками. С внутренней стороны клапан открывается и закрывается с помощью регулируемой решётки. Чтобы не портить интерьер комнаты, установленный возле окна клапан прикрывают шторой. Для прогревания воздуха, поступающего с улицы в зимний период, приточный клапан может быть установлен непосредственно за радиатором отопления.

Пример установки приточного клапана
По желанию домовладельца приточные клапаны оснащаются датчиками и системами фильтрации. Устанавливаются они, как правило, в зале, спальнях, кабинетах. В бытовых комнатах делаются вытяжные каналы. Таким образом соблюдается правильное направление движения воздушных масс. Если для достаточного поступления свежего воздуха требуется установка большого количества приточных клапанов, целесообразнее будет сделать выбор в пользу механической вентиляции.
Обустройство механической вентиляционной системы
Механическая вентиляция делится на:
— приточную;
— вытяжную;
— приточно-вытяжную.
Приточная вентиляция подразумевает принудительную подачу воздушных масс с улицы в помещение.
Такая система вентиляции устанавливается с целью обеспечения поступления свежего воздуха взамен отработанного и включает в себя:
— вентиляционный воздухоприёмник;
— приспособления для доведения воздушных масс до комфортной температуры;
— систему фильтрации;
— шумопоглотитель;
— устройства для подачи воздуха в комнаты.
Принцип работы этой системы заключается в том, что чистый, доведённый до определённой температуры воздух, попадая в помещение с помощью вентилятора вытесняет отработанный.

Приточно-принудительная схема
Существует много схем и способов размещения принудительной вентиляции. Самым доступным является организация вентиляционной системы с притоком в прихожей. Это объясняется тем, что прихожая примыкает практически ко всем комнатам. За счёт этого, поступающий с улицы, воздух будет равномерно распределяться по всему дому.
После определения местоположения устройства, следует произвести расчёт количества воздуха необходимого для притока. Выполняется он так же, как для естественной вентиляции. Далее нужно подобрать и установить оборудование. Можно купить все элементы системы по отдельности или приобрести готовую установку, не требующую сборки. Готовая приточная вентиляция — это комплект оборудования для обработки воздуха, находящийся в утеплённом моноблоке. Данное устройство можно монтировать к потолку либо размещается снаружи здания. Затем производится подключение к воздуховодам и электричеству.
Чтобы воздух беспрепятственно двигался по всем комнатам от места притока к вытяжке, необходимо сделать переточные решётки в межкомнатных дверях. Также можно при установке двери оставить зазор, размером около 2 см.
Все больше домовладельцев устанавливают приточно-вытяжную вентиляцию своими руками, оснащённую функцией рекуперации. Рекуператор — это энергосберегающий теплообменник, в котором вытяжные и приточные массы не перемешиваясь обмениваются тепловой энергией. Движение воздуха в установке происходит за счёт вентилятора. Это устройство выгодно применять в зимний период. Оно позволяет сэкономить около 50% тепла в частном доме.
Поступающие холодные воздушные массы с улицы частично нагреваются за счёт тёплого вытяжного воздуха. В сильные морозы такой способ нагрева воздуха бесполезен, целесообразнее будет включить калорифер, встроенный в систему рекуперации. Для размещения крупногабаритного оборудования выбирают чердак или цоколь.
Заключение
Зная, как правильно сделать вентиляцию в доме своими руками, можно сэкономить бюджет семьи на услугах специалистов. Главное, ответственно подойти к её организации, правильно сделать расчёты и выбрать наиболее подходящий тип вентиляционной системы. И тогда, всем обитателям частного дома будут обеспечены комфортные условия проживания.
ventilyaciyadom.ru
Вентиляция в частном доме или коттедже
Систему вентиляции коттеджа проектируют ещё до начала строительства. Проект должен быть согласован с проектами разводки электросетей, отопления, кондиционирования, удовлетворять требованиям СНиП (строительные нормы и правила), правилам противопожарной безопасности. В коттедже должно быть отведено техническое помещение для размещения вентиляционного оборудования, обычно оно находится в подвале или на чердаке.
Наши преимущества:
10
10 лет стабильной и успешной работы
500
Выполнено более 500 000 м2
₽
Почему у нас лучшая цена?
24
Минимальные сроки
100
100% контроль качества
5
5 лет гарантии на выполненные работы
1500
1500 м2 площадь собственных складских помещений
Примеры проектов в PDF-формате
Коттедж общей площадью 191,76 м2
3 спальни, гостиная, кухня-столовая, гардеробная, ванная, постирочная, гараж, подсобное помещение, одноэтажный.
Варианты проектов:
Вентиляционное оборудование Breezart
Для вентиляции коттеджей мы рекомендуем оборудование Breezart. Вентиляционные установки Breezart уже в базовой комплектации имеют все, что необходимо для полноценной работы — систему автоматики с пультом управления, датчики температуры и загрязнения фильтра, воздушный клапан с электроприводом и смесительный узел. Возможна комплектация дополнительными секциями.
PDF-Каталог Прайс-лист
Подробнее об оборудовании Breezart
Вентиляционное оборудование Systemair
Приточно вытяжные системы вентиляции с рекуперацией тепла шведской компании. Энергоэффективные моноблоки, как вертикального и горизонтального открытого крепления (в ванной или кладовке квартиры или коттеджа), так и скрытого запотолочного крепления. Подогрев воздуха осуществляется от электричества при потреблении не более 2 кВт на каждые 350 кбм воздуха или от водяного калорифера. Приточные установки отличает высочайшее качество, надежность работы и пониженная шумность.
Вентиляционное оборудование Frivent
Фирма «FRIVENT GmbH» специализируется на выпуске вентиляционного оборудования для предприятий промышленности, офисных зданий, складских помещений, спортсооружений, жилых домов, коттеджей, бассейнов, аквапарков. Приоритетным направлением является выпуск оборудования для приточно-вытяжной вентиляции с рекуперацией тепла. Наличие широкого спектра оборудования позволяет осуществлять общеобменную вентиляцию и кондиционирование зданий, учитывая самые сложные архитектурные решения построек. Экономичные, компактные установки позволяют создавать благоприятный климат в помещениях и экономить на энергозатратах, что очень актуально во время интенсивного роста цен на энергетическом рынке.
Рекупирация тепла
Системы рекупирации энергии относятся к средствам управления температурой подаваемого воздуха. Если просто нагнетать воздух с улицы в помещение зимой, то на его нагрев до комфортной температуры (которая составляет 18-20 градусов Цельсия) будет затрачено весьма значительное количество энергии. Если установить на входе в систему активируемый при необходимости калорифер, то эти затраты в зимнее время получится существенно уменьшить. Систему также можно объединить с кондиционером, что позволит летом, наоборот, охлаждать воздух. Это также становится фактором экономии: если воздух охлаждается уже на входе в систему циркуляции, то нет необходимости тратить много энергии на реализацию климат-контроля в каждом конкретном помещении.

Затраты на установку системы рекупирации окупятся, за счёт экономии энергии, в течение нескольких лет эксплуатации.
Типы воздуховодов
Какие именно воздуховоды следует использовать? Чтобы ответить на этот вопрос, необходимо сначала разобраться в их классификации. Классифицировать воздуховоды можно по двум параметрам:
- Круглые или прямоугольные в сечении.
- Жёсткие или гибкие.
Главным параметром при этом является сопротивление воздуха: от того, насколько оно велико, зависит как эффективность вентиляционной системы, так и затраты электроэнергии на её работу.
Круглый в сечении воздуховод, в этом отношении, имеет преимущество над прямоугольным. А жёсткий, в свою очередь, над гибким. Однако, гибкие воздуховоды иногда необходимы конструктивно.
Поэтому, оптимальный подход можно описать так: следует использовать круглые в сечении жёсткие воздуховоды для основных магистральных путей, а ответвления системы выполнять при помощи гибких.
Впрочем, возможны различные индивидуальные нюансы, зависящие от особенностей дома. Все эти вопросы необходимо прорабатывать при проектировании системы.
О проектировании
Дизайн должен быть разработан с учётом прокладки воздуховодов (за подвесным потолком, под полом или в стенах), расположения воздухораспределителей (решёток или плафонов), чтобы поступающий воздух не создавал дискомфорта находящимся в помещениях людям.
В кухне и во всех санузлах обязательно должны присутствовать каналы вытяжной вентиляции. Хватит ли для данного коттеджа естественной вытяжной вентиляции, или необходима установка механической, сможет рассчитать лишь специалист. На механическую вытяжную вентиляцию на кухне желательно установить жироулавливающий фильтр, иначе вытяжной вентилятор и внутренняя поверхность воздуховода быстро покроются слоем жира и копоти.
Самая простая система приточной вентиляции представляет из себя небольшие отверстия в стенах или оконных рамах, в отверстия устанавливаются приточные клапаны , через которые будет поступать воздух с улицы. Такая система проста в применении, и стоит недорого, но её работа очень сильно зависит от случайных факторов — направления и силы ветра, температуры воздуха.
Гораздо более высокий уровень комфорта в коттедже обеспечит система механической вентиляции, но и стоит она намного дороже. Кроме того, приточная механическая вентиляция потребляет много энергии и требует очень большой мощности электрических сетей, имеющихся мощностей может просто не хватить на подключение приточной вентиляционной установки. Эту проблему может решить установка приточно-вытяжной системы с рекуператором. Если в коттедже будет своя котельная, можно установить систему с водяным калорифером вместо электрического, что также позволит снизить расход электроэнергии.
Производительность приточной и вытяжной системы должна быть сбалансирована, иначе в помещениях будет образовываться недостаточное или избыточное давление, что приведет к неприятному эффекту «хлопающих дверей» и может плохо сказываться на самочувствии жильцов дома. Нужно учесть все тонкости, например, если в комнате есть камин, много кислорода расходуется на горение, а значит и приточная вентиляция в этой комнате должна быть более мощной. Отдельных расчётов требуют комната для курения (дым от сигарет не должен застаиваться в комнате), спортивный зал (при физических нагрузках человек расходует больше кислорода). Только грамотный специалист сможет, учтя все нюансы, спроектировать систему вентиляции, обеспечивающую максимальный уровень комфорта в вашем доме.
Помещения в доме, нуждающиеся в вентиляции
Вентиляционная система особенно остро необходима помещениям, наиболее проблемным с этой точки зрения: кухонным, и санузлам. На кухне количество избыточной влаги за сутки может достигнуть пяти литров – и её требуется как-то выводить. Конденсат влечёт за собой появление грибка, что крайне вредно для санитарной обстановки.
В спальне вы проводите, в среднем, по 8 часов в день. Опасность здесь представляет как конденсат, так и избыток углекислого газа.
То же самое касается гостиной, или иного общественного пространства в доме. Если в течении часа не сменить воздух на свежий, ситуация станет вредной для здоровья. Таким образом, система вентиляции должна быть продумана, и профессиональна реализована для каждого помещения в доме. Одних только кухонной вытяжки и вытяжного вентилятора в ванной недостаточно.
Нюансы, зависящие от дома
Принципиальной разницы в организации вентиляции дома нет – вне зависимости от того, построен ли он из дерева, является каркасным, кирпичным, или любым другим.
Справедливое суждение о том, что дерево «дышит», следует относить к вопросу состояния самого дерева, но никак не к воздуху внутри помещения. Установленные требования к обеспечению циркуляции воздуха существенно не изменяются в зависимости от того, каковы материал и технология строительства. Коррективы используемых приёмов и требований относятся только к деталям, на которых мы не станем подробно останавливаться.
Рекламные слоганы о том, что в деревянном доме за сутки естественным образом меняется 30% воздуха, не должны вводить в заблуждение. Как было отмечено выше, полная замена необходима в течении часа, или хотя бы нескольких часов.
Предпочтительно проектировать систему вентиляции непосредственно при проектировании самого дома. В этом случае её работа будет более эффективной, и получится избежать дополнительных трат: как материальных, так и временных.
Выбор между естественной и принудительной вентиляцией
Естественная вентиляция обладает очевидным преимуществом: она несравнимо технически проще в реализации, а потому и дешевле. Кроме того, на её работу не затрачивается электроэнергия.
Однако, у естественной вентиляции есть целый ряд недостатков в части её эффективности.
Согласно нормам по циркуляции воздуха, для естественной вентиляции объём его перемещения составляет примерно 1 кубический метр в час. В то же время, принудительная механическая вентиляция, в зависимости от параметров системы, обеспечивает замену 3-5 кубических метров воздуха в час. Таким образом, принудительная вентиляция на практике эффективнее в 3-5 раз!
Если отток и приток воздуха обеспечивается естественным путём, необходимо значительно большее сечение вентиляционного канала. Как результат – необходимый по размеру вентиляционный канал не всегда возможно разместить внутри стен. В итоге, единственным эстетически приемлемым вариантов оказывается ещё помещение под подвесным или натяжным потолком – а это снижает высоту потолка.
Проблему отчасти решает установка вентиляторов в канале естественной вентиляции, но кардинального изменения ситуации при этом всё-таки не происходит. Ещё один существенный недостаток естественной вентиляции, в сравнении с принудительной – это отсутствие возможности контролировать интенсивность удаления воздуха из помещения, и подачи свежего.
Принудительная вентиляция –более эффективный способ, однозначно являющийся предпочтительным. Естественная вентиляция применима только для небольших помещений, в которых люди не пребывают постоянно (более двух часов непрерывно), и которые не имеют факторов, требующий повышенных вентиляционных мер.
Способы реализации принудительной вентиляции дома
Простейший вариант принудительной вентиляции – это установка вытяжек и вентиляторов, стимулирующих активное движение воздуха. При установке необходимо выстраивать систему циркулирования, при которой наиболее загрязнённое помещение будет последним в цепочке – иначе эффект получится обратным от ожидаемого.
Удобно использовать вентиляторы скрытого монтажа, которые не вредят дизайну интерьера. Такие вентиляторы устанавливают в запотолочном пространстве: они, как и смонтированные непосредственно на решётках воздуховодов, подают воздух из помещения в общую систему его вывода.
Организация приток воздуха в помещения может быть сведена к созданию разницы давлений внутри и снаружи дома. Жильцы не почувствуют такого различия, однако оно обеспечит эффективную циркуляцию.
Проблема шумность решается различными конструктивными приёмами: например, использованием резинометаллических втулок. Современные вентиляторы, конечно, не способны работать абсолютно бесшумно – однако, они не оказывают серьёзного влияния на комфорт жильцов дома.
Вентиляторы и вытяжки – не самое продвинутое решение из тех, что доступны сегодня. Установка отдельно смонтированной приточной системы обладает рядом немаловажных преимуществ.
Основное из них заключается в вопросе температуры воздуха. При использовании простой принудительной системы, в летнее время воздух в помещении быстро нагревается, а в зимнее, напротив – так же быстро остывает. Поэтому система, доводящая подаваемый в помещение воздух до необходимой температуры, обеспечивает больший комфорт.
Такие системы обладают и дополнительными функциями: очищением воздуха (что особенно важно, если дом находится в черте города, или возле оживлённой автотрассы), управлением влажностью, а также ионизацией.
Подобная система обычно монтируется в нежилом помещении: на цокольном этаже, либо, наоборот, на чердаке. Шум от её работы будет куда меньше беспокоить жильцов. При должном уровне звукоизоляции используемых технически помещении, можно добиться полного отсутствия шума, исходящего от вентиляционной системы, в жилых.
Управление вентиляционной системой традиционно реализуется при помощи обычных выключателей, совмещённых с выключателями света. Но это не единственное возможное решение. Всё большую актуальность обретают системы «умного дома», при использовании которых управление вентиляцией обеспечивается с электронного пульта. Оно даже может производиться, например, со смартфона.
Ещё одним важным преимуществом современных систем принудительной вентиляции является возможность реализации энергосберегающих технологий. На этом вопросе следует остановиться отдельно.
Информация, размещенная на сайте, носит ознакомительный характер и ни при каких условиях не является публичной офертой.
www.air-ventilation.ru
Выгодная вентиляция коттеджа: достоинства и недостатки
Экология за пределами пыльных загазованных мегаполисов несравненно лучше: больше зеленых насаждений, меньше автомобилей и производств, а значит, и воздух значительно чище. Несмотря на эти положительные факторы, при строительстве коттеджа все равно существует необходимость проектирования и установки вентиляционной системы. Если в доме не будет осуществляться постоянный воздухообмен, то качество воздуха в помещениях коттеджа может оказаться значительно хуже, чем снаружи: пыль, влажность, испарения от отделочных материалов, мебели, и углекислый газ – все это должно каким-то образом удаляться. Эту функцию обязана выполнять вентиляция.

Выбор вентиляции для коттеджа зависит от множества параметров: площади и этажности дома, его географического положения, наличия подвала, бассейна, финансовых возможностей. Необходимо учесть, каким образом будет осуществляться ремонт и обслуживание систем вентиляции, ведь без регулярной чистки она потеряет свои функциональные возможности.
Типы вентиляции для коттеджа: плюсы и минусы
Замену воздуха в коттедже должна осуществлять приточно-вытяжная система вентиляции. Вытяжка выводит все отработанные пары, а замещает их свежий атмосферный воздух. Функциональность такой системы осуществляется тремя способами.
Естественная вентиляция
Это наиболее доступный в финансовом плане, самый древний и несложный в монтаже тип вентиляции. Эффективность ее зависит от разницы наружной и внутренней температуры воздуха, параметров атмосферного давления, направления ветра и стабильного поступления в помещение приточного воздуха. Для соблюдения последнего условия придется приложить усилия: держать постоянно открытое окно – не лучший вариант. Для этой цели сейчас принять использовать оконные или стеновые приточные клапаны. Ремонт и обслуживание систем вентиляции естественного типа не представляет больших трудностей и сводится к своевременной очистке вентиляционных каналов и приточных клапанов.
Комбинированная вентиляция
Для поступления свежего воздуха монтируются приточные клапаны. Удаление воздуха осуществляется принудительно за счет вентиляционного оборудования. Если коттедж имеет небольшую площадь, то можно ограничиться установкой вытяжных вентиляторов в санузле и кухне. В этом случае вытяжка работает, когда включен вентилятор. Более эффективный вариант – вывести воздуховоды в общий канал, в котором установлено специальное оборудование. Расчет, установку, ремонт и обслуживание систем вентиляции такого типа должны выполнять специалисты.
Принудительная вентиляция
Система вентиляции для коттеджа необходима независимо от того, из какого материала он выполнен. Даже «дышащие» свойства натуральной древесины не в состоянии обеспечить в закрытом помещении комфортный микроклимат. Расчет и монтаж вентиляции должны выполнять специалисты, которые учтут все факторы для наиболее эффективной работы системы.
Примеры реализации:
turkov.ru
