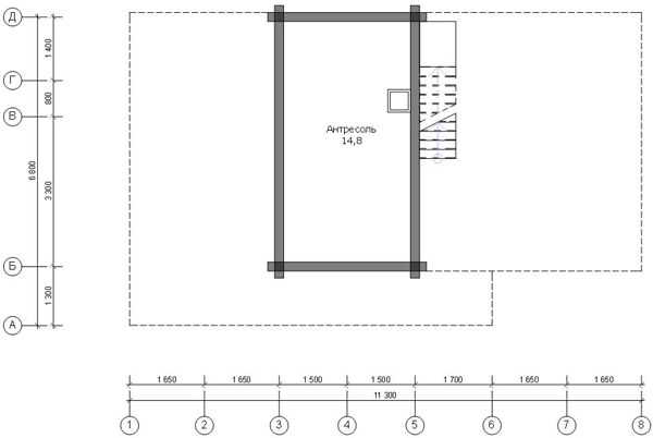
План двухэтажной бани – планировка двухэтажных конструкций с размерами, строительство угловой бани из газобетона размерами 5 на 3 своими руками
Планировка двухэтажной бани с тренажерным залом
Проект и планировка двухэтажной бани с бассейном и тренажерным залом на втором этаже.
Баня в России является неотъемлемой частью практически любого домостроения. Наверное, сложно представить себе даже небольшой коттедж, при котором она не была бы возведена. Проекты бань на самом деле радуют своим разнообразием, поэтому смогут удовлетворить совершенно любого клиента. В этом материале будет предложена двухэтажная баня и её планировка со всеми особенностями. Этот проект гарантирует высокий уровень безопасности от возгораний.
Содержание материала
Оформление парной
На первом этаже располагается парная. Это помещение представляет собой необходимый элемент в планировке бани 3х5. Именно в этом месте человек сможет получить нужную ему энергию, улучшить обмен веществ в организме, а также восстановить свое здоровье. Парная располагается, как правило, между двумя помещениями – комнатой для отдыха и помывочной. Площадь парной составляет 5,7 кв. м.
Стоит учитывать, что на одного человека необходимо около двух кв. м. Высота потолка в этом помещении составляет 2,3 м. Окно только одно. Отлично продумано утепление, так она сможет долгое время сохранять тепло и свои целительные свойства.
Комната отдыха обладает площадью 18,0 кв. м. Здесь размещаются кресла, диваны и стол. Немного правее при входе располагается котельная. Проект бани 7х7 предусматривает, что источником нагревания послужит печь. Она может топиться следующими способами:
- с использованием угля;
- работать на газе;
- топка дровами.
Камни, расположенные наверху печи, будут являться источником пара. На них нужно налить немного воды, после капнуть немного эфирного масла и тогда образуется целебные пары. Температура воздуха здесь может доходить до 100 градусов, уровень влажности не превышает 20%. Это является одним из оптимальных режимов, при котором организм сможет получить максимум пользы.
Правильное обустройство парной
Для правильного обустройства парной учитывались такие факторы, как:
- Хорошее утепление. Это нужно для поддержания необходимой температуры и её сохранения, чтобы получить максимум эффекта от парной. Стоит отметить, что в связи с хорошим утеплением значительно сокращается потребление топлива. Существует большое количество утеплителей, но лучше всего использовать базальтовое волокно. В его основе располагаются твердые каменные породы, которым совершенно нестрашна влага.
- Обшивка бани состоит из пород лиственных деревьев. Для этого лучше всего подходит именно липа. Такая живая древесина устойчива к влиянию высокого температурного режима, а также к высокому уровню влажности. Средняя толщина доски составляет 0,16 см.
- Залогом всей эксплуатации считается правильно выбранная печь. Благодаря ей, вы сможете поддерживать в помещении правильный микроклимат.
- Большого внимания требует система дымохода. Дымоход представлен в виде простой трубы, которая выводит все вредные вещества, скопившиеся в помещении, на улицу. Важно проследить, чтобы циркуляция воздуха была постоянной.
- Полы в парной выполнены из деревянного настила, так как он намного лучше способен сохранять тепло, и даже приятен для ног.
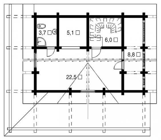
План первого этажа двухэтажной бани
Выход из бани в бассейн тоже требует особого внимания. В него можно сразу попасть из банного комплекса. Температура в этом помещении может быть отрегулирована по собственному желанию, то же самое касается и температуры воды в бассейне. Его глубина составляет 200 см.
Спортзал
Тренажерный зал на втором этаже является особенным местом, так как ему уделялось большое внимание. Место для его расположения выбиралось одним из первых. Решение расположить его на втором этаже не имеет никаких неудобств, даже наоборот. В помещении продумано абсолютно все. К примеру, прочное напольное покрытие выполнено так, чтобы оно могло выдерживать большие и серьезные нагрузки. Продумана хорошая шумоизоляция.
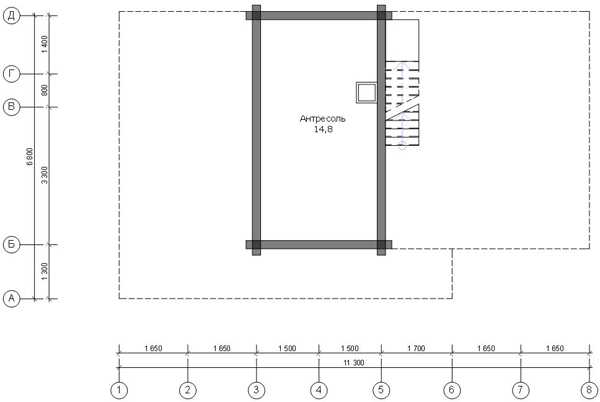
План второго этажа двухэтажной бани
На втором этаже необычная система вентиляции. Она работает настолько быстро и четко, что в помещении всегда свежий воздух. Это очень хорошо, так как высокая физическая активность требует притока свежего воздуха. При организации этого пространства придерживались следующих моментов:
- Комната хорошо освещена и просторна. Окна большие, чтобы помещение проветривалось после занятий моментально.
- Для тренажеров были установлены специально подготовленные стойки.
- На одной стене располагается зеркало в полный рост. Таким образом, было создано ощущение отсутствия границ , и возможность полного контролирования выполнения движений.
- Учитывалось также и место для размещения небольшой музыкальной системы и мини-холодильника.
Выбор тренажеров полностью остается за жильцами, но стоит отметить, что места хватает для размещения большого количества снарядов.
Общие сведения
Помимо перечисленных помещений, проект включает в себя размещение одного санузла, а также дополнительную комнату отдыха на втором этаже бани с мансардой.
Итак:Конструкция: Строительство бани было проведено из оцилиндрованного бревна;
Тип фундамента: монолитный железобетонный;
Тип наружных стен: из оцилиндрованного бревна;
Материал для перекрытий: деревянные балки;
Материал для крыши: дерево.
Общая площадь 110 кв. м.
Эта двухэтажная баня представляет собой уютное и многофункциональное строение. Данная постройка может примыкать к общему дому либо существовать в отдельности. Она используется в качестве места для отдыха и релаксации. Это замечательный вариант для многих семей!
planvsem.ru
Проекты двухэтажных бань из бревна с туалетом
Главная » Материалы » Проекты двухэтажных бань из бревна с туалетомДвухэтажные бани: проекты и фото
Баня в два этажа может использоваться не только по прямому назначению. Часто на вторых ярусах обустраивают бильярдные комнаты отдыха, студии и даже спальни. В любом случае если вы запланировали такую стройку, каждый квадрат будет задействован по назначению. На фотографиях ниже будут рассмотрены различные проекты.
Двухэтажная баня обшитая сайдингом.


Планировка первого этажа, выполнена без ущемления какого-либо помещения. Все комнаты просторные и уютные.

Второй этаж немного меньше, но места для обустройства двух жилых комнат вполне достаточно.
Двухэтажная баня с террасой и высоким остеклением.

В планировке первого этажа продуманная просторная комната отдыха, парная и душевая.

Пространства второго этажа вполне достаточно для дополнительных помещений.
Баня в два этажа с мансардой


На первом этаже достаточно места даже для обустройства бассейна, а на втором предусмотрены две уютные спальни и выход на террасу.
Двухэтажная баня с мансардой на третьем ярусе.
superbany.ru
Двухэтажные бани лучшие проекты — Всё о бане

Проекты лучших двухэтажных бань
Издавна баня была только баней – в ней парились, мылись и изредка отдыхали. Сегодня же все больше дачников выбирают проект, в котором постройка парной совмещает в себе две функции: банное помещение и жилую зону. А для этого нередко строится второй этаж, на котором и располагаются комнаты для отдыха и сна, отводя первый только под парилку и моечную. В ход идут также терраса, беседки и пристройки. В итоге получается всего одно сооружение, которое имеет сразу несколько предназначений. Возводить такую конструкцию и дешевле, и быстрее, нежели несколько одноэтажных зданий на одном участке. К тому же двухэтажная баня прекрасно подходит для временного размещения гостей, а также для обустройства личной мастерской, которая отделена от дома.

Проект двухэтажного деревянного дома бани может подразумевать второй этаж как дополнительное место для отдыха.
Проекты представлены в виде галереи в конце статьи — ПЕРЕЙТИ К ПРОЕКТАМ .
Проекты двухэтажных бань, да еще и с пристройками, намного сложнее. Но самостоятельно возвести по ним парную несложно. Главное – выбрать наиболее удачный проект двухэтажной бани, который будет учитывать все особенности местности, все пожелания домочадцев и будет гарантировать легкость и дешевизну обслуживания. На нашем сайте вы можете найти много вариантов проектирования двухэтажной бани. Но для начала важно уяснить для себя некоторые моменты.
Габариты будущей бани
Размеры бани напрямую зависят от того, как много человек будут ее эксплуатировать. Если это – семья из 4-5 человек, то вполне подойдет небольшая двухэтажная баня из бруса. А вот если планируется периодический отдых с друзьями или жить в таком домике нужно будет не один день – лучше сразу выбирать проект более просторной бани, где даже на втором этаже может быть сразу несколько помещений: спальня, комната отдыха, фитнес-зал…
Назначение второго этажа
Второй этаж бани можно обустроить в виде спальни, или бильярдной комнаты.
Исходя их того, как именно будет использоваться второй этаж бани, и нужно выбирать проект для строительства. На первом этаже целесообразней оставить только парилку, моечную и предбанник. Комнату отдыха можно оборудовать либо на террасе, либо на втором этаже.
Помещением второго этажа можно распорядиться как угодно: сделать из него бильярдную, спортзал, чайную, летнюю спальню. Но все больше становится популярным делать в таком помещении мини SPA-салон, который становится прекрасным дополнением парилке и моечной. Для этого применяется специальное оформление интерьера, ароматерапия с целебными запахами, устанавливаются различные вибромассажеры. Поэтому, если для строительства был выбран проект двухэтажной бани небольших размеров, именно такой SPA-уголок в ней можно оборудовать, превратив обычную парную в целый комплекс по домашнему оздоровлению.
Если же вам необязателен полноценный второй этаж и вполне утроит мансарда — возможно вам будет интереснее проекты бань с мансардой .
Наличие бассейна
Бассейн в бане делают в отдельной пристройке.
В больших двухэтажных банях нередко строится бассейн – этому позволяет площадь. Замеров и форм такой бассейн может быть любых, но важно помнить, что и от простой воды исходит испарение влаги, а потому гидроизоляция потолка нужна будет и в этом секторе — чтобы жилые помещения на втором этаже не оказались сырыми.
Если же двухэтажная баня небольшого размера, то можно выбрать проект бани с бассейном в особой пристройке. Для этого строится специальное помещение по типу веранды рядом с баней, используя одну из ее стен как общую. Стены такой конструкции могут быть полностью стеклянными – это даже сегодня модно. Но есть и другой вариант – бассейн под террасой. Для этого в землю ставятся особые, прочные стойки, на которые крепится навес. И уже под навесом устанавливается бассейн. Таким образом, наслаждаться прохладной водой после жаркой парилки можно на свежем воздухе, но не под открытым небом.
Система водоотвода
Если баня будет жилой даже только на летнее время, то важно позаботиться о хорошей системе водоотвода. Если дренажный колодец находится достаточно близко к источнику питьевой воды (основному колодцу или неглубокой скважине), то все отходы и вредные вещества из канализационных стоков могут легко попасть через грунтовые воды в источник нормальной воды.
Хорошо, если поблизости есть коллектор – в него несложно врезать трубу. В крайнем случае, можно провести канализационную трубу как можно дальше от бани в специальный ров, но на это лучше брать специальное разрешение от местных властей.
Устройство водоотвода в бане.
При выборе проекта двухэтажной бани не лишним будет обратить внимание на конструкцию лестницы. Если посещение бани планируется быть частым, чем удобнее будет лестница, тем лучше.
Самые компактные варианты, экономящие пространство – это витиеватые лестницы. Но подниматься по ним часто – не всегда комфортно. Более громоздки стандартные ступеньки. Но самый неудачный вариант, пусть и значительно экономящий место в бане, — это лестницы с наружи стен. После пребывания в парилке идти по такому сооружению может быть даже опасно из-за сквозняков. Поэтому изначально лучше выбирать проект с добротной и долговечной лестницей, которая не станет напряжением для позвоночника, а самое главное, — не будет скользить.
Система отопления
Для двухэтажной бани небольших размеров идеальный вариант отопления – кирпичная печь. Прогреваться она будет достаточно медленно, зато равномерно и долго станет отдавать тепло. В парилке будет соблюдаться стабильность температуры, а жилые помещения на втором этаже не будут перегреваться. Для них даже нет нужды проводить специальное отопление – труба, выходящая из первого этажа, будет хорошо прогревать все помещение. Достаточно будет только качественно утеплить стены.
А вот для двухэтажной бани большой площади одной печи для зимнего обогрева всего строения будет мало. Для этого нужно дополнительное отопление, и не самый плохой вариант – газовый тип.
Тип фундамента
Двухэтажные бани имеют более совокупную массу, чем одноэтажные, а потому предполагают возведение более мощного и заглубленного фундамента. Особенно, если баня построена из достаточно тяжелого материала.Бани из двух жилых этажей на сегодняшний день – дань современному миру, который все больше стремится к практичности и комфорту. И построить собственными руками можно практически любого вида двухэтажные бани: проекты и четкая инструкция есть у нас на сайте. Остается только закупить необходимый строительный материал и мебель. Ведь издавна такие постройки возводились самими хозяевами – без дорогостоящих услуг строительных фирм.
Предлагаем вашему вниманию некоторые проекты:
Схема-проект двухэтажного деревянного дома Дизайн мансарды своими руками. Бассейн в бане Устройство водоотвода в бане.
Проекты двухэтажных бань
Двухэтажные бани особенно привлекательны тем, что позволяют использовать второй этаж под жилое помещение. Это подходит тем, кто не проживает на даче постоянно, а только лишь приезжает на выходные-праздники.
Проекты двухэтажных бань можно разделить на простые и сложные.
– простые проекты – позволяют получить все необходимое для качественного проведения гигиенических процедур и полноценного отдыха, задействовав при этом небольшую площадь участка. В этом случае, первый этаж отдается под парную и моечную. А на втором можно обустроить жилое помещение.
– сложные проекты двухэтажных бань разработаны для людей, которые хотят подчеркнуть свое благосостояние. Здесь во главу всего поставлен комфорт и удобство пользователей. Первый этаж такой бани включает в себя парную, моечную, зону отдыха, которая может быть обустроена бассейном (фото). Различные хозяйственные помещения – дровницу, тамбур, санузел, прачечную и т.п. Часто здесь же организуют небольшой тренажерный зал. На втором этаже удобно располагать спальни, бильярдную, рабочий кабинет.




Двухэтажные бани обладают очевидными преимуществами, такими как:
- больше полезной площади и одновременная сохранность площади участка;
- сокращение расходов на отопление. На втором этаже теплее за счет влияния горячего воздуха, который поднимается из парной;
- презентабельный внешний вид.
Следует отметить, что проектируется второй этаж одновременно с первым. Поскольку в проекте должны быть учтены нормативы допустимых нагрузок. Кроме того, нужно продумать все коммуникации: провести водопровод, устроить в бане вентиляцию и многое другое. Их, в двухэтажном строении провести сложнее, нежели в одноэтажном. Ведь строение должно быть не только многофункциональным, но и в первую очередь безопасным и прочным.
Выбрав один из готовых проектов или создав вместе с архитектором свой собственный вы получите баню и жилые помещения, соединив, таким образом, воедино и приятное, и полезное.
Двухэтажные бани: проекты и фото
Баня в два этажа может использоваться не только по прямому назначению. Часто на вторых ярусах обустраивают бильярдные комнаты отдыха, студии и даже спальни. В любом случае если вы запланировали такую стройку, каждый квадрат будет задействован по назначению. На фотографиях ниже будут рассмотрены различные проекты.
Двухэтажная баня обшитая сайдингом.


Планировка первого этажа, выполнена без ущемления какого-либо помещения. Все комнаты просторные и уютные.
Второй этаж немного меньше, но места для обустройства двух жилых комнат вполне достаточно.
Двухэтажная баня с террасой и высоким остеклением.
В планировке первого этажа продуманная просторная комната отдыха, парная и душевая.
Пространства второго этажа вполне достаточно для дополнительных помещений.
Баня в два этажа с мансардой


На первом этаже достаточно места даже для обустройства бассейна, а на втором предусмотрены две уютные спальни и выход на террасу.
Двухэтажная баня с мансардой на третьем ярусе.


Большая терраса на первом этаже позволяет создать функциональную зону отдыха. Внутри просторный холл и компактные помещения для банных процедур.
Второй этаж оформлен под жилые комнаты с отдельным санузлом.
Двухэтажный дом-баня из сруба.
Полноценный жилой комплекс с банными помещениями на первом и комнатами для проживания на втором этаже.
Дом-баня из оцилиндрованного бревна.


На первом этаже терраса, внутри на входе большая комната отдыха, парная и моечная с небольшой купелью.
Второй этаж оформлен как большая студия с бильярдным столом и мебелью для отдыха.
Проект бани 109м2 13х6,5м.
Просторная баня в два этажа с террасой. 
Большая комната отдыха на входе. По правую руку душевая, через которую можно пройти в парилку. Вход в котельную с другой стороны здания. Отдельно нужно отметить наличие кладовой комнаты.
На втором этаже просторный холл, по обе стороны от которого две больших спальни.
Баня двухэтажная из бруса.
Удобная планировка помещения позволяет не только попариться, но и просто отдохнуть. На первом этаже комната отдыха, совмещенная с кухней. На втором, просторная мансарда с выходом на балкон.
Источники: http://vasha-banya.com/proekti/proekty-dvuxetazhnyx-ban.html, http://banizhar.ru/proekty-dvuhetazhnyh-ban, http://proekt-banya.ru/article/dvuhetazhnye-bani
v-banyu.ru
в чем ее преимущества и как оборудовать верхний этаж
Одна из часто встречающихся построек на дачном участке – баня в 2 этажа. Ее популярность обусловлена тем, что здание занимает сравнительно небольшую площадь и является более функциональным, чем одноэтажное сооружение. Такие бани могут быть сконструированы из разных материалов. Время, затраченное на строительство парилки своими руками, будет зависеть от технологии, выбранных конструктивных элементов и, конечно же, вашего мастерства.

Проект двухэтажной бани
Материал для постройки бани
Для строительства часто используют:
- дерево;
- газобетон;
- пеноблок;
- кирпич.
Одним из самых ходовых и популярных для строительства считают дерево. Деревянные брусья имеют высокие показатели теплоизоляции. Они долговечны, удобны в обработке, а также являются отличным декоративным материалом. Исходя из этого, многие используют клееный или профилированный массив. Кроме его надежности, есть еще один плюс: усадка брусьев минимальна. Во время строительства сруб собирается не слишком плотно, чтобы после усадки не возникло проблем.
Деревянная баня из бревен имеет не просто привлекательный вид, но и чем-то напоминает старинное сооружение. И при этом данный материал хорошо сохраняет тепло, не выделяет вредные вещества при повышении температуры в помещении, а также характеризуется прочностью и износостойкостью конструкции. Но строительство двухэтажной сауны может затянуться. Ведь, в отличие от брусьев, оцилиндрованные бревна дают большую усадку. Если в первом случае она составляет всего лишь 2 %, то во втором следует ожидать все 10 %.
Использование оцилиндрованных бревен позволяет сделать стены максимально ровными.
Газоблоки обладают высокой теплопроводностью и отлично впитывают влагу. Поэтому они считаются лучшим материалом для строительства бани. Но за счет своей пористости прочность стен из газоблоков уменьшается. Во время строительства по этой же причине необходимо армировать каждый 3–4 ряд. Это позволит укрепить конструкцию и сделать второй этаж в бане более надежным. Также из-за гигроскопичности специалисты рекомендуют устраивать гидро- и пароизоляцию как снаружи, так и внутри помещения.
Для строительства бани со вторым этажом можно использовать пеноблок. Главными его достоинствами является легкость укладки, высокая скорость возведения дома и отличная теплоизоляция бани. Даже несмотря на внушительные размеры, пеноблоки не слишком тяжелые. Их свойства теплопроводности практически ни чем не уступают кирпичным сооружениям. Поэтому в утеплении баня не нуждается. Дополнительная теплоизоляция может понадобиться лишь парилке.
Бани из кирпича имеют массу достоинств.
- во-первых, такое здание при правильной технологии и соблюдении инструкций по возведению кирпичных сооружений будет долговечным и прочным;
- во-вторых, сам кирпич обладает повышенной пожаробезопасностью, а в случае с эксплуатацией бани огнестойкость материала играет немаловажную роль;
- и, в-третьих, кирпичное сооружение имеет хорошие теплоизоляционные характеристики.
Такой материал позволяет создать интересный проект бани с верандой и мансардой, а также сэкономить на внешней отделке дома.
Проектировка банных строений
Двухэтажные бани своей функциональностью некоторым людям даже заменяют традиционный дачный домик для отдыха. На первом этаже планировка может включать в себя бассейн, парную, помывочное отделение. А на втором этаже бани можно сделать бильярдную, комнату для отдыха, помещение для хранения банных принадлежностей или игровую для детей. Какой проект лучше – каждый хозяин решает самостоятельно, исходя не только из своих личных предпочтений, но и бюджетных возможностей.
Первым этапом строительства бани является проектирование. Здесь можно пофантазировать. Размер здания и площадь комнат каждый хозяин делает по своему усмотрению. Но важным моментом является эксплуатация бани. Если вы планируете использовать парилку не только летом, но и зимой, то вход в первое помещение должен осуществляться через тамбур. Его можно сделать с помощью возведения перегородки в комнате отдыха или же пристроить снаружи.

Планировка двухэтажной бани
При проектировании первого этажа бани помывочному отделению выделяют небольшое помещение. Более просторной делают парную. В ней размещаются лавки и печка. Поэтому важно правильно рассчитать помещения размеры как по длине, так и по высоте. Большой также делают и комнату отдыха. Ведь простор создает комфортные условия во время отдыха. Если площадь помещения достаточно большая, то мойку можно перегородить, организовав там санузел. Для вентиляции и быстрого высыхания в помывочном отделении и парной нужно сделать окна. Но в парилке оно должно находиться прямо напротив двери.
Также на первом этаже можно пристроить просторную террасу с зоной для барбекю или летнюю беседку. А вот второй этаж в бане тогда стоит организовать в виде мансарды или обустроить две спальни с выходом в общий холл. Установив в помещении домашний кинотеатр или телевизор, хозяева смогут прекрасно провести время за просмотром любимых фильмов как в кругу семьи, так и в компании своих друзей.
Интересный дизайн холла позволяет сделать комнату не только уютной, но и функциональной.
Строительство бани из деревянного бруса
Работы начинаются с основания. Для этого по всему периметру укладываются деревянные рейки, которые предварительно обрабатываются антисептиком. Их толщина должна быть больше, чем 1,5 см, чтобы нижний ряд был прочным. Промежутки между рейками заделывайте монтажной пеной либо с помощью утеплителя.
Толщина сруба на следующих рядах должна быть немного меньше чем на первом венце. При возведении стен нужно учесть усадку брусьев. Поэтому их необходимо укладывать не сильно плотно. В процессе строительства двухэтажной парилки углы каркаса нужно оснастить специальными вырубками, с помощью которых будет соединяться ряды.
Прочие тонкости возведения 2-этажной бани
Этапы работ | Особенности |
| Фиксировать материал для стен надо металлическими штырями. | Для этого на концах сруба просверливают отверстия, с помощью которых брусья будут одеваться на штыри. Отверстия нужно проделывать на расстоянии 1–1,5 метра друг от друга. А вот на последних двух рядах брусья не просверливают. Для установки окон и дверей в срубах вырезаются соответствующие проемы. |
| Следующим пунктом будет утепление каркасной бани. | Для теплоизоляции могут использоваться натуральные либо искусственные материалы – на усмотрение хозяев. Лучшими в этом плане считаются пиломатериалы, эковата или ее синтетические аналоги. Утеплитель крепится поверх деревянных брусьев и фиксируется с помощью степлера. |
| Дальше выполняются работы по возведению крыши. | Она может быть односкатной или двухскатной, выбирать вам. Первый вариант проще. Для него нужно смонтировать поперечные перекладины под небольшим наклоном и накрывается любым кровельным материалом. |

Схема двускатной крыши бани
Двухскатная крыша делается из стропил. А в качестве покрытия можно использовать еврочерепицу или другой подходящий материал.
Возведение бани из блоков
Для укладки первого ряда используется раствор. А вот дальше нужен специальный строительный клей. Определив высочайший угол сооружения с помощью уровня, начинаем постепенно возводить стены парилки. Через каждые три ряда в пеноблоках укладывается армирующая сетка, которая придает конструкции прочности и надежности. А так как у нас строительство двухэтажного здания, этот момент очень важен. Во время возведения стен стоит оставить место для окон и дверей, согласно созданному проекту.
Закончив панели дома, переходим к кровле. Здесь схема та же, что и при строительстве деревянной бани. Плюсом использования пеноблока является скорость возведения конструкции. Но для этого необходимо иметь опыт и соответствующие знания. Так, например, специалисты рекомендуют искать пеноблоки, у которых в наличии шип или паз. Это позволит избежать просвечивания швов, обеспечив лучшую герметизацию панелей. Высокие показатели гигроскопичности являются минусом материала. Но сделав гидроизоляцию и пароизоляцию с обеих сторон стены, вы обеспечите максимально комфортные условия в бане.
Лестница в двухэтажной парилке
Это один из неотъемлемых элементов 2-этажного дома. Она должна быть не только надежной, но и практичной. Если комната отдыха в бане не слишком большая, то лучше использовать винтовые конструкции. Они хоть не слишком удобные, но зато занимают мало места. А вот стандартные лестницы слишком громоздкие, но зато комфортные и более безопасные. Также бывают проекты с лесенкой на улице. Это не так удобно, но, тем не менее, экономит площадь бани.

Немаловажную роль в постройке лестницы играет ее безопасность. Необходимо учесть тот фактор, что в бане повышенная влажность, которая становится причиной скольжения. Поэтому материалы для конструкции нужны не просто хорошего качества, они должны полностью отвечать всем требованиям по эксплуатации парилки.
Интерьер внутренних помещений
Баня – это отличное место для отдыха, а правильно подобранный дизайн комнат дополнит гармонию во время проведения банных процедур. Популярной отделкой является оформление помещений в русском стиле. В комнатах лаконично смотрятся массивные деревянные столы с лежаками. А такие «мелочи», как плазменный телевизор или бильярдная станут современной изюминкой вашей бани.
Для внутренней отделки бани лучше всего брать дерево одной породы. Причем оно должно быть без лакового покрытия, так как подобные средства при нагревании комнаты в бане могут выделять опасные для здоровья человека вещества. Также интерьер хорошо бы дополнить коваными элементами или разными предметами, украшенными резьбой. На стенах можно повесить березовые веники или связки с травами. Отлично смотрятся в оформлении панели из камней или декоративного кирпича.
Нотки изысканности могут добавить интересные современные светильники и бра. Мебель для парилки лучше брать округлой формы. А для создания идеальной расслабляющей обстановки в бане подойдут мягкие и нежные цвета. Не стоит также слишком загромождать комнаты, надо оставить в них достаточно пространства. Ведь немаловажными показателями хорошего отдыха в бане должны быть ощущения уюта и спокойствия.
Строительство двухэтажной парилки при соблюдении всех правил и рекомендаций позволит сэкономить место на собственном участке, благодаря чему вы сможете организовать дополнительную зону отдыха. А создание интересного дизайна в помещениях сделает вашу баню настоящим оазисом для релаксации.
poparimsya.online
Основные положения проекта бани в 2 этажа
О своей бане мечтает почти каждый владелец садового участка либо частного дома. В последнее время особой популярностью пользуются проекты бань 2 этажа, хоть и обходятся они гораздо дороже своих одноэтажных аналогов. Имея в запасе даже небольшое количество свободного пространства, можно построить хорошую парную, в которую будет не стыдно пригласить друзей и родственников. Если места недостаточно для воплощения всех идей, можно построить баню в два этажа.
Любители попариться в бане предпочитают различные варианты. Кому-то больше нравятся компактные сауны, а другие предпочитают внушительных размеров парилки, где может обустроиться большая компания. При этом нужно учесть, что крупные бани нагреваются медленнее и требуют большего расхода топлива.
Но самой главной статьей расходов все же остается само строительство. Важно, чтобы баня включала в себя не только парную, но и удобную моечную, комнату для отдыха, где смогут расположиться все гости и провести время за чашкой чая либо за бокалом пива.
Некоторые владельцы участков максимально используют имеющуюся в наличии землю. К примеру, на крупном участке можно воплотить в жизнь проект бани в 2 этажа. Такие проекты очень дорогие, но пользуются спросом у состоятельных людей. Стоит заметить, что в бане 6х6, да еще и двухэтажной, можно обустроить целый банный комплекс. Сюда, помимо стандартной парной, моечной и комнаты для отдыха можно вместить бассейн, просторную прихожую и соорудить на втором этаже балкон-террасу, где смогут отдыхать гости, если позволят погодные условия.
Из чего построить двухэтажную баню?
Что касается материалов, то они могут быть любыми. Двухэтажную баню можно возводить из блоков, но только из тех, которые отличаются высоким уровнем теплоизоляции. Такой вариант будет несколько дешевле, нежели баня из дерева. И все же, именно проекты бань из бревна 2 этажа являются русской классикой. Построить двухэтажную баню из деревянных бревен самостоятельно будет очень сложной задачей. Для этого нужны хотя бы минимальные знания в этой области.
Немалой популярностью в последнее время пользуются проекты бань из бруса в 2 этажа. Каркасные сооружения можно заказать у профессионалов. Здания выполняются в любом варианте, то есть, мастера могут построить и двухэтажную баню по проекту заказчика.
В данном случае строительные затраты будут несколько больше, нежели самостоятельное возведение бани, но при этом владелец участка сможет сэкономить свое драгоценное время и силы. Нельзя не отметить и тот факт, что к двухэтажным строениям требования более жесткие, чем к одноэтажным зданиям, тут нужен очень крепкий фундамент, так как нагрузка будет достаточно большой. Справиться с этой задачей под силу лишь профессионалам. Кроме того, они смогут правильно утеплить и оборудовать помещение всем необходимым для качественного и полноценного отдыха.
Особенности обустройства двухэтажной бани
К строительству здания, в котором планируются высокие температуры и большая влажность, необходимо подойти очень ответственно. Особенно важно все делать по правилам, когда речь идет о бане в два этажа.
Если на участке достаточно много места, можно построить довольно большое здание и сделать в нем целый банный комплекс. К примеру, если это проект бани 2 этажа 6х6, то в ней может поместиться даже небольшой бассейн. Его нужно расположить на первом этаже рядом с парной. Второй этаж будет занимать комната отдыха. Здесь же стоит обустроить террасу, на которой можно отдохнуть и выпить чашку чая в хорошую погоду.
Специалисты рекомендуют не обустраивать комнату для отдыха сразу рядом с тамбуром.
Если есть такая возможность, нужно чтобы между этими помещениями было дополнительное пространство, хотя бы небольшой коридор. Это позволит избежать проникновения холодного воздуха в комнату для отдыха, то есть, люди не будут чувствовать дискомфорт.
Двери в моечную и парилку должны открываться наружу. Это необходимо для сдерживания тепла в помещении. Кроме того, специалисты рекомендуют установить в парилке пару окон. По правилам русской бани они должны быть в этом помещении. Их чаще всего использовали не для освещения, а для вентиляции. Окна должны быть маленькими. Одно из них должно располагаться напротив двери, а другое — под самым потолком. Не помешает окошко и в моечной. Оно понадобится для проветривания. Также это одно из правил пожарной безопасности, так как через окно в можно будет легко выбраться на улицу.
На что обратить внимание при строительстве двухэтажной бани?
Прежде, чем начинать возведение бани и производить закупку необходимых материалов, следует составить четкий план. Только правильно составленный проект бани позволит построить не только качественное, но и безопасное помещение для отдыха и гигиенических процедур. Если речь идет о проекте бани 2 этажа из бревна либо другого материала, то тут нужно быть особенно внимательным и все тщательно просчитать. Нужно сразу распределить, где именно будет находиться то или иное помещение, и обратить внимание на систему водоснабжения и отопления.
Часто второй этаж бани отводят под комнату для отдыха и террасу. Если же здание достаточно большое, к примеру, проект бани 6х6 2 этажа, то на верхнем этаже можно обустроить даже спальную комнату. В ней смогут останавливаться гости.
Если с первым этажом все довольно просто, то есть, сюда будет проведена вода, а отопление будет проходить от печи в парилке, то отапливать второй этаж несколько сложнее. В том случае, когда на втором этаже планируется сделать жилую комнату, необходимо позаботиться об альтернативном источнике тепла, так как печь в бане будет топиться не всегда. Если речь идет о теплом регионе страны, можно использовать обычный электрический обогреватель.
Не стоит забывать и о вентиляции. Она должна быть не только на первом, но и на втором этаже. Для настоящей русской бани лучше установить в парной дополнительный люк. Его нужно будет периодически открывать, чтобы не пускать влажный горячий пар на второй этаж. Эту проблему можно решить качественной вентиляционной системой, разработанной профессионалами.
Еще на этапе создания проекта необходимо распределить комнаты. Вполне возможно, что владелец участка решит сэкономить и обустроить на верхнем этаже террасу. В этом случае строительных материалов будет потрачено гораздо меньше.
Специалисты утверждают, что самый недорогой вариант – это проект бани из бруса 6х6 2 этажа. Подобная технология позволяет сделать здание не слишком тяжелым, что существенно сократит нагрузку на фундамент. При всем при этом парная и дополнительные помещения будут очень теплыми. Тем не менее, несмотря на все плюсы бруса, его стоит дополнительно утеплить, чтобы продлить срок эксплуатации здания.
Как выбрать материалы?
Опытные строители говорят о том, что наиболее оптимальным размером проекта бани 2 этажа является 6х6. Это позволяет удобно работать с бревнами и брусом, так как для них шестиметровая длина является стандартом. Таким образом, можно максимально точно рассчитать материалы и получить минимальное количество расходов.
Но тут нужно учесть и такой момент, как расходы. Речь идет не только о строительстве, но и об отоплении. Чтобы прогреть большую парную и все остальные комнаты, понадобится большое количество топлива, а оно в наше время стоит дорого.
Если финансовая нагрузка для строительства большой бани слишком велика, можно обратить внимание на менее масштабные проекты. К примеру, бани 5х3 вполне достаточно для того, чтобы оборудовать все необходимые помещения для комфортного отдыха. Если семья небольшая, то бани 5х3 вполне достаточно. При желании можно сделать здание двухэтажным, а на втором этаже расположить комнату для отдыха.
Проблемой такой бани может быть лишь подбор подходящего материала, так как нестандартные размеры могут перерасти в дополнительные расходы. Специалисты рекомендуют строить здания нестандартных размеров из блоков. Так расход материалов будет оптимальным.
Нередко, когда у заказчика нет желания строить большую баню, то есть 6х6 или более, мастера рекомендую остановить свой выбор на проекте 6х3. Таким образом, можно решить проблему с материалами, если баня будет строиться из бруса. Часто в таком случае совмещается моечная с парилкой, а комната для отдыха просто выносится на второй этаж. В результате за половину стоимости можно получить полноценную и очень удобную баню.
banyabest.ru
Проект двухэтажной бани 6х6, план, цена
Двухэтажная баня ДБ1



(нажмите на проект для увеличения)


Взглянув на проект двухэтажной бани 6х6 можно предположить, что в ней могут находится сразу несколько людей, отсюда , заказывая деревянную баню по проекту, вы имеет возможность пригласить большую компанию и с пользой отдохнуть и провести время.
Площадь бани составляет 50,9 кв.м., из них терраса 8,3 кв.м. План бани включает в себя, парное отделение, моечное отделение, комнату — раздевалку и большую комнату — спальню с выходом на балкон.
Двухэтажная баня 6х6 из бруса на первом этаже располагает комнатой отдыха, в которой чаще всего располагают лавки, диван с вешалками, для удобства раздевания, перед водными процедурами, так же ставят стол для отдыха после них. Традиционно планировка вбирает в себя мойку и парную с полоками из осины.
Второй этаж бани имеет только одно помещения, комнату почти в 16 кв.м., функция которого, это отдых и сон после банных процедур, при этом вбирая приятный аромат экологически чистого материала древесины хвойных пород, в частности сосны, из которого и изготовлена баня.
После посещения парного отделения, вы можете выйти на свежий воздух на практичную и просторную открытую террасу подышать чистым загородным воздухом.
Приятный запах древесины, создаёт в красивой двухэтажной бане уникальную атмосферу, а древесина хвойных пород деревьев обладают и рядом целительных свойств, которые благоприятно влияют на самочувствие человека.
Проект: ДБ-1
Размеры: 6х6 м
Цена брус 100х150 мм: 372.000 руб
Цена брус 150х150 мм: 398.000 руб
Цена брус 150х200 мм: 460.000 руб
Профилированный брус. При строительстве своих бань используем только качественный материал, профилированный брус собственного производства.
(нажмите на фото для увеличения)Столярные изделия. Заключительным этапом монтажа бани являются отделочные работы. В качестве столярных изделий используются деревянные окна 1,2х1,0 (0,6х0,6 в парную). Все окна двойные, зимние, остеклённые, с фурнитурой. Двери деревянные филенчатые 2,0х0,8, входная-металлическая. Возможно изготовить и иные размеры под заказчика, а так же монтаж окон пластиковых ПВХ,
Фото брусовых бань. При монтаже используем проверенные технологии, строим с нуля и «прод ключ».
Печи для бани. Для деревянных бань используем следующие виды печей для, для топки парной в бани. Ставим следующие модели: Теплодар, Ермак и пр. Так же производим монтаж печей с варочными панелями в домах(банях). Некоторые фото здесь. Подробнее о печах для бани
Вид бани изнутри. При монтаже печи в парном отделении соблюдаем строительные и противопожарные нормы. Возможно заказать обкладку(разделку) кирпичом топочной. Отделка парной по технологи идёт осиновой вагонкой по фольге, установка полоков.
Техническое описание одноэтажной бани из бруса 6×6
- 1. Тип фундамента: опорно-столбчатый
- 2. Материал капитальных стен: профилированный брус 150ммх100, 150х150, 150х200
- 3. Способ крепления венцов: на металлические нагеля (гвозди 200мм), (на деревянные нагеля за доп. плату)
- 4. Рубка углов выполняется: «в пол дерева» («в тёплый угол», он же шип-паз, за доп. плату)
- 5. Межвенцовый утеплитель: «джут»
- 6. Материал «черного пола» и обрешетки крыши: материал «чёрного пола» обрезная доска 20мм, обрешётка из обрезной доски 20мм с шагом не более 400мм
- 7. Материал лаг и стропильной системы дома: лаги из бруса 150ммх100 с шагом не более 1,0 м., стропила 50ммх100 с шагом не более 1,0 м.
- 8. Доска пола и способ крепления: половая доска (шпунтованная) 28мм крепятся на гвозди. (доска пола шпунт 36мм за доп. плату)
- 9. Высота потолка: 1 этаж — 2,35-2,4м.( 17 венцов), 2 этаж -2,3м.
- 10. Отделочные материалы: фронтонов, мансарды, потолков и свесов крыши: вагонка хвойных пород
- 11. Используемый теплоизоляционный материал «URSA»: пол 1 этажа — 100 мм., пол, потолок, стены (вся мансарда) 50мм.
- 12 Используемый пароизоляционный материал: «изоспан» (укладывается на пол и потолок, стены)
- 13. Используемый гидроизоляционный материал: рубероид (укладывается между фундаментом и нижнем венцом)
- 14. Тип крыши: двухскатная
- 15.Используемый кровельные материалы: ондулин (красный, коричневый, зелёный)
- 16. Столярные изделия: а) Дверные блоки: межкомнатные – филенчатые (2,0х0,8м.), входная металлическая, с замком и глазком.
б) Оконные блоки: открывающиеся, двойные, остеклённые, с фурнитурой (1,2х1м.), в парное отделение (0,6х0,6м.)
- 17. Перегородки: 1 этаж — профилированный брус 145х90мм., 2 этаж — каркасно-щитовые
- 18. Парная обшивается осиновой вагонкой по фольге, устанавливаются полоки
- 19. Бытовка для проживания строителей 3*2 м.,по окончанию строительства остаётся заказчику (за доп. плату, поставляется, если нет жилья на участке заказчика для строителей)
- 20. Генератор в аренду, горючее заказчика (за доп. плату поставляется, если отсутствует электричество на участке заказчика)
- 21. Установка печи по желанию заказчика за доп. плату
Брус естественной влажности (атмосферной) сушки (брус камерной сушки(сухой) за доп. плату)
На стыки углов стен, потолка прибивается хвойный плинтус.
Примечание: Антисептирование нижней обвязки и черновых полов, ройки (обсада) в окна и двери, покраска дома снаружи, завоз бытовки и генератора за доп. плату.
Возможна замена фундамента, окон на ПВХ, увеличения толщины утепления, замена кровли на профнастил, металлочерепицу и пр.
Доставка в радиусе 500 км от г Пестово (Новгородской области) бесплатно.
- Дополнительные услуги:
Двойная обвязка
Ройки(обсада) в дверные и оконные проёмы
Антисептирование нижней обвязки и черновых полов
Покраска дома снаружи в один слой
Пароизоляция под кровлю
Сборка на деревянные нагеля
Сухой брус камерной сушки
Замена кровли (ондулин) на металлочерепицу, профнастил.
Замена деревянных окон на пластиковые ПВХ
Подробнее смотрите
Смотрите перечень материалов, применяемых в строительстве
Смотрите подробно ответы на часто задаваемые вопросы по строительству
Сервис для расчёта расстояний и как заказать строительство
>>>Все проекты бань из бруса
>>> О технологии сборки бани
Заказать
Скидки
Гарантия
Доставка
domato.ru
Проекты лучших двухэтажных бань. Проекты двухэтажных бань
О своей бане мечтает почти каждый владелец садового участка либо частного дома. В последнее время особой популярностью пользуются проекты бань 2 этажа, хоть и обходятся они гораздо дороже своих одноэтажных аналогов. Имея в запасе даже небольшое количество свободного пространства, можно построить хорошую парную, в которую будет не стыдно пригласить друзей и родственников. Если места недостаточно для воплощения всех идей, можно построить баню в два этажа.
Любители попариться в бане предпочитают различные варианты. Кому-то больше нравятся компактные сауны, а другие предпочитают внушительных размеров парилки, где может обустроиться большая компания. При этом нужно учесть, что крупные бани нагреваются медленнее и требуют большего расхода топлива.
Но самой главной статьей расходов все же остается само строительство. Важно, чтобы баня включала в себя не только парную, но и удобную моечную, комнату для отдыха, где смогут расположиться все гости и провести время за чашкой чая либо за бокалом пива.
Некоторые владельцы участков максимально используют имеющуюся в наличии землю. К примеру, на крупном участке можно воплотить в жизнь проект бани в 2 этажа. Такие проекты очень дорогие, но пользуются спросом у состоятельных людей. Стоит заметить, что в бане 6х6, да еще и двухэтажной, можно обустроить целый банный комплекс. Сюда, помимо стандартной парной, моечной и комнаты для отдыха можно вместить , просторную прихожую и соорудить на втором этаже балкон-террасу, где смогут отдыхать гости, если позволят погодные условия.
Из чего построить двухэтажную баню?
Что касается материалов, то они могут быть любыми. Двухэтажную баню можно возводить из , но только из тех, которые отличаются высоким уровнем теплоизоляции. Такой вариант будет несколько дешевле, нежели баня из дерева. И все же, именно проекты бань из бревна 2 этажа являются русской классикой. Построить двухэтажную баню из деревянных бревен самостоятельно будет очень сложной задачей. Для этого нужны хотя бы минимальные знания в этой области.
Немалой популярностью в последнее время пользуются проекты бань из бруса в 2 этажа. Каркасные сооружения можно заказать у профессионалов. Здания выполняются в любом варианте, то есть, мастера могут построить и двухэтажную баню по проекту заказчика.
В данном случае строительные затраты будут несколько больше, нежели самостоятельное возведение бани, но при этом владелец участка сможет сэкономить свое драгоценное время и силы. Нельзя не отметить и тот факт, что к двухэтажным строениям требования более жесткие, чем к одноэтажным зданиям, тут нужен очень крепкий фундамент, так как нагрузка будет достаточно большой. Справиться с этой задачей под силу лишь профессионалам. Кроме того, они смогут правильно утеплить и оборудовать помещение всем необходимым для качественного и полноценного отдыха.
Особенности обустройства двухэтажной бани
К строительству здания, в котором планируются высокие температуры и большая влажность, необходимо подойти очень ответственно. Особенно важно все делать по правилам, когда речь идет о бане в два этажа.
Если на участке достаточно много места, можно построить довольно большое здание и сделать в нем целый банный комплекс. К примеру, если это проект бани 2 этажа 6х6, то в ней может поместиться даже небольшой бассейн. Его нужно расположить на первом этаже рядом с парной. Второй этаж будет занимать комната отдыха. Здесь же стоит обустроить террасу, на которой можно отдохнуть и выпить чашку чая в хорошую погоду.
Если есть такая возможность, нужно чтобы между этими помещениями было дополнительное пространство, хотя бы небольшой коридор. Это позволит избежать проникновения холодного воздуха в комнату для отдыха, то есть, люди не будут чувствовать дискомфорт.
Двери в моечную и парилку должны открываться наружу. Это необходимо для сдерживания тепла в помещении. Кроме того, специалисты рекомендуют установить в парилке пару окон. По правилам русской бани они должны быть в этом помещении. Их чаще всего использовали не для освещения, а для вентиляции. Окна должны быть маленькими. Одно из них должно располагаться напротив двери, а другое — под самым потолком. Не помешает окошко и в моечной. Оно понадобится для проветривания. Также это одно из правил пожарной безопасности, так как через окно в можно будет легко выбраться на улицу.
На что обратить внимание при строительстве двухэтажной бани?
Прежде, чем начинать возведение бани и производить закупку необходимых материалов, следует составить четкий план. Только правильно составленный проект бани позволит построить не только качественное, но и безопасное помещение для отдыха и гигиенических процедур. Если речь идет о проекте бани 2 этажа из бревна либо другого материала, то тут нужно быть особенно внимательным и все тщательно просчитать. Нужно сразу распределить, где именно будет находиться то или иное помещение, и обратить внимание на систему водоснабжения и .
Часто второй этаж бани отводят под комнату для отдыха и террасу. Если же здание достаточно большое, к примеру, проект бани 6х6 2 этажа, то на верхнем этаже можно обустроить даже спальную комнату. В ней смогут останавливаться гости.
Если с первым этажом все довольно просто, то есть, сюда будет проведена вода, а отопление будет проходить от печи в парилке, то отапливать второй этаж несколько сложнее. В том случае, когда на втором этаже планируется сделать жилую комнату, необходимо позаботиться об альтернативном источнике тепла, так как печь в бане будет топиться не всегда. Если речь идет о теплом регионе страны, можно использовать обычный электрический обогреватель.
Не стоит забывать и о вентиляции. Она должна быть не только на первом, но и на втором этаже. Для настоящей русской бани лучше установить в парной дополнительный люк. Его нужно будет периодически открывать, чтобы не пускать влажный горячий пар на второй этаж. Эту проблему можно решить качественной вентиляционной системой, разработанной профессионалами.
Еще на этапе создания проекта необходимо распределить комнаты. Вполне возможно, что владелец участка решит сэкономить и обустроить на верхнем этаже террасу. В этом случае строительных материалов будет потрачено гораздо меньше.
Специалисты утверждают, что самый недорогой вариант – это проект бани из бруса 6х6 2 этажа. Подобная технология позволяет сделать здание не слишком тяжелым, что существенно сократит нагрузку на фундамент. При всем при этом парная и дополнительные помещения будут очень теплыми. Тем не менее, несмотря на все плюсы бруса, его стоит дополнительно утеплить, чтобы продлить срок эксплуатации здания.
Как выбрать материалы?
Опытные строители говорят о том, что наиболее оптимальным размером проекта бани 2 этажа является 6х6. Это позволяет удобно работать с бревнами и брусом, так как для них шестиметровая длина является стандартом. Таким образом, можно максимально точно рассчитать материалы и получить минимальное количество расходов.
Но тут нужно учесть и такой момент, как расходы. Речь идет не только о строительстве, но и об отоплении. Чтобы прогреть большую парную и все остальные комнаты, понадобится большое количество топлива, а оно в наше время стоит дорого.
Если финансовая нагрузка для строительства большой бани слишком велика, можно обратить внимание на менее масштабные проекты. К примеру, бани 5х3 вполне достаточно для того, чтобы оборудовать все необходимые помещения для комфортного отдыха. Если семья небольшая, то бани 5х3 вполне достаточно. При желании можно сделать здание двухэтажным, а на втором этаже расположить комнату для отдыха.
Проблемой такой бани может быть лишь подбор подходящего материала, так как нестандартные размеры могут перерасти в дополнительные расходы. Специалисты рекомендуют строить здания нестандартных размеров из блоков. Так расход материалов будет оптимальным.
Нередко, когда у заказчика нет желания строить большую баню, то есть 6х6 или более, мастера рекомендую остановить свой выбор на проекте 6х3. Таким образом, можно решить проблему с материалами, если баня будет строиться из брус
starer.ru
